Furthering the Development of Virtual Agents and Communication Robot Devices through the Consideration of the Temporal Home
Abstract
1. Introduction
2. Methodological Framing
2.1. Roleplay
2.2. Temporal Lens
2.3. Domestic Work
3. Materials and Methods
3.1. Research Sample
3.2. Operationalising Roleplay
“You, ‘the employer’ want to hire a personal assistant (PA) for your home. To hire an appropriate PA, the recruitment agency worker needs to understand what your current weekday routine looks like. To achieve this, the recruitment agency worker will undertake a household audit; they will need to be guided around your home while you re-enact your daily household activities. Then, the recruitment agency worker will conclude the household audit by documenting critical dimensions of your home to create architectural floor plans.”
3.3. Household Audit Method
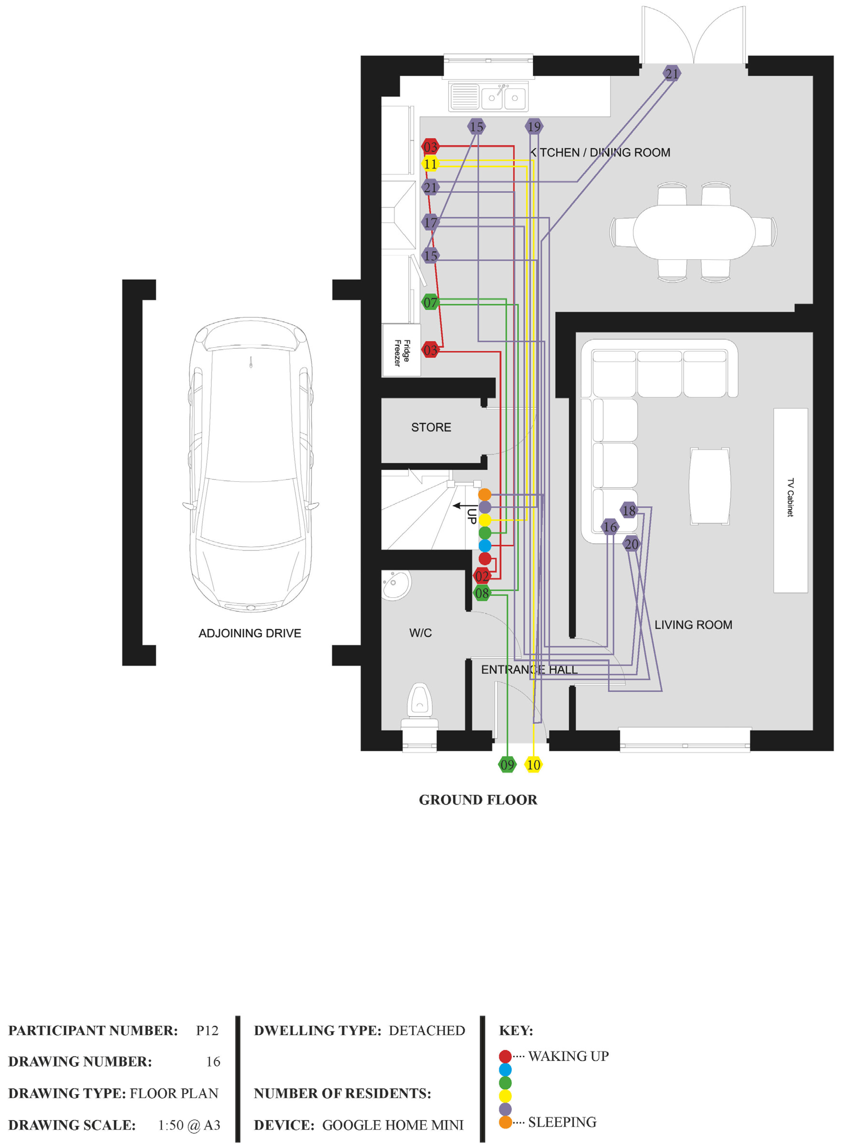
3.3.1. Guided Household Tour Overview
3.3.2. Architectural Home Survey Overview
4. Analysis
4.1. Narrative Analysis
4.2. Behavioural Mapping
5. Results and Discussion
5.1. The ‘Handover’ from Work to Home
5.2. Management of Time
5.3. Responsibilities
6. Implications for Theory
- The functioning of the home (and the successes and failures) is dependent on the intersections of multiple temporal trajectories with different timescales and multiple actors. These are either coordinated to generate successful outcomes or are incompatible and result in conflict. The adaptation of these trajectories is key to the success of the household unit, as opposed to the individuals within the household. Linked to this is the need to better understand how individual trajectories intersect and move apart, how they influence each other, and how they can be adapted (e.g., change in velocity) to reduce conflict in the home.
- To better understand and manipulate time within the HCI, there is a need for effective means to represent temporal horizons, trajectories, and rhythms, including the actors involved, their agencies, the links to explicit and implicit information cues, and the affordances of the context. Without effective representation, it is difficult to understand the cause–effect relationships within temporal structures, and, therefore, take account of them within the design of technology for the home.
- The push/pull aspects of time within trajectories need to be better understood. It is clear from this study that time was seen as a chunkable [34], and a ‘push/pull’ strategy was used successfully to alter outcomes arising through trajectories. However, it is not clear how and when decisions are made to employ these strategies and the role that efficacy (short and long-term) plays in its choice and success.
- Temporal tensions [69] were clearly at play within this study and were, to some extent, mitigated by push/pull strategies where these could be employed. However, this was sometimes only partially successful. There is a much greater opportunity to identify how to even out the temporal tensions that were apparent, as well as better understand the role they play in the temporal trajectories that play out in the home.
7. Practical Implications
- CAs need to move towards the ‘longstanding trusted butler’ model, where they are discreet, learn how a household and the individuals ‘tick’, and intervene as and when needed. Importantly, their agency will have been agreed upon, and this may differ across different types of activities, different contexts, and for different individuals. To do this, they need to be able to learn the temporal trajectories that play out within homes and the wider world to accommodate and enable household activities for maximum benefit. This goes further than the ‘If This Then, That’ (ITTT) types of routines seen within current smart homes, since rather than just automating tasks, there is scope to alter the trajectories of the routines to maximize the effectiveness of the household unit, or indeed to enable new routines to emerge.
- Some key technological elements need to be in place, including machine learning and IOT technologies that provide the capability to sense activities and people to identify the context. Ambient technologies (rather than fixed location devices) are also needed to collect and spread intelligence throughout the home. VUI will be key, both in terms of (1) understanding from conversations and contextual data that can be used to identify habitual rhythms and trajectories in the home over time, and (2) enabling easy, personalized, contextually relevant interactions with devices to enable temporally relevant interventions.
- As technology develops, the role of the CAs can change. It will shift from information provided within a temporal structure to a personal assistant that can provide options for courses of action, to one that can provide a recommended course of action, to one that can undertake or initiate optimum courses of action. This increasing shift to autonomy (as seen in vehicles) will require both a breadth of understanding of the influencing factors (including context) and a look back/forward ability to understand past and to project future temporal trajectories. This is akin to the subtleties and nuances picked up by a trusted and long-serving personal assistant. By being embedded into a household over an extended period of time, a personal assistant will have learnt how the multiple temporalities within the household play out and what interventions are effective in enabling better household (and individual) outcomes.
- For new CA device users, recognizing the importance of social and ethical considerations is paramount. Manufacturers must be keenly attuned to the potential pitfalls associated with these devices within a household, guided by UNESCO’s 2019 insights on the gender gap in AI technology, as illuminated by West et al. [75]. The practical implication is clear: prioritize ethical design and integrate educational features to prevent harm and promote digital literacy, ensuring that CA interactions are respectful and responsible. This not only safeguards users from negative consequences but also instils a culture of respect in the digital realm, setting a vital precedent for our increasingly AI-driven world.
8. Research Limitations and Future Work
9. Conclusions
Author Contributions
Funding
Institutional Review Board Statement
Informed Consent Statement
Data Availability Statement
Acknowledgments
Conflicts of Interest
References
- Luria, M.; Hoggenmüller, M.; Lee, W.-Y.; Hespanhol, L.; Jung, M.; Forlizzi, J. Research through Design Approaches in Human-Robot Interaction. In Proceedings of the Companion of the 2021 ACM/IEEE International Conference on Human-Robot Interaction, Boulder, CO, USA, 8–11 March 2021; Association for Computing Machinery: New York, NY, USA, 2021; pp. 685–687. [Google Scholar]
- Luria, M.; Hoffman, G.; Megidish, B.; Zuckerman, O.; Park, S. Designing Vyo, a Robotic Smart Home Assistant: Bridging the Gap between Device and Social Agent; IEEE: Washington, DC, USA, 2016; pp. 1019–1025. [Google Scholar]
- Oogjes, D.; Fung, P.; Odom, W. Designing for an Other Home: Expanding and Speculating on Different Forms of Domestic Life; Association for Computing Machinery, Inc.: New York, NY, USA, 2018; pp. 313–326. [Google Scholar]
- Irani, L.; Jeffries, R.; Knight, A. Rhythms and Plasticity: Television Temporality at Home. Pers. Ubiquitous Comput. 2010, 14, 621–632. [Google Scholar] [CrossRef][Green Version]
- Kirk, D.S.; Chatting, D.; Yurman, P.; Bichard, J.-A. Ritual Machines I & II: Making Technology at Home; ACM Press: New York, NY, USA, 2016; pp. 2474–2486. [Google Scholar]
- Petrelli, D.; Light, A. Family Rituals and the Potential for Interaction Design. ACM Trans. Comput.-Hum. Interact. 2014, 21, 1–29. [Google Scholar] [CrossRef]
- Pink, S.; Mackley, K.L.; Moroşanu, R.; Mitchell, V.; Bhamra, T. Making Homes: Ethnography and Design, 1st ed.; Cox, R., Buchli, V., Eds.; Bloomsbury: London, UK, 2017; p. 155. ISBN 978-1-4742-3914-1. [Google Scholar]
- Somerville, P. Homelessness and the Meaning of Home: Rooflessness or Rootlessness? Int. J. Urban Reg. Res. 1992, 16, 529–539. [Google Scholar] [CrossRef]
- Mitchell, V.; Mackley, K.L.; Pink, S.; Escobar-Tello, C.; Wilson, G.T.; Bhamra, T. Situating Digital Interventions: Mixed Methods for HCI Research in the Home. Interact. Comput. 2015, 27, 3–12. [Google Scholar] [CrossRef]
- Noessel, C. Designing Agentive Technology: AI That Works for People; Rosenfeld: Brooklyn, NY, USA, 2017; p. 280. ISBN 1-933820-63-2. [Google Scholar]
- Baillie, L.; Benyon, D. Investigating Usability and Design in the Home. In Proceedings of the International Design Conference, Dubrovnik, Croatia, 14–17 May 2001. [Google Scholar]
- Purington, A.; Taft, J.G.; Sannon, S.; Bazarova, N.N.; Taylor, S.H. “Alexa Is My New BFF”: Social Roles, User Satisfaction, and Personification of the Amazon Echo; ACM Press: New York, NY, USA, 2017; pp. 2853–2859. [Google Scholar]
- Kepuska, V.; Bohouta, G.; Kepuska, V.B. Gamal Next-Generation of Virtual Personal Assistants (Microsoft Cortana, Apple Siri, Amazon Alexa and Google Home); IEEE: Washington, DC, USA, 2018; Volume 2018, pp. 99–103. [Google Scholar]
- Ammari, T.; Kaye, J.; Tsai, J.Y.; Bentley, F. Music, Search, and IoT: How People (Really) Use Voice Assistants. ACM Trans. Comput.-Hum. Interact. 2019, 26, 1–28. [Google Scholar] [CrossRef]
- Auger, J. Living with Robots: A Speculative Design Approach. J. Hum.-Robot Interact. 2014, 3, 20–42. [Google Scholar] [CrossRef]
- Porcheron, M.; Fischer, J.E.; Reeves, S.; Sharples, S. Voice Interfaces in Everyday Life; Association for Computing Machinery: New York, NY, USA, 2018; Volume 2018, pp. 1–12. [Google Scholar]
- Sciuto, A.; Saini, A.; Forlizzi, J.; Hong, J.I. “Hey Alexa, What’s Up?”: A Mixed-Methods Studies of In-Home Conversational Agent Usage; ACM Press: New York, NY, USA, 2018; pp. 857–868. [Google Scholar]
- Pradhan, A.; Findlater, L.; Lazar, A. “Phantom Friend” or “Just a Box with Information”: Personification and Ontological Categorization of Smart Speaker-Based Voice Assistants by Older Adults. Proc. ACM Hum.-Comput. Interact. 2019, 3, 1–21. [Google Scholar] [CrossRef]
- Cheng, P.; Bagci, I.E.E.; Yan, J.; Roedig, U. Smart Speaker Privacy Control—Acoustic Tagging for Personal Voice Assistants; Institute of Electrical and Electronics Engineers Inc.: Los Alamitos, CA, USA, 2019; pp. 144–149. [Google Scholar]
- Ford, M.; Palmer, W. Alexa, Are You Listening to Me? An Analysis of Alexa Voice Service Network Traffic. Pers. Ubiquitous Comput. 2019, 23, 67–79. [Google Scholar] [CrossRef]
- Lau, J.; Zimmerman, B.; Schaub, F. Alexa, Are You Listening? Privacy Perceptions, Concerns and Privacy-Seeking Behaviors with Smart Speakers. Proc. ACM Hum.-Comput. Interact. 2018, 2, 1–31. [Google Scholar] [CrossRef]
- Lopatovska, I. Personality Dimensions of Intelligent Personal Assistants; Association for Computing Machinery, Inc.: New York, NY, USA, 2020; pp. 333–337. [Google Scholar]
- Lopatovska, I.; Williams, H. Personification of the Amazon Alexa: BFF or a Mindless Companion; ACM Press: New York, NY, USA, 2018; pp. 265–268. [Google Scholar]
- Beneteau, E.; Richards, O.K.; Zhang, M.; Kientz, J.A.; Yip, J.; Hiniker, A. Communication Breakdowns between Families and Alexa; Association for Computing Machinery: New York, NY, USA, 2019; Volume 13, pp. 1–13. [Google Scholar]
- Arlinghaus, K.R.; Johnston, C.A. The Importance of Creating Habits and Routine. Am. J. Lifestyle Med. 2018, 13, 142–144. [Google Scholar] [CrossRef]
- Reddy, M.C.; Dourish, P.; Pratt, W. Temporality in Medical Work: Time Also Matters. Comput. Support. Coop. Work 2006, 15, 29–53. [Google Scholar] [CrossRef]
- Gupta, S.; Tanenbaum, T.J.; Muralikumar, M.D.; Marathe, A.S. Investigating Roleplaying and Identity Transformation in a Virtual Reality Narrative Experience; Association for Computing Machinery (ACM): New York, NY, USA, 2020; pp. 1–13. [Google Scholar]
- Ortiz, P.; Fox Harrell, D. Enabling Critical Self-Reflection through Roleplay with Chimeria: Grayscale; Association for Computing Machinery, Inc.: New York, NY, USA, 2018; pp. 365–380. [Google Scholar]
- Matthews, M.; Gay, G.; Doherty, G. Taking Part: Role-Play in the Design of Therapeutic Systems; Association for Computing Machinery: New York, NY, USA, 2014; pp. 643–652. [Google Scholar]
- Burns, C.; Dishman, E.; Verplank, W.; Lassiter, B. Actors, Hairdos & Videotape—Informance Design; Association for Computing Machinery: New York, NY, USA, 1994; Volume 1994, pp. 119–120. [Google Scholar]
- Moroz-Lapin, K. Role Play in HCI Studies. In Proceedings of the HCI Educators 2009-Playing with Our Education, Dundee, UK, 22–24 April 2009; pp. 1–12. [Google Scholar]
- Sanders, E.B.-N. Generative Tools for Co-Designing. In Collaborative Design; Springer: Berlin/Heidelberg, Germany, 2000; pp. 3–12. [Google Scholar] [CrossRef]
- Edwards, K.H.; Alynatl, E.D. Timewarp: Techniques for Autonomous Collaboration; ACM Press: New York, NY, USA, 1997. [Google Scholar]
- Mazmanian, M.; Erickson, I.; Harmon, E. Circumscribed Time and Porous Time; ACM Press: New York, NY, USA, 2015; pp. 1453–1464. [Google Scholar]
- Jagannath, S.; Sarcevic, A.; Young, V.; Myers, S. Temporal Rhythms and Patterns of Electronic Documentation in Time-Critical Medical Work. In Proceedings of the 2019 CHI Conference on Human Factors in Computing Systems, Scotland, UK, 4–9 May 2019; pp. 1–13. [Google Scholar]
- Kusunoki, D.S.; Sarcevic, A. Designing for Temporal Awareness: The Role of Temporality in Time-Critical Medical Teamwork. In Proceedings of the 18th ACM Conference on Computer Supported Cooperative Work & Social Computing, Vancouver, BC, Canada, 14–18 March 2015. [Google Scholar]
- Reddy, M.; Dourish, P. A Finger on the Pulse: Temporal Rhythms and Information Seeking in Medical Work; ACM Press: New York, NY, USA, 2002; pp. 344–353. [Google Scholar]
- Heidegger, M. Being and Time; Blackwell: Oxford, UK, 1927. [Google Scholar]
- Hall, E.T.; Hall, M. Understanding Cultural Differences; Intercultural Press: Yarmouth, ME, USA, 1990; ISBN 978-0-933662-84-1. [Google Scholar]
- Neves, A.M.; Morgado, L. Monochronic Vs. Polychronic: A Profile of Academic Time Use Among Online Distance Education Students. In Proceedings of the EDEN Conference Proceeding, Timisoara, Romania, 22–24 June 2020; pp. 444–453. [Google Scholar]
- Levine, R.N. A Geography of Time: On Tempo, Culture, And the Pace of Life; Basic Books: New York, NY, USA, 2008; ISBN 978-0-7867-2253-2. [Google Scholar]
- Barbarin, A.; Veinot, T.C.; Klasnja, P. Taking Our Time: Chronic Illness and Time-Based Objects in Families; Association for Computing Machinery, Inc.: New York, NY, USA, 2015; pp. 288–301. [Google Scholar]
- Neustaedter, C.; Brush, A.J.B.; Greenberg, S. The Calendar Is Crucial: Coordination and Awareness through the Family Calendar. ACM Trans. Comput.-Hum. Interact. 2009, 16, 1–48. [Google Scholar] [CrossRef]
- Taylor, A.S.; Swan, L. Artful Systems in the Home; ACM Press: New York, NY, USA, 2005; pp. 641–650. [Google Scholar]
- Taylor, A.S.; Swan, L. List Making in the Home; ACM Press: New York, NY, USA, 2004; pp. 542–545. [Google Scholar]
- Odom, W.; Wakkary, R.; Hol, J.; Naus, B.; Verburg, P.; Amram, T.; Yo Sue Chen, A. Investigating Slowness as a Frame to Design Longer-Term Experiences with Personal Data: A Field Study of Olly; Association for Computing Machinery: New York, NY, USA, 2019; pp. 1–16. [Google Scholar]
- Erickson, T.; Danis, C.; Kellogg, W.; Helander, M. Assistance: The Work Practices of Human Administrative Assistants and Their Implications for IT and Organisations; ACM Press: New York, NY, USA, 2008; pp. 609–618. [Google Scholar]
- Crabtree, A.; Rodden, T. Domestic Routines and Design for the Home. Comput. Support. Coop. Work 2004, 13, 191–220. [Google Scholar] [CrossRef]
- Crabtree, A.; Tolmie, P. A Day in the Life of Things in the Home; ACM Press: New York, NY, USA, 2016; pp. 1736–1748. [Google Scholar]
- Hindus, D. The Importance of Homes in Technology Research; Streitz, N.A., Siegel, J., Hartkopf, V., Konomi, S., Eds.; Springer: Berlin/Heidelberg, Germany, 1999; pp. 199–207. [Google Scholar]
- Venkatesh, A. Computers and Other Interactive Technologies for the Home. Commun. ACM 1996, 39, 47–54. [Google Scholar] [CrossRef]
- Verkasalo, H. Contextual Patterns in Mobile Service Usage. Pers. Ubiquitous Comput. 2009, 13, 331–342. [Google Scholar] [CrossRef]
- Pink, S. Re-Thinking Contemporary Activism: From Community to Emplaced Sociality. Ethnos 2008, 73, 163–188. [Google Scholar] [CrossRef]
- Pink, S.; Leder Mackley, K. Moving, Making and Atmosphere: Routines of Home as Sites for Mundane Improvisation. Mobilities 2016, 11, 171–187. [Google Scholar] [CrossRef]
- Ehn, B.; Lofgren, O. Routines, Made and Unmade. In Time, Consumption and Everyday Life Practice, Materiality and Culture; Shove, E., Trentmann, F., Wilk, R., Eds.; Routledge: London, UK, 2009; pp. 99–114. [Google Scholar]
- Mindell, J.A.; Leichman, E.S.; Lee, C.; Williamson, A.A.; Walters, R.M. Implementation of a Nightly Bedtime Routine: How Quickly Do Things Improve? Infant Behav. Dev. 2017, 49, 220–227. [Google Scholar] [CrossRef]
- Shove, E.; Pantzar, M.; Watson, M. The Dynamics of Social Practice: Everyday Life and How It Changes. In The Dynamics of Social Practice; SAGE Publications: Beverly Hills, CA, USA, 2012. [Google Scholar]
- Guest, G.; Bunce, A.; Johnson, L. How Many Interviews Are Enough? An Experiment with Data Saturation and Variability. Field Methods 2006, 18, 59–82. [Google Scholar] [CrossRef]
- Kvale, S.; Brinkmann, S. InterViews: Learning the Craft of Qualitative Research Interviewing, 2nd ed.; Sage Publications, Inc.: Thousand Oaks, CA, USA, 2009; p. xviii. ISBN 978-0-7619-2542-2. [Google Scholar]
- Gray, D. Doing Research in the Real World, 4th ed.; SAGE Pubications: Beverly Hills, CA, USA, 2018. [Google Scholar]
- Gilly, M.C.; Enis, B.M. Recycling the Family Life Cycle: A Proposal for Redefinition. Assoc. Consum. Res. 1982, 9, 271–276. [Google Scholar]
- Dray, S.M.; Mrazek, D. A Day in the Life of a Family: An International Ethnographic Study. In Field Methods Casebook for Software Design; John Wiley & Sons, Inc.: Hoboken, NJ, USA, 1996; pp. 145–156. ISBN 0-471-14967-5. [Google Scholar]
- Relieu, M.; Zouinar, M.; La Valle, N. At Home with Video Cameras. Home Cult. 2007, 4, 45–68. [Google Scholar] [CrossRef]
- Labov, W. The Transformation of Experience in Narrative Syntax. In Language in the Inner City; Labov, W., Ed.; University of Pennsylvania Press: Philadelphia, PA, USA, 1972; pp. 352–396. [Google Scholar]
- Connelly, F.M.; Clandinin, D.J. Stories of Experience and Narrative Inquiry. Educ. Res. 1990, 19, 2–14. [Google Scholar] [CrossRef]
- Labov, W.; Waletzky, J. Narrative Analysis: Oral Versions of Personal Experience. J. Narrat. Life Hist. 1997, 7, 3–38. [Google Scholar] [CrossRef]
- Rode, J.A. The Roles That Make the Domestic Work; ACM Press: New York, NY, USA, 2010; pp. 381–390. [Google Scholar]
- Tolmie, P.; Pycock, J.; Diggins, T.; MacLean, A.; Karsenty, A. Unremarkable Computing; ACM Press: New York, NY, USA, 2002; pp. 399–406. [Google Scholar]
- Tamminen, S.; Oulasvirta, A.; Toiskallio, K.; Kankainen, A. Understanding Mobile Contexts. Pers. Ubiquitous Comput. 2004, 8, 135–143. [Google Scholar] [CrossRef]
- Rattenbury, T.; Nafus, D.; Anderson, K. Plastic: A Metaphor for Integrated Technologies; ACM Press: New York, NY, USA, 2008; pp. 232–241. [Google Scholar]
- Ozenc, K.F.; Brommer, J.P.; Jeong, B.K.; Shih, N.; Au, K.; Zimmerman, J. Reverse Alarm Clock: A Research through Design Example of Designing for the Self; ACM Press: New York, NY, USA, 2007; pp. 392–406. [Google Scholar]
- Landry, B.M.; Pierce, J.S.; Isbell, C.L. Supporting Routine Decision-Making with a Next-Generation Alarm Clock; Springer-Verlag London Ltd.: London, UK, 2004; Volume 8, pp. 154–160. [Google Scholar]
- Coe, K.; Benitez, T.; Tasevska, N.; Arriola, A.; Keller, C. The Use of Family Rituals in Eating Behaviors in Hispanic Mothers. Fam. Community Health 2018, 41, 28–36. [Google Scholar] [CrossRef]
- Southerton, D. Temporal Rhythms: Comparing Daily Lives of 1937 with Those of 2000 in the UK. In Time, Consumption and Everyday Life: Practice, Materiality and Culture; Shove, E., Trentmann, F., Wilk, R., Eds.; Taylor & Francis: Abingdon, UK, 2009; pp. 49–63. [Google Scholar]
- West, M.; Kraut, R.; Chew, H.E. I’d Blush If I Could: Closing Gender Divides in Digital Skills through Education. Available online: https://unesdoc.unesco.org/ark:/48223/pf0000367416 (accessed on 16 October 2023).
- Begole, J.B.; Tang, J.C.; Smith, R.B.; Yankelovich, N. Work Rhythms: Analyzing Visualizations of Awareness Histories of Distributed Groups; ACM Press: New York, NY, USA, 2002; pp. 334–343. [Google Scholar]


| Code | Age | Occupation | Living Status | Household Composition of the Research Participant (Gilly and Enis, 1982 [61]) | ||
|---|---|---|---|---|---|---|
| Participant | Household Member | Status | ||||
| P01 | 27 | PhD. Student | Renting | 1 Adult (M) | 1 Adult (F) | Newlywed |
| P02 | 32 | PhD. Student | Renting | 1 Adult (M) | 1 Adult (F) | Newlywed |
| P03 | 35 | PhD. Student | “Staying with family” | 1 Adult (F) | 1 Adult (F) | Bachelor |
| P04 | 54 | Area Administrator | Renting | 1 Adult (M) | 1 Adult (F) | Childless couple |
| P05 | 27 | Beauty Advisor | Renting | 1 Adult (F) | 2 Children (M & F) | Single parent |
| P06 | 30 | Project Coordinator | Homeowner | 1 Adult (M) | 1 Adult (F) | Newlywed |
| P07 | 29 | Electrical Engineer | Homeowner | 1 Adult (M) | 1 Adult (F) | Newlywed |
| P08 | 32 | Pharmacy Category Manager | Homeowner | 1 Adult (M) | 1 Adult (F) 2 Children (M) | Full Nest I |
| P09 | 59 | Retired | Homeowner | 1 Adult (M) | 1 Adult (F) | Childless couple |
| P10 | 50 | Private Cleaner | Renting | 1 Adult (F) | N/A | Bachelor II |
| P11 | 29 | Motion Graphics Designer | Homeowner | 1 Adult (M) | 1 Adult (F) | Newlywed |
| P12 | 28 | Mechanical Technician | Homeowner | 1 Adult (M) | 1 Adult (F) | Newlywed |
| P13 | 51 | Online Seller | Homeowner | 1 Adult (M) | 1 Adult (F) | Young couple |
| P14 | 24 | Physiotherapist | Renting | 1 Adult (F) | N/A | Bachelor I |
| P15 | 29 | Tree Surgeon | Homeowner | 1 Adult (M) | 1 Adult (F) | Young couple |
| Performed Routine Actions (PRA) | Dialogue Transcript | Observations | Schema of Personal Narratives (Labov, 1972 [64]) |
|---|---|---|---|
| A number which correlates to the exact location of the participant’s movements documented on the architectural floor plan(s) | R: P: | Documented observations by the researcher when undertaking the household audit of the participant | Abstract |
| 1. What—what is the primary goal of the activity? 1a. What—what is the contributing goal of the activity? | |||
| Orientation | |||
| Who—who is involved in the activity? When—what time does this activity take place? Where—where does the activity take place? | |||
| Complicating action | |||
| 1. What—describe the action or events that were performed during the activity. | |||
| Evaluation | |||
| 1. How—what tools were used to fulfil the goal? | |||
| Result | |||
| 1. Why—explain the outcome of the activity? |
| Orientation | Dialogue Excerpt |
|---|---|
| Where: Living room When: [18:00] | R: “So, you get your issues of the day out?” P06: “Yeah, we share our moans, so if I am feeling stressed when I come in it’s because something has happened at work, I would tell her about it, and then we’d have a chat.” R: “OK, and this is important to you?” P06: “Yeah, it is good to have a chat, we tend to get rid of our moans after work, and then you can sit and chill out.” R: “So, you do not talk about work after this point?” P06: “Well, we try not to, so we can enjoy the evening.” |
| Orientation | Dialogue Excerpt |
|---|---|
| Where: Living room When: [19:15] | P07: “So, we would have a chat about our day and any issues we have had at work. Usually, if my wife has had a problem at work, I am the last to know as we do not have our phones on us when on the factory floor.” R: “OK, so if your wife has had an issue, how do you respond to that when you walk in?” P07: “Well, depending on what the issues were, but normally we would have a tea and try to talk it out. I sometimes tell her just to watch tv whilst I make dinner just to give her some time to relax.” |
| Orientation | Dialogue Excerpt |
|---|---|
| Where: Second bedroom When: [07:30] | R: “OK, so say it is 07:30 when you leave the bathroom; where do you go now?” P08: “Into my son’s room; his clothes will all be out the night before school. So, I would then wake him up and get him dressed, that usually takes about 10 to 15 min. Then, once he has used the bathroom, we go downstairs, where I make him his breakfast, and we watch TV.” R: “Together?” P08: “Yeah, as I don’t have much time with him during the evening now he’s at school, and he has a set bedtime.” |
| Where: Exiting the home through the back door [kitchen] When: [08:00] | R: “What time do you leave for work?” P08: “Latest is 08:00” R: “OK, so what is the consequence in leaving later than 08:00?” P08: “I will struggle to get to work at 09:00, and that is the latest I could be if I want to get home at a decent time.” R: “And is that down to traffic?” P08: “Yeah, so the traffic on the M1… If I am late for work, then all of a sudden, everything becomes a rush as soon as I get in [to the office].” |
| Where: Re-entering the home through the back door [kitchen] When: [17:15–18:30] | R: “OK, so thinking of when you come back from work, what time would that be?” P08: “Anywhere from 17:15 to 18:30, anytime around there.” R: “OK, what is the big variance between those two times?” P08: “It depends on what time I get into the office, so if I arrive later, then I have to stay later.” R: “So, you do not have a cut-off point to you leaving work?” P08: “No, there is no set time; I just have to get the work done.” R: “So, finishing time is flexible?” P08: “Yeah.” |
| Where: Kitchen When: [18:30 to 18:45] | P08: “… I’ll help my wife with the cooking if she has already started, as I know by then that the boys have done their homework.” |
| Orientation | Dialogue Excerpt |
|---|---|
| Where: Living room When: [19:45] | R: “And then do you leave the pots on the side [living room] or take them out straight away [kitchen]?” P12: “We take them out straight away and then put them in the dishwasher and say Coro is on, then in the interval, we would tidy the kitchen up and then come back in to here [living room] to catch the second half.” R: “Why do you tidy up during the interval and not wait until the end of the show?” P12: “I like to see what I can get done in that short space of time …” |
| Orientation | Dialogue Excerpt |
|---|---|
| Where: Kitchen When: [08:00] | R: “OK, so does it take a lot of time out of your morning?” P02: “Yeah, so the breakfast is normally like 20 min, and that is when my husband is going out to walk the dog.” R: “Right, OK.” P02: “He is gone for like 30 min, so when he comes back, the breakfast is done and ready to eat, and normally lunch is in process.” R: “So, when your husband leaves home to walk the dog, is that your cue to start breakfast?” P02: “Yeah.” |
| Orientation | Dialogue Excerpt |
|---|---|
| Where: Participants bedroom When: [07:00–7:45] | R: “OK, so why is it more difficult to wake up earlier in the UK as opposed to Mexico?” P02: “Mainly because of the sky; it is very dark and often raining, and I do not want to get up to that.” R: “OK, so the alarm goes off at 07:00 and is that just one alarm?” P02: “No, two.” R: “OK, so one of those alarms being at 07:00 and the other?” P02: “For 07:45, but that is the very latest I can wake up. But like yesterday it was a rainy day, so I did not get out of bed until 08:20.” |
| Where: Kitchen/dining room When: [08:00] | R: “OK, and do you make breakfast every day?” P02: “Yeah, whilst I do this, I also make lunch when I am prepping breakfast, which is cooked in the morning.” R: “So, it can be quite stressful with time pressures?” P02: “I rarely arrive at the office at 10:00 as I am still cooking, as I just do not want to get out of bed when it is like this [wet weather].” |
| Orientation | Dialogue Excerpt |
|---|---|
| Where: Participants bedroom When: [07:00–7:45] | R: “How many alarms do you have set?” P04: “Just the one, but I keep on snoozing it.” R: “OK, have you ever been late for work because of over-snoozing your alarm?” P04: “Not late, but I feel a bit stressed out in the mornings when I have snoozed the alarm.” R: “Do you ever compromise your morning routine?” P04: “I would not do [empty] the dishwasher and other jobs that I do in the morning, I would save them and do it when I get back.” R: “Does this compromise you at all?” P04: “Yeah, it is not something I like to do after work, as that is my time, and I just want to sit down and watch my telly with a coffee.” |
| Orientation | Dialogue Excerpt |
|---|---|
| Where: Participants bedroom When: [06:40] | P11: “Yeah, I have overslept by snoozing the alarm too many times, and that just creates time problems as I am cramming everything, I need to get done in a shortened time frame. So, I would start to take things for granted, like my bag having the right stuff in it and like my keys being where I expect them to be.” |
| Orientation | Dialogue Excerpt |
|---|---|
| Where: Exiting the home through the front door [entrance hall] When: [23:00] | R: “… is there any reason you walk your dog at night-time and not earlier?” P09: “It gives him [household dog] a leg stretch before he goes to bed, so he is less likely to get us out of bed then.” R: “Is that something that is an issue?” P09: “Yes, definitely. More for my wife as she is going to work.” R: “So being disturbed in the night?” P09: “Yes, he [household dog] used to wake us up in the night, as he wants to go to the loo, but now that we take him out for a walk before bed, this has really helped him and us get a better night sleep.” |
| Orientation | Dialogue Excerpt |
|---|---|
| Where: Participants bedroom When: [18:15–18:30] | R: “So, at this point, it is about 18:15 to 18:30?” P08: “Yeah, I’d say so.” R: “When you get changed, do you lay tomorrow’s clothes out then?” P08: “Yes, I would put my clothes that I can wear again, so like my jeans on the side and my shirt in the wash basket and hook any clean clothes on the corner of this wardrobe” |
| Where: Bathroom When: [07:00–07:10] | R: “Ok, so why do you plan this [work outfit] the night before?” P08: “No, because of time and because I do not want to be rooting around in the wardrobe when my children are still asleep.” R: “Is this about the noise?” P08: “Yeah, I don’t want my kids to wake up any earlier than they need to…” |
| Orientation | Dialogue Excerpt |
|---|---|
| Where: Second bedroom When: [19:30] | R: “OK, and do you have to tuck them in or any ritual like that to comfort them?” P05: “Well, my daughter has a reading book from school, and depending on if she is able to get to sleep or not, I would read to her to help her fall asleep.” R: “Like a bedtime story?” P05: “Yeah, but my son often wants to listen in, so he gets into bed with my daughter for the story, and then I carry him out as he is usually falling to asleep by then.” R: “And do you enjoy reading them a story?” P05: “Of course, it is a real joy of mine, but it would be easier sometimes for them to fall to asleep without it as I have other jobs to do, and sometimes, we can get carried away and be reading for an hour or so.” R: “Making it even later for them.” P05: “Yes, making it difficult for them to get up the next day.” |
| Where: Bathroom When: [Circa 07:40] | R: “How do you make sure they are getting up?” P05: “… it is difficult to make sure they are getting out of bed, as they are not the most motivated kids to get ready for school, especially when they have had a later-than-planned bedtime for whatever reason.” R: “Well, yes, so is your getting ready routine disrupted if they do not do as they are told?” P05: “Absolutely, it saves me loads of time and effort if they are getting dressed whilst I am showering as if they are still in bed; then it costs me time, as my priority shifts to them, stopping me from getting ready and this affects what time we get out of the house as well as catching my bus to work.” |
Disclaimer/Publisher’s Note: The statements, opinions and data contained in all publications are solely those of the individual author(s) and contributor(s) and not of MDPI and/or the editor(s). MDPI and/or the editor(s) disclaim responsibility for any injury to people or property resulting from any ideas, methods, instructions or products referred to in the content. |
© 2023 by the authors. Licensee MDPI, Basel, Switzerland. This article is an open access article distributed under the terms and conditions of the Creative Commons Attribution (CC BY) license (https://creativecommons.org/licenses/by/4.0/).
Share and Cite
Pooley, A.C.; May, A.; Mitchell, V. Furthering the Development of Virtual Agents and Communication Robot Devices through the Consideration of the Temporal Home. Multimodal Technol. Interact. 2023, 7, 104. https://doi.org/10.3390/mti7110104
Pooley AC, May A, Mitchell V. Furthering the Development of Virtual Agents and Communication Robot Devices through the Consideration of the Temporal Home. Multimodal Technologies and Interaction. 2023; 7(11):104. https://doi.org/10.3390/mti7110104
Chicago/Turabian StylePooley, Andrew C., Andrew May, and Val Mitchell. 2023. "Furthering the Development of Virtual Agents and Communication Robot Devices through the Consideration of the Temporal Home" Multimodal Technologies and Interaction 7, no. 11: 104. https://doi.org/10.3390/mti7110104
APA StylePooley, A. C., May, A., & Mitchell, V. (2023). Furthering the Development of Virtual Agents and Communication Robot Devices through the Consideration of the Temporal Home. Multimodal Technologies and Interaction, 7(11), 104. https://doi.org/10.3390/mti7110104

