Restoration Design of the Former Residences of Historical Dignitaries in Townships: Insights from Wu’s Juren Mansion in Fujian Province, China
Abstract
1. Introduction
1.1. Research Background
1.2. Literature Review
1.3. Problem Statement and Objectives
2. Study Area and Methods
2.1. Study Area and Climate Conditions
2.2. Methods and Process
- (1)
 - Measurement of the exposed column base, platform, and wall settlement. (a) Tool selection: Traditional level and distance rulers were used as the main measurement tools. The level ruler was used to ensure the horizontality of the measurement line, and the distance ruler was used to accurately measure the vertical displacement changes caused by settlement. (b) Measurement steps: First, we marked the measurement points at the key locations of the exposed column base, platform, and wall. Then, we placed the level ruler on these points to ensure their horizontality and used the distance ruler to measure the vertical distance from the reference point to the measurement point. We repeated this process and recorded multiple measurement results to reduce accidental errors. (c) Data recording and analysis: We recorded the time, environmental conditions (such as temperature and humidity), and specific measurement values of each measurement. We used statistical methods to process the data, such as calculating the mean and standard deviation, to evaluate the uniformity and degree of settlement.
 - (2)
 - Measurement of large sample size and structural relationship. (a) Manual measurements were performed by experienced professionals to ensure the accuracy and reliability of the measurements. These professionals had professional knowledge and skills in the relevant fields. (b) Measuring tools: They used traditional measuring tools such as steel tape measures and vernier calipers, which performed well in terms of accuracy and durability. (c) Measurement strategy: The measurement points were marked at key locations of the large sample structure, and measuring tools were used to measure the dimensions and structural relationships accurately. Detailed measurement data were recorded, including the location of the measurement points, dimension values, and measurement time.
 - (3)
 - Damage assessment of exposed wooden components. (a) Visual inspection: We checked for signs of damage, such as cracks, decay, and insect infestation, by directly observing the surface of the exposed wooden components. We recorded the type, location, and extent of the damage observed. (b) Tap test: First, traditional tools (such as a small hammer or a wooden stick) were used to gently tap the wooden components and judge the integrity of the internal structure by sound and feel. We recorded the results of the tap test, including sound characteristics, feel feedback, and possible internal structural problems. (c) Comprehensive analysis: We combined the results of the visual inspection and tap test to comprehensively assess the extent of damage to the exposed wooden components. We developed a repair or replacement plan to ensure the safety and stability of the structure.
 - (4)
 - Measurement of cone and wall inclination. (a) Lead measurement method: We used a lead (or plumb line) as a vertical reference line and hung it above the cone or wall to be measured. We observed the relative position between the lead and the cone or wall and used an angle measurement tool (such as a protractor) to measure the inclination angle. (b) Measurement record: We recorded the time, environmental conditions, and specific inclination angle value of each measurement. We compared and analyzed multiple measurement results to evaluate the inclination trend and stability of the cone or wall. (c) Safety measures: We ensured the safety of the operators when performing lead measurements to avoid injuries caused by falling or hanging objects.
 
3. Results: Damage Status and Evaluation
3.1. Overall Evaluation
- (1)
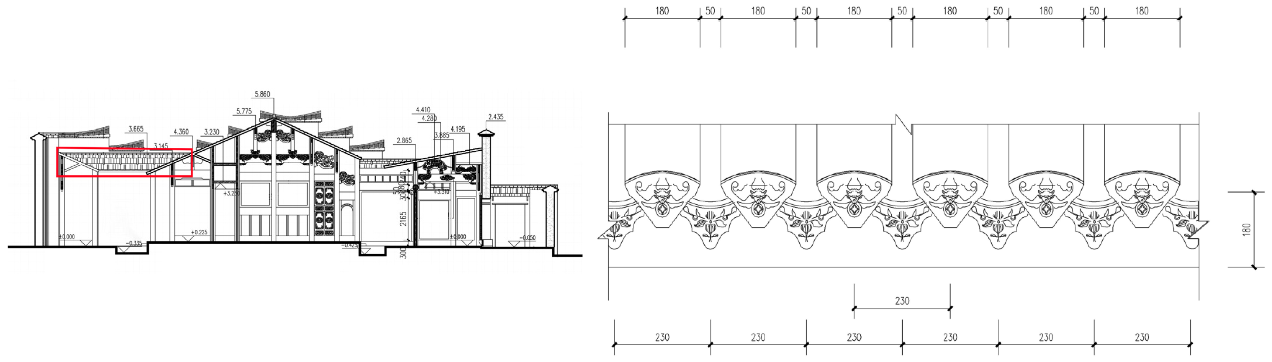
 - Gatehouse: (a) The roof tiles are damaged and laid messily. A portion of the roof of the left end room has collapsed due to severe leakage, which has resulted in significant degradation of the wooden components. (b) Moss and weeds cover the patios on the left and right sides, while numerous discarded tiles litter the area. (c) The beams in the main room of the gatehouse are slightly decayed, the wooden columns have no column bases, and the ends of the wooden columns are generally seriously decayed. The eaves are also seriously decayed.
 - (2)
 - Corridor: (a) The roof tiles on both sides of the corridor are damaged and laid messily. The roof is seriously leaking, causing it to sink. (b) The purlins and rubber strips are seriously decayed, and the ceiling board is missing.
 - (3)
 - Main building: (a) The roof tiles are damaged and laid messily. While the main room’s roof remains relatively intact, the secondary and end rooms’ tiles on the left and right sides have suffered severe damage and leakage, leading to significant deterioration of the wooden elements near the eaves. (b) The beams of the main room are slightly decayed, while some components of the beams of the secondary and end rooms on the left and right sides are seriously decayed, and the upper parts of the wooden columns at the junction with the corridor are also seriously decayed. The rear roof cover is missing. The paint and oil decoration of the wood carvings in the main hall of the main room are seriously peeling off.
 - (4)
 - Roll roof: The roof has a serious leak, and the overall components of the shed are seriously decayed.
 - (5)
 - Wall: The walls on all four sides of the building are made of rammed earth, with the lower part built with pebbles. Due to the age of the walls, the rammed earth has cracks of varying degrees. Among them, there are several through cracks on the north facade wall, and the wall paint layer has basically fallen off. The east facade wall has partially collapsed, indicating a serious situation.
 
3.2. Detailed Statistics of the Defect Locations
3.3. “Red–Yellow–Green” Three-Level Protection Priority System
- (1)
 - Damage level. Level 1: minor damage (such as surface stains); level 2: moderate damage (such as local cracks); level 3: severe damage (such as structural deformation).
 - (2)
 - Cultural weight. Level 1: general value (such as functional components); level 2: moderate value (such as decorative components); level 3: core value (such as ritual space).
 - (3)
 - Structural risk. Level 1: no safety hazard; level 2: local risk; level 3: emergency risk. In terms of weight distribution, it comprises 50% damage + 30% culture + 20% structure.
 
3.4. Coping Strategies
- (1)
 - Wu’s Juren Mansion was built during the reign of Emperor Guangxu in the late Qing Dynasty. The existing buildings retain their original foundation and layout; however, age has severely damaged the main building. The mansion holds significant value as a reference for studying the inheritance and development of Wanqian Village in Zhengdun Town, making it crucial to maintain and protect it.
 - (2)
 - The right side of Wu’s Juren Mansion is inhabited by people. However, the absence of caretakers and physical or technical safety measures present certain security risks.
 - (3)
 - The roof is leaking, the wooden base is rotten, some important wooden components are seriously rotten, and the wall is tilted, causing safety hazards in the main building.
 - (4)
 - In view of the multiple characteristics of Wu’s Juren Mansion, a complete management strategy should be established, and the cultural relics work policy of “protection first, rescue first, rational use, and strengthened management” should be followed. We should add security devices to enhance safety management and ensure effective daily management and maintenance tasks.
 - (5)
 - The main building must be reinforced and repaired in the near future. Through this repair and renovation, the value of Wu’s Juren Mansion can be preserved for a long time to come, with its use as a community asset being re-established.
 
4. Discussion: Restoration Project Design
4.1. Properties, Design Principles, and Basis
4.2. Repair Measures
4.2.1. Protection and Repair Projects and Contents
- (1)
 - Gatehouse: (a) Roof: Remove tiles to repair the entire roof area of approximately 142 m2, repair approximately 60% of the tiles, and replace approximately 40% of accessories. Replace the rotten strips and re-lay the roof, adhering to the original specifications. The roof tiles are local earth tiles; therefore, remove the ridge in a protective manner and package the tiles after removal. Lay the tiles in a 7-3-way pattern. Following the roof installation, reinstall the tiles and repair the damaged corners. Replace the damaged tiles, with specifications of 210 × 160 × 10 mm. (b) Beam frame: Repair, patch, and reinforce all large wooden components such as columns, lintels, beams, rafters, and purlins that are damaged but can continue to be used, as well as related components according to the original system. Replace the left secondary column and golden column. Replace the severely rotten wooden components of the left and right secondary and terminal rooms. (c) Ground: Restore the green brick floor and remove the damaged tiles piled up on the patio; (d) Wall: Part of the wall is cracked, and the paint layer is falling off.
 - (2)
 - Corridor: (a) Remove tiles to repair the entire roof of approximately 84 m2, repair approximately 70% of the tiles, and replace approximately 30% of the tiles. Replace the decayed purlins and rafters according to the original specifications. Replace the roof with seven new tiles, leaving three remaining tiles with dimensions of 250 × 150 × 10 mm. (b) Beam frame: Replace the severely decayed wooden components on the left and right sides according to the original specifications. Replace all of the lower sills according to the original specifications.
 - (3)
 - Main building: (a) Roof: Remove tiles to repair the entire roof of approximately 185 m2, repair approximately 40% of the roof tiles, and replace approximately 60% of the roof tiles. Replace the decayed purlins and rafters according to the original specifications and re-lay the roof. Local clay tiles, measuring 210 × 160 × 10 mm, make up the roof tiles, of which seven remain. (b) Beam frame: Repair, patch, and reinforce all large wooden components, such as columns, lintels, beams, squares, and purlins, that are damaged but can still be used, as well as related components.
 - (4)
 - Rear main building: (a) Roof: Remove tiles to repair the entire roof area of approximately 140 m2, repair approximately 70% of the tiles, and replace approximately 30% of the tiles. Replace the rotten strips and rafters according to the original specifications. Replace the roof and install the tiles in a seven-story and three-story layout, following the specifications of 250 × 150 × 10 mm. (b) Beam frame: Replace the severely rotten wooden components on the left and right sides according to the original specifications. Replace all of the sills according to the original specifications.
 
4.2.2. Maintenance Methods and Steps
4.3. Subsequent Management and Protection
5. Conclusions
Author Contributions
Funding
Data Availability Statement
Conflicts of Interest
References
- Kirshenblatt-Gimblett, B. World Heritage and Cultural Economics. In Museum Frictions: Public Cultures/Global Transformations; Duke University Press: Durham, NC, USA, 2006; pp. 161–202. [Google Scholar]
 - Berger, P.L.; Huntington, S.P. (Eds.) Many Globalizations: Cultural Diversity in the Contemporary World; Oxford University Press: New York, NY, USA, 2002. [Google Scholar]
 - Yan, L. Promotion of Local Cultural Distinctiveness for Rural Revitalization. Front. Soc. Sci. Technol. 2023, 5, 49–53. [Google Scholar] [CrossRef]
 - Gao, Y.; Su, W. The long-run tourism effect of historical celebrities: Evidence from one of the most influential literatus in China. Tour. Econ. 2023, 29, 1461–1483. [Google Scholar] [CrossRef]
 - Yu, H.X.; Xu, K.F. Protection and Utilization Research of Qingdao Historical Celebrities’ Former Residences. Adv. Mater. Res. 2011, 255, 1592–1596. [Google Scholar] [CrossRef]
 - Knapp, R.G. (Ed.) Chinese Landscapes: The Village as Place; University of Hawaii Press: Honolulu, HI, USA, 1992. [Google Scholar]
 - Knapp, R.G. Chinese Houses: The Architectural Heritage of a Nation; Tuttle Publishing: Rutland, VT, USA, 2012. [Google Scholar]
 - Jiang, Q.; Kung, J.K. Social mobility in late imperial China: Reconsidering the “ladder of success” hypothesis. Mod. China 2021, 47, 628–661. [Google Scholar] [CrossRef]
 - Elman, B.A. Civil Examinations and Meritocracy in Late Imperial China; Harvard University Press: Cambridge, MA, USA, 2013. [Google Scholar]
 - Williams, J. Identity Verification as a Standard of Validity in Late Imperial Civil Service Examinations. In Powerful Arguments; Brill: Leiden, The Netherlands, 2020; pp. 349–392. [Google Scholar]
 - Luo, X. Meritocracy or Not: State, Elite Families, and the Examination System in the Qing Dynasty. Ph.D. Thesis, London School of Economics and Political Science, London, UK, 2024. [Google Scholar]
 - Zhitian, L.; Chun, M. The Abolition of the Examination System and the Disintegration of the Four-Class Society: Modern Social Change in the Eyes of an Inland Member of the Gentry. In Shifts of Power; Brill: Leiden, The Netherlands, 2017; pp. 61–98. [Google Scholar]
 - Wood, B. A review of the concept of authenticity in heritage, with particular reference to historic houses. Collect. A J. Mus. Arch. Prof. 2020, 16, 8–33. [Google Scholar] [CrossRef]
 - Gonzalez-Longo, C. Authenticity in Architectural Heritage Conservation: Discourses, Opinions, Experiences in Europe, South and East Asia; Katharina, W., Niels, G., Eds.; Springer International Publishing: Cham, Switzerland, 2017; p. 345. ISBN 978-3-319-30522-6. [Google Scholar] [CrossRef]
 - Soufan, A. Notes on authenticity and development of cultural heritage in Syria. Int. J. Cult. Prop. 2020, 27, 189–213. [Google Scholar] [CrossRef]
 - Morello, A.; Aguilar, G. Mechita: Capabilities of a railway town to promote local development. J. Archit. 2012, 17, 541–562. [Google Scholar] [CrossRef]
 - Bahauddin, A. The Architectural and Cultural Heritage of Sabah-The Rungus Longhouse. In Proceedings of the 4th International Conference on Tourism Research (4ICTR), Kola Kinabalu, Malaysia, 9–11 December 2014; Volume 12, p. 01030. [Google Scholar] [CrossRef]
 - An, D.W. Sustainability and Variability of Korean Wooden Architectural Heritage: The Relocation and Alteration. Sustainability 2018, 10, 1742. [Google Scholar] [CrossRef]
 - Balzannikova, E.; Samogorov, V. The conservation of historical architectural heritage in Russia. In Proceedings of the RSP 2017 –XXVI R-S-P Seminar 2017 Theoretical Foundation of Civil Engineering, Warsaw, Poland, 21–25 August 2017; Volume 117, p. 00014. [Google Scholar] [CrossRef]
 - Viola, S. Built Heritage Repurposing and Communities Engagement: Symbiosis, Enabling Processes, Key Challenges. Sustainability 2022, 14, 2320. [Google Scholar] [CrossRef]
 - Cazacova, L. Sustainable Built Cultural Heritage Conservation with Cradle to Cradle. Int. J. Energy Environ. 2016, 10, 61–69. [Google Scholar]
 - Azizi, N.Z.M.; Razak, A.A.; Din, M.A.M.; Nasir, N.M. Recurring issues in historic building conservation. Procedia-Soc. Behav. Sci. 2016, 222, 587–595. [Google Scholar] [CrossRef]
 - Sjöholm, J. Authenticity and relocation of built heritage: The urban transformation of Kiruna, Sweden. J. Cult. Herit. Manag. Sustain. Dev. 2017, 7, 110–128. [Google Scholar] [CrossRef]
 - Walter, N. From values to narrative: A new foundation for the conservation of historic buildings. Int. J. Herit. Stud. 2014, 20, 634–650. [Google Scholar] [CrossRef]
 - Ghahramani, L.; McArdle, K.; Fatorić, S. Minority Community Resilience and Cultural Heritage Preservation: A Case Study of the Gullah Geechee Community. Sustainability 2020, 12, 2266. [Google Scholar] [CrossRef]
 - Liu, Y.; Liu, Y.; Chen, Y.; Long, H. The process and driving forces of rural hollowing in China under rapid urbanization. J. Geogr. Sci. 2010, 20, 876–888. [Google Scholar] [CrossRef]
 - Li, Y.; Jia, L.; Wu, W.; Yan, J.; Liu, Y. Urbanization for rural sustainability–Rethinking China’s urbanization strategy. J. Clean. Prod. 2018, 178, 580–586. [Google Scholar] [CrossRef]
 - Du, X.; Jiao, F. How the rural infrastructure construction drives rural economic development through rural living environment governance—Case study of 285 cities in China. Front. Environ. Sci. 2023, 11, 1280744. [Google Scholar] [CrossRef]
 - Currid-Halkett, E.; Scott, A.J. The geography of celebrity and glamour: Reflections on economy, culture, and desire in the city. City Cult. Soc. 2013, 4, 2–11. [Google Scholar] [CrossRef]
 - Cefai, S. Venice Charter and the Development of Authenticity. Prot. Cult. Herit. 2024, 2, 77–101. [Google Scholar] [CrossRef]
 - Zhu, Y. Authenticity and Heritage Conservation in China: Translation, Interpretation, Practices. In Authenticity in Architectural Heritage Conservation: Discourses, Opinions, Experiences in Europe, South and East Asia; Springer Nature: Berlin/Heidelberg, Germany, 2017; pp. 187–200. [Google Scholar] [CrossRef]
 - Tomaszek, T. Authenticity and Wooden Architecture Preservation in Asia—A Chinese Perspective; CRC Press: Boca Raton, FL, USA, 2022. [Google Scholar] [CrossRef]
 - Tienthavorn, T. Conserving Thailand’s Wooden Built Heritage: Developments, Approaches, and Current Challenges. Nakhara J. Environ. Des. Plan. 2024, 23, 404. [Google Scholar] [CrossRef]
 - Zhang, Y.; Dong, W. Determining minimum intervention in the preservation of heritage buildings. Int. J. Archit. Herit. 2021, 15, 698–712. [Google Scholar] [CrossRef]
 - Agnew, N.; Martha, D. Principles for the Conservation of Heritage Sites in China = Zhongguo Wen Wu Gu Ji Bao Hu Zhun Ze; Getty Conservation Institute: Los Angeles, CA, USA, 2004. [Google Scholar]
 - Gizzi, S. The Relevance of the Venice Charter Today. Prot. Cult. Herit. 2024, 2, 1–10. [Google Scholar] [CrossRef]
 - Deepa, M.S.; Shukla, S.R.; Kelkar, B.U. Overview of applications of near infrared (NIR) spectroscopy in wood science: Recent advances and future prospects. J. Indian Acad. Wood Sci. 2024, 21, 34–57. [Google Scholar] [CrossRef]
 - Bajno, D.; Grzybowska, A.; Bednarz, Ł. Old and Modern Wooden Buildings in the Context of Sustainable Development. Energies 2021, 14, 5975. [Google Scholar] [CrossRef]
 - Mendoza, M.A.D.; De La Hoz Franco, E.; Gómez, J.E.G. Technologies for the Preservation of Cultural Heritage—A Systematic Review of the Literature. Sustainability 2023, 15, 1059. [Google Scholar] [CrossRef]
 - Li, G. Migrating Fujianese: Ethnic, Family, and Gender Identities in an Early Modern Maritime World; Brill: Leiden, The Netherlands, 2016. [Google Scholar]
 - Li, G. Reopening the Fujian Coast, 1600–1800: Gender Relations, Family Strategies, and Ethnic Identities in a Maritime World. Bachelor’s Thesis, University of California, Davis, CA, USA, 2007. [Google Scholar]
 - Xu, X.; Genovese, P.V.; Zhao, Y.; Liu, Y.; Woldesemayat, E.M.; Zoure, A.N. Geographical Distribution Characteristics of Ethnic-Minority Villages in Fujian and Their Relationship with Topographic Factors. Sustainability 2022, 14, 7727. [Google Scholar] [CrossRef]
 - Luo, Y.; Lin, Z. Spatial Accessibility Analysis and Optimization Simulation of Urban Riverfront Space Based on Space Syntax and POIs: A Case Study of Songxi County, China. Sustainability 2023, 15, 14929. [Google Scholar] [CrossRef]
 - Zhao, L.L. Impact of county—Scale land use change on the value of ecosystem services: A case study in Nanping, Fujian, China. In Proceedings of the 2021 3rd International Conference on Civil Architecture and Energy Science (CAES 2021), Hangzhou, China, 16 March 2021; Volume 248, p. 01027. [Google Scholar] [CrossRef]
 - Hittawe, M.M.; Sidibé, D.; Beya, O.; Mériaudeau, F. Machine vision for timber grading singularities detection and applications. J. Electron. Imaging 2017, 26, 063015. [Google Scholar] [CrossRef]
 - GB 50165-92; Ancient Building Wood Structure Maintenance and Reinforcement Technical Specifications. China Architecture & Building Press: Beijing, China, 1992.
 - CJJ70-96; Ancient Building Construction Project Quality Inspection and Assessment Standards—Southern Region. China Architecture & Building Press: Beijing, China, 1997.
 - GB 50001-2001; House Building Drawing Unified Standard. China Architecture & Building Press: Beijing, China, 2001.
 




















| Location | Current State of Damage | Cause of Damage | 
|---|---|---|
| Front wall (east facade) | The wall is made of rammed earth, with serious cracks; the base is built with pebbles, with serious grouting issues. Additionally, part of the wall cap has collapsed. | All were caused by disrepair over time. | 
| Left wall (south facade) | The wall is made of rammed earth and is adjacent to the surrounding residential buildings. The cobblestone base of the wall has joints that have fallen off, and the rammed earth is severely cracked. | |
| Right wall (north facade) | The wall is made of rammed earth and is adjacent to the surrounding residential buildings. The wall footing is built with pebbles and the joints are falling off, and the rammed earth is seriously cracked. | |
| Back wall (west facade) | As the roof of the rear seat is damaged, this part of the wall has partially collapsed, and the wall cap is seriously damaged. | 
| Wood Column Number | Current State of Damage | Cause of Damage | 
|---|---|---|
| Z1~Z2 | Moss and severe decay cover the base of the wooden pillars. | All were caused by termite infestation and rain erosion. | 
| Z3~Z9 | The lower part of the wooden column is slightly decayed. | |
| Z10~Z13 | The bottom of the wooden pillars is covered with moss; the whole thing is in a serious state of decay, and the structure is damaged. | |
| Z14~Z19 | Moss and severe decay cover the base of the wooden pillars. | |
| Z20~Z22 | The bottom of the wooden pillars is covered with moss; the whole thing is in a serious state of decay, and the structure is damaged. | |
| Z23~Z26 | The lower part of the wooden column is slightly decayed. | |
| Z27~Z33 | Moss and severe decay cover the base of the wooden pillars. | |
| Z34 | The bottom of the wooden pillars is covered with moss; the whole thing is in a serious state of decay, and the structure is damaged. | |
| Z35 | The wooden columns were added later as support columns. | |
| Z36~Z48 | The lower part of the wooden column is slightly decayed. | |
| Z49 | Moss and severe decay cover the base of the wooden pillars. | |
| Z50~Z58 | The lower part of the wooden column is slightly decayed. | |
| Z59~Z61 | The bottom of the wooden pillars is covered with moss; the whole thing is in a serious state of decay, and the structure is damaged. | |
| Z62~Z70 | The lower part of the wooden column is slightly decayed. | |
| Z71~Z72 | The bottom of the wooden pillars is covered with moss; the whole thing is in a serious state of decay, and the structure is damaged. | |
| Z73 | The lower part of the wooden column is slightly decayed. | |
| Z74~Z75 | The bottom of the wooden pillars is covered with moss; the whole thing is in a serious state of decay, and the structure is damaged. | |
| Z76 | The wooden columns were added later as support columns. | |
| Z77 | Moss and severe decay cover the base of the wooden pillars. | |
| Z78~Z93 | The lower part of the wooden column is slightly decayed. | |
| Z94 | The wooden columns were added later as support columns. | |
| Z95~Z97 | Moss and severe decay cover the base of the wooden pillars. | |
| Z98~Z99 | The lower part of the wooden column is slightly decayed. | |
| Z100~Z101 | Moss and severe decay cover the base of the wooden pillars. | |
| Z102~Z103 | The lower part of the wooden column is slightly decayed. | |
| Z104~Z106 | Moss and severe decay cover the base of the wooden pillars. | |
| Z107 | The lower part of the wooden column is slightly decayed. | |
| Z108~Z109 | Moss and severe decay cover the base of the wooden pillars. | |
| Z110~Z119 | The lower part of the wooden column is slightly decayed. | 
| Location | Current State of Damage | 
|---|---|
| Gatehouse | The beams in the main room of the gatehouse are slightly decayed, while some components of the beams in the secondary and terminal rooms on both sides are seriously decayed. Some of the gray sidings have disappeared, and the plaster layer has fallen off. The left and right sides’ lower sills exhibit varying degrees of decay and damage. | 
| Corridor | The corridor components are seriously decayed due to roof leakage. | 
| Roll roof | Due to severe roof leakage, the overall components of the roof are rotten. | 
| Main building | The main hall’s beams exhibit slight decay. Serious decay has affected some components of the beams in the side and end halls. The plaster layer on the gray wall panels has crumbled off, and some of the panels have completely disappeared. Various degrees of decay have affected the lower sills on the left and right sides. The wood carvings in the main hall are well preserved, and the surface paint has basically fallen off. | 
| Rear main building | The eaves of the main room in the rear seat are severely damaged and have basically disappeared. Some components of the beams in the secondary rooms and the end rooms on both sides are severely rotten. The plaster layer of the gray siding board has fallen off, and some gray siding boards have disappeared. The lower sills on the left and right sides are rotten to varying degrees. | 
| Location | Name | Current State of Damage | Cause of Damage | 
|---|---|---|---|
| Gatehouse | Roof tiles | The overall arrangement of roof tiles is disorganized, with seven tiles remaining, leaving three tiles untouched. There is serious leakage near the walls on the left and right sides, and approximately 35% of the tiles are damaged; the specifications are 210 × 160 × 10 mm. | Caused by rain and decay. | 
| Rafters | The rafters are severely rotten due to roof leakage. The specifications are 70 × 25 @140. | Caused by a combination of rainwater rot and termite infestation. | |
| Purlins | The purlins are severely rotten in some places due to roof leaks. | ||
| Corridor | Roof tiles | The overall arrangement of roof tiles is disorganized, with seven tiles remaining, leaving three tiles untouched. There is serious leakage near the walls on the left and right sides, and approximately 30% of the tiles are damaged; the specifications are 210 × 160 × 10 mm. | Caused by rain and decay. | 
| Rafters | The rafters are severely rotten due to roof leakage. The specifications are 70 × 25 @140. | Caused by a combination of rainwater rot and termite infestation. | |
| Purlins | The purlins are severely rotten in some places due to roof leaks. | ||
| Main building | Roof tiles | The overall arrangement of roof tiles is disorganized, with seven tiles remaining, leaving three tiles untouched. There is serious leakage near the walls on the left and right sides, and approximately 40% of the tiles are damaged; the specifications are 210 × 160 × 10 mm. | Caused by rain and decay. | 
| Rafters | The rafters are severely rotten due to roof leakage. The specifications are 70 × 25 @140. | Caused by a combination of rainwater rot and termite infestation. | |
| Purlins | The purlins are severely rotten in some places due to roof leaks. | ||
| Rear main building | Roof tiles | The overall arrangement of roof tiles is disorganized, with seven tiles remaining, leaving three tiles untouched. There is serious leakage near the walls on the left and right sides, and approximately 45% of the tiles are damaged; the specifications are 210 × 160 × 10 mm. | Caused by rain and decay. | 
| Rafters | The rafters are severely rotten due to roof leakage. The specifications are 70 × 25 @140. | Caused by a combination of rainwater rot and termite infestation. | |
| Purlins | The purlins are severely rotten in some places due to roof leaks. | 
| Location | Current State of Damage | Cause of Damage | 
|---|---|---|
| Patio (the open space surrounded by rooms and rooms and walls in the house) | It is covered with moss and weeds, and there are numerous discarded tiles piled up. | Long-term causes of natural environmental factors. | 
| Location | Repair Measures | 
|---|---|
| Front wall (east facade) | Pebbles form the lower part of the rammed earth wall. Clean and re-route the joints with hemp ash at the places where they have fallen off. Restore the collapsed wall, fill the cracks in the rammed earth, rebuild the upper part of the enclosure wall, and remove and restore the wall cap according to the shape of the intact wall cap. The tile specifications are 210 × 160 × 10 mm. Scrape off and repaint the fallen plaster layer. The process involves setting the volume ratio of the lime mortar tentatively to 7:3 and then adding hemp lime to whiten it. The volume ratio of hemp lime is tentatively set as hemp–lime = 1:72. | 
| Left wall (south facade) | Pebbles form the lower part of the rammed earth wall. Clean the joints and use hemp ash to repoint the areas where the joints have fallen off. Scrape off the fallen plaster layer and repaint. The process is as follows: The volume ratio of the lime mortar is tentatively set as loess–lime = 7:3, and then use hemp lime to whiten it, and the volume ratio of hemp lime is tentatively set as hemp–lime = 1:72. | 
| Right wall (north facade) | |
| Back wall (west facade) | 
| Wood Column Number | Repair Measures | 
|---|---|
| Z1~Z2 | Re-join the lower part of the wooden pillars and clean the moss off the surface of the wooden pillars. | 
| Z3~Z9 | Remove the rotten parts at the bottom of the wooden pillars and fill them in and clean the moss off the surface of the wooden pillars. | 
| Z10~Z13 | Replace the wooden columns according to original specifications. | 
| Z14~Z19 | Remove the rotten parts at the bottom of the wooden pillars and fill them in and clean the moss off the surface of the wooden pillars. | 
| Z20~Z22 | Replace the wooden columns according to original specifications. | 
| Z23~Z26 | Remove the rotten parts at the bottom of the wooden pillars and fill them in and clean the moss off the surface of the wooden pillars. | 
| Z27~Z33 | Re-join the lower part of the wooden pillars and clean the moss off the surface of the wooden pillars. | 
| Z34 | Replace the wooden columns according to original specifications. | 
| Z35 | Remove the wooden column that was added later. | 
| Z36~Z48 | Remove the rotten parts at the bottom of the wooden pillars and fill them in and clean the moss off the surface of the wooden pillars. | 
| Z49 | Re-join the lower part of the wooden pillar and clean the moss off the surface of the wooden pillar. | 
| Z50~Z58 | Remove the rotten parts at the bottom of the wooden pillars and fill them in and clean the moss off the surface of the wooden pillars. | 
| Z59~Z61 | The wooden columns were replaced according to original specifications. | 
| Z62~Z70 | Remove the rotten parts at the bottom of the wooden pillars and fill them in and clean the moss off the surface of the wooden pillars. | 
| Z71~Z72 | Replace the wooden columns according to original specifications. | 
| Z73 | Remove the rotten parts at the bottom of the wooden pillar and fill them in and clean the moss off the surface of the wooden pillar. | 
| Z74~Z75 | Replace the wooden columns according to original specifications. | 
| Z76 | Remove the wooden column that was added later. | 
| Z77 | Re-join the lower part of the wooden pillar and clean the moss off the surface of the wooden pillar. | 
| Z78~Z93 | Remove the rotten parts at the bottom of the wooden pillars and fill them in, and clean the moss off the surface of the wooden pillars. | 
| Z94 | Remove the wooden column that was added later. | 
| Z95~Z97 | Re-join the lower part of the wooden pillars and clean the moss off the surface of the wooden pillars. | 
| Z98~Z99 | Remove the rotten parts at the bottom of the wooden pillars and fill them in and clean the moss off the surface of the wooden pillars. | 
| Z100~Z101 | Re-join the lower part of the wooden pillars and clean the moss off the surface of the wooden pillars. | 
| Z102~Z103 | Remove the rotten parts at the bottom of the wooden pillars and fill them in and clean the moss off the surface of the wooden pillars. | 
| Z104~Z106 | Re-join the lower part of the wooden pillars and clean the moss off the surface of the wooden pillars. | 
| Z107 | Remove the rotten parts at the bottom of the wooden pillar and fill them in and clean the moss off the surface of the wooden pillar. | 
| Z108~Z109 | Re-join the lower part of the wooden pillars and clean the moss off the surface of the wooden pillars. | 
| Z110~Z119 | Remove the rotten parts at the bottom of the wooden pillars and fill them in and clean the moss off the surface of the wooden pillars. | 
| Location | Repair Measures | 
|---|---|
| Gatehouse | Keep the beams of the main room of the gatehouse as they are and replace the seriously decayed beams of the side and end rooms on the left and right sides according to the original specifications. Remove the paint layer of the gray wall panels that have fallen off, repaint the gray wall panels that have not been left, and replace the lower sills of the side and end rooms on the left and right sides. | 
| Corridor | Replace the decayed components of the corridor. | 
| Roll roof | Due to the serious leakage of the roof, the overall components of the roll roof are seriously decayed and so they should be replaced. | 
| Main building | Keep the beams of the main building as they are and replace the beams of the left and right side and end rooms according to the original specifications. Remove and repaint the paint layer of the gray wall panels that have fallen off, restore the gray wall panels that no longer exist, and replace the left and right side and end rooms. | 
| Rear main building | The beams of the rear main building are basically gone, so they should be restored as they are. Replace the beams of the left and right side and end rooms according to the original specifications. Remove and repaint the paint layer of the gray wall panels that have fallen off, restore the gray wall panels that no longer exist, and replace the left and right side and end rooms with lower sills. | 
| Location | Name | Repair Measures | 
|---|---|---|
| Gatehouse | Roof tiles | Repair the whole roof by removing tiles. When removing tiles, protect the ridge, and package and lay the tiles in a pattern of seven-tenths, leaving three-tenths. Once the roof is in place, reinstall the tiles. The specifications of the damaged tiles to be replaced are 210 × 160 × 10 mm. | 
| Rafters | Replace the severely decayed rubber strips with specifications of 70 × 25 @140. | |
| Purlins | Replace badly decayed purlins. | |
| Corridor | Roof tiles | Repair the entire roof by removing tiles. When removing tiles, protect the ridge, and package and lay the tiles in a pattern of seven-tenths, leaving three-tenths. Once the roof is in place, reinstall the tiles. The specifications of the damaged tiles to be replaced are 210 × 160 × 10 mm. | 
| Rafters | Replace the severely decayed rubber strips with specifications of 70 × 25 @140. | |
| Purlins | Replace badly decayed purlins. | |
| Main building | Roof tiles | Repair the entire roof by removing tiles. When removing tiles, protect the ridge and package and lay the tiles in a pattern of seven-tenths, leaving three-tenths. Once the roof is in place, reinstall the tiles. The specifications of the damaged tiles to be replaced are 210 × 160 × 10 mm. | 
| Rafters | Replace the severely decayed rubber strips with specifications of 70 × 25 @140. | |
| Purlins | Replace badly decayed purlins. | |
| Rear main building | Roof tiles | Repair the entire roof by removing tiles. When removing tiles, protect the ridge and package and lay the tiles in a pattern of seven-tenths, leaving three-tenths. Once the roof is in place, reinstall the tiles. The specifications of the damaged tiles to be replaced are 210 × 160 × 10 mm. | 
| Rafters | Replace the severely decayed rubber strips with specifications of 70 × 25 @140. | |
| Purlins | Replace badly decayed purlins. | 
| Location | Repair Measures | 
|---|---|
| Patio (the open space surrounded by rooms and walls in the house) | Remove weeds and moss from the patio and clear away accumulated discarded tiles. | 
Disclaimer/Publisher’s Note: The statements, opinions and data contained in all publications are solely those of the individual author(s) and contributor(s) and not of MDPI and/or the editor(s). MDPI and/or the editor(s) disclaim responsibility for any injury to people or property resulting from any ideas, methods, instructions or products referred to in the content.  | 
© 2025 by the authors. Licensee MDPI, Basel, Switzerland. This article is an open access article distributed under the terms and conditions of the Creative Commons Attribution (CC BY) license (https://creativecommons.org/licenses/by/4.0/).
Share and Cite
Zhang, L.; Chen, Y.; Fang, J.; Zheng, L. Restoration Design of the Former Residences of Historical Dignitaries in Townships: Insights from Wu’s Juren Mansion in Fujian Province, China. Buildings 2025, 15, 1303. https://doi.org/10.3390/buildings15081303
Zhang L, Chen Y, Fang J, Zheng L. Restoration Design of the Former Residences of Historical Dignitaries in Townships: Insights from Wu’s Juren Mansion in Fujian Province, China. Buildings. 2025; 15(8):1303. https://doi.org/10.3390/buildings15081303
Chicago/Turabian StyleZhang, Lei, Yile Chen, Jiaying Fang, and Liang Zheng. 2025. "Restoration Design of the Former Residences of Historical Dignitaries in Townships: Insights from Wu’s Juren Mansion in Fujian Province, China" Buildings 15, no. 8: 1303. https://doi.org/10.3390/buildings15081303
APA StyleZhang, L., Chen, Y., Fang, J., & Zheng, L. (2025). Restoration Design of the Former Residences of Historical Dignitaries in Townships: Insights from Wu’s Juren Mansion in Fujian Province, China. Buildings, 15(8), 1303. https://doi.org/10.3390/buildings15081303
        