Next Article in Journal
Seismic Risk Assessment in School Buildings: A Comparative Study of Two Assessment Methods
Next Article in Special Issue
The Performance of a Circular Excavation Supported by a Prefabricated Recyclable Structure in a Full-Scale Test
Previous Article in Journal
An Integrated Hydration and Property Evaluation Model for Coral Powder–Cement Binary Blends
Previous Article in Special Issue
Study on the Impact of Deep Foundation Excavation of Reclaimed Land on the Deformation of Adjacent Subway Tunnels
 
 
Font Type:
Arial Georgia Verdana
Font Size:
Aa Aa Aa
Line Spacing:
Column Width:
Background:
Article

Model Test and Numerical Simulation of Two Typical Close-Fitting Pile–Wall Integrated Structures in Deep Excavation

1
School of Mechanics and Civil Engineering, China University of Mining & Technology, Xuzhou 221116, China
2
School of Transportation and Civil Engineering, Nantong University, Nantong 226019, China
3
School of Mines, China University of Mining & Technology, Xuzhou 221116, China
4
Jiangsu Zhongnan Construction Industry Group Co., Ltd., Nantong 226100, China
*
Authors to whom correspondence should be addressed.
Buildings 2024, 14(8), 2347; https://doi.org/10.3390/buildings14082347
Submission received: 14 March 2024 / Revised: 11 July 2024 / Accepted: 24 July 2024 / Published: 30 July 2024

Abstract

Compared to conventional support methods, the close-fitting pile–wall integration technique features a minimized construction spacing between the retaining pile and the basement retaining wall. This approach leverages the pile stiffness to minimize the wall thickness and enhance underground space utilization. However, it currently lacks significant discussions and measured data about the interaction laws between the pile and the wall. The model test and finite element method (FEM) are employed to study the deformation and internal force interaction laws of two typical close-fitting pile–wall integrated structures, and a comparison with conventional design is conducted. Furthermore, this study separately investigates the impact of sensitivity factors, specifically the pile–wall stiffness ratio and floor plate stiffness, on both structures during the basement construction and serviceability stages. The test results can closely match the numerical simulation. The study results reveal that the wall impacts the bending moment of the pile to some extent. The internal force in the wall is significantly influenced by the lateral deformation of the pile and the floor plate. Compared to conventional designs, this structure significantly reduces the bending moment of the wall, particularly in the composite structure. Additionally, the analysis of sensitivity factors reveals their considerable influence on the pile–wall interaction.

1. Introduction

Shanghai, China’s largest international economic center, is situated in a typical soft soil region [1]. With the swift development of the urban economy, large-scale development of underground spaces has been brought to the forefront, leading to numerous deep excavation projects [2,3]. In soft soil areas with high underground water levels, excavation support projects typically employ a large number of bored piles as temporary retaining structures. In conventional support methods, the retaining piles are regarded merely as temporary support during the excavation stage. The external unit pressure is considered to directly act on the wall without considering the supportive role of the retaining piles during the serviceability stage, resulting in considerable waste [4].
Pile–wall integration technology combines the basement wall and the retaining pile. By fully utilizing the bending resistance of the pile and reducing the space between the pile–wall, this approach significantly reduces the basement wall thickness [5], expands the basement area, and offers economic and energy-saving benefits [6]. However, the current pile–wall integration technical standards are relatively crude, distributing the load borne by the pile and wall solely based on their relative bending stiffness without considering their combined interaction. This technique requires high verticality and quality of the retaining piles and involves more complex construction processes. Moreover, existing monitoring data for excavations primarily focus on the excavation stage, lacking sufficient monitoring data and research on the pile’s durability [7] during the basement construction and serviceability stage, as well as adequate practical case support. Consequently, this technology is generally adopted passively only when space within the retaining structure is insufficient. Therefore, “pile-wall integration” remains a technology that is not widely implemented in deep excavation practice, with a scarcity of experimental data and related research support. Understanding the characteristics and interaction mechanisms of pile–wall integration is of significant importance.
Many scholars have investigated the behavior and response of support structures in excavation projects through model tests. Their efforts to enhance the stability and safety of deep excavations primarily focus on designing retaining structure parameters, optimizing support methods, analyzing deformation development patterns, and analyzing the stress distribution [8,9,10,11,12,13]. However, in complex model tests, current analytical research mainly focuses on the excavation stage, with little attention given to the serviceability stage. Model tests can be time-consuming and less repetitive, and numerical simulation offers a quick and convenient method. Many scholars have conducted comprehensive analyses using this method on the internal forces and deformation patterns, three-dimensional spatial effects, and the impact of external soil parameters and excavation depth on retaining structures such as secant piles, steel sheet piles, pile groups, and retaining walls. They are dedicated to optimizing the design and construction methods of retaining structures through simulation, thereby providing a thorough analysis of the geotechnical engineering construction process [14,15,16,17,18,19,20,21,22]. Furthermore, the combination of numerical simulation and model tests can complement each other. Model experiments are better suited to reflect engineering characteristics, while numerical simulation can analyze influencing parameters that are difficult to achieve in model experiments [23,24]. Combining both methods allows for more in-depth research on engineering characteristics [11,25,26,27,28,29,30]. Unfortunately, in current research, there is almost no discussion on the interaction mechanism between retaining piles and the retaining walls of the underground main structure.
The updated Shanghai “Technical Code for Excavation Engineering” (DG_TJ 08-61-2018) [31] recognizes the new design concept of “pile-wall integrated structure”, which is classified as the close-fitting type and the force-transferring plate type (the separated type). The close-fitting type is usually divided into superimposed and composite structures. The close-fitting type, with a small gap between the piles and walls, achieves the stress transmission and interaction between pile and wall by employing concrete grouting in the gap after cutting hair on the retaining structure or after pre-burying connections in the piles. On the other hand, the separated type, with a bigger gap, achieves the interaction by setting several force-transferring plates between the pile wall, resulting in a lower stress transfer efficiency than the former. Up to now, there has been little research on the concept of pile–wall integration. Additionally, the interaction mechanism between the pile and wall is complex, so applying the previous excavation research achievements directly to the pile–wall integration engineering practice is hard.
In this paper, a study is conducted on the two typical close-fitting piled-wall integrated structures using FEM and model tests. Within the study, model tests specially designed for the pile–wall integrated structure are conducted to be benchmark data for the FEM simulation, and then models of superimposed and composite structures are established to analyze the deformation and the development law of internal forces of them. Moreover, the impact of sensitivity factors, including the pile–wall stiffness ratio and horizontal plate stiffness, is investigated during basement construction and serviceability stages. The research results are of significant reference value for the design and construction of close-fitting pile–wall integrated structures, especially in formulating excavation plans and optimizing structural schemes of this structure in the deep excavation.

2. Physical Model Test Results

2.1. Model Test Design

This study focuses on the two types of close-fitting pile–wall integrated structures. The profile diagram of both structures is depicted in Figure 1. Figure 1a depicts the superimposed structure (SS), which typically employs concrete grouting between the pile and wall after cutting hair on the excavation side of the retaining structure or after pre-burying connection reinforcement in the piles. It enables horizontal force, shear force, and bending moment transfer between pile and wall. Figure 1b depicts the composite structure (CS), where the gap between the piles and walls is filled with lining materials, enabling only horizontal force transfer. In cases where the lining material possesses a certain thickness or a soft interlayer, the force-transferring plate must be added to the position of the floor plate to ensure proper load transfer.
The model test simulated the basic cross-section of the prototype, and it will be the reference for the FEM numeric simulation. The schedule of grouting between pile and wall was adopted, and it makes the model pile and wall bind together, inevitably allowing bending moments and shear forces to be transmitted between them. This aligns with the force-transmission characteristics of the superimposed structure (SS) making it suitable for the schedule of the model test. The study of the composite structure (CS) is carried out after the finite element simulation result is compared with the test to verify the reasonableness.
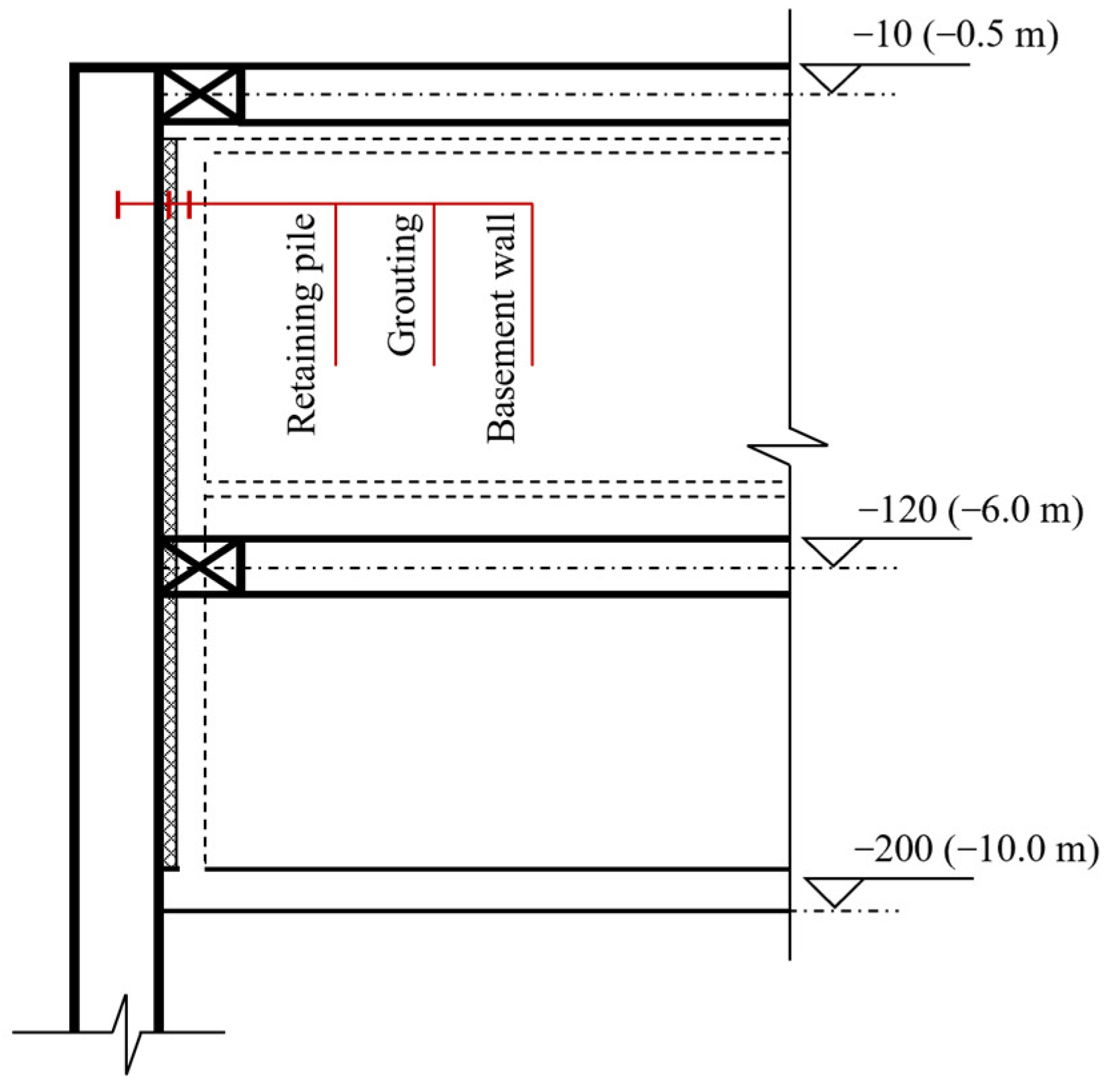
The excavation depth is about 10 m. During the excavation stage, two inner supports are installed at elevations of −0.5 m and −6 m. The structural profile of the model test is depicted in Figure 2. The tests were designed to comprehensively investigate the entire process of excavation, including the deformation and development of internal forces in the pile and the wall of the basement construction and serviceability stage.
The test stages and corresponding practical engineering references are depicted in Figure 3. The design of Test Stage 8 (serviceability stage) is somehow different from the actual construction. During the serviceability stage, it is difficult to simulate the transition from active soil pressure during the excavation stage to static soil pressure. We used an extra load to the outer ground surface to simulate the variation of the earth’s pressure.
The experiments consist of the following test stages: Test Stage 1: Initial excavation to the first support bottom. Test Stage 2: Installation of the first support and the second excavation to the second support bottom. Test Stage 3: Installation of the second support and the third excavation to the foundation plate bottom. Test Stage 4: Installation of the foundation plate and removal of the second support. Test Stage 5: Installation of the basement retaining wall, grouting the gap between the pile wall to the elevation of the B1 plate, and subsequent installation of the B1 plate after the grout solidifies. Test Stage 6: Removal of the first support. Test Stage 7: Grouting the gap between the pile wall to the elevation of the B0 floor plate and subsequent installation of the B0 floor plate after the grout solidifies. Test Stage 8: Gradual loading of the ground outside the excavation with intensity from 0.2 to 0.6 kPa (equivalent to 10~30 kPa in the prototype).

2.2. Design of Test Chamber and Selection of Similitude Ratio

The model test chamber is 1.0 m in length, 1.0 m in height, and 0.5 m in width. The test chamber is encased in 15 mm thick tempered glass panels with no top cover. The bottom plate of the model frame is a steel plate of 10 mm in thickness. On the upper section of a short side wall, six detachable stainless steel plates, measuring 500 × 50 × 10 mm, are used as a substitute for tempered glass. Furthermore, the exterior of the tempered glass panels is fortified with 5 mm thick angle steel to provide the model box with adequate rigidity, controlling chamber deformation and maintaining a planar strain state during testing. The schematic diagram of the model box can be seen in Figure 4. The similar model tests in this study were conducted under the gravity acceleration of 1 g. The geometric similitude ratio (n) of 50 is determined based on the modulus similarity relationship and the clearance size of the test chamber.

2.3. Preparation of Similar Model Soil Materials

Orthogonal experiments are a common and effective method for configuring proper geotechnical materials [32,33,34]. In the model test, to embody the characteristics of the water-rich sand soil layer, four materials are selected as components. The fine sand and barite powder (1250 mesh) were employed as aggregates, while bentonite served as the binder, and laundry detergent (composed mainly of non-ionic surfactants) acted as an auxiliary material within the mixture. Based on these materials, a four-factor and four-level orthogonal table L16 (45) was designed to perform 16 sets of experiments. Subsequently, following the mixing and test soil sample preparation, direct shear and consolidation tests were conducted to measure the parameters of the model soil under each mixture ratio. Ultimately, the mass ratio of fine sand to barite powder to bentonite to water to laundry detergent was determined as 1:0.11:0.24:0.27:0.002. With this ratio, the physical and mechanical parameters of the similar model soil were γ = 18.2 kN·m−3, Es = 0.33 MPa, c = 0.1 kPa, and φ = 26.2°, which matches the target parameters range presented in Table 1. The prototype parameters are based on the soil layers from an excavation project in Shanghai.

2.4. Selection of Materials for Underground Structures

As the deep excavation retaining structure, the retaining pile mainly bears horizontal load and flexural deformation, so its bending deformation should be the main design objective in the 1 g model test. According to the similitude principle, the geometric similitude ratio n, and the stress similitude ratio N [8], the 1 g model test similitude relationship was obtained, as shown in Table 2.
To choose appropriate materials, the specimen was placed on the multifunctional mechanical testing machine and a three-point bending test was conducted, as presented in Figure 5a. The load–displacement curve was obtained from the electronic test data generated during the three-point bending test, as depicted in Figure 5b.
The elastic modulus E (MPa) can be determined by utilizing Formula (1), a material mechanics equation, which relates the concentrated load p (N) and the deflection f (mm) of a simply supported beam at the mid-span. This calculation requires values of the support distance l on the test bench, measured in millimeters (mm), and the sectional moment of inertia I of the tested material specimen, measured in square millimeters (mm4).
f = p l 3 48 E I
Table 3 presents the measured physical properties of three test materials, acrylic, PP, and PE. The elastic modulus of the PE (polyethylene) material closely matches the target value, and it is designated as a similar material in this experiment. However, PE, being a white, opaque material, exhibits inadequate incision smoothness during thin sheet processing. To ensure the accuracy of the grouting height and the better conjunction between the floor plate and the wall model, clear acrylic material is employed for the basement retaining wall. Furthermore, translucent PP (polypropylene) material is used for the floor plate. Table 4 and Table 5 list the dimensions and mechanical properties of the various structural model, as well as their similitude ratios and relevant materials.

2.5. Instrumentation and Arrangement

The deformation of the retaining pile top is monitored utilizing a dial gauge displacement meter. Strain gauges are affixed to the surface of the pile body for monitoring purposes. Before installation, epoxy resin is applied to safeguard the surface of the strain gauges. The arrangement of strain monitoring points on the pile body is illustrated in Figure 6a, with two monitoring cross-sections. Similarly, the monitoring of internal forces on the external wall is also conducted by attaching strain gauges. Two monitoring points are designated, as presented in Figure 6b, with two monitoring cross-sections. The locations of the strain monitoring cross-section, along with an overview of the model box, are shown in Figure 6c.

2.6. Analysis of Strain Data

2.6.1. Deformation Data Inverse Analysis

In model tests, it is challenging to directly measure the lateral deformation of the pile body. The indirect derivation is possible by considering the relationship between the strain and deflection. The changes in deformation at different strain gauge point locations on the pile body are considered continuous variables. Alternatively, discrete variables can be employed to approximate these changes. The strain-tilt monitoring method suggested by Pei [35] can serve as a reference. The pile is considered a continuous beam with zero deformations and strain as boundary conditions at the bottom. The finite difference method is employed to calculate the lateral deformation of the retaining pile. Based on the strain gauge point locations, this method discretizes the retaining pile into multiple nodal elements. Based on the approximate differential equations for the beam deflection curves satisfied by the deflection of the retaining wall piles, the difference equations were developed in the following matrix form:
      D d 2 1 2 1 0 0 0 0 0 0 1 2 1 ω 0 ω 1 ω n ω n + 1 = ε 1 ε 2 ε n
where D is the diameter of the model’s retaining pile and d is the distance between two adjacent strain measurement points (real or virtual). The parameter n is the number of strain measurement points, while the parameters ω and ε are the deflection and strain value of the strain measurement point, respectively. The virtual strain measurement points are introduced at the midpoint of sparsely distributed real points, which the average value of adjacent real points is taken as.
Based on the conditions of ω0 = ωt, ωn+1 = 0, and the invertibility of the square matrix, the matrix can be rewritten as follows:
        ω 1 ω 2 ω n = d 2 D 2 1 0 0 1 2 1 0 0 0 0 1 2 1 ε 1 D d 2 ω t ε 2 ε n
where ωt is the pile-top deformation, which is measured. The equation above provides a direct calculation method for the lateral deformation of the strain measurement points on the pile model.

2.6.2. Bending Moment Data Inverse Analysis

The expression (Formula (4)) for the relationship between the bending moment (M) and the neutral section strain difference of the pile can be derived using the relationship between the curvature (κ) and the curvature radius (ρ). The same approach can also be applied to calculate the internal forces of exterior walls in underground structures.
  M = E I · κ = E I ρ = ε 1 ε 2 D E I

2.7. Main Steps of the Model Test

(1) The fine-grained sand, barite powder, and bentonite are weighed according to the proportions determined by the orthogonal experiment (Section 2.3). The materials are mixed evenly, and then the required amount of water and detergent is gradually added and stirred uniformly. The previously prepared model clay is placed in a bucket and sealed with a cover to prevent water evaporation, as depicted in Figure 7.
(2) As it is shown in Figure 8. After preparing the model soil, the sidewalls of the test chamber are lubricated with white Vaseline, and the model soil is filled to the elevation slightly above the pile bottom. The model of the retaining pile fitted with strain gauges is positioned and inserted. Then, the remaining model soil is layered and compacted up to the pile top. PE film is attached to the surface of the model soil to prevent water evaporation. The model soil is allowed to settle for 1 to 2 days until it stabilizes. Then, the dial gauge deformation meter and connection of the strain gauges to the data-acquisition system (DH3818Y static stress–strain testing and analysis system) will be installed.
(3) The data acquisition system is activated and the test process is initiated. We allow a period of 0.5 to 1.5 h before proceeding to the next test condition to ensure system stabilization. An overview of the test stages is shown in Figure 9.

2.8. Model Test Results and Analysis

2.8.1. Analysis of Lateral Deformation in Retaining Piles

Figure 10 displays the lateral deformations, which are converted to the prototype according to the similitude relationship presented in Table 2. The following is evident in the diagram: (1) the pattern of lateral deformations of the retaining piles exhibits a characteristic “bulging” shape under various working conditions [4,36,37,38]; (2) the maximum pile lateral deformation is approximately 60 mm, which corresponds to 0.6% of the maximum excavation depth; (3) in Test Stage 1, the excavation deformation changes are minimal due to the shallow initial excavation depth; (4) in Test Stage 2, the pile’s deformation significantly increases with the excavation depth, and the maximum lateral deformation occurs 3 m below the excavation face (−9 m elevation); (5) in Test Stage 3, as the excavation reaches the bottom, the maximum deformation section continues to move downward, approximately 3 m below the excavation face (−13 m elevation); (6) in Test Stage 4, after removing the second support, the lateral deformation of the pile body above the excavation face increases to some extent, while it decreases below the excavation face because of the support from the foundation plate; (7) in Test Stage 6, the removal of the first support causes a relatively bigger increase in the pile lateral deformation within the B1 floor depth range, and a smaller increase within the B2 floor depth range because of the formation of the B2 floor main structure; (8) in Test Stage 8, the influence of the pile–wall integrated structure results in the pile lateral deformation remaining essentially unchanged, with a slight decrease within the B2 floor depth range. Overall, it appears that the deformation of the pile develops very little because of the influence of the integrated structure during Stages 6 and 8.

2.8.2. Analysis of Bending Moment in Retaining Piles

Figure 11 displays the pile’s bending moments, which are converted to the prototype. The diagram illustrates the following: (1) The maximum pile’s moment is about 770 kN·m, which occurs in Test Stage 3. (2) In Test Stage 1, the initial excavation reaches a shallow depth, and the pile body’s internal force experiences minimal variation. (3) In Test Stage 2, with an increasing excavation depth, the pile’s moment significantly increases. This reveals the law with an initial increase and subsequent decrease followed by an increase again, along with the depth. The contra-flexure point occurs at about 12 m under the excavation face (−18 elevation). (4) In Test Stage 3, as excavation to the excavation bottom, the position of the cross-section with the maximum moment continues to move downward, and the maximum value continues to increase. Compared with Test Stage 2, the pile body’s moment above the depth of 9 m decreases. However, the pile’s moment increases consistently below the depth of 9 m. (5) In Test Stage 4, the pile’s moment above the depth of 9 m increases after the second support’s removal. However, it decreases to some degree within the depth of 9 to 17 m because of the support of the foundation plate. (6) In Test Stage 6, within the floor B2 depth range, because of the formation of the pile–wall integrated structure, the pile’s moment above the excavation bottom decreases when the first support is removed. (7) In Test Stage 8, the formation of the pile–wall integrated structure is completed. With the load exacted outside the excavation, the pile body’s moment slightly increases within the depth range of the B1 floor. It slightly decreases adjacent to the foundation plate within the B2 floor depth range due to the support provided by the foundation plate. Overall, as depicted in Figure 11, the section with the maximum moment depth is consistently located below the excavation face. Upon completion of the pile–wall integrated structure, the pile body’s moment demonstrates a clear decreasing trend.

2.8.3. Analysis of Internal Forces in Basement Retaining Wall

Figure 12 displays the basement retaining wall’s bending moments converted to the prototype. The figure illustrates the following: (1) In Test Stage 6, the formation of the pile–wall integrated structure is only achieved within the B2 floor depth range. Upon the removal of the first support, the retaining piles undergo rotation toward the excavation side around this location, prompted by the elastic support offered by the B1 plate, resulting in the deformation of the basement retaining wall. At this stage, within the floor B2 depth range, the exterior wall endures compression on the side of the excavation and tension on the outer side, leading to a significant negative moment. (2) In Test Stage 8, the pile–wall integrated structure is formed. When the load outside the excavation is conducted, the consequent active earth pressure rises. This leads to the gradual decrease in the B2 floor wall negative moment and the increase in the B1 floor wall positive moment.

3. Numerical Simulation Results

3.1. Model Description and Details

Figure 13 presents the overview and calculation profile diagrams of the finite element model, respectively. The geotechnical finite element software Midas GTS NX (2022fea) was utilized for conducting numerical simulations in this study. The model has dimensions of 130 m in length, 130 m in width, and a height of 50 m. The excavation has an excavation area of 70 × 70 m and a depth of 10 m. The model is subjected to the following boundary conditions: the top surface is free, the four side surfaces have normal constraints, and the bottom surface is constrained in all directions. In total, the model is composed of 68,617 elements and 49,255 nodes.
The soil layer parameters refer to the same excavation project in Shanghai as the model test. The hardening soil model (HSS model) is taken as the soil constitutive model and is divided using a hexahedral mixed-mesh method. Table 6 and Table 7 provide detailed soil layer information and calculation parameters.
The FEM model of the underground main structure is established as follows: the superimposed structure (abbreviated as SS) typically employs the pre-embedded reinforcement in the piles or the concrete grouting between the pile–wall after chiseling the excavation side of the retaining structure to make the pile–wall integrated structure. In this configuration, the piles and walls can transfer the horizontal force, shear force, and bending moment between them. Considering the load-transfer characteristic, the concrete grouting is modeled as a 3D elastic unit (with a thickness of 50 mm), as depicted in Figure 14a. The composite structure (CS) is filled with liner material between the pile and wall. Due to the liner material’s inability to withstand tensile stress, a compression-only elastic link unit is used instead of a concrete grouting 3D unit, as depicted in Figure 14b.
The underground structures are constructed using C30 concrete material, with a unit weight of 25 kN·m−3, an elastic modulus of 30 GPa, and a Poisson ratio of 0.2. The crown beams and internal supports employ 1D beam elements, whereas the basement retaining wall employs 2D elastic plate elements. Based on the principle of equivalent stiffness of the cross-section, the retaining piles (Φ800@1050) are converted into 2D elastic plate elements with a calculated equivalent thickness of 613 mm. The equation representing the equivalent transformation is as follows:
      1 12 D + t h 3 = 1 64 π D 4
where D is the diameter of the pile (mm), t is the pile clearance (mm), and h is the equivalent plate thickness.
Figure 15 presents the excavation process based on the model test in the FEM analysis. The analysis stages are as follows: Stage 0 involves blunting the retaining structures and balancing the earth’s ground stresses, setting the groundwater level below the ground surface by −0.5 m. Stage 1 involves installing the first support, followed by excavation to the position of the second support. Stage 2 involves installing the second support and continuing the excavation to the bottom of the excavation. Stage 3 involves casting the foundation plate and removing the second support. Stage 4 involves installing the B2 floor basement retaining walls and the floor plate of the B1 floor. Stage 5 involves removing the first support. Stage 6 involves constructing the B1 floor basement retaining walls and the floor plate of the B0 floor. Stage 7 involves progressively overloading the excavation exterior from 10 to 30 kPa.

3.2. Analysis of the Lateral Deformation of the Pile

3.2.1. Excavation Stage

Figure 16a displays the lateral deformation of the piles at various excavation stages in the finite element simulation. Each incremental excavation depth is 2 m. It is discernible in the diagram that the presence of the first support restricts the pile top displacement during the excavation stages. The pile top displacement’s development essentially halts at a depth of −6 m (at which point the second support is completed), followed by a rebound phenomenon occurring at an excavation depth of −10 m. This rebound exhibits a magnitude of approximately 30% relative to the maximum pile top displacement during the excavation stage. The pile’s deformation forms a characteristic “bulging” shape, with the magnitude of deformation increasing as the excavation depth increases. The depth of the maximum deformation section descends in tandem with the excavation progress. It reaches approximately 3 m below the excavation face, matching the engineering laws of the soft soil region. In Stage 1, with the first excavation reaching down to −6 m, the maximum deformation is approximately 25 mm. In Stage 2, which includes further excavation to the bottom at the elevation of −10 m, the maximum deformation is around 62 mm, equivalent to 0.62% of the total excavation depth. The pile bottom displacement escalates in tandem with an increase in the excavation depth, while the development rate demonstrates relative constancy governed by the properties of the bearing stratum soil.

3.2.2. Basement Construction Stage

Figure 16b displays the pile’s lateral deformation during the basement construction in the finite element simulation. In Stage 3, removing the second support has a minimal impact on the pile’s deformation. Due to the support from the foundation plate, the deformation above the excavation face increases, while it decreases beneath the excavation face. The resulting secondary deformation is approximately 15% of the maximum deformation throughout the excavation stage.
In Stage 5, removing the first support results in a significant top displacement of the pile. It is worth noting that, in conventional excavation support structures, the removal of the first support will lead to large deformation of the retaining structure above the excavation face [1,37,38,39]. However, within the pile–wall integrated structure, the maximum pile lateral deformation within the B2 floor depth range changes very little. Because the B2 floor main structure is completed at this time, additionally, the deformation of the pile body even exhibits a certain amount of rebound within this depth range. This is because of the elastic support imparted by the B1 floor plate; the pile body (within the basement depth range) rotates toward the excavation side. However, since the B2 floor has formed a pile–wall integrated structure, the amplitude of this rebound is relatively small.
In Stage 7, an external overload of 30 kPa is applied. By this stage, the basement construction has been completed, forming a fully integrated structure with the pile and wall. Therefore, the external overload has a negligible effect on the pile’s lateral deformation. Due to the support provided by the floor plate and the foundation plate, the pile body deformation remains roughly unchanged. In general, there is a very slight overall deformation of the pile body towards the excavated area, accounting for approximately 0.5% of the previous stage deformation, which is attributed to the influence of the pile–wall integrated structure.

3.3. Comparative Analysis of Model Test and FEM Simulation Results

The preparation of the model test and the configuration of soil layers for the FEM simulation was conducted in adherence to an excavation project with distinctive soft soil conditions prevalent in Shanghai. Meanwhile, due to the relatively high water content of the model soil, observations and pore pressure measurements during the model tests indicate that the groundwater level consistently remains high. This aligns well with engineering conditions in high-water-level soft soil areas. The FEM simulation incorporates a higher groundwater level to match these conditions. This approach ensured a close resemblance between the model and the prototype’s soil and underground water conditions, thereby enhancing the relevance and applicability of the ensuing analyses. Based on the similitude principle (refer to Table 2), measured results were converted to the prototype to verify the computed results as follows.

3.3.1. Comparison of Lateral Deformations of Retaining Pile

Figure 17a,b show the comparison of the pile lateral deformations in the excavation stage to the bottom (−10 m of elevation) and the basement serviceability stage, respectively. The diagram demonstrates that the pile lateral deformation distribution patterns from the model test (measured results) align closely with the FEM (computed results). In both cases, the maximum lateral deformation occurs around 3 m below the excavation face (−13 m of elevation). Moreover, the lateral deformation of the lower pile body retracts slower in the test results compared to the FEM results. This is because of the better properties of the bearing stratum from actual projects, while the sole stratum is taken in the test.

3.3.2. Comparison of Internal Forces in the Retaining Piles

Figure 18a,b show the comparison of the pile’s bending moments in the excavation stage to the bottom and the basement serviceability stage, respectively. The diagram demonstrates that the pile’s moment in the measured results exhibits a similar distribution pattern to the computed results. However, a notable difference exists in the moment distribution pattern of the bottom part of the pile. This can be attributed to the disparity in properties of the bearing stratum between the FEM and the model test.

3.3.3. Comparison of Internal Forces in the Exterior Walls of the Basement

Figure 19 presents the comparison of the wall’s bending moments in the basement serviceability stage. The diagram reveals a similar wall moment distribution pattern between the model test and FEM results. The load outside the excavation could lead to active earth pressure. So, in the upper part, there is a positive moment. The lower part experiences a significant negative moment due to the effect of the rotation and rebound tendency of piles. In both cases, the maximum moments occur around −6.5 m of elevation. However, there is still a slight discrepancy in the wall’s moment upper and lower part distribution ratio. This discrepancy can be attributed to the size effects and errors in the test. Additionally, assembly errors prevent the grouting thickness between the pile and the wall from reaching the ideal thickness of around 1 mm. Despite controlling the gypsum grouting to a smaller thickness as much as possible, it still has an impact.
The deformation and internal force development of the close-fitting pile–wall integrated structure (SS) simulated by the model test exhibits strong consistency with the results of finite element simulation. Therefore, the model test and FEM numerical simulation conducted in this study are considered scientifically effective and reliable. The subsequent FEM simulation of the composite structure, which is based on the superimposed structure with slight modifications, introducing compressive-only elastic links between the pile and wall, should obtain the same evaluation.

3.4. Internal Force Analysis of Pile–Wall Integrated Structures

Figure 20 displays the bending moment in Stages 5 and 7 of the superimposed and composite structures. During basement construction and serviceability stages, the two structures’ internal force is analyzed.

3.4.1. Commonality Analysis of the Two Structures

In engineering practice, the load pressure within the range of 2~12 m outside the excavation should not exceed 20 kPa. However, in this FEM simulation, a loading pressure of 30 kPa is selected to observe clearer patterns.
Regarding the effects of the overload on the pile–wall structure, there is general consistency between the two structures. The effect on the pile body below the excavation face is minimal, while that above the excavation face increases. The increase in the pile body’s bending moment within the B1 floor depth range is significantly greater than that within the B2 floor. Because of the integrated structure, the wall and pile work together. The B1 wall bears part of the active soil pressure generated by the overload, causing a tensile moment on the excavation side of the wall. On the other hand, the moment of the B2 wall generally develops in the positive bending moment direction. However, the foundation plate’s support causes an increase in the negative moment near its position.

3.4.2. Main Difference Comparison of the Two Structures

For the retaining piles, the development of the pile body’s bending moment is generally consistent within the B1 floor depth range for both structures. Within the B2 floor depth range, the pile body’s moment is significantly smaller under the composite structure because the pile rotating tendency is unresisted by the wall due to the tensile stress inactivation between the pile, lining, and wall.
Regarding the basement retaining wall, the wall’s maximum bending moment is slightly larger at the upper position within the floor B1 depth range under the composite structure. This is because the superimposed structure has a more direct and complete connection with the pile wall, resulting in a more uniform transmission and distribution of the active earth pressure outside the excavation. The composite structure, within the B1 floor depth range, has a weaker redistribution effect of the active earth pressure transmitted by the pile body due to the presence of the lining. And there is slightly more pressure for the upper part of the wall to bear, which illustrates a more concentrated moment distribution. Within the B2 floor depth range, the appearance of the negative moment in the wall is mainly due to the restraining effect caused by the rotation and rebound tendency of the retaining piles toward the excavation site and the deformation of the wall itself. In the case of composite structures, the tensile stress between the pile and wall is inactive. The negative moment exists by self-deformation within the B2 floor depth range, and it is approximately 1/4 of that of the superimposed structure.

3.5. Comparison with the Conventional Design Method

In conventional design theory, during the basement-serviceability stage, the design of the walls is calculated using the continuous-beam method, typically without considering the presence of retaining piles. The basement walls bear the full earth pressure. The excavated area’s soil layer is mucky silty clay, with a unit weight γ = 17.4 kN/m3 and a lateral earth pressure coefficient k0 = 0.72. The thickness of the basement wall is 500 mm.
Figure 21 presents the wall’s calculated values using the continuous-beam method in the serviceability stage. Due to the irregular load transfer from the external load to the wall, conventional design usually adopts a conservative approach by assuming a rectangular, uniformly distributed load. Based on the magnitude of the bending moment at the most unfavorable section, the superimposed structure is approximately 50% of the conventional method, and the composite structure is about 20%. Therefore, it is evident that adopting a close-fitting pile–wall integrated structure, especially a composite structure, can significantly minimize the design values of basement walls, thereby minimizing the wall thickness.

3.6. Analysis of Sensitivity Factors in the Pile–Wall Interaction Structures

3.6.1. Influence Analysis of the Pile–Wall Stiffness Ratio

Figure 22 displays the bending moment distribution of the pile and wall under different stiffness ratios. Based on conventional design principles, the wall thickness of double-floor basements in Shanghai typically ranks between 400 and 600 mm. Consequently, the wall thicknesses of 400, 500, and 600 mm are, respectively, used for different stiffness ratios.
Figure 22a,b reveal a similar pattern in the moment variations of the exterior walls under different pile–wall stiffness ratios for both structures. Increasing the wall thickness significantly impacts both the positive and negative moments. Despite the increase in earth pressure outside the excavation from the basement-construction stage to the serviceability stage, the integrated structure lateral deformation remains minimal. This results in only a slight impact on the pile’s moment. However, the thickness and stiffness increase in the wall leads to a significant increase in their moment.
Figure 22c,d reveal that the variation in wall thickness has minimal influence on the pile’s moments beneath the excavation face. And its effect within the basement depth range is negligible. Within the depth range of the B1 floor, the pile’s moment decreases with the increased wall thickness because the pile–wall structure in this region collectively withstands the active earth pressure. Within the depth range of the B2 floor, the moment of the pile increases with the wall thickness due to the resistance to the pile rotation and rebound tendency under the superimposed structure. However, the tension stress between the pile and the wall is inactive under the composite structure, resulting in the pile’s moment remaining relatively constant within the B2 floor depth range.

3.6.2. Analysis of the Impact of Horizontal Floor Plate Stiffness

Figure 23 presents different stiffness ratios (0.25, 0.33, and 0.42) chosen to examine the bending moment distribution of the pile and wall under varying floor plate stiffness conditions. The usual foundation plate thickness of double-floor basements in Shanghai ranks between 600 and 800 mm, while the intermediate floor plate thickness ranks between 120 and 250 mm. Consequently, the stiffness ratio ranks between 0.15 and 0.42. To emphasize the impact of floor plate stiffness variation on the integrated structure, a fixed thickness of 600 mm is selected for the foundation plate.
Figure 23a,b reveal similar patterns in the wall’s bending moment variations with different horizontal floor plate stiffnesses for both structures. The impact of floor plate stiffness on the moment is significant. As the horizontal floor plate stiffness increases, the moment adjacent to the B0 plate gradually increases within the B1 floor depth range. However, the moment near the B1 plate transitions to a negative moment. This occurs because the gradual increase in horizontal floor plate stiffness reduces the displacement at the plate position. It increases the moment borne by the wall near the plate, resulting in an upward shift of the positive moment distribution. In the B2 floor depth range, the moment exhibits a decreasing trend. This effect occurs because the increase in floor plate stiffness reduces the pile lateral deformation, leading to a decrease in interaction with the basement retaining wall and subsequently reducing the moment.
Figure 23c,d reveal similar patterns in the pile’s moment variations with different horizontal floor plate stiffness for both structures. The effect of varying horizontal floor plate stiffnesses on the moment beneath the excavation face is negligible, as is its impact within the basement depth range. For the superimposed structure, as the horizontal floor plate stiffness increases, the moment adjacent to the B0 plate gradually increases within the B1 floor depth range. However, it exhibits a negative moment trend near the B1 plate, presenting a similar moment variation of the basement retaining wall because of the high pile–wall integration under the superimposed structure. For the composite structure, the moment of this range solely decreases with the increase in the plate stiffness. This is because the interaction between the pile and wall is only influenced by horizontal compressive stress in this structure. As the horizontal floor plate stiffness increases, the pile lateral deformation within the B1 floor depth range decreases, resulting in a reduction in the moment. Within the B2 floor depth range, the moment slightly rises with the increase in the plate stiffness under the superimposed structure. This is due to the restriction of the B1 plate on the deformation rebound caused by the pile rotation tendency. The presence of tensile stress is inactive between the pile and wall under the composite structure. Hence, the moment within the B2 floor depth range remains essentially unchanged.

4. Conclusions

This paper presents a systematic study of the force and deformation mechanisms, along with the development of internal force laws, for two typical types of close-fitting pile–wall integrated structures. This study employs a combination of model tests and finite element numerical simulations. The following observations and conclusions are presented herein:
(1)
The computed results align well with the measured results, validating the reliability of FEM and mode test employed in this study, which means a certain significant reference value for simulating and analyzing close-fitting pile–wall integrated structures.
(2)
A comparative analysis reveals the following: in the superimposed structure, the direct connection between the pile and wall (through rebar and cement) causes the wall to be significantly influenced by the pile’s deformation, experiencing varying degrees of tension and compression at different stages. This leads to a better stress distribution and structural integrity, enhancing overall engineering stability. In the composite structure, the developed wall internal forces are relatively small, allowing for a reduced wall thickness in design. Additionally, the presence of the lining layer facilitates basement waterproofing construction.
(3)
A sensitivity factor analysis reveals the following: different pile–wall stiffness ratios have a slight effect on the pile body’s bending moment above the excavation face but a significant impact on the wall’s bending moment. Different horizontal floor plate stiffness has a slight impact on the pile body’s bending moment above the excavation face but causes notable changes in the wall’s internal forces adjacent to the plate location. Both factors should be carefully considered to achieve a better stress distribution and structural performance.
(4)
The analysis of the integrated structure indicates the following: for the pile, its bending moment is significantly reduced after the construction of the basement retaining wall compared to the excavation stage, but it still bears substantial forces during the serviceability stage. For the wall, the bending moment distribution is significantly influenced by the floor plate stiffness in both structures. However, due to the utilization of the pile’s stiffness, the computed and measured bending moments are much lower than those in conventional design methods under the same conditions, especially for the composite structure.
(5)
In a close-fitting pile–wall integrated structure, the pile’s maximum bending moment occurs during the excavation stage, with its section consistently located below the excavation face, similar to conventional structures. However, the moment distribution on the wall differs significantly from conventional design methods, especially under a superimposed structure (a significant negative bending moment occurs on the B2 wall). Therefore, the design of the retaining structure should primarily focus on the internal forces developed beneath the excavation face during this stage. Additionally, the design of the basement retaining wall should account for the combined action of the horizontal floor plate support and the retaining pile.
(6)
For deep excavation, applying a close-fitting integrated structure can significantly save space between the pile and wall and reduce the cost of the basement retaining wall by fully utilizing retaining piles that are otherwise wasted. Additionally, this approach improves structural performance with minimal additional cost.

Author Contributions

Conceptualization, C.W.; methodology, C.W. and W.S.; software, W.S.; validation, Y.X., C.W. and W.S.; formal analysis, C.W. and W.S.; investigation, C.W., W.S. and G.W.; writing—original draft preparation, W.S. and C.W.; visualization, W.S.; writing—review and editing, C.W., Y.X. and W.S.; supervision C.W. and Y.X.; resources, G.W.; project administration, G.W. and C.W.; funding acquisition C.W. All authors have read and agreed to the published version of the manuscript.

Funding

The work described in this paper was jointly supported by the Jiangsu Natural Science Foundation Youth Project (Grant No. BK20180954) and the Postgraduate Research & Practice Innovation Program of the School of Transportation and Civil Engineering, Nantong University (Grant No. NTUJTXYGI2205).

Data Availability Statement

The original contributions presented in the study are included in the article, further inquiries can be directed to the corresponding authors.

Conflicts of Interest

Author Guowei Wei is employed by the Jiangsu Zhongnan Construction Industry Group Co., Ltd. The remaining authors declare that the research was conducted in the absence of any commercial or financial relationships that could be construed as a potential conflict of interest.

References

  1. Shi, J.; Liu, G.; Huang, P.; Ng, C.W.W. Interaction between a large-scale triangular excavation and adjacent structures in Shanghai soft clay. Tunn. Undergr. Space Technol. 2015, 50, 282–295. [Google Scholar] [CrossRef]
  2. Wang, J.H.; Xu, Z.H.; Wang, W.D. Wall and Ground Movements due to Deep Excavations in Shanghai Soft Soils. J. Geotech. Geoenviron. Eng. 2010, 136, 985–994. [Google Scholar] [CrossRef]
  3. Zhou, N.; Vermeer, P.A.; Lou, R.; Tang, Y.; Jiang, S. Numerical simulation of deep foundation pit dewatering and optimization of controlling land subsidence. Eng. Geol. 2010, 114, 251–260. [Google Scholar] [CrossRef]
  4. Tan, Y.; Lu, Y.; Wang, D. Interactive behaviors of four closely spaced mega excavations in soft clays: Case study on an excavation group in Shanghai, China. Tunn. Undergr. Space Technol. 2023, 138, 105186. [Google Scholar] [CrossRef]
  5. Hu, Y.; Wang, W.; Shen, J. Field monitoring and analysis of stresses for dual-purpose pile wall. Chin. J. Geotech. Eng. 2015, 37, 197–201. [Google Scholar] [CrossRef]
  6. Wu, C.; Yu, J.; Cao, X.; Shen, W. Study on Design Method of Pile Wall Combination Structure in a Deep Foundation Pit Considering Deformation Induced by Excavation. Front. Earth Sci. 2022, 10, 837950. [Google Scholar] [CrossRef]
  7. Xiao, J.; Huang, L.; He, Z.; Qu, W.; Li, L.; Jiang, H.; Zhong, Z.; Long, X. Probabilistic models applied to concrete corrosion depth prediction under sulfuric acid environment. Measurement 2024, 234, 114807. [Google Scholar] [CrossRef]
  8. Cheng, X.S.; Zheng, G.; Diao, Y.; Huang, T.M.; Deng, C.H.; Nie, D.Q.; Lei, Y.W. Experimental study of the progressive collapse mechanism of excavations retained by cantilever piles. Can. Geotech. J. 2017, 54, 574–587. [Google Scholar] [CrossRef]
  9. Seo, M.; Im, J.-C.; Kim, C.; Yoo, J.-W. A Study on the Applicability of a Retaining Wall Using Batter Piles in Clay. Can. Geotech. J. 2016, 53, 1195–1212. [Google Scholar] [CrossRef]
  10. Shi, J.; Ding, C.; Ng, C.W.W.; Lu, H.; Chen, L. Effects of overconsolidation ratio on tunnel responses due to overlying basement excavation in clay. Tunn. Undergr. Space Technol. 2020, 97, 103247. [Google Scholar] [CrossRef]
  11. Wei, G.; Feng, F.; Cui, Y.; Wang, X.; Diao, H.; Wu, Y. Research on the influence of foundation pit excavation on the lateral force and deformation of side shield tunnels based on full-scale experiments. Tunn. Undergr. Space Technol. 2023, 140, 105236. [Google Scholar] [CrossRef]
  12. Yang, X.; Kulatilake, P.H.S.W.; Jing, H.; Yang, S. Numerical simulation of a jointed rock block mechanical behavior adjacent to an underground excavation and comparison with physical model test results. Tunn. Undergr. Space Technol. 2015, 50, 129–142. [Google Scholar] [CrossRef]
  13. Sun, X.; Chen, F.; He, M.; Gong, W.; Xu, H.; Lu, H. Physical modeling of floor heave for the deep-buried roadway excavated in ten degree inclined strata using infrared thermal imaging technology. Tunn. Undergr. Space Technol. 2017, 63, 228–243. [Google Scholar] [CrossRef]
  14. Bilgin, Ö. Numerical studies of anchored sheet pile wall behavior constructed in cut and fill conditions. Comput. Geotech. 2010, 37, 399–407. [Google Scholar] [CrossRef]
  15. Chen, J.; Xu, Q.; Luo, X.; Tian, A.; Xu, S.; Tang, Q. Safety Evaluation and Energy Consumption Analysis of Deep Foundation Pit Excavation through Numerical Simulation and In-Site Monitoring. Energies 2022, 15, 7099. [Google Scholar] [CrossRef]
  16. Cui, K.; Feng, J.; Zhu, C. A Study on the Mechanisms of Interaction between Deep Foundation Pits and the Pile Foundations of Adjacent Skewed Arches as well as Methods for Deformation Control. Complexity 2018, 2018, 6535123. [Google Scholar] [CrossRef]
  17. Wang, J.; Xiang, H.; Yan, J. Numerical Simulation of Steel Sheet Pile Support Structures in Foundation Pit Excavation. Int. J. Geomech. 2019, 19, 05019002. [Google Scholar] [CrossRef]
  18. Guo, C.; Wang, R.; Lin, P.; Wang, F. Numerical analyses of a prefabricated retaining system for foundation pits in silt soils. Geotech. Res. 2020, 7, 173–190. [Google Scholar] [CrossRef]
  19. Hsiung, B.-C.B.; Yang, K.-H.; Aila, W.; Hung, C. Three-dimensional effects of a deep excavation on wall deflections in loose to medium dense sands. Comput. Geotech. 2016, 80, 138–151. [Google Scholar] [CrossRef]
  20. Zhang, J.; Xie, R.; Zhang, H. Mechanical response analysis of the buried pipeline due to adjacent foundation pit excavation. Tunn. Undergr. Space Technol. 2018, 78, 135–145. [Google Scholar] [CrossRef]
  21. Wang, S.; Li, Q.; Dong, J.; Wang, J.; Wang, M. Comparative investigation on deformation monitoring and numerical simulation of the deepest excavation in Beijing. Bull. Eng. Geol. Environ. 2021, 80, 1233–1247. [Google Scholar] [CrossRef]
  22. Hsiung, B.-C.B.; Phan, H.K. Exploration of maximum wall deflection and stability for deep excavation in loose to medium-dense sand. Acta Geotech. 2024, 19, 531–547. [Google Scholar] [CrossRef]
  23. Chai, X.; Rózsás, Á.; Slobbe, A.; Teixeira, A. Probabilistic parameter estimation and reliability assessment of a simulated sheet pile wall system. Comput. Geotech. 2022, 142, 104567. [Google Scholar] [CrossRef]
  24. Wang, J.; Deng, Y.; Ma, R.; Liu, X.; Guo, Q.; Liu, S.; Shao, Y.; Wu, L.; Zhou, J.; Yang, T.; et al. Model test on partial expansion in stratified subsidence during foundation pit dewatering. J. Hydrol. 2018, 557, 489–508. [Google Scholar] [CrossRef]
  25. Huang, F.; Shi, X.; Wu, C.; Dong, G.; Liu, X.; Zheng, A. Stability analysis of tunnel under coal seam goaf: Numerical and physical modeling. Undergr. Space 2023, 11, 246–261. [Google Scholar] [CrossRef]
  26. Wang, R.; Yang, H.; Ni, P.; Zhao, C.; Guo, C.; Ma, H.; Dong, P.; Liang, H.; Tang, M. Model test and numerical simulation of a new prefabricated double-row piles retaining system in silty clay ground. Undergr. Space 2023, 13, 262–280. [Google Scholar] [CrossRef]
  27. Zhang, S.; Yue, Z.; Lu, X.; Zhang, Q.; Sun, T.; Qi, Y. Model test and numerical simulation of foundation pit constructions using the combined artificial ground freezing method. Cold Reg. Sci. Technol. 2023, 205, 103700. [Google Scholar] [CrossRef]
  28. Sun, H.; Chen, Y.; Zhang, J.; Kuang, T. Analytical investigation of tunnel deformation caused by circular foundation pit excavation. Comput. Geotech. 2019, 106, 193–198. [Google Scholar] [CrossRef]
  29. Ng, C.W.W.; Shi, M.J.; Mašín, M.D.; Sun, M.H.; Lei, G.H. Influence of sand density and retaining wall stiffness on the three-dimensional responses of a tunnel to basement excavation. Can. Geotech. J. 2015, 52. [Google Scholar] [CrossRef]
  30. Zhou, F.; Zhou, P.; Li, J.; Lin, J.; Ge, T.; Deng, S.; Ren, R.; Wang, Z. Deformation characteristics and failure evolution process of the existing metro station under unilateral deep excavation. Eng. Fail. Anal. 2022, 131, 105870. [Google Scholar] [CrossRef]
  31. DG_TJ 08-61-2018; Technical Code for Excavation Engineering. Tongji University Press: Shanghai, China, 2018.
  32. Jiang, B.; Xia, W.; Wu, T.; Liang, J. The optimum proportion of hygroscopic properties of modified soil composites based on orthogonal test method. J. Clean. Prod. 2021, 278, 123828. [Google Scholar] [CrossRef]
  33. Yang, X.; Dong, J.; Yang, J.; Han, X. Similar Material Proportioning Tests and Mechanical Properties Based on Orthogonal Design. Materials 2023, 16, 6439. [Google Scholar] [CrossRef]
  34. Yuan, B.; Liang, J.; Zhang, B.; Chen, W.; Huang, X.; Huang, Q.; Li, Y.; Yuan, P. Optimized reinforcement of granite residual soil using a cement and alkaline solution: A coupling effect. J. Rock Mech. Geotech. Eng. 2024, in press. [Google Scholar] [CrossRef]
  35. Pei, H.; Yin, J.; Zhu, H.; Hong, C.; Fan, Y. In-Situ Monitoring of Displacements and Stability Evaluation of Slope Based On Fiber Bragg Grating Sensing Technology. Chin. J. Rock Mech. Eng. 2010, 29, 1570–1576. [Google Scholar]
  36. Cheng, K.; Xu, R.; Ying, H.; Gan, X.; Zhang, L.; Liu, S. Observed performance of a 30.2 m deep-large basement excavation in Hangzhou soft clay. Tunn. Undergr. Space Technol. 2021, 111, 103872. [Google Scholar] [CrossRef]
  37. Dong, Y.P.; Burd, H.J.; Houlsby, G.T. Finite-element analysis of a deep excavation case history. Géotechnique 2016, 66, 1–15. [Google Scholar] [CrossRef]
  38. Yang, Y.; Chen, C.; Liu, C.; Huang, L.; Chen, W.; Lin, N.; Cui, J.; Xie, W. Performance of a deep excavation and the influence on adjacent piles: A case history in karst region covered by clay and sand. Undergr. Space 2023, 8, 45–60. [Google Scholar] [CrossRef]
  39. Tan, Y.; Lu, Y.; Wang, D. Deep Excavation of the Gate of the Orient in Suzhou Stiff Clay: Composite Earth-Retaining Systems and Dewatering Plans. J. Geotech. Geoenviron. Eng. 2018, 144, 05017009. [Google Scholar] [CrossRef]
Figure 1. Two types of close-fitting pile–wall integrated structures (SS). (a) Superimposed structure, and (b) composite structure (CS).
Figure 1. Two types of close-fitting pile–wall integrated structures (SS). (a) Superimposed structure, and (b) composite structure (CS).
Buildings 14 02347 g001
Figure 2. Section profile of underground structure for model test.
Figure 2. Section profile of underground structure for model test.
Buildings 14 02347 g002
Figure 3. Test stages.
Figure 3. Test stages.
Buildings 14 02347 g003
Figure 4. Test chamber.
Figure 4. Test chamber.
Buildings 14 02347 g004
Figure 5. Modulus of elasticity test. (a) Three-point flexural test, and (b) displacement versus load curve.
Figure 5. Modulus of elasticity test. (a) Three-point flexural test, and (b) displacement versus load curve.
Buildings 14 02347 g005
Figure 6. Scheme of strain monitoring points (unit: mm). (a) Arrangement of pile strain monitoring points, (b) arrangement of wall strain monitoring points, and (c) overview of strain monitoring sites.
Figure 6. Scheme of strain monitoring points (unit: mm). (a) Arrangement of pile strain monitoring points, (b) arrangement of wall strain monitoring points, and (c) overview of strain monitoring sites.
Buildings 14 02347 g006
Figure 7. Preparation of model soil. (a) Production of model soil, and (b) preservation of model soil.
Figure 7. Preparation of model soil. (a) Production of model soil, and (b) preservation of model soil.
Buildings 14 02347 g007
Figure 8. Model structure burial and monitor system installation. (a) Retaining pile model burial, and (b) monitoring system installation and commissioning.
Figure 8. Model structure burial and monitor system installation. (a) Retaining pile model burial, and (b) monitoring system installation and commissioning.
Buildings 14 02347 g008
Figure 9. Overview of test stages. (a) Test Stage 3, (b) Test Stage 4, (c) Test Stage 7, and (d) Test Stage 8.
Figure 9. Overview of test stages. (a) Test Stage 3, (b) Test Stage 4, (c) Test Stage 7, and (d) Test Stage 8.
Buildings 14 02347 g009
Figure 10. Lateral deformation of the pile (SS). (a) Lateral deformation of the pile in Test Stages 1 to 4, and (b) lateral deformation of the pile in Test Stages 4 to 8.
Figure 10. Lateral deformation of the pile (SS). (a) Lateral deformation of the pile in Test Stages 1 to 4, and (b) lateral deformation of the pile in Test Stages 4 to 8.
Buildings 14 02347 g010
Figure 11. Bending moment of the pile (SS). (a) Excavation stage with Stage 4 and (b) basement construction stage.
Figure 11. Bending moment of the pile (SS). (a) Excavation stage with Stage 4 and (b) basement construction stage.
Buildings 14 02347 g011
Figure 12. Bending moment of the basement wall (SS).
Figure 12. Bending moment of the basement wall (SS).
Buildings 14 02347 g012
Figure 13. Finite element model. (a) Overview of meshing and (b) calculation profile diagram.
Figure 13. Finite element model. (a) Overview of meshing and (b) calculation profile diagram.
Buildings 14 02347 g013
Figure 14. FEM modeling of the main underground structure. (a) Superimposed structure (SS) and (b) composite structure (CS).
Figure 14. FEM modeling of the main underground structure. (a) Superimposed structure (SS) and (b) composite structure (CS).
Buildings 14 02347 g014
Figure 15. Scheme of FE simulation.
Figure 15. Scheme of FE simulation.
Buildings 14 02347 g015
Figure 16. Lateral deformation of the pile (SS). (a) Excavation stage and (b) basement construction stage.
Figure 16. Lateral deformation of the pile (SS). (a) Excavation stage and (b) basement construction stage.
Buildings 14 02347 g016
Figure 17. Lateral deformation of the pile comparison of the model test and FEM. (a) Excavation to −10 m and (b) basement serving stage (SS).
Figure 17. Lateral deformation of the pile comparison of the model test and FEM. (a) Excavation to −10 m and (b) basement serving stage (SS).
Buildings 14 02347 g017
Figure 18. Bending moment of the retaining pile comparison of model test and FEM. (a) Excavation to −10 m and (b) basement serving stage (SS).
Figure 18. Bending moment of the retaining pile comparison of model test and FEM. (a) Excavation to −10 m and (b) basement serving stage (SS).
Buildings 14 02347 g018
Figure 19. Bending moment of the wall comparison of model test and FEM (SS).
Figure 19. Bending moment of the wall comparison of model test and FEM (SS).
Buildings 14 02347 g019
Figure 20. Bending moment of integration structures. (a) Bending moment of the pile (SS), (b) bending moment of the pile (CS), (c) bending moment of the basement wall (SS), and (d) bending moment of the basement wall (CS).
Figure 20. Bending moment of integration structures. (a) Bending moment of the pile (SS), (b) bending moment of the pile (CS), (c) bending moment of the basement wall (SS), and (d) bending moment of the basement wall (CS).
Buildings 14 02347 g020
Figure 21. The conventional design methods of the basement retaining wall. (a) Load diagram of the continuous-beam method (unit: kN), (b) bending moment envelope diagram (unit: kN·m).
Figure 21. The conventional design methods of the basement retaining wall. (a) Load diagram of the continuous-beam method (unit: kN), (b) bending moment envelope diagram (unit: kN·m).
Buildings 14 02347 g021
Figure 22. Bending moment of the integrated structure with different pile–wall stiffness ratios. (a) Bending moment of the basement wall (SS), (b) bending moment of the basement wall (CS), (c) bending moment of the pile (SS), and (d) bending moment of the pile (CS).
Figure 22. Bending moment of the integrated structure with different pile–wall stiffness ratios. (a) Bending moment of the basement wall (SS), (b) bending moment of the basement wall (CS), (c) bending moment of the pile (SS), and (d) bending moment of the pile (CS).
Buildings 14 02347 g022
Figure 23. Bending moment of the integrated structure with different horizontal plate stiffnesses. (a) Bending moment of the basement wall (SS), (b) bending moment of the basement wall (CS), (c) bending moment of the retaining pile (SS), and (d) bending moment of the retaining pile (CS).
Figure 23. Bending moment of the integrated structure with different horizontal plate stiffnesses. (a) Bending moment of the basement wall (SS), (b) bending moment of the basement wall (CS), (c) bending moment of the retaining pile (SS), and (d) bending moment of the retaining pile (CS).
Buildings 14 02347 g023
Table 1. Physical and mechanical parameters of prototype and model soil.
Table 1. Physical and mechanical parameters of prototype and model soil.
Unit Weight γ (kN·m−3)Water Content ω (%)Compressive Modulus Es (MPa)c (kPa)φ (°)
Prototype17.4~19.620~304~150~1515~33
Expected17.4~19.620~300.08~0.30~0.315~33
Model soil18.2200.330.126.2
Table 2. The 1 g model test similitude relationship.
Table 2. The 1 g model test similitude relationship.
Physical QuantitySimilitude RelationshipPrototype to the Model Ratio (for N = n = 50)
Acceleration11
Linear dimensionn50
StressN = n50
Deformationn50
Bending stiffnessNn4505
MomentNn3504
Table 3. Material parameters of the structural similarity model.
Table 3. Material parameters of the structural similarity model.
MaterialAcrylicPPPE
Diameter (mm)161616
Elastic modulus E (GPa)3.021.390.84
Table 4. Similitude ratio of bending structural model.
Table 4. Similitude ratio of bending structural model.
Size (mm)Length (mm) Bending   Stiffness   E s I (MPa·m4)
Prototypical retaining pileΦ 80030,000603.18
Model retaining pileΦ 166002.70 × 10−6 (PE)
Target similitude ratio5050505
Practical similitude ratio505046.85
Prototypical basement wallδ 50010,000 (height)312.5
Model basement wallδ 61601.09 × 10−6 (Acrylic)
Target similitude ratio5050505
Practical similitude ratio8362.549.25
Φ means diameter; δ means thickness.
Table 5. Similitude ratio of the compressive structural model.
Table 5. Similitude ratio of the compressive structural model.
Size (mm)Length (mm)Compressive Stiffness EsAs·L−1 (MPa·m2·m−1)
Prototypical inner supporta 80020,000 (section)960
Model inner supportΦ 164000.42 (PE)
Target similitude ratio50250502
Practical similitude ratio5025047.82
Prototypical foundation plateδ 80020,000 (section)1200
Model foundation plateδ 164000.67 (PE)
Target similitude ratio5050502
Practical similitude ratio505042.32
Prototypical floor plateδ 20020,000 (section)300
Model floor plateδ 24000.17 (PP)
Target similitude ratio5050502
Practical similitude ratio1005046.52
Φ means diameter; δ means thickness; a means side length. The length of the prototype member refers to the basic cross-section of the prototype.
Table 6. Soil layer parameters.
Table 6. Soil layer parameters.
Soil LayerUnit Weight γ (kN·m−3)Compressive Modulus Es (MPa)c (kPa)φ (°)μ
① Mucky silty clay17.43.151016.50.32
② Mucky clay16.82.30128.50.36
1 Silty clay17.84.101518.50.33
2 Sandy silt18.211.82433.50.32
Table 7. Soil layer parameters of the HSS constitutive model.
Table 7. Soil layer parameters of the HSS constitutive model.
Soil Layer E oed ref (MPa) E 50 ref (MPa) E ur ref (MPa)m G 0 ref (MPa)γ0.7
① Mucky silty clay2.843.4022.720.872.702.7 × 10−4
② Mucky clay2.412.8919.300.854.032.7 × 10−4
1 Silty clay5.746.8934.450.859.582.7 × 10−4
2 Sandy silt5.636.7533.750.8118.132.7 × 10−4
Disclaimer/Publisher’s Note: The statements, opinions and data contained in all publications are solely those of the individual author(s) and contributor(s) and not of MDPI and/or the editor(s). MDPI and/or the editor(s) disclaim responsibility for any injury to people or property resulting from any ideas, methods, instructions or products referred to in the content.

Share and Cite

MDPI and ACS Style

Wu, C.; Shen, W.; Xu, Y.; Wei, G. Model Test and Numerical Simulation of Two Typical Close-Fitting Pile–Wall Integrated Structures in Deep Excavation. Buildings 2024, 14, 2347. https://doi.org/10.3390/buildings14082347

AMA Style

Wu C, Shen W, Xu Y, Wei G. Model Test and Numerical Simulation of Two Typical Close-Fitting Pile–Wall Integrated Structures in Deep Excavation. Buildings. 2024; 14(8):2347. https://doi.org/10.3390/buildings14082347

Chicago/Turabian Style

Wu, Changjiang, Wuqin Shen, Ying Xu, and Guowei Wei. 2024. "Model Test and Numerical Simulation of Two Typical Close-Fitting Pile–Wall Integrated Structures in Deep Excavation" Buildings 14, no. 8: 2347. https://doi.org/10.3390/buildings14082347

APA Style

Wu, C., Shen, W., Xu, Y., & Wei, G. (2024). Model Test and Numerical Simulation of Two Typical Close-Fitting Pile–Wall Integrated Structures in Deep Excavation. Buildings, 14(8), 2347. https://doi.org/10.3390/buildings14082347

Note that from the first issue of 2016, this journal uses article numbers instead of page numbers. See further details here.

Article Metrics

Back to TopTop