Research on Optimization Design of Prefabricated ECC/RC Composite Coupled Shear Walls Based on Seismic Energy Dissipation
Abstract
1. Introduction
2. Experimental Investigation
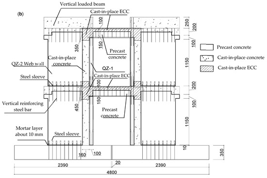
2.1. Specimen Design
2.2. Material Properties
2.3. Testing Methodology
2.4. Damage and Failure Characteristics
2.5. Load–Displacement Hysteresis Behavior
3. Numerical Simulation
3.1. Material Constitutive Relations
3.2. Element Type and Model Building
3.3. Boundary Conditions and Loading Methods
3.4. Mesh Subdivision
3.5. Analytical Calculations
3.6. Damage and Crack Distribution
3.7. Comparison of Numerical and Experimental Results
4. Quantitative Analysis of Influence Factors
4.1. Use Regions of ECC in Composite Coupling Beams
4.1.1. Selection of Parameters
4.1.2. Load–Displacement Hysteresis Behavior
4.1.3. Energy Dissipation Capacity
4.2. Use Regions of ECC in Shear Walls
4.2.1. Selection of Parameters
4.2.2. Load–Displacement Hysteresis Behavior
4.2.3. Energy Dissipation Capacity
4.3. Strength of ECC
4.3.1. Selection of Parameters
4.3.2. Load–Displacement Hysteresis Behavior
4.3.3. Energy Dissipation Capacity
4.4. Stirrup Ratio of Coupling Beams
4.4.1. Selection of Parameters
4.4.2. Load–Displacement Hysteresis Behavior
4.4.3. Energy Dissipation Capacity
4.5. Strength of Longitudinal Reinforcement
4.5.1. Selection of Parameters
4.5.2. Load–Displacement Hysteresis Behavior
4.5.3. Energy Dissipation Capacity
5. Results and Optimization Design Suggestions
- -
- Incorporation of ECC in composite coupling beams significantly bolsters seismic resilience compared to traditional concrete counterparts, with benefits amplifying alongside increased ECC integration.
- -
- The most effective energy dissipation is achieved with ECC applied 400 mm up from the shear wall’s base, recommending a 14% structural height allocation (400 mm) for optimal ECC integration in prefabricated walls.
- -
- ECC materials of lesser strength demonstrate enhanced energy dissipation abilities under prolonged loading conditions.
- -
- Variations within the examined stirrup ratio spectrum (0.5% to 2.01%) have a minimal effect on the seismic performance.
- -
- The necessity for high-strength steel is de-emphasized, with HRB400 grade steel emerging as the preferable option.
6. Discussion
Author Contributions
Funding
Data Availability Statement
Conflicts of Interest
References
- Elliott, K.S. Precast Concrete Structures; CRC Press: Boca Raton, FL, USA, 2016. [Google Scholar]
- Soares, D.; De Brito, J.; Ferreira, J.; Pacheco, J. Use of coarsere cycled aggregates from precast concrete rejects: Mechanical and durability performance. Construct. Build. Mater. 2014, 71, 263–272. [Google Scholar] [CrossRef]
- Kurama, Y.C.; Sritharan, S.; Fleischman, R.B.; Restrepo, J.I.; Henry, R.S.; Cleland, N.M.; Ghosh, S.K.; Bonelli, P. Seismic-resistant precast concrete structures: State of the art. J. Struct. Eng. 2018, 144, 03118001. [Google Scholar] [CrossRef]
- Shen, S.D.; Cui, Y.; Pan, P.; Ren, J.Y. Development of prefabricated composite energy dissipating slotted shear wall. Eng. Struct. 2019, 199, 109577. [Google Scholar] [CrossRef]
- Nazari, M.; Sritharan, S.; Aaleti, S. Single precast concrete rocking walls as earthquake force-resisting elements. Earthq. Eng. Struct. Dynam. 2016, 46, 753–769. [Google Scholar] [CrossRef]
- Peng, Y.Y.; Qian, J.R.; Wang, Y.H. Cyclic performance of precast concrete shear walls with a mortar–sleeve connection for longitudinal steel bars. Mater. Struct. 2016, 49, 2455–2469. [Google Scholar] [CrossRef]
- Brunesi, E.; Peloso, S.; Pinho, R.; Nascimbene, R. Cyclic testing of a full-scale two-storey reinforced precast concrete wall-slab-wall structure. Bull. Earthq. Eng. 2018, 16, 5309–5339. [Google Scholar] [CrossRef]
- Brunesi, E.; Peloso, S.; Pinho, R.; Nascimbene, R. Shake-table testing of a full-scale twostorey precast wall-slab-wall structure. Earthq. Spectra 2019, 35, 1583–1609. [Google Scholar] [CrossRef]
- Qian, K.; Li, B.; Liu, Y. Integrity of precast concre test ructues to resist progressive collapse. Geotech. Struct. Eng. Congr. 2016, 1976–1986. [Google Scholar] [CrossRef]
- Wu, B.; Peng, C.W.; Zhao, X.Y. Cyclic loading tests of semi-precast circular steel tubular columns in corporating precast segments containing demolished concrete lumps. Eng. Struct. 2020, 211, 110438. [Google Scholar] [CrossRef]
- Qian, J.R.; Han, W.L.; Zhao, Z.Z.; Qin, H.; Zhang, Y.; Yu, J.; Ma, T.; Tian, D. Pseudo-dynamic substructure test on a 3-storey full-scale model of prefabricated concrete shear wall structure with rebars splicing by grout sleeves. J. Build. Struct. 2017, 38, 26–38. (In Chinese) [Google Scholar]
- SJG98-2021; Technical Specification for Concrete Structures of Tall Building. China Architecture & Building Press: Beijing, China, 2021.
- Xiao, S.; Wang, Z.; Li, X.; Harries, K.A.; Xu, Q.; Gao, R. Study of effects of sleeve grouting defects on the seismic performance of precast concrete shear walls. Eng. Struct. 2021, 236, 111833. [Google Scholar] [CrossRef]
- Zhi, Q.; Kang, L.; Jia, L.; Xiong, J.; Guo, Z. Seismic performance of precast shear walls prestressed via post-tensioned high strength bars placed inside grouted corrugated pipes. Eng. Struct. 2021, 237, 112153. [Google Scholar] [CrossRef]
- Tan, W.; Xianqian, M.; Ruinian, J.; Lijun, D.; Jun, L.; Yinlong, H.; Haibin, M. Seismic performance of repaired prefabricated shear walls. Case. Stud. Constr. Mat. 2023, 18, e01896. [Google Scholar] [CrossRef]
- Yang, J.; Guo, T.; Wang, W.; Zhu, R. Experimental investigation on seismic behaviors of precast concrete shear walls with sleeve grouting defects. Adv. Struct. Eng. 2023, 26, 258–271. [Google Scholar] [CrossRef]
- Qin, C.; Bai, G.; Liu, B.; Wu, T.; Wang, B. Study on the global bidirectional seismic behavior of monolithic prefabricate concrete shear wall structure. Soil Dyn. Earthq. Eng. 2020, 136, 106194. [Google Scholar] [CrossRef]
- Sheng, F. Study on Damping Characteristics and Dynamic Response of ECC/RC Prefabricated Shear Wall Structure; Southeast University: Nanjing, China, 2022. (In Chinese) [Google Scholar]
- Li, V.C. Engineered cementitious composites (ECC) material, structural, and durability performance. In Concrete Construction Engineering Handbook; Nawy, E., Ed.; CRC Press: Boca Raton, FL, USA, 2008; Chapter 24; pp. 1–78. [Google Scholar]
- Yu, J.; Yao, J.; Lin, X.; Li, H.; Lam, J.Y.; Leung, C.K.; Shih, K. Tensile performance of sustainable Strain-Hardening Cementitious Composites with hybrid PVA and recycled PET fibers. Cem. Concr. Res. 2018, 107, 110–123. [Google Scholar] [CrossRef]
- Yu, K.Q.; Yu, J.T.; Dai, J.G.; Lu, Z.D.; Shah, S.P. Development of ultra-high performance engineered cementitious composites using polyethylene (PE) fibers. Constr. Build. Mater. 2018, 158, 217–227. [Google Scholar] [CrossRef]
- Abd Elmoaty, A.E.M.; Morsy, A.M.; Harraz, A.B. Effect of Fiber Type and Volume Fraction on Fiber Reinforced Concrete and Engineered Cementitious Composite Mechanical Properties. Buildings 2022, 12, 2108. [Google Scholar] [CrossRef]
- Abouhussien, A.A.; Hassan, A.A.; Ismail, M.K.; AbdelAleem, B.H. Evaluating the cracking behavior of ECC beam-column connections under cyclic loading by acoustic emission analysis. Constr. Build. Mater. 2019, 215, 958–968. [Google Scholar] [CrossRef]
- Hao, Z.; Lu, C.; Li, Z. Highly accurate and automatic semantic segmentation of multiple cracks in engineered cementitious composites (ECC) under dual pre-modification deep-learning strategy. Cem. Concr. Res. 2023, 165, 107066. [Google Scholar] [CrossRef]
- Huang, B.T.; Wu, J.Q.; Yu, J.; Dai, J.G.; Leung, C.K.; Li, V.C. Seawater sea-sand engineered/strain-hardening cementitious composites (ECC/SHCC): Assessment and modeling of crack characteristics. Cem. Concr. Res. 2021, 140, 106292. [Google Scholar] [CrossRef]
- Gu, D.; Pan, J.; Mustafa, S.; Huang, Y.; Luković, M. Shear transfer mechanism in reinforced engineered cementitious composite (ECC) beams: Quantification of Vs and Vc. Eng. Struct. 2022, 261, 114282. [Google Scholar] [CrossRef]
- Meng, D.; Lee, C.K.; Zhang, Y.X. Structural behavior of reinforced polyvinyl alcohol engineered cementitious composite (PVA-ECC) beams under static and fatigue loadings. In Advances in Engineered Cementitious Composites; Woodhead Publishing: Sawston, UK, 2022; pp. 161–208. [Google Scholar]
- Abbas, A.A.; Arna’Ot, F.H.; Abid, S.R.; Özakça, M. Flexural behavior of ECC hollow beams incorporating different synthetic fibers. Front. Struct. Civ. Eng. 2021, 15, 399–411. [Google Scholar] [CrossRef]
- Amiri, M.; Esfahani, M.R. Effect of using Engineered Cementitious Composites (ECC) on failure behavior of flat slab-column connections. Structures 2023, 47, 2397–2407. [Google Scholar] [CrossRef]
- Zhang, Z.; Qian, S.; Ma, H. Investigating mechanical properties and self-healing behavior of micro-cracked ECC with different volume of fly ash. Constr. Build. Mater. 2014, 52, 17–23. [Google Scholar] [CrossRef]
- Zhang, Z.Y.; Ding, R.; Fan, J.S.; Nie, X.; Zhang, J. Seismic performance and shear strength of coupling beams using engineered cementitious composites with different reinforcement layouts. Eng. Struct. 2020, 219, 110895. [Google Scholar] [CrossRef]
- Suryanto, B.; Tambusay, A.; Suprobo, P.; Bregoli, G.; Aitken, M.W. Seismic performance of exterior beam-column joints constructed with engineered cementitious composite: Comparison with ordinary and steel fibre reinforced concrete. Eng. Struct. 2022, 250, 113377. [Google Scholar] [CrossRef]
- Cai, J.; Pan, J.; Xu, L.; Li, G.; Ma, T. Mechanical behavior of RC and ECC/RC composite frames under reversed cyclic loading. J. Build. Eng. 2021, 35, 102036. [Google Scholar] [CrossRef]
- Khan, F.A.; Khan, S.W.; Khan, W. Seismic performance of RC-ECC composite frame by eliminating shear reinforcement in beam-column joint: Shake table tests. Adv. Struct. Eng. 2022, 25, 2966–2980. [Google Scholar] [CrossRef]
- Khan, F.A.; Rashid, M.; Khan, S.W.; Rizwan, M.; Badrashi, Y.I.; Fahim, M.; Gul, A. Comparative seismic performance assessment of RC and RC/ECC hybrid frame structures: A shake table study. Innov. Infrastruct. Solut. 2022, 7, 94. [Google Scholar] [CrossRef]
- Ye, B.; Wang, H.; Ma, Y.; Pan, P. Seismic performance of flexure-dominated reinforced-engineered cementitious composites coupled shear wall. Eng. Struct. 2022, 272, 114992. [Google Scholar] [CrossRef]
- Yang, J.; Liang, S.; Zhu, X.; Sun, C.; Guo, Z. Seismic behavior of precast concrete coupled shear walls with engineered cementitious composite (ECC) in the critical cast-in-place regions. Sci. China Technol. Sci. 2017, 60, 1244–1254. [Google Scholar] [CrossRef]
- Yang, J.; Jiang, L.; Guo, H.; Yao, G. Stress Mechanism and Energy Dissipation Performance Optimization of Prefabricated ECC/RC Combined Shear Walls under Low Cyclic Loading. Buildings 2023, 13, 772. [Google Scholar] [CrossRef]
- JGJ 1-2014; Technical Specification for Precast Concrete Structures. China Architecture & Building Press: Beijing, China, 2014.
- Hou, H.; Qiu, C.; Li, G.; Wang, J. Cyclic test on steel frames with energy-saving sandwich composite panels. Eng. Mech. 2012, 9, 177–184. (In Chinese) [Google Scholar]
- GB 50010-2010; Code for Design of Concrete Structures (2015 Edition). China Architecture & Building Press: Beijing, China, 2015.
- Yuan, F.; Pan, J.; Wu, Y. Numerical study on flexural behaviors of steel reinforced engineered cementitious composite (ECC) and ECC/concrete composite beams. Sci. China Technol. Sci. 2014, 57, 637–645. [Google Scholar] [CrossRef]
- Zhang, J.; Wang, Q.; Hu, S.; Wang, C. Parameters verification of concrete damaged plastic model of ABAQUS. Build. Struct. 2008, 38, 127–130. [Google Scholar]
- Kien, D.N.; Chen, X.; Zhuang, X.; Rabczuk, T. Radial Basis Function Based Finite Element Method for Bending, Vibration and Buckling Analysis of Laminated Composite Mindlin-Reissner Plates. In Advances in Engineering Research and Application, Proceedings of the International Conference on Engineering Research and Applications, ICERA 2022, Thai Nguyen, Vietnam, 1–2 December 2022; Springer International Publishing: Cham, Switzerland, 2022; pp. 806–822. [Google Scholar]
- Gheisari, M.; Ebrahimzadeh, F.; Rahimi, M.; Moazzamigodarzi, M.; Liu, Y.; Dutta Pramanik, P.K.; Ali Heravi, M.; Mehbodniya, A.; Ghaderzadeh, M.; Feylizadeh, M.R.; et al. Deep learning: Applications, architectures, models, tools, and frameworks: A comprehensive survey. CAAI Trans. Intell. Technol. 2023, 8, 581–606. [Google Scholar] [CrossRef]
- Koy, A.; Çolak, A.B. The Intraday High-Frequency Trading with Different Data Ranges: A Comparative Study with Artificial Neural Network and Vector Autoregressive Models. Arch. Adv. Eng. Sci. 2023, 1–20. [Google Scholar] [CrossRef]
- Li, Z.; Li, S. Recursive recurrent neural network: A novel model for manipulator control with different levels of physical constraints. CAAI Trans. Intell. Technol. 2023, 8, 622–634. [Google Scholar] [CrossRef]
- Zhao, L.; Sun, Z.; Liu, K.; Zhang, J. The dynamic relaxation form finding method aided with advanced recurrent neural network. CAAI Trans. Intell. Technol. 2023, 8, 635–644. [Google Scholar] [CrossRef]
- Purohit, J.; Dave, R. Leveraging deep learning techniques to obtain efficacious segmentation results. Arch. Adv. Eng. Sci. 2023, 1, 11–26. [Google Scholar] [CrossRef]
- Zhao, P.; Liao, W.; Xue, H.; Lu, X. Intelligent design method for beam and slab of shear wall structure based on deep learning. J. Build. Eng. 2022, 57, 104838. [Google Scholar] [CrossRef]
- Du, Q.; Luo, G.; Wang, X.; Wang, T.; Fu, G.; Lu, C. Fast Optimization Method of Flexible Support Structure Based on Mathematical Model. Arch. Adv. Eng. Sci. 2023, 1–11. [Google Scholar] [CrossRef]





















| Component | FW-1 Flange Wall | FW-2 Web Wall | CB-1 Composite Coupling Beam | LB-1 Lateral Composite Beam | LB-2 Lateral Composite Beam | LS-1 Laminated Slab | LS-2 Laminated Slab | B-1 Base |
|---|---|---|---|---|---|---|---|---|
| Number | 8 | 8 | 4 | 4 | 4 | 4 | 2 | 4 |
| Geometric dimension (mm) | 400 × 100 × 1190 | 850 × 100 × 1340 | 100 × 150 × 920 | 100 × 100 × 970 | 200 × 100 × 1270 | 945 × 50 × 1270 | 920 × 50 × 1270 | 2390 × 900 × 350 |
| Longitudinal reinforcement | 12C6 | 8C6+10A6 | 3C8 | 3C12 | 3C12 | A6@100 | A6@100 | 36C4 |
| Horizontal reinforcement | A6@100 | A6@100 | — | — | — | A6@100 | A6@100 | C8@50 |
| Stirrups | A4@50 | A4@50 | C6@50 | C6@50 | C6@50 | — | — | — |
| Materials | Compressive Strength fcu,k (MPa) | Tensile Strength ft,k (MPa) | Modulus of Elasticity Es (GPa) | Ultimate Tensile Strain εsu |
|---|---|---|---|---|
| Precast concrete | 36.8 | 2.2 | 3.15 | — |
| Cast-in-place concrete | 32.6 | 2.1 | 3.12 | — |
| ECC | 35.2 | 4.6 | 1.54 | 3.4% |
| Steel Type | Yield Strength fy (MPa) | Ultimate Strength fu (MPa) | Modulus of Elasticity Es (GPa) |
|---|---|---|---|
| HPB300 | 309 | 358 | 209 |
| HRB400 | 416 | 489 | 200 |
| Mechanical Properties | Cracking Point | Yield Point | Peak Point | Failure Point |
|---|---|---|---|---|
| Displacement (mm) | 3.64 | 7.84 | 33.67 | 50.5 |
| Load (kN) | 248.7 | 524.0 | 991.7 | 836.0 |
| Classification of Specimens | Application Regions of ECC in Coupling Beams | Stirrup Ratio of Coupling Beams | Type of Longitudinal Reinforcement | Type of ECC | Type of Concrete |
|---|---|---|---|---|---|
| Structure 1-1 | None (Concrete coupling beam) | 1.13% | HRB400 | E40 | C40 |
| Structure 1-2 | Cast-in-place areas (ECC/RC coupling beams) | ||||
| Structure 1-3 | Full ECC (ECC coupling beams) |
| Displacement Loading Level | Number of Cycles | Structure 1-1 | Structure 1-2 | Structure 1-3 | |||
|---|---|---|---|---|---|---|---|
| Single-Cycle | Cumulative | Single-Cycle | Cumulative | Single-Cycle | Cumulative | ||
| 1Δ | 1 | 918.5 | 918.5 | 1186.2 | 1186.2 | 1287.7 | 1287.7 |
| 2 | 555.6 | 1474.1 | 608.7 | 1794.9 | 658.6 | 1946.3 | |
| 3 | 263.7 | 1737.8 | 220.6 | 2015.5 | 237.5 | 2183.8 | |
| 2Δ | 1 | 6521.6 | 8259.4 | 7417.9 | 9433.4 | 8062.9 | 10,246.7 |
| 2 | 4307.9 | 12,567.3 | 5292.6 | 14,726.0 | 5752.8 | 15,999.5 | |
| 3 | 4067.5 | 16,634.8 | 5050.2 | 19,776.2 | 5489.4 | 21,488.9 | |
| 3Δ | 1 | 12,299.2 | 28,934 | 17,250.3 | 37,026.5 | 18,750.3 | 40,239.2 |
| 2 | 12,178.7 | 41,021.9 | 14,711.9 | 51,738.4 | 15,991.2 | 56,230.4 | |
| 3 | 12,087.9 | 53,200.6 | 12,974.0 | 64,712.4 | 14,102.2 | 70,332.6 | |
| 4Δ | 1 | 21,063.8 | 74,264.4 | 21,897.7 | 86,610.1 | 23,801.8 | 94,134.4 |
| 2 | 18,255.7 | 92,520.1 | 19,782.7 | 106,392.8 | 21,502.9 | 115,155.6 | |
| 3 | 16,788.5 | 109,308.6 | 19,339.5 | 125,732.3 | 21,021.2 | 136,658.5 | |
| 5Δ | 1 | 25,502.7 | 134,811.3 | 28,540.1 | 154,272.4 | 31,021.9 | 167,680.4 |
| 2 | 22,941.6 | 157,752.9 | 27,119.2 | 181,391.6 | 29,477.4 | 197,157.8 | |
| 3 | 21,861.5 | 179,614.4 | 26,669.4 | 208,061.0 | 28,988.5 | 226,146.3 | |
| 6Δ | 1 | 30,998.5 | 210,612.9 | 37,044.6 | 244,032.7 | 40,265.9 | 266,412.2 |
| 2 | 29,796.7 | 240,409.6 | 35,971.7 | 281,077.3 | 39,099.7 | 305,511.9 | |
| 3 | 28,689.7 | 269,099.3 | 35,280.9 | 316,358.2 | 38,348.8 | 343,860.7 | |
| Classification of Specimens | ECC Application at the Base of Shear Walls | Stirrup Ratio of Coupling Beams | Type of Longitudinal Reinforcement | Type of ECC | Type of Concrete |
|---|---|---|---|---|---|
| Structure 2-1 | 0 | 1.13% | HRB400 | E40 | C40 |
| Structure 2-2 | 7% structural height (200 mm) | ||||
| Structure 2-3 | 14% structural height (400 mm) | ||||
| Structure 2-4 | 21% structural height (600 mm) | ||||
| Structure 2-5 | 28% structural height (800 mm) |
| Displacement Loading Level | Number of Cycles | Structure 2-1 | Structure 2-2 | Structure 2-3 | Structure 2-4 | Structure 2-5 | |||||
|---|---|---|---|---|---|---|---|---|---|---|---|
| Single-Cycle | Cumulative | Single-Cycle | Cumulative | Single-Cycle | Cumulative | Single-Cycle | Cumulative | Single-Cycle | Cumulative | ||
| 1Δ | 1 | 1193.5 | 1193.5 | 1169.7 | 1169.7 | 1715.6 | 1715.6 | 1491.8 | 1491.8 | 1453.9 | 1453.9 |
| 2 | 647.7 | 1841.2 | 502.3 | 1672 | 768.3 | 2483.9 | 545.5 | 2037.3 | 515 | 1968.9 | |
| 3 | 216.2 | 2057.4 | 297.6 | 1969.6 | 412.3 | 2896.2 | 308.6 | 2345.9 | 332 | 2300.9 | |
| 2Δ | 1 | 7975.3 | 10,032.7 | 7652.6 | 9622.2 | 8556.3 | 11,452.5 | 8651.8 | 10,997.7 | 8666.9 | 10,967.8 |
| 2 | 5674.6 | 15,707.3 | 5863.1 | 15,485.3 | 7367.4 | 18,819.9 | 7160.8 | 18,158.5 | 7238.6 | 18,206.4 | |
| 3 | 5397.3 | 21,104.6 | 5771.2 | 21,256.5 | 7005.4 | 25,825.3 | 6922.4 | 25,080.9 | 7012.2 | 25,218.6 | |
| 3Δ | 1 | 18,649.2 | 39,753.8 | 18,344.2 | 39,600.7 | 22,023.7 | 47,849 | 21,322.3 | 46,403.2 | 22,419 | 47,637.6 |
| 2 | 15,112.3 | 54,866.1 | 17,998.3 | 57,599 | 20,969.8 | 68,818.8 | 20,720 | 67,123.2 | 21,431.9 | 69,069.5 | |
| 3 | 14,073.5 | 68,939.6 | 15,419.6 | 73,018.6 | 17,581.2 | 86,400 | 19,805 | 86,928.2 | 19,138.9 | 88,208.4 | |
| 4Δ | 1 | 23,429.7 | 92,369.3 | 26,425.3 | 99,443.9 | 27,936.5 | 114,336.5 | 29,570.9 | 116,499.1 | 29,906.4 | 118,114.8 |
| 2 | 21,113.2 | 113,482.5 | 24,323.6 | 123,767.5 | 25,400.1 | 139,736.6 | 27,143.4 | 143,642.5 | 27,295.6 | 145,410.4 | |
| 3 | 20,786.3 | 134,268.8 | 23,710.5 | 147,478 | 24,652.7 | 164,389.3 | 25,575.5 | 169,218 | 27,270.4 | 172,680.8 | |
| 5Δ | 1 | 30,786.5 | 165,055.3 | 33,976.2 | 181,454.2 | 36,745 | 201,134.3 | 37,849.2 | 207,067.2 | 38,685.8 | 211,366.6 |
| 2 | 29,011.6 | 194,066.9 | 33,178.8 | 214,633 | 36,516.6 | 237,650.9 | 37,338.2 | 244,405.4 | 37,798.4 | 249,165 | |
| 3 | 28,653.2 | 222,720.1 | 33,074.3 | 247,707.3 | 35,751 | 273,401.9 | 36,303 | 280,708.4 | 36,649.8 | 285,814.8 | |
| 6Δ | 1 | 39,862.9 | 262,583 | 44,226.3 | 291,933.6 | 47,475.5 | 320,877.4 | 48,948.2 | 329,656.6 | 48,656.9 | 334,471.7 |
| 2 | 38,865.2 | 301,448.2 | 42,983.9 | 334,917.5 | 45,928.6 | 366,806 | 47,494.3 | 377,150.9 | 47,598.2 | 382,069.9 | |
| 3 | 38,012.3 | 339,460.5 | 42,656.2 | 377,573.7 | 45,399.4 | 412,205.4 | 46,998.2 | 424,149.1 | 47,196.5 | 429,266.4 | |
| Classification of Specimens | Application Areas of ECC | Stirrup Ratio of Coupling Beams | Type of Longitudinal Reinforcement | Type of ECC | Type of Concrete |
|---|---|---|---|---|---|
| Structure 3-1 | Coupling beams and the lower 400 mm of shear walls | 1.13% | HRB400 | E40 | C40 |
| Structure 3-2 | E60 | ||||
| Structure 3-3 | E80 |
| Displacement Loading Level | Number of Cycles | Structure 2-1 | Structure 2-2 | Structure 2-3 | |||
|---|---|---|---|---|---|---|---|
| Single-Cycle | Cumulative | Single-Cycle | Cumulative | Single-Cycle | Cumulative | ||
| 1Δ | 1 | 1797.9 | 1797.9 | 1827.7 | 1827.7 | 1844.8 | 1844.8 |
| 2 | 851.8 | 2649.7 | 897.2 | 2724.9 | 921.5 | 2766.3 | |
| 3 | 496.2 | 3145.9 | 539.8 | 3264.7 | 566.3 | 3332.6 | |
| 2Δ | 1 | 8679.7 | 11,825.6 | 7850.5 | 11,115.2 | 8251.1 | 11,583.7 |
| 2 | 7490.8 | 19,316.4 | 4902.7 | 16,017.9 | 5061.7 | 16,645.4 | |
| 3 | 7128.8 | 26,445.2 | 4347.2 | 20,365.1 | 4465.5 | 21,110.9 | |
| 3Δ | 1 | 22,147.1 | 48,592.3 | 20,359.9 | 40,725 | 20,648.2 | 41,759.1 |
| 2 | 21,093.2 | 69,685.5 | 19,888 | 60,613 | 19,996.1 | 61,755.2 | |
| 3 | 17,704.6 | 87,390.1 | 16,238.3 | 76,851.3 | 16,635 | 78,390.2 | |
| 4Δ | 1 | 28,071 | 115,461.1 | 26,369 | 103,220.3 | 26,744.5 | 105,134.7 |
| 2 | 25,534.6 | 140,995.7 | 23,050.5 | 126,270.8 | 23,979.7 | 129,114.4 | |
| 3 | 24,787.2 | 165,782.9 | 22,108.2 | 148,379 | 22,482.1 | 151,596.5 | |
| 5Δ | 1 | 36,879.5 | 202,662.4 | 35,549.4 | 183,928.4 | 35,664.1 | 187,260.6 |
| 2 | 36,651.1 | 239,313.5 | 32,085.4 | 216,013.8 | 32,158.9 | 219,419.5 | |
| 3 | 35,885.5 | 275,199 | 30,333.9 | 246,347.7 | 30,159.7 | 249,579.2 | |
| 6Δ | 1 | 47,613.3 | 322,812.3 | 45,413.8 | 291,761.5 | 46,495.3 | 296,074.5 |
| 2 | 46,066.4 | 368,878.7 | 43,862.2 | 335,623.7 | 44,070.5 | 340,145 | |
| 3 | 45,537.2 | 414,415.9 | 42,948.7 | 378,572.4 | 42,525.1 | 382,670.1 | |
| Classification of Specimens | Application Areas of ECC | Stirrup Ratio of Coupling Beams | Type of Longitudinal Reinforcement | Type of ECC | Type of Concrete |
|---|---|---|---|---|---|
| Structure 4-1 | Coupling beams and the lower 400 mm of shear walls | 0.50% | HRB400 | E40 | C40 |
| Structure 4-2 | 1.13% | ||||
| Structure 4-3 | 2.01% |
| Displacement Loading Level | Number of Cycles | Structure 4-1 | Structure 4-2 | Structure 4-3 | |||
|---|---|---|---|---|---|---|---|
| Single-Cycle | Cumulative | Single-Cycle | Cumulative | Single-Cycle | Cumulative | ||
| 1Δ | 1 | 1791.2 | 1791.2 | 1797.9 | 1797.9 | 1822.1 | 1822.1 |
| 2 | 846.3 | 2637.5 | 851.8 | 2649.7 | 861.6 | 2683.7 | |
| 3 | 494.2 | 3131.7 | 496.2 | 3145.9 | 502.4 | 3186.1 | |
| 2Δ | 1 | 8592.9 | 11,724.6 | 8679.7 | 11,825.6 | 8809.9 | 11,996 |
| 2 | 7415.9 | 19,140.5 | 7490.8 | 19,316.4 | 7603.2 | 19,599.2 | |
| 3 | 7057.5 | 26,198 | 7128.8 | 26,445.2 | 7235.7 | 26,834.9 | |
| 3Δ | 1 | 21,925.6 | 48,123.6 | 22,147.1 | 48,592.3 | 22,479.3 | 49,314.2 |
| 2 | 20,882.3 | 69,005.9 | 21,093.2 | 69,685.5 | 21,409.6 | 70,723.8 | |
| 3 | 17,527.6 | 86,533.5 | 17,704.6 | 87,390.1 | 17,970.2 | 88,694 | |
| 4Δ | 1 | 27,790.3 | 114,323.8 | 28,071 | 115,461.1 | 28,492.1 | 117,186.1 |
| 2 | 25,279.3 | 139,603.1 | 25,534.6 | 140,995.7 | 25,917.6 | 143,103.7 | |
| 3 | 24,539.3 | 164,142.4 | 24,787.2 | 165,782.9 | 25,159.0 | 168,262.7 | |
| 5Δ | 1 | 36,510.7 | 200,653.1 | 36,879.5 | 202,662.4 | 37,432.7 | 205,695.4 |
| 2 | 36,284.6 | 236,937.7 | 36651.1 | 239,313.5 | 37,200.9 | 242,896.3 | |
| 3 | 35,526.6 | 272,464.3 | 35,885.5 | 275,199 | 36,423.8 | 279,320.1 | |
| 6Δ | 1 | 47,137.2 | 319,601.5 | 47,613.3 | 322,812.3 | 48,327.5 | 327,647.6 |
| 2 | 45,605.7 | 365,207.2 | 46,066.4 | 368,878.7 | 46,757.4 | 374,405 | |
| 3 | 45,081.8 | 410,289 | 45,537.2 | 414,415.9 | 46,220.3 | 420,625.3 | |
| Classification of Specimens | Application Areas of ECC | Stirrup Ratio of Coupling Beams | Type of Longitudinal Reinforcement | Type of Concrete | Type of ECC |
|---|---|---|---|---|---|
| Structure 5-1 | Coupling beams and the lower 400 mm of shear walls | 1.13% | HRB335 | C40 | E40 |
| Structure 5-2 | HRB400 | ||||
| Structure 5-3 | HRB500 |
| Displacement Loading Level | Number of Cycles | Structure 5-1 | Structure 5-2 | Structure 5-3 | |||
|---|---|---|---|---|---|---|---|
| Single-Cycle | Cumulative | Single-Cycle | Cumulative | Single-Cycle | Cumulative | ||
| 1Δ | 1 | 1551.2 | 1551.2 | 1797.9 | 1797.9 | 2079.2 | 2079.2 |
| 2 | 738.9 | 2290.1 | 851.8 | 2649.7 | 980.2 | 3059.4 | |
| 3 | 435.2 | 2725.3 | 496.2 | 3145.9 | 569.3 | 3628.7 | |
| 2Δ | 1 | 7502.7 | 10,228 | 8679.7 | 11,825.6 | 10,056.5 | 13,685.2 |
| 2 | 6475.0 | 16,703 | 7490.8 | 19,316.4 | 8682.3 | 22,367.5 | |
| 3 | 6162.1 | 22,865.1 | 7128.8 | 26,445.2 | 8269.4 | 30,636.9 | |
| 3Δ | 1 | 19,152.0 | 42,017.1 | 22,147.1 | 48,592.3 | 25,690.6 | 56,327.5 |
| 2 | 18,233.0 | 60,250.1 | 21,093.2 | 69,685.5 | 24,468.1 | 80,795.6 | |
| 3 | 15,311.9 | 75,562 | 17,704.6 | 87,390.1 | 20,531.3 | 101,326.9 | |
| 4Δ | 1 | 24,264.6 | 99,826.6 | 28,071 | 115,461.1 | 32,562.4 | 133,889.3 |
| 2 | 22,072.1 | 121,898.7 | 25,534.6 | 140,995.7 | 29,612.1 | 163,501.4 | |
| 3 | 21,431.1 | 143,329.8 | 24,787.2 | 165,782.9 | 28,753.2 | 192,254.6 | |
| 5Δ | 1 | 31,878.6 | 175,208.4 | 36,879.5 | 202,662.4 | 42,780.2 | 235,034.8 |
| 2 | 31,681.2 | 206,889.6 | 36,651.1 | 239,313.5 | 42,510.3 | 277,545.1 | |
| 3 | 31,019.4 | 237,909 | 35,885.5 | 275,199 | 41,627.2 | 319,172.3 | |
| 6Δ | 1 | 41,156.9 | 279,065.9 | 47,613.3 | 322,812.3 | 55,227.4 | 374,399.7 |
| 2 | 39,819.8 | 318,885.7 | 46,066.4 | 368,878.7 | 53,429.0 | 427,828.7 | |
| 3 | 39,376.4 | 358,262.1 | 45,537.2 | 414,415.9 | 52,819.2 | 480,647.9 | |
| Use Regions of ECC in Composite Coupling Beams | Use regions of ECC in Shear Walls | Stirrup Ratio of Coupling Beams | Strength of Longitudinal Reinforcement | Strength of ECC |
|---|---|---|---|---|
| Coupling beams | 14% structural height (400 mm) | 0.5% | HRB400 | E40 |
Disclaimer/Publisher’s Note: The statements, opinions and data contained in all publications are solely those of the individual author(s) and contributor(s) and not of MDPI and/or the editor(s). MDPI and/or the editor(s) disclaim responsibility for any injury to people or property resulting from any ideas, methods, instructions or products referred to in the content. |
© 2024 by the authors. Licensee MDPI, Basel, Switzerland. This article is an open access article distributed under the terms and conditions of the Creative Commons Attribution (CC BY) license (https://creativecommons.org/licenses/by/4.0/).
Share and Cite
Yang, J.; Sun, M.; Yao, G.; Guo, H.; Zhong, R. Research on Optimization Design of Prefabricated ECC/RC Composite Coupled Shear Walls Based on Seismic Energy Dissipation. Buildings 2024, 14, 951. https://doi.org/10.3390/buildings14040951
Yang J, Sun M, Yao G, Guo H, Zhong R. Research on Optimization Design of Prefabricated ECC/RC Composite Coupled Shear Walls Based on Seismic Energy Dissipation. Buildings. 2024; 14(4):951. https://doi.org/10.3390/buildings14040951
Chicago/Turabian StyleYang, Jian, Ming Sun, Guohuang Yao, Haizhu Guo, and Rumian Zhong. 2024. "Research on Optimization Design of Prefabricated ECC/RC Composite Coupled Shear Walls Based on Seismic Energy Dissipation" Buildings 14, no. 4: 951. https://doi.org/10.3390/buildings14040951
APA StyleYang, J., Sun, M., Yao, G., Guo, H., & Zhong, R. (2024). Research on Optimization Design of Prefabricated ECC/RC Composite Coupled Shear Walls Based on Seismic Energy Dissipation. Buildings, 14(4), 951. https://doi.org/10.3390/buildings14040951

