Informal Learning Spaces in Higher Education: Student Preferences and Activities
Abstract
1. Introduction
- (1)
- conduct a mixed methods study to investigate student activities and preferences in informal learning spaces;
- (2)
- provide an empirical evidence base to understand student activities and their selection and use of informal learning spaces in the higher education setting; and
- (3)
- tease out the significant spatial design characteristics that influence how and why students use informal learning environments.
2. Materials and Methods
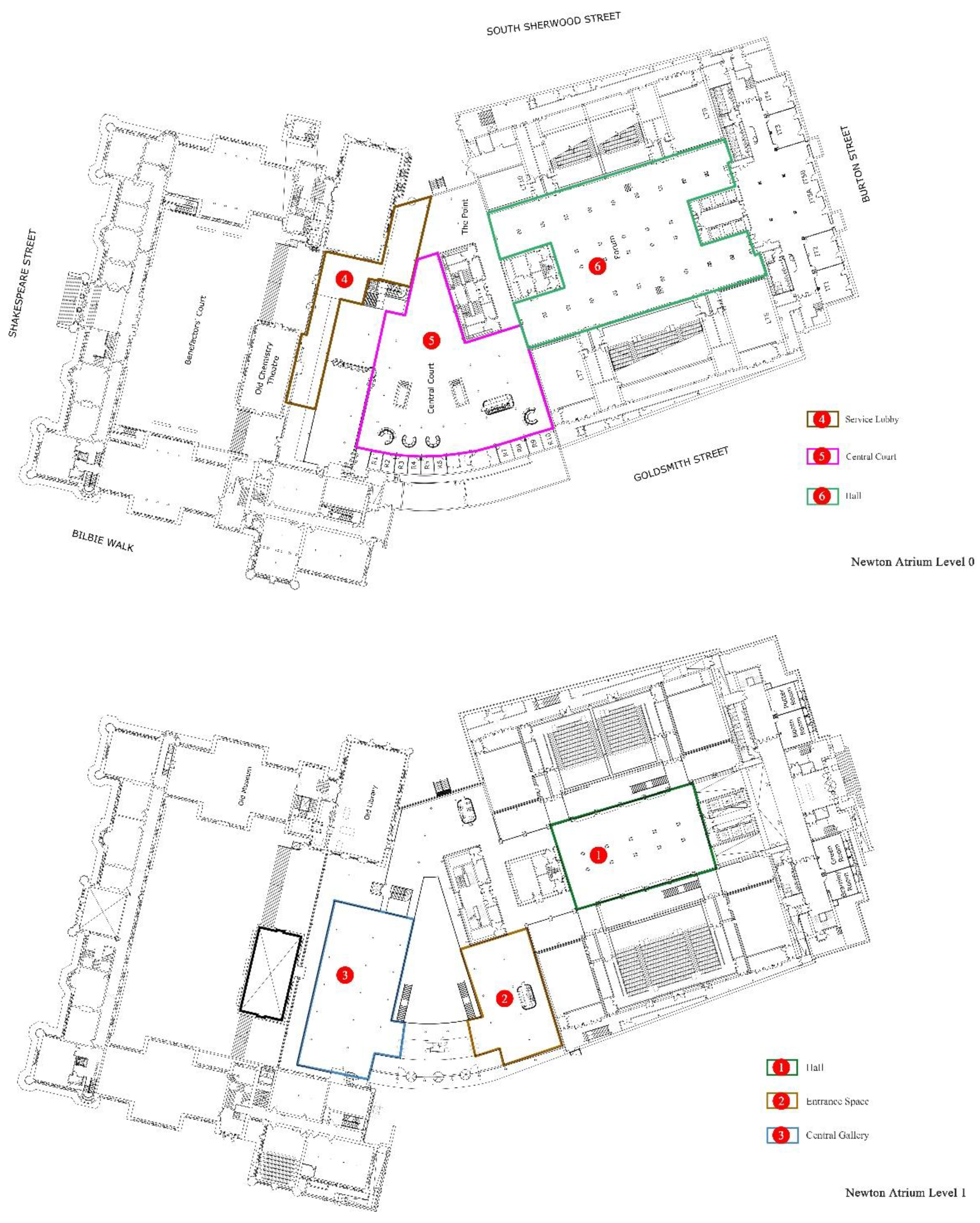
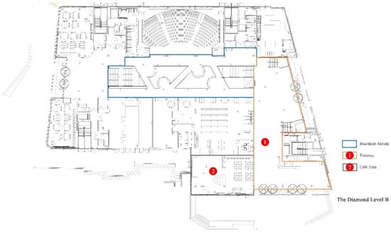
2.1. The Context of the Case Studies
2.2. Observations
2.3. Questionnaires
2.4. Interviews
2.5. Focus Groups
3. Results
3.1. Time Period of Regular Use in the Informal Learning Spaces
3.2. Reasons for Student Selecting and Using the Informal Learning Spaces
4. Discussion: Student Preferences in the Informal Learning Space
4.1. Comfort
”Well, besides loud noises made on purpose, sounds from the surroundings have little effect on me. It really doesn’t matter if the discussion occurred in the booked private room or simply in the open study place. In fact, I prefer working with some background sounds.”
4.2. Flexibility
‘… It is quite a flexible area. For example, furniture settings can be changed according to different activities. … The functional partition can also be changed by the arrangement of the movable walls. From a functional perspective, this area is very practical.’
‘I think the Diamond is like a “Learning Place” compared with a “library”. Now, I like this atmosphere after I got used to studying in this environment. In this place, I can find both silent areas and space for group discussion if needed.’
4.3. Functionality
4.4. Spatial Hierarchy
4.5. Openness
‘In a silent study, I find it’s harder to concentrate. Whether there’s people talking or a bit of background noise, it helps me focus in on my work more.’
‘…I think the atrium space is the most important space for students. No matter if you have experiences in studying here or never come here before, it is the first place where people are paying attention to. … It is also a place of students’ showroom.. I think it is the first impression of the space (Central Court at the Newton). ...’
‘…we are in group discussions and, whatever you want to say and to do, you can do it in here… It is very convenient.’
4.6. Other Support Facilities
5. Conclusions
Author Contributions
Funding
Institutional Review Board Statement
Informed Consent Statement
Data Availability Statement
Conflicts of Interest
Appendix A. Questionnaire Form
- (1)
- Questions about activities.
- How often have you done these activities in this social space per week?You can tick (✓) at the space given.
Subject Scale Never Slightly Frequently Frequently More Frequently Most Frequently Focused Informal Learning (paper-based or book-based self-study) - Prepared coursework
1 2 3 4 5 - 2.
- Discussed ideas from reading books or lectures
1 2 3 4 5 - 3.
- Worked with others on coursework
1 2 3 4 5 - 4.
- Study alone
1 2 3 4 5 Intermittent Exchange (information interchange) - 5.
- Talked about career plans
1 2 3 4 5 - 6.
- Study alone, but with occasional interaction with others
1 2 3 4 5 - 7.
- Worked with others on activities other than coursework
1 2 3 4 5 - 8.
- Received prompt feedback from the faculty on your academic performance
1 2 3 4 5 - 9.
- Tutored or taught other students
1 2 3 4 5 - 10.
- Had serious conversations with students of a different program or department than your own
1 2 3 4 5 Focused Socialising - 11.
- Took a call
1 2 3 4 5 - 12.
- Used of tablet, laptop, or phone
1 2 3 4 5 - 13.
- Casual Chatting
1 2 3 4 5 - 14.
- Took a break from studies with friends
1 2 3 4 5 Dietary Related Activities - 15.
- Had a meal
1 2 3 4 5 - 16.
- Had a snack
1 2 3 4 5 Serendipitous Encounter (Seeing, greeting, or short chats with each other because of encounter) - 17.
- Met a friend of someone you know, but neither of you planned to
1 2 3 4 5 Ambient Sociality - 18.
- Attended events such as Exhibitions, Open Days, or Coursework Shows
1 2 3 4 5 - 19.
- Found the space as a way to a lecture room or gathering for going to another place together
1 2 3 4 5 - 20.
- Used as a meeting point before or after lectures
1 2 3 4 5 - 21.
- People watching
1 2 3 4 5 - 22.
- Had a rest
1 2 3 4 5 - During what time do you regularly use this social space?Please tick (✓) the time period when you use social spaces. You can tick (✓) more than one.
Time Please tick (✓) if yes 8 am to 10 pm 10 am to 12 pm 12 pm to 2 pm 2 pm to 5 pm 5 pm to 7 pm 7 pm to 10 pm 10 pm to 0 am 0 am to 8 am
- (2)
- Questions about the spatial experiences and perception of social informal learning spaces in higher education.
- I select and use this social space because the space…Please tick (✓) the reason(s) of you select and use this social space. You can tick (✓) more than one.
I select and use this social space because the space… Please tick 1. Provides comfortable light environments 2. Provides comfortable noise environments 3. Provides comfortable temperature 4. Provides comfortable ventilation 5. Provides comfortable colour/material of furniture 6. Is flexible, adaptable, and diverse 7. Provides informal ambience 8. Support individual and group work 9. Provides good view of seeing what other people are doing 10. Provides good outside views 11. Makes people feel easy for way finding 12. Is easily accessible 13. feels generous, open, and spacious. 14. Provides other support (such as Wi-Fi, enough plugs and sockets, IT-rich environment) 15. Other, please specify: ______ - Based on my experience, I think…Please rate how agree the following subjects described and tick how the height of the space (its vertical dimension) enhances this perception.
Subject Scale Strongly Disagree Disagree Neutral Agree Strongly Agree Physical Comfort (Light) The space provides good natural light. 1 2 3 4 5 The space provides sufficient lighting after dark. 1 2 3 4 5 The space provides a good comprehensive light environment. 1 2 3 4 5 Physical Comfort (Acoustic) The noise level of the space is good for socialising. 1 2 3 4 5 The noise level of the space is good for informal learning activities. 1 2 3 4 5 Physical Comfort (Temp/Ventilation) The temperature of the space is adequate for socialising. 1 2 3 4 5 The temperature of the space is adequate for informal learning activities. 1 2 3 4 5 Windows and air condition can be controlled by myself. 1 2 3 4 5 Physical Comfort (Colour/Material of Furniture) The colours of furniture support a comfortable learning environment. 1 2 3 4 5 The materials of furniture support a comfortable learning environment. 1 2 3 4 5 The furniture is light weight and movable for reconfiguring according to its use by individuals or groups. 1 2 3 4 5 Flexibility (Adaptability) The space can be easily reconfigured in a short period of time for group and individual work. 1 2 3 4 5 The space is usable 24/7 and maximises use over time. 1 2 3 4 5 Flexibility (Diversity) The space supports a diversity of learning styles. 1 2 3 4 5 The space offers a combination of spaces that supports socialising and informal learning activities. 1 2 3 4 5 The availability of food and drink is important for using this space. 1 2 3 4 5 Ambience The space feels welcoming. 1 2 3 4 5 The space provides a good sense of learning community. 1 2 3 4 5 The space is attractive. 1 2 3 4 5 The space is stimulating. 1 2 3 4 5 The space is contemplative. 1 2 3 4 5 Functionality The space supports group work and collaboration. 1 2 3 4 5 The space supports individual study and learning. 1 2 3 4 5 The space provides opportunities for socialising. 1 2 3 4 5 The space provides opportunities to meet peers, friends, and acquaintances. 1 2 3 4 5 The space supports casual learning activities. 1 2 3 4 5 The space appeals to students from different courses and encourages interdisciplinary learning. 1 2 3 4 5 Situation The space supports discussions about course content following lectures or seminars. 1 2 3 4 5 The space provides good outside views. 1 2 3 4 5 Adjacency The space makes people feel easy for way finding. 1 2 3 4 5 The staircase is accessible and destination reachable. 1 2 3 4 5 The broader, open staircase allows for travel between floors at a more leisure pace. 1 2 3 4 5 Hierarchy The circulation is helpful to increase opportunities for socialising (students can easily and accessibly meet up in this area because of sufficient and efficient staircases and lifts.) 1 2 3 4 5 The circulation is helpful to increase opportunities for informal learning (students can easily have discussions after courses or lectures in this area because of the convenient staircases and lifts.) 1 2 3 4 5 The location of the space is easily accessible. 1 2 3 4 5 Openness The space feels generous, open, and spacious. 1 2 3 4 5 The space provides good visibility of the activities of other people. 1 2 3 4 5 The space is bright. 1 2 3 4 5 Other Support The space provides good Wi-Fi coverage. 1 2 3 4 5 There are enough plugs and sockets available. 1 2 3 4 5 The toilet is easily accessible. 1 2 3 4 5 The space provides an IT-rich environment. 1 2 3 4 5 The space provides food and beverage. 1 2 3 4 5 The space provides a sense of safety (provides evacuation marks/stair railing/guardrail/entrance guard/staff support/card only system). 1 2 3 4 5
- (3)
- If you have any additional comments that you would like to make about any aspect of the building and your working environment, please note them here.
- (4)
- Questions about personal background information.
- Are you an international student? Please circle: Yes/No
- Gender, please circle: Male/Female/wish not to say
- Which department do you study or work in? Please write down: _______
- Mode of Study, please circle: Full-time/Part-time
- Level of Study, please circle: PhD/Undergraduate/Masters
- Type of Programme, please circle: Lecture-based/Studio-based/Lab-based
- Year (How many years have you studied here), please circle: less than 1/1-2/3-more
Appendix B. Interview Form
- (1)
- Introduction
- Welcome and introduction of interviewer
- ObjectiveInformal learning refers to student learning outside of designated class time. The objective of the informal interviews is to gather information for a research project investigating students’ perceptions on how social informal learning spaces impact on student experience.
- ProcessI will be taking audio record during the interview so I can revisit and reflect on the information provided. We respect your right to privacy. Our Ethical Clearance ensures that any information that is obtained in connection with this study and that could be identified as relating to you will remain confidential. If you decide to participate in the interview, you are free to discontinue participation at any time without prejudice.
- (2)
- Questions
- Could you please introduce yourself?
- (a)
- What’s your occupation?
- (b)
- Which department are you in? What’s your subject? Which year are studying?
- (c)
- Where is your nearest classroom or workplace?
- 2.
- What brings you here?
- 3.
- Which types of activities do you normally do there?
- 4.
- Which types of activities do your friends normally do there?
- 5.
- How often do you use this space as a whole? Why?
- 6.
- Who do you (all) think this space was designed for?
- 7.
- How do you (all) think this space should be used?
- 8.
- How do you (all) use it?
- 9.
- How do you think using the social informal learning space impacts on students’ academic performance?
- 10.
- What are the three most important things about this space that you would not want to change?
- 11.
- What are the three most important things that you would like to change or add on these spaces?
- 12.
- What is your favourite social informal learning spaces story/memory?
Appendix C. Focus Group Form
- Consent forms (xN per set of groups)
- Recorder (smart phone & iPad)
- Focus Group Registration Form
| Time | |
| 5 min | Welcome and Introduction Provide respondents with: • Consent forms • Pens • Ask respondents to complete permission forms and collect in. • Welcome participants and explain general purpose of the discussion: “Thanks very much for coming. This group is being run to understand your thoughts about the design quality of your learning experience at university/college and your ideas about it for the future. This is one of a series of groups being run with students as part of wider research project. The information will be used to help us improve the quality of students learning experiences and to better support a social informal learning spaces in the future.” • Explain confidentiality of opinions shared. • Explain that it is not a test and that we want an honest an open discussion. Explain that the group will: - Start off with a general discussion of university life - Move on to explore your expectations of different aspects of your learning experience in the social informal learning spaces - How things were whilst you were there - How you think things can be improved for students • The group will last about 1 h • Explain the presence and purpose of recording equipment (to help facilitator write up notes later rather than during the focus group) and ask for permission. • Explain that discussion notes will be analysed, and no personal data will be shared. • Set out ground rules (speaking up, one at a time, respect for others’ opinions, etc.) • Go through any health and safety procedures for the building, timed fire alarms, etc. • Explain that I am a PhD student in the University of Nottingham and that all work is conducted ethically and in accordance with the UoN code of conduct • Explain that as participants in the research, the respondents are entitled to a copy of the final report if requested • Start recording |
| 5 min | Icebreaker • Moderator to introduce themselves • Ask each person to please briefly: - Introduce themselves - Where they come from - which Subject, School & Department they study - which year they are in - If needed to break ice: What’s your summer plan? Where is your hometown? What’s your favourite food? |
| 20mins | Students’ experiences (preferences and activities) Question: a) What do you think of the space? b) How do social informal learning spaces support social & learning activities? Probes: peer learning/collaboration/support/Different degrees of informal learning process |
| 15 min | Design Quality Ask respondents to identify key design quality of a successful social informal learning spaces based on their own experiences of learning and socialising activities by themselves and discuss what they wrote. Question: Thinking about the experiences of learning or socialising activities here, describe the characteristics of a successful social informal learning spaces. Prompts—this could include the likes of: The Physical Comfort: Light/Acoustics/Temperature/Ventilation/Furniture (Colour/Material) The Flexibility: Mobility/Adaptability/Diversity/Flexibility The Ambience: Socialising/Sense of Community/Informative /Attractiveness /Openness /Enclosure /Safety The Functionality: Support group work and collaboration/Supports individual learning The Situation: Location (continue classroom discussions immediately following class time)/Outside Views The Spatial Hierarchy: Circulation/ Legibility/Intelligibility/Privacy/Spacious The Other Support: IT-rich environment/Wi-Fi Coverage/Plugs and Sockets/Food and Beverage |
| 15 min | Space In-Between Questions: What influence the design of the atrium gives you in the social informal learning spaces? |
| Thank and Close • Thank them for all their help in this group. |
References
- Feilden Clegg Bradley Studios. Education Architecture Urbanism: Three University Projects; Artifice Books on Architecture; Artifice Books on Architecture: London, UK, 2012; ISBN 9781908967046. [Google Scholar]
- Wu, X.; Oldfield, P. How “Civic” the Trend Developed in the Histories of the Universities. Open J. Soc. Sci. 2015, 3, 11–14. [Google Scholar] [CrossRef][Green Version]
- Hurst, B.; Wallace, R.; Nixon, S.B. The Impact of Social Interaction on Student Learning. Read. Horiz. 2013, 52, 375–398. [Google Scholar]
- Harrison, A.; Hutton, L. Design for the Changing Educational Landscape: Space, Place and the Future of Learning; Routledge: London, UK, 2013; ISBN 9780203762653. [Google Scholar]
- Neary, M.; Harrison, A.; Crellin, G.; Parekh, N.; Saunders, G.; Duggan, F.; Williams, S.; Austin, S. Learning Landscapes in Higher Education: A Critical Reflection; University of Lincoln: Lincoln, UK, 2010. [Google Scholar]
- Dugdale, S.; Long, P. Planning the Informal Learning Landscape. 2007, pp. 1–53. Available online: https://events.educause.edu/eli/webinars/2007/eli-web-seminar-march-12 (accessed on 21 March 2015).
- Riddle, M.D.; Souter, K. Designing Informal Learning Spaces Using Student Perspectives. J. Learn. Spaces 2012, 1, 21586195. [Google Scholar]
- Keppell, M.; Souter, K.; Riddle, M. Physical and Virtual Learning Spaces in Higher Education: Concepts for the Modern Learning Environment; Elsevier: Amsterdam, The Netherlands, 2011; ISBN 9781609601140. [Google Scholar]
- McDaniel, S. Every Space Is a Learning Space. BWBR-Informal Learning Spaces. 2014, p. 6. Available online: https://www.bwbr.com/wp-content/uploads/2020/10/Every-Space-Is-A-Learning-Space_WP.pdf (accessed on 7 July 2014).
- JISC Infonet. Designing Spaces for Effective Learning: A Guide to 21st Century Learning Space Design; JISC: Bristol, UK, 2006. [Google Scholar]
- Boddington, A.; Boys, J. Re-Shaping Learning: A Critical Reader: A Critical Reader: The Future of Learning Spaces in a Post-Compulsory Education; Sense Publishers: Rotterdam, The Netherlands, 2012. [Google Scholar]
- Brown, M.B.; Lippincott, J.K. Learning Spaces More than Meets the Eye. Educ. Q. 2003, 289, 14–16. [Google Scholar]
- O’Neill, M. Limitless Learning: Creating Adaptable Environments to Support a Changing Campus. Plan. High. Educ. J. 2013, 4, 11–27. [Google Scholar]
- Oblinger, D.; Lippincott, J. Learning Spaces; Educause: Boulder, CO, USA, 2006. [Google Scholar]
- Tanner, C.K. The Influence of School Architecture on Academic Achievement. J. Educ. Adm. 2000, 38, 309–330. [Google Scholar] [CrossRef]
- Earthman, G.I. School Facility Conditions and Student Academic Achievement. UCLA’s Inst. Democr. Educ. Access Univ. 2002, 2002, 1–18. [Google Scholar]
- CABE. Design with DIstinction: The Value of Good Building Design in Higher Education; Commission for Architecture and the Built Environment: London, UK, 2005; ISBN 1846330017. [Google Scholar]
- Holley, D.; Dobson, C. Encouraging Student Engagement in a Blended Learning Environment: The Use of Contemporary Learning Spaces. Learn. Media Technol. 2008, 33, 139–150. [Google Scholar] [CrossRef]
- Crook, C.; Mitchell, G. Ambience in Social Learning: Student Engagement with New Designs for Learning Spaces. Camb. J. Educ. 2012, 42, 121–139. [Google Scholar] [CrossRef]
- Matthews, K.E.; Andrews, V.; Adams, P. Social Learning Spaces and Student Engagement. High. Educ. Res. Dev. 2011, 30, 105–120. [Google Scholar] [CrossRef]
- Harrop, D.; Turpin, B. A Study Exploring Learners’ Informal Learning Space Behaviours, Attitudes, and Preferences. New Rev. Acad. Librariansh. 2013, 19, 58–77. [Google Scholar] [CrossRef]
- Siddall, S.E. The Denison Learning Space Project, Mission and Guiding Principles. Available online: https://scholar.google.com/scholar?hl=zh-CN&as_sdt=0%2C5&q=The+Denison+Learning+Space+Project%2C+Mission+and+Guiding+Principles.&btnG= (accessed on 23 March 2021).
- Dober, R.P. Campus Landscape: Functions, Forms, Features; John Wiley & Sons: New York, NY, USA, 2000; ISBN 9780471353560. [Google Scholar]
- HEFCE. Impact of Space on Future Changes in Higher Education. 2006, p. 22. Available online: http://www.smg.ac.uk/documents/FutureChangesInHE.pdf (accessed on 19 April 2014).
- McDonald, D. Doing More with Less: Five Trends in Higher Education Design: Just a Few Years Ago We Would Strive to Utilize a Space during 60 Percent of Its Usable Hours; Now We Are Asked to Strive for 70 to 80 Percent Utilization. Plan. High. Educ. 2013, 42, 1–6. [Google Scholar]
- Jamieson, P. “The Serious Matter of Informal Learning”, Planning for Higher Education. Plan. High. Educ. 2009, 37, 18–25. [Google Scholar]
- Van Note Chism, N. Challenging Traditional Assumptions and Rethinking Learning Spaces. In Learning Spaces; Educause: Boulder, CO, USA, 2006; Volume 2, pp. 1–12. ISBN 0967285372. [Google Scholar]
- Nair, P.; Gehling, A. Life Between Classroom Applying Public Space Theory to Learning Environments. Reshaping Our Learning Landscape. A Collection of Provocation Papers. 2010. Available online: https://educationdesign.com/wp-content/uploads/2019/11/LearningLandscapeNairGehling.pdf (accessed on 16 February 2015).
- Hillier, B.; Hanson, J. The Social Logic of Space; Cambridge University Press: Cambridge, UK, 1989. [Google Scholar]
- Wu, X.; Law, S.; Heath, T.; Borsi, K. Spatial Configuration Shapes Student Social and Informal Learning Activities in Educational Complexes. In Proceedings of the 11th International Space Syntax Symposium, Lisboa, Portugal, 3–7 July 2017. [Google Scholar]
- Coelho, C.; Mário, K. Towards a Methodology to Assess Adaptability in Educational Spaces: An Entropy Approach to Space Syntax. In Proceedings of the 10th International Space Syntax Symposium, London, UK, 13–17 July 2015; pp. 1–20. [Google Scholar]
- Sailer, K. The Spatial and Social Organisation of Teaching and Learning: The Case of Hogwarts School of Witchcraft and Wizardry. In Proceedings of the SSS 2015-10th International Space Syntax Symposium, London, UK, 13–17 July 2015. [Google Scholar]
- Vieira, A.P.; Krüger, M. Space Codes in Architectural Teaching and Learning. Available online: http://www.sss10.bartlett.ucl.ac.uk/wp-content/uploads/2015/07/SSS10_Proceedings_032.pdf (accessed on 9 September 2015).
- Radcliffe, D.; Wilson, H.; Powell, D.; Tibbetts, B. Designing Next Generation Places of Learning: Collaboration at the Pedagogy-Space-Technology Nexus; The University of Queensland: Brisbane, Australia, 2008; pp. 1–20. [Google Scholar]
- Bryant, J.; Matthews, G.; Walton, G. Academic Libraries and Social and Learning Space: A Case Study of Loughborough University Library, UK. J. Libr. Inf. Sci. 2009, 41, 7–18. [Google Scholar] [CrossRef]
- Guest, G.; Bunce, A.; Johnson, L. How Many Interviews Are Enough? Field Methods 2006, 18, 59–82. [Google Scholar] [CrossRef]
- Mehta, V. The Street: A Quintessential Social Public Space. Landsc. Res. 2013, 39. [Google Scholar] [CrossRef]
- Kolcaba, K.Y.; Kolcaba, R.J. An Analysis of the Concept of Comfort. J. Adv. Nurs. 1991, 16, 1301–1310. [Google Scholar] [CrossRef] [PubMed]
- Barbhuiya, S.; Environment, S.B.-B. Thermal Comfort and Energy Consumption in a UK Educational Building; Elsevier: Amsterdam, The Netherlands, 2013. [Google Scholar]
- CIBSE. Guide A: Environmental Design; CIBSE: London, UK, 2006; Available online: https://www.cibse.org/getattachment/Knowledge/CIBSE-Guide/CIBSE-Guide-A-Environmental-Design-NEW-2015/Guide-A-presentation.pdf.aspx (accessed on 17 September 2015).
- Gilavand, A.; Hosseinpour, M. Investigating the Impact of Educational Spaces Painted on Learning and Educational Achievement of Elementary Students in Ahvaz, Southwest of Iran. Int. J. Pediatrics 2016, 4, 1387–1396. [Google Scholar] [CrossRef]
- Connor, D.J. Integrating Human Behavior Factors into Design an Examination of Behaviors That Increase or Reduce Harm from Fires. Fire Prot. Eng. 2005, 28, 8–20. [Google Scholar]
- Weaver, M. Exploring conceptions of learning and teaching through the creation of flexible learning spaces: The learning gateway—A case study. New Rev. Acad. Librariansh. 2006, 12, 109–125. [Google Scholar] [CrossRef]
- Wang, J.; Zhu, Q.; Mao, Q. The Three-Dimensional Extension of Space Syntax. In Proceedings of the 6th International Space Syntax Symposium, Istanbul, Turkey, 12–15 June 2007. [Google Scholar]
- Suleiman, W.; Joliveau, T.; Favier, E. A New Algorithm for 3D Isovists. In Advances in Geographic Information Science; Springer: Berlin/Heidelberg, Germany, 2013; pp. 157–173. [Google Scholar]
- Wu, X.; Oldfield, P.; Heath, T. Spatial Openness and Student Activities in an Atrium: A Parametric Evaluation of a Social Informal Learning Environment. Build. Environ. 2020, 182, 107141. [Google Scholar] [CrossRef]
- Barnett, R. Conditions of Flexibility Securing a More Responsive Higher Education System. 2014. Available online: https://s3.eu-west-2.amazonaws.com/assets.creode.advancehe-document-manager/documents/hea/private/conditions_of_flexibility_securing_a_more_responsive_higher_education_system_1568036617.pdf (accessed on 5 May 2019).
- Lee, S. Rethinking Pedagogy for a Digital Age: Designing for Twenty-First Century Learning. Open Learn. J. Open Distance e-Learn. 2014, 29, 174–176. [Google Scholar] [CrossRef]
- Narum, J.L. A Guide: Planning for Assessing 21st Century Spaces for 21st Century Learners. Available online: https://www.pkallsc.org/wp-content/uploads/2018/04/LSCGuide_PlanningforAssessing.pdf (accessed on 30 October 2018).
- Attis, D.; Koproske, C. Thirty Trends Shaping the Future of Academic Libraries. Learn. Publ. 2013, 26, 18–23. [Google Scholar] [CrossRef]
- Hunley, S.; Schaller, M. Assessing Learning Spaces. Learn. Spaces 2006, 1–11. [Google Scholar] [CrossRef]










| Spatial Design Characteristics | Sources |
|---|---|
| Light; Acoustics; Temperature; Ventilation; Furniture (Colour/Material) | [3,6,10,16,17,22,23,24] |
| Mobility; Adaptability; Diversity; Flexibility | [2,6,8,9,10,13,19,22,25,26] |
| Socialising; Sense of Community; Informative; Attractiveness; Openness; Enclosure; Safety | [2,3,10,13,19,26,27] |
| Support group work and collaboration; Supports individual learning | [6,9,10,19] |
| Location (proximity to formal learning environment); Outside Views | [28] |
| Circulation; Legibility; Intelligibility; Privacy; Spacious | [9,17,27,29,30,31,32,33] |
| IT-rich environment; Wi-Fi Coverage; Plugs and Sockets; Food and Beverage | [6,12,21,22,26,34,35] |
| 6 March Monday | 7 March Tuesday | 8 March Wednesday | 9 March Thursday | 10 March Friday | 11 March Saturday | 12 March Sunday | |
| 8–10 am | Pilot Study | Pilot Study | Entrance Space | N/A | N/A | ||
| 12–2 pm | Pilot Study | Pilot Study | Café Area | N/A | N/A | ||
| 5–7 pm | Pilot Study | Pilot Study | Open Level C | N/A | N/A | ||
| 8–10 pm | Pilot Study | Pilot Study | Corridor Level D | N/A | N/A | ||
| 13 March Monday | 14 March Tuesday | 15 March Wednesday | 16 March Thursday | 17 March Friday | 18 March Saturday | 19 March Sunday | |
| 8–10 am | Corridor Level D | Open Level C | Café Area | Corridor Level E | Open Level F | N/A | N/A |
| 12–2 pm | Entrance Space | Corridor Level D | Open Level C | Open Level E | Corridor Level E | N/A | N/A |
| 5–7 pm | Café Area | Entrance Space | Corridor Level D | Corridor Level F | Open Level E | N/A | N/A |
| 8–10 pm | Open Level C | Café Area | Entrance Space | Open Level F | Corridor Level F | N/A | N/A |
| 20 March Monday | 21 March Tuesday | 22 March Wednesday | 23 March Thursday | 24 March Friday | 25 March Saturday | 26 March Sunday | |
| 8–10 am | Corridor Level F | Open Level E | Corridor Level D | Entrance Space | Café Area | N/A | N/A |
| 12–2 pm | Open Level F | Corridor Level F | Open Level C | Corridor Level D | Entrance Space | N/A | N/A |
| 5–7 pm | Corridor Level E | Open Level F | Café Area | Open Level C | Corridor Level D | N/A | N/A |
| 8–10 pm | Open Level E | Corridor Level E | Entrance Space | Café Area | Open Level C | N/A | N/A |
| 27 March Monday | 28 March Tuesday | 29 March Wednesday | 30 March Thursday | 31 March Friday | 1 April Saturday | 2 April Sunday | |
| 8–10 am | Open Level C | Open Level F | Corridor Level E | Open Level E | Corridor Level F | N/A | N/A |
| 12–2 pm | Café Area | Corridor Level F | Open Level F | Corridor Level E | Open Level E | N/A | N/A |
| 5–7 pm | Entrance Space | Open Level E | Corridor Level F | Open Level F | Corridor Level E | N/A | N/A |
| 8–10 pm | Corridor Level D | Corridor Level E | Open Level E | Corridor Level F | Open Level F | N/A | N/A |
| 17 April Monday | 18 April Tuesday | 19 April Wednesday | 20 April Thursday | 21 April Friday | 22 April Saturday | 23 April Sunday | |
| 8–10 am | Pilot Study | Service Lobby | Hall in Level 1 | N/A | N/A | ||
| 12–2 pm | Pilot Study | Hall in Level 0 | Entrance Space | N/A | N/A | ||
| 5–7 pm | Pilot Study | Central Court | Central Gallery | N/A | N/A | ||
| 8–10 pm | Pilot Study | N/A | N/A | N/A | N/A | ||
| 24 April Monday | 25 April Tuesday | 26 April Wednesday | 27 April Thursday | 28 April Friday | 29 April Saturday | 30 April Sunday | |
| 8–10 am | Hall in Level 0 | Hall in Level 1 | Mini Open Day | Central Court | Entrance Space | N/A | N/A |
| 12–2 pm | Hall in Level 1 | Central Court | Mini Open Day | Hall in Level 1 | Central Gallery | N/A | N/A |
| 5–7 pm | Service Lobby | Hall in Level 0 | Mini Open Day | Central Gallery | Hall in Level 1 | N/A | N/A |
| 8–10 pm | N/A | N/A | N/A | N/A | N/A | N/A | N/A |
| 1 May Monday | 02 May Tuesday | 3 May Wednesday | 4 May Thursday | 5 May Friday | 6 May Saturday | 7 May Sunday | |
| 8–10 am | Bank Holiday | Central Gallery | Service Lobby | Entrance Space | Hall in Level 0 | N/A | N/A |
| 12–2 pm | Bank Holiday | Service Lobby | Hall in Level 0 | Service Lobby | Central Court | N/A | N/A |
| 5–7 pm | Bank Holiday | Entrance Space | Hall in Level 1 | Hall in Level 0 | Service Lobby | N/A | N/A |
| 8–10 pm | N/A | N/A | N/A | N/A | N/A | N/A | N/A |
| 8 May Monday | 9 May Tuesday | 10 May Wednesday | 11 May Thursday | 12 May Friday | 13 May Saturday | 14 May Sunday | |
| 8–10 am | Central Gallery | Central Court | N/A | N/A | |||
| 12–2 pm | Entrance Space | Central Gallery | N/A | N/A | |||
| 5–7 pm | Central Court | Entrance Space | N/A | N/A | |||
| 8–10 pm | N/A | N/A | N/A | N/A |
| Category | Diamond | Newton |
|---|---|---|
| Total number of questionnaires | 157 | 104 |
| Valid questionnaires | 148 | 97 |
| Male/Female | 63/85 | 40/57 |
| International/Local | 71/77 | 19/78 |
| Undergraduates/Postgraduates | 102/46 | 86/11 |
| Lecture-based/Studio-based/Lab-based | 122/6/20 | 90/3/4 |
| Participants | Gender | Age | Subject |
| PD1 | Female | 24 | Architectural Design |
| PD2 | Male | 24 | Robotics |
| PD3 | Male | 28 | Architecture |
| PD4 | Female | 23 | Finance Economics |
| PD5 | Female | 23 | Financial Economics |
| PD6 | Female | 24 | Financial Economics |
| PD7 | Female | 24 | Landscape Architecture |
| PD8 | Male | 26 | Advanced Software Engineering |
| PD9 | Male | 28 | Architectural Design |
| Participants | Gender | Age | Subject |
| PN1 | Female | 26 | Interior Architecture |
| PN2 | Female | 19 | Business Management & Marketing |
| PN3 | Female | 23 | Interior Architecture |
| PN4 | Female | 24 | Interior Architecture |
| PN5 | Female | 21 | Business Account & Marketing |
Publisher’s Note: MDPI stays neutral with regard to jurisdictional claims in published maps and institutional affiliations. |
© 2021 by the authors. Licensee MDPI, Basel, Switzerland. This article is an open access article distributed under the terms and conditions of the Creative Commons Attribution (CC BY) license (https://creativecommons.org/licenses/by/4.0/).
Share and Cite
Wu, X.; Kou, Z.; Oldfield, P.; Heath, T.; Borsi, K. Informal Learning Spaces in Higher Education: Student Preferences and Activities. Buildings 2021, 11, 252. https://doi.org/10.3390/buildings11060252
Wu X, Kou Z, Oldfield P, Heath T, Borsi K. Informal Learning Spaces in Higher Education: Student Preferences and Activities. Buildings. 2021; 11(6):252. https://doi.org/10.3390/buildings11060252
Chicago/Turabian StyleWu, Xianfeng, Zhipeng Kou, Philip Oldfield, Tim Heath, and Katharina Borsi. 2021. "Informal Learning Spaces in Higher Education: Student Preferences and Activities" Buildings 11, no. 6: 252. https://doi.org/10.3390/buildings11060252
APA StyleWu, X., Kou, Z., Oldfield, P., Heath, T., & Borsi, K. (2021). Informal Learning Spaces in Higher Education: Student Preferences and Activities. Buildings, 11(6), 252. https://doi.org/10.3390/buildings11060252

