Multi-Effects of Tunneling and Basement Excavation on Existing Pile Group
Abstract
:1. Introduction
2. Constant Gravity Scale Model Test
2.1. Experimental Program
2.2. Testing Material
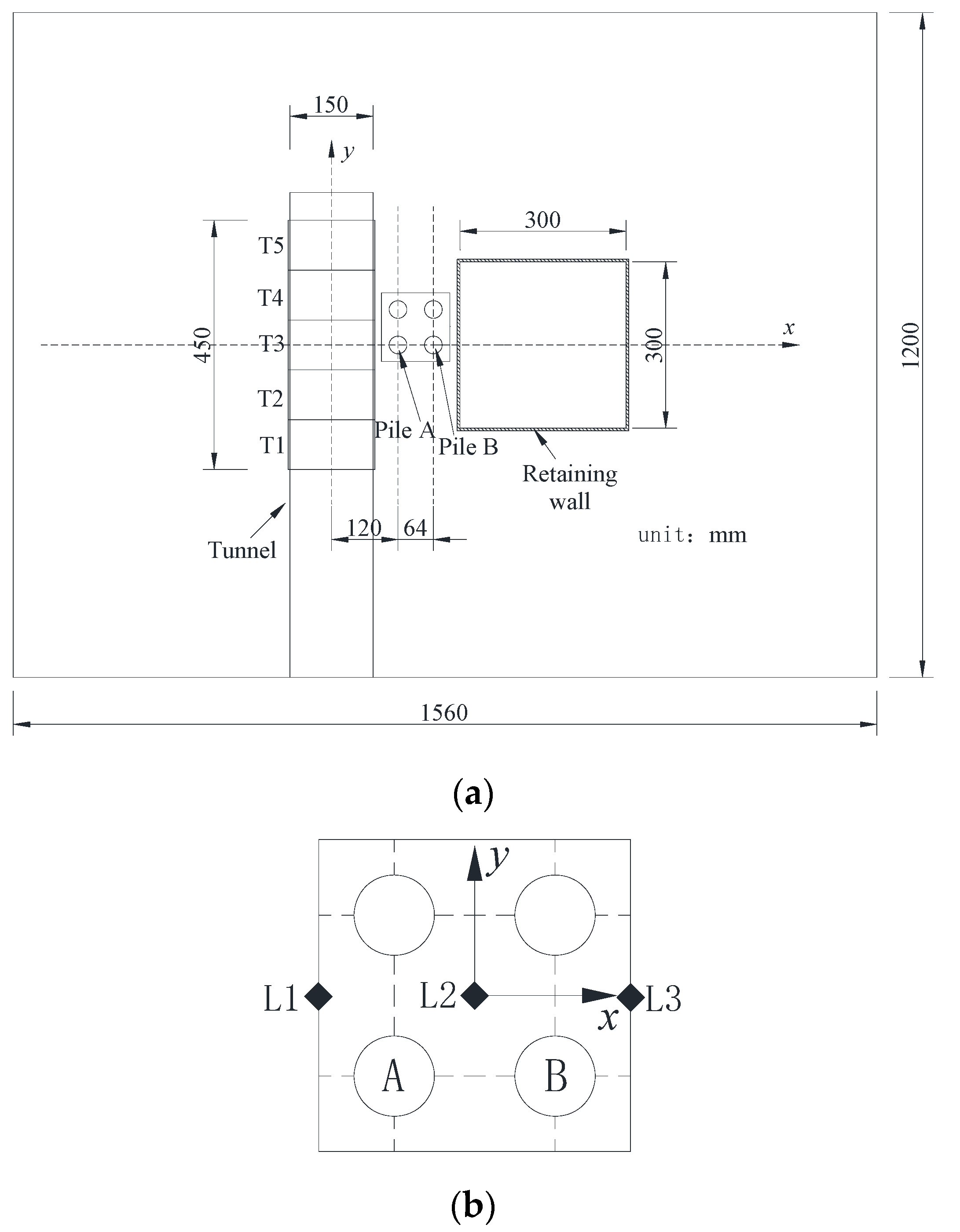
2.3. Test Model Size and Material
2.4. In-Flight Simulation of Tunnel Excavation
2.5. Measuring Instruments and Layout
2.6. Model Installation
2.7. Testing Procedure
3. Three-Dimensional Finite-Element Analysis
3.1. Constitutive Model
3.2. Model Parameters
3.3. Model Meshing and Contact Settings
3.4. Model Boundaries and Initial Conditions
3.5. Numerical Modelling Procedure
4. Interpretation of Measured and Computed Results
4.1. Determination of the Axial Load-Bearing Capacity of the Pile Group
4.2. Settlement of Pile Group
4.3. Transverse Tilting of Pile Cap
4.4. Axial Load Distribution
4.5. Bending Moment Distributions
5. Summary and Conclusions
- 1.
- Because of the influence of the “restraint effect” and “shielding effect” of the pile group, uneven settlement of piles A and B are induced. The settlement of pile A caused by multiple excavations in ETPG is relatively larger, while the settlement of pile B caused by multiple excavations in TEPG is relatively larger. The settlements of piles A and B predicted by numerical simulation are smaller than the test results.
- 2.
- The transverse tilting of the pile group caused by multiple excavations in TEPG and ETPG were 0.37% and 0.92%, respectively, which means the tilting of the pile group in ETPG is relatively larger. The tilting predicted by the numerical simulation is larger than the test result. It increases when the tunnel is far away from the pile group, which is different from the test result; however, the overall trend is consistent with the experimental result.
- 3.
- For pile A, the tip resistance caused by multiple excavations in ETPG is about 10% higher than before the initial excavation, which is 2% more than the test result in TEPG. This shows that the excavation sequences in TEPG are more conducive to ensuring the safety of pile A in the pile group; for pile B, the tip resistance induced in ETPG is about 85% larger than that before the initial excavation, which is 17% smaller than the test result in TEPG. It shows that the excavation sequences in ETPG are more conducive to ensuring the safety of pile B in the pile group. The results of numerical simulation prediction underestimate the axial force of the upper part of piles A and B and overestimate the axial force of the lower part of the pile, regardless of the chosen excavation sequence.
- 4.
- The multiple excavation sequence of “tunnel first-foundation pit second” leads to a larger bending moment for pile A, while the excavation sequence of “foundation pit first-tunnel second” induces a larger bending moment for pile B due to the “restraint effect” of the cap and the influence of the distance between the excavation area and the pile foundation. The prediction results of numerical simulation during tunnel excavation overestimate the maximum negative bending moment of the pile, while the overall variation trend is consistent with the test results.
- 5.
- The soil material used in this test is sand. Due to the poor permeability of cohesive soil, the unloading of soil excavation has a time effect, and the adjacent pile foundation is not stable after the completion of excavation, with a high degree of time and space dependence. At present, there are few relevant studies in the existing model tests, and subsequent studies can be carried out in clay. This test has not analyzed the influence of the size of the foundation pit and tunnel diameter on pile groups. Model tests can be carried out to further study the additional response of pile foundations caused by the change of geometric characteristics of foundation pit and tunnel.
Author Contributions
Funding
Institutional Review Board Statement
Informed Consent Statement
Data Availability Statement
Conflicts of Interest
References
- Guo, W.D.; Ghee, E.H. A preliminary investigation into the effect of axial load on piles subjected to soil movement. In Proceedings of the International Symposium on Frontiers in Offshore Geotechnics, Perth, Australia, 19–21 September 2005. [Google Scholar]
- Lei, G.H.; Ng, C.W.W.; Rigby, D.B. Stress and displacement around an elastic artificial rectangular hole. J. Eng. Mech. 2001, 127, 880–890. [Google Scholar] [CrossRef]
- Loganathan, N.; Poulos, H.G.; Stewart, D.P. Centrifuge model testing of tunnelling-induced ground and pile deformations. Géotechnique 2000, 50, 283–294. [Google Scholar] [CrossRef]
- Shahin, H.M.; Nakai, T.; Zhang, F.; Kikumoto, M.; Nakahara, E. Behavior of ground and response of existing foundation due to tunneling. Soils Found. 2011, 51, 395–409. [Google Scholar] [CrossRef]
- Shahin, H.M.; Nakahara, E.; Nagata, M. Behaviors of ground and existing structures due to circular tunneling. In Proceedings of the 17th International Conference on Soil Mechanics and Geotechnical Engineering, Alexandria, Egypt, 5–9 October 2009; IOS Press: Amsterdam, The Netherlands, 2009; pp. 1786–1789. [Google Scholar]
- Hong, Y.; Soomro, M.A.; Ng, C.W.W. Settlement and load transfer mechanism of pile group due to side-by-side twin tunnelling. Comput. Geotech. 2015, 64, 105–119. [Google Scholar] [CrossRef]
- Ng, C.W.W.; Hong, Y.; Soomro, M.A. Effects of piggyback twin tunnelling on a pile group:3D centrifuge tests and numerical modelling. Geotechnique 2015, 65, 38–51. [Google Scholar] [CrossRef]
- Xu, Y.Q.; Shan, Z.G.; Gan, P.L.; Liu, S.M.; Zhang, Z.Z.; Hou, Y.M. Influence of side-by-side twin tunneling on an existing pile group. Chin. J. Rock Mech. Eng. 2021, 40, 2935–2944. [Google Scholar]
- Lu, D.C.; Ding, C.; Lin, Q.T.; Du, X.L. Experimental study on three⁃dimensional effects of shield tunnel excavation on adjacent pile. J. Disaster Prev. Mitig. Eng. 2022, 42, 732–741. [Google Scholar]
- Dias, T.G.S.; Bezuijen, A. Data analysis of pile tunnel interaction. J. Geotech. Geoenviron. Eng. 2015, 141, 4015051. [Google Scholar] [CrossRef]
- Mroueh, H.; Shahrour, I. Three-dimensional finite element analysis of the interaction between tunneling and pile foundations. Int. J. Numer. Anal. Methods Geomech. 2002, 26, 217–230. [Google Scholar] [CrossRef]
- Lee, G.T.K.; Ng, C.W.W. Effects of advancing open face tunneling on an existing loaded pile. J. Geotech. Geoenviron. Eng. 2005, 131, 193–201. [Google Scholar] [CrossRef]
- Wang, L.; Zheng, G. Research on effects of shield driven tunneling on adjacent single friction-pile. Rock Soil Mech. 2011, 32, 621–627. [Google Scholar]
- Soomro, M.A.; Mangia, N.; Xiong, H.; Kumar, M.; Mangnejo, D.A. Centrifuge and Numerical Modelling of Stress Transfer Mechanisms and Settlement of Pile Group due to Twin Stacked Tunnelling with Different Construction Sequences. Comput. Geotech. 2020, 121, 103449. [Google Scholar] [CrossRef]
- Qiu, H.S.; Wang, Z.; Ayasrah, M.; Fu, C.B.; Gang, L. Numerical study on the reinforcement measures of tunneling on adjacent piles. Symmetry 2022, 14, 288. [Google Scholar] [CrossRef]
- Ong, D.E.; Leung, C.E.; Chow, K.Y. Pile behavior due to excavation-induced soil movement in clay. I: Stable wall. J. Geotech. Geoenviron. Eng. 2006, 132, 36–44. [Google Scholar] [CrossRef]
- Leung, C.F.; Ong, D.E.; Chow, K.Y. Pile behavior due to excavation-induced soil movement in clay. II: Collapsed wall. J. Geotech. Geoenviron. Eng. 2006, 132, 45–53. [Google Scholar] [CrossRef]
- Ng, C.W.W.; Wei, J.; Poulos, H.; Poulos, H.; Liu, H. Effects of multipropped excavation on an adjacent floating pile. J. Geotech. Geoenviron. Eng. 2017, 143, 4017021. [Google Scholar] [CrossRef]
- Poulos, H.G.; Chen, L.T. Pile response due to excavation-induced lateral soil movement. J. Geotech. Geoenviron. Eng. 1997, 123, 94–99. [Google Scholar] [CrossRef]
- Poulos, H.G.; Chen, L.T. Pile response due to unsupported excavation-induced lateral soil movement. Can. Geotech. J. 1996, 33, 670–677. [Google Scholar] [CrossRef]
- Yang, M.; Zhou, H.B.; Yang, H. Numerical analysis of pile response due to unsupported excavation-induced lateral soil movement. China Civ. Eng. J. 2005, 38, 91–96. [Google Scholar]
- Ng, C.W.W.; Shi, J.W.; Hong, Y. Three-dimensional centrifuge modelling of basement excavation effects on an existing tunnel in dry sand. Can. Geotech. J. 2013, 50, 874–888. [Google Scholar] [CrossRef]
- Shen, J.W.; Liu, L. Numerical analysis and field monitoring for studying effects of shield tunnelling on nearby piles. Rock Soil Mech. 2015, 36, 709–714. [Google Scholar]
- Ng, C.W.W.; Lu, H. Effects of the construction sequence of twin tunnels at different depths on an existing pile. Can. Geotech. J. 2014, 51, 173–183. [Google Scholar] [CrossRef]
- Gui, M.; Bolton, M.D.; Garnier, J.; Corte, J.F.; Renzi, R. Guidelines for cone penetration tests in sand. In Proceedings of the International Conference on Centrifuge 98, Tokyo, Japan, 23–25 September 1998; Balkema, A.A., Ed.; CRC Press: Leiden, The Netherlands, 1998; pp. 155–160. [Google Scholar]
- Jacobszs, W. The Effects of Tunneling on Piled Foundations. Ph.D. Thesis, University of Cambridge, Cambridge, UK, 2002. [Google Scholar]
- Zhang, Z.G.; Fang, L.; Ma, S.K.; Lv, X.L.; Shi, M.Z.; Lu, Y.H. Model test study on ground settlement caused by excavation of quasi-rectangular tunnels in soft soils. Mod. Tunn. Technol. 2020, 57, 762–771. [Google Scholar]
- Shao, Y.; Liu, Y.; Jinag, J.; Ma, S.K.; Xie, Q. Metro Operation-Induced Dynamic Response of Foundation Soil for Different Degrees of Consolidation. Mod. Tunn. Technol. 2018, 55, 133–139+147. [Google Scholar]
- Mair, R.J.; Taylor, R.N. Bored tunnelling in the urban environment. State-of-the-art report and theme lecture. In Proceedings of the 14th International Conference on Soil Mechanics and Foundation Engineering, Hamburg, Germany, 6–12 September 1997; pp. 2353–2385. [Google Scholar]
- Shirlaw, J.N.; Ong, J.C.W.; Rosser, H.B.; Tan, C.G.; Osborne, N.H.; Heslop, P.E. Local settlements and sinkholes due to EPB tunnelling. Geotech. Eng. 2003, 156, 193–211. [Google Scholar] [CrossRef]
- Giner, E.; Sukumar, N.; Tarancón, J.E.; Fuenmayor, F.J. An Abaqus implementation of the extended finite element method. Eng. Fract. Mech. 2009, 76, 347–368. [Google Scholar] [CrossRef]
- Simulia, D.C.S. Abaqus 6.11. Anal. User′s Man. 2011, 16, 32–134. [Google Scholar]
- Ng, C.W.W.; Sun, H.S.; Lei, G.H.; Shi, J.W.; Mašín, D. Ability of three different soil constitutive models to predict a tunnel′s response to basement excavation. Can. Geotech. J. 2015, 52, 1685–1698. [Google Scholar] [CrossRef]
- Hu, C.M.; Yuan, Y.L.; Mei, Y.; Qian, W.F.; Ye, Z.W. Initial Geo-Stress Balance Method for the Finite-Element Model Using the Stratum-Structure Method. Mod. Tunn. Technol. 2018, 55, 76–86. [Google Scholar]
- Yang, J.Y.; Lei, J.B.; Zou, Y.Q.; Li, Z.Z.; Wan, M.H.; Yue, T.S.; Pratik, K.B. Preliminary analysis on initial stress balance method of composite foundation with cap pile based on ABAQUS. J. Nanchang Hangkong Univ. Nat. Sci. 2017, 31, 73–78. [Google Scholar]
- Cheng, C.Y.; Dasari, G.R.; Chow, Y.K.; Leung, C.F. Finite element analysis of tunnel-soil-pile interaction using displacement controlled model. Tunn. Undergr. Space Technol. 2007, 22, 450–466. [Google Scholar] [CrossRef]
- Ma, S.K.; Shao, Y.; Liu, Y.; Jiang, J.; Fan, X.L. Responses of pipeline to side-by-side twin tunnelling at different depths: 3D centrifuge tests and numerical modelling. Tunn. Undergr. Space Technol. 2017, 66, 157–173. [Google Scholar] [CrossRef]
- Ng, C.W.W.; Lu, H.; Peng, S.Y. Three-dimensional centrifuge modelling of the effects of twin tunnelling on an existing pile. Tunn. Undergr. Space Technol. 2013, 35, 189–199. [Google Scholar] [CrossRef]
















| Test ID | Excavation Sequence | Remark |
|---|---|---|
| L | - | Determining the ultimate bearing capacity of pile groups |
| TEPG | first tunnel-then foundation pit | Comparing the two to study the effect of excavation sequence on pile group |
| ETPG | first foundation pit-then tunnel |
Publisher’s Note: MDPI stays neutral with regard to jurisdictional claims in published maps and institutional affiliations. |
© 2022 by the authors. Licensee MDPI, Basel, Switzerland. This article is an open access article distributed under the terms and conditions of the Creative Commons Attribution (CC BY) license (https://creativecommons.org/licenses/by/4.0/).
Share and Cite
Diao, H.; Tian, Y.; Wei, G.; Wang, X.; Li, X. Multi-Effects of Tunneling and Basement Excavation on Existing Pile Group. Symmetry 2022, 14, 1928. https://doi.org/10.3390/sym14091928
Diao H, Tian Y, Wei G, Wang X, Li X. Multi-Effects of Tunneling and Basement Excavation on Existing Pile Group. Symmetry. 2022; 14(9):1928. https://doi.org/10.3390/sym14091928
Chicago/Turabian StyleDiao, Hongguo, Ye Tian, Gang Wei, Xinquan Wang, and Xiao Li. 2022. "Multi-Effects of Tunneling and Basement Excavation on Existing Pile Group" Symmetry 14, no. 9: 1928. https://doi.org/10.3390/sym14091928
APA StyleDiao, H., Tian, Y., Wei, G., Wang, X., & Li, X. (2022). Multi-Effects of Tunneling and Basement Excavation on Existing Pile Group. Symmetry, 14(9), 1928. https://doi.org/10.3390/sym14091928

