Abstract
Summer overheating has emerged as the primary comfort challenge in rural housing under a warming climate. Conventional retrofit measures are often infeasible due to high costs and limited technical capacity. This study investigates how spatial configuration influences summer thermal conditions while keeping envelope materials constant, focusing on rural dwellings in the Guanzhong region of China. Three representative prototypes are analyzed: the traditional courtyard type, the deep continuation type, and the progressive combined type. Thermal performance is evaluated using the Predicted Mean Vote (PMV) index through Ladybug and Honeybee simulations based on long-term meteorological data, and validated with multi-room field measurements. Two parametric analyses further test the effects of window opening rates (0.2–0.5) and room width-to-depth ratios (1:1–1:2.5). Results indicate that courtyards and galleries function as transitional zones, creating discrete yet connected thermal units and reducing PMV near edges. Second-floor rooms show a ventilation advantage with an average PMV reduction of 0.08. Enlarging window openings improves PMV only when cross-ventilation paths exist, while ratios wider than 1:2 raise PMV and slightly influence adjacent rooms. Field measurements confirm these simulated patterns. Cross-regional comparisons with Argentina, Brazil, and Japan further demonstrate that once the envelope is adequate, the spatial organization becomes the key driver of summer comfort. The study highlights practical, low-cost strategies such as reallocating high-use rooms to favorable zones, adding targeted shading, and ventilation, and introducing lightweight spatial interventions. These measures enhance summer comfort without invasive construction.
1. Introduction
Extreme heat events have intensified globally, and multiple assessments report that 2023 was the warmest year on record [1,2,3]. In China, large-scale heat waves since 2022 have exposed hundreds of millions of people to prolonged thermal stress, worsening risks to health and productivity [4]. Against this backdrop, rural housing performance in summer has become a pressing concern: rural dwellings occupy a large share of national floor area and contribute substantially to building-related energy use and emissions [5]. Unlike urban or public buildings where standards and retrofit measures have reduced carbon intensity—many rural houses face growing cooling demand but lack corresponding improvements in thermal comfort [6]. To meet China’s “dual-carbon” goals, there is an urgent need for strategies that simultaneously enhance summer thermal comfort and are affordable for self-built rural housing [7].
Existing research on indoor thermal environments in rural dwellings can be categorized into three main strands. The first focuses on building envelopes and mechanical systems. Measures, like insulation enhancement, window upgrades, and high-efficiency air-conditioning, have been proven effective in urban settings [8]. However, their high costs, maintenance difficulties, and underdeveloped supply chains restrict their application in self-built rural houses with limited budgets [9]. The second strand emphasizes behavioral adaptation, such as adjusting window opening patterns, using fans, shifting the timing of appliance use, changing clothing, and altering daily routines [10,11]. Yet these behaviors vary greatly across households and seasons, which reduces their replicability and limits their role as design guidelines. The third strand explores spatial configuration, covering building form, layout, façade porosity, window-to-wall ratio, and semi-outdoor spaces such as courtyards, galleries, verandas, and porches [12,13]. Evidence from various regions reveals a common principle: compact building layouts with transitional outdoor elements and balanced proportions can enhance shading and cross-ventilation, thus reducing reliance on mechanical cooling [14]. However, cultural traditions and local technical capabilities vary across regions, resulting in spatially distinct solutions [15,16].
Despite extensive research, critical gaps remain. Many studies establish correlations between spatial features and thermal performance, but the causal relationship often remains unclear when material quality, internal heat gains, and user behavior vary simultaneously [17,18]. Without controlling for envelope conditions, it is difficult to isolate the specific impact of building geometry and layout. Additionally, the range of tested parameters is often narrow, providing limited practical guidance for design. Key questions—such as the optimal window opening ratio under normal wind conditions or the critical width-to-depth ratio that leads to thermal discomfort—have not been adequately addressed [19,20]. Few studies integrate prototype-based simulations with multi-room field measurements. This limits the validation of predicted thermal patterns under real-world conditions, such as room adjacency, occupancy, and microclimate [21]. Furthermore, research rarely focuses on transitional climate zones—where both winter heating and summer cooling are essential—and where solutions must be feasible given local technical skills and economic constraints [22,23].
The Guanzhong region serves as an ideal test case. Located between 33° N and 35° N, it lies in a climatic transition zone—shifting from a cold climate to a hot-summer/cold-winter climate—and has experienced significant warming in recent decades [7]. Meteorological data reveal steady increases in both mean annual temperature and the number of days with temperatures above 35 °C. Household surveys further indicate that many rural families now spend more on summer cooling than on winter heating, highlighting overheating as the primary challenge to thermal comfort and a key financial burden [24].
Previous studies on traditional courtyard houses in Northern China—including those in Shaanxi Province—have mainly focused on winter heat retention, clean heating technologies, and envelope improvements [25,26]. However, most of this research centers on the heating season and fails to provide systematic methods for enhancing summer comfort amid global warming [27]. Research that does consider summer conditions typically emphasizes envelope retrofits or equipment efficiency, rather than the organizational role of space, and rarely controls for materials [17]. Meanwhile, national and provincial standards adopt an indoor summer comfort setpoint of approximately 26 °C [28]. Yet room-scale data from Guanzhong show this temperature is often exceeded for extended periods [21].
To address the limits of envelope and behavioral measures, we focus on spatial configuration as a passive and continuous lever for improving summer comfort in rural dwellings. Spatial configuration works passively and continuously once established, because geometry and adjacency shape airflow, solar exposure, and heat storage without additional energy use or maintenance [29]. Additionally, spatial measures align with local building traditions. Features like courtyards, verandas, deep eaves, and internal partitions are familiar to village builders, and can be adapted with minimal effort [30,31]. Spatial interventions can also be targeted: not all rooms demand the same level of summer comfort, so reallocating key functions (e.g., bedrooms, living rooms) to thermally favorable spaces can yield significant comfort improvements at low cost [32].
To translate this principle into practice, two key steps are required. The first step is to isolate the impact of spatial configuration under controlled material and construction conditions—this allows both the underlying mechanism and the magnitude of the effect to be clarified [12]. The second step is to compare simulation results with on-site measurements in real dwellings, ensuring findings reflect the complexity of actual living conditions (e.g., room adjacency, occupancy patterns, and local microclimate). A prototype-based approach is well-suited to this task. It enables the generalization of common floor plan types from local housing stocks, controlled variation of a limited set of key parameters, and validation of results in real, measured rooms [33,34].
This study addresses the gap by providing spatial and thermal evidence for rural housing in transitional climates and by proposing a low-cost spatial pathway where envelope or mechanical retrofits are often impractical. Building on prior work on courtyards, galleries, and transitional spaces, our approach isolates the effect of spatial configuration by keeping envelope materials and construction constant, then validates simulated comfort rankings against multi-room field measurements in representative houses. Within rural-realistic ranges, we further test window-opening rate and width-to-depth proportion to derive actionable thresholds, which are translated into practical design and retrofit rules.
To implement this framework, we investigate how spatial configuration influences summer indoor thermal conditions in Guanzhong’s rural houses. Three representative housing prototypes—traditional courtyard, deep continuation, and progressive combined types—are derived from local construction practices. Their performance is evaluated via Predicted Mean Vote (PMV)-based simulations (using Ladybug/Honeybee plugins) and long-term meteorological data. This performance is further verified through multi-room monitoring of operative temperature and relative humidity, with window conditions controlled during the monitoring period. Sensitivity analysis is conducted to explore design options within realistic ranges. Additionally, cross-regional comparisons with cases from subtropical regions help distinguish context-specific findings from those that are transferable.
This study pursues three objectives that together bridge mechanism, validation, and application, as follows: (i) to quantify the influence of spatial configuration on summer indoor thermal conditions by developing locally derived prototypes and evaluating their PMV-based performance under controlled envelope assumptions; (ii) to cross-validate the simulated comfort distributions with multi-room in situ measurements in representative built cases corresponding to each prototype, thereby assessing the robustness of predicted spatial patterns; (iii) to identify design-sensitive thresholds through parametric experiments on window opening rate and room width–depth ratio, and to translate the validated patterns into low-cost, transferable guidance suitable for rural self-built housing in Guanzhong and comparable subtropical regions.
2. Materials and Methods
2.1. Study Area
The Guanzhong area in Shaanxi Province, Northwest China, was selected as the study site due to its representative rural housing types and distinctive climatic conditions. Geographically, the region is a valley plain, higher in the north and lower in the center, located between 33°41′–35°39′ N and 106°42′–110°35′ E, covering approximately 56,000 km2. It comprises five prefecture-level cities and 54 counties, with Xi’an as the central hub (Figure 1) [35,36].
Figure 1.
Location of Guanzhong area and research sites.
According to China’s building climate division, Guanzhong is classified as a cold zone with a subtropical monsoon climate. It experiences four distinct seasons and large annual temperature differences. Prevailing winds are mainly from the northeast in winter and the southwest in summer [37]. The annual average temperature ranges from 12–14 °C, with solar radiation of 150–190 W/m2 and 2000–2800 sunshine hours annually (40–60% of the theoretical maximum).
In recent decades, Guanzhong has undergone rapid climatic change linked to global warming. Long-term records from Northwest A&F University indicate a marked increase in extreme heat events over the past 50 years (Table 1) [38]. Rural meteorological station data show that means annual temperature has risen by 0.13 °C per year, while the number of days above 35 °C has increased by about one day per year. Mean summer temperature (June–August) has risen by 0.09 °C per year, reaching 26.61 °C in 2024. Since 2020, increases in mean annual and summer temperatures, along with the frequency of extreme heat days, have accelerated significantly. Variations in outdoor temperature are shown in Figure 2.
Table 1.
Statistics of extreme temperature index in Guanzhong area.
Figure 2.
The variations in outdoor temperature in the Guanzhong region.
2.2. Spatial Form, Materials, and Climatic Adaptation
Rural dwellings in Guanzhong are primarily self-built by villagers and differ from traditional vernacular houses [39]. A distinctive feature is the narrow courtyard layout, typically with a length-to-width ratio of 1:3–1:4 and main room depths of 7–10 m. Four key characteristics shape their spatial form and material use:
- Enclosed exterior and open interior: Traditionally, multi-family narrow courtyards are arranged in parallel with shared east–west walls and north–south openings, creating a single slope facing the courtyard. Historically this enhanced privacy and defense. Although modern houses no longer require defensive features, the proportions and basic form remain.
- Shading and wind protection: Courtyards integrate main rooms, wing rooms, and inverted seats, forming a compact plan that provides shading and wind protection across seasons.
- Architectural system and ethics: Traditional layouts followed strict rules of orientation, volume, and fenestration, comparable to quadrangle courtyards. While hierarchical spatial principles have largely disappeared, orientation and massing principles still influence construction.
- Materials and economic considerations: Historically, structures were brick–timber (clay brick). With changes in policy, economy, and environment, brick–concrete construction using non-clay sintered bricks has become dominant. Villagers typically replicate similar forms and materials within communities due to economic and technical constraints.
Despite these adaptive strategies, current houses provide inadequate summer comfort under a warming climate, leading to increased air-conditioning use. Surveys show that in winter 2023, average heating costs were 285.16 yuan/month, while summer 2023 cooling costs were higher, averaging 330.63 yuan/month. These figures illustrate the rising energy burden of cooling (Figure 3).
Figure 3.
Heating/cooling electricity usage statistics: (a) metering socket and questionnaire, (b) cooling and heating expense statistics.
From a spatial perspective, the compact elongated form enhances shading but restricts ventilation. PMV-based comfort depends on temperature, radiation, air velocity, and humidity. In Guanzhong, rising air temperatures and declining wind speeds have worsened summer conditions, while humidity remains within comfort range and radiation is stable. In 2005, when many rural houses were built, summer mean temperature was 25.77 °C; by 2024 it had risen to 27.08 °C. Standards set 26 °C as the summer reference temperature ISO-7730 [40]; Shaanxi standards, yet in 2024, monitored bedrooms and living rooms exceeded 26 °C for 89.18% of the time, with 39.5% of hours above 29 °C and a maximum of 34.1 °C.
Wind conditions have also worsened. Long-term records show significant declines in wind speeds. Increasing building density, as villagers retain old structures while adding new ones, further restricts ventilation. Most villages follow a north–south street pattern, with east–west oriented houses sharing party walls, producing deep plans with limited exposure to prevailing winds. Single-sided windows dominate, reducing cross-ventilation opportunities [41]. Field measurements (2023–2024) confirm this: average courtyard velocity was 0.31 m/s with calm conditions 58% of the time; hallways averaged 0.02 m/s with 92.7% calm; bedrooms were nearly always calm. Figure 4 presents indoor and outdoor air velocity distributions.
Figure 4.
Analysis of indoor and outdoor air velocity in Guanzhong area: (a) ground air velocity (m/s), (b) measurement of indoor air velocity (m/s).
2.3. Prototype Abstraction and Extraction
The core spatial elements of Guanzhong rural housing have remained consistent despite evolving layouts. Their development reflects cycles of diversification and simplification driven by economic and functional needs. Based on surveys, historical records, and design guidelines, this study identified and classified the spatial components defining rural housing prototypes.
In earlier stages, spaces were multifunctional and measured in Jian (functional bays). Units were defined by position and hierarchical role—courtyards, halls, rooms [42], with modifiers such as “front,” “back,” “Shang” (upper), and “Sha” (lower). For example, Shang Fang referred to the main living space of the household head. While similar to northern courtyard houses, Guanzhong terminology reflects local traditions that persist today.
Over time, functions became more differentiated, though flexibility remained. Bedrooms often serve as living rooms, and kitchens are frequently combined with dining areas. Following these conventions, this study classifies spaces by function while retaining orientation-based terms such as Shang Fang and Sha Fang.
Drawing from field surveys, literature, and the Design Atlas of Rural Characteristic Dwellings in Shaanxi Province, the study statistically analyzed component relationships in Guanzhong houses (Table 2). Within a homestead, residential space is formed through systematic arrangement of courtyards, halls, and auxiliary rooms. Courtyard–building relationships, block composition, and orientation are key parameters. Semi-outdoor elements, such as courtyards and verandas, distinguish Guanzhong housing from other subtropical regions.
Table 2.
Statistical of components in the spatial pattern.
Based on these analyses, three representative prototypes were abstracted. The Traditional Courtyard Type represents the earliest form, characterized by a complete courtyard system that has largely disappeared today. The Deep Continuation Type, which developed from the traditional courtyard, extends the depth of the dwelling while retaining its key elements; this layout became widespread during the 1990s and remains prevalent. The Progressive Combined Type emerged as a further transformation of the deep continuation model, incorporating more complex block compositions and expanded Shang Fang spaces, while often omitting Sha Fang. This type exhibits greater variability and, in some cases, bears resemblance to Japanese Kyo-machiya or North American humpback houses. Table 3 summarizes the spatial patterns of main rooms across these prototypes.
Table 3.
Analysis of the spatial pattern of main rooms.
As an illustrative full-village case, Xuelu Village in Xianyang contains 671 dwellings. Classification by spatial pattern shows Traditional Courtyard about 9.09% (61), Deep Continuation about 44.86% (301), and Progressive Combination about 46.05% (309). Across the 30-village survey, these three prototypes describe the predominant stock of single-plot, self-built rural houses, which is the target of our analysis. They do not represent every rural building type in the region. Non-target forms, such as small apartments along town main streets, mixed-use shop houses, and institutional dormitories, are outside the scope of this study.
2.4. Architectural Features of Selected Houses
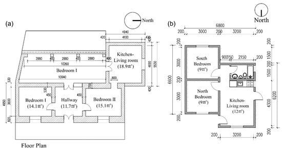
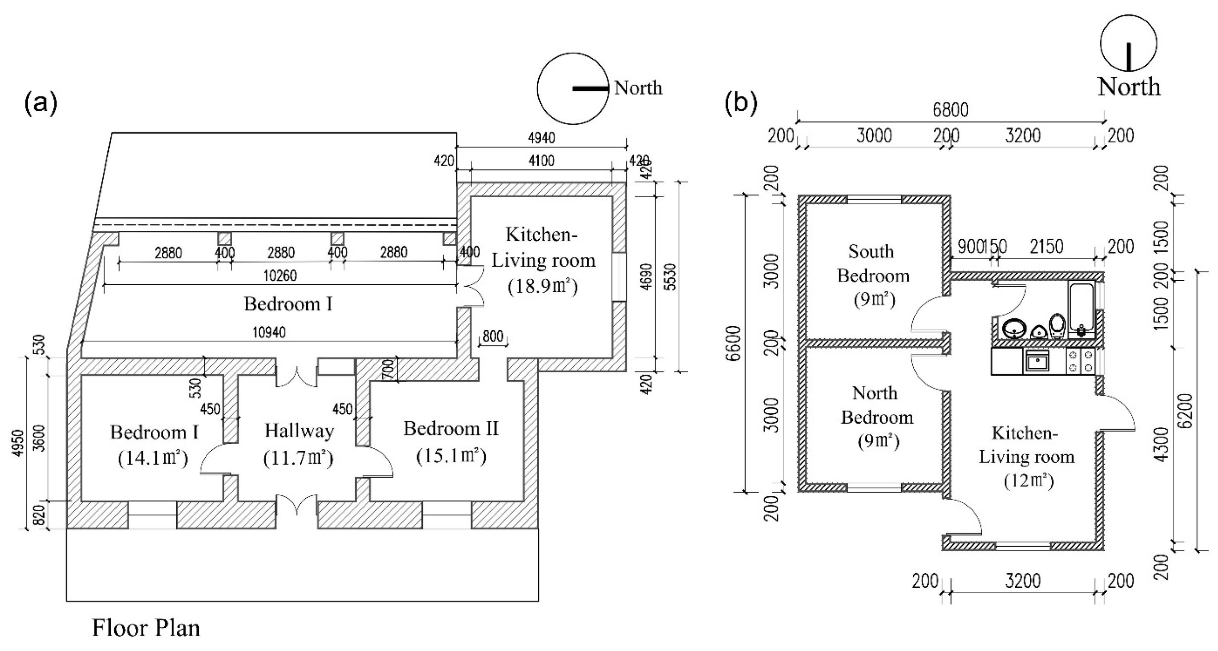
To assess thermal effects of spatial models, simulation and field measurement were combined. In simulations, all prototypes were assigned identical external dimensions, site sizes, and envelope materials. No internal heat sources or equipment were included, ensuring differences arose solely from spatial configuration.
To reduce microclimate bias and to enable a one-to-one comparison of spatial prototypes, we monitored three houses in Xuelu Village. Selection proceeded in two steps. First, we built a sampling frame from five years of fieldwork across 30 villages with about 100 mapped households and more than 400,000 thermal records. Second, we chose three houses in the same village that match the three prototypes and satisfy four key criteria: plots and orientations are comparable at about 9 m by 30 m with typical east-to-west spans and north-to-south streets; envelope practice is typical for the region, including masonry walls, concrete or asphalted roofs, and common window types; operation is controllable during monitoring, with no HVAC, no internal heat gains, and unified window and door settings; and local microclimate is consistent within the village, with short distances between cases, safe access for sensors, and owner consent for multi-day monitoring. This selection reduces microclimate variation but does not eliminate it.
Representativeness was checked by comparing room counts and area shares with the statistical medians, by benchmarking orientation and depth against the prototype feature tables, and by verifying that the measured comfort ranking reproduces the simulated ordering across the prototype subtypes (Table 4). It should be noted that in the simulations, all prototypes were modeled with standardized envelope parameters (masonry walls, concrete or asphalted roofs, plastic-steel framed double-glazed windows, U ≈ 2.7 W·m−2·K−1) to isolate spatial effects. In the monitored houses, some differences exist—for example, Case B has wooden windows (typical U ≈ 4.5 W·m−2·K−1), while Cases A and C use plastic–steel windows (U ≈ 2.5–3.0 W·m−2·K−1). These variations influence absolute PMV but did not alter the relative ordering of rooms, which was consistent between simulation and measurement.
Table 4.
Basic information of the measured cases.
2.5. Simulation and Field Measurement Design
The three prototypes were modeled under identical external conditions and homestead sizes (9 m × 30 m). Envelope construction was standardized, and internal heat sources and occupancy were excluded. This assumption isolates the net effect of spatial configuration under controlled envelope conditions and reduces case-to-case noise. The tradeoff is lower external validity for absolute PMV. Simulations focused on key spaces requiring higher comfort—master bedrooms, living rooms, and workspaces.
Four design parameters were adjusted: courtyard dimensions, number of floors, corridor form, and room layout. Strategic modifications produced three categories and 43 subcategories of spatial models (Table 3). Simulations were conducted using Ladybug and Honeybee plugins in Grasshopper, which enable efficient multi-parameter control and data processing by integrating established simulation engines.
For field measurements, each spatial unit was treated as an observation point. Between 2021 and 2023, 17 high-use rooms were monitored. Sensors were placed at 1.5 m height and recorded operative temperature (Top) and relative humidity (RH). During monitoring, windows and doors were kept closed and HVAC was off to ensure comparability across rooms and houses. This setting improves comparability but may overestimate PMV in rooms that would benefit from cross-ventilation, and this is considered when interpreting the results. Table 5 details the range and accuracy of the instruments used. These measurements provided the basis for validating simulations and identifying consistent thermal performance patterns.
Table 5.
Measurement range and accuracy of the used instruments.
3. Results
3.1. Thermal Performance of Prototype Simulations
Considering the living conditions and behavioral characteristics of rural residents, the Predicted Mean Vote (PMV) index was adopted as the primary evaluation metric [40]. “Summer” was defined using a climatological threshold in which the mean air temperature (Tair) exceeds 22 °C for five consecutive days. Based on this definition, the calculation period from May 11 to October 1 was used to determine the PMV distribution for each spatial component across the three prototype models.
All prototypes were modeled with identical external dimensions, site conditions, and material specifications. PMV distributions were generated for each spatial unit to characterize comfort variations across different spatial configurations. Simulation results are summarized in Table 6.
Table 6.
Simulation results of three types of spatial model prototypes.
In the traditional courtyard prototype, rooms adjacent to the central courtyard (e.g., Units 1 and 6) showed lower PMV values (0.3–0.4) compared to deeper, enclosed rooms (e.g., Units 3 and 8, 0.5–0.6), indicating a significant passive-cooling effect of the courtyard. In the deep continuation prototype, a north–south gradient was observed: northern rooms (e.g., Unit 4) achieved better comfort (PMV ≈ 0.35) than southern rooms (e.g., Unit 7, ≈0.43), reflecting reduced solar exposure. In the progressive combined prototype, second-floor rooms consistently outperformed first-floor rooms, with an average PMV difference of about 0.08. This advantage was attributed to enhanced ventilation at higher elevations. These results establish baseline thermal characteristics of the three prototypes prior to intervention.
3.2. Field Measurements of Indoor Thermal Environment
To validate the simulation results, indoor thermal measurements were compared with outdoor microclimate data from fixed monitoring stations. A typical clear summer day with light wind and no precipitation was selected for comparison. Table 7 presents the outdoor thermal data, while Figure 5 illustrates the distribution of indoor operative temperature (Top) and relative humidity (RH) across all cases.
Table 7.
Outdoor thermal environment data of the selected samples.
Figure 5.
Distribution of indoor Top and RH measurement points in each case.
For case A, the monitored spaces comprised three bedrooms, a living room, a dining room, a kitchen, and a storeroom. The average operative temperature (Top) during the monitoring period was 26.0 °C (Tmax = 27.3 °C, Tmin = 22.8 °C), while the average relative humidity (RH) was 65.4% (Hmax = 70.6%, Hmin = 53.0%). Among all monitored spaces, Bedroom 1 exhibited the largest daily fluctuation in thermal conditions (ΔTAs = 4.5 °C, ΔHAs = 16.4%), whereas the kitchen recorded the smallest variation (ΔTAk = 0.5 °C, ΔHAk = 4.9%). These results highlight the influence of room function and position on thermal stability. The indoor thermal environment parameters (Top and RH) of Case A are visualized in Figure 6.
Figure 6.
(a) Indoor temperature (b) Relative humidity of Case-A.
In case B, the monitored spaces included a hallway, a bedroom, a living room, and a corridor. The average Top was 30.2 °C (Tmax = 34.4 °C, Tmin = 28.2 °C), and the average RH was 54.6% (Hmax = 63.6%, Hmin = 42.0%). The corridor exhibited the largest daily variation (ΔTc = 5.9 °C, ΔHc = 13.9%), while the living room recorded the smallest temperature fluctuation (ΔTBb = 2.1 °C). The thermal environment variations of case B are presented in Figure 7. These findings indicate that semi-outdoor or circulation spaces in case B are more susceptible to diurnal thermal changes compared to enclosed living areas.
Figure 7.
(a) Indoor temperature (b) Relative humidity of Case-B.
For case C, the monitored spaces included the new living room, three main bedrooms, and the first-floor corridor. The average Top was 29.49 °C (Tmax = 32.43 °C, Tmin = 27.70 °C), while the average RH was 69.11% (Hmax = 76.44%, Hmin = 61.67%) (Figure 8). This case involved an expansion based on the original house, resulting in more rooms and a mix of old and new building parts. The bedroom located in the northern old section exhibited minimal fluctuations (ΔTCb = 0.57 °C, ΔHCb = 1.86%), whereas the new living room on the southern side showed the highest variability (ΔTCl = 3.00 °C). The results reveal a clear thermal performance difference between older and newer sections, as well as between southern and northern orientations, with the second floor generally experiencing higher temperatures than the first.
Figure 8.
(a) Indoor temperature (b) relative humidity of Case-C.
3.3. Patterns of Thermal Environment Regulation
To examine parameter sensitivity, two variables were analyzed: the window opening rate and the room width–depth ratio. Both were tested under controlled material and construction assumptions, thereby isolating spatial effects from envelope influences.
3.3.1. Influence of Window Opening Rate
The window opening rate was defined as the ratio of window area to exterior wall area. Rates from 0.2 to 0.5 were tested in 0.1 increments, applied uniformly across all rooms. As shown in Table 8, increasing the opening rate generally reduced PMV in rooms with cross-ventilation paths (e.g., those connected to courtyards or opposite façades). In contrast, enclosed rooms or those oriented away from prevailing winds showed little benefit.
Table 8.
Simulation results under different window opening rates.
Although absolute PMV values shifted with opening size, the overall ordering of room comfort remained consistent across prototypes. This indicates that enlarging window openings modifies the magnitude of comfort but not the underlying spatial distribution. Thus, ventilation effectiveness depends primarily on spatial configuration rather than window size alone.
3.3.2. Influence of the Room Width–Depth Ratio
The width–depth ratio of the master bedroom varied from 1:1 to 1:2.5 in 0.5 steps, while other rooms remained constant. Simulation results (Table 9) show that ratios beyond 1:1 consistently increased PMV, reflecting reduced comfort. When the ratio exceeded 1:2, the negative effect became significantly stronger, raising PMV values and slightly influencing adjacent rooms.
Table 9.
Simulation results under different room depth ratio.
Despite these localized penalties, overall dwelling-level distributions remained stable, indicating that excessive depth mainly affects the comfort of the specific room rather than the entire house. Furthermore, deeper rooms not only had higher mean PMV but also slower recovery after heat accumulation, intensifying discomfort during prolonged hot periods. This underscores the importance of balanced room proportions: once the ratio exceeds 1:2, both spatial and temporal comfort penalties become significant.
4. Discussion
4.1. Comparative Evidence Under Similar Climates and Latitudes
Across regions with comparable Köppen–Geiger classifications, two consistent factors shape spatial logics relevant to summer comfort. The first is historical origin. Spatial typologies are shaped not only by climate but also by long-standing cultural trajectories. Even under similar climatic conditions, topography, wind patterns, solar exposure, and historical legacies of colonization or defense give rise to distinctive forms, including fortified courtyards and shaded verandas. The second is the dominant climatic adaptation logic. In developing contexts like the Guanzhong region, passive strategies remain core, relying on courtyards, eaves, and transitional zones to stabilize indoor conditions without mechanical input. In highly industrialized settings, such as Japan or the United States, by contrast, air-conditioning has shifted design priorities toward energy efficiency and health regulation, diminishing the climatic regulatory role of spatial geometry.
A key spatial difference lies in the utilization of courtyards and galleries. In shotgun and camelback houses, rooms are interconnected with internal circulation, which minimizes temperature and humidity gradients between spaces. In the Guanzhong region, like Nepal and India, movement frequently occurs through outdoor or semi-outdoor courtyards and corridors—these spaces function as thermal transition zones and create discrete yet connected thermal units. This organizational logic enhances microclimate regulation effects.
The comparison with Catamarca, Argentina, illustrates this contrast (Figure 9). Floor plans of vernacular and contemporary dwellings are shown in Figure 10. On summer design days, vernacular dwellings maintained living room temperatures of 28.3–34.0 °C and bedroom temperatures of 26.7–31.6 °C, while contemporary dwellings reached 28.0–35.8 °C and 27.9–34.6 °C, respectively. The percentage of occupied hours of each zone in each comfort category indicates higher comfort satisfaction in vernacular houses (Table 10) [43]. Building materials and orientation also affected thermal performance: 0.7 m-thick adobe walls offered greater thermal mass compared to 0.18 m-thick ceramic block walls; reinforced-concrete roofs with 0.3 m-thick EPS insulation outperformed adobe hollow-brick roofs with zinc cladding. North–south oriented dwellings exhibited better thermal performance than east–west oriented ones. Spatially, a 3.18 m-wide west-facing gallery acted as a thermal buffer, which explains why east-facing bedrooms achieved a comfort satisfaction rate of approximately 60%, in contrast to approximately 40% for living rooms.
Figure 9.
Comparison of spatial models of rural residences in different regions: (a) the shotgun house (1800s), (b) the camelback shotgun, (c) rural residences in Southern Nepal [44].
Figure 10.
Floor plans of vernacular and contemporary residences in Catamarca, Argentina: (a) vernacular, (b) contemporary [43].
Table 10.
Percentage of occupied hours of each zone in each comfort category [43].
A comparable organizational logic is observed in Campinas, Brazil, where early vernacular houses resemble those in the Guanzhong region in terms of scale, volumetric proportion, and orientation. The evolution of vernacular dwellings in Brazil is depicted in Figure 11. Although such models have declined under the region’s milder climate, their traces persist in contemporary dwellings as partial or “false” corridors—these structures continue to provide shading and staged exposure to the external environment. Independent studies in Campinas also report superior thermal performance of vernacular-inspired spatial models [45]. Within Guanzhong, the deep continuation and progressive combined types function similarly, using compact plans, courtyards, and outer corridors as climatic regulators. In our simulations, south-facing units exhibited clustered lower PMV values (0.33–0.37) in comparison to west-facing Sha Fang units (approximately 0.42–0.43). In progressive combined type, second-floor rooms consistently outperformed first-floor rooms, and north-facing rooms demonstrated a modest thermal advantage during summer.
Figure 11.
Evolution of vernacular dwellings in Brazil: (a) The period of Portuguese colonial. (b) The urban residence of the 19th century. (c) Contemporary [40,45].
Further support for this logic comes from Kyoto’s Kyo-machiya dwellings, where high-performance envelopes enable the isolation of spatial configuration effects [46]. Basic information about the Kyo-machiya residence—including its layout and sliding doors—is presented in Figure 12. The north and south walls are constructed with 50 mm-thick adobe; the east and west walls include an additional 40 mm-thick wood insulation layer and a 10 mm-thick cedar layer; the roof is composed of 10 mm-thick tiles, 40 mm-thick wood insulation, and 30 mm-thick cedar. Adjusting the configuration of sliding doors redirects airflow and changes indoor temperatures: when ventilation is restricted, indoor temperatures on the second day increase significantly, while additional thickening of the building envelope provides limited improvement. The indoor thermal environment analysis (including wind and temperature simulations) of the Kyo-machiya residence is presented in Figure 13.
Figure 12.
Basic information about the Kyo-machiya residence case: (a) Photo of Kyo-machiya residence. (b) Fusuma (sliding door). (c) Ground floor plan [46].
Figure 13.
Indoor thermal environment analysis of the Kyo-machiya residence: (a) Simulation of wind environment. (b) Simulation of temperature [46].
Summer relative humidity (RH) also varies across these regions. Catamarca features a hot and relatively dry climate, with a typical RH range of 30–40%; Campinas has a hot and humid climate, with a typical RH range of 65–75%; Kyoto exhibits a warm and humid climate, with a typical RH range of 60–70%; the Guanzhong region has a transitional climate, with a typical RH range of 55–65%. Within the PMV evaluation framework, higher humidity increases vapor pressure and reduces evaporative heat loss, leading to an increase in PMV at the same air temperature and air velocity. Such differences in humidity cause variations in absolute PMV values, but the relative thermal advantage of courtyard-adjacent or well-ventilated rooms remains consistent once the building envelope meets basic performance requirements. Collectively, these comparisons reveal a common mechanism: once the building envelope achieves adequate performance, spatial organization becomes the primary factor governing differences in summer thermal comfort between rooms.
This study assesses the transferability of these findings across different cultural and economic contexts. Cross-regional cases confirm a shared mechanism: once the building envelope meets a basic level of adequacy, spatial organization determines thermal comfort differences between rooms. Transferability is influenced by three key factors. First, the adequacy of the building envelope establishes a baseline. In Kyoto, high-performance building envelopes enable airflow regulation to become the dominant factor; in the Guanzhong region and Catamarca, thick walls or shaded galleries compensate for the relatively simple construction of roofs and windows; in Campinas, the milder climate reduces absolute thermal stress, so partial adoption of such spatial strategies is sufficient. Second, cultural building traditions and room usage patterns influence the feasibility of transfer. Features, such as courtyard adjacency, narrow galleries, and staged exposure, align with building traditions in the Guanzhong region and Catamarca, whereas in Campinas, verandas persist as partial or “false” corridors. These traditions influence the placement of high-occupancy rooms and the operation patterns of doors and windows. Third, economic conditions and technical skill levels constrain the adoption of such strategies. Self-built masonry structures, common timber components, and simple shading devices are compatible with village builders’ skills and local supply chains, whereas large-span extensions or specialized components are less transferable.
4.2. Validation of Simulation and Measurement
To reduce interference from human behavior and ensure comparability of results, doors and windows were kept closed during the monitoring period. Thermal Sensation Votes (TSVs) were not collected [47]; instead, operative temperature (Top) and relative humidity (RH) were adopted as the primary evaluation indicators. The correspondence between the monitored dwellings and the three prototypes, along with room-level thermal performance sequences, is summarized in Table 11, Table 12, Table 13 and Table 14. In general, the measured thermal distribution patterns are consistent with the simulation results. The remaining minor discrepancies stem from differences in enclosure conditions, opening configurations, and room adjacency.
Table 11.
Comparative analysis between measurement of Case-A and simulation of traditional courtyard prototype.
Table 12.
Comparative analysis between measurement of Case-B and simulation of deep continuation prototype.
Table 13.
Comparative analysis between measurement of Case-C and simulation of deep continuation prototype.
Table 14.
Comparison of prototype modified simulation and measured results.
In the traditional courtyard prototype (Case A), the corridor was integrated into the living space, and the former outdoor passage was enclosed (Table 11). The simulated thermal performance sequence (1 > 6 > 10 > 7 > 4 > 9 > 3 > 5 > 8 > 2) was highly consistent with the measured hierarchy: “Kitchen > Bedroom 2/3/Dining room > Living room > Storeroom > Bedroom 1.” Discrepancies originated from boundary conditions: the enclosed northern area blocked the prevailing northeast winds during monitoring, and the storeroom remained closed for prolonged periods—both factors reduced air exchange and slightly altered thermal performance.
In the deep continuation prototype (Case B), the measured thermal sequence matched the simulated results (4 > 1 > 2 > 8 > 3 > 9 > 5 > 6 > 7), which corresponds to the thermal hierarchy: “Living room > Bedroom > Hallway.” The remaining minor gaps were attributed to two factors: the hallway lacked a solid southern partition, and the north door was left open for most of the day (Table 12). These conditions increased the space’s exposure to outdoor thermal fluctuations, leading to slight deviations.
In the progressive combined prototype (Case C), a sunroom was added to the first floor’s northern side, and the corridor was placed on the eastern side of the courtyard. The simulated thermal sequence (15 > 14 > 12 > 9 > 13 > 10 > 11 > 8 > 7 > 2 > 6 > 1 > 4 > 5 > 3 > 16) corresponded to the measured ordering: “Bedroom A > Bedroom B > Bedroom C > Living room.” Bedroom A exhibited better-than-expected thermal performance, which was associated with the added sunroom and reduced shading from the Sha Fang on the southern façade (Table 13). This combination improved solar access and enhanced cross-ventilation without changing the fundamental thermal rules of the prototype.
Collectively, the monitored cases—conducted under controlled envelope conditions and closed openings—confirm the validity of the prototype logic. Courtyard-connected spaces and staged exposure areas consistently outperformed deep internal rooms. Minor shifts in thermal performance rankings were caused by enclosure conditions, opening orientations, and room adjacency. These conclusions remain robust despite the simplifying assumptions adopted in this study (Table 14).
This study further evaluates how the adopted assumptions affect the results and the robustness of the findings. The controlled assumptions influence absolute PMV values but do not alter the trend of the findings. Excluding internal heat gains tends to underestimate absolute PMV, particularly in deep or poorly ventilated rooms. Meanwhile, monitoring with closed openings tends to overestimate PMV in rooms that could benefit from cross-ventilation, as the thermal relief from window operation is suppressed. These effects are conservative with respect to relative thermal performance: deep internal rooms are penalized more heavily than courtyard-adjacent rooms, so the room-by-room thermal ranking remains stable. Multi-room measurement data support this pattern: even in the hallway case where the north door was frequently open, the measured thermal sequence still matched the simulated order.
4.3. Spatial Optimization Strategies
The validated thermal patterns and parametric findings from this study can be translated into practical, low-cost guidance for rural self-built construction. The first step is to spatially map summer operative temperature (Top) and relative humidity (RH) at room scale, to distinguish thermally favorable and unfavorable zones. High-occupancy spaces (e.g., bedrooms, living rooms) should be allocated to thermally favorable zones, while short-stay or comfort-insensitive functions (e.g., kitchens, storage rooms, circulation spaces) can occupy less favorable areas. Notably, functional reassignment alone can deliver immediate comfort improvements without modifying the overall building layout.
When a single factor limits a room’s thermal performance, targeted corrective measures should be implemented. Effective strategies include restoring natural cross-ventilation on courtyard-facing walls and adjusting shading geometry on south-facing façades. These interventions align with the parametric thresholds identified in this study: within a window opening ratio of 0.2–0.5, PMV reductions depend on establishing a viable cross-flow path; once the room width-to-depth ratio exceeds approximately 1:2, persistent thermal penalties occur. Where natural cross-ventilation is not feasible, the single-sided ventilation measures described below should be applied.
When no cross-ventilation path is available, increasing window opening size yields limited thermal benefits. Practical implementation steps are as follows: Prioritize exterior shading on sun-exposed façades; increase the effective window opening area to approximately 0.3–0.4 using outward-opening casements or projected windows; install high and low vents on the same façade to leverage stack effect through sufficient vertical separation; add transfer openings above interior doors to facilitate air movement through corridors or stairwells; where conditions permit, construct a short external gallery or shallow recess to create a second shaded opening; and adopt night purge ventilation alongside ceiling or pedestal fans to enhance air circulation. These measures are simple to construct and reliably improve thermal conditions in single-sided rooms.
The 1:2 width-to-depth ratio threshold should be applied based on room function. Bedrooms and living rooms should target a width-to-depth ratio of 1:2 or lower, and ideally close to 1:1.5, with priority placement near courtyards or on upper floors. Kitchens can tolerate a ratio of up to 1:2.5 if equipped with direct exhaust systems and shading, given their short occupancy duration. Storage rooms may have ratios exceeding 1:3 when buffered by adjacent spaces and not positioned adjacent to heat-sensitive rooms. Circulation spaces can have larger depth ratios if fitted with transfer openings, as they can also function as thermal buffers. These indicative ranges are consistent with the thermal performance rankings of the three prototypes.
Circulation spaces with poor thermal performance can be improved using lightweight partitions, which enhance enclosure while preserving airflow. Options include sliding panels, furniture-derived divisions, or thin partition walls—all compatible with local construction materials and skills, enabling flexible adjustments without heavy structural work. Combined, functional reassignment, targeted corrections, and lightweight spatial reconfiguration replicate the thermal advantages observed in simulations and field measurements, while preserving local cultural building traditions and construction feasibility.
To align these strategies with on-site construction constraints, interventions are classified by labor and material requirements, adapted to rural self-built construction practices. C0 (no cost and behavioral) includes functional reassignment and simple window schedules. Typical effort is no more than 0.5-person day and no new materials. C1 (low cost and lightweight) includes targeted south side shading or a new transfer opening with a louver. Typical effort is about 1 to 3 person days, with about 6 to 12 m2 of fabric or wood slats, or one opening with lintel and grille. C2 (moderate and light construction) includes a short external gallery or a compact sunspace module. Typical effort is about 3 to 7 person days with a small timber frame and polycarbonate or thin masonry infill. These intervention categories can be combined, and rural households can prioritize C0 and C1 measures before implementing C2 interventions. Due to variations in unit prices across villages and seasons, specifying labor days and material quantities is more transferable than providing currency-based cost estimates.
4.4. Limitations and Future Directions
This study isolates the role of spatial configuration using three representative prototypes within a simulation framework that assumes uniform materials, excludes internal heat gains, and applies long-term meteorological averages. Field monitoring was conducted under closed-opening conditions, which enhanced comparability but excluded behavioral feedback and Thermal Sensation Votes. Parametric analysis focused on window opening rates and room width–depth ratios, while other variables—such as shading geometry, façade porosity, and settlement-scale spacing—were not systematically examined. These choices limit statistical generalization and may understate household-level variability. In addition, village-scale microclimate uniformity was treated as an approximation; confirming this with settlement-scale computational fluid dynamics (CFDs) and short on-site transects would improve precision.
Future research should expand the sample across multiple villages and seasons and include heat-wave periods. We will test mixed-mode operation with controlled opening schedules and minimal uniform internal loads. Integrating subjective comfort votes and time-use diaries will help link physical metrics with perceived comfort. We will validate and calibrate the indicative ranges with targeted monitoring, and combine energy simulation with CFD airflow modeling, together with sensitivity and uncertainty analyses, to assess robustness under variable climates. Prototype-based interventions should also be evaluated through on-site trials with economic and life cycle assessments, with attention to local construction skills and maintenance. Finally, settlement-scale factors, including orientation, spacing, and vegetation, merit further study to quantify upscaling effects from dwelling to neighborhood.
5. Conclusions
This study addresses the critical gap of insufficient spatial and thermal evidence for rural housing in transitional climates and offers a low-cost spatial solution—particularly valuable in contexts where mechanical or envelope retrofits are often unfeasible. By standardizing envelope materials and construction details, the study quantifies how spatial configuration shapes summer thermal comfort, confirming that spatial geometry and organization are decisive factors influencing the thermal performance of rural dwellings. Across the three Guanzhong prototypes, rooms connected to courtyards consistently exhibited significantly lower PMV values than deeper enclosed rooms, while upper floors benefited from enhanced ventilation, leading to improved comfort. Parametric analyses further identified design-sensitive thresholds: window opening ratios of 0.2–0.5 improved comfort only when cross-ventilation paths were established, and room width-to-depth ratios exceeding 1:2 resulted in significant thermal discomfort penalties. Field measurements reproduced the simulated thermal distribution patterns, verifying the reliability of these spatial rules and aligning with international evidence from Catamarca (Argentina), Campinas (Brazil), and Kyoto (Japan).
Based on these findings, the results are translated into low-cost, practical guidance for rural self-built construction. High-occupancy spaces (e.g., bedrooms, living rooms) should be allocated to thermally favorable zones, with priority placement near courtyards or on upper floors. Targeted measures can remedy thermal weaknesses in individual rooms, including supplementary ventilation openings on shaded façades, external shading devices, and small semi-outdoor buffers (e.g., galleries, sunrooms). For circulation spaces, lightweight partitions—such as sliding panels, movable furniture, or thin walls—can stabilize thermal conditions while preserving airflow. These strategies enhance summer comfort without requiring major structural reconstruction and are compatible with local construction skills and household budgets.
The findings also support decisions across the building process in concrete ways. In programming, the three spatial prototypes and their thermal rankings help classify existing stocks and identify priority areas with overheating risk. In design, apply the reported thresholds by aiming for a window opening rate around 0.3 to 0.4 when a cross-ventilation path can be formed and by keeping room width to depth ratios no more than 1: 2. In construction, preserve effective openings and simple transitional spaces so that airflow is maintained with local envelope practice. In redevelopment, use low-cost actions such as relocating long occupancy rooms toward courtyard zones or adding a north side ventilation path to deep rooms. In everyday management, households can use upper floor spaces during summer, which show an average PMV reduction of about 0.08, and follow simple window schedules with basic checks of operative temperature and relative humidity. The guidance is linked to implementation through three bands defined by labor days and material quantities. C0 covers no cost actions such as functional reassignment and window schedules. C1 covers low-cost actions such as south side shading or a louvered ventilation opening. C2 covers moderate light construction such as a short gallery or compact sunspace. These bands support household decisions and village programs by prioritizing low-cost actions first and by matching local skills and tools. Currency costs are context dependent, so labor and material indicators are provided for transferability.
Several limitations of this study should be noted. Field monitoring was conducted with windows closed and did not include the collection of Thermal Sensation Votes (TSVs); additionally, the sample size of monitored dwellings was limited—though this is supplemented by extensive surveys covering over 30 villages and nearly 100 mapped households. Future research should expand monitoring to cover multiple seasons and integrate occupant feedback. Integrating energy simulations with airflow modeling will refine design guidance for cross-ventilation at the room, dwelling, and settlement scales. Further, cost-benefit analyses and participatory co-design with residents will enhance the practical applicability of the findings.
Overall, this study offers a spatially rooted approach to mitigating summer overheating in transitional climates like the Guanzhong region. It also helps constrain energy demand and provides insights for rural housing retrofit programs in comparable subtropical regions.
Author Contributions
Conceptualization, X.X.; methodology, X.X.; software, X.X.; validation, X.X. and X.L.; formal analysis, X.L.; investigation, X.X. and X.L.; resources, Y.T.; data curation, X.X.; writing—original draft preparation, X.X.; writing—review and editing, X.X. and X.L.; visualization, X.X. and X.L.; supervision, Y.T.; project administration, Y.T.; funding acquisition, Y.T. All authors have read and agreed to the published version of the manuscript.
Funding
This research was funded by National Natural Science Foundation of China (Grant number: 52208031). The author would also want to thank all the villagers who participated in the investigation.
Data Availability Statement
Data will be made available on request.
Conflicts of Interest
The authors declare no conflicts of interest.
Glossary
| No. | Term | Definition |
| 1 | Air Temperature (Tair) | The temperature of indoor air in °C, excluding radiant effects; a key input for PMV calculation. |
| 2 | Computational fluid dynamics (CFD) | Numerical method to analyze airflow and temperature fields. |
| 3 | Cross-Ventilation | Airflow driven through a space using openings on different facades. |
| 4 | Deep Continuation Type | Prototype with rooms arranged in a continuous sequence along depth. |
| 5 | Operative temperature (Top) | A single metric combining air temperature and mean radiant temperature (°C). |
| 6 | Predicted Mean Vote (PMV) | Model-based thermal comfort index predicting average thermal sensation from environmental and personal parameters |
| 7 | Progressive Combined Type | Prototype with richer block composition and added rooms, often on upper floors. |
| 8 | Relative humidity (RH) | Ratio of actual to saturated water vapor at the same temperature, in percent. |
| 9 | Spatial configuration | The arrangement of form, plan, openings, and adjacency that governs airflow, solar exposure, and heat storage. |
| 10 | Thermal Sensation Votes (TSV) | Subjective ratings reported by occupants of their actual thermal sensation |
| 11 | Traditional Courtyard Type | Prototype with a complete courtyard system and strong courtyard–room linkage. |
| 12 | U value | Overall heat transfer coefficient of a building element, W/(m2·K); lower means better insulation. |
| 13 | Width-depth ratio | Room width divided by room depth; smaller values indicate a more elongated room. |
| 14 | Window opening rate | Openable window area divided by a reference wall or room envelope area; studied in the range 0.2 to 0.5. |
References
- Guo, Y.-Y. Revisiting the building energy consumption in China: Insights from a large-scale national survey. Energy Sustain. Dev. 2022, 68, 76–93. [Google Scholar] [CrossRef]
- Davis, R.E.; Hondula, D.M.; Patel, A.P. Temperature Observation Time and Type Influence Estimates of Heat-Related Mortality in Seven US Cities. Environ. Health Perspect. 2016, 124, 795–804. [Google Scholar] [CrossRef] [PubMed]
- Jiang, S.; Wei, Z. Urbanization exacerbated the rapid growth of summer cooling demands in China from 1980 to 2023. Sustain. Cities Soc. 2024, 106, 105382. [Google Scholar] [CrossRef]
- Lenton, T.M.; Xu, C.; Abrams, J.F.; Ghadiali, A.; Loriani, S.; Sakschewski, B.; Zimm, C.; Ebi, K.L.; Dunn, R.R.; Svenning, J.-C.; et al. Quantifying the human cost of global warming. Nat. Sustain. 2023, 6, 1237–1247. [Google Scholar] [CrossRef]
- U.S. Energy Information Administration. Residential Energy Consumption Survey (RECS). Available online: https://www.eia.gov/consumption/residential/ (accessed on 8 November 2022).
- Lai, Y.; Zhang, Z.; Wei, F.; Zhang, L. Comparative analysis on energy consumption of typical residence in rural areas of Northern China. Trans. Chin. Soc. Agric. Eng. 2011, 27, 12–16. [Google Scholar]
- Zhang, Z.; Zhou, Y.; Zhao, N.; Li, H.; Tohniyaz, B.; Mperejekumana, P.; Hong, Q.; Wu, R.; Li, G.; Sultan, M.; et al. Clean heating during winter season in Northern China: A review. Renew. Sustain. Energy Rev. 2021, 149, 111339. [Google Scholar] [CrossRef]
- Liu, H.; Zhu, Y. Experiences and Enlightenment in Energy-Saving of Newly-Built House from Developed Countries. In Proceedings of the International Conference on Structures and Building Materials (ICSBM 2013), Guiyang, China, 9–10 May 2013; pp. 2129–2134. [Google Scholar]
- Kowaltowski, D.C.K.; Labaki, L.C.; Pina, S.A.M.G.; Ruschel, R.C.; da Silva, V.G.; Alves, S.A. Verandas, Ventilation and Vegetation Important Thermal Comfort Elements in Self-Built Houses in Brazil. Available online: https://www.academia.edu/download/7307802/vvvKowaltowski_design_for_housing.pdf (accessed on 8 November 2022).
- Peng, C.; Yan, D.; Wu, R.; Wang, C.; Zhou, X.; Jiang, Y. Quantitative description and simulation of human behavior in residential buildings. Build. Simul. 2012, 5, 85–94. [Google Scholar] [CrossRef]
- Hu, S.; Yan, D.; Dong, B.; Fu, J. Exploring key factors impacting cooling usage patterns of Chinese urban household based on a large-scale questionnaire survey. Energy Build. 2020, 214, 109885. [Google Scholar] [CrossRef]
- Muhaisen, A.S. Shading simulation of the courtyard form in different climatic regions. Build. Environ. 2006, 41, 1731–1741. [Google Scholar] [CrossRef]
- Hashemi, F. Adapting Vernacular Strategies for the Design of an Energy Efficient Residential Building in a Hot and Arid Climate: City of Yazd, Iran; Iowa State University: Ames, IA, USA, 2018. [Google Scholar]
- Chandel, S.S.; Sharma, V.; Marwah, B.M. Review of energy efficient features in vernacular architecture for improving indoor thermal comfort conditions. Renew. Sustain. Energy Rev. 2016, 65, 459–477. [Google Scholar] [CrossRef]
- Shiyuan, Q. Development and Utilization of New Energy in China. Energy Explor. Exploit. 1990, 8, 278–283. [Google Scholar] [CrossRef]
- Kahn, M. The Shotgun House: An Architecture of Intimacy and Resistance; University of Colorado at Boulder: Boulder, CO, USA, 2007. [Google Scholar]
- Nardi, I.; Lucchi, E.; de Rubeis, T.; Ambrosini, D. Quantification of heat energy losses through the building envelope: A state-of-the-art analysis with critical and comprehensive review on infrared thermography. Build. Environ. 2018, 146, 190–205. [Google Scholar] [CrossRef]
- Homod, R.Z.; Almusaed, A.; Almssad, A.; Jaafar, M.K.; Goodarzi, M.; Sahari, K.S.M. Effect of different building envelope materials on thermal comfort and air-conditioning energy savings: A case study in Basra city, Iraq. J. Energy Storage 2021, 34, 101975. [Google Scholar] [CrossRef]
- Liu, H.; Zhang, Z.; Ma, X.; Lu, W.; Li, D.; Kojima, S. Optimization Analysis of the Residential Window-to-Wall Ratio Based on Numerical Calculation of Energy Consumption in the Hot-Summer and Cold-Winter Zone of China. Sustainability 2021, 13, 6138. [Google Scholar] [CrossRef]
- Zhong, W.; Xiao, W.; Zhang, T. Numerical Investigations on Natural Ventilation in Atria of China?s Southern Yangtze Vernacular Dwellings. Sustain. Cities Soc. 2023, 89, 104341. [Google Scholar] [CrossRef]
- Jin, L.; Meng, Q.; Zhao, L.; Zhang, Y.; Chen, L. Indoor Environment and Thermal Comfort in Rural Houses in East Guangdong of China. J. Civ. Archit. Environ. Eng. 2013, 35, 105–112. [Google Scholar]
- Liu, H.; Wu, Y.; Li, B.; Cheng, Y.; Yao, R. Seasonal variation of thermal sensations in residential buildings in the Hot Summer and Cold Winter zone of China. Energy Build. 2017, 140, 9–18. [Google Scholar] [CrossRef]
- Zhu, L.; Wang, B.; Sun, Y. Multi-objective optimization for energy consumption, daylighting and thermal comfort performance of rural tourism buildings in north China. Build. Environ. 2020, 176, 106841. [Google Scholar] [CrossRef]
- Zhang, J.; Zhang, Y.; Wang, W. Study on Indoor Thermal Environment and Sunshade of Energy-saving Housing for Farmers and Herdsmen in Summer in Eastern Inner Mongolia. Build. Sci. 2020, 36, 98–104, 113. [Google Scholar]
- Liu, J.; Liu, J.; Liu, Y. Study on ecological values of Chinese traditional cave dwellings on loess plateau. In Proceedings of the 2011 International Conference on Remote Sensing, Environment and Transportation Engineering, Nanjing, China, 24–26 June 2011; pp. 8530–8532. [Google Scholar]
- Zhu, X.; Liu, J.; Yang, L.; Hu, R. Energy performance of a new Yaodong dwelling, in the Loess Plateau of China. Energy Build. 2014, 70, 159–166. [Google Scholar] [CrossRef]
- Yu, W.; Li, B.; Yao, R.; Wang, D.; Li, K. A study of thermal comfort in residential buildings on the Tibetan Plateau, China. Build. Environ. 2017, 119, 71–86. [Google Scholar] [CrossRef]
- Hwang, R.-L.; Shu, S.-Y. Building envelope regulations on thermal comfort in glass facade buildings and energy-saving potential for PMV-based comfort control. Build. Environ. 2011, 46, 824–834. [Google Scholar] [CrossRef]
- Xu, C.; Li, S.; Zhang, X.; Shao, S. Thermal comfort and thermal adaptive behaviours in traditional dwellings: A case study in Nanjing, China. Build. Environ. 2018, 142, 153–170. [Google Scholar] [CrossRef]
- Mahlabani, Y.G.; Shahsavari, F.; Alamouti, Z.M. Eco-village, amodel of sustainable architecture. J. Fundam. Appl. Sci. 2016, 8, 1835–1847. [Google Scholar]
- Sarkar, A. Study of climate responsive passive design features in traditional hill architecture of Khyah village in Hamirpur, Himachal Pradesh, India for indoor thermal comfort. J. Inst. Eng. Ser. A 2013, 94, 59–72. [Google Scholar] [CrossRef]
- Al-Sallal, K.A.; Rahmani, M. Vernacular architecture in the MENA region: Review of bioclimatic strategies and analysis of case studies. In Sustainable Vernacular Architecture: How the Past Can Enrich the Future; Springer: Berlin/Heidelberg, Germany, 2019; pp. 23–53. [Google Scholar]
- Hosham, A.F.; Kubota, T. Effects of Building Microclimate on the Thermal Environment of Traditional Japanese Houses during Hot-Humid Summer. Buildings 2019, 9, 22. [Google Scholar] [CrossRef]
- Asumadu-Sakyi, A.B.; Barnett, A.G.; Thai, P.; Jayaratne, E.R.; Miller, W.; Thompson, M.H.; Roghani, R.; Morawska, L. The relationship between indoor and outdoor temperature in warm and cool seasons in houses in Brisbane, Australia. Energy Build. 2019, 191, 127–142. [Google Scholar] [CrossRef]
- Dong, L.; Shang, J.; Ali, R.; Rehman, R.U. The coupling coordinated relationship between new-type urbanization, eco-environment and its driving mechanism: A case of Guanzhong, China. Front. Environ. Sci. 2021, 9, 638891. [Google Scholar] [CrossRef]
- Ma, F.; Wang, Z.; Sun, Q.; Yuen, K.F.; Zhang, Y.; Xue, H.; Zhao, S. Spatial-Temporal Evolution of Urban Resilience and Its Influencing Factors: Evidence from the Guanzhong Plain Urban Agglomeration. Sustainability 2020, 12, 2593. [Google Scholar] [CrossRef]
- Han, L.; Zhao, J.; Gao, Y.; Gu, Z.; Xin, K.; Zhang, J. Spatial distribution characteristics of PM2.5 and PM10 in Xi’an City predicted by land use regression models. Sustain. Cities Soc. 2020, 61, 102329. [Google Scholar] [CrossRef]
- Jiang, Y.; Guo, N.; Ma, Y.; Wu, R.; Zhang, X.; Bai, F. Spatio-temporal variation of extreme temperature in Shaanxi Province during 1960–2016. J. Water Resour. Water Eng. 2021, 32, 124–131. [Google Scholar]
- Wang, Q.; Zhao, J.; Wu, X. Study on Vernacular Architecture in GuanZhong Region in Complex Ecological Adaptation System. J. Simul. 2019, 7, 1. [Google Scholar]
- ISO 7730:2005; Ergonomics of the Thermal Environment-Analytical Determination and Interpretation of Thermal Comfort Using Calculation of the PMV and PPD Indices and Local Thermal Comfort Criteria. International Organization for Standardization: Geneva, Switzerland, 2005.
- Krishan, A. Climate Responsive Architecture: A Design Handbook for Energy Efficient Buildings; Tata McGraw-Hill Publishing Company: Columbus, OH, USA, 2001. [Google Scholar]
- Liu, Y.; Ning, Q. Triple understanding of Guanzhong Narrow Courtyard and its house space. J. Hous. Built Environ. 2021, 36, 521–537. [Google Scholar] [CrossRef]
- Hernandez, F.F.; Gazquez, L.A.M.; Lopez, J.M.C. A Comparison of Traditional and Contemporary Social Houses in Catarmarca (Argentina). Comfort Conditions and Life Cycle Assessment. Sustain. Cities Soc. 2022, 82, 103891. [Google Scholar] [CrossRef]
- Gautam, B.; Rijal, H.B.; Imagawa, H.; Kayo, G.; Shukuya, M. Investigation on adaptive thermal comfort considering the thermal history of local and migrant peoples living in sub-tropical climate of Nepal. Build. Environ. 2020, 185, 107237. [Google Scholar] [CrossRef]
- Kowaltowski, D.C.; da Rosa Watrin, V.; Pina, S.A.M.G. Tradition and Thermal Performance: An Investigation of New-Vernacular Dwellings in Campinas, Brazil. Tradit. Dwell. Settl. Rev. 2007, 18, 79–92. [Google Scholar]
- Iba, C.; Hokoi, S. Traditional Town Houses in Kyoto, Japan: Present and Future. Energies 2022, 15, 1913. [Google Scholar] [CrossRef]
- Broday, E.E.; Moreto, J.A.; de Paula Xavier, A.A.; de Oliveira, R. The approximation between thermal sensation votes (TSV) and predicted mean vote (PMV): A comparative analysis. Int. J. Ind. Ergon. 2019, 69, 1–8. [Google Scholar] [CrossRef]
Disclaimer/Publisher’s Note: The statements, opinions and data contained in all publications are solely those of the individual author(s) and contributor(s) and not of MDPI and/or the editor(s). MDPI and/or the editor(s) disclaim responsibility for any injury to people or property resulting from any ideas, methods, instructions or products referred to in the content. |
© 2025 by the authors. Licensee MDPI, Basel, Switzerland. This article is an open access article distributed under the terms and conditions of the Creative Commons Attribution (CC BY) license (https://creativecommons.org/licenses/by/4.0/).













































