Next Article in Journal
Energy and Exergy Enhancement Study on PV Systems with Phase Change Material
Next Article in Special Issue
Single Score Environmental Performances of Roof Coverings
Previous Article in Journal
The Nexus between Higher Education and Unemployment—Evidence from Romania
Previous Article in Special Issue
A Simplified Method for BIPV Retrofitting of Emirati Public Housing with Preserved Architectural Identity: A Pilot Study
 
 
Font Type:
Arial Georgia Verdana
Font Size:
Aa Aa Aa
Line Spacing:
Column Width:
Background:
Article

Analysis of Design Agents for Mediation of Gender Inclusivity in Domestic Space: A Case Study of Chettinad Vernacular Architecture

by
Ramalakshmi Lakshmanan
1,*,
Madhumathi Anbu
2 and
Masa Noguchi
3
1
VIT School of Design (V-SIGN), Vellore Institute of Technology, Vellore 632014, India
2
School of Architecture(V-SPARC), Vellore Institute of Technology, Vellore 632014, India
3
ZEMCH EXD Lab, Faculty of Architecture, Building and Planning, The University of Melbourne, Parkville, VIC 3010, Australia
*
Author to whom correspondence should be addressed.
Sustainability 2023, 15(4), 3643; https://doi.org/10.3390/su15043643
Submission received: 29 January 2023 / Revised: 10 February 2023 / Accepted: 12 February 2023 / Published: 16 February 2023
(This article belongs to the Collection ZEMCH International Research Series)

Abstract

Architects often emphasize on form and spatial layout in domestic architecture. Yet, functionality of form is evaluated by the experience of its users. This research wishes to address a central problem often ignored in domestic architecture—the connection linking gender, experience, and space. The study aims to analyze design agents that aid in mediating gender inclusivity in domestic space. This research delves into the vernacular architecture of Chettinad, which has been widely deliberated and celebrated for its climate responsiveness, materiality, sustainability, etc. Considering the rationale of cultural transition and SDG5 in promoting gender equality, the study seeks to answer the following research question: What are the agents that could help to mediate gender inclusivity in designing domestic space in India? Using snowball sampling, 25 in-depth interviews with women users and participant observation were carried out in 12 villages of the Chettinad region. Findings identified the social actions as design agents and recognized space as referential to experience. Furthermore, the article argues that this opulent tradition must be preserved, and its meaning must be altered such that the indigenous lessons may be translated to other spaces it inspires, in such a way that it empowers the people living in it. Limited to a conceptual study, this research accommodated a small sample of women respondents. The article presents insights for architects who must consider gender inclusivity as a central factor in their design.

1. Introduction

The Naatukottai Nagarathars or simply Nagarathars from Tamil Nadu constitute a mercantile community. Their story is that of migration and settlement [1]. The name “Naatukottai Nagarathar” indicates that the community lived in large castles (Figure 1) and was familiar with town planning [2,3]. The Chettiars are historically known for their rich cultural practices, sumptuous cuisine, ethical business practices, organized banking, exquisite diamond jewelry, unmatched philanthropy, and large palatial mansions. Members of this patrilineal community have a life-long association with one of the nine clan temples by birth [4]. The Chettiar men referred to as “Chettiars” traveled across the globe for trading. During British colonial rule, Chettiars were able to set up successful money-lending businesses in Southeast Asia [5]. The success of Nagarathars or Chettiars is attributed to two aspects: their ability to adapt to the changing institutional framework of the colonial government and their ability to act as middlemen between the colonial government and the colonial society at large [6]. The fortune they made through overseas trading is reflected in their philanthropic deeds and the palatial houses they built in their native villages, a sign of the high degree of affinity and belongingness the Chettiars share with their roots.
One of the most commonly studied vernacular architectures is that of the palatial houses in Chettinad. These houses hold a central value in Indian architectural studies for several reasons such as climate responsiveness, materiality, and sustainability. In compliance with D.K. Ching’s philosophy of “form follows function” [7], Chettinad vernacular architecture solves functional purposes of guiding everyday life. Ching presented basic ways in which a building may be organized, and it is noteworthy that Chettinad architecture complies with the same including hierarchal classification of spaces and segregation for privacy while serving a multitude of functions. Human psychology tends to attribute human traits and emotions to other entities as in the case of attributing the dwelling design to human nature. This is a common practice in the ancient Indian housing system which dictates the physical layout of the house [8]. This is no exception for Chettinad vernacular architecture.

2. Chettinad Settlement Planning and Architecture

The Chettiars acquired vast areas of land from the Brahmins in this region through inam settlement [9]. The British conferred the title of Zamindar on Chettiars who acquired large areas of land. For example, the Zamindar of Devakottai was conferred by the British on AL.AR. Ramasami Chettiar. He acquired 24 villages around Devakottai containing 40,000 acres of wetland and 60,000 acres of dry land. The AL.AR house owns the Lakshmi Vilas House and Swarnavalli Bungalow, both of which have signages of a zamin family. An arch outside the Swarnavalli bungalow reads AL.AR. House, the Zamin of Devakottai.
Early Chettinad houses have typical Tamil architecture similar to that of the agricultural communities which included a single courtyard and smaller outer plinths. The distinct architecture of Chettinad was developed after 1870 owing to flourishing trade and exposure to architectural influence from Southeast Asia owing to the community’s commercial expansion in this region. As the overseas earnings increased, the lifestyle of Chettiars expanded in the native village. Thus, the house plan expanded with multiple courtyards, exclusive spaces for women, and service courtyards for servants. The presence of multiple courtyards is a distinct feature of Chettinad architecture. The plan of the house was based on the community’s experiences and indigenous knowledge system.
The Chettinad housing settlements have several exceptional physical qualities such as environmentally responsible land-use planning, a water system, and the development of palatial architecture. Exceptional physical characteristics of the Chettinad settlements combine with the thousands of opulent homes to form a distinctive architectural ensemble. Owing to the far and wide travel of the Chettiars, this domestic architecture portrays a distinctive cultural exchange of cultures with influences from all over the world blended with vibrant Tamil traditions. The uniqueness of Chettinad is embodied in this blend. The settlements and the architecture are directly related to the Chettiar community’s rich living legacy [10].
Chettinad villages were constructed using precise and sophisticated rules of urban planning such as a grid iron pattern, traditional water management principles, technical innovation, and artistic creativity. The grid iron pattern also has a sociocultural significance with respect to the manifestation of cultural components such as clan, caste, kinship, and joint family in the spatial arrangement of the houses [11]. The settlements are organized following north–south axes, along which are created the longitudinal east–west-orientated plots [12]. The Chettiars took climate into consideration when planning the settlements, designing the magnificent homes, and selecting the materials to employ because they settled in a hot, semiarid area. It is noteworthy that the layout has been developed on the basis of traditional Tamil techniques of water management.
Following this layout, the houses were constructed around a central east–west courtyard that offers air, shade, light, and comfort (Figure 2). Each home is self-contained and identical. The houses were all conventional and built in accordance with Vastu shastra, an ancient form of Indian architecture [11]. The building materials were employed by taking climatic conditions into account. Such materials include thick brick walls, lime plasters, roofing with layers of terracotta tiles, and floors made of marble and stone. Sloping roofs enable rainwater harvest during the monsoon season. The harvested rainwater is used for domestic purposes and to fill the wells. The excess water harvested drains into the village’s ponds and tanks that are shared by everyone [13].
Chettinad houses often have two stories. The lower story has characteristics of Tamil architecture such as thinnai (plinth) and muttram (courtyard). The upper story exhibits British colonial influence and has western features such as colonnades, cornices, balustrades, stained glass, and Gothic windows. The upper story of the house has more ornamentation than the lower story. Thinnai on either side of the entrance door is a raised street veranda used for social events. The entrance leads to either a spacious hall or a central courtyard. The front of the house is collectively called the mugappu. The intermediate part of the house is called the valavu, which comprises the naduvasal/muttram or central courtyard and rettaiarai or double rooms that surround the central courtyard. The double room has a single door connecting an outer room and an inner room. The central courtyard is enveloped by inner plinths called pettagasalais on all four corners used for the purpose of socializing during ceremonies. The primary courtyard is regarded as the heart of the home where rituals are performed. Every room in the house was designed to accommodate both daily activities and occasionally hosting rituals (Figure 3).
The innermost part of the house comprises of the Irandamkattu (women’s space), ukraanam (pantry), and adupadi (kitchen). In the spatial arrangement, there were a number of courtyards, and each courtyard and its surrounding rooms had a different purpose. Women were given more independence and a sense of empowerment in the second and third courtyards since they were more segregated from the main function of the house. It is significant to notice the size and function of the kitchen in a Chettiar home where numerous cooks were employed during the celebrations. There are numerous rooms in the upper story of the house, widely used as bedrooms, storage spaces, and display spaces.
In addition to the lifecycle traditions, the temple and village festivals are part of the Chettiar culture, forming a large set of rituals throughout the Tamil calendar year. They inventory all rituals throughout one’s lifecycle [14]. These rituals are followed to this day by the community in the ancestral homes, preserving both built and cultural heritage.

3. Domestic Space and Sociocultural Norms

The dawn of civilization was also the dawn of everyday life organized in domesticated spaces. The idea of a home also holds political significance of oneself tied to domesticity, privacy, and intimacy [15] identified the domestic space as a locale that offers a multitude of meanings encompassing polarized dichotomies such as belonging and alienation, intimacy and violence, and desire and fear that sum up emotions, relationships, meanings, and experiences. In Chettinad ancestral homes, each house is meant for a family or a group of families who share the space for everyday life and ceremonial purposes. Political, cultural, religious, and social traditions affect the way domestic space is designed and, thus, the familial practices [8,16,17,18]. Therefore, the people and objects placed in these spaces establish certain social order with social, cultural, and historical implications. Cultural norms dictate spatial use and consequently condition behavior. Physical design, building of the house, and segregation of domestic space in Chettinad ancestral homes are governed by such norms. Space is “an integral and changing part of daily life, intimately bound in social and personal rituals and activities”[19]. The Chettiar community’s lifecycle rites are strongly related to the domestic architecture. The mansions were designed to serve a variety of purposes, rituals, and family festivities throughout a person’s life, from conception to death (Figure 4).
The Chettiar culture includes the lifecycle rituals, as well as temple and village festivals, which together make up a substantial body of rituals that take place throughout the Tamil calendar year. The Chettiars’ material background, spiritual history, culture, tradition, and way of life are intertwined in the spatial planning of their houses which are not duly considered in present day modern house planning.
The occupation of the inhabitants, as well as their aspirations, cultural influences, and climate considerations, all played a role in the house’s planning approach. The areas that were built and their functions were based on the people’s occupations and preferences. Due to the nature of the business, visitors from abroad and supporters frequently dropped by. The residence was designed with the intention of housing the visitors as well. The ladies needed a home that emphasized security and enabled them to be independent because the men were frequently out on business. As a matter of protection and privacy, planning had to be introverted.
It is important to understand the conditions that mediate practice in everyday life. Gender-based spatial segregation in the household helps to mark and maintain hierarchy. Allocation of space communicates relative power and status of individuals in these houses. In Chettiar vernacular architecture, there exists simultaneity of independence and submission that women experience and exhibit in the segregated spaces. As stated above, the spatial planning guaranteed protection and privacy for women. On the other hand, women experienced a sense of empowerment and exhibited managerial excellence of the household from these spaces exclusively designated for them. As women rose up in their domestic role to that of a mother-in-law and grandmother, “they became a force to be reckoned with” [21]. Chettiar women had the ability and resilience to seize power in the space allocated to them [22]. The Chettiar women were trained in handicrafts and food processing techniques which could be used during scarce seasons. All these activities were performed in the second courtyard.
These houses are artifacts of Chettinad that stand testimony to the culture, business practices, materiality, architecture, etc. The houses encompass immeasurable indigenous knowledge of practices worth learning and adapting. While gendered use of space hampers women’s progress, cultural transition has necessitated a liberal approach to spatial use. In view of SDG5 that focuses on gender equality, de-gendering and appropriation of domestic space is vital. What are the agents that could help to mediate gender inclusivity in designing domestic space in India? In an effort to answer this research question, this qualitative study aims to analyze design agents that aid in mediating gender inclusivity in domestic space by delving into Chettinad vernacular architecture.
Although cultural norms dictate spatial practices, the performance of which is guided by such celebrated vernacular architecture, the lived experience of users or inhabitants of the space is central to how the space is used [20,23]. Chettinad ancestral homes also guided a disciplined lifestyle for all members of the family. The actions carried out in the physical space translate to the social space. These actions are identified as social actions owing to the sociation in space. Over the years, the influence of external factors has had a positive effect on the traditional social actions. Thus, rigid patriarchal practices and masculine hegemony have become liberal owing to external factors. The lived experience of users of the space is shaped by the social actions they perform in the domestic space. These social actions are identified as culture, practice, power, discipline, and discourse [24]. Each of these social actions is interrelated and operates as overlapping factors that help to negotiate the identity and shape experience of users.
Culture, practice, power, discipline, and discourse are agents that interplay in the domestic space. Guided by customs and ideas, culture refers to the social behavior of users. Culture also includes norms that govern everyday practices and rituals based on the prevailing ideology. Practice refers to the routinization of culturally acknowledged practices. Power defines hierarchy and emplacement in the domestic space. Gender-based spatial allocation and gendered roles are also a matter of power. While power determines agency, discipline regulates agency. Discourses are the result of interaction through sociation of practice. On the basis of culture, experience in the domestic space is shaped by routinization of practice, permitted by power dynamics, and regulated by disciplinary conditions and knowledge transfer through shared discourses. Therefore, this study uses culture, practice, power, discipline, and discourse as agents for analyzing a case study of Chettinad vernacular architecture.

4. Research Methods

This qualitative study uses in-depth interviews with women users, participant observation, and secondary sources to explore the social actions performed in space.
Interviews are among the most popular forms of qualitative research methods, where the researchers and respondents engage in a social interaction in which the respondents verbalize the meanings of their lived experiences. The means and outcome for analysis of interviews are represented by language, which helps to assess the respondents’ opinion and worldview pertaining to the cultural phenomena under study [25,26]. In-depth interviews help to establish the ontological, epistemological, and axiological dimension of the study. Language plays a role as a tool that helps in understanding the meanings of ideologies that are predominant and contested [27,28].
The sample units for interviews were defined using several criteria. The respondents had to be Chettiar women who belonged to a family that owned or held a share in an ancestral home. The residential status of women was classified as living in the ancestral home, living in the ancestral town but outside the ancestral home, living in other towns and cities in India, and living abroad. It was important to identify place of upbringing (ancestral town or other towns and cities in India/abroad) of respondents to understand different perceptions based on exposure to other cultures. Socioeconomic profile and marital status were also important in identifying samples for a true representation. Inquiring into the personal lived experience of women was possible using snowball sampling. Hence, the researchers interviewed 25 women users of Chettinad ancestral homes. The limited sample size was appropriate as it adequately served to answer the research question [29]. On identifying respondents, in-depth interviews were conducted to document experiences of Chettiar women. A semi-structured questionnaire was devised to document some basic demographic data such as age, educational qualification, marital status, place of upbringing, and place of residence. These questions were important to understand the intersectionality of these factors. Further probing in a dialogical manner and participant observation were carried out to observe spatial mobility, adherence to norms and spatial practices, negotiating identity, their subjectivity, participation in producing discourses, and other everyday practices. In total, 26.44 h of interviews were recorded and transcribed.
Participant observation permits in-depth investigation of social behavior within a specific context. A total of 40 research visits to the field spanning 1–7 days each were carried out periodically between July 2016 and September 2022.
Detailed explanations and vivid descriptions are vital when establishing what people say or do are a form of analysis called as “thick description” [30]. Documentation is a critical aspect which must be conducted in an explicit and intersubjective manner. During observation, at this juncture, it is important to focus on what is observed and how it is being observed in the field.

5. Results

The findings from the interviews and field work are presented below.
Chettinad houses were built between 1870 to 1940 during the British colonial era. These houses were built in a phased-out manner because finance was sourced from overseas trading, and it took 3–7 years to complete construction. The innermost part of the house was built first, which included the kitchen, pantry, and utilitarian area, which was essential for everyday life; other parts of the house were gradually developed, followed by ornamentation using material influences from other cultures. The period of construction of the houses was passed on through oral traditions. Although Chettiars are known for maintaining chittai, there was no access to such written records as these have been lost over the years. Some of the respondents were able to recall the period or age of the houses. A house documented in Palathur was one of the oldest, said to be 170 years old. A house in Devakottai was built between 1925 and 1928.
The profile of the respondents is presented in Table A1 (Appendix A). The age of the women respondents spanned 25 to 85 years (Figure 5). The educational qualification of respondents ranged from middle school to postgraduate (Figure 6). Women respondents who were senior citizens were educated only up to middle school, except one respondent (R13). Women of this generation were not permitted to study after attaining puberty, and they were trained in house chores in view of early marriage to a suitable partner to protect the family honor. Women above 55 years of age, except one respondent (R6), had completed higher secondary school, and the practice of arranging an early marriage was common. Women respondents in the age group of 30–55 years pursued undergraduate and postgraduate degrees. After liberalization, privatization and globalization in India, many Chettiar women were educated and began choosing employment and entrepreneurship. Yet, it is surprising to note that the youngest respondent of this study (R24), who was 25 years old, had only completed only high school. It was found that migration and socialization opened up a plethora of opportunities for women in terms of education and employment (Figure 7).
The auspicious status that a woman may attain through marriage was viewed as the highest peak of womanhood, similar to other Indian cultures. Socio-spatial practices were more liberal for married women because of their marital status. Widows and unmarried women had limitations on this front. With changing times, there was also an increase in divorce and remarriages. Figure 8 illustrates the marital status of respondents. The study was conducted in 12 Chettinad villages, namely, Devakottai, Kanadukathan, Kottaiyur, Kothamangalam, Aravayal, Pudhuvayal, Midhalaipatti, Kandanur, Kadiyapatti, Aranmanai Siruvayal, Pallathur, and Karaikudi. Respondents belonged to nine of these villages (Figure 9). Place of residence and place of upbringing affect respondents’ socialisation and exposure to other cultures (Figure 10 and Figure 11).
Interviews were analysed to understand user satisfaction pertaining to design agents. (Figure 12). Keywords were identified by rereading the interview transcripts (Figure 13). Analysis of the voices of respondents and field notes led to the outcomes discussed in the next section.

6. Discussion

Chettinad domestic architecture has been conceived to guide and carry out spatial practices according to patriarchal norms and conventions. At the same time, this architecture is unique for giving women their own space. The space embraces the practice of vera vaithal through, in which married couple are given autonomy to function as a nuclear family within the joint family system. These conjugal units have autonomy with accountability and are also guided by the elders of the household. Women in these spaces enjoy autonomy and are equipped to live in a joint family system that focuses on the collective interest of the household. The women respondents interpreted their experiences positively as the community prioritized women’s privacy, protection, and other forms of security. The shreedhan or wedding gift is treated as women’s property, which gives them security after marriage. Such gifts serve as the fluid capital of the conjugal unit and is called aachimar panam. Women practiced parsimony through excessive care in using resources, be it money, food, water, or any other goods. These women had a native sense of frugality as they were dependent on the overseas earnings of their spouses ([22]). Optimal usage of resources was a practice to manage during times of scarcity. Factors such as migration, education, and employment helped women appropriate spaces and overcome these limitations.
All women respondents saw the purpose of irandamkattu in a positive light. They were satisfied with a segregated space that guaranteed them comfort and privacy. This space was also convenient for them to supervise the kitchen and pantry. Spatial segregation was clearly evident in terms of purpose and hierarchy. Senior respondents in the age group of 50 to 85 were able to accept the conventions of the mugappu. Several changes in social space opened possibilities of using the mugappu as a thoroughfare, yet the women did not socialize here. Respondents in the age group of 30–50 took pride in their heritage and the ancestral homes. They wanted to imbibe the best practices of this domestic space. They echoed their responsibility toward the preservation and conservation of these houses amidst economic constraints and kinship issues. These women also considered relocating to the ancestral home during their retirement years. Although the younger respondents valued the situated knowledge they learn through oral traditions, they detested any gossiping that was detrimental to the household. Older respondents acknowledged and normalized gossiping unlike the younger respondents. Respondents in the age group of 30–50 years did not approve of patriarchal forms of conditioning and believed that they would never treat their daughters or daughters-in-law in this way. These respondents acknowledged that the space was only referential, and that a change in mindset was essential to bring out inclusivity.

6.1. Culture

Culturally, Chettiars acknowledged the contributions of women, particularly for their managerial skills, and gave them utmost priority. Unlike other Indian women, Chettiar women efficiently managed the entire household in the absence of Chettiar men who were overseas for about 10 months in a year. The cultural dimensions of spatial use placed people and objects in order to create specific and overlapping hierarchies. Except for the collective outermost zone of the house, women had access to about 70% of the domestic space. When there is a change in how entities are reorganized, there is a change in the prevailing order which alters power relations in the ancestral space. Cultural aspects such as how women dress, eat, sleep, communicate, and access resources were all carried out in a certain way in the ancestral home. In addition to architecture, British colonial influence was evident in the artifacts and cutlery the women used.
Beyond everyday life, the rituals also designated and celebrated men as heroes for reasons such as being protectors of women, providers for women, and a source of regenerative power to produce progeny. This stems from historic incidences such as the mass suicide of Chettiar women ([9]) and the royal abduction of a Chettiar girl by a Pandya king ([6]). These incidences prioritized women’s protection as central to the Chettiar’s social organization. In olden days, restricting women’s access, particularly to knowledge, normalized and perpetuated masculine hegemony. The status quo was balanced in modern times when women were given access to knowledge. This unbiased access to knowledge was possible only after the 1990s due to migration, globalization, and exposure to other cultures. The auspicious status of women was equally important in informing the spatial practices of women and their participation in rituals. With modernization and social change, there was an increase in the acceptance of widows, who were given a better lifestyle. There was better if not complete inclusivity. In a community that was highly endogamous, there were instances of marrying outside the community and acceptance of the same.

6.2. Practice

Spatial and communication practices in everyday life are learned through observation and conditioning. The irandamkattu or the women’s zone in the ancestral home is viewed as the space that guarantees privacy for women and protects them from outside world. The irandamkattu continues to be the women-only zone. Women feel authoritative in this space. There is a stark difference in how women used the ancestral space when they lived there against how they used the space when for ceremonial purposes alone. As the younger generations migrated, traditional ways of life gradually disappeared. With the increase in migration and the limited number of people living in the ancestral home, the entire space was not utilized, with most parts of the house locked up when there was no use. In such cases, women used the space that that they occupied on a regular basis and did not follow the gendered practice of irandamkattu. Although the women used the mugappu as a thoroughfare unlike the yesteryear, they did not socialize in the mugappu.
The affinity that women who lived in the ancestral home had for it was much greater than that of women who visited the ancestral home occasionally. Women who lived abroad admired the ancestral home for its architecture and took pride in such an artifact but were not able to relate to the home with a sense of belonging. In terms of preserving a cultural artifact, there was awareness to preserve the home, but the question of who would take responsibility for this was a question. Moving back to the ancestral home and creating viable revenue models were seen as means to strengthen the affinity and preserve the ancestral home. Yet, practical problems persisted in moving back to the ancestral home because the generations outnumbered the capacity of the ancestral homes where there were multiple shareholders. There are two reasons behind the practice of isolation during menstruation. The first reason is to give due rest for menstruating women. The second is that menstruation is treated as one of the agents of pollution, and the house is associated with sanctity where ancestors are revered. Women who live(d) in the ancestral homes were able to accept the practice of isolation when compared to younger women who found the practice of isolation oppressive because of their socialization and change in lifestyle in other towns and cities. The design of modern houses in other towns and cities, fast-paced everyday life, and commitment toward education and employment did not accommodate for a period of rest or the practice of isolation.

6.3. Power

In everyday situations, Chettiar women constructed and negotiated their identity. Chettiar women adhered to social norms and adapted to contemporary situations. These women were proud about their abilities and contributions to any situation. They acknowledged that their role was indispensable and that they were the center of any activity. They garnered attention to their managerial skills, and they were sometimes even criticized sarcastically by men that they took away the limelight or did not give men a chance. Women acted as de facto managers of the business and the household estates in the absence of men. Women saw submission as a way of adjustment for achieving things. Women ascertained their agency in decisions and gave options. These women claimed that the men made the decisions, but it is the women who made it happen. Women who had better exposure to the outside world and better socialization had better agency than women who confined themselves to the traditional realm. Furthermore, older women in the household in the traditional realm commanded such an agency in household management. The entire household, irrespective of gender, would heed the word of the Periya Achi or the lead lady of the house, who was the most senior by age and domestic role in the valavaar veedu.
How women gained agency was subjective and was possible with changing times due to the changes that were happening in the social space. Undoing gender is critical to de-gendering of space. The change toward de-gendering has already begun. Division of labor is still patriarchal, while a change has begun in sharing the load. Given the patrilineal nature of family structures, the roles and responsibilities of family members are patriarchal. Moreover, the narrow-minded values faded in an era that demanded equal opportunities for women. Women were no longer put in a box. Chettiar women ascertained their presence in the space where there was activity, and they invariably ran the show. Coming to the Mugappu and socializing along with men, therefore, did not necessarily mean a sign of progress of women.

6.4. Discipline

The values and norms were handed down from generation to generation through oral traditions, as well as observation and conditioning. Women were conditioned regarding ideal nagarathar womanhood in Chettiar homes, which included behavior, interaction, and spatial use. They were conditioned that a certain behavior would bear consequences. Mobility in the ancestral home was also dictated by domestic role and hierarchy. Criticism between of daughter-in-law by mother-in-law is common in patriarchal cultures, and the Chettiars were no exception to this. Indirect criticism was a form reprimanding a woman for any actions considered inappropriate or unwarranted.
Interaction with the opposite sex was forbidden for girls who had come of age or were nearing puberty. Young girls were reprimanded if they played or interacted with the opposite gender. While this practice has become liberal now, mothers still condition daughters about limited interaction with the opposite sex. A daughter is seen as the flagbearer of the family honor, and parents would not want their daughter to get a bad name through gossip. Women also feared shaming by kith and kin in the form of carrying gossip tales. Young girls were often told that their ways would be gossiped about, which would affect their marital prospects. They were conditioned that such talks about them would bring shame to the family’s honor and reputation. A sense of fear was instilled, and this fear was a self-regulatory process that reminded women that they were responsible for the family name.
Women were conditioned to move in a restricted manner where men were seated, especially the mugappu. In the olden days, it was common to hear women say that they should move in a roundabout way because of the presence of men, even during functions. The changes that occurred in their lifestyles led to changes in their mobility practices, and women entering through the front door and moving through the mugappu was not seen as a violation; rather, it became a practice. Nevertheless, conditioning of women in terms of how they carried themselves and how they moved about was largely gendered despite increase in their exposure. While they would use the mugappu as a thoroughfare, it was still not common for women to be seated in the mugappu along with men, although they had access to most parts of the house. The women found themselves more comfortable in the valavu, rendaamkattu, or the ladies room. Even people who were peripherally associated with the household expected women to “behave” a certain way. The space supported a disciplined way of life in the household where the women knew their boundaries. They understood their private space where they could be free and comfortable vis-à-vis the discipline and decorum they had to follow in public spaces.

6.5. Discourse

Discourse refers to dialogue in the household. Respondents identified gossiping or grapevine communication as one of the main engagements of Chettiar women from time immemorial. All it took was for two or more women to meet or be together. Few occasions that were opportune moments for women to talk (or gossip, in other words) were temple visits, weddings and other social functions, local shopping, visits to a relative’s house, pursuing a hobby such as basket weaving, etc. This kind of talking was a form of stress relief for the women. The men were dependent on the Chettiar women for information about kith and kin. The women were seen as powerful for their domestic knowledge. Chettiar men were said to enjoy listening to the women in their household who carried these tales for entertainment value, and information given by the womenfolk often guided their decision making. While Chettiar women were known for such talks, Chettiar men also engaged in such communication. While the positive aspect of such discourse was acknowledged, respondents found that the negative aspects outweighed whatever little good such discourse could produce. The negative aspects were detrimental and spoke of a regressive nature. It was difficult to validate such information.
Common topics of discussion ranged from prospective alliances to conduct of weddings and other ceremonies, abroad visits, dowry and gift exchanges, financial ability of a certain person, jewelry, treatment of daughter-in-law, and character assassination of anybody they discussed.
Women continue to produce such discourses. With better exposure, social etiquette, and changing priorities in a fast-paced world, the importance that women give to such informal talk depended on the value the subject holds to them. Yet, women and men who were still within the traditional realms heeded the discourses literally.

7. Conclusions

This study was conducted with an aim to answer the following research question: What are the agents that could help to mediate gender inclusivity in designing domestic space in India? This study identified some key lessons elucidating why Chettinad vernacular architecture is celebrated as distinct and unique, apart from aspects such as sustainability, climate responsiveness, materiality, and magnificence. These lessons can be translated to the design inputs of domestic architecture to increase livability. The findings of the study led to some conclusions. Culture has become liberal owing to socialization and exposure to other cultures. Cultural norms form the basis or backbone of the other design agents; that is, culture governs practice, dictates power, conditions discipline, and directs discourse. Migration, globalization, and exposure to other cultures have helped to reorganize how people use space in the ancestral home. Women have also progressed as individuals owing to the same reason. Traditionally, women were ascribed to the domestic space. Now, women have transformed themselves individually as educated, enterprising, and empowered people. Women’s regimes of practice affect their spatiality and vice versa. The regimes of practice changed with time and changing needs. A radical restructuring of thought is required in de-gendering space in terms of power. When spaces are de-gendered and designated on the basis of purpose, women will be able exercise their agency in the domestic space. Restricted spaces are gradually transformed into permissible spaces with a change in mindset owing to socialization. In modern times, although domestic role and hierarchy persists, the process of de-gendering of space must promote a sense of fellowship and kinship in the household in lieu of dominance and subordination. Producing discourses in everyday life is an inevitable part of mankind. The spatiality and sociation of practice produce discourses as situated knowledge. Unlike other patriarchal cultures, Chettinad architecture embraces a sense of protection, privacy, and autonomy that the culture guarantees for its women.

8. Limitations

The study was limited to interviews with women respondents. Major Chettinad villages were considered for the study. The study may be extended to include male respondents and other relatively smaller villages. The study may further be extended to seek input from architects working on reviving Chettinad architecture.

9. Recommendations

Gender-inclusive spaces are important for overall wellbeing and harmony of the family. A liberal cultural view accommodative of women will help in designing a gender-inclusive domestic space irrespective of the scale and typology of residential buildings. Spaces segregated to mark gender order must be altered as designated spaces that fulfill the purpose where women can ascertain their presence in the space where there is activity. This will also strengthen the affinity of and promote a sense of belongingness to the space. De-gendering of space is important to enable access of all members of the family. In these modern times when women seek to be empowered on par with men through education and employment among many others, enabling access to space is an indicator of agency that women may have in shaping their lives. This applies to all genders as each one has several kinds of spatial preferences. Hence, it is important for architects to acknowledge the need and the purpose the space may serve. Architects must also recognize that women have transformed their conventional self into well-informed, educated, and enterprising members of society in their own way in line with changing times. Designing gender-inclusive domestic spaces that address barriers will certainly lead to a change in mindset toward inclusivity at a social level.

Author Contributions

Conceptualization, R.L. and M.N.; data curation, M.N.; investigation, R.L. and M.A.; methodology, R.L.; resources, M.A.; supervision, M.N.; validation, R.L. and M.N.; writing—original draft, R.L. and M.A.; writing—review and editing, M.A. and M.N. All authors read and agreed to the published version of the manuscript.

Funding

This research received no external funding. The APC was funded by Vellore Institute of Technology, Vellore, India.

Institutional Review Board Statement

The study did not require ethical approval.

Informed Consent Statement

Informed consent was obtained from all subjects involved in the study.

Data Availability Statement

Data is unavailable due to privacy or ethical restrictions.

Acknowledgments

The authors would like to acknowledge S. Monisha, Studio Assistant, Mouleeswaran. A, and Madhusri Manigandan from the School of Architecture (V-SPARC), Vellore Institute of Technology, Vellore, India, and Ar. Periannan Karuppiah, APDO, Chennai for assisting us in rural documentation. The authors also thank the house owners for permitting then to conduct rural documentation, as well as the respondents who patiently shared glimpses from their lived experiences.

Conflicts of Interest

The authors declare no conflict of interest.

Appendix A

Table A1. Profile of respondents.
Table A1. Profile of respondents.
S.NoR(x)AgeMarital StatusEducationOccupationPlace of ResidencePlace of UpbringingNative Town
1R137RemarriedBachelor’sConsultantChennaiChennaiKothamanglam
2R232MarriedPostgraduate HomemakerMalaysiaChennaiKaraikudi
3R332MarriedPostgraduateEntrepreneurChennaiChennaiDevakottai
4R434MarriedPostgraduateSupports husband in businessChennaiKaraikudiAranmanai Siruvayal
5R537MarriedPostgraduateHomemakerBangaloreCoimbatoreKadiyapatti
6R656MarriedBachelor’sHomemakerChennaiCoimbatoreDevakottai
7R750MarriedBachelor’sHomemakerChennaiChennaiKanadukathan
8R852MarriedBachelor’sHomemakerMaduraiKanpurKottaiyur
9R951MarriedBachelor’sWorking professionalLondonSalemKadiyapatti
10R1047WidowBachelor’sHomemakerChennaiChennaiKandanur
11R1152RemarriedBachelor’sHomemakerPondicherryChennaiDevakottai
12R1244MarriedBachelor’sSupports husband in businessMaduraiCoimbatoreDevakottai
13R1367MarriedBachelor’sHomemakerKottaiyurKadiyapattiKadiyapatti
14R1480MarriedClass 8HomemakerKottaiyurKottaiyurKottaiyur
15R1583WidowClass 12HomemakerKanadukathanKottaiyurKanadukathan
16R1685WidowClass 6HomemakerDevakottaiDevakottaiDevakottai
17R1777MarriedClass 7HomemakerChennaiDevakottaiDevakottai
18R1856MarriedCollege dropoutHomemakerChennaiDevakottaiDevakottai
19R1956MarriedClass 11EntrepreneurPudukottaiDevakottaiDevakottai
20R2034MarriedBachelor’sEntrepreneurDevakottaiRajapalayamDevakottai
21R2173MarriedSSLCHomemakerDevakottaiDevakottaiDevakottai
22R2257MarriedClass 12HomemakerDevakottaiKarurAranmanai Siruvayal
23R2378WidowClass 8HomemakerDevakottaiDevakottaiDevakottai
24R2425UnmarriedClass 10Stay-at-homeDevakottaiKarurDevakottai
25R2549MarriedPostgraduate ProfessionalTexasSingaporeKottaiyur

References

  1. Saju, T.M. Nattukottai Chettiars traced to more than 65,000 years ago. Times of India Blog, 25 October 2019. [Google Scholar]
  2. Annamalai, P. Nagarathar Kanakkiyal Murai; MM Muthain Research Centre: Chennai, India, 1988. [Google Scholar]
  3. Muthiah, S.; Meyappan, M.; Ramaswamy, V.; Muthuraman, V. The Chettiar Heritage; The Chettiar Heritage: Chennai, India, 2006. [Google Scholar]
  4. Annamalai, R. The Socio-Religious Characteristics of the Nagarathar Community of Tamil Nadu. Proc. Indian Hist. Congr. 1978, 39, 845–854. [Google Scholar]
  5. Suppiah, U. History of moneylending during british era: A case study of chettiars as the major money lenders. In Proceedings of the 23rd International Conference of Historians of Asia 2014 (IAHA2014), Alor Setar, Kedah, Malaysia, 23–27 August 2014. [Google Scholar]
  6. Rudner, D.W. Caste and capitalism in colonial India. In Caste and Capitalism in Colonial India; University of California Press: Berkeley, CA, USA, 1994. [Google Scholar]
  7. Ching, F.D.K. Architecture: Form, Space & Order, 4th ed.; Wiley: Hoboken, NJ, Canada, 2014. [Google Scholar]
  8. Spain, D. Gendered Spaces; University of North Carolina Press: Chapel Hill, NC, USA, 1992. [Google Scholar]
  9. Nishimura, Y. Kinship, Marriage and Womanhood among the Nagarattars in South India. Doctoral Dissertation, London School of Economics and Political Science, London, UK, 1993. [Google Scholar]
  10. Permanent Delegation of India to the UNESCO. Chettinad, Village Clusters of the Tamil Merchants; UNESCO World Heritage Centre: Paris, France, 2014. [Google Scholar]
  11. Rajiv Kumar, S. Analyzing the Values in the Built Heritage of Chettinadu Region, Tamil Nadu, India. Creat. Space 2019, 7, 45–56. [Google Scholar] [CrossRef]
  12. Patwardhan, A. Architecture: An Heirloom in the Context of Chettinad, India; ATINER’S Conference Paper Series, No: ARC2017-2393; Athens Institute for Education & Research: Athens, Greece, 2018. [Google Scholar]
  13. Frontline. Chettinad’s Legacy; THG Publishing Pvt. Ltd.: Chennai, India, 2018. [Google Scholar]
  14. Alexander, D. The Nagarathar Way: Portrait of A Community. The Hindu, 18 January 2023. [Google Scholar]
  15. Blunt, A.; Varley, A. Geographies of home. Cult. Geogr. 2004, 11, 3–6. [Google Scholar] [CrossRef]
  16. Hillier, B.H.; Hanson, J. The Social Logic of Space; Cambridge University: Cambridge, UK, 1984. [Google Scholar]
  17. Lawrence, R.J. Domestic space and society: A cross-cultural study. Comp. Stud. Soc. Hist. 1982, 24, 104–130. [Google Scholar] [CrossRef]
  18. Rapoport, A. House Form and Culture; Prentice-Hall of India Private Ltd.: New Delhi, India, 1969. [Google Scholar]
  19. Rendell, J. Gender Space Architecture: An Interdisciplinary Introduction; Borden, I., Penner, B., Rendell, J., Eds.; Routledge: London, UK, 2000. [Google Scholar]
  20. Ramalakshmi, L.; Arulselvan, S. Spatial and communication practices of Chettiar women in their ancestral homes. Media Asia 2020, 47, 123–143. [Google Scholar] [CrossRef]
  21. Srinivas, M.N. The Changing Position of Indian Women. Man 1977, 12, 221–238. [Google Scholar] [CrossRef]
  22. Sanker, S.S.L. The Chettiar Dichotomy. RCA Media Studies, 29 September 2021. [Google Scholar]
  23. Lefebvre, H.; Nicholson-Smith, D. The Production of Space; Blackwell: Oxford, UK, 1991; Volume 142. [Google Scholar]
  24. Ramalakshmi, L. Intersections of Gender, Space and Communication: A Study of Women’s Spatial and Communication Practices in Chettiars’ Ancestral Homes. Ph.D. Thesis, Pondicherry Univeristy, Puducherry, India, 2020. [Google Scholar]
  25. Riessman, C.K. Narrative Analysis. In Narrative, Memory & Everyday Life; University of Huddersfield: Huddersfield, UK, 2005; p. 17. [Google Scholar]
  26. Jensen, K.B. A Handbook of Media and Communication Research: Qualitative and Quantitative Methodologies; Jensen, K.B., Ed.; Routledge: New York, NY, USA, 2012. [Google Scholar]
  27. Netto, V. Practice, Communication and Space: A Reflection on the Materiality of Social Structures. Doctoral Dissertation, University of London, London, UK, 2007. [Google Scholar]
  28. Hatch, J.A. Narrative research: Telling stories of stories. Tenn. Educ. 2003, 33, 16–19. [Google Scholar]
  29. Marshall, M.N. Sampling for qualitative research. Fam. Pract. 1996, 13, 522–526. [Google Scholar] [CrossRef]
  30. Geertz, C. Thick Description. In The Inter-Pretation of Cultures; Basic Books: New York, NY, USA, 1973. [Google Scholar]
Figure 1. Elevation of a Chettiar ancestral home from the field documentation by authors.
Figure 1. Elevation of a Chettiar ancestral home from the field documentation by authors.
Sustainability 15 03643 g001
Figure 2. Layout of a Chettiar ancestral home illustrated on the basis of field documentation by the authors.
Figure 2. Layout of a Chettiar ancestral home illustrated on the basis of field documentation by the authors.
Sustainability 15 03643 g002
Figure 3. Mugappu (Outer zone), pettagasalai (inner plinth), valavu pathi (corridor), rettaiarai (double room), irandamkattu (women’s zone), and view of central courtyard from upper story.
Figure 3. Mugappu (Outer zone), pettagasalai (inner plinth), valavu pathi (corridor), rettaiarai (double room), irandamkattu (women’s zone), and view of central courtyard from upper story.
Sustainability 15 03643 g003
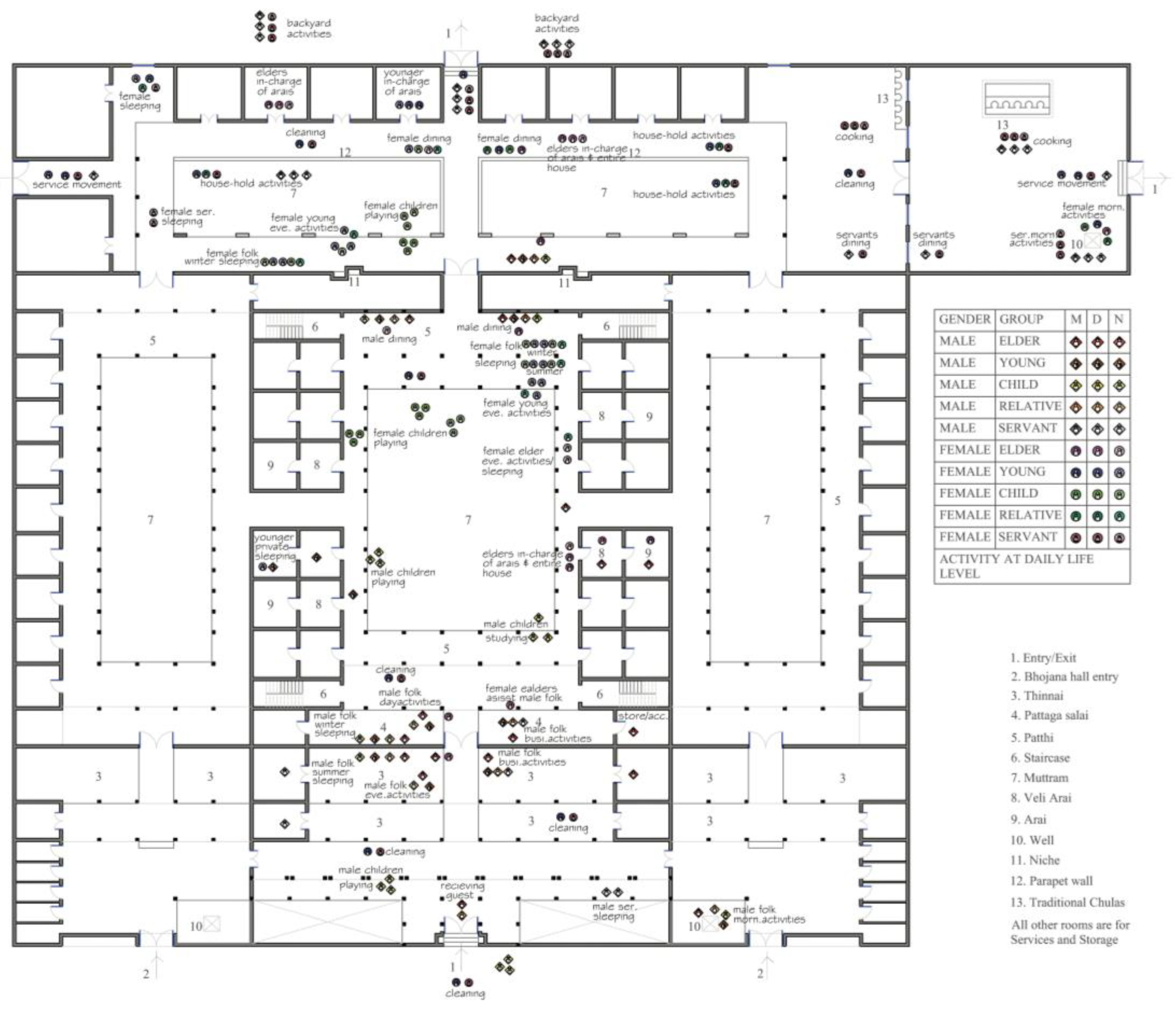
Figure 4. Daily activities of members of a Chettiar ancestral home illustrated by Ar. Periannan. (Published in [20]).
Figure 4. Daily activities of members of a Chettiar ancestral home illustrated by Ar. Periannan. (Published in [20]).
Sustainability 15 03643 g004
Figure 5. Age group of respondents.
Figure 5. Age group of respondents.
Sustainability 15 03643 g005
Figure 6. Educational qualification of respondents.
Figure 6. Educational qualification of respondents.
Sustainability 15 03643 g006
Figure 7. Employment status of respondents.
Figure 7. Employment status of respondents.
Sustainability 15 03643 g007
Figure 8. Marital status of respondents.
Figure 8. Marital status of respondents.
Sustainability 15 03643 g008
Figure 9. Native village of respondents.
Figure 9. Native village of respondents.
Sustainability 15 03643 g009
Figure 10. Place of residence of respondents.
Figure 10. Place of residence of respondents.
Sustainability 15 03643 g010
Figure 11. Place of upbringing of respondents.
Figure 11. Place of upbringing of respondents.
Sustainability 15 03643 g011
Figure 12. User satisfaction analysis of design agents.
Figure 12. User satisfaction analysis of design agents.
Sustainability 15 03643 g012
Figure 13. Keywords from interviews.
Figure 13. Keywords from interviews.
Sustainability 15 03643 g013
Disclaimer/Publisher’s Note: The statements, opinions and data contained in all publications are solely those of the individual author(s) and contributor(s) and not of MDPI and/or the editor(s). MDPI and/or the editor(s) disclaim responsibility for any injury to people or property resulting from any ideas, methods, instructions or products referred to in the content.

Share and Cite

MDPI and ACS Style

Lakshmanan, R.; Anbu, M.; Noguchi, M. Analysis of Design Agents for Mediation of Gender Inclusivity in Domestic Space: A Case Study of Chettinad Vernacular Architecture. Sustainability 2023, 15, 3643. https://doi.org/10.3390/su15043643

AMA Style

Lakshmanan R, Anbu M, Noguchi M. Analysis of Design Agents for Mediation of Gender Inclusivity in Domestic Space: A Case Study of Chettinad Vernacular Architecture. Sustainability. 2023; 15(4):3643. https://doi.org/10.3390/su15043643

Chicago/Turabian Style

Lakshmanan, Ramalakshmi, Madhumathi Anbu, and Masa Noguchi. 2023. "Analysis of Design Agents for Mediation of Gender Inclusivity in Domestic Space: A Case Study of Chettinad Vernacular Architecture" Sustainability 15, no. 4: 3643. https://doi.org/10.3390/su15043643

APA Style

Lakshmanan, R., Anbu, M., & Noguchi, M. (2023). Analysis of Design Agents for Mediation of Gender Inclusivity in Domestic Space: A Case Study of Chettinad Vernacular Architecture. Sustainability, 15(4), 3643. https://doi.org/10.3390/su15043643

Note that from the first issue of 2016, this journal uses article numbers instead of page numbers. See further details here.

Article Metrics

Back to TopTop