Tourist Movement Patterns and the Effects of Spatial Configuration in a Cultural Heritage and Urban Destination: The Case of Madaba, Jordan
Abstract
1. Introduction
- RQ.1: What are the spatial behavioral patterns of tourists in the historical core of Madaba?
- RQ.2: In which ways does spatial configuration features, such as accessibility, attractiveness, activities, and connectivity, affect tourist movement in the city?
2. Literature Background
The Effect of Spatial Configuration on Tourist Movement Patterns and Behaviour
3. Research Case and Methods
3.1. A Scope on Study Context
3.2. Data Collection and Analysis
4. Results
4.1. Tourist Characteristics
4.2. Tourist Spatial Movement Patterns
4.2.1. Classification of Spatial Movement Patterns
4.2.2. Spatial Movement Patterns and Tourist Routes
4.3. The Impact of Spatial Configuration on Tourist Spatial Movement Patterns and Behavior
4.3.1. Accessibility and Attractiveness
4.3.2. Activities
4.3.3. Connectivity and Intelligibility
5. Discussion
5.1. Tourist Characteristics and Movement Patterns
5.2. The Effect of Spatial Configuration
5.3. The Implications
6. Conclusions
Author Contributions
Funding
Institutional Review Board Statement
Informed Consent Statement
Data Availability Statement
Conflicts of Interest
References
- UNWTO. International Tourism Growth Continues to Outpace the Global Economy; UNWTO: Madrid, Spain, 2020. [Google Scholar]
- UNESCO. Cultural Sites in Africa, Arab Region, Asia, Europe, and Latin America Inscribed on UNESCO’s World Heritage List; UNESCO: London, UK, 2021. [Google Scholar]
- MoTA. Jordan National Tourism Strategy. 2021–2025. Tourism Strategy That Is Fit for Purpose and Circumstance. 2021. Available online: https://www.google.com/url?sa=t&rct=j&q=&esrc=s&source=web&cd=&cad=rja&uact=8&ved=2ahUKEwjq36-UiMv8AhVsSmwGHY5SC3YQFnoECAwQAw&url=https%3A%2F%2Fprocurement-notices.undp.org%2Fview_file.cfm%3Fdoc_id%3D267337&usg=AOvVaw0PFZWWRyNvQwLvCRKbknAF (accessed on 26 November 2022).
- JNA. Jordan New Agency, Petra. 2021. Available online: https://petra.gov.jo (accessed on 26 November 2022).
- Richards, G. Cultural Tourism: A Review of Recent Research and Trends. J. Hosp. Tour. Manag. 2018, 36, 12–21. [Google Scholar] [CrossRef]
- UNWTO. World Tourism Barometer; UNWTO: Madrid, Spain, 2017; Volume 15. [Google Scholar]
- Grazuleviciute-Vileniske, I. Cultural Heritage in the Context of Sustainable Development. Environ. Res. Eng. Manag. 2006, 37, 74–79. [Google Scholar]
- UNESCO. Policy for the Integration of a Sustainable Development Perspective into the Processes of the World Heritage Convention; UNESCO: London, UK, 2015. [Google Scholar]
- Ursache, M. Tourism—Significant Driver Shaping a Destinations Heritage. Procedia-Soc. Behav. Sci. 2015, 188, 130–137. [Google Scholar] [CrossRef]
- Edwards, D.; Griffin, T. Understanding Tourists’ Spatial Behaviour: GPS Tracking as an Aid to Sustainable Destination Management. J. Sustain. Tour. 2013, 21, 580–595. [Google Scholar] [CrossRef]
- UNWTO; UNEP. Making Tourism More Sustainable—A Guide for Policy Makers; United Nations Environment Programme, Division of Technology, Industry and Economics: Paris, France, 2005. [Google Scholar]
- UNWTO. Indicators of Sustainable Development for Tourism Destinations: A Guidebook; UNWTO: Madrid, Spain, 2004. [Google Scholar]
- TEATA. Stepping towards Sustainability—A Manual for Sustainable Tourism Suppliers and Supporters. 2010. Available online: https://mekongtourism.org/stepping-towards-sustainability-a-manual-for-sustainable-tourism-suppliers-and-supporters (accessed on 26 November 2022).
- Ashworth, G.J.; Tunbridge, J.E. The Tourist-Historic City Retrospect and Prospect of Managing the Heritage City; Pergamon: Oxford, UK, 2000. [Google Scholar]
- Gonçalves, J.; Mateus, R.; Silvestre, J.D.; Roders, A.P. Going beyond Good Intentions for the Sustainable Conservation of Built Heritage: A Systematic Literature Review. Sustainability 2020, 12, 9649. [Google Scholar] [CrossRef]
- Sugimoto, K.; Ota, K.; Suzuki, S. Visitor Mobility and Spatial Structure in a Local Urban Tourism Destination: GPS Tracking and Network Analysis. Sustainability 2019, 11, 919. [Google Scholar] [CrossRef]
- Vu, H.Q.; Li, G.; Law, R.; Ye, B.H. Exploring the Travel Behaviours of Inbound Tourists to Hong Kong Using Geotagged Photos. Tour. Manag. 2015, 46, 222–232. [Google Scholar] [CrossRef]
- Caldeira, A.; Kastenholz, E. Tourists’ Spatial Behaviour in Urban Destinations: The Effect of Prior Destination Experience. J. Vacat. Mark. 2018, 24, 247–260. [Google Scholar] [CrossRef]
- Huang, X.; Li, M.; Zhang, J.; Zhang, L.; Zhang, H.; Yan, S. Tourists’ Spatial-Temporal Behavior Patterns in Theme Parks: A Case Study of Ocean Park Hong Kong. J. Destin. Mark. Manag. 2020, 15, 100411. [Google Scholar] [CrossRef]
- MD Khairi, N.D.; Ismail, H.N.; Syed Jaafar, S.M. Tourist Behaviour through Consumption in Melaka World Heritage Site. Curr. Issues Tour. 2018, 22, 582–600. [Google Scholar] [CrossRef]
- Dalton, R.; Hoelscher, C.; Wiener, J. Wayfinding and Spatial Configuration: Evidence from Street Corners. In Proceedings of the Eighth International Space Syntax Symposium, Santiago, Chile, 3–6 January 2012; Greene, M., Reyes, J., Castro, A., Emo, B., Eds.; Pontificia Universidad Católica de Chile: Santiago, Chile, 2012; pp. 1–16. [Google Scholar]
- Kim, Y. Spatial Configuration, Spatial Cognition and Spatial Behaviour: The Role of Architectural Intelligibility in Shaping Spatial Experience; Environmental Design and Planning University College: London, UK, 1999. [Google Scholar]
- Gebhard, K.; Meyer, M.; Roth, S. Criteria for Sustainable Tourism for the Three Biosphere Reserves Aggtelek, Babia Góra and Šumava; Ecological Tourism in Europe (ETE): Bonn, Germany; UNESCO: Venice, Italy, 2007. [Google Scholar]
- Gospodini, A. Urban Design, Urban Space Morphology, Urban Tourism: An Emerging New Paradigm Concerning Their Relationship. Eur. Plan. Stud. 2001, 9, 925–934. [Google Scholar] [CrossRef]
- Southwell, K. Designing with Urban Tourism in Mind: Investigating the Potential of a Proposed Method for Assessing the Environmental Quality of a Tourist-Historic Street Space; Edinburgh College of Art: Edinburgh, UK, 2004. [Google Scholar]
- Millonig, A.; Schechtner, A. City Tourism: Pedestrian Orientation Behaviour; The Access Company: Loughborough, UK, 2006. [Google Scholar]
- van der SPEK, S. Spatial Metro: Tracking Pedestrians in Historic City Centres; IOS Press: Amsterdam, The Netherlands, 2008; Volume 1. [Google Scholar]
- van der SPEK, S. Activity Patterns in Public Space; a Tool for Assessing City Centres. In Proceedings of the Walk 21, 11th Conference, The Hague, The Netherlands, 16–19 November 2010. [Google Scholar]
- Shoval, N.; McKercher, B.; Ng, E.; Birenboim, A. Hotel Location and Tourist Activity in Cities. Ann. Tour. Res 2011, 38, 1594–1612. [Google Scholar] [CrossRef]
- Kubat, A.S.; Özbil, A.; Özer, Ö.; Ekinoğlu, H. The Effect of Built Space on Wayfinding in Urban Environments: A Study of the Historical Peninsula in Istanbul. In Proceedings of the Eighth International Space Syntax Symposium, Santiago, Chile, 3–6 January 2012. [Google Scholar]
- Aranburu, I.; Plaza, B.; Esteban, M. Sustainable Cultural Tourism in Urban Destinations: Does Space Matter? Sustainability 2016, 8, 699. [Google Scholar] [CrossRef]
- Safari, H.; Moridani, F.F. Syntactical Analysis of the Accessibility and Sociability of a Square in the Kuala Lumpur City Center. Front. Archit. Res. 2017, 6, 456–468. [Google Scholar] [CrossRef]
- Liu, P.; Xiao, X.; Zhang, J.; Wu, R.; Zhang, H. Spatial Configuration and Online Attention: A Space Syntax Perspective. Sustainability 2018, 10, 221. [Google Scholar] [CrossRef]
- Macías, C.J.G.; Contreras, T.J.C. The Life Story: A Social Qualitative Research Method and Its Application in Tourism Management Studies. RITUR-Revista Iberoamericana de Turismo, 2019. pp. 59–77. Available online: https://www.seer.ufal.br/index.php/ritur/article/view/8686 (accessed on 26 November 2022).
- Shoval, N.; Ahas, R. The Use of Tracking Technologies in Tourism Research: The First Decade. Tour. Geogr. 2016, 18, 587–606. [Google Scholar] [CrossRef]
- Hardy, A.; Hyslop, S.; Booth, K.; Robards, B.; Aryal, J.; Gretzel, U.; Eccleston, R. Tracking Tourists’ Travel with Smartphone-Based GPS Technology: A Methodological Discussion. Inf. Technol. Tour. 2017, 17, 255–274. [Google Scholar] [CrossRef]
- Hardy, A.; Aryal, J. Using Innovations to Understand Tourist Mobility in National Parks. J. Sustain. Tour. 2020, 28, 263–283. [Google Scholar] [CrossRef]
- Chua, A.; Servillo, L.; Marcheggiani, E.; Vande Moere, A. Mapping Cilento: Using Geotagged Social Media Data to Characterize Tourist Flows in Southern Italy. Tour. Manag. 2016, 57, 295–310. [Google Scholar] [CrossRef]
- Heikinheimo, V.V.; Tenkanen, H.T.; Hiippala, T.; Järv, O.; Toivonen, T.K. Automated Social Media Content Analysis from Urban Green Areas—Case Helsinki. In Proceedings of the Spatial Big Data and Machine Learning in GIScience, Melbourne, Australia, 28 August 2018. [Google Scholar]
- Chung, H.; Chung, N.; Nam, Y. A Social Network Analysis of Tourist Movement Patterns in Blogs: Korean Backpackers in Europe. Sustainability 2017, 9, 2251. [Google Scholar] [CrossRef]
- Gao, Y.; Ye, C.; Zhong, X.; Wu, L.; Liu, Y. Extracting Spatial Patterns of Intercity Tourist Movements from Online Travel Blogs. Sustainability 2019, 11, 3526. [Google Scholar] [CrossRef]
- Mou, N.X.; Yuan, R.Z.; Yang, T.F.; Zhang, H.C.; Tang, J.W.; Makkonen, T. Exploring Spatio-Temporal Changes of City Inbound Tourism Flow: The Case of Shanghai, China. Tour. Manag. 2020, 76, 103955. [Google Scholar] [CrossRef]
- Bauder, M.; Freytag, T. Visitor Mobility in the City and the Effects of Travel Preparation. Tour. Geogr. 2015, 17, 682–700. [Google Scholar] [CrossRef]
- East, D.; Osborne, P.; Kemp, S.; Woodfine, T. Combining GPS & Survey Data Improves Understanding of Visitor Behaviour. Tour. Manag. 2017, 61, 307–320. [Google Scholar]
- Kim, E.-J.; Jo, Y.; Kang, Y. Are Touristic Attractions Well-Connected in an Olympic Host City? A Network Analysis Measurement of Visitor Movement Patterns in Gangneung, South Korea. Sustainability 2018, 10, 3310. [Google Scholar] [CrossRef]
- Lamine, D.; Rezzaz, M.A.; Kherrour, L. Analysis of the Reality of the Tourist Movement in Algerian Coastal Cities. Case Study of the City of Algiers. GeoJournal Tour. Geosites 2022, 41, 493–501. [Google Scholar] [CrossRef]
- Mckercher, B.; Lau, G. Movement Patterns of Tourists within a Destination. Tour. Geogr. 2008, 10, 355–374. [Google Scholar] [CrossRef]
- McKercher, B.; Shoval, N.; Ng, E.; Birenboim, A. First and Repeat Visitor Behaviour: GPS Tracking and GIS Analysis in Hong Kong. Tour. Geogr. 2012, 14, 147–161. [Google Scholar] [CrossRef]
- Piccirillo, M.; Alliata, E. The Madaba map Centenary 1897–1997: Travelling through the Byzantine Umayyad Period: Proceedings of the International Conference held in Amman, 7–9 April 1997; Franciscan Printing Press: Jerusalem, Israel, 1999. [Google Scholar]
- Bikai, P.M.; Dailey, T.A. Madaba: Cultural Heritage; American Center of Oriental Research: Amman, Jordan, 1996; ISBN 978-1-955918-01-5. [Google Scholar]
- Abu Ghanimeh, A.A.; Ghul, A.E.; Saqqa, R.A.; Nabulsi, M.A. Analysis of the Socio-Cultural Heritage of Madaba—An Approach to Conservation of Heritage Buildings: The Case Study of Dar Al Saraya in Madaba. Anthropologist 2010, 12, 27–34. [Google Scholar] [CrossRef]
- Kildani, H. Modern Christianity in the Holy Land: Development of the Structure of Churches and the Growth of Christian Institutions in Jordan and Palestine: The Jerusalem Patriarchate in the Nineteenth Century in Light of the Ottoman Firmans and the International Relations of the Ottoman Sultanate; Authorhouse: Bloomington, IN, USA, 2010; ISBN 978-1-4490-5284-3. [Google Scholar]
- MOTA. Third Tourism Development Project Secondary Cities Revitalization Study [Main Report]. 2005. Available online: https://www.google.com/url?sa=t&rct=j&q=&esrc=s&source=web&cd=&cad=rja&uact=8&ved=2ahUKEwik-fjjkMv8AhXYtVYBHbxZAp8QFnoECBUQAQ&url=https%3A%2F%2Fmota.gov.jo%2Febv4.0%2Froot_storage%2Far%2Feb_list_page%2F%25D8%25A7%25D9%2584%25D8%25AA%25D9%2582%25D8%25B1%25D9%258A%25D8%25B1_%25D8%25A7%25D9%2584%25D8%25B1%25D8%25A6%25D9%258A%25D8%25B3%25D9%258A-3.pdf&usg=AOvVaw0UHh4KKKLKeqM3Jqhje-k0 (accessed on 26 November 2022).
- van Nes, A.; Yamu, C. Introduction to Space Syntax in Urban Studies; Springer International Publishing: Berlin/Heidelberg, Germany, 2021. [Google Scholar]

















| Tourists’ Characteristics | Frequency N = 207 | Percent % | Cumulative Percent % | |
|---|---|---|---|---|
| Choices | ||||
| Familiarity: I have been at Madaba for the____time | ||||
| Valid | First time | 183 | 88.4 | 88.4 |
| Second time | 13 | 6.3 | 94.7 | |
| Third time | 8 | 3.9 | 98.6 | |
| Fourth time | 3 | 1.4 | 100 | |
| More | 0 | 0 | 0 | |
| Age | ||||
| Valid | Under 20 | 10 | 4.8 | 4.8 |
| 20–39 | 106 | 51.2 | 56.0 | |
| 40–59 | 75 | 36.2 | 92.3 | |
| 60 or above | 16 | 7.7 | 100 | |
| I spent most of my time at______ | ||||
| Valid | City’s attraction points (such as archeological sites and museums) | 66 | 50.5 | 50.5 |
| Walking through the city | 56 | 42.7 | 93.2 | |
| Shopping and restaurants | 3 | 2.3 | 95.5 | |
| Hotels | 6 | 4.5 | 100 | |
| Others | 0 | 0 | 100 | |
| Motivation a: My motivation for visiting Madaba was________ | ||||
| Visiting relatives and friends | 7 | 2.9 | 3.4 | |
| Cultural and social | 183 | 75.9 | 88.4 | |
| Religious | 32 | 13.3 | 15.5 | |
| Business | 7 | 2.9 | 3.4 | |
| Total | 241 b | 100 | 116.3 | |
| Tourist Length of Stay | N | Valid | 196 |
|---|---|---|---|
| Missing | 11 | ||
| Mean | 1.8 | ||
| Median | 2.0 | ||
| St. Deviation | 0.8 | ||
| Minimum | 0.50 | ||
| Maximum | 4.0 | ||
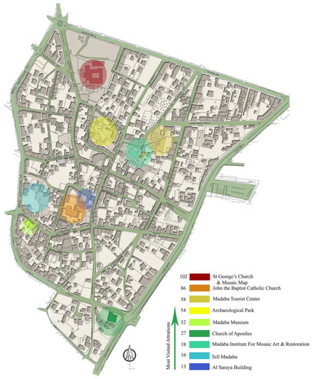
| Most Visited Attraction Points | Frequency | Percent | Valid Percent | Cumulative Percent |
|---|---|---|---|---|
| St George’s Church | 102 | 23.9 | 23.9 | 23.9 |
| Archaeological Park | 54 | 12.7 | 12.7 | 36.6 |
| John the Baptist Church | 86 | 20.2 | 20.2 | 56.8 |
| Madaba Museum | 52 | 12.2 | 12.2 | 69.0 |
| Madaba Visitor Center | 58 | 13.6 | 13.6 | 82.6 |
| Tell Madaba | 16 | 3.8 | 3.8 | 86.4 |
| Al Saraya Building | 13 | 3.1 | 3.1 | 89.4 |
| Church of Apostles | 27 | 6.3 | 6.3 | 95.8 |
| Madaba Institute for Mosaic | 18 | 4.2 | 4.2 | 100.0 |
| Total | 426 | 100.0 | 100.0 |
| Tourist Satisfaction with Destination | Frequency | Valid Percent % | Cumulative Percent % | |
|---|---|---|---|---|
| Choices | ||||
| Statement: the routes were well-arranged and pleasant. | ||||
| Valid | Strongly disagree | 2 | 1.0 | 1.0 |
| Disagree | 42 | 20.4 | 21.4 | |
| Neutral | 67 | 32.5 | 53.9 | |
| Agree | 81 | 39.3 | 93.2 | |
| Strongly agree | 14 | 6.8 | 100 | |
| Total | 206 | 100 | ||
| Missing | 99.0 | 1 | ||
| Total | ||||
| Statement: I am satisfied with the arrangement of attraction points. | ||||
| Strongly disagree | 4 | 1.9 | 1.9 | |
| Disagree | 12 | 5.8 | 7.8 | |
| Neutral | 46 | 22.3 | 30.1 | |
| Agree | 122 | 59.2 | 89.3 | |
| Strongly agree | 22 | 10.7 | 100 | |
| Total | 206 | 100 | ||
| Missing | 99.0 | 1 | ||
| Statement: I am overall satisfied with the experience. | ||||
| Strongly disagree | 0 | 0 | 0 | |
| Disagree | 4 | 1.9 | 1.9 | |
| Neutral | 23 | 11.1 | 13.0 | |
| Agree | 107 | 51.7 | 64.7 | |
| Strongly agree | 73 | 35.3 | 100 | |
| Frequency | Percent % | Cumulative Percent % | |
|---|---|---|---|
| Statement: The local community of Madaba was friendly and hospitable. | |||
| Strongly disagree | 0 | 0 | 0 |
| Disagree | 2 | 1 | 1 |
| Neutral | 35 | 17 | 18 |
| Agree | 108 | 52 | 70 |
| Strongly agree | 62 | 30 | 100 |
| Total | 207 | ||
| Tourist Routes (R) | Connectivity | Integration [HH] | Integration [HH] R3 |
|---|---|---|---|
| R1 | 5 | 1.25 | 2.14 |
| R2 | 4 | 1.30 | 1.98 |
| R3 | 5 | 1.14 | 1.84 |
| R4 | 2 | 1.11 | 1.54 |
| R5 | 8 | 1.48 | 2.34 |
| R6 | 5 | 1.14 | 1.84 |
| R7 | 4 | 1.27 | 1.88 |
| R8 | 3 | 1.16 | 1.83 |
| R9 | 4 | 1.021 | 1.67 |
| R10 | 5 | 0.95 | 1.74 |
| R11 | 4 | 1.11 | 1.83 |
| R12 | 3 | 1.11 | 1.61 |
| Minimum | 2 | 0.95 | 1.54 |
| Mean | 4.34 | 1.17 | 1.89 |
| Maximum | 8 | 1.48 | 2.34 |
| Statement: The Routes and Attraction Points Were Well-Connected and Integrated Together. | Frequency | Percent % | Cumulative percent % | |
|---|---|---|---|---|
| Choice | ||||
| valid | Strongly disagree | 0 | 0 | 0 |
| Disagree | 3 | 1.4 | 1.4 | |
| Neutral | 21 | 10.2 | 11.6 | |
| Agree | 57 | 27.5 | 39.1 | |
| Strongly agree | 126 | 60.9 | 100 | |
| Total | 207 | 100 | ||
Disclaimer/Publisher’s Note: The statements, opinions and data contained in all publications are solely those of the individual author(s) and contributor(s) and not of MDPI and/or the editor(s). MDPI and/or the editor(s) disclaim responsibility for any injury to people or property resulting from any ideas, methods, instructions or products referred to in the content. |
© 2023 by the authors. Licensee MDPI, Basel, Switzerland. This article is an open access article distributed under the terms and conditions of the Creative Commons Attribution (CC BY) license (https://creativecommons.org/licenses/by/4.0/).
Share and Cite
Jamhawi, M.M.; Zidan, R.J.; Sherzad, M.F. Tourist Movement Patterns and the Effects of Spatial Configuration in a Cultural Heritage and Urban Destination: The Case of Madaba, Jordan. Sustainability 2023, 15, 1710. https://doi.org/10.3390/su15021710
Jamhawi MM, Zidan RJ, Sherzad MF. Tourist Movement Patterns and the Effects of Spatial Configuration in a Cultural Heritage and Urban Destination: The Case of Madaba, Jordan. Sustainability. 2023; 15(2):1710. https://doi.org/10.3390/su15021710
Chicago/Turabian StyleJamhawi, Monther M., Roa’a J. Zidan, and Mohammed Fareed Sherzad. 2023. "Tourist Movement Patterns and the Effects of Spatial Configuration in a Cultural Heritage and Urban Destination: The Case of Madaba, Jordan" Sustainability 15, no. 2: 1710. https://doi.org/10.3390/su15021710
APA StyleJamhawi, M. M., Zidan, R. J., & Sherzad, M. F. (2023). Tourist Movement Patterns and the Effects of Spatial Configuration in a Cultural Heritage and Urban Destination: The Case of Madaba, Jordan. Sustainability, 15(2), 1710. https://doi.org/10.3390/su15021710

