Evaluation of Life-Cycle Assessment Analysis: Application to Restoration Projects and New Construction in Alpine Climate, Japan
Abstract
1. Introduction
2. Research Methodologies
2.1. LCA Methodology
2.2. Energy Use Calculation Method
2.3. LCA Application
3. Description of the Case Study Heritage Buildings
3.1. Description of the Heritage Houses
3.2. Description of the Restoration in 1977
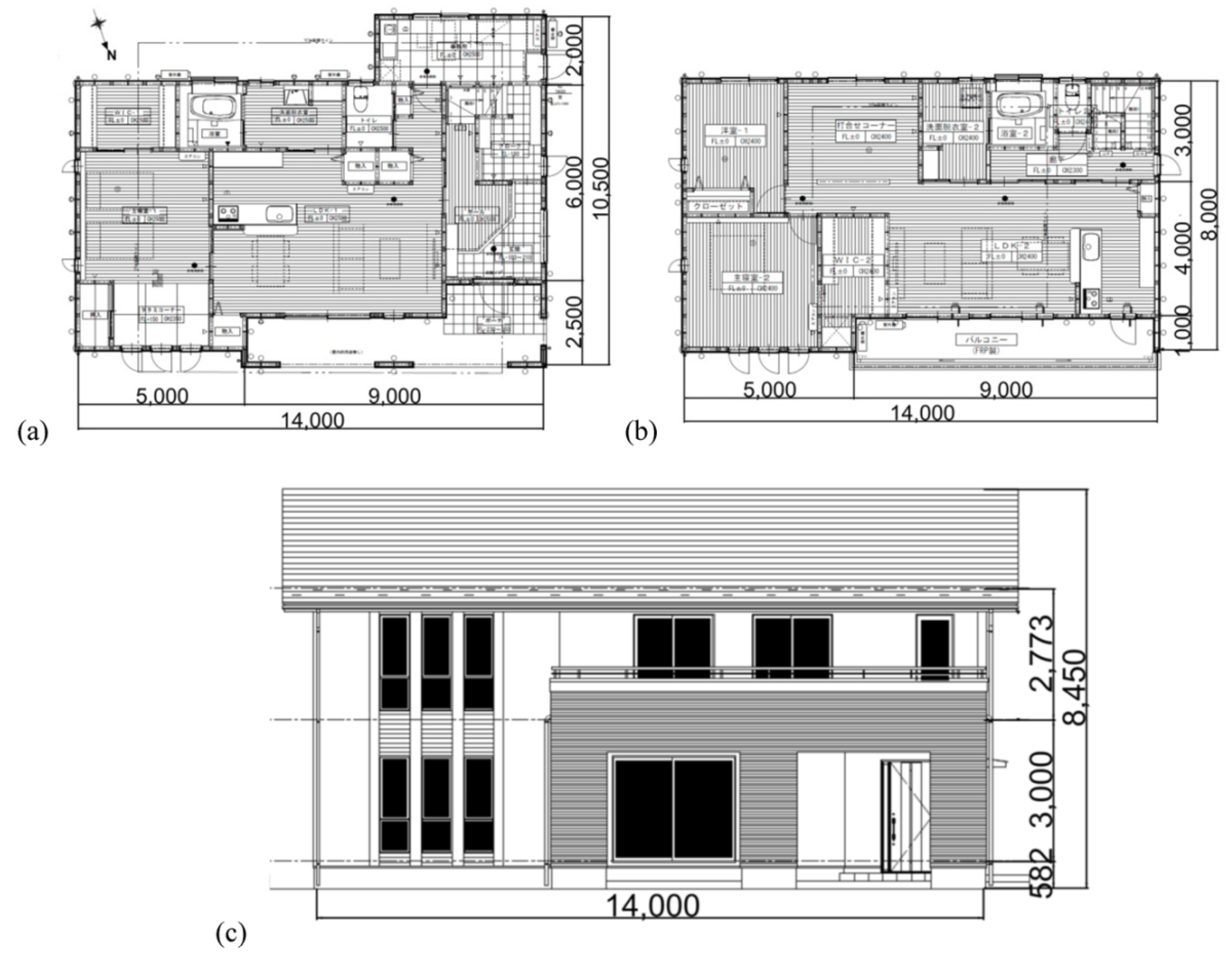
3.3. Description of the Contemporary House
4. Results of LCA
4.1. Results of Heritage Houses
4.2. Results of Contemporary Houses
4.3. Comparison of Results between Heritage Houses and Contemporary Houses
5. Discussion
5.1. Application of LCA to Conservation Projects of Heritage Buildings
5.2. Comparison of Energy Consumption between the Case Studies
6. Concluding Remarks
Author Contributions
Funding
Informed Consent Statement
Data Availability Statement
Conflicts of Interest
References
- Bartlett, A.A. Reflections on Sustainability, Population Growth, and the Environment. Popul. Environ. 1994, 16, 5–35. [Google Scholar] [CrossRef]
- Report of the World Commission on Environment and Development: Our Common Future; UN Documents; United Nations (UN): New York, NY, USA, 1987.
- Pope, J.; Annandale, D.; Morrison-Saunders, A. Conceptualising Sustainability Assessment. Environ. Impact Assess. Rev. 2004, 24, 595–616. [Google Scholar] [CrossRef]
- Sustainability in Buildings and Civil Engineering Works–General Principles; International Organization for Standardization (ISO) ISO15392; International Organization for Standardization: Genève, Switzerland, 2019.
- Environmental Design; International Federation for Structural Concrete (FIB): Lausanne, Switzerland, 2004.
- Bragança, L.; Mateus, R.; Koukkari, H. Building Sustainability Assessment. Sustainability 2010, 2, 2010–2023. [Google Scholar] [CrossRef]
- Koukkari, H.; Brangança, L. Review on the European Strategies for Energy-efficient Buildings. Int. J. Sustain. Build. Technol. Urban Dev. 2011, 2, 87–99. [Google Scholar] [CrossRef]
- The European Environment—State and Outlook 2020. Knowledge for Transition to a Sustainable Europe; European Environment Agency, Publications Office of the European Union: Luxembourg, 2019.
- Cities of Tomorrow–Action Today. URBACT II Capitalisation. Building Energy Efficiency in European Cities; Moulin, E., Ed.; URBACT: Saint-Denis, France, 2013. [Google Scholar]
- Report of the United Nations conference on human settlements (HABITAT II). In Proceedings of the Habitat II Conference on Human Settlements, Istanbul, Turkey, 3–4 June 1996.
- Elsorady, D. Sustainability and Conserved Energy Value of Heritage Buildings. Renew. Energy Sustain. Dev. 2017, 3, 104–117. [Google Scholar] [CrossRef]
- Munarim, U.; Ghisi, E. Environmental Feasibility of Heritage Buildings Rehabilitation. Renew. Sustain. Energy Rev. 2016, 58, 235–249. [Google Scholar] [CrossRef]
- Leeson, A.; Kirkham, A. THERE’S NO PLACE LIKE OLD HOMES Re-use and Recycle to Reduce Carbon; Historic England: London, UK, 2019.
- Duffy, A.; Nerguti, A.; Purcell, C.E.; Cox, P. Understanding Carbon in the Historic Environment, Scoping Study, Final Report; Historic England: London, UK, 2019.
- Menzies, G.F. Embodied Energy Considerations for Existing Buildings. Tech. Pap. 2011, 13, 53–68. [Google Scholar]
- Karoglou, M.; Kyvelou, S.S.; Boukouvalas, C.; Theofani, C.; Bakolas, A.; Krokida, M.; Moropoulou, A. Towards a Preservation–sustainability Nexus: Applying LCA to Reduce the Environmental Footprint of Modern Built Heritage. Sustainability 2019, 11, 6147. [Google Scholar] [CrossRef]
- Berg, F.; Fuglseth, M. Life Cycle Assessment and Historic Buildings: Energy-efficiency Refurbishment versus New Construction in Norway. J. Archit. Conserv. 2018, 24, 152–167. [Google Scholar] [CrossRef]
- Litti, G.; Audenaert, A.; Lavagna, M. Life Cycle Operating Energy Saving from Windows Retrofitting in Heritage Buildings Accounting for Technical Performance Decay. J. Build. Eng. 2018, 17, 135–153. [Google Scholar] [CrossRef]
- Napolano, L.; Menna, C.; Asprone, D.; Prota, A.; Manfredi, G. LCA-based Study on Structural Retrofit Options for Ma-sonry Buildings. Int. J. Life Cycle Assess. 2015, 20, 23–35. [Google Scholar] [CrossRef]
- De Cózar, J.C.G.; Martínez, A.G.; López, Í.A.; Alfonsea, M.R. Life Cycle Assessment as a Decision-making Tool for Selecting Building Systems in Heritage Intervention: Case Study of Roman Theatre in Itálica, Spain. J. Clean. Prod. 2019, 206, 27–39. [Google Scholar] [CrossRef]
- Biondini, F.; Tattoni, S.; Titi, A. Life-cycle Structural Assessment of Industrial Heritage Buildings. In Life-Cycle of Engineering Systems: Emphasis on Sustainable Civil Infrastructure. In Proceedings of the Fifth International Symposium on Life-Cycle Civil Engineering (IALCCE 2016), Delft, The Netherlands, 16–19 October 2016; CRC Press: Delft, The Netherlands, 2016; p. 163. [Google Scholar]
- Cinieri, V.; Zamperini, E. Lifecycle Oriented Approach for Sustainable Preservation of Historical Built Heritage. In Proceedings of the Online Conference Built Heritage 2013, Monitoring Conservation and Management, Milan, Italy, 18–20 November 2013; Boriani, M., Gabaglio, R., Gulotta, D., Eds.; pp. 465–474. [Google Scholar]
- Ferreira, J.; Pinheiro, M.D.; De Brito, J. Economic and Environmental Savings of Structural Buildings Refurbishment with Demolition and Reconstruction-A Portuguese Benchmarking. J. Build. Eng. 2015, 3, 114–126. [Google Scholar] [CrossRef]
- Guidelines for Life-cycle Assessment: A "Code of Practice". In Proceedings of the Society of Environmental Toxicology and Chemistry (SETAC) Workshop, Sesimbra, Portugal, 31 March–3 April 1993.
- Tao, X.; Wu, Q. Energy Consumption and CO2 Emissions in Hinterland Container Transport. J. Clean. Prod. 2021, 279, 123394. [Google Scholar] [CrossRef]
- Sepasgozar, S.M.; Li, H.; Shirowzhan, S.; Tam, V.W. Methods for Monitoring Construction Off-road Vehicle Emissions: A Critical Review for Identifying Deficiencies and Directions. Environ. Sci. Pollut. Res. 2019, 26, 15779–15794. [Google Scholar] [CrossRef]
- Khasreen, M.M.; Banfill, P.F.; Menzies, G.F. Life-cycle Assessment and the Environmental Impact of Buildings: A Review. Sustainability 2009, 1, 674–701. [Google Scholar] [CrossRef]
- Sustainability of Construction Works-Sustainability Assessment of Buildings-Part 1: General Framework; European Committee for Standardization (CEN) EN15643-1: Brussel, Belgium, 2010.
- Sustainability of Construction Works- Assessment of Environmental Performance of Buildings-Calculation Method; European Committee for Standardization (CEN) EN15978: Brussel, Belgium, 2011.
- LCA Principles for Buildings; Architectural Institute of Japan (AIJ): Tokyo, Japan, 2013.
- Piroozfar, P.; Pomponi, F.; El-Alem, F. Life Cycle Environmental Impact Assessment of Contemporary and Traditional Housing in Palestine. Energy Build. 2019, 202, 109333. [Google Scholar] [CrossRef]
- Turksezer, Z.I.; Lavagna, M. Il Life Cycle Thinking a Support Delle Strategie di Mitigazione e Adattamento ai Cambiamenti Climatici; Environmental LCA for Maintenance and Rehabilitation Activities on Structures under Risk: A Literature Review. In Proceedings of the XIII Convegno della Rete Italiana LCA; VIII Convegno dell’Associazione Rete Italiana LCA, Rome, Italy, 13–14 June 2019; ENEA: Rome, Italy, 2019; pp. 462–469. [Google Scholar]
- Rodrigues, C.; Kirchain, R.; Freire, F.; Gregory, J. Streamlined Environmental and Cost Life-cycle Approach for Building Thermal Retrofits: A Case of Residential Buildings in South European Climates. J. Clean. Prod. 2018, 172, 2625–2635. [Google Scholar] [CrossRef]
- Bertolin, C.; Loli, A. Sustainable Interventions in Historic Buildings: A Developing Decision Making Tool. J. Cult. Herit. 2018, 34, 291–302. [Google Scholar] [CrossRef]
- Güleroğlu, S.K.; Karagüler, M.E.; Kahraman, İ.; Umdu, E.S. Methodological Approach for Performance Assessment of Historical Buildings Based on Seismic, Energy and Cost Performance: A Mediterranean Case. J. Build. Eng. 2020, 31, 101372. [Google Scholar] [CrossRef]
- Agliata, R.; Marino, A.; Mollo, L.; Pariso, P. Historic Building Energy Audit and Retrofit Simulation with Hemp-lime Plaster—A Case Study. Sustainability 2020, 12, 4620. [Google Scholar] [CrossRef]
- Favre, D.; Padey, P.; Goulouti, K.; Lasvaux, S. Energy Saving Potentials in Historic Buildings’ Renovations: To Which Extent is the Heating Demand Limit Value (SIA 380/1) Reachable and at Which Costs? J. Phys. Conf. Ser. 2019, 1343, 012181. [Google Scholar] [CrossRef]
- Bottino-Leone, D.; Larcher, M.; Herrera-Avellanosa, D.; Haas, F.; Troi, A. Evaluation of Natural-based Internal Insulation Systems in Historic Buildings through a Holistic Approach. Energy 2019, 181, 521–531. [Google Scholar] [CrossRef]
- Pakdel, A.; Ayatollahi, H.; Sattary, S. Embodied Energy and CO2 Emissions of Life Cycle Assessment (LCA) in the Traditional and Contemporary Iranian Construction Systems. J. Build. Eng. 2021, 39, 102310. [Google Scholar] [CrossRef]
- Annibaldi, V.; Cucchiella, F.; De Berardinis, P.; Gastaldi, M.; Rotilio, M. An Integrated Sustainable and Profitable Approach of Energy Efficiency in Heritage Buildings. J. Clean. Prod. 2020, 251, 119516. [Google Scholar] [CrossRef]
- Galatioto, A.; Ricciu, R.; Salem, T.; Kinab, E. Energy and Economic Analysis on Retrofit Actions for Italian Public Historic Buildings. Energy 2019, 176, 58–66. [Google Scholar] [CrossRef]
- Galiano-Garrigós, A.; González-Avilés, A.; Rizo-Maestre, C.; Andújar-Montoya, M. Energy Efficiency and Economic Viability as Decision Factors in the Rehabilitation of Historic Buildings. Sustainability 2019, 11, 4946. [Google Scholar] [CrossRef]
- Blundo, D.S.; Ferrari, A.M.; del Hoyo, A.F.; Riccardi, M.P.; Muiña, F.E.G. Improving Sustainable Cultural Heritage Restoration Work through Life Cycle Assessment Based Model. J. Cult. Herit. 2018, 32, 221–231. [Google Scholar] [CrossRef]
- Palacios-Munoz, B.; Peuportier, B.; Gracia-Villa, L.; López-Mesa, B. Sustainability Assessment of Refurbishment vs. New Constructions by Means of LCA and Durability-based Estimations of Buildings Lifespans: A New Approach. Build. Environ. 2019, 160, 106203. [Google Scholar] [CrossRef]
- Selicati, V.; Cardinale, N.; Dassisti, M. Evaluation of the Sustainability of Energy Retrofit Interventions on the Historical Heritage: A Case Study in the City of Matera, Italy. Int. J. Heat Technol. 2020, 38, 17–27. [Google Scholar] [CrossRef]
- Di Giuseppe, E.; D’Orazio, M.; Du, G.; Favi, C.; Lasvaux, S.; Maracchini, G.; Padey, P. A Stochastic Approach to LCA of Internal Insulation Solutions for Historic Buildings. Sustainability 2020, 12, 1535. [Google Scholar] [CrossRef]
- Buda, A.; Lavagna, M. LCA Methodology to Compare Alternative Retrofit Scenarios for Historic Buildings: A Review. In Proceedings of the 12th Italian LCA, Messina, Italy, 11–12 June 2018. [Google Scholar]
- Toosi, H.A.; Lavagna, M.; Leonforte, F.; Claudio, D.E.L.; Niccolò, A.S.T.E. Life Cycle Sustainability Assessment in Building Energy Retrofitting; A Review. Sustain. Cities Soc. 2020, 60, 102248. [Google Scholar] [CrossRef]
- Franzoni, E.; Volpi, L.; Bonoli, A. Applicability of Life Cycle Assessment Methodology to Conservation Works in Historical Building: The Case of Cleaning. Energy Build. 2020, 214, 109844. [Google Scholar] [CrossRef]
- Häfliger, I.F.; John, V.; Passer, A.; Lasvaux, S.; Hoxha, E.; Saade, M.R.M.; Habert, G. Buildings Environmental Impacts’ Sensitivity Related to LCA Modelling Choices of Construction Materials. J. Clean. Prod. 2017, 156, 805–816. [Google Scholar] [CrossRef]
- Lacirignola, M.; Blanc, P.; Girard, R.; Pérez-López, P.; Blanc, I. LCA of Emerging Technologies: Addressing High Uncertainty on Inputs’ Variability When Performing Global Sensitivity Analysis. Sci. Total Environ. 2017, 578, 268–280. [Google Scholar] [CrossRef]
- Ross, S.A.; Cheah, L. Uncertainty Quantification in Life Cycle Assessments: Interindividual Variability and Sensitivity Analysis in LCA of Air-conditioning Systems. J. Ind. Ecol. 2017, 21, 1103–1114. [Google Scholar] [CrossRef]
- Shimako, A.H.; Tiruta-Barna, L.; de Faria, A.B.B.; Ahmadi, A.; Spérandio, M. Sensitivity Analysis of Temporal Parameters in a Dynamic LCA Framework. Sci. Total Environ. 2018, 624, 1250–1262. [Google Scholar] [CrossRef] [PubMed]
- Redden, R.; Crawford, R.H. Valuing the Environmental Performance of Historic Buildings. Australas. J. Environ. Manag. 2020, 1–13. [Google Scholar] [CrossRef]
- Favi, C.; Di Giuseppe, E.; D’Orazio, M.; Rossi, M.; Germani, M. Building Retrofit Measures and Design: A Probabilistic Approach for LCA. Sustainability 2018, 10, 3655. [Google Scholar] [CrossRef]
- Yıldırım, E. (Ed.) Action Plan: Cultural Heritage and Localizing the UN Sustainable Development Goals (SDGs); ICOMOS: Charenton-le-Pont, France, 2017. [Google Scholar]
- Hollberg, A.; Kaushal, D.; Basic, S.; Galimshina, A.; Habert, G. A Data-driven Parametric Tool for Under-specified LCA in the Design Phase. IOP Conf. Ser. Earth Environ. Sci. 2020, 588, 052018. [Google Scholar] [CrossRef]
- Omer, M.A.; Noguchi, T. A Conceptual Framework for Understanding the Contribution of Building Materials in the Achievement of Sustainable Development Goals (SDGs). Sustain. Cities Soc. 2020, 52, 101869. [Google Scholar] [CrossRef]
- Wen, B.; Musa, S.N.; Onn, C.C.; Ramesh, S.; Liang, L.; Wang, W.; Ma, K. The Role and Contribution of Green Buildings on Sustainable Development Goals. Build. Environ. 2020, 185, 107091. [Google Scholar] [CrossRef]
- Japanese Ministry of Internal Affairs and Communications (JMIAC) Japanese Ministry of Internal Affairs and Communications. 2021. Available online: https://www.soumu.go.jp/english/ (accessed on 15 March 2021).
- Central Research Institute of Electric Power Industry (CRIEPI) Central Research Institute of Electric Power Industry. Available online: https://criepi.denken.or.jp/en/index.html (accessed on 15 March 2021).
- Method of Calculation and Evaluation Based on 2013 Energy Efficiency Laws and Commentary on it; Institute for Building Environment and Energy Conservation (IBEC); Commercial Printer: Tokyo, Japan, 2014.
- Building Research Institute (BRI) Programme for Calculating Primary Energy Consumption in House Ver 2.8.1. Available online: https://house.app.lowenergy.jp (accessed on 15 March 2021).
- Kamatani, N.; Komatsu, Y. Study of the Life Span of Houses in Japan; 2011 Building Production System; Building Production Practice Report; Waseda University: Tokyo, Japan, 2011. [Google Scholar]
- Promotion of Cultures and Conservation of Cultural Heritages; Japanese Agency for Cultural Affairs (JACA): Tokyo, Japan, 1999; Available online: https://www.bunka.go.jp/tokei_hakusho_shuppan/hakusho_nenjihokokusho/archive/pdf/r1402577_26.pdf (accessed on 15 March 2021).
- Japan Meteorological Agency. 2021. Available online: http://www.jma.go.jp/jma/indexe.html (accessed on 15 March 2021).
- The Japanese Association for Conservation of Architectural Monuments (JACAM); Sanayama Residence Restoration Report; Sanayama Residence Restoration Committee: Saku, Japan, 1977.
- The Japanese Association for Conservation of Architectural Monuments (JACAM); Sonehara Residence Restoration Report; Sonehara Residence Restoration Committee: Azumino, Japan, 1977.
- JACA Cultural Heritage. Available online: https://bunka.nii.ac.jp (accessed on 15 March 2021).
- Ota, H. Study of the History of Japanese House; Iwanami Shoten: Tokyo, Japan, 1984. [Google Scholar]
- Morse, E.S. Japanese Homes and Their Surroundings; Harper: New York, NY, USA, 1889. [Google Scholar]
- Nishi, K.; Hozumi, K. What is Japanese Architecture? (Horton H Trans.); Kodansha International: Tokyo, Japan, 1985. [Google Scholar]
- Nagano Prefecture Culture and Art Information Dissemination Site. Cultural Nagano. Available online: https://www.culture.nagano.jp/en/ (accessed on 15 March 2021).
- JMIAC (2021). Available online: https://elaws.e-gov.go.jp/document?lawid=325AC1000000214 (accessed on 15 March 2021).
- Uchida, T.; Yoshino, H. Study on Energy Consumptions and Indoor Thermal Environments in Japanese Traditional Houses Before and After the Insulation Retrofits, presented at AIJ Tohoku Branch Reporting Conference, Sendai City, Miyagi, Japan. AIJ Tohoku Branch Reports. Archit. Plan. 2010, 73, 17–20. [Google Scholar]
- Kamakura, H.; Ichikawa, R.; Kawata, K.; Tajima, M. Investigation of Energy Retrofit for an Old House Part1. Outline of Energy Retrofit Technique and Evaluation of Energy Consumption, Presented at AIJ Shikoku Branch Reporting Conference, Kami city, Japan. AIJ Shikoku Branch Rep. 2017, 17, 37–38. [Google Scholar]
- Katsuchi, Y.; Takamaura, H. LCA for a Well-Insulated and Airtight House for Two-Generation Family in Whole House with Continuous Heating and Cooling-Part 1: Comparison of LCCO2 Levels in One House in Terms of Insulation Specifications. J. Life Cycle Assess. Japan 2019, 16, 106–129. [Google Scholar]
- Ozaki, R.; Lewis, J.R. Boundaries and the Meaning of Social Space: A Study of Japanese House Plans. Environ. Plan. D Soc. Space 2006, 24, 91–104. [Google Scholar] [CrossRef]
- Stehn, L.; Bergström, M. Integrated Design and Production of Multi-storey Timber Frame Houses–Production Effects Caused by Customer-oriented Design. Int. J. Prod. Econ. 2002, 77, 259–269. [Google Scholar] [CrossRef]
- Genjo, K.; Tanabe, S.; Matsumoto, S.; Hasegawa, K.; Yoshino, H. Relationship between Possession of Electric Appliances and Electricity for Lighting and Others in Japanese Households. Energy Build. 2005, 37, 259–272. [Google Scholar] [CrossRef]
- Yoshida, F.; Yoshida, H. E-waste Management in Japan: A Focus on Appliance Recycling. In Advanced Materials Research; Trans Tech Publications Ltd: Bäch, Switzerland, 2014; Volume 878, pp. 420–423. [Google Scholar]
- IBEC Commentary on Energy Efficiency Law for Houses; Commercial Printer: Tokyo, Japan, 2002.
- Li, Y.; Gao, W.; Zhang, X.; Ruan, Y.; Ushifusa, Y.; Hiroatsu, F. Techno-economic Performance Analysis of Zero Energy House Applications with Home Energy Management System in Japan. Energy Build. 2020, 214, 109862. [Google Scholar] [CrossRef]
- Dilshad, S.; Kalair, A.R.; Khan, N. Review of Carbon Dioxide (CO2) Based Heating and Cooling Technologies: Past, Present, and Future Outlook. Int. J. Energy Res. 2020, 44, 1408–1463. [Google Scholar] [CrossRef]









| (Years) | Structural Components | SA-RES | SO-RES | Contemporary House |
|---|---|---|---|---|
| building | 100 | 100 | 45 | |
| roof | ceramic tile roofs | 100 | - | - |
| timber-plank roofs | - | 30 | - | |
| galvalume roofs | - | - | 25 | |
| wall | lime plaster walls | 100 | 100 | - |
| earth covering walls | 100 | 100 | - | |
| cement siding | - | - | 45 | |
| lime plasterboards | - | - | 45 | |
| furnishing | interior timber boards | - | - | 45 |
| tatamis | 15 | 15 | 15 | |
| partitions | 100 | 100 | - |
| Structural Components | Materials (kg/m2) | SA-RES | SO-RES |
|---|---|---|---|
| foundations | limestone | 23.1 | 54.3 |
| concrete | 30.4 | 95.5 | |
| earth | - | 300.9 | |
| structural frames | timber | 26.6 | 30.4 |
| iron nails | 1.2 | 1.0 | |
| wood preservative | 0.6 | 0.3 | |
| roofs | timber planks | 5.9 | 18.7 |
| stone | - | 21.9 | |
| ceramic tiles | 61.5 | - | |
| copper sheets | 0.2 | - | |
| wood preservative | - | 0.6 | |
| walls | bamboo mesh | 7.5 | - |
| timber | - | 3.3 | |
| lime plaster | 3.8 | - | |
| earth covering | 156.3 | 29.3 | |
| furnishings | tatamis | 5.9 | 1.3 |
| partitions | 3.6 | 1.5 |
| UA (W/m2·K) | ηH (%) | ηC (%) | |
|---|---|---|---|
| SA-RES | 1.67 | 3.0 | 3.2 |
| SO-RES | 1.65 | 2.6 | 3.1 |
| 1980-RES | 1.27 | 2.9 | 3.3 |
| 1992-RES | 1.09 | 2.6 | 3.0 |
| 1999-RES | 0.43 | 1.6 | 2.2 |
| Heritage Houses | Contemporary Houses | |
| cooling/heating | air conditioners | air conditioners |
| water heating | gas water heating | gas water heating |
| lighting | fluorescent lamps | LED lamps |
| Structural Components | Materials (kg/m2) | Contemporary House |
|---|---|---|
| foundations | concrete | 519.8 |
| aggregate | 181.7 | |
| steel reinforcement | 13.4 | |
| structural frames | timber | 96.6 |
| roofs | galvalume panels | 8.6 |
| timber planks | 2.6 | |
| walls | cement siding | 25.4 |
| lime plasterboards | 17.1 | |
| glass | 2.7 | |
| furnishings | tatamis | 0.4 |
| interior timber boards | 6.5 |
| Energy (MJ/m2year) | CO2 (kg-CO2 eq/m2year) | SOx (kg-SO2 eq/m2year) | NOx (g-NO2 eq/m2year) | |
| SA-RES | 3028.7 | 169.3 | 130.8 | 279.6 |
| SO-RES | 2226.7 | 131.2 | 113.4 | 215.9 |
| 1980-RES | 1750.6 | 106.7 | 84.2 | 176.9 |
| 1992-RES | 1672.0 | 102.1 | 81.2 | 169.7 |
| 1999-RES | 1429.2 | 88.2 | 71.9 | 147.7 |
| Proposed Technical System 1 (PTS1) | Proposed Technical System 2 (PTS2) | |
|---|---|---|
| cooling/heating | air conditioners | air conditioners |
| water heating | CO2 heat pump system | PEFC cogeneration system |
| lighting | LED lamps | LED lamps |
| SA-RES | Reference | PTS1 | PTS2 |
|---|---|---|---|
| energy (MJ/m2year) | 3028.7 | 2845.9 | 2693.8 |
| CO2 (kg-CO2 eq/m2year) | 169.3 | 158.8 | 150.0 |
| SOx (g-SO2 eq/m2year) | 130.8 | 123.6 | 117.7 |
| NOx (g-NO2 eq/m2year) | 279.6 | 263.0 | 249.1 |
| SO-RES | reference | PTS1 | PTS2 |
| energy (MJ/m2year) | 2226.7 | 2088.3 | 1999.4 |
| CO2 (kg-CO2 eq/m2year) | 131.2 | 123.2 | 118.1 |
| SOx (g-SO2 eq/m2year) | 113.4 | 107.9 | 104.5 |
| NOx (g-NO2 eq/m2year) | 215.9 | 203.3 | 195.2 |
| 1980-RES | reference | PTS1 | PTS2 |
| energy (MJ/m2year) | 1750.6 | 1594.3 | 1536.2 |
| CO2 (kg-CO2 eq/m2year) | 106.7 | 97.7 | 94.3 |
| SOx (g-SO2 eq/m2year) | 84.2 | 78.1 | 75.8 |
| NOx (g-NO2 eq/m2year) | 176.9 | 162.7 | 157.4 |
| 1992-RES | reference | PTS1 | PTS2 |
| energy (MJ/m2year) | 1672.0 | 1521.6 | 1463.5 |
| CO2 (kg-CO2 eq/m2year) | 102.1 | 93.4 | 90.1 |
| SOx (g-SO2 eq/m2year) | 81.2 | 75.3 | 73.0 |
| NOx (g-NO2 eq/m2year) | 169.7 | 156.0 | 150.7 |
| 1999-RES | reference | PTS1 | PTS2 |
| energy (MJ/m2year) | 1429.2 | 1290.8 | 1250.7 |
| CO2 (kg-CO2 eq/m2year) | 88.2 | 80.2 | 77.9 |
| SOx (g-SO2 eq/m2year) | 71.9 | 66.5 | 64.9 |
| NOx (g-NO2 eq/m2year) | 147.7 | 135.1 | 131.5 |
| Timber (kg/m2) | Mineral-Based Materials (kg/m2) | Metal (kg/m2) | Energy (MJ/m2year) | CO2 (kg-CO2 eq/m2year) | SOx (g-SO2 eq/m2year) | NOx (g-NO2 eq/m2year) | |
|---|---|---|---|---|---|---|---|
| SA-RES | 43.6 | 284.0 | 1.4 | 341.0 | 19.6 | 23.2 | 41.1 |
| SO-RES | 53.9 | 501.9 | 1.0 | 164.7 | 10.7 | 21.0 | 23.5 |
| 1999-RES | 105.5 | 752.1 | 22.0 | 120.8 | 9.6 | 12.5 | 21.2 |
Publisher’s Note: MDPI stays neutral with regard to jurisdictional claims in published maps and institutional affiliations. |
© 2021 by the authors. Licensee MDPI, Basel, Switzerland. This article is an open access article distributed under the terms and conditions of the Creative Commons Attribution (CC BY) license (http://creativecommons.org/licenses/by/4.0/).
Share and Cite
Endo, Y.; Takamura, H. Evaluation of Life-Cycle Assessment Analysis: Application to Restoration Projects and New Construction in Alpine Climate, Japan. Sustainability 2021, 13, 3608. https://doi.org/10.3390/su13073608
Endo Y, Takamura H. Evaluation of Life-Cycle Assessment Analysis: Application to Restoration Projects and New Construction in Alpine Climate, Japan. Sustainability. 2021; 13(7):3608. https://doi.org/10.3390/su13073608
Chicago/Turabian StyleEndo, Yohei, and Hideki Takamura. 2021. "Evaluation of Life-Cycle Assessment Analysis: Application to Restoration Projects and New Construction in Alpine Climate, Japan" Sustainability 13, no. 7: 3608. https://doi.org/10.3390/su13073608
APA StyleEndo, Y., & Takamura, H. (2021). Evaluation of Life-Cycle Assessment Analysis: Application to Restoration Projects and New Construction in Alpine Climate, Japan. Sustainability, 13(7), 3608. https://doi.org/10.3390/su13073608

