Corporate-Run Society: The Practice of the Danwei System in Beijing during the Planned Economy Period
Abstract
1. Introduction
2. Corporate-Run Society: The Institutional Logic of Collective Production and Consumption
2.1. Reconceptualizing the Model of the “Corporate-Run Society” in an International Context
2.2. “Corporate-Run Society” in China under State Socialism
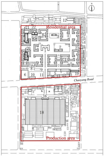
3. The Government-Led Construction of the Danwei Compound of the Beijing No. 2 Textile Factory
4. The Production and Reproduction Mechanism in the Danwei Compound
4.1. The State’s Resource Distribution System
4.2. The Sustainable Mechanism for Production and Reproduction Inside the Danwei Compound
4.3. Interactions between Resource Distribution, Production, and Reproduction
5. Conclusions
Author Contributions
Funding
Conflicts of Interest
References
- Bray, D. Social Space and Governance in Urban China: The Danwei System from Origins to Reform; Stanford University Press: Stanford, CA, USA, 2005. [Google Scholar]
- Li, H.L. Integration Mechanism of Chinese Danwei Phenomenon and Urban Community. Sociol. Res. 1993, 5, 23–32. (In Chinese) [Google Scholar]
- Li, M.; Zhou, F.Z.; Li, K. Danwei: The Inside of the Institutionalized Organization. Chin. Soc. Sci. Q. 1996, 16, 135–167. (In Chinese) [Google Scholar]
- Bray, D. Building ‘community’: New strategies of governance in urban China. Econo. Soc. 2006, 35, 530–549. [Google Scholar] [CrossRef]
- Chai, Y.W.; Zhang, Y. Introduction: Research on the Transformation of Danwei in urban China. Urban Plan. Int. 2009, 24, 1. (In Chinese) [Google Scholar]
- Ta, N.; Chai, Y.; Zhang, Y.; Sun, D. Understanding job-housing relationship and commuting pattern in Chinese cities: Past, present and future. Transp. Res. Part D: Transp. Environ. 2017, 52, 562–573. [Google Scholar] [CrossRef]
- Dong, B.Y. The Last Oasis: Atarashiki-mura in Today’s Japan. Twenty-First Century Bimon. 2005, 88, 113–121. [Google Scholar]
- Ding, G.J. Workers’ New Village: Eternal Happiness–an Interpretation of Workers’ New village in Shanghai in 1950s and 1960s. Ph.D. Thesis, Tongji University, Shanghai, China, 2007. [Google Scholar]
- Lü, X.B.; Perry, E.J. Danwei: The Changing Chinese Workplace in Historical and Comparative Perspective; M.E. Sharpe: Armonk, NY, USA, 1997. [Google Scholar]
- Lu, F. Danwei: A Special Form of Social Organization. Soc. Sci.China 1989, 1, 71–88. (In Chinese) [Google Scholar]
- Li, L.L. Research on Danwei Studies. Sociol. Res. 2002, 5, 23–32. (In Chinese) [Google Scholar]
- Liu, J.J. Danwei in China: Individuals, Organizations and Countries in the Social Regulation System; Tianjin People’s Press: Tianjin, China, 2000. (In Chinese) [Google Scholar]
- Lu, D.F. Remaking Chinese Urban Form: Modernity, Scarcity and Space, 1949–2005; Routledge: London, UK, 2006. [Google Scholar]
- Tian, Y.P.; Liu, J. Reevaluation of the historical status of the “Danwei society”. Study Explor. 2010, 4, 41–46. (In Chinese) [Google Scholar]
- Walder, A.G. Communist Neo-Traditionalism: Work and Authority in Chinese Industry; University of California Press: Berkeley, CA, USA, 1986. [Google Scholar]
- Tian, Y.P.; Qi, S. The Termination of the Unit Society: The Community Construction under “Typical State-unit System” of Northeastern old Industrial Bases; Social Sciences Academic Press: Beijing, China, 2005. (In Chinese) [Google Scholar]
- Zhou, Y.H.; Yang, X.M. The Chinese Danweii System; China Economy Press: Beijing, China, 1999. (In Chinese) [Google Scholar]
- Bian, M.L. The Making of the State Enterprise System in Modern China: The Dynamics of Institutional Change; Harvard University Press: Cambridge, MA, USA, 2005. [Google Scholar]
- Harrison, M. Bournville: Model Village to Garden Suburb; The History Press: Stroud, UK, 1999. [Google Scholar]
- Havinden, M. The model village. In The Rural Idyll; Mingay, G.E., Ed.; Routledge: London, UK, 2017; pp. 23–36. [Google Scholar]
- Green, H. The Company Town: The Industrial Edens and Satanic Mills that Shaped the American Economy; Basic Books: New York, NY, USA, 2010. [Google Scholar]
- World Bank. Russian Economic Report, No. 22, June 2010: A Bumpy Recovery. Available online: https://openknowledge.worldbank.org/handle/10986/27777 (accessed on 2 December 2019).
- Gavron, D. The Kibbutz: A wakening from Utopia; Rowman & Littlefield: Lanham, MD, USA, 2000. [Google Scholar]
- Amit-Cohen, I.; Sofer, M. Cultural heritage and its economic potential in rural society: The case of the kibbutzim in Israel. Land Use Policy 2016, 57, 368–376. [Google Scholar] [CrossRef]
- Snow, E. Red Star Over China: The Classic Account of the Birth of Chinese Communism; Random House: New York, NY, USA, 1938; pp. 220–222. [Google Scholar]
- Yu, L.B.; Lin, B.J. The History of the Central Soviet Area of China; Jiangxi People’s Press: Nanchang, China, 2001. (In Chinese) [Google Scholar]
- Laird, R.D. Kolkhozy, the Russian achilles heel: Failed Agrarian reform. Europe. Stud. 1997, 49, 469–478. [Google Scholar] [CrossRef]
- Webster, C. On the nature of neighborhood. Urban Stud. 2003, 40, 2591–2612. [Google Scholar] [CrossRef]
- The Institute of Economics of Shanghai Academy of Social Sciences. The History of Jiangnan General Manufacturing Bureau; Jiangsu People’s Press: Nanjing, China, 1983. (In Chinese) [Google Scholar]
- Yeh, W.H. Corporate Space, Communal Time: Everyday Life in Shanghai’s Bank of China. American Historical Rev. 1995, 100, 97–122. [Google Scholar] [CrossRef]
- Hoffman, L. Decentralization as a mode of governing the urban in China: Reforms in welfare provisioning and the rise of volunteerism. Pac. Aff. 2013, 86, 835–855. [Google Scholar] [CrossRef]
- Li, H. Everyday Power Relations in State Firms in Socialist China: A Reexamination. Mod. China 2017, 43, 288–321. [Google Scholar] [CrossRef]
- Chai, Y.W. From socialist danwei to new danwei: A daily-life-based framework for sustainable development in urban China. Asian Geogr. 2014, 31, 183–190. [Google Scholar] [CrossRef]
- Cheung, S.N.S. The Economic System of China; CITIC Press: Beijing, China, 2009. [Google Scholar]
- Zhang, Y.; Chai, Y.W.; Zhou, Q.J. The Spatiality and Spatial Changes of Danwei Compound in Chinese Cities: Case Study of Beijing No.2 Textile Factory. Urban Plan. Int. 2009, 5, 20–27. (In Chinese) [Google Scholar]
- Chen, Y. The Textile Industry in Contemporary Beijing; Beijing Daily Press: Beijing, China, 1988. (In Chinese) [Google Scholar]
- Curtis, T. ‘Newness’ in social entrepreneurship discourses: The concept of ‘danwei’ in the Chinese experience. J. Soc. Entrep. 2011, 2, 198–217. [Google Scholar] [CrossRef]
- Lu, D.F. Everyday Modernity in China: From Danwei to the “World Factory”. Fudan J. Humanit. Soc. Sci. 2019, 12, 79–91. [Google Scholar] [CrossRef]
- Wu, F. Housing privatization and the return of the state: Changing governance in China. Urban Geogr. 2018, 39, 1177–1194. [Google Scholar] [CrossRef]
- Yang, Q.; Ley, D. Residential relocation and the remaking of socialist workers through state-facilitated urban redevelopment in Chengdu, China. Urban Stud. 2019, 56, 2480–2498. [Google Scholar] [CrossRef]
- Hao, Y.H.; Liu, W. Community Public Goods Production from the Perspective of Institution Transformation: From “Danwei System” to “Community System”. Urban Dev. Stud. 2006, 13, 64–70. (In Chinese) [Google Scholar]
- Kwon, S. Social Networks in the Workplace in Postreform Urban China. SAGE Open 2017, 7, 1–12. [Google Scholar] [CrossRef]
- Shi, Y.G. The Analysis of the Totalism of Chinese Political Party System and its Political Modernization. Soc. Sci. Res. 2006, 2, 57–63. (In Chinese) [Google Scholar]
- Li, X.; Kleinhans, R.; Van Ham, M. Ambivalence in place attachment: The lived experiences of residents in danwei communities facing demolition in Shenyang, China. Hous. Stud. 2019, 34, 997–1020. [Google Scholar] [CrossRef]






© 2020 by the authors. Licensee MDPI, Basel, Switzerland. This article is an open access article distributed under the terms and conditions of the Creative Commons Attribution (CC BY) license (http://creativecommons.org/licenses/by/4.0/).
Share and Cite
Xiao, Z.; Liu, T.; Chai, Y.; Zhang, M. Corporate-Run Society: The Practice of the Danwei System in Beijing during the Planned Economy Period. Sustainability 2020, 12, 1338. https://doi.org/10.3390/su12041338
Xiao Z, Liu T, Chai Y, Zhang M. Corporate-Run Society: The Practice of the Danwei System in Beijing during the Planned Economy Period. Sustainability. 2020; 12(4):1338. https://doi.org/10.3390/su12041338
Chicago/Turabian StyleXiao, Zuopeng, Tianbao Liu, Yanwei Chai, and Mengke Zhang. 2020. "Corporate-Run Society: The Practice of the Danwei System in Beijing during the Planned Economy Period" Sustainability 12, no. 4: 1338. https://doi.org/10.3390/su12041338
APA StyleXiao, Z., Liu, T., Chai, Y., & Zhang, M. (2020). Corporate-Run Society: The Practice of the Danwei System in Beijing during the Planned Economy Period. Sustainability, 12(4), 1338. https://doi.org/10.3390/su12041338
