How Do Community Planning Features Affect the Place Relationship of Residents? An Investigation of Place Attachment, Social Interaction, and Community Participation
Abstract
1. Introduction
1.1. Place Relationship versus Other Terms
1.1.1. Place Attachment
1.1.2. Social Interaction
1.1.3. Community Participation
1.2. Physical Environment and Place Relationship
1.2.1. Physical Environment and Place Attachment
1.2.2. Physical Environment and Social Interaction
1.2.3. Physical Environment and Community Participation
1.3. Research Objectives
2. Methods
2.1. Procedure of Analyses Which Coping with the Study Goals
2.2. Sampling
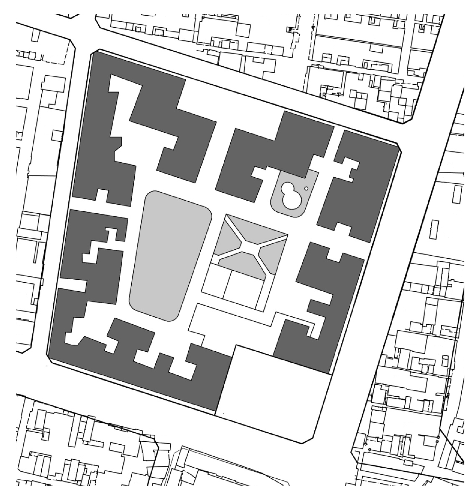
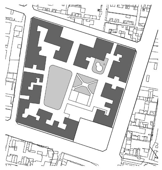
2.3. Study Sites
2.4. Measures
2.4.1. Community Planning Features
2.4.2. Place Relationship
3. Results
3.1. Exploratory Factor Analysis
- “Outdoor Space Quality“—residents’ satisfaction with specific community planning features and characteristics of the overall outdoor environment
- “Circulation planning”—residents’ satisfaction with convenient access to the outdoor environment, their vehicles, and the surrounding neighborhood
- “Outdoor recreational facilities”—residents’ satisfaction with outdoor facilities that encourage them to stay outside and socialize
- “Community layout and administration”—residents’ satisfaction with the overall outdoor layout and security in the community
3.2. Canonical Correlation Analysis
3.3. Multiple Regression Analysis
4. Discussion
4.1. Four Community Planning Factors
4.2. The Canonical Functions betwwen Planning Factors and Place Relationships
4.3. Different Community Layout Affect Place Relationships Differently
4.4. Community Planning Features Are Powerful Affectors on Their Residents
4.5. Limitations
5. Conclusions
Author Contributions
Funding
Conflicts of Interest
References
- Dekker, K. Social capital, neighbourhood attachment and participation in distressed urban areas. A case study in The Hague and Utrecht, The Netherlands. Hous. Stud. 2007, 22, 355–379. [Google Scholar] [CrossRef]
- Aiello, A.; Ardone, R.G.; Scopelliti, M. Neighbourhood planning improvement: Physical attributes, cognitive and affective evaluation and activities in two neighbourhoods in Rome. Eval. Progr. Plan. 2010, 33, 264–275. [Google Scholar] [CrossRef] [PubMed]
- Hur, M.; Nasar, J.L.; Chun, B. Neighborhood satisfaction, physical and perceived naturalness and openness. J. Environ. Psychol. 2010, 30, 52–59. [Google Scholar] [CrossRef]
- Sundblad, D.R.; Sapp, S.G. The persistence of neighboring as a determinant of community attachment: A community field perspective. Rural Sociol. 2011, 76, 511–534. [Google Scholar] [CrossRef]
- Bougouffa, I.; Permana, A.S. A study on the linkages between residential satisfaction and the overall quality of life in Bandar Tun Razak area of Kuala Lumpur city, Malaysia. Appl. Res. Qual. Life 2017, 1–23. [Google Scholar] [CrossRef]
- Lewicka, M. Place attachment: How far have we come in the last 40 years? J. Environ. Psychol. 2011, 31, 207–230. [Google Scholar] [CrossRef]
- Brügger, A.; Dessai, S.; Devine-Wright, P.; Morton, T.A.; Pidgeon, N.F. Psychological responses to the proximity of climate change. Nat. Clim. Chang. 2015, 5, 1031. [Google Scholar] [CrossRef]
- Anton, C.E.; Lawrence, C. Home is where the heart is: The effect of place of residence on place attachment and community participation. J. Environ. Psychol. 2014, 40, 451–461. [Google Scholar] [CrossRef]
- Belanche, D.; Casaló, L.V.; Flavián, C. Understanding the cognitive, affective and evaluative components of social urban identity: Determinants, measurement, and practical consequences. J. Environ. Psychol. 2017, 50, 138–153. [Google Scholar] [CrossRef]
- Dekker, K.; Van Kempen, R. Places and participation: Comparing resident participation in post-wwii neighborhoods in northwest, central and southern Europe. J. Urban Aff. 2008, 30, 63–86. [Google Scholar] [CrossRef]
- Ziersch, A.; Osborne, K.; Baum, F. Local community group participation: Who participates and what aspects of neighbourhood matter? Urban Policy Res. 2011, 29, 381–399. [Google Scholar] [CrossRef]
- Mantey, D. The ‘publicness’ of suburban gathering places: The example of Podkowa Leśna (Warsaw Urban Region, Poland). Cities 2017, 60, 1–12. [Google Scholar] [CrossRef]
- Arnberger, A.; Eder, R. The influence of green space on community attachment of urban and suburban residents. Urban For. Urban Green. 2012, 11, 41–49. [Google Scholar] [CrossRef]
- Lincoln, N.K.; Ardoin, N.M. Cultivating values: Environmental values and sense of place as correlates of sustainable agricultural practices. Agric. Hum. Values 2016, 33, 389–401. [Google Scholar] [CrossRef]
- Shumaker, S.A.; Taylor, R.B. Toward a clarification of people-place relationships: A model of attachment to place. Environ. Psychol. Dir. Perspect. 1983, 2, 19–25. [Google Scholar]
- Scannell, L.; Gifford, R. Place attachment enhances psychological need satisfaction. Environ. Behav. 2017, 49, 359–389. [Google Scholar] [CrossRef]
- Kil, N.; Holland, S.M.; Stein, T.V.; Ko, Y.J. Place attachment as a mediator of the relationship between nature-based recreation benefits and future visit intentions. J. Sustain. Tour. 2012, 20, 603–626. [Google Scholar] [CrossRef]
- Proshansky, H.M. The city and self-identity. Environ. Behav. 1978, 10, 147–169. [Google Scholar] [CrossRef]
- Ratcliffe, E.; Korpela, K.M. Time-and self-related memories predict restorative perceptions of favorite places via place identity. Environ. Behav. 2018, 50, 690–720. [Google Scholar] [CrossRef]
- Stokols, D. People in places: A transactional view of settings. In Cognition Social Social Environment Environment; Lawrence Erlbaum: Hillsdale, NJ, USA, 1981; pp. 441–488. [Google Scholar]
- Wynveen, C.J.; Schneider, I.E.; Arnberger, A. The context of place: Issues measuring place attachment across urban forest contexts. J. For. 2018, 116, 367–373. [Google Scholar] [CrossRef]
- Moulay, A.; Ujang, N.; Maulan, S.; Ismail, S. Understanding the process of parks’ attachment: Interrelation between place attachment, behavioural tendencies, and the use of public place. City Cult. Soc. 2017. [Google Scholar] [CrossRef]
- Dmochowska-Dudek, K.; Bednarek-Szczepańska, M. A profile of the polish rural nimbyist. J. Rural Stud. 2018, 58, 52–66. [Google Scholar] [CrossRef]
- Cahuas, M.C.; Wakefield, S.; Peng, Y. Social change or business as usual at city hall? Examining an urban municipal government’s response to neighbourhood-level health inequities. Soc. Sci. Med. 2015, 133, 366–373. [Google Scholar] [CrossRef] [PubMed]
- Stefaniak, A.; Bilewicz, M.; Lewicka, M. The merits of teaching local history: Increased place attachment enhances civic engagement and social trust. J. Environ. Psychol. 2017, 51, 217–225. [Google Scholar] [CrossRef]
- Hashemnezhad, H.; Heidari, A.A.; Mohammad Hoseini, P. “Sense of place” and “place attachment”. Int. J. Archit. Urban Dev. 2013, 3, 5–12. [Google Scholar]
- Di Masso, A.; Dixon, J.; Hernández, B. Place attachment, sense of belonging and the micro-politics of place satisfaction. In Handbook of Environmental Psychology and Quality of Life Research; Springer: Cham, Switzerland, 2017; pp. 85–104. [Google Scholar]
- Kim, J.; Kaplan, R. Physical and psychological factors in sense of community: New urbanist Kentlands and nearby Orchard village. Environ. Behav. 2004, 36, 313–340. [Google Scholar] [CrossRef]
- Lewicka, M. What makes neighborhood different from home and city? Effects of place scale on place attachment. J. Environ. Psychol. 2010, 30, 35–51. [Google Scholar] [CrossRef]
- De la Barrera, F.; Reyes-Paecke, S.; Harris, J.; Bascuñán, D.; Farías, J.M. People’s perception influences on the use of green spaces in socio-economically differentiated neighborhoods. Urban For. Urban Green. 2016, 20, 254–264. [Google Scholar] [CrossRef]
- Wilkerson, A.; Carlson, N.E.; Yen, I.H.; Michael, Y.L. Neighborhood physical features and relationships with neighbors: Does positive physical environment increase neighborliness? Environ. Behav. 2012, 44, 595–615. [Google Scholar] [CrossRef]
- Zhu, X.; Yu, C.-Y.; Lee, C.; Lu, Z.; Mann, G. A retrospective study on changes in residents’ physical activities, social interactions, and neighborhood cohesion after moving to a walkable community. Prev. Med. 2014, 69, S93–S97. [Google Scholar] [CrossRef] [PubMed]
- Waygood, E.O.D.; Friman, M.; Olsson, L.E.; Taniguchi, A. Children’s incidental social interaction during travel international case studies from Canada, Japan, and Sweden. J. Trans. Geogr. 2017, 63, 22–29. [Google Scholar] [CrossRef]
- Can, I.; Heath, T. In-between spaces and social interaction: A morphological analysis of Izmir using space syntax. J. Hous. Built Environ. 2016, 31, 31–49. [Google Scholar] [CrossRef]
- Uslu, A. Social interaction in urban transformation areas and the characteristics of urban outdoor spaces: A case study from Turkey. Afr. J. Agric. Res. 2010, 5, 2801–2810. [Google Scholar]
- Sullivan, W.C.; Kuo, F.E.; Depooter, S.F. The fruit of urban nature: Vital neighborhood spaces. Environ. Behav. 2004, 36, 678–700. [Google Scholar] [CrossRef]
- Bratina Jurkovič, N. Perception, experience and the use of public urban spaces by residents of urban neighbourhoods. Urbani Izziv 2014, 25, 107–125. [Google Scholar] [CrossRef]
- Jung, E.; Lee, J.; Kim, K. The relationship between pedestrian environments and sense of community in apartment complexes in Seoul, Korea. J. Asian Archit. Build. Eng. 2015, 14, 411–418. [Google Scholar] [CrossRef]
- Corcoran, J.; Zahnow, R.; Wickes, R.; Hipp, J. Neighbourhood land use features, collective efficacy and local civic actions. Urban Stud. 2017, 55, 2372–2390. [Google Scholar] [CrossRef]
- Matthews, P. Being strategic in partnership-interpreting local knowledge of modern Local Government. Local Gov. Stud. 2014, 40, 451–472. [Google Scholar] [CrossRef]
- Todd, N.R.; Boeh, B.A.; Houston-Kolnik, J.D.; Suffrin, R.L. Interfaith groups as mediating structures for political action: A multilevel analysis. Am. J. Community Psychol. 2017, 59, 106–119. [Google Scholar] [CrossRef] [PubMed]
- Hair, J.; Anderson, R.; Babin, B.; Black, W. Multivariate data analysis: A global perspective. N. J. Pearson 2010, 7, 816. [Google Scholar]
- Scheaffer, R.L.; Mendenhall, W., III; Ott, R.L.; Gerow, K.G. Elementary Survey Sampling; Cengage Learning: Boston, MA, USA, 2011. [Google Scholar]
- Scopelliti, M.; Carrus, G.; Adinolfi, C.; Suarez, G.; Colangelo, G.; Lafortezza, R.; Panno, A.; Sanesi, G. Staying in touch with nature and well-being in different income groups: The experience of urban parks in Bogotá. Landsc. Urban Plan. 2016, 148, 139–148. [Google Scholar] [CrossRef]
- Abass, Z.I.; Tucker, R. Residential satisfaction in low-density Australian suburbs: The impact of social and physical context on neighbourhood contentment. J. Environ. Psychol. 2018, 56, 36–45. [Google Scholar] [CrossRef]
- Lo, A.Y.; Jim, C. Community attachment and resident attitude toward old masonry walls and associated trees in Urban Hong Kong. Cities 2015, 42, 130–141. [Google Scholar] [CrossRef]
- Lund, H. Pedestrian environments and sense of community. J. Plan. Educ. Res. 2002, 21, 301–312. [Google Scholar] [CrossRef]
- Riazi, M.; Emami, A. Residential satisfaction in affordable housing: A mixed method study. Cities 2018. [Google Scholar] [CrossRef]
- Toruńczyk-Ruiz, S.; Lewicka, M. Perceived social diversity and neighbourhood attachment: The role of intergroup ties and affective appraisals of the environment. Evidence from Poland. Eur. J. Soc. Psychol. 2016, 46, 818–832. [Google Scholar] [CrossRef]
- Chen, Y.-L. Taiwan in dire need of real social housing. Taipei Times, 20 February 2012; 8. [Google Scholar]
- Buys, L.; Miller, E. Residential satisfaction in inner urban higher-density Brisbane, Australia: Role of dwelling design, neighbourhood and neighbours. J. Environ. Plan. Manag. 2012, 55, 319–338. [Google Scholar] [CrossRef]
- Hansen, G. Design for healthy communities: The potential of form-based codes to create walkable urban streets. J. Urban Des. 2014, 19, 151–170. [Google Scholar] [CrossRef]
- Polanski, N. Reimagining the right-of-way: Designing streets as environmental and economic assets for active living and healthy environments. Trans. Res. Rec. 2015, 139–148. [Google Scholar] [CrossRef]
- Williams, D.R.; Vaske, J.J. The measurement of place attachment: Validity and generalizability of a psychometric approach. For. Sci. 2003, 49, 830–840. [Google Scholar]
- Buckner, J.C. The development of an instrument to measure neighborhood cohesion. Am. J. Community Psychol. 1988, 16, 771–791. [Google Scholar] [CrossRef]
- Boessen, A.; Hipp, J.R.; Smith, E.J.; Butts, C.T.; Nagle, N.N.; Almquist, Z. Networks, space, and residents’ perception of cohesion. Am. J. Community Psychol. 2014, 53, 447–461. [Google Scholar] [CrossRef] [PubMed]
- Christens, B.D.; Speer, P.W.; Peterson, N.A. Assessing community participation: Comparing self-reported participation data with organizational attendance records. Am. J. Community Psychol. 2016, 57, 415–425. [Google Scholar] [CrossRef] [PubMed]
- Elliott, J.; Gale, C.R.; Parsons, S.; Kuh, D.; Team, H.S. Neighbourhood cohesion and mental wellbeing among older adults: A mixed methods approach. Soc. Sci. Med. 2014, 107, 44–51. [Google Scholar] [CrossRef] [PubMed]
- Simonsen, W. Citizen Participation in Resource Allocation; Routledge: Abingdon, UK, 2018. [Google Scholar]
- Devine-Wright, P. Think global, act local? The relevance of place attachments and place identities in a climate changed world. Glob. Environ. Chang. 2013, 23, 61–69. [Google Scholar] [CrossRef]
- Lyon, C. Place systems and social resilience: A framework for understanding place in social adaptation, resilience, and transformation. Soc. Natl. Res. 2014, 27, 1009–1023. [Google Scholar] [CrossRef]
- Foster-Fishman, P.G.; Cantillon, D.; Pierce, S.J.; Van Egeren, L.A. Building an active citizenry: The role of neighborhood problems, readiness, and capacity for change. Am. J. Community Psychol. 2007, 39, 91–106. [Google Scholar] [CrossRef] [PubMed]
- Rice, L.J.; Hughes, B.; Briggs, V.; Delmoor, E.; Jefferson, M.; Johnson, J.C.; Halbert, C.H. Perceived efficacy and control for neighborhood change: The cross-cutting role of collective efficacy. J. Racial Ethn. Health Disparities 2016, 3, 667–675. [Google Scholar] [CrossRef] [PubMed]
- Zhang, H.; Lei, S.L. A structural model of residents’ intention to participate in ecotourism: The case of a wetland community. Tour. Manag. 2012, 33, 916–925. [Google Scholar] [CrossRef]
- Levasseur, M.; Généreux, M.; Bruneau, J.-F.; Vanasse, A.; Chabot, É.; Beaulac, C.; Bédard, M.-M. Importance of proximity to resources, social support, transportation and neighborhood security for mobility and social participation in older adults: Results from a scoping study. BMC Public Health 2015, 15, 503. [Google Scholar] [CrossRef] [PubMed]
- Heschong, L. Daylight and Retail Sales; Heschong Mahone Group: Gold River, CA, USA; California Energy Commission: Sacramento, CA, USA, 2003. [Google Scholar]
- O’Donnell, P.A. Building Student Success: School Conditions and Student Achievement; Wilmington University (Delaware): Ann Arbox, MI, USA, 2016. [Google Scholar]
- White, J.T. Foundations of School Stakeholder’s Perceptions Related to School Building Conditions and Learning. Ph.D. Thesis, Walden University, Minneapolis, MN, USA, 2011. [Google Scholar]
- Hodson, C.B.; Sander, H.A. Green urban landscapes and school-level academic performance. Landsc. Urban Plan. 2017, 160, 16–27. [Google Scholar] [CrossRef]









| Variables | Number | Percentage |
|---|---|---|
| Gender | ||
| Female | 180 | 60.2 |
| Male | 119 | 39.8 |
| Age (years) | ||
| 15–20 | 17 | 5.7 |
| 21–30 | 34 | 11.3 |
| 31–40 | 43 | 14.4 |
| 41–50 | 55 | 18.4 |
| 51+ | 150 | 50.2 |
| Level of Education | ||
| Less than high school | 110 | 36.8 |
| High school diploma | 105 | 35.1 |
| College degree | 78 | 26.1 |
| Graduate degree | 6 | 2.0 |
| Family Composition | ||
| Unmarried | 71 | 23.7 |
| Nuclear | 168 | 56.2 |
| Extended (multigenerational) | 60 | 20.1 |
| Length of Residence (years) | ||
| 1–10 | 156 | 52.2 |
| 11–20 | 32 | 10.7 |
| 21+ | 111 | 37.1 |
| Dong-Men (1986) Alley (n = 126) | Guo-Mao (1997) Cluster (n = 62) | Da-Dao (2003) Large Courtyard (n = 111) | ANOVA or Crosstabs Analysis | |
|---|---|---|---|---|
| Gender (% female) | 68.0 a | 52.4 a | 55.4 a | F = 2.99 |
| Age (years) | 49.0 a | 49.4 a | 45.4 a | F = 2.53 |
| Level of Education (years) | 11.9 a | 13.6 b | 12.4 a | F = 10.3 *** |
| Family Composition (%) | Unmarried 22.7 a Nuclear 60.9 a Extended 16.4 a | Unmarried 15.9 a Nuclear 63.5 a Extended 20.6 a | Unmarried 29.6 a Nuclear 46.4 a Extended 24.1 a | χ2 = 8.0 |
| Length of Residence (years) | 18.1 a | 7.7 b | 6.1 b | F = 115.2 *** |
| How Satisfied Are You with the: | 1. Outdoor Space Quality | 2. Circulation Planning | 3. Outdoor Recreational Facilities | 4. Community Layout and Administration |
|---|---|---|---|---|
| 0.71 | |||
| 0.67 | |||
| 0.67 | |||
| 0.64 | |||
| 0.63 | |||
| 0.62 | |||
| 0.59 | |||
| 0.59 | |||
| 0.56 | |||
| 0.90 | |||
| 0.86 | |||
| 0.54 | |||
| 0.79 | |||
| 0.78 | |||
| 0.65 | |||
| 0.77 | |||
| 0.77 | |||
| 0.66 | |||
| Cronbach’s α % Variance Explained %Total Variance Explained | 0.88 22.61 62.71 | 0.79 13.57 | 0.73 13.52 | 0.73 13.00 |
| 1. Place Attachment | 2. Social Interaction | 3. Community Participation | ||
|---|---|---|---|---|
| 1. | I like living in this community | 0.80 | ||
| 2. | I feel very comfortable living in this community | 0.79 | ||
| 3. | This community feels like home | 0.78 | ||
| 4. | No other community can substitute for this one | 0.77 | ||
| 5. | This community is better than other communities | 0.77 | ||
| 6. | This community is very important to me | 0.76 | ||
| 7. | I do not wish to leave this community | 0.63 | ||
| 8. | I know many of my neighbors in this community | 0.83 | ||
| 9. | I have a lot of friends in this community | 0.75 | ||
| 10. | I like to socialize with my neighbors | 0.70 | ||
| 11. | I feel that I belong to this community | 0.62 | ||
| 12. | I participate in maintaining and managing community facilities | 0.86 | ||
| 13. | I often participate in community activities | 0.81 | ||
| Cronbach’s α | 0.91 | 0.80 | 0.65 | |
| % Variance Explained | 33.77 | 20.91 | 12.43 | |
| % Total Variance Explained | 67.11 | |||
| Predictor | Total | Alley (Dong-Men 1986) | Cluster (Guo-Mao 1997) | Large Courtyard (Da-Dao 2003) | ||||
|---|---|---|---|---|---|---|---|---|
| ∆R2 | β | ∆R2 | β | ∆R2 | β | ∆R2 | β | |
| Control variables | ||||||||
| Gender | ||||||||
| Age | 0.08 ** | 0.24 ** | ||||||
| Level of education | ||||||||
| Family composition | 0.04 * | 0.23 * | ||||||
| Length of residence | 0.03 ** | 0.19 ** | 0.09 ** | 0.32 ** | ||||
| Community planning factors | 0.17 | 0.10 | 0.47 | 0.30 | ||||
| Outdoor space quality | 0.14 *** | 0.35 *** | 0.35 *** | 0.83 *** | 0.05 ** | 0.23 ** | ||
| Circulation planning | 0.02 ** | 0.20 *** | 0.04 * | −0.19 * | 0.03 * | 0.21 * | ||
| Outdoor recreational facilities | 0.01 * | 0.12* | 0.06 ** | 0.25 ** | 0.05 * | 0.22 * | ||
| Community layout and administration | 0.07 ** | 0.25 *** | 0.22 *** | 0.27 ** | ||||
| Total R2 | 0.20 *** | 0.10 ** | 0.60 *** | 0.38 *** | ||||
| n | 299 | 126 | 62 | 111 | ||||
| Predictor | Total | Alley (Dong-Men 1986) | Cluster (Guo-Mao 1997) | Large Courtyard (Da-Dao 2003) | ||||
|---|---|---|---|---|---|---|---|---|
| ∆R2 | β | ∆R2 | β | ∆R2 | β | ∆R2 | β | |
| Control variables | ||||||||
| Gender | ||||||||
| Age | 0.10 *** | 0.20 ** | 0.15 ** | 0.40 * | 0.28 *** | 0.45 *** | ||
| Level of education | 0.01 * | −0.13 * | 0.03* | −0.19 * | ||||
| Family composition | ||||||||
| Length of residence | 0.03 ** | 0.16 * | 0.03 * | 0.20 * | ||||
| Community planning factors | -- | -- | -- | -- | ||||
| Outdoor space quality | 0.06 ** | 0.19 * | ||||||
| Circulation planning | ||||||||
| Outdoor recreational facilities | ||||||||
| Community layout and administration | ||||||||
| Total R2 | 0.14 * | 0.10 * | 0.16 ** | 0.31 *** | ||||
| n | 299 | 126 | 62 | 111 | ||||
| Predictor | Total | Alley (Dong-Men 1986) | Cluster (Guo-Mao 1997) | Large Courtyard (Da-Dao 2003) | ||||
|---|---|---|---|---|---|---|---|---|
| ∆R2 | β | ∆R2 | β | ∆R2 | β | ∆R2 | β | |
| Control variables | ||||||||
| Gender | ||||||||
| Age | 0.02 ** | 0.16 ** | 0.14 *** | 0.38 *** | ||||
| Level of education | ||||||||
| Family composition | 0.07 * | 0.27 * | ||||||
| Length of residence | ||||||||
| Community planning factors | 0.12 | 0.22 | 0.20 | -- | ||||
| Outdoor space quality | 0.07 *** | −0.28 *** | 0.18 *** | −0.39 *** | ||||
| Circulation planning | 0.03 ** | 0.17 ** | ||||||
| Outdoor recreational facilities | 0.11 ** | −0.34 ** | ||||||
| Community layout and administration | 0.02 * | −0.13 * | 0.04 * | −0.21 * | 0.09 * | 0.32 ** | ||
| Total R2 | 0.14 *** | 0.22 * | 0.27 *** | 0.14 *** | ||||
| n | 299 | 126 | 62 | 111 | ||||
© 2018 by the authors. Licensee MDPI, Basel, Switzerland. This article is an open access article distributed under the terms and conditions of the Creative Commons Attribution (CC BY) license (http://creativecommons.org/licenses/by/4.0/).
Share and Cite
Zhang, H.; Matsuoka, R.H.; Huang, Y.-J. How Do Community Planning Features Affect the Place Relationship of Residents? An Investigation of Place Attachment, Social Interaction, and Community Participation. Sustainability 2018, 10, 2726. https://doi.org/10.3390/su10082726
Zhang H, Matsuoka RH, Huang Y-J. How Do Community Planning Features Affect the Place Relationship of Residents? An Investigation of Place Attachment, Social Interaction, and Community Participation. Sustainability. 2018; 10(8):2726. https://doi.org/10.3390/su10082726
Chicago/Turabian StyleZhang, Heng, Rodney H. Matsuoka, and Yu-Jan Huang. 2018. "How Do Community Planning Features Affect the Place Relationship of Residents? An Investigation of Place Attachment, Social Interaction, and Community Participation" Sustainability 10, no. 8: 2726. https://doi.org/10.3390/su10082726
APA StyleZhang, H., Matsuoka, R. H., & Huang, Y.-J. (2018). How Do Community Planning Features Affect the Place Relationship of Residents? An Investigation of Place Attachment, Social Interaction, and Community Participation. Sustainability, 10(8), 2726. https://doi.org/10.3390/su10082726

