Force Analysis of a Circular Cylinder at Ununiformed Flow in a T Pipe Junction
Abstract
:1. Introduction
2. Experimental Test Facility and Procedure
2.1. Wind Tunnel
2.2. Test Circular Cylinder
3. Analyses of the Experiment
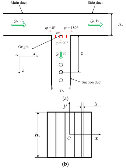
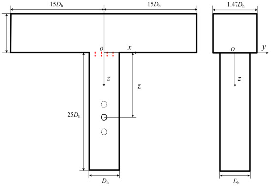
3.1. Measurement in T Pipe Junction
3.2. Measurement in the Straight Duct
3.3. Data Processing
3.4. Experimental Uncertainty Analysis
3.5. Validation of the Experimental Measurement Method in Straight Duct
3.5.1. Classical Pressure Distribution around Single Circular Cylinder
3.5.2. Drag Coefficient (CD)
4. Numerical Method
5. Results and Discussion
5.1. Mean Pressure Distribution without Vanes
5.2. Mean Pressure Distribution with Vanes
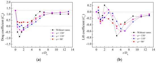
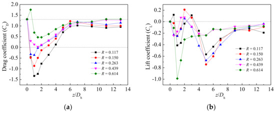
5.3. Drag Coefficient (CD) and Lift Coefficient (CL)
6. Conclusions
- (1)
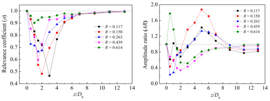
- For a typical single velocity ratio R = 0.117 in the T pipe junction without vanes, influenced by the secondary flow in the suction duct, the cylinder presents different surface mean pressure distributions at the different positions including a single peak region, a double peaks region and a recovery region, which are analyzed in detail. As the distance from the junction to the cylinder center increases, the pressure distribution curves slowly recover to the benchmark value. Increasing the velocity ratio can make the single peak region and the double peaks region disappear gradually to speed up the recovery to the benchmark. The changing process of the main feature points including the front stagnation point, the rear stagnation point and the separation points are performed. Generally, increasing the velocity ratio can also increase the relevance coefficient. The amplitude ratios firstly increase and then decrease for R ≤ 0.263 while this is reversed for larger velocity ratios. For R = 0.614, the minimum relevance coefficient is already 0.9 and the pressure distribution curve is almost symmetrical at z/Dh = 0.5. That means the secondary flow effect on the suction duct is very small.
- (2)
- In the T pipe junction with vanes, all the pressure distribution curves exhibit lower amplitude values around the circular cylinder, especially at the two stagnation points (regions) as the decrease of vanes angle compared to the case without vanes. Both decreasing the vanes angle and increasing the velocity ratio have the same effect to weaken the suction flow and make the recovery to the benchmark faster.
- (3)
- For the test cases without vanes, the drag coefficients decrease first and then increase as the far distance of z/Dh until gradually close to the benchmark and they increase as the velocity ratio increases. The drag coefficients are less than zero at some positions when R ≤ 0.263 and the corresponding detailed analysis are presented. The lift coefficients curves are twists and turns and they are less than zero except some values at the peak regions which are also analyzed in detail. For the test cases with vanes, both the decrease of vanes angle and the increase of velocity ratio have a similar effect to make the circular cylinder display less force fluctuation.
Acknowledgements
Author Contributions
Conflicts of Interest
Nomenclature
| A | aspect ratio (l/d) |
| Am | main duct width (mm) |
| AR | amplitude ratio |
| B | block ratio (d/l) |
| CD | drag coefficient |
| CL | lift coefficient |
| Cp(θ) | pressure coefficient at θ degree |
| d | circular cylinder outer diameter (mm) |
| Dh | suction duct hydraulic diameter (mm) |
| fx | resultant force on unit length of circular cylinder in x-direction |
| fz | resultant force on unit length of circular cylinder in z-direction |
| F(δ) | correlation function |
| Hm | main duct height (mm) |
| Hv | vanes height (mm) |
| l | circular cylinder length (mm) |
| P(θ) | pressure value at θ degree (Pa) |
| Pmin | minimum pressure value (Pa) |
| P∞ | freestream static pressure (Pa) |
| Pr | Prandtl number |
| Q | volume flow rate (m3/s) |
| R | velocity ratio |
| r | circular cylinder radius (mm) |
| Re | Reynolds number |
| Res | Reynolds number for flow in suction duct |
| Rec | Reynolds number for flow past circular cylinder |
| S | cross-section area (m2) |
| V | bulk velocity (m/s) |
| Vsc | centerline velocity of suction duct (m/s) |
| x, y, z | Cartesian coordinate system (mm) |
| Greek symbols | |
| ∆ | thickness of vanes (mm) |
| δ | angle variation (°) |
| θ | circumferential angle around circular cylinder (°) |
| ρ | density (kg/m3) |
| σ | relevance coefficient |
| φ | angle of the vanes (°) |
| Subscripts | |
| i | side duct |
| m | main duct |
| s | suction duct |
| Superscripts | |
| B | benchmark |
| T | T pipe junction |
References
- Raghunathan, R.S.; Kim, H.D.; Setoguchi, T. Aerodynamics of high-speed railway train. Prog. Aeosp. Sci. 2002, 38, 469–514. [Google Scholar] [CrossRef]
- Williamson, C. Vortex dynamics in the cylinder wake. Annu. Rev. Fluid Mech. 1996, 28, 477–539. [Google Scholar] [CrossRef]
- Norberg, C. Fluctuating lift on a circular cylinder: Review and new measurements. J. Fluids Struct. 2003, 17, 57–96. [Google Scholar] [CrossRef]
- Shao, J.; Zhang, C. Numerical analysis of the flow around a circular cylinder using RANS and LES. Int. J. Comput. Fluid D 2006, 20, 301–307. [Google Scholar] [CrossRef]
- Sayeed-Bin-Asad, S.M.; Lundström, T.S.; Andersson, A.G. Study the flow behind a semi-circular step cylinder (laser doppler velocimetry (LDV) and computational fluid dynamics (CFD)). Energy 2017, 10, 332–344. [Google Scholar] [CrossRef]
- Anagnostopoulos, P.; Iliadis, G.; Richardson, S. Numerical study of the blockage effects on viscous flow past a circular cylinder. Int. J. Numer. Meth. Fluids 1996, 22, 1061–1074. [Google Scholar] [CrossRef]
- Szepessy, S.; Bearman, P.W. Aspect ratio and end plate effects on vortex shedding from a circular cylinder. J. Fluid Mech. 1992, 234, 191–217. [Google Scholar] [CrossRef]
- Schewe, G. On the force fluctuations acting on a circular cylinder in cross-flow from subcritical up to transcritical Reynolds numbers. J. Fluid Mech. 1983, 133, 265–285. [Google Scholar] [CrossRef]
- Sumer, B.M.; Fredsøe, J. Hydrodynamics around Cylindrical Structures; World Sci.: Singapore, 1997. [Google Scholar]
- West, G.S.; Apelt, C.J. The effects of tunnel blockage and aspect ratio on the mean flow past a circular cylinder with Reynolds numbers between 104 and 105. J. Fluid Mech. 1982, 114, 361–377. [Google Scholar] [CrossRef]
- Allen, H.J.; Vincenti, W.G. Wall Interference in a Two-Dimensional-Flow Wind Tunnel, with Consideration of the Effect of Compressibility; NACA report 782; National Aeronautics and Space Administration Moffett Field Ca Ames Research Center: Mountain View, CA, USA, 1944. [Google Scholar]
- Maskell, E.C. A Theory of the Blockage Effect on Bluff Bodies and Stalled Wings in Closed Tunnel; ARC R&M 3400; Aeronautical Research Council: London, UK, 1963. [Google Scholar]
- Cantwell, B.; Coles, D. An experimental study of entrainment and transport in the turbulent near wake of a circular cylinder. J. Fluid Mech. 1983, 136, 321–374. [Google Scholar] [CrossRef]
- Norberg, C. An experimental investigation of the flow around a cirucular cylinder: Influence of aspect ratio. J. Fluid Mech. 1994, 258, 287–316. [Google Scholar] [CrossRef]
- Tsutsui, T.; Igarashi, T. Drag reduction of a circular cylinder in an air-stream. J. Wind Eng. Ind. Aerodyn. 2002, 90, 527–541. [Google Scholar] [CrossRef]
- Bearman, P.W. On vortex shedding from a circular cylinder in the critical Reynolds number regime. J. Fluid Mech. 1969, 37, 577–585. [Google Scholar] [CrossRef]
- Achenbach, E. Distribution of local pressure and skin friction around a circular cylinder in cross-flow up to Re=5×106. J. Fluid Mech. 1968, 34, 625–639. [Google Scholar] [CrossRef]
- Shih, W.C.; Wang, C.; Coles, D.; Roshko, A. Experiments on flow past rough circular cylinders at large Reynolds numbers. J. Wind Eng. Ind. Aerodyn. 1993, 49, 351–368. [Google Scholar] [CrossRef]
- Breuer, M. Large eddy simulation of the sub-critical flow past a circular cylinder. Int. J. Heat Fluid Flow 1998, 28, 1281–1302. [Google Scholar]
- Kravchenko, A.G.; Moin, P. Numerical studies of flow over a circular cylinder at ReD=3900. Phys. Fluids 2000, 12, 403–417. [Google Scholar] [CrossRef]
- Ünal, U.O.; Atlar, M.; Gören, O. Effect of turbulence modelling on the computation of the near-wake flow of a circular cylinder. Ocean Eng. 2010, 37, 387–399. [Google Scholar] [CrossRef]
- Yeon, S.M.; Yang, J.M.; Stern, F. Large-eddy simulation of the flow past a circular cylinder at sub- to super-critical Reynolds numbers. Appl. Ocean Res. 2016, 59, 663–675. [Google Scholar] [CrossRef]
- Lloyd, T.P.; James, M. Large eddy simulations of a circular cylinder at Reynolds numbers surrounding the drag crisis. Appl. Ocean Res. 2016, 59, 676–686. [Google Scholar] [CrossRef]
- Catalano, P.; Wang, M.; Iaccarino, G.; Moin, P. Numerical simulation of the flow around a circular cylinder at high Reynolds numbers. Int. J. Heat Fluid Flow 2003, 24, 463–469. [Google Scholar] [CrossRef]
- Ong, M.C.; Utnes, T.; Holmedal, L.E.; Myrhaug, D.; Pettersen, B. Numerical simulation of flow around a smooth circular cylinder at very high Reynolds numbers. Mar. Struct. 2009, 22, 142–153. [Google Scholar] [CrossRef]
- Melling, A.; Whitelaw, J.H. Turbulent flow in a rectangular duct. J. Fluid Mech. 1976, 78, 289–315. [Google Scholar] [CrossRef]
- Kline, S.J.; Mcclintock, F.A. Describing uncertainties in single-sample experiments. >Mech. Eng. 1953, 75, 3–8. [Google Scholar]
- Norberg, C.; Sunden, B. Turbulence and Reynolds number effects on the flow and fluid forces on a single cylinder in cross flow. J. Fluids Struct. 1987, 1, 337–357. [Google Scholar] [CrossRef]
- Ahmed, M.R.; Talama, F. Flow characteristics and local heat transfer rates for a heated circular cylinder in a cross flow of air. Int. J. Fluid Mech. Res. 2008, 35, 76–93. [Google Scholar] [CrossRef]
- Franke, J.; Hirsch, C.; Jensen, A.G.; Krüs, H.W.; Schatzmann, M.; Westbury, P.S.; Miles, S.D.; Wisse, J.A.; Wright, N.G. Recommendations on the use of CFD in wind engineering. In Proceedings of the International Conference on Urban Wind Engineering and Building Aerodynamics, Sint-Genesius-Rode Belgium, 5–7 May 2004. [Google Scholar]
- Menter, F.R. Two-equation eddy-viscosity turbulence models for engineering applications. AIAA J. 1994, 32, 1598–1605. [Google Scholar] [CrossRef]






















| CD | Reynolds Number | Blockage | Aspect Ratio |
|---|---|---|---|
| 1.352 (West and Apelt [10]) | 1.53 × 104 | 16% | 4 |
| 1.381 (West and Apelt [10]) | 4.5 × 104 | 15.8% | 6 |
| 1.310 (present) | 0.916 × 104 | 20.1% | 4.78 |
| General Setting | Incompressible Fluid, Steady, Turbulent |
|---|---|
| Fluid material | Air with constant physical property |
| Turbulent model | SST k- [30,31] |
| Solution methods | Pressure-velocity coupling algorithm: SIMPLE |
| Gradient discretize: Least squares cell based | |
| Pressure discretize: Standard | |
| Other terms: Second order upwind | |
| Boundary conditions | Inlet of main duct: Constant velocity-inlet |
| Outs of suction and main ducts: Outflow | |
| Other surfaces: No slip wall |
© 2018 by the authors. Licensee MDPI, Basel, Switzerland. This article is an open access article distributed under the terms and conditions of the Creative Commons Attribution (CC BY) license (http://creativecommons.org/licenses/by/4.0/).
Share and Cite
Yin, Y.; Li, S.; Wang, L.; Lin, M.; Wang, Q. Force Analysis of a Circular Cylinder at Ununiformed Flow in a T Pipe Junction. Energies 2018, 11, 864. https://doi.org/10.3390/en11040864
Yin Y, Li S, Wang L, Lin M, Wang Q. Force Analysis of a Circular Cylinder at Ununiformed Flow in a T Pipe Junction. Energies. 2018; 11(4):864. https://doi.org/10.3390/en11040864
Chicago/Turabian StyleYin, Yantao, Shicong Li, Liangbi Wang, Mei Lin, and Qiuwang Wang. 2018. "Force Analysis of a Circular Cylinder at Ununiformed Flow in a T Pipe Junction" Energies 11, no. 4: 864. https://doi.org/10.3390/en11040864
APA StyleYin, Y., Li, S., Wang, L., Lin, M., & Wang, Q. (2018). Force Analysis of a Circular Cylinder at Ununiformed Flow in a T Pipe Junction. Energies, 11(4), 864. https://doi.org/10.3390/en11040864

