Airflow Dynamics for Micro-Wind Environment Optimization and Human Comfort Improvement: Roadshow Design for Theater Stage Spaces
Abstract
1. Introduction
1.1. Background
1.2. Literature Review
1.3. Research Focus
2. Materials and Methods
2.1. Design Code
2.2. Ventialation Principle
2.3. CFD Modeling
2.3.1. Governing Equations
2.3.2. Boundary Conditions and Parameter Setting
2.3.3. Meshing
2.4. Evaluation Indices
3. Optimization Design Strategy
4. Structural Improvement
4.1. Equipment-Related Improvements
Disturbance-Type Improvement
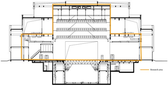
4.2. Research Subjects
5. Results
5.1. Temperature Distribution
5.2. Comparison of Evaluation Index
5.3. Vertical Distribution Analysis
6. Discussion
6.1. Challenges and Obstacles
6.2. The Role of Mechanical Disturbance
6.3. Limitations
7. Conclusions
Author Contributions
Funding
Institutional Review Board Statement
Informed Consent Statement
Data Availability Statement
Acknowledgments
Conflicts of Interest
Abbreviations
| ADPI | Air Diffusion Performance Index |
| AIQ | indoor air quality |
| B-G Model | Block–Gebhart Model |
| CBAD | Ceiling-Based Air Distribution |
| CFD | computational fluid dynamics |
| HVAC | Heating, Ventilation, and Air Conditioning |
| IAQ | indoor air quality |
| PMV | Predicted Mean Vote |
| RCI | Rack Cooling Index |
| RH | Relative Humidity |
| RTI | Return Temperature Index |
| UI | uniformity index |
| UFAD | underfloor air distribution |
| CFD-R | CFD Radiation Model |
| ε-κ Model | Turbulence Model (Turbulent Dissipation Rate–Kinetic Energy Model) |
Appendix A. Governing Equations Used in CFD Simulation
References
- McKinnie, M. City Stages: Theatre and Urban Space in a Global City; University of Toronto Press: Toronto, ON, Canada, 2007. [Google Scholar]
- Gyurova, L. The Fluid Flow Simulation of the Thermal Comfort in Theatre. Paper presented at the ENVIRONMENT. TECHNOLOGIES. RESOURCES.. In Proceedings of the International Scientific and Practical Conference, Rēzekne, Latvia, 27–28 June 2024; Available online: https://journals.ru.lv/index.php/ETR/article/view/8121 (accessed on 14 July 2025).
- Yao, J.; Yuan, Z. Study on Residential Buildings with Energy Saving by 65% in Ningbo. J. Ningbo Univ. (Nat. Sci. Eng. Ed.) 2010, 23, 84–87. [Google Scholar]
- Zhou, Y.; Ding, Y.; Yao, J. Preferable Rebuilding Energy Efficiency Measures of Existing Residential Building in Ningbo. J. Ningbo Univ. (Nat. Sci. Eng. Ed.) 2009, 22, 285–287. [Google Scholar]
- Kolokotroni, M.; Aronis, A. Cooling-Energy Reduction in Air-Conditioned Offices by Using Night Ventilation. Appl. Energy 1999, 63, 241–253. [Google Scholar] [CrossRef]
- Short, C.A.; Lomas, K.J.; Woods, A. Design Strategy for Low-Energy Ventilation and Cooling within an Urban Heat Island. Build. Res. Inf. 2002, 32, 187–206. [Google Scholar] [CrossRef]
- Yao, J. Effect of Variable Ventilation Modes on Indoor Thermal Comfort and Building Energy Consumption. Int. J. Low-Carbon Technol. 2012, 7, 187–191. [Google Scholar] [CrossRef]
- Liu, J.; Zhu, S.; Kim, M.K.; Srebric, J. A Review of Cfd Analysis Methods for Personalized Ventilation (Pv) in Indoor Built Environments. Sustainability 2019, 11, 4166. [Google Scholar] [CrossRef]
- Aqilah, N.; Rijal, H.B.; Zaki, S.A. A Review of Thermal Comfort in Residential Buildings: Comfort Threads and Energy Saving Potential. Energies 2022, 15, 9012. [Google Scholar] [CrossRef]
- Nada, S.A.; El-Batsh, H.M.; Elattar, H.F.; Ali, N.M. Cfd Investigation of Airflow Pattern, Temperature Distribution and Thermal Comfort of Ufad System for Theater Buildings Applications. J. Build. Eng. 2016, 6, 274–300. [Google Scholar] [CrossRef]
- Ricciardi, P.; Ziletti, A.; Buratti, C. Evaluation of Thermal Comfort in an Historical Italian Opera Theatre by the Calculation of the Neutral Comfort Temperature. Build. Environ. 2016, 102, 116–127. [Google Scholar] [CrossRef]
- Hanzawa, H. Airflow Characteristics in the Occupied Zone of Ventilated Spaces. ASHRAE Trans. 1987, 93, 524–539. [Google Scholar]
- Mel’kumov, V.N.; Loboda, A.V.; Chujkin, S.V. Mathematical Modelling of Air Streams in Large Spaces. Sci. Her. Voronezh State Univ. Archit. Civ. Eng. Constr. Archit. 2015, 1, 15–24. [Google Scholar]
- Huang, C.; Li, R.; Liu, Y.; Liu, J.; Wang, X. Study of Indoor Thermal Environment and Stratified Air-Conditioning Load with Low-Sidewall Air Supply for Large Space Based on Block-Gebhart Model. Build. Environ. 2019, 147, 495–505. [Google Scholar] [CrossRef]
- Hwang, P.W.; Wu, J.H.; Chang, Y.J. Optimization Based on Computational Fluid Dynamics and Machine Learning for the Performance of Diffuser-Augmented Wind Turbines with Inlet Shrouds. Sustainability 2024, 16, 3648. [Google Scholar] [CrossRef]
- Liu, T.; Wang, J.; Zhou, D.; Meng, X.; Luo, X.; Wang, Y. Research on Optimization Design Strategies for Natural Ventilation in Living Units of Institutional Elderly Care Facilities Based on Computational Fluid Dynamics Simulation. Buildings 2014, 14, 1648. [Google Scholar] [CrossRef]
- Du, Y.; Mak, C.M.; Li, Y. A Multi-Stage Optimization of Pedestrian Level Wind Environment and Thermal Comfort with Lift-up Design in Ideal Urban Canyons. Sustain. Cities Soc. 2019, 46, 101424. [Google Scholar] [CrossRef]
- Wu, C.; Zhi, C.; Ye, W.; Zhang, X. Scale Modeling Study of Airflow Distribution Uniformity in Large Spaces with High Heat Flux. Appl. Therm. Eng. 2022, 205, 118027. [Google Scholar] [CrossRef]
- Kavgic, M.; Mumovic, D.; Stevanovic, Z.; Young, A. Analysis of Thermal Comfort and Indoor Air Quality in a Mechanically Ventilated Theatre. Energy Build. 2008, 40, 1334–1343. [Google Scholar] [CrossRef]
- Noh, K.C.; Jang, J.S.; Oh, M.D. Thermal Comfort and Indoor Air Quality in the Lecture Room with 4-Way Cassette Air-Conditioner and Mixing Ventilation System. Build. Environ. 2007, 42, 689–698. [Google Scholar] [CrossRef]
- Papakonstantinou, K.A.; Kiranoudis, C.T.; Markatos, N.C. Numerical Simulation of CO2 Dispersion in an Auditorium. Energy Build. 2002, 34, 245–250. [Google Scholar] [CrossRef]
- Tu, D.; Tang, J.; Zhang, Z.; Sun, H. Thermal Environment Optimization in a Large Space Building for Energy-Saving. Case Stud. Therm. Eng. 2023, 51, 103649. [Google Scholar] [CrossRef]
- Fu, X.; Han, M. Analysis of Natural Ventilation Performance Gap between Design Stage and Actual Operation of Office Buildings. E3S Web Conf. 2020, 172, 09010. Available online: https://www.e3s-conferences.org/articles/e3sconf/abs/2020/32/e3sconf_nsb2020_09010/e3sconf_nsb2020_09010.html (accessed on 14 July 2025). [CrossRef]
- Chiu, P.H.; Raghavan, V.S.; Poh, H.J.; Tan, E.; Gabriela, O.; Wong, N.H.; Leong-Kok, S.M. Cfd Methodology Development for Singapore Green Mark Building Application. Procedia Eng. 2017, 180, 1596–1602. [Google Scholar] [CrossRef]
- Nada, S.A.; Elfeky, K.E. Experimental Investigations of Thermal Managements Solutions in Data Centers Buildings for Different Arrangements of Cold Aisles Containments. J. Build. Eng. 2016, 5, 41–49. [Google Scholar] [CrossRef]
- Losi, G.; Bonzanini, A.; Aquino, A.; Poesio, P. Analysis of Thermal Comfort in a Football Stadium Designed for Hot and Humid Climates by Cfd. J. Build. Eng. 2021, 33, 101599. [Google Scholar] [CrossRef]
- Cho, J.; Kim, B.S. Evaluation of Air Management System’s Thermal Performance for Superior Cooling Efficiency in High-Density Data Centers. Energy Build. 2011, 43, 2145–2155. [Google Scholar] [CrossRef]
- Alajmi, A.; El-Amer, W. Saving Energy by Using Underfloor-Air-Distribution (Ufad) System in Commercial Buildings. Energy Convers. Manag. 2010, 51, 1637–1642. [Google Scholar] [CrossRef]
- GB/T 50001-2017; Unified Standard for Building Drawings. Ministry of Housing and Urban-Rural Development of the People’s Republic of China, and State Administration for Market Regulation: Beijing, China, 2017.
- GB 50189-2015; Design Standard for Energy Efficiency of Public Buildings. Ministry of Housing and Urban-Rural Development of the People’s Republic of China; Inspection and Quarantine of the People’s Republic of China; The General Administration of Quality Supervision: Beijing, China, 2015.
- GB 50016-2014; Code for Fire Protection Design of Buildings. Ministry of Housing and Urban-Rural Development of the People’s Republic of China; China Planning Press: Beijing, China, 2014.
- GB 50352-2019; Uniform Standard for Design of Civil Buildings. Ministry of Housing and Urban-Rural Development of the Peoples’s Republic of China; The General Administration of Quality Supervision; China Building Industry Press: Beijing, China, 2019.
- GB 50019-2015; Design Code for Heating Ventilation and Air Conditioning of Industrial Buildings. Ministry of Housing and Urban-Rural Development of the People’s Republic of China; Inspection and Quarantine of the People’s Republic of China; China Planning Press: Beijing, China, 2015.
- GB/T 50378-2019; Assessment Standard for Green Building. Ministry of Housing and Urban-Rural Development of the Peoples’s Republic of China; China Building Industry Press: Beijing, China, 2019.
- GB/T 26189-2010; Lighting of Indoor Work Places. General Administration of Quality Supervision, Inspection and Quarantine, Standardization Administration of the People’s Republic of China: Beijing, China, 2011.
- Sun, L.; Zhang, X.; Gu, X. Airpak Learning Tutorials and Application Examples; Harbin Engineering University Press: Harbin, China, 2020. [Google Scholar]
- Li, Y. Numerical Simulation and Analysis for Indoor Air Quality in Different Ventilation. Health 2012, 4, 1352–1361. [Google Scholar] [CrossRef][Green Version]
- Feng, G.; Zhou, Z.; He, Y.; Song, J. Actual Measurement and Analysis of Winter Thermal Environment of a Graduate Student Studio in Shenyang Based on Airpak Numerical Simulation. In Proceedings of the E3S Web of Conferences, Xi’an, China, 16–19 September 2022. [Google Scholar]
- Li, J.; Long, E.; Yang, H.; Wang, M.; Wang, Z. Study on Influence of Altitude on Indoor Temperature Distribution of a Heating Room. In Proceedings of the 11th International Symposium on Heating, Ventilation and Air Conditioning (ISHVAC 2019), Harbin, China, 12–15 July 2019. [Google Scholar]
- GB 50176-2016; Code for Thermal Design of Civil Building. Ministry of Housing Urban-Rural Development of the People’s Republic of China; China Building Industry Press: Beijing, China, 2017.
- Awbi, H.B. Calculation of Convective Heat Transfer Coefficients of Room Surfaces for Natural Convection. Energy Build. 1998, 28, 219–227. [Google Scholar] [CrossRef]
- Wang, H.; Fan, C. Evaluation Index of Indoor Air Exchange Blowdown Effect. HVAC 1997, 27, 29–34. [Google Scholar]
- Li, Y.; Lin, D.; Zhang, Y.; Song, Z.; Sha, X.; Zhou, S.; Yu, Z. Quantifying Tree Canopy Coverage Threshold of Typical Residential Quarters Considering Human Thermal Comfort and Heat Dynamics under Extreme Heat. Build. Environ. 2023, 233, 110100. [Google Scholar] [CrossRef]
- Saïd, M.N.A.; MacDonald, R.A.; Durrant, G.C. Measurement of Thermal Stratification in Large Single-Cell Buildings. Energy Build. 1996, 24, 105–115. [Google Scholar] [CrossRef]
- Hunt, G.R.; Cooper, P.; Linden, P.F. Thermal Stratification Produced by Plumes and Jets in Enclosed Spaces. Build. Environ. 2001, 36, 871–882. [Google Scholar] [CrossRef]
- Gilani, S.; Montazeri, H.; Blocken, B. Cfd Simulation of Stratified Indoor Environment in Displacement Ventilation: Validation and Sensitivity Analysis. Build. Environ. 2016, 95, 299–313. [Google Scholar] [CrossRef]











| Name | Velocity/(m/s) | Direction |
|---|---|---|
| Opening.1-1 to opening.3-4 | −5.18 | Y |
| Opening.4-1 to opening.4-6 | 4.15 | X |
| Opening.5-1 to opening.5-6 | −4.51 | Y |
| Opening.6-1 to opening.6-8 | 4.51 | Z |
| Opening.7-1 to opening.7-8 | −4.51 | Y |
| Opening.8-1 to opening.8-6 | −4.51 | X |
| Opening.9-1 to opening.9-6 | −4.51 | Y |
| Opening.10-1 to opening.12-4 | −5.18 | Y |
| Opening.13-1 to opening.13-6 | 3.2 | Y |
| Name | Wall Type | Outside Heat Flux/(W/m2) |
|---|---|---|
| Left floor | Stationary | 40.0 |
| Mid-floor | Stationary | 110.0 |
| Right floor | Stationary | 40.0 |
| Room-side Y max | Stationary | 9.88 |
| Min. Y Fixed Heat (W/m2) | Min. Z Fixed Heat (W/m2) | Max. Z Fixed Heat (W/m2) |
|---|---|---|
| 156.0 | 10.0 | 10.0 |
| Scenario | Supply Air Volume | Diffuser Radius | Rear-Stage Airflow Disturbance | Configuration Notes |
|---|---|---|---|---|
| S1 | Constant | Uniform (R = 0.15) | None | Baseline condition |
| S2 | Constant | Reduced | None | Reduced airflow configuration |
| S3 | Constant | Increased | None | Enlarged outlet radius |
| S4 | Constant | Non-uniform | None | Variable radius by zone |
| S5 | Constant | Non-uniform | With disturbance | Disturbance air added |
| S6 | Constant | Optimized | With disturbance | Final improved design |
| Number | Organization | Scale Range/(°C) | Feature | |
|---|---|---|---|---|
| 1 | Only natural ventilation | 25.0–50.0 | The exhaust vent is sucking in air, causing the heat to accumulate and the temperature to soar extremely high. | 0.030 |
| 2 | No mechanical ventilation | 20.0–30.0 | Low-efficiency heat dissipation—the temperature has decreased somewhat but is still uneven. | 0.037 |
| 3 | Original | 23.0–35.0 | The temperature in the waiting area is low (24 °C), while that in the performance area is high (27 °C), resulting in uneven temperature distribution. | 0.036 |
| 4 | Extend to the full-half height space | 23.0–35.0 | The heat dissipation has slightly increased, but the temperature distribution remains uneven. | 0.033 |
| 5 | Adjust the radius of the supply air outlet | 20.0–30.0 | The temperature is evenly distributed, and it can effectively improve the thermal environment of the stage space. | 0.027 |
| 6 | Add fans | 20.0–35.0 | The overall temperature dropped, the temperature distribution became uniform, and the thermal environment of the stage was significantly improved. | 0.045 |
Disclaimer/Publisher’s Note: The statements, opinions and data contained in all publications are solely those of the individual author(s) and contributor(s) and not of MDPI and/or the editor(s). MDPI and/or the editor(s) disclaim responsibility for any injury to people or property resulting from any ideas, methods, instructions or products referred to in the content. |
© 2025 by the authors. Licensee MDPI, Basel, Switzerland. This article is an open access article distributed under the terms and conditions of the Creative Commons Attribution (CC BY) license (https://creativecommons.org/licenses/by/4.0/).
Share and Cite
Liu, Y.; Zhang, M.; Han, W.; He, Y.; Yi, C.; Zhang, Y.; Li, J. Airflow Dynamics for Micro-Wind Environment Optimization and Human Comfort Improvement: Roadshow Design for Theater Stage Spaces. Sensors 2025, 25, 4456. https://doi.org/10.3390/s25144456
Liu Y, Zhang M, Han W, He Y, Yi C, Zhang Y, Li J. Airflow Dynamics for Micro-Wind Environment Optimization and Human Comfort Improvement: Roadshow Design for Theater Stage Spaces. Sensors. 2025; 25(14):4456. https://doi.org/10.3390/s25144456
Chicago/Turabian StyleLiu, Yiheng, Menglong Zhang, Wenyang Han, Yufei He, Chang Yi, Yin Zhang, and Jin Li. 2025. "Airflow Dynamics for Micro-Wind Environment Optimization and Human Comfort Improvement: Roadshow Design for Theater Stage Spaces" Sensors 25, no. 14: 4456. https://doi.org/10.3390/s25144456
APA StyleLiu, Y., Zhang, M., Han, W., He, Y., Yi, C., Zhang, Y., & Li, J. (2025). Airflow Dynamics for Micro-Wind Environment Optimization and Human Comfort Improvement: Roadshow Design for Theater Stage Spaces. Sensors, 25(14), 4456. https://doi.org/10.3390/s25144456

