Innovative Photonic Sensors for Safety and Security, Part III: Environment, Agriculture and Soil Monitoring
Abstract
1. Introduction
2. Optical Fiber Sensors for Agriculture and Soil Monitoring
2.1. Optical Fiber Sensors for Soil Water Content Measurement
2.2. Landslides Early Warning
3. Optical Fiber Sensors for Seismic Monitoring
3.1. Optical Fiber Sensors for Land Seismic Monitoring
3.2. Opto-Mechanical Lab on Fiber Seismic Accelerometer
3.3. Fiber Optic-Based Sensors for Underwater Seismic Monitoring
3.4. Design and Field Demonstration of the Lab on Fiber Seismic
4. Fiber Optic Sensors for High Radiations Environments
4.1. FOS for Relative Humidity Monitoring in HEP Environments
4.2. FOS in Operation in CERN Experiments
4.2.1. Examples of FBG Monitoring System within the FOS4CMS Project
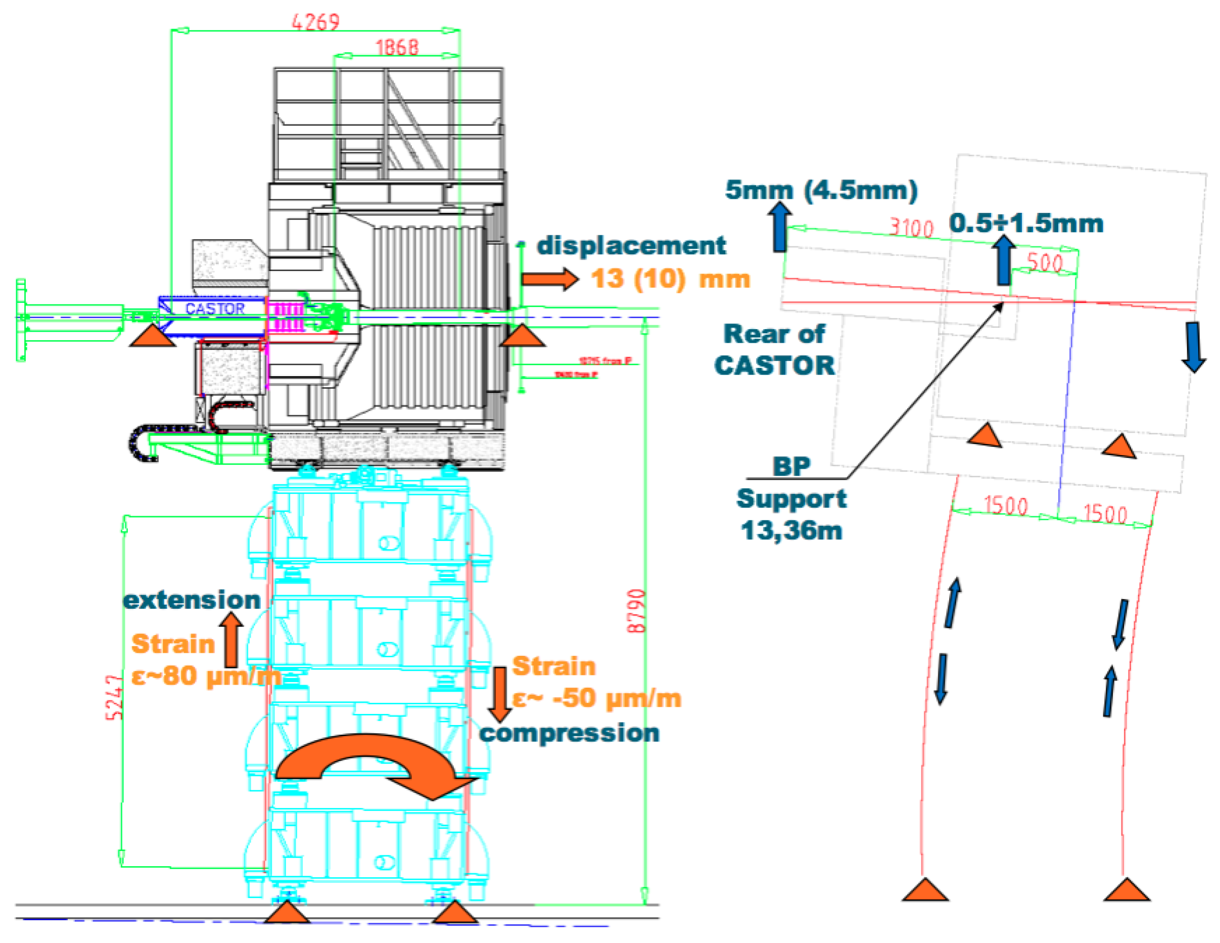
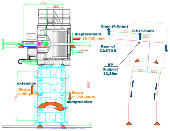
HF Raisers and CASTOR Platform Structural Monitoring
Cavern Temperature Monitoring
RPC Endcap Temperature Monitoring
Tracker RH Monitoring
4.2.2. Central Beam Pipe Monitoring System

4.3. FOS for Dose Monitoring
4.3.1. LPG for Dose Monitoring in HEP Environments
LPG under Gamma and Neutron Irradiation
LPG under Proton Irradiation
4.3.2. LOF for Dose Monitoring in HEP Environments
4.3.3. Optical Fiber Technology and Radiochromic Films for Dose Monitoring
5. Conclusions and Future Trends
- To translate the innovative research results into other market products thus creating new startup companies.
- To explore new applications to improve both the safety and the security in other fields such as agrifood, antiterrorism, biomedical and precision medicine, the environment and energy saving.
- To improve the performance of our devices by increasing the use of both the nanotechnology and of the nano materials.
Author Contributions
Funding
Institutional Review Board Statement
Informed Consent Statement
Data Availability Statement
Acknowledgments
Conflicts of Interest
References
- Cusano, A.; Cutolo, A.; Albert, J. (Eds.) Fiber Bragg Grating Sensors: Recent Advancements, Industrial Applications and Market Exploitation; Bentham Science Publishers: Sharjah, United Arab Emirates, 2011; ISBN 9781608050840. [Google Scholar]
- Pisco, M.; Cusano, A.; Cutolo, A. (Eds.) Photonic Bandgap Structures Novel Technological Platforms for Physical, Chemical and Biological Sensing; Bentham Science Publishers: Sharjah, United Arab Emirates, 2012; ISBN 9781608054480. [Google Scholar]
- Andreone, A.; Cusano, A.; Cutolo, A.; Galdi, V. Selected Topics in Photonic Crystals and Metamaterials; World Scientific: Singapore, 2011; ISBN 978-981-4355-18-6. [Google Scholar]
- Dobson, P.J. Optochemical Nanosensors, edited by Andrea Cusano, Francisco J. Arregui, Michele Giordano and Antonello Cutolo. Contemp. Phys. 2014, 55, 123–124. [Google Scholar] [CrossRef]
- Pisco, M. Optical Fibers: New Developments. In Lasers and Electro-Optics Research and Technology; Pisco, M., Ed.; Nova Science Pub Inc.: New York, NY, USA, 2013; ISBN 978-1-62808-425-2. [Google Scholar]
- Myridis, N.E. Lab-on-Fiber Technology; Cusano, A., Consales, M., Crescitelli, A., Ricciardi, A., Eds.; Springer: Berlin/Heidelberg, Germany, 2018; Volume 59, pp. 78–79. [Google Scholar]
- Cutolo, A.; Mignani, A.G.; Tajani, A. Photonics for Safety and Security; World Scientific: Singapore, 2013; ISBN 978-981-4412-96-4. [Google Scholar]
- Righini, G.C.; Tajani, A.; Cutolo, A. An Introduction to Optoelectronic Sensors; Series in Optics and Photonics; World Scientific: Singapore, 2009; Volume 7, ISBN 978-981-283-412-6. [Google Scholar]
- Cusano, A.; Cutolo, A.; Giordano, M.; Nicolais, L. Optoelectronic refractive index measurements: Application to smart processing. IEEE Sens. J. 2003, 3, 781–787. [Google Scholar] [CrossRef]
- Cennamo, N.; Pasquardini, L.; Arcadio, F.; Lunelli, L.; Vanzetti, L.; Carafa, V.; Altucci, L.; Zeni, L. SARS-CoV-2 spike protein detection through a plasmonic D-shaped plastic optical fiber aptasensor. Talanta 2021, 233, 122532. [Google Scholar] [CrossRef] [PubMed]
- Zeni, L.; Picarelli, L.; Avolio, B.; Coscetta, A.; Papa, R.; Zeni, G.; Di Maio, C.; Vassallo, R.; Minardo, A. Brillouin Optical Time-Domain Analysis for Geotechnical Monitoring. J. Rock Mech. Geotech. Eng. 2015, 7, 458–462. [Google Scholar] [CrossRef]
- Minardo, A.; Porcaro, G.; Giannetta, D.; Bernini, R.; Zeni, L. Real-time monitoring of railway traffic using slope-assisted Brillouin distributed sensors. Appl. Opt. 2013, 52, 3770–3776. [Google Scholar] [CrossRef]
- Bernini, R.; Minardo, A.; Persiano, G.V.; Vaccaro, R.; Villacci, D.; Zeni, L. Dynamic Loading of Overhead Lines by Adaptive Learning Techniques and Distributed Temperature Sensing. IET Gener. Transm. Dis. 2007, 1, 912–919. [Google Scholar] [CrossRef]
- Bernini, R.; Minardo, A.; Zeni, L. Vectorial dislocation monitoring of pipelines by use of Brillouin-based fiber-optics sensors. Smart Mater. Struct. 2008, 17, 015006. [Google Scholar] [CrossRef]
- Agliata, R.; Bogaard, T.A.; Greco, R.; Minardo, A.; Mollo, L.; Steele-Dunne, S.C. Non-invasive water content estimation in a tuff wall by DTS. Constr. Build. Mater. 2019, 197, 821–829. [Google Scholar] [CrossRef]
- Catalano, E.; Coscetta, A.; Cennamo, N.; Cerri, E.; Zeni, L.; Minardo, A. Automatic traffic monitoring by φ-OTDR data and Hough transform in a real-field environment. Appl. Opt. 2021, 60, 3579–3584. [Google Scholar] [CrossRef]
- Bernini, R.; Minardo, A.; Zeni, L. Dynamic strain measurement in optical fibers by stimulated Brillouin scattering. Opt. Lett. 2009, 34, 2613–2615. [Google Scholar] [CrossRef]
- Minardo, A.; Persichetti, G.; Testa, G.; Zeni, L.; Bernini, R. Long term structural health monitoring by Brillouin fiber-optic sensing: A real case. J. Geophys. Eng. 2012, 9, S64–S69. [Google Scholar] [CrossRef]
- Minardo, A.; Bernini, R.; Amato, L.; Zeni, L. Bridge monitoring using Brillouin fiber-optic sensors. IEEE Sens. J. 2012, 12, 145–150. [Google Scholar] [CrossRef]
- Minardo, A.; Coscetta, A.; Pirozzi, S.; Bernini, R.; Zeni, L. Modal analysis of a cantilever beam by use of Brillouin based distributed dynamic strain measurements. Smart Mater. Struct. 2012, 21, 125022. [Google Scholar] [CrossRef]
- De Vita, E.; De Tommasi, F.; Massaroni, C.; Iadicicco, A.; Faiella, E.; Carassiti, M.; Grasso, R.F.; Schena, E.; Campopiano, S. Investigation of the Heat Sink Effect during Microwave Ablation in Hepatic Tissue: Experimental and Numerical Analysis. IEEE Sens. J. 2021, 21, 22743–22751. [Google Scholar] [CrossRef]
- De Vita, E.; De Landro, M.; Massaroni, C.; Iadicicco, A.; Saccomandi, P.; Schena, E.; Campopiano, S. Fiber Optic Sensors-Based Thermal Analysis of Perfusion-Mediated Tissue Cooling in Liver Undergoing Laser Ablation. IEEE Trans. Biomed. Eng. 2021, 68, 1066–1073. [Google Scholar] [CrossRef]
- Esposito, F.; Sansone, L.; Srivastava, A.; Cusano, A.M.; Campopiano, S.; Giordano, M.; Iadicicco, A. Label-free detection of vitamin D by optical biosensing based on long period fiber grating. Sens. Actuators B Chem. 2021, 347, 130637. [Google Scholar] [CrossRef]
- Esposito, F.; Sansone, L.; Srivastava, A.; Baldini, F.; Campopiano, S.; Chiavaioli, F.; Giordano, M.; Giannetti, A.; Iadicicco, A. Long period grating in double cladding fiber coated with graphene oxide as high-performance optical platform for biosensing. Biosens. Bioelectron. 2021, 172, 112747. [Google Scholar] [CrossRef]
- Esposito, F.; Srivastava, A.; Sansone, L.; Giordano, M.; Campopiano, S.; Iadicicco, A. Label-Free Biosensors Based on Long Period Fiber Gratings: A Review. IEEE Sens. J. 2021, 21, 12692–12705. [Google Scholar] [CrossRef]
- Esposito, F. (INVITED)Chemical sensors based on long period fiber gratings: A review. Results Opt. 2021, 5, 100196. [Google Scholar] [CrossRef]
- Esposito, F.; Campopiano, S.; Iadicicco, A. Miniaturized Strain-Free Fiber Bragg Grating Temperature Sensors. IEEE Sens. J. 2022, 22, 16898–16903. [Google Scholar] [CrossRef]
- Scaravilli, M.; Micco, A.; Castaldi, G.; Coppola, G.; Gioffrè, M.; Iodice, M.; La Ferrara, V.; Galdi, V.; Cusano, A. Excitation of Bloch Surface Waves on an Optical Fiber Tip. Adv. Opt. Mater. 2018, 6, 1800477. [Google Scholar] [CrossRef]
- Galeotti, F.; Pisco, M.; Cusano, A. Self-assembly on optical fibers: A powerful nanofabrication tool for next generation “lab-on-fiber” optrodes. Nanoscale 2018, 10, 22673–22700. [Google Scholar] [CrossRef] [PubMed]
- Principe, M.; Consales, M.; Castaldi, G.; Galdi, V.; Cusano, A. Evaluation of fiber-optic phase-gradient meta-tips for sensing applications. Nanomater. Nanotechnol. 2019, 9, 184798041983272. [Google Scholar] [CrossRef]
- Consales, M.; Quero, G.; Spaziani, S.; Principe, M.; Micco, A.; Galdi, V.; Cutolo, A.; Cusano, A. Metasurface-Enhanced Lab-on-Fiber Biosensors. Laser Photon. Rev. 2020, 14, 2000180. [Google Scholar] [CrossRef]
- Pisco, M.; Galeotti, F.; Quero, G.; Grisci, G.; Micco, A.; Mercaldo, L.V.; Veneri, P.D.; Cutolo, A.; Cusano, A. Nanosphere lithography for optical fiber tip nanoprobes. Light Sci. Appl. 2017, 6, e16229. [Google Scholar] [CrossRef]
- Giaquinto, M.; Aliberti, A.; Micco, A.; Gambino, F.; Ruvo, M.; Ricciardi, A.; Cusano, A. Cavity-Enhanced Lab-on-Fiber Technology: Toward Advanced Biosensors and Nano-Opto-Mechanical Active Devices. ACS Photonics 2019, 6, 3271–3280. [Google Scholar] [CrossRef]
- Managò, S.; Quero, G.; Zito, G.; Tullii, G.; Galeotti, F.; Pisco, M.; De Luca, A.C.; Cusano, A. Tailoring lab-on-fiber SERS optrodes towards biological targets of different sizes. Sens. Actuators B Chem. 2021, 339, 129321. [Google Scholar] [CrossRef]
- Alessandra Cutolo, M.; Breglio, G. (INVITED) Interferometric Fabry-Perot sensors for ultrasound detection on the tip of an optical fiber. Results Opt. 2022, 6, 100209. [Google Scholar] [CrossRef]
- Principe, S.; Giaquinto, M.; Micco, A.; Cutolo, M.A.; Riccio, M.; Breglio, G.; Irace, A.; Ricciardi, A.; Cusano, A. Thermo-plasmonic lab-on-fiber optrodes. Opt. Laser Technol. 2020, 132, 106502. [Google Scholar] [CrossRef]
- Alessandra Cutolo, M.; Migliaccio, A.; Altucci, L.; Cutolo, A.; Cusano, A. An Innovative High Frequency Hyperthermia Approach against SARS-Cov-2 and Related Virus: Feasibility Analysis. Arch. Clin. Biomed. Res. 2021, 5, 569–580. [Google Scholar] [CrossRef]
- Carotenuto, B.; Ricciardi, A.; Micco, A.; Amorizzo, E.; Mercieri, M.; Cutolo, A.; Cusano, A. Optical fiber technology enables smart needles for epidurals: An in-vivo swine study. Biomed. Opt. Express 2019, 10, 1351. [Google Scholar] [CrossRef] [PubMed]
- Carotenuto, B.; Ricciardi, A.; Micco, A.; Amorizzo, E.; Mercieri, M.; Cutolo, A.; Cusano, A. Smart Optical Catheters for Epidurals. Sensors 2018, 18, 2101. [Google Scholar] [CrossRef] [PubMed]
- Aliberti, A.; Ricciardi, A.; Giaquinto, M.; Micco, A.; Bobeico, E.; La Ferrara, V.; Ruvo, M.; Cutolo, A.; Cusano, A. Microgel assisted Lab-on-Fiber Optrode. Sci. Rep. 2017, 7, 14459. [Google Scholar] [CrossRef]
- Filograno, M.L.; Pisco, M.; Catalano, A.; Forte, E.; Aiello, M.; Cavaliere, C.; Soricelli, A.; Davino, D.; Visone, C.; Cutolo, A.; et al. Triaxial Fiber Optic Magnetic Field Sensor for Magnetic Resonance Imaging. J. Light. Technol. 2017, 35, 3924–3933. [Google Scholar] [CrossRef]
- Zuppolini, S.; Quero, G.; Consales, M.; Diodato, L.; Vaiano, P.; Venturelli, A.; Santucci, M.; Spyrakis, F.; Costi, M.P.; Giordano, M.; et al. Label-free fiber optic optrode for the detection of class C β-lactamases expressed by drug resistant bacteria. Biomed. Opt. Express 2017, 8, 5191–5205. [Google Scholar] [CrossRef]
- Berruti, G.M.; Vaiano, P.; Boniello, A.; Principe, S.; Quero, G.; Persiano, G.V.; Consales, M.; Cusano, A. Highly Efficient Fiber Optic Thermal Heating Device Based on Turn-Around-Point Long Period Gratings. J. Light Technol. 2022, 40, 797–804. [Google Scholar] [CrossRef]
- Giaquinto, M.; Ricciardi, A.; Cutolo, A.; Cusano, A. Lab-on-Fiber Plasmonic Probes for Ultrasound Detection: A Comparative Study. J. Light Technol. 2016, 34, 5189–5198. [Google Scholar] [CrossRef]
- Quero, G.; Consales, M.; Severino, R.; Vaiano, P.; Boniello, A.; Sandomenico, A.; Ruvo, M.; Borriello, A.; Diodato, L.; Zuppolini, S.; et al. Long period fiber grating nano-optrode for cancer biomarker detection. Biosens. Bioelectron. 2016, 80, 590–600. [Google Scholar] [CrossRef]
- Rossi, B.; Cutolo, M.A.; Giaquinto, M. Advanced Lab-on-Tip ultrasound detectors: A numerical analysis. Results Opt. 2022, 9, 100312. [Google Scholar] [CrossRef]
- Scherino, L.; Schioppa, E.J.; Arapova, A.; Berruti, G.M.; Bock, W.J.; Boniello, A.; Borriello, A.; Campopiano, S.; Consales, M.; Cusano, A.; et al. Fiber optic sensors in the ATLAS Inner Detector. Nucl. Instrum. Methods Phys. Res. Sect. A Accel. Spectrometers Detect. Assoc. Equip. 2022, 1029, 166470. [Google Scholar] [CrossRef]
- Cutolo, A.; Bernini, R.; Berruti, G.M.; Breglio, G.; Bruno, F.A.; Buontempo, S.; Catalano, E.; Consales, M.; Coscetta, A.; Cusano, A.; et al. Innovative Photonic Sensors for Safety and Security, Part II: Aerospace and Submarine Applications. Sensors 2023, 23, 2417. [Google Scholar] [CrossRef] [PubMed]
- Minardo, A.; Bernini, R.; Berruti, G.M.; Breglio, G.; Bruno, F.A.; Buontempo, S.; Campopiano, S.; Catalano, E.; Consales, M.; Coscetta, A.; et al. Innovative Photonic Sensors for Safety and Security, Part I: Fundamentals, Infrastructural and Ground Transportations. Sensors 2023, 23, 2558. [Google Scholar] [CrossRef] [PubMed]
- Yin, H.; Cao, Y.; Marelli, B.; Zeng, X.; Mason, A.J.; Cao, C. Soil sensors and plant wearables for smart and precision agriculture. Adv. Mater. 2021, 33, 2007764. [Google Scholar] [CrossRef] [PubMed]
- Schmugge, T.J.; Jackson, Y.J.; McKim, H.L. Survey of methods for soil moisture determination. Water Resour. Res. 1980, 16, 961–979. [Google Scholar] [CrossRef]
- Hill, K.O.; Meltz, G. Fiber Bragg Grating Technology Fundamentals and Overview. J. Light. Technol. 1997, 15, 1263–1276. [Google Scholar] [CrossRef]
- Leone, M.; Principe, S.; Consales, M.; Parente, R.; Laudati, A.; Caliro, S.; Cutolo, A.; Cusano, A. Fiber optic ther-mo-hygrometers for soil moisture monitoring. Sensors 2017, 17, 1451. [Google Scholar] [CrossRef]
- Kronenberg, P.; Rastogi, P.K.; Giaccari, P.; Limberger, H.G. Relative humidity sensor with optical fiber Bragg grating. Opt. Lett. 2002, 27, 1385–1387. [Google Scholar] [CrossRef]
- Yeo, T.L.; Sun, T.; Grattan, K.T.V.; Parry, D.; Lade, R.; Powell, B.D. Characterization of a polymer-coated fiber Bragg grating sensor for relative humidity sensing. Sens. Actuators B Chem. 2005, 110, 148–155. [Google Scholar] [CrossRef]
- Berruti, G.; Consales, M.; Giordano, M.; Sansone, L.; Petagna, P.; Buontempo, S.; Breglio, G.; Cusano, A. Radiation hard humidity sensors for high energy physics applications using polyimide-coated fiber Bragg gratings sensors. Sens. Actuators B Chem. 2013, 177, 94–102. [Google Scholar] [CrossRef]
- Laylor, H.M.; Calvert, S.; Taylor, T.; Schulz, W.L.; Lumsden, R.W.; Udd, E. Fiber optic grating moisture and humidity sensors. In Proceedings of the SPIE’s 9th Annual International Symposium on Smart Structures and Materials, International Society for Optics and Photonics, San Diego, CA, USA, 27 June 2002. [Google Scholar]
- Reynolds, S.G. The gravimetric method of soil moisture determination Part IA study of equipment, and methodological problems. J. Hydrol. 1970, 11, 258–273. [Google Scholar] [CrossRef]
- Leone, M.; Consales, M.; Passeggio, G.; Buontempo, S.; Zaraket, H.; Youssef, A.; Persiano, G.; Cutolo, A.; Cusano, A. Fiber optic soil water content sensor for precision farming. Opt. Laser Technol. 2022, 149, 107816. [Google Scholar] [CrossRef]
- Fredlund, D.G. Unsaturated soil mechanics in engineering practice. J. Geotech. Geoenviron. Eng. 2006, 132, 286–321. [Google Scholar] [CrossRef]
- Kedenburg, S.; Vieweg, M.; Gissibl, T.; Giessen, H. Linear refractive index and absorption measurements of nonlinear optical liquids in the visible and near-infrared spectral region. Opt. Mater. Express 2012, 2, 1588–1611. [Google Scholar] [CrossRef]
- Damiano, E.; Avolio, B.; Minardo, A.; Olivares, L.; Picarelli, L.; Zeni, L. A laboratory study on the use of optical fibers for early detection of pre-failure slope movements in shallow granular soil deposits. Geotech. Test. J. 2017, 40, 529–541. [Google Scholar] [CrossRef]
- Wang, B.; Li, K.; Wei, G. Test on application of distributed fiber optic sensing technique into soil slope monitoring. Landslides 2009, 6, 61–68. [Google Scholar] [CrossRef]
- Schenato, L.; Palmieri, L.; Camporese, M.; Bersan, S.; Cola, S.; Pasuto, A.; Galtarossa, A.; Salandin, P.; Simonini, P. Distributed optical fibre sensing for early detection of shallow landslides triggering. Sci. Rep. 2017, 7, 14686. [Google Scholar] [CrossRef]
- Minardo, A.; Zeni, L.; Coscetta, A.; Catalano, E.; Zeni, G.; Damiano, E.; De Cristofaro, M.; Olivares, L. Distributed Optical Fiber Sensor Applications in Geotechnical Monitoring. Sensors 2021, 21, 7514. [Google Scholar] [CrossRef]
- Minardo, A.; Catalano, E.; Coscetta, A.; Zeni, G.; Di Maio, C.; Vassallo, R.; Picarelli, L.; Coviello, R.; Macchia, G.; Zeni, L. Long-Term Monitoring of a Tunnel in a Landslide Prone Area by Brillouin-Based Distributed Optical Fiber Sensors. Sensors 2021, 21, 7032. [Google Scholar] [CrossRef]
- Minardo, A.; Catalano, E.; Coscetta, A.; Zeni, G.; Zhang, L.; Di Maio, C.; Vassallo, R.; Coviello, R.; Macchia, G.; Picarelli, L.; et al. Distributed Fiber Optic Sensors for the Monitoring of a Tunnel Crossing a Landslide. Remote Sens. 2018, 10, 1291. [Google Scholar] [CrossRef]
- Vassallo, R.; Calcaterra, S.; D’Agostino, N.; De Rosa, J.; Di Maio, C.; Gambino, P. Long-Term Displacement Monitoring of Slow Earthflows by Inclinometers and GPS, and Wide Area Surveillance by COSMO-SkyMed Data. Geosciences 2020, 10, 171. [Google Scholar] [CrossRef]
- Vassallo, R.; De Rosa, J.; Di Maio, C.; Reale, D.; Verde, S.; Fornaro, G. In situ and satellite long-term monitoring of slow clayey landslides and of the structures built on them. In Proceedings of the 1st Mediterranean Symposium on Landslides, Napoli, Italy, 7–9 June 2021. [Google Scholar]
- Bruno, F.; Pisco, M.; Galluzzo, D.; Nardone, L.; Gruca, G.; Rijnveld, N.; Bianco, F.; Cutolo, A.; Cusano, A. Opto-mechanical lab-on-fibre seismic sensors detected the Norcia earthquake. Sci. Rep. 2018, 8, 6680. [Google Scholar] [CrossRef]
- Janneh, M.; Bruno, F.; Guardato, S.; Donnarumma, G.; Iannaccone, G.; Gruca, G.; Werzinger, S.; Gunda, A.; Rijnveld, N.; Cutolo, A.; et al. Field demonstration of an Optical Fiber Hydrophone for Seismic monitoring at Campi-Flegrei caldera. J. Opt. Laser Technol. 2022, 158, 108920. [Google Scholar] [CrossRef]
- Dong, L.; Shan, J. A comprehensive review of earthquake-induced building damage detection with remote sensing techniques. ISPRS J. Photogramm. Remote Sens. 2013, 84, 85–99. [Google Scholar] [CrossRef]
- Lackey, K. The World’s Deadliest Earthquakes in Past Decade, USA TODAY. 2018. Available online: https://www.usatoday.com/story/news/world/2015/04/25/worlds-deadliest-earthquake/26357241/ (accessed on 14 February 2023).
- Seismic Risk. Available online: https://rischi.protezionecivile.gov.it/en/pagina-base/seismic-risk (accessed on 14 February 2023).
- Moretti, M.; Pondrelli, S.; Margheriti, L.; Abruzzese, L.; Anselmi, M.; Arroucau, P.; Baccheschi, P.; Baptie, B.; Bonadio, R.; Bono, A.; et al. SISMIKO: Emergency network deployment and data sharing for the 2016 central Italy seismic sequence. Ann. Geophys. 2016, 59, 10.4401. [Google Scholar] [CrossRef]
- Michelini, A.; Margheriti, L.; Cattaneo, M.; Cecere, G.; D’Anna, G.; Delladio, A.; Moretti, M.; Pintore, S.; Amato, A.; Basili, A.; et al. The Italian National Seismic Network and the earthquake and tsunami monitoring and surveillance systems. Adv. Geosci. 2016, 43, 31–38. [Google Scholar] [CrossRef]
- Collette, C.; Janssens, S.; Fernandez-Carmona, P.; Artoos, K.; Guinchard, M.; Hauviller, C.; Preumont, A. Review: Inertial Sensors for Low-Frequency Seismic Vibration Measurement. Bull. Seismol. Soc. Am. 2012, 102, 1289–1300. [Google Scholar] [CrossRef]
- Grattan, K.T.V.; Sun, T. Fiber optic sensor technology: An overview. Sens. Actuators A Phys. 2000, 82, 40–61. [Google Scholar] [CrossRef]
- Catalano, A.; Bruno, F.A.; Galliano, C.; Pisco, M.; Persiano, G.V.; Cutolo, A.; Cusano, A. An optical fiber intrusion detection system for railway security. Sens. Actuators A Phys. 2017, 253, 91–100. [Google Scholar] [CrossRef]
- Feng, D.; Qiao, X.; Yang, H.; Rong, Q.; Wang, R.; Du, Y.; Hu, M.; Feng, Z. A Fiber Bragg Grating Accelerometer Based on a Hybridization of Cantilever Beam. IEEE Sens. J. 2015, 15, 1532–1537. [Google Scholar] [CrossRef]
- Raj, J.D.; Nelson, J.A.; Rao, K.S.P. A Fiber-Optic Bragg Grating Seismic Sensor. IEEE Photonics Technol. Lett. 2007, 19, 1991–1993. [Google Scholar] [CrossRef]
- Todd, M.D.; Johnson, G.A.; Althouse, B.A.; Vohra, S.T. Flexural beam-based fiber Bragg grating accelerometers. IEEE Photonics Technol. Lett. 1998, 10, 1605–1607. [Google Scholar] [CrossRef]
- Liu, Q.; Qiao, X.; Jia, Z.; Fu, H.; Gao, H.; Yu, D. Large Frequency Range and High Sensitivity Fiber Bragg Grating Accelerometer Based on Double Diaphragms. IEEE Sens. J. 2014, 14, 1499–1504. [Google Scholar] [CrossRef]
- Li, T.; Shi, C.; Tan, Y.; Li, R.; Zhou, Z.; Ren, H. A Diaphragm Type Fiber Bragg Grating Vibration Sensor Based on Transverse Property of Optical Fiber With Temperature Compensation. IEEE Sens. J. 2015, 17, 1021–1029. [Google Scholar] [CrossRef]
- Aspelmeyer, A.; Kippenberg, T.J.; Marquardt, F. Cavity optomechanics. Rev. Mod. Phys. 2014, 86, 1391–1452. [Google Scholar] [CrossRef]
- Ricciardi, A.; Crescitelli, A.; Vaiano, P.; Quero, G.; Consales, M.; Pisco, M.; Esposito, E.; Cusano, A. Lab-on-fiber technology: A new vision for chemical and biological sensing. Analyst 2015, 140, 8068–8079. [Google Scholar] [CrossRef]
- Raj, J.D.; Nelson, J.A.; Rao, K.S.P. Lab on Fiber Technology for biological sensing applications. Laser Photonics Rev. 2016, 10, 922–961. [Google Scholar] [CrossRef]
- Kilic, O.; Digonnet, M.J.F.; Kino, G.S.; Solgaard, O. External fibre Fabry–Perot acoustic sensor based on a photonic-crystal mirror. Meas. Sci. Technol. 2007, 18, 3049–3054. [Google Scholar] [CrossRef]
- Kilic, O.; Digonnet, M.J.F.; Kino, G.S.; Solgaard, O. Miniature photonic-crystal hydrophone optimized for ocean acoustics. J. Acoust. Soc. Am. 2011, 129, 1837–1850. [Google Scholar] [CrossRef]
- Beekmans, V.; Emanuel, K.S.; Smit, T.H.; Iannuzzi, D. Minimally Invasive Micro-Indentation: Mapping tissue mechanics at the tip of an 18G needle. Sci. Rep. 2017, 7, 11364. [Google Scholar] [CrossRef]
- Chavan, D.; Gruca, G.; de Man, S.; Slaman, M.; Rector, J.H.; Heeck, K.; Iannuzzi, D. Fiber-top atomic force microscope. Rev. Sci. Instrum. 2006, 77, 123702. [Google Scholar] [CrossRef]
- Gruca, G.; de Man, S.; Slaman, M.; Rector, J.H.; Iannuzzi, D. Ferrule-top micromachined devices: Design, fabrication, performance. Meas. Sci. Technol. 2010, 21, 094033. [Google Scholar] [CrossRef]
- Gavan, K.B.; Rector, J.H.; Heeck, K.; Chavan, D.; Gruca, G.; Oosterkamp, T.H.; Iannuzzi, D. Top-down approach to fiber-top cantilevers. Opt. Lett. 2011, 36, 2898–2900. [Google Scholar] [CrossRef] [PubMed]
- Tilling, R.I. The critical role of volcano monitoring in risk reduction. Adv. Geosci. 2008, 14, 3–11. [Google Scholar] [CrossRef]
- Guardato, S.; Donnarumma, G.; Scarpato, G.; Beranzoli, L.; Iannaccone, G. MEDUSA: A real-time multi-parameter marine monitoring research infrastructure. EGU General Assembly. Geophys. Res. Abstr. 2019, 21, EGU2019–EGU14289. [Google Scholar]
- Conforti, G.; Brenci, M.; Mencaglia, A.; Mignani, A.G. Fiber optic vibration sensor for remote monitoring in high power electric machines. Appl. Opt. 1989, 28, 5158–5161. [Google Scholar] [CrossRef]
- Bucaro, J.A.; Dardy, H.D.; Carome, E.F. Fiber optic hydrophone. J. Acoust. Soc. Am. 1977, 62, 1302–1304. [Google Scholar] [CrossRef]
- Cole, J.H.; Kirkendall, C.; Dandridge, A.; Cogdell, G.; Giallorenzi, T.G. Twenty-five years of interferometric fiber optic acoustic sensors at the Naval Research Laboratory. J. Wash. Acad. Sci. 2004, 90, 40–57. [Google Scholar]
- Moccia, M.; Pisco, M.; Cutolo, A.; Galdi, V.; Bevilacqua, P.; Cusano, A. Opto-acoustic behavior of coated fiber Bragg gratings. Opt. Express 2011, 19, 18842–18860. [Google Scholar] [CrossRef]
- Moccia, M.; Consales, M.; Iadicicco, A.; Pisco, M.; Cutolo, A.; Galdi, V.; Cusano, A. Resonant hydrophones based on coated fiber Bragg gratings. J. Light. Technol. 2012, 30, 2472–2481. [Google Scholar] [CrossRef]
- Foster, S.; Tikhomirov, A.; Van, V.J. Towards a high performance fiber laser hydrophone. J. Light. Technol. 2011, 29, 1335–1342. [Google Scholar] [CrossRef]
- Meng, Z.; Chen, W.; Wang, J.; Hu, X.; Chen, M.; Zhang, Y. Recent Progress in Fiber-Optic Hydrophones. Photonic Sens. 2021, 11, 109–122. [Google Scholar] [CrossRef]
- Goodman, S.; Foster, S.; Velzen, J.V.; Mendis, H. Field demonstration of a DFB fibre laser hydrophone seabed array in Jervis Bay, Australia. In Proceedings of the 20th International Conference on Optical Fibre Sensors, Edinburgh, UK, 5 October 2009; p. 75034L. [Google Scholar]
- Foster, S.; Tikhomirov, A.; Harrison, J.; Velzen, J.V. Field demonstration of an 8-element fibre laser hydrophone array. In Proceedings of the 23rd International Conference on Optical Fibre Sensors, Santander, Spain, 2–6 June 2014; pp. 91570H-1–91570H-4. [Google Scholar]
- Gu, H.C.; Huang, J.B.; Yu, H.B.; Li, R.Z.; Tang, B.; Wu, J. A 4-element fiber laser hydrophone towed linear array. In Proceedings of the International Symposium on Optoelectronic Technology and Application (IPTA)-Laser and Optical Measurement Technology and Fiber Optic Sensors, Beijing, China, 3 December 2014; pp. 92972Y-1–92972Y-6. [Google Scholar]
- Yin, K.; Zhang, M.; Ding, T.; Wang, L.; Jing, Z.; Liao, Y. An investigation of a fiber-optic air-backed mandrel hydrophone. Opt. Commun. 2008, 281, 94–101. [Google Scholar] [CrossRef]
- Luo, Z.; Yang, Y.; Wang, Z.; Yu, M.; Wu, C.; Chang, T.; Wu, P.; Cui, H.L. Low-frequency fiber optic hydrophone based on weak value amplification. Opt. Express 2020, 28, 25935–25948. [Google Scholar] [CrossRef]
- Wang, W.; Pei, Y.; Ye, L.; Song, K. High-Sensitivity Cuboid Interferometric Fiber-Optic Hydrophone Based on Planar Rectangular Film Sensing. Sensors 2020, 20, 6422. [Google Scholar] [CrossRef]
- Bruno, F.; Janneh, M.; Gunda, A.; Kyselica, R.; Stajanca, P.; Werzinger, S.; Gruca, G.; Rijnveld, N.; Persiano, G.; Cutolo, A.; et al. Fiber Optic Hydrophones for towed array applications. Opt. Lasers Eng. 2023, 160, 107269. [Google Scholar] [CrossRef]
- Lavrov, V.S.; Plotnikov, M.Y.; Aksarin, S.M.; Efimov, M.E.; Shulepov, V.A. Experimental investigation of the thin fiber-optic hydrophone array based on fiber Bragg gratings. Opt. Fiber Technol. 2017, 34, 47–51. [Google Scholar] [CrossRef]
- Plotnikov, M.Y.; Lavrov, V.S.; Dmitraschenko, P.Y.; Kulikov, A.V.; Meshkovskiy, I.K. Thin Cable Fiber-Optic Hydrophone Array for Passive Acoustic Surveillance Applications. IEEE Sens. J. 2019, 19, 3376–3382. [Google Scholar] [CrossRef]
- Cui, S.; Khoo, D.W.Y. Underwater Calibration of Hydrophones at Very Low Frequencies from 30 Hz to 2 kHz. J. Phys. Conf. Ser. 2018, 1065, 072015. [Google Scholar] [CrossRef]
- MultiZonaSens Interrogator System, Optics11, Amsterdam, NL. Available online: www.optics11.com (accessed on 12 February 2023).
- Evans, L.; Bryant, P. LHC Machine. JINST 2008, 3, S08001. [Google Scholar] [CrossRef]
- Esposito, M.; Buontempo, S.; Petriccione, A.; Zarrelli, M.; Breglio, G.; Saccomanno, A.; Szillasi, Z.; Makovec, A.; Cusano, A.; Chiuchiolo, A.; et al. Fiber Bragg Grating sensors to measure the coefficient of thermal expansion of polymers at cryogenic temperatures. Sens. Actuators A Phys. 2013, 189, 195–203. [Google Scholar] [CrossRef]
- Apollinari, G.; Béjar Alonso, I.; Brüning, O.; Lamont, M.; Rossi, L. High-Luminosity Large Hadron Collider. In Technical Design Report CERN-2015 5; INSPIRE HEP: Geneva, Switzerland, 2015. [Google Scholar]
- Polifka, R.; Lamont, M.; Gray, H.; Narain, M.; Klein, K.; Bruening, O.; Rossi, L. The scientific potential and technological challenges of the High-Luminosity Large Hadron Collider program. Rep. Prog. Phys. 2022, 85, AC5106. [Google Scholar]
- Alwis, L.; Sun, T.; Grattan, K.T.V. Fibre-optic sensor technologies for humidity and moisture measurement. Sens. Actuators A Phys. 2008, 144, 280–295. [Google Scholar]
- Alwis, L.; Sun, T.; Grattan, K.T.V. Optical fibre-based sensor technology for humidity and moisture measurement: Review of recent progress. Measurement 2013, 46, 4052–4074. [Google Scholar] [CrossRef]
- Rao, X.; Zhao, L.; Xu, L.; Wang, Y.; Liu, K.; Wang, Y.; Chen, G.Y.; Liu, T.; Wang, Y. Review of Optical Humidity Sensors. Sensors 2021, 21, 8049. [Google Scholar] [CrossRef]
- Ascorbe, J.; Corres, J.M.; Arregui, F.J.; Matias, I.R. Recent developments in fiber optics humidity sensors. Sensors 2017, 17, 893. [Google Scholar] [CrossRef] [PubMed]
- Kapic, A.; Tsirou, A.; Verdini, P.G.; Carrara, S. Humidity sensors for high energy physics applications: A review. IEEE Sens. J. 2020, 20, 10335–10344. [Google Scholar] [CrossRef]
- Berruti, G.; Consales, M.; Borriello, A.; Giordano, M.; Buontempo, S.; Makovec, A.; Breglio, G.; Petagna, P.; Cusano, A. A comparative study of radiation-tolerant fiber optic sensors for relative humidity monitoring in high-radiation environments at CERN. IEEE Photonics J. 2014, 6, 1–15. [Google Scholar] [CrossRef]
- Makovec, A.; Berruti, G.; Consales, M.; Giordano, M.; Petagna, P.; Buontempo, S.; Breglio, G.; Szillasi, Z.; Beni, N.; Cusano, A. Radiation hard polyimide-coated FBG optical sensors for relative humidity monitoring in the CMS experiment at CERN. J. Instrum. 2014, 9, C03040. [Google Scholar] [CrossRef]
- Berruti, G.M.; Petagna, P.; Buontempo, S.; Makovec, A.; Szillasi, Z.; Beni, N.; Consales, M.; Cusano, A. One year of FBG-based thermo-hygrometers in operation in the CMS experiment at CERN. J. Instrum. 2016, 11, P03007. [Google Scholar] [CrossRef]
- Consales, M.; Berruti, G.; Borriello, A.; Giordano, M.; Buontempo, S.; Breglio, G.; Makovec, A.; Petagna, P.; Cusano, A. Nanoscale TiO2-coated LPGs as radiation-tolerant humidity sensors for high-energy physics applications. Opt. Lett. 2014, 39, 4128–4131. [Google Scholar] [CrossRef]
- CMS Collaboration. The CMS Experiment at the CERN LHC. JINST 2008, 3, S08004.
- Szillási, Z.; Buontempo, S.; Béni, N.; Breglio, G.; Cusano, A.; Laudati, A.; Giordano, M.; Saccomanno, A.; Druzhkin, D.; Tsirou, A. One year of FOS measurements in CMS experiment at CERN. Phys. Procedia 2012, 37, 79–84. [Google Scholar] [CrossRef]
- Arcidiacono, R. CMS DCS design concepts. In Proceedings of the 10th ICALEPCS International Conference on Accelerator and Large Experimental Physics Control Systems, Geneva, Switzerland, 10–15 October 2005. [Google Scholar]
- Distribution Information Management System DIM. Available online: https://dim.web.cern.ch/dim (accessed on 12 February 2023).
- Fienga, F.; Marrazzo, V.R.; Spedding, S.B.; Szillasi, Z.; Beni, N.; Irace, A.; Zeuner, W.; Ball, A.; Vaccaro, V.G.; Salvant, B.; et al. Fiber Bragg Grating Sensors as Innovative Monitoring Tool for Beam Induced RF Heating on LHC Beam Pipe. J. Light. Technol. 2021, 39, 4145–4150. [Google Scholar] [CrossRef]
- O’Keeffe, S.; Fitzpatrick, C.; Lewis, E.; Al-Shamma’A, A. A review of optical fibre radiation dosimeters. Sens. Rev. 2008, 28, 136–142. [Google Scholar] [CrossRef]
- Sporea, D.; Sporea, A.; O’Keeffe, S.; Mccarthy, D.; Lewis, E. Optical fibers and optical fiber sensors used in radiation monitoring. In Selected Topics on Optical Fiber Technology; Yasin, M., Ed.; InTech: London, UK, 2012; ISBN 978-953-51-0091-1. [Google Scholar]
- Ravotti, F.; Glaser, M.; Rosenfeld, A.B.; Lerch, M.L.F.; Holmes-Siedle, A.G.; Sarrabayrouse, G. Radiation monitoring in mixed environments at CERN: From the IRRAD6 facility to the LHC experiments. IEEE Trans. Nucl. Sci. 2007, 54, 1170–1177. [Google Scholar] [CrossRef]
- O’Keeffe, S.; McCarthy, D.; Woulfe, P.; Grattan, M.W.D.; Hounsell, A.R.; Sporea, D.; Mihai, L.; Vata, I.; Leen, G.; Lewis, E. A review of recent advances in optical fibre sensors for in vivo dosimetry during radiotherapy. Br. J. Radiol. 2015, 88, 20140702. [Google Scholar] [CrossRef]
- Berghmans, F.; Gusarov, A. Fiber Bragg Grating Sensors in Nuclear Environments” in Fiber Bragg Grating Sensors: Recent Advancements, Industrial Applications and Market Exploitation; Bentham Science Publisher: Potoma, MD, USA, 2011; pp. 218–237. [Google Scholar]
- Gusarov, A.; Hoeffgen, S.K. Radiation effects on fiber gratings. IEEE Trans. Nucl. Sci. 2013, 60, 2037–2053. [Google Scholar] [CrossRef]
- Girard, S.; Alessi, A.; Richard, N.; Martin-Samos, L.; De Michele, V.; Giacomazzi, L.; Agnello, S.; Di Francesca, D.; Morana, A.; Winkler, B.; et al. Overview of radiation induced point defects in silica-based optical fibers. Rev. Phys. 2019, 4, 100032. [Google Scholar] [CrossRef]
- Girard, S.; Morana, A.; Ladaci, A.; Robin, T.; Mescia, L.; Bonnefois, J.-J.; Boutillier, M.; Mekki, J.; Paveau, A.; Cadier, B.; et al. Recent advances in radiation-hardened fiber-based technologies for space applications. J. Opt. 2018, 20, 093001. [Google Scholar] [CrossRef]
- Krebber, K.; Henschel, H.; Weinand, U. Fibre Bragg gratings as high dose radiation sensors. Meas. Sci. Technol. 2006, 17, 1095–1102. [Google Scholar] [CrossRef]
- Lee, B.; Jang, K.W.; Yoo, W.J.; Cho, D.H.; Park, B.G.; Moon, J.H.; Cho, Y.-H.; Kim, S.; Bongsoo, L.; Won, J.K.; et al. Development of scintillation-fiber sensors for measurements of thermal neutrons in mixed Neutron-gamma fields. J. Korean Phys. Soc. 2010, 56, 1777–1780. [Google Scholar] [CrossRef]
- Fernandez, A.F.; Brichard, B.; O’Keeffe, S.; Fitzpatrick, C.; Lewis, E.; Vaille, J.-R.; Dusseau, L.; Jackson, D.; Ravotti, F.; Glaser, M.; et al. Real-time fibre optic radiation dosimeters for nuclear environment monitoring around thermonuclear reactors. Fusion Eng. Des. 2008, 83, 50–59. [Google Scholar] [CrossRef]
- Benoit, D.; Garcia, P.; Matias-Vaille, S.; Ravotti, F.; Vaille, J.-R.; Glaser, M.; Brichard, B.; Fernandez, A.F.; Chatry, C.; Dusseau, L. Real-time fibered optically stimulated luminescence dosimeter based on SrS: Ce, Sm phosphor. IEEE Trans. Nucl. Sci. 2008, 55, 2154–2160. [Google Scholar] [CrossRef]
- Lee, B. Review of the present status of optical fiber sensors. Opt. Fiber Technol. 2003, 9, 57–79. [Google Scholar] [CrossRef]
- Esposito, F.; Ranjan, R.; Stăncălie, A.; Sporea, D.; Neguţ, D.; Becherescu, N.; Campopiano, S.; Iadicicco, A. Real-time analysis of arc-induced Long Period Gratings under gamma irradiation. Sci. Rep. 2017, 7, 43389. [Google Scholar] [CrossRef]
- Stăncălie, A.; Sporea, D.; Neguţ, D.; Esposito, F.; Ranjan, R.; Campopiano, S.; Iadicicco, A. Long Period Gratings in unconventional fibers for possible use as radiation dosimeter in high-dose applications. Sens. Actuators A Phys. 2018, 271, 223–229. [Google Scholar] [CrossRef]
- Esposito, F.; Stancalie, A.; Negut, C.-D.; Campopiano, S.; Sporea, D.; Iadicicco, A. Comparative Investigation of Gamma Radiation Effects on Long Period Gratings and Optical Power in Different Optical Fibers. J. Light. Technol. 2019, 37, 4560–4566. [Google Scholar] [CrossRef]
- Stancalie, A.; Esposito, F.; Neguț, C.D.; Ghena, M.; Mihalcea, R.; Srivastava, A.; Campopiano, S.; Iadicicco, A. A New Setup for Real-Time Investigations of Optical Fiber Sensors Subjected to Gamma-Rays: Case Study on Long Period Gratings. Sensors 2020, 20, 4129. [Google Scholar] [CrossRef]
- Esposito, F.; Campopiano, S.; Iadicicco, A. Arc-Induced Long Period Gratings in Erbium-Doped Fiber. IEEE Photonics J. 2019, 11, 2894300. [Google Scholar] [CrossRef]
- Iadicicco, A.; Campopiano, S.; Cusano, A. Long-Period Gratings in Hollow Core Fibers by Pressure-Assisted Arc Discharge Technique. IEEE Photonics Technol. Lett. 2011, 23, 1567–1569. [Google Scholar] [CrossRef]
- Esposito, F.; Srivastava, A.; Iadicicco, A.; Campopiano, S. Multi-parameter sensor based on single Long Period Grating in Panda fiber for the simultaneous measurement of SRI, temperature and strain. Opt. Laser Technol. 2019, 113, 198–203. [Google Scholar] [CrossRef]
- Esposito, F.; Srivastava, A.; Campopiano, S.; Iadicicco, A. Radiation Effects on Long Period Fiber Gratings: A Review. Sensors 2020, 20, 2729. [Google Scholar] [CrossRef]
- Esposito, F.; Stancalie, A.; Srivastava, A.; Smietana, M.; Mihalcea, R.; Negut, C.; Campopiano, S.; Iadicicco, A. The impact of gamma irradiation on optical fibers identified using Long Period Gratings. J. Light. Technol. 2022, 1–8. [Google Scholar] [CrossRef]
- Stancălie, A.; Esposito, F.; Ranjan, R.; Bleotu, P.; Campopiano, S.; Iadicicco, A.; Sporea, D. Arc-induced Long Period Gratings in standard and speciality optical fibers under mixed neutron-gamma irradiation. Sci. Rep. 2017, 7, 15845. [Google Scholar] [CrossRef]
- Berruti, G.M.; Vaiano, P.; Quero, G.; Boniello, A.; Petagna, P.; Consales, M.; Cusano, A. Radiation-induced effects on UV-written LPGs inscribed in B-Ge doped optical fiber for experiments running at CERN. Optical Fiber Sensors. Opt. Soc. Am. 2020, Th4.57. [Google Scholar]
- Berruti, G.M.; Vaiano, P.; Quero, G.; Das Neves, T.F.P.; Boniello, A.; Consales, M.; Petagna, P.; Cusano, A. Analysis of uncoated LPGs written in B-Ge doped fiber under proton irradiation for sensing applications at CERN. Sci. Rep. 2020, 10, 1344. [Google Scholar] [CrossRef]
- Consales, M.; Ricciardi, A.; Crescitelli, A.; Esposito, E.; Cutolo, A.; Cusano, A. Lab-on-fiber technology: Toward multifunctional optical nanoprobes. ACS Nano 2012, 6, 3163–3170. [Google Scholar] [CrossRef]
- Cusano, A.; Consales, M.; Crescitelli, A.; Ricciardi, A. Lab-On-Fiber Technology. In Springer Series in Surface Sciences; Springer International Publishing: Berlin, Germany, 2015; Volume 56. [Google Scholar]
- Quero, G.; Vaiano, P.; Fienga, F.; Giaquinto, M.; Di Meo, V.; Gorine, G.; Casolaro, P.; Campajola, L.; Breglio, G.; Crescitelli, A.; et al. A novel Lab-on-Fiber Radiation Dosimeter for Ultra-high Dose Monitoring. Sci. Rep. 2018, 8, 17841. [Google Scholar] [CrossRef]
- Williams, M.; Metcalfe, P.; Rosenfeld, A.; Kron, T.; D’Errico, F.; Moscovitch, M. Radiochromic film dosimetry and its applications in radiotherapy. AIP Conf. Proc. 2011, 1345, 75–99. [Google Scholar]
- Butson, M.J.; Yu, P.K.; Cheung, T.; Metcalfe, P. Radiochromic film for medical radiation dosimetry. Mater. Sci. Eng. R Rep. 2003, 41, 61–120. [Google Scholar] [CrossRef]
- Devic, S.; Tomic, N.; Lewis, D. Reference radiochromic film dosimetry: Review of technical aspects. Phys. Med. 2016, 32, 541–556. [Google Scholar] [CrossRef] [PubMed]
- Devic, S. Radiochromic film dosimetry: Past, present, and future. Phys. Med. 2011, 27, 122–134. [Google Scholar] [CrossRef] [PubMed]
- Santos, T.; Ventura, T.; Lopes, M.D.C. A review on radiochromic film dosimetry for dose verification in high energy photon beams. Radiat. Phys. Chem. 2021, 179, 109217. [Google Scholar] [CrossRef]
- Soares, C.G. Radiochromic film dosimetry. Radiation. Meas. 2006, 41, S100–S116. [Google Scholar] [CrossRef]
- Das, I.J. (Ed.) Radiochromic Film: Role and Applications in Radiation Dosimetry; CRC Press: Boca Raton, FL, USA, 2017. [Google Scholar]
- Niroomand-Rad, A.; Chiu-Tsao, S.; Grams, M.P.; Lewis, D.F.; Soares, C.G.; Van Battum, L.J.; Das, I.J.; Trichter, S.; Kissick, M.W.; Massillon-Jl, G.; et al. Report of AAPM task group 235 radiochromic film dosimetry: An update to TG-55. Med. Phys. 2020, 47, 5986–6025. [Google Scholar] [CrossRef]
- Casolaro, P. Radiochromic films for the two-dimensional dose distribution assessment. Appl. Sci. 2021, 11, 2132. [Google Scholar] [CrossRef]
- Devic, S.; Seuntjens, J.; Sham, E.; Podgorsak, E.B.; Schmidtlein, C.; Kirov, A.S.; Soares, C.G. Precise radiochromic film dosimetry using a flat-bed document scanner. Med. Phys. 2005, 32, 2245–2253. [Google Scholar] [CrossRef]
- Lewis, D. Performance of the vidarR red led dosimetry pro advantageTM: A scanner optimized for use with gafchromicR ebt dosimetry film. ISP Artic. 2007. Available online: https://pdf4pro.com/amp/view/performance-of-the-vidar-dosimetry-pro-advantage-27ac26.html (accessed on 13 February 2023).
- Devic, S.; Tomic, N.; Pang, Z.; Seuntjens, J.; Podgorsak, E.B.; Soares, C.G. Absorption spectroscopy of ebt model film. Med. Phys. 2007, 34, 112–118. [Google Scholar] [CrossRef]
- Mignani, A.G.; Romano, S.; Fusi, F.; Mencaglia, A.A. Radiation dosimetry in radiotherapy: A model for an extrinsic optical fiber sensor. In European Workshop on Optical Fibre Sensors; International Society for Optics and Photonics: Bellingham, WA, USA, 1998; Volume 3483, pp. 99–103. [Google Scholar]
- Rink, A.; Vitkin, A.; Jaffray, D. Suitability of radiochromic medium for real-time optical measurements of ionizing radiation dose. Med. Phys. 2005, 32, 1140–1155. [Google Scholar] [CrossRef]
- Casolaro, P.; Campajola, L.; Breglio, G.; Buontempo, S.; Consales, M.; Cusano, A.; Cutolo, A.; Di Capua, F.; Fienga, F.; Vaiano, P. Real-time dosimetry with radiochromic films. Sci. Rep. 2019, 9, 5307. [Google Scholar] [CrossRef]
- Casolaro, P.; Campajola, L.; Breglio, G.; Buontempo, S.; Consales, M.; Cusano, A.; Cutolo, A.; di Capua, F.; Fienga, F.; Vaiano, P. Absolute Calibration for film dosimetry. Int. J. Mod. Phys. Conf. Ser. 2020, 50, 2060012-117. [Google Scholar] [CrossRef]
- Casolaro, P.; Breglio, G.; Buontempo, S.; Campajola, L.; Consales, M.; Cusano, A.; Cutolo, A.; Di Capua, F.; Fienga, F.; Vaiano, P. An innovative dosimetry method for accurate and real time dose assessment for Radiation Hardness Assurance tests. In Proceedings of the 2018 18th European Conference on Radiation and Its Effects on Components and Systems, Goteborg, Sweden, 16–21 September 2018; IEEE: Piscataway, NJ, USA, 2018. [Google Scholar]
- Vaiano, P.; Consales, M.; Casolaro, P.; Campajola, L.; Fienga, F.; Di Capua, F.; Breglio, G.; Buontempo, S.; Cutolo, A.; Cusano, A. A novel method for EBT3 Gafchromic films read-out at high dose levels. Phys. Med. 2019, 61, 77–84. [Google Scholar] [CrossRef]





































Disclaimer/Publisher’s Note: The statements, opinions and data contained in all publications are solely those of the individual author(s) and contributor(s) and not of MDPI and/or the editor(s). MDPI and/or the editor(s) disclaim responsibility for any injury to people or property resulting from any ideas, methods, instructions or products referred to in the content. |
© 2023 by the authors. Licensee MDPI, Basel, Switzerland. This article is an open access article distributed under the terms and conditions of the Creative Commons Attribution (CC BY) license (https://creativecommons.org/licenses/by/4.0/).
Share and Cite
Breglio, G.; Bernini, R.; Berruti, G.M.; Bruno, F.A.; Buontempo, S.; Campopiano, S.; Catalano, E.; Consales, M.; Coscetta, A.; Cutolo, A.; et al. Innovative Photonic Sensors for Safety and Security, Part III: Environment, Agriculture and Soil Monitoring. Sensors 2023, 23, 3187. https://doi.org/10.3390/s23063187
Breglio G, Bernini R, Berruti GM, Bruno FA, Buontempo S, Campopiano S, Catalano E, Consales M, Coscetta A, Cutolo A, et al. Innovative Photonic Sensors for Safety and Security, Part III: Environment, Agriculture and Soil Monitoring. Sensors. 2023; 23(6):3187. https://doi.org/10.3390/s23063187
Chicago/Turabian StyleBreglio, Giovanni, Romeo Bernini, Gaia Maria Berruti, Francesco Antonio Bruno, Salvatore Buontempo, Stefania Campopiano, Ester Catalano, Marco Consales, Agnese Coscetta, Antonello Cutolo, and et al. 2023. "Innovative Photonic Sensors for Safety and Security, Part III: Environment, Agriculture and Soil Monitoring" Sensors 23, no. 6: 3187. https://doi.org/10.3390/s23063187
APA StyleBreglio, G., Bernini, R., Berruti, G. M., Bruno, F. A., Buontempo, S., Campopiano, S., Catalano, E., Consales, M., Coscetta, A., Cutolo, A., Cutolo, M. A., Di Palma, P., Esposito, F., Fienga, F., Giordano, M., Iele, A., Iadicicco, A., Irace, A., Janneh, M., ... Cusano, A. (2023). Innovative Photonic Sensors for Safety and Security, Part III: Environment, Agriculture and Soil Monitoring. Sensors, 23(6), 3187. https://doi.org/10.3390/s23063187

