Sign in to use this feature.

Years

Between: -

Subjects

remove_circle_outline
remove_circle_outline
remove_circle_outline
remove_circle_outline
remove_circle_outline
remove_circle_outline
remove_circle_outline
remove_circle_outline
remove_circle_outline

Journals

remove_circle_outline
remove_circle_outline
remove_circle_outline
remove_circle_outline
remove_circle_outline
remove_circle_outline
remove_circle_outline
remove_circle_outline
remove_circle_outline
remove_circle_outline
remove_circle_outline
remove_circle_outline
remove_circle_outline
remove_circle_outline
remove_circle_outline
remove_circle_outline
remove_circle_outline
remove_circle_outline

Article Types

Countries / Regions

remove_circle_outline
remove_circle_outline
remove_circle_outline
remove_circle_outline
remove_circle_outline
remove_circle_outline
remove_circle_outline

Search Results (5,093)

Search Parameters:
Keywords = beam test

Order results
Result details
Results per page
Select all
Export citation of selected articles as:
25 pages, 11595 KB  
Article
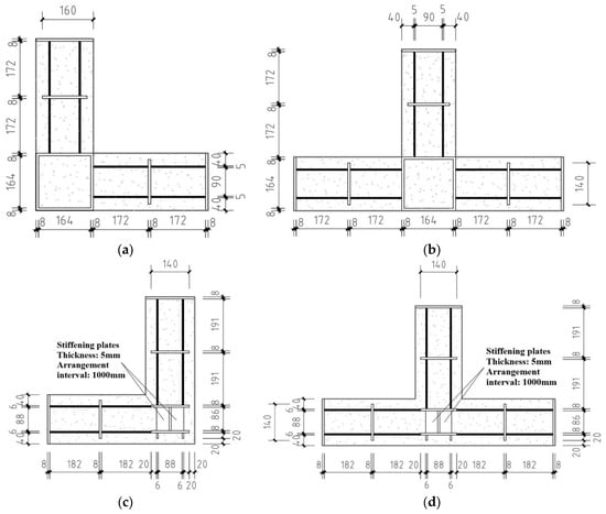
Research on the Compression Bearing Capacity of Special-Shaped Steel-Concrete Columns
by Zhe Wang, Mingyu Lu, Weitong Yi and Lei Zhu
Buildings 2026, 16(6), 1162; https://doi.org/10.3390/buildings16061162 - 16 Mar 2026
Abstract
Conventional reinforced concrete exhibits weaknesses such as poor ductility, limited load-bearing capacity, and complex reinforcement detailing in beam-column joints. To expand its application scope, this study proposes two novel types of L-shaped and T-shaped concrete-filled special-shaped steel columns, with steel skeletons fabricated from [...] Read more.
Conventional reinforced concrete exhibits weaknesses such as poor ductility, limited load-bearing capacity, and complex reinforcement detailing in beam-column joints. To expand its application scope, this study proposes two novel types of L-shaped and T-shaped concrete-filled special-shaped steel columns, with steel skeletons fabricated from either square steel tubes or H-shaped steel sections, based on built-up steel welding construction. A total of eight column compression tests were conducted under both axial and eccentric loading conditions. The main conclusions are as follows: All specimens exhibited failure modes characterized by external concrete cracking or spalling; axial compression specimens primarily developed vertical cracks, whereas eccentric compression specimens exhibited diagonal cracks. The use of normalized loads enabled comparison across columns with different numbers of limbs. The square steel tube columns demonstrated superior compressive performance compared to the H-shaped steel columns, with an average increase of 17.6%. Eccentric loading resulted in significant performance degradation across all four column types, with the T-shaped columns being particularly affected, exhibiting a 40.9% reduction in normalized load, while the L-shaped columns showed a relatively smaller reduction of 22.1%. Furthermore, a quadratic function fitting method was employed to analyze the stiffness degradation curves of all specimens, effectively capturing the stiffness degradation patterns with minimal dispersion and satisfactory fitting accuracy. Systematic parametric analysis revealed that the curve parameters are primarily governed by the initial stiffness and the displacement corresponding to complete stiffness degradation. Full article
(This article belongs to the Section Building Materials, and Repair & Renovation)
Show Figures

Figure 1

20 pages, 1669 KB  
Article
Assessing How CBCT Image Quality Influences Diagnostic Evaluability of Periodontal Bone: Establishing Human Baselines for AI Training (In Vitro Study)
by Michael Moncher, Vera Zimprich, Jonathan von See, Jörg Philipp Tchorz, Theodor von See and Constantin von See
Oral 2026, 6(2), 35; https://doi.org/10.3390/oral6020035 - 16 Mar 2026
Abstract
Background: Cone-beam computed tomography (CBCT) is increasingly applied for the assessment of periodontal bone levels. However, its measurement reliability and consistency depend strongly on image quality parameters such as voxel size, noise, and reconstruction sharpness. With the growing use of CBCT datasets for [...] Read more.
Background: Cone-beam computed tomography (CBCT) is increasingly applied for the assessment of periodontal bone levels. However, its measurement reliability and consistency depend strongly on image quality parameters such as voxel size, noise, and reconstruction sharpness. With the growing use of CBCT datasets for artificial intelligence (AI)-based diagnostics, it is essential to understand how image degradation conditions affect examiner-derived measurement outcomes and the reliability of reference data used for AI training. Methods: An anonymized CBCT dataset containing one periodontally healthy tooth (31) and one tooth with pronounced periodontal bone loss (41) was analyzed. The original DICOM data were systematically degraded using controlled voxel enlargement (double and triple voxel size) and simulated image blur (Gaussian and median filtering). Six dentists (n = 6) independently performed standardized linear bone-level measurements, with three repeated measurements per tooth and image condition. Data were analyzed using the Shapiro–Wilk test for normality assessment, the Kruskal–Wallis H test for group comparisons, Bonferroni-adjusted Mann–Whitney U tests for post hoc pairwise comparisons, and intraclass correlation coefficients (ICC (2,1)) for inter-examiner reliability assessment. Results: A total of 180 measurements were evaluated. Image degradation conditions were associated with statistically significant differences in bone-level measurements for both teeth (tooth 31: p = 0.017; tooth 41: p = 0.0049). Significant pairwise differences were primarily observed between the original dataset and specific degraded conditions involving blur and reduced spatial resolution, while several comparisons remained non-significant. Inter-examiner reliability varied across image groups and decreased notably with pronounced voxel enlargement, particularly in the periodontally compromised tooth. Conclusions: Controlled image degradation conditions of CBCT image quality significantly affect measurement outcomes and inter-examiner reproducibility of periodontal bone measurements. These findings demonstrate that image quality is a critical determinant of measurement reliability and examiner-dependent interpretation. From both a clinical and AI-development perspective, maintaining adequate CBCT resolution may contribute to more consistent measurement behavior and more reliable training datasets. Full article
Show Figures

Graphical abstract

25 pages, 6139 KB  
Article
Degradation of Elastic Modulus of Ordinary Concrete Under Flexural Fatigue Loading
by Huating Chen and Jianfei Du
Infrastructures 2026, 11(3), 99; https://doi.org/10.3390/infrastructures11030099 - 16 Mar 2026
Abstract
To elucidate the degradation behavior of elastic modulus in normal-strength ordinary concrete under flexural fatigue loading, this study systematically examines its evolution in C50 concrete, which is widely used in engineering applications. Based on four-point bending fatigue test data of plain concrete (PC) [...] Read more.
To elucidate the degradation behavior of elastic modulus in normal-strength ordinary concrete under flexural fatigue loading, this study systematically examines its evolution in C50 concrete, which is widely used in engineering applications. Based on four-point bending fatigue test data of plain concrete (PC) and reinforced concrete (RC) beams, degradation curves of the relative residual elastic modulus as a function of the cycle ratio were established. To quantitatively characterize the fatigue degradation process, two integrated indicators—the area under the curve (AUC) and the stable-stage degradation slope (|Kmid|)—were introduced to represent the degree of cumulative damage and the degradation rate of elastic modulus, respectively. These indicators were subsequently employed to evaluate the effects of maximum stress level, stress ratio, and reinforcement on elastic modulus degradation. The results show that failed PC specimens exhibited a typical three-stage S-shaped degradation pattern, whereas RC specimens primarily exhibited a two-stage degradation behavior. However, the elastic modulus of runout PC specimens remained above 93% of its initial value throughout the entire loading process. For PC specimens, under the same maximum stress level, increasing the minimum stress level from 0.10 to 0.25 resulted in a 24% decrease in |Kmid| from 0.2505 to 0.1912. At the same minimum stress level, increasing the maximum stress level from 0.75 to 0.90 led to a 94% increase in |Kmid| from 0.1912 to 0.3705. The presence of reinforcement increased AUC by 3~15% and reduced |Kmid| by 54~74%, indicating that reinforcement not only mitigated overall damage accumulation but also significantly slowed the degradation rate of the elastic modulus during the stable fatigue stage. The degradation characterization approach proposed in this study provides a simplified and practical framework for fatigue analysis of concrete components based on damage mechanics. Full article
Show Figures

Figure 1

15 pages, 3122 KB  
Article
Thermomechanical Behavior of Ni-Ti Shape Memory Alloy Cantilever Beams Under Cyclic Bending
by Saeed Danaee Barforooshi, Girolamo Costanza, Stefano Paoloni, Ilaria Porroni and Maria Elisa Tata
Processes 2026, 14(6), 931; https://doi.org/10.3390/pr14060931 - 15 Mar 2026
Abstract
NiTi Shape Memory Alloys (SMAs) display notable thermomechanical properties such as superelasticity and the elastocaloric effect, which makes them of interest for emerging solid-state cooling and thermal management applications. It is recognized that a considerable amount of work has been recently conducted to [...] Read more.
NiTi Shape Memory Alloys (SMAs) display notable thermomechanical properties such as superelasticity and the elastocaloric effect, which makes them of interest for emerging solid-state cooling and thermal management applications. It is recognized that a considerable amount of work has been recently conducted to improve the understanding of the uniaxial tensile and compressive response of Ni-Ti SMAs; however, there has been limited work on the response to bending, which is an important operational mode in the practical designs of devices. This work consists of an experimental study of the thermomechanical response of Ni-Ti cantilever beams to cyclic bending. Nitinol samples (100 mm × 20 mm × 1 mm) were shape-set at 550 °C for 30 min and tested at 1800 rpm. The sample surface temperature change was monitored with infrared thermography data and analyzed with the Profile Mono Segment and Area Rectangle methods. The findings show that there was a measurable elastocaloric temperature change of approximately 4–5 °C, and temperature change increased by 21–25% as bending deflection increased from 31 mm to 33 mm. This was further shown to be nonlinear with the applied strain amplitude, reinforcing the strong coupling between mechanical and thermal response. The results demonstrate that Ni-Ti cantilever beams have significant potential for compact, sustainable solid-state cooling and energy storage applications, with thermal energy transfer strongly dependent on strain and energy transfer optimization. Full article
Show Figures

Figure 1

30 pages, 10949 KB  
Article
Micro-Foamed-Based Viscosity Reduction of SBS-Modified Asphalt and Its Physical and Rheological Properties
by Peifeng Cheng, Aoting Cheng, Yiming Li, Rui Ma and Youjie Chen
Polymers 2026, 18(6), 710; https://doi.org/10.3390/polym18060710 - 14 Mar 2026
Abstract
Foaming technology can effectively reduce the viscosity of polymer-modified asphalt and significantly decrease energy consumption during pavement construction, making it an effective approach for achieving low-carbon pavement construction and maintenance. However, mechanically foamed asphalt relies on specialized equipment and requires strict parameter control. [...] Read more.
Foaming technology can effectively reduce the viscosity of polymer-modified asphalt and significantly decrease energy consumption during pavement construction, making it an effective approach for achieving low-carbon pavement construction and maintenance. However, mechanically foamed asphalt relies on specialized equipment and requires strict parameter control. Although water-based foaming methods using zeolites or ethanol can alleviate these issues to some extent, they still present disadvantages such as significant variability in foaming performance and potential risks during transportation and construction. Therefore, this study investigates the feasibility of using crystalline hydrates with high water of crystallization for micro-foamed asphalt. Three types of micro-foamed SBS-modified asphalt (MFPA) were prepared using hydrates with different contents of water of crystallization. Physical property tests, foaming characteristic parameters, viscosity–temperature analysis, Fourier transform infrared spectroscopy (FTIR), adhesion tensile tests, scanning electron microscopy (SEM), and fluorescence microscopy were conducted to evaluate their effects on the physical and chemical properties, viscosity reduction performance, adhesion, and compatibility of SBS-modified asphalt. Furthermore, dynamic shear rheometer (DSR) tests, bending beam rheometer (BBR) tests, fatigue life modeling, and morphological analysis were employed to investigate the rheological properties, fatigue life, and bubble evolution behavior of the MFPA system. The results indicate that utilizing the thermal decomposition characteristics of crystalline hydrates with high water of crystallization (Na2SO4·10H2O, Na2HPO4·12H2O, and Na2CO3·10H2O) to release H2O and CO2 in SBS-modified asphalt for micro-foaming is a short-term reversible physical viscosity reduction process. The maximum expansion ratio (ERmax) of MFPA reaches 8–10, the half-life (HL) remains stable at approximately 180 s, and the foaming index (FI) peak is about 1160. The construction temperature can be reduced by 10–15%, and the viscosity reduction effect remains stable within 60 min. Compared with unfoamed SBS-modified asphalt, the compatibility, rutting resistance, and fatigue life of MFPA increase by approximately 65%, 32%, and 30%, respectively, while the low-temperature performance decreases by 18%. Under the same short-term and long-term aging conditions, MFPA exhibits better aging resistance. Specifically, its rutting resistance increases by 37%, and fatigue resistance improves by 30% compared with aged SBS-modified asphalt, while the low-temperature performance remains essentially unchanged. Full article
(This article belongs to the Section Polymer Analysis and Characterization)
Show Figures

Figure 1

36 pages, 8397 KB  
Article
Intelligent Predictive Analysis of Lateral Torsional Buckling in Pre-Stressed Thin-Walled Steel Beams with Un-Bonded Deviators Under Non-Uniform Bending
by Ali Turab Asad, Moon-Young Kim, Imdad Ullah Khan and Agha Intizar Mehdi
Buildings 2026, 16(6), 1153; https://doi.org/10.3390/buildings16061153 - 14 Mar 2026
Abstract
This study presents a newly conducted comprehensive investigation into the lateral torsional buckling (LTB) behavior of un-bonded pre-stressed (PS) thin-walled steel I-beams subjected to non-uniform bending moments, combining a numerical study with a machine learning (ML) approach and experimental validation. Despite extensive prior [...] Read more.
This study presents a newly conducted comprehensive investigation into the lateral torsional buckling (LTB) behavior of un-bonded pre-stressed (PS) thin-walled steel I-beams subjected to non-uniform bending moments, combining a numerical study with a machine learning (ML) approach and experimental validation. Despite extensive prior work, no exact analytical solution exists particularly for non-uniform bending or can be extremely complicated, as the resulting differential equations contain variable coefficients particularly under non-uniform bending due to the complexity of the PS system. To overcome this limitation, a numerical study using finite element (FE) analysis is first conducted with emphasis on the key geometric and pre-stressing parameters, including unbraced beam length, tendon eccentricity, deviators configurations, and pre-stressing force, to evaluate the LTB behavior. The FE modeling was then validated against experimental testing to ensure the accuracy and reliability of the FE solutions. Subsequently, a comprehensive dataset is generated using FE simulations to train the ML models aimed at predicting the LTB resistance of the PS system. This study presents three ML approaches, including support vector regression (SVR), random forest (RF) and least-square boosting (LSBoost), and their optimal hyperparameters are determined using Bayesian optimization (BO) to enhance the prediction performance. The results indicate that the LTB capacity predicted by the Bayesian-optimized ML models achieve high predictive accuracy and are in close agreement with numerical FE simulations, thereby highlighting their potential in capturing the complex, underlying non-linear interactions influencing the buckling behavior of the PS structural system. Accordingly, the proposed framework offers a robust and effective predictive tool for evaluating LTB resistance, particularly under non-uniform bending where exact analytical solutions are not available, and for supporting the design and assessment of PS steel structures. Full article
(This article belongs to the Section Building Structures)
Show Figures

Figure 1

19 pages, 3564 KB  
Article
Influence of Architected Core Topology on the Dynamic and Flexural Behaviour of Multi-Material Sandwich Structures
by Hilal Doğanay Katı and Muhammad Khan
Polymers 2026, 18(6), 711; https://doi.org/10.3390/polym18060711 - 14 Mar 2026
Abstract
The integration of mechanics-based analysis and materials design procedures has become central to the development of multi-material structures with tailored mechanical and dynamic performance. In this study, the dynamic and flexural behaviour of multi-material FDM sandwich beams composed of PETG face sheets and [...] Read more.
The integration of mechanics-based analysis and materials design procedures has become central to the development of multi-material structures with tailored mechanical and dynamic performance. In this study, the dynamic and flexural behaviour of multi-material FDM sandwich beams composed of PETG face sheets and an ABS core is experimentally investigated. Seven different infill patterns Grid, Line, Wavy, Honeycomb, Gyroid, Cubic, and Triangle were implemented in the core layer to assess their influence on damping and natural frequency behaviour. Experimental modal analysis was performed using impact testing to identify the first three vibration modes. Natural frequencies were extracted from Frequency Response Functions (FRFs), and modal damping ratios were determined using the half-power bandwidth method. The reliability of the damping results was evaluated through statistical analysis. Additionally, quasi-static three-point bending tests were conducted to assess flexural strength and load-carrying capacity. The results demonstrate that infill topology has a significant impact on both dynamic and mechanical responses. In particular, geometrically complex infill patterns exhibit enhanced stiffness, higher natural frequencies, and improved damping performance. Among the investigated designs, the Triangle infill exhibited the highest natural frequency values across the first three vibration modes (f1 ≈ 24.910 Hz, f2 ≈ 162.609 Hz, f ≈ 466.595 Hz), indicating its superior stiffness characteristics. In terms of damping behaviour, the Cubic infill showed the highest loss factor in the first vibration mode (0.0426), while the Line and Gyroid patterns exhibited the highest damping in the second (0.0439) and third modes (0.0354), respectively. Moreover, the force–displacement results revealed that the Triangle infill exhibited the highest load-bearing capacity, further confirming its superior structural stiffness among the investigated designs (SEA = 110.83 J/kg). These findings highlight the potential of multi-material FDM for designing polymer-based sandwich structures with tailored vibration and energy dissipation characteristics. Full article
Show Figures

Figure 1

11 pages, 3184 KB  
Article
CMOS-Compatible Fabrication Module for Sub-100 nm TiN and TaN Pillar Electrodes for Carbon Nanotube Test Structures
by Guohai Chen, Takeshi Fujii, Takeo Yamada and Kenji Hata
Nanomaterials 2026, 16(6), 357; https://doi.org/10.3390/nano16060357 - 14 Mar 2026
Abstract
We report a versatile, CMOS-compatible fabrication module for sub-100 nm TiN and TaN pillar electrodes, a key building block for sandwich-type test structures. As a demonstration, the electrodes were integrated into carbon nanotube-based nonvolatile random-access memory (CRAM) test structures. High-resolution hydrogen silsesquioxane (HSQ) [...] Read more.
We report a versatile, CMOS-compatible fabrication module for sub-100 nm TiN and TaN pillar electrodes, a key building block for sandwich-type test structures. As a demonstration, the electrodes were integrated into carbon nanotube-based nonvolatile random-access memory (CRAM) test structures. High-resolution hydrogen silsesquioxane (HSQ) masks defined by electron beam lithography were transferred into TiN films using optimized Ar/Cl2 inductively coupled plasma reactive ion etching. Optical emission spectroscopy was used for real-time endpoint detection, ensuring precise etch control. The process achieved a TiN-to-HSQ selectivity of ~1.6 and reproducible nanoscale features with smooth sidewalls and an average taper angle of ~77°. Buffered hydrogen fluoride treatment effectively removed residual HSQ, revealing sharp TiN features and preserving pillar geometry. Atomic force microscopy (AFM) confirmed pillar height and profile fidelity, while conductive AFM verified electrical conductivity after planarization. The module was further demonstrated through the fabrication of TiN pillar arrays, TaN pillars, and sub-100 nm TiN line arrays. A CRAM test structure incorporating TiN pillars exhibited preliminary switching, indicating that both the test structure and fabrication process are feasible. This fabrication module provides a reproducible platform for nanoscale TiN and TaN electrodes, supporting laboratory-scale research and providing a pathway toward future integration of emerging memory and nanoelectronic technologies. Full article
Show Figures

Figure 1

39 pages, 13943 KB  
Article
Characterizing Initial Cervical Spine and Neurovascular Findings in 84 Consecutive Patients with Hypermobile Ehlers–Danlos Syndrome: A Retrospective Study
by Ross A. Hauser, Morgan Griffiths, Ashley Watterson, Danielle Matias and Benjamin R. Rawlings
J. Clin. Med. 2026, 15(6), 2212; https://doi.org/10.3390/jcm15062212 - 14 Mar 2026
Abstract
Background: Hypermobile Ehlers–Danlos syndrome (hEDS) can present as a complex interplay of widespread symptomatology and multisystem involvement, posing diagnostic and treatment challenges. Objective characterization of cervical spine and neurovascular findings in hEDS has been limited. Previous studies have emphasized upper cervical spine [...] Read more.
Background: Hypermobile Ehlers–Danlos syndrome (hEDS) can present as a complex interplay of widespread symptomatology and multisystem involvement, posing diagnostic and treatment challenges. Objective characterization of cervical spine and neurovascular findings in hEDS has been limited. Previous studies have emphasized upper cervical spine complications in hEDS, yet the relevance and mechanisms underlying associated symptomatology have not been elucidated. This study examined objective test findings in patients with hEDS at an outpatient neck clinic to explore cervical spine and neurovascular pathology that could contribute to further understanding the clinical profile of a subset of patients with hEDS. Methods: This single-center, retrospective observational study included patients with hEDS aged 20–50 years from 1 January 2022–31 December 2024, at an outpatient neck center. It excluded previous neck surgery, traumatic events, or related injury. Demographic, clinical, and diagnostic data were collected through a retrospective chart review, including measurements from standard clinical diagnostic protocols: digital motion X-ray (videofluoroscopy), cone beam CT, Doppler ultrasound, and tonometry. Results: More than 71% of patients reported ≥29 symptoms. Nearly all patients exhibited co-occurring forward head, decreased depth of curve, ligamentous cervical instability, and decreased internal jugular vein (IJV) and vagus nerve cross-sectional area (CSA). Vagus nerve CSA was found to be significantly smaller than the comparative healthy/normal population. IJV CSA was significantly smaller at C1 than at C4–C5, suggesting evidence of carotid sheath compression at C1. Conclusions: This study offers novel evidence that cervical spine pathology, IJV compression, and vagus nerve degeneration are uniformly prevalent in hEDS, which may contribute to, or be an etiological basis for, the multisystem involvement in a subset of patients with this disorder. These findings provide hypothesis-generating data to inform future mechanistic and therapeutic studies, including exploration of new diagnostic and treatment targets. Full article
(This article belongs to the Special Issue Clinical Advances in Musculoskeletal Disorders: 2nd Edition)
Show Figures

Figure 1

17 pages, 17553 KB  
Article
Study on the Self-Healing Performance of Microcapsule-Modified Recycled Asphalt Mixtures
by Bosong Jia, Guangqing Yang, Qiaoyi Li and Xinwen Zhang
Coatings 2026, 16(3), 369; https://doi.org/10.3390/coatings16030369 - 14 Mar 2026
Abstract
The incorporation of reclaimed asphalt pavement (RAP) in asphalt mixtures improves sustainability but significantly reduces the intrinsic self-healing capacity due to binder aging. This study aimed to quantify whether epoxy-coated rejuvenator microcapsules could restore and enhance the self-healing performance of RAP-containing recycled asphalt [...] Read more.
The incorporation of reclaimed asphalt pavement (RAP) in asphalt mixtures improves sustainability but significantly reduces the intrinsic self-healing capacity due to binder aging. This study aimed to quantify whether epoxy-coated rejuvenator microcapsules could restore and enhance the self-healing performance of RAP-containing recycled asphalt mixtures. Four mixture types (AC-10C, AC-13C, AC-16C, and SMA-13C) containing 20% RAP were evaluated using a fracture–healing–refracture bending test (Repair index, RC) and a splitting healing strength ratio (SHSR) test to determine the effects of healing time, temperature, and microcapsule dosage. RC increased rapidly during the first 8 h of healing and then approached stabilization, with the growth rate falling below 2%, indicating 8 h as the practical optimum healing duration. RC increased from 0 °C to 45 °C due to enhanced binder mobility and diffusion, and slightly decreased at 60 °C because temperature-induced softening reduced peak bending strength. The highest self-healing capacity was obtained at a microcapsule dosage of 4% (by RAP mass). Under the optimum healing condition (8 h and 45 °C), RC increased by 10.38%–13.50% and SHSR increased by 14.35%–25.27% compared with mixtures without microcapsules. Among the mixtures, SMA-13C exhibited the highest self-healing capacity, followed by AC-13C, AC-10C, and AC-16C. The contribution of this study lies in quantifying the healing enhancement in RAP-containing mixtures, identifying practical optimum healing conditions based on a growth-rate criterion, and demonstrating consistent trends between two healing indices across different mixture structures. Full article
(This article belongs to the Section Environmental Aspects in Colloid and Interface Science)
Show Figures

Figure 1

21 pages, 4343 KB  
Article
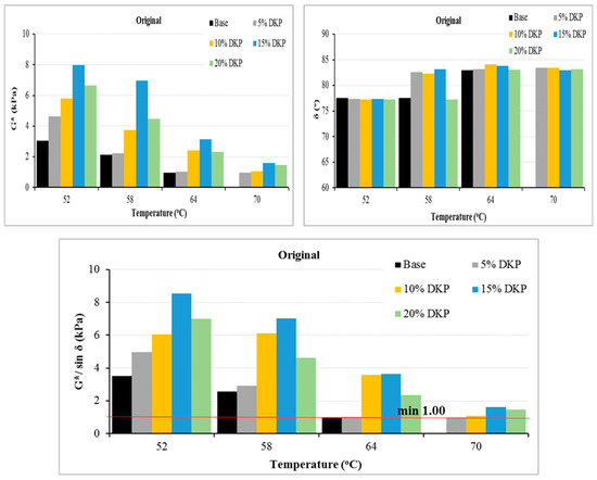
Rheological and Performance Properties of a Bituminous Binder Modified with Date Kernel Powder
by Ceren Beyza İnce
Materials 2026, 19(6), 1120; https://doi.org/10.3390/ma19061120 - 13 Mar 2026
Viewed by 78
Abstract
This study presents an experimental investigation into the direct use of date kernel powder (DKP) as a biomass-based modifier for bituminous binders, with the aim of evaluating its feasibility as a sustainable binder modifier. DKP was incorporated into a conventional bituminous binder at [...] Read more.
This study presents an experimental investigation into the direct use of date kernel powder (DKP) as a biomass-based modifier for bituminous binders, with the aim of evaluating its feasibility as a sustainable binder modifier. DKP was incorporated into a conventional bituminous binder at different contents (5, 10, 15, and 20 wt.% by weight of binder), and its physicochemical properties were characterized using SEM, XRD, and FTIR. The rheological and performance properties of the modified binders were evaluated through conventional tests, aging procedures, rotational viscosity (RV), dynamic shear rheometer (DSR), bending beam rheometer (BBR), and linear amplitude sweep (LAS) testing, and the performance grades (PG) of all binders were determined. The results indicate that DKP addition increases binder stiffness and reduces temperature susceptibility while maintaining acceptable fatigue and low-temperature performance. Performance grading results showed that the high-temperature grade increased from PG 64 to PG 70 and the low-temperature grade improved from PG-22 to PG-34 at a DKP content of 15%. LAS test results indicated that fatigue life was maintained or improved at intermediate temperatures. Among the tested contents, 15% DKP provided the most balanced performance considering performance grade improvement, fatigue behavior, and workability characteristics, while higher contents resulted in increased stiffness. Overall, the findings suggest that DKP is a promising modifier for bituminous binders at the binder level. However, further studies at the mixture and field scale are recommended to confirm the long-term engineering applicability of DKP-modified binders. Full article
(This article belongs to the Section Construction and Building Materials)
Show Figures

Graphical abstract

23 pages, 4365 KB  
Article
Comparative Study on Residual Capacity of Fire-Damaged Rectangular and T-Shaped Concrete Beams
by Manish K. Sah, Pratik Bhatt, Vasant A. Matsagar, Heesun Kim and Venkatesh K. R. Kodur
Fire 2026, 9(3), 122; https://doi.org/10.3390/fire9030122 - 12 Mar 2026
Viewed by 143
Abstract
In this study, the comparative residual performance of fire-exposed reinforced concrete (RC) beams with rectangular and T-shaped cross-sections is investigated. Two concrete beams, one with a T-section and the other with a rectangular section, were tested under the combined effects of fire exposure [...] Read more.
In this study, the comparative residual performance of fire-exposed reinforced concrete (RC) beams with rectangular and T-shaped cross-sections is investigated. Two concrete beams, one with a T-section and the other with a rectangular section, were tested under the combined effects of fire exposure and structural loading. Data generated in the tests during and following fire exposure is utilized to compare the thermal and structural response of the beams. The results indicate a notable difference in the temperature evolution, mid-span deflection, and the residual capacity of the beams. The T-beam experienced greater deflection and stiffness degradation due to its larger exposed surface area (approximately 17% higher than the rectangular beam) and flange geometry, despite comparable peak rebar temperatures. A simplified approach, based on the maximum concrete and rebar temperatures and corresponding strength reductions, is proposed to evaluate the residual capacity of fire-exposed RC beams. For equal cover depth to reinforcement, peak rebar temperature is unaffected by cross-section shape as long as the web of the T-beam is not slender. T-shaped beams with similar overall depth exhibit greater post-fire strength retention than rectangular beams when the neutral axis lies within the flange. A 20% reduction in the web thickness and a combined reduction of 20% in web and 37% in flange thickness result in a comparable decrease in the flexural capacity to that of the rectangular beams of similar depth, indicating that the flange plays a key role in maintaining post-fire performance. Full article
(This article belongs to the Special Issue Fire Safety in the Built Environment)
Show Figures

Figure 1

16 pages, 10173 KB  
Article
A Low-Cost Two-Dimensional Scalable Active Receive Phased Array with 8 Simultaneously Reconfigurable Beams
by Haifu Zhang, Li-Xin Guo, Shubo Dun, Xiaoming Li, Wei Mei, Xiaolong Xu and Dinuo Bu
Micromachines 2026, 17(3), 348; https://doi.org/10.3390/mi17030348 - 12 Mar 2026
Viewed by 112
Abstract
This paper presents a compact multi-beam dual-circularly polarized phased array receiving system operating in the 10.7–12.7 GHz frequency band is designed and implemented, which can generate eight reconfigurable receiving beams with independently configurable polarization modes and scanning directions for each beam. To improve [...] Read more.
This paper presents a compact multi-beam dual-circularly polarized phased array receiving system operating in the 10.7–12.7 GHz frequency band is designed and implemented, which can generate eight reconfigurable receiving beams with independently configurable polarization modes and scanning directions for each beam. To improve the aperture utilization efficiency of the array and reduce the array size, the proposed phased array architecture adopts a “full-aperture multiplexing” beamforming method, where all beams share the same array aperture. For cost-effective phased array architecture with two-dimensional scalability, the array is divided into several identical receiving subarrays, with the control and power supply modules arranged beneath the array aperture. In addition, a heterogeneous integration scheme is introduced to realize high-density integration of various receiving functional chips, which reduces the overall array footprint by approximately 30% while maintaining the basic performance of the system gain-to-noise-temperature ratio (G/T). Meanwhile, different dielectric substrates are adopted to implement multi-level combining networks, optimizing the trade-off between overall efficiency and cost. To verify the feasibility of the proposed architecture, a prototype with a 16 × 16 array configuration is developed and tested. The measured results show that the array gain reduction is no more than 4 dB at a maximum scanning angle of 60°, and the G/T value of all beams in the boresight direction is not less than 0.9 dB/K at 11.7 GHz. The experimental results validate the effectiveness of the proposed multi-beam dual-circularly polarized phased array architecture in terms of engineering implementation and system performance. Full article
Show Figures

Figure 1

19 pages, 4314 KB  
Article
Digital Image-Based Deformation Measurement Method for LNG Modular Transport Beam–Column Joints
by Jian Yang, Gang Shen, Yuxi Huang, Yu Fu, Juan Su, Peng Sun and Xiaomeng Hou
Buildings 2026, 16(6), 1125; https://doi.org/10.3390/buildings16061125 - 12 Mar 2026
Viewed by 112
Abstract
In the modular construction of liquefied natural gas (LNG) plants and receiving terminals, transport beams are critical components that enable modular mobility. However, these beams are susceptible to large deformations due to complex loads during land and sea transportation. Traditional monitoring methods (i.e., [...] Read more.
In the modular construction of liquefied natural gas (LNG) plants and receiving terminals, transport beams are critical components that enable modular mobility. However, these beams are susceptible to large deformations due to complex loads during land and sea transportation. Traditional monitoring methods (i.e., strain gauge and deflection meters) often suffer from low efficiency and poor accuracy and may disrupt operational continuity in real-time monitoring systems. This paper presents a non-contact, real-time deformation detection system for LNG modular transport beams based on digital image technology, which integrates a high-resolution camera with a real-time software framework to remotely monitor structural integrity. An experiment was conducted on a full-scale support column-transport beam frame with specialized connection joints designed for rapid assembly. Five digital image correlation (DIC) detection regions (5 cm × 5 cm) were established on box-shaped beam sleeves, column sleeves, and the end plates of the beam–column joints. In addition, displacement gauges were installed at the same DIC locations. The experimental results demonstrate that the DIC measurements show good agreement with traditional measurement methods, verifying the applicability of the proposed system for large-scale LNG engineering structures. Full article
Show Figures

Figure 1

14 pages, 2503 KB  
Article
A Defined-Area Bonding Approach for Microtensile Testing: A Reliable Alternative to Monoblock Sectioning for High-Hardness Restorative Materials
by Koji Yamashita, Chiharu Kawamoto, Yu Toida, Shimpei Kawano, Shuhei Hoshika, Hidehiko Sano and Atsushi Tomokiyo
J. Funct. Biomater. 2026, 17(3), 141; https://doi.org/10.3390/jfb17030141 - 11 Mar 2026
Viewed by 98
Abstract
Background: The microtensile bond strength (μTBS) test is the gold standard for evaluating adhesive performance in restorative dentistry. However, the conventional non-trimming technique—referred to in this study as the monoblock sectioning technique (MST)—is difficult to apply to hard and brittle CAD/CAM materials such [...] Read more.
Background: The microtensile bond strength (μTBS) test is the gold standard for evaluating adhesive performance in restorative dentistry. However, the conventional non-trimming technique—referred to in this study as the monoblock sectioning technique (MST)—is difficult to apply to hard and brittle CAD/CAM materials such as zirconia and ceramics, thereby limiting test reproducibility. This study compared a newly developed defined-area bonding (DAB) method with MST to determine whether DAB could serve as a reliable specimen preparation technique for μTBS testing. Methods: CAD/CAM resin blocks and resin core materials were bonded using either ESTECEM II or Panavia V5. MST specimens were obtained by bonding the blocks first and subsequently sectioning them into individual beams. In contrast, DAB specimens were produced by pre-shaping the sticks and bonding them within a defined 1 mm2 area. μTBS, failure modes, and fracture/interface morphology (SEM) were evaluated. Results: MST produced significantly higher μTBS values than DAB (p < 0.001), with central MST beams showing the highest bond strengths. DAB values were statistically equivalent to MST peripheral values for both cements. More than 80% of failures were cohesive within resin cement across all groups. SEM revealed uniform cement layer thickness (50–60 μm) and similar peripheral-like fracture patterns in DAB specimens. Conclusions: Although MST yielded higher μTBS overall, the DAB method produced bond strengths equivalent to the MST peripheral region and demonstrated consistent fracture characteristics. Because DAB requires minimal cutting, it offers a promising, reproducible approach for μTBS testing of high-hardness materials that are otherwise difficult to section. Full article
(This article belongs to the Special Issue Biomaterials for Dental Reparative and Regenerative Therapies)
Show Figures

Figure 1

Back to TopTop