A Component-Based Model for Novel Modular Connections with Inbuild Component
Abstract
:1. Introduction
- (1)
- the component-based model for novel modular connections was developed based on parameter analysis results.
- (2)
- the force-deformation response of each component was determined with the help of the finite element method.
- (3)
- assembly of all components to overall rotational joint. At last, the results of the simplified model were compared with the results of the elaborate finite element model.
2. Parameter Analysis
2.1. Establishment and Validation of FEM
2.2. Parameter Setting
2.3. Parameter Analysis Results
2.3.1. Thickness of Side Plate and Bolts Preload
2.3.2. Thickness of Beam End Plate
2.3.3. The Height and Thickness of the Inbuild Component
2.3.4. Allowable Construction Errors
2.3.5. Dimension of Floor and Ceiling Beams
3. Component-Based Model
3.1. Component Identification
- (1)
- The rigid body assumption was made to beam end plate.
- (2)
- The allowable construction errors and relative dislocation between the upper and lower column were considered as the mechanical properties of intramodule connections (will be discussed in Section 3.2.3).
- (3)
- Based on assumption (2), only rotational deformation will be considered in intermodule connections.
- (4)
- The enhancement stiffeners’ effect on connections was neglected.
3.2. Characteristics of Components
3.2.1. Joint Panel (Shear Behavior)
3.2.2. Converged Section Component
3.2.3. Interaction Mechanism
3.3. Component Identification
4. Validation
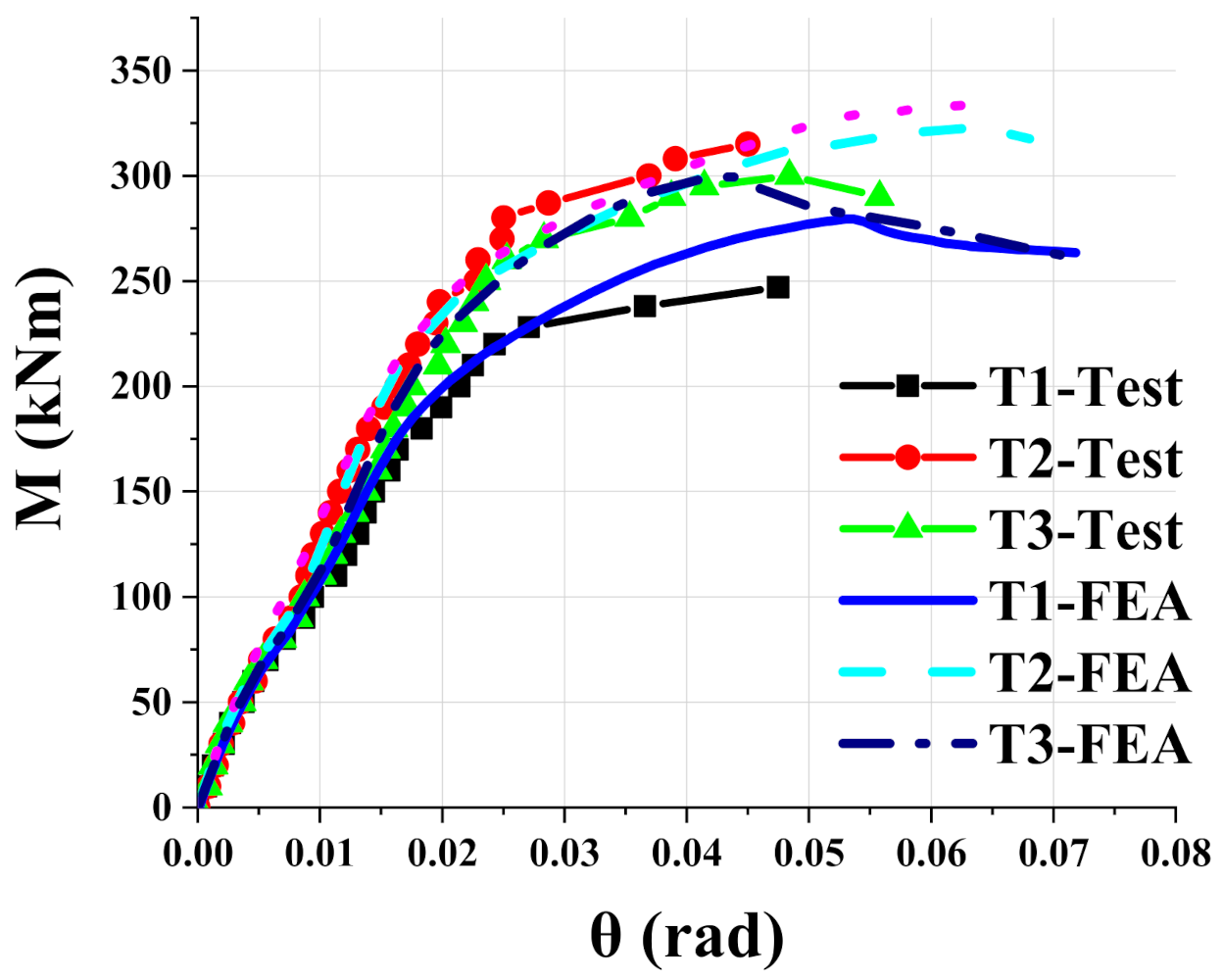
4.1. Intramodule Connections
4.2. Global Connections
5. Conclusions
- (1)
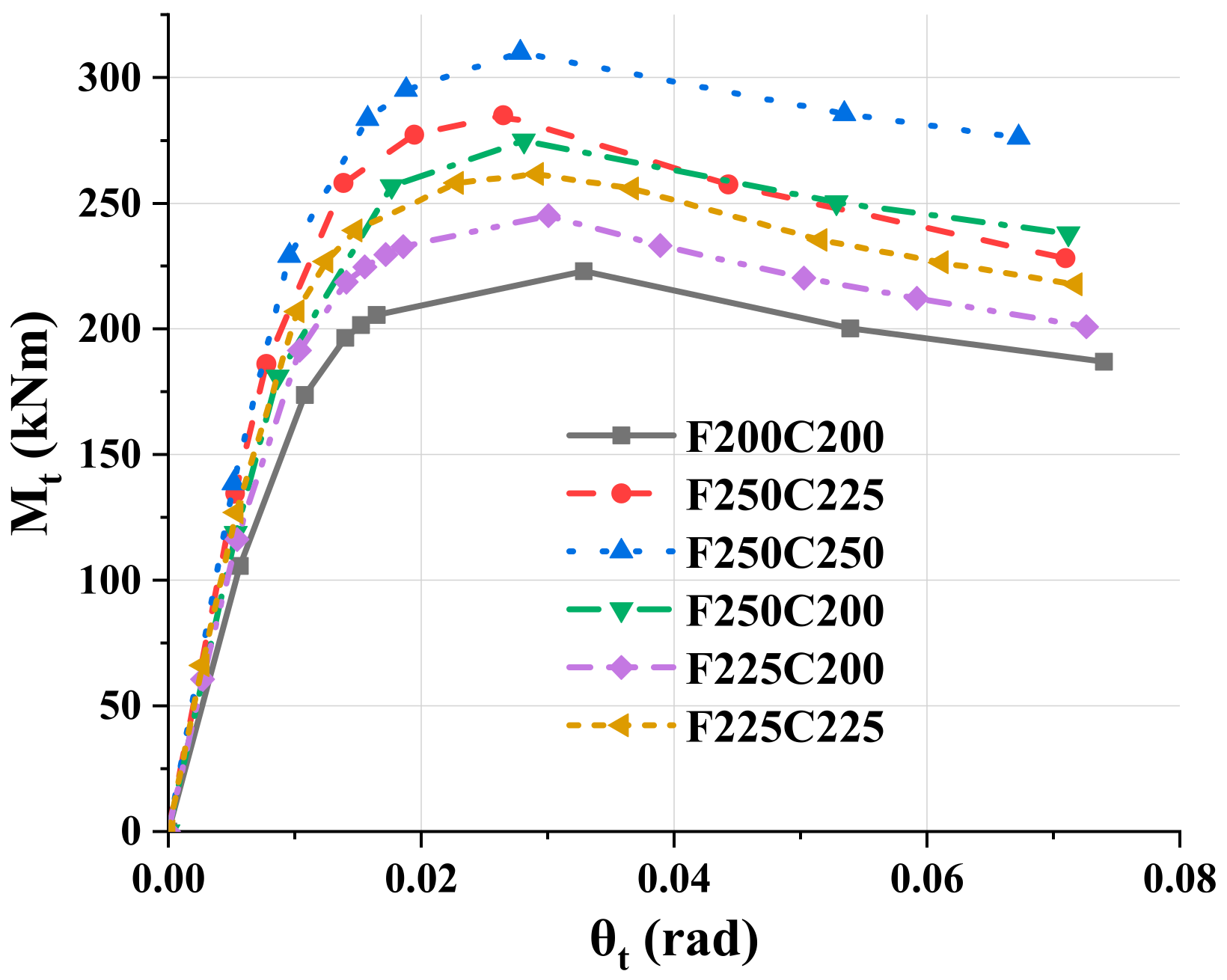
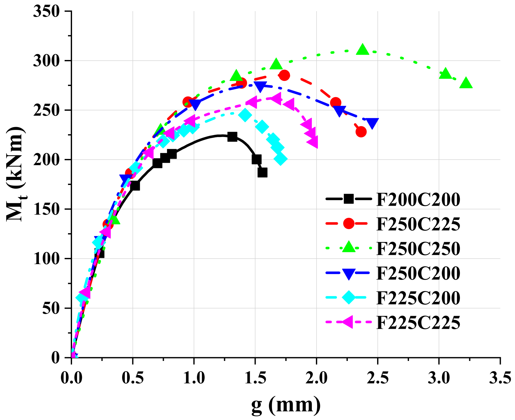
- Bolt preload, side plate thickness and inbuild component height had little influence on mechanical properties of novel modular connections. The thickness of the inbuild component affected the initial stiffness and continuity of the connection but had no effect on the ultimate bending capacity of the joint. The allowable construction error mainly affected the initial stiffness of the joint but did not change the ultimate bending strength of the joint. The height of twin beams was proportional to the initial stiffness and ultimate bending capacity of the novel modular building connections. When the height of the floor beam was equal to that of the ceiling beam, the continuity index of the connections was better. When the height of floor beam was larger than the ceiling height, the rotational difference between upper and lower columns increased and the continuity of connections decreased.
- (2)
- A component-based model for novel modular connections was established. The advantage of the model was that it can describe the deformation of intramodule connections and intermodule connections, respectively. The key factor of the model was the converged section component, and its force–displacement relationship under various parameters was obtained by the fitting method. The interaction mechanism between inbuild component and columns was analyzed. It was found that the inbuild component improved the mechanical properties of the converged section component under compression but had little effect on the mechanical properties under tension. Taking the allowable construction errors into consideration, the deformation mode can be divided into three stages which would cause a “slip” in moment-rotation curves of a related model.
- (3)
- A simplified finite element model of intramodule connection was built and compared with the finite element model meshed by “shell element”. For connections without the inbuild component, the failure mode was the tension (compression) failure at the column open end (called “II” region in the paper). The inbuild component can improve the mechanical properties of the intramodule connection under negative bending moment by protecting the “II” from compression failure. When the connection was under positive bending moment, the initial stiffness was increased by improving the mechanical properties of “I” region, but the failure mode remained unchanged. The curves with construction error were between that without the inbuild component and without construction error. In general, the simplified finite element model could accurately predict the mechanical properties and behavior of intramodule connections.
- (4)
- The simplified finite element model of global novel modular connections was built and compared with the refined finite element model. Length and section characteristics of the “beam” element that represented the intermodule connection was clearly stated. The conservative estimation method was proposed to evaluate the weakening effect of allowance construction error on initial stiffness of global modular connections. The average error of the simplified finite element model about initial stiffness and ultimate bending moment was 3.9% and 9.3%, respectively. In general, the proposed model can predict the mechanical behavior of novel modular building connections within the acceptable margin of error.
Author Contributions
Funding
Institutional Review Board Statement
Informed Consent Statement
Acknowledgments
Conflicts of Interest
References
- Li, H.X.; Al-Hussein, M.; Lei, Z.; Ajwhen, Z. Risk identification and assessment of modular construction utilizing fuzzy analytic hierarchy process (AHP) and simulation. Can. J. Civ. Eng. 2013, 40, 1184–1195. [Google Scholar] [CrossRef]
- Lu, N.; Korman, T. Implementation of Building Information Modeling (BIM) in Modular Construction: Benefits and Challenges Na Lu1 and Thomas Korman2. Constr. Res. Congr. 2010, 1136–1145. [Google Scholar]
- Ferdous, W.; Bai, Y.; Ngo, T.D.; Manalo, A.; Mendis, P. New advancements, challenges and opportunities of multi-storey modular buildings—A state-of-the-art review. Eng. Struct. 2019, 183, 883–893. [Google Scholar] [CrossRef]
- Brunesi, E.; Peloso, S.; Pinho, R.; Nascimbene, R. Cyclic testing of a full-scale two-storey reinforced precast concrete wall-slab-wall structure. Bull. Earthq. Eng. 2018, 16, 5309–5339. [Google Scholar] [CrossRef]
- Brunesi, E.; Peloso, S.; Pinho, R.; Nascimbene, R. Cyclic testing and analysis of a full-scale cast-in-place reinforced concrete wall-slab-wall structure. Bull. Earthq. Eng. 2018, 16, 4761–4796. [Google Scholar] [CrossRef]
- Chen, Z.; Liu, J.; Yu, Y. Experimental study on interior connections in modular steel buildings. Eng. Struct. 2017, 147, 625–638. [Google Scholar] [CrossRef]
- Chen, Z.; Liu, J.; Yu, Y.; Zhou, C.; Yan, R. Experimental study of an innovative modular steel building connection. J. Constr. Steel Res. 2017, 139, 69–82. [Google Scholar] [CrossRef]
- Dhanapal, J.; Ghaednia, H.; Das, S.; Velocci, J. Structural performance of state-of-the-art VectorBloc modular connector under axial loads. Eng. Struct. 2019, 183, 496–509. [Google Scholar] [CrossRef]
- Dai, X.M.; Zong, L.; Ding, Y.; Li, Z.-X. Experimental study on seismic behavior of a novel plug-in self-lock joint for modular steel construction. Eng. Struct. 2019, 181, 143–164. [Google Scholar] [CrossRef]
- Annan, C.D.; Youssef, M.A.; El Naggar, M.H. Seismic overstrength in braced frames of modular steel buildings. J. Earthq. Eng. 2008, 13, 1–21. [Google Scholar] [CrossRef]
- Sultana, P.; Youssef, M.A. Seismic performance of modular steel-braced frames utilizing superelastic shape memory alloy bolts in the vertical module connections. J. Earthq. Eng. 2020, 24, 628–652. [Google Scholar] [CrossRef]
- Fathieh, A.; Mercan, O. Seismic evaluation of modular steel buildings. Eng. Struct. 2016, 122, 83–92. [Google Scholar] [CrossRef]
- Gunawardena, T. Behaviour of Prefabricated Modular Buildings Subjected to Lateral Loads. Ph.D. Thesis, University of Melbourne, Melbourne, Australia, 2016. [Google Scholar]
- CEN. EN 1993-1-8: Eurocode 3: Design of Steel Structures–Part 1–8: Design of Joints; European Committee for Standardization: Brussels, Belgium, 2005. [Google Scholar]
- CEN. EN 1994-1-1: Eurocode 4: Design of Composite Steel and Concrete Structures-Part 1–1: General Rules and Rules for Buildings; European Committee for Standardization: Brussels, Belgium, 2004. [Google Scholar]
- Sadeghi, S.N.; Heidarpour, A.; Zhao, X.L.; Al-Mahaidi, R. A component-based model for innovative prefabricated beam-to-hybrid tubular column connections. Thin-Wall Struct. 2018, 132, 265–275. [Google Scholar] [CrossRef]
- Demonceau, J.F.; Weynand, K.; Jaspart, J.P.; Muller, C. Application of Eurocode 3 to steel connections with four bolts per horizontal row. In Proceedings of the SDSS’Rio 2010 Conference, Rio de Janeiro, Brazil, 8–10 September 2010; pp. 199–206. [Google Scholar]
- Málaga-Chuquitaype, C.; Elghazouli, A.Y. Component-based mechanical models for blind-bolted angle connections. Eng. Struct. 2010, 32, 3048–3067. [Google Scholar] [CrossRef] [Green Version]
- Alhasawi, A.; Guezouli, S.; Couchaux, M. Component-Based Model Versus Stress-Resultant Plasticity Modelling of Bolted End-Plate Connection: Numerical Implementation[C]//Structures; Elsevier: Amsterdam, The Netherlands, 2017; Volume 11, pp. 164–177. [Google Scholar]
- Stylianidis, P.M.; Nethercot, D.A. Modelling of connection behaviour for progressive collapse analysis. J. Constr. Steel Res. 2015, 113, 169–184. [Google Scholar] [CrossRef]
- Del Savio, A.A.; Nethercot, D.A.; Vellasco, P.; Andrade, D.A.L.; Martha, L.F. Generalised component-based model for beam-to-column connections including axial versus moment interaction. J. Constr. Steel Res. 2009, 65, 1876–1895. [Google Scholar] [CrossRef]
- Block, F.M.; Davison, J.B.; Burgess, I.W.; Plank, R.J. Principles of a component-based connection element for the analysis of steel frames in fire. Eng. Struct. 2013, 49, 1059–1067. [Google Scholar] [CrossRef]
- Ma, R.; Xia, J.; Chang, H.; Xu, B.; Zhag, L. Experimental and numerical investigation of mechanical properties on novel modular connections with superimposed beams. Eng. Struct. 2021, 232, 111858. [Google Scholar] [CrossRef]
- Bo, X.; Junwu, X.; Hongfei, C.; Renwei, M.; Lihai, Z. Flexural behaviour of pairs of laminated unequal channel beams with different interfacial connections in corner-supported modular steel buildings. Thin-Wall Struct. 2020, 154, 1–12. [Google Scholar]
- Bo, X.; Junwu, X.; Hongfei, C.; Renwei, M.; Lihai, Z. A comprehensive experimental-numerical investigation on the bending response of laminated double channel beams in modular buildings. Eng. Struct. 2019, 200, 1–15. [Google Scholar]
- Bo, X.; Junwu, X.; Renwei, M.; Jian, W.; Xiaomiao, C.; Hongfei, C.; Lihai, Z. Investigation on true stress-strain curves of flat and corner regions of cold-formed section using 3D digital image correlation method. Adv. Civ. Eng. 2019, 3138176, 1–18. [Google Scholar]
- Brunesi, E.; Nascimbene, R.; Rassati, G.A. Seismic response of MRFs with partially-restrained bolted beam-to-column connections through FE analyses. J. Constr. Steel Res. 2015, 107, 37–49. [Google Scholar] [CrossRef]
- Brunesi, E.; Nascimbene, R.; Rassati, G.A. Response of partially-restrained bolted beam-to-column connections under cyclic loads. J. Constr. Steel Res. 2014, 97, 24–38. [Google Scholar] [CrossRef]
- Harada, Y.; da Silva, L.S. Three-dimensional macro-modeling of beam-to-rectangular hollow section column joints under cyclic loading. Part 1: Modeling of cyclic out-of-plane behavior of single isolated plate element. J. Constr. Steel Res. 2019, 162, 105713. [Google Scholar] [CrossRef]
- Harada, Y.; da Silva, L.S. Three-dimensional macro-modeling of beam-to-rectangular hollow section column joints under cyclic loading. Part 2: Modeling of beam-to-column joint by extended component-based approach. J. Constr. Steel Res. 2019, 162, 105714. [Google Scholar] [CrossRef]
- Garifullin, M. Component Method for High Strength Steel Rectangular Hollow Section T Joints; Tampere University: Tampere, Finland, 2019. [Google Scholar]












































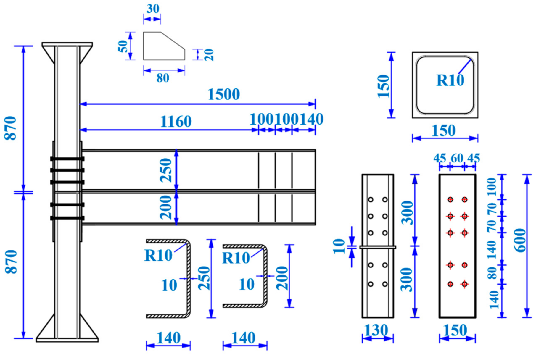
| Specimen No. | Floor Beam | Ceiling Beam | Column | Stiffener Thickness |
|---|---|---|---|---|
| T1 | [ 250 140 10 | [ 200 140 10 | □150 150 8 | None |
| T2 | [ 250 140 10 | [ 250 140 10 | □150 150 8 | None |
| T3 | [ 250 140 10 | [ 200 140 10 | □150 150 8 | 12 mm |
| No. | a | b | c | d | e | f | z0 | R2 |
|---|---|---|---|---|---|---|---|---|
| 0.00835 | 7.75261 | 0.000219 | 3.24409 | 0.06114 | 0.996 | |||
| 1.0174 | 0.990 | |||||||
| 1.03139 | 0.43665 | 0.26507 | 0.11452 | 0.25916 | 0.991 | |||
| 0.000385 | 0.00942 | −0.02198 | 0.990 | |||||
| 0.31558 | 0.76463 | −0.07116 | 0.990 | |||||
| −3.891 | 1.4221 | 3.40341 | 0.991 |
| Joint No. | Initial Stiffness | Ultimate Bending Moment | ||||
|---|---|---|---|---|---|---|
| Simplified | FEM | Error | Simplified | FEM | Error | |
| B250 | 13,180 | 12,438 | +5.9% | 111 | 115 | −3.5% |
| B225 | 10,029 | 9860 | +1.71% | 105 | 99 | 6.1% |
| B200 | 7896 | 7650 | +3.2% | 90 | 84 | 7.1% |
| B250-P | 13,937 | 13,518 | +3.1% | 119 | 123 | −3.3% |
| B225-P | 10,714 | 10,734 | −0.19% | 107 | 104 | 2.9% |
| B200-P | 8362 | 8318 | +0.53% | 91 | 87 | 4.6% |
| B250-P | 14,796 | 14,603 | −1.3% | 157 | 167 | −6.0% |
| B225-P | 11,316 | 11,606 | −2.5% | 128 | 146 | −12.3% |
| B200-P | 8849 | 9022 | −1.9% | 113 | 125 | 9.6% |
| Joint No. | Initial Stiffness | Ultimate Bending Moment | ||||
|---|---|---|---|---|---|---|
| Simplified | FEM | Error | Simplified | FEM | Error | |
| F250C250M | 20,268 | 21,194 | −4.37% | 250 | 275 | −9.10% |
| F250C225M | 23,898 | 24,717 | −3.31% | 265 | 285 | −7.03% |
| F250C200M | 25,319 | 25,410 | −0.36% | 275 | 310 | −11.29% |
| F225C225M | 20,836 | 22,878 | −8.9% | 234 | 261 | −10.34% |
| F225C200M | 18,582 | 20,682 | −10.15% | 220 | 245 | −10.20% |
| F200C200M | 16,350 | 17,375 | −5.90% | 206 | 223 | −7.62% |
| G1-M | 15,195 | 14,880 | 2.12% | 245 | 272 | −9.93% |
| G2-M | 11,946 | 12,346 | −3.24% | 245 | 271 | −9.59% |
| G3-M | 10,745 | 10,861 | −1.07% | 245 | 269 | −8.92% |
Publisher’s Note: MDPI stays neutral with regard to jurisdictional claims in published maps and institutional affiliations. |
© 2021 by the authors. Licensee MDPI, Basel, Switzerland. This article is an open access article distributed under the terms and conditions of the Creative Commons Attribution (CC BY) license (https://creativecommons.org/licenses/by/4.0/).
Share and Cite
Ma, R.; Xia, J.; Chang, H.; Xu, B. A Component-Based Model for Novel Modular Connections with Inbuild Component. Appl. Sci. 2021, 11, 10503. https://doi.org/10.3390/app112110503
Ma R, Xia J, Chang H, Xu B. A Component-Based Model for Novel Modular Connections with Inbuild Component. Applied Sciences. 2021; 11(21):10503. https://doi.org/10.3390/app112110503
Chicago/Turabian StyleMa, Renwei, Junwu Xia, Hongfei Chang, and Bo Xu. 2021. "A Component-Based Model for Novel Modular Connections with Inbuild Component" Applied Sciences 11, no. 21: 10503. https://doi.org/10.3390/app112110503
APA StyleMa, R., Xia, J., Chang, H., & Xu, B. (2021). A Component-Based Model for Novel Modular Connections with Inbuild Component. Applied Sciences, 11(21), 10503. https://doi.org/10.3390/app112110503
