Next Article in Journal
Advances in Solidification Technologies of Lunar Regolith-Based Building Materials Under Extreme Lunar Environments
Previous Article in Journal
The Impact of Pile Diameter on the Performance of Single Piles: A Kinematic Analysis Based on the TBEC 2018 Guidelines
 
 
Font Type:
Arial Georgia Verdana
Font Size:
Aa Aa Aa
Line Spacing:
Column Width:
Background:
Article

SeismicV: A Mobile Tool for Assessing the Seismic Vulnerability of Buildings

by
Philipe Q. Rodrigues
1,*,
João C. Pantoja
1,2 and
Humberto Varum
1,2
1
LABRAC—Laboratory for Rehabilitation of the Built Environment, Universidade de Brasília, Brasília 70910-900, Brazil
2
CONSTRUCT-LESE, Structural Division, Department of Civil Engineering, Faculty of Engineering, University of Porto, 4200-465 Porto, Portugal
*
Author to whom correspondence should be addressed.
Buildings 2025, 15(14), 2541; https://doi.org/10.3390/buildings15142541
Submission received: 11 May 2025 / Revised: 25 June 2025 / Accepted: 8 July 2025 / Published: 19 July 2025
(This article belongs to the Section Building Structures)

Abstract

Rapid visual screening has been used worldwide as the first approach to evaluate the seismic vulnerability of civil structures in a specific area, in order to prioritize buildings based on the need for upgrading or retrofitting. In this work, a novel mobile application tool for the rapid visual screening of reinforced concrete buildings is presented and discussed. The herein suggested “SeismicV” tool performs a pre-seismic visual screening based on the Japanese guidelines for the seismic evaluation of existing RC buildings. A preliminary seismic vulnerability assessment of a complex modern building situated in the capital of Brazil, Brasilia, was carried out using this mobile app. The data were collected from in situ and based on some data from plants and documents. The SeismicV tool consists of an effective, user-friendly, and straightforward mobile application. Since the methodology is based on a performance score that is compared to the seismic demand, this application design allows for the knowledge of intermediate indices at each step of the evaluation, including dominant variables such as structural irregularity, building age, ground index, and usage index. Although the application was conceived and applied to heritage buildings in the early stages, it can be employed for other complex structures. The findings highlight that utilizing SeismicV to assess the seismic vulnerability of complex buildings through the rapid visual screening method offers significant benefits, including faster evaluations, increased accuracy, and improved accessibility for field assessments.

1. Introduction

During seismic events, structures designed to withstand seismic forces, as well as pre-code buildings and non-engineered constructions, are subjected to seismic loads. Structural damage, economic losses, irreversible harm to cultural heritage, and, most critically, human casualties tend to be significantly higher in developing and underdeveloped nations [1]. In these regions, urban infrastructure is typically marked by unregulated and highly vulnerable building stocks that fail to comply with even basic national design standards, let alone seismic design codes. This challenge is further exacerbated in non-seismic regions, such as Brazil, where the widespread misconception that the country is impervious to moderate or strong earthquakes fosters a lack of preparedness and adherence to seismic safety measures. Recent research has highlighted the significance of accounting for seismic forces in structural design, even in areas traditionally considered to have low seismic risk [2,3].
Various facilities within the category of pre-code existing buildings, including complex monuments, museums, hospitals, schools, commercial establishments, and essential storage facilities, remain highly susceptible to severe damage during seismic events. Tools, including intuitive and user-friendly mobile applications, must account for the specific characteristics and requirements of diverse facilities during their deployment and practical application. This benefits all stakeholders, including engineers, government agencies, organizations, and disaster management authorities, by providing a dependable assessment of the vulnerability and risk of critical structures in advance. This, in turn, enables them to make informed decisions that reduce risks, safeguard communities, and ensure the resilience of community life [4].
The evaluation of a set of buildings using analytical methods to obtain precise insights into their seismic behavior may be impractical or even infeasible. While advanced numerical approaches, such as those employing static or dynamic nonlinear analyses, enable accurate predictions of the seismic responses of typical structures, these methodologies are unsuitable for large-scale seismic vulnerability assessments. This limitation arises from the substantial level of knowledge required to construct reliable numerical models and the considerable computational demands associated with these techniques [5].
Over the past five decades, numerous methodologies have been developed to analyze the behavior of existing structures under seismic events and to establish correlations between this behavior and the intensity of local seismic activity.
Rapid visual screening (RVS) methods represent streamlined and immediate approaches, functioning as qualitative procedures for the preliminary assessment of structural vulnerability. These methods serve as precursors to more precise evaluations, categorizing buildings according to their construction materials and structural systems. The framework is designed to identify key building parameters and compute a basic structural performance score, with the objective of prioritizing structures for potential interventions in future seismic risk mitigation efforts [6]. Among the applications of RVS, variations include—but are not limited to—the earthquake disaster risk management programs of a city or a region, and to assist decision-makers in the implementation of seismic risk reduction strategies. According to [5], the purpose of the RVS methodology is not to provide an exact prediction of the seismic performance of a structure. Nonetheless, the relevance of the methodology has been noted through the implementation of different RVS methods in several countries and its wide international acceptance, including its incorporation into remarkable national building codes, such as FEMA 154, which is used worldwide.
As highlighted in FEMA 154 [7], its application has been adopted by many different people—including non-structural engineers in different jurisdictions throughout the United States—for over 35 years. The screening can be conducted quickly because it is based on a sidewalk survey, enabling the evaluation of a large building portfolio while requiring little expertise, and it is a cost-effective method.
In alignment with this approach, this study presents a thorough seismic vulnerability assessment of a modern building in Brasilia, Brazil. At the same time, it introduces a suitable rapid visual screening mobile application based on a simplified method. This method was previously applied in Brazil by [8,9,10]. Among all the methods available in the literature, the Japanese method is adopted and implemented as a mobile tool. It is worth noting that to assess the strength capacity of the studied building, the tool requests very little data concerning the building, such as geometrical data, mechanical properties of the materials, the age of construction, maintenance status, and type of horizontal and vertical structures, in order to estimate a safety factor and a qualitative assessment of the vulnerability [11]. This study is structured to provide a full understanding of the rapid visual method, a description of the mobile application that allows for reproducibility, and a detailed description of the building’s geometry, structural system, construction materials, and the seismic context of the country. Finally, the seismic vulnerability of buildings in several scenarios is compared. The last part summarizes the key findings of the study. The tool is available on github repository.

2. Rapid Visual Screening Method

The Japanese framework for the pre-earthquake building evaluation employs a simplified qualitative methodology to assess the seismic vulnerability of existing structures. This approach is divided into three procedural levels, namely, the first, second, and third. The first-level procedure is the most basic, while the third-level procedure incorporates the most intricate calculations [12]. According to [13], the primary objective of the first-level procedure is to evaluate structural strength based on the average strength of walls and columns, verifying whether the building can resist seismic forces without requiring ductile behavior. The second level assesses seismic capacity by considering the dynamic properties of the columns, including their ductility and strength. At the third level, the assessment integrates the resistance and ductility of both vertical and horizontal structural elements, such as columns, walls, and beams, to determine the building’s overall seismic performance.
The evaluation method for the structural capacity of medium- and small-scale buildings, proposed by the Japanese Ministry in 1977, was designed to offer a practical and expeditious approach to the large-scale assessment of buildings subjected to intense seismic activity. Ref. [14] reported that the seismic performance of both damaged and undamaged buildings—affected by multiple earthquakes—was analyzed to validate the method’s reliability. From these investigations, a seismic demand index—also interpreted as a seismic protection criterion—was derived.
Although the method is qualitative, its equations are based on nonlinear response analyses of single-degree-of-freedom structural models. In [15], a simulation using a mass model supported by a parallel spring system was used, combining two hysteretic loops known as the origin-oriented model and the trilinear degradation model. The first represents structural walls or shear walls, while the second corresponds to columns or frames, which are the first to fail in shear and bending, respectively. For this dynamic analysis, Ref. [15] selected the El Centro (1940) (north–south), Taft (1952) (east–west), and Hachinohe (1968) (north–south) earthquakes, and the peak acceleration of each event was adjusted to 30% of gravity. Since then, various strength values have been prescribed for structural walls and columns, with the ultimate displacement of the walls and the inelastic displacement of the columns considered constant. The natural periods ranged from 0.6 to 1 s.
In this study, the first-level evaluation method was adopted for reinforced concrete structures. The seismic index of the structure represents the maximum elastic response of the shear coefficient for each floor [16], calculated using the following equation:
I S   = E 0   · S D · T D
The seismic index of the structure is computed as the product of the basic seismic index of the structure ( E 0 ), the irregularity index ( S D ), and the time index ( T D ), which accounts for the degradation of structural strength and ductility over time [17]. These parameters were derived from on-site inspections of the building. Consequently, the methodology necessitates the prior identification of critical factors, such as structural irregularities, the presence of soft stories or short columns, soil conditions, the seismic zone, and the intended use of the building.
This seismic assessment methodology was adapted to the Brazilian context by [18]. One of the earliest adaptations of the Japanese guidelines to the Brazilian context was its exclusive focus on concrete columns. This approach is justified by the fact that most reinforced concrete buildings up to eight stories do not contain concrete walls or short columns. It is important to recall that a short column is defined as a reinforced concrete column in which the ratio between the free height ( h 0 ) and the section’s base dimension (D) is less than or equal to 2 ( h 0 / D   2 ).
Short columns exhibit brittle shear failure behavior, and their presence depends on the existence of horizontal elements that constrain the free height. In Brazil, except for some architectural requirements, the base dimension of columns is typically, at most, 30 cm. Therefore, a column with a free height of up to 60 cm may be classified as a short column. Such conditions often arise due to openings created for architectural functions when infill walls are assumed to be part of the structural system. However, this structural system is not addressed by the current method.
For buildings with short columns, the following equation is applied:
E 0 = n + 1 n + i   · C s c + a 2 · C w + a 3 · C c · F s c
For those without, it remains as follows:
E 0 = n + 1 n + i   · C w + a 1 · C c · F w
In the case of the Brazilian context, since no wall column is considered, Equation (3) is rewritten as follows:
E 0 = n + 1 n + i   · a 1 · C c · F c
It should be noted that the index of ductility now changes from F w to F c , which only takes into account the ductility of columns and does not consider the participation of walls ( F w ) or short columns ( F s c ).
It should be emphasized that another required adaptation involves the fact that the original Japanese method considered only concrete compressive strength values of up to 200 kgf/cm2. In cases where f c values go above this limit, Ref. [19] introduces a modification in the formulation, from f c / 20   t o   f c   / 20 .
E 0 = n + 1 n + i   · a 1 f c 20 · ( τ c 1 · A c 1 ) W · F c
Some limitations arise when adapting to the Brazilian context, such as in the case of shear strength, τ c 1 , since there is no exhaustive campaign of experiments with columns built in Brazil to determine the mean value of shear strength; hence, the original value of the method was used here. Also, the Brazilian methodology accounts for the seismic index, I S , in only one direction, given that the total cross-sectional area of the concrete columns remains invariant regardless of the direction under analysis. The two other factors, ( S D ) and ( T D ) , were kept the same, as recommended in the original guidelines.
The sub-index, S D ,   aims to assess the structural irregularity or stiffness, as well as the non-uniform distribution of mass and stiffness (Equation (6)). The building characteristics considered in this coefficient include the following: plan irregularity, the ratio between the building’s length and width, the presence of basements, irregularity in floor heights, and the ratio between the atrium area and the total floor area (Table 1).
S D = i = 1 1 = 8 q i
where
q i = 1 1 G i · R i   when   i = 1 ,   2 ,   3 ,   4 ,   5 ,   7   and   8
q j = 1.2 1 G i · R i   when   i = 6
Items “a” through “j” must be checked for each floor, and the lowest value among all floors is applied to the entire structure. The following table details the calculation of each item (Table 2).
Table 2. Detailed description of each item of the S D .
Table 2. Detailed description of each item of the S D .
ItemDescription
a. Regularity
  • The floor plan exhibits bilateral symmetry along two axes (indicating a high degree of regularity), and any projection parts occupy less than 10% of the total floor area. (Figure 1a).
  • The structural balance is worse than a1, or the area of a projection part is no more than 30% of the floor area with an L-, T-, or U-shaped plan (Figure 1b).
  • The structural balance is worse than a2, or the area of a projection part is larger than 30% of the floor area with an L-, T-, or U-shaped plan (Figure 2a).
b. Aspect ratio of planLength of the long side/length of the short side. In case the plan is not rectangular, the length of the long side may be taken, ignoring the projection part when the area of the projection is less than 10% of the floor area; otherwise, it should be taken as the longer value of b1 = 2l and b2 (Figure 2b).
c. Contraction of the planIt should be noted that the contraction of buildings are according the Figure 3 (c = C1/C0).
d. Expansion jointD = the clear width of the expansion joint/the height from the base to the expansion joint.
e. Well-style areaE = (Well-style area/total floor area). A well-style area is a room or space that extends over two or more stories. However, if it is enclosed by reinforced concrete (RC) walls, it may not be considered a well-style area.
f. Eccentric well-style area
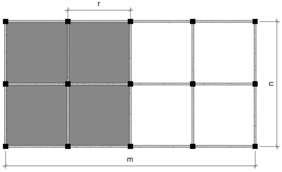
  • f 1 : The distance between the center of the floor area and the center of the well-style area/the length of the short side of the building, f 1 = r n ;
  • f 2 : The distance between the center of the floor area and the center of the well-style area/the length of the long side of the building, f 2 = r m .
h. Underground floor (Area of the basement/area of the building).
i. Story height uniformity(The height of the above story/the height of the story concerned). In the case of the top story, the height of the story below is taken instead of the above story in the equation.
Figure 1. Items a and b: (a) regular; (b) aspect ratio of the plan.
Figure 1. Items a and b: (a) regular; (b) aspect ratio of the plan.
Buildings 15 02541 g001
Figure 2. Items b and c: (a) aspect ratio of the plan; (b) contraction of the floor plan.
Figure 2. Items b and c: (a) aspect ratio of the plan; (b) contraction of the floor plan.
Buildings 15 02541 g002
Figure 3. Eccentric well-style area.
Figure 3. Eccentric well-style area.
Buildings 15 02541 g003
This index quantifies the effects of building deterioration over time, as well as the impacts of previous earthquakes or other damaging events. It is calculated based on data collected during on-site inspections and information provided by the building owner. The deterioration index, T D , is determined using Table 3. When a single value of T D is assigned to the entire building, it must correspond to the lowest value obtained from Table 3.
The seismic demand index ( I S 0 ) is determined using the following equation:
I S 0 = E S · Z · G · U
The basic seismic demand index of the structure ( E S ) represents a standard parameter, with a default value of E S = 0.8 employed for first-level screening procedures. As deeply discussed in [13,15], the E S index depends on the number of stories, the predominant period of ground in seconds, and the type of failure (shear failure/flexural failure) of a building. Hence, the formulation of E S yields
E S = ( C R · F )
The demonstration of the calibration of E S can be viewed in [18]. Briefly, in the Brazilian context, this index refers to the following:
E S = 2.5 R
For reinforced concrete frames, the response magnification factor (R) defined by Brazilian seismic code NBR 15421 [20] is equal to 3.0. Consequently, the index E S assumes a value of 0.83, which aligns with the original value used in the method.
The factor (Z), or seismic zone factor, depends on the seismic hazard of the place where the building is located. Ref. [20] classifies the Brazilian territory into five distinct seismic zones. Characterized by similar levels of seismicity, these zones establish the horizontal acceleration values standardized for Class B soil conditions, with magnitudes ranging from 0.025 g to 0.15 g, regardless of the structural period. Table 4 details the corresponding a g value intervals for each seismic zone.
The ground index ( G ) accounts for the influence of surface soil amplification, geological conditions, and soil–structure interaction on the expected seismic motion characteristics (Table 5). These values correspond to the seismic soil amplification factors extracted from [20]. The soil classification ranges from A to E, where A represents hard rock, B is rock, C is very dense soil and soft rock, D is stiff soil, and E is soft clay. The classification of the site should be based on the average shear wave velocity, v ¯ , and the average standard penetration resistance, N ¯ , as specified in [20]. Each soil class is associated with specific values of v ¯ and N ¯ , following the classification criteria established in ASCE 7-10 [21].
During seismic events, certain structures assume heightened importance due to their critical role in providing essential services to the population and supporting emergency response efforts. Representative examples include healthcare facilities with emergency care services, fire stations, power generation facilities, water treatment plants, and buildings that house highly hazardous chemical substances, such as nuclear power plants. To account for this elevated significance, an importance factor is applied, which amplifies the seismic forces considered in the structural design process, thereby ensuring an enhanced level of structural safety. This usage index ( U ) typically ranges from 1.0 to 1.5, with the highest values assigned to facilities of greatest criticality, as specified in Table 6.
I S   is compared with the seismic demand index of the structure. If the value of I S is greater than or equal to I S 0 , the building is considered safe in the event of an earthquake. On the other hand, if I S is lower than I S 0 , the building may have uncertain performance when subjected to the assumed seismic event [17].
The structural reserve of load-bearing capacity ( R C R ) quantifies the difference between the seismic index ( I S ) and the seismic demand index ( I S 0 ), represented as a percentage of I S [19]. This reserve capacity is calculated using the following equation:
R C R = I S I S 0 I S %
The approximate fundamental period adopted in this work is calculated according to the method described in [20]. Notably, the Brazilian seismic code employs the same formulation proposed by [21]. Therefore, the fundamental period is determined using the following equation:
T a = C t · h n x
where C t ;
C t = 0.0466   a n d   x = 0.9

3. Development of a Mobile Application

The Dart programming language, introduced by Google in 2011 [22], is a multiparadigm, cross-platform, statically typed language. It is specifically designed to be fast, secure, and user-friendly, making it suitable for developing web, mobile, and desktop applications. As an object-oriented language, Dart organizes applications through objects that interact with one another. These objects are entities characterized by state and behavior, where the state is defined by their attributes, and the behavior is described by their methods. The Dart code is compiled into JavaScript, enabling execution within web browsers. Furthermore, it can also be compiled into native code, enabling deployment on mobile devices and servers.
Flutter, a cross-platform application development framework developed by Google in 2015 [23], is built on the Dart programming language. It facilitates the creation of natively compiled applications for operating systems such as Android, iOS, Windows, macOS, and Linux. The framework employs a collection of widgets that serve as reusable building blocks for constructing graphical user interfaces, thereby enabling the design of intricate interfaces. The mobile application Seismic-V was developed using the Dart language and the Flutter framework. The chosen Integrated Development Environment (IDE) was Android Studio Giraffe, version 2022.3.1 Patch 3. The application flowchart is depicted in Figure 4.
It comprises ten screens, starting with data collection and concluding with the presentation of screening results. The screens were specifically designed to guide users through the process of assessing the seismic vulnerability of existing structures.
Figure 5a presents the application’s interface, where users input essential structural data, including the number of floors, the specific floor under analysis, and the structure’s total weight. Figure 5b illustrates the screen where users specify the soil classification necessary for the assessment. Additionally, users are required to provide the seismic zone and the real condition of the structure (Figure 6a,b). Following the procedure, users advance to the computation of the irregularity index ( S D ) and usage information (Figure 7a). The final preliminary results are presented through information regarding the structure’s safety level (Figure 7b).

4. Example of Application

4.1. Description of the Palace

The Palace of Justice, officially designated the Raymundo Faoro Palace of Justice, serves as the headquarters of the Ministry of Justice and Public Security (Figure 8). Strategically situated along Brasília’s Monumental Axis, it is positioned between the northern section of the Esplanade of Ministries and the National Congress. The structure, featuring a rectangular footprint of approximately 84 m by 75 m, comprises five stories and a basement, with a total height of 17.25 m. The architectural project was conceived by Oscar Niemeyer in collaboration with Renato Cesar Alvarenga, embodying their hallmark modernist design principles.
The structural framework of the Palace of Justice is composed of reinforced concrete, featuring extensive use of ribbed slabs configured as a beam grid system and complemented by band beams. In the initial span of the slabs, the beams exhibit cross-sectional dimensions ranging from 8 × 50 cm2 (ribs) to 10 × 50 cm2, 12 × 50 cm2, 13 × 50 cm2, 15 × 50 cm2, and up to 90 × 50 cm2. The slab thickness across all levels varies between 6 cm and 7 cm. A notable exception is observed in the bathrooms, where a solid flat slab with a recess accommodates the plumbing installations. The specified characteristic compressive strength of the concrete was fc = 20 MPa. Concerning the characteristic yield strength of the steel ( f y ), while the original designs referenced CA-T 50 and CA-T 60, the timing of the project’s development coincided with the transition from standard NB-1/1960 [24] to EB-3/1967 [25]. Consequently, the steel employed during Brasília’s construction closely resembles modern specifications, with characteristic yield strengths of f y = 500 MPa and 600 MPa.
The vertical structural elements comprise rectangular columns with cross-sections of 20 × 200 cm2 or 30 × 80 cm2, square columns with dimensions of 55 × 55 cm2 and 65 × 65 cm2, Brise Soleil columns on the western façade featuring trapezoidal cross-sections, and structural walls that enclose the elevator shaft.
At the second slab level, located at an elevation of 3.45 m, the structure features a double-height ceiling in the Black Hall, the principal access point to the Palace of Justice, with a height of approximately 7 m. Figure 5 illustrates the arrangement of external columns (Brises) at varying angles, as well as the waterfalls integrated into the main façade, designed by Niemeyer.
At the third slab level (Figure 9), situated at +6.90 m, structural transitions accommodate the internal garden established at the building’s core, which extends through the upper floors to the roof. The central columns are discontinued at this level, replaced by a series of 96 columns—46 per beam—originating from two band beams measuring 107.5 × 50 cm2. These columns, with cross-sections of 12 × 60 cm2, ascend to the roof, where they support the beams of the pergola structure above the garden.
The fourth and fifth slab levels exhibit similar structural configurations, characterized by a beam grid of 12 × 50 cm2 beams with a maximum span of 13 m. The design includes a specified maximum camber of 13 cm, along with perpendicular locking ribs measuring 8 cm thick and 50 cm high. The Brise Soleil columns are spaced approximately 43 cm apart, while other structural columns are spaced at intervals ranging from 6.5 m to 13 m.
The roof structure is composed of continuous beams measuring 15 × 70 cm, spaced 1.30 m along the north–south axis, with a free span of 6.50 m and a total length of 65.10 m. Orthogonal to these are band beams measuring 85 × 50 cm and 115 × 50 cm, with a total length of 84.50 m, forming a portal frame with the internal columns. As reported by [26], in the pergola section above the internal garden, the beams increase to dimensions of 15 × 100 cm to span the central area of 18 m and the adjacent areas of 32 m. The foundation system comprises open caissons with an average depth of 25 m and variable diameters. Ref. [27] reported that soil samples from boreholes revealed silty clay with no groundwater presence.
No specific geotechnical tests were carried out to determine the exact subsoil stratigraphy and the physical–mechanical properties of the ground. However, several geotechnical investigations have been conducted near the Palace of Justice [28], allowing the soil to be classified as type D—deposits of loose to medium-density cohesionless soil, with or without soft cohesive layers, or predominantly soft to firm cohesive soil.
The quantities corresponding to each floor are presented in Table 7, Table 8 and Table 9.

4.2. Seismicity in Brazil

Brazil is positioned at the center of the South American Plate, granting it a degree of tectonic stability in contrast to Andean nations such as Chile, Peru, Ecuador, and Colombia, which are situated along the plate’s active boundary. Whereas earthquakes of magnitude 5.0 occur in Brazil approximately once every five years, events of the same magnitude are recorded twice weekly in the Andean region. Nevertheless, the perception that Brazil is aseismic is erroneous, as small to moderate earthquakes do take place. Furthermore, though infrequent, high-intensity intraplate earthquakes can occur, given that the stresses released may surpass those observed at plate boundaries [29].
The correlation between intraplate seismicity and underlying geological structures is intricate, encompassing multiple models that seek to explain the clustering of earthquakes in certain intraplate regions based on the principles of stress concentrations and zones of weakness [30]. As noted by [29], no clear causal link exists between more seismically active zones and geological provinces in Brazil. A notable illustration of this phenomenon is the occurrence of earthquakes within cratonic regions—traditionally considered less seismically active—such as the 2007 Itacarambi earthquake in Minas Gerais and the 1955 Porto dos Gaúchos earthquake in Mato Grosso, within the Amazonian Craton.
Among the primary mechanisms responsible for stress concentrations in the upper crust—and, consequently, for the occurrence of earthquakes—is lithospheric thinning, which stands out [31]. This process leads to a structurally weaker lithospheric mantle, diminishing its capacity to resist regional intraplate stresses. Consequently, these stresses accumulate in the brittle upper crust, exacerbated by flexural effects induced by sedimentary loading or internal lithospheric mass redistribution. In essence, a shallower and denser mantle exerts an internal load that causes the plate to bend downward, generating compressive stresses in the upper crust. A prominent example of this phenomenon is the Goiás-Tocantins seismic belt [32]. In Brazil, 48 geological faults have been cataloged, collectively extending over 18,035 km. The highest concentrations are found in the Northeast and Southeast regions, followed by the North, Midwest, and South.
In 2006, Brazil introduced its first seismic design standard, NBR 15421 [20], with adaptations to the Brazilian context. More recently, in 2023, the standard underwent targeted revisions, notably updating the seismicity map for the Midwest region (Mato Grosso) and refining the zoning in the Northeast by expanding the influence of Zone 01 and adjusting the acceleration threshold to 5% g (Figure 10).
The assessment of horizontal seismic accelerations in Brazil was grounded in the Global Seismic Hazard Assessment Program (GSHAP), developed by [33]. This initiative facilitated the formulation of the Brazilian seismic hazard map, which was incorporated into [20]. The characteristic nominal values presented in the standard reflect a 10% probability of exceedance over a 50-year period, corresponding to a return period of 475 years. Ref. [34] highlighted that the Brazilian seismic standard does not encompass “intermediate” or “special” detailing levels. Consequently, the minimum earthquake-resistant detailing—whether “standard,” “intermediate,” or “special”—must be referenced from international standards such as [21], depending on the seismic action intensity.

5. Results

Table 10 presents a consolidated summary of the performance indices, including the basic structural performance sub-index, the structural configuration sub-index, and the structural deterioration sub-index, categorized by floor within the structure of the Palace.
A series of combinations of structural elements was proposed for comparative analysis. In the C1_AP typology, the focus is on the contribution of the internal columns to the structural behavior, while the concrete sections of the Brise Soleil columns are considered exclusively on the top floor due to their connection with the roof structure. The C2_APB (Table 11) case extends the analysis to include both the internal columns and the concrete sections of the Brise Soleil columns across all floors. The C3_APW typology limits the analysis to the internal columns and the structural walls that constitute the rigid cores of the building, excluding the Brise Soleil columns between floors. The final typology, C4_APBW, integrates all previous scenarios, encompassing the contributions of the internal columns, the Brise Soleil columns at each floor level, and the structural walls.
In both the C1_AP and C2_APB (Table 11) scenarios, the seismic performance sub-indices E 0 are identical for the first and top floors. This equivalence arises from the absence of Brise Soleil columns on the first floor (basement) and the inclusion of these columns on the top floor, where they connect to the roof structure and are, therefore, accounted for in the analysis.
In the C1_AP typology, the E 0 values are relatively low, attributed to the reduced concrete cross-sectional area of the columns when compared to the C2_APB typology. The data presented for Case 01 indicate an increase in the E 0 values, driven by the variation in the number of columns per floor, specifically an addition of 92 columns starting from the third floor. This adjustment ensures the consistency of the total concrete area across the floors, underscoring the critical role of the variable “Ac2” within the framework of the adapted Hirosawa method. The Ac2 values for each floor are as follows: 229,125 cm2, 208,075 cm2, 194,275 cm2, 221,115 cm2, 221,115 cm2, and 645,975 cm2. The lowest seismic performance index ( I S ) for the C1_AP case is observed on the second floor, with I S = 0.2733, whereas the highest seismic performance is achieved on the top floor, with I S = 1.5838.
Table 12 summarizes the values corresponding to the third typology, wherein the total cross-sectional area of the structural walls ( A w 3 = 61,400 cm2) remains consistent across all floors. A significant increase in the E 0 sub-index is noted on the first floor. Nevertheless, the second floor exhibits the lowest seismic performance index, with I S = 0.3885. This pattern mirrors the behavior observed on the first floor, characterized by an increase in E 0 . However, the variable continues to be predominantly governed by the cumulative cross-sectional area of the columns.
As a combination of all previous cases, the final case (Table 13) is characterized by the high seismic performance of the structure, with the lowest seismic performance index, I S = 0.5116, recorded on the first floor.
The structural configuration sub-index ( S D ) achieves its peak value exclusively on the first level. On subsequent floors, the presence of an internal courtyard, recesses, and openings adversely affects the seismic performance index ( S D = 0.972). The sole exception is the third floor ( S D = 1.08), which lacks any floor plan openings. Due to the geometry, challenges are encountered in determining the ( S D ) sub-index and its associated factors (a, b, c, and j). These challenges arise due to the triple-height space commencing on the third floor to accommodate the garden, and the configuration of columns originating at this level, which imposes an irregular distribution of stiffness across the vertical structural elements.
The structural deterioration sub-index ( T D ) is consistently set at 0.8 for the entire structure, which is a value attributed to the building’s age. Figure 11 presents all combination scenarios alongside the seismic performance index ( I S ) results for the respective floors.
In the subsequent analyses, the contribution of the cross-sectional area of the walls is taken into account, with the Brise pillars contributing exclusively on the top floor (typology C3_APW). The Palace of Justice’s structure is categorized under usage classification U = 1.0, consistent with the other palaces. Therefore, the values of the seismic demand index, I S 0 , spanning zones 0 through 4, are presented in Table 14.
The seismic vulnerability of the Palace of Justice’s structure is not accounted for in any seismic zone, particularly in soft soils (Class E). Figure 12, Figure 13, Figure 14 and Figure 15 compare the seismic demand index and the seismic performance index of the structure.
Figure 16 consolidates the resistant capacity reserves of the Palace of Justice, corresponding to I S = 0.3885. Should the structure be assigned an importance factor of U = 1.5, R C R would be adversely affected, indicating structural vulnerability in seismic zones 3 and 4 under Class E soil conditions.
The degree of structural deterioration in the Palace of Justice is systematically varied to evaluate the maximum and minimum values of the seismic performance index I S (Table 15). Scenario 02 represents the actual condition of structural deterioration, where a sub-index of T D = 0.7 reduces the seismic performance of the second floor to I S = 0.3399. In Scenario 04, the lowest seismic performance index is observed on the fourth floor, whereas in Scenario 01, the least favorable performance occurs on the third floor ( I S = 0.378756). It is noteworthy that neither the first nor the topmost floors demonstrate the lowest seismic performance index, even under a sub-index of T D = 0.7 (Figure 17).
As discussed earlier, the structure of the Palace of Justice demonstrates a significant level of safety according to the Japanese method adapted to the Brazilian context. However, if the building were to be classified as vulnerable based on the aforementioned seismic evaluation, the results should be interpreted with caution. In such cases, it is advisable to apply more rigorous procedures, even those outlined in the original Japanese guidelines. As introduced in Section 2, the original methodology comprises two additional levels of assessment, and it is recommended to proceed to these subsequent stages before considering any intervention or retrofitting strategies.
One of the current limitations of the SeismicV application is that it does not implement the second and third levels of the method, as these require more detailed data and complex calculations. Moreover, no studies have yet been conducted to adapt these advanced levels to the Brazilian context. It is important to emphasize that the method implemented in the tool is intended as an initial screening. As an alternative, advanced methodologies—such as incremental dynamic analysis [35]—can be employed to confirm whether retrofitting is necessary.
An illustrative example of an intervention based on the original Japanese guidelines is the case of the National Museum of Western Art, a three-story reinforced concrete building designed according to the first-generation seismic code. In this case, the seismic index did not meet the required safety threshold [36], which justified further evaluation and subsequent retrofitting measures.
The method presents certain limitations [37], as it does not explicitly address aspects such as the post-earthquake usability of the structure, the efficiency of capacity recovery following repairs, or the long-term durability of the system. Consequently, the SeismicV tool, which is based on this method, inherits these same limitations.
As a limitation inherited from the original methodology, the tool is restricted to existing low-rise and mid-rise reinforced concrete (RC) buildings and does not account for masonry structures, even though RVS methodologies have been extensively proposed and applied to such buildings in various case studies [38].

6. Conclusions

This study demonstrated the feasibility and effectiveness of using a mobile application—developed with Dart and Flutter—for the rapid visual seismic vulnerability assessment of buildings, following the Japanese Guidelines at the first screening level. By applying the methodology to a modern building in Brasília, Brazil, the research highlighted the tool’s ability to efficiently collect essential structural parameters and deliver a qualitative vulnerability assessment based on the computed seismic index.
The comparative analysis between structural configurations—considering the presence or absence of façade and wall-supported columns—showed the flexibility and analytical potential of the SeismicV application. Furthermore, the tool’s capacity to simulate time-related structural degradation and seismic zoning reclassifications proved valuable for exploring a range of vulnerability scenarios.
Overall, the proposed digital tool enhances the speed, accessibility, and reproducibility of seismic screening processes at the building level. Its user-friendly interface and customizable parameters make it a practical solution for both engineering professionals and decision-makers, particularly in regions where seismic risk assessments are emerging concerns.
Given that the rapid visual screening (RVS) methodology is a practical approach for quickly identifying potentially hazardous buildings through sidewalk-level surveys, several future enhancements are envisioned. One potential advancement involves adapting Levels II and III of the method to the Brazilian context, as these stages provide a more detailed assessment of both structural and non-structural vulnerabilities, including the consideration of infill masonry walls, as noted in [39].
The second objective is to apply the tool and methodology for the preliminary mapping of seismic risk in critical buildings at the territorial scale. A third and more ambitious goal is to reformulate the way the time index is calculated, with the aim of integrating the MAIS method—a methodology developed for the assessment and preservation of reinforced concrete buildings based on sensory inspection. Although originally focused on modern heritage structures, the MAIS method can also be applied to conventional buildings and residential condominiums. It adopts a probabilistic evaluation approach to determine the degree of structural integrity and safety [40].

7. Patents

This work is associated with the following intellectual property registration: Processo N° BR512024000536-6, issued by the Instituto Nacional da Propriedade Industrial (INPI) as a Certificate of Registration of a Computer Program. The registration refers to a computational program developed [SeismicV].

Author Contributions

Methodology, P.Q.R.; Software, P.Q.R.; Investigation, P.Q.R.; Resources, J.C.P.; Writing—original draft, P.Q.R.; Writing—review & editing, J.C.P.; Visualization, J.C.P. and H.V.; Project administration, H.V.; Funding acquisition, H.V. All authors have read and agreed to the published version of the manuscript.

Funding

This study was financed in part by the Coordenação de Aperfeiçoamento de Pessoal de Nível Superior—Brasil (CAPES)—Finance Code 001, and by the Laboratory for Rehabilitation of the Built Environment (LABRAC) and the University of Brasilia for the financial support from 001/2025 DPI/BCE/UnB. This work was also financially supported by UID/04708, of the CONSTRUCT—Instituto de I&D em Estruturas e Construções—funded by the Fundação para a Ciência e a Tecnologia, I.P./MCTES, through national funds.

Data Availability Statement

The original contributions presented in this study are included in the article. Further inquiries can be directed to the corresponding author.

Conflicts of Interest

The authors declare no conflicts of interest.

Abbreviations

E 0 Basic seismic index of the structure
S D Irregularity index
I S Seismic index
I S 0 Seismic demand index
ZZone index
T D Time index
E S Basic seismic demand index of the structure
R C R Structural capacity reserve
G Ground index
UUsage index
W Total weight supported by the story evaluated
f c Compressive strength of concrete
τ c 1 Average shear stress at the ultimate state of columns
A c 1 Total cross-sectional area of columns in the story evaluated
F c Ductility index of the columns
F w Ductility index of the walls
F s c Ductility index of the short columns
C w Strength index of the walls
C s c Strength index of the extremely short columns
C c Strength index of the columns
a 1 Effective strength factor of the columns at the ultimate deformation of the walls
a 2 Effective strength factor of the walls at the ultimate deformation of the extremely short columns
a 3 Effective strength factor of the columns at the ultimate deformation of the extremely short columns
h 0 Clear height of the column
DColumn depth
nNumber of stories of a building
iNumber of the story for evaluation
T a Approximate fundamental period
C t Approximate Period Parameter
h n x Structural height
A w 3 Total cross-sectional area of walls without columns in the story and effective to the story concerned
f y Yield strength of the steel
a g Seismic design horizontal accelerations
gGravity acceleration
RResponse magnification factor
q i Coefficients of characteristics of a building
G i Grade
R i Adjustment factor

References

  1. De Risi, R.; De Paola, F.; Turpie, J.; Kroeger, T. Life Cycle Cost and Return on Investment as complementary decision variables for urban flood risk management in developing countries. Int. J. Disaster Risk Reduct. 2018, 28, 88–106. [Google Scholar] [CrossRef]
  2. Pereira, E.M.V.; Andrade, R.B.; Leitão, F.F.; Carobeno, C.L.; Siqueira, G.H. Seismic risk evaluation of non-ductile low-rise rc buildings in brazil: Time-based and intensity-based assessments considering different performance metrics. J. Build. Eng. 2024, 88, 109147. [Google Scholar] [CrossRef]
  3. Pereira, E.M.V.; Cavalcante, G.H.F.; Rodrigues, I.D.; Vieira, L.C.M., Jr.; Siqueira, G.H. Seis-mic reliability assessment of a non-seismic reinforced concrete framed structure designed according to abnt nbr6118:2014. Rev. IBRACON Estrut. Mater. 2022, 15, e15110. [Google Scholar] [CrossRef]
  4. Karafagka, S.; Riga, E.; Oikonomou, G.; Karatzetzou, A.; Fotopoulou, S.; Pitilakis, D.; Pitilakis, K. RiskSchools: A prioritization-based system for the risk assessment of school buildings combining rapid visual screening smartphone app and detailed vulnerability analysis. Bull. Earthq. Eng. 2024, 22, 2951–2980. [Google Scholar] [CrossRef]
  5. Ahmed, S.; Abarca, A.; Perrone, D.; Monteiro, R. Large-scale seismic assessment of RC buildings through rapid visual screening. Int. J. Disaster Risk Reduct. 2022, 80, 103219. [Google Scholar] [CrossRef]
  6. ADRISEISMIC. Report on the State of the Art in Adriseismic Partner Countries Regarding Methods of Expeditious Assessment-WPT2-Establishing the ADRISEISMIC Methodology for the Reduction of Seismic Vulnerability. [S.l.]; ADRISEISMIC: Subotica, Serbia, 2021. [Google Scholar]
  7. Federal Emergency Management Agency (US). FEMA 154 Rapid Visual Screening of Buildings for Potential Seismic Hazards: A Handbook; Federal Emergency Management Agency (US), Ed.; Government Printing Office: Washington, DC, USA, 2016.
  8. Rodrigues, P.Q.; Pantoja, J.C.; Miranda, P.S.T. Seismic safety assessment of Palácio do Itamaraty at Brasília reliability-based. In Eighth International Symposium on Life-Cycle Civil Engineering, Milão. Life-Cycle of Structures and Infrastructure Systems; CRC Press: London, UK; Taylor & Francis Group: London, UK, 2023; Volume I, pp. 1885–1892. [Google Scholar]
  9. Rodrigues, P.Q.; Pantoja, J.C.; Varum, H. Reliability-Based Seismic Safety Assessment of the Metropolitan Cathedral of Brasília. Buildings 2024, 14, 1916. [Google Scholar] [CrossRef]
  10. Filho, J.C. Análise Sísmica e Degradação para Avaliação de Reabilitação em Edificações Tipológicas das Superquadras do Plano Piloto em Brasília. Master’s Thesis, Dissertação Faculdade de Arquitetura e Urbanismo, Universidade de Brasília, Brasília, Brazil, 2021. [Google Scholar]
  11. Ceroni, F.; Caterino, N.; Vuoto, A. Simplified seismic vulnerability assessment methods: A comparative analysis with reference to regional school building stock in Italy. Appl. Sci. 2020, 10, 6771. [Google Scholar] [CrossRef]
  12. Japan Building Disaster Prevention Association. Standard for Seismic Evaluation and Guidelines for Seismic Retrofit of Existing Reinforced Concrete Buildings; Building Research Institute: Ibaraki, Japan, 2001. [Google Scholar]
  13. Aoyama, H. A method for the evaluation of the seismic capacity of existing reinforced concrete buildings in Japan. Bull. New Zealand Natl. Soc. Earthq. Eng. 1981, 14, 105–130. [Google Scholar] [CrossRef]
  14. Murakami, M. Guidelines to evaluate seismic performance of reinforced concrete buildings to predict severe earthquake damage. In U.S./Japan Joint Seminar: Urban Design & Seismic Safety; Department of Architecture, University of Hawaii at Manoa: Honolulu, HI, USA, 1980; pp. 177–196. [Google Scholar]
  15. Unemura, H.; Okadada, T. A practical method to evaluate seismic capacity of existing medium- and low-rise R/C buildings with emphasis on the seismic capacity of frame-wall buildings. In Earthquake-Resistant Reinforced Concrete Building Construction: Organization and Final Recommendations, Proceedings of the Workshop Proceedings Sponsored by the National Science Foundation, Chicago, IL, USA, 21–23 March 1977; University of California, Berkeley: Berkeley, CA, USA, 1977; Volume 1. [Google Scholar]
  16. Okada, T. Development and present status of seismic evaluation and seismic retrofit of existing reinforced concrete buildings in Japan. Proc. Jpn. Acad. Ser. 2021, 97, 402–422. [Google Scholar] [CrossRef] [PubMed]
  17. Hirosawa, M. Retrofitting and Restoration of Buildings in Japan; International Institute of Seismology and Earthquake Engineering, Lecture Note of Seminar Course: Ibarak, Japan, 1992. [Google Scholar]
  18. Miranda, P.S.T. Avaliação da Vulnerabilidade Sísmica na Realidade Predial Brasileira; Expressão Gráfica e Editora: Fortaleza, Brazil, 2013. [Google Scholar]
  19. de Albuquerque, P.M.V. Metodologia de Avaliação da Vulnerabilidade Sísmica Estrutural do Ministério de Construção do Japão: Adaptação e Aplicação ao Corpo 22 do Hospital de Santa Maria. Master’s Thesis, Instituto Superior Técnico, Universidade de Lisboa, Lisboa, Portugal, 2008. [Google Scholar]
  20. ABNT NBR 15421; Projeto de Estruturas Resistentes a Sismos–Procedimento. Associação Brasileira de Normas Técnicas: Rio de Janeiro, Brazil, 2023.
  21. American Society of Civil Engineers. Minimum Design Loads and Associated Criteria for Buildings and Other Structures (ASCE/SEI 7-22); American Society of Civil Engineers: Reston, VA, USA, 2022. [Google Scholar]
  22. Bak, L. Dart: A Language for Structured Web Programming. Google Code Blog. Available online: https://googlecode.blogspot.com/2011/10/dart-language-for-structured-web.html (accessed on 10 October 2011).
  23. Flutter Dev. Flutter Architectural Overview. docs.flutter.dev. Available online: https://docs.flutter.dev/resources/architectural-overview (accessed on 10 July 2015).
  24. NB-1/1960; Cálculo de Estruturas de Concreto Armado. Associação Brasileira de Normas Técnicas (ABNT): Rio de Janeiro, Brasil, 1960.
  25. EB-3/1967; Condições de emprego das barras de aço destinadas a armadura de peças de concreto armado. Associação Brasileira de Normas Técnicas (ABNT): Rio de Janeiro, Brasil, 1967.
  26. Moreira, A.L.A. A Estrutura do Palácio da Justiça: Aspectos Históricos, Científicos e Tecnológicos de Projeto, Execução, Intervenções e Proposta de Estratégias para Manutenção. Master’s Thesis, Departamento de Engenharia Civil e Ambiental, Universidade de Brasília, Brasília, Brazil, 2007. [Google Scholar]
  27. Baena, A.M. O Palácio do Ministério da Justiça: Histórico de Sua Construção; Ministério da Justiça: Brasília, Brazil, 1972. [Google Scholar]
  28. de Camapum Carvalho, J.; Mortari, D. Caracterização geotécnica de solos porosos do Distrito Federal. In Anais do 3° Simpósio Brasileiro de Escavações Subterrâneas; ABMS/ABGE/CBT/CNPq/UnB: Brasília, Brazil, 1994; pp. 109–122. [Google Scholar]
  29. Assumpção, M.; Pirchiner, M.; Dourado, J.; Barros, L. Terremotos no Brasil: Preparando-se para eventos raros. Bol. Soc. Bras. Geofísica 2016, 96, 25–29. [Google Scholar]
  30. Talwani, P. Intraplate Earthquakes; Cambridge University Press: Cambridge, UK, 2014. [Google Scholar]
  31. Assumpção, M.; Schimmel, M.; Escalante, C.; Barbosa, J.R.; Rocha, M.; Barros, L.V. Intraplate seismicity in Brazil: Stress concentration in lithospheric thin spots. Geophys. J. Int. 2004, 159, 390–399. [Google Scholar] [CrossRef]
  32. Assumpção, M.; Sacek, V. Intra-plate seismicity and flexural stresses in central Brazil. Geophys. Res. Lett. 2013, 40, 487–491. [Google Scholar] [CrossRef]
  33. Giardini, D.; Grünthal, G.; Shedlock, K.M.; Zhang, P. The GSHAP Global Seismic Hazard Map. Ann. Geofis. 1999, 42, 1225–1228. [Google Scholar] [CrossRef]
  34. Galvão, P.I.I. Definição de Requisitos Mínimos Necessários para o Detalhamento Sismo-Resistente de Edifícios em Concreto Armado no Brasil Programa de Projeto de Estruturas. Master′s Thesis, Universidade Federal do Rio de Janeiro, Rio de Janeiro, Brazil, 2013. [Google Scholar]
  35. Mantsios, D.; Cornell, C.A. Incremental dynamic analysis. Earthq. Eng. Struct. Dyn. 2002, 31, 491–514. [Google Scholar]
  36. Okada, T. Seismic Retrofitting for the Main Building of the National Museum of Western Art. In Reference 67, pp. 56–57 (In Japanese) and pp. 8–9 (In English). 2009. Available online: https://web-japan.org/trends/11_tech-life/tec201912_seismic-isolation.html (accessed on 7 July 2025).
  37. Seki, M. Seismic Evaluation of the Existing RC Buildings in Japan (UTCB Lecture Note); Building Research Institute: Ibaraki, Japan, 2017. [Google Scholar]
  38. Athmani, A.E.; Gouasmia, A.; Ferreira, T.M.; Vicente, R.; Khemis, A. Seismic vulnerability assessment of historical masonry buildings located in Annaba city (Algeria) using non ad-hoc data survey. Bull. Earthq. Eng. 2015, 13, 2283–2307. [Google Scholar] [CrossRef]
  39. Pan American Health Organization. Principles of Disaster Mitigation in Health Facilities; Pan American Health Organization: Washington, DC, USA, 2000. [Google Scholar]
  40. Oliveira, A.L.; Pantoja, J.; Varum, H.; Prado, S.; Morais, R. Structural degradation assessment of RC buildings: Application of the method of assessment by integrity and safety—MAIS Method—In a heritage case study in Brasilia. J. Build. Pathol. Rehabil. 2023, 8, 83. [Google Scholar] [CrossRef]
Figure 4. Flowchart of the application.
Figure 4. Flowchart of the application.
Buildings 15 02541 g004
Figure 5. Main screens of the application: (a) input data of the structure screen; (b) soil condition data screen.
Figure 5. Main screens of the application: (a) input data of the structure screen; (b) soil condition data screen.
Buildings 15 02541 g005
Figure 6. Main screens of the application: (a) Seismic Zone Selection Screen; (b) Time-Dependent Degradation Data Screen.
Figure 6. Main screens of the application: (a) Seismic Zone Selection Screen; (b) Time-Dependent Degradation Data Screen.
Buildings 15 02541 g006
Figure 7. Main screens of the application: (a) usage data screen; (b) estimation of the safety factor and a qualitative assessment of the vulnerability.
Figure 7. Main screens of the application: (a) usage data screen; (b) estimation of the safety factor and a qualitative assessment of the vulnerability.
Buildings 15 02541 g007
Figure 8. The Palace of Justice.
Figure 8. The Palace of Justice.
Buildings 15 02541 g008
Figure 9. Third floor of the Palace of Justice.
Figure 9. Third floor of the Palace of Justice.
Buildings 15 02541 g009
Figure 10. Mapping of horizontal seismic acceleration in Brazil.
Figure 10. Mapping of horizontal seismic acceleration in Brazil.
Buildings 15 02541 g010
Figure 11. Seismic index for each scenario.
Figure 11. Seismic index for each scenario.
Buildings 15 02541 g011
Figure 12. Comparative graph of the structure of the Palace of Justice in seismic zone 0.
Figure 12. Comparative graph of the structure of the Palace of Justice in seismic zone 0.
Buildings 15 02541 g012
Figure 13. Comparative graph of the structure of the Palace of Justice in seismic zone 1.
Figure 13. Comparative graph of the structure of the Palace of Justice in seismic zone 1.
Buildings 15 02541 g013
Figure 14. Comparative graph of the structure of the Palace of Justice in seismic zone 2.
Figure 14. Comparative graph of the structure of the Palace of Justice in seismic zone 2.
Buildings 15 02541 g014
Figure 15. Comparative graph of the structure of the Palace of Justice in seismic zones 3 and 4.
Figure 15. Comparative graph of the structure of the Palace of Justice in seismic zones 3 and 4.
Buildings 15 02541 g015
Figure 16. Reserve of the structural resistance capacity of the Palace of Justice.
Figure 16. Reserve of the structural resistance capacity of the Palace of Justice.
Buildings 15 02541 g016
Figure 17. Variation of the time-aging index and its impact on the seismic index on each floor.
Figure 17. Variation of the time-aging index and its impact on the seismic index on each floor.
Buildings 15 02541 g017
Table 1. G i and R i factors for assessing the S D index.
Table 1. G i and R i factors for assessing the S D index.
G i R i
1.00.90.8-
a. Regularity a 1 a 2 a 3 1.0
b. Aspect ratio of planb < 55 < b < 88 > b0.5
c. Contraction of the planc > 0.80.8 > c > 0.50.5 > c0.5
d. Expansion joint d > 1/1001/100 > d > 1/2001/200 > d0.5
e. Well-style area e < 0.10.1 < e < 0.30.3 < e0.5
f. Eccentric well-style area f 1 < 0.4   and   f 2 < 0.1 f 1 < 0.4 and 0.1 > f 2 > 0.3 0.4 < f 1 or 0.3 < f 2 0.25
h. Underground floor h > 1.01.0 < h < 0.50.5 > h1.0
i. Story height uniformity I > 0.80.8 > i > 0.70.7 > i0.5
j. Soft storyNo soft storySoft storyEcc. soft story0.5
Table 3. Time index, T D , by the first-level inspection.
Table 3. Time index, T D , by the first-level inspection.
Item to Be CheckedDegree Value   of   T D
DeflectionTilting of a building or an obvious uneven
settlement is observed
0.7
Landfill site or former rice field0.9
Deflection of the beam or column is observed
visually
0.9
No correspondence to the foregoing1.0
Cracks in walls or columns due to corrosion of the reinforced steelRain leak with rust on the reinforcing bar is
observed
0.8
Inclined cracking in columns is obviously
observed
0.9
Countless cracking is observed in the external
wall
0.9
Rain leak without rust of the reinforcing bar is
observed
0.9
No correspondence to the foregoing1.0
Fire experienceTrace0.7
Experience but traceless0.8
No experience1.0
OccupationChemicals have been used0.8
No correspondence to the foregoing1.0
Age of building30 years or older0.8
20 years or older0.9
20 years or less1.0
Finishing conditionSignificant spalling of external finishing
due to aging is observed
0.9
Significant spalling and deterioration of
internal finishing is observed
0.9
No problem1.0
Table 4. Seismic zones from [20].
Table 4. Seismic zones from [20].
Seismic ZonesHorizontal Accelerations
Zone 0 a g = 0.025 g
Zone 1 0.025   g     a g ≤ 0.05 g
Zone 2 0.05   g     a g ≤ 0.10 g
Zone 3 0.10   g     a g ≤ 0.15 g
Zone 4 a g = 0.15 g
Table 5. Ground index ( G ) for Brazil.
Table 5. Ground index ( G ) for Brazil.
G
Soil Class Z   0.100 Z = 0.150
A0.80.8
B1.01.0
C1.21.2
D1.61.5
E2.52.1
Table 6. Importance factor.
Table 6. Importance factor.
Usage CategoryU
I1.00
II1.25
III1.50
Table 7. Input data of the Palace of Justice (Floor 01 to Floor 02).
Table 7. Input data of the Palace of Justice (Floor 01 to Floor 02).
Floor 01Floor 02
Level of the floor+0.00 m+3.45 m
Weight of the building above the story13,157,601.58 kgf11,465,204.52 kgf
Floor area in m24048 m23191 m2
Sum of the cross-sectional area of the column in cm2229,125 cm2632,935 cm2
Clear height of the column350 cm295 cm
Column depth20 cm20 cm
Well-style area0 m23054.395 m2
Approximate fundamental period0.60460.6046
Table 8. Input data of the Palace of Justice (Floor 03 to Floor 04).
Table 8. Input data of the Palace of Justice (Floor 03 to Floor 04).
Floor 03Floor 04
Level of the floor+6.90 m+10.35 m
Weight of the building above the story9,691,113.78 kgf7,635,824 kgf
Floor area in m23718 m23027 m2
Sum of the cross-sectional area of the column in cm2619,135 cm2645,975 cm2
Clear height of the column295 cm295 cm
Column depth20 cm12 cm
Well-style area2602.958 m22613.351 m2
Approximate fundamental period0.60460.6046
Table 9. Input data of the Palace of Justice (Floor 05 to Floor 06).
Table 9. Input data of the Palace of Justice (Floor 05 to Floor 06).
Floor 05Floor 06
Level of the floor+13.80 m+17.25 m
Weight of the building above the story 5,840,043.92 kgf4,095,311.62 kgf
Floor area in m23063 m25678 m2
Sum of the cross-sectional area of the column in cm2645,975 cm2645,975 cm2
Clear height of the column 295 cm275 cm
Column depth12 cm12 cm
Well-style area2613.351 m20 m2
Approximate fundamental period0.60460.6046
Table 10. Seismic index calculated for case study I.
Table 10. Seismic index calculated for case study I.
IndexFloor 01Floor 02Floor 03Floor 04Floor 05Floor 06
E 0 0.38550.35150.34510.44870.53332.0368
S D 1.20.9721.080.9720.9720.972
T D 0.800.800.800.800.800.80
I S 0.370080.27330.29810.34890.41461.5838
Table 11. Seismic index calculated for case study II.
Table 11. Seismic index calculated for case study II.
IndexFloor 01Floor 02Floor 03Floor 04Floor 05Floor 06
E 0 0.38551.06931.09991.31091.55812.0368
S D 1.20.9721.080.9720.9720.972
T D 0.800.800.800.800.800.80
I S 0.370080.83140.95031.01931.21151.5838
Table 12. Seismic index calculated for case study III.
Table 12. Seismic index calculated for case study III.
IndexFloor 01Floor 02Floor 03Floor 04Floor 05Floor 06
E 0 0.5330.49970.5010.62670.74492.3133
S D 1.20.9721.080.9720.9720.972
T D 0.800.800.800.800.800.80
I S 0.511680.38850.43280.48730.57921.7988
Table 13. Seismic index calculated for case study IV.
Table 13. Seismic index calculated for case study IV.
IndexFloor 01Floor 02Floor 03Floor 04Floor 05Floor 06
E 0 0.5331.21741.25581.48891.76972.3133
S D 1.20.9721.080.9720.9720.972
T D 0.800.800.800.800.800.80
I S 0.51160.94661.08501.15771.37611.7988
Table 14. Seismic demand index ( I S 0 ).
Table 14. Seismic demand index ( I S 0 ).
Seismic ZoneClass AClass BClass CClass DClass E
00.01660.02080.02490.03320.0519
10.03320.04150.04980.06640.1038
20.06640.0830.09960.13280.2075
30.09960.12450.14940.18680.2614
40.09960.12450.14940.18680.2614
Table 15. Seismic performance indices of the Palácio of Justice under varying structural deterioration.
Table 15. Seismic performance indices of the Palácio of Justice under varying structural deterioration.
Floor T D I S T D I S T D I S
Scenario I Scenario IIScenario III
110.63960.70.44770.80.5116
20.90.437110.48570.80.3885
30.70.37870.90.48690.80.4328
410.60910.70.42640.80.4873
50.90.651610.72400.80.5792
60.71.57390.92.02360.81.7988
Disclaimer/Publisher’s Note: The statements, opinions and data contained in all publications are solely those of the individual author(s) and contributor(s) and not of MDPI and/or the editor(s). MDPI and/or the editor(s) disclaim responsibility for any injury to people or property resulting from any ideas, methods, instructions or products referred to in the content.

Share and Cite

MDPI and ACS Style

Rodrigues, P.Q.; Pantoja, J.C.; Varum, H. SeismicV: A Mobile Tool for Assessing the Seismic Vulnerability of Buildings. Buildings 2025, 15, 2541. https://doi.org/10.3390/buildings15142541

AMA Style

Rodrigues PQ, Pantoja JC, Varum H. SeismicV: A Mobile Tool for Assessing the Seismic Vulnerability of Buildings. Buildings. 2025; 15(14):2541. https://doi.org/10.3390/buildings15142541

Chicago/Turabian Style

Rodrigues, Philipe Q., João C. Pantoja, and Humberto Varum. 2025. "SeismicV: A Mobile Tool for Assessing the Seismic Vulnerability of Buildings" Buildings 15, no. 14: 2541. https://doi.org/10.3390/buildings15142541

APA Style

Rodrigues, P. Q., Pantoja, J. C., & Varum, H. (2025). SeismicV: A Mobile Tool for Assessing the Seismic Vulnerability of Buildings. Buildings, 15(14), 2541. https://doi.org/10.3390/buildings15142541

Note that from the first issue of 2016, this journal uses article numbers instead of page numbers. See further details here.

Article Metrics

Back to TopTop