Next Article in Journal
Impact of Wood on Perception of Transient and Steady-State Indoor Thermal Environments
Next Article in Special Issue
Energy Dissipation Between Concrete and Composite Waterproof Sheet Interface
Previous Article in Journal
Impact of Multi-Defect Coupling Effects on the Safety of Shield Tunnels and Cross Passages
Previous Article in Special Issue
A Case Study of Pavement Construction Materials for Wet-Freeze Regions: The Application of Waste Glass Aggregate and High-Content Rubber Modified Asphalt
 
 
Font Type:
Arial Georgia Verdana
Font Size:
Aa Aa Aa
Line Spacing:
Column Width:
Background:
Article

Development and Validation of High-Performance Soil-Cement Panels: A Sustainable and Economical Alternative for Civil Construction

by
Bernat Vinolas Prat
1,*,
Demisson Renato Ferreira
2,*,
Luis Guilherme Monteiro Oliveira
3,
João Vinícios Wirbitzki da Silveira
4,
Frank Alisson De Carvalho
5,
Marcus Vinícius Felix
6,
Ellem Eva Augusto Rocha
1,
José Domingos Fabris
7 and
Alexandre Christófaro Silva
8
1
Institute of Science and Technology, Faculty of Science and Technology, Federal University of Jequitinhonha and Mucuri Valleys, Campus JK, Diamantina 39100000, MG, Brazil
2
Institute of Science, Engineering and Technology, Faculty of Civil Engineering, Federal University of Jequitinhonha and Mucuri Valleys, Campus Mucuri, Teófilo Otoni 39803371, MG, Brazil
3
Polytechnic Institute, Department of Electrical Engineering, Pontifical Catholic University of Minas Gerais, Belo Horizonte 30535901, MG, Brazil
4
Institute of Science and Technology, Chemical Engineering, Federal University of Jequitinhonha and Mucuri Valleys, Campus JK, Diamantina 39100000, MG, Brazil
5
Department of Forestry Engineering, Postgraduate Program in Forestry Science in the Theme of Ecological Restoration, Federal University of the Jequitinhonha and Mucuri Valleys, Campus JK, Diamantina 39100000, MG, Brazil
6
Vice-Rector of Administration, Construction Projects Division, Federal University of the Jequitinhonha and Mucuri Valleys, Campus JK, Diamantina 39100000, MG, Brazil
7
Institute of Exact Sciences, Department of Chemistry ICEx, Federal University of Minas Gerais, Pampulha Campus, Belo Horizonte 31270901, MG, Brazil
8
Department of Forestry Engineering, Faculty of Forestry Engineering, Federal University of Jequitinhonha and Mucuri Valleys, Campus JK, Diamantina 39100000, MG, Brazil
*
Authors to whom correspondence should be addressed.
Buildings 2025, 15(10), 1697; https://doi.org/10.3390/buildings15101697
Submission received: 25 March 2025 / Revised: 2 May 2025 / Accepted: 7 May 2025 / Published: 17 May 2025

Abstract

Despite its advantages, conventional soil-cement has limitations in terms of mechanical strength and durability, especially in environments with high humidity or high structural demands. The development of high-performance soil-cement (HPSC) presents significantly superior mechanical properties. The decentralized production of these panels has resulted in a cost reduction of more than 40%, making them an affordable alternative for low-income communities. Even so, providing technical support for the popularization of HPSC is crucial for the advancement of civil construction and to enable the expansion of affordable and sustainable housing for vulnerable communities. This study focuses on the development of a high-performance soil-cement panel, including its manufacturing process and the materials used. The panel was produced using Yellow Argisol soil, found locally in abundant quantities, modified with sand. Measurements of flexural strength and water absorption were carried out, together with a comparison of the strength of high-performance concrete (HPC) found in the literature. The developed panels present an average flexural strength of 6.71 MPa. Additionally, water absorption reached 5.99%, indicating the high performance of this material, which is comparable to high-performance concrete but more economical and sustainable. This contribution confirms the viability of transferring HPSC technology and highlights its social impact on civil construction.

1. Introduction

The civil building industry is an economic activity that recognizably impacts the natural environment due to its high consumption of resources and high emissions of greenhouse gases. The production of Portland cement, one of the main components of concrete, accounts for around 5–8% of global CO2 emissions, in addition to requiring large amounts of energy and raw materials [1]. This scenario points to the need for more environmentally sustainable alternatives for use in civil buildings. Some solutions have intensified in recent years, encouraging the development of relatively low-cost materials, reducing environmental impacts and ensuring structural efficiency.
Soil-cement thus emerges as a very promising alternative, being widely used in different building projects due to its low environmental impact and economic viability in decentralized production. The material consists of a mixture of soil, cement and water, which, if reasonably compressed and cured, presents sufficient resistance for several civil applications [2]. One of its main advantages is the elimination of the burning process during manufacturing, significantly reducing energy consumption, resulting in much lower costs and emissions of greenhouse gases compared to more conventional materials, such as ceramic bricks [3]. In addition, the use of locally available soil reduces the need to extract natural aggregates, such as sand and gravel, minimizing the environmental impacts related to the transportation and mining of materials [4]. Hammond and Jones [5] highlighted that transportation is a significant contributor to the increase in costs and greenhouse gas emissions, in addition to having a higher cost in civil construction. Pisani [6] reported on the importance of the soil-cement raw material, which is abundant globally and which does not require significant energy input to be obtained from the environment. This viable alternative demonstrates the strength and durability of building elements when compared to other more conventional products.
The products of soil-cement are diverse and can be used in various construction areas. Bricks/blocks are common examples, used to construct walls, fences and partitions [7]. In addition, soil-cement can be used to produce floors, tiles, boards and even structural elements depending on prior resistance studies. Despite all the advantages of soil-cement, the academic literature tends to focus more on conventional soil-cement bricks/blocks than on other products.
Francielle et al. [7] highlight the gap in the academic literature regarding products other than blocks and/or bricks produced with soil-cement, such as soil-cement slabs. According to the author, using the platform scholar.google.com.br and the keywords “soil cement”, 100 articles published exclusively by journals listed in the 2022 Impact Factor Journals were analyzed, of which only 9% addressed soil-cement applications in paving slabs, while the others dealt with its use in blocks, test specimens and other applications, such as retaining walls and foundation columns. A quick search on scholar.google.com.br using the keywords “high performance soil cement” confirms the gap, with only 23 articles found on the topic.
According to the definition presented by Martins et al. [8], the soil-cement slab, also known as cement slab, is commonly used as a covering for door sills, windows, residential floors, and paving. Soil-cement is used in a variety of situations, such as social housing created with low construction costs, valuing natural materials. Its production line is efficient, eliminating the need for large support structures, which ensures greater agility throughout the construction [9].
This artifact can be produced with one or more layers of concrete or soil-cement and is particularly recommended for covering paving in external areas. In addition to its remarkable versatility, the slab is noteable for reducing heat absorption on its surface, contributing to a more pleasant thermal sensation, as highlighted by Motta et al. [10].
Despite its advantages, conventional soil-cement has limitations in terms of mechanical strength and durability, especially in environments with high humidity or high structural demands. However, adjustments in production parameters have enabled the development of high-performance soil-cement (HPSC) [4], an innovative material that presents significantly remarkable mechanical properties. To achieve this performance, several factors must be strictly controlled during production, including the following:
-
Compaction pressure: The greater the compaction force, the greater the compaction of the soil-cement product. Greater compaction leads to greater resistance and lower water absorption of the product due to a reduction in the void index [11].
-
Material moisture: This water content is what allows for a higher dry density of the material depending on the type of material compacted and the energy applied. Compacting the mixture with the ideal compaction moisture results in an increase in the strength of the product [12].
-
Amount of cement: Increasing the percentage of cement contributes to increasing the final strength, due to the increase in the proportion of fine particles in the mixture and, consequently, a larger surface area of the binder. However, more cement means increasing costs and environmental impact.
-
Soil granulometry: Well-graded soils, with around 15% clay, are recommended for SCAD production. The amount of clay used in the soil-cement mixture should be around 30% of the amount of cement used by mass. This concept is based on the packing method proposed by Lopes et al. [13], in which 30% clay helps fill the small voids left by the cement grains.
With these improvements, HPSC has been studied for new applications, including its use in paving slabs. Traditionally, these slabs are manufactured with high-performance concrete (HPC) or conventional soil-cement. However, to date, there is no corresponding report in the literature of specific studies on slabs manufactured using HPSC, and this represents an important technical gap.
A gap exists between HPSC plates and traditional HPC plates regarding their mechanical properties and environmental impacts. This gap prevents HPSC from being widely adopted as a substitute for concrete in paving applications, making it essential to conduct experimental analyses to quantify its performance and feasibility.
In view of this need, the authors of this study, who hold the HPSC patent (BR 102023006072-2 A2), have been conducting experimental research to demonstrate that this application is viable. In collaboration with the Universitat Polytechnical de Catalunya (UPC), the first HPSC board factory was established in Ocupação Vitória, an urban settlement in Diamantina-MG. This pioneering project enabled not only the validation of the technical feasibility of the material, but also demonstrated its economic and social efficiency. The decentralized production of these boards resulted in a cost reduction of over 40%, making the material an affordable alternative for low-income communities.
The general objective of this study was to develop HPSC panels using Yellow Argisol soil and sand, and to evaluate their flexural strength and water absorption, comparing the results with HPC values from the literature. The specific objectives were to:
-
Identify and optimize the main production parameters of HPSC boards, ensuring optimal manufacturing conditions.
-
Carry out experimental tests to determine the flexural strength and water absorption of HPSC boards with 20% cement.
-
Compare the HPSC solution with high-performance concrete (HPC), analyzing its structural, economic and environmental viability.
With this study, we hope to provide technical support for the popularization of HPSC as a sustainable alternative to concrete, contributing to the advancement of civil construction and enabling the expansion of affordable and sustainable housing for the most vulnerable communities. This study advances previous work [4] by transitioning from laboratory-scale specimen testing to the development and validation of large-format high-performance soil-cement (HPSC) panels (33 cm × 33 cm × 2.5 cm), aiming at real-world structural applications. While [4] focused on small prismatic samples to evaluate flexural strength, this work addresses production scalability, curing methods, and mechanical behavior under conditions closer to those of practical construction. Furthermore, a chemical characterization using FTIR was incorporated to investigate the material’s microstructural interactions—an aspect not previously explored. These developments strengthen the practical relevance of HPSC, especially for sustainable and low-cost construction, and support future efforts in technology transfer and application in community housing contexts.
Figure 1 shows how this research was structured to achieve its objectives. Initially, a literature review was carried out in order to obtain a solid basis for the definitions and applications of soil-cement. Consequently, a gap in knowledge was revealed regarding products that differ from soil-cement blocks and specimens because no studies were found in which there were production parameters for a material with better properties. Subsequently, parameters and materials were established for the development of a new material, high-performance soil-cement. This was followed by flexural strength and water absorption tests. Following this, resistance values for high-performance concretes were obtained from the literature review to enable a comparative analysis of the performance, social, economic and environmental parameters between the developed product and HPC. Finally, the conclusion highlights that HPSC can offer a sustainable solution for specific applications in the area of civil engineering.

2. Materials and Methods

The methodology was divided into three distinct stages: First, the parameters conditioning the production and manufacturing of the high-performance soil-cement slab were characterized. In the second stage, the water absorption and flexural strength of the slab were analyzed. Finally, the academic literature was consulted to compare the results obtained with those from high-performance concrete tests.
In stage 1, the production and manufacturing parameters of the high-performance soil-cement slab were specified.
The materials used in the production of the high-performance soil-cement slabs, together with the equipment and techniques used, play a crucial role in the quality and performance of the product. Materials and information regarding the samples used in the present research are detailed below.
The soil chosen as the source material was Yellow Argisol, according to the Brazilian Soil Classification System [15], the predominant soil on the JK campus of UFVJM. However, the soil was adjusted by adding sand. The original soil contains 78% sand, 1% silt and 21% clay. Sand was added to the soil material to achieve the mass proportions of 91.5% sand, 1% silt and 7.5% clay. The criteria for selecting the soil were based on the ABNT NBR 10833 standard [16].
The cement used was Portland CPIII-RS-32 (sulfate-resistant blast furnace cement) from the Montes Claros brand, which meets all the physical, chemical and mechanical characteristics recommended by ABNT NBR 16697 [17].
To perform all tests with the concrete, the same water supplied by the taps on the benches of the SaSA/UFVJM Laboratory—Campus II—Diamantina/MG was used. The standard drinking water used was the same used for human consumption. The standard drinking water came from deep tubular wells located in a region with quartzite mineralogical characteristics.
The hydraulic press used was a Bovenau brand, 60-ton (t) model, and the molds and forms were manufactured on a local lathe. Figure 2 shows photos of the hydraulic press, plate and mold used during production.
The methods adopted followed the recommendations of Carvalho et al. [12], and the parameters for the production of the panels were as follows:
Use of corrected soil, 30% clay in relation to the amount of cement.
Compaction moisture of 12%.
Compaction pressure of 40 kg/cm2. A 60 t press was used for production, but a maximum force of 50 t was reached.
Amount of cement used: 20%. The amount refers to the total amount of soil-cement, including water.
The manufacture of the high-performance soil-cement panels involved the steps described below:
Soil preparation:
After sieving to remove larger grains, the selected soil was mixed with cement and water. The proportions used were: 80% soil, 20% cement and 12% moisture content for the corrected mixture.
Machine adjustment:
The equipment was adjusted according to the model to be produced. In the case of this study, a 60 t hydraulic press was used, but the maximum load applied was 50 t for compacting the slabs. This load was considered ideal to maintain the integrity of the grains in the mixture and achieve maximum product resistance.
Compression:
Once ready and moist, the mixture was compacted.
Partial demolding:
The high plasticity of the soil-cement mixture can make removal of the formwork immediately after compaction challenging, depending on the product. As a solution, an external formwork capable of absorbing the compaction stresses applied to the soil-cement mixture in its fresh state was designed. In addition, an internal formwork was dimensioned to withstand the stresses generated by the weight of the product resulting from the soil-cement material.
The production process followed the following steps:
Fitting the internal formwork into the external formwork.
Filling the internal formwork with the properly homogenized soil-cement mixture.
Compaction of the material.
Immediate removal of the assembly: internal formwork + still fresh soil-cement product.
Curing of the fresh soil-cement product inside the internal formwork, a process that requires sufficient time for the material to acquire adequate strength to support its own weight without deformation, with an approximate time of 24 h.
Figure 3 illustrates the various elements involved in production.
Curing or drying
The process was carried out in the shade, and the plate was covered with plastic or canvas to preserve moisture.
1st day: The plate was not wet.
2nd to 3rd day: The plate was moistened with water.
3rd to 7th day: The plate was wetted at least 3 times a day.
From the 8th day onwards: The plate was stored in the laboratory, without direct exposure to sunlight, to ensure adequate curing of the material. The tests were carried out after 28 days of curing.
In this phase, an analysis of water absorption and flexural strength was carried out.
Initially, the 33 cm × 33 cm × 2.5 cm thick plate was cut to analyze the material, both water absorption and flexural strength. The water absorption of the test specimens was evaluated following the guidelines of ABNT NBR 13555 [18]. Subsequently, bending tests were performed on eight high-performance soil-cement specimens, with the soil corrected, all in accordance with the specifications of the ASTM C293 standard [14]. The tests were performed on a TIME Group microprocessor-based electromechanical testing machine, model WDW100EB, with a capacity of 10,000 kgf (100 kN).
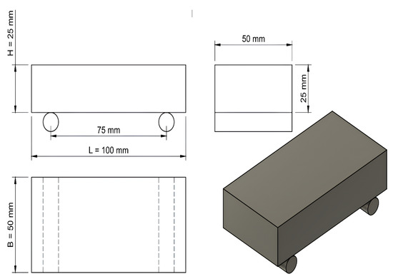
The tests aimed to apply a bending force to standardized specimens, with dimensions as shown in Figure 4, to induce deformation of the material in the direction of tension and, consequently, cause fracture. The bending force was applied gradually at the center of the specimen and distributed between two supports, whose distance (L), defined in accordance with the ASTM C293 standard [14], was stipulated at 75 mm (three times the height (H) of the specimen). The actual length of the test specimens is 100 mm, due to the 12.5 mm support on each side, i.e., 75 mm is the free span. The applied load was measured instantly by a load cell in the test equipment.
The testing machine generated the force and deformation curve of the test specimen until rupture. The rupture force of the test specimens was obtained from these curves. According to ASTM C293 [14], the rupture stress was calculated using the following Equation (1):
σ f = p f L 2 B H 2
where
  • σf = flexural rupture stress (MPa);
  • Pf = maximum applied load indicated by the testing machine (N);
  • L = length of free span (mm);
  • B = average width of the specimen at the fracture (mm);
  • H = average depth of the test specimen at fracture (mm).
Tensile strength was evaluated using beam bending tests, the results of which were determined in terms of mean and standard deviation calculated using Microsoft Excel 2019 software.
In the third phase, comparisons were made of high-performance concretes. In this stage, a search was performed on the Google Scholar platform. The search was performed using the keywords ASTM C293 (American standard used for flexural tests) and HPC (high-performance concrete), terms used in English, with the aim of evaluating scientific works at an international level. The objective of the search was to obtain works related to the evaluation of flexural strength using the ASTM C293 test for concretes, with a focus on high-performance concretes. Thus, we sought to obtain flexural strength results for HPC so that it would be possible to compare them with the results obtained for HPSC in this work.
Finally, FTIR spectra were obtained using the ATR (attenuated total reflectance) method. The samples were dried at 105 °C overnight, until constant mass in order to remove humidity. The measurements were performed using an FTIR spectrometer (model 640IR, Varian purchased from Palo Alto, CA, USA), in the region from 4000 to 600 cm−1, with a 4 cm−1 resolution. The technique was used as an initial chemical identification of the components.

3. Results

Figure 5 presents a photo of the high-performance soil-cement slab produced, with dimensions of 33 cm × 33 cm × 2.5 cm. The slab displays an earthy color tone.
Table 1 presents the results obtained during this research, together with those found in the academic literature for high-performance concretes. When the scientific articles did not provide all the data necessary to complete the table, the acronym N/C was used, referring to concretes not available.
The graph shown in Figure 6 provides us with a brief comparison of the average flexural strength and cement content between high-performance soil-cement and high-performance concrete, together with their respective standard deviations.
The spectra related to the chemical analysis of the material are shown in Figure 7. When humidity is not removed, the typical band from O-H stretching is found in the 3000–3750 cm−1 and 1570–1750 cm−1 ranges. The absence of these signals indicates the complete water removal from the samples. For cement, the C-O stretching bands are observable at 1270–1570 cm−1, and the Si-O bands are observable at 740–1070 cm−1. These values are close to those reported by Jose et al. [26], with some variations according to the cement cure rate. A detailed review of soil analysis using FTIR is presented by Tkachenko and Niedzieleski [27]. They confirm the sensitivity of the technique and the complexity of this analysis. According to the values reported in this investigation and the soil spectra, a band in the range of 830–1300 cm−1 corresponding to the Si-O bonds was identified. The bands at 720–830 cm−1 and 650–710 cm−1 are related to the different Si-O-Si linkages, when using ATR method. Minor peaks could be related to the organic matter present in the sand. When analyzing the soil-cement mixture, it is possible to observe the presence of all the bands reported previously.

4. Discussion

The arithmetic means of the flexural strength of the high-performance soil-cement panels produced was 6.71 MPa, with a standard deviation of 1.30 MPa, highlighting the good structural quality of the high-performance soil-cement material.
In addition, the average water absorption of 5.99% (standard deviation of 0.54%) reveals the efficiency of the high-performance soil-cement panels in resisting moisture penetration. According to ABNT NBR 6136 [28], an average absorption limit of up to 10% is established for concrete with natural aggregate and, therefore, the results suggest a better performance of the developed material. According to Gasparim [29], the durability of concrete or soil-cement is inversely proportional to the amount of water absorption in the test specimen as the greater the absorption, the greater the possibility of attacks by aggressive agents present in the water.
For high-performance concretes found in the literature, with an average of 22.14% cement in the mix, an average flexural strength of 7.27 MPa with a standard deviation of 2.53 MPa was obtained. The high standard deviation value in this case is due to the preparation method and dosage, together with the type and proportion of aggregate that each scientific article uses. The calculation of water absorption in this case was not considered because only two articles were presented in this experiment. However, high-performance concretes (HPC) generally present lower water absorption, as they also have a lower w/c ratio. According to Battagin et al. [30], the lower the w/c ratio, the lower the water absorption.
As indicated by Carvalho et al. [11], these results suggest that the plate can be considered as a high-performance soil-cement, reaching flexural strength values very close to, or even higher than, those of high-performance concrete (HPC) in some cases. The produced plate obtained satisfactory results, making it a viable alternative for use in paving plates, whether local or industrial.
The fine granulometry of the soil, rich in clay and silt, not only contributes to greater surface area for cement adhesion but may also act similarly to limestone fillers commonly used in cement mixtures. These fillers are known to improve the microstructure of the cementitious matrix by enhancing packing density, reducing voids, and promoting better interfacial bonding between cement and aggregate [31]. This behavior may help explain the high flexural strength observed in HPSC compared to conventional materials.
Therefore, the high-performance soil-cement (HPSC) panel produced has a flexural strength and water absorption equivalent to HPC with similar amounts of cement and without the need for mining materials such as gravel or additives such as superplasticizers, commonly adopted in some HPC mixes. The HPSC material also presents simpler production requirements. Therefore, HPSC can be considered more environmentally desirable than HPC, as it can use part of the soil from earthworks or foundations on site, which would otherwise be disposed of as waste in a landfill, thus avoiding waste and transportation to another location, reducing the environmental impact. Reductions in sand, gravel, transportation, and discarded excavated soil would contribute to cost reduction. Furthermore, the idea of seeking new construction methods and techniques to mitigate environmental and economic impacts is always advisable.
The similarity in strength values between HPSC and HPC is directly related to fundamental production parameters. One of the main factors is soil grain size, which tends to be finer due to the presence of clay and silt. These materials have a larger specific area, favoring better adhesion of cement to aggregates and resulting in a more homogeneous and cohesive cementitious matrix.
In addition, compaction of the plates by press plays an essential role in improving the mechanical properties of HPSC. Increasing the compaction pressure significantly reduces the void content in the mix, making the material denser and more uniform. This process not only improves mechanical strength but also reduces water absorption, giving HPSC greater durability and performance comparable to HPC. The results and proposed applications, highlighting the production of low-cost homes with the least possible environmental impact, demonstrate that the materials and methodology adopted align with the proposals of several SDGs listed by the UN, especially those dealing with the eradication of poverty (1), health and well-being (3), industry/innovation/infrastructure (9), reduction of inequalities (10), sustainable cities and communities (11) and sustainable consumption and production (12).
In this way, HPSC presents itself as a sustainable and economically viable alternative, combining high structural performance, lower consumption of inputs and reduced environmental impact, contributing to more efficient and accessible construction.

5. Conclusions

Given the current context of urgent demand for sustainable and eco-efficient solutions, soil-cement emerges as a promising alternative. The present research, focused on the development of products based on soil-cement, introduces a key innovation: high-performance soil-cement panels.
In developing the panels, the limits established by conventional soil-cement products were surpassed. The comparative study highlights the versatility and potential of the high-performance soil-cement material demonstrating the possibility of using high-performance soil-cement to create highly resistant and durable products, such as panels.
The results obtained from the plate indicated flexural strength and water absorption values at considerable levels with an average flexural strength of 6.71 MPa and 5.99% water absorption. These values are close to those reported in the literature for high-performance concretes, with flexural strength reaching 7.27 MPa. The developed product demonstrated flexural strength and characteristics suitable for the high-performance category.
This achievement not only expands the application possibilities of soil-cement but also highlights its suitability for new construction challenges. The developed panels are an economical, sustainable and easy-to-manufacture solution, contributing to the reduction of costs, labor and environmental impacts associated with traditional construction methods.
The successful introduction of high-performance panels into products manufactured using high-performance soil-cement technology encourages new research into alternative materials and validates an innovation in the construction industry. The popularization of this information not only diversifies the range of products available in the construction market but also strengthens sustainability and efficiency in construction processes.
Although this study presents an initial comparison between HPSC and HPC in terms of flexural strength and water absorption, it is important to recognize that a more comprehensive analysis involving a wider variety of HPC formulations was not carried out. This limitation is due to the scope of this work, which aimed to introduce the potential of HPSC as a viable alternative. Additionally, some aspects such as porosity quantification and detailed internal matrix analysis were not performed, given the novelty of the material and the experimental constraints. Future research is recommended to expand this comparative analysis by including different curing conditions, admixtures, and aggregate types, as well as microstructural investigations and direct measurements of void content, in order to better understand the performance and physical behavior of HPSC relative to conventional HPC.
The popularization of the information presented in the research is expected to broaden the application of high-performance soil-cement in product development, representing, as a consequence, a significant step in the expansion of the applications of this compound, providing a sustainable and high-performance alternative for various needs in civil construction.

Author Contributions

Data curation, B.V.P., D.R.F., L.G.M.O., J.V.W.d.S., F.A.D.C., M.V.F., E.E.A.R., J.D.F. and A.C.S.; formal analysis, B.V.P., D.R.F., L.G.M.O., J.V.W.d.S., F.A.D.C., M.V.F., E.E.A.R., J.D.F. and A.C.S.; financing acquisition, B.V.P., J.V.W.d.S. and A.C.S.; investigation, B.V.P. and D.R.F.; methodology, B.V.P., D.R.F., L.G.M.O., F.A.D.C. and E.E.A.R.; project administration, B.V.P., M.V.F. and J.D.F.; resources, B.V.P., J.V.W.d.S. and A.C.S.; supervision, B.V.P. and A.C.S.; validation, F.A.D.C.; visualization, D.R.F., F.A.D.C., M.V.F., E.E.A.R. and J.D.F.; writing—original draft, B.V.P., D.R.F., L.G.M.O., J.V.W.d.S., F.A.D.C., M.V.F., E.E.A.R., J.D.F. and A.C.S.; writing—review and editing, B.V.P., D.R.F., L.G.M.O., J.V.W.d.S., F.A.D.C., M.V.F., E.E.A.R., J.D.F. and A.C.S. All authors have read and agreed to the published version of the manuscript.

Funding

This research did not receive external funding.

Data Availability Statement

The original contributions presented in this study are included in the article. Further inquiries can be directed to the corresponding authors.

Acknowledgments

The authors would like to thank the National Council for Scientific and Technological Development (CNPq) for its continuous support (process no. 308411-2021-8 Proc 310398-2022-3) for their research activity. The authors thank the Provost Office for Graduate Studies and, more specifically, the Graduate Program in Health, Society and Environment-(SaSA) at the Federal University of the Jequitinhonha and Mucuri Valleys in Diamantina, Minas Gerais, Brazil.

Conflicts of Interest

The authors declare no conflict of interest.

References

  1. Scrivener, K.L.; Kirkpatrick, R.J. Innovation in Use and Research on Cementitious Material. Cem. Concr. Res. 2008, 38, 128–136. [Google Scholar] [CrossRef]
  2. Giorgi, P.; Grigoletti, G.C.; Lima, R.C.A.; Lorenzi, L.S. Sustainability and Habitability Assessment of Soil-Cement Blocks According to ABNT NBR 15575 Standard. Matéria 2018, 23, e12177. [Google Scholar] [CrossRef]
  3. Santos, E.C.O.B.; Júnior, J.M.C.; Barbosa, I.L.S. Mitigation of Environmental Impacts Through the Use of Ecological Building Materials. Case Study: Ecological Bricks Compared to Ceramic Bricks. ETIS J. Eng. Technol. Innov. Sustain. 2020, 2, 32–42. [Google Scholar]
  4. Vinolas, B.V.; Casanovas -Rubio, M.d.M.; Silva, A.C.; Bretas Roa, J.P.; Andrade, A.C.L.; Carvalho, F.A.d.; Gonçalves, H.H.A.; Rocha, H.J.A. Flexural Strength of High-Performance Soil-Cement: A New, Alternative, Sustainable Construction Material. Sustainability 2023, 15, 15369. [Google Scholar] [CrossRef]
  5. Hammond, G.; Jones, C. A BSRIA guide. Embodied Carbon. In Carbon and Energy Inventory (CEI); University of Bath and BSRIA: Bath/Bracknell, UK, 2011. [Google Scholar]
  6. Pisani, M.A.J. A Low Environmental Impact Building Material: Soil-Cement Bricks. Sinergia 2005, 6, 53–59. [Google Scholar]
  7. Francielle, D.S.C.; Cesar, S.S.G.; Mantovan, A.T.; Cristina, T.A.; Vinolas, B.V. Applications of Soil-Cement in the Production of Artifacts for Civil Construction. In Vozes dos Vales; Academic Publications: Cambridge, MA, USA, 2023; ISSN 2238-6424. [Google Scholar]
  8. Martins, M.; Junior, N.; Taguchi, S.; Oliveira, R.; Rui, C.; Luiz, J. Use of Glass Waste from a Metallurgical Company for Application in Soil-Cement Slabs. Technol. Metal. Mater. 2022, 19, e2489. [Google Scholar] [CrossRef]
  9. Euphrosino, C.A.; Pimentel, L.L.; Camarini, G.; Boas, Y.V.; Ortigara, Y.V.B.; Ruiz, P.V.; Fontanini, P.S.P. Mapping the production and construction process of soil-cement brick masonry for social housing. Mater. Jan. 2019, 24, e12523. [Google Scholar] [CrossRef]
  10. Motta, J.C.S.S.; Morais, P.W.P.; Rocha, G.N.; Tavares, J.C.; Gonçalves, G.C.; Chagas, M.A.; Mageste, J.L.; Lucas, T.P.B. Soil-cement bricks: Analysis of the physical characteristics and economic viability of sustainable construction techniques. e-exacta 2014, 7, 13–26. [Google Scholar] [CrossRef][Green Version]
  11. Blücher, E. Soil Mechanics for Highway Engineers—Volume 1; Blücher: São Paulo, Brazil, 1951. [Google Scholar]
  12. Carvalho, F.A.; Silva, A.C.; Roa, J.P.B.; Vinolas, B.V. Development and Validation of High-Performance Soil-Cement Concrete Slabs: A Sustainable and Cost-Effective Alternative for Civil Construction Characterization of High-Performance Soil-Cement (SCAD): Construction Alternative in the Jequitinhonha Valleys-Mg. In Vozes Dos Vales; Academic Publications: Cambridge, MA, USA, 2022; ISSN 2238-6424. [Google Scholar]
  13. Lopes, H.M.T.; Peçanha, A.C.C.; Castro, A.L. Considerations on the Efficiency of Portland Cement Concrete Mixtures Based on the Particle Packing Concept. Matéria 2020, 25, e-12549. [Google Scholar] [CrossRef]
  14. ASTM C 293; Flexural Strength of Concrete (Using Simple Beam with Center-Point Loading). American Society for Testing and Materials: West Conshohocken, Brazil, 2002.
  15. EMBRAPA—Brazilian Company. Brazilian Soil Classification System; National Center for Soil Research: Rio de Janeiro, Brazil, 2018. [Google Scholar]
  16. NBR 10833; Manufacture of Soil-Cement Bricks and Blocks Using a Manual or Hydraulic Press—Procedure. Brazilian Association of Technical Standards (ABNT): Rio de Janeiro, Brazil, 2013.
  17. NBR 16697; Portland Cement-Requirements. Brazilian Association of Technical Standards (ABNT): Rio de Janeiro, Brazil, 2018.
  18. NBR 13555; Soil-Cement: Determination of Water Absorption—Test Method. Brazilian Association of Technical Standards (ABNT): Rio de Janeiro, Brazil, 2012.
  19. Ismail, F.; Nasis, S.; Yassir, M.A.; Naraiindas, B.; Omrane, B.; Mahmood, A.; Mohanad, M.S.S.; El Sayed, A. Behavioral Assessment of Graphene Nanoplatelets Reinforced Concrete Beams by Experimental, Statistical, and Analytical Methods. Case Stud. Constr. Mater. 2022, 17, e01676. [Google Scholar] [CrossRef]
  20. Nazari, A.; Shadi, R. The Effects of Incorporation Fe2O3 Nanoparticles on Tensile and Flexural Strength of Concrete. J. Am. Sci. 2010, 6, 90–93. [Google Scholar] [CrossRef]
  21. Al-hadithi, A.I.; Alani, M.F.A. Mechanical Properties of High-Performance Concrete Containing Waste Plastic as Aggregate. J. Eng. 2015, 21, 100–115. [Google Scholar] [CrossRef]
  22. Owaid, H.M. Fresh and Hardened Characteristics of Sustainable Self-Compacting High Performance Concrete Incorporating Silica Fume. Muthanna J. Eng. Technol. (MJET) 2017, 5, 14–24. [Google Scholar] [CrossRef]
  23. Jalal, M.; Ali, R.P.; Akbar, R.; Hassan, N. Effects of Silica Nano Powder and Silica Fume on Rheology and Strength of High Strength Self Compacting Concrete. J. Am. Sci. 2012, 8, 270–277. [Google Scholar]
  24. Sadek, D.M.; El-attar, M.M.; Ali, H.A. Reusing of Marble and Granite Powders in Self -compacting Concrete for Sustainable Development. J. Clean. Prod. 2016, 121, 19–32. [Google Scholar] [CrossRef]
  25. Manigandan, S.; Praveenkumar, T.R.; Amal, M.A.; Kathirvel, B.; Arivalagan, P. Characterization of Polyurethane Coating on High Performance Concrete Reinforced with Chemically Treated Ananas Erectifolius Fiber. Prog. Org. Coatings 2021, 150, 105977. [Google Scholar] [CrossRef]
  26. Jose, A.; Nivitha, M.R.; Krishnan, M.; Robinson, R.G. Characterization of Cement Stabilized Pond Ash Using FTIR Spectroscopy. Constr. Build. Mater. 2020, 263, 120136. [Google Scholar] [CrossRef]
  27. Tkachenko, Y.; Niedzieleski, P. FTIR as a Method for Qualitative Assessment of Solid Samples in Geochemical Research: A Review. Molecules 2022, 27, 8846. [Google Scholar] [CrossRef] [PubMed]
  28. NBR 6136:2014; Hollow Concrete Blocks for Masonry—Requirements. Brazilian Association of Technical Standards: Rio de Janeiro, Brazil, 2014.
  29. Gasparim, J.C. Shotcrete Prepared with Special Cements: Analysis According to Durability Parameter. Master’s Thesis, Civil and Urban Construction Engineering, University of São Paulo, São Paulo, Brazil, 2007. [Google Scholar]
  30. Battagin, A.F.; Curti, R.; Silva, C.O.; Munhoz, F.A.C. Influence of curing conditions on some properties of conventional and high-performance concrete. In Proceedings of the 44th Brazilian Concrete Congress, Belo Horizonte, Brazil, 17–22 August 2002. [Google Scholar]
  31. Bonavetti, V.; Donza, H.; Rahhal, V.; Irassar, E.F. High-Strength Concrete with Limestone Filler Cements; American Concrete Institute: Farmington Hills, MI, USA, 1999; Volume 186, pp. 567–580. [Google Scholar] [CrossRef]
Figure 1. Flowchart of the research carried out [14].
Figure 1. Flowchart of the research carried out [14].
Buildings 15 01697 g001
Figure 2. Equipment used in the manufacture of the high-performance board.
Figure 2. Equipment used in the manufacture of the high-performance board.
Buildings 15 01697 g002
Figure 3. Elements in the production of soil-cement plates.
Figure 3. Elements in the production of soil-cement plates.
Buildings 15 01697 g003
Figure 4. Dimensions of the test specimen.
Figure 4. Dimensions of the test specimen.
Buildings 15 01697 g004
Figure 5. Result of the high-performance soil-cement board produced.
Figure 5. Result of the high-performance soil-cement board produced.
Buildings 15 01697 g005
Figure 6. Comparison of average flexural strength and cement content between HPSC and HPC.
Figure 6. Comparison of average flexural strength and cement content between HPSC and HPC.
Buildings 15 01697 g006
Figure 7. FTIR spectra for soil, cement and soil-cement mixture.
Figure 7. FTIR spectra for soil, cement and soil-cement mixture.
Buildings 15 01697 g007
Table 1. Results of flexural and water absorption tests for HPSC and HPC.
Table 1. Results of flexural and water absorption tests for HPSC and HPC.
Material% Cement by WeightFlexural Strength (MPa)Water
Absorption (%)
Additional InformationReferences
HPSC plate at 28 days20.08.675.49Soil composition: 91.5% sand, 1% silt and 7.5% clay.Author’s own, (2025)
7.796.63
6.625.75
7.206.64
4.846.48
5.145.23
7.235.71
6.156.03
HPC at 28 days22.46.76NCGraphene nanoparticles were used together with the aggregates, in addition to 10% additive superplasticizer.[19]
7.65
6.93
7.05
6.01
5.92
HPC at 28 days25.114.405.90Iron nanoparticles were used together with the aggregates.[20]
25.025.002.60
24.935.202.30
24.835.002.80
24.744.802.50
HPC at 28 days20.149.11NCPET aggregate was used, in addition to 0.8% additive superplasticizer.[21]
20.2911.51
20.4410.31
20.5910.17
HPC at 28 days21.717.75NCAluminum sludge was used together with the binder, in addition to 0.30% of additive superplasticizer.[22]
20.858.25
19.988.00
19.084.80
HPC at 28 days20.193.90NCActive silica was used with a mineral filler and agent viscosity modifier, together with the aggregates, in addition to additive superplasticizer.[23]
22.164.40
24.034.80
18.555.70
20.395.90
22.166.10
19.834.60
21.814.80
26.665.20
18.216.20
20.036.80
21.777.30
HPC at 28 days18.188.304.96Marble powder and granite powder were used together with the aggregates, in addition to 0.45% superplasticizer.[24]
26.8613.701.79
18.609.802.26
19.889.106.84
19.9811.202.47
19.9011.701.87
19.8811.003.01
18.8711.901.52
19.2112.101.29
HPC at 28 days19.915.80NCPolyurethane and Amazonian bromeliad fibers (Curaua) were used together with the aggregates.[25]
5.90
6.20
5.80
5.70
5.85
Disclaimer/Publisher’s Note: The statements, opinions and data contained in all publications are solely those of the individual author(s) and contributor(s) and not of MDPI and/or the editor(s). MDPI and/or the editor(s) disclaim responsibility for any injury to people or property resulting from any ideas, methods, instructions or products referred to in the content.

Share and Cite

MDPI and ACS Style

Prat, B.V.; Ferreira, D.R.; Oliveira, L.G.M.; Silveira, J.V.W.d.; Carvalho, F.A.D.; Felix, M.V.; Rocha, E.E.A.; Fabris, J.D.; Silva, A.C. Development and Validation of High-Performance Soil-Cement Panels: A Sustainable and Economical Alternative for Civil Construction. Buildings 2025, 15, 1697. https://doi.org/10.3390/buildings15101697

AMA Style

Prat BV, Ferreira DR, Oliveira LGM, Silveira JVWd, Carvalho FAD, Felix MV, Rocha EEA, Fabris JD, Silva AC. Development and Validation of High-Performance Soil-Cement Panels: A Sustainable and Economical Alternative for Civil Construction. Buildings. 2025; 15(10):1697. https://doi.org/10.3390/buildings15101697

Chicago/Turabian Style

Prat, Bernat Vinolas, Demisson Renato Ferreira, Luis Guilherme Monteiro Oliveira, João Vinícios Wirbitzki da Silveira, Frank Alisson De Carvalho, Marcus Vinícius Felix, Ellem Eva Augusto Rocha, José Domingos Fabris, and Alexandre Christófaro Silva. 2025. "Development and Validation of High-Performance Soil-Cement Panels: A Sustainable and Economical Alternative for Civil Construction" Buildings 15, no. 10: 1697. https://doi.org/10.3390/buildings15101697

APA Style

Prat, B. V., Ferreira, D. R., Oliveira, L. G. M., Silveira, J. V. W. d., Carvalho, F. A. D., Felix, M. V., Rocha, E. E. A., Fabris, J. D., & Silva, A. C. (2025). Development and Validation of High-Performance Soil-Cement Panels: A Sustainable and Economical Alternative for Civil Construction. Buildings, 15(10), 1697. https://doi.org/10.3390/buildings15101697

Note that from the first issue of 2016, this journal uses article numbers instead of page numbers. See further details here.

Article Metrics

Back to TopTop