Structural Performance of Cold-Formed Steel Face-to-Face Built-Up Channel Sections under Axial Compression at High Temperatures through Finite Element Modelling
Abstract
1. Introduction
2. Summary of Previous Experiments
3. Finite Element Analysis
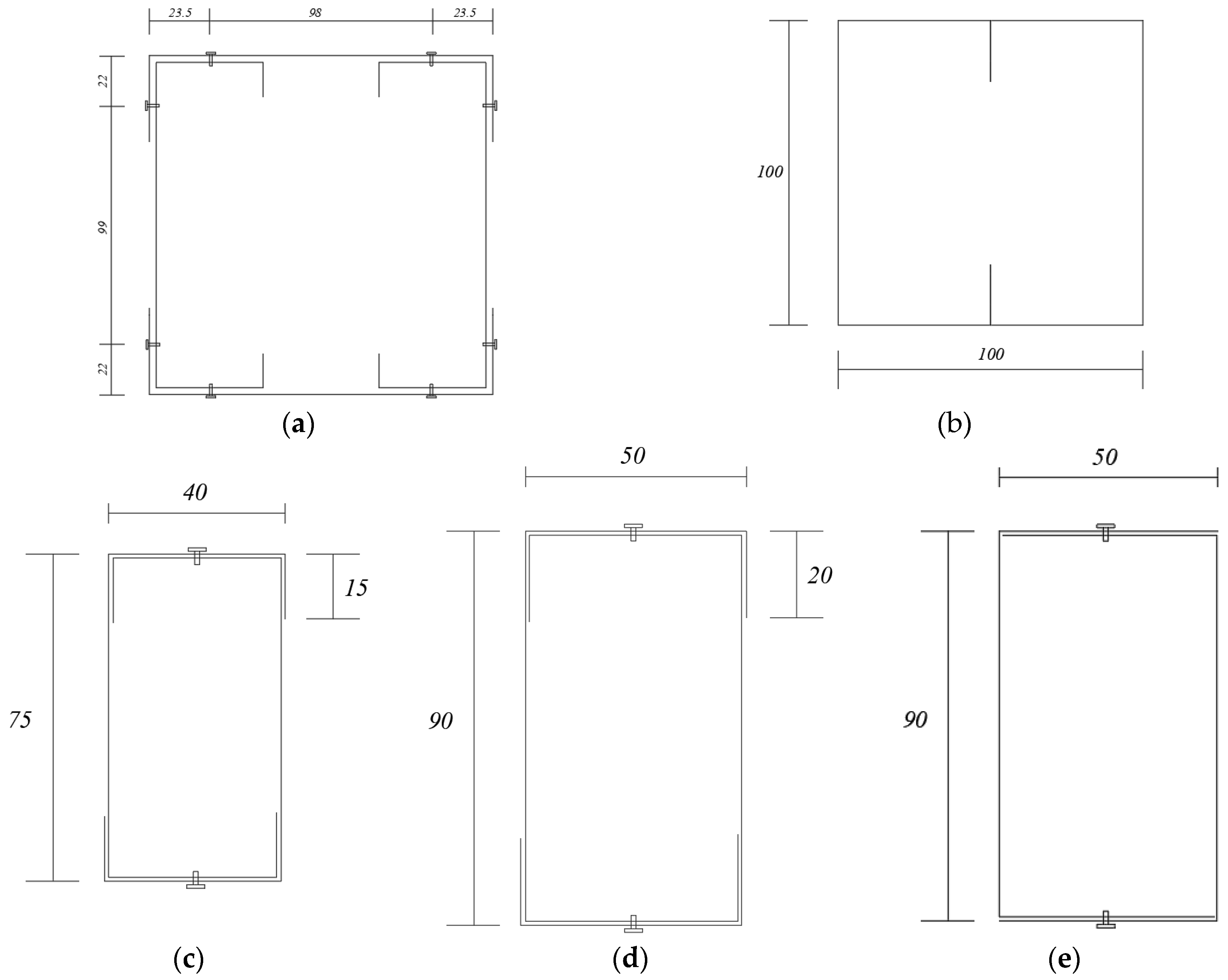
3.1. General
3.2. Material Properties
3.3. Specimen Labels
- “BU” identifies the unlipped channel section;
- “BL” identifies the lipped channel section;
- “L300” identifies the column length (L) at 300 mm;
- “t1.5” identifies the section thickness (t) at 1.5 mm;
- “S2” indicates that the screw number (S) is 2;
- “T20” identifies the temperature (T) at 20 °C;
3.4. Finite Element Mesh
3.5. Boundary Conditions and Loadings
3.6. Contact Modelling
3.7. Modelling of Imperfections
3.8. FE Validation
4. Parametric Study
4.1. Influence of the Thickness (t) on Axial Capacity (P)
4.2. Influence of the Column Length (L) on Axial Capacity (P)
4.3. Influence of the Screws on Axial Capacity (P)
4.4. Influence of the High Temperatures (T) on Axial Capacity (P)
4.5. Failure Modes
5. Design Guidelines
5.1. Effective Width Method (EWM) for CFS-FTF Built-Up Channel Sections
5.2. Comparison of FE Results with Design Strength
6. Proposed Design Equations
6.1. New Equations
6.2. Reliability Analysis
7. Conclusions
Author Contributions
Funding
Data Availability Statement
Conflicts of Interest
References
- Roy, K.; Mohammadjani, C.; Lim, J.B.P. Experimental and numerical investigation into the behaviour of face-to-face built-up cold-formed steel channel sections under compression. Thin-Walled Struct. 2019, 134, 291–309. [Google Scholar] [CrossRef]
- Roy, K.; Ting, T.C.H.; Lau, H.H.; Lim, J.B.P. Experimental and numerical investigations on the axial capacity of cold-formed steel built-up box sections. J. Constr. Steel Res. 2019, 160, 411–427. [Google Scholar] [CrossRef]
- Gunalan, S.; Bandula, H.Y.; Mahendran, M. Local buckling studies of cold-formed steel compression members at elevated temperatures. J. Constr. Steel Res. 2015, 108, 31–45. [Google Scholar] [CrossRef]
- Gunalan, S.; Bandula, H.Y.; Mahendran, M. Flexural–torsional buckling behavior and design of cold-formed steel compression members at elevated temperatures. Eng. Struct. 2014, 79, 149–168. [Google Scholar] [CrossRef]
- Ranawaka, T.; Mahendran, M. Numerical modelling of light gauge cold-formed steel compression members subjected to distortional buckling at elevated temperatures. Thin-Walled Struct. 2010, 48, 334–344. [Google Scholar] [CrossRef]
- Chen, J.; Young, B. Experimental investigation of cold-formed steel material at elevated temperatures. Thin-Walled Struct. 2007, 45, 96–110. [Google Scholar] [CrossRef]
- Feng, M.; Wang, Y.C.; Davies, J.M. Structural behavior of cold-formed thin-walled short steel channel columns at elevated temperatures. Part 1: Experiments. Thin-Walled Struct. 2003, 41, 543–570. [Google Scholar] [CrossRef]
- Landesmann, A.; Camotim, D. Distortional failure and DSM design of cold-formed steel lipped channel beams under elevated temperatures. Thin-Walled Struct. 2016, 98, 75–93. [Google Scholar] [CrossRef]
- Laím, L.; Rodrigues, J.P.C.; Craveiro, H.D. Flexural behavior of axially and rotationally restrained cold-formed steel beams subjected to fire. Thin-Walled Struct. 2016, 98, 39–47. [Google Scholar] [CrossRef]
- Dolamune Kankanamge, N.; Mahendran, M. Behavior and design of cold-formed steel beams subject to lateral–torsional buckling at elevated temperatures. Thin-Walled Struct. 2016, 61, 213–228. [Google Scholar] [CrossRef]
- Fang, Z.; Roy, K.; Liang, H.; Poologanathan, K.; Ghosh, K.; Mohamed, A.M.; Lim, J.B.P. Numerical simulation and design recommendations for web crippling strength of cold-formed steel channels with web holes under interior-one-flange loading at elevated temperatures. Build. 2021, 11, 666. [Google Scholar] [CrossRef]
- Fang, Z.; Roy, K.; Lakshmanan, D.; Pranomrum, P.; Li, F.; Lau, H.H.; Lim, J.B.P. Structural behaviour of back-to-back cold-formed steel channel sections with web openings under axial compression at elevated temperatures. J. Build. Eng. 2022, 54, 104512. [Google Scholar] [CrossRef]
- Yang, J.; Wang, W.; Shi, Y.; Xu, L. Experimental study on fire resistance of cold-formed steel built-up box columns. Thin-Walled Struct. 2020, 147, 106564. [Google Scholar] [CrossRef]
- Yang, J.; Shi, Y.; Wang, W.; Xu, L.; Al-azzani, H. Experimental and numerical studies on axially restrained cold-formed steel built-up box columns at elevated temperatures. J. Constr. Steel Res. 2020, 171, 106143. [Google Scholar] [CrossRef]
- Pires, T.A.C.; Silva, J.J.D.R.; Santos, M.M.L.D.; Costa, L.M. Fire resistance of built-up cold-formed steel columns. J. Constr. Steel Res. 2021, 177, 106456. [Google Scholar] [CrossRef]
- American Iron and Steel Institute, AISI. North American Specification for the Design of Cold-Formed Steel Structural Members; American Iron and Steel Institute: Washington, DC, USA, 2016. [Google Scholar]
- AS/NZS 4600:2018; Australia/New Zealand Standard (AS/NZS), Cold-Formed Steel Structures. Standards Australia; Standards New Zealand: Sydney, Australia; Wellington, New Zealand, 2018.
- Selvaraj, S.; Madhavan, M. Design of cold-formed steel built-up closed section columns using direct strength method. Thin-Walled Struct. 2022, 171, 108746. [Google Scholar] [CrossRef]
- ABAQUS Analysis User’s Manual; Version 6.14-2; ABAQUS Inc.: Palo Alto, CA, USA, 2018.
- Kankanamge, N.D.; Mahendran, M. Mechanical properties of cold formed steel at elevated temperatures. Thin-Walled Struct. 2011, 49, 26–44. [Google Scholar] [CrossRef]
- Dai, Y.; Roy., K.; Fang, Z.; Chen, B.; Raftery, G.M.; Lim, J.B.P. A novel machine learning model to predict the moment capacity of cold-formed steel channel beams with edge-stiffened and un-stiffened web holes. J. Build. Eng. 2022, 53, 104592. [Google Scholar] [CrossRef]
- Fang, Z.; Roy., K.; Xu, J.; Dai, Y.; Paul, B.; Lim, J.B.P. A novel machine learning method to investigate the web crippling behaviour of perforated roll-formed aluminium alloy unlipped channels under interior-two flange loading. J. Build. Eng. 2022, 51, 104261. [Google Scholar] [CrossRef]
- Fang, Z.; Roy., K.; Dai, Y.; Lim, J.B.P. Effect of web perforations on end-two-flange web crippling behaviour of roll-formed aluminium alloy unlipped channels through experimental test, numerical simulation and deep learning. Thin-Walled Struct. 2022, 179, 109489. [Google Scholar] [CrossRef]














| Temperature (°C) | G450_1.5 mm | G450_1.9 mm | ||
|---|---|---|---|---|
| E (MPa) | fy (MPa) | E | fy | |
| 20 | 207,490 | 537.1 | 206,328 | 514.5 |
| 100 | 189,375 | 526.4 | 196,540 | 521.2 |
| 200 | 172,000 | 534.4 | 173,337 | 509.9 |
| 300 | 157,380 | 508.6 | 148,395 | 483.6 |
| 400 | 126,030 | 373.3 | 118,533 | 362.2 |
| 500 | 96,800 | 193.4 | 77,100 | 197.1 |
| 600 | 63,126 | 59.1 | 52,536 | 56.6 |
| 700 | 47,559 | 32.8 | 24,286 | 34.0 |
| Temperature (°C) | G250_1.55 mm | G250_1.95 mm | ||
| E | fy | E | fy | |
| 20 | 204,385 | 293.5 | 188,220 | 270.51 |
| 100 | 191,505 | 279.1 | 179,640 | 267.3 |
| 200 | 160,555 | 274.4 | 171,745 | 257 |
| 300 | 142,470 | 187.8 | 154,330 | 196.4 |
| 400 | 128,220 | 144.4 | 121,230 | 147.7 |
| 500 | 81,096 | 94.8 | 90,631 | 95.8 |
| 600 | 62,066 | 66.3 | 57,777 | 54.1 |
| 700 | 24,851 | 37.3 | 31,363 | 34.4 |
| Roy et al. [2] | Web Depth | Flange | Lip | Length | Local Imper-fection Magnitude | Overall Imperfection Magnitude | Axial Capacity of Tests [2] PTEST | Axial Capacity of FEA PFEA | PTEST/PFEA |
|---|---|---|---|---|---|---|---|---|---|
| bw (mm) | bf (mm) | bl (mm) | L (mm) | (mm) | (mm) | (kN) | (kN) | ||
| BL75-L500-1 | 76.1 | 39.8 | 15.1 | 500.4 | 0.54 | 0.16 | 124.8 | 132.0 | 1.06 |
| BL75-L500-2 | 75.2 | 38.5 | 14.2 | 498.7 | 0.54 | 0.18 | 127.5 | 130.5 | 1.02 |
| BL75-L500-3 | 74.7 | 41.6 | 14.8 | 499.6 | 0.54 | 0.15 | 130.5 | 132.2 | 1.01 |
| BL75-L500-4 | 77.2 | 40.2 | 14.2 | 502.4 | 0.54 | 0.17 | 129.7 | 130.1 | 1.00 |
| BL75-L1500-1 | 77.4 | 41.2 | 14.4 | 1500.9 | 0.54 | 0.23 | 88.4 | 87.2 | 0.99 |
| BL75-L1500-2 | 76.4 | 40.6 | 14.6 | 1502.6 | 0.54 | 0.21 | 89.7 | 85.0 | 0.95 |
| BL75-L1500-3 | 75.4 | 39.7 | 15.3 | 1507.4 | 0.54 | 0.20 | 91.4 | 86.3 | 0.94 |
| BL75-L1500-4 | 75.2 | 38.7 | 15.1 | 1511.4 | 0.54 | 0.18 | 92.7 | 83.2 | 0.90 |
| Mean | 0.98 | ||||||||
| COV | 0.05 | ||||||||
| Selvaraj and Madhavan [18] | Web Depth | Flange | Screw Spacing | Length | Local Imperfection Magnitude | Overall Imperfection Magnitude | Axial Capacity of Tests [18] PTEST | Axial Capacity of FEA PFEA | PTEST/PFEA |
| bw (mm) | bf (mm) | sp (mm) | L (mm) | (mm) | (mm) | (kN) | (kN) | ||
| B70-L1400-S140 | 70.0 | 50.1 | 140 | 1400.1 | 3.01 | 5.40 | 120.6 | 127.2 | 0.95 |
| B70-L1400-S175 | 70.0 | 50.1 | 175 | 1400.5 | 2.99 | 5.41 | 118.9 | 129.5 | 0.92 |
| B70-L1400-S233 | 70.1 | 50.0 | 233 | 1400.1 | 3.01 | 5.41 | 112.0 | 127.3 | 0.88 |
| B70-L1000-S100 | 70.1 | 50.1 | 100 | 999.8 | 2.98 | 3.81 | 125.3 | 127.4 | 0.98 |
| B70-L1400-S125 | 70.2 | 50.0 | 125 | 1000.1 | 2.97 | 3.79 | 120.9 | 127.2 | 0.95 |
| B65-L1800-S180 | 65.2 | 55.1 | 180 | 1799.9 | 2.90 | 6.31 | 120.2 | 129.4 | 0.93 |
| B65-L1800-S225 | 64.9 | 55.0 | 225 | 1799.6 | 2.90 | 6.29 | 118.9 | 129.0 | 0.92 |
| B65-L1800-S300 | 65.0 | 55.1 | 300 | 1800.1 | 2.90 | 6.31 | 104.8 | 121.4 | 0.86 |
| B50-L1200-S150 | 50.0 | 65.1 | 150 | 1199.8 | 2.40 | 4.10 | 111.1 | 122.3 | 0.91 |
| B50-L1200-S120 | 50.9 | 58.0 | 120 | 1200.1 | 2.40 | 4.71 | 111.5 | 118.7 | 0.94 |
| B50-L1200-S300 | 50.0 | 57.9 | 300 | 1200.1 | 2.39 | 4.70 | 110.3 | 115.5 | 0.96 |
| B50-L1000-S167 | 50.0 | 50.0 | 167 | 999.9 | 2.42 | 4.29 | 103.4 | 114.3 | 0.90 |
| Mean | 0.93 | ||||||||
| COV | 0.04 |
Disclaimer/Publisher’s Note: The statements, opinions and data contained in all publications are solely those of the individual author(s) and contributor(s) and not of MDPI and/or the editor(s). MDPI and/or the editor(s) disclaim responsibility for any injury to people or property resulting from any ideas, methods, instructions or products referred to in the content. |
© 2023 by the authors. Licensee MDPI, Basel, Switzerland. This article is an open access article distributed under the terms and conditions of the Creative Commons Attribution (CC BY) license (https://creativecommons.org/licenses/by/4.0/).
Share and Cite
Dai, Y.; Roy, K.; Fang, Z.; Raftery, G.M.; Lim, J.B.P. Structural Performance of Cold-Formed Steel Face-to-Face Built-Up Channel Sections under Axial Compression at High Temperatures through Finite Element Modelling. Buildings 2023, 13, 305. https://doi.org/10.3390/buildings13020305
Dai Y, Roy K, Fang Z, Raftery GM, Lim JBP. Structural Performance of Cold-Formed Steel Face-to-Face Built-Up Channel Sections under Axial Compression at High Temperatures through Finite Element Modelling. Buildings. 2023; 13(2):305. https://doi.org/10.3390/buildings13020305
Chicago/Turabian StyleDai, Yecheng, Krishanu Roy, Zhiyuan Fang, Gary M. Raftery, and James B. P. Lim. 2023. "Structural Performance of Cold-Formed Steel Face-to-Face Built-Up Channel Sections under Axial Compression at High Temperatures through Finite Element Modelling" Buildings 13, no. 2: 305. https://doi.org/10.3390/buildings13020305
APA StyleDai, Y., Roy, K., Fang, Z., Raftery, G. M., & Lim, J. B. P. (2023). Structural Performance of Cold-Formed Steel Face-to-Face Built-Up Channel Sections under Axial Compression at High Temperatures through Finite Element Modelling. Buildings, 13(2), 305. https://doi.org/10.3390/buildings13020305

