Evaluation of Damage Limit State for RC Frame Based on FE Modeling
Abstract
1. Introduction
1.1. Damage Characterization and Damage Limit State
1.2. Analytical Approach for Defining Damage Limit State
1.3. Code Based Approach (CBA) Damage Limit State
1.4. Damage Limit State Based on FE Modeling
1.5. Fragility Curve
1.6. Objectives and Scope of the Study
2. Methods
2.1. Model Building Type
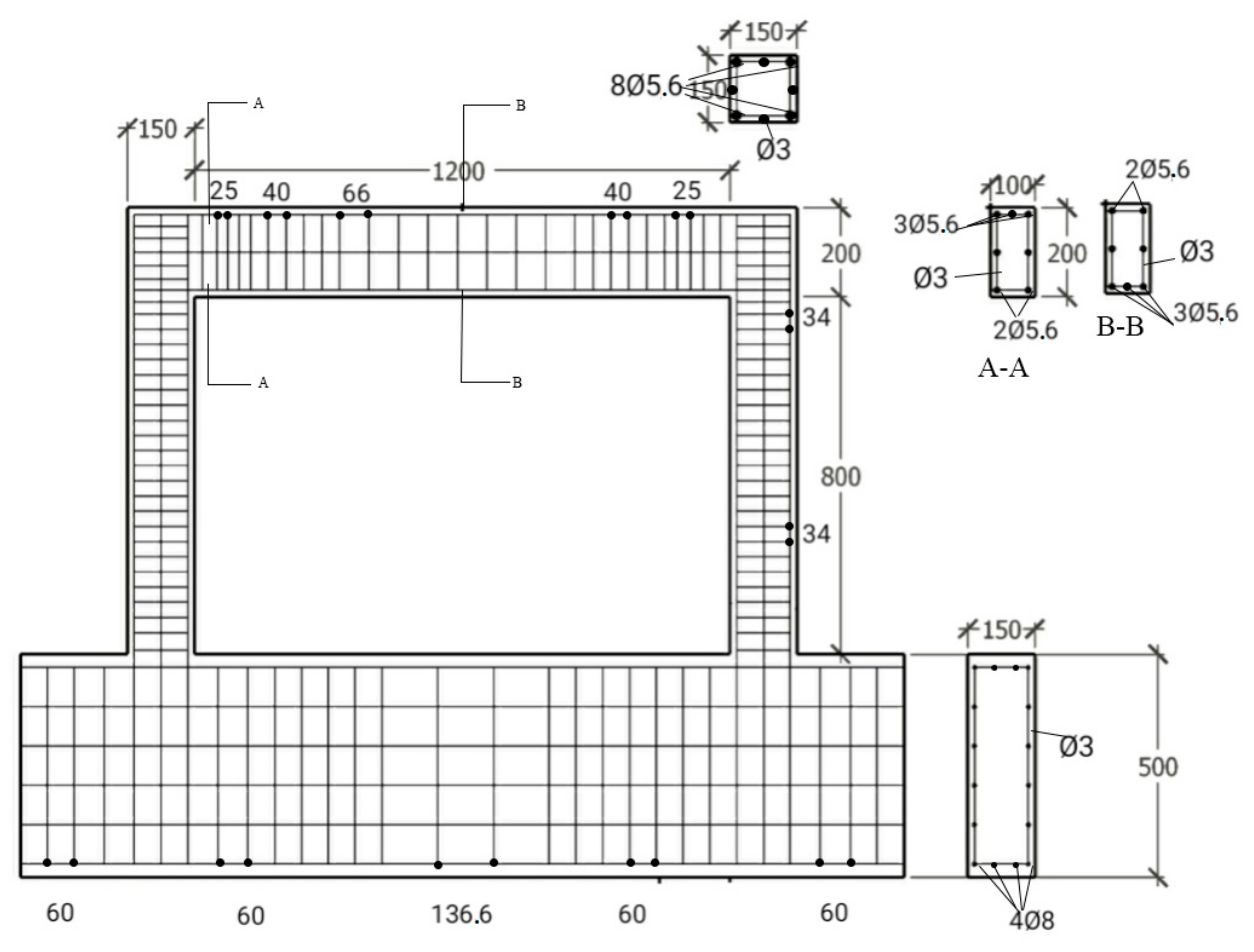
2.2. FE Modeling of the Investigated RC Frame
3. Results and Discussion
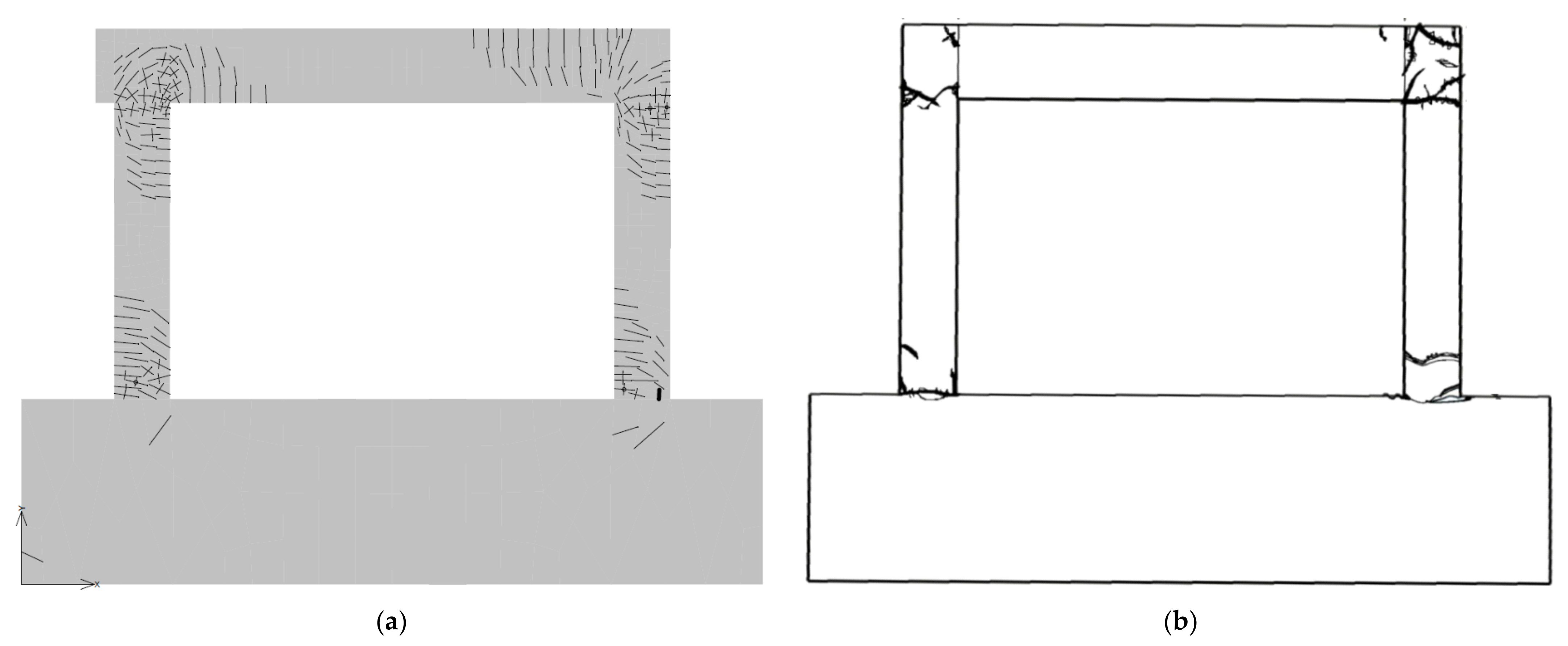
3.1. Validity of FE Modeling
3.2. Progressive Damage
3.3. Control Points
3.4. Damage Limit State
3.5. CBA Damage Limit State
3.6. Fragility Curve
- Define the capacity spectrum of the model structure (Figure 12);
- Identify and determine the control points using one of the methods described in sub-Section 3.3;
- Define the damage limit state using Equation (8). For the current case of study, the obtained value is given in Table 5;
- Define the βds parameter using Equation (5). The estimated parameter may be refined to better respresent the logical damage order. For example, when the estimated βds for complete damage is too high (0.86), it may cause the probability of this damage state is higher than the extensive damage state, especially at the low range of spectral displacement. For this reason, the βds parameter for the complete damage state is set similar to the extensive damage state i.e., 0.67;
- Apply Equation (6) for a range of spectral displacement covering the probable seismic intensities of the region.
4. Conclusions
- Two control points corresponding to the first yielding and buckling of reinforcement point can be identified from the FE simulation results. The estimated control points are very close to the prediction by the method of reduced stiffness equivalent elasto-plastic yield and equivalent elasto-plastic energy absorption;
- Damage states defined on the basis of model which relates the limit state with the control points such as Equations (1) and (2) generally are reasonable as confirmed by the simulated damage of FE modeling. However, a refinement of limit state for DS1 and DS4 is proposed in this study. The refinement of DS1 aims to limit the expected cracks that may occur at this damage level, while the refinement of DS4 is intended to reduce the upper limit of extensive damage to the point before structure collapses. The capability of FE modeling to simulate damage and identify the limit state based on that damage is useful for proper definition of the limit state. This method can be extended for other structures, especially for non-typical structure where a model for estimating damage limit state is absent;
- The simulated damage from FE modeling has also been used to identify the level of damage that may occur in the model structure compared to the CBA damage limit state such as that of Hazus-MH 2.1 and FEMA P-58. More severe damage is indicated in the model structure than what is required by Hazus-MH 2.1 and FEMA P-58. The assessment of damage by the above principle can serve as first indication whether a structure has been sufficiently designed to meet the expected code performance or not;
- The fragility curve has been presented to quantify the probability of damage that can be expected in the model structure based on a set of damage limit state proposed in this study. In the case of this research, the most probable damage in the structure falls in the category of slight if earthquake at a level of DBE or MCE strikes the structure. However, at MCE level the probability of moderate damage attains 53% or an increase of 23% compared to the DBE level.
Author Contributions
Funding
Institutional Review Board Statement
Informed Consent Statement
Data Availability Statement
Conflicts of Interest
References
- Applied Technology Council. FEMA P-154 Rapid Visual Screening of Buildings for Potential Seismic Hazards: A Handbook; Applied Technology Council: Wahsington, DC, USA, 2015. [Google Scholar]
- Jain, S.K.; Mitra, K.; Kumar, M.; Shah, M. A proposed rapid visual screening procedure for seismic evaluation of RC-frame buildings in India. Earthq. Spectra 2010, 26, 709–729. [Google Scholar] [CrossRef]
- Tama, Y.S. Structural damages observed in state buildings after Simav/Turkey earthquake occurred on 19 May 2011. Nat. Hazards Earth Syst. Sci. 2012, 12, 2709–2718. [Google Scholar] [CrossRef]
- Dolce, M.; Goretti, A. Building damage assessment after the 2009 Abruzzi earthquake. Bull. Earthq. Eng. 2015, 13, 2241–2264. [Google Scholar] [CrossRef]
- Ozmen, H.B. Relation between the rapid evaluation method scores and the damage states of buildings. Nat. Hazards Earth Syst. Sci. 2013, 13, 763–770. [Google Scholar] [CrossRef]
- Ruggieri, S.; Cardellicchio, A.; Leggieri, V.; Uva, G. Machine-learning based vulnerability analysis of existing buildings. Autom. Constr. 2021, 132, 103936. [Google Scholar] [CrossRef]
- Zheng, R.; Xiong, C.; Deng, X.; Li, Q. Assessment of Earthquake Destructive Power to Structures Based on Machine Learning Methods. Appl. Sci. 2020, 10, 6210. [Google Scholar] [CrossRef]
- Baltzopoulos, G.; Baraschino, R.; Iervolino, I.; Vamvatsikos, D. SPO2FRAG: Software for seismic fragility assessment based on static pushover. Bull. Earthq. Eng. 2017, 15, 4399–4425. [Google Scholar] [CrossRef]
- Melani, A.; Khare, R.K.; Dhakal, R.P.; Mander, J.B. Seismic risk assessment of low rise RC frame structure. Structures 2016, 5, 13–22. [Google Scholar] [CrossRef]
- Biglari, M.; Formisano, A.; Davino, A. Seismic vulnerability assessment and fragility analysis of Iranian historical mosques in Kermanshah city. J. Build. Eng. 2021, 45, 103673. [Google Scholar] [CrossRef]
- Del, C.; Marco, G.; Ludovico, D.; Polese, M.; Manfredi, G.; Prota, A.; Ricci, P.; Verderame, G.M. Seismic Fragility for Italian RC Buildings Based on Damage Data of the Last 50 Years; Springer: Berlin/Heidelberg, Germany, 2019; ISBN 0123456789. [Google Scholar]
- Hapsari, I.R.; Sangadji, S.; Kristiawan, S.A. Seismic performance of four-storey masonry infilled reinforced concrete frame building. In MATEC Web of Conferences; EDP Sciences: Les Ulis, France, 2018; Volume 195, p. 02017. [Google Scholar]
- Erberik, M.A. Seismic Fragility. In Encyclopedia of Earthquake Engineering; Beer, M., Kougioumtzoglou, I.A., Patelli, E., Au, S.-K., Eds.; Springer: Heidelberg, Germany, 2015; ISBN 9783642353437. [Google Scholar]
- Kappos, A.J. Seismic damage indices for RC buildings: Evaluation of concepts and procedures. Prog. Struct. Eng. Mater. 1997, 1, 78–87. [Google Scholar] [CrossRef]
- Elenas, A.; Meskouris, K. Correlation study between seismic acceleration parameters and damage indices of structures. Eng. Struct. 2001, 23, 698–704. [Google Scholar] [CrossRef]
- Kostinakis, K.; Athanatopoulou, A.; Morfidis, K. Correlation between ground motion intensity measures and seismic damage of 3D R/C buildings. Eng. Struct. 2015, 82, 151–167. [Google Scholar] [CrossRef]
- Ohkubo, M. Current Japanese System on Seismic Capacity and Retrofit in Techniques for Existing Reinforced Concrete Buildings and Post-Earthquake Damage Inspection and Restoration Techniques; Department of Applied Mechanics & Engineering Sciences, University of California: San Diego, CA, USA, 1991. [Google Scholar]
- Nakano, Y.; Maeda, M.; Kuramoto, H.; Murakami, M. Guideline for post-earthquake damage evaluation and rehabilitation of RC buildings in Japan. In Proceedings of the 13th World Conference on Earthquake Engineering, Vancouver, BC, Canada, 1–6 August 2004; Volume 15. [Google Scholar]
- Maeda, M.; Al-Washali, H.; Matsukawa, K. An overview of post earthquake damage and residual capacity evaluation for reinforced concrete buildings in Japan. In Proceedings of the Pacific Conference on Earthquake Engineering, Auckland, New Zealand, 4–6 April 2019; Volume 1, pp. 930–943. [Google Scholar] [CrossRef]
- Hamid, N.H.A.; Mohamad, N.M. Seismic assessment of a full-scale double-storey residential house using fragility curve. Procedia Eng. 2013, 54, 207–221. [Google Scholar] [CrossRef][Green Version]
- Carrillo, J.; Alcocer, S.M. Backbone Model for Performance-Based Seismic Design of RC Walls for Low-Rise Housing. Earthq. Spectra 2012, 28, 943–964. [Google Scholar] [CrossRef]
- Carrillo, J.; Alcocer, S.M. Acceptance limits for performance-based seismic design of RC walls for low-rise housing. Earthq. Eng. Struct. Dyn. 2012, 41, 2273–2288. [Google Scholar] [CrossRef]
- Carrillo, J.; Dominguez, D.; Prado, N. Seismic Damage Index Based on Fractal Dimension of Cracking on Thin Reinforced Concrete Walls. ACI Struct. J. 2017, 114, 1649–1658. [Google Scholar] [CrossRef]
- Ning, N.; John, Z.; Zhang, P.; Yu, D.; Wang, J. Influence of masonry infills on seismic response of RC frames under low frequency cyclic load. Eng. Struct. 2019, 183, 70–82. [Google Scholar] [CrossRef]
- Ahmad, N.; Shahzad, A.; Ali, Q.; Rizwan, M. Seismic fragility functions for code compliant and non-compliant RC SMRF structures in Pakistan. Bull. Earthq. Eng. 2018, 16, 4675–4703. [Google Scholar] [CrossRef]
- Shiradhonkar, S.R.; Sinha, R. Validation of seismic damage states for reinforced concrete buildings. In Proceedings of the NCEE 2014-10th US National Conference on Earthquake Engineering: Frontiers of Earthquake Engineering, Anchorage, AK, USA, 21–25 July 2014. [Google Scholar] [CrossRef]
- Sohn, J.; Choi, I.; Kim, J. Development of limit states for seismic fragility assessment of piloti-type structures verified with observed damage data. Eng. Struct. 2022, 251, 113562. [Google Scholar] [CrossRef]
- Dimova, S.L.; Negro, P. Seismic assessment of an industrial frame structure designed according to Eurocodes. Part 2: Capacity and vulnerability. Eng. Struct. 2005, 27, 724–735. [Google Scholar] [CrossRef]
- Panagiotakos, T.B.; Fardis, M.N. Deformations of Reinforced Concrete Members at Yielding and Ultimate. ACI Struct. J. 2002, 98, 135–148. [Google Scholar]
- Park, Y.; Ang, A.H. Mechanistic seismic damage model for reinforced concrete. J. Struct. Eng. 1985, 111, 722–739. [Google Scholar] [CrossRef]
- Fu, G.; Liu, B. The Research on Modified Park-Ang Damage Model Based On Effective Energy Dissipation. Adv. Mater. Res. 2013, 742, 46–50. [Google Scholar] [CrossRef]
- Ang, A.H. Seismic damage assessment and basis for damage-limiting design. Probabilistic Eng. Mech. 1988, 3, 146–150. [Google Scholar] [CrossRef]
- Soleymani, A.; Safi, M. Correlations between Damage Indices and Seismic Parameters for Near-Field Earthquake Records. Civ. Eng. Dimens. 2015, 16, 75–86. [Google Scholar] [CrossRef]
- Milutinovic, Z.V.; Trendafiloski, G.S. RISK-EU an Advanced Approach to Earthquake Risk Scenarios with Applications to Different EUROPEAN Towns. WP4 Vulnerability Curr. Build. 2003. Available online: http://www.civil.ist.utl.pt/~mlopes/conteudos/DamageStates/Risk%20UE%20WP04_Vulnerability.pdf (accessed on 1 December 2021).
- Vargas, Y.F.; Pujades, L.G.; Barbat, A.H.; Hurtado, J.E. Incremental Dynamic Analysis and Pushover Analysis of Buildings. A Probabilistic Comparison. Comput. Methods Appl. Sci. 2013, 26, 293–308. [Google Scholar] [CrossRef]
- FEMA. Earthquake Loss Estimation Methodology, Hazus-MH 2.1. Advanced Engineering Building Module (AEBM), Technical and User’s Manual; FEMA: Washington, DC, USA, 2015. [Google Scholar]
- FEMA-NIBS. HAZUS Earthquake Model Technical Manual, Hazus 4.2 SP3; FEMA-NIBS: Ottawa, ON, Canada, 2020. [Google Scholar]
- Naderpour, H.; Mirrashid, M. A novel definition of damage states for structural elements in framed reinforced concrete buildings. J. Build. Eng. 2020, 32, 101479. [Google Scholar] [CrossRef]
- Applied Technology Council. FEMA P-58 Seismic Performance Assessment of Buildings; Applied Technology Council: Redwood City, CA, USA, 2018. [Google Scholar]
- Guo, J.; Wang, J.J.; Li, Y.; Zhao, W.G.; Du, Y.L. Three Dimensional Extension for Park and Ang Damage Model; Elsevier: Amsterdam, The Netherlands, 2016; Volume 7, pp. 184–194. [Google Scholar] [CrossRef]
- Cervenka, V.; Cervenka, J.; Pukl, R.; Sajdlova, T. Prediction of Shear Failure of Large Beams Based on Fracture Mechanics. In Proceedings of the 9th International Conference on Fracture Mechanis of Concrete and Concrete Structures FraMCoS-9, Prague, Czech Republic, 29 May 2016. [Google Scholar]
- Ahmed, A.; Shahzada, K. Seismic vulnerability assessment of confined masonry structures by macro-modeling approach. Structures 2020, 27, 639–649. [Google Scholar] [CrossRef]
- Do, A.; Livao, R.; Uluda, C.E.; Faculty, C.E.; Do, A.; Livao, R.; Do, A.; Uluda, C.E.; Faculty, C.E.; Do, A.; et al. Comparison and assessment of material models for simulation of infilled RC frames under lateral loads. Građevinar 2019, 71, 45–56. [Google Scholar]
- Saruddin, S.N.A.; Nazri, F.M. Fragility curves for low- and mid-rise buildings in Malaysia. Procedia Eng. 2015, 125, 873–878. [Google Scholar] [CrossRef]
- FEMA. Multi-Hazard Loss Estimation Methodology, Earthquake Model, Hazus–MH 2.1: Technical Manual; FEMA: Washington, DC, USA, 2012. [Google Scholar]
- Kircher, C.A.; Nassar, A.A.; Kustu, O.; Holmes, W.T. Development of building damage functions for earthquake loss estimation. Earthq. Spectra 1997, 13, 663–682. [Google Scholar] [CrossRef]
- Kakaletsis, D.J.; Karayannis, C.G. Experimental investigation of infilled reinforced concrete frames with openings. ACI Struct. J. 2009, 106, 132–141. [Google Scholar] [CrossRef]
- Applied Technology Council. ATC-40 Seismic Evaluation and Retrofit of Concrete Buildings; Applied Technology Council: Redwood City, CA, USA, 1996; Volume 1. [Google Scholar]
- Direktorat Bina Teknik PUPR Desain Spektra Indonesia. Available online: http://rsa.ciptakarya.pu.go.id/2021/index.php?pga=0.3489&ss=0.7974&s1=0.3863&tl=20&kelas=4&range=6#grafik (accessed on 1 December 2021).
- Badan Standarisasi Nasional. SNI 1726:2019 Tata Cara Perencanaan Ketahanan Gempa Untuk Struktur Bangunan Gedung Dan Nongedung; Badan Standarisasi Nasional: Jakarta, Indonesia, 2019. [Google Scholar]















| Design Level | Interstory Drift at Threshold of Damage State (%) | |||
|---|---|---|---|---|
| Slight | Moderate | Extensive | Complete | |
| High code | 0.0050 | 0.0100 | 0.0300 | 0.0800 |
| Medium code | 0.0050 | 0.0087 | 0.0233 | 0.0600 |
| Low code | 0.0050 | 0.0080 | 0.0200 | 0.0500 |
| Design Level | Story Drift Ratio of the Median Demand, θ and the Corresponding Fragility Parameters, β | |||||||
|---|---|---|---|---|---|---|---|---|
| Slight (DS1) | Moderate (DS2) | Extensive (DS3) | Complete (DS4) | |||||
| θ | β | θ | β | θ | β | θ | β | |
| High code | 0.0200 | 0.40 | 0.0275 | 0.30 | 0.0500 | 0.30 | 0.0500 | 0.30 |
| Medium code | 0.0200 | 0.40 | 0.0025 | 0.30 | 0.0035 | 0.30 | 0.0035 | 0.30 |
| Low code | 0.0175 | 0.40 | 0.0225 | 0.40 | 0.0322 | 0.40 | ||
| Mechanical Properties | Value |
|---|---|
| Compressive strength of concrete f’c | 28.51 MPa |
| Yield/tensile strength of longitudinal reinforcement fy/fu | 390/516 MPa/MPa |
| Yield/tensile strength of transverse reinforcement fy/fu | 212/321 MPa/MPa |
| Method | Δy (kN) | Δy (mm) | Δu (kN) | Δu (mm) | Δy/Δy * | Δy/Δu * |
|---|---|---|---|---|---|---|
| FE simulation | 35.00 | 6.40 | 41.00 | 26.55 | 1.00 | 1.00 |
| Reduced stiffness | 34.75 | 6.31 | 39.38 | 27.33 | 0.99 | 1.03 |
| Equivalent energy absorption | 34.37 | 6.21 | 39.38 | 27.33 | 0.97 | 1.03 |
| Engineering Parameter | Damage State | |||
|---|---|---|---|---|
| Slight | Medium | Extensive | Complete | |
| Spectral displacement (m) | 0.09 | 0.19 | 0.33 | 0.70 |
Publisher’s Note: MDPI stays neutral with regard to jurisdictional claims in published maps and institutional affiliations. |
© 2021 by the authors. Licensee MDPI, Basel, Switzerland. This article is an open access article distributed under the terms and conditions of the Creative Commons Attribution (CC BY) license (https://creativecommons.org/licenses/by/4.0/).
Share and Cite
Kristiawan, S.A.; Hapsari, I.R.; Purwanto, E.; Marwahyudi, M. Evaluation of Damage Limit State for RC Frame Based on FE Modeling. Buildings 2022, 12, 21. https://doi.org/10.3390/buildings12010021
Kristiawan SA, Hapsari IR, Purwanto E, Marwahyudi M. Evaluation of Damage Limit State for RC Frame Based on FE Modeling. Buildings. 2022; 12(1):21. https://doi.org/10.3390/buildings12010021
Chicago/Turabian StyleKristiawan, Stefanus Adi, Isyana Ratna Hapsari, Edy Purwanto, and Marwahyudi Marwahyudi. 2022. "Evaluation of Damage Limit State for RC Frame Based on FE Modeling" Buildings 12, no. 1: 21. https://doi.org/10.3390/buildings12010021
APA StyleKristiawan, S. A., Hapsari, I. R., Purwanto, E., & Marwahyudi, M. (2022). Evaluation of Damage Limit State for RC Frame Based on FE Modeling. Buildings, 12(1), 21. https://doi.org/10.3390/buildings12010021

