Design and Construction of a Radiochemistry Laboratory and cGMP-Compliant Radiopharmacy Facility
Abstract
1. Introduction
2. Results and Discussion
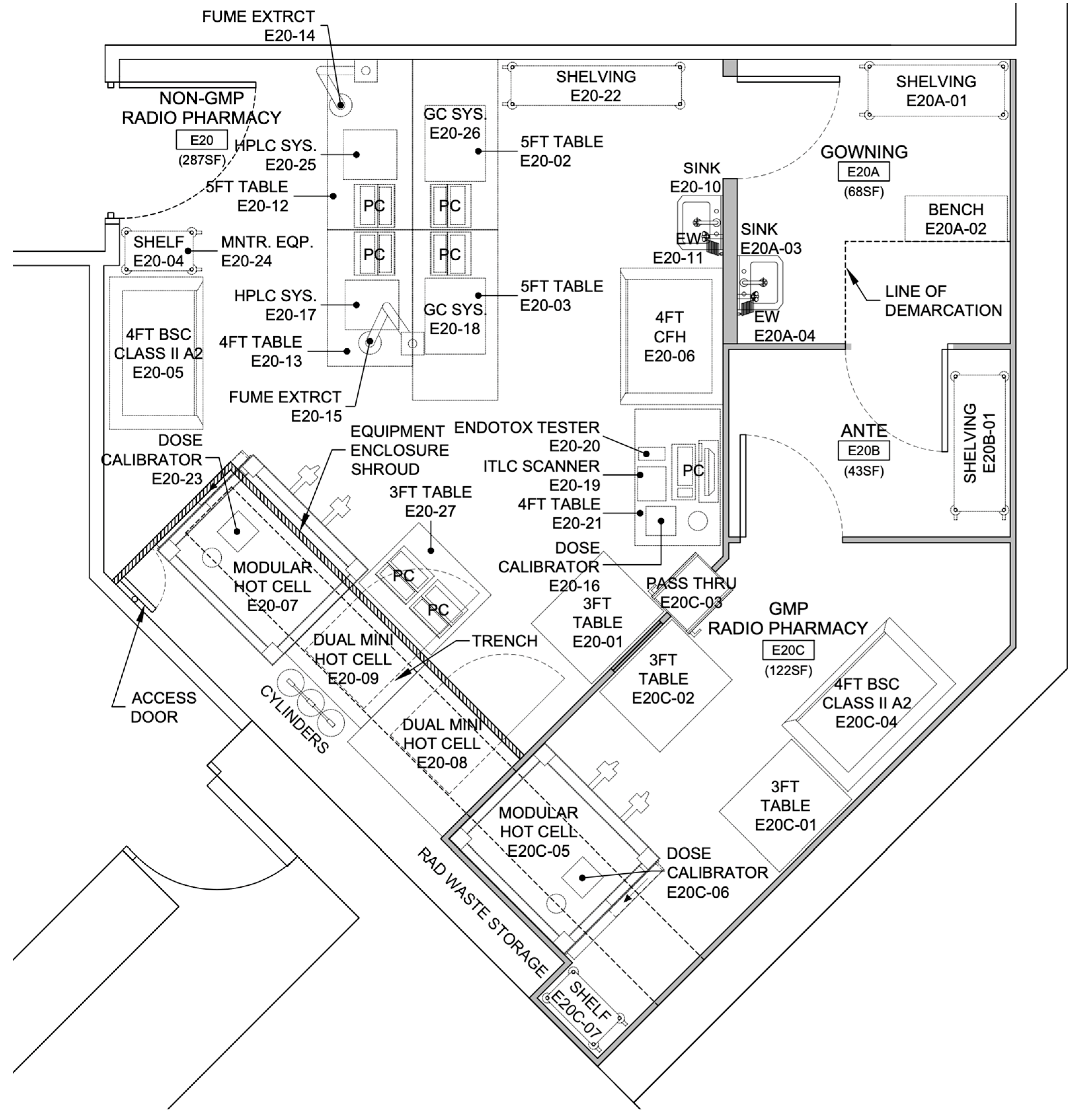
2.1. Facility Design
2.1.1. Basis of Design
Compliance
A cGMP Radiopharmacy (E20C) vs. a Non-cGMP Radiochemistry Lab (E20)
2.1.2. Hot Cells and the Radiochemistry Laboratory
2.1.3. Radiation Safety
Hot Cells
Trench
Laboratory Personnel Training
Radioactive Material Transfer and Documentation
Area Surveys
2.1.4. Air Quality Control
2.1.5. Temperature and Humidity Control
2.1.6. Challenges
2.2. Automated Synthesizer
2.3. Administrative Controls, Quality Control Procedures, and Compliance
2.4. Challenges, Limitations, and Future Directions
3. Materials and Methods
3.1. Equipment
3.1.1. Radiosynthesizer
3.1.2. Quality Control (QC)
3.1.3. Gas Supply
3.1.4. Biosafety Cabinet
3.1.5. Furniture in the Facility
3.1.6. Passthrough Hatch
3.1.7. Hot Cells in E20C and E20
3.1.8. Conduits through Trenches
3.1.9. Radiation Monitoring Equipment
4. Conclusions
Author Contributions
Funding
Data Availability Statement
Acknowledgments
Conflicts of Interest
References
- 21 CFR Part 212-Current Good Manufacturing Practice for Positron Emission Tomography Drugs. 2024. Available online: https://www.ecfr.gov/current/title-21/chapter-I/subchapter-C/part-212 (accessed on 21 April 2024).
- Bunning, S.; Ignace, C.; Mattmuller, S.; Schwarz, S.W.; Scott, P.J.; VanBrocklin, H.F.; Zigler, S.S. Proceedings: PET Drugs-A Workshop on Inspections Management and Regulatory Considerations. J. Nucl. Med. 2022, 63, 1117–1123. (In English) [Google Scholar] [CrossRef]
- Food and Drug Administration, HHS. Current good manufacturing practice for positron emission tomography drugs. Fed. Regist. 2009, 74, 65409–65436. (In English) [Google Scholar]
- Sterile Drug Products Produced by Aseptic Processing—Current Good Manufacturing Practice, Guidance for Industry. 2004. Available online: https://www.fda.gov/media/71026/download (accessed on 21 April 2024).
- 21 CFR Part 211-Current Good Manufacturing Practices for Finished Pharmaceuticals. 2024. Available online: https://www.ecfr.gov/current/title-21/chapter-I/subchapter-C/part-211 (accessed on 21 April 2024).
- 21 CFR 361.1-Radioactive Drug Research Committee (RDRC) Program. 2022. Available online: https://www.fda.gov/drugs/science-and-research-drugs/radioactive-drug-research-committee-rdrc-program#what (accessed on 21 April 2024).
- United States Pharmacopeia. General Chapter, <825> Radiopharmaceuticals-Preparation, Compounding, Dispensing and Repackaging; United States Pharmacopeia: Rockville, MD, USA, 2023. [Google Scholar]
- United States Pharmacopeia. General Chapter, <797> Pharmaceutical Compounding—Sterile Preparations; United States Pharmacopeia: Rockville, MD, USA, 2023. [Google Scholar]
- Allen, L.V. Basics of Sterile Compounding: Intravenous Admixture Preparation, Part 12: United States Pharmacopeia Chapters Referenced in the Current United States Pharmacopeia Chapter <797> Pharmaceutical Compounding—Sterile Preparations. Int. J. Pharm. Compd. 2021, 25, 491–496. (In English) [Google Scholar] [PubMed]
- United States Pharmacopeia. General Chapter, <823> Positron Emission Tomography Drugs for Compounding, Investigational, and Research Uses; United States Pharmacopeia: Rockville, MD, USA, 2024. [Google Scholar]
- Haji-Saeid, M.; Pillai, M.R.A. Cyclotron Produced Radionuclides: Guidance on Facility Design and Production of Fluorodeoxyglucose (FDG); International Atomic Energy Agency: Vienna, Austria, 2012. [Google Scholar]
- Pillai, M.R.A.; Haji-Saeid, M. Cyclotron Produced Radionuclides: Guidelines for Setting Up a Facility; International Atomic Energy Agency: Vienna, Austria, 2009. [Google Scholar]
- Abdullah, M.A.; Rashid, R.S.; Amran, M.; Hejazii, F.; Azreen, N.M.; Fediuk, R.; Voo, Y.L.; Vatin, N.I.; Idris, M.I. Recent Trends in Advanced Radiation Shielding Concrete for Construction of Facilities: Materials and Properties. Polymers 2022, 14, 2830. (In English) [Google Scholar] [CrossRef]
- Tyagi, G.; Singhal, A.; Routroy, S.; Bhunia, D.; Lahoti, M. Radiation Shielding Concrete with alternate constituents: An approach to address multiple hazards. J. Hazard. Mater. 2021, 404, 124201. (In English) [Google Scholar] [CrossRef]





| Shield Material | μ/ρ (cm2/g) | ρ (g/cm3) | μ (cm−1) | x1/2 (cm) |
|---|---|---|---|---|
| Air | 0.0636 | 0.001205 | 0.0000765 | N/A |
| Water | 0.0707 | 1.00 | 0.0707 | 9.91 |
| Concrete | 0.0637 | 2.25–2.40 | 0.143–0.152 | 4.57 |
| Steel (1% carbon) | 0.0599 | 7.83 | 0.469 | 1.52 |
| Lead | 0.0702 | 11.35 | 0.797 | 0.76 |
| SOP Title | Category | |
|---|---|---|
| 1 | Introduction and Overall Quality Manual | Responsibilities of Quality Control Unit |
| 2 | Operation and Maintenance of the HVAC System | Buildings and Facilities |
| 3 | Utility Shutdown | Buildings and Facilities |
| 4 | Periodic Facility Inspection | Buildings and Facilities |
| 5 | Door and Seals Operation and Maintenance | Buildings and Facilities |
| 5a | Door and Seals Inspection Checklist | Buildings and Facilities |
| 6 | Access Control | Buildings and Facilities |
| 7 | Environmental Monitoring System Operation and Maintenance | Buildings and Facilities |
| 8 | Facility Housekeeping and Warehouse Cleaning | Buildings and Facilities |
| 9 | Pest Control | Buildings and Facilities |
| 10 | Environmental Monitoring Program | Buildings and Facilities |
| 11 | Aseptic Processing Facility Design | Buildings and Facilities |
| 12 | QA Incoming Material Inspection Status Release | Control of Components, Containers, and Closures |
| 13 | Warehouse Receiving Incoming Material Inspection | Control of Components, Containers, and Closures |
| 14 | Raw Material Specifications and Test Methods | Control of Components, Containers, and Closures |
| 15 | Starting Material and Product Control | Control of Components, Containers, and Closures |
| 16 | Equipment Management | Equipment |
| 17 | Cleaning and Sanitation of Production Equipment | Equipment |
| 18 | Equipment Calibration | Equipment Qualification and Maintenance |
| 19 | Scale and Balance Calibration | Equipment Qualification and Maintenance |
| 20 | Equipment PM and Relocation | Equipment Qualification and Maintenance |
| 21 | Warehouse Storage Packaging Temp Control | Holding and Distribution |
| 22 | Order Holding, Distribution, Fulfillment, and Salvaging | Holding and Distribution |
| 23 | Lot and Expiration Date traceability | Holding and Distribution |
| 24 | Inventory Maintenance Cycle Count | Holding and Distribution |
| 25 | Sample Reserve Retention | Laboratory Controls |
| 26 | Laboratory Controls, if Applicable | Laboratory Controls |
| 27 | Stability Testing, if Applicable | Laboratory Controls |
| 28 | Packaging Production Overview | Packaging and Labeling Control |
| 29 | Employee Qualifications and Training | Personnel Qualifications |
| 30 | Signature Verification and Log | Personnel Qualifications |
| 31 | Protective Clothing and Personal Hygiene | Personnel Qualifications |
| 32 | Manufacturing Validation Procedure | Production and Process Controls |
| 33 | Master Validation Plan | Production and Process Controls |
| 34 | Process Validation and Verification Plan—IQ, OQ, PQ | Production and Process Controls |
| 35 | Documenting Line Clearance | Production and Process Controls |
| 36 | In Process Product Inspection Procedure | Production and Process Controls |
| 37 | Creating Production Batch Record | Production and Process Controls |
| 38 | Master Production Batch Record | Production and Process Controls |
| 39 | Non-Conformance CAPA Investigation | Production and Process Controls |
| 40 | Label Control and Development | Production and Process Controls |
| 41 | QA Review and Testing for Batch Release Process | Production and Process Controls |
| 42 | Packaging Production Overview | Production and Process Controls |
| 43 | Customer Invoices | Purchasing and Distribution |
| 44 | Purchasing | Purchasing and Distribution |
| 45 | Approved Supplier Qualification Process | Purchasing and Distribution |
| 46 | Vendor Quality Agreements | Purchasing and Distribution |
| 47 | Supplier Audit | Purchasing and Distribution |
| 48 | Internal Audit | Quality Assurance |
| 49 | Annual Product Review | Quality Assurance |
| 50 | Recall Notification and Mock Recall | Recall, Compliance, and Adverse Events |
| 51 | Product Status Recall forms | Recall, Compliance, and Adverse Events |
| 52 | Product Recall Record | Recall, Compliance, and Adverse Events |
| 53 | Complaint Register Form | Recall, Compliance, and Adverse Events |
| 54 | Consumer Complaint and Adverse Event Reporting | Recall, Compliance, and Adverse Events |
| 55 | Change Control | Records and Reports |
| 56 | Change Control Blank Form | Records and Reports |
| 57 | Document Control and Review | Records and Reports |
| 58 | Documentation Guidelines | Records and Reports |
| 59 | Process Deviation Notice Blank Form | Records and Reports |
| 60 | Record Retention—Control | Records and Reports |
| 61 | Formatting and Development Guidelines | Records and Reports |
| 62 | Specifications Controlled Documents | Records and Reports |
| 63 | IS control and Security | Records and Reports |
| Equipment | Test |
|---|---|
| High-Performance Liquid Chromatography (HPLC)/Radio-HPLC (1260 Infinity II Prime LC, Agilent, Santa Clara, CA, USA) | - Chemical purity; - Identity of radiopharmaceutical; - Identity of drug substance; - Radiochemical purity; - Molar activity |
| Thin Layer Chromatography (TLC)/Radio-TLC (AR-200, Eckert & Zeigler, Valencia, CA, USA) | - Chemical purity; - Identity of radiopharmaceutical; - Identity of drug substance; - Radiochemical purity |
| Gas Chromatography (GC, Agilent 7890B) | - Residual solvents |
| Endosafe Nexgen-PTS (Charles River Laboratories, Inc., Wilmington, MA, USA) | - Bacterial endotoxins/pyrogens |
| Dose Calibrators (three in the facility; CRC-25PET (E20C hot cell); CRC55T (E20 hot cell), and CRC-55TW with 1.5 inch lead-shielded Na-I well for swipe counting in E20 room) (Capintec, Florham Park, NJ, USA) | - Identity and purity of radionuclide (half-life); - Activity content; - Molar activity |
| Gamma-ray detector (M100 CdZnTe detector; H3D, Ann Arbor, MI, USA) with gamma-ray spectroscopy software (InterSpec, wcjohns@sandia.gov; Sandia National Laboratories; free download) | - Radionuclide identification and radionuclidic purity; - Required mixed gamma-ray calibration standard for energy and absolute efficiency calibrations |
| Chiral HPLC | - Enantiomeric excess |
Disclaimer/Publisher’s Note: The statements, opinions and data contained in all publications are solely those of the individual author(s) and contributor(s) and not of MDPI and/or the editor(s). MDPI and/or the editor(s) disclaim responsibility for any injury to people or property resulting from any ideas, methods, instructions or products referred to in the content. |
© 2024 by the authors. Licensee MDPI, Basel, Switzerland. This article is an open access article distributed under the terms and conditions of the Creative Commons Attribution (CC BY) license (https://creativecommons.org/licenses/by/4.0/).
Share and Cite
Asor, A.; Metebi, A.; Smith, K.; Last, K.; Strauss, E.; Fan, J. Design and Construction of a Radiochemistry Laboratory and cGMP-Compliant Radiopharmacy Facility. Pharmaceuticals 2024, 17, 680. https://doi.org/10.3390/ph17060680
Asor A, Metebi A, Smith K, Last K, Strauss E, Fan J. Design and Construction of a Radiochemistry Laboratory and cGMP-Compliant Radiopharmacy Facility. Pharmaceuticals. 2024; 17(6):680. https://doi.org/10.3390/ph17060680
Chicago/Turabian StyleAsor, Angela, Abdullah Metebi, Kylie Smith, Kurt Last, Elaine Strauss, and Jinda Fan. 2024. "Design and Construction of a Radiochemistry Laboratory and cGMP-Compliant Radiopharmacy Facility" Pharmaceuticals 17, no. 6: 680. https://doi.org/10.3390/ph17060680
APA StyleAsor, A., Metebi, A., Smith, K., Last, K., Strauss, E., & Fan, J. (2024). Design and Construction of a Radiochemistry Laboratory and cGMP-Compliant Radiopharmacy Facility. Pharmaceuticals, 17(6), 680. https://doi.org/10.3390/ph17060680

