Enhancing the Toughness of Composite Cold-Formed Steel Beams with ECC and Different Stiffener Arrangements and Shapes
Abstract
1. Introduction
2. FE Modeling and Verification
2.1. Development of Numerical Verification Models
2.2. Material Properties
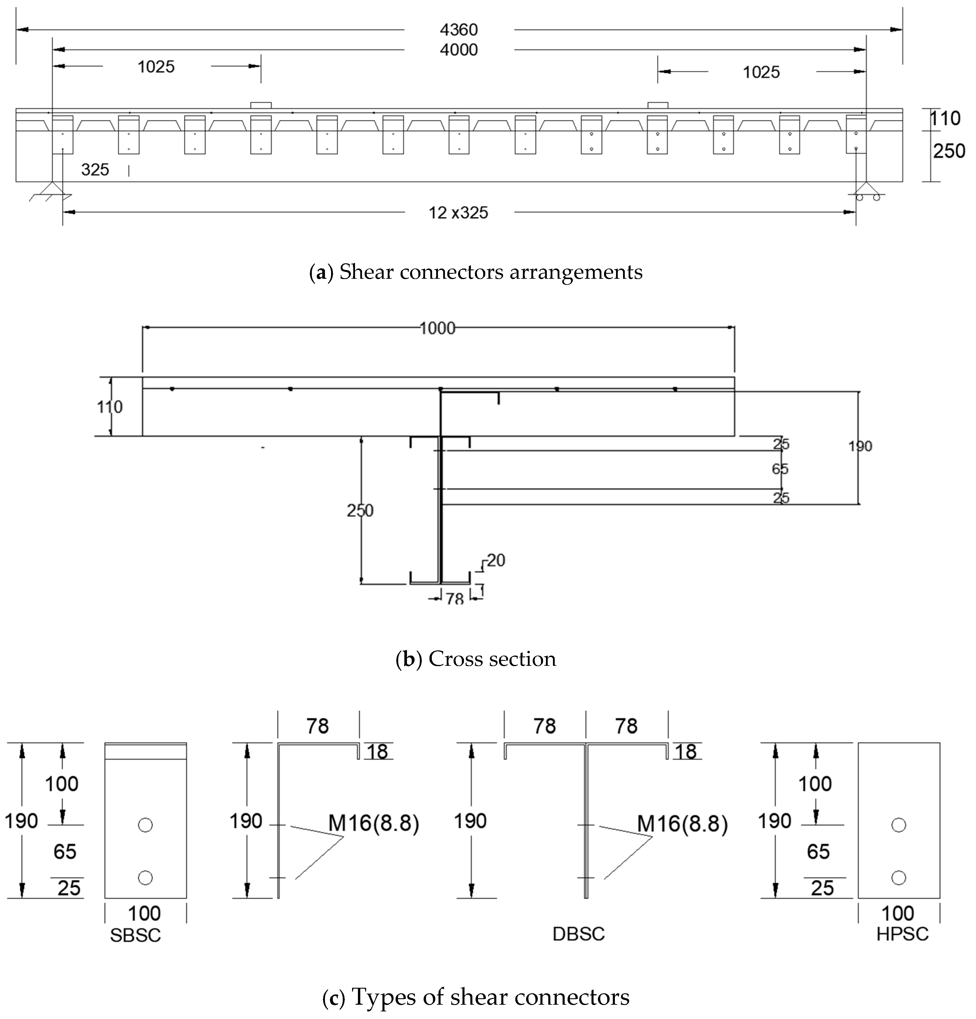
2.3. Geometry, Loading, and Boundary Condition
2.4. FE Meshing, Interaction, and Analysis Method
2.5. Results of Verified Models
3. Parametric Study
3.1. Group One
- DC series (double channels BTB);
- DS series (double sigma BTB);
- DO series (double omega BTB);
- DG series (double G BTB);
- DGi series (double G BTB with inverted lips);
- DSi series (double sigma BTB with inverted lips).
- OC is ordinary concrete followed by its thickness;
- ECC1, 2 and 3 are engineering cementitious composites.
- Thicknesses of 70, 90, 110, 130, 150, and 200 mm were studied.
- L6 and L11 are L-shaped stiffeners at 650 mm and 325 mm spacing, respectively;
- Tr6 and Tr11 are trapezoidal-shaped stiffeners at 650 mm and 325 mm spacing, respectively;
- C6 and C11 are channel-shaped stiffeners at 650 mm and 325 mm spacing, respectively;
- SH11 is an extended shear connector as a stiffener at 325 mm spacing.
3.1.1. Section Geometry
3.1.2. Concrete Type and Thickness
3.1.3. Type and Configurations of Proposed Stiffeners
3.1.4. Shear Connectors
3.2. Group Two
4. FE Results and Discussion
4.1. Failure Criteria
4.2. Load Deflection Relationship
4.2.1. Effect of Different CFS Configurations with Ordinary Concrete and ECC Slabs (110 mm)
4.2.2. Effect of the Thickness of Ordinary Concrete Slabs
4.2.3. Effect of the Configurations of Proposed Stiffeners
4.2.4. Effect of the Thickness of Shear Connectors
4.2.5. Effect of the Span-to-Depth Ratio
4.3. Toughness
4.3.1. Effect of Different CFS Configurations with Ordinary Concrete and ECC Slabs (110 mm)
4.3.2. Effect of the Configurations of Proposed Stiffeners
4.3.3. Effect of the Thickness of Ordinary Concrete Slabs
4.3.4. Effect of the Span to Depth Ratio
5. Conclusions
- The double-omega section with ordinary and ECC3 slabs exhibits the highest first peak loads (365.2 kN and 387.4 kN) and significant toughness increases (181.1% and 199.5%), demonstrating the omega design’s effectiveness in enhancing load capacity and toughness;
- Inverted-lip sections, like double G and sigma, show high peak loads (380.3 kN and 339.5 kN) and substantial toughness improvements (156.9% and 158.3%), highlighting the benefit of the inverted-lip feature for structural performance;
- The double-sigma section with ordinary concrete achieves a peak load of 251.5 kN and a toughness increase of 56.6%, indicating its effectiveness among ordinary concrete configurations;
- Trapezoidal stiffeners significantly improve toughness (73.8% and 78.1% for 650 mm and 325 mm configurations), demonstrating their role in enhancing load distribution and reducing deformation risk;
- Increasing the thickness of ordinary concrete slabs generally enhances toughness, with the 200 mm thickness achieving an 85.5% increase, underscoring the importance of adequate thickness for structural performance;
- Toughness values significantly vary with changes in span and span-to-depth ratio.
Author Contributions
Funding
Data Availability Statement
Acknowledgments
Conflicts of Interest
References
- Hsu, C.T.T.; Punurai, S.; Punurai, W.; Majdi, Y. New composite beams having cold-formed steel joists and concrete slab. Eng. Struct. 2014, 71, 187–200. [Google Scholar] [CrossRef]
- Lakkavalli, B.S.; Liu, Y. Experimental study of composite cold-formed steel C-section floor joists. J. Constr. Steel Res. 2006, 62, 995–1006. [Google Scholar] [CrossRef]
- Nguyen, R.P. Thin-Walled, Cold-Formed Steel Composite Beams. J. Struct. Eng. 1991, 117, 2936–2952. [Google Scholar] [CrossRef]
- Wehbe, N.; Bahmani, P.; Wehbe, A. Behavior of Concrete/Cold Formed Steel Composite Beams: Experimental Development of a Novel Structural System. Int. J. Concr. Struct. Mater. 2013, 7, 51–59. [Google Scholar] [CrossRef]
- Irwan, J.M.; Hanizah, A.H.; Azmi, I. Test of shear transfer enhancement in symmetric cold-formed steel–concrete composite beams. J. Constr. Steel Res. 2009, 65, 2087. [Google Scholar] [CrossRef]
- Irwan, J.; Hanizah, A.; Azmi, I.; Koh, H. Large-scale test of symmetric cold-formed steel (CFS)–concrete composite beams with BTTST enhancement. J. Constr. Steel Res. 2011, 67, 720–726. [Google Scholar] [CrossRef]
- Bamaga, S.O.; Tahir, M.M.; Tan, C.S.; Shek, P.N.; Aghlara, R. Push-out tests on three innovative shear connectors for composite cold-formed steel concrete beams. Constr. Build. Mater. 2019, 223, 288–298. [Google Scholar] [CrossRef]
- Bamaga, S.O.; Tahir, M.M.; Ngian, S.P.; Mohamad, S.; Sulaiman, A.; Aghlara, R. Structural behaviour of cold-formed steel of double c-lipped channel sections integrated with concrete slabs as composite beams. Lat. Am. J. Solids Struct. 2019, 16, e195. [Google Scholar] [CrossRef]
- Ma, D.; Rasmussen, K.J.R.; Zhang, H. Test and design of cold-formed steel closed built-up beams with double sigma sections and triple lipped channel sections. Thin-Walled Struct. 2023, 192, 111192. [Google Scholar] [CrossRef]
- Rahnavard, R.; Craveiro, H.D.; Simões, R.A.; Santiago, A.; Laím, L.; Gardner, L. Built-Up Cold-Formed Steel-Lightweight Concrete (CFS-LWC) Composite Beams Subjected to Elevated Temperatures. Ce/Papers 2024, 7, 202–208. [Google Scholar] [CrossRef]
- Rohola, R.; Hélder, C.; Rui, S.; Shahabeddin, T.; Benjamin, S. Understanding the Behavior of Built-Up Cold-Formed Steel Lightweight Concrete (CFS-LWC) Composite Beams. Available online: https://www.researchgate.net/publication/379155554 (accessed on 19 March 2024).
- Rahnavard, R.; Craveiro, H.D.; Simões, R. Flexural resistance of Cold-formed steel-lightweight concrete (CFS-LWC) composite beam. Ce/Papers 2023, 6, 176–180. [Google Scholar] [CrossRef]
- Ataei, A.; Mahmoudy, S.A.; Zeynalian, M.; Chiniforush, A.A.; Ngo, T.D. Experimental study of innovative bolted shear connectors in demountable cold-formed steel–concrete composite beams. Thin-Walled Struct. 2023, 192, 111116. [Google Scholar] [CrossRef]
- Karimipanah, A.; Zeynalian, M.; Ataei, A. A numerical study on a novel demountable cold-formed steel composite beam with profiled steel sheeting. Thin-Walled Struct. 2024, 199, 111812. [Google Scholar] [CrossRef]
- Ataei, A.; Mahmoudy, S.A. Modeling of innovative bolted shear connectors in demountable cold-formed steel-concrete composite beams: Validation of finite element model and parametric study. J. Build. Eng. 2024, 95, 110076. [Google Scholar] [CrossRef]
- Lee, C.; Bae, B.; Lee, K.; Kim, T. Experimental study on shear performance of composite beam using lipped channels. Structures 2024, 70, 107707. [Google Scholar] [CrossRef]
- Rajić, A.; Lukačević, I.; Skejić, D.; Ungureanu, V. Cold-formed Steel-Concrete Composite Beams with Back-to-Back Channel Sections in Bending. Civ. Eng. J. 2023, 9, 2345–2369. [Google Scholar] [CrossRef]
- Žuvelek, V.; Curkovic, I.; Lukačević, I.; Rajić, A.; Ćurković, I. Numerical Study of the Behavior of the Bolted Shear Connection in Cold-Formed Steel-Concrete Composite beam. Available online: https://www.researchgate.net/publication/364393105 (accessed on 20 October 2022).
- Majdi, Y.; Hsu, C.T.T.; Zarei, M. Finite element analysis of new composite floors having cold-formed steel and concrete slab. Eng. Struct. 2014, 77, 65–83. [Google Scholar] [CrossRef]
- Alhajri, T.M.; Tahir, M.M.; Azimi, M.; Mirza, J.; Lawan, M.; Alenezi, K.; Ragaee, M. Behavior of pre-cast U-Shaped Composite Beam integrating cold-formed steel with ferro-cement slab. Thin-Walled Struct. 2016, 102, 18–29. [Google Scholar] [CrossRef]
- Mahmoud, N.S.; Abd-rabou, S.E.M.; Ghannam, M.; Abdel-kader, A.A. Experimental and Theoretical Study of Composite Cold Formed SteelConcrete Beams. Int. J. Sci. Eng. Res. 2019, 7, 1–10. [Google Scholar]
- Mahmoud, N.S.; El-Deen, S.; Abd-Rabou, M.; Ghannam, M.; Abdel-Kader, A.A. Proposed Formula for Shear Resistance of Innovative Shear Connector between Cold Formed Steel Section and Concrete. MEJ-Mansoura Eng. J. 2020, 43, 7–19. [Google Scholar]
- Lukačević, I.; Ćurković, I.; Rajić, A.; Čudina, I. Innovative Lightweight Cold-Formed Steel-Concrete Composite Floor System–LWT-FLOOR project. IOP Conf. Ser. Mater. Sci. Eng. 2021, 1203, 032078. [Google Scholar] [CrossRef]
- Ćurković, I.; Lukačević, I.; Žuvelek, V.; Rajić, A. Numerical Investigation of Shear Connection in Cold-formed Steel-concrete Composite Beam. Ce/Papers 2022, 5, 847–856. [Google Scholar] [CrossRef]
- Leal, L.A.A.d.S.; Batista, E.d.M. Composite floor system with cold-formed trussed beams and prefabricated concrete slab Selected and extended contribution of SDSS 2019. Steel Constr. 2020, 13, 12–21. [Google Scholar] [CrossRef]
- Laím, L.; Rodrigues, J.P.C.; Craveiro, H.D. Flexural behaviour of beams made of cold-formed steel sigma-shaped sections at ambient and fire conditions. Thin-Walled Struct. 2015, 87, 53–65. [Google Scholar] [CrossRef]
- Yılmaz, Y.; Öztürk, F.; Demir, S. Buckling behavior of cold-formed steel sigma and lipped channel section beam-columns: Experimental and numerical investigation. J. Constr. Steel Res. 2024, 214, 108456. [Google Scholar] [CrossRef]
- Laím, L.; Rodrigues, J.P.C. Flexural Behaviour of Cold-Formed Steel Beams in Fire Situation. Rev. Estrut. Aço 2015, 4, 73. [Google Scholar] [CrossRef]
- Liu, Q.; Yang, J.; Chan, A.H.C.; Li, L.-Y. Pseudo-plastic moment resistance of continuous beams with cold-formed sigma sections at internal supports: A numerical study. Thin-Walled Struct. 2011, 49, 1592–1604. [Google Scholar] [CrossRef]
- Yang, J.; Luo, K.; Wang, W.; Shi, Y.; Li, H. Research on the flexural buckling behavior of the cold-formed steel back-to-back built-up columns with Σ-section. Eng. Struct. 2024, 302, 117404. [Google Scholar] [CrossRef]
- Anbarasu, M. Simulation of flexural behaviour and design of cold-formed steel closed built-up beams composed of two sigma sections for local buckling. Eng. Struct. 2019, 191, 549–562. [Google Scholar] [CrossRef]
- Szewczak, I.; Rzeszut, K.; Rozylo, P. Structural behaviour of steel cold-formed sigma beams strengthened with bonded steel tapes. Thin-Walled Struct. 2021, 159, 107295. [Google Scholar] [CrossRef]
- Elbacklesh, T.A.; Khalil, N.N.; El-Shenawy, I.M.; Abou-Rayan, A.M. Flexural behavior of cold-formed steel I-beams strengthened in the web with different materials. J. Constr. Steel Res. 2024, 223, 109083. [Google Scholar] [CrossRef]
- ABAQUS Software; ABAQUS/CAE 2020: A Computer Software for Finite Element Analysis; Dassault Syst Simulia: Johnston, RI, USA, 2019.
- EN 1992-1-1; Eurocode 2: Design of Concrete Structures-Part 1–1: General Rules and Rules for Buildings. British Standard Institution: London, UK, 2005; Volume 668, pp. 659–668.
- Le, K.B.; Van Cao, V. Numerical study of circular concrete filled steel tubes subjected to pure torsion. Buildings 2021, 11, 397. [Google Scholar] [CrossRef]
- Beck, J.; Kiyomiya, O. Fundemental Pure Torsional Properties of Concrete Filled Circular Steel Tubes. Doboku Gakkai Ronbunshu 2003, 2003, 285–296. [Google Scholar] [CrossRef] [PubMed]
- Li, G.; Chen, B.; Yang, Z.; Feng, Y. Experimental and numerical behaviour of eccentrically loaded high strength concrete filled high strength square steel tube stub columns. Thin-Walled Struct. 2019, 127, 483–499. [Google Scholar] [CrossRef]
- Winful, D.; Cashell, K.A.; Afshan, S.; Barnes, A.M.; Pargeter, R.J. Behaviour of high strength steel columns under fire conditions. J. Constr. Steel Res. 2018, 150, 392–404. [Google Scholar] [CrossRef]
- Emara, M.; Elsamak, G.; Ghalla, M.; Hu, J.W.; Badawi, M.; Salama, M.I. Shear improvement of defected RC beams with sustainable aluminum boxes incorporating high performance concretes. Case Stud. Constr. Mater. 2024, 21, e03500. [Google Scholar] [CrossRef]
- Carreira, D.J.; Chu, K.-H. Stress-strain relationship for plain concrete in compression. J. Proc. 1985, 82, 797–804. [Google Scholar]
- Jabbar, A.M.; Al-Zuheriy, A.S.J.; Hasan, Q.A. A numerical investigation of the structural behavior of reinforced concrete beams fully or partially encased with UHPC layers in flexure. Structures 2024, 70, 107706. [Google Scholar] [CrossRef]
- Mohammed, T.A.; Abebe, S. Numerical investigation of steel-concrete composite (SCC) beam subjected to combined blast-impact loading. Heliyon 2022, 8, e10672. [Google Scholar] [CrossRef]
- Chen, F.; Yu, Z.; Yu, Y.; Liu, Q. Study on the bond-slip numerical simulation in the analysis of reinforced concrete wall-beam-slab joint under cyclic loading. Constr. Build. Mater. 2024, 449, 138266. [Google Scholar] [CrossRef]
- Hason, M.M.; Al-Janabi, M.A.Q. Behavior of zero cement reinforced concrete slabs under monotonic and impact loads: Experimental and numerical investigations. Case Stud. Constr. Mater. 2024, 21, e03789. [Google Scholar] [CrossRef]
- El-Mandouh, M.A.; Hu, J.W.; Shim, W.S.; Abdelazeem, F.; Elsamak, G. Torsional Improvement of RC Beams Using Various Strengthening Systems. Buildings 2022, 12, 1776. [Google Scholar] [CrossRef]
- Hamoda, A.; Emara, M.; Ahmed, M.; Abadel, A.A.; Patel, V.I. Flexural Behavior of Precast Rectangular Reinforced Concrete Beams with Intermediate Connection Filled with High-Performance Concrete. Buildings 2024, 14, 2823. [Google Scholar] [CrossRef]
- Rahnavard, R.; Razavi, M.; Fanaie, N.; Craveiro, H.D. Evaluation of the composite action of cold-formed steel built-up battened columns composed of two sigma-shaped sections. Thin-Walled Struct. 2022, 183, 110390. [Google Scholar] [CrossRef]
- Zhu, L.; Wang, J.-J.; Li, X.; Tang, L.; Yu, B.-Y. Experimental and Numerical Study of Curved SFRC and ECC composite beams with Various Connectors. Thin-Walled Struct. 2020, 155, 106938. [Google Scholar] [CrossRef]
- Nie, X.; Duan, L.; Zhuang, L.; Ding, R.; Fan, J. Experimental and numerical study on steel-concrete composite frames with engineered cementitious composites. Eng. Struct. 2022, 265, 114489. [Google Scholar] [CrossRef]
- Fan, J.; Gou, S.; Ding, R.; Zhang, J.; Shi, Z. Experimental and analytical research on the flexural behaviour of steel–ECC composite beams under negative bending moments. Eng. Struct. 2020, 210, 110309. [Google Scholar] [CrossRef]
- Lee, C.K.; Khan, M.K.I.; Zhang, Y.X.; Rana, M.M. Engineered cementitious composites (ECC) encased concrete-steel composite stub columns under concentric compression. Structures 2020, 24, 386–399. [Google Scholar] [CrossRef]
- Ji, J.; Zhang, Z.; Lin, M.; Li, L.; Jiang, L.; Ding, Y.; Yu, K. Structural application of engineered cementitious composites (ECC): A state-of-the-art review. Constr. Build. Mater. 2023, 406, 133289. [Google Scholar] [CrossRef]
- Nawar, M.T.; Selim, M.; Zaghlal, M.; El-Zohairy, A.; Emara, M. Performance of GFRP-Confined Rubberized Engineered Cementitious Composite Columns. J. Compos. Sci. 2024, 8, 330. [Google Scholar] [CrossRef]
- Zhou, J.; Pan, J.; Leung, C.K.Y. Mechanical Behavior of Fiber-Reinforced Engineered Cementitious Composites in Uniaxial Compression. J. Mater. Civ. Eng. 2015, 27, 0001034. [Google Scholar] [CrossRef]
- Divya, M.; Kumar, R.S.; George, P.; Jayabalan, P.; Tsavdaridis, K.D.; Bahurudeen, A. Development of novel shear connectors for cold-formed steel concrete composite beams. Constr. Build. Mater. 2023, 387, 131644. [Google Scholar] [CrossRef]
- Yu, W.-W. AISI-Specifications for the Design of Cold-Formed Steel Structural Members. 2016. Available online: https://scholarsmine.mst.edu/ccfss-aisi-spechttps://scholarsmine.mst.edu/ccfss-aisi-spec/197 (accessed on 1 October 2016).




























| Dilation Angle (Ψ) | Eccentricity (ε) | (σb0/σc0) | k | Parameter Viscosity μ |
|---|---|---|---|---|
| 56 | 0.05 | 1.16 | 0.667 | 0 |
| Modal Annotation | Peak Load (kN) | Deflection at Peak (mm) | Maximum Deflection (mm) | ||||||
|---|---|---|---|---|---|---|---|---|---|
| EXP. | FE | Diff. % | EXP. | FE | Diff. % | EXP. | FE | Diff. % | |
| FSSBSC250-23 | 187.7 | 215.8 | 14.9 | 34.2 | 30.7 | −10.2 | 37.1 | 50.4 | 35.8 |
| FSHPSC250-23 | 194.07 | 225.1 | 15.9 | 38.4 | 34.6 | −9.8 | 40.2 | 40.5 | 0.74 |
| FSSC250-23 | 71 | 75.2 | 5.9 | 20 | 20.5 | 2.5 | 20 | 20.5 | 2.5 |
| No. | Model Notation | No. | Model Notation |
|---|---|---|---|
| 1 | DS-OC-110 | 17 | DC-OC-130 |
| 2 | DO-OC-110 | 18 | DC-OC-150 |
| 3 | DG-OC-110 | 19 | DC-OC-200 |
| 4 | DGi-OC-110 | 20 | DC-OC-110-L6-2.3 |
| 5 | DSi-OC-110 | 21 | DC-OC-110-L11-2.3 |
| 6 | DC-OC-110 | 22 | DC-OC-110-C6-2.3 |
| 7 | DC-ECC1-110 | 23 | DC-OC-110-C11-2.3 |
| 8 | DC-ECC2-110 | 24 | DC-OC-110-TR6-2.3 |
| 9 | DC-ECC3-110 | 25 | DC-OC-110-TR11-2.3 |
| 10 | DS-ECC3-110 | 26 | DC-OC-110-TR11-1 |
| 11 | DG-ECC3-110 | 27 | DC-OC-110-TR11-2 |
| 12 | DO-ECC3-110 | 27 | DC-OC-110-TR11-3 |
| 13 | DGi-ECC3-110 | 29 | DC-OC-110-SH11-1.5 |
| 14 | DSi-ECC3-110 | 30 | DC-OC-110-SH11-1 |
| 15 | DC-OC-70 | 31 | DC-OC-110-SH11-2 |
| 16 | DC-OC-90 | 32 | DC-OC-110-SH11-3 |
| Maximum Compressive Strength | Maximum Tensile Strength | |
|---|---|---|
| ECC1 | 28 | 4 |
| ECC2 | 28 | 8 |
| ECC3 | 55.8 | 4.2 |
| NO | Group Two | |||
|---|---|---|---|---|
| Model Notation | CFSB | |||
| Span-to-Depth Ratio (L/D) | Length mm | Depth mm | ||
| 1 | DC-3-8 | 8 | 3000 | 375 |
| 2 | DC-4-8 | 4000 | 500 | |
| 3 | DC-6-8 | 6000 | 750 | |
| 4 | DC-3-10 | 10 | 3000 | 300 |
| 5 | DC-4-10 | 4000 | 400 | |
| 6 | DC-6-10 | 6000 | 600 | |
| 7 | DC-3-16 | 16 | 3000 | 187.5 |
| 8 | DC-4-16 | 4000 | 250 | |
| 9 | DC-6-16 | 6000 | 375 | |
| 10 | DC-3-20 | 20 | 3000 | 150 |
| 11 | DC-4-20 | 4000 | 200 | |
| 12 | DC-6-20 | 6000 | 300 | |
| Beams | First Peak Load (kN) | Deflection at Peak (mm) | Max Deflection (mm) | Toughness (kN·mm) | Percentage of Increase or Decrese in Toughness |
|---|---|---|---|---|---|
| DC-OC-110 | 221.3 | 33.3 | 68.1 | 11,153.5 | 0 |
| DS-OC-110 | 251.5 | 56.5 | 83.1 | 17,462 | 56.6 |
| DG-OC-110 | 226 | 33.6 | 72.8 | 12,613.8 | 13.1 |
| DO-OC-110 | 365.2 | 75.3 | 101.6 | 31,351.8 | 181.1 |
| DGi-OC-110 | 380.3 | 80 | 100 | 28,652 | 156.9 |
| DSi-OC-110 | 339.5 | 51.4 | 100.4 | 28,812.8 | 158.3 |
| DC-ECC1-110 | 224.3 | 33.7 | 68.2 | 11,542.1 | 3.5 |
| DC-ECC2-110 | 222.7 | 32.7 | 73.4 | 12,567.7 | 12.7 |
| DC-ECC3-110 | 227.5 | 34.5 | 77.2 | 13,600.74 | 22 |
| DS-ECC3-110 | 262 | 46.1 | 82.9 | 17,991.5 | 61.4 |
| DG-ECC3-110 | 229.3 | 34.1 | 73 | 12,991.14 | 16.5 |
| DO-ECC3-110 | 387.4 | 74.4 | 102 | 33,399.8 | 199.5 |
| DGi-ECC3-110 | 400.7 | 77.8 | 100.1 | 32,449.6 | 191 |
| DSi-ECC3-110 | 384 | 79.8 | 101 | 32,752.2 | 193.7 |
| DC-OC-70 | 187.6 | 31.4 | 50.3 | 5938.1 | −46.8 |
| DC-OC-90 | 216.7 | 34.0 | 50.6 | 7707.9 | −30.9 |
| DC-OC-110 | 221.3 | 33.3 | 68.1 | 11,153.5 | 0 |
| DC-OC-130 | 229.6 | 35.7 | 68.2 | 11,806.5 | 5.8 |
| DC-OC-150 | 258.9 | 34.6 | 75.3 | 15,460.63 | 38.6 |
| DC-OC-200 | 332.5 | 34.03 | 75.2 | 20,690.6 | 85.5 |
| DC-OC-110-L6-2.3 | 236.6 | 39.5 | 71 | 12,323 | 10.5 |
| DC-OC-110-L11-2.3 | 236.7 | 38.8 | 73.2 | 12,981.2 | 16.4 |
| DC-OC-110-C6-2.3 | 262.6 | 52.6 | 78.8 | 15,181.8 | 36.1 |
| DC-OC-110-C11-2.3 | 260.1 | 49.8 | 79 | 15,600.9 | 39.9 |
| DC-OC-110-TR6-2.3 | 260.5 | 52.3 | 93.5 | 19,384.4 | 73.8 |
| DC-OC-110-TR11-2.3 | 263.5 | 53.1 | 94.7 | 19,866.6 | 78.1 |
| DC-OC-110-TR11-1 | 263.5 | 53.1 | 121.1 | 15,250.5 | 36.7 |
| DC-OC-110-TR11-2 | 237.4 | 50.1 | 142.1 | 16,888.0 | 51.4 |
| DC-OC-110-TR11-3 | 264.1 | 52.9 | 99.8 | 21,223.7 | 90.2 |
| DC-OC-110-SH11-1 | 218.9 | 33.9 | 71.1 | 6237.9 | −44 |
| DC-OC-110-SH11-1.5 | 151.8 | 32.3 | 58.7 | 11,153.5 | 0 |
| DC-OC-110-SH11-2 | 247.1 | 32.9 | 77.9 | 15,060.5 | 35 |
| DC-OC-110-SH11-3 | 290.7 | 40.6 | 77.2 | 18,247.3 | 63.6 |
| DC-3-8 | 327.3 | 10.1 | 18.5 | 4609.8 | - |
| DC-4-8 | 362.4 | 16.3 | 35.8 | 10,426.6 | - |
| DC-6-8 | 320 | 16.7 | 16.7 | 3197.3 | - |
| DC-3-10 | 269.5 | 10.8 | 44.1 | 8609.8 | - |
| DC-4-10 | 249.0 | 14.6 | 36.4 | 7187.8 | - |
| DC-6-10 | 355.7 | 31.5 | 31.5 | 7130.7 | - |
| DC-3-16 | 199.6 | 23.9 | 52.2 | 7818.0 | - |
| DC-4-16 | 221.3 | 33.3 | 68.1 | 11,153.5 | - |
| DC-6-16 | 221.7 | 43.4 | 44.1 | 6084 | - |
| DC-3-20 | 158.2 | 30.8 | 104.8 | 7895.8 | - |
| DC-4-20 | 153.8 | 42.2 | 84 | 9707.9 | - |
| DC-6-20 | 190.1 | 64.1 | 65.3 | 7951.6 | - |
Disclaimer/Publisher’s Note: The statements, opinions and data contained in all publications are solely those of the individual author(s) and contributor(s) and not of MDPI and/or the editor(s). MDPI and/or the editor(s) disclaim responsibility for any injury to people or property resulting from any ideas, methods, instructions or products referred to in the content. |
© 2025 by the authors. Licensee MDPI, Basel, Switzerland. This article is an open access article distributed under the terms and conditions of the Creative Commons Attribution (CC BY) license (https://creativecommons.org/licenses/by/4.0/).
Share and Cite
Nawar, M.T.; Silem, O.A.; Ibrahim, I.; Maaly, H.M.; Ibrahim, Y.E. Enhancing the Toughness of Composite Cold-Formed Steel Beams with ECC and Different Stiffener Arrangements and Shapes. J. Compos. Sci. 2025, 9, 24. https://doi.org/10.3390/jcs9010024
Nawar MT, Silem OA, Ibrahim I, Maaly HM, Ibrahim YE. Enhancing the Toughness of Composite Cold-Formed Steel Beams with ECC and Different Stiffener Arrangements and Shapes. Journal of Composites Science. 2025; 9(1):24. https://doi.org/10.3390/jcs9010024
Chicago/Turabian StyleNawar, Mahmoud T., Ola A. Silem, Ishac Ibrahim, Hassan M. Maaly, and Yasser E. Ibrahim. 2025. "Enhancing the Toughness of Composite Cold-Formed Steel Beams with ECC and Different Stiffener Arrangements and Shapes" Journal of Composites Science 9, no. 1: 24. https://doi.org/10.3390/jcs9010024
APA StyleNawar, M. T., Silem, O. A., Ibrahim, I., Maaly, H. M., & Ibrahim, Y. E. (2025). Enhancing the Toughness of Composite Cold-Formed Steel Beams with ECC and Different Stiffener Arrangements and Shapes. Journal of Composites Science, 9(1), 24. https://doi.org/10.3390/jcs9010024

