Physical Spaces in Higher Education as Scenarios of Learning Innovation: Compositional and Formative Synergies among Architecture, Music, and Fashion
Abstract
1. Introduction
1.1. Higher Education: Models through History
1.2. Learning Innovation and Architecture
1.3. Learning as a Spatial Experience: Interaction with the Environment
2. Materials and Methods
2.1. Conceptual Materials: Synergies among Architecture, Music, and Fashion
2.2. Conceptual Materials: Learning Innovation and Physical Space
2.3. Qualitative Methodology: Description and Justification. A Comprehensive Approach to Learning Synergies among Architecture, Music, and Fashion
2.4. Qualitative Methodology: The Case Study Applications
3. Results
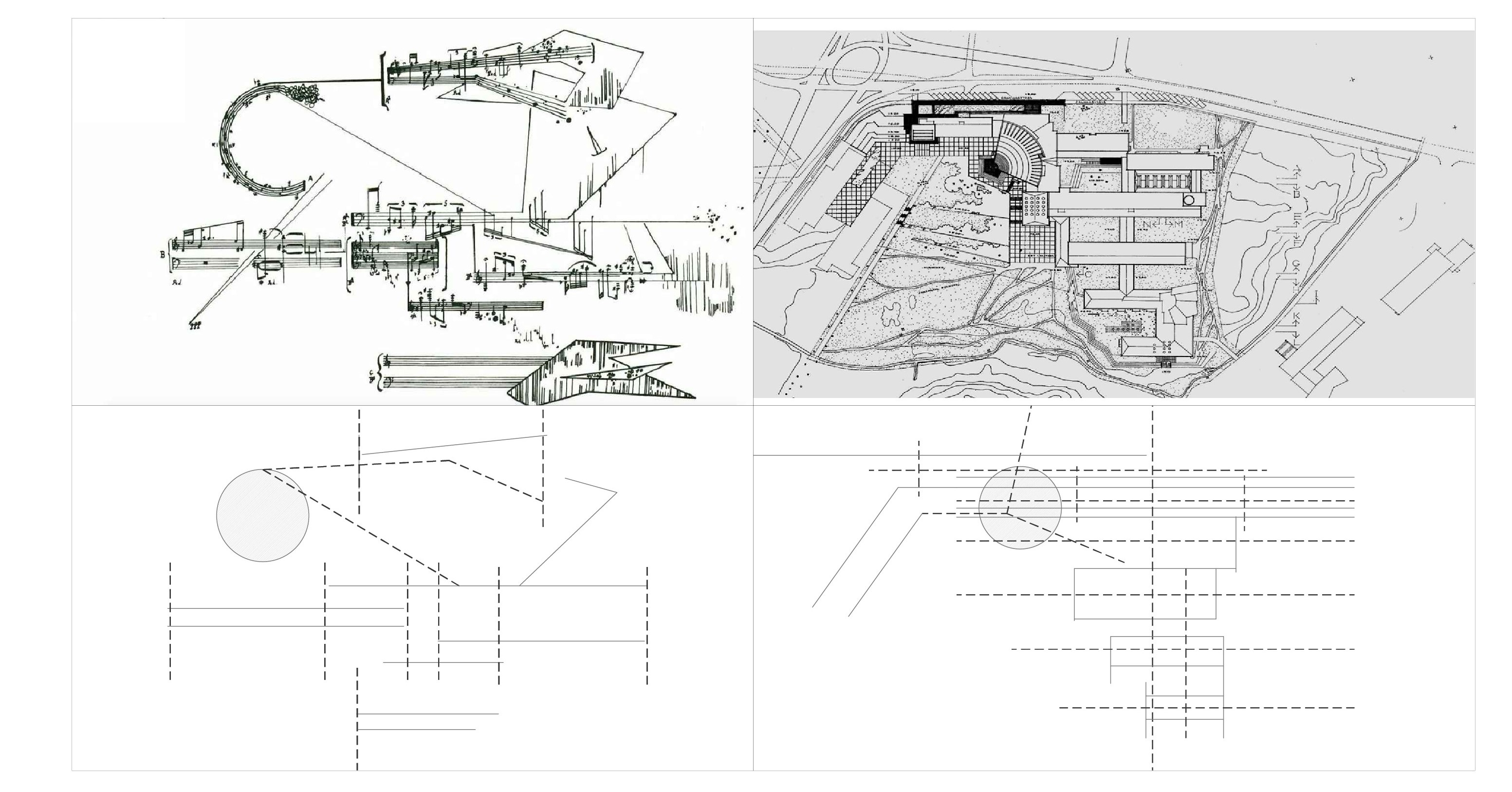
3.1. Musical Composition and Its Potential Influence As an Inspiration Resource for the Innovative Design of Spaces for Human Formation. A Qualitative Methodological Approach
3.1.1. Expressive Compositional Trend
3.1.2. Morphological Compositional Trend
- Relevant contemporary illustrations (campuses): outcomes of the qualitative methodology approach.
3.1.3. Illinois Institute of Technology Campus (Chicago, IL, USA)
3.1.4. Aalto University Campus (Espoo, Finland)
3.1.5. Free University of Berlin Campus (Berlin, Germany)
3.2. The Social Projection of Fashion and Its Potential Influence as an Inspiration Resource for the Innovative Use of Urban Spaces for Human Education. A Qualitative Methodological approach
3.2.1. Relevant Illustrations (Catwalks): Outcomes of the Qualitative Methodology Approach
3.2.2. Student Urban Catwalk at the Conde Duque Cultural Centre (Madrid, Spain)
3.2.3. Student Urban Catwalk at the Museum of Art (Savannah, GA, USA)
3.2.4. Student Urban Catwalk at the Via Tornabuoni (Florence, Italy)
4. Discussion
Findings after the Qualitative Methodological Approach and Discussion Thereof
5. Conclusions
5.1. Synergies, Physical Space, and Learning Innovation
5.2. From Qualitative Methodology to Proactive Comprehensive Outcomes
Author Contributions
Funding
Institutional Review Board Statement
Informed Consent Statement
Data Availability Statement
Acknowledgments
Conflicts of Interest
References
- Perkin, H. History of Universities. In International Handbook of Higher Education, Springer International Handbooks of Education; Forest, J.J.F., Altbach, P.G., Eds.; Springer: Dordrecht, The Netherlands, 2007; Volume 18, pp. 150–205. [Google Scholar]
- Bender, T. The University and The City: From Medieval Origins to The Present; Oxford University Press: New York, NY, USA, 1988; pp. 1–316. [Google Scholar]
- Sorbonne Declaration 1998. Joint Declaration on Harmonisation of the Architecture of the European Higher Education System by The Four Ministers in Charge for France, Germany, Italy and The United Kingdom in Paris, The Sorbonne, 25th May 1998. Available online: http://www.unizd.hr/Portals/0/bolonjski_proces/pdf/Sorbona_Declaration.pdf (accessed on 5 August 2021).
- Bennett, S. First Questions for Designing Higher Education Learning Spaces. J. Acad. Librariansh. 2007, 33, 14–26. [Google Scholar] [CrossRef]
- De Borba, G.S.; Alves, I.M.; Campagnolo, P.D.B. How Learning Spaces Can Collaborate with Student Engagement and Enhance Student-Faculty Interaction in Higher Education. Innov. High. Educ. 2020, 45, 51–63. [Google Scholar] [CrossRef]
- Lippman, P. Evidence-Based Design of Elementary and Secondary Schools; John Wiley & Sons: Hoboken, NJ, USA, 2010; pp. 1–368. [Google Scholar]
- Wenger, E. Communities of practice: Learning, Meaning and Practice; Cambridge University Press: Cambridge, MA, USA, 1998; pp. 1–318. [Google Scholar]
- Johnson, M.L. The embodied meaning of architecture. In Mind in Architecture: Neuroscience, Embodiment, and The Future of Design; Robinson, S., Pallasmaa, J., Eds.; MIT Press: Boston, MA, USA, 2015; pp. 33–50. [Google Scholar]
- Bostanci, S. Understanding Aesthetic Experiences of Architectural Students in Vertical and Horizontal Campuses. J. Contemp. Urban Aff. 2020, 4, 13–26. [Google Scholar] [CrossRef]
- Grupp, A. Architecture, Aesthetics, and Education. LAS Stud. Res. J. 2009, 2, 14–17. [Google Scholar]
- Campos, P. The Concept of “Educational Campus” and its Application in Spanish Universities. CELE Exch. OECD 2010, 8, 1–7. [Google Scholar]
- Holl, S. Stretto House. In Architecture as a Translation of Music (Pamphlet Architecture Volume 16); Martin, E., Ed.; Princeton Architectural Press: New York, NY, USA, 1994; pp. 56–59. [Google Scholar]
- Crewe, L. Wear: Where? The Convergent Geographies of Architecture and Fashion. Environ. Plan. A Econ. Space 2010, 2, 2093–2108. [Google Scholar] [CrossRef]
- Pawley, M.; Castle, H. Fashion + Architecture; Bognor Regis: London, UK, 2000; pp. 1–112. [Google Scholar]
- Hodge, B.; Mears, P.; Sidlauskas, S. Skin and Bones: Parallel Practices in Fashion and Architecture; Thames & Hudson: London, UK, 2006; pp. 1–272. [Google Scholar]
- Faerm, S. Building best practices for fashion design pedagogy: Meaning, preparation, and impact. Cuadernos del Centro de Estudios en Diseño y Comunicación. Ensayos 2015, 53, 189–213. [Google Scholar]
- Murray-Leslie, A. Fashion acoustics: Synthesizing wearable electronics and digital musical instruments for performance. Crit. Stud. Fash. Beauty 2014, 5, 141–161. [Google Scholar] [CrossRef]
- Campos, P. Espacios Innovadores Para La Excelencia Universitaria: Estudio de Paradigmas de Optimización Docente y Adaptación al Espacio Europeo de Educación Superior; Ministry of Educación: Madrid, Spain, 2010; pp. 1–343. Available online: https://es.scribd.com/document/267827683/Espacios-innovadores-para-la-excelencia-universitaria (accessed on 5 August 2021).
- Campos, P.; Luceño, L. Las Formas de la Educación; Dykinson: Madrid, Spain, 2018; pp. 1–174. [Google Scholar]
- Quaroni, L. Progettare un edificio. In Otto Lezioni di Architettura; Ganegemi Editore: Roma, Italy, 1993; pp. 1–236. [Google Scholar]
- Quinn, B. The Architecture of Fashion; Berg: New York, NY, USA, 2003; pp. 1–254. [Google Scholar]
- Felix, M.; Elsamahy, E. visualizing music compositions in architectural conceptual design. Archit. Plan. J. APJ 2016, 23, 1–13. [Google Scholar]
- Farahat, B.I. The interrelationship between fashion and architecture. Al-Azhar Univ. Eng. J. 2014, 9, 1–17. [Google Scholar]
- Chaabane, A.S.; Mouss, L.H. The North-South dialogue through higher education. High. Educ. Policy 1998, 11, 81–94. [Google Scholar] [CrossRef]
- Jin, C. The Exploration and Practice on Fashion Design Innovation Education Model Based on Studio Project-Practice Teaching. J. Hangzhou Norm. Univ. 2010, 1, 1–10. [Google Scholar]
- Gustafsson, J. Single Case Studies vs. Multiple Case Studies: A Comparative Study; Academy of Business, Engineering and Science, Halmstad University: Halmstad, Sweden, 2017; pp. 1–15. [Google Scholar]
- Baxter, P.; Jack, S. Qualitative Case Study Methodology: Study Design and Implementation for Novice Researchers. Qual. Rep. 2008, 13, 544–556. [Google Scholar]
- Creswell, J.W. Qualitative Inquiry and Research Design: Choosing Among Five Approaches; Sage: Thousand Oaks, CA, USA, 2013; pp. 1–414. [Google Scholar]
- Pauwels, P.; Matthyssens, P.; Welch, C. The Architecture of Multiple Case Study Research in International Business. In Handbook of Qualitative Research Methods for International Business; Marschan-Piekkari, R., Welch, C., Eds.; Edward Elgar Publishing: Cheltenham, UK, 2004. [Google Scholar] [CrossRef]
- Lee, Y.; Östberg, J. A case study of the Swedish fashion industry from the systems perspective of creativity. J. Glob. Fash. Mark. 2013, 4, 128–143. [Google Scholar] [CrossRef]
- Barret, J.R. Case study in music education. In Approaches to Qualitative Research; Conway, C., Ed.; Oxford University Press: Oxford, UK, 2014; pp. 74–93. [Google Scholar]
- Ali, A. A case study in developing an interdisciplinary learning experiment between architecture, building construction, and construction engineering and management education. Eng. Constr. Archit. Manag. 2019, 26, 2040–2059. [Google Scholar] [CrossRef]
- Strähle, J. Fashion and Music; Springer Nature: Singapore, 2018; pp. 1–264. [Google Scholar]
- Schoenberg, A.; Stein, L.; Strange, G. Fundamentals of Musical Composition; Faber & Faber: London, UK, 1967; pp. 1–125. [Google Scholar]
- Vieillard, S.; Roy, M.; Peretz, I. Expressiveness in musical emotions. Psychol. Res. 2012, 76, 641–653. [Google Scholar] [CrossRef] [PubMed]
- Luceño, L. Study of the paradoxes of fashion. dObra[s]. Rev. Assoc. Bras. Estud. Pesqui. Moda 2018, 24, 188–201. [Google Scholar]
- Campos, P.; Luceño, L. Architecture, education and city: Towards the optimisation of communities of learning through the educational campus paradigm in the 21st Century. Glob. J. Eng. Educ. GJEE 2020, 22, 104–109. [Google Scholar]
- Gaines, T. The Campus as a Work of Art; Praeger Publishers: Westport, CT, USA, 1991; pp. 1–168. [Google Scholar]
- Turner, P.V. Campus, An American Planning Tradition; The MIT Press: Cambridge, MA, USA, 1984; pp. 1–337. [Google Scholar]
- Trencher, M. The Alvar Aalto Guide; Princeton Architectural Press: New York, NY, USA, 1996; pp. 1–228. [Google Scholar]
- Werner, K.; Diecks, M. The Brain-The Philological Library, Free University of Berlin. LIBER Q. 2004, 14, 1–6. [Google Scholar] [CrossRef][Green Version]
- Finkelstein, J. Fashion, An introduction; New York University Press: New York, NY, USA, 2016; pp. 1–127. [Google Scholar]
- Williams, D. Fashion, the city, and the spectacle. In Routledge Handbook of Sustainable Design; Egenhoefer, R.B., Ed.; Routledge: London, UK, 2017; pp. 281–294. [Google Scholar]
- Luceño, L.; Campos, P. La ciudad como escenario de innovación docente: El caso de la pasarela urbana en las enseñanzas de Moda. ACE Archit. City Environ. 2021, 15, 1–22. [Google Scholar]
- Pinkelton, C.; Burke, M. The Savannah College of Art and Design: Restoration of an Architectural Heritage; Arcadia Publishing: Charleston, SC, USA, 2004; pp. 1–128. [Google Scholar]
- Capone, F.; Lazzeretti, L. Fashion and city branding: An analysis of the perception of Florence as a fashion city. J. Glob. Fash. Mark. Bridg. Fash. Mark. 2016, 7, 166–180. [Google Scholar] [CrossRef]
- Grosso, L. Spaces and places of education: Prelude. Paedagog. Hist. 2021, 57, 1–10. [Google Scholar]
- Gehl, J. Life Between Buildings; Island Press: Washington, DC, USA, 2011; pp. 1–207. [Google Scholar]
- Orr, D. The Nature of Design: Ecology, Culture and Human Intention; Oxford University Press: New York, NY, USA, 2002; pp. 1–248. [Google Scholar]
- Zeng, L. Integration of fashion design education with innovation and entrepreneurship education. J. Text. Eng. Fash. Technol. 2020, 3, 82–88. [Google Scholar]
- Schmidt, P.; Robbins, J. Looking Backwards to Reach Forward: A Strategic Architecture for Professional Development in Music Education. Arts Educ. Policy Rev. 2011, 112, 95–103. [Google Scholar] [CrossRef]
- Cousin, G. Case Study research. J. Geogr. High. Educ. 2005, 29, 421–427. [Google Scholar] [CrossRef]
- Csíkszentmihály, M. Creativity across the life-span: A systems view. In Talent Development III; Colangelo, N., Assouline, S., Eds.; Gifted Psychology Press: Scottsdale, AZ, USA, 1995; pp. 9–18. [Google Scholar]



| Publisher’s Note: MDPI stays neutral with regard to jurisdictional claims in published maps and institutional affiliations. | 
© 2021 by the authors. Licensee MDPI, Basel, Switzerland. This article is an open access article distributed under the terms and conditions of the Creative Commons Attribution (CC BY) license (https://creativecommons.org/licenses/by/4.0/).
Share and Cite
Campos, P.; Luceño, L.; Aguirre, C. Physical Spaces in Higher Education as Scenarios of Learning Innovation: Compositional and Formative Synergies among Architecture, Music, and Fashion. Eur. J. Investig. Health Psychol. Educ. 2021, 11, 1166-1180. https://doi.org/10.3390/ejihpe11040086
Campos P, Luceño L, Aguirre C. Physical Spaces in Higher Education as Scenarios of Learning Innovation: Compositional and Formative Synergies among Architecture, Music, and Fashion. European Journal of Investigation in Health, Psychology and Education. 2021; 11(4):1166-1180. https://doi.org/10.3390/ejihpe11040086
Chicago/Turabian StyleCampos, Pablo, Laura Luceño, and Carlos Aguirre. 2021. "Physical Spaces in Higher Education as Scenarios of Learning Innovation: Compositional and Formative Synergies among Architecture, Music, and Fashion" European Journal of Investigation in Health, Psychology and Education 11, no. 4: 1166-1180. https://doi.org/10.3390/ejihpe11040086
APA StyleCampos, P., Luceño, L., & Aguirre, C. (2021). Physical Spaces in Higher Education as Scenarios of Learning Innovation: Compositional and Formative Synergies among Architecture, Music, and Fashion. European Journal of Investigation in Health, Psychology and Education, 11(4), 1166-1180. https://doi.org/10.3390/ejihpe11040086
 
         
                                                

