Next Article in Journal
Curves in Lightlike Planes in Three-Dimensional Lorentz–Minkowski Space
Next Article in Special Issue
Numerical Identification of Boundary Conditions for Richards’ Equation
Previous Article in Journal
A Novel Multi-Directional Partitioning Method for Support-Free 3D Printing of Inner Runner Structural Components
Previous Article in Special Issue
Transient Convective Heat Transfer in Porous Media
 
 
Font Type:
Arial Georgia Verdana
Font Size:
Aa Aa Aa
Line Spacing:
Column Width:
Background:
Article

Mathematical Modeling of the Hydrodynamic Instability and Chemical Inhibition of Detonation Waves in a Syngas–Air Mixture

1
Moscow Center for Fundamental and Applied Mathematics, Lomonosov Moscow State University, Leninskie Gory 1, Moscow 119992, Russia
2
National Research Centre Kurchatov Institute, Federal Science Center Scientific Research Institute for System Analysis of Russian Academy of Sciences, Moscow 117218, Russia
*
Author to whom correspondence should be addressed.
Mathematics 2023, 11(24), 4879; https://doi.org/10.3390/math11244879
Submission received: 7 November 2023 / Revised: 24 November 2023 / Accepted: 4 December 2023 / Published: 5 December 2023
(This article belongs to the Special Issue Applications of Mathematics to Fluid Dynamics)

Abstract

:
This paper presents the results of the two-dimensional modeling of the hydrodynamic instability of a detonation wave, which results in the formation of an oscillating cellular structure on the wave front. This cellular structure of the wave, unstable due to its origin, demonstrates the constant statistically averaged characteristics of the cell size. The suppression of detonation propagation in synthesis gas mixtures with air using a combustible inhibitor is studied numerically. Contrary to the majority of inhibitors being either inert substances, which do not take part in the chemical reaction, or take part in chemical reaction but do not contribute to energy release, the suggested inhibitor is also a fuel, which enters into an exothermic reaction with oxygen. The unsaturated hydrocarbon propylene additive is used as an inhibitor. The dependence of the effect of the inhibitor content on the mitigation of detonation for various conditions of detonation initiation is researched. The results make it possible to determine a critical percentage of inhibitor which prevents the occurrence of detonation and the critical percentage of inhibitor which destroys a developed detonation wave.

1. Introduction

The detonation front is a complex inhomogeneous dynamic three-dimensional wave structure [1,2,3,4]. A fish-like pattern formed by pressure waves and shear forces is obtained on the inner walls of the detonation tube when considering the movement of a triple point along its soot-covered surface. The detonation cell is one of the elements of this pattern. As the leading shock front propagates, the triple points evolve: the transverse waves oscillate perpendicular to the direction of propagation [5,6,7,8]. Those detonation cells are found to be one of the most important parameters in detonation research. The present paper considers the influence of a hydrocarbon inhibitor on the developed detonation in a syngas–air mixture and shows that, for a definite concentration of the inhibitor, the detonation cellular structure is destroyed.
Syngas, or synthesis gas, is a mixture of hydrogen and carbon monoxide. Currently, synthesis gas is mainly used in the chemical industry as a source for the production of various substances: carbon monoxide, hydrogen, methanol, etc. But it can also be used as a relatively environmentally friendly source of heat and energy, including as a synthetic liquid fuel. The methods for producing synthesis gas have been known for a long time, however, they are very expensive compared to the use of conventional hydrocarbons. But the production costs of hydrocarbon grow and the methods for producing synthesis gas are being improved, including its production from coal or bio-waste, therefore, its use as a fuel is more and more attractive.
Syngas mixtures with air are very sensitive to ignition and explosion. The speed of flame propagation in such mixtures is very high and it can easily accelerate and transfer to detonation (deflagration to detonation transition or ddt), at the same time, ignition can occur even from static electricity. Usually, to prevent an explosion, physical barriers are used in case of an accidental ignition of syngas mixtures with air. Our goal is to study one of the possible chemical barriers.
Many researchers aim their studies at chemical methods for controlling different combustion regimes, and our study contributes to this field of research. Experimentally and theoretically, the effectiveness of using inhibitors for the combustion control of hydrogen–air mixtures has already been shown by various authors, including us [9,10,11,12,13,14,15,16]. In the work [9], the experimental study is focused on the inhibition of methane/coal dust explosions using an ultrafine water mist inside a closed vessel. It was found that dust explosions could be damped by the mist effectively. A mist concentration increase decreases the explosion’s intensity, the flame propagation’s velocity, and the temperature of the flame. In the study [10], the detonation sensitivity of hydrogen–air mixtures diluted with CF3I, H2O, CO2, and N2 was investigated using numerical computations. It was found that the refrigerant CF3I suppresses gaseous detonation by acting as a radical-scavenging agent. In the work [11], the effect of ultrafine water mist with phosphorus-containing compounds on the flames in CH4/coal dust explosions was investigated both experimentally and numerically. Dimethyl methylphosphonate and phytic acid were selected as additives. The results showed that water mist can effectively lower the temperature of the flame, and dimethyl methylphosphonate’s presence in the water mist can slow down the flames’ velocity significantly and cut off the flames. In the paper [12], universal relations were analytically derived for the characteristics of the detonation dynamics of hydrogen–oxygen lean mixtures in narrow channels and small round tubes. In the work [13], a two-dimensional pipeline model was used to study the mechanism of methane detonation suppression using a monodisperse ultrafine water mist. The critical parameters of the ultrafine water mist were obtained, which determined the degradation of methane detonation to deflagration, and a complete suppression of this process. In the paper [14], the effect of dry water on the suppression of the explosion of gaseous H2 and CH4 was studied experimentally. Dry water is an emulsion of water with silica gel, which consists of 95% water. The inhibition mechanism of dry water on the ignition and explosion of combustible gases turned out to be a comprehensive synergy of cooling, dilution, homogeneous radical catalytic inhibition, and heterogeneous radical annihilation. It was found that dry water can significantly reduce the flammability parameters of H2 and CH4. The monograph [15] summarizes a large series of works on the study of the chemical mechanisms and rates of the key reactions of chemical kinetic methods, aiming to control the intensity of combustion and to prevent the undesired explosions of gases and the transition of deflagration to detonation. In the work [16], the effect of a relatively small addition of propylene on detonation wave dynamics was studied numerically in a stoichiometric hydrogen–air mixture.
The study of syngas mixtures and their application has a long history [17,18,19,20,21,22,23]. A brief overview of the use of syngas in engines is given in [17]. In the study [18], the explosion hazard of syngas–air mixtures was investigated numerically and experimentally in a three-dimensional cylindrical geometry for various equivalence ratios and shares of hydrogen in the gas mixture. The results showed that a maximal explosion pressure was achieved for the equivalence ratio of 1.2, while the time of explosion was shortest at the equivalence ratio of 1.6. In the work [19], the characteristics of the explosion pressure for premixed syngas/air mixtures in a duct with different hydrogen concentrations and opening ratios was studied experimentally. The authors showed that the rate of explosion overpressure rise increases rapidly with the increase in the volume fraction of hydrogen from 10% to 50%. Simultaneously, the maximum excess pressure increases, and the time to reach the maximum pressure decreases. In the work [20], the effect of different initial temperatures and volume fractions of hydrogen on the combustion characteristics of premixed syngas/air flames in rectangular tubes was experimentally investigated. It was found that the flame propagation velocity increases with the increase of the initial temperature before the flame touches the wall, while after it touches the wall, the opposite happens. In the paper [21], the explosion behavior of premixed stoichiometric syngas–air mixtures with different hydrogen volume fraction was studied experimentally in two closed ducts. An increase in both the volume fraction of hydrogen and the aspect ratio of the duct led to an increase in the amplitude of the flame oscillations; the flame demonstrates stronger deformation and oscillations for the duct with a bigger aspect ratio. In the work [22], a premixed syngas–air flame propagating in a channel with a set of obstacles was investigated experimentally, focusing on the flame propagation mode’s dependence on the hydrogen volume fraction. Three modes were identified: steady flame propagation, oscillating flame propagation, and end-gas autoignition. The paper [23] numerically investigated the possibility of using synthesis gas to decarbonize a plant for tissue paper drying by feeding a biomass-derived syngas into the combustion chamber upstream of the hoods to replace fossil fuels. The authors found that it was quite easy to modify the initial combustion chamber to use synthesis gas and obtain low pollutant emissions and optimal feed parameters to achieve thermal uniformity for the drying process. It was shown that the solution proposed would allow them to save approximately 8500 ton/y of CO2 emissions in comparison with today’s fossil fuel carbon footprint.
Regardless of those works mentioned above, and many others, the processes in the detonation inhibition in syngas have been hardly studied yet. The article [24] presented the results for the effect of adding water to syngas fuel, aiming to understand the effect of moisture in coal-derived syngas. It was observed that the flame velocity increased with the addition of water up to 20% and decreased with the further addition of water. In the work [25], the explosiveness of a syngas–air mixture was investigated experimentally for different equivalent ratios and hydrogen fractions added, with different volume fractions of nitrogen and carbon dioxide. It was shown that the addition of both nitrogen and carbon dioxide decreased the flame velocity and maximum overpressure; CO2 was more effective at flame inhibition. In the study [26], the effect of carbon dioxide dilution on the explosive behavior of a syngas–air mixture was investigated numerically and experimentally. The results showed that the maximal explosion pressure decreased linearly with the addition of CO2, and the explosion time increased linearly, while the maximum rate of pressure increase decreased non-linearly. Carbon dioxide demonstrated the strongest effect in reducing the explosiveness of the syngas–air flame compared to helium and nitrogen.
A theoretical simulation of the detonation is often based on a single-step reaction model, but this method does not explain some important features of the chemical process. Detailed modeling of the chemical processes is required to generate agreement with experimental data and obtain reliable results.
The cellular structure of the detonation wave plays a decisive role in the occurrence, propagation and attenuation of the detonation wave. For a long time, it was considered that only the release of energy affects the velocity of the detonation wave, and that chemical kinetics is not important, which, however, is valid only for the stationary propagation of the detonation wave. For transitional regimes, this concept becomes less justified. In this article, we will analyze the effect of an inhibitory additive on the cellular structure of the detonation wave.
This article is a continuation of the research presented in the works [16,27] devoted to the inhibition of detonation and the modeling of the cellular structure of detonation waves in hydrogen–air mixtures.
The paper will numerically show the significant influence of the chain branching mechanism of chemical kinetics on the occurrence and attenuation of the detonation wave.
The chemical reaction of syngas with air is an example of a branching chain reaction. In this chain, the kinetics of intermediate radicals plays an important role in the process of the elementary stages, since the final product is not formed without the participation of radicals. Atomic hydrogen H is the most mobile and active radical in the reaction of H2 and CO with O2. If its content is reduced with the help of a scavenging chemical additive, the reaction will slow down. This slowdown does not mean a decrease in the release of energy.
The atomic hydrogen activity can be reduced in many ways, one of which is the addition of an unsaturated hydrocarbon. The hydrogen atom eliminates the double bond between the carbon atoms; the resulting alkane radical is much less active than atomic hydrogen. In this work, propylene C3H6, or CH2=CH-CH3, acts as an inhibitor; its reaction with atomic hydrogen gives two variants of the propyl radical CH2-CH2-CH3 and CH3-CH-CH3, both of which are described as C3H7. The self-sustaining properties of detonation are largely determined by the heat release delay time, which is determined by the development of the chain process. A decrease of the amount of H in the chain process slows down the elementary stages involving hydrogen, and this can cause transition of the initially developed detonation into a normal combustion mode.
In the current work, a strong overdriven detonation wave is initiated in a stoichiometric hydrogen–oxygen mixture, and then the wave enters the portion filled with syngas mixed with air and inhibitor. The initial detonation wave sets up the detonation in the syngas–air mixture. Without an inhibitor, the detonation wave in the mixture under consideration continues in a self-sustaining mode with detonation cells. Adding a small amount of inhibitor is expected to suppress or weaken the detonation.
The other problem set up is the use of the syngas–air mixture without an inhibitor as the initial gas, where the detonation starts and develops its cellular structure. Then, the detonation penetrates the portion filled with the inhibitor. The detonation wave behavior for different contents of added inhibitor is investigated numerically. The results testify that different critical contents of inhibitor are needed for preventing the onset of detonation and for suppressing a detonation with an already developed cellular structure.

2. Materials and Methods

2.1. Mathematical Model

We use multicomponent gas dynamics, considering chemical transformations of species as the basis of the mathematical model. It consists of balance equations: the mass balance for each component, its momentum balance, and its energy balance. The right-hand side of the last equation is the external source. To describe the concentrations of components in this model, it is feasible to use their molar densities, which, for a particular component, are designated by their chemical symbol in square brackets, and in the list by the symbol  X k , where k—component number. From the equations for mass in terms of partial densities, these equations are obtained by dividing each by the molar mass  W k  of the corresponding component. The choice of this description of concentrations is since the simplest way to express the rates of the chemical transformation of species is to use molar densities and temperature as variables.
X k t + div ( X k u ) = ω ^ k ( X 1 , , X N ; T ) ,
ρ u t + div ( ρ u u ) + grad p = 0 ,
E T t + div ( ( E T + p ) u ) = Q .
Equations (1)–(3) are written in vector notation, which is universal for models of any dimension; subscript  k = 1 N C  characterizes the different chemical species of the gas mixture. The total number of equations is  N C + 3  for a two-dimensional model, and  N C + 4  for three-dimensional one. Other notations are:  t —time,  u —velocity vector,  ρ —mixture density,  p —pressure,  T —temperature,  E T —the sum of internal, chemical and kinetic energy per unit volume of the mixture. The notation  ω ^ k  stands for the rate of molar production of a component  k  per unit volume. This value is expressed by the following formula:
ω ^ k = r = 1 N R ( ν k r ν k r ) k r ( M r , T ) [ k = 1 N C X k ν r k χ r K r ( T ) k = 1 N C X k ν r k ] ,
here  ν r k , ν r k  are the incoming and outgoing stoichiometric coefficients,  k r ( M r , T )  is the rate coefficient of the direct reaction determined by the model of chemical kinetics,  M r  is the coefficient of influence of the additional bodies in the chemical interaction determined by the model of chemical kinetics,  χ r  is the reversibility indicator of a chemical reaction (1—reversible, 0—no),  K r ( T )  is the equilibrium constant of a chemical reaction, determined by the thermodynamic properties of the components involved in the reaction.
We use the Keromnés et al. kinetic mechanism for syngas presented in [28]. There are 13 components and 47 reactions (including duplicates) in the mechanism. To model the inhibitor’s influence, two other components, namely propylene and the propyl radical, are added, as is one irreversible reaction. The kinetic parameters of this reaction (propylene hydrating) were taken from the monograph [15]:
C 3 H 6 + H C 3 H 7 ,   f c 3 h 6 = 1.13 10 13 exp ( 1640 / R G T ) ,
where the dimensions of the pre-exponential constant and the activation energy are cm3/(mol·s) and cal/mol, correspondingly.
The density of a gas mixture is the sum of its partial densities, which can be expressed in molar densities:
ρ = k = 1 N C ρ k = k = 1 N C W k X k .
The gas mixture consists of perfect gases according to the equation of state of Clapeyron–Mendeleev. The pressure of the mixture is expressed in terms of molar densities and temperature, the total energy is also expressed through these parameters, as well as through the velocity module, as follows:
p = R G T k = 1 N C X k ,   E T = k = 1 N C X k E k ( T ) + ρ | u | 2 2 ,
here  R G  is the universal gas constant and  E k  is the sum of the internal and chemical energies of the gas component k per mole.
Two types of boundary conditions were used in this study. The first type is the open outflow condition:
{ U = u n < 0     u n = 0 , 0 U < a s     p = P 0 ,
here  a s  is the local sonic velocity,  P 0  is the initial pressure assumed to be equal to the external pressure and  n  is the outward normal unit vector. The condition (8) means that in case the normal gas velocity at the wall is less than zero, i.e., the outflow changes to inflow, the flux is blocked, and the impermeable wall condition is set instead. If the normal outflow is less than sonic speed, the external pressure is set on the boundary, and no conditions are set for supersonic outflow.
The second type of the boundary conditions is used to model the internal surface of a cylinder as a domain. These are periodic boundary conditions, which formally could be expressed as follows:
x :   ϕ ( x , 0 ) = ϕ ( x , L ) ,
where  ϕ  is any parameter of the flow. To implement such conditions, we use a topological “stitching” of the mesh.

2.2. Numerical Model

Numerical simulations are performed using the author’s software package [29]. Calculations are based on the finite volume approach with cell center placing of all variables; the AUSM model is used to implement fluxes between cells [30]. To promote the numerical scheme to the second order in space (except for portions with high gradients of parameters), the MUSCL interpolation of variables onto faces [31] with the KOREN slope limiter [32] is used. The second order of accuracy in time is achieved using the McCormack method [33]. The numerical scheme is explicit, and therefore the Courant criterion is used to bound the time step from above in order to stabilize the calculation process [33].
Chemical transformations are calculated at a separate stage within each time step. They are processed implicitly using internal changeable time stepping in order to maintain accuracy. We use the Novikov (4,2) L-stable method to solve the ODE system [34], which belongs to the class of Rosenbrock methods. The method is adopted to maintain the mass of elements in chemical reactions constant and supports other algebraic constraints of variables during this stage. Results of the chemical stage are changes in the molar density of components  ω ^ k  which are substituted into mass balance equations as external fluxes to each cell.
Results are obtained on a regular computation mesh; each cell is a square 25 μm in size. They depend on the mesh size, and it is important to estimate convergence. A comparison of the maximal achieved pressure fields obtained for the initial temperature 500 K for meshes with 25 and 50 μm cell sizes demonstrate satisfactory convergence. Though exact positions of the triple point’s trajectories do not coincide, the detonation cell sizes are close; divergence is within the limits for statistical averaging.
The validation of the numerical model was performed by comparing the cell size numerically obtained for the stoichiometric hydrogen–air mixture using different kinetic mechanisms with the results of experimental measurements obtained by different authors [35,36]. The instability of the leading shock wave was also verified by studying dispersed-film and other metastable systems [37,38].

2.3. The Problem Statement

The problem is considered in a 2D formulation, with the initiation of overdriven detonation by the release of a large amount of thermal energy during a short time near the left side of the domain. Open outflow boundary conditions are set both on the left and right sides of the domain, and therefore the abnormally hot gases from the ignition zone leave the domain quickly. This trick diminishes the number of calculations required because the time step depends on the maximal temperature in the system via the sonic speed due to the Courant criterion. On the other hand, those boundary conditions do not affect the main process—the propagation of the detonation wave. Uneven initiation provokes a rapid development of the detonation process in the initial mixture, stoichiometric 2H2 + O2. With time, the detonation wave enters the main area filled with a syngas–air mixture, optionally with an added inhibitor. The presence of an inhibitor weakens the detonation wave in the mixture under consideration or even prevents a detonation from developing there.
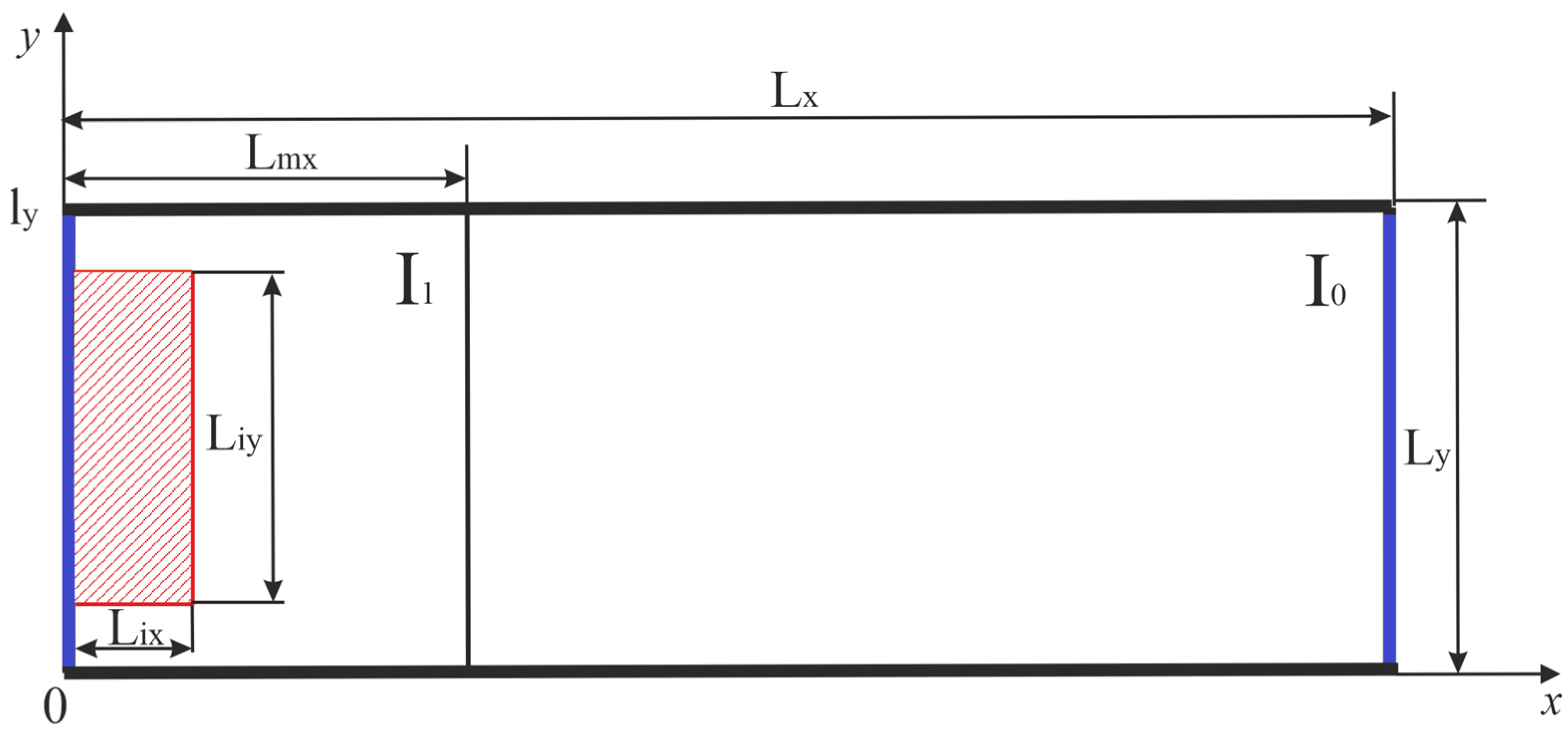
In Figure 1, the blue color denotes the location of open boundary conditions, the black color stands for periodic boundary conditions, red shows a zone of initiation due to energy release. At the initial time, the region I1 near the left side, together with the initiation zone, is filled with a hydrogen–oxygen stoichiometric mixture for the first test problem, or with a stoichiometric syngas mixture with air without an inhibitor for the second test problem. The main portion to the right, region I0, is filled with stoichiometric syngas with air, and a small amount of inhibitor added, which is varied between tests. The molar composition of the mixture under study is [H2]:[CO]:[O2]:[N2]:[C3H6] = 1:1:1:4:x. The inhibitor share x is calculated based on its volumetric percentage  a %  as follows:
x = 0.07 a 1 0.01 a .
We used values of  a = 0 , 0.2 , 0.3 , 0.4 , 0.5  for our tests.
The initial temperature and pressure of the mixture for all cases are 500 K and 1 bar, respectively. The rectangular domain considered in the work is shown in Figure 1. Two variants for the size of the domain are considered for shorter and longer tests accordingly: Lx = 10 cm and Lx = 15 cm. The width of the domain in both cases is Ly = 2 cm. Uniform square grids of 3.2 and 4.8 million cells are used for the small domain and for the bigger one, respectively, with a grid element size of 25 μm. Boundary conditions are open exit at x = 0 and x = Lx. The upper and lower boundary conditions at y = 0 and y = Ly are periodic so that all the parameters at points (x, 0) and (x, Ly) are identical. At the initial moment in time, the mixture before the line x = Lmx (area I1) is preliminary, and after it (area I0) lies the investigated mixture.
In tests with the shorter Lx = 10 cm domain, the size of area I1 is Lmx = 2.0 cm and it is filled with a mixture of 2H2 + O2. In this case, the effect of an overdriven detonation wave with small, not yet developed cells on the investigated mixture is researched. Depending on the amount of inhibitor in the investigated mixture, the detonation can occur and propagate, or occur and decay. In this case, the cellular structure in the studied mixture is not formed immediately.
In tests with the longer Lx = 15 cm domain, the size of area I1 is Lmx = 7.0 cm and it is filled with a stoichiometric syngas mixture with air and without the inhibitor. In this case, the effect of the inhibitor on the dynamics of already developed cellular detonation in the studied mixture is investigated. Similarly to the previous case, the detonation may propagate further or dampen depending on the amount of the inhibitor. The initiation area is the same in all tests; it is located in the area I1 at the left border and has a size Lix = 0.2 cm and Liy = 1.6 cm (Figure 1). The ignition is carried out via the injection of energy within 1 μs. The total amount of energy per 1 cm of domain depth in this case is 25 J. This energy is sufficient to initiate an overdriven detonation wave.

3. Results

Figure 2 shows the pressure distribution in the domain at time 50 μs for the shorter domain test problem, i.e., by the end of the calculations for the detonation initiation due to energy release in the stoichiometric hydrogen–oxygen mixture (Lmx = 2.0 cm) and its entering into the mixture under investigation. One could see a pattern of developed cellular detonation for a 0% and 0.2% initial amount of the inhibitor C3H6. The detonation cells are a bit larger for 0.3%; the detonation is suppressed and gradually turns into a combustion mode for 0.4%, and is fully mitigated for 0.5%. This result indicates that above a 0.4–0.5% volumetric amount, the chemical inhibitor prevents a self-sustained cellular detonation from developing in syngas with an air mixture.
Also, the obtained result differs from the results of works [15,16]. Those works dealt with a hydrogen–air mixture, and the threshold of inhibition was about 2%. The difference is explained by another aspect of syngas vs. hydrogen; a lower amount of atomic hydrogen is created in syngas after a detonation wave compared to hydrogen fuel. Therefore, a lower amount of chemical inhibitor, which diminishes the free atomic hydrogen in the reaction chain, is needed for syngas.
The pressure distribution figures show that by 50 μs, in the case of detonation propagation, the wave front has a cellular structure with pronounced transverse waves. For an inhibitor concentration of 0.4% C3H6, the detonation wave is not established, and the front, on entering from the driving section into the mixture of the syngas with air, degenerates into a shock wave. An increase in the cell size while detonation is maintained is almost imperceptible, and a decrease in the front advancement speed with an increase in the inhibitor fraction is not noticeable, in contrast to the results for hydrogen. Apparently, this is due, in the latter case, to the large amount of inhibitor required for preventing the onset of detonation in hydrogen–air mixtures, and the corresponding large increase in the molar mass in this case, which reduces the speed of sound. It seems that the inhibitor effect threshold in this variant of initiation is very sharp, without gradual transitions.
Figure 3 shows the patterns of maximal pressure in the domain [10 × 2] cm by the time 50 μs. Those patterns indicate the history of the process, and especially the tracks of the pressure peaks in the shock and detonation waves.
It can be seen that with an increase in the inhibitor concentration, the detonation cells almost do not increase. Detonation suppression does not occur at a volume concentration of 0.3% of the inhibitor relative to the mixture; with an increase in the concentration of the inhibitor to 0.4%, the detonation wave is destroyed. These numbers are significantly lower than those obtained in the study of a mixture of 2H2 + O2 with an inhibitor under the same conditions of detonation excitation; there was suppression at 1% and no suppression at 0.9%. That is, for a mixture of hydrogen and oxygen, the suppression threshold is slightly more than two times higher than that for syngas. This is most likely due to the fact that in the initial synthesis gas, hydrogen, is two times lower in molar concentration, namely, hydrogen is the source of atomic hydrogen, the most active radical in the considered chain processes, the amount of which is reduced by the inhibitor. An additional difference in the result (which is not exactly two times less) may be a consequence of the peculiarities of the chain process. Other conclusions from the pictures are the same as before [14]: the traces of triple points decrease in intensity and become blurred after the suppression of the cellular structure of the detonation wave.
Figure 3 shows that the addition of an inhibitor that removes a part of the atomic hydrogen from the chain mechanism suppresses detonation for 0.4 and 0.5% of C3H6. In the case of 0.4%, the cellular detonation initially occurs in the mixture but it gradually weakens, and turns into a combustion mode with a deflagration type.
In Figure 4, temperature pictures are presented for the same cases, which illustrate that, for an inhibitor concentration below 0.3% C3H6, the detonation wave propagates over the domain, and, at 0.4%, the shock wave is formed, noticeable due to the increase in temperature behind it, which moves in front of the reaction zone, moving away from the region of energy release, which means that the inhibitor has suppressed the detonation. The area of high temperature, which is visible on all figures in the left part, is associated with the combustion of the initiating stoichiometric mixture, 2H2 + O2. By 50 μs, the products of its combustion have not yet completely left the area through the open left end. As in the tests for hydrogen with air, this region becomes larger with an increase in the proportion of the inhibitor.
Figure 5 shows the distribution of atomic hydrogen. Via its concentration, it is possible to determine the area of burnt gases with a high temperature (relatively low concentration). Its high concentration traces the front of the combustion or detonation, as well as the area of the initiating mixture’s combustion products. These products have not yet left the area, as it contains both the initial concentration of hydrogen and the much higher temperature, which gives a high concentration of radical H. The results are qualitatively similar to those obtained when testing the hydrogen–air mixture, except for the unburned “pocket” for the latter and the much more irregular curved leading front of the reaction in the case of detonation suppression in the present Figure 5.
The results of the suppression test in the initial mixture of synthesis gas with air and without inhibitor, are a cellular detonation that developed for the longer domain test problem, presented in Figure 6, Figure 7, Figure 8 and Figure 9. The length of the calculated area for this test is already 15 cm. The mixture with the inhibitor starts at 7 cm from the left side. The size of the initiation area remained unchanged. Since direct detonation initiation is required in a weaker mixture of synthesis gas with air, rather than hydrogen with oxygen, the initiation energy is increased compared to previous tests. It is also necessary to increase the energy of initiation since syngas is a less sensitive fuel than pure hydrogen. Since the left side is open in all cases, the effect of the initiation energy on the combustion wave, and even more so on the detonation wave, is minimized; it only affects the direct excitation of detonation in the initiating mixture, which in this case is the initial mixture of syngas with air and without an inhibitor. The results are presented at a time of 80 μs.
The results show that, in this case, when the detonation’s initiation occurs in a mixture of synthesis gas with air, detonation is suppressed at an inhibitor concentration of 1.7%. At a concentration of 1.5%, detonation continues to spread through the synthesis gas mixture with the inhibitor.

4. Discussion

The fact that the inhibitor is required at a concentration approximately two times less than is needed to suppress the detonation of a hydrogen mixture with air can be explained due to the fact that we have two times less hydrogen in the syngas–air mixture, and that hydrogen gas is the most active agent which produces atomic hydrogen during the reaction. The hydrogen in the syngas of the studied composition is two times less; atomic hydrogen is also produced approximately two times less, and thus approximately two times less inhibitor is needed to suppress the reaction. The energy of the syngas combustion is provided by both hydrogen and carbon monoxide, but the latter burns out in the leading detonation wave only partially, burning behind where it no longer affects the detonation front. Therefore, only the hydrogen component affects the propagation of detonation in syngas (with minor corrections). It was expected before the tests that, when a developed cellular detonation in syngas with air passes into an area occupied by syngas with air and an inhibitor, detonation suppression would be at an inhibitor concentration of about 1% (half the result for hydrogen). The calculations showed that detonation under these conditions is suppressed at an inhibitor concentration of 1.7% relative to the volume of the entire mixture, and it is not suppressed at a concentration of 1.5%. That is, the results are lower than for the hydrogen–air mixture, but not at all by a factor of two.
Thus, a small addition of propylene to the syngas mixture preserves its combustible properties but suppresses the possibility of detonation propagation in this mixture. The flame may even become more intense with it. The only purpose of such an additive is to increase the delay time of chemical transformations, and this could stop the transition of the flame into a fierce explosion, or even stop the explosion from propagating, mitigating it into an ordinary flame. Thus, the use of the additive allows for the relatively safe use of synthesis gas as a fuel and in various fields of industry.
Future research could also investigate other fuels, other inhibiting additives, and other conditions. Also, it is worth finding a link between the reaction delay time and the possibility of detonation mitigation in various conditions, and establishing a set of criteria there.

5. Conclusions

On the basis of a mathematical model for the development of two-dimensional cellular detonation, it was shown that the addition of propylene C3H6 to a syngas with air, at concentrations [H2]:[CO]:[O2]:[N2] = 1:1:1:4, prevents the detonation onset caused by the gas’s interaction with a strong detonation wave at a volume percent of 0.4%, and reliably mitigates it at 0.5%. It does not prevent detonation onset at concentrations of 0.3% and below. The results are lower than those for a hydrogen–air mixture obtained in our previous work [16]; this can be explained by the lower amount of atomic hydrogen in syngas reaction chains. Therefore, a lower amount of inhibitor is needed to diminish it effectively.
For the detonation initiation due to energy release in the stoichiometric hydrogen–oxygen mixture it is demonstrated that above a 0.4–0.5% volumetric amount, the chemical inhibitor prevents a self-sustained cellular detonation from developing in syngas with an air mixture. The suppression of developed cellular detonation in a stoichiometric mixture of synthesis gas with air was achieved at a much higher inhibitor concentration. An effective suppression of detonation is obtained for a 1.7% volumetric concentration of propylene, but not for 1.5%. However, these values of inhibitor content are still less than those needed for suppressing detonations in hydrogen–air mixtures under similar conditions.

Author Contributions

Conceptualization, N.S., V.A. and V.N.; methodology, N.S., V.A. and V.N.; software, E.M. and L.S.; validation, E.M., L.S. and V.N.; formal analysis, N.S., V.A., E.M., L.S. and V.N.; investigation, N.S., V.A., E.M., L.S. and V.N.; resources, N.S.; data curation, E.M.; writing original draft preparation, E.M.; writing review and editing, N.S.; visualization, E.M. and L.S.; supervision, N.S.; project administration, L.S.; funding acquisition, N.S. All authors have read and agreed to the published version of the manuscript.

Funding

The investigations were conducted in the Lomonosov Moscow State University, which embraced the task of developing the mathematical and kinetic models, the problem statement and results analysis, all of which were supported by the Russian Science Foundation (RSF project code 23-11-00117). Numerical simulations were performed using the facilities of the National Research Centre “Kurchatov Institute” Federal Science Center “Scientific Research Institute for System Analysis of Russian Academy of Sciences” and supported by the subsidy No. FNEF-2022-0021.

Data Availability Statement

The datasets obtained during the current study are available upon reasonable request.

Acknowledgments

The authors acknowledge the support from the Lomonosov Moscow State University within the frame of the scientific program of the Moscow Center for Fundamental and Applied Mathematics.

Conflicts of Interest

The authors declare no conflict of interest.

References

  1. Gamezo, V.N.; Vasil’ev, A.A.; Khokhlov, A.M.; Oran, E.S. Fine cellular structures produced by marginal detonations. Proc. Combust. Inst. 2000, 28, 611–617. [Google Scholar] [CrossRef]
  2. Lee, J.; Knystautas, R.; Freiman, A. High Speed Turbulent Deflagrations and Transition to Detonation in H2-Air Mixtures. Combust. Flame 1984, 56, 227–239. [Google Scholar] [CrossRef]
  3. Ciccarelli, G.; Ginsberg, T.; Boccio, J.; Economos, C.; Sato, K.; Kinoshita, M. Detonation cell size measurements and predictions in hydrogen-air-steam mixtures at elevated temperatures. Combust. Flame 1994, 99, 212–220. [Google Scholar] [CrossRef]
  4. Levin, V.A.; Manuylovich, I.S.; Markov, V.V. Three-dimensional cellular detonation in cylindrical channels. Pap. Acad. Sci. 2015, 460, 35–38. [Google Scholar]
  5. Gavrikov, A.; Efimenko, A.; Dorofeev, S. A Model for Detonation Cell Size Prediction from Chemical Kinetics. Combust. Flame 2000, 120, 19–33. [Google Scholar] [CrossRef]
  6. Denisov, Y.N.; Troshin, Y.K. On the mechanism of detonative combustion. Int. Symp. Combust. 1961, 8, 600–610. [Google Scholar] [CrossRef]
  7. Schelkin, K.I.; Troshin, Y.K. Combustion Gas Dynamics; Akademii Nauk: Moscow, Russia, 1963. [Google Scholar]
  8. Voitsekhovskii, B.V.; Mitrofanov, V.V.; Topchian, M.E. Struktura Fronta Detonastii v Gazakh; Translation: The Structure of a Detonation Front in Gases Rep. FTD-MT-64-527, Foreign Technology Division, Wright—Patterson A.F.B., Ohio, 1966; Akademii Nauk: Novosibirsk, Russia, 1963. [Google Scholar]
  9. Cao, X.; Wei, H.; Wang, Z.; Fan, L.; Zhou, Y.; Wang, Z. Experimental research on the inhibition of methane/coal dust hybrid explosions by the ultrafine water mist. Fuel 2023, 331, 125937. [Google Scholar] [CrossRef]
  10. Kumar, D.S.; Singh, A.V. Inhibition of hydrogen–oxygen/air gaseous detonations using CF3I, H2O, and CO2. Fire Saf. J. 2021, 124, 103405. [Google Scholar] [CrossRef]
  11. Jiang, H.; Bi, M.; Huang, L.; Zhou, Y.; Gao, W. Suppression mechanism of ultrafine water mist containing phosphorus compounds in methane/coal dust explosions. Energy 2022, 239, 121987. [Google Scholar] [CrossRef]
  12. Xiao, Q.; Weng, C. Unified dynamics of hydrogen–oxygen–diluent detonations in narrow confinements. Fuel 2023, 334, 126661. [Google Scholar] [CrossRef]
  13. Jing, Q.; Wang, D.; Liu, Q.; Chen, X.; Shen, Y.; Wang, Z.; Zhong, Y. Inhibition effect and mechanism of ultra-fine water mist on CH4/air detonation: Quantitative research based on CFD technology. Process Saf. Environ. Prot. 2021, 148, 75–92. [Google Scholar] [CrossRef]
  14. Tianwei, Z.; Shishun, Z.; Hao, L.; Dengyou, X.; Zidong, G.; Cunwei, Z. Experimental research on combustible gas/air explosion inhibition by dry water. Int. J. Hydrogen Energy 2023, 48, 36605–36620. [Google Scholar] [CrossRef]
  15. Azatyan, V.V. Chain Reactions in the Processes of Combustion, Explosion and Detonation of Gases; Russian Academy of Sciences: Moscow, Russia, 2020. (In Russian) [Google Scholar]
  16. Smirnov, N.N.; Nikitin, V.F.; Mikhal’chenko, E.V.; Stamov, L.I. Inhibition of Developed Detonation of a Hydrogen–Air Mixture by a Small Addition of a Hydrocarbon Inhibitor. Combust. Explos. Shock. Waves 2022, 58, 564–570. [Google Scholar] [CrossRef]
  17. Fiore, M.; Magi, V.; Viggiano, A. Internal combustion engines powered by syngas: A review. Appl. Energy 2020, 276, 115415. [Google Scholar] [CrossRef]
  18. Tran, M.-V.; Scribano, G.; Chong, C.T.; Ho, T.X.; Huynh, T.C. Experimental and numerical investigation of explosive behavior of syngas/air mixtures. Int. J. Hydrogen Energy 2018, 43, 8152–8160. [Google Scholar] [CrossRef]
  19. Guo, Z.; Wen, X.; Zhang, S.; Wang, F.; Pan, R.; Sun, Z. Experimental study on the combustion-induced rapid phase transition of syngas/air mixtures under different conditions. Int. J. Hydrogen Energy 2020, 45, 19948–19955. [Google Scholar] [CrossRef]
  20. Xu, Z.; Deng, H.; Wei, S.; Yan, M.; Wen, X.; Wang, F.; Chen, G. Experimental and numerical study of the effect of initial temperature on the combustion characteristics of premixed syngas/air flame. Int. J. Hydrogen Energy 2023, 48, 4875–4890. [Google Scholar] [CrossRef]
  21. Yang, X.; Yang, W.; Liu, C.; Yu, M.; Han, S. Experimental study on the deformation and oscillation of premixed syngas/air flames in closed ducts. Process Saf. Environ. Prot. 2023, 179, 373–383. [Google Scholar] [CrossRef]
  22. Han, S.; Yu, M.; Yang, X.; Li, H.; Ma, Z. Flame propagation mode transition of premixed syngas-air mixtures in a closed duct. Fuel 2022, 318, 123649. [Google Scholar] [CrossRef]
  23. Giuntini, L.; Lamioni, R.; Linari, L.; Saccomano, P.; Mainardi, D.; Tognotti, L.; Galletti, C. Decarbonization of a tissue paper plant: Advanced numerical simulations to assess the replacement of fossil fuels with a biomass-derived syngas. Renew. Energy 2022, 198, 884–893. [Google Scholar] [CrossRef]
  24. Singh, D.; Nishiie, T.; Tanvir, S.; Qiao, L. An experimental and kinetic study of syngas/air combustion at elevated temperatures and the effect of water addition. Fuel 2012, 94, 448–456. [Google Scholar] [CrossRef]
  25. Zheng, K.; Yang, X.; Yu, M.; Si, R.; Wang, L. Effect of N2 and CO2 on explosion behavior of syngas/air mixtures in a closed duct. Int. J. Hydrogen Energy 2019, 44, 28044–28055. [Google Scholar] [CrossRef]
  26. Tran, M.-V.; Scribano, G.; Chong, C.T.; Ng, J.-H.; Ho, T.X. Numerical and experimental study of the influence of CO2 dilution on burning characteristics of syngas/air flame. J. Energy Inst. 2019, 92, 1379–1387. [Google Scholar] [CrossRef]
  27. Smirnov, N.N.; Nikitin, V.F.; Mikhal’chenko, E.V.; Stamov, L.I.; Tyurenkova, V.V. Modelling cellular structure of detonation waves in hydrogen-air mixtures. Int. J. Hydrogen Energy 2023, in press. [CrossRef]
  28. Kéromnès, A.; Metcalfe, W.K.; Heufer, K.A.; Donohoe, N.; Das, A.K.; Sung, C.J.; Herzler, J.; Naumann, C.; Griebel, P.; Mathieu, O.; et al. An experimental and detailed chemical kinetic modeling study of hydrogen and syngas mixture oxidation at elevated pressures. Combust. Flame 2013, 160, 995–1011. [Google Scholar] [CrossRef]
  29. Smirnov, N.N.; Nikitin, V.F.; Stamov, L.I.; Mikhal’chenko, E.V.; Tyurenkova, V.V. Three-dimensional modeling of rotating detonation in a ramjet engine. Acta Astronaut. 2019, 163, 168–176. [Google Scholar] [CrossRef]
  30. Liou, M.-S. A Sequel to AUSM: AUSM+. J. Comput. Phys. 1996, 129, 364–382. [Google Scholar] [CrossRef]
  31. van Leer, B. Towards the Ultimate Conservative Difference Scheme, A Second Order Sequel to Godunov’s Method. J. Comput. Phys. 1979, 32, 101–136. [Google Scholar] [CrossRef]
  32. Koren, B. A Robust Upwind Discretization Method for Advection, Diffusion and Source Terms. In Numerical Methods for Advection—Diffusion Problems; Vreugdenhil, C.B., Koren, B., Eds.; Vieweg: Braunschweig, Germany, 1993; p. 117. [Google Scholar]
  33. Ferziger, J.H.; Perić, M.; Street, R.L. Computational Methods for Fluid Dynamics, 4th ed.; Springer: Cham, Switzerland, 2020. [Google Scholar]
  34. Novikov, E.A. L-stable (4,2)-method of fourth order to solve stiff problems. VestnikSamGU Nat. Sci. Ser. 2008, 8, 59–68. [Google Scholar]
  35. Smirnov, N.N.; Penyazkov, O.G.; Sevrouk, K.L.; Nikitin, V.F.; Stamov, L.I.; Tyurenkova, V.V. Onset of detonation in hydrogen-air mixtures due to shock wave reflection inside a combustion chamber. Acta Astronaut. 2018, 149, 77–92. [Google Scholar] [CrossRef]
  36. Dorofeev, S.B.; Sidorov, V.P.; Dvoinishnikov, A.E.; Breitung, W. Deflagration to detonation transition in large confined volume of lean hydrogen-air mixtures. Combust. Flame 1996, 104, 95–110. [Google Scholar] [CrossRef]
  37. Smirnov, N.N. Combustion and detonation in multi-phase media. Initiation of detonation in dispersed-film systems behind a shock wave. Int. J. Heat Mass Transf. 1988, 31, 779–793. [Google Scholar] [CrossRef]
  38. Smirnov, N.N.; Nikitin, V.F.; Alyari-Shourekhdeli, S. Transitional regimes of wave propagation in metastable systems. Combust. Explos. Shock. Waves 2008, 44, 517–528. [Google Scholar] [CrossRef]
Figure 1. The geometry of the problem statement.
Figure 1. The geometry of the problem statement.
Mathematics 11 04879 g001
Figure 2. Pressure distribution in the shorter domain at time 50 μs for the inhibitor concentration (a) 0.0% C3H6; (b) 0.2% C3H6; (c) 0.3% C3H6; (d) 0.4% C3H6; and (e) 0.5% C3H6.
Figure 2. Pressure distribution in the shorter domain at time 50 μs for the inhibitor concentration (a) 0.0% C3H6; (b) 0.2% C3H6; (c) 0.3% C3H6; (d) 0.4% C3H6; and (e) 0.5% C3H6.
Mathematics 11 04879 g002
Figure 3. Maximal achieved pressure patterns in the shorter domain by 50 μs for the inhibitor concentration (a) 0.0% C3H6; (b) 0.2% C3H6; (c) 0.3% C3H6; (d) 0.4% C3H6; and (e) 0.5% C3H6.
Figure 3. Maximal achieved pressure patterns in the shorter domain by 50 μs for the inhibitor concentration (a) 0.0% C3H6; (b) 0.2% C3H6; (c) 0.3% C3H6; (d) 0.4% C3H6; and (e) 0.5% C3H6.
Mathematics 11 04879 g003
Figure 4. Temperature distribution in the shorter domain by 50 μs for the inhibitor concentration (a) 0.0% C3H6; (b) 0.2% C3H6; (c) 0.3% C3H6; and (d) 0.4% C3H6.
Figure 4. Temperature distribution in the shorter domain by 50 μs for the inhibitor concentration (a) 0.0% C3H6; (b) 0.2% C3H6; (c) 0.3% C3H6; and (d) 0.4% C3H6.
Mathematics 11 04879 g004
Figure 5. Distribution of the concentration of atomic hydrogen H in the shorter domain at the time 50 μs for the inhibitor concentration (a) 0.0% C3H6; (b) 0.2% C3H6; (c) 0.3% C3H6; and (d) 0.4% C3H6.
Figure 5. Distribution of the concentration of atomic hydrogen H in the shorter domain at the time 50 μs for the inhibitor concentration (a) 0.0% C3H6; (b) 0.2% C3H6; (c) 0.3% C3H6; and (d) 0.4% C3H6.
Mathematics 11 04879 g005
Figure 6. Maximal achieved pressure patterns in the longer domain at the time 80 μs for the inhibitor concentration (a) 0.0% C3H6; (b) 1.0% C3H6; (c) 1.5% C3H6; and (d) 1.7% C3H6.
Figure 6. Maximal achieved pressure patterns in the longer domain at the time 80 μs for the inhibitor concentration (a) 0.0% C3H6; (b) 1.0% C3H6; (c) 1.5% C3H6; and (d) 1.7% C3H6.
Mathematics 11 04879 g006
Figure 7. Pressure distribution in the longer domain at the time 80 μs for the inhibitor concentration (a) 0.0% C3H6; (b) 1.0% C3H6; (c) 1.5% C3H6; and (d) 1.7% C3H6.
Figure 7. Pressure distribution in the longer domain at the time 80 μs for the inhibitor concentration (a) 0.0% C3H6; (b) 1.0% C3H6; (c) 1.5% C3H6; and (d) 1.7% C3H6.
Mathematics 11 04879 g007
Figure 8. Temperature distribution in the longer domain at the time 80 μs for the inhibitor concentration (a) 0.0% C3H6; (b) 1.0% C3H6; (c) 1.5% C3H6; and (d) 1.7% C3H6.
Figure 8. Temperature distribution in the longer domain at the time 80 μs for the inhibitor concentration (a) 0.0% C3H6; (b) 1.0% C3H6; (c) 1.5% C3H6; and (d) 1.7% C3H6.
Mathematics 11 04879 g008
Figure 9. Distribution of the concentration of atomic hydrogen H in the longer domain at the time 80 μs for the inhibitor concentration (a) 0.0% C3H6; (b) 1.0% C3H6; (c) 1.5% C3H6; and (d) 1.7% C3H6.
Figure 9. Distribution of the concentration of atomic hydrogen H in the longer domain at the time 80 μs for the inhibitor concentration (a) 0.0% C3H6; (b) 1.0% C3H6; (c) 1.5% C3H6; and (d) 1.7% C3H6.
Mathematics 11 04879 g009
Disclaimer/Publisher’s Note: The statements, opinions and data contained in all publications are solely those of the individual author(s) and contributor(s) and not of MDPI and/or the editor(s). MDPI and/or the editor(s) disclaim responsibility for any injury to people or property resulting from any ideas, methods, instructions or products referred to in the content.

Share and Cite

MDPI and ACS Style

Nikitin, V.; Mikhalchenko, E.; Stamov, L.; Smirnov, N.; Azatyan, V. Mathematical Modeling of the Hydrodynamic Instability and Chemical Inhibition of Detonation Waves in a Syngas–Air Mixture. Mathematics 2023, 11, 4879. https://doi.org/10.3390/math11244879

AMA Style

Nikitin V, Mikhalchenko E, Stamov L, Smirnov N, Azatyan V. Mathematical Modeling of the Hydrodynamic Instability and Chemical Inhibition of Detonation Waves in a Syngas–Air Mixture. Mathematics. 2023; 11(24):4879. https://doi.org/10.3390/math11244879

Chicago/Turabian Style

Nikitin, Valeriy, Elena Mikhalchenko, Lyuben Stamov, Nickolay Smirnov, and Vilen Azatyan. 2023. "Mathematical Modeling of the Hydrodynamic Instability and Chemical Inhibition of Detonation Waves in a Syngas–Air Mixture" Mathematics 11, no. 24: 4879. https://doi.org/10.3390/math11244879

APA Style

Nikitin, V., Mikhalchenko, E., Stamov, L., Smirnov, N., & Azatyan, V. (2023). Mathematical Modeling of the Hydrodynamic Instability and Chemical Inhibition of Detonation Waves in a Syngas–Air Mixture. Mathematics, 11(24), 4879. https://doi.org/10.3390/math11244879

Note that from the first issue of 2016, this journal uses article numbers instead of page numbers. See further details here.

Article Metrics

Back to TopTop