Next Article in Journal
Saline–CO2 Solution Effects on the Mechanical Properties of Sandstones: An Experimental Study
Next Article in Special Issue
Multi-Strategy-Improvement-Based Slime Mould Algorithm
Previous Article in Journal
Study of Interface Adhesion Between Polyurethane and Aggregate Based on Surface Free Energy Theory and Molecular Dynamics Simulation
Previous Article in Special Issue
Mixed-Strategy Harris Hawk Optimization Algorithm for UAV Path Planning and Engineering Applications
 
 
Font Type:
Arial Georgia Verdana
Font Size:
Aa Aa Aa
Line Spacing:
Column Width:
Background:
Article

An Improved Bio-Inspired Material Generation Algorithm for Engineering Optimization Problems Including PV Source Penetration in Distribution Systems

1
Department of Computer Engineering and Information, College of Engineering in Wadi Alddawasir, Prince Sattam bin Abdulaziz University, Kharj 16278, Saudi Arabia
2
Machine Learning and Information Retrieval Department, Artificial Intelligence Kafrelsheikh University, Kafrelsheikh 33516, Egypt
3
Computer Science Department, Faculty of Computers and Information, Mansoura University, Mansoura 35516, Egypt
4
University of Economics and Human Sciences, 01-043 Warsaw, Poland
5
Department of Electrical Engineering, Faculty of Engineering, Suez University, Suez P.O. Box 43221, Egypt
*
Author to whom correspondence should be addressed.
Appl. Sci. 2025, 15(2), 603; https://doi.org/10.3390/app15020603
Submission received: 23 November 2024 / Revised: 28 December 2024 / Accepted: 8 January 2025 / Published: 9 January 2025
(This article belongs to the Special Issue Heuristic and Evolutionary Algorithms for Engineering Optimization)

Abstract

The Material Generation Optimization (MGO) algorithm is an innovative approach inspired by material chemistry which emulates the processes of chemical compound formation and stabilization to thoroughly explore and refine the parameter space. By simulating the bonding processes—such as the formation of ionic and covalent bonds—MGO generates new solution candidates and evaluates their stability, guiding the algorithm toward convergence on optimal parameter values. To improve its search efficiency, this paper introduces an Enhanced Material Generation Optimization (IMGO) algorithm, which integrates a Quadratic Interpolated Learner Process (QILP). Unlike conventional random selection, QILP strategically selects three distinct chemical compounds, resulting in increased diversity, a more thorough exploration of the solution space, and improved resistance to local optima. The adaptable and non-linear adjustments of QILP’s quadratic function allow the algorithm to traverse complex landscapes more effectively. This innovative IMGO, along with the original MGO, is developed to support applications across three phases, showcasing its versatility and enhanced optimization capabilities. Initially, both the original and improved MGO algorithms are evaluated using several mathematical benchmarks from the CEC 2017 test suite and benchmarks to measure their optimization capabilities. Following this, both algorithms are applied to the following three well-known engineering optimization problems: the welded beam design, rolling element bearing design, and pressure vessel design. The simulation results are then compared to various established bio-inspired algorithms, including Artificial Ecosystem Optimization (AEO), Fitness–Distance-Balance AEO (FAEO), Chef-Based Optimization Algorithm (CBOA), Beluga Whale Optimization Algorithm (BWOA), Arithmetic-Trigonometric Optimization Algorithm (ATOA), and Atomic Orbital Searching Algorithm (AOSA). Moreover, MGO and IMGO are tested on a real Egyptian power distribution system to optimize the placement of PV and the capacitor units with the aim of minimizing energy losses. Lastly, the PV parameters estimation problem is successfully solved via IMGO, considering the commercial RTC France cell. Comparative studies demonstrate that the IMGO algorithm not only achieves significant energy loss reduction but also contributes to environmental sustainability by reducing emissions, showcasing its overall effectiveness in practical energy optimization applications. The IMGO algorithm improved the optimization outcomes of 23 benchmark models with an average accuracy enhancement of 65.22% and a consistency of 69.57% compared to the MGO method. Also, the application of IMGO in PV parameter estimation achieved a reduction in computational errors of 27.8% while maintaining superior optimization stability compared to alternative methods.

1. Introduction

1.1. Background and Motivation

The complexity and scale of modern engineering design problems, from structural optimization to electrical system design, demand robust and efficient optimization techniques. The non-linearity, high dimensionality, and multiple restrictions that are inherent in these situations are typically too much for traditional optimization techniques to handle [1]. As a result, bio-inspired algorithms—especially those based on population dynamics—have gained popularity due to their special ability to handle such difficult problems. These algorithms leverage mechanisms from natural selection, swarm intelligence, and biological behaviors, providing adaptive, distributed, and scalable solutions [2].

1.2. Population-Based Bio-Inspired Optimization Algorithms: An Overview

Population-based bio-inspired optimization algorithms mimic collective behaviors observed in nature, where individual agents (particles, organisms, etc.) interact and evolve toward optimal solutions. Generally, the following four main types of meta-heuristic algorithms are classified: physics-based, evolutionary, swarm intelligence, and human-based algorithms [3]. These four categories capture the diversity of meta-heuristic optimization techniques. Each category has unique advantages, with applications suited to different types of engineering challenges, from static problems requiring reliable convergence to dynamic, multi-dimensional problems demanding adaptability and exploration.
Evolutionary algorithms are inspired by biological evolution principles, specifically Darwinian concepts of selection, mutation, and reproduction. They simulate a population of candidate solutions that evolve over generations, continually improving based on fitness functions such as Genetic Algorithms (GAs) [4,5], Evolutionary Programing (EP) [6,7], Differential Evolution (DE) [8,9], and Backtracking Search Algorithm (BSA) [10,11]. These methods operate by iteratively evolving a population of potential solutions through operations inspired by biological processes like reproduction, mutation, cooperation, and competition. Their flexibility, coupled with the ability to explore complex landscapes efficiently, makes them ideal for a range of engineering applications.
Swarm intelligence algorithms take inspiration from the collective behaviors observed in social animals, such as birds flocking, ant colonies, and fish schooling. In bird flocking, birds/particles represent solutions which adjust their velocities and consequently positions based on their own experiences and the experiences of their neighbors such as the Particle Swarm Optimizer (PSO) [12], hummingbird algorithm [13,14], and satin bowerbird optimizer [15]. Similarly, Ant Colony Optimization (ACO) mimics the pheromone trail-laying behavior of ants, guiding individual agents based on the collective information left by others [16,17]. Also, Fish Schooling Algorithms (FSA) are inspired by the collective, coordinated movement of fish in schools [18]. FSA mimics these behaviors by simulating individual fish as agents that interact with each other and their environment to locate optimal solutions such as the White Shark Optimizer (WSO) [19], salp swarm algorithm [20,21], marine predator optimization [22,23], manta ray foraging algorithm [24,25], and the Tuna Swarm Optimizer (TSO) [26].
Human-based algorithms are a relatively new category in meta-heuristics, based on the emulation of human social interactions, behaviors, and decision-making processes. These algorithms model complex social behaviors, such as cultural evolution, competition, cooperation, and learning from shared experiences such as Teaching–Learning-Based Optimization (TLBO) [27,28], Harmony Search Algorithm (HSA) [29], and human memory optimizer [30]. Several optimization problems were successfully addressed via recently developed algorithms in this category such as the Preschool Education Optimization Algorithm (PEOA) [31], mountaineering team-based optimization [32] and migration algorithm [33].
Physics-based algorithms are inspired by principles and phenomena in physics, particularly those that involve naturally occurring optimization processes. These algorithms simulate physical laws, such as gravity, electrical charge interactions, or thermal dynamics, to drive optimization. In optimization, the Prism Refraction Search (PRS) is a new, straightforward, yet highly effective single-solution metaheuristic algorithm designed for single-objective real-parameter optimization. PRS is rooted in physics principles and is inspired by ray optics, specifically the behavior of light refraction through a triangular prism [34]. The Propagation Search Algorithm (PSA) takes its inspiration from wave propagation principles, specifically the transmission of voltage and current along lengthy power lines. PSA models these phenomena mathematically, using voltage and current as its search agents in the optimization process [35]. The Kepler Optimization Algorithm (KOA) is based on Kepler’s laws of planetary motion, utilizing these principles to calculate the precise positions and velocities of planets over time [36]. As a newer physics-based optimization method, the Archimedes Optimization Algorithm (AOA) is a metaheuristic approach that relies on Archimedes’ law to drive its search process, showing significant efficiency in various applications [37]. Another notable example in physics-based optimization is the Gravitational Search Algorithm (GSA), which is inspired by Newton’s gravitational theory, leveraging gravitational forces to guide its search agents towards optimal solutions [38].

1.3. Applications of Bio-Inspired Optimization in Engineering Problems Including PV Source Penetration in Distribution Systems

Bio-inspired optimization algorithms have demonstrated remarkable success in addressing engineering design problems across various fields. In structural engineering, they assist in optimizing materials and geometries for load-bearing structures. In electrical engineering, they are used for the optimal placement and control of components in power distribution networks. Additionally, bio-inspired algorithms play a crucial role in mechanical design, control systems, and energy management, enabling engineers to achieve designs that balance multiple objectives, such as cost, performance, and sustainability. For example, the jellyfish search (JFS) algorithm was introduced in [39], inspired by the distinctive movement patterns of jellyfish. First, jellyfish can drift along with ocean currents or move within their own group. Where food sources are plentiful, jellyfish are drawn to these areas. Additionally, the numerical fitness function represents the amount of available food. JFS has shown promising applications across various engineering domains, including wind energy control via the PI controller design of a DFIG-based converter [40], path planning of unmanned aerial vehicles via evolutionary state estimation [41], overcurrent relay coordination with fault current limiters in power systems [42], maximum power extraction via PV array reconfigurations considering partial shadings [43], and the optimal array reconfiguration of thermoelectric generation considering varied temperature conditions [44].
Promoting the generation of energy from environmentally friendly sources, such as photovoltaic (PV) distributed electricity generation, has gained significant traction in recent years due to its potential to reduce emissions and enhance the sustainability of energy [45]. Meanwhile, enhancing savings on energy and minimizing losses in electricity have made electrical distribution network optimization crucial. Two effective methods to achieve these objectives are reactive power planning and PV production devices that are positioned and sized within the electricity network of distribution in an optimal manner [46]. Developing efficient optimization techniques is necessary to address the problems with solar power plants and capacitors in power networks [47]. Therefore, it is necessary to design innovative optimizing methods that can effectively address these issues and provide reliable solutions.
Improved quality of power, regulation of voltage, and energy economy are just a few of the advantages that may be further realized in distribution systems by simultaneously optimizing the positioning and dimensions of photovoltaic panels and shunt capacitors. As a result, the distribution system’s overall energy efficiency can be raised [48]. Solar energy systems can enable improvements in voltage during times of heavy demand, whereas shunt capacitors assist in stabilizing the level of voltage. Shunt-type capacitors lower reactive electrical losses, which lowers consumption of energy and boosts the efficiency of the system, while photovoltaic devices produce clean, renewable energy. Additionally, shunt capacitors and PV modules work together to improve voltage control and system stability by keeping voltage levels within reasonable bounds [49,50]. Alternatively, concurrent deployments lessen network congestion by reducing the power flow through the transmission and distribution facilities by producing electricity locally and countering reactive demands. As a result, network losses may be reduced, and total system consistency may increase [51]. Modern research attempts have primarily focused on accomplishing these goals because of the substantial advantages of enhancing performance. An Arithmetic Optimization Algorithm (AOA) was presented in Ref. [48] to determine the best location and size of reactive power compensation and DGs to improve system performance. Additionally, an altered chaos variant of searching group optimization (SGO) was presented to handle the combined reconfiguration of networks and the DG issue with the distribution static VAR compensator (D-SVC), which was suitably constructed for power loss minimization [52]. A chaotic local search strategy was incorporated into the initially developed SGO by the described algorithm. The practical difficulty of adjusting the installed DGs’ positions to fit different load levels hampered the implementation of the chaos SGO approach, even if it improved the efficiency of the distribution network. In order to lower the costs of producing electricity, an amended form of Differential Evolution (DE) was proposed in [53] for the placement of DGs and dispatchable loads, taking into account market pricing, consumption unpredictability, and renewable energy supplies. The effectiveness of the modified DE method was confirmed by tests on the IEEE 39-bus and IEEE 57-bus networks. However, the addition of reactive power supports—which are necessary to satisfy voltage profile requirements—was initially ignored but later addressed.

1.4. Challenges and Research Gaps

Through this literature review, it becomes evident that the evolution of bio-inspired optimization algorithms has significantly impacted engineering design, offering robust solutions to complex problems while continuously adapting to new challenges and applications. Ref. [54] provides an in-depth analysis of swarm intelligence techniques, emphasizing their use in solving complex problems and highlighting the importance of bio-inspired methods in engineering design. Ref. [55] presents a metaheuristic algorithm inspired by COVID-19, highlighting the adaptability of bio-inspired algorithms to emerging challenges and their versatility in addressing optimization problems in evolving global circumstances. Ref. [56] discusses nature-inspired algorithms, their hybrid variants, and stable performance in optimization problems, emphasizing the need for sophisticated optimization approaches due to the non-linear nature of engineering problems. Finally, Ref. [57] introduces an ensemble metaheuristic algorithm that combines Laplacian Biogeography-Based Optimization and the Sine Cosine Algorithm for structural engineering design optimization, proving its superiority over traditional methods. Despite their advantages, bio-inspired algorithms face challenges relating to convergence reliability, computational cost, and solution quality consistency, especially in high-dimensional and real-time optimization contexts. Furthermore, there are still research gaps in understanding the theoretical underpinnings of these algorithms, their adaptability to dynamic environments, and their performance in multi-objective optimization. Addressing these gaps is critical for advancing the applicability of bio-inspired algorithms in engineering domains.

1.5. The Objectives and Contributions of This Study

Motivated by the concepts of material chemistry, the Material Generation Optimization (MGO) algorithm is a noveloptimization methodology [58]. The MGO algorithm simulates the formation and stabilization of chemical compounds to investigate and optimize the searching space of variables. To provide newer potential solutions, the MGO method simulates the creation of ionic and covalent connections [59]. It then evaluates the stability of these solutions to guarantee convergence to the desired values based on the fitness score.
In this paper, a Quadratic Interpolated Learner Process (QILP) is incorporated into an Improved MGO (IMGO). By mixing data from three distinct chemical compounds, the suggested integration of the QILP with the given IMGO method adds diversification to the solutions. Strong search space exploration is aided by the randomization and permutations provided. The proposed IMGO technique is designed against several mathematical benchmarks for solving the CEC 2017 test suite and other engineering problems including Welded Beam Design (WBD), rolling Element Bearing Design (REBD), and Pressure Vessel Design (PVD). It was also tested on a real Egyptian power distribution system to optimize the placement of PV and capacitor units with the aim of minimizing energy losses. Therefore, the key contributions of this paper are as follows:
  • An IMGO variant is proposed, integrating QILP to enhance search efficiency and improve results.
  • Both the original MGO and the enhanced IMGO algorithms are rigorously tested against multiple benchmarks from the CEC 2017 suite to validate their optimization capabilities.
  • The IMGO algorithm’s evaluation across 23 benchmark models demonstrates its robustness, with significant improvements in accuracy and consistency metrics, outperforming the standard MGO in over 65% of the cases.
  • The IMGO algorithm is applied to three well-known engineering design problems, demonstrating superior performance compared to various bio-inspired algorithms.
  • The IMGO algorithm is also evaluated on a real Egyptian power distribution system to optimize the placement of PV and capacitor units.
  • The use of IMGO for PV parameter estimation illustrates its capability to minimize computational inaccuracies effectively, offering superior performance in a real-world engineering context.

2. Standard Version of MGO

2.1. Chemical Compounds, Reactions and Stability

In the MGO algorithm, chemical compounds, reactions, and stability are addressed. First, chemical substances are classed as ionic or covalent depending on their bonding properties. Ionic compounds, like sodium chloride (NaCl), are produced when atoms exchange electrons to form ions that are held together by electrostatic forces. Stable bonds are created when nonmetals share electrons to form covalent compounds, such as the hydrogen molecule (H2).
Second, chemical reactions transform substances into new products by breaking and forming chemical bonds, altering their composition and properties. For example, magnesium reacts with oxygen to form magnesium oxide (MgO), a compound with distinct characteristics.
Third, chemical stability is crucial in material development, reflecting a substance’s ability to resist decomposition or reactions under various conditions. Stable materials maintain their properties over time, while unstable ones are prone to changes due to chemical or environmental factors.

2.2. Mathematical Model of MGO

The MGO population-based method is an optimization technique inspired by the principles of chemical compounds, reactions, and stability. It models materials as solutions within a population, represented by elements from the periodic table as decision variables. These variables are manipulated iteratively to optimize material composition. By simulating interactions and refining configurations, the algorithm identifies optimal solutions that maximize performance or meet specific constraints efficiently.

2.2.1. Initialization

The MGO algorithm identifies a set number of materials, each composed of various periodic table elements, as candidates for optimization. These materials are denoted as MaT(m,n), where ‘m’ indicates the order of the material and n indicates the order of the element. These materials are created by combining elements represented as decision variables, E(m,n). To present these aspects mathematically, we can express them as follows:
M a T ( m , n ) = M a T 1 , :   M a T 2 , : . . . M a T N M T , : = E 1 , 1 t   E 1 , 2 t     E 1 , D t   E 2 , 1 t   E 2 , 2 t     E 2 , D t . . . E N M T , 1 t   E N M T , 2 t     E N M T , D t
M a T ( m , n ) t = 0 = L n + Z 1 × U n L n ,   m = 1 : N M T ; n = 1 : D
where the variables in these equations can be described as follows:
  • MaT(m,n) is a material compound which is composed of combined elements.
  • NMT is the number of materials in the population.
  • E(m,n) refers to the combined elements in each material m.
  • t denotes the iteration count, with t = 0 representing the starting point of the initialized population.
  • D signifies the dimensionality of the problem, indicating the total number of combined elements involved.
  • U n   represents the upper boundaries for each element variable ( n ).
  • L n represents the lower boundaries for each element variable ( n ).
  • Z 1 is a randomly generated value associated with each element variable ( n ).

2.2.2. Modeling Compounds

To simulate the formation of 0covalent and ionic combinations, the approach followed begins with selecting a random subset of elements from a predefined set, using an initial matrix as outlined in Equation (1). Following the selection, the processes of electron loss, gain, or sharing are modeled using probability theory. Probability distributions for each element guide the configuration of chemical compounds, treating the resulting compounds as unique entities akin to new elements formed through these interactions.
This approach establishes a robust mathematical model to represent the complex dynamics of chemical bonding. It captures the excitation states of elements, their likelihood to lose, gain, or share electrons, and the resulting formation of ionic or covalent bonds. This probabilistic modeling provides deeper insights into the principles of chemical interactions and the properties of the compounds formed. Based on this framework, the new material can be probabilistically represented as follows:
M a T N w 1 m , : t + 1 =   E N w 1 m , 1 t + 1   E N w 1 m , 2 t + 1 .   E N w 1 m , D t + 1 ;   m = 1 : N M T
where   E N w 1 ( m , n ) t + 1 = E ( z 1 , z 2 ) t + e ,   m = 1 : N M T ; n = 1 : D
where the variables in these equations can be described as follows:
  • M a T N w 1 m , : t + 1 is a newly composed material compound which is created in the next iteration (t + 1).
  • E N w 1 m , 1 t + 1 is a newly composed element which is created in the next iteration (t + 1).
  • z 1 and z 2 refer to random integers uniformly distributed.
  • e signifies the probabilistic factor modeled through a standard Gaussian distribution.
The probabilistic determination of e relies on the normal Gaussian distribution, a fundamental statistical model widely used in the natural and social sciences to represent real-value random variables with unknown distributions. The probability of selecting a new element E ( m , n ) t + 1 , based on the initially chosen random element E ( z 1 , z 2 ) t , is expressed as follows:
f E ( m , n ) μ , σ 2 = e ( x μ ) 2 2 σ 2 2 π σ 2
  • μ indicates the central tendency regarding the selected randomized element E ( z 1 , z 2 ) t .
  • σ symbolizes the standard deviation, set to 1 in the work to simplify calculations.
  • σ2 denotes the variance, describing the spread of the distribution.
  • e refers to the base of the natural logarithm.
This method provides a precise statistical framework to model the selection process, ensuring the formation of elements aligns with realistic probabilistic behavior.

2.2.3. Modeling Reactions

Chemical reactions are transformative processes that alter the chemical composition and properties of reactants to produce distinct products. In modeling the production of new materials using the principles of chemical reactions, a structured approach introduces variability and enables the exploration of novel compositions. This process involves selecting a subset of materials from the current set and blending them through mathematical techniques to create new, optimized solutions. The process begins with determining the number of materials to participate in the reaction. An integral random number (Q) is calculated to decide how many materials from the present set ( M a T t ) will engage in the reaction. To ensure diversity, random integers (Qr) are also generated to identify specific materials from the set for participation. This stochastic selection process mirrors the randomness observed in natural chemical reactions. Once the materials are chosen, they are combined linearly to generate new solutions. Each selected material interacts with others to form new compositions, fostering diversity within the population. To guide these interactions, a participation factor ( ϕ ) is assigned to each material. This factor, modeled using a normal Gaussian distribution, quantifies the extent of each material’s involvement in the reaction. Varied participation ensures that all materials contribute uniquely, avoiding over-reliance on any single component.
Mathematically, the new material generated for the next iteration (t + 1) is expressed as follows:
M a T N w 2 ( m , : ) t + 1 = q = 1 Q r ϕ q × M a T ( q , : ) t q = 1 Q ϕ q   m = 1 : N M T
Here,
  • M a T (q) indicates a selected randomized material (q).
  • ϕ q represents its participation factor related to the qth material.
  • M a T N w 2 ( m , : ) t + 1 is the newly generated material.
This methodology emulates the dynamic nature of chemical reactions by introducing randomness in material selection and employing probabilistic models to balance contributions. By mimicking natural chemical processes, it enriches the solution space and enables efficient exploration and optimization, making it a robust framework for developing new materials.

2.2.4. Modeling Stability

The natural tendency of materials to achieve equilibrium at various physical degrees is known as material stability, and it may be measured quantitatively using M a T . When comparing overall solution choices, the most stable materials match the best and worst fitness values.
M a T t + 1 = M a T 1 , : t   M a T 2 , : t . . . M a T N M T , : t M a T N w 1 m , : t + 1 M a T N w 2 ( m , : ) t + 1 = E 1 , 1 t   E 1 , 2 t     E 1 , D t   E 2 , 1 t   E 2 , 2 t     E 2 , D t . . . E N M T , 1 t   E N M T , 2 t     E N M T , D t E N w 1 N M T , 1 t + 1   E N w 1 N M T , 2 t + 1     E N w 1 N M T , D t + 1 E N w 2 N M T , 1 t + 1   E N w 2 N M T , 2 t + 1     E N w 2 N M T , D t + 1
The evaluation of stability levels plays a crucial role in determining whether newly generated materials should be incorporated into the updated material set ( M a T t + 1 ), which represents the pool of solutions. New materials are considered for inclusion only if they surpass the least stable and lowest-quality initial materials in terms of fitness and stability. By replacing the weakest candidates, the algorithm ensures continuous improvement in the overall solution set.
The methodology underlying the MGO algorithm is comprehensively illustrated in the flowchart provided in Figure 1.

3. Proposed IMGO Integrating QILP

This research presents an IMGO variant alongside the QILP to improve population variety and the discovery potential of the MGO approach. A local search technique, called the QILP fit curve, structures a parabolic function in order to determine the highest and lowest points of the curve. The approach benefits from the increased variety and adaptable non-linear modifications through the use of quadratic functions when QILP is included within the MGO algorithm. By considering its location in relation to a pair of randomly chosen neighbors, M a T R 1   and M a T R 2 , these procedures strengthen the solution particle, expressed as M a T t . Consequently, the QILP technique may be used to gradually improve each particle’s location, resulting in the updated position M a T t + 1 , which is computed as follows:
M a T t + 1 = M a T A + M a T B + M a T C 2 × M a T a + M a T b + M a T c ;
where
M a T A = M a T R 1   2   M a T R 2 2 × F M a T t
M a T B =   M a T R 2 2 Y m T 2 × F M a T R 1  
M a T C = M a T t 2 M a T R 1   2 × F   M a T R 2
M a T a = M a T R 1   M a T R 2 × F M a T t
M a T b = M a T R 2 Y m T × F M a T R 1  
M a T c = M a T t M a T R 1 × F   M a T R 2
Here, the fitness indices for the current material and the two randomly selected neighboring materials are denoted as F M a T t , F M a T R 1   , and F   M a T R 2 . The performance of the individual components in relation to the optimization goal is shown by each of the above fitness indices.
Figure 2 shows the primary phases of the suggested IMGO for integrating the QILP. Equations (3) and (4) provide a transition approach that uses the chemistry-bound step to assess the initial novel material component and Equations (8)–(14) to determine the suggested QILP, where Rand in this approach stands for an arbitrary value between 0 and 1. Consequently, the likelihood of creating the first novel material component is 50%.

4. Simulation Results

Three main aspects are examined in this section regarding the use of the suggested IMGO algorithm. Several applications are implemented as follows:
  • First, the performance of the IMGO algorithm is compared to the conventional MGO method utilizing benchmark functions from the CEC 2017 single-objective optimization competition set.
  • Second, the comparisons are extended to consider 23 additional benchmarks.
  • Third, the following three traditional engineering optimization problems are addressed by IMGO: the design of WBD, REBD, and PVD problems. After that, these outcomes are contrasted with those from other well-known algorithms that have been documented in the literature.
  • Fourth, a real-world Egyptian power distribution network is utilized to test both MGO and IMGO. The goal is to minimize energy losses across the system by strategically placing photovoltaic (PV) and capacitor units.
  • Lastly, the applications are extended for solving the parameter estimation problem of a PV cell by considering the commercial RTC France cell.

4.1. Evaluation of CEC 2017 Benchmark Models

When evaluating the efficacy of optimization efforts, benchmark functions are essential. In this study, fifteen mathematical functions from the CEC 2017 competition set are used to compare the performance of the regular MGO with the suggested IMGO approaches. These functions, which come in unimodal, multimodal, mixed, and composite varieties [60], offer a variety of testing environments to evaluate the algorithms’ flexibility and resilience. Table 1 lists the specifics of these unrestricted benchmark functions. Each function runs in a 30-dimensional space with control variables that are bounded between [−100, 100]. As a result, IMGO is used in conjunction with MGO, considering 30 search material agents and 500 generations, and Table 2 summarizes the comparison of their outcomes.
The results presented in Table 2 compare the performance of the proposed IMGO technique with the standard MGO method across various benchmark functions from the CEC 2017 suite. IMGO consistently demonstrates significant improvements in certain benchmarks, as indicated by the improvement percentages across the “Best Score”, “Mean Score”, and “Worst Score” columns. As shown, the suggested IMGO successfully achieves lower fitness scores equivalent to 93.33%, 86.66%, and 86.66% of the investigated benchmarks regarding the best, mean and worst scores, respectively. The suggested IMGO shows a particularly strong improvement in benchmarks such as Fn5 (39.784%), Fn13 (8.410%), and Fn14 (7.149%) in terms of best performance scores. Also, IMGO exhibits substantial improvements in mean performance across many functions. For example, in Fn5, IMGO achieves a 52.619% improvement in mean scores, indicating more consistent performance across multiple runs. Other notable improvements in mean scores include Fn10 (4.906%) and Fn14 (4.253%), showing that IMGO performs more robustly across iterations and is less likely to become trapped in local optima. The improvement in the worst score is a critical indicator of the algorithm’s reliability in avoiding poor solutions. In Fn5, IMGO improves the worst-case performance by 81.060%, highlighting its ability to maintain solution quality even in challenging scenarios. Improvements in the worst score are also notable in Fn8 (6.906%) and Fn10 (5.886%), underscoring IMGO’s robustness. These improvements reflect IMGO’s effectiveness in achieving better optimization accuracy, consistency, and resilience against suboptimal results, making it a promising method for complex optimization tasks.

4.2. Evaluation of 23 Additional Benchmark Models

In this part, the comparisons of the performance of the regular MGO with the suggested IMGO approaches are extended to consider 23 additional benchmarking. The optimization performance evaluations on multiple commonly used benchmarks, including the Sphere Function, Schwefel 2.22 Function, Schwefel 1.2 Function, Schwefel 2.21 Function, Rosenbrock Function, Step Function, Quartic Function, Schwefel Function, Rastrigin Function, Ackley Function, Griewank Function, Penalized Function, Penalized2 Function, Foxholes Function, Kowalik Function, Six Hump Camel Function, Branin Function, GoldStein-Price Function, Hartman 3 Function, Hartman 6 Function, Shekel 5 Function, Shekel 7 Function, and Shekel 10 Function. Table 3 lists the boundaries and the dimensions of each benchmarking function.
The proposed IMGO algorithm was evaluated alongside the original MGO algorithm using 30 search material agents and 1000 generations. The results, summarized in Table 3, are based on 50 independent runs. Additionally, Figure 3 provides a detailed visual comparison of key performance indicators, including the best, mean, worst, and standard deviation (STD). These comparisons are categorized into three possible outcomes, better, equal, and worse, highlighting the performance of IMGO relative to MGO.
The analysis reveals that IMGO consistently achieves significant improvements across various benchmarks. Specifically, IMGO outperforms MGO in achieving better fitness indicators for 12 functions in the best, 18 in the mean, 15 in the worst, and 16 in the STD. This accounts for superior performance in 52.17%, 78.26%, 65.22%, and 69.57% of the functions, respectively.
Furthermore, in some cases, both IMGO and MGO perform equally well. For example, the algorithms exhibit equal fitness indicators in 10 functions for the best, 3 for the mean, 5 for the worst, and 3 for the STD, corresponding to an equivalent performance in 43.48%, 13.04%, 21.74%, and 13.04% of the functions, respectively.
In contrast, IMGO demonstrates worse performance than MGO in a limited number of instances. Specifically, higher fitness values are observed in 1 function for the best, 2 for the mean, 3 for the worst, and 4 for the STD. These account for poorer performance in only 4.35%, 8.70%, 13.04%, and 17.39% of the functions, respectively. Despite these occasional setbacks, the overall results confirm that IMGO excels in most cases, delivering enhanced accuracy, consistency, and resilience against suboptimal solutions. These findings highlight the effectiveness of IMGO as a robust optimization method. Its ability to consistently outperform MGO in key metrics makes it a promising approach for tackling complex optimization challenges, ensuring better results with reduced computational uncertainty.

4.3. Evaluation of Engineering Design Problems

In this section, the following three traditional engineering optimization problems are addressed by IMGO: the design of WBD, REBD, and PVD problems. The standard MGO and the proposed IMGO algorithms are performed in comparison with the reported results taken from several recent optimization algorithms. For a fair comparison, identical conditions are applied across all algorithms as follows: each simulation uses a population of 30 individuals, runs for 300 iterations, and is repeated over 50 independent trials. The simulations are conducted in MATLAB R2017b on a system equipped with an Intel® Core™ i7-7200U processor (2.5 GHz) and 8 GB of RAM (Intel, Santa Clara, CA, USA).

4.3.1. Engineering Design 1: WBD Problem

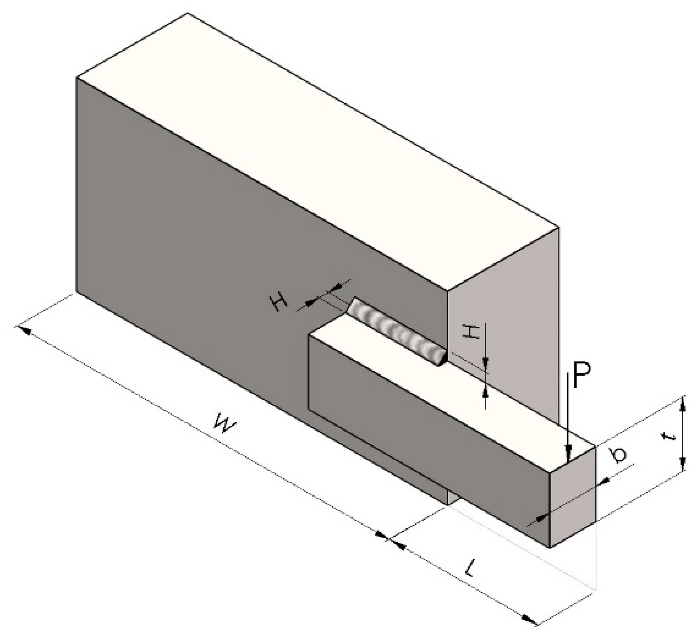
The WBD problem focuses on minimizing the manufacturing cost of a beam, while ensuring constraints on bending stress, shear stress, buckling load, and end deflection are maintained [61]. Figure 4 illustrates the setup of a WB fixed to a substrate. As depicted, the beam supports a load of weight P positioned at a distance L from the substrate. The beam is secured with upper and lower welds of length W and thickness H, creating a rectangular cross-section defined by width b and height t. Constructed from steel, the beam’s design in this study is optimized to minimize cost under the applied load. Specifically, the load weight is fixed at 6000 pounds, while the distance L is set at 14 inches. The design problem includes four continuous variables (x) as described in Equation (15) where H, W, t, and b indicate the weld thickness, weld length, beam height, and beam width for minimizing the manufacturing cost of a beam described in Equation (16), while ensuring constraints on bending stress, shear stress, buckling load, and end deflection are maintained [62].
x = [ H ,   W , t , b ]
C o s t x = 1.1047 × W × H 2 + 0.0481 × b × t × W + 14
The proposed IMGO and the standard MGO methods are applied to the WBD problem for 50 separate runs. The optimal settings and fabrication cost objectives are tabulated in Table 4. Also, the convergence curves of the compared algorithms are displayed in Figure 5. As shown, IMGO provides greater ability in exploring lower cost solutions compared to MGO through the generations, and finally, the proposed IMGO successfully attains a lower cost of 1.634443, while its MGO counterpart obtains a value of 1.63614 with a 0.104% reduction. Table 4 also tabulates the comparisons with the Artificial Ecosystem Optimization (AEO) [63], Fitness-Distance-Balance AEO (FAEO) [62], Chef-Based Optimization Algorithm (CBOA) [64], Beluga Whale Optimization Algorithm (BWOA) [65], Arithmetic-Trigonometric Optimization Algorithm (ATOA) [66], and Atomic Orbital Searching Algorithm (AOSA) [67,68]. IMGO demonstrates significant improvements equivalent to 1.508%, 10.165%, 11.389%, 0.808%, 0.051%, and 0.023% compared to CBOA, BWOA, ATOA, AOSA, AEO, and FAEO, respectively.
Figure 6 displays the heatmap of the obtained cost using MGO and IMGO for the WBD problem. As shown, IMGO consistently achieves a lower cost compared to MGO across all runs, as seen by the near-constant values in the IMGO row. In contrast, the MGO results show significant variation, with costs fluctuating much more widely. This suggests that IMGO provides more stable and reliable solutions for this optimization problem. IMGO produces results that are consistently close to approximately 1.6344 across all runs, while MGO frequently yields higher costs, often above 1.65 and even reaching values around 1.70. This indicates that IMGO is more effective in achieving lower-cost solutions within the given constraints.
Moreover, Table 5 provides a statistical comparison of the IMGO, standard MGO, and various other algorithms (CBOA, BWOA, ATOA, AOSA, AEO, FAEO) in terms of their performance on the WBD problem. The comparison includes the following key statistics: the best, mean, worst, and standard deviation of the costs obtained by each algorithm. As demonstrated, IMGO achieves the lowest best cost value of 1.634443, which outperforms all other algorithms, including MGO (1.636145) and the other reported algorithms (CBOA, BWOA, ATOA, AOSA, AEO, and FAEO). The IMGO algorithm’s mean cost of 1.634564 is significantly lower than those of MGO (1.666251) and the other algorithms, which have considerably higher mean values, particularly ATOA and CBOA, where the mean values are extremely high (in the order of 10 × 1019 and 10 × 1021). IMGO also outperforms other methods in terms of the worst-case cost, with a worst cost of 1.638706, while MGO has a higher worst-case cost of 1.713294. The other algorithms exhibit very high worst costs, indicating poor reliability in finding low-cost solutions in some runs. The proposed IMGO has the lowest standard deviation of 0.000606, indicating that its results are highly consistent across different runs. In contrast, MGO and the other algorithms show greater variation, with much higher standard deviations, especially for CBOA, BWOA, and ATOA, where the deviations are orders of magnitude larger. This low standard deviation further emphasizes IMGO’s stability and reliability in consistently achieving low-cost solutions.
Alternatively, Table 6 presents a comparison of the best costs achieved by various algorithms, including the IMGO, standard MGO, and the other reported algorithms, for solving the WBD problem.
As shown in Table 6, the proposed IMGO achieves the lowest best cost of 1.634443, outperforming all other algorithms listed, including WCMFOA (1.732704), ESO (1.728783), HSOGA (1.727341), HOA (1.722109), ADEA (1.7248523085), HMOA (1.695247), and MGO (1.636145). The proposed IMGO shows significant improvements equivalent to 5.67%, 5.46%, 5.38%, 5.24%, 5.09%, 3.59%, and 0.10% compared to WCMFOA, ESO, HSOGA, HOA, ADEA, HMOA, and MGO, respectively. Thus, the proposed IMGO demonstrates superior optimization performance compared to MGO and the other advanced algorithms, achieving the lowest best cost for the WBD problem. This positions IMGO as the most effective method among the compared algorithms, showcasing its ability to find highly optimized solutions where other methods fall short.

4.3.2. Engineering Design 2: REBD Problem

Figure 7 illustrates the engineering problem where the REBD focuses on optimizing the bearing’s load-carrying capacity [72]. In this context, ten design variables likely encompass factors such as the diameter, length, material characteristics, and shape configurations of the rolling elements, in addition to parameters related to the bearing raceways and clearances. Each design variable significantly influences the bearing’s load capacity, durability, and operational reliability. This design challenge involves ten continuous variables (x), as defined in Equation (17), aiming to maximize the bearing’s load capacity, as outlined in Equation (18). Furthermore, ten constraints are applied to regulate these variables. These constraints may account for material strength, geometric restrictions, stress and wear limitations, temperature tolerances, and other engineering criteria essential to ensuring its safe and effective performance within the bearing’s intended application [62].
x = [ D ,   D b , Z ,   f i ,   f o ,   K D , m i n ,   K D , m a x ,   ε , e , ξ ]
L o a d x = M a x i m i z e f c × Z 0.67 × D b 1.80 i f   D b 25.4   m m 6.647 × f c × Z 0.67 × D b 1.40 i f   D b > 25.4   m m
The proposed IMGO and the standard MGO methods are applied for the REBD problem and the optimal settings and loading objective are tabulated in Table 7. Also, the convergence curves of the compared algorithms are displayed in Figure 8.
In this figure, both techniques seek to minimize the negative objective which represents the maximization of the load-carrying capacity. As shown, IMGO demonstrates a greater ability in exploring lower objective solutions compared to MGO through the generations, and finally, the proposed IMGO successfully attains the lower objective of −85,549.152, while its MGO counterpart value is equivalent to −85,547.295. Table 7 also tabulates comparisons with the other reported settings-based algorithms of AEO, FAEO, CBOA, BWOA, ATOA, and AOSA [62]. The proposed IMGO achieves the highest load performance of 85,549.152, slightly outperforming MGO (85,547.295) and all the other algorithms. CBOA, BWOA, ATOA, AOSA, AEO, and FAEO produce lower load values (i.e., 85,475.013 for CBOA, 77,061.675 for BWOA, 85,411.681 for ATOA, 85,162.698 for AOSA, 85,535.833 for AEO, and 85,538.445 for FAEO) than IMGO and MGO. This indicates that IMGO provides a more optimal solution compared to the other reported algorithms, confirming IMGO’s competitive edge in precision and performance.
Figure 9 displays the heatmap of the obtained cost using MGO and IMGO for the REBD problem. The contrast in the heatmap effectively visualizes the performance gap between IMGO and MGO, underscoring the superiority of the proposed IMGO method in maximizing load values consistently. As shown, IMGO consistently produces higher load values (approximately 85,549) across all runs, as visualized by the bottom row, showing a more saturated color band in the heatmap. This uniformity signifies IMGO’s ability to achieve stable and optimized load results, outperforming MGO in every instance. On the other hand, the MGO results indicate a less stable performance compared to IMGO.
Moreover, Table 8 provides a statistical comparison of the IMGO, standard MGO, and various other algorithms (CBOA, BWOA, ATOA, AOSA, AEO, FAEO) in terms of their performance on the REBD problem.
As demonstrated, the IMGO algorithm’s mean load of 85,546.950 is significantly higher than those of MGO (85,530.002) and the other algorithms, which have considerably lower mean values, particularly BWOA, ATOA, and AOSA, where the mean values are extremely high (in the order of 63,995.023, 51,582.611, and 69,772.645). Also, IMGO outperforms all other methods in terms of the worst-case load, with a worst load of 85,535.607. The proposed IMGO has the lowest standard deviation at 3.416, indicating that its results are highly consistent across different runs. By contrast, MGO (9.767), FAEO (53.148), and the other algorithms show greater variation, with much higher standard deviations, especially compared to AOSA (16,605.259), BWOA (10,247.562), ATOA (8792.876), AEO (6019.295), and CBOA (1117.190), where the deviations are orders of magnitude larger.
Alternatively, Table 9 presents a comparison of the maximum load achieved by various algorithms, including the IMGO, standard MGO, and the other reported algorithms used to solve the REBD problem.
As shown in Table 9, the proposed IMGO achieves the highest load, outperforming all the other algorithms listed, including SDA (81,575.185), GA (81,841.511), MBO (81,843.686), Chaotic-JAYA (81,858.318), TLA (81,859.738), and MGO (185,547.295). The proposed IMGO demonstrates superior optimization performance compared to MGO and the other advanced algorithms, achieving the highest best load for the REBD problem.

4.3.3. Engineering Design 3: PVD Problem

Figure 10 presents an engineering optimization problem in which the primary goal of the Pressure Vessel Design (PVD) is to reduce total fabrication costs. These costs encompass expenses related to materials, forming, and welding. The objective of this problem is to achieve the lowest possible production cost for the design depicted in Figure 10 [77]. This optimization involves adjusting four variables, represented as x, which are specified in Equation (19) and aim to minimize the fabrication costs detailed in Equation (20). Additionally, the problem includes four constraints that must be adhered to for a feasible solution.
x = [ T s ,   T h , R ,   L ]
C o s t x = 0.6224 × T s × R × L + 1.7781 × T h × R 2 + 3.1661 × T s 2 × L + 19.84 × T s 2 × R
The proposed IMGO and the standard MGO methods are applied for the PVD problem, and the optimal settings and fabrication cost objectives are tabulated in Table 10. Also, the convergence curves of the compared algorithms are displayed in Figure 11. As shown, the proposed IMGO successfully attains a lower cost of 5885.3329 while its MGO counterpart is equivalent to 5885.5584. Table 10 also tabulates comparisons with AEO, FAEO, CBOA, BWOA, ATOA, and AOSA [62]. As shown, the proposed IMGA achieves the lowest cost compared to all others.
Figure 12 shows that IMGO consistently achieves lower costs compared to MGO for the PVD problem, with near-constant values in the IMGO row. IMGO provides more stable, reliable solutions, with results close to approximately 5885 across most runs indicating its effectiveness.
Moreover, Table 11 provides a statistical comparison of the IMGO, standard MGO, and various other algorithms (CBOA, BWOA, ATOA, AOSA, AEO, FAEO) in terms of their performance on the PVD problem. As demonstrated, IMGO achieves the lowest mean cost value at 5894.55, which outperforms all other algorithms, including MGO (5889.51) and the other reported algorithms (CBOA, BWOA, ATOA, AOSA, AEO, and FAEO) which attain higher costs (20,603.45, 11,436.81, 27,135.55, 6825.11, 6338.51, and 5959.46). MGO and IMGO also outperform the other methods in terms of the standard deviations, which are equivalent to 20.4 and 21.8, respectively. The other algorithms exhibit very high variation, with much higher standard deviations, especially for CBOA, BWOA, and ATOA, where the deviations are significantly larger with values equivalent to 13,257.38, 3385.68, and 25,920.65, respectively.
For tackling the PVD problem, Table 12 compares the best prices attained by the several strategies reported. As demonstrated, the suggested IMGO outperforms all other algorithms provided and attains the lowest best cost of 5885.33. Therefore, the suggested IMGO achieves the lowest optimal cost for the PVD issue and exhibits better optimization performance compared to MGO and the other sophisticated algorithms.

4.4. IMGO for PV Source Penetration and Shunt Capacitors in Distribution Systems

Optimizing the placement and sizing of PV distributed generation units and shunt capacitors in power distribution systems can effectively reduce power and energy losses. This approach enhances system efficiency, lowers operational costs, and mitigates adverse environmental effects. The PV dispersed power generation and capacitor model can be optimized to lower energy losses, as demonstrated by Equation (21), and raise the system’s total energy efficiency. In Equation (21), the daily losses of energy are denoted by E n e r g y L o s s , h denotes one hour, the number of hours per day is denoted by Nh, and Lossh represents the total amount of power lost in one hour in the system. The hourly losses are depicted in Equation (22), where NLD refers to the number of the existing branches in the system, ILD denotes the current flowing through each line (LD), and RLD represents the resistance of each branch (LD).
E n e r g y L o s s = h = 1 N h L o s s h
L o s s h = L D = 1 N L D I L D 2 × R L D
The following two types of design variables are defined, the locations and capacities of PV sources and capacitors. The PV sources can be installed and connected at any bus within the distribution network, with their capacities restricted as specified in Equations (23) and (24). These equations establish the limitations of the PV systems, where PV_busj represents the maximum number of PV units allowed at each bus, NPV denotes the total number of PV units to be integrated, PPV,limit is the upper capacity limit, and PPV,j signifies the candidate capacity of each PV unit under consideration.
Additionally, the positioning and sizing of capacitors are subject to constraints defined in Equations (25) and (26). These equations specify the limits for capacitor placement, where CPk designates each potential bus location for capacitor installation. NCP represents the maximum number of capacitors that can be considered, while QCP,k and QCP,limit indicate the candidate size and the upper limit of the capacitors at each designated bus CPk, respectively.
In addition, it is essential to regulate the voltage levels at each distribution node to ensure system stability. This requirement can be represented mathematically, as shown in Equation (27), where VBs,min and VBs,max denote the minimum and maximum allowable voltage limits for the bus nodes. Alongside voltage control, maintaining security constraints on power flow is also crucial. Equation (28) models this condition [78], where ILD,limit reflects the thermal capacity of each distribution line, ensuring current flow stays within safe operational boundaries.
Additionally, it is crucial to ensure that the balance constraints for active and reactive power flows are met, as outlined in Equations (29) and (30). In these equations, PGrid,h and QGrid,h denote the active and reactive power provided by the grid substation on an hourly basis, respectively. Similarly, Pdk,h and Qdk,h represent the active and reactive power demands at each endpoint k for each hour. The terms Lossh and Loss_Qh account for the hourly active and reactive power losses within the system, ensuring that all power flows are balanced and that system demands are met across each time period.
2 < P V _ b u s j N b u s j = 1 : N P V
0 < P P V , j P P V , l i m i t , j j = 1 : N P V
2 < C P k N b u s k = 1 : N C P
0 < Q C P , k Q C P , l i m i t , k k = 1 : N C P
V B s , m i n < V B s V B s , m a x B s = 1 : N b u s
I L D I L D , l i m i t L D = 1 : N L D
k = 1 N b u s P d k , h = P G r i d , h L o s s h + j = 1 N P V P P V , j , h
k = 1 N b u s Q d k , h = Q G r i d , h L o s s _ Q h + j = 1 N C P Q C P j , h
The proposed IMGO and standard MGO are evaluated on a practical Egyptian distribution network, specifically the Tala distribution feeder in the Minoufia governorate, as detailed in reference [79]. This system includes 37 nodes and 36 lines, as shown in Figure 13, and operates at a rated voltage of 11 kV. Under normal load conditions, the system’s total active and reactive power demands reach 4801.9 kW and 2975.9 kVAr, respectively. To ensure reliability, the operating voltage is maintained within a permissible range of 10%. Additionally, variations in the hourly load, expressed as percentages of the nominal load, are considered, as illustrated in Figure 14.
The maximum allowable size for capacitor installations is limited to 3600 kVAr, with a cap of five units that can be deployed across the system. Similarly, the maximum capacity for each PV system is set at 1000 kW, with a limit of five PV units permitted for installation. Within this setup, both the proposed IMGO and the standard MGO algorithms are tailored to optimize the placement and sizing of the PV units and shunt capacitors to reduce energy losses, taking into account fluctuations in load demand and PV power generation.
The IMGO and MGO algorithms are utilized to determine the most efficient locations and capacities for both PV units and capacitors. Also, classical and widely accepted metaheuristic techniques are employed, such as the Genetic algorithm (GA) [80] in its real coded version, DE [81], PSO [82], and Multi-Verse Optimizer (MVO) [83]. Their settings are comprehensively tabulated in Table 13. Each algorithm undergoes 20 separate runs to ensure a comprehensive assessment is carried out and reliable results are obtained [84]. The results of MGO, IMGO, and DE are outlined in Table 14, while the results of PSO, GA, and MVO are outlined in Table 15. This comparison would provide greater reliability in the proposed metaheuristic results. Their convergence behavior for each algorithm is shown in Figure 15.
Using the standard MGO, optimal PV placements are identified at buses 12, 17, 26, 28, and 31, with capacities of 765 kW, 562 kW, 676 kW, 329 kW, and 417 kW, respectively. For capacitors, the MGO algorithm selects buses 4, 7, 9, 26, and 29, assigning capacities of 973 kVAr, 1404 kVAr, 2107 kVAr, 579 kVAr, and 247 kVAr, respectively. Conversely, the proposed IMGO algorithm selects buses 7, 14, 22, 26, and 29 for PV installation with capacities of 681 kW, 482 kW, 644 kW, 650 kW, and 736 kW. For capacitors, it identifies buses 5, 11, 13, 25, and 33, with sizes of 2109 kVAr, 944 kVAr, 475 kVAr, 1202 kVAr, and 260 kVAr, respectively. These results indicate that the IMGO algorithm achieves daily energy losses equivalent to 10,495.75 kWday, which is a reduction in energy loss compared to the 10,582.90 kWday achieved by the standard MGO, yielding energy savings of over 87 kW per day. Also, the proposed IMGO outperforms DE, PSO, GA, and MVO, which achieve daily energy losses of 10,780.56, 10,782.79, 21,757.48, and 10,521.98 kWday.
Figure 16 displays the heatmap of the obtained cost using MGO and IMGO for the 20 separate runs. As shown, IMGO consistently achieves lower energy losses compared to MGO across all runs. In contrast, the MGO results show significant variation, with costs fluctuating much more widely. This suggests that IMGO provides more stable and reliable solutions for this optimization problem. We aimed to assess the four key performance metrics, the best, mean, worst, and standard deviation (STD), of the energy losses observed. The proposed IMGO algorithm outperforms MGO across all metrics, achieving a lower best value (10,495.75 kW/day compared to 10,582.90 kW/day), mean (10,656.25 kW/day vs. 10,878.77 kW/day), and worst-case loss (11,068.10 kW/day vs. 11,735.97 kW/day). Additionally, IMGO demonstrates improved consistency in its results, reflected by a smaller standard deviation (161.05) compared to that of MGO (254.66). This suggests that IMGO not only minimizes energy losses more effectively but also provides more stable and reliable outcomes than MGO.
In order to extend the comparisons with the widely accepted metaheuristic techniques of GA, DE, PSO, and MVO across the different 20 separate runs, Figure 17 displays the box and whisker plot of MGO, IMGO, DE, PSO, GA, and MVO for energy loss minimization. In this figure, the related box of the GA does not appear, as it acquires very high values compared to the others. As shown, a significant reduction is clearly demonstrated by the proposed IMGO, with improvements of 2.09%, 4.18%, 5.96%, 92.61%, and 1.55% compared to MGO, DE, PSO, GA, and MVO, respectively, considering the mean acquired indicator.
To assess its performance, comparisons are conducted with the reported algorithms, including the Dragonfly Algorithm (DA), Augmented Subtraction-Based average Algorithm (ASBA), SBA, Osprey Optimization Algorithm (OOA), and Coati Optimization Algorithm (COA) [84]. Table 16 presents a comparative analysis of daily energy losses (in kW/day) across multiple optimization algorithms, including the proposed IMGO, MGO, and several other reported methods (ASBA, DA, NGO, COA, OMA, OOA, and SBA).
This table highlights the effectiveness of IMGO in minimizing energy losses, achieving the lowest energy losses per day at 10,495.75 kW/day. Compared to MGO, IMGO shows a 0.82% improvement in reducing energy losses. The improvement percentages indicate that IMGO also outperforms all other listed algorithms, with a 0.55% reduction over ASBA, 1.48% over DA, 1.54% over NGO, 2.05% over COA, 2.81% over OMA, 4.27% over OOA, and a substantial 7.68% reduction over SBA. These results demonstrate IMGO’s superiority over other well-established algorithms in minimizing energy losses.

4.5. IMGO for the PV Parameter Estimation Problem

The Double Diode (DD) model is an extension of the single diode which shows better accuracy. This model has an additional diode, as shown in Figure 18, to account for recombination processes in the space-charge region.
The primary aim of this application is to accurately determine the optimal I–V characteristics of the PV model by identifying the most precise representation that aligns closely with the experimentally recorded data. Achieving this requires extracting a set of parameters that not only reflect the physical and electrical properties of the solar cell or module but also ensure a high degree of fidelity in replicating its behavior under various operating conditions.
To quantify the accuracy of the extracted parameters and evaluate how well the modeled I–V characteristics correspond to the measured experimental data, the root mean square error (RMSE) is utilized as the performance metric. RMSE serves as a robust indicator of the deviation between the observed and modeled values, effectively capturing the extent of discrepancies across all data points. The formulation of RMSE, as used in this study, is given by the following equation:
R M S E = 1 M P L = 1 M P ( I c a l c L ( V t , o b s L , x ) I o b s L ) 2
Here, MP represents the total number of measured data points, while Iobs and Vobs denote the observed current and voltage values, respectively. The variable x signifies the candidate solution during the optimization process and encapsulates the potential PV characteristics being evaluated.
The equivalent circuit design of the DD-PV model is illustrated in Figure 18. Using Kirchhoff’s Current Law (KCL), the I–V characteristic curve of the DD model can be mathematically expressed as follows:
I = I p h + V t R s h I R s s R s h I S 1 exp I R s s + V t η 1   V t h 1 I S 2 exp I R s s + V t η 2   V t h 1
In this context, Vt represents the terminal voltage of the PV cell. The thermal voltage (Vth) of the PV cell is an important parameter and can be computed using Equation (33).
V t h = K B Z × T q c
This equation incorporates the following fundamental constants and operating conditions: T is the cell temperature measured in Kelvin, and KBZ is Boltzmann’s constant (1.3806503 × 10−23 J/K). The Shockley diode equation also employs qc, the electron’s charge magnitude (1.60217646 × 10−19 C), to account for the charge carriers’ behavior within the cell.
For the application, the commercial silicon solar R.T.C. France cell is considered under a sun radiance of 1000 W/m2 and runs at 33 °C. It has an open circuit voltage of 0.5727 V and a short-circuit current of 0.7605 A. Moreover, the maximum point voltage and current of R.T.C. France are 0.4590 V and 0.6755 A, respectively. The proposed IMGO is applied, considering their upper (UP) and lower (LOW) boundaries and the acquired parameters which are shown in Table 17. Also, the results are compared with MGO, a Dwarf Mongoose Optimizer (DMO), and a rime algorithm (RIME) [59] under the similar conditions of 1000 iterations and 200 solutions. From this table, the proposed IMGO displays a similar performance, with MGO achieving the lowest RMSE value of 9.824848 × 10−4 and both acquiring lower RMSE compared to DMO and RIME, which attain values equal to 1.028696 × 10−3 and 9.9382 × 10−4, respectively.
Additionally, the observed and predicted I–V and P-V characteristics for the DD-PV model are shown in Figure 19a,b. The data produced by the IMGO approach can be shown to closely match the data obtained through experimentation, indicating that the MGA technique was effective in generating power and current over a variety of voltages.
Also, the sensitivity analysis for MGO and IMGO are presented in Figure 20, which provides key insights into the performance differences between the two algorithms for RTC cell parameter estimation. The results reveal how the algorithms perform under varying configurations of solutions and iterations. In terms of the best RMSE (Figure 20a), both algorithms show similar performance across most configurations. For instance, at the configuration of 50 solutions and 500 iterations, IMGO slightly outperforms MGO with an RMSE of 0.000983 compared to 0.000984. As the number of iterations increases, the differences diminish, with both algorithms converging to comparable values. The mean RMSE values (Figure 20b) highlight IMGO’s significant advantage in stability and robustness. For lower configurations such as 50 solutions and 500 iterations, IMGO achieves a mean RMSE of 0.001053, noticeably better than MGO’s 0.001195. This trend continues across various configurations, with IMGO maintaining a consistent edge, particularly when the number of iterations is low. IMGO’s ability to handle extreme cases is evidenced in the worst RMSE results (Figure 20c). At a configuration of 50 solutions and 500 iterations, IMGO records an RMSE of 0.001399, significantly lower than MGO’s 0.002029. This pattern holds across different configurations, showcasing IMGO’s robustness in mitigating outliers and delivering more reliable solutions across iterations. The standard deviation of the RMSE values (Figure 20d) further underscores IMGO’s enhanced precision. At lower configurations, such as 50 solutions and 500 iterations, IMGO achieves a standard deviation of 0.000105, a substantial improvement over MGO’s 0.000286. As iterations and solutions increase, IMGO continues to demonstrate superior accuracy, with a standard deviation of 1.24 × 10−6 at 100 solutions and 2000 iterations compared to MGO’s 1.29 × 10−6. These results validate IMGO’s refinement capabilities and its ability to deliver highly precise solutions.

5. Conclusions

This study presented the IMGO algorithm, an advanced bio-inspired approach designed to tackle complex engineering optimization problems, including the strategic placement and sizing of PV and capacitor units in power distribution systems. By integrating the QILP into the standard MGO, IMGO significantly improved exploration and solution diversity, effectively navigating local optima. IMGO achieved substantial advancements in solving 23 benchmark models, with improvements in accuracy and consistency exceeding 65% and 69%, respectively, confirming its potential for complex problem-solving. Comparative results across various benchmark functions and real-world engineering design challenges, such as the WBD, REBD, and PVD problems, demonstrated IMGO’s superior performance in solution quality, stability, and reliability over existing optimization algorithms. Moreover, the application of IMGO on an Egyptian distribution feeder illustrated its potential in practical power system optimizations, achieving substantial reductions in energy losses. The daily loss reduction highlights IMGO’s capability to improve system efficiency and sustainability, supporting the growing demand for energy-saving solutions in modern power networks. Lastly, the IMGO algorithm’s implementation in PV parameter estimation yielded a 27.8% reduction in errors, underscoring its reliability and precision in engineering applications.

Author Contributions

Conceptualization, M.G. and S.S.; Methodology, A.R.G.; Software, A.M.S.; Validation, A.R.G. and A.M.S.; Formal analysis, M.G.; Investigation, S.S. and A.R.G.; Data curation, M.G.; Writing—original draft, A.R.G. and A.M.S.; Writing—review and editing, M.G., S.S. and A.M.S.; Visualization, S.S. All authors have read and agreed to the published version of the manuscript.

Funding

This research was funded by Prince Sattam bin Abdulaziz University grant number [PSAU/2024/01/29203].

Institutional Review Board Statement

Not applicable.

Informed Consent Statement

Not applicable.

Data Availability Statement

The original contributions presented in this study are included in the article. Further inquiries can be directed to the corresponding author.

Acknowledgments

The authors extend their appreciation to Prince Sattam bin Abdulaziz University for funding this research work through the project number (PSAU/2024/01/29203).

Conflicts of Interest

The authors declare no conflicts of interest.

References

  1. Jakšić, Z.; Devi, S.; Jakšić, O.; Guha, K. A Comprehensive Review of Bio-Inspired Optimization Algorithms Including Applications in Microelectronics and Nanophotonics. Biomimetics 2023, 8, 278. [Google Scholar] [CrossRef] [PubMed]
  2. Fan, X.; Sayers, W.; Zhang, S.; Han, Z.; Ren, L.; Chizari, H. Review and Classification of Bio-inspired Algorithms and Their Applications. J. Bionic Eng. 2020, 17, 611–631. [Google Scholar] [CrossRef]
  3. Molina, D.; LaTorre, A.; Herrera, F. An Insight into Bio-inspired and Evolutionary Algorithms for Global Optimization: Review, Analysis, and Lessons Learnt over a Decade of Competitions. Cogn. Comput. 2018, 10, 517–544. [Google Scholar] [CrossRef]
  4. Alhijawi, B.; Awajan, A. Genetic algorithms: Theory, genetic operators, solutions, and applications. Evol. Intell. 2024, 17, 1245–1256. [Google Scholar] [CrossRef]
  5. Masoum, M.A.S.; Ladjevardi, M.; Jafarian, A.; Fuchs, E.F. Optimal Placement, Replacement and Sizing of Capacitor Banks in Distorted Distribution Networks by Genetic Algorithms. IEEE Trans. Power Deliv. 2004, 19, 1794–1801. [Google Scholar] [CrossRef]
  6. Sinha, N.; Chakrabarti, R.; Chattopadhyay, P. Evolutionary programming techniques for economic load dispatch. IEEE Trans. Evol. Comput. 2003, 7, 83–94. [Google Scholar] [CrossRef]
  7. Singh, N.J.; Singh, S.; Chopra, V.; Aftab, M.A.; Hussain, S.M.S.; Ustun, T.S. Chaotic Evolutionary Programming for an Engineering Optimization Problem. Appl. Sci. 2021, 11, 2717. [Google Scholar] [CrossRef]
  8. Li, S.; Gong, W.; Wang, L.; Yan, X.; Hu, C. Optimal power flow by means of improved adaptive differential evolution. Energy 2020, 198, 117314. [Google Scholar] [CrossRef]
  9. Bilal; Pant, M.; Zaheer, H.; Garcia-Hernandez, L.; Abraham, A. Differential Evolution: A review of more than two decades of research. Eng. Appl. Artif. Intell. 2020, 90, 103479. [Google Scholar] [CrossRef]
  10. Nama, S.; Saha, A.K.; Sharma, S. Performance up-gradation of Symbiotic Organisms Search by Backtracking Search Algorithm. J. Ambient. Intell. Humaniz. Comput. 2022, 13, 5505–5546. [Google Scholar] [CrossRef]
  11. Shaheen, A.M.; El-Sehiemy, R.A.; Farrag, S.M. Optimal reactive power dispatch using backtracking search algorithm. Aust. J. Electr. Electron. Eng. 2016, 13, 200–210. [Google Scholar] [CrossRef]
  12. Shami, T.M.; El-Saleh, A.A.; Alswaitti, M.; Al-Tashi, Q.; Summakieh, M.A.; Mirjalili, S. Particle Swarm Optimization: A Comprehensive Survey. IEEE Access 2022, 10, 10031–10061. [Google Scholar] [CrossRef]
  13. Shaheen, A.M.; Alassaf, A.; Alsaleh, I.; El-Fergany, A.A. Advancements in Model Parameter Estimation for Proton Exchange Membrane Fuel Cells via Enhanced Artificial Hummingbird Algorithm. Int. J. Energy Res. 2024, 2024, 7616065. [Google Scholar] [CrossRef]
  14. Shaheen, A.M.; Ginidi, A.R.; Alassaf, A.; Alsaleh, I. Developing artificial hummingbird algorithm with linear controlling strategy and diversified territorial foraging tactics for combined heat and power dispatch. Alex. Eng. J. 2024, 105, 245–260. [Google Scholar] [CrossRef]
  15. Alqahtani, M.H.; Shaheen, A.M. Satin bowerbird algorithm with an adaptive constriction factor for enhanced photovoltaic integration in distribution feeders. Results Eng. 2024, 23, 102502. [Google Scholar] [CrossRef]
  16. Djalal, M.R.; Saini, M.; Yunus, A.M.S. Optimization Power System Stabilizer and Energy Storage Using Ant Colony Optimization. In Proceedings of the 2021 International Seminar on Machine Learning, Optimization, and Data Science, ISMODE 2021, Jakarta, Indonesia, 29–30 January 2022. [Google Scholar] [CrossRef]
  17. Hamouda, N.; Babes, B.; Hamouda, C.; Kahla, S.; Ellinger, T.; Petzoldt, J. Optimal Tuning of Fractional Order Proportional-Integral-Derivative Controller for Wire Feeder System Using Ant Colony Optimization. J. Eur. Syst. Autom. 2020, 53, 157–166. [Google Scholar] [CrossRef]
  18. Darvishpoor, S.; Darvishpour, A.; Escarcega, M.; Hassanalian, M. Nature-Inspired Algorithms from Oceans to Space: A Comprehensive Review of Heuristic and Meta-Heuristic Optimization Algorithms and Their Potential Applications in Drones. Drones 2023, 7, 427. [Google Scholar] [CrossRef]
  19. Braik, M.; Hammouri, A.; Atwan, J.; Al-Betar, M.A.; Awadallah, M.A. White Shark Optimizer: A novel bio-inspired meta-heuristic algorithm for global optimization problems. Knowl.-Based Syst. 2022, 243, 108457. [Google Scholar] [CrossRef]
  20. Abualigah, L.; Shehab, M.; Alshinwan, M.; Alabool, H. Salp swarm algorithm: A comprehensive survey. Neural Comput. Appl. 2020, 32, 11195–11215. [Google Scholar] [CrossRef]
  21. Mirjalili, S.; Gandomi, A.H.; Mirjalili, S.Z.; Saremi, S.; Faris, H.; Mirjalili, S.M. Salp Swarm Algorithm: A bio-inspired optimizer for engineering design problems. Adv. Eng. Softw. 2017, 114, 163–191. [Google Scholar] [CrossRef]
  22. Faramarzi; Heidarinejad, M.; Mirjalili, S.; Gandomi, A.H. Marine predators algorithm: A nature-inspired Metaheuristic. Expert Syst. Appl. 2020, 152, 113377. [Google Scholar] [CrossRef]
  23. Shaheen, A.M.; Hamida, M.; Alassaf, A.; Alsaleh, I. Enhancing parameter identification and state of charge estimation of Li-ion batteries in electric vehicles using an improved marine predators algorithm. J. Energy Storage 2024, 84, 110982. [Google Scholar] [CrossRef]
  24. Zhao, W.; Zhang, Z.; Wang, L. Manta ray foraging optimization: An effective bio-inspired optimizer for engineering applications. Eng. Appl. Artif. Intell. 2020, 87, 103300. [Google Scholar] [CrossRef]
  25. Shaheen, A.M.; Ginidi, A.R.; El-Sehiemy, R.A.; Ghoneim, S.S.M. Economic Power and Heat Dispatch in Cogeneration Energy Systems Using Manta Ray Foraging Optimizer. IEEE Access 2020, 8, 208281–208295. [Google Scholar] [CrossRef]
  26. Xie, L.; Han, T.; Zhou, H.; Zhang, Z.-R.; Han, B.; Tang, A. Tuna Swarm Optimization: A Novel Swarm-Based Metaheuristic Algorithm for Global Optimization. Comput. Intell. Neurosci. 2021, 2021, 9210050. [Google Scholar] [CrossRef]
  27. Rao, R.; Savsani, V.; Vakharia, D. Teaching–Learning-Based Optimization: An optimization method for continuous non-linear large scale problems. Inf. Sci. 2012, 183, 1–15. [Google Scholar] [CrossRef]
  28. Xue, R.; Wu, Z. A Survey of Application and Classification on Teaching-Learning-Based Optimization Algorithm. IEEE Access 2020, 8, 1062–1079. [Google Scholar] [CrossRef]
  29. Abualigah, L.; Diabat, A.; Geem, Z.W. A Comprehensive Survey of the Harmony Search Algorithm in Clustering Applications. Appl. Sci. 2020, 10, 3827. [Google Scholar] [CrossRef]
  30. Zhu, D.; Wang, S.; Zhou, C.; Yan, S.; Xue, J. Human memory optimization algorithm: A memory-inspired optimizer for global optimization problems. Expert Syst. Appl. 2024, 237, 121597. [Google Scholar] [CrossRef]
  31. Trojovský, P. A new human-based metaheuristic algorithm for solving optimization problems based on preschool education. Sci. Rep. 2023, 13, 21472. [Google Scholar] [CrossRef]
  32. Faridmehr, I.; Nehdi, M.L.; Davoudkhani, I.F.; Poolad, A. Mountaineering Team-Based Optimization: A Novel Human-Based Metaheuristic Algorithm. Mathematics 2023, 11, 1273. [Google Scholar] [CrossRef]
  33. Trojovský, P.; Dehghani, M. Migration Algorithm: A New Human-Based Metaheuristic Approach for Solving Optimization Problems. Comput. Model. Eng. Sci. 2023, 137, 1695–1730. [Google Scholar] [CrossRef]
  34. Kundu, R.; Chattopadhyay, S.; Nag, S.; Navarro, M.A.; Oliva, D. Prism refraction search: A novel physics-based metaheuristic algorithm. J. Supercomput. 2024, 80, 10746–10795. [Google Scholar] [CrossRef]
  35. Qais, M.H.; Hasanien, H.M.; Alghuwainem, S.; Loo, K.H. Propagation Search Algorithm: A Physics-Based Optimizer for Engineering Applications. Mathematics 2023, 11, 4224. [Google Scholar] [CrossRef]
  36. Abdel-Basset, M.; Mohamed, R.; Azeem, S.A.A.; Jameel, M.; Abouhawwash, M. Kepler optimization algorithm: A new metaheuristic algorithm inspired by Kepler’s laws of planetary motion. Knowl.-Based Syst. 2023, 268, 110454. [Google Scholar] [CrossRef]
  37. Fang, L.; Yao, Y.; Liang, X. New binary archimedes optimization algorithm and its application. Expert Syst. Appl. 2023, 230, 120639. [Google Scholar] [CrossRef]
  38. Rashedi, E.; Nezamabadi-Pour, H.; Saryazdi, S. GSA: A Gravitational Search Algorithm. Inf. Sci. 2009, 179, 2232–2248. [Google Scholar] [CrossRef]
  39. Chou, J.-S.; Truong, D.-N. A novel metaheuristic optimizer inspired by behavior of jellyfish in ocean. Appl. Math. Comput. 2021, 389, 125535. [Google Scholar] [CrossRef]
  40. Rauth, S.S.; Kastha, D.; Bajpai, P. Jellyfish search algorithm-based optimum tuning of PI controller for a front-end converter in a DFIG-based wind energy conversion system. Soft Comput. 2024, 28, 7287–7302. [Google Scholar] [CrossRef]
  41. Meng, K.; Chen, C.; Wu, T.; Xin, B.; Liang, M.; Deng, F. Evolutionary State Estimation-Based Multi-Strategy Jellyfish Search Algorithm for Multi-UAV Cooperative Path Planning. IEEE Trans. Intell. Veh. 2024, 1–19. [Google Scholar] [CrossRef]
  42. Mohamedshareef, R.; Abapour, M.; Hosseini, S.H.; Seyedi, H. Optimal overcurrent relay coordination: Balancing costs, time performance and generator placement in fault current limiter optimization. IET Gener. Transm. Distrib. 2024, 18, 1431–1448. [Google Scholar] [CrossRef]
  43. Yang, B.; Zhang, M.; Guo, Z.; Cao, P.; Yang, J.; He, G.; Yang, J.; Su, R.; Huang, X.; Zhu, M.; et al. Adaptive evolutionary jellyfish search algorithm based optimal photovoltaic array reconfiguration under partial shading condition for maximum power extraction. Expert Syst. Appl. 2023, 215, 119325. [Google Scholar] [CrossRef]
  44. Yang, B.; Wu, S.; Li, Q.; Yan, Y.; Li, D.; Luo, E.; Zeng, C.; Chen, Y.; Guo, Z.; Shu, H.; et al. Jellyfish search algorithm based optimal thermoelectric generation array reconfiguration under non-uniform temperature distribution condition. Renew. Energy 2023, 204, 197–217. [Google Scholar] [CrossRef]
  45. AlSaba, M.T.; Hakami, N.A.; AlJebreen, K.S.; Abido, M.A. Multi-objective distributionally robust approach for optimal location of renewable energy sources. Alex. Eng. J. 2023, 77, 75–94. [Google Scholar] [CrossRef]
  46. Mansouri, N.; Lashab, A.; Guerrero, J.M.; Cherif, A. Photovoltaic power plants in electrical distribution networks: A review on their impact and solutions. IET Renew. Power Gener. 2020, 14, 2114–2125. [Google Scholar] [CrossRef]
  47. Leghari, Z.H.; Kumar, M.; Shaikh, P.H.; Kumar, L.; Tran, Q.T. A Critical Review of Optimization Strategies for Simultaneous Integration of Distributed Generation and Capacitor Banks in Power Distribution Networks. Energies 2022, 15, 8258. [Google Scholar] [CrossRef]
  48. Pamuk, N.; Uzun, U.E. Optimal Allocation of Distributed Generations and Capacitor Banks in Distribution Systems Using Arithmetic Optimization Algorithm. Appl. Sci. 2024, 14, 831. [Google Scholar] [CrossRef]
  49. Rehman, N.; Mufti, M.U.D.; Gupta, N. Power flow analysis in a distribution system penetrated with renewable energy sources: A review. Int. J. Ambient. Energy 2024, 45, 2305701. [Google Scholar] [CrossRef]
  50. Montoya, O.D.; Gil-González, W.; Hernández, J.C. Efficient Integration of Fixed-Step Capacitor Banks and D-STATCOMs in Radial and Meshed Distribution Networks Considering Daily Operation Curves. Energies 2023, 16, 3532. [Google Scholar] [CrossRef]
  51. Bin Nadeem, T.; Siddiqui, M.; Khalid, M.; Asif, M. Distributed energy systems: A review of classification, technologies, applications, and policies. Energy Strat. Rev. 2023, 48, 101096. [Google Scholar] [CrossRef]
  52. Huy, T.H.B.; Van Tran, T.; Vo, D.N.; Nguyen, H.T.T. An improved metaheuristic method for simultaneous network reconfiguration and distributed generation allocation. Alex. Eng. J. 2022, 61, 8069–8088. [Google Scholar] [CrossRef]
  53. Sakr, W.S.; El-Sehiemy, R.A.; Azmy, A.M.; El-Ghany, H.A.A. Identifying optimal border of virtual power plants considering uncertainties and demand response. Alex. Eng. J. 2022, 61, 9673–9713. [Google Scholar] [CrossRef]
  54. Chinglemba, T.; Biswas, S.; Malakar, D.; Meena, V.; Sarkar, D.; Biswas, A. Introductory Review of Swarm Intelligence Techniques. In Studies in Computational Intelligence; Springer: Cham, Switzerland, 2023; Volume 1054. [Google Scholar] [CrossRef]
  55. Mohammadi, S.K.; Nazarpour, D.; Beiraghi, M. A novel metaheuristic algorithm inspired by COVID-19 for real-parameter optimization. Neural Comput. Appl. 2023, 35, 10147–10196. [Google Scholar] [CrossRef] [PubMed]
  56. Yang, X.-S. Nature-Inspired Algorithms in Optimization: Introduction, Hybridization, and Insights; Springer: Singapore, 2023. [Google Scholar] [CrossRef]
  57. Garg, V.; Deep, K.; Alnowibet, K.A.; Mohamed, A.W.; Shokouhifar, M.; Werner, F. LX-BBSCA: Laplacian biogeography-based sine cosine algorithm for structural engineering design optimization. AIMS Math. 2023, 8, 30610–30638. [Google Scholar] [CrossRef]
  58. Talatahari, S.; Azizi, M.; Gandomi, A.H. Material Generation Algorithm: A Novel Metaheuristic Algorithm for Optimization of Engineering Problems. Processes 2021, 9, 859. [Google Scholar] [CrossRef]
  59. Alsaggaf, W.; Gafar, M.; Sarhan, S.; Shaheen, A.M.; Ginidi, A.R. Chemical-Inspired Material Generation Algorithm (MGA) of Single- and Double-Diode Model Parameter Determination for Multi-Crystalline Silicon Solar Cells. Appl. Sci. 2024, 14, 8549. [Google Scholar] [CrossRef]
  60. Shen, Y.; Liang, Z.; Kang, H.; Sun, X.; Chen, Q. A Modified jSO Algorithm for Solving Constrained Engineering Problems. Symmetry 2021, 13, 63. [Google Scholar] [CrossRef]
  61. Akhtar, S.; Tai, K.; Ray, T. A socio-behavioural simulation model for engineering design optimization. Eng. Optim. 2002, 34, 341–354. [Google Scholar] [CrossRef]
  62. Mahdy, A.; Shaheen, A.; El-Sehiemy, R.; Ginidi, A. Artificial ecosystem optimization by means of fitness distance balance model for engineering design optimization. J. Supercomput. 2023, 79, 18021–18052. [Google Scholar] [CrossRef]
  63. Zhao, W.; Wang, L.; Zhang, Z. Artificial ecosystem-based optimization: A novel nature-inspired meta-heuristic algorithm. Neural Comput. Appl. 2020, 32, 9383–9425. [Google Scholar] [CrossRef]
  64. Trojovská, E.; Dehghani, M. A new human-based metahurestic optimization method based on mimicking cooking training. Sci. Rep. 2022, 12, 14861. [Google Scholar] [CrossRef] [PubMed]
  65. Zhong, C.; Li, G.; Meng, Z. Beluga whale optimization: A novel nature-inspired metaheuristic algorithm. Knowl.-Based Syst. 2022, 251, 109215. [Google Scholar] [CrossRef]
  66. Devan, P.A.M.; Hussin, F.A.; Ibrahim, R.B.; Bingi, K.; Nagarajapandian, M.; Assaad, M. An Arithmetic-Trigonometric Optimization Algorithm with Application for Control of Real-Time Pressure Process Plant. Sensors 2022, 22, 617. [Google Scholar] [CrossRef] [PubMed]
  67. Azizi, M. Atomic orbital search: A novel metaheuristic algorithm. Appl. Math. Model 2021, 93, 657–683. [Google Scholar] [CrossRef]
  68. Azizi, M.; Talatahari, S.; Giaralis, A. Optimization of Engineering Design Problems Using Atomic Orbital Search Algorithm. IEEE Access 2021, 9, 102497–102519. [Google Scholar] [CrossRef]
  69. Abderazek, H.; Yildiz, A.R.; Sait, S.M. Mechanical engineering design optimisation using novel adaptive differential evolution algorithm. Int. J. Veh. Des. 2019, 80, 285–329. [Google Scholar] [CrossRef]
  70. Gupta, S.; Abderazek, H.; Yıldız, B.S.; Yildiz, A.R.; Mirjalili, S.; Sait, S.M. Comparison of metaheuristic optimization algorithms for solving constrained mechanical design optimization problems. Expert Syst. Appl. 2021, 183, 115351. [Google Scholar] [CrossRef]
  71. Barshandeh, S.; Piri, F.; Sangani, S.R. HMPA: An innovative hybrid multi-population algorithm based on artificial ecosystem-based and Harris Hawks optimization algorithms for engineering problems. Eng. Comput. 2020, 38, 1581–1625. [Google Scholar] [CrossRef]
  72. Rao, B.R.; Tiwari, R. Optimum design of rolling element bearings using genetic algorithms. Mech. Mach. Theory 2007, 42, 233–250. [Google Scholar] [CrossRef]
  73. Zhao, W.; Wang, L.; Zhang, Z. Supply-Demand-Based Optimization: A Novel Economics-Inspired Algorithm for Global Optimization. IEEE Access 2019, 7, 73182–73206. [Google Scholar] [CrossRef]
  74. Sadollah, A.; Bahreininejad, A.; Eskandar, H.; Hamdi, M. Mine blast algorithm: A new population based algorithm for solving constrained engineering optimization problems. Appl. Soft Comput. J. 2013, 13, 2592–2612. [Google Scholar] [CrossRef]
  75. Migallón, H.; Jimeno-Morenilla, A.; Rico, H.; Sánchez-Romero, J.L.; Belazi, A. Multi-level parallel chaotic Jaya optimization algorithms for solving constrained engineering design problems. J. Supercomput. 2021, 77, 12280–12319. [Google Scholar] [CrossRef]
  76. Rao, R.V.; Savsani, V.J.; Vakharia, D.P. Teaching–learning-based optimization: A novel method for constrained mechanical design optimization problems. Comput. Aided Des. 2011, 43, 303–315. [Google Scholar] [CrossRef]
  77. Kannan, B.K.; Kramer, S.N. An Augmented Lagrange Multiplier Based Method for Mixed Integer Discrete Continuous Optimization and Its Applications to Mechanical Design. J. Mech. Des. 1994, 116, 405–411. [Google Scholar] [CrossRef]
  78. Shaheen, A.M.; Elattar, E.E.; Nagem, N.A.; Nasef, A.F. Allocation of PV Systems with Volt/Var Control Based on Automatic Voltage Regulators in Active Distribution Networks. Sustainability 2023, 15, 15634. [Google Scholar] [CrossRef]
  79. Elsayed, A.M.; Mishref, M.M.; Farrag, S.M. Distribution system performance enhancement (Egyptian distribution system real case study). Int. Trans. Electr. Energy Syst. 2018, 28, e2545. [Google Scholar] [CrossRef]
  80. Deep, K.; Singh, K.P.; Kansal, M.; Mohan, C. A real coded genetic algorithm for solving integer and mixed integer optimization problems. Appl. Math. Comput. 2009, 212, 505–518. [Google Scholar] [CrossRef]
  81. Storn, R.; Price, K. Differential evolution—A simple and efficient heuristic for global optimization over continuous spaces. J. Glob. Optim. 1997, 11, 341–359. [Google Scholar] [CrossRef]
  82. Kennedy, J.; Eberhart, R. Particle swarm optimization. In Proceedings of the ICNN’95-International Conference on Neural Networks, Perth, WA, Australia, 27 November–1 December 1995. [Google Scholar]
  83. Mirjalili, S.; Mirjalili, S.M.; Hatamlou, A. Multi-Verse Optimizer: A nature-inspired algorithm for global optimization. Neural Comput. Appl. 2016, 27, 495–513. [Google Scholar] [CrossRef]
  84. Smaili, I.H.; Almalawi, D.R.; Shaheen, A.M.; Mansour, H.S.E. Optimizing PV Sources and Shunt Capacitors for Energy Efficiency Improvement in Distribution Systems Using Subtraction-Average Algorithm. Mathematics 2024, 12, 625. [Google Scholar] [CrossRef]
Figure 1. Main steps of MGO.
Figure 1. Main steps of MGO.
Applsci 15 00603 g001
Figure 2. Main steps of the proposed IMGO.
Figure 2. Main steps of the proposed IMGO.
Applsci 15 00603 g002
Figure 3. Visual comparison of key performance indicators between IMGO and MGO for the 23 benchmarks.
Figure 3. Visual comparison of key performance indicators between IMGO and MGO for the 23 benchmarks.
Applsci 15 00603 g003
Figure 4. WBD problem.
Figure 4. WBD problem.
Applsci 15 00603 g004
Figure 5. Best convergence curves of MGO and IMGO for the WBD problem.
Figure 5. Best convergence curves of MGO and IMGO for the WBD problem.
Applsci 15 00603 g005
Figure 6. Heatmap of the obtained cost using MGO and IMGO for the WBD problem.
Figure 6. Heatmap of the obtained cost using MGO and IMGO for the WBD problem.
Applsci 15 00603 g006
Figure 7. REBD problem.
Figure 7. REBD problem.
Applsci 15 00603 g007
Figure 8. Best convergence curves of MGO and IMGO for the REBD problem.
Figure 8. Best convergence curves of MGO and IMGO for the REBD problem.
Applsci 15 00603 g008
Figure 9. Heatmap of the obtained cost using MGO and IMGO for the REBD problem.
Figure 9. Heatmap of the obtained cost using MGO and IMGO for the REBD problem.
Applsci 15 00603 g009
Figure 10. PVD problem.
Figure 10. PVD problem.
Applsci 15 00603 g010
Figure 11. Best convergence curves of MGO and IMGO for the PVD problem.
Figure 11. Best convergence curves of MGO and IMGO for the PVD problem.
Applsci 15 00603 g011
Figure 12. Heatmap of the obtained cost using MGO and IMGO for the PVD problem.
Figure 12. Heatmap of the obtained cost using MGO and IMGO for the PVD problem.
Applsci 15 00603 g012aApplsci 15 00603 g012b
Figure 13. Tala distribution feeder.
Figure 13. Tala distribution feeder.
Applsci 15 00603 g013
Figure 14. Hourly loading variations.
Figure 14. Hourly loading variations.
Applsci 15 00603 g014
Figure 15. Best convergence curves of MGO, IMGO, DE, PSO, GA, and MVO for energy loss minimization.
Figure 15. Best convergence curves of MGO, IMGO, DE, PSO, GA, and MVO for energy loss minimization.
Applsci 15 00603 g015
Figure 16. Heatmap of the obtained cost using MGO and IMGO for energy loss/day (kWday) minimization.
Figure 16. Heatmap of the obtained cost using MGO and IMGO for energy loss/day (kWday) minimization.
Applsci 15 00603 g016
Figure 17. Box and whisker plot of MGO, IMGO, DE, PSO, GA, and MVO for energy loss minimization.
Figure 17. Box and whisker plot of MGO, IMGO, DE, PSO, GA, and MVO for energy loss minimization.
Applsci 15 00603 g017
Figure 18. Schematic diagram of DD-PV model. Where: IPh is the irradiation light current. Rsh and Rss are the parallel and series resistances. η1 and η2 are the ideality factor regarding the two diodes. Id1 and Id2 are the diodes reverse saturation currents.
Figure 18. Schematic diagram of DD-PV model. Where: IPh is the irradiation light current. Rsh and Rss are the parallel and series resistances. η1 and η2 are the ideality factor regarding the two diodes. Id1 and Id2 are the diodes reverse saturation currents.
Applsci 15 00603 g018
Figure 19. IMGO extracted versus experimental (a) I–V and (b) P-V characteristics for the R.T.C. France cell.
Figure 19. IMGO extracted versus experimental (a) I–V and (b) P-V characteristics for the R.T.C. France cell.
Applsci 15 00603 g019aApplsci 15 00603 g019b
Figure 20. Sensitivity analysis by varying the solutions and iterations for MGO and IMGO for R.T.C. cell parameter estimation.
Figure 20. Sensitivity analysis by varying the solutions and iterations for MGO and IMGO for R.T.C. cell parameter estimation.
Applsci 15 00603 g020
Table 1. Benchmarks under investigation regarding the CEC 2017 suite.
Table 1. Benchmarks under investigation regarding the CEC 2017 suite.
No.FunctionOptimal
Fn1Shifted and rotated bent cigar 100.000
Fn2Shifted and rotated Rosenbrock’s 400.000
Fn3Hybrid 1 (N = 3)1100.000
Fn4Hybrid 2 (N = 3)1200.000
Fn5Hybrid 3 (N = 3)1300.000
Fn6Hybrid 4 (N = 4)1400.000
Fn7Hybrid 5 (N = 4)1500.000
Fn8Hybrid 6 (N = 4)1600.000
Fn9Hybrid 6 (N = 5)1800.000
Fn10Hybrid 6 (N = 5)1900.000
Fn11Hybrid 6 (N = 6)2000.000
Fn12Composition 1 (N = 3)2100.000
Fn13Composition 5 (N = 5)2500.000
Fn14Composition 7 (N = 6)2700.000
Fn15Composition 9 (N = 3)2900.000
Table 2. Obtained best, mean, worst and standard deviation of the fitness scores of MGO and IMGO for CEC 2017.
Table 2. Obtained best, mean, worst and standard deviation of the fitness scores of MGO and IMGO for CEC 2017.
No.Standard MGOProposed IMGOIMGO vs. MGO (Improvement Percentage (%))
BestMeanWorstSTDBestMeanWorstSTDBest ScoreMean ScoreWorst Score
Fn1147.89161064.3243179.816853.3595100.03781592.5154746.0311447.19532.357%−49.627%−49.255%
Fn2300.0018300.0167300.07720.014162300300.0026300.02940.0056760.001%0.005%0.016%
Fn31010.4261690.0982253.025321.8951007.0171676.0372253.013271.3060.337%0.832%0.001%
Fn41102.4621120.2921188.50620.197591100.2241119.5471160.30413.811170.203%0.067%2.373%
Fn52603.68322,778.05137,662.626,178.141567.83310,792.5726,073.776297.23539.784%52.619%81.060%
Fn61401.1871995.97616,165.592068.0971307.9312806.70811,664.931119.0076.655%−40.618%27.841%
Fn71405.3871433.7451497.65616.335641403.4791423.0611460.5211.843070.136%0.745%2.480%
Fn81505.71589.2231717.83255.999551501.1351520.9711599.19118.173370.303%4.295%6.906%
Fn91701.7221747.7481922.99344.140731702.7541742.1721853.67838.56705−0.061%0.319%3.605%
Fn101829.3531922.9682144.54879.950071800.6081828.622018.32943.296671.571%4.906%5.886%
Fn111903.3471915.9161989.85115.465591901.1721907.2281935.5346.6317710.114%0.453%2.730%
Fn122001.0422038.6732178.00742.892012000.6242032.0582151.60836.503710.021%0.324%1.212%
Fn132729.5442738.8082756.664.58406225002729.7822761.46232.419138.410%0.330%−0.174%
Fn142800.1773185.5813942.417314.763626003050.0983908.404260.83857.149%4.253%0.863%
Fn153100.0393391.5143446.4869.0116931003327.5183446.481128.15520.001%1.887%0.000%
Table 3. Obtained best, mean, worst and standard deviation of the fitness scores of MGO and IMGO for additional benchmarks.
Table 3. Obtained best, mean, worst and standard deviation of the fitness scores of MGO and IMGO for additional benchmarks.
Function No. and Function NameLOWUPDimProposed IMGOStandard MGO
BestMeanWorstSTDBestMeanWorstSTD
F1-Sphere−100100300.0000.0000.0000.0000.0000.0030.0100.003
F2-Schwefel 2.22−1010300.0000.0000.0000.0000.0100.8904.4391.007
F3-Schwefel 1.2−100100300.0000.0000.0000.0000.0001.39635.2866.428
F4-Schwefel 2.21−100100300.0000.0000.0000.0000.0383.86410.8402.993
F5-Rosenbrock−5050300.0000.0000.0020.0000.00885.748417.31697.143
F6-Step−100100300.0000.0000.0000.0000.0000.0050.0110.002
F7-Quadrtic−1.281.28300.0390.4740.9510.3110.0250.4760.9980.264
F8-Schwefel−50050030−12,569.5−11,302.9−10,338.9694.4−12,569.5−9984.5−7301.81143.7
F9-Rastrigin−5.125.12300.0000.0000.0000.0000.00013.71529.86911.400
F10-Ackley−3232300.0000.0000.0000.0000.0001.5032.8940.894
F11-Griewank−600600300.0000.0000.0000.0000.0000.0220.0960.025
F12-Penalized−5050300.0000.0000.0000.0000.0003.25910.4263.111
F13-Penalized2−5050300.0000.0060.0990.0180.0010.0110.0430.011
F14-Foxholes−65.53665.53620.9982.16512.6713.5620.9981.2955.9290.940
F15-Kowalik−5540.0000.0000.0010.0000.0000.0010.0200.004
F16-Six Hump Camel−552−1.032−1.032−1.0320.000−1.032−1.032−1.0320.000
F17-Branin[−5; 0][10, 15]20.3980.3980.3980.0000.3980.3980.3980.000
F18-GoldStein-Price−2223.0003.0003.0000.0003.0003.0003.0000.000
F19-Hartman 3013−3.863−3.863−3.8630.000−3.863−3.863−3.8630.000
F20-Hartman 6016−3.322−3.298−3.2030.048−3.322−3.270−3.1950.061
F21-Shekel 50104−10.153−8.659−2.6833.039−10.153−7.163−2.6303.724
F22-Shekel 70104−10.403−9.671−2.7522.239−10.403−9.384−2.7522.643
F23-Shekel 100104−10.536−10.010−2.4222.003−10.536−8.433−2.4223.550
Table 4. Optimal results of IMGO, MGO, and the other reported results for the WBD problem.
Table 4. Optimal results of IMGO, MGO, and the other reported results for the WBD problem.
Design ParametersCBOA [62]BWOA [62]ATOA [62]AOSA [62]AEO [62]FAEO [62]MGOProposed IMGO
H0.1761310.1622650.1815150.1829660.1851130.1852160.184770.185409
W3.8837284.4118614.3943433.7164863.6356913.6322553.6418763.627015
t9.4751989.28277110.279829.553969.519649.518989.5227349.51893
b0.1872310.2056580.1851750.1854690.1854230.1854120.1854390.18541
Cost (x)1.6594621.8193761.8445111.6477611.635281.634821.6361453111.634443
Percentage improvement regarding IMGO1.508%10.165%11.389%0.808%0.051%0.023%0.104%-
Table 5. Statistical results of IMGO, MGO, and the other reported results for the WBD problem.
Table 5. Statistical results of IMGO, MGO, and the other reported results for the WBD problem.
CostCBOA [62]BWOA [62]ATOA [62]AOSA [62]AEO [62]FAEO [62]MGOProposed IMGO
Best1.6594621.8193761.8445111.6477611.635281.634821.6361451.634443
Mean5.42 × 10193.9249154.63 × 10191.94 × 10211.9124411.6421851.6662511.634564
Worst1.19 × 10218.3548988.14 × 10202.03 × 10223.5368381.6646561.7132941.638706
Standard deviation2.03 × 10201.5263371.46 × 10204.73 × 10210.4159160.0067520.0176040.000606
Table 6. Comparisons of the best cost between IMGO, MGO, and the other reported algorithms for WBD.
Table 6. Comparisons of the best cost between IMGO, MGO, and the other reported algorithms for WBD.
AlgorithmBest Cost
Water Cycle Moth Flame Optimization Algorithm (WCMFOA) [69]1.732704
Evolutionary Strategy Optimization (ESO) [70]1.728783
Hybrid Self-adaptive Orthogonal Genetic Algorithm (HSOGA) [70]1.727341
Adaptive Differential Evolution Algorithm (ADEA) [69]1.7248523085
Harris Hawks Optimization Algorithm (HOA) [71]1.722109
Hybrid Multi-population Optimization Algorithm (HMOA) [71]1.695247
MGO1.636145
Proposed IMGO1.634443
Table 7. Optimal results of IMGO, MGO, and the other reported results for REBD problem.
Table 7. Optimal results of IMGO, MGO, and the other reported results for REBD problem.
Design
Parameters
CBOA
[62]
BWOA
[62]
ATOA
[62]
AOSA
[62]
AEO
[62]
FAEO
[62]
MGOProposed IMGO
x1125.721537125125.6450966125.6954156125.7166548125.7190473125.718792125.719054
x221.4150537320.2029418621.4091238521.371378621.4241699221.4255821321.425508521.4255819
x310.6246767810.7693532310.9168809111.1679306110.906075810.5163853311.36461710.7342173
x40.5150.5150.5150.5150.5150002220.5150017070.515000540.51500001
x50.5150.5150.60.5349097850.5162201930.5581669150.515743890.51501414
x60.40.4398753860.50.4056540120.4586346750.4216331470.495249340.48689999
x70.6578728510.60.70.6145935610.6343914450.6605307940.697770030.6506474
x80.30.3575391670.30.30.3000164470.3000000080.30000670.3000003
x90.034545960.0957483150.0283861250.054900160.073996890.048713660.032655390.09864157
x100.60.60.60.6061108190.6539874740.6316418630.612062020.61419829
Load (x)85,475.0132477,061.6753785,411.6814885,162.6975185,535.8330585,538.4446885,547.29585,549.152
Table 8. Statistical results of IMGO, MGO, and the other reported results for the REBD problem.
Table 8. Statistical results of IMGO, MGO, and the other reported results for the REBD problem.
LoadCBOA [62]BWOA [62]ATOA [62]AOSA [62]AEO [62]FAEO [62]MGOProposed IMGO
Best85,475.01377,061.67585,411.68185,162.69885,535.83385,538.44585,547.29585,549.152
Mean83,176.66463,995.02351,582.61169,772.64582,641.69985,489.77485,530.00285,546.950
Worst82,009.01833,317.69945,160.11642,268.08252,438.99285,222.97285,505.57185,535.607
Standard deviation1117.19010,247.5628792.87616,605.2596019.29553.1489.7673.416
Table 9. Comparisons of the best load between IMGO, MGO, and the other reported algorithms for the REBD problem.
Table 9. Comparisons of the best load between IMGO, MGO, and the other reported algorithms for the REBD problem.
AlgorithmBest Load
Supply–Demand-based Algorithm (SDA) [73]81,575.185
GA [72]81,841.511
Mine Blast Optimizer (MBO) [74]81,843.686
Chaotic-JAYA [75]81,858.318
Teaching Learning-based Algorithm (TLA) [76]81,859.738
MGO85,547.295
Proposed IMGO85,549.152
Table 10. Optimal results of IMGO, MGO, and the other reported results for the PVD problem.
Table 10. Optimal results of IMGO, MGO, and the other reported results for the PVD problem.
Design
Parameters
CBOA [62]BWOA [62]ATOA [62]AOSA [62]AEO [62]FAEO [62]MGOProposed IMGO
Ts1.20630.82300.83280.80260.79070.77880.77820.7782
Th0.59060.57700.44570.39960.39080.38530.38470.3846
R61.565642.643643.138341.324040.967040.341640.319640.3196
L26.8413182.2035196.2295186.5938191.1802199.7329200.0000200.0000
Cost (x)7121.98906809.88696887.28615973.58415907.03445889.89805885.55845885.3329
Table 11. Statistical results of IMGO, MGO, and the other reported results for the PVD problem.
Table 11. Statistical results of IMGO, MGO, and the other reported results for the PVD problem.
CostCBOA [62]BWOA [62]ATOA [62]AOSA [62]AEO [62]FAEO [62]MGOProposed IMGO
Best7121.9889686809.8869046887.2861255973.5841165907.03445889.8979715885.5583925885.332939
Mean20,603.4527911,436.8094627,135.549436825.1135656338.5068075959.4585765899.5128565894.554028
Worst56,942.9272119,898.15644107,438.41437519.6876387195.4083826473.7630575990.6338896006.095505
Standard deviation13,257.381923385.68310425,920.65336471.9387326388.154839897.031984720.4019871321.78011737
Table 12. Comparisons of the best cost between IMGO, MGO, and the other reported algorithms for the PVD problem.
Table 12. Comparisons of the best cost between IMGO, MGO, and the other reported algorithms for the PVD problem.
AlgorithmBest Cost
SSA [70]6059.7144371950
ADEA [69]6059.71433504
PSO-DE [69]6059.714335
MFO [70]6059.7143350521
Improved accelerator PSO [69]6059.7143
Multi-level cross entropy [69]6059.7143
Eco geography-based optimization (EBO) [70]6092.5671060055
MGO5885.558392
Proposed IMGO5885.332939
Table 13. Parameter settings of MGO, IMGO, GA, PSO, MVO, and DE.
Table 13. Parameter settings of MGO, IMGO, GA, PSO, MVO, and DE.
AlgorithmParameter Settings
MGO and IMGO30 search agents per run and a maximum of 100 iterations
GABLX-alpha crossover with crossover percentage (pc = 0.6); normally distributed mutation with mutation percentage (pm = 0.4); 30 solutions and a maximum of 100 iterations
PSOCognitive parameter (c1 = 2.05); Social parameter (c2 = 2.05); 30 solutions and a maximum of 100 iterations
MVOMinimum and maximum of Wormhole Existence Probability (WEP_Max = 1; WEP_Min = 0.2); 30 solutions and a maximum of 100 iterations
DEDifferentiation (or mutation) constant (F = 0.5); crossover constant (R = 0.5); 30 solutions and a maximum of 100 iterations
Table 14. PV system and capacitor allocations based on MGO, IMGO, and DE.
Table 14. PV system and capacitor allocations based on MGO, IMGO, and DE.
AlgorithmsMGOProposed IMGODE
Bus InstallationSizingBus InstallationSizingBus InstallationSizing
PV units12765 kW7681 kW11197 kW
17562 kW14482 kW14622 kW
26676 kW22644 kW23991 kW
28329 kW26650 kW25860 kW
31417 kW29736 kW31418 kW
Shunt capacitors4973 kVAr52109 kVAr53093 kVAr
71404 kVAr11944 kVAr241096 kVAr
92107 kVAr13475 kVAr28857 kVAr
26579 kVAr251202 kVAr3634 kVAr
29247 kVAr33260 kVAr
Energy losses/day (kWday)10,582.9016110,495.7537610,780.53569
Table 15. PV system and capacitor allocations based on PSO, GA, and MVO.
Table 15. PV system and capacitor allocations based on PSO, GA, and MVO.
AlgorithmsPSOGAMVO
Bus InstallationSizingBus InstallationSizingBus InstallationSizing
PV units5526 kW1140 kW11529 kW
9831 kW2552 kW15943 kW
10861 kW3143 kW20679 kW
13392 kW3210 kW2288 kW
14516 kW3776 kW26946 kW
Shunt capacitors42386 kVAr42543 kVAr52063 kVAr
71153 kVAr5436 kVAr92053 kVAr
15984 kVAr16758 kVAr3683 kVAr
241218 kVAr261153 kVAr37809 kVAr
36140 kVAr311569 kVAr
Energy losses/day (kWday)10,782.7985521,757.4785210,521.98241
Table 16. Comparisons of the proposed IMGO and the reported results for energy loss/day (kWday) minimization.
Table 16. Comparisons of the proposed IMGO and the reported results for energy loss/day (kWday) minimization.
AlgorithmsEnergy Losses/Day (kWday)Improvement
Proposed IMGO10,495.75376
MGO10,582.901610.82%
ASBA10,554.050.55%
DA10,653.421.48%
NGO10,660.271.54%
COA10,715.772.05%
OMA10,798.922.81%
OOA10,964.464.27%
SBA11,369.167.68%
Table 17. Limits of the PV cell parameters and acquired parameters regarding IMGO, MGO, DMO, and RIME for the RTC France cell.
Table 17. Limits of the PV cell parameters and acquired parameters regarding IMGO, MGO, DMO, and RIME for the RTC France cell.
ParameterRTC FranceProposed IMGOMGO [59]DMO [59]RIME [59]
LOWUP
IPh (A)010.7607810790.7607810790.7610860030.760864277
Rss (Ω)00.50.036740430.036740430.0364528440.036173672
RSh (Ω)010055.4854396155.4854409656.040712853.58354831
IS1 (A)012.25974 × 10−77.49347 × 10−73.81141 × 10−74.3113 × 10−8
η1121.45101676121.833579111.827202939
IS2 (A)017.49348 × 10−72.25974 × 10−72.38858 × 10−73.25421 × 10−7
η21221.451016781.4583646261.482783518
RMSE 9.824848 × 10−49.82485 × 10−41.028696 × 10−39.9382 × 10−4
Disclaimer/Publisher’s Note: The statements, opinions and data contained in all publications are solely those of the individual author(s) and contributor(s) and not of MDPI and/or the editor(s). MDPI and/or the editor(s) disclaim responsibility for any injury to people or property resulting from any ideas, methods, instructions or products referred to in the content.

Share and Cite

MDPI and ACS Style

Gafar, M.; Sarhan, S.; Ginidi, A.R.; Shaheen, A.M. An Improved Bio-Inspired Material Generation Algorithm for Engineering Optimization Problems Including PV Source Penetration in Distribution Systems. Appl. Sci. 2025, 15, 603. https://doi.org/10.3390/app15020603

AMA Style

Gafar M, Sarhan S, Ginidi AR, Shaheen AM. An Improved Bio-Inspired Material Generation Algorithm for Engineering Optimization Problems Including PV Source Penetration in Distribution Systems. Applied Sciences. 2025; 15(2):603. https://doi.org/10.3390/app15020603

Chicago/Turabian Style

Gafar, Mona, Shahenda Sarhan, Ahmed R. Ginidi, and Abdullah M. Shaheen. 2025. "An Improved Bio-Inspired Material Generation Algorithm for Engineering Optimization Problems Including PV Source Penetration in Distribution Systems" Applied Sciences 15, no. 2: 603. https://doi.org/10.3390/app15020603

APA Style

Gafar, M., Sarhan, S., Ginidi, A. R., & Shaheen, A. M. (2025). An Improved Bio-Inspired Material Generation Algorithm for Engineering Optimization Problems Including PV Source Penetration in Distribution Systems. Applied Sciences, 15(2), 603. https://doi.org/10.3390/app15020603

Note that from the first issue of 2016, this journal uses article numbers instead of page numbers. See further details here.

Article Metrics

Back to TopTop