Next Article in Journal
Analytical and Experimental Investigation of Windage–Churning Behavior in Spur, Bevel, and Face Gears
Next Article in Special Issue
Natural Language Processing Risk Assessment Application Developed for Marble Quarries
Previous Article in Journal
Evaluation of Thorax Diameter Changes through Trunk Morphology and Different Running Intensities
 
 
Font Type:
Arial Georgia Verdana
Font Size:
Aa Aa Aa
Line Spacing:
Column Width:
Background:
Article

Research on Intelligent Ventilation System of Metal Mine Based on Real-Time Sensing Airflow Parameters with a Global Scheme

1
School of Resources and Safety Engineering, Central South University, Changsha 410083, China
2
Xinjiang Kalatongke Mining Co., Ltd., Altay 836107, China
3
School of Quality and Safety Engineering, China Jiliang University, Hangzhou 310018, China
*
Author to whom correspondence should be addressed.
Appl. Sci. 2024, 14(17), 7602; https://doi.org/10.3390/app14177602
Submission received: 5 July 2024 / Revised: 30 July 2024 / Accepted: 6 August 2024 / Published: 28 August 2024
(This article belongs to the Special Issue Industrial Safety and Occupational Health Engineering)

Abstract

In ventilation systems of metal mines, the real-time measurement of the airflow field and a reduction in pollutants are necessary for clean environmental management and human health. However, the limited quantitative data and expensive detection technology hinder the accurate assessment of mine ventilation effectiveness and safety status. Therefore, we propose a new method for constructing a mine intelligent ventilation system with a global scheme, which can realize the intelligent prediction of unknown points in the mine ventilation system by measuring the airflow parameters of multiple known points. Firstly, the nodal wind pressure method combined with the Hardy–Cross iterative algorithm is used to solve the mine ventilation network, and the airflow parameters under normal operation and extreme working conditions are simulated, based on which an intelligent ventilation training database is established. Secondly, we compared the airflow parameter prediction ability of three different machine learning models with different neural network models based on the collected small-sample airflow field dataset of a mine roadway. Finally, the depth learning method is optimized to build the intelligent algorithm model of the mine ventilation system, and a large number of three-dimensional simulation data and field measurement data of the mine ventilation system are used to train the model repeatedly to realize the intelligent perception of air flow parameters of a metal mine ventilation network and the construction of an intelligent ventilation system. The results show that the maximum error of a single airflow measurement point is 1.24%, the maximum overall error is 3.25%, and the overall average error is 0.51%. The intelligent algorithm has a good model training effect and high precision and can meet the requirements of the research and application of this project. Through case analysis, this method can predict the airflow parameters of any position underground and realize the real-time control of mine safety.

1. Introduction

Ventilation systems are the main auxiliary systems for the exploitation of underground mineral resources [1,2]. The main function of ventilation is to provide fresh air for underground space, discharge harmful substances, realize climate regulation, and create an important condition for a good working environment in the workplace [3,4]. However, with the gradual expansion of mining depth and the increase in mining intensity, the operation mode of the underground ventilation system also needs to be dynamically adjusted [5,6]. This will greatly affect the overall efficiency and operational safety of the ventilation system [7]. Because the mine ventilation system is dynamic, it will change with the change in mine conditions and environmental conditions [8]. It is necessary to optimize and adjust the operating conditions of ventilation power, the location of the ventilation structure, and the structure of the ventilation network in time [9].
Therefore, many researchers have optimized mine ventilation [10,11]. For example, S. A. Kozyrev [12] uses modern mathematical methods to improve the automatic design planning of mine ventilation systems and discusses the prospect of genetic methods for analyzing alternative ventilation systems in the design stage. In addition, new monitoring technology greatly facilitates the monitoring of mine airflow parameters [13,14,15]. For example, Yan et al. proposed an efficient method for optimizing sensors’ layout to measure underground ventilation networks accurately [16]. Therefore, the limited quantitative data and expensive monitoring techniques hinder the accurate evaluation of mine ventilation effects and safety status. As a result, practitioners have simulated mine ventilation parameters from the simulation perspective [17]. Some three-dimensional simulation system suitable for all kinds of mines have been developed, such as network solutions [18].
The purpose of mine intelligent ventilation is to realize mine air supply according to demand through intelligent monitoring and perception, intelligent decision-making and intelligent regulation, stable and economical continuous delivery of fresh air to the mine for personnel to breathe, and the dilution and discharge of harmful gasses and dust [19]. In addition, it improves mine climate conditions, and disaster relief has a certain role in the intelligent regulation of airflow [20]. The mine ventilation system is a very complex network structure [21]. To realize mine intelligent ventilation, it is necessary to master the distribution law of airflow, so it is particularly important to comprehensively and accurately collect underground ventilation parameters, comprehensively and statically transmit the underground communication system, solve the mine ventilation network, and intelligently control ventilation structures [22].
The development of information technology provides a better solution for realizing mine automation and intelligent management and control [23]. Therefore, mine ventilation facilities are gradually automated and intelligently improved to meet the ever-changing ventilation needs and operator safety. Liu et al. put up a new concept called independent cut set for the efficient graphical algorithm of sensor distribution and air volume reconstruction for a smart mine ventilation network [24]. Liu et al. adopted machine learning algorithm selection for windage alteration fault diagnosis of the mine ventilation system [25]. Overall, the existing research results mainly focus on optimizing the local airflow field by the artificial intelligence method, and there are few reports focused on global airflow parameters and risk control systems [26,27].
Therefore, because of the existing technical problems, we proposed a new method for the mine intelligent ventilation system which not only realizes the intelligent prediction of unknown points in the mine ventilation system through the limited measured airflow parameters at known points but also realizes the intelligent control of the ventilation system.

2. Methods

2.1. Project Overview

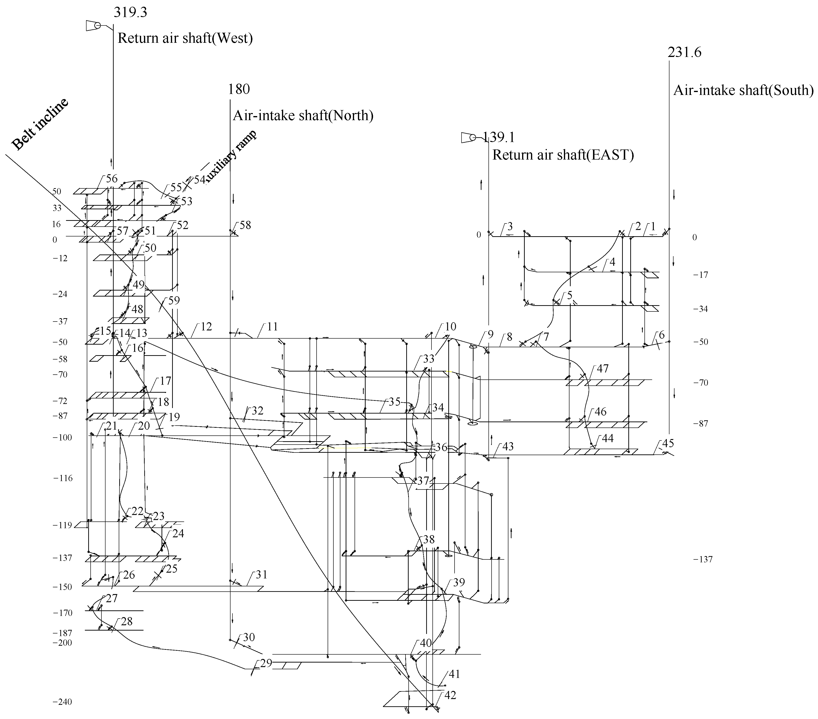
The object of this study is a copper mine in China that adopts a double-wing diagonal extraction ventilation system. Fresh air flows through the north windpipe cable well in the north section of II orebody, the south section of II orebody southbound air well and auxiliary ramps, and enters each stop station through the middle Shimen roadway, auxiliary ramps connecting roadway, the middle transport roadway, the middle vein roadway, and the pedestrian ventilation shaft. The polluted air is imported into the upper middle return air roadway through the mine anti-rotating axial flow fan installed at the eastern return air well head and the mine anti-rotating axial flow fan installed at the western return air well head and then pumped to the surface. The copper mine has not yet realized the effect of real-time monitoring and intelligent control. The ventilation network diagram of the mine is shown in Figure 1. There are multiple fixed-point sensors installed in the mine, and multiple sub-stations are built to collect independently according to the site conditions. Wind speed, wind direction, and other data detected by the sensor are collected through the underground collection station, collected in the collection station, and transmitted to the central control room. The below figure shows parts of the monitoring and sensing points for airflow parameters, numbered in the order that airflow enters from the air-intake shaft (South) and gradually enters the interior of the mine. Other local areas are numbered in blocks. For example, the parts from −100 to −50 on the right of the figure are numbered from 43 to 47.

2.2. Artificial Neural Network Prediction Model

Artificial neural networks (ANNs), a biologically inspired model of intelligence, gained widespread attention in the 1980s, when the neuroscience industry made some significant advances in their applications, resulting in a high level of interest in understanding the importance of neural network models. The neuronal function of the brain is replicated by algorithms representing artificial neural networks that can establish relationships between highly abnormal nonlinear variables and produce complex, accurate, and reliable results through learning and training. A direct example of an artificial neural network is a feedforward neural network (FFNN), which is a multilayer interconnection of perceptrons where the output layer does not form a feedback connection or loop of a recurrent network but is in a forward unidirectional flow [28]. The simplified neural network model can be mathematically expressed as follows:
h θ x = 1 1 + e θ x Τ
where h θ x is the output, x is the input, and x and θ are the parameter vectors. Figure 2 shows the typical FFNN architecture.
Another type of neural network is a feedback neural network (FBNN), often referred to as a backpropagation neural network (BPANN), which is widely used in supervised learning. This type of neural network has a similar structure to FFNN. Still, it allows for the creation of a loop in which error information is sent back for iterating to change the weight value until the error is no longer improved to obtain a more precise output variable. This process is repeated until you obtain a deviation value for a more accurate prediction. The mathematical equation for the derivative of the error function used to update the weights by gradient descent is expressed as the below formula [29].
Δ w t = η E t + α Δ w t 1
where Δ w is the weight update, E is the observed error between the prediction and the actual output, η is the learning parameter, and α is the momentum parameter (<1).
Depending on the complexity of the problem being studied, this analysis process will enter the realm of deep learning with each additional hidden layer. Artificial neural network is the most widely used prediction method at present; it has the following advantages:
(1)
Neural networks can perform tasks that linear programs cannot;
(2)
Neural networks are parallel. When one element of the neural network fails, it can continue to work without a problem;
(3)
Neural networks can be learned and do not require programming;
(4)
It can be executed in any application.
Therefore, the improvement in the artificial neural network can be used to predict the parameters of mine airflow. The specific prediction process is shown in Figure 3.

2.3. Convolutional Neural Networks (CNNs)

Convolutional neural networks are a kind of feed-forward neural network with convolutional computation and a deep structure. They are representative algorithms of deep learning and are good at processing images, especially image recognition and other related machine learning problems. The convolutional network is essentially input–output mapping. It solves the problem that the traditional deep network has too many parameters and is difficult to train. It uses the concepts of “local receptive field” and “power plant sharing” to reduce network parameters greatly. It can learn many mapping relationships between input and output without requiring any precise mathematical expression between input and output. As long as the convolutional network is trained with known patterns, the network can map between input and output. Through a series of methods, the dimensionality of the image recognition problem with a huge amount of data is successfully reduced, and finally, it can be trained. The specific operation is to add a partially connected convolution layer and a dimension reduction layer in front of the original fully connected layer, and the addition is a level. The main prediction process is similar to ANN; the nonlinear relationship is more complicated, and there are more convolutional layers in establishing the training network.

2.4. Support Vector Machine (SVM)

Support vector machine (SVM) belongs to a family of generalized linear classifiers based on the Vapnik–Chervonenkis dimension theory. It was first developed by Vladimir N. Vapnik in 1963 for the linear models Vapnik and Lerner. It was later extended to nonlinear training data in 1995. It is a set of supervised machine learning models with associated kernels for regression (SVR) and for implementing nonlinear classification (SVC). Based on the Vapnik–Chervonenkis dimension theory, it creates a separate optimal hyperplane and maps low-dimensional input vectors to high-dimensional feature spaces to ensure high generalization network capabilities. As shown in Figure 4 below, the optimal hyperplane uses less data to train data points as the maximum width between the two classification vectors, determining the width of the error-free separation. When this happens, the ratio of the expected value of the support vector to the training data constrains the expected probability error value, as shown in the following equation.
E P r error E support   vectors training   samples
The SVM provides predictive solutions based on functional formal equations [30].
y x = n = 1 N w n K x , x n + w 0
where w n is the weight of the model and K x , x n is a kernel function.
The basic concept of support vector classification is to use a learning technique to determine the best hyperplane to separate two different classes in n-dimensional space in a more general way. This is achieved by learning similarities between classes and using them as support vectors rather than understanding their differences through other algorithms. The distance between hyperplanes separating different classes is called a boundary, and the boundary always needs to be maximized for better classification. When looking for the right support vector machine, you need to find the sum by minimizing it, then optimizing it, and expressing it as below.
max i = 1 N α i 1 2 i = 1 n j = 1 n y i α i k x i , y j y i α i i = 1 n α i y i = 0 0 α i C , i = 1 , , n
where k x i , y j is related to a kernel function, and C is a regularization parameter, which represents the error classification tolerance parameter.
The main disadvantages of using SVM are increased computation time when dealing with large amounts of data, proper model performance generalization depends on proper kernel and hyperparameter selection, and poor model performance with noisy inputs and overlapping data classes. An adaptive learning rate adjustment strategy was adopted, utilizing the Adam optimizer to improve the stability and efficiency of training. The learning rate was finely adjusted through the visualization analysis of the learning rate and loss function to accelerate model convergence and prevent overfitting.

2.5. The Establishment of an Airflow Parameter Training Database

The intelligent prediction of airflow parameters in mine ventilation systems is the key to solving the problem of airflow analysis, decision, and control [31]. The deep learning method refers to the deep neural network composed of a series of neurons, through a series of iterations, and finally through parameter fitting in multiple neurons to establish a mathematical model. Deep learning can fit linear and nonlinear models well, so this study chooses deep learning algorithms to build mathematical models.
To ensure the accuracy and reliability of the real-time wind flow parameter values of several measuring points predicted by the mine ventilation intelligent sensing system, it is necessary to train the artificial intelligence algorithm model repeatedly with a large number of ventilation network wind flow parameter data so that the data predicted by the artificial intelligence algorithm model are consistent with the actual situation. The data needed for early training are primarily derived from the mine ventilation 3D simulation system. In this system, the ventilation roadway is represented as a 1D geometry, while the overall ventilation network is considered three dimensions. In other words, under varying natural wind pressures and different main fan operating conditions, the 3D ventilation simulation system generates a comprehensive airflow parameter database for each monitoring and sensing point in the project case. This database must account for not only the gas flow parameters during normal operation but also those under special conditions, such as main fan shutdowns, to ensure data integrity and the reliability of the trained artificial intelligence model. After the operation of the mine’s intelligent ventilation system, the data collected during the operation process are used for later training, which is a repeated training process. Therefore, it is necessary to establish a three-dimensional simulation system of mine ventilation in this project case, use the ventilation network solving module to simulate the mine ventilation network, and obtain a lot of training data. This ventilation model proved its reliability in our previous studies [32]. The main solving process is shown in Figure 5.

3. Model Validation

3.1. Intelligent Prediction Database

A large amount of training data are required when deep learning algorithms are used for machine learning. The training data of the intelligent algorithm model of the ventilation system, which includes the air volume of 40 monitoring points and 51 prediction points, are collected according to the actual operation of the mine ventilation system. The locations of the monitoring points and prediction points are shown in Figure 6, where the monitoring points are marked in red, and the prediction points are marked in green. However, data collection needs to cover various environmental conditions, such as spring, summer, autumn, and winter, requiring a lot of manpower and time. To this end, the basic database, including 819 sets of normal data and 40 sets of abnormal data, was simulated by applying the 3D simulation system software of mine ventilation in this study. In other words, the initial training database of the intelligent algorithm model of the ventilation system trained in this study was constructed by 859 sets of ventilation network solution results DOUT.

3.2. Comparison of Prediction Methods of Different Airflow Parameters

We use the same dataset for prediction analysis and compare the prediction ability of different artificial intelligence models for the constructed intelligent prediction model. Root mean squared error (RMSE), mean absolute error (MAE), and mean relative error (MARE) were used to characterize the accuracy of the prediction (Table 1). By comparing these three indexes, constructing a suitable CNN model has good accuracy in solving the prediction of mine airflow parameters.
As shown in Figure 7, it results from data training using the CNN method. The results show that the maximum error of a single airflow measurement point is 1.24%, the maximum overall error is 3.25%, and the overall average error is 0.51%. The model training results of the intelligent algorithm are good, and the accuracy is high, which can meet the requirements of the research and application of this project.
Figure 8 shows the error diagram of 51 sensing points. In the training process, the error of the corresponding point is related to the position of the point in the ventilation system. Therefore, the rationality of the location should be considered in the arrangement of measuring points and sensing points.
As shown in Figure 9, the output result is obtained through the data input of the 40 monitoring points under the CNN method with 51 sensing points. The result is static, and in practical application, it should be trained according to the rolling data of the 40 monitoring points and then the latest input value of the 40 monitoring points is loaded to realize the intelligent control of the perception and decision module of the intelligent ventilation system.
Figure 10 shows the comparison between the predicted results of the training set and the test set and the real values when CNN was used to train the predictive model. The comparison chart shows us that the CNN prediction model we trained can accurately predict and verify the correctness of the model parameter settings.

4. Intelligent Prediction System of Mine Ventilation

Intelligent ventilation system development is a very complicated process. The main process is shown in Figure 11.
Intelligent algorithm model training is divided into two stages. In the first stage, the ventilation network simulation solution database is used for training before the operation of the intelligent ventilation system. In the second stage, after the operation of the mine intelligent ventilation system, the real-time data of the operation of the mine ventilation system are used for training. After the real-time data obtained by the airflow parameter monitoring sensor are input into the prediction model, the prediction model can calculate the prediction data in real-time.
In this project case, the mine ventilation 3D simulation system software is used to obtain the airflow parameter data of each ventilation roadway under different natural wind pressures and different main fan operating conditions, and a huge database for neural network training and learning is built which can make up for the shortage of the difficult training of a fully connected neural network.
This project chooses a CNN to build the intelligent algorithm model of the mine ventilation system, adding a convolutional layer to the network layer. Therefore, the core module of the intelligent ventilation system of the project can be obtained, that is, the part of intelligent perception and decision-making. On this basis, a new intelligent ventilation system is built together with other basic information modules, monitoring modules, control modules, etc. The main interface of the system is shown in Figure 12. Moreover, Figure 12b is the main interface of the core module of the intelligent sensing of airflow parameters.
In addition, as shown in Figure 12c, real-time airflow parameter data of 40 measured points can be freely retrieved. Similarly, in Figure 12d, the real-time data corresponding to 51 perception points can also be retrieved. Based on this, mine managers can effectively control and deploy underground airflow to ensure worker safety.
In order to verify the reliability of the intelligent ventilation system for sensing data processing, 15 sensing points were selected inside the mine for wind speed monitoring. Wind speed is monitored by a portable anemometer and compared with the perception data of the intelligent ventilation system at the same time, as shown in Figure 13. The comparison shows that the perceived value is close to the measured value, and their error value is small. The maximum error value is 1.2%, which can meet the requirements of engineering applications. In addition, the error results of sensing points at different locations are relatively average. This shows that the perception level is relatively stable for the perception of global air flow sensing. The intelligent ventilation system established by this model has good applicability and repeatability, and it has been applied in many non-coal mines successfully, such as Yongping Copper Mine (Shangrao, China), Yinshan Mining Co., Ltd. (Chongqing, China), and Xinjiang Kalatongke Mining Co., Ltd. (Altay, China).

5. Conclusions

(1) An intelligent ventilation system construction method based on the global scheme is proposed. The method mainly sets several monitoring points in the main roadway of the mine and then predicts the airflow parameters at other unknown points by an artificial intelligence algorithm. Real-time intelligent control is carried out according to the data of sensing points. It can solve the problem of the sensor not being installed in the airflow disorder and under the harsh environmental conditions of construction.
(2) The 3D simulation system software of mine ventilation is used to obtain airflow parameter data of each ventilation roadway under different natural wind pressures and different operating conditions of the main fan, and a huge database for the training and learning of neural networks is constructed. This method can compensate for the shortage of fully connected neural networks, which are not easy to train.
(3) A method based on a convolutional neural network model for wind flow parameter prediction is proposed. The practical application is divided into two stages. At the beginning of the application, the database obtained by the network solution is used for training and prediction. In operation, the perceived points are predicted by accumulating and rolling the observed point data.
(4) Based on solving the key modules of intelligent perception prediction, the real-time monitoring and intelligent control modules are integrated, and the intelligent ventilation system suitable for a mine is developed and put into trial operation. According to the field feedback, an intelligent ventilation system based on a global scheme can effectively improve the efficiency of the ventilation system.

Author Contributions

Y.C.: conceptualization, writing—original draft. Z.L.: supervision, resources, methodology. X.L.: data curation, validation. W.T.: software, visualization. Q.Z.: formal analysis, writing—review and editing. H.W.: validation, project administration, visualization. W.H.: review and editing. All authors have read and agreed to the published version of the manuscript.

Funding

This work was supported by the National Natural Science Foundation of China (52274247) and the Natural Science Foundation of Hunan Province (2021JJ40799).

Data Availability Statement

The original contributions presented in the study are included in the article, further inquiries can be directed to the corresponding author.

Conflicts of Interest

Yin Chen was employed by the Xinjiang Kalatongke Mining Co., Ltd. The remaining authors declare that the research was conducted in the absence of any commercial or financial relationships that could be construed as a potential conflict of interest.

References

  1. Brkić, D.; Praks, P. Short Overview of Early Developments of the Hardy Cross Type Methods for Computation of Flow Distribution in Pipe Networks. Appl. Sci. 2019, 9, 2019. [Google Scholar] [CrossRef]
  2. Xu, Y.; Li, Z.; Wang, J.; Chen, Y.; Li, R.; Wang, Q.; Jia, M. Ventilation and Heat Exchange Characteristics in High Geotemperature Tunnels Considering Buoyancy-Driven Flow and Groundwater Flow. Int. J. Therm. Sci. 2022, 173, 107400. [Google Scholar] [CrossRef]
  3. Zhang, H.; Han, W.; Xu, Y.; Wang, Z. Analysis on the Development Status of Coal Mine Dust Disaster Prevention Technology in China. J. Healthc. Eng. 2021, 2021, 5574579. [Google Scholar] [CrossRef]
  4. Zheng, C.; Jiang, B.; Xue, S.; Chen, Z.; Li, H. Coalbed Methane Emissions and Drainage Methods in Underground Mining for Mining Safety and Environmental Benefits: A Review. Process Saf. Environ. Prot. 2019, 127, 103–124. [Google Scholar] [CrossRef]
  5. Penner, K.B. Ventilation Design Strategy to Meet Future Production Requirements for a Saskatchewan Potash Mine. Master’s Thesis, Queen’s University, Kingston, ON, Canada, 2015. [Google Scholar]
  6. Cai, M.; Li, P.; Tan, W.; Ren, F. Key Engineering Technologies to Achieve Green, Intelligent, and Sustainable Development of Deep Metal Mines in China. Engineering 2021, 7, 1513–1517. [Google Scholar] [CrossRef]
  7. De Souza, E. Application of Ventilation Management Programs for Improved Mine Safety. Int. J. Min. Sci. Technol. 2017, 27, 647–650. [Google Scholar] [CrossRef]
  8. Gao, K.; Qi, Z.; Liu, Y.; Zhang, J. Calculation Model for Ventilation Friction Resistance Coefficient by Surrounding Rock Roughness Distribution Characteristics of Mine Tunnel. Sci. Rep. 2022, 12, 3193. [Google Scholar] [CrossRef] [PubMed]
  9. Chikande, T.; Phillips, H.R.; Cawood, F.T. Ventilation Optimization through Digital Transformation. J. S. Afr. Inst. Min. Metall. 2023, 122, 687–696. [Google Scholar] [CrossRef]
  10. Yu, B.; Shao, L. An Optimization Method of Mine Ventilation System Based on R2 Index Hybrid Multi-Objective Equilibrium Optimization Algorithm. Energy Rep. 2022, 8, 11003–11021. [Google Scholar] [CrossRef]
  11. Hao, H.; Jiang, S.; Wu, Z.; Wang, K.; Xi, X. Experimental Study on Precise Control Air Quantity on Demand by the Cooperation of Multiple Main Fans in Mine. J. Clean. Prod. 2023, 414, 137626. [Google Scholar] [CrossRef]
  12. Kozyrev, S.A.; Osintseva, A.V. Optimizing Arrangement of Air Distribution Controllers in Mine Ventilation System. J. Min. Sci. 2012, 48, 896–903. [Google Scholar] [CrossRef]
  13. Cheng, J.; Ma, Y.; Lu, W.; Liu, G.; Cai, F. Using Inverting CO Critical Value to Predict Coal Spontaneous Combustion Severity in Mine Gobs with Considering Air Leakages—A Case Study. Process Saf. Environ. Prot. 2022, 167, 45–55. [Google Scholar] [CrossRef]
  14. Huang, D.; Liu, J.; Deng, L.; Li, X.; Song, Y. An Adaptive Kalman Filter for Online Monitoring of Mine Wind Speed. Arch. Min. Sci. 2019, 813–827. [Google Scholar] [CrossRef]
  15. Zhou, L.; Yuan, L.; Thomas, R.; Iannacchione, A. Determination of Velocity Correction Factors for Real-Time Air Velocity Monitoring in Underground Mines. Int. J. Coal Sci. Technol. 2017, 4, 322–332. [Google Scholar] [CrossRef] [PubMed]
  16. Yan, Z.; Wang, Y.; Fan, J.; Huang, Y.; Zhong, Y. An Efficient Method for Optimizing Sensors’ Layout for Accurate Measurement of Underground Ventilation Networks. IEEE Access 2023, 11, 72630–72640. [Google Scholar] [CrossRef]
  17. Suvar, M.C.; Lupu, C.; Arad, V.; Cioclea, D.; Pasculescu, V.M.; Mija, N. Computerized simulation of mine ventilation networks for sustainable decision making process. Environ. Eng. Manag. J. 2014, 13, 1445–1451. [Google Scholar] [CrossRef]
  18. Huang, D.; Liu, J.; Deng, L. A Hybrid-Encoding Adaptive Evolutionary Strategy Algorithm for Windage Alteration Fault Diagnosis. Process Saf. Environ. Prot. 2020, 136, 242–252. [Google Scholar] [CrossRef]
  19. Wang, D.; Liu, J.; Lijun, D.; Honglin, W. A Supervised Diagnostic Experiment of Resistance Variable Multifault Locations in a Mine Ventilation System. Sci. Rep. 2023, 13, 5259. [Google Scholar] [CrossRef]
  20. Jia, P.; Jia, J.; Song, L.; Li, Z.; Li, B. Theory of RPOD Adjustment of Air Volume for Mine Intelligent Ventilation. Int. J. Vent. 2022, 21, 316–329. [Google Scholar] [CrossRef]
  21. Wang, Y.; Pan, Q.; Gao, L.; Cao, Y.; Liu, P.; Yi, H.; Gao, C. Analysis of Distribution Method of Designed Air Quantity in Coal Mine Ventilation—A Case Study. Sci. Rep. 2024, 14, 10917. [Google Scholar] [CrossRef]
  22. Wang, K.; Jiang, S.; Wu, Z.; Shao, H.; Zhang, W.; Pei, X.; Cui, C. Intelligent Safety Adjustment of Branch Airflow Volume during Ventilation-on-Demand Changes in Coal Mines. Process Saf. Environ. Prot. 2017, 111, 491–506. [Google Scholar] [CrossRef]
  23. Liu, X.; Zhang, X.; Wang, L.; Qu, F.; Shao, A.; Zhao, L.; Wang, H.; Yue, X.; Li, Y.; Yan, W.; et al. Research progress and prospects of intelligent technology in underground mining of hard rock mines. Green Smart Min. Eng. 2024, 1, 12–26. [Google Scholar] [CrossRef]
  24. Liu, Y.; Liu, Z.; Gao, K.; Huang, Y.; Zhu, C. Efficient Graphical Algorithm of Sensor Distribution and Air Volume Reconstruction for a Smart Mine Ventilation Network. Sensors 2022, 22, 2096. [Google Scholar] [CrossRef] [PubMed]
  25. Liu, L.; Liu, J.; Zhou, Q.; Huang, D. Machine Learning Algorithm Selection for Windage Alteration Fault Diagnosis of Mine Ventilation System. Adv. Eng. Inform. 2022, 53, 101666. [Google Scholar] [CrossRef]
  26. Wang, J.; Jia, M.; Bin, L.; Wang, L.; Zhong, D. Regulation and Optimization of Air Quantity in a Mine Ventilation Network with Multiple Fans. Arch. Min. Sci. 2023, 179–193. [Google Scholar] [CrossRef]
  27. Zhang, W.; Li, Y.; Li, J. Data Processing Method of Mine Wind Speed Monitoring Based on an Improved Fuzzy C-Means Clustering Algorithm. Appl. Sci. 2022, 12, 9701. [Google Scholar] [CrossRef]
  28. Saxén, H.; Pettersson, F. Method for the Selection of Inputs and Structure of Feedforward Neural Networks. Comput. Chem. Eng. 2006, 30, 1038–1045. [Google Scholar] [CrossRef]
  29. Zhang, Y.; Lin, H.; Yang, X.; Long, W. Combining Expert Weights for Online Portfolio Selection Based on the Gradient Descent Algorithm. Knowl.-Based Syst. 2021, 234, 107533. [Google Scholar] [CrossRef]
  30. Liu, L.; Liu, J.; Zhou, Q.; Huang, D. Influence of sample attributes on generalization performance of machine learning models for windage alteration fault diagnosis of the mine ventilation system. Expert Syst. Appl. 2023, 213, 119320. [Google Scholar] [CrossRef]
  31. Li, J.; Li, Y.; Zhang, J.; Li, B.; Zhang, Z.; Dong, J.; Cui, Y. Accurate and real-time network calculation for mine ventilation without wind resistance measurement. J. Wind Eng. Ind. Aerodyn. 2022, 230, 105183. [Google Scholar] [CrossRef]
  32. Tang, W.; Zhang, Q.; Chen, Y.; Liu, X.; Wang, H.; Huang, W. An intelligent airflow perception model for metal mines based on CNN-LSTM architecture. Process Saf. Environ. Prot. 2024, 187, 1234–1247. [Google Scholar] [CrossRef]
Figure 1. Ventilation network diagram.
Figure 1. Ventilation network diagram.
Applsci 14 07602 g001
Figure 2. The improved typical feedforward neural network structure.
Figure 2. The improved typical feedforward neural network structure.
Applsci 14 07602 g002
Figure 3. The intelligent prediction process.
Figure 3. The intelligent prediction process.
Applsci 14 07602 g003
Figure 4. Support vector machine classification visualization case.
Figure 4. Support vector machine classification visualization case.
Applsci 14 07602 g004
Figure 5. The flow of obtaining training database by solving the ventilation network.
Figure 5. The flow of obtaining training database by solving the ventilation network.
Applsci 14 07602 g005
Figure 6. The locations of the monitoring points and prediction points in ventilation network.
Figure 6. The locations of the monitoring points and prediction points in ventilation network.
Applsci 14 07602 g006
Figure 7. The training results of measured points and perceived points.
Figure 7. The training results of measured points and perceived points.
Applsci 14 07602 g007
Figure 8. Method error statistics of CNN prediction.
Figure 8. Method error statistics of CNN prediction.
Applsci 14 07602 g008
Figure 9. CNN prediction output of 51 perceptual points.
Figure 9. CNN prediction output of 51 perceptual points.
Applsci 14 07602 g009
Figure 10. The true value vs. predicted (a) training; (b) test.
Figure 10. The true value vs. predicted (a) training; (b) test.
Applsci 14 07602 g010
Figure 11. The key process of intelligent ventilation system development.
Figure 11. The key process of intelligent ventilation system development.
Applsci 14 07602 g011
Figure 12. Intelligent ventilation system and main modules.
Figure 12. Intelligent ventilation system and main modules.
Applsci 14 07602 g012
Figure 13. Verification of intelligent ventilation system sensing module.
Figure 13. Verification of intelligent ventilation system sensing module.
Applsci 14 07602 g013
Table 1. Error comparison of different prediction methods.
Table 1. Error comparison of different prediction methods.
RMSEMAEMAPE
ANN0.09650.0099829.576
SVR0.08920.0106530.452
CNN0.09850.0097126.531
Disclaimer/Publisher’s Note: The statements, opinions and data contained in all publications are solely those of the individual author(s) and contributor(s) and not of MDPI and/or the editor(s). MDPI and/or the editor(s) disclaim responsibility for any injury to people or property resulting from any ideas, methods, instructions or products referred to in the content.

Share and Cite

MDPI and ACS Style

Chen, Y.; Li, Z.; Liu, X.; Tang, W.; Zhang, Q.; Wang, H.; Huang, W. Research on Intelligent Ventilation System of Metal Mine Based on Real-Time Sensing Airflow Parameters with a Global Scheme. Appl. Sci. 2024, 14, 7602. https://doi.org/10.3390/app14177602

AMA Style

Chen Y, Li Z, Liu X, Tang W, Zhang Q, Wang H, Huang W. Research on Intelligent Ventilation System of Metal Mine Based on Real-Time Sensing Airflow Parameters with a Global Scheme. Applied Sciences. 2024; 14(17):7602. https://doi.org/10.3390/app14177602

Chicago/Turabian Style

Chen, Yin, Zijun Li, Xin Liu, Wenxuan Tang, Qilong Zhang, Haining Wang, and Wei Huang. 2024. "Research on Intelligent Ventilation System of Metal Mine Based on Real-Time Sensing Airflow Parameters with a Global Scheme" Applied Sciences 14, no. 17: 7602. https://doi.org/10.3390/app14177602

APA Style

Chen, Y., Li, Z., Liu, X., Tang, W., Zhang, Q., Wang, H., & Huang, W. (2024). Research on Intelligent Ventilation System of Metal Mine Based on Real-Time Sensing Airflow Parameters with a Global Scheme. Applied Sciences, 14(17), 7602. https://doi.org/10.3390/app14177602

Note that from the first issue of 2016, this journal uses article numbers instead of page numbers. See further details here.

Article Metrics

Back to TopTop