Active Vibration Suppression of Stiffened Composite Panels with Piezoelectric Materials under Blast Loads
Abstract
1. Introduction
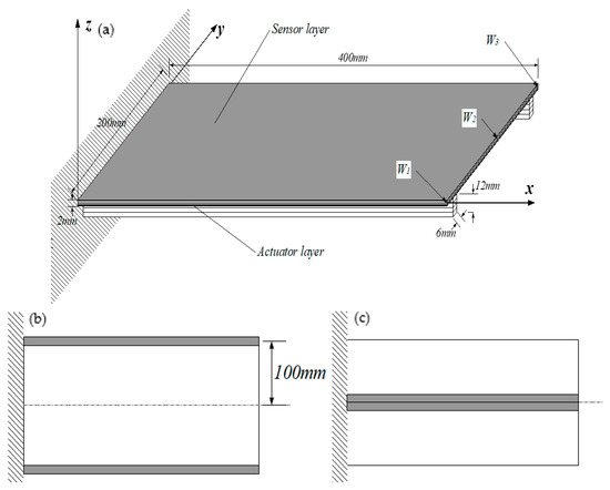
2. Stiffened Laminated Panel with Piezoelectric Materials
2.1. Finite Element Formulations
2.2. Blast Loads
3. Numerical Results and Discussions
3.1. Code Verifications
3.2. The Evaluation of Stiffeners’ Locations
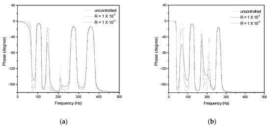
3.3. Evaluation of Positions for Piezoelectric Patches
4. Conclusions
Author Contributions
Funding
Conflicts of Interest
References
- Reddy, J.N. On laminated composite plates with integrated sensors and actuators. Eng. Struct. 1999, 21, 569–593. [Google Scholar] [CrossRef]
- Liu, G.R.; Peng, X.Q.; Lam, K.Y.; Tani, J. Vibration control simulation of laminated composite plates with integrated piezoelectrics. J. Sound Vibr. 1999, 220, 827–846. [Google Scholar] [CrossRef]
- Lam, K.Y.; Ng, T.Y. Active control of composite plates with integrated piezoelectric sensors and actuators under various dynamic loading conditions. Smart Mater. Struct. 1999, 8, 223–237. [Google Scholar] [CrossRef]
- Balamurugan, V.; Narayanan, S. Shell finite element for smart piezoelectric composite plate/shell structures and its application to the study of active vibration control. Finite Elem. Anal. Des. 2001, 37, 713–738. [Google Scholar] [CrossRef]
- Tolliver, L.; Xu, T.B.; Jiang, X. Finite element analysis of the piezoelectric stacked-hybats transducer. Smart Mater. Struct. 2013, 22, 035015. [Google Scholar] [CrossRef]
- Zhang, Y.K.; Lu, T.F.; Al-Sarawi, S. Formulation of a simple distributed-parameter model of multilayer piezoelectric actuators. J. Intell. Mater. Syst. Struct. 2016, 27, 1485–1491. [Google Scholar] [CrossRef]
- Qian, F.; Xu, T.B.; Zuo, L. Design, optimization, modeling and testing of a piezoelectric footwear energy harvester. Energy Convers. Manag. 2018, 171, 1352–1364. [Google Scholar] [CrossRef]
- Xie, Y.; Long, J.; Zhao, P.; Chen, J.; Luo, J.; Zhang, Z.; Li, K.; Han, Y.; Hao, X.; Qu, Z.; et al. A self-powered radio frequency (RF) transmission system based on the combination of triboelectric nanogenerator (TENG) and piezoelectric element for disaster rescue/relief. Nano Energy 2018, 54, 331–340. [Google Scholar] [CrossRef]
- Luccioni, B.; Ambrosini, R.D.; Danesi, R. Blast load assessment using hydrocodes. Eng. Struct. 2006, 28, 1736–1744. [Google Scholar] [CrossRef]
- Turkmen, H.S.; Mecitoglu, Z. Dynamic response of a stiffened laminated composite plate subjected to blast load. J. Sound Vibr. 1999, 221, 371–389. [Google Scholar] [CrossRef]
- Jacinto, A.C.; Ambrosini, R.K.; Danesi, R.F. Experimental and computational analysis of plates under air blast loading. Int. J. Impact Eng. 2001, 25, 927–947. [Google Scholar] [CrossRef]
- Ma, X.; Wang, L.; Xu, J. Active Vibration control of rib stiffened plate by using decentralized velocity feedback controllers with inertial actuators. Appl. Sci. 2019, 9, 3188. [Google Scholar] [CrossRef]
- Ma, X.; Chen, K.; Xu, J. Active control of sound transmission through orthogonally rib stiffened double-panel structure: Mechanism analysis. Appl. Sci. 2019, 9, 3286. [Google Scholar] [CrossRef]
- Liu, X.; Wang, J.; Li, W. Dynamic analytical solution of a piezoelectric stack utilized in an actuator and a generator. Appl. Sci. 2018, 8, 1779. [Google Scholar] [CrossRef]
- Chung, N.T.; Thuy, N.N.; Thu, D.T.N.; Chau, L.H. Numerical and experimental analysis of the dynamic behavior of piezoelectric stiffened composite plates subjected to airflow. Math. Probl. Eng. 2019, 2019, 10. [Google Scholar] [CrossRef]
- Attaf, B.; Hollaway, L. Vibration analyses of stiffened and unstiffened composite plates subjected to in-plane loads. Composites 1990, 21, 117–126. [Google Scholar] [CrossRef]
- Sadek, E.A.; Tawfik, S.A. A finite element model for the analysis of stiffened laminated plates. Comput. Struct. 2000, 75, 369–383. [Google Scholar] [CrossRef]
- Kumar, E.V.; Raaja, G.S.; Jerome, J. Adaptive PSO for optimal LQR tracking control of 2 DoF laboratory helicopter. Appl. Soft. Comput. 2016, 41, 77–90. [Google Scholar] [CrossRef]
- Gupta, A.D.; Gregory, F.H.; Bitting, R.L.; Bhattacharya, S. Dynamic analysis of an explosively loaded hinged rectangular plate. Comput. Struct. 1987, 26, 339–344. [Google Scholar] [CrossRef]
- Hetherington, J.G.; Smith, P.D. Blast and Ballistic Loading of Structures; Butterworth-Heinemann Ltd.: London, UK, 1994; pp. 30–57. [Google Scholar]
- Lam, K.Y.; Peng, X.Q.; Liu, G.R.; Reddy, J.N. A finite-element model for piezoelectric composite laminates. Smart Mater. Struct. 1997, 6, 583–591. [Google Scholar] [CrossRef]
- Sheikh, A.H.; Mukhopadhyay, M. Linear and nonlinear transient vibration analysis of stiffened plate structures. Finite Elem. Anal. Des. 2002, 38, 477–502. [Google Scholar] [CrossRef]
- Mukhergee, A.; Joshi, S.P.; Ganguli, A. Active vibration control of piezolaminated stiffened plates. Compos. Struct. 2002, 55, 435–443. [Google Scholar] [CrossRef]











| Properties | PZT Piezoceramic | T300/976 |
|---|---|---|
| Young’s modulus (GPa): | 63.0 | 150 |
| 63.0 | 9.0 | |
| Poisson’s ratio: | 0.3 | 0.3 |
| 0.3 | 0.3 | |
| Shear modulus (GPa): | 24.2 | 7.10 |
| 24.2 | 2.50 | |
| Density (kg/m3): | 7600 | 1600 |
| Piezoelectric constants (m/V): | 254 × 10−12 | - |
| Electrical permittivity (F/m): | 15.3 × 10−9 | - |
| 15.0 × 10−9 | - |
| Natural Frequency (Hz) | Ref. [16] | Ref. [23] | Present |
|---|---|---|---|
| 1st | 68.61 | 68.47 | 68.13 |
| 2nd | 71.20 | 68.66 | 68.77 |
| 3rd | 124.70 | 119.59 | 117.55 |
| 4th | 150.40 | 162.16 | 160.128 |
| 5th | 183.20 | 177.11 | 177.45 |
| 6th | 184.80 | 177.39 | 178.31 |
| Natural Frequency (Hz) | Stiffener Case 1 | Stiffener Case 2 |
|---|---|---|
| 1st | 67.6098 | 39.6451 |
| 2nd | 117.7273 | 78.6680 |
| 3rd | 155.3218 | 133.6110 |
| 4th | 212.1017 | 178.2795 |
| 5th | 290.4140 | 214.3758 |
| 6th | 379.4205 | 273.2984 |
| Stiffener Location | Model I | Model II | |
|---|---|---|---|
| Vertical displacement (s) | case 1 | 0.2848 | 0.2204 |
| case 2 | 0.1139 | 0.1844 | |
| Transverse bending (s) | case 1 | 0.2857 | 0.1883 |
| case 2 | 0.2569 | 0.1910 | |
| Lateral twisting (s) | case 1 | 0.2027 | 0.0592 |
| case 2 | 1.0472 | 0.3362 |
| Stiffener Location | Model I | Model II | |
|---|---|---|---|
| Maximum vertical displacement (mm) | case 1 | 8.0696 | 5.6853 |
| case 2 | 1.8378 | 2.6561 | |
| Maximum transverse bending (mm) | case 1 | 0.0359 | 0.0183 |
| case 2 | 0.0453 | 0.0127 | |
| Maximum lateral twisting (mm) | case 1 | 0.0070 | 0.0035 |
| case 2 | 0.0195 | 0.0056 |
© 2020 by the authors. Licensee MDPI, Basel, Switzerland. This article is an open access article distributed under the terms and conditions of the Creative Commons Attribution (CC BY) license (http://creativecommons.org/licenses/by/4.0/).
Share and Cite
Lee, C.-Y.; Jung, J.-Y.; Jeong, S.-M. Active Vibration Suppression of Stiffened Composite Panels with Piezoelectric Materials under Blast Loads. Appl. Sci. 2020, 10, 387. https://doi.org/10.3390/app10010387
Lee C-Y, Jung J-Y, Jeong S-M. Active Vibration Suppression of Stiffened Composite Panels with Piezoelectric Materials under Blast Loads. Applied Sciences. 2020; 10(1):387. https://doi.org/10.3390/app10010387
Chicago/Turabian StyleLee, Chang-Yull, Jin-Young Jung, and Se-Min Jeong. 2020. "Active Vibration Suppression of Stiffened Composite Panels with Piezoelectric Materials under Blast Loads" Applied Sciences 10, no. 1: 387. https://doi.org/10.3390/app10010387
APA StyleLee, C.-Y., Jung, J.-Y., & Jeong, S.-M. (2020). Active Vibration Suppression of Stiffened Composite Panels with Piezoelectric Materials under Blast Loads. Applied Sciences, 10(1), 387. https://doi.org/10.3390/app10010387

