Next Article in Journal
Effect of Paraffin and Vinyl Acetate Ethylene (VAE) Emulsions on the Waterproofing and Mechanical Properties of Fiber-Reinforced Modified Gypsum (FRMG) Matrix
Previous Article in Journal
Optimization Techniques for High-Rate Utilization of Bottom Ash and Marble Dust in Green Technologies
Previous Article in Special Issue
From Space to Well-Being: Understanding the Restorative Potential of Urban Riverfront Landscapes
 
 
Font Type:
Arial Georgia Verdana
Font Size:
Aa Aa Aa
Line Spacing:
Column Width:
Background:
Article

Evidence-Based Sensory Architecture Applied to the Design of Therapeutic Centers for Children and Adolescents with Autism Spectrum Disorder

by
Ana J. Huaman-Meza
1 and
Emilio J. Medrano-Sanchez
2,*
1
Faculty of Architecture, Universidad Tecnológica del Perú, Lima 15842, Peru
2
Faculty of Engineering, Universidad Tecnológica del Perú, Lima 15842, Peru
*
Author to whom correspondence should be addressed.
Buildings 2026, 16(8), 1490; https://doi.org/10.3390/buildings16081490
Submission received: 13 February 2026 / Revised: 16 March 2026 / Accepted: 27 March 2026 / Published: 10 April 2026
(This article belongs to the Special Issue Urban Wellbeing: The Impact of Spatial Parameters—2nd Edition)

Abstract

Sensory Architecture has been recognized as a relevant factor in the emotional experience of children and adolescents with autism spectrum disorder (ASD); however, a persistent gap remains in the systematic incorporation of empirical evidence into the architectural design process, particularly in Latin American urban contexts. Within this framework, the present study analyzed the relationship between Sensory Architecture and Emotional Well-Being in children and adolescents with ASD attending therapeutic centers in the district of San Juan de Lurigancho, Lima, with the aim of translating empirical findings into evidence-based architectural design criteria. A quantitative, non-experimental, cross-sectional, and correlational approach was adopted. The unit of analysis consisted of children and adolescents with ASD, whose emotional experience was assessed through proxy informants, specifically family members. The sample comprised 100 family informants selected using non-probabilistic convenience sampling. Data were collected through a structured questionnaire consisting of 25 items measured on a five-point Likert scale, which demonstrated high internal consistency (Cronbach’s alpha = 0.93). As the data did not follow a normal distribution (Kolmogorov–Smirnov, p < 0.05), Spearman’s Rho coefficient was applied. The results revealed positive and statistically significant associations between the dimensions of Sensory Architecture and Emotional Well-Being, with Spatial Configuration emerging as the dimension with the strongest associative weight ( ρ = 0.652; p < 0.001). Based on this empirical hierarchy, an evidence-based architectural design proposal for a therapeutic center was developed. Study limitations include the cross-sectional design and the absence of post-occupancy evaluation, which point to future research directions focused on longitudinal studies and empirical validation of architectural performance.

Graphical Abstract

1. Introduction

What in everyday contexts may be perceived as an ordinary sound, light, or texture without particular relevance can become a disturbing stimulus for children and adolescents with ASD, disrupting their emotional stability and daily functioning [1]. This phenomenon is associated with atypical sensory processing, which is present in up to 95% of individuals with ASD [2], in contrast to the 8.3% reported in the general population [3]. Consequently, alterations in the way environmental stimuli are perceived and managed directly affect adaptive behavior, attention, and social interaction capacity [4,5].
In parallel, the prevalence of ASD has shown a sustained increase worldwide. Epidemiological estimates indicate that global prevalence among children and adolescents ranges between 1% and 3%, with reported rates of 32.2 cases per 1000 eight-year-old children [6,7,8]. Meta-analytic evidence reports a global prevalence of 0.77%, with higher prevalence in males (1.14%) compared to females (0.31%) [9]. Prevalence studies across different regions, including the United States, Italy, Africa, and Asia, report values ranging from approximately 0.46% to 3.42%, confirming the growing global burden of ASD [10,11,12,13].
In response to this reality, the need for interdisciplinary interventions aimed at improving the quality of life of children and adolescents with ASD has gained increasing relevance, moving beyond traditional clinical approaches. Within this context, Sensory Architecture has emerged as a therapeutic tool capable of directly influencing emotional well-being by intervening in the way environmental stimuli are perceived and processed [14]. From this perspective, architectural design is no longer conceived as a passive physical container for therapeutic activities, but rather as an active component in modulating users’ sensory and emotional experiences.
Several studies have shown that incorporating sensory criteria into the design of therapeutic environments contributes to reducing disruptive behaviors and improving environmental perception and emotional responses among children and adolescents with ASD [15,16]. In this sense, Sensory Architecture functions as an active agent in emotional self-regulation through the control of visual, acoustic, and tactile stimuli, as well as through spatial organization that promotes predictability and a sense of safety [17].
At the same time, specialized therapeutic centers have been implemented in different international contexts through management and financing models that recognize infrastructure as a key component of intervention. In England and Spain, mixed financing schemes combining public resources and contributions from non-profit organizations have reduced operational costs through economies of scale and centralized planning [18]. In Australia and Korea, progressive subsidy systems partially cover care costs, reducing the economic burden on families and ensuring service continuity [19].
Likewise, in Malaysia, the implementation of public–private partnerships have facilitated the construction and maintenance of therapeutic centers, distributing costs between the State and the private sector in order to ensure infrastructure sustainability [20]. Recent studies conducted in Europe reinforce this approach, indicating that collaborative models between governments and private stakeholders not only promote continuity of care but also contribute to more equitable access to specialized services [13,21]. Taken together, these international experiences demonstrate that the architecture of therapeutic centers constitutes a structural component of intervention strategies for individuals with ASD, rather than a secondary element of the therapeutic process.
In Latin America, interest in incorporating Sensory Architecture criteria into therapeutic environments for individuals with ASD has increased in recent years, although progress remains uneven across countries. Regional studies indicate that sensory-adapted spaces improve emotional regulation, social participation, and behavioral performance among children and adolescents with ASD [22]. In addition, a multicenter study conducted in Argentina, Brazil, Chile, Uruguay, and the Dominican Republic involving 689 children with ASD reported improvements associated with exposure to environments designed under sensory criteria, including advances in emotional self-regulation, motor control, and reductions in stress-related vocalizations [23]. Together, these findings highlight the importance of the built environment as a factor that directly influences therapeutic experience and emotional well-being in this population.
Within this framework, multisensory design is consolidated as an architectural strategy that transcends isolated clinical intervention by influencing users’ autonomy, inclusion, and quality of everyday experience [24,25]. Thus, architecture ceases to operate as a neutral container of therapeutic activities and becomes an active component of the intervention process, capable of enhancing therapeutic outcomes through spatial organization, stimulus control, and the creation of predictable and safe environments for children and adolescents with ASD.
In the Peruvian context, services for children and adolescents with ASD are frequently delivered in spaces that do not respond to their specific sensory needs. Several studies indicate that therapeutic care often occurs in inadequate infrastructure that increases sensory overload, hinders self-regulation processes, and elevates levels of stress and anxiety among users [26,27]. Consequently, the absence of adapted architectural environments reduces the effectiveness of therapeutic interventions and becomes an environmental barrier that restricts social participation, learning, and emotional well-being [28,29]. In densely populated urban areas with limited healthcare infrastructure, such as several districts of Metropolitan Lima, these deficiencies intensify inequalities in access to adequate therapeutic spaces [26].
This lack of specialized infrastructure, together with the scarcity of architectural proposals designed under sensory criteria adapted to the local context, generates negative impacts not only on individuals with ASD but also on the quality of life of their families [27,30]. Despite international and regional advances, a significant gap persists in Peru regarding the application of Sensory Architecture principles to the country’s urban, social, and cultural contexts [31]. This situation limits the development of inclusive therapeutic infrastructure and the generation of local evidence capable of informing public policy and professional training in therapeutic architecture [32]. Consequently, integrating sensory criteria into the design of therapeutic centers emerges as a priority challenge to address the needs of individuals with ASD in Peruvian urban environments.
Based on the gap identified in the Peruvian context and the evidence highlighting the role of the built environment in the sensory and emotional experiences of individuals with ASD, this study aims to analyze the relationship between Sensory Architecture and Emotional Well-Being among children and adolescents with ASD in a specific urban context. To address this objective, the study adopts a non-experimental, correlational approach that examines the associations between therapeutic space characteristics and perceived emotional well-being without establishing causal relationships. The guiding research question is: How is the Sensory Architecture of therapeutic centers related to the emotional well-being of children and adolescents with ASD in the district of San Juan de Lurigancho? From this question, three specific analytical dimensions are derived: (1) Therapeutic Environments and Emotional Well-Being, considering spaces designed to support emotional regulation, social interaction, and sensory comfort; (2) Environmental Sensory Stimuli (light, sound, texture, temperature, and color) and perceived emotional well-being; and (3) the Spatial Configuration of therapeutic centers and Emotional Well-Being, including functional organization, spatial legibility, and spatial sequencing as relevant factors in users’ experiences.
The formulation of these specific problems allows Sensory Architecture to be addressed from an integrative perspective, in which the different dimensions of architectural design are analyzed as interrelated components of the therapeutic environment. In this way, the study seeks to generate empirical evidence that contributes to understanding how sensory and spatial characteristics of therapeutic centers are associated with the emotional well-being of children and adolescents with ASD, and how such evidence can serve as a basis for informed and contextualized architectural proposals.
To approach Sensory Architecture from an operational and design-applicable perspective, the study is structured around three dimensions that enable systematic analysis of therapeutic environment characteristics and their relationship with Emotional Well-Being. These dimensions are not conceived as abstract theoretical constructs but as architectural components that can be evaluated and translated into design criteria.
The first dimension corresponds to Therapeutic Environments, understood as spaces intentionally designed to promote emotional regulation, social interaction, and overall well-being through stimulus control and the integration of specific architectural resources [15,22]. From an architectural perspective, this dimension refers to the functional and environmental quality of spaces where therapeutic activities take place, as well as their capacity to provide conditions of calm, safety, and predictability.
The second dimension refers to Sensory Stimuli, encompassing environmental factors such as lighting, sound, texture, temperature, and color, which directly influence self-regulation processes and the reduction of sensory overload in individuals with ASD [2,33,34]. In architectural terms, this dimension is associated with the deliberate management of perceptual stimuli within the built environment and their articulation into a controlled and coherent spatial experience.
Finally, Spatial Configuration constitutes the third dimension of analysis and is defined as the functional, hierarchical, and sequential organization of therapeutic spaces aimed at promoting spatial legibility, intuitive orientation, and cognitive accessibility [17,35,36]. This dimension emphasizes how the arrangement and relationships between spaces influence users’ emotional experiences by facilitating predictable routines and reducing uncertainty associated with environmental use.
Taken together, these dimensions allow Sensory Architecture to be addressed as an integrated system in which environments, stimuli, and spatial configuration interact to shape therapeutic settings capable of responding to the sensory and emotional needs of children and adolescents with ASD, while remaining translatable into concrete architectural decisions.
From a public health and sustainable urban development perspective, this study aligns with Sustainable Development Goal (SDG) 3 (Good Health and Well-Being) by addressing the need for therapeutic environments that improve emotional well-being and quality of life among children and adolescents with ASD [4,6]. The study recognizes the built environment as a key determinant of well-being, particularly for populations with specific sensory needs, and highlights the potential of architecture to reduce sensory overload and enhance emotional stability. Furthermore, the research relates to SDG 11 (Sustainable Cities and Communities) by proposing architectural criteria that promote inclusion, cognitive accessibility, and specialized infrastructure in high-density urban contexts with service limitations [31,32]. In districts such as San Juan de Lurigancho, where gaps in healthcare and therapeutic infrastructure remain significant, sensory-adapted spaces become a key strategy for reducing inequalities in access to specialized services and fostering more equitable urban environments [37].
Beyond its social relevance, the main contribution of this study lies in articulating empirical evidence with the architectural design process. Unlike approaches that address Sensory Architecture solely from a conceptual or descriptive perspective, this research proposes a methodological framework that links quantitative perception analysis with architectural decision-making, allowing empirical results to directly inform the design of a therapeutic center for children and adolescents with ASD. Consequently, the study not only provides local evidence on the relationship between Sensory Architecture and Emotional Well-Being in the Peruvian context [26], but also proposes a replicable evidence-based architectural design model applicable to other Latin American urban environments with limited resources [2,38]. In doing so, it contributes to consolidating architecture as a discipline capable of integrating empirical knowledge and spatial design, positioning the architectural project as a scientific outcome that responds to contemporary demands for inclusion, well-being, and sustainability [21,29].

2. Sensory Architecture and Autism Spectrum Disorder: An Operative Conceptual Framework

This section presents an operative conceptual framework that articulates the main contributions related to sensory processing and the built environment in individuals with ASD. The framework organizes key concepts directly linked to architectural design, allowing for the establishment of clear relationships between the sensory and spatial characteristics of the environment and users’ emotional experiences. From this perspective, the conceptual framework functions as an analytical tool aimed at translating sensory variables into architectural design criteria, serving as the basis for both the empirical analysis and the development of the architectural proposal.

2.1. Sensory Processing and the Built Environment in Autism Spectrum Disorder

ASD is characterized, among other aspects, by alterations in sensory processing that affect how individuals perceive, integrate, and respond to environmental stimuli [2,3]. These sensory particularities may manifest as hypersensitivity or hyposensitivity to visual, auditory, tactile, olfactory, or proprioceptive stimuli, directly influencing emotional regulation, behavior, and the capacity to interact with the built environment [4,5]. Consequently, architectural space assumes a determinant role in the daily experience of children and adolescents with ASD, as it constitutes a constant source of sensory stimuli.
Several studies have indicated that conventional architectural environments, designed under standardized parameters, tend to intensify sensory overload in individuals with ASD, generating adverse emotional responses such as anxiety, stress, or avoidance behaviors [15,16]. Factors such as excessive lighting, acoustic reverberation, visual complexity, or the absence of spatial hierarchy may become triggers of emotional discomfort, negatively affecting participation in therapeutic and educational activities [17]. From this perspective, the built environment cannot be considered a neutral element, but rather an active component that conditions users’ emotional experiences.
In response to these challenges, the literature has emphasized the need to understand sensory processing in individuals with ASD as a phenomenon closely linked to spatial design [18,19]. The adaptation of the built environment through the deliberate control of sensory stimuli has been associated with improvements in emotional self-regulation, sustained attention, and perceived safety [20]. In particular, reducing unpredictable stimuli and creating sensory-coherent environments has been shown to promote more stable and predictable spatial experiences for children and adolescents with ASD [21].
From an architectural standpoint, these findings imply recognizing that spatial design can actively contribute to emotional regulation by providing environmental conditions aligned with users’ specific sensory needs [22,23]. Material selection, natural and artificial lighting treatment, acoustic control, and spatial organization thus become architectural decisions with direct impact on Emotional Well-Being. In this sense, the built environment ceases to function as a passive container of therapeutic activities and is positioned as a medium capable of modulating the sensory and emotional experiences of individuals with ASD.

2.2. Environments as an Architectural Typology

Therapeutic Environments aimed at children and adolescents with ASD constitute a specific architectural typology, whose spatial configuration responds to requirements distinct from those found in conventional clinical or educational buildings. Unlike traditional healthcare spaces primarily oriented toward diagnosis and medical treatment, therapeutic centers for ASD require environmental conditions that promote emotional regulation, predictability, and the reduction of sensory overload, integrating spatial, sensory, and functional criteria in a coherent manner [15,18].
Specialized literature indicates that effective Therapeutic Environments for individuals with ASD are characterized by clear functional organization, the presence of differentiated spaces according to levels of stimulation, and the incorporation of transition areas that facilitate gradual changes between activities [17,22]. These spaces not only fulfill a programmatic function but also act as mediators between the user and the environment, allowing modulation of sensory stimulus intensity and fostering emotional states of calm and safety. From this perspective, architectural design assumes an active role in the therapeutic process by structuring spatial experiences that support and reinforce clinical interventions.
Furthermore, recent studies highlight that the quality of the physical environment influences adherence to therapy and the perception of well-being among both users and their families [19,23]. The incorporation of flexible spaces, sensory rest areas, and environments that support controlled interaction contributes to creating more inclusive and adaptive settings capable of responding to the diversity of sensory profiles within the autism spectrum. In this sense, the therapeutic center typology for ASD is defined not only by its functional program but also by its capacity to integrate sensory gradients and intelligible spatial sequences.
From an architectural perspective, conceiving Therapeutic Environments as a specific typology implies recognizing that decisions regarding spatial scale, the relationship between interior and exterior areas, materiality, and circulation organization have a direct impact on users’ emotional experiences [20,24]. Thus, the therapeutic center is no longer understood as a generic building adapted a posteriori, but rather as an architectural typology designed from its inception to respond to particular sensory and emotional needs. This approach is especially relevant in urban contexts where the lack of specialized infrastructure has historically led to the reuse of spaces unsuitable for therapeutic care for individuals with ASD.
Consequently, addressing Therapeutic Environments as an architectural typology allows for the establishment of design criteria that transcend isolated solutions and promote the development of replicable, contextualized infrastructures oriented toward Emotional Well-Being. This typological conception lays the groundwork for translating sensory variables into architectural design parameters, a process that is fundamental for articulating empirical evidence with the architectural design process.

2.3. From Sensory Variables to Architectural Design Parameters

The incorporation of Sensory Architecture into the design of Therapeutic Environments for individuals with ASD requires a framework that enables the translation of sensory processing characteristics into concrete architectural decisions. In this regard, sensory variables cannot be addressed solely as abstract concepts, but rather as components of the built environment that can be observed, evaluated, and transformed into design parameters [18,22]. This approach is essential for articulating empirical evidence with the design process and avoiding the reduction of Sensory Architecture to intuitive or merely formal applications.
From an architectural perspective, Therapeutic Environments, Sensory Stimuli, and Spatial Configuration constitute interrelated dimensions that allow for the operationalization of Sensory Architecture within the built environment. Therapeutic Environments are associated with the programmatic and functional definition of spaces, as well as with their capacity to accommodate therapeutic activities under conditions of comfort, control, and predictability. Sensory Stimuli, in turn, refer to the deliberate management of environmental factors such as light, sound, texture, temperature, and color, which shape users’ perceptual experiences within architectural space.
Spatial Configuration, as an integrative dimension, articulates environments and stimuli through the hierarchical and sequential organization of space, influencing legibility, orientation, and cognitive accessibility of the environment [35]. Through the arrangement of circulation paths, the relationship between spaces with varying sensory intensity, and the incorporation of transition areas, Spatial Configuration enables modulation of emotional experiences and reduces uncertainty associated with environmental use by individuals with ASD.
Taken together, these dimensions establish a direct correspondence between sensory variables and architectural design parameters, such as spatial scale, functional zoning, environmental stimulus control, and spatial sequencing. In this way, Sensory Architecture is conceived as a design system based on observable and replicable criteria, capable of guiding the development of Therapeutic Environments aligned with the sensory and emotional needs of children and adolescents with ASD.
This translation of sensory variables into architectural parameters constitutes the conceptual foundation that supports the methodological approach adopted in the present study and guides the subsequent empirical analysis. Moreover, it allows the results derived from perceptual data analysis to be consistently integrated into the design process, reinforcing the role of architecture as a discipline capable of generating informed and contextually grounded spatial responses.

3. Methodological Approach

The methodological approach adopted in this study was structured at two complementary levels. First, an empirical research design was developed to analyze the relationship between sensory architecture and the emotional well-being of children and adolescents with TEA, based on perceptual data collected through family proxy informants. Second, an evidence-based architectural design methodology was articulated with the aim of translating the empirical findings into design criteria applicable to the development of an architectural proposal. This integrated methodological approach allowed for a direct linkage between quantitative analysis and the architectural design process, ensuring that the therapeutic center proposal was grounded in systematically obtained evidence rather than intuitive or purely illustrative decisions.

3.1. Empirical Research Design

This research adopted a quantitative approach, with a non-experimental, cross-sectional design, aimed at examining the relationship between sensory architecture and the emotional well-being of children and adolescents with TEA within a specific urban context. Given the objective of the study, the scope of the research was associative, focusing on the identification of relationships between variables without establishing causal inferences.
The unit of analysis consisted of children and adolescents with TEA, whose emotional well-being was examined in relation to the sensory and spatial characteristics of the therapeutic environments they attended. Because a significant proportion of this population presents limitations in direct verbal communication, data collection was conducted through proxy informants, specifically family members. These informants were considered key sources due to their sustained, direct, and daily contact with the users in both therapeutic settings and domestic environments, which allowed access to consistent perceptions of users’ emotional experiences. In methodological terms, the use of proxy respondents is widely recognized as an appropriate strategy in studies where direct self-report may be affected by cognitive, communicative, or functional limitations. Previous research indicates that proxy informants such as family members or caregivers can provide reliable contextual assessments of individuals’ interactions with their environments and their quality-of-life conditions [39,40]. Furthermore, empirical evidence suggests that proxy reports tend to show substantial agreement with self-reports in observable domains related to everyday interaction with the environment, particularly in aspects such as mobility, autonomy, and daily functioning [41,42].
Within this framework, the target population comprised children and adolescents with TEA attending therapeutic centers located in the district of San Juan de Lurigancho. From this population, a sample of 100 family informants was selected using non-probabilistic convenience sampling, based on accessibility criteria, relevance to the study context, and the availability of informants with direct experience observing users’ behavior and emotional responses in therapeutic environments.
To support the adequacy of the sample size, statistical criteria commonly applied in correlational studies were considered, assuming a significance level of α = 0.05, a statistical power of 0.80, and a medium expected effect size. Under these parameters, a minimum sample size of 85 observations was estimated. Consequently, the final sample of 100 informants exceeded this threshold, ensuring sufficient statistical power for the descriptive and inferential analyses conducted in the study.
Data collection was carried out using a structured questionnaire consisting of 25 items formulated on a five-point Likert-type scale, where 1 corresponded to “strongly disagree” and 5 to “strongly agree.” All items were worded positively to avoid inverse recoding processes and to ensure homogeneous interpretation of responses. The instrument was organized around two main variables: sensory architecture, as the independent variable, and emotional well-being, as the dependent variable. Both variables were assessed using the same structured questionnaire administered to the proxy informants. The use of a single instrument to operationalize multiple analytical variables has been reported in previous correlational research [43]. In that study, the explanatory and outcome variables were measured through differentiated domains within the same Likert-type questionnaire administered to the same group of respondents. This type of instrument design allows multiple constructs to be examined within a shared measurement framework.
The sensory architecture variable was operationalized through three dimensions: (i) therapeutic environments (items 1–4), (ii) sensory stimuli (items 5–8), and (iii) spatial configuration (items 9–14). The variable was measured through perception-based indicators reported by proxy informants, capturing evaluations of sensory and spatial conditions within the therapeutic environments attended by children and adolescents with ASD. In this sense, the measurement focuses on perceived environmental conditions of the built environment as experienced by users and their caregivers. These dimensions were intended to assess the functional quality of the environment, the control of environmental stimuli, and the spatial organization of the therapeutic center. Emotional well-being was operationalized through the dimensions of (i) stress reduction (items 15–18), (ii) social relationships (items 19–22), and (iii) environmental comfort (items 23–25), capturing perceptions related to emotional state, social interaction, and perceived well-being within the therapeutic environment. The complete structure of the questionnaire and the allocation of items by dimension are presented in Supplementary Material S1.
Regarding instrument quality, content validity was established through expert judgment by five specialists, who evaluated the items based on clarity, relevance, and coherence with the constructs under study. Instrument reliability was assessed using Cronbach’s alpha coefficient, yielding a value of α = 0.936, which indicates a high level of internal consistency. In addition to internal consistency analysis, construct validity was examined through an exploratory factor analysis (EFA) performed using the correlation matrix of the 25 items. The adequacy of the data for factor analysis was verified through the Kaiser–Meyer–Olkin (KMO) measure of sampling adequacy (KMO = 0.881) and Bartlett’s test of sphericity, which was statistically significant (p < 0.001). The first eigenvalue (10.49) was substantially larger than the remaining factors, indicating a strong common latent structure underlying the instrument. These results provide empirical support for the internal structural coherence of the measurement scale and confirm the suitability of the instrument for analyzing the relationships between sensory architecture and emotional well-being in the study context. This methodological decision is consistent with the correlational and non-experimental design of the study, in which the questionnaire was treated as an integrated measure of perceptions, in line with methodological approaches supporting the use of aggregated Likert scales for analyzing associations between constructs [43,44].
Based on the structure of the instrument and the ordinal nature of the collected responses, statistical analysis followed a sequential procedure. Data were processed using SPSS software (version 31.0.0.0 (117)), based on a consolidated database constructed from questionnaire responses (see Supplementary Material S2). In the first stage, and considering that the sample size exceeded 50 participants, Kolmogorov–Smirnov normality tests were applied to assess the distribution of the analyzed variables. As the results indicated that the data did not follow a normal distribution, non-parametric techniques were employed. Accordingly, the relationships between sensory architecture, its dimensions, and emotional well-being were examined using Spearman’s Rho coefficient, which is appropriate for analyzing associations between variables measured on an ordinal scale.
Through this analytical procedure, the empirical research design provided the quantitative basis necessary to identify relational patterns between the sensory conditions of the built environment and the emotional well-being of children and adolescents with TEA. The results obtained from the correlational analysis were not treated as ends in themselves but as inputs for architectural decision-making. In this sense, the identified relational patterns constituted the foundation for the development of the evidence-based architectural design methodology adopted in the study, in which empirical findings were subsequently interpreted and translated into architectural design criteria.
Finally, the study was conducted in accordance with ethical principles applicable to research involving human participants. Although the reference population consisted of children and adolescents with TEA, data collection was not conducted directly with this population but through proxy informants, specifically adult family members responsible for their care. Consequently, the study participants did not belong to a group considered vulnerable, and the research did not involve any intervention or the collection of sensitive or identifiable data from the users. In line with institutional ethical standards and given the non-experimental, observational, and perceptual nature of the study, approval from an institutional ethics committee was not required. Participation was voluntary, anonymous, and confidential, and the information collected was used exclusively for academic and research purposes.

3.2. Evidence-Based Architectural Design Methodology

The evidence-based architectural design methodology adopted in this research aimed to systematically articulate the results of the empirical analysis with the architectural design process, allowing the therapeutic center proposal to be derived from quantitative information obtained through the study of perceptions. This approach is grounded in the premise that architectural design decisions can and should be supported by empirical evidence, particularly in therapeutic contexts where the built environment directly influences users’ emotional experiences.
From this perspective, the design process was conceived as an integral phase of the overall methodological framework of the study. Accordingly, the architectural design methodology was structured as an interpretative and project-based procedure aimed at translating the relationships identified between sensory architecture and emotional well-being into spatial, functional, and environmental design criteria applicable to the therapeutic center. Within this framework, the architectural proposal is conceived as an evidence-informed design outcome derived from the methodological translation of empirical findings into design criteria. In this sense, correlational evidence was used to inform spatial, functional, and environmental decisions, allowing the proposal to be grounded in systematically identified associative patterns relevant to the therapeutic context. The methodological procedure was developed in three consecutive stages. In the first stage, the dimensions of sensory architecture analyzed in the empirical study (therapeutic environments, sensory stimuli, and spatial configuration) were identified and systematized. These dimensions were treated as operational design categories, insofar as they represent components of the built environment that can be addressed through concrete architectural decisions.
In the second stage, the sensory architecture dimensions were interpreted from a design-oriented perspective by establishing their correspondence with architectural design criteria. This process involved the conceptual translation of empirical variables into spatial guidelines, such as the definition of the architectural program, functional zoning, organization of circulation, hierarchical arrangement of spaces according to levels of sensory stimulation, and the incorporation of transition areas. At this stage, empirical data were not used to impose specific formal solutions but to inform architectural decision-making in a manner consistent with the sensory and emotional needs of the users.
The third stage consisted of integrating the design criteria derived from the empirical analysis into the architectural design process of the therapeutic center. This integration made it possible to consolidate an architectural proposal that articulates the functional requirements of the therapeutic program with strategies for sensory control and spatial organization, ensuring coherence between empirical evidence and the configuration of the built environment. In this sense, the architectural proposal is conceived as the outcome of a methodological process that prioritizes consistency between analysis, interpretation, and design.
It should be noted that this evidence-based architectural design methodology does not seek to establish a direct causal relationship between empirical variables and specific architectural solutions. Rather, it structures a project-based decision-making framework grounded in relational patterns identified through quantitative analysis. In doing so, architectural design is positioned as an informed and contextualized response, capable of integrating empirical evidence without reducing the complexity of the design process or limiting architectural creativity.
Overall, the adopted methodology positions the architectural project as a scientifically grounded outcome, in which the built environment is designed based on observable, systematizable, and replicable criteria. This methodological approach constitutes the link between empirical analysis and the architectural proposal and establishes the foundation for the subsequent presentation of results and their articulation with the design of the therapeutic center.

4. Empirical Results and Hierarchization of Sensory Design Criteria

This chapter presents the empirical results obtained from the statistical analysis of data collected through surveys administered to family members of children and adolescents with ASD (N = 100), with the objective of identifying significant relationships between Sensory Architecture and Emotional Well-Being. Unlike a purely descriptive statistical approach, the results are presented here as analytical inputs oriented toward architectural decision-making, with the aim of formulating evidence-based architectural design criteria.
Prior to inferential analysis, a general characterization of the sample was conducted, along with an assessment of the distribution of the variables using normality tests. The results indicated that the data did not follow a normal distribution (p < 0.05); therefore, Spearman’s Rho correlation coefficient was employed, as it is appropriate for analyzing associations between ordinal and non-normally distributed variables. This procedure ensured coherence between the characteristics of the data and the statistical technique applied, as well as the validity of the results obtained.
Within this framework, the results are organized into two analytical levels. First, the global relationship between Sensory Architecture and Emotional Well-Being is presented, based on the general correlation analysis between both variables. Second, an empirical hierarchization of the dimensions of Sensory Architecture (Spatial Configuration, Therapeutic Environments, and Sensory Stimuli) is developed, identifying their relative weight and architectural role within the design process of the proposed therapeutic center. This hierarchization should not be interpreted as a statistical comparison of correlation coefficients or as evidence of causal superiority among dimensions. Rather, it constitutes an analytical prioritization derived from the relative magnitude of associative patterns identified through Spearman’s Rho, intended to inform architectural prioritization within the evidence-based design framework adopted in this study.

4.1. Relationship Between Sensory Architecture and Emotional Well-Being

The non-parametric correlation analysis using Spearman’s Rho coefficient revealed a positive, moderate-to-high association between Sensory Architecture and the Emotional Well-Being of children and adolescents with ASD ( ρ = 0.655; p < 0.001; N = 100). This result indicates that higher perceived levels of sensory adequacy in the therapeutic environment are associated with higher perceived levels of Emotional Well-Being as reported by family informants.
Given the non-experimental and cross-sectional design of the study, this finding is not interpreted in causal terms, but rather as a statistically significant relational pattern between the variables analyzed. Nevertheless, the magnitude of the coefficient and the level of statistical significance support the conclusion that Sensory Architecture constitutes a relevant factor associated with Emotional Well-Being within the therapeutic context evaluated.
From an architectural perspective, this empirical relationship supports the consideration of the built environment as a component that directly influences users’ emotional experiences, beyond its operational or programmatic function. In this sense, the results suggest that sensory conditions of the therapeutic space, such as spatial organization, sensory stimulus management, and environmental adequacy; are consistently associated with more stable and positive emotional states in children and adolescents with ASD.
This overall result justifies advancing toward a disaggregated analysis of the dimensions that compose Sensory Architecture, with the purpose of identifying which dimensions present stronger associations with Emotional Well-Being and, consequently, which should be prioritized in the formulation of evidence-based architectural design criteria.

4.2. Hierarchization of Therapeutic Environments, Sensory Stimuli, and Spatial Configuration

The dimensional correlation analysis made it possible to establish an empirical hierarchization of the components of Sensory Architecture according to their association with the Emotional Well-Being of children and adolescents with ASD. The results showed that all three analyzed dimensions (Therapeutic Environments, Sensory Stimuli, and Spatial Configuration) exhibited positive and statistically significant associations with Emotional Well-Being, albeit with differentiated magnitudes based on Spearman’s Rho coefficient.
Spatial Configuration emerged as the dimension with the strongest association with Emotional Well-Being ( ρ = 0.652; p < 0.001). This finding indicates that functional organization, spatial sequencing, and environmental legibility constitute central factors in users’ emotional experiences. The result suggests that the way spaces are articulated, connected, and hierarchically organized plays a decisive role in perceptions of safety, predictability, and emotional stability within the therapeutic center.
From an empirical standpoint, Sensory Stimuli showed the second strongest association with Emotional Well-Being ( ρ = 0.637; p < 0.001). This dimension, related to lighting, sound, texture, temperature, and color, demonstrated that the control of environmental stimuli fulfills a relevant role in modulating sensory and emotional experiences, although it does not constitute, by itself, the primary conditioning factor of architectural design.
In turn, the Therapeutic Environments dimension exhibited a positive and statistically significant association, albeit of lower magnitude compared to the previous dimensions ( ρ = 0.557; p < 0.001). This result indicates that the functional and environmental quality of spaces dedicated to therapeutic intervention is linked to perceived Emotional Well-Being and continues to act as a structuring component of the architectural program (Table 1).
Based on these results, an empirical hierarchization of Sensory Architecture dimensions is established based on the relative magnitude of their associative relationship with Emotional Well-Being. Within this framework, Spatial Configuration is positioned as the component with the greatest associative weight and, therefore, as the primary conditioning factor of architectural design for the therapeutic environment. At a second level of empirical association are Sensory Stimuli, which perform a strategic support role by significantly contributing to the modulation of sensory and emotional experiences without constituting the structuring factor of the project.
In contrast, Therapeutic Environments, although presenting a lower magnitude of statistical association compared to the previous dimensions, maintain a structuring architectural role within the design process, insofar as they define the functional program, spatial conditions of therapeutic intervention, and the direct relationship between user, space, and therapy. This differentiation demonstrates that empirical hierarchization does not translate directly into a project-based hierarchy, but rather that both must be understood in a complementary manner within an integrated design system.
In this sense, the empirical results provide an objective basis for prioritizing architectural design criteria, wherein Spatial Configuration guides the overall structural organization of the project, Therapeutic Environments organize the functional logic of the center, and Sensory Stimuli finely adjust perceptual experience, enabling informed and coherent architectural decision-making aligned with the emotional needs of children and adolescents with ASD.

5. Discussion: Architectural Implications for Designing Therapeutic Spaces for ASD

This chapter discusses the empirical results obtained in light of the international literature on Sensory Architecture, therapeutic design, and ASD, with the purpose of interpreting their implications from an architectural perspective. Unlike the previous chapter, which focused on the presentation and hierarchization of statistical findings, this section is oriented toward analyzing the meaning of these results in relation to theoretical approaches, prior design experiences, and contemporary debates within the architectural discipline.
The discussion is structured around three main axes. First, the study findings are contrasted with international literature, identifying convergences and divergences regarding the role of Sensory Architecture in the Emotional Well-Being of individuals with ASD. Second, the specific characteristics of users with ASD are analyzed in comparison with other therapeutic design contexts, highlighting the spatial implications of their particular sensory and emotional needs. Finally, the contribution of an evidence-based sensory approach to contemporary architectural design is examined, emphasizing its potential to integrate empirical criteria into complex design processes.
Overall, this chapter seeks to position the study results not only as statistical findings, but as relevant inputs for disciplinary reflection and architectural practice oriented toward the design of inclusive therapeutic spaces sensitive to sensory diversity.

5.1. Convergences, Divergences, and Complementarity with International Literature on Sensory Architecture and ASD

The results obtained in this study show significant convergence with international literature that has documented the close relationship between the built environment and the Emotional Well-Being of individuals with ASD. Numerous studies have reported that particularities in sensory processing within this population cause seemingly neutral environmental stimuli to acquire emotional relevance, influencing self-regulation, adaptive behavior, and social interaction [2,4,5]. In this regard, the empirical association identified between Sensory Architecture and Emotional Well-Being supports the widely discussed notion that architectural space constitutes an active component of the therapeutic experience rather than a purely functional container [14,17].
In particular, the empirical hierarchization that positions Spatial Configuration as the dimension with the strongest association with Emotional Well-Being ( ρ = 0.652; p < 0.001) is consistent with studies emphasizing the importance of functional organization, spatial legibility, and environmental predictability for individuals with ASD [17,35,36]. Previous research has shown that clarity in spatial sequencing, reduction of environmental complexity, and the presence of comprehensible circulation patterns contribute to reducing anxiety and fostering more stable emotional states [15,16]. From this perspective, the findings of the present study reinforce the idea that Spatial Configuration operates as a structuring element of sensory and emotional experience, aligning with approaches that conceive architectural design as a tool for environmental regulation.
Similarly, the significant association observed between Therapeutic Environments and Emotional Well-Being ( ρ = 0.557; p < 0.001) converges with literature that conceptualizes therapeutic environments as a specific architectural typology whose functional and environmental characteristics directly influence the effectiveness of interventions [15,18,22]. Studies conducted in international and regional contexts have indicated that the quality of spaces where therapeutic activities take place affects treatment adherence, perceptions of safety, and emotional comfort for both users and their families [19,23]. Within this framework, the study results complement existing evidence by showing that Therapeutic Environments not only fulfill a programmatic function, but also act as mediators between user, space, and therapy.
Regarding Sensory Stimuli, although this dimension showed a positive and statistically significant association with Emotional Well-Being ( ρ = 0.637; p < 0.001), its magnitude was slightly lower than that of Spatial Configuration. This result aligns with literature recognizing stimulus control as a relevant factor in reducing sensory overload, while also warning that its effectiveness depends on its articulation with spatial organization and functional structure [2,33,34]. In this sense, the findings do not contradict sensory modulation approaches but rather complement them by evidencing that the management of isolated stimuli is insufficient if not integrated into a coherent and legible spatial configuration.
From a comparative perspective, the results also reveal methodological divergences with studies that address Sensory Architecture from predominantly descriptive or qualitative approaches. While much of the literature emphasizes general principles of sensory design [22,23], the present study contributes an empirical hierarchization based on quantitative analysis of perceptions, allowing for the establishment of design priorities grounded in local evidence. This difference does not imply a theoretical contradiction, but rather a methodological expansion that strengthens the dialogue between empirical research and architectural practice.
Overall, the study findings integrate complementarily into the existing body of knowledge on Sensory Architecture and ASD by confirming previously identified trends while also providing a hierarchized interpretation of architectural design dimensions. This contribution is particularly relevant in Latin American urban contexts, where empirical evidence on sensory-adapted therapeutic environments remains limited [26,31], reinforcing the need to develop informed, contextualized, and replicable architectural proposals.

5.2. Specificity of the User with ASD Compared to Other Therapeutic Design Approaches

The study results acquire particular relevance when analyzed in light of the differences between users with ASD and other populations that utilize therapeutic spaces. Unlike users of conventional clinical environments, whose spatial experience is mainly influenced by functional factors and general comfort, individuals with ASD present sensory processing particularities that directly condition their interaction with the built environment [2,3]. These differences imply that design criteria considered adequate for other therapeutic contexts are not necessarily appropriate for this population.
The literature has documented that up to 95% of individuals with ASD experience alterations in how sensory stimuli are perceived and processed, which contrasts significantly with prevalence rates reported in the general population [2,3]. This condition causes variables such as lighting, acoustics, material textures, or visual complexity to acquire an emotional weight that exceeds the usual parameters of traditional therapeutic design [3,4]. Consequently, spaces designed under standardized criteria may intensify sensory overload, generate anxiety, and hinder emotional self-regulation processes in children and adolescents with ASD [15,16].
From an architectural perspective, this sensory specificity translates into the need to prioritize predictability, spatial legibility, and environmental coherence over formal or aesthetic solutions prevalent in other types of therapeutic facilities [17,35]. While in conventional clinical environments spatial flexibility and environmental stimulation may be considered positive attributes, in the case of ASD these characteristics must be carefully modulated to avoid uncertainty and overstimulation [22,23]. The present study results, by identifying Spatial Configuration as the dimension with the strongest association with Emotional Well-Being ( ρ = 0.652; p < 0.001), reinforce this distinction and demonstrate that spatial organization plays a more critical role for this user group.
Likewise, the importance attributed to Therapeutic Environments within the empirical hierarchization ( ρ = 0.557; p < 0.001) is consistent with studies emphasizing that, in the context of ASD, the space where intervention occurs cannot be separated from the therapeutic experience itself [18,22]. Unlike other contexts where therapy can be transferred relatively easily between different environments, for children and adolescents with ASD the sensory adequacy of space conditions the effectiveness of intervention and the user’s willingness to actively engage in proposed activities [19,23].
The role of Sensory Stimuli as a support dimension ( ρ = 0.637; p < 0.001) highlights another relevant difference compared to other therapeutic space users. While in conventional contexts sensory control is often treated as a complementary design aspect, in ASD it becomes an essential requirement for ensuring emotional stability and user permanence within the space [2,34]. Nevertheless, the study results suggest that stimulus control is most effective when integrated within a clear and coherent spatial structure, rather than applied in isolation.
Taken together, these findings demonstrate that designing therapeutic spaces for individuals with ASD cannot be approached as a secondary adaptation of existing typologies, but instead requires a specific architectural approach grounded in an understanding of this population’s sensory and emotional particularities. This differentiation is fundamental to avoid generic solutions that, while functional in other contexts, may prove counterproductive in therapeutic environments for children and adolescents with ASD.

5.3. Contribution of an Evidence-Based Sensory Approach to Contemporary Architectural Design

The literature on Sensory Architecture and ASD has consistently highlighted the role of the built environment in emotional regulation and users’ everyday experiences, emphasizing the need to design spaces responsive to sensory processing particularities [14,17,22]. However, many of these contributions have been developed from conceptual, descriptive, or qualitative approaches, focusing on the formulation of general sensory design principles rather than on empirical hierarchization of their components.
Within this context, the main contribution of the present study to contemporary architectural design lies in the incorporation of an evidence-based sensory approach that articulates existing theoretical frameworks with empirical data derived from perception analysis. While previous research has indicated that sensory adaptation of the environment contributes to reducing sensory overload and improving Emotional Well-Being [15,16], the findings of this study advance this knowledge by establishing a hierarchization of Sensory Architecture dimensions based on their association with Emotional Well-Being.
The prominence of Spatial Configuration as the dimension with the greatest empirical weight aligns with studies underscoring the importance of functional organization, spatial legibility, and environmental predictability for individuals with ASD [17,35,36]. Unlike approaches that address these aspects primarily through design recommendations, the present study provides quantitative evidence supporting their prioritization within the design process, reinforcing their consideration as structuring criteria of architectural design.
In a complementary manner, the significant association observed between Therapeutic Environments and Emotional Well-Being engages with literature that defines these spaces as a specific architectural typology whose functional and environmental quality directly influences therapeutic effectiveness [18,22,23]. The evidence-based approach allows these conceptualizations to be translated into informed design parameters, moving beyond perspectives that treat Therapeutic Environments solely through programmatic or regulatory logic.
Regarding Sensory Stimuli, their role as a support dimension aligns with studies recognizing the importance of controlling factors such as lighting, sound, texture, temperature, and color in reducing sensory overload [2,33,34]. However, the study results suggest that their impact is enhanced when integrated within a coherent spatial structure, complementing existing literature by emphasizing the need for a systemic articulation between stimuli and spatial organization.
From a disciplinary perspective, this evidence-based sensory approach contributes to contemporary architectural design by proposing a methodological model that links empirical analysis and the design process. In urban contexts with limited specialized infrastructure, as described in regional literature [26,31], this contribution is particularly relevant, offering an objective foundation for the development of contextualized, replicable architectural proposals oriented toward Emotional Well-Being.
Overall, the research expands the field of Sensory Architecture by integrating empirical evidence into architectural decision-making, reinforcing the position of architecture as a discipline capable of addressing contemporary challenges related to inclusion, health, and sustainability through informed and ethically responsible approaches [21,29].

6. Translation of Empirical Evidence into Architectural Design

While Section 5.3 interprets the empirical findings within the theoretical framework of sensory architecture and emotional well-being, this chapter establishes the translation of the empirical evidence obtained into architectural design criteria and, subsequently, into a spatial proposal for a sensory therapeutic center. Based on the results presented in Section 4 and discussed in Section 5, architectural design is addressed as an evidence-informed decision-making process in which statistical findings guide the definition of spatial, programmatic, and environmental criteria. Rather than presenting the architectural project as an autonomous outcome, the proposal is conceived as the methodological translation of empirically identified relational patterns between Sensory Architecture and Emotional Well-Being in children and adolescents with ASD.
The chapter is structured at two complementary levels. First, architectural design criteria derived from the empirical hierarchical ordering of the dimensions of Sensory Architecture are formulated, guiding spatial organization, architectural programming, and sensory stimulus control. Second, these criteria are articulated into an architectural proposal for a sensory therapeutic center located in the district of San Juan de Lurigancho. The plans, diagrams, and graphic representations associated with this proposal are presented as Supplementary Material, supporting the argument that the central value of the project lies in the methodological linkage between empirical evidence and architectural design.

6.1. Architectural Design Criteria Derived from Empirical Findings

6.1.1. Spatial Configuration as a Structuring Design Criterion

The empirical hierarchical ordering of the dimensions of Sensory Architecture identified Spatial Configuration as the component with the strongest association with the Emotional Well-Being of children and adolescents with ASD. From an architectural perspective, Spatial Configuration is understood as the functional, hierarchical, and sequential articulation of spaces aimed at enhancing legibility, predictability, and intuitive orientation. Empirical evidence indicates that these attributes are associated with higher levels of emotional stability, which justifies their prioritization as a structuring criterion within the architectural design process.
In coherence with these findings, Spatial Configuration is conceived as the organizing framework of the complex, structuring the relationships among Therapeutic Environments, circulation paths, and transition areas. Clear spatial sequencing and functional hierarchy reduce uncertainty in the use of the environment, which is particularly relevant for users with ASD, for whom spatial predictability constitutes a key factor in emotional self-regulation.
This structuring criterion translates into the definition of a spatial system that prioritizes intuitive readability of the building, avoiding labyrinthine layouts, abrupt directional changes, or overlapping flows. Spaces are organized according to progressive gradients of stimulation and use, facilitating controlled transitions between therapeutic activities. Within this system, direct intervention areas, waiting zones, circulation paths, and support spaces are hierarchically arranged to reinforce environmental comprehension and improve the functioning of therapeutic dynamics.
In this way, Spatial Configuration becomes the primary architectural decision-making criterion from which the remaining design dimensions are organized. Empirical evidence therefore supports a design approach in which spatial organization provides the framework for coherently integrating Therapeutic Environments and Sensory Stimuli, ensuring that architectural design responds consistently to users’ sensory and emotional needs.

6.1.2. Therapeutic Environments as a Programmatic Design Criterion

The empirical hierarchical ordering of the dimensions of Sensory Architecture showed that Therapeutic Environments maintain a significant association with the Emotional Well-Being of children and adolescents with ASD. This result justifies their consideration as a programmatic design criterion, since spaces intended for therapeutic intervention configure the functional and experiential core of the center. From an architectural perspective, these environments are conceived not merely as settings for clinical activities but as spatial units capable of influencing emotional regulation and users’ willingness to engage in therapy.
In coherence with the study results, the programmatic criterion prioritizes differentiation of Therapeutic Environments according to activity type, required stimulation level, and interaction intensity. This differentiation structures the architectural program so that each space responds to a specific therapeutic purpose, avoiding functional overlap and contradictory stimuli that could affect users’ Emotional Well-Being.
The organization of Therapeutic Environments considers the relationship between direct intervention spaces, support areas, and rest zones, establishing a programmatic sequence that facilitates controlled transitions between activities. This logic contributes to reducing cognitive load associated with spatial use and reinforces environmental predictability. From an architectural perspective, these environments are therefore defined through appropriate spatial scales, controlled environmental conditions, and clear functional relationships that support both therapeutic dynamics and users’ sensory needs.
In this way, Therapeutic Environments are no longer understood as interchangeable rooms within a generic program but as key components of architectural design whose configuration and spatial relationships directly influence the effectiveness of the therapeutic center. Empirical evidence therefore supports an informed programmatic approach in which each environment is designed according to its contribution to users’ Emotional Well-Being.

6.1.3. Sensory Stimuli as an Environmental Support Criterion

The empirical hierarchical ordering of the dimensions of Sensory Architecture showed that Sensory Stimuli maintain a positive and statistically significant association with the Emotional Well-Being of children and adolescents with ASD, although with slightly lower magnitude than Spatial Configuration. This finding justifies their consideration as an environmental support criterion within architectural design. From an architectural perspective, Sensory Stimuli refer to environmental factors that influence spatial perception, including lighting, sound, texture, temperature, and color. Empirical evidence indicates that the conscious regulation of these stimuli contributes to emotional regulation and reduction of sensory overload, particularly when integrated with spatial organization and architectural programming.
In coherence with the study findings, the environmental support criterion focuses on modulating Sensory Stimuli according to spatial hierarchy and the therapeutic function of each environment. Rather than applying uniform sensory solutions throughout the building, architectural design introduces controlled variations in stimuli that accompany spatial sequence and activity type, avoiding abrupt contrasts that could generate emotional dysregulation.
Within this approach, Sensory Stimuli function as fine-tuning elements of the therapeutic environment that reinforce spatial legibility and environmental predictability. Lighting conditions, acoustic treatment, materiality, and chromatic palette are therefore conceived as architectural tools that support users’ emotional experience. At the same time, their role as support elements allows these stimuli to be adjusted or gradually modified according to different sensory profiles within the autism spectrum, contributing to the operational flexibility of the center.
In this way, Sensory Stimuli are incorporated into architectural design as a complementary system that enhances the effects of Spatial Configuration and Therapeutic Environments. Empirical evidence therefore supports an approach in which sensory control functions not as an end in itself, but as an environmental support that helps consolidate a stable, predictable, and emotionally safe therapeutic environment for children and adolescents with ASD.

6.2. Translation of Design Criteria into an Architectural Proposal

The architectural proposal for the sensory therapeutic center is conceived as the spatial materialization of the design criteria derived from the empirical evidence presented in Section 4 and systematized in Section 6.1. Rather than constituting an autonomous formal exercise, the project represents the translation of the structuring, programmatic, and environmental principles defined through the hierarchical ordering of the dimensions of Sensory Architecture. Within this framework, Spatial Configuration guides the overall organization and spatial sequence of the complex, Therapeutic Environments define the programmatic structure of the building, and Sensory Stimuli operate as an environmental support system that modulates users’ perceptual experience.
Accordingly, this subsection presents the architectural proposal from an analytical perspective, prioritizing the relationship between design criteria and spatial solutions rather than a purely formal description of the project. Plans, diagrams, and schemes are incorporated as analytical tools that illustrate how evidence-derived criteria are translated into decisions related to site placement, functional organization, and spatial configuration.
The proposal is developed for the urban context of San Juan de Lurigancho, a district characterized by high population density and limited specialized therapeutic infrastructure. While responding to these specific contextual conditions, the project is conceived as a methodological application case whose design principles may be adapted to other urban environments with similar characteristics. In this way, the architectural proposal emerges as an integrated outcome of the research process, in which empirical evidence, disciplinary reflection, and spatial design converge to support the Emotional Well-Being of children and adolescents with ASD.

6.2.1. Site Placement and Relationship with the Urban Context

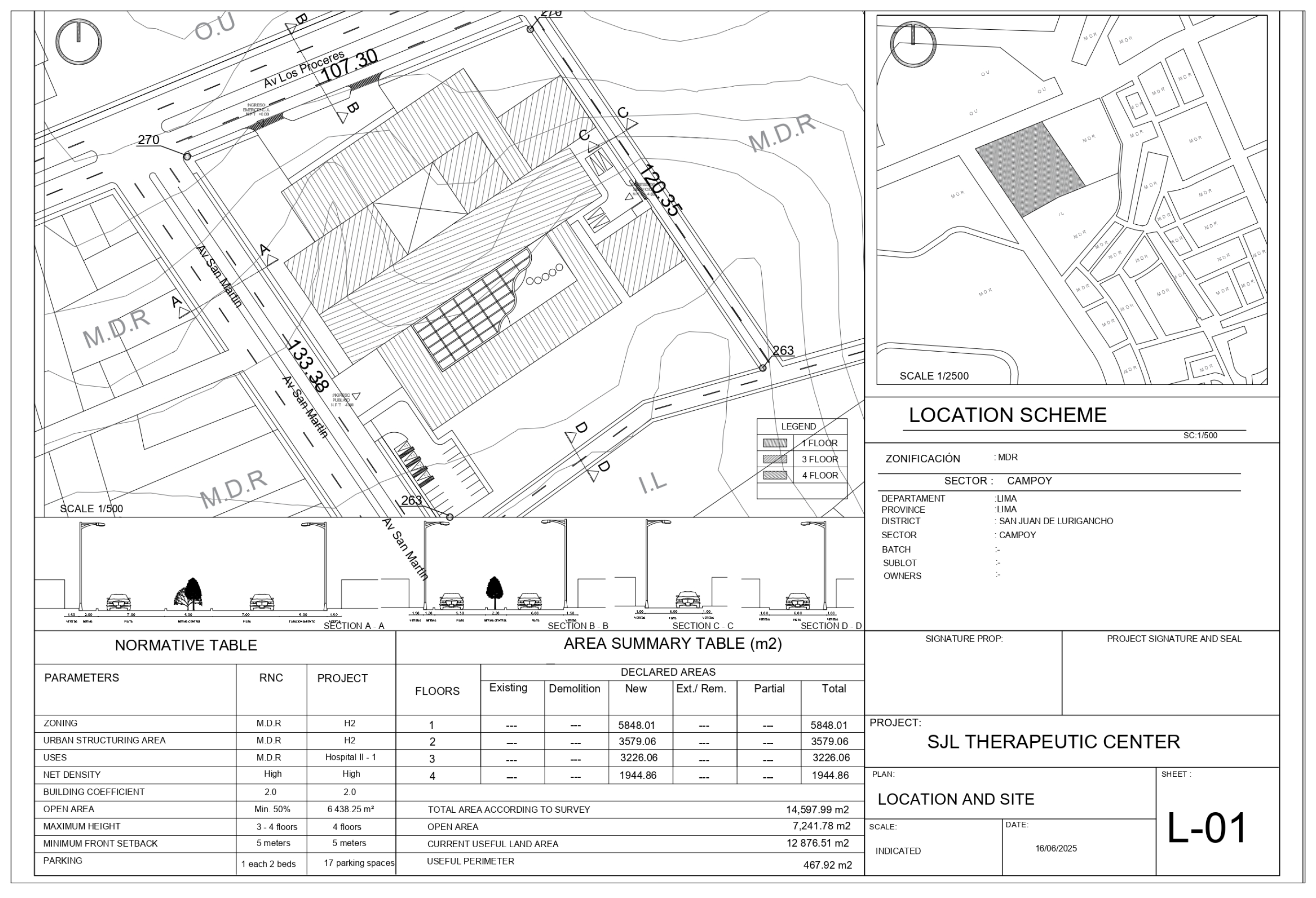
The site placement of the sensory therapeutic center responds directly to the structuring criterion of Spatial Configuration derived from empirical evidence, prioritizing a controlled, legible, and predictable relationship with the immediate urban context. Context analysis begins with the project’s location within the district of San Juan de Lurigancho, as shown in the location plan (Figure 1), situating the facility within an area characterized by high population density and limited availability of specialized therapeutic infrastructure.
The project’s relationship with the urban system is analyzed progressively, from territorial scale to immediate surroundings. In this sense, the urban facilities plan (Figure 2) shows the dispersed presence of health, education, and social assistance services in the area, as well as the absence of specialized therapeutic centers for children and adolescents with ASD. This condition reinforces the relevance of the project’s placement as a specialized facility intended to address a previously identified functional and spatial gap.
The satellite view of the area (Figure 3) allows recognition of the surrounding urban morphology, characterized by a consolidated fabric, predominance of low and medium-rise buildings, and a road structure that concentrates vehicular flows along main axes. In coherence with evidence-derived design criteria, the placement of the therapeutic center seeks to minimize direct exposure to intense urban stimuli, avoiding frontal relationships with high-traffic roads and favoring gradual transitions between public space and the therapeutic environment.
Analysis of the roads bordering the site (Figure 4) complements this assessment by revealing environmental conditions associated with noise, traffic, and constant urban activity. These characteristics reinforce the need for a site placement strategy that functions as a spatial and sensory filter, establishing distances, setbacks, and orientations that help reduce sensory overload prior to building entry. In this sense, the relationship with the environment is not conceived as indiscriminate openness toward the urban space, but as a controlled sequence that favors predictability and emotional regulation for users.
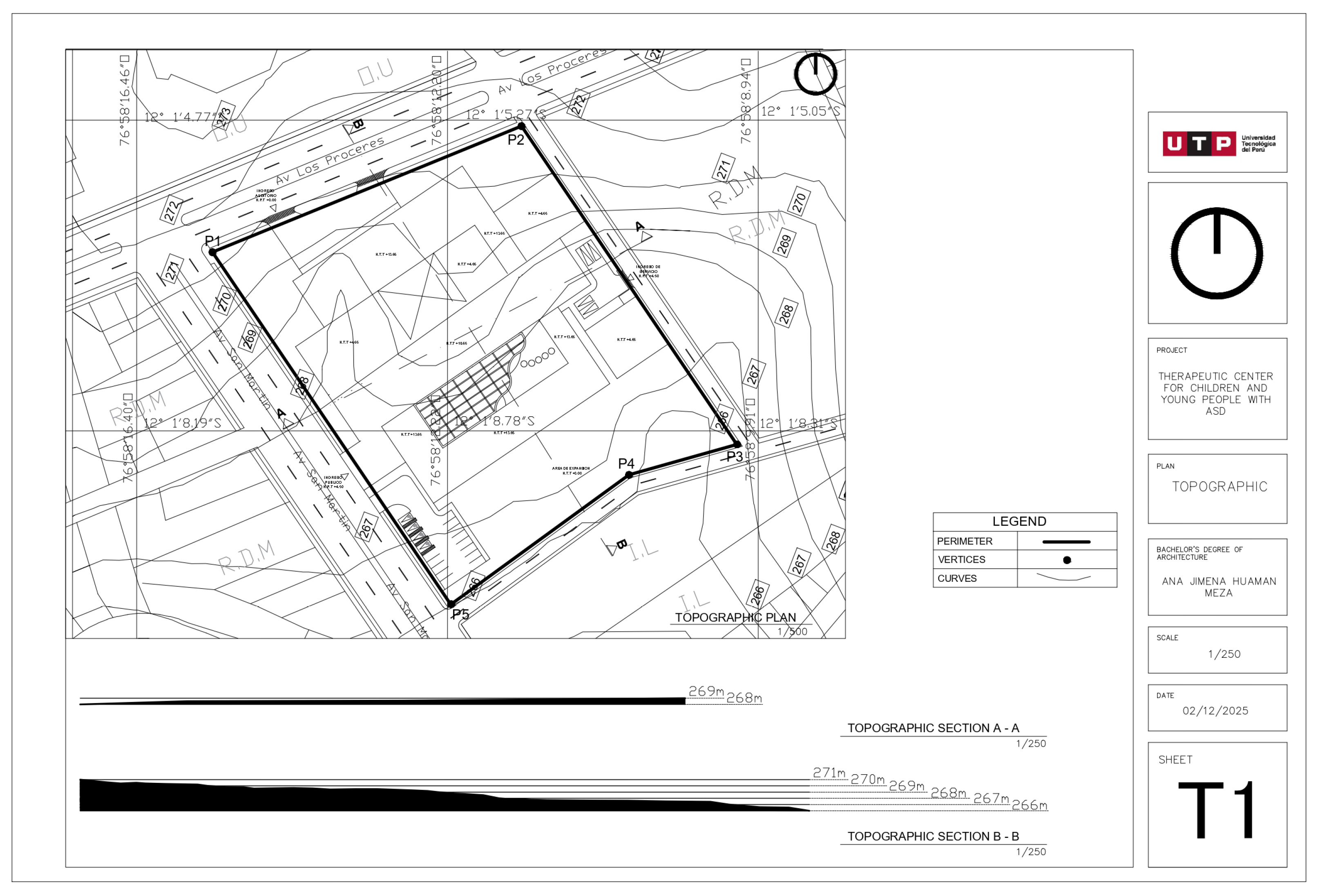
The site’s topographic map (Figure 5) identifies the physical conditions of the land, which directly influence the overall organization of the complex. Site placement takes advantage of these conditions to define a building layout that reinforces clear reading of access points, circulation paths, and areas of permanence, avoiding fragmented or spatially confusing solutions. This decision aligns with the criterion of Spatial Configuration as a structuring element, prioritizing placement strategies that facilitate orientation and reduce perceptual complexity from the first contact with the project.
Overall, the placement of the therapeutic center is conceived as an architectural strategy that articulates the urban context with users’ sensory and emotional needs. Decisions regarding location, orientation, and relationship with the immediate surroundings respond to empirical evidence highlighting the importance of spatial legibility and environmental predictability, laying the foundation for a coherent architectural organization developed in subsequent sections.

6.2.2. Architectural Program and Functional Organization

The programmatic organization of the sensory therapeutic center is developed based on the programmatic criterion defined in Section 6.1.2, in which Therapeutic Environments are conceived as structural components of architectural design rather than interchangeable rooms within a generic functional scheme. In this sense, the architectural program is ordered according to therapeutic needs, required stimulation levels, and the spatial sequence derived from the empirical hierarchical ordering of the dimensions of Sensory Architecture.
The project’s conceptual proposal (Figure 6) synthesizes this programmatic logic through clear differentiation of functional zones, establishing hierarchical relationships among therapeutic intervention spaces, support areas, and transition zones. This organization responds to the need to provide a legible and predictable environment in which users can anticipate the use of each space and transition between activities without experiencing abrupt changes in sensory intensity.
In coherence with this conceptual proposal, the multi-level floor plans (Figure 7) show a functional distribution that prioritizes program clarity and controlled separation of activities. Therapeutic Environments are grouped according to their specific function and stimulation level, avoiding overlap of incompatible uses and reducing the likelihood of sensory interference between adjacent spaces. This programmatic decision is grounded in empirical evidence emphasizing the importance of spatial organization and environmental predictability in the Emotional Well-Being of children and adolescents with ASD.
Relationships among different Therapeutic Environments are articulated through clear circulation paths and transition areas that regulate movement between spaces with different sensory demands. These intermediate zones play a fundamental role in functional organization by facilitating progressive transitions and reducing cognitive load associated with activity changes. From a programmatic standpoint, these areas are integrated as part of the therapeutic system rather than as residual spaces.
Additionally, functional organization considers the relationship between spaces intended for users and support areas for professionals and family members, establishing clear boundaries that contribute to improved internal management of the center. This programmatic differentiation reinforces overall legibility and allows each user group to interact with the space in a manner consistent with their role and specific needs.
Overall, the architectural program and its functional organization are configured as a direct translation of the empirical criteria obtained in the research, in which the disposition of Therapeutic Environments responds to evidence-informed logic oriented toward Emotional Well-Being. The proposal avoids generic programmatic solutions and instead presents a functional structure specifically designed to support therapeutic processes and the sensory particularities of users with ASD.

6.2.3. Volumetric and Spatial Strategies

The volumetric and spatial strategies of the sensory therapeutic center are developed as a direct consequence of the previously defined structuring and programmatic criteria, with the aim of consolidating a coherent, legible, and sensorially regulated spatial experience. Project volumetry does not respond to an autonomous formal pursuit, but to the need to materialize in three-dimensional space the functional hierarchy and therapeutic sequence derived from empirical evidence.
Architectural sections of the project (Figure 8) illustrate how spatial organization translates into clear volumetric relationships, in which height, proportion, and spatial continuity reinforce overall legibility. Volumetric disposition avoids abrupt contrasts and fragmented configurations, prioritizing a continuous spatial reading that facilitates orientation and reduces perceptual complexity for users.
From a sensory perspective, the architectural section is used as a tool to modulate environmental intensity along circulation paths. Controlled variations in height and scale allow differentiation between spaces with higher and lower sensory demand, accompanying therapeutic activities without generating spatial ruptures that could affect emotional stability. This strategy aligns with the criterion of Spatial Configuration as a structuring design element, reinforcing environmental predictability through coherent volumetry.
Additionally, sections reveal the integration of transition areas between different Therapeutic Environments, which play a fundamental role in spatial regulation. These transitions are resolved not only at a horizontal level, but also through vertical relationships that enable gradual spatial reading, favoring a more controlled and comprehensible experience. The section thus becomes an instrument for articulating architectural programming with users’ emotional experience.
The relationship between interior and exterior spaces is also addressed through the architectural section, establishing visual and spatial connections that contribute to orientation and perception of safety without directly exposing users to intense urban stimuli. These volumetric relationships are designed in a controlled manner, reinforcing spatial continuity and avoiding indiscriminate openings that could increase sensory overload. Overall, the volumetric and spatial strategies expressed in the architectural sections consolidate the translation of empirical criteria into a coherent three-dimensional architecture. The section ceases to be a secondary technical resource and becomes a key element for understanding how empirical evidence materializes into spatial decisions that directly affect the Emotional Well-Being of children and adolescents with ASD.

6.2.4. Sensory Control and Architectural Expression

Architectural expression of the therapeutic center constitutes the final manifestation of evidence-based design decisions, in which sensory control is consolidated as a guiding design principle. Project elevations (Figure 9) do not respond to an autonomous formal pursuit or to aesthetic criteria detached from the program, but coherently express spatial organization, functional hierarchy, and sensory regulation strategies developed throughout the design process.
From this perspective, elevation composition is characterized by a clear and ordered reading that avoids visual fragmentation and perceptual overstimulation. Modulation of solids and voids is conceived in a controlled manner, reinforcing legibility and reducing visual complexity of the built environment. This decision is particularly relevant in a therapeutic center for children and adolescents with ASD, where formal coherence contributes to generating sensations of stability, predictability, and safety.
Facade treatment reflects the spatial hierarchy defined in floor plans and sections, allowing intuitive identification of main areas of the complex without resorting to abrupt contrasts. Architectural scale is maintained as homogeneous and contained, avoiding excessive variations that could generate disorientation or unnecessary sensory impact. In this way, the elevation acts as an extension of the internal spatial system, reinforcing continuity between interior and exterior.
Additionally, elevations demonstrate a controlled relationship with the immediate surroundings, regulating views and exposure to potentially disruptive urban stimuli. Openings are strategically arranged to prioritize indirect natural light entry and avoid glare or abrupt lighting contrasts. This strategy allows architectural expression to actively contribute to sensory comfort, in coherence with criteria defined through empirical evidence.
Materiality and compositional rhythm of facades reinforce this approach by privileging solutions that foster calm and ordered visual perception. Far from constituting a merely representational resource, architectural expression is configured as a functional component of the building’s sensory system, capable of influencing users’ emotional experience even before entering the therapeutic space.
Overall, sensory control and architectural expression are integrated as inseparable dimensions of the project, in which elevations synthesize the evidence-based design process developed in this research. In this way, the architecture of the therapeutic center not only responds to programmatic and functional requirements but is positioned as an active tool for sensory regulation and Emotional Well-Being for children and adolescents with ASD.

7. Conclusions

7.1. Methodological Contributions

This research provided a methodological pathway for integrating empirical evidence and the design process in the development of Sensory Architecture for children and adolescents with ASD. Within a non-experimental and associative framework, the study operationalized Sensory Architecture through assessable dimensions of the therapeutic setting and linked them to Emotional Well-Being from a perceptual approach, allowing the generation of quantitative results without forcing causal interpretations. This approach strengthened the internal coherence of the study by maintaining an explicit correspondence among the research problem formulation, the structure of the analyzed dimensions, the statistical strategy employed, and the subsequent translation of findings into design criteria.
In addition, the study consolidated an evidence-based architectural design procedure that does not reduce the project to a formal description but instead positions it as a verifiable methodological outcome. By empirically hierarchizing the dimensions of Sensory Architecture and using them as a basis to define structuring, programmatic, and environmental support criteria, the research showed that an architectural project can be derived from relational patterns identified through data analysis. In this way, the study contributed a replicable scheme for linking statistical results to architectural decisions, reinforcing the possibility of producing applicable knowledge from architecture through an empirical and ethically consistent approach.

7.2. Architectural Contribution of the Study

The main architectural contribution of the research lies in consolidating Sensory Architecture as an operative design tool capable of translating empirical evidence into concrete spatial decisions oriented toward the Emotional Well-Being of children and adolescents with ASD. Unlike approaches that treat Sensory Architecture from a conceptual or normative standpoint, the study demonstrated that the dimensions of the therapeutic setting can be structured, empirically prioritized, and materialized through coherent architectural criteria, integrating program, space, volumetry, and architectural expression into a unified system.
Furthermore, the research contributed an architectural reading of Emotional Well-Being that goes beyond the clinical dimension and recognizes the built environment as an active component of the therapeutic process. The resulting architectural project was conceived not as a functional container for specialized activities, but as a medium capable of modulating sensory experiences, supporting spatial predictability, and contributing to emotional self-regulation. This conception reaffirms the role of architecture as a discipline that directly shapes users’ everyday experience, particularly in contexts where sensory needs require specific spatial responses.
From a disciplinary standpoint, the study reinforces the idea that architectural design can constitute a research outcome, provided that it is grounded in clear methodological processes and in an explicit articulation between empirical data and design decisions. In this sense, the architectural proposal developed does not represent an isolated formal exercise, but rather the spatial synthesis of an analytical process that integrates evidence, sensory criteria, and an urban context, contributing to position Sensory Architecture as a legitimate field of intervention within contemporary architecture.

7.3. Replicability of the Evidence-Based Sensory Architecture Approach

The research demonstrates that the evidence-based Sensory Architecture approach developed in this study has high potential for replicability in other urban and sociocultural contexts, particularly those characterized by limitations in specialized therapeutic infrastructure. This replicability is not grounded in literal reproduction of the architectural proposal, but in the transferability of the methodological process that articulates empirical evidence, spatial analysis, and design decision-making.
The replicable value of the approach lies in its logical and sequential structure, which enables adaptation of the analysis of sensory perceptions and Emotional Well-Being to different territorial contexts, intervention scales, and user profiles within the autism spectrum. By operating through clearly defined dimensions that can be translated into design criteria, the method allows architects and interdisciplinary teams to adjust spatial variables to the cultural, climatic, and urban particularities of each setting without losing conceptual coherence or methodological rigor.
In addition, integrating quantitative analysis into the design process strengthens the applicability of the approach across diverse scenarios by providing an empirical basis that supports architectural decisions beyond intuition or individual design experience. This feature is especially relevant in Latin American contexts, where the scarcity of local references in sensory therapeutic architecture requires flexible, adaptable, and evidence-grounded methodologies.
Overall, the replicability of the proposed approach positions evidence-based Sensory Architecture as a methodological strategy applicable to future therapeutic, educational, or social infrastructure projects aimed at populations with specific sensory needs. In this way, the study goes beyond the analyzed case and contributes to consolidating a model of architectural intervention that can be reinterpreted and adjusted according to new contexts, expanding the disciplinary and social scope of contemporary architecture.

7.4. The Role of Evidence-Based Architecture in ASD Contexts

This research reaffirms that evidence-based architecture plays a fundamental role in the comprehensive care of children and adolescents with ASD, by moving beyond its traditional function as a physical support for therapeutic activities. Based on the results obtained, the built environment is shown to be an active agent in users’ emotional experience, capable of influencing sensory regulation processes, spatial predictability, and perceptions of safety.
In this sense, evidence-based Sensory Architecture makes it possible to shift the design approach from intuitive or purely normative solutions toward informed, coherent, and context-sensitive spatial decisions. By integrating empirical data into the design process, architecture assumes a mediating role between the sensory needs of individuals with ASD and the physical conditions of the environment, contributing directly to Emotional Well-Being without replacing or competing with clinical interventions.
The study also highlights that evidence-based architecture provides an ethical and methodological framework that strengthens the discipline’s social responsibility, especially in urban contexts where gaps in therapeutic infrastructure are significant. In these settings, designing sensorially adapted spaces ceases to be an optional decision and becomes a key strategy for ensuring more equitable, inclusive, and sustainable conditions of care.
Overall, the research consolidates evidence-based architecture as an indispensable tool for addressing contemporary challenges associated with ASD. By positioning the architectural project as a research outcome rather than only a formal object, the study strengthens the link between empirical knowledge and spatial design, reaffirming architecture’s potential to meaningfully improve quality of life and Emotional Well-Being for populations with specific sensory needs.

8. Limitations and Future Research

The study adopted a non-experimental, associative approach, which made it possible to examine the relationship between Sensory Architecture and Emotional Well-Being from a perceptual standpoint, but without establishing direct causal links between the variables analyzed. In addition, the use of family members as informants, while appropriate for populations with limited direct verbal communication, introduces an inherent level of subjectivity associated with third-party perceptions.Additionally, the study relied on perception-based evaluations of sensory and spatial conditions rather than objective environmental measurements such as spatial, acoustic, or lighting metrics. These methodological decisions delimit the interpretive scope of the findings and should be considered when extrapolating results, without undermining the study’s internal coherence or the validity of the approach. In addition, because both variables were measured using the same questionnaire and the same group of respondents, the results may be exposed to common method bias, which can inflate the magnitude of correlations between constructs measured within the same instrument.
The research was conducted within a specific urban setting, meaning that the results reflect territorial, sociocultural, and infrastructure conditions particular to the study area. This contextual delimitation restricts straightforward generalization to other urban environments with different characteristics, especially regarding the availability of therapeutic services and the configuration of the built environment. However, this limitation does not weaken the methodological approach; rather, it reinforces the need to interpret the findings through a contextualized lens that is sensitive to local particularities.
The architectural proposal developed in this research constitutes an evidence-informed design outcome derived from the methodological translation of correlational findings into design criteria. Within this scope, the study focused on formulating a proposal grounded in empirical evidence rather than on evaluating the performance of a built intervention. In this sense, future research may extend this approach through implementation-based studies that examine the sensory performance of the built space and its effects on users’ Emotional Well-Being once the proposal is materialized.
Finally, the evidence-based Sensory Architecture approach proposed in this study could be further validated through longitudinal research examining changes in users’ Emotional Well-Being over time. Future studies may include follow-up measurements after project implementation and comparative analyses across therapeutic centers designed under similar criteria. The approach could also be extended to other architectural typologies serving populations with specific sensory needs, strengthening the applicability of evidence-based architectural design across diverse contexts.

Supplementary Materials

The following supporting information can be downloaded at: https://www.mdpi.com/article/10.3390/buildings16081490/s1, Supplementary Material S1: the survey instrument in Spanish and English; Supplementary Material S2: the database used for the empirical analysis; and Supplementary Material S3: the architectural drawings associated with the design proposal.

Author Contributions

E.J.M.-S.: Conceptualization, Data curation, Formal Analysis, Investigation, Methodology, Supervision, Validation, Visualization, Writing—review and editing. A.J.H.-M.: Data curation, Formal Analysis, Investigation, Project administration, Resources, Software, Writing—original draft. All authors have read and agreed to the published version of the manuscript.

Funding

No financial support was received for the preparation of this manuscript.

Institutional Review Board Statement

Ethical review and approval were waived for this study because it involved human participants through the administration of an anonymous questionnaire and did not include any clinical intervention, experimental manipulation, or collection of sensitive personal data. According to the institutional and national research guidelines applicable to the authors’ affiliation, studies based on anonymous surveys, involving minimal or no risk to participants, are exempt from formal ethics committee approval. Participation was voluntary, informed consent was obtained from all participants, and confidentiality and anonymity were strictly ensured throughout the research process.

Informed Consent Statement

Informed consent was obtained from all subjects involved in the study. Verbal informed consent was obtained because the study involved minimal-risk, anonymous survey participation by adult caregivers and family members. No personal identifiers were collected, no clinical or psychological intervention was conducted, and participation was entirely voluntary. In this context, verbal consent was considered appropriate to ensure understanding while preserving anonymity and participant comfort, particularly given that no written documentation was required to protect confidentiality.

Data Availability Statement

Data will be made available on request.

Acknowledgments

During the preparation of this manuscript, the authors used NotebookLM for the graphical abstract. The authors reviewed, edited, and verified all outputs produced by the tool, and collectively take full responsibility for the content and accuracy of the graphics and interpretations presented in this publication.

Conflicts of Interest

The authors declare that the research was conducted in the absence of any commercial or financial relationships that could be construed as a potential conflict of interest.

References

  1. Camino-Alarcón, J.; Robles-Bello, M.A.; Valencia-Naranjo, N.; Sarhani-Robles, A. A Systematic Review of Treatment for Children with Autism Spectrum Disorder: The Sensory Processing and Sensory Integration Approach. Children 2024, 11, 1222. [Google Scholar] [CrossRef] [PubMed]
  2. Chen, K.; Zhang, P.; Wang, Y.; Chen, B.; Zou, Y.; Zou, X. Clinical analysis of sensory abnormalities in children with autism spectrum disorder. Chin. J. Behav. Med. Brain Sci. 2020, 29, 834–839. [Google Scholar] [CrossRef]
  3. Jussila, K.K.; Junttila, M.J.; Kielinen, M.; Ebeling, H.E.; Joskitt, L.O.; Moilanen, I.K.; Mattila, M.L. Sensory Abnormality and Quantitative Autism Traits in Children with and Without Autism Spectrum Disorder in an Epidemiological Population. J. Autism Dev. Disord. 2020, 50, 180–188. [Google Scholar] [CrossRef]
  4. Sakamoto, N.; Oe, M.; Ozone, M. An Exploratory Study of the Associations Between Sensory Processing Patterns and Emotional/Behavioral Problems in Children with Autism Spectrum Disorder. Kurume Med. J. 2023, 70, 47–52. [Google Scholar] [CrossRef]
  5. Kirby, A.V.; Bilder, D.A.; Wiggins, L.D.; Hughes, M.M.; Davis, J.L.; Hall-Lande, J.A.; Lee, L.-C.; McMahon, W.M.; Bakian, A.V. Sensory features in autism: Findings from a large population-based surveillance system. Autism Res. 2022, 15, 751–760. [Google Scholar] [CrossRef] [PubMed]
  6. Shaw, K.A.; Williams, S.; Patrick, M.E.; Valencia-Prado, M.; Durkin, M.S.; Howerton, E.M.; Ladd-Acosta, C.M.; Pas, E.T.; Bakian, A.V.; Bartholomew, P. Prevalence and Early Identification of Autism Spectrum Disorder Among Children Aged 4 and 8 Years—Autism and Developmental Disabilities Monitoring Network, 16 Sites, United States, 2022. MMWR Surveill. Summ. 2025, 74, 1–22. [Google Scholar] [CrossRef]
  7. Zahorodny, W.; Shenouda, J.; Sidwell, K.; Verile, M.G.; Alvarez, C.C.; Fusco, A.; Mars, A.; Waale, M.; Gleeson, T.; Burack, G.; et al. Prevalence and Characteristics of Adolescents with Autism Spectrum Disorder in the New York-New Jersey Metropolitan Area. J. Autism Dev. Disord. 2025, 55, 2043–2049. [Google Scholar] [CrossRef]
  8. Seretopoulos, K.; Lamnisos, D.; Giannakou, K. The epidemiology of autism spectrum disorder. Arch. Hell. Med. 2020, 37, 169–180. [Google Scholar]
  9. Issac, A.; Halemani, K.; Shetty, A.; Thimmappa, L.; Vijay, V.R.; Koni, K.; Mishra, P.; Kapoor, V. The global prevalence of autism spectrum disorder in children: A systematic review and meta-analysis. Osong Public Health Res. Perspect. 2025, 16, 3–27. [Google Scholar] [CrossRef]
  10. Yan, X.; Li, Y.; Li, Q.; Li, Q.; Xu, G.; Lu, J.; Yang, W. Prevalence of Autism Spectrum Disorder Among Children and Adolescents in the United States from 2021 to 2022. J. Autism Dev. Disord. 2024. [Google Scholar] [CrossRef]
  11. Imbriani, G.; Grassi, T.; Bagordo, F.; Filippis, G.D.; Giorgi, D.D.; Peccarisi, L.; Dileone, F.; Fattizzo, T.; Antonucci, G.; Margiotta, M.L.; et al. A Feasible Methodological Approach to Estimate the Burden of Autism Spectrum Disorder: Results from the EPI-ASD Study in the Province of Lecce (Southern Italy). Int. J. Environ. Res. Public Health 2022, 19, 6334. [Google Scholar] [CrossRef] [PubMed]
  12. Torty, C.; Eyong, K.; Asindi, A.A.; Usun, E. Autism Spectrum Disorders in Calabar, Nigeria. Iran. J. Child Neurol. 2024, 18, 75–81. [Google Scholar] [CrossRef]
  13. Yang, F.; Chen, R.; Xiong, J.; Liu, B. Disease Burden of Autism Spectrum Disorder and Attention-Deficit/Hyperactivity Disorder in the 0–14 Age Group across 204 Countries and Regions from 1990 To 2021. Child Psychiatry Hum. Dev. 2025. [Google Scholar] [CrossRef]
  14. Domenico, C.D.; Cara, M.D.; Piccolo, A.; Settimo, C.; Leonardi, S.; Giuffrè, G.; Cola, M.C.D.; Cucinotta, F.; Tripodi, E.; Impallomeni, C.; et al. Exploring the Usefulness of a Multi-Sensory Environment on Sensory Behaviors in Children with Autism Spectrum Disorder. J. Clin. Med. 2024, 13, 4162. [Google Scholar] [CrossRef]
  15. Leonardi, S.; Cara, M.D.; Giliberto, S.; Piccolo, A.; de Domenico, C.; Leonardi, G.; Alito, A.; Siracusano, R.M.; Calabrò, R.S.; Quartarone, A. The use of multisensory environments in children and adults with autism spectrum disorder: A systematic review. Autism 2025, 29, 1921–1938. [Google Scholar] [CrossRef] [PubMed]
  16. Pawar, T.S.; Banerjee, S. Spatial Interventions for Sensory Comfort in Children with Autism Spectrum Disorder. In Proceedings of the Lecture Notes in Mechanical Engineering; Chakrabarti, A., Singh, V., Onkar, P.S., Shahid, M., Eds.; Springer Science and Business Media Deutschland GmbH: Singapore, 2025; pp. 117–127. [Google Scholar] [CrossRef]
  17. Norouzi, N.; Garza, C.M.; Brinkerhoff, G. Architecture of therapeutic environments: Therapists’ perspective on how design impacts children with autism. J. Archit. 2024, 29, 126–140. [Google Scholar] [CrossRef]
  18. Tinelli, M.; Roddy, A.; Knapp, M.; Arango, C.; Mendez, M.A.; Cusack, J.; Murphy, D.; Canitano, R.; Oakley, B.; Quoidbach, V. Economic analysis of early intervention for autistic children: Findings from four case studies in England, Ireland, Italy, and Spain. Eur. Psychiatry 2023, 66, e76. [Google Scholar] [CrossRef]
  19. Bieleninik, Ł.; Gold, C. Estimating components and costs of standard care for children with autism spectrum disorder in Europe from a large international sample. Brain Sci. 2021, 11, 340. [Google Scholar] [CrossRef]
  20. Jani, S.; Salleh, N.; Ali, N.A.M.; Rasool, M.S.A. Adapting Public-Private Partnership as Strategic Collaboration between Government and Philanthropy-Based Autism Spectrum Disorder Centre. Int. J. Acad. Res. Bus. Soc. Sci. 2022, 12, 2114–2126. [Google Scholar] [CrossRef]
  21. Pergantis, P.; Bamicha, V.; Doulou, A.; Christou, A.I.; Bardis, N.; Skianis, C.; Drigas, A. Assistive and Emerging Technologies to Detect and Reduce Neurophysiological Stress and Anxiety in Children and Adolescents with Autism and Sensory Processing Disorders: A Systematic Review. Technologies 2025, 13, 144. [Google Scholar] [CrossRef]
  22. Kim, M.K.; Park, N.K. Evaluating the Impact of a Multisensory Environment on Target Behaviors of Children With Autism Spectrum Disorder. Health Environ. Res. Des. J. 2022, 15, 163–179. [Google Scholar] [CrossRef]
  23. Teixeira, M.C.T.V.; Lowenthal, R.; Rattazzi, A.; Cukier, S.; Valdez, D.; Garcia, R.; Candela, G.G.; Murillo, A.R.; da Silva Leite, F.P.; Pinheiro, G.; et al. Understanding Emotional Outbursts: A Cross-Cultural Study in Latin American Children with Autism Spectrum Disorder. Brain Sci. 2024, 14, 1010. [Google Scholar] [CrossRef]
  24. Ranadive, T.; Khurana, S.; Bhinderwala, A.M.; Ramachandran, S.; Raghupathy, M.K.; Rao, B.K. Effect of sensory enriched environment as an intervention on behaviors in children with autism spectrum disorder: A systematic review. Int. J. Dev. Disabil. 2025. [Google Scholar] [CrossRef]
  25. Pimentel, H.C.B.; Lima, A.P.M.; Latawiec, A.E. Recommendations for Implementing Therapeutic Gardens to Enhance Human Well-Being. Sustainability 2024, 16, 9502. [Google Scholar] [CrossRef]
  26. Esenarro, D.; Ccalla, J.; Raymundo, V.; Castañeda, L.; Dávila, S. Neurostimulating Architecture Applied in the Design of Educational Centers and Early Cognitive Development in the District of Villa El Salvador, Lima. Buildings 2023, 13, 3034. [Google Scholar] [CrossRef]
  27. Tola, G.; Talu, V.; Congiu, T.; Bain, P.; Lindert, J. Built environment design and people with autism spectrum disorder (Asd): A scoping review. Int. J. Environ. Res. Public Health 2021, 18, 3203. [Google Scholar] [CrossRef]
  28. Castañeda-Sifuentes, L.; Maya-López, M.; Leyva-Picazo, V. Architecture for autism: A reflection of the design of learning environments | Arquitectura para el AUTISMO: Una reflexión del diseño de ambientes de aprendizaje. Legado Arquit. Diseno 2022, 17, 105–114. [Google Scholar] [CrossRef]
  29. Vasa, R.A.; Keefer, A.; McDonald, R.G.; Hunsche, M.C.; Kerns, C.M. A Scoping Review of Anxiety in Young Children with Autism Spectrum Disorder. Autism Res. 2020, 13, 2038–2057. [Google Scholar] [CrossRef] [PubMed]
  30. Irani, N.; Bavar, C.; Araghi, N.M. The Relationship Between Physical Factors and Architecture of Rehabilitation Educational Care Centers with the Quality of Rehabilitation Services in Children with Autism From the Perspective of Their Occupational Therapists and Parents. Sci. J. Rehabil. Med. 2023, 12, 164–185. [Google Scholar] [CrossRef]
  31. Love, J.S. Sensory spaces: Sensory living–studio teaching the design of autism-friendly adult accommodation. Archnet-IJAR Int. J. Archit. Res. 2022, 16, 595–619. [Google Scholar] [CrossRef]
  32. Unwin, K.L.; Powell, G.; Jones, C.R. The use of Multi-Sensory Environments with autistic children: Exploring the effect of having control of sensory changes. Autism 2022, 26, 1379–1394. [Google Scholar] [CrossRef]
  33. Rios-Vega, L.; Carroll, A.; Dumont, R.; Treadwell-Deering, D.; Fields, M.; Schaaf, R. Designing sensory adaptive environments to enhance participation in healthcare for autistic children. Discov. Psychol. 2024, 4, 22. [Google Scholar] [CrossRef]
  34. Hemati, G.; Mradi, H. The effectiveness of sensory integration intervention on the emotional-behavioral problems of children with autism spectrum disorder. Adv. Autism 2020, 7, 152–166. [Google Scholar] [CrossRef]
  35. Al-Harasis, D.H.; Jabi, W.; Sharmin, T. Developing a taxonomy for sensory-informed architectural design qualities in autism. Build. Res. Inf. 2025, 53, 532–551. [Google Scholar] [CrossRef]
  36. Haussmann, A.H.A.; Olin, C.V. Designing Beyond Walls: An Exploration of How Architecture Can Contribute to Semi-Independent Living for Autistic Adults. Architecture 2025, 5, 48. [Google Scholar] [CrossRef]
  37. la Cerna-Luna, R.D.; Fernandez-Guzman, D.; Baquerizo-Sedano, M.; Cabala-Olazabal, S.; Taype-Rondán, Á. Characteristics of children with autism spectrum disorder in pediatric rehabilitation at a referral hospital in Peru; Características de niños con trastorno del espectro autista en rehabilitación pediátrica de un hospital de referencia en Perú. Rev. Peru. Med. Exp. Salud Publica 2024, 41, 19–27. [Google Scholar] [CrossRef]
  38. Grasso, A.; Arenas-Perez, M.; Wegertseder-Martinez, P.; Vilina, E.; Mattoli-Sanchez, J.; Parada, F.J. Neuroscientific Insights into the Built Environment: A Systematic Review of Empirical Research on Indoor Environmental Quality, Physiological Dynamics, and Psychological Well-Being in Real-Life Contexts. Int. J. Environ. Res. Public Health 2025, 22, 824. [Google Scholar] [CrossRef]
  39. Hutchinson, C.; Worley, A.; Khadka, J.; Milte, R.; Cleland, J.; Ratcliffe, J. Do we agree or disagree? A systematic review of the application of preference-based instruments in self and proxy reporting of quality of life in older people. Soc. Sci. Med. 2022, 305, 115046. [Google Scholar] [CrossRef]
  40. Davis, J.C.; Hsiung, G.Y.; Bryan, S.; Jacova, C.; Jacova, P.; Munkacsy, M.; Cheung, W.; Lee, P.; Liu-Ambrose, T. Agreement between patient and proxy assessments of quality of life among older adults with vascular cognitive impairment using the EQ-5D-3L and ICECAP-O. PLoS ONE 2016, 11, e0153878. [Google Scholar] [CrossRef] [PubMed]
  41. Hilari, K.; Owen, S.; Farrelly, S.J. Proxy and self-report agreement on the Stroke and Aphasia Quality of Life Scale-39. J. Neurol. Neurosurg. Psychiatry 2007, 78, 1072–1075. [Google Scholar] [CrossRef]
  42. Cruice, M.; Worrall, L.; Hickson, L.; Murison, R. Measuring quality of life: Comparing family members’ and friends’ ratings with those of their aphasic partners. Aphasiology 2005, 19, 111–129. [Google Scholar] [CrossRef]
  43. Medrano-Sánchez, E.J.; Alanya-Pereyra, L.L.; Ochoa-Tataje, F. Public policies and their association with adolescent pregnancy in Southern Peru. Reprod. Health 2025, 22, 172. [Google Scholar] [CrossRef]
  44. Medrano-Sánchez, E.J.; Ochoa-Tataje, F.A. Impact of green hydrogen on climate change in Peru: An analysis of perception, policies, and cooperation. Energy Convers. Manag. X 2024, 24, 100778. [Google Scholar] [CrossRef]
Figure 1. Location map.
Figure 1. Location map.
Buildings 16 01490 g001
Figure 2. Urban Equipment Map.
Figure 2. Urban Equipment Map.
Buildings 16 01490 g002
Figure 3. Urban Infrastructure Map-Satellite View. (a) Peru; (b) Department of Lima; (c) District of San Juan de Lurigancho; (d) Location of the land.
Figure 3. Urban Infrastructure Map-Satellite View. (a) Peru; (b) Department of Lima; (c) District of San Juan de Lurigancho; (d) Location of the land.
Buildings 16 01490 g003
Figure 4. Access routes to the site.
Figure 4. Access routes to the site.
Buildings 16 01490 g004
Figure 5. Topographic map.
Figure 5. Topographic map.
Buildings 16 01490 g005
Figure 6. Conceptual proposal.
Figure 6. Conceptual proposal.
Buildings 16 01490 g006
Figure 7. Level planimetry.
Figure 7. Level planimetry.
Buildings 16 01490 g007
Figure 8. Architectural sections.
Figure 8. Architectural sections.
Buildings 16 01490 g008
Figure 9. Project elevations.
Figure 9. Project elevations.
Buildings 16 01490 g009
Table 1. Empirical hierarchization of sensory architecture dimensions and their role in architectural design.
Table 1. Empirical hierarchization of sensory architecture dimensions and their role in architectural design.
Sensory Architecture DimensionCorrelation Coefficient ( ρ )Significance (p)Hierarchy LevelRole Within Architectural Design
Spatial configuration0.652<0.001HighDesign-conditioning dimension. Defines functional organization, spatial sequencing, environmental legibility, and the overall structure of the architectural project.
Sensory stimuli0.637<0.001Medium–highStrategic support dimension of the architectural system. Significantly contributes to modulating sensory and emotional experiences through lighting, sound, texture, temperature, and color, complementing spatial configuration without constituting the primary conditioning factor of design.
Therapeutic environments0.557<0.001MediumStructuring dimension of the architectural program. Determines spatial conditions in which therapeutic activities take place and the direct relationship between user, space, and therapy.
Note: The hierarchization was established based on the magnitude of Spearman’s Rho correlation coefficient between each Sensory Architecture dimension and Emotional Well-Being. For interpretation purposes, the following criteria were adopted: high correlations ( ρ 0.60 ), medium–high correlations ( 0.60 > ρ 0.55 ), and medium correlations ( ρ < 0.55 ). These thresholds allowed for an empirical ordering of dimensions according to their relative weight in architectural design.
Disclaimer/Publisher’s Note: The statements, opinions and data contained in all publications are solely those of the individual author(s) and contributor(s) and not of MDPI and/or the editor(s). MDPI and/or the editor(s) disclaim responsibility for any injury to people or property resulting from any ideas, methods, instructions or products referred to in the content.

Share and Cite

MDPI and ACS Style

Huaman-Meza, A.J.; Medrano-Sanchez, E.J. Evidence-Based Sensory Architecture Applied to the Design of Therapeutic Centers for Children and Adolescents with Autism Spectrum Disorder. Buildings 2026, 16, 1490. https://doi.org/10.3390/buildings16081490

AMA Style

Huaman-Meza AJ, Medrano-Sanchez EJ. Evidence-Based Sensory Architecture Applied to the Design of Therapeutic Centers for Children and Adolescents with Autism Spectrum Disorder. Buildings. 2026; 16(8):1490. https://doi.org/10.3390/buildings16081490

Chicago/Turabian Style

Huaman-Meza, Ana J., and Emilio J. Medrano-Sanchez. 2026. "Evidence-Based Sensory Architecture Applied to the Design of Therapeutic Centers for Children and Adolescents with Autism Spectrum Disorder" Buildings 16, no. 8: 1490. https://doi.org/10.3390/buildings16081490

APA Style

Huaman-Meza, A. J., & Medrano-Sanchez, E. J. (2026). Evidence-Based Sensory Architecture Applied to the Design of Therapeutic Centers for Children and Adolescents with Autism Spectrum Disorder. Buildings, 16(8), 1490. https://doi.org/10.3390/buildings16081490

Note that from the first issue of 2016, this journal uses article numbers instead of page numbers. See further details here.

Article Metrics

Back to TopTop