Seismic Performance of Precast Steel Beam-Column Joint with Bolted Connection
Abstract
1. Introduction
2. Construction of the Joint
3. Test Design
3.1. Specimen Design
3.2. Material Properties
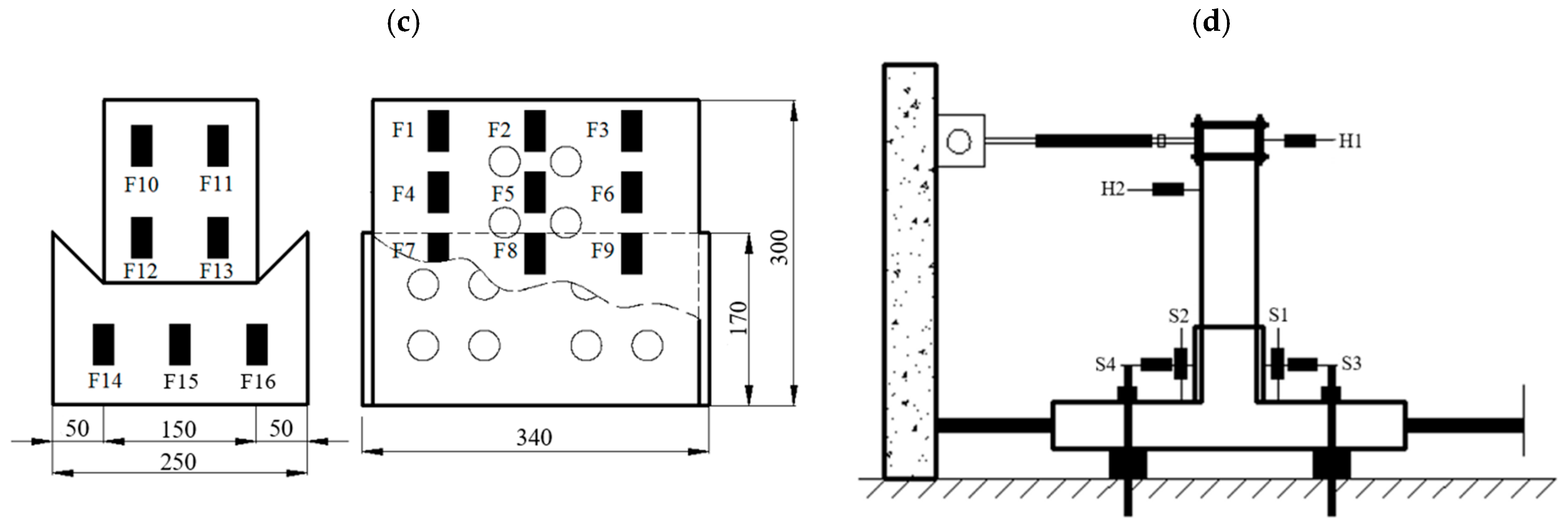
3.3. Test Loading System
3.4. Measurement Program
4. Test Results and Analysis
4.1. Experimental Observations
4.2. Hysteresis Behavior
4.3. Skeleton Curves
4.4. Ductility Performance
4.5. Energy Consumption Capacity
4.6. Stiffness Degradation
5. Conclusions
- (1)
- The joint demonstrates robust load-bearing capacity and plastic rotation capability, facilitating effective plastic hinge formation to safeguard beam-column members from damage. After earthquakes, functionality can be restored by replacing flange connections and high-strength bolt groups.
- (2)
- Flange inner sleeve thickness and length significantly influence the load capacity of the joint. Thicker flange inner sleeves primarily enhance the peak load capacity and stiffness degradation resistance in the joint. Meanwhile, longer flange inner sleeves primarily enhance the ductility and energy dissipation capacity.
Author Contributions
Funding
Data Availability Statement
Conflicts of Interest
Nomenclature
| SST | Square steel tubular |
| H | Specimen thickness |
| The length of the H-shaped steel beam | |
| The length of the flange inner sleeve | |
| The thickness of the flange inner sleeve | |
| Yield strength | |
| Ultimate strength | |
| Modulus of elasticity | |
| Post-break elongation | |
| Yield displacement | |
| Ultimate displacement | |
| Ductility coefficient |
References
- Fengbin, S.; Xiuli, L.; Yang, L. Research progress of prefabricated steel structure beam-column joints. Steel Constr. 2019, 34, 1–11. [Google Scholar]
- Ding, Y.; Deng, E.F.; Zong, L.; Dai, X.M.; Li, Y.M.; Wang, H.P.; Bi, J.X. State-of-the-art on connection in modular steel construction. J. Build. Struct. 2019, 40, 33–40. [Google Scholar]
- Nakashima, M.; Inoue, K.; Tada, M. Classification of damage to steel buildings observed in the 1995 Hyogoken-Nanbu earthquake. Eng. Struct. 1998, 20, 271–281. [Google Scholar] [CrossRef]
- Popov, E.P.; Yang, T.; Chang, S. Design of steel MRF connections before and after 1994 Northridge earthquake. Eng. Struct. 1998, 20, 1030–1038. [Google Scholar] [CrossRef]
- Waqas, R.; Uy, B.; Thai, H.T. Experimental and numeri-cal behaviour of blind bolted flush endplate composite connections. J. Constr. Steel Res. 2019, 153, 179–195. [Google Scholar] [CrossRef]
- Nuñez, E.; Torres, R.; Herrera, R. Seismic performance of moment connections insteel moment frames with HSS columns. Steel Compos. Struct. 2017, 25, 271–286. [Google Scholar]
- Nuñez, E.; Lichtemberg, R.; Herrera, R. Cyclic Performance of End-Plate Biaxial G. Moment Connection with HSS Columns. Metals 2020, 10, 1556. [Google Scholar] [CrossRef]
- Gallegos, M.; Nuñez, E.; Herrera, R. Numerical study on cyclic response of end-plate biaxial moment connection in box columns. Metals 2020, 10, 523. [Google Scholar] [CrossRef]
- Maali, M. Failure modes of end-plate connections with outer flange stiffeners: An experimental and numerical study. Sadhana Acad. Proc. Eng. Sci. 2020, 45, 18. [Google Scholar] [CrossRef]
- Ma, H.; Huang, Z.; Song, X.; Ling, Y. A Study on Mechanical Performance of an Innovative Modular Steel Building Connection with Cross-Shaped Plug-In Connector. Buildings 2023, 13, 2382. [Google Scholar] [CrossRef]
- Zhang, Z.; Wang, H.; Qian, H.; Gao, K.; An, B.; Fan, F. Design and Mechanical Performance Analysis of a New Type of Column-Column-Beam Prefabricated Steel Frame Joint. Struct. Eng. Int. 2021, 31, 418–426. [Google Scholar] [CrossRef]
- Yang, C.; Chen, H.; Ou, J. Experimental study on seismic performance of modular steel construction beam-to-beam combined side column joint with blind bolted connection. Thin-Walled Struct. 2023, 184, 110431. [Google Scholar] [CrossRef]
- Li, G.; Duan, L.; Lu, Y.; Zhang, L. Experimental and theoretical study of bearing capacity for extended endplate connections between rectangular tubular columns and H-shaped beams with single direction bolts. J. Build. Struct. 2015, 36, 91–100. [Google Scholar]
- Guoqiang, L.; Lian, D.; Ye, L.; Long, Z.; Yun, H.J. Bearing Capacity for Flush End-plated Connections Between Rectangular Tubular Columns and H-shaped Beams with Single Direction Bolts. J. Tongji Univ. (Nat. Sci.) 2018, 46, 162–169. [Google Scholar]
- Guoqiang, L.; Lian, D.; Ye, L.; Jie, H.Z. Initial Rotational Stiffness of H-shaped Beams to RHS Column End-plate Connections Using Blind Bolts. J. Tongji Univ. (Nat. Sci.) 2018, 46, 565–573. [Google Scholar]
- Zhang, A.L.; Wang, Q.; Jiang, Z.Q.; Yang, X.F.; Zhang, H. Experimental study of earthquake-resilient prefabricated steel beam-column joints with different connection forms. Eng. Struct. 2019, 187, 299–313. [Google Scholar] [CrossRef]
- Zhang, A.; Xie, Z.; Zhang, Y.; Lin, H. Shaking table test of a prefabricated steel frame structure with all-bolted connections. Eng. Struct. 2021, 248, 113273. [Google Scholar]
- Zhang, Y.X.; Huang, W.Z.; Zheng, M.Z.; Wang, Y.; Ning, G. Parametric analysis of box-section all-bolted column connection with inner sleeve. Ind. Constr. 2018, 48, 45–53. [Google Scholar]
- Yan, X.Z.; Meng, Y.C.; Ai, L.Z.; Wei, Z.H. Performance of box-shaped column connection achieved with core sleeve and bolts. J. Build. Struct. 2020, 41, 180–189. [Google Scholar]
- Yan, W.; Qiangqiang, M.; Songsen, Y. Mechanical Properties of Beam-Column Connection Joints Using Inner Sleeve Composite Bolts in Fabricated Steel Structure. J. Tianjin Univ. (Sci. Technol.) 2016, 49 (Suppl. S1), 73–79. [Google Scholar]
- Qiangqiang, M.; Yan, W.; Songsen, Y. Experimental Studies on Mechanical Properties of Fabricated Beam-Column Connection with Inner Sleeve Composite Bolts. J. Tianjin Univ. (Sci. Technol.) 2017, 50 (Suppl. S1), 131–139. [Google Scholar]
- Mingwei, Z.; Yan, W.; Hui, S. Mechanical property analysis of prefabricated inner sleeve-T section beam-column joint. Steel Struct. 2015, 30, 12–17+48. [Google Scholar]
- Mingyang, L.I.; Yan, W.A.G.; Shushuo, J.I. Research on the mechanical properties of new plate-inner sleeve joint of steel modular frame. Steel Struct. 2018, 33, 1–5+10. [Google Scholar]
- Han, Q.; Liu, M.; Lu, Y. Mechanical Behavior Analysis of Cast Steel Joints Connecting H-Shaped Beam and Square Tube Column. J. Tianjin Univ. (Sci. Technol.) 2015, 48, 502–509. [Google Scholar]
- Han, Q.; Liu, M.; Lu, Y.; Xu, Y.; Xu, J. Experimental research on static behavior of cast steel joints for H-shaped beam and square tube column. J. Build. Struct. 2015, 36, 101–109. [Google Scholar]
- Liu, X.C.; Wu, X.; Wang, Y.; Cui, X. Seismic performance of bolted connection between H-section beam and SST column welded with inclined braces. J. Build. Eng. 2022, 61, 105270. [Google Scholar] [CrossRef]
- Liu, X.C.; Ren, X.; Zhan, X.X.; Zhang, Y.X. Mechanical property analysis of beam-to-column connection in a box-type modular prefabricated steel structure building. Ind. Constr. 2018, 48, 62–69. [Google Scholar]
- Liu, X.C.; Pu, S.H.; Zhang, A.L.; Zhan, X.X. Performance analysis and design of bolted connections in modularized prefabricated steel structures. J. Constr. Steel Res. 2017, 133, 360–373. [Google Scholar] [CrossRef]
- Liu, X.C.; Zhan, X.X.; Pu, S.H.; Zhang, A.L.; Xu, L. Seismic performance study on slipping bolted truss-to-column connections in modularized prefabricated steel structures. Eng. Struct. 2018, 163, 241–254. [Google Scholar] [CrossRef]
- Liu, X.C.; Yang, Z.W.; Wang, H.X.; Zhang, A.L.; Pu, S.H.; Chai, S.T.; Wu, L. Seismic performance of H-section beam to HSS column connection in prefabricated structures. J. Constr. Steel Res. 2017, 138, 1–16. [Google Scholar] [CrossRef]
- Zhan, X.X.; Liu, X.C.; Feng, S.; Yu, C. Seismic performance of a square HSS column to H-section beam bolted connection with double cover plate. Eng. Struct. 2021, 231, 111729. [Google Scholar] [CrossRef]
- ANSI/AISC 341-16; Seismic Provisions for Structural Steel Buildings. American Institute of Steel Construction: Chicago, CA, USA, 2016.
- GB 50011-2010; Code for Seismic Design of Buildings. China Architecture & Building Press: Beijing, China, 2010. (In Chinese)
- GB 50017-2017; Standard for Design of Steel Structures. China Architecture & Building Press: Beijing, China, 2017. (In Chinese)
- GB/T1591-2018; High Strength Low Alloy Structural Steels. State Administration for Market Regulation of the People’s Republic of China, and Standardization Administration of the People’s Republic of China: Beijing, China, 2018. (In Chinese)
- JGJ82-2011; Technical Specification for High Strength Bolt Connections of Steel Structure. Ministry of Housing and Urban-Rural Development of the People’s Republic of China: Beijing, China, 2011. (In Chinese)
- GB/T 2975−2018; Steel and Steel Products-Location and Preparation of Samples and Test Pieces for Mechanical Testing. China Standard Press: Beijing, China, 2018. (In Chinese)
- GB/T, 288. 1; Metallic Materials-Tensile Testing-Part 1: Method of Test at Room Temperature. China Standards Press: Beijing, China, 2010. (In Chinese)
- Priestley, M.J.N.; Park, R. Strength and Ductility of Concrete Bridge Columns Under Seismic Loading. ACI Struct. J. 1987, 84, 61–76. [Google Scholar] [CrossRef]















| Test Specimens | (mm) | (mm) | Bolt Spacing Arrangement (mm) | Mounting Clearance (mm) | Bolt |
|---|---|---|---|---|---|
| FJD-1N | 8 | 300 | 110-60-110 | 2 | M20 |
| FJD-2N | 8 | 250 | 110-60-110 | 2 | M20 |
| FJD-3N | 6 | 300 | 110-60-110 | 2 | M20 |
| FJD-4N | 6 | 250 | 110-60-110 | 2 | M20 |
| Name of Material Component | Specimen Number | |||||
|---|---|---|---|---|---|---|
| Beam Wing Edge | HY | 6.5 | 391.7 | 504.6 | 209259 | 34.77 |
| Beam webs | HF | 9 | 378.3 | 533.5 | 221938 | 36.23 |
| Flange 1 | F6 | 6 | 398.7 | 546.6 | 206546 | 32.23 |
| Flange 2 | F8 | 8 | 421.2 | 581.1 | 218357 | 36.56 |
| SST column | Z10 | 10 | 357.6 | 528.8 | 214357 | 29.46 |
| Flange cover plate | T10 | 10 | 352.6 | 519.6 | 210469 | 26.67 |
| Specimen Number | ) | μ₁ | |
|---|---|---|---|
| FJD-1N | 100 | 28 | 3.57 |
| −100 | −30 | 3.33 | |
| FJD-2N | 72 | 24 | 3.00 |
| −72 | −26 | 2.77 | |
| FJD-3N | 92 | 28 | 3.29 |
| −92 | −30 | 3.07 | |
| FJD-4N | 56 | 18 | 3.11 |
| −56 | −20 | 2.8 |
Disclaimer/Publisher’s Note: The statements, opinions and data contained in all publications are solely those of the individual author(s) and contributor(s) and not of MDPI and/or the editor(s). MDPI and/or the editor(s) disclaim responsibility for any injury to people or property resulting from any ideas, methods, instructions or products referred to in the content. |
© 2024 by the authors. Licensee MDPI, Basel, Switzerland. This article is an open access article distributed under the terms and conditions of the Creative Commons Attribution (CC BY) license (https://creativecommons.org/licenses/by/4.0/).
Share and Cite
Chen, Y.; Lu, Y.; Liu, T. Seismic Performance of Precast Steel Beam-Column Joint with Bolted Connection. Buildings 2024, 14, 2588. https://doi.org/10.3390/buildings14082588
Chen Y, Lu Y, Liu T. Seismic Performance of Precast Steel Beam-Column Joint with Bolted Connection. Buildings. 2024; 14(8):2588. https://doi.org/10.3390/buildings14082588
Chicago/Turabian StyleChen, Yandan, Yonggang Lu, and Tong Liu. 2024. "Seismic Performance of Precast Steel Beam-Column Joint with Bolted Connection" Buildings 14, no. 8: 2588. https://doi.org/10.3390/buildings14082588
APA StyleChen, Y., Lu, Y., & Liu, T. (2024). Seismic Performance of Precast Steel Beam-Column Joint with Bolted Connection. Buildings, 14(8), 2588. https://doi.org/10.3390/buildings14082588
