Energy Losses or Savings Due to Air Infiltration and Envelope Sealing Costs in the Passivhaus Standard: A Review on the Mediterranean Coast
Abstract
1. Introduction
2. Description of the Case Study
3. Materials and Methods
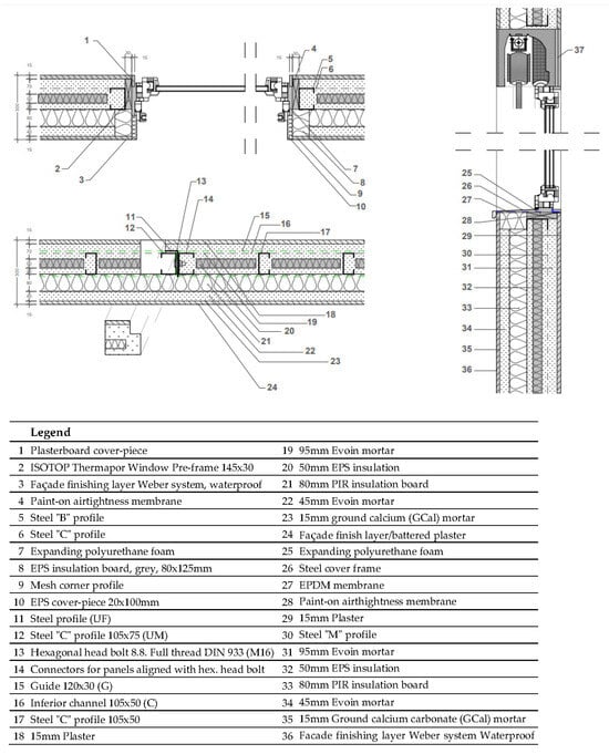
3.1. Envelope Airtightness
3.2. Assessment of the Energy Impact of Air Infiltration
3.2.1. Application of the Simplified Calculation Model
3.2.2. Obtaining Annual Energy Demand Using DesignBuilder
3.3. Air Infiltration and Its Energy Impact: Investment Amortisation Approach
4. Results
5. Discussion
6. Conclusions
Author Contributions
Funding
Data Availability Statement
Acknowledgments
Conflicts of Interest
References
- European Commission. Directive 2002/91/EC of the European Parliament and of the Council of 16 December 2002 on the energy performance of buildings. Off. J. Eur. Commun. 2003, L1, 65–70. [Google Scholar]
- European Commission. Directive 2010/31/EU of European Parliament and of the Council of 19 May 2010 on the energy performance of buildings (recast). Off. J. Eur. Union 2010, L153, 13–35. [Google Scholar]
- European Commission. Directive 2012/27/EU of European Parliament and of the Council of 25 October 2012 on energy efficiency, amending Directive 2009/125/EC and 2010/30/EU and repealing Directives 2004/8/EC and 2006/32/EC. Off. J. Eur. Union 2012, L315, 1–56. [Google Scholar]
- Attia, S.; Eleftheriou, P.; Xeni, F.; Morlot, R.; Ménézo, C.; Kostopoulos, V.; Betsi, M.; Kalaitzoglou, I.; Pagliano, L.; Cellura, M.; et al. Overview and future challenges of nearly zero energy buildings (nZEB) design in Southern Europe. Energy Build. 2017, 155, 439–458. [Google Scholar] [CrossRef]
- Technical Building Code CTE. Basic Document on Energy Savings DB-HE; Spanish Ministry of Housing: Madrid, Spain, 2006. (In Spanish)
- Spanish Ministry of Housing. Orden VIV/984/2009, de 15 de Abril, Por la Que se Modifican Determinados Documentos Básicos del Código Técnico de la Edificación Aprobados por el Real Decreto 314/2006, de 17 de Marzo, y el Real Decreto 1371/2007, de 19 de Octubre; Spanish Ministry of Housing: Madrid, Spain, 2009. (In Spanish)
- Spanish Ministry of Public Works and Transport. Orden FOM/1635/2013, de 10 de Septiembre, por la Que se Actualiza el Documento Básico DB-HE Ahorro de Energía, del Código Técnico de la Edificación, Aprobado por Real Decreto 314/2006, de 17 de Marzo; (Publicado en: «BOE» núm. 219, de 12 de Septiembre de 2013, Páginas 67137–67209); Spanish Ministry of Public Works and Transport: Madrid, Spain, 2013. (In Spanish)
- Passive House—Passivhaus Institut (PHI). Available online: https://passivehouse.com/02_informations/01_whatisapassivehouse/01_whatisapassivehouse.htm (accessed on 9 April 2019).
- Blázquez, T.; Suárez, R.; Ferrari, S.; Sendra, J. Improving winter thermal comfort in Mediterranean buildings upgrading the envelope: An adaptive assessment based on a real survey. Energy Build. 2023, 278, 112615. [Google Scholar] [CrossRef]
- Reguis, A.; Tunzi, M.; Vand, B.; Tuohy, P.; Currie, J. Energy performance of Scottish public buildings and its impact on the ability to use low-temperature heat. Energy Build. 2023, 290, 113064. [Google Scholar] [CrossRef]
- Liu, C.; Mohammadpourkarbasi, H.; Sharples, S. Evaluating the potential energy savings of retrofitting low-rise suburban dwellings towards the Passivhaus EnerPHit standard in a hot summer/cold winter region of China. Energy Build. 2021, 231, 110555. [Google Scholar] [CrossRef]
- Lavafpour, Y.; Sharples, S.; Gething, B. The impact of building form on overheating control: A case study of Larch House. Archit. Sci. Rev. 2020, 63, 467–480. [Google Scholar] [CrossRef]
- Bravo-Orlandini, C.; Gomez-Soberon, J.M.; Valderrama-Ulloa, C.; Sanhueza-Duran, F. Energy, Economic, and Environmental Performance of a Single-Family House in Chile Built to Passivhaus Standard. Sustainability 2021, 13, 1199. [Google Scholar] [CrossRef]
- Causone, F.; Tatti, A.; Pietrobon, M.; Zanghirella, F.; Pagliano, L. Yearly operational performance of a nZEB in the Mediterranean climate. Energy Build. 2019, 198, 243–260. [Google Scholar] [CrossRef]
- Strang, M.; Leardini, P.; Brambilla, A.; Gasparri, E. Mass Timber Envelopes in Passivhaus Buildings: Designing for Moisture Safety in Hot and Humid Australian Climates. Buildings 2021, 11, 478. [Google Scholar] [CrossRef]
- Finegan, E.; Kelly, G.; O’Sullivan, G. Comparative analysis of Passivhaus simulated and measured overheating frequency in a typical dwelling in Ireland. Build. Res. Inf. 2020, 48, 681–699. [Google Scholar] [CrossRef]
- Figueroa-Lopez, A.; Arias, A.; Oregi, X.; Rodriguez, I. Evaluation of passive strategies, natural ventilation and shading systems, to reduce overheating risk in a passive house tower in the north of Spain during the warm season. J. Build. Eng. 2021, 43, 102607. [Google Scholar] [CrossRef]
- Jang, J.; Natarajan, S.; Lee, J.; Leigh, S.-B. Comparative Analysis of Overheating Risk for Typical Dwellings and Passivhaus in the UK. Energies 2022, 15, 3829. [Google Scholar] [CrossRef]
- Chiesa, G.; Acquaviva, A.; Grosso, M.; Bottaccioli, L.; Floridia, M.; Pristeri, E.; Sanna, E.M. Parametric Optimization of Window-to-Wall Ratio for Passive Buildings Adopting A Scripting Methodology to Dynamic-Energy Simulation. Sustainability 2019, 11, 3078. [Google Scholar] [CrossRef]
- Hong, Y.; Ezeh, C.I.; Deng, W.; Lu, J.; Ma, Y.; Jin, Y. Climate adaptation of design scheme for energy-conserving high-rise buildings-Comparative study of achieving building sustainability in different climate scenarios. Energy Rep. 2022, 8, 13735–13752. [Google Scholar] [CrossRef]
- Brembilla, E.; Hopfe, C.J.; Mardaljevic, J.; Mylona, A.; Mantesi, E. Balancing daylight and overheating in low-energy design using CIBSE improved weather files. Build. Serv. Eng. Res. Technol. 2020, 41, 210–224. [Google Scholar] [CrossRef]
- Rodriguez Vidal, I.; Otaegi, J.; Oregi, X. Thermal Comfort in NZEB Collective Housing in Northern Spain. Sustainability 2020, 12, 9630. [Google Scholar] [CrossRef]
- Zune, M.; Tubelo, R.; Rodrigues, L.; Gillott, M. Improving building thermal performance through an integration of Passivhaus envelope and shading in a tropical climate. Energy Build. 2021, 253, 111521. [Google Scholar] [CrossRef]
- Campo Ruano, P.; de Lapuerta Montoya, J.M.; Garcia-German, J.; Menendez Amigo, J.; Mendoza Alonso, V.; Camara Ruiz, I. Technical and constructive energy strategies of the first Passivhaus Plus school in Spain. Inf. De La Constr. 2023, 75, e492. [Google Scholar] [CrossRef]
- Kang, Y.; Chang, V.W.-C.; Chen, D.; Graham, V.; Zhou, J. Performance gap in a multi-storey student accommodation complex built to Passivhaus standard. Build. Environ. 2021, 194, 107704. [Google Scholar] [CrossRef]
- Escandón, R.; Calama-González, C.M.; Alonso, A.; Suárez, R.; León-Rodríguez, Á.L. How Do Different Methods for Generating Future Weather Data Affect Building Performance Simulations? A Comparative Analysis of Southern Europe. Buildings 2023, 13, 2385. [Google Scholar] [CrossRef]
- Moreno-Rangel, A.; Sharpe, T.; McGill, G.; Musau, F. Indoor Air Quality and Thermal Environment Assessment of Scottish Homes with Different Building Fabrics. Buildings 2023, 13, 1518. [Google Scholar] [CrossRef]
- Santin, O.G.; Grave, A.; Jiang, S.; Tweed, C.; Mohammadi, M. Monitoring the performance of a Passivhaus care home: Lessons for user-centric design. J. Build. Eng. 2021, 43, 102565. [Google Scholar] [CrossRef]
- Mustafa, M.; Cook, M.J.; McLeod, R.S. Enhancing non-domestic Passivhaus auditoria ventilation design for improved indoor environmental quality. Build. Environ. 2023, 234, 110202. [Google Scholar] [CrossRef]
- Otaegi, J.; Hernandez, R.J.; Oregi, X.; Martin-Garin, A.; Rodriguez-Vidal, I. Comparative Analysis of the Effect of the Evolution of Energy Saving Regulations on the Indoor Summer Comfort of Five Homes on the Coast of the Basque Country. Buildings 2022, 12, 1047. [Google Scholar] [CrossRef]
- Liu, C.; Sharples, S.; Mohammadpourkarbasi, H. Evaluating Insulation, Glazing and Airtightness Options for Passivhaus EnerPHit Retrofitting of a Dwelling in China’s Hot Summer-Cold Winter Climate Region. Energies 2021, 14, 6950. [Google Scholar] [CrossRef]
- Echarri-Iribarren, V.; Sotos-Solano, C.; Espinosa-Fernandez, A.; Prado-Govea, R. The Passivhaus Standard in the Spanish Mediterranean: Evaluation of a House’s Thermal Behaviour of Enclosures and Airtightness. Sustainability 2019, 11, 3732. [Google Scholar] [CrossRef]
- Moreno-Rangel, A.; Sharpe, T.; McGill, G.; Musau, F. Indoor Air Quality in Passivhaus Dwellings: A Literature Review. International. J. Environ. Res. Public Health 2020, 17, 4749. [Google Scholar] [CrossRef]
- Korsavi, S.S.; Jones, V.R.; Bilverstone, P.A.; Fuertes, A. A longitudinal assessment of the energy and carbon performance of a Passivhaus university building in the UK. J. Build. Eng. 2021, 44, 103353. [Google Scholar] [CrossRef]
- Martinez-Soto, A.; Saldias-Lagos, Y.; Marincioni, V.; Nix, E. Affordable, Energy-Efficient Housing Design for Chile: Achieving Passivhaus Standard with the Chilean State Housing Subsidy. Appl. Sci. 2020, 10, 7390. [Google Scholar] [CrossRef]
- Forde, J.; Hopfe, C.J.; McLeod, R.S.; Evins, R. Temporal optimization for affordable and resilient Passivhaus dwellings in the social housing sector. Appl. Energy 2020, 261, 114383. [Google Scholar] [CrossRef]
- Feijó-Muñoz, J.; Poza-Casado, I.; González-Lezcano, R.; Pardal, C.; Echarri, V.; Fernández-Agüera, J.; Assiego de Larriva, R.; Fernández-Agüera, J.; Dios-Viéitez, M.J.; del Campo-Díaz, V.J.; et al. Methodology for the Study of the Envelope Airtightness of Residential Buildings in Spain: A Case Study. Energies 2018, 11, 704. [Google Scholar] [CrossRef]
- Mitchell, R.; Natarajan, S. UK Passivhaus and the energy performance gap. Energy Build. 2020, 224, 110240. [Google Scholar] [CrossRef]
- Rose, J.; Kragh, J.; Nielsen, K.F. Passive house renovation of a block of flats—Measured performance and energy signature analysis. Energy Build. 2022, 256, 111679. [Google Scholar] [CrossRef]
- Yakimchuk, T.; Linhares, P.; Hermo, V. Evaluation of a modular construction system in accordance with the Passivhaus standard for components. J. Build. Eng. 2023, 76, 107234. [Google Scholar] [CrossRef]
- Zhao, J.; Carter, K. Do passive houses need passive people? Evaluating the active occupancy of Passivhaus homes in the United Kingdom. Energy Res. Soc. Sci. 2020, 64, 101448. [Google Scholar] [CrossRef]
- Echarri, V.; Espinosa, A.; Rizo, C. Thermal Transmission through Existing Building Enclosures: Destructive Monitoring in Intermediate Layers versus Non-Destructive Monitoring with Sensors on Surfaces. Sensors 2017, 17, 2848. [Google Scholar] [CrossRef] [PubMed]
- Bienvenido-Huertas, D.; Moyano, J.; Rodríguez-Jiménez, C.E.; Marín, D. Applying an artificial neural network to assess thermal transmittance in walls by means of the thermometric method. Appl. Energy 2019, 233–234, 1–14. [Google Scholar] [CrossRef]
- Xu, C.; Nielsen, P.V.; Liu, L.; Jensen, R.L.; Gong, G. Impacts of airflow interactions with termal boundary layer on performance of personalized ventilation. Build. Environ. 2018, 135, 31–41. [Google Scholar] [CrossRef]
- Poza-Casado, I.; Cardoso, V.E.; Almeida, R.M.; Meiss, A.; Ramos, N.M.; Padilla-Marcos, M. Residential buildings airtightness frameworks: A review on the main databases and setups in Europe and North America. Build. Environ. 2020, 183, 107221. [Google Scholar] [CrossRef]
- Feijó-Muñoz, J.; Pardal, C.; Echarri, V.; Fernández-Agüera, J.; Assiego de Larriva, R.; Montesdeoca Calderín, M.; Poza-Casado, I.; Padilla-Marcos, M.A.; Meiss, A. Energy impact of the air infiltration in residential buildings in the Mediterranean area of Spain and the Canary Islands. Energy Build. 2019, 188–189, 226–238. [Google Scholar] [CrossRef]
- Bienvenido-Huertas, D.; Fernández Quiñones, J.A.; Moyano, J.; Rodríguez-Jiménez, C.E. Patents Analysis of Thermal Bridges in Slab Fronts and Their Efect on Energy Demand. Energies 2018, 11, 2222. [Google Scholar] [CrossRef]
- Echarri-Iribarren, V.; Rizo-Maestre, C.; Echarri-Iribarren, F. Healthy Climate and Energy Savings: Using Termal Ceramic Panels and Solar Thermal Panels in Mediterranean Housing Blocks. Energies 2018, 11, 2707. [Google Scholar] [CrossRef]
- Wang, Y.; Shi, S.; Zhou, Z.; Guo, S.; Zhao, B. Air infiltration rate distribution across Chinese five climate zones: A modelling study for rural residences. Build. Environ. 2024, 252, 111284. [Google Scholar] [CrossRef]
- Porsani, G.B.; Casquero-Modreg, N.; Trueba, J.B.E.; Bandera, C.F. Empirical evaluation of EnergyPlus infiltration model for a case study in a high-rise residential building. Energy Build. 2023, 296, 113322. [Google Scholar] [CrossRef]
- Poza-Casado, I.; Rodríguez-Del-Tío, P.; Fernández-Temprano, M.; Padilla-Marcos, M.; Meiss, A. An envelope airtightness predictive model for residential buildings in Spain. Build. Environ. 2022, 223, 109435. [Google Scholar] [CrossRef]
- Younes, C.; Shdid, C.A.; Bitsuamlak, G. Air infiltration through building envelopes: A review. J. Build. Phys. 2012, 35, 267–302. [Google Scholar] [CrossRef]
- Sherman, M.H. Estimation of infiltration from leakage and climate indicators. Energy Build. 1987, 10, 81–86. [Google Scholar] [CrossRef]
- Benaddi, F.Z.; Boukhattem, L.; Tabares-Velasco, P.C. Multi-objective optimization of building envelope components based on economic, environmental, and thermal comfort criteria. Energy Build. 2024, 305, 113909. [Google Scholar] [CrossRef]
- Aznar, F.; Echarri, V.; Rizo, C.; Rizo, R. Modelling the Thermal Behaviour of a Building Facade Using Deep Learning. PLoS ONE 2018, 13, e0207616. [Google Scholar] [CrossRef] [PubMed]
- Liu, Z.; Zhou, X.; Tian, W.; Liu, X.; Yan, D. Impacts of uncertainty in building envelope thermal transmittance on heating/cooling demand in the urban context. Energy Build. 2022, 273, 112363. [Google Scholar] [CrossRef]
- ISO 9869-1:2014; Thermal Insulation-Building Elements-In Situ Measurement of Thermal Resistance and Thermal Transmittance. Part 1: Heat Flow Meter Method. ISO: Geneva, Switzerland, 2014. Available online: https://www.iso.org/standard/59697.html (accessed on 13 April 2019).
- Onatayo, D.; Aggarwal, R.; Srinivasan, R.S.; Shah, B. A data-driven approach to thermal transmittance (U-factor) calculation of double-glazed windows with or without inert gases between the panes. Energy Build. 2024, 305, 113907. [Google Scholar] [CrossRef]
- Bucklin, O.; Müller, T.; Amtsberg, F.; Leistner, P.; Menges, A. Analysis of thermal Transmittance, air Permeability, and hygrothermal behavior of a solid timber building envelope. Energy Build. 2023, 299, 113629. [Google Scholar] [CrossRef]
- UNE-EN 15459-1:2017; Energy Performance of Buildings—Economic Evaluation Procedure for Energy Systems in Buildings—Part 1: Calculation Procedures, Module M1-14. CEN. European Committee for Standardization: Brussels, Belgium, 2017. Available online: https://standards.cen.eu/dyn/www/f?p=204:110:0::::FSP_PROJECT,FSP_ORG_ID:40932,6209&cs= 110690DD8F9BE238B61D722D035C11CAE (accessed on 11 June 2019).
- IDAE. Informe de Precios Energéticos Regulados. April 2024. Available online: https://www.idae.es/sites/default/files/estudios_informes_y_estadisticas/Tarifas_Reguladas_abril_2024.pdf (accessed on 7 May 2024).
- Mihai, M.; Tanasiev, V.; Dinca, C.; Badea, A.; Vidu, R. Passive house analysis in terms of energy performance. Energy Build. 2017, 144, 74–86. [Google Scholar] [CrossRef]
- Gainza-Barrencua, J.; Odriozola-Maritorena, M.; Hernandez_Minguillon, R.; Gomez-Arriaran, I. Energy savings using sunspaces to preheat ventilation intake air: Experimental and simulation study. J. Build. Eng. 2021, 40, 102343. [Google Scholar] [CrossRef]
- Echarri-Iribarren, V.; Rizo-Maestre, C.; Sanjuan-Palermo, J.L. Underfloor Heating Using Ceramic Thermal Panels and Solar Thermal Panels in Public Buildings in the Mediterranean: Energy Savings and Healthy Indoor Environment. Appl. Sci. 2019, 9, 2089. [Google Scholar] [CrossRef]
- Dan, D.; Tanasa, C.; Stoian, V.; Brata, S.; Stoian, D.; Nagy Gyorgy, T.; Florut, S.C. Passive house design—An efficient solution for residential buildings in Romania. Energy Sustain. Dev. 2016, 32, 99–109. [Google Scholar] [CrossRef]











| Envelope Air Infiltration | ei | εi | P1 | P2 | P3 | P4 | % Reduction | |
|---|---|---|---|---|---|---|---|---|
| n50 (blower door test) | ACH | 1.05 | 0.95 | 0.75 | 0.59 | 43.81 | ||
| nwinter and nsummer | 0.05 | 1 | ACH | 0.105 | 0.095 | 0.075 | 0.059 | 43.81 |
| Parameter | Material Execution and Sealing Phases | ||||
|---|---|---|---|---|---|
| Phase | P1 | P2 | P3 | P4 | |
| qinf | m3/hm2 | 0.289 | 0.262 | 0.207 | 0.164 |
| Vinf | m3/h | 73.87 | 66.97 | 52.79 | 41.92 |
| Qs | kWh/y | 319.15 | 288.75 | 227.96 | 179.33 |
| Ql | kWh/y | 2632.28 | 2381.58 | 1880.20 | 1479.09 |
| Annual energy demand due to infiltration | kWh/m2y | 6.55 | 5.74 | 4.46 | 3.73 |
| Annual energy demand (expressions (1) to (8)) | kWh/y | 10,203.60 | 9989.37 | 9560.18 | 9191.32 |
| Percentage % | 100.00 | 97.79 | 93.69 | 90.08 | |
| Parameter | P1 | P2 | P3 | P4 | ||
|---|---|---|---|---|---|---|
| Total surface area | 255.62 | m2 | ||||
| Total volume | 703.8 | m3 | ||||
| Envelope airtightness (n50) | ACH | 1.05 | 0.95 | 0.75 | 0.59 | |
| Lighting load | kWh | 1693.14 | 1693.14 | 1693.14 | 1693.14 | |
| Ventilation load (0.63 ACH) | kWh | 982.85 | 984.18 | 985.79 | 988.86 | |
| Envelope infiltration load | kWh | 1632.65 | 1435.93 | 1137.92 | 932.57 | |
| Occupancy load | kWh | 1618.82 | 1616.98 | 1613.21 | 1610.34 | |
| Envelope U load | kWh | 5103.92 | 5111.30 | 5126.22 | 5137.67 | |
| Windows U load | kWh | 2302.07 | 2266.72 | 2315.77 | 2282.63 | |
| Annual energy demand due to infiltration | kWh/m2y | 6.38 | 5.62 | 4.36 | 3.64 | |
| Total winter demand | kWh/y | 5546.4 | 5433.30 | 5221.12 | 5040.88 | |
| Total winter energy demand | kWh/m2y | 21.197 | 20.830 | 20.115 | 19.506 | |
| Total summer demand | kWh/y | 4661.40 | 4555.62 | 4338.97 | 4150.43 | |
| Total summer energy demand | kWh/m2y | 17.739 | 17.404 | 16.665 | 16.016 | |
| Solar gains through the glass in winter | kWh | −2701.90 | −2701.90 | −2701.90 | −2701.90 | |
| Annual energy demand (DesignBuilder) | kWh/y | 9983.60 | 9772.09 | 9401.70 | 9081.41 | |
| Total annual energy demand | kWh/m2y | 28.367 | 27.659 | 26.210 | 24.957 |
| Sealing Type | Cost (EUR/mL) | Measurement (mL) | Total Cost (EUR/m) | P1 (EUR) | P2 (EUR) | P3 (EUR) | P4 (EUR) |
|---|---|---|---|---|---|---|---|
| Hermetic liquid membrane | 44.38 | 192.5 | 8542.80 | 8.542.81 | |||
| Expanding polyurethane foam | 22.75 | 127.8 | 2907.45 | 2049.60 | 563.22 | 294.77 | |
| Plastic adhesive joint tape | 30.59 | 127.8 | 3909.36 | 2189.63 | 657.16 | 901.6 | 160.44 |
| Elastic amorphous seals | 16.59 | 111.7 | 1853.25 | 584.08 | 421.61 | 297.92 | 549.64 |
| Initial investment costs | EUR | 17,193.40 | 13,365.90 | 1641.99 | 1494.29 | 691.18 | |
| Maintenance costs (30 years) | EUR | 2096 | 1437.0 | 325.0 | 237.0 | 97.2 | |
| Overall Cost (Cg) | EUR | 19,289.4 | 14,802.9 | 1966.99 | 1731,29 | 788.38 | |
| Annual energy consumption | kWh/year | 9983.60 | 9772.09 | 9401.70 | 9081.41 | ||
| Annual savings (0.242 EUR/kWh) | EUR | 51.74 | 155.61 | 244.90 | |||
| Amortisation Period | Years | 31.73 | 20.15 | 15.63 |
| PRAGUE | |||||
|---|---|---|---|---|---|
| Parameter | P1 | P2 | P3 | P4 | |
| Overall cost (Cg) 94.1% per capita | EUR | 13,929.5 | 1850.93 | 1629,14 | 741.87 |
| Annual energy demand due to infiltration | kWh/y | −1153.89 | −1045.44 | −587.83 | −651.70 |
| Annual energy demand due to infiltration | kWh/m2y | 13.84 | 12.72 | 10.93 | 8.33 |
| Total winter energy demand | kWh/y | 7035.30 | 6963.39 | 6813.58 | 6707.65 |
| Total winter energy demand | kWh/m2y | 46.43 | 44.99 | 43.27 | 40.82 |
| Total summer energy demand | kWh/y | 913.15 | 924.89 | 941.16 | 962.38 |
| Total summer energy demand | kWh/m2y | 5.555 | 5.430 | 5.339 | 5.270 |
| Total annual energy demand | kWh/y | 13,287.38 | 12,890.15 | 12,425.68 | 10,433.64 |
| Total annual energy demand | kWh/m2y | 51,981 | 50,427 | 48,610 | 46,087 |
| Annual savings (0.3212 EUR/kWh) | EUR | 127.56 | 276.72 | 916.44 | |
| Amortisation Period | Years | 14.51 | 12.58 | 4.61 |
Disclaimer/Publisher’s Note: The statements, opinions and data contained in all publications are solely those of the individual author(s) and contributor(s) and not of MDPI and/or the editor(s). MDPI and/or the editor(s) disclaim responsibility for any injury to people or property resulting from any ideas, methods, instructions or products referred to in the content. |
© 2024 by the authors. Licensee MDPI, Basel, Switzerland. This article is an open access article distributed under the terms and conditions of the Creative Commons Attribution (CC BY) license (https://creativecommons.org/licenses/by/4.0/).
Share and Cite
Echarri-Iribarren, V.; Gómez-Val, R.; Ugalde-Blázquez, I. Energy Losses or Savings Due to Air Infiltration and Envelope Sealing Costs in the Passivhaus Standard: A Review on the Mediterranean Coast. Buildings 2024, 14, 2158. https://doi.org/10.3390/buildings14072158
Echarri-Iribarren V, Gómez-Val R, Ugalde-Blázquez I. Energy Losses or Savings Due to Air Infiltration and Envelope Sealing Costs in the Passivhaus Standard: A Review on the Mediterranean Coast. Buildings. 2024; 14(7):2158. https://doi.org/10.3390/buildings14072158
Chicago/Turabian StyleEcharri-Iribarren, Víctor, Ricardo Gómez-Val, and Iñigo Ugalde-Blázquez. 2024. "Energy Losses or Savings Due to Air Infiltration and Envelope Sealing Costs in the Passivhaus Standard: A Review on the Mediterranean Coast" Buildings 14, no. 7: 2158. https://doi.org/10.3390/buildings14072158
APA StyleEcharri-Iribarren, V., Gómez-Val, R., & Ugalde-Blázquez, I. (2024). Energy Losses or Savings Due to Air Infiltration and Envelope Sealing Costs in the Passivhaus Standard: A Review on the Mediterranean Coast. Buildings, 14(7), 2158. https://doi.org/10.3390/buildings14072158

