Heat Recovery Units in Passivhaus Housing on the Spanish Mediterranean Coast: Energy Efficiency and Return on Investment
Abstract
1. Introduction
1.1. IAQ: Indoor Air Renewal in Buildings
1.2. The PH Standard: Energy Efficiency and IAQ
1.3. Objectives
2. Materials and Methods
2.1. Efficiency of the Heat Recovery System
2.2. Evaluating the Energy Impact of Air Leakage
Application of the Simplified Calculation Model
2.3. Comparative Analysis of Air Renewal–Leakage Results
2.4. Heat Recovery Efficiency and Its Relationship with Air Leakage Value: Return-on-Investment Perspective
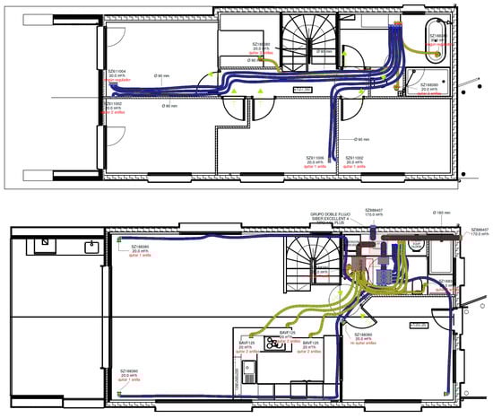
2.5. Case Study Description
3. Results
- P3110E (Comet System) RH relative humidity and air temperature transmitter from Control Temp (temperature range −30 to +80 °C and accuracy ±0.6 °C; RH range 5 to 95%);
- Outdoor temperature sensor: 1-Wire (model Dallas DS18B20) from Loxone (temperature range from −55 to 125 °C and accuracy ±0.5 °C);
- PowerTag Resi9 Universal 1P+N from Schneider Electric. Energy sensor that provides accurate real-time measurements and energy values. Wireless communication of collected data. Energy sensor with Class 1 accuracy according to IEC 61557-12 [75].
4. Discussion
5. Conclusions
6. Future Research
Author Contributions
Funding
Data Availability Statement
Acknowledgments
Conflicts of Interest
References
- European Commission. Energy, Transport and Environment Indicators. Eurostat. 2022. Available online: https://ec.europa.eu/eurostat/statistics-explained/index.php?title=Energy_statistics_-_an_overview (accessed on 18 September 2024).
- European Commission. EPBD. Energy Performance of Buildings Directive 2024 (EU/2024/1275). Available online: https://eur-lex.europa.eu/legal-content/EN/TXT/?uri=OJ:L_202401275&pk_keyword=Energy&pk_content=Directive (accessed on 18 September 2024).
- Yang, L.; Yan, H.; Lam, J.C. Thermal comfort and building energy consumption implications—A review. Appl. Energy 2014, 115, 164–173. [Google Scholar] [CrossRef]
- Jing, G.; Cai, W.; Zhang, X.; Cui, C.; Liu, H.; Wang, C. An energy-saving control strategy for multi-zone demand controlled ventilation system with data-driven model and air balancing control. Energy 2020, 199, 117328. [Google Scholar] [CrossRef]
- International Energy Agency (IEA). Renewables 2020 Analysis and Forecast to 2025. OECD/IEA (2020). Available online: https://iea.blob.core.windows.net/assets/1a24f1fe-c971-4c25-964a-57d0f31eb97b/Renewables_2020-PDF.pdf (accessed on 6 September 2024).
- Sigounis, A.-M.; Vallianos, C.; Athienitis, A. Model Predictive Control of Air-Based Building Integrated PV/T Systems for Optimal HVAC Integration. Renew. Energy 2023, 212, 655–668. [Google Scholar] [CrossRef]
- Tarragona, J.; Gangolells, M.; Casals, M. Model Predictive Control for Managing Indoor Air Quality Levels in Buildings. Energy Rep. 2024, 12, 787–797. [Google Scholar] [CrossRef]
- Dhaundiyal, A.; Bércesi, G.; Tóth, L. Thermal Analysis of the Hybrid HVAC Unit Using Interpolant Function. Energy Rep. 2023, 9, 3943–3955. [Google Scholar] [CrossRef]
- Mihai, M.; Tanasiev, V.; Dinca, C.; Badea, A.; Vidu, R. Passive House Analysis in Terms of Energy Performance. Energy Build. 2017, 144, 74–86. [Google Scholar] [CrossRef]
- Davidsson, H.; Bernardo, R.; Hellström, B. Hybrid Ventilation with Innovative Heat Recovery—A System Analysis. Buildings 2013, 3, 245–257. [Google Scholar] [CrossRef]
- Davidsson, H.; Bernardo, R.; Hellström, B. Theoretical and Experimental Investigation of a Heat Exchanger Suitable for a Hybrid Ventilation System. Buildings 2013, 3, 18–38. [Google Scholar] [CrossRef]
- Luo, D.; Wu, Z.; Jiang, L.; Yan, Y.; Chen, W.-H.; Cao, J.; Cao, B. Realizing Rapid Cooling and Latent Heat Recovery in the Thermoelectric-Based Battery Thermal Management System at High Temperatures. Appl. Energy 2024, 370, 123642. [Google Scholar] [CrossRef]
- Song, G.; Ai, Z.; Liu, Z.; Zhang, G. A Systematic Literature Review on Smart and Personalized Ventilation Using CO₂ Concentration Monitoring and Control. Energy Rep. 2022, 8, 7523–7536. [Google Scholar] [CrossRef]
- Kang, Y.; Wu, J.; Lu, S.; Yang, Y.; Yu, Z.; Zhou, H.; Xie, S.; Fu, Z.; Fan, M.; Xu, X. Comprehensive Carbon Emission and Economic Analysis on Nearly Zero-Energy Buildings in Different Regions of China. Sustainability 2022, 14, 9834. [Google Scholar] [CrossRef]
- Sassi, P. A Natural Ventilation Alternative to the Passivhaus Standard for a Mild Maritime Climate. Buildings 2013, 3, 61–78. [Google Scholar] [CrossRef]
- Wang, Y.; Kuckelkorn, J.; Li, D.; Du, J. Evaluation on Distributed Renewable Energy System Integrated with a Passive House Building Using a New Energy Performance Index. Energy 2018, 161, 81–89. [Google Scholar] [CrossRef]
- Stutterecker, W.; Blümel, E. Energy Plus Standard in Buildings Constructed by Housing Associations? Energy 2012, 48, 56–65. [Google Scholar] [CrossRef]
- Diaz de Garayo, S.; Martínez, A.; Astrain, D. Optimal Combination of an Air-to-Air Thermoelectric Heat Pump with a Heat Recovery System to HVAC a Passive House Dwelling. Appl. Energy 2022, 309, 118443. [Google Scholar] [CrossRef]
- Li, W.; Wang, J.; Shi, W.; Lu, J. High-Efficiency Cooling Solution for Exhaust Air Heat Pump: Modeling and Experimental Validation. Energy 2022, 254 Pt B, 124396. [Google Scholar] [CrossRef]
- Rödder, M.; Frank, L.; Kirschner, D.; Neef, M.; Adam, M. EnergiBUS4home—Sustainable Energy Resourcing in Low-Energy Buildings. Energy 2018, 159, 638–647. [Google Scholar] [CrossRef]
- Yang, S.-K.; Kang, Y.-H.; Ahn, Y.-C. Achieving Energy Self-Sufficiency in a Dormitory Building: An Experimental Analysis of a PV–AWHP-ERV Integrated System. Buildings 2024, 14, 882. [Google Scholar] [CrossRef]
- Kostyák, A.; Szekeres, S.; Csáky, I. Investigation of Sensible Cooling Performance in the Case of an Air Handling Unit System with Indirect Evaporative Cooling: Indirect Evaporative Cooling Effects for the Additional Cooling System of Buildings. Buildings 2023, 13, 1800. [Google Scholar] [CrossRef]
- Kepleis, N.; Nelson, W.; Ott, W.; Robinson, J.P.; Tsang, A.M.; Switzer, P.; Behar, J.V.; Hern, S.C.; Engelmann, W.H. The National Human Activity Pattern Survey (NHAPS): A resource for assessing exposure to environmental pollutants. J. Expo. Sci. Environ. Epidemiol. 2001, 11, 231–252. [Google Scholar]
- Lewis, A.C.; Jenkins, D.; Whitty, C.J.M. Indoor air pollution: Five ways to fight the hidden harms. Nature 2023, 614, 220–223. [Google Scholar] [CrossRef]
- Kelly, F.J.; Fussell, J.C. Air pollution and public health: Emerging hazards and improved understanding of risk. Environ. Geochem. Health 2015, 37, 631–649. [Google Scholar] [CrossRef] [PubMed]
- Ghaffarianhoseini, A.; AlWaer, H.; Omrany, H.; Ghaffarianhoseini, A.; Alalouch, C.; Clements-Croome, D.; Tookey, J. Sick building syndrome: Are we doing enough? Archit. Sci. Rev. 2018, 61, 99–121. [Google Scholar] [CrossRef]
- Zhang, M.; He, Y.; Huang, L.; Xiong, R.; Zhang, Y. Built-In Environmental Construction Mechanism and Sustainable Renewal Strategies of Traditional Qiang Dwellings in Western China. Sustainability 2024, 16, 7122. [Google Scholar] [CrossRef]
- Meiss, A.; Feijó, J. Effect of Openings Location on the Ventilation Efficiency in Dwellings. Inf. Constr. 2011, 63, 53–60. [Google Scholar] [CrossRef]
- Kumar, P.; Singh, A.B.; Arora, T.; Singh, S.; Singh, R. Critical review on emerging health effects associated with the indoor air quality and its sustainable management 2023. Sci. Total Environ. 2023, 872, 162163. [Google Scholar] [CrossRef] [PubMed]
- World Health Organization (WHO). Regional Office of Europe: Noncommunicable Diseases and Air Pollution. April 2019. Available online: https://iris.who.int/bitstream/handle/10665/346416/WHO-EURO-2019-3641-43400-60937-eng.pdf (accessed on 18 September 2024).
- World Health Organization (WHO). WHO Global Air Quality Guidelines: Particulate Matter (PM2.5 and PM10), Ozone, Nitrogen Dioxide, Sulfur Dioxide and Carbon Monoxide. 2021. Available online: https://www.who.int/publications/i/item/9789240034228 (accessed on 10 August 2024).
- Conceição, E.; Gomes, J.; Awbi, H. Influence of the Airflow in a Solar Passive Building on the Indoor Air Quality and Thermal Comfort Levels. Atmosphere 2019, 10, 766. [Google Scholar] [CrossRef]
- Monge-Barrio, A.; Bes-Rastrollo, M.; Dorregaray-Oyaregui, S.; González-Martínez, P.; Martin-Calvo, N.; López-Hernández, D.; Arriazu-Ramos, A.; Sánchez-Ostiz, A. Encouraging Natural Ventilation to Improve Indoor Environmental Conditions at Schools: Case Studies in the North of Spain before and during COVID. Energy Build. 2022, 254, 111567. [Google Scholar] [CrossRef]
- Sharpe, T.; Shearer, D. Scenario Testing of the Energy and Environmental Performance of “The Glasgow House”. Buildings 2014, 4, 580–604. [Google Scholar] [CrossRef]
- Otaegi, J.; Hernández, R.J.; Oregi, X.; Martín-Garín, A.; Rodríguez-Vidal, I. Comparative Analysis of the Effect of the Evolution of Energy Saving Regulations on the Indoor Summer Comfort of Five Homes on the Coast of the Basque Country. Buildings 2022, 12, 1047. [Google Scholar] [CrossRef]
- Santiago, Y.C.; Busanello, D.; Santos, A.F.; Venturini, O.J.; Sphaier, L.A. The Impact of Air Renewal with Heat-Recovery Technologies on Energy Consumption for Different Types of Environments in Brazilian Buildings. Energies 2024, 17, 4065. [Google Scholar] [CrossRef]
- Cho, W.; Heo, J.; Park, M.H.; Seo, H.J.; Lee, K.; Lee, D.G.; Kim, Y. Energy Performance and Thermal Comfort of Integrated Energy Recovery Ventilator System with Air-Conditioner for Passive Buildings. Energy Build. 2023, 295, 113302. [Google Scholar] [CrossRef]
- Picallo-Perez, A.; Sala-Lizarraga, J.M.; Odriozola-Maritorena, M.; Hidalgo-Betanzos, J.M.; Gomez-Arriaran, I. Ventilation of Buildings with Heat Recovery Systems: Thorough Energy and Exergy Analysis for Indoor Thermal Wellness. J. Build. Eng. 2021, 39, 102255. [Google Scholar] [CrossRef]
- Chen, Y.; Lee, H.; Ozaki, A.; Choi, Y.; Arima, Y. Experimental and Numerical Investigation of Integrating Energy Recovery Ventilation into a Thermodynamic-Potential-Based Passive Dehumidification System Using Renewable Energy. Energy 2024, 289, 129888. [Google Scholar] [CrossRef]
- Chen, Y.; Ozaki, A.; Lee, H. Energy Saving Potential of Passive Dehumidification System Combined with Energy Recovery Ventilation Using Renewable Energy. Energy Build. 2022, 268, 112170. [Google Scholar] [CrossRef]
- Magrini, A.; Marenco, L.; Bodrato, A. Energy Smart Management and Performance Monitoring of a NZEB: Analysis of an Application. Energy Rep. 2022, 8, 8896–8906. [Google Scholar] [CrossRef]
- Rohács, D. Analysis and Optimization of Potential Energy Sources for Residential Building Application. Energy 2023, 275, 127508. [Google Scholar] [CrossRef]
- Karaiskos, P.; Martinez-Molina, A.; Alamaniotis, M. Examining the Impact of Natural Ventilation versus Heat Recovery Ventilation Systems on Indoor Air Quality: A Tiny House Case Study. Buildings 2024, 14, 1802. [Google Scholar] [CrossRef]
- Foster, J.; Sharpe, T.; Poston, A.; Morgan, C.; Musau, F. Scottish Passive House: Insights into Environmental Conditions in Monitored Passive Houses. Sustainability 2016, 8, 412. [Google Scholar] [CrossRef]
- Stabile, L.; Massimo, A.; Canale, L.; Russi, A.; Andrade, A.; Dell’Isola, M. The Effect of Ventilation Strategies on Indoor Air Quality and Energy Consumptions in Classrooms. Buildings 2019, 9, 110. [Google Scholar] [CrossRef]
- Tafelmeier, S.; Pernigotto, G.; Gasparella, A. Annual Performance of Sensible and Total Heat Recovery in Ventilation Systems: Humidity Control Constraints for European Climates. Buildings 2017, 7, 28. [Google Scholar] [CrossRef]
- Huang, K.; Xu, J.; Guan, J.; Feng, G.; Liu, X. Optimization of a collector-storage solar air heating system for building heat recovery ventilation preheating in the cold area. Energy Build. 2023, 284, 112875. [Google Scholar] [CrossRef]
- Gainza-Barrencua, J.; Odriozola-Maritorena, M.; Hernandez_Minguillon, R.; Gomez-Arriaran, I. Energy savings using sunspaces to preheat ventilation intake air: Experimental and simulation study. J. Build. Eng. 2021, 40, 102343. [Google Scholar]
- Zhang, Y.; Liu, Z.; Wu, Z.; Zhang, L.; Luo, Y. Numerical evaluation on energy saving potential of the photovoltaic fresh air preheating system in different climate regions of China 2019. Appl. Therm. Eng. 2019, 154, 407–418. [Google Scholar]
- Heo, J.; Cho, W.; Han, C.; Kim, J.; Kim, Y. Multi-Objective Optimization and Performance Evaluation of an Integrated Dedicated Outdoor Air System with Sensible Cooling Unit for Passive Houses. Energy Build. 2023, 297, 113494. [Google Scholar]
- Cho, H.-J.; Cheon, S.-Y.; Jeong, J.-W. Energy Saving Potential of Latent Heat Exchanger-Integrated Dual Core Energy Recovery Ventilator. Appl. Therm. Eng. 2023, 231, 120989. [Google Scholar]
- Nie, J.; Yuan, S.; Fang, L.; Zhang, Q.; Li, D. Experimental Study on an Innovative Enthalpy Recovery Technology Based on Indirect Flash Evaporative Cooling. Appl. Therm. Eng. 2018, 129, 22–30. [Google Scholar]
- Vettorazzi, E.; Figueiredo, A.; Rebelo, F.; Vicente, R.; Grala da Cunha, E. Optimization of the Passive House Concept for Residential Buildings in the South-Brazilian Region. Energy Build. 2021, 240, 110871. [Google Scholar] [CrossRef]
- Guillén-Lambea, S.; Rodríguez-Soria, B.; Marín, J.M. Evaluation of the potential energy recovery for ventilation air in dwellings in the South of Europe. Energy Build. 2016, 128, 114367321. [Google Scholar] [CrossRef]
- Echarri-Iribarren, V.; Sotos-Solano, C.; Espinosa-Fernández, A.; Prado-Govea, R. The Passivhaus Standard in the Spanish Mediterranean: Evaluation of a House’s Thermal Behaviour of Enclosures and Airtightness. Sustainability 2019, 11, 3732. [Google Scholar] [CrossRef]
- Wang, Y.; Shi, S.; Zhou, Z.; Guo, S.; Zhao, B. Air infiltration rate distribution across Chinese five climate zones: A modelling study for rural residences. Build. Environ. 2024, 252, 111284. [Google Scholar] [CrossRef]
- Echarri, V.; Espinosa, A.; Rizo, C. Thermal Transmission through Existing Building Enclosures: Destructive Monitoring in Intermediate Layers versus Non-Destructive Monitoring with Sensors on Surfaces. Sensors 2017, 17, 2848. [Google Scholar] [CrossRef]
- Feijó-Muñoz, J.; Pardal, C.; Echarri, V.; Fernández-Agüera, J.; Assiego de Larriva, R.; Montesdeoca Calderín, M.; Poza-Casado, I.; Padilla-Marcos, M.A.; Meiss, A. Energy impact of the air infiltration in residential buildings in the Mediterranean area of Spain and the Canary Islands. Energy Build. 2019, 188–189, 226–238. [Google Scholar] [CrossRef]
- Liu, P.; Alonso, M.J.; Mathisen, H.M.; Simonson, C. Performance of a quasi-counter-flow air-to-air membrane energy exchanger in cold climates. Energy Build. 2016, 119, 129–142. [Google Scholar] [CrossRef]
- Anisimov, S.; Jedlikowski, A.; Pandelidis, D. Frost formation in the cross-flow plate heat exchanger for energy recovery. Int. J. Heat Mass Transf. 2015, 90, 201–217. [Google Scholar] [CrossRef]
- Drost, M.K. Air-to-air heat exchanger performance. Energy Build 1993, 19, 215–220. [Google Scholar] [CrossRef]
- Xu, C.W.; Nielsen, P.V.; Liu, L.; Jensen, R.L.; Gong, G. Impacts of airflow interactions with thermal boundary layer on performance of personalized ventilation. Build. Environ. 2018, 135, 31–41. [Google Scholar] [CrossRef]
- Porsani, G.B.; Casquero-Modrego, N.; Trueba, J.B.E.; Bandera, C.F. Empirical evaluation of EnergyPlus infiltration model for a case study in a high-rise residential building. Energy Build. 2023, 296, 113322. [Google Scholar] [CrossRef]
- Poza-Casado, I.; Rodríguez-del-Tío, P.; Fernández-Temprano, M.; Padilla-Marcos, M.A.; Meiss, A. An envelope airtightness predictive model for residential buildings in Spain. Build. Environ. 2022, 223, 109435. [Google Scholar] [CrossRef]
- European Standard EN 13829:2001; Thermal performance of buildings - Determination of air permeability of buildings - Fan pressurization method (ISO 9972:1995. Effective Date 16-Sep-2015). Available online: https://standards.iteh.ai/catalog/standards/cen/8ca8e93a-d930-4970-a3bf-8ece75db83f4/en-13829-2000 html (accessed on 23 June 2024).
- UNE-EN-ISO 13790:2011; Eficiencia Energética de Los Edificios. Cálculo Del Consumo de Energía para Calefacción y Refrigeración de Espacios. (ISO 13790:2008). AENOR: Madrid, Spain. Available online: https://www.iso.org/standard/65696.html (accessed on 28 June 2024).
- Orden FOM/1635/2013, de 10 de Septiembre, por la que se Actualiza el Documento Básico DB-HE Ahorro de Energía, del Código Técnico de la Edificación, Aprobado por Real Decreto 314/2006, de 17 de Marzo; (Publicado en: «BOE» núm. 219, de 12 de septiembre de 2013, páginas 67137–67209); Spanish Ministry of Public Works and Transport: Madrid, Spain, 2013. (In Spanish)
- Younes, C.; Shdid, C.A.; Bitsuamlak, G. Air infiltration through building envelopes: A review. J. Build. Phys. 2012, 35, 267–302. [Google Scholar] [CrossRef]
- Echarri-Iribarren, V. Conditioning using ceramic floor panels with capillary tube mats and solar thermal panels on the Mediterranean coast: Energy savings and investment amortisation. Energy Build. 2019, 202, 109334. [Google Scholar] [CrossRef]
- UNE-EN 15459-1:2017; Energy Performance of Buildings—Economic Evaluation Procedure for Energy Systems in Buildings—Part 1: Calculation Procedures, Module M1-14. CEN. European Committee for Standardization: Brussels, Belgium, 2017. Available online: https://standards.cen.eu/dyn/www/f?p=204:110:0::::FSP_PROJECT,FSP_ORG_ID:40932,6209&cs=110690DD8F9BE238B61D722D035C11CAE (accessed on 11 June 2019).
- Institute for Energy Diversification and Saving. IDAE. Informe de Precios Energéticos Regulados. April 2024. Available online: https://www.idae.es/sites/default/files/estudios_informes_y_estadisticas/Tarifas_Reguladas_abril_2024.pdf (accessed on 27 August 2024).
- Technical Building Code CTE. Basic Document on Energy Savings DB-HE; Spanish Ministry of Housing: Madrid, Spain, 2006; Available online: https://www.codigotecnico.org/DocumentosCTE/AhorroEnergia.html (accessed on 5 June 2024). (In Spanish)
- Norma UNE EN 12273; Slurry Surfacing—Requirements Slurry Surfacing—Requirements. Comité Técnico AEN/CTN 41. AENOR; AENOR: Madrid, Spain, May 2009. Available online: https://www.une.org/encuentra-tu-norma/busca-tu-norma/norma?c=N0043035 (accessed on 18 September 2024).
- Ministerio de Vivienda y Agencia Urbana. Real CTE. Documento Básico HS3. Salubridad. Calidad del Aire Interior. Decreto 450/2022, de 14 de Junio (BOE 15/06/2022). Available online: https://www.codigotecnico.org/DocumentosCTE/Salubridad.html (accessed on 5 June 2024).
- UNE-EN IEC 61557-12:2022/A1:2022; Electrical Safety in Low Voltage Distribution Systems Up to 1 000 V AC and 1 500 V DC - Equipment for Testing, Measuring or Monitoring of Protective Measures - Part 12: Power Metering and Monitoring Devices (PMD) (February of 2022). Available online: https://www.une.org/encuentra-tu-norma/busca-tu-norma/norma?c=N0068056 (accessed on 15 June 2024).
- Echarri-Iribarren, V.; Gómez-Val, R.; Ugalde-Blázquez, I. Energy Losses or Savings Due to Air Infiltration and Envelope Sealing Costs in the Passivhaus Standard: A Review on the Mediterranean Coast. Buildings 2024, 14, 2158. [Google Scholar] [CrossRef]
- Bienvenido-Huertas, D.; Fernández Quiñones, J.A.; Moyano, J.; Rodríguez-Jiménez, C.E. Patents Analysis of Thermal Bridges in Slab Fronts and Their Efect on Energy Demand. Energies 2018, 11, 2222. [Google Scholar] [CrossRef]
- Ghida, D.B. Heat Recovery Ventilation for Energy-Efficient Buildings: Design, Operation and Maintenance. Int. J. Innov. Technol. Explor. Eng. 2019, 9, 3713–3715. [Google Scholar]
- Choi, Y.-H.; Song, D.; Seo, D.; Kim, J. Analysis of the variable heat exchange efficiency of heat recovery ventilators and the associated heating energy demand. Energy Build. 2018, 172, 101016. [Google Scholar] [CrossRef]










| Floor | Space | Usable Area m2 | Volume m3 |
|---|---|---|---|
| Ground floor | Bedroom 1 | 11.41 | 28.04 |
| Walk-in closet | 4.29 | 10.94 | |
| Bedroom 2 | 12.34 | 32.52 | |
| Bedroom 3 | 10.78 | 27.49 | |
| Corridor | 5.61 | 13.90 | |
| Staircase | 1.27 | 24.35 | |
| Bathroom 2 | 11.24 | 25.60 | |
| Bedroom 4 | 11.41 | 29.10 | |
| First floor | Office | 15.37 | 54.00 |
| Bathroom 1 and facility rooms | 8.96 | 28.01 | |
| Living room–dining room–kitchen/office | 49.75 | 173.06 | |
| TOTAL | 142.43 | 447.01 |
| qv (L/s) | qv (m3/h) | |
|---|---|---|
| Master bedroom | 8 | 28.8 |
| Bedroom 1 | 4 | 14.4 |
| Living room (for max. 3 bedrooms) | 10 | 36 |
| Bathrooms and kitchen (for max. 3 bedrooms) | 33 | 118.8 |
| TOTAL | 55 | 198 |
| qv (L/s) | qv (m3/h) | |
|---|---|---|
| Master bedroom | 8 | 28.8 |
| Bedroom 1 | 4 | 14.4 |
| Bedroom 2 | 4 | 14.4 |
| Bedroom 3 | 4 | 14.4 |
| Living room 1 (for max. 3 bedrooms) | 10 | 36 |
| Living room 2 (for max. 3 bedrooms) | 10 | 36 |
| Bathrooms and kitchen (for max. 3 bedrooms) | 33 | 118.8 |
| TOTAL | 73 | 262.8 |
| SCo | SC1 | SC2 | SC3 | |
|---|---|---|---|---|
| qv (m3/h) | 144 | 198 | 262.8 | 320.9 |
| qv (ACH) | 0.322 | 0.443 | 0.588 | 0.718 |
| winter (kWh/m2y) | 3.34 | 4.59 | 6.09 | 8.59 |
| winter (kWh/m2y) | −1.01 | −1.38 | −1.83 | −2.23 |
| summer (kWh/m2y) | 1.44 | 2.12 | 2.82 | 3.44 |
| summer (kWh/m2y) | 4.67 | 6.33 | 8.40 | 10.26 |
| (kWh/m2y) | 9.55 | 13.04 | 17.31 | 20.05 |
| qv (m3/h) | qv (ACH) | (W) | (W) | (kWh/y) | ηt | Energy Consumption kWh/y | % Saving | |
|---|---|---|---|---|---|---|---|---|
| Sco | 144 | 0.322 | 4.88 | 4.67 | 1360.20 | 0.92 | 774.36 | 43.07% |
| SC1 | 198 | 0.443 | 6.71 | 6.33 | 1857.31 | 0.93 | 1042.69 | 43.86% |
| SC2 | 262.8 | 0.588 | 8.91 | 8.40 | 2465.46 | 0.94 | 1380.66 | 44.35% |
| n50 ACH | ei Wind Protection Coefficient | εi Height Correction Factor | nwinter qv (ACH) | Percentage % | nsummer qv (ACH) | Percentage % | |
|---|---|---|---|---|---|---|---|
| I1 | 0.32 | 0.06–0.08 | 1.1 | 0.056 | 15.4% | 0.071 | 17.6% |
| I2 | 0.54 | 0.06–0.08 | 1.1 | 0.095 | 15.4% | 0.119 | 17.6% |
| I3 | 0.60 | 0.06–0.08 | 1.1 | 0.106 | 15.4% | 0.133 | 17.6% |
| I4 | 0.718 | 0.06–0.08 | 1.1 | 0.126 | 15.4% | 0.159 | 17.6% |
| n50 ACH | nwinter qv (ACH) | nsummer qv (ACH) | Sensitive Summer Demand kWh/m2y | Summer Latent Demand kWh/m2y | Sensitive Winter Demand kWh/m2y | Latent Winter Demand kWh/m2y | Annual Energy Demand kWh/m2y | Cost/Year EUR | |
|---|---|---|---|---|---|---|---|---|---|
| I1 | 0.32 | 0.056 | 0.071 | 0.135 | 0.804 | 0.584 | −0.174 | 1.348 kWh/m2y | 48.002 EUR |
| I2 | 0.54 | 0.095 | 0.119 | 0.227 | 1.356 | 0.985 | −0.296 | 2.276 kWh/m2y | 81.014 EUR |
| I3 | 0.60 | 0.106 | 0.133 | 0.253 | 1.508 | 1.094 | −0.327 | 2.527 kWh/m2y | 90.103 EUR |
| I4 | 0.718 | 0.126 | 0.159 | 0.302 | 1.806 | 1.309 | −0.398 | 3.025 kWh/m2y | 107.703 EUR |
| qv (ACH) | qv (m3/h) | Sensible Summer Demand | Summer Latent Demand | Sensitive Winter Demand | Annual Energy Demand kWh/m2y | Cost/Year EUR | % | |
|---|---|---|---|---|---|---|---|---|
| SCo | 0.322 | 144 | 1.44 | 4.67 | 3.34 | 8.55 kWh/m2y | 304.44 EUR | 49.39% |
| SC1 | 0.443 | 198 | 2.12 | 6.33 | 4.59 | 13.04 kWh/m2y | 464.32 EUR | 75.33% |
| SC2 | 0.588 | 262.8 | 2.82 | 8.40 | 6.09 | 17.31 kWh/m2y | 616.37 EUR | 100% |
| I1 | 0.056–0.071 | 37.6 | 0.135 | 0.804 | 0.584 | 1.348 kWh/m2y | 48.01 EUR | 7.79% |
| I2 | 0.095–0.119 | 63.7 | 0.227 | 1.356 | 0.985 | 2.276 kWh/m2y | 81.02 EUR | 13.14% |
| qv (m3/h) | qv (ACH) | (W) | (W) | (kWh/y) | Annual Energy Demand kWh/m2y | Cost/Year EUR | Energy Savings kWh/y | Annual Savings with Heat Recovery | |
|---|---|---|---|---|---|---|---|---|---|
| SC2 | 262.8 | 0.588 | 8.91 | 8.40 | 2465.46 | 17.31 kWh/m2y | 616.37 EUR | 1271.90 | 317.98 EUR |
| Savings/Year Electricity EUR | Heat Recovery Model | Max Air Flow (m3/h) | Thermal Performance (%) | Thermal Performance (%) Q = 192.5 m3/h | Power Consumption (W) | Maintenance Costs EUR/y | Energy Cost for Ventilators EUR/y |
|---|---|---|---|---|---|---|---|
| 334.72 EUR | Siber DF EVO 2 SIBER ZONE. Barcelona, Spain. | 200 | 95 | 94 | 48 W 24 W × 2 | 34.12 | 58.42 |
| 334.72 EUR | Daikin-energy-premium-400-1. DAIKIN INDUSTRIES, LTD. Osaka, Japan. | 400 | 88 | 83 | 60 W 30 W × 2 | 37.38 | 73.95 |
| 334.72 EUR | Daikin-Energy Com 325 Recovery. DAIKIN INDUSTRIES, LTD. Osaka, Japan. | 325 | 89 | 91 | 52 W 24 W × 2 | 32.82 | 72.76 |
| 334.72 EUR | VMC DOUBLE F. NEMBUS210 EC 5153120200. ALDES. Vénissieux, France. | 140 | 92 | 89 | 40 W 20 W × 2 | 25.54 | 55.97 |
| 334.72 EUR | Sodeca-reb-40. SODECA. Sant Quirze de Besora, Barcelona, Spain. | 400 | 82 | 80 | 48 W 24 W × 2 | 22.07 | 67.76 |
| 334.72 EUR | Ducobox-energy-400. DUCO VENTILATION & SUN CONTROL. Veurne, Belgium. | 400 | 96 | 93 | 40 W 20 W × 2 | 28.78 | 54.87 |
| Heat Recovery Model | Characteristics | Cost EUR | Annual Energy Savings EUR/y | Payback Years |
|---|---|---|---|---|
| Siber DF EVO 2 | Passivhaus Institute Certificate | 2540 EUR | 317.98 − 58.42 − 34.12 = 225.44 | 11.27 y |
| Daikin-energy-premium-400-1 | Ultra-high-efficiency EC ventilators | 3311 EUR | 295.77 − 73.95 − 37.38 = 184.44 | 17.95 y |
| Daikin-Energy Comfort 325 Heat Recovery | Low power consumption thanks to its ventilators High-efficiency EC | 2590 EUR | 307.83 − 72.76 − 32.82 = 202.25 | 12.80 y |
| VMC DOBLE FLUJO NEMBUS210 EC 5153120200 | Centrifugal ventilators at constant speed | 2390 EUR | 335.84 − 55.97 − 25.54 = 254.33 | 9.38 y |
| Sodeca-reb-40 | Energy-efficient three-speed EC ventilators | 2123 EUR | 290,53 − 67.76 − 22.07 = 200.70 | 10.58 y |
| Ducobox-energy-400 | Cos φ according to EPN standard = 0.54 | 3095 EUR | 314.60 − 54.87 − 28.78 = 230.95 | 13.40 y |
| qv (m3/h) | qv (ACH) | (W) | (W) | (kWh/y) | Annual Energy Demand kWh/m2y | Cost/Year EUR | Heat Recovery Model | Annual Savings with Heat Recovery | Payback Years | |
|---|---|---|---|---|---|---|---|---|---|---|
| SC2 Abrera | 262.8 | 0.588 | 8.91 | 8.40 | 2465.46 | 17.31 kWh/m2y | 616.37 EUR | NEMBUS210 Daikin-400-1 | 254.33 EUR 184.44 EUR | 9.4–17.9 y |
| SC2 Berlin | 262.8 | 0.588 | 32.05 | 1.75 | 4814.13 | 33.80 kWh/m2y | 1096.69 EUR | NEMBUS210 Daikin-400-1 | 934.82 EUR 904.99 EUR | 2.47–3.66 y |
Disclaimer/Publisher’s Note: The statements, opinions and data contained in all publications are solely those of the individual author(s) and contributor(s) and not of MDPI and/or the editor(s). MDPI and/or the editor(s) disclaim responsibility for any injury to people or property resulting from any ideas, methods, instructions or products referred to in the content. |
© 2024 by the authors. Licensee MDPI, Basel, Switzerland. This article is an open access article distributed under the terms and conditions of the Creative Commons Attribution (CC BY) license (https://creativecommons.org/licenses/by/4.0/).
Share and Cite
Echarri-Iribarren, V.; Roviras-Miñana, J.; Gómez-Val, R. Heat Recovery Units in Passivhaus Housing on the Spanish Mediterranean Coast: Energy Efficiency and Return on Investment. Buildings 2024, 14, 3975. https://doi.org/10.3390/buildings14123975
Echarri-Iribarren V, Roviras-Miñana J, Gómez-Val R. Heat Recovery Units in Passivhaus Housing on the Spanish Mediterranean Coast: Energy Efficiency and Return on Investment. Buildings. 2024; 14(12):3975. https://doi.org/10.3390/buildings14123975
Chicago/Turabian StyleEcharri-Iribarren, Víctor, Jordi Roviras-Miñana, and Ricardo Gómez-Val. 2024. "Heat Recovery Units in Passivhaus Housing on the Spanish Mediterranean Coast: Energy Efficiency and Return on Investment" Buildings 14, no. 12: 3975. https://doi.org/10.3390/buildings14123975
APA StyleEcharri-Iribarren, V., Roviras-Miñana, J., & Gómez-Val, R. (2024). Heat Recovery Units in Passivhaus Housing on the Spanish Mediterranean Coast: Energy Efficiency and Return on Investment. Buildings, 14(12), 3975. https://doi.org/10.3390/buildings14123975

