Calculation of Characteristic Point Parameters for Restoring Model of Corroded Short-Pier RC Shear Walls
Abstract
1. Introduction
2. Skeleton Curves of Corroded RC Shear Walls Test
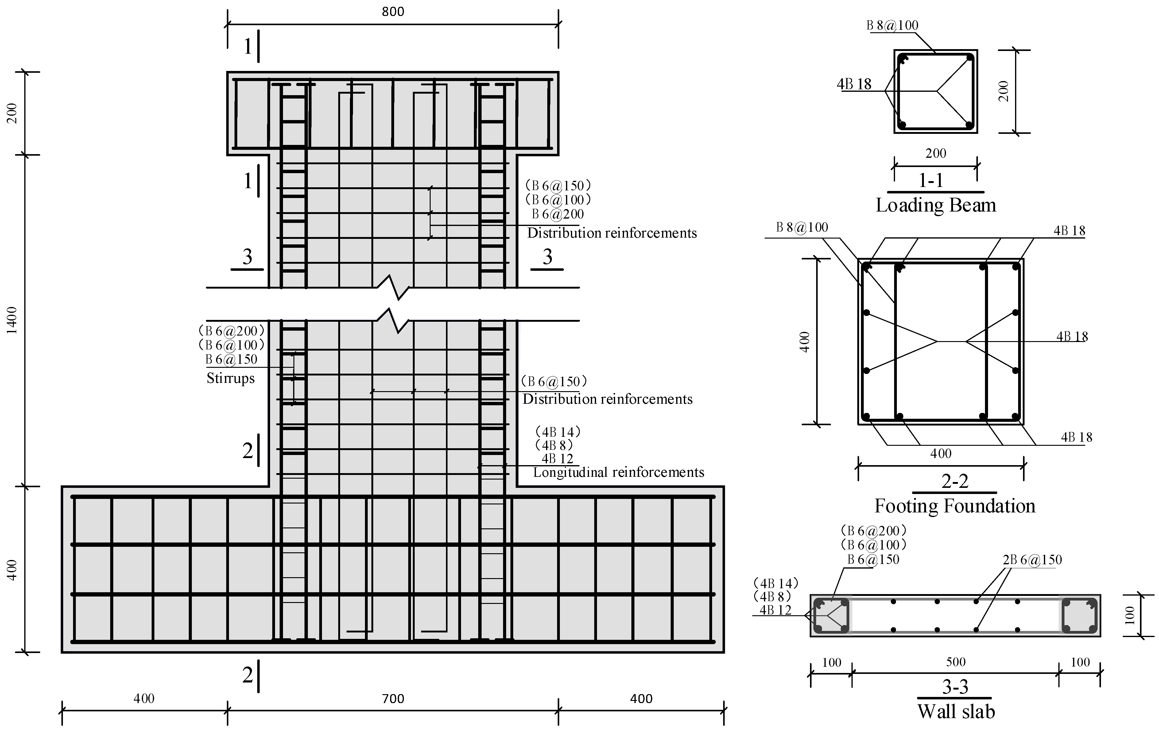
2.1. Test Description
2.2. Corrosion Phenomenon
- (1)
- Rust expansion crack width
- (2)
- Corrosion rate of reinforcement
2.3. Discussion of Skeleton Curves
- (1)
- With the increase in the width of the rust expansion crack, the longitudinal reinforcement and distribution reinforcement of the specimen were corroded more and more seriously, the bearing capacity of the specimen decreased continuously, and the deformation capacity became worse, but it still had high bearing capacity and deformation capacity. The main reason for this was that the rust expansion crack mainly caused the cracking of the protective layer of the concealed column along the longitudinal reinforcement of the specimen, and the impact of corrosion and protective layer cracking on the bearing and deformation capacity was limited. This was consistent with the references [2] described, as shown in Figure 4a;
- (2)
- With a decrease in the spacing of the transverse distribution bars, the bearing capacity of the corroded specimens did not increase significantly, which mainly improved the deformation capacity of the specimens. The main reason for this was that reducing the spacing of the distribution bars improved the shear capacity of the corroded specimens and gradually changed the specimens from demonstrating bending shear failure to demonstrating bending failure, which was consistent with the references [8] described, as shown in Figure 4b;
- (3)
- With an increase in the longitudinal bar diameter of the concealed column, the bearing capacity of the corroded specimen increased significantly, but this had little effect on the deformation capacity of the specimen, mainly because the final failure of the corroded specimen changed from bending failure to bending shear failure. However, due to the small diameter of the longitudinal bars in specimen SW-9, the deformation capacity of the bending failure was limited, so the deformation capacities of each specimen were relatively similar, as shown in Figure 4c;
- (4)
- With a decrease in the stirrup spacing of the concealed column, the deformation capacity of the corroded specimen increased significantly, but this had little impact on the bearing capacity. The main reason for this was that the decrease in the stirrup spacing of the concealed column increased the restraint capacity of the edge members, which prevented the premature compression buckling of the longitudinal reinforcement and improved the deformation capacity of the corroded specimen, as shown in Figure 4d;
- (5)
- With an increase in the test axial compression ratio, the bearing capacity of the corroded specimen increased more, but the deformation capacity of corroded specimens shown a trend of first increasing and then decreasing. This was mainly due to the significant second-order effect of the specimen, caused by the increase in the axial compression ratio. Due to the second-order effect, the additional bending moment of the specimen increased. Thus, the rapid decline of the bearing capacity and the sudden failure of the specimen occurred, as shown in Figure 4e.
2.4. The Load and Displacement of Characteristic Point
3. Calculation of Characteristic Point Parameters for Intact RC Shear Wall
3.1. Calculation of Cracking Load and Displacement
3.2. Calculation of Yield Load and Displacement
3.3. Calculation of Peak Load and Displacement
3.4. Calculation of Ultimate Load and Displacement
4. Calculation of Characteristic Point Parameters for Corroded RC Shear Wall
4.1. Calculation of the Characteristic Point Load
- (1)
- Yield point:
- (2)
- Peak point:
4.2. Calculation of Characteristic Point Displacement
- (1)
- Yield point:
- (2)
- Peak point:
- (3)
- Limit point:
5. Conclusions
- (1)
- The corrosion had a great influence on the skeleton curve of the RC shear walls. With an increase in the corrosion degree, the bearing capacity of the specimen decreased, and the deformation capacity worsened. The reduction in the transverse distributed reinforcement and the stirrup spacing of the embedded column had little effect on the bearing capacity of the corroded specimens. However, the bearing capacity of the corroded specimens decreased significantly with a decrease in the diameter of the embedded column’s longitudinal reinforcement. With an increase in axial compression ratio, the bearing capacity of the corroded specimens increased. On the contrary, the deformation decreased.
- (2)
- The calculation formula for the characteristic point parameters of the intact RC shear walls was analyzed based on the existing literature, and the calculation formula with the best accuracy was selected as the calculation formula for characteristic point parameters for the intact RC shear walls.
- (3)
- Considering the influence of corrosion on the seismic performance for the test specimens, the characteristic-point reduction coefficient functions, taking into account axial compression ratio, longitudinal reinforcement ratio, and reinforcement corrosion rate, were obtained by fitting. Combined with the calculation formulas of the characteristic points for the intact RC shear walls, the calculation formulas of the characteristic points for the corroded RC shear wall were finally determined. Compared with the test results, it was found that the proposed formula demonstrated good accuracy.
Author Contributions
Funding
Data Availability Statement
Acknowledgments
Conflicts of Interest
References
- Verstrynge, E.; Van Steen, C.; Vandecruys, E.; Wevers, M. Steel corrosion damage monitoring in reinforced concrete structures with the acoustic emission technique: A review. Constr. Build. Mater. 2022, 349, 128732. [Google Scholar] [CrossRef]
- Zhou, Y.; Zheng, S.; Chen, L.; Long, L.; Dong, L.; Zheng, J. Experimental and analytical investigations into the seismic behavior and resistance of corroded reinforced concrete walls. Eng. Struct. 2021, 238, 112154. [Google Scholar] [CrossRef]
- Mahadik, S.; Bhagat, S.R. Experimental and numerical study of behavior of RC shear wall using concealed stiffeners. Jordan J. Civ. Eng. 2022, 16, 193–210. [Google Scholar] [CrossRef]
- Mahadik, S.; Bhagat, S.R.; Gunaware, P.D.; Patil, V.N. Experimental and numerical study of the behavior of RC shear wall with opening using concealed stiffeners. Jordan J. Civ. Eng. 2023, 17, 203–218. [Google Scholar] [CrossRef]
- Yamakawa, T.; Iraha, S.; Tamaki, Y.; Matsunaga, T.; Biwada, A. An experimental study on damage affecting aseismatic behavior of structural walls under chloride attack environment in the semitropical region. Univ. Ryukyus Repos. 1993, 46, 115–130. [Google Scholar]
- Zhuang, Y. Life-Cycle Seismic Performance Evaluation for Deteriorating RC Shear Walls; National Taiwan University of Science and Technology: Taipei, Taiwan, 2012. [Google Scholar]
- Shansuo, Z.; Qing, Q.; Wei, Y. Experimental research on the seismic behaviors of squat RC shear walls under offshore atmospheric environment. J. Harbin Inst. Technol. 2015, 47, 64–69. [Google Scholar]
- Zheng, Y.; Zheng, S.S.; Yang, L.; Dong, L.G.; Ruan, S.; Ming, M. Experimental study on the seismic behavior of corroded reinforced concrete walls in an artificial climate corrosion environment. Eng. Struct. 2022, 252, 113469. [Google Scholar] [CrossRef]
- Shen, D.; Yang, Q.; Huang, C.; Cui, Z.; Zhang, J. Tests on seismic performance of corroded reinforced concrete shear walls repaired with basalt fiber-reinforced polymers. Constr. Build. Mater. 2019, 209, 508–521. [Google Scholar] [CrossRef]
- Li, M.; Shen, D.; Yang, Q.; Cao, X.; Huang, C.; Cui, Z.; Qi, Y. Effect of reinforcement corrosion on the seismic performance of reinforced concrete shear walls. Constr. Build. Mater. 2023, 377, 130977. [Google Scholar] [CrossRef]
- Yang, L.; Zheng, S.S.; Zheng, Y.; Dong, L.G.; Wu, H.L. Experimental investigation and numerical modelling of the seismic performance of corroded T-shaped reinforced concrete shear walls. Eng. Struct. 2023, 283, 115930. [Google Scholar] [CrossRef]
- Liu, X.H.; Zheng, S.S.; Wang, W.; Liu, H.; Zheng, Y.; Zheng, H. Experimental study on the seismic behaviour of a corroded T-shaped RC shear wall. J. Build. Eng. 2023, 76, 107071. [Google Scholar] [CrossRef]
- JGJ3-2010; Technical Specification for Concrete Structures of Tall Buiding. China Architecture & Building Press: Beijing, China, 2010.
- Qin, Q.; Zheng, S.; Ding, S. Experimental Study on Aseismic Behavior of Short-Pier RC Shear Walls in Salt-Fog Environment. Eng. Mech. 2020, 37, 79–92. [Google Scholar]
- JGJ/T101-2015; Specification for Seismic Test of Buildings. China Architecture & Building Press: Beijing, China, 2015.
- Zhu, B. Structural Seismic Test; Seismological Press: Beijing, China, 1989; pp. 128–130. [Google Scholar]
- Yan, L.; Liang, X.; Xu, J.; Wang, H. Research on calculation method of deformation capacity of reinforced concrete shear wall. Eng. Mech. 2014, 31, 92–99. [Google Scholar]
- Wallace, J.W. Modelling Issues for Tall Reinforced Concrete Core Wall Buildings. Struct. Des. Tall Spec. Build. 2007, 16, 615–632. [Google Scholar] [CrossRef]
- Shi, Q.; Liang, X. Structural Design of High-Rise Buildings, 2nd ed.; Science Press: Beijing, China, 2012. [Google Scholar]
- Wang, K. Experimental Researches on Restoring Force Model of Reinforced Concrete Shear Wall Based on Damage; Xi’an University of Architecture and Technology: Xi’an, China, 2011. [Google Scholar]
- Zhang, H. Study on the Performance-Based Seismic Design Method for Shear Wall Structures; Tongji University: Shanghai, China, 2007. [Google Scholar]
- Zhang, Y.; Wang, Z. Seismic Behavior of Reinforced Concrete Shear Walls Subjected to High Axial Loading. ACI Struct. J. 2000, 97, 739–749. [Google Scholar]
- Ji-Dong, C.; Xiao-Lei, H.; Wan, Y.; Wei-Chen, L. Study on comparative experiments of shear walls without boundary elements. Build. Sci. 2007, 23, 41–45. [Google Scholar]
- Zhang, Z.; Zhou, K. Experimental study on seismic behavior of high-performance concrete shear walls with various aspect ratios. Struct. Eng. 2004, 20, 62–68. [Google Scholar] [CrossRef]
- Zhang, S.; Lv, X.; Zhang, H. Experimental and analytical studies on resilience models of RC shear walls. J. Shenyang Jianzhu Univ. (Natl. Sci.) 2009, 4, 643–649. [Google Scholar]
- Tjhin, T.N.; Aschheim, M.A.; Wallace, J.W. Yield Displacement Estimates for Displacement-based Seismic Design of Ductile Reinforced Concrete Structural Wall Buildings. In Proceedings of the 13th World Conference on Earthquake Engineering, Vancouver, BC, Canada, 1–6 August 2004. [Google Scholar]
- Liang, X. Theory and Method of Structural Seismic Performance Design; Science Press: Beijing, China, 2011. [Google Scholar]
- Kou, J.; Liang, X.; Deng, M. Experimental and theoretical study of restoring force model of fiber reinforced concrete shear walls. China Civ. Eng. J. 2013, 10, 58–70. [Google Scholar]
- Lu, Y.; Huang, L. Experimental data-based calculation method for ultimate displacement of flexure dominated RC walls with concealed columns. J. Build. Struct. 2014, 2, 11–20. [Google Scholar]
- Saatcioglu, M.; Razvi, S.R. Strength and Ductility of Confined Concrete. J. Struct. Eng. 1992, 118, 1590–1607. [Google Scholar] [CrossRef]
- Paulay, T.; Priestley, M.J.N. Stability of Ductile Structural Walls. ACI Struct. J. 1993, 90, 385–392. [Google Scholar]







| Specimen No. | Axial Compression Ratio | Transversely Distributed Reinforcement | Longitudinal Reinforcement of Concealed Column | Concealed Column Stirrup | Design Corrosion Crack Width | Flexural Shear Ratio |
|---|---|---|---|---|---|---|
| SW-1 | 0.1 | A6@200 | 4B12 | A6@150 | 0.8 mm | 0.938 |
| SW-2 | 0.2 | A6@200 | 4B12 | A6@150 | 0 mm | 1.002 |
| SW-3 | 0.2 | A6@200 | 4B12 | A6@150 | 0.3 mm | 1.002 |
| SW-4 | 0.2 | A6@200 | 4B12 | A6@150 | 0.8 mm | 1.002 |
| SW-5 | 0.2 | A6@200 | 4B12 | A6@150 | 1.2 mm | 1.002 |
| SW-6 | 0.2 | A6@150 | 4B12 | A6@150 | 0.8 mm | 0.874 |
| SW-7 | 0.2 | A6@100 | 4B12 | A6@150 | 0.8 mm | 0.695 |
| SW-8 | 0.2 | A6@200 | 4B14 | A6@150 | 0.8 mm | 1.196 |
| SW-9 | 0.2 | A6@200 | 4B8 | A6@150 | 0.8 mm | 0.703 |
| SW-10 | 0.2 | A6@200 | 4B12 | A6@100 | 0.8 mm | 1.002 |
| SW-11 | 0.2 | A6@200 | 4B12 | A6@200 | 0.8 mm | 1.002 |
| SW-12 | 0.3 | A6@200 | 4B12 | A6@150 | 0.8 mm | 1.002 |
| Specimen No. | Distributed Reinforcement ρd,average/% | Stirrup ρs,average/% | Longitudinal Reinforcement ρl,average/% | Average Width of Rust Expansion Crack/mm |
|---|---|---|---|---|
| SW-1 | 19.36 | 16.33 | 5.31 | 0.78 |
| SW-2 | 0 | 0 | 0 | 0 |
| SW-3 | 8.55 | 7.87 | 2.24 | 0.29 |
| SW-4 | 18.73 | 17.13 | 5.63 | 0.81 |
| SW-5 | 23.37 | 24.39 | 8.42 | 1.18 |
| SW-6 | 20.66 | 16.69 | 5.33 | 0.77 |
| SW-7 | 17.38 | 15.12 | 5.51 | 0.79 |
| SW-8 | 18.54 | 17.05 | 4.38 | 0.83 |
| SW-9 | 20.13 | 18.47 | 6.25 | 0.77 |
| SW-10 | 19.87 | 18.19 | 5.92 | 0.77 |
| SW-11 | 18.17 | 16.88 | 4.86 | 0.82 |
| SW-12 | 16.33 | 15.22 | 5.27 | 0.78 |
| Specimen No. | /kN | /kN | /kN | /kN | /mm | /mm | /mm | /mm |
|---|---|---|---|---|---|---|---|---|
| SW-1 | 80.38 | 106.25 | 123.06 | 104.60 | 2.48 | 4.43 | 12.10 | 20.10 |
| SW-2 | 99.91 | 132.42 | 161.66 | 137.41 | 2.68 | 5.76 | 14.56 | 28.62 |
| SW-3 | 100.02 | 131.86 | 158.65 | 134.85 | 2.58 | 5.22 | 13.08 | 23.79 |
| SW-4 | 99.46 | 130.92 | 152.41 | 129.55 | 2.57 | 4.63 | 13.50 | 21.32 |
| SW-5 | 79.68 | 124.28 | 146.79 | 124.77 | 1.74 | 4.69 | 12.68 | 20.47 |
| SW-6 | 99.46 | 132.60 | 153.59 | 130.55 | 2.80 | 5.12 | 14.40 | 24.31 |
| SW-7 | 90.03 | 134.29 | 155.61 | 132.27 | 2.70 | 5.26 | 14.25 | 24.89 |
| SW-8 | 80.00 | 139.96 | 162.98 | 138.53 | 1.78 | 5.19 | 14.80 | 22.24 |
| SW-9 | 99.72 | 114.00 | 135.17 | 114.90 | 3.43 | 4.60 | 11.28 | 21.28 |
| SW-10 | 79.98 | 133.50 | 156.12 | 132.70 | 1.72 | 4.80 | 11.61 | 24.30 |
| SW-11 | 79.80 | 132.35 | 155.29 | 132.00 | 1.63 | 4.60 | 10.54 | 20.10 |
| SW-12 | 109.74 | 142.55 | 165.50 | 140.68 | 2.75 | 4.74 | 10.01 | 17.38 |
| Specimen No. | Cracking Load | Yield Load | Peak Load | |||
|---|---|---|---|---|---|---|
| Test/kN | Calculation/kN | Test/kN | Calculation/kN | Test/kN | Calculation/kN | |
| SW-1 | 80.38 | 76.85 | 106.25 | 109.23 | 123.06 | 125.05 |
| SW-2 | 99.91 | 76.87 | 132.42 | 120.05 | 161.66 | 171.99 |
| SW-3 | 100.02 | 76.87 | 131.86 | 118.57 | 158.65 | 167.91 |
| SW-4 | 99.46 | 76.87 | 130.92 | 116.33 | 152.41 | 161.73 |
| SW-5 | 79.68 | 76.87 | 124.28 | 114.49 | 146.79 | 156.64 |
| SW-6 | 99.46 | 76.87 | 132.6 | 116.53 | 153.59 | 173.91 |
| SW-7 | 90.03 | 76.87 | 134.29 | 116.41 | 155.61 | 195.33 |
| SW-8 | 80 | 76.87 | 139.96 | 126.42 | 162.98 | 175.83 |
| SW-9 | 99.72 | 76.87 | 114 | 101.76 | 135.17 | 142.69 |
| SW-10 | 79.98 | 76.87 | 133.5 | 114.65 | 156.12 | 161.20 |
| SW-11 | 79.8 | 76.87 | 132.35 | 117.87 | 155.29 | 163.13 |
| SW-12 | 109.74 | 76.89 | 142.55 | 136.60 | 165.5 | 204.32 |
| Specimen No. | Cracking Disp. | Yield Disp. | Peak Disp. | Ultimate Disp. | ||||
|---|---|---|---|---|---|---|---|---|
| Test/mm | Calculation/mm | Test/mm | Calculation/mm | Test/mm | Calculation/mm | Test/mm | Calculation/mm | |
| SW-1 | 2.48 | 2.70 | 4.43 | 3.11 | 12.1 | 15.69 | 20.1 | 20.82 |
| SW-2 | 2.68 | 2.70 | 5.76 | 4.31 | 14.56 | 14.18 | 28.62 | 20.15 |
| SW-3 | 2.58 | 2.70 | 5.22 | 3.86 | 13.08 | 13.27 | 23.79 | 17.13 |
| SW-4 | 2.57 | 2.70 | 4.63 | 3.60 | 13.5 | 12.73 | 21.32 | 15.37 |
| SW-5 | 1.74 | 2.70 | 4.69 | 3.44 | 12.68 | 12.41 | 20.47 | 14.30 |
| SW-6 | 2.8 | 2.70 | 5.12 | 3.62 | 14.4 | 12.77 | 24.31 | 15.40 |
| SW-7 | 2.7 | 2.70 | 5.26 | 3.61 | 14.25 | 12.75 | 24.89 | 15.17 |
| SW-8 | 1.78 | 2.70 | 5.19 | 3.68 | 14.8 | 16.30 | 22.24 | 17.26 |
| SW-9 | 3.43 | 2.70 | 4.6 | 3.56 | 11.28 | 12.66 | 21.28 | 15.11 |
| SW-10 | 1.72 | 2.70 | 4.8 | 3.58 | 11.61 | 7.54 | 24.3 | 12.98 |
| SW-11 | 1.63 | 2.70 | 4.6 | 3.65 | 10.54 | 12.84 | 20.1 | 15.70 |
| SW-12 | 2.75 | 2.70 | 4.74 | 4.16 | 10.01 | 8.27 | 17.38 | 10.20 |
Disclaimer/Publisher’s Note: The statements, opinions and data contained in all publications are solely those of the individual author(s) and contributor(s) and not of MDPI and/or the editor(s). MDPI and/or the editor(s) disclaim responsibility for any injury to people or property resulting from any ideas, methods, instructions or products referred to in the content. |
© 2024 by the authors. Licensee MDPI, Basel, Switzerland. This article is an open access article distributed under the terms and conditions of the Creative Commons Attribution (CC BY) license (https://creativecommons.org/licenses/by/4.0/).
Share and Cite
Qin, Q.; Cheng, H.; Zhang, C.; Ding, S. Calculation of Characteristic Point Parameters for Restoring Model of Corroded Short-Pier RC Shear Walls. Buildings 2024, 14, 1293. https://doi.org/10.3390/buildings14051293
Qin Q, Cheng H, Zhang C, Ding S. Calculation of Characteristic Point Parameters for Restoring Model of Corroded Short-Pier RC Shear Walls. Buildings. 2024; 14(5):1293. https://doi.org/10.3390/buildings14051293
Chicago/Turabian StyleQin, Qing, Haojie Cheng, Chenghua Zhang, and Sha Ding. 2024. "Calculation of Characteristic Point Parameters for Restoring Model of Corroded Short-Pier RC Shear Walls" Buildings 14, no. 5: 1293. https://doi.org/10.3390/buildings14051293
APA StyleQin, Q., Cheng, H., Zhang, C., & Ding, S. (2024). Calculation of Characteristic Point Parameters for Restoring Model of Corroded Short-Pier RC Shear Walls. Buildings, 14(5), 1293. https://doi.org/10.3390/buildings14051293
