A Study on Sustainable Design of Traditional Tujia Village Architecture in Southwest Hubei, China
Abstract
1. Introduction
2. Literature Review
3. Characteristics and Practical Difficulties of Traditional Tujia Villages in Southwest Hubei, China
3.1. Characteristics of Traditional Tujia Villages in Southwest Hubei, China
3.2. Practical Difficulties Facing by Traditional Tujia Village Architecture in Southwest Hubei, China
- (1)
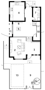
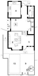
- Limited space and poor functional adaptability. First, the village buildings often use column and tie construction, with a large living hall but small side rooms at two sides, and space separation relies on roof truss spacing, leading to poor flexibility. Second, kitchens are usually located inside rooms on both sides, and smoke often flows into bedrooms due to the use of a fire pit. To address this issue, some residents replaced the fire pit with a kitchen stove. Although this improves thermal insulation, it leads to the loss of a family gathering place. Third, there is a lack of separate bathrooms. Usually, the bathroom is far from the main room and built near livestock, leading to a smelly odor in the bathroom and poor use experience. In addition, stilted buildings usually use thick cedar wood plates of 3 cm as wall materials, which have poor thermal insulation and fire resistance, and their adaptability to modern society is also weak [28,29] (Figure 6).
- (2)
- A chaotic mix of architectural styles and abusive use of symbolic elements. Due to a lack of investigation of distinctive culture, traditional Tujia villages often have a wide range of architectural styles. One example is the antique style of “wearing clothes and hats” [30]: decorative wooden plate “clothes” are added to concrete exterior walls, and traditional roof “hats” are added to the top floor, leading to a shoddy, chaotic, and disorderly style. Another example is the modern style of the “small western-style villa” [31]. Such buildings are incongruous with the surrounding environment of Tujia villages and lack the connotation of traditional architecture. In addition, affected by external commercial capitals, some villages have shown chaotic architectural styles and have lost their real architectural styles.
- (3)
- Context alienation and weak sense of identity. Recently, although the material environment of traditional Tujia villages has been greatly improved, their spiritual space has gradually become alienated, which is mainly reflected in a decrease in vitality and a weak sense of identity [32]. In existing traditional Tujia villages, due to a large number of young adults going out for work, the houses are abandoned and deteriorating, thereby leading to a prominent trend of “hollowing out” and a loss of village vibrancy [33]. As lifestyles change, the emotional connection of Tujia residents to their land has gradually faded. For example, Tujia residents have a deep admiration for fire, and the fire pit serves as a place for daily gatherings and communications. However, due to hygiene and safety concerns, the fire pit has gradually been replaced by the modern stove, resulting in the disappearance of the communal gathering space in memory [34]. In addition, the space for ancestral shrines in the living hall has been gradually replaced by modern furniture, leading to a weakening of religious beliefs [35].
- (4)
- Complex construction skills and low construction efficiency. The construction of Tujia stilted buildings requires intricate and complex construction skills, which are mainly taught orally. From site selection and material preparation to construction and decoration, the entire building process is mainly coordinated and controlled by the construction master [36]. Throughout the construction process, manual labor coordination and cooperation are crucial, and the process is often disrupted by external factors such as weather and materials, resulting in long construction periods and uncontrollable costs (Table 2). For instance, the wood and bamboo used in the construction of stilted buildings are relatively limited in supply, and the number of skilled craftsmen experienced in building stilted buildings is decreasing due to the impact of industrial civilization, resulting in increased labor costs [37]. Furthermore, stilted buildings are fully wooden structures and are highly susceptible to corrosion in the humid climate of southwest Hubei, so their lifespan is greatly reduced [38]. In contrast, modern concrete houses have lower construction costs and longer lifespans, making them more acceptable to the younger generation of villagers.
4. Materials and Methods
4.1. Research Materials
4.2. Research Method
4.2.1. Construction of the Evaluation Index
4.2.2. Construction of the Judgment Matrix and Calculation of Index Weights
- (1)
- Level 1 indicator weight
| Level 1 | B1 | B2 | B3 | B4 | Wi | CR |
|---|---|---|---|---|---|---|
| B1 | 1.0000 | 1.2353 | 0.3962 | 1.9633 | 0.2393 | 0.0879 |
| B2 | 0.8095 | 1.0000 | 0.5600 | 1.6800 | 0.2258 | |
| B3 | 2.5238 | 1.7857 | 1.0000 | 1.0825 | 0.3592 | |
| B4 | 0.5094 | 0.5952 | 0.9238 | 1.0000 | 0.1758 |
- (2)
- Level 2 indicator weight
| Level 2/B1 | C1 | C2 | C3 | Wi | CR |
|---|---|---|---|---|---|
| C1 | 1.0000 | 0.3471 | 0.2675 | 0.1255 | 0.0461 |
| C2 | 2.8810 | 1.0000 | 0.4000 | 0.2906 | |
| C3 | 3.7381 | 2.5000 | 1.0000 | 0.5839 | |
| Level 2/B2 | C4 | C5 | C6 | Wi | CR |
| C4 | 1.0000 | 1.6154 | 0.6667 | 0.3138 | 0.0048 |
| C5 | 0.6190 | 1.0000 | 0.3333 | 0.1809 | |
| C6 | 1.5000 | 3.0000 | 1.0000 | 0.5054 | |
| Level 2/B3 | C7 | C8 | Wi | CR | |
| C7 | 1.0000 | 0.2386 | 0.1926 | 0 | |
| C8 | 4.1905 | 1.0000 | 0.8074 | ||
| Level 2/B4 | C9 | C10 | C11 | Wi | CR |
| C9 | 1.0000 | 0.4730 | 3.0000 | 0.2914 | 0 |
| C10 | 2.1143 | 1.0000 | 6.1765 | 0.6106 | |
| C11 | 0.3333 | 0.1619 | 1.0000 | 0.0980 |
- (3)
- Level 3 indicator weight
| Level 3/C1 | D1 | D2 | D3 | Wi | CR |
|---|---|---|---|---|---|
| B1 | 1.0000 | 0.8235 | 1.3125 | 0.3420 | 0.0575 |
| B2 | 1.2143 | 1.0000 | 0.7664 | 0.3254 | |
| B3 | 0.7619 | 1.3048 | 1.0000 | 0.3326 |
5. Results and Discussion
5.1. Research Results
5.2. Sustainable Design Strategies for Traditional Tujia Village Architecture in Southwestern Hubei Province
5.2.1. Sustainability of Spatial Function—Flexible Layout
- (1)
- In terms of plane shape, the sustainable solutions preserve the four basic shapes of traditional Tujia stilted buildings and evolve from them. For instance, Layouts A and B are in the “-” shape, with the former having a smaller depth and the latter having a larger depth; Layouts C and D are in the “L” shape, with the former being horizontally arranged and the latter vertically arranged; and Layouts E and F are in the “凹” shape and the quadrangle shape, respectively. In practice, villagers can flexibly choose an appropriate layout according to site conditions. Meanwhile, during the research process, it was found that the base area of traditional Tujia buildings is mostly around 80–120 m2, so the new solutions should also limit the base area within this range. With 100 m2 as the boundary, Layouts A, B, C, and D have a base area smaller than 100 m2, while Layouts E and F have a base area larger than 100 m2, allowing for flexible selection according to actual needs.
- (2)
- In terms of functional combinations, the new solutions mainly address the coordination of special functional spaces such as living and ritual spaces. Taking the kitchen and bathroom as examples, these two spaces are taken into consideration in the main space. Specifically, the kitchen is situated on the northern side to reduce the interference of cooking fumes on the master bedroom, while the bathroom is situated adjacent to the living hall and bedrooms for convenience in daily use; the livestock space is situated on the northern side near the bathroom or kitchen (Table 10, Layouts A and C); for the ritual space, the fire pit, memorial site, and living hall are arranged in coordination, forming four different arrangements: horizontal, vertical, horizontal and vertical intersection, and horizontal and vertical separation, which inherit the horizontal or vertical ritual arrangements of traditional stilted buildings (Table 11). Moreover, special spaces such as the elderly bedroom are typically situated on the sunny southern side of the first floor, as illustrated by Layouts A and C in Table 10, while stilted spaces are situated on the southern side of the master bedroom (Layouts C, D, and F) or entrance or side hall (Layouts A, B, and E). The specific location of these spaces is determined according to site conditions or architectural layout.
- (3)
- In terms of spatial separation, the new layouts use lightweight partitions for partial interior spaces to realize “separation without isolation”, thereby achieving the diversity of spatial utilization and the richness of the flow lines. For instance, the living hall is separated from the dining room or lobby by the lightweight partition, as illustrated by Layouts A–F in Table 10; the external wall enclosure mainly considers the demand for residential quality, and it adopts the brick concrete structure while ensuring the cost-effectiveness of construction, thereby achieving flexible space division and enclosure and sustainable functional layouts.
5.2.2. Sustainability of Appearance and Style—Integrated Interface Composition
- (1)
- Integration of interface elements. In the design of sustainable solutions, integrated interface elements are incorporated into facade and roof areas. Specifically, facade elements mainly include terraces, colonnades, minor yards, and stilted spaces. As illustrated in Figure 8, in the south and east facades of Layouts A–F, terraces and colonnades not only enrich the facades and contribute to spatial transitions but also play a certain role in shading and energy saving in the southern direction. The minor yard in Layouts B and F and the courtyard in other layouts not only enrich interfaces but also regulate microclimates and help to create ecologically sustainable microenvironments. In all layouts, the stilted space is located on the ground floor of the auxiliary room, terrace, and minor yard; it can not only flexibly adapt to topography but also provide semi-open composite functional areas between indoors and outdoors. In addition, as the “fifth interface”, the sloped roof element in the conceptual design solutions is deconstructed and reassembled, and by incorporating the “tiger windows” element, it can not only regulate the climate but also create rich interface meanings.
- (2)
- Integration of space levels. The integrated interfaces in the conceptual solutions often create three different levels of spatial atmosphere: black, white, and gray. The “stilted space” of traditional Tujia buildings is the “gray space” that serves as an intermediary [50]. However, in the past, it was often used for raising poultry or storing miscellaneous items and did not play a transitional role. In the designed solutions, the “stilted space” is integrated with the lobby, colonnade, and minor yard to truly play its role of interface media. For instance, in Layouts A–E in Figure 8, the space under the terraces at the entrances or the colonnade space not only enriches the interface hierarchy but also contributes to a smooth transition between indoors and outdoors as a “circulation space”. Moreover, the minor yard and inner courtyard in Layouts B and F and the stilted space in other layouts are all integrated interface spaces that serve diverse functions and reflect the profound meaning of “interdependence and coexistence” in Eastern philosophy.
5.2.3. Sustainability of Perceptive Scene—Localized Home Building
- (1)
- The utilization of local construction. The “stilted framework” of traditional buildings, which resembles a hanging foot and has an elegant posture of the human body, which is commonly found in traditional architecture, is the most distinctive and cherished construction element in Tujia ethnic architecture and has been validated through the analysis of AHP. Therefore, it should be carefully preserved and expressed in sustainable design solutions. For instance, it can be creatively translated into sustainable design features such as entrance canopies, suspended balconies, elevated courtyards, and suspended minor yards. Therefore, within the diverse functional forms, the construction charm of the suspended foot frame is creatively interpreted and expressed, ultimately achieving the graceful and diverse imagery beauty of contemporary Tujia buildings. (Figure 9, left).
- (2)
- Form simulacrum. The roof of stilted buildings is similar to a “gable-on-hip roof” consisting of double-sloped roofs and single-sloped roofs on gables. The overall roof is curved in the opposite direction with the corners tilted upwards, resembling a bird flapping its wings and ready to fly. Therefore, the proposed solutions deconstruct this lively form in a modernized way, evolve it into a “long-short hipped roof” and “single-sloped roof”, and randomly combine it with a modern “flat roof”, which not only preserves the traditional imagery but also while reflecting the model atmosphere. (Figure 9, left).
- (3)
- Decoration association. The detailed decorations of traditional Tujia buildings have rich emotional connotations, with woodcarving decorations on doors, windows, and railings being typical representatives. These decoration patterns can remind people of beautiful things and express their good wishes. For example, the “Bubujin” and “Guibeiwen” paper-cut window decorations in Figure 9 (right) have rich connotations. Specifically, in the “Bubujin”, the mullions gradually tighten from the outside to the inside, which symbolizes “tightening step by step” and later implies “becoming better step by step”; in the “Guibeiwen”, the window mullions form a pattern resembling a turtle’s back (hexagonal shape), conveying the meaning of health and longevity. Similar symbolic patterns have been extended to the detailed design of the proposed solutions to evoke associations with traditional cultural symbols and create a sustainable sense of home space.
5.2.4. Sustainability of Construction Mode—Modularized Unit Construction
- (1)
- In terms of constituent elements, like game rules, modularization provides unified limiting factors, including the area range of the homestead, the layouts for different sites, consistent roof and door/window styles, and choices of color and materials, allowing for the harmonious integration of traditional architectural design with modern construction. As illustrated in Figure 10, taking Layout D as an example, various elements of the architectural appearance are classified and deconstructed, and their material combinations are modularized and finely controlled to a certain extent, thereby achieving high construction efficiency.
- (2)
- In terms of unit combination, the random combinations of Layouts A–F are investigated to determine if they can enclose a common communication space. Two feasible combinations are obtained eventually: (a) parallel combination (Layouts A and B in Figure 11), where neighboring households have a certain degree of privacy while being arranged side by side, and (b) symmetrical combination, where two units are symmetrically arranged to form a large entrance yard (Layouts C, D, and E) or a central courtyard (Layout F), both of which can create diverse neighborhood communication spaces. In addition, different layouts can be grouped and assembled according to actual conditions to meet individual requirements while harmonizing the overall aesthetic and improving construction efficiency, thereby creating a novel and diverse neighborhood atmosphere.
- (3)
- In terms of the construction process, compared to traditional construction that heavily relies on the personal experience of craftsmen, the proposed sustainable solutions standardize the entire construction process into “menu-style” modules for selection, enabling villagers to flexibly choose according to their needs. This modularized construction process not only facilitates the process control and management of building construction but also saves construction time and costs. For Layout D in Figure 12, a series of standard modules is available for the selection of site, layout, basic form generation, doors, windows, and special components, which are flexible and meet the functional and emotional needs of different residents.
6. Conclusions
- (1)
- The literature review, field survey, and interview suggested that the practical difficulties faced by typical traditional Tujia villages mainly included poor function adaptability (space), mixed elements and styles (symbol), weak sense of identity and belonging (scene), and low construction efficiency (technique).
- (2)
- The Analytic Hierarchy Process (AHP) method was used to conduct a comprehensive evaluation of the sustainable development of traditional village architecture in southwestern Hubei. Among the four primary indicators, the results indicate that the scenario imagery and spatial functionality are relatively more important compared to the exterior style and construction mode. Furthermore, among the eleven secondary indicators, the regional relevance of the scene, spatial comfort, richness of interfaces, and standardization of the construction process are relatively significant aspects. Lastly, among the thirty-one tertiary indicators, the utilization of indigenous structures holds the highest proportion, indicating that the distinctive features of Tujia ethnic traditional architecture (such as the Suspension frame) should be fully preserved and expressed in sustainable design.
- (3)
- Based on the characteristics of traditional Tujia village architectures in southwest Hubei, China, and practical difficulties, this study proposed four sustainable design paradigms, namely sustainability of spatial function—flexible layout, sustainability of appearance and style—integrated interface composition, sustainability of perceptive scene—localized home building, and sustainability of construction mode—modularized unit construction.
Author Contributions
Funding
Institutional Review Board Statement
Informed Consent Statement
Data Availability Statement
Conflicts of Interest
Appendix A
| Date | Location | Objective | General Content | Participants |
|---|---|---|---|---|
| January 1 to 3, 2018 | Dabaixi Village, Shadaogou Town, Xuan’en County | Preliminary understanding of the characteristics and current status of Tujia stilted houses. | The team undertook research on the stilted house in Pengjiazhai, Sandaogou Town, the traditional village of Dabaixi, and the architectural remains of the Tangya Chieftain in order. Additionally, interviewed local residents to understand the historical evolution of these sites. | Di Wang, the Historical Architecture Research Team at Yangtze University (Professor Zheng, Professor Peng). |
| July 1 to 30, 2019 | Maliuxi Village, Huangjindong Town, Xianfeng County | Immersed in the intricate process of constructing Tujia stilted houses. | The team undertook field research on the craftsmanship and process of constructing stilted houses in Malixi Village, and conducted interviews with inheritors of intangible cultural heritage, such as Wan Taoyua and Xiong Guojiang. | Di Wang, Xiaodong Wei, the Rural Revitalization Team at Hunan University (Professor Yan, Professor Sohaib). |
| July 5 to 8, 2020 | Liangxihe Village, Changtanhe Town, Xuan’en County | In-depth understanding of the functional scale and spatial structure of Tujia stilted houses. | The group undertook research on well-preserved traditional buildings in Liangxihe Village, including field measurements of certain architectural components. Additionally, we investigated the newly constructed ancient-style architectural scenic area in Changtanhe and residential communities with regional characteristics. | Di Wang, Xiaodong Wei and others. |
| March 20 to 21, 2021 | Chuanxinyan Village, Yesanguan Town, Badong County | Familiarity with the architectural styles of newly constructed residential buildings in traditional villages. | The group undertook research on the traditional overall appearance of Chuanyanshi Village, as well as the distinctive architectural style of newly constructed residences. | Di Wang, Xiaodong Wei and others. |
Appendix B



References
- Hu, B.; Wu, C. The Current Situation and Development Trends of Research on Chinese Village Culture. Sci. Social. 2014, 6, 99–104. [Google Scholar]
- Wang, X.; Zhu, Q. Influencing Factors of Traditional Village Protection and Development from the Perspective of Resilience Theory. Land 2022, 11, 2314. [Google Scholar] [CrossRef]
- Feng, Y.; Wei, H.; Huang, Y. Spatiotemporal evolution characteristics and influencing factors of traditional villages: The Yellow River Basin in Henan Province, China. Herit. Sci. 2023, 11, 97. [Google Scholar] [CrossRef]
- Luo, J.; Li, P.H.; Ji, T. From Typology to Digitalization: Research on Path Construction of additional Village Protection. Packag. Eng. 2021, 42, 56–64. [Google Scholar]
- Li, J.T.; Yang, J. Study on the Idea of Traditional Wooden Carpentry in stilted building of Tujia in Hubei. Urban. Archit. 2020, 17, 56–57. [Google Scholar]
- Wu, J.X. Research on the Universal Forms of Application of Intangible Cultural Heritage in Modern Design: Taking the Construction Technique of the stilted building of the Tujia in Western Hubei as an Example. Cult. Ind. 2022, 15, 122–124. [Google Scholar]
- Gong, L.; Yang, J.; Wu, C. Fractal Characteristics of the Spatial Texture in Traditional Miao Villages in Qian dongnan, Guizhou, China. Sustainability 2023, 15, 13218. [Google Scholar] [CrossRef]
- Central Committee of the CCP, State Council. Opinions of the Central Committee of the Communist Party of China and the State Council on Doing a Good Job in the Key Work of Comprehensively Promoting Rural Revitalization in 2023; Xinhua News Agency: Beijing, China, 2023; pp. 4–10. [Google Scholar]
- The People’s Government of Hubei Province. Notice of the People’s Government of Hubei Province on Issuing the 14th Five Year Plan for Promoting Agricultural and Rural Modernization in Hubei Province; The People’s Government of Hubei Province: Wuhan, China, 2021; Volume 23, pp. 3–39.
- Li, F. A Study on the Spatial Evolution of Rural Settlements in the Xiangjiang River Basin. Master’s Thesis, Hunan University, Changsha, China, 2020; pp. 10–15. (In Chinese). [Google Scholar]
- Ji, C.Q. Study on Safeguarding of Intangible Cultural Heritage of Ancient Villages: Taking Zhaoxing Dong Village for Example. Ph.D. Thesis, Minzu University of China, Beijing, China, 2011; pp. 4–17. (In Chinese). [Google Scholar]
- Chen, G.R. Research on Green Construction Technology of Traditional Residential Buildings in Southern Zhejiang Province. Master’s Thesis, Anhui Jianzhu University, Hefei, China, 2023; pp. 12–18. (In Chinese). [Google Scholar]
- Zang, L.G. Tujia Culture and stilted building. J. Hubei Inst. Natl. Philos. Soc. Sci. 2000, 1, 1–5. [Google Scholar]
- Gong, T.X.; An, X. A Study on the Techniques of Building Large-scale Wooden Works for the Tujia Nationality in the West of Hubei Province: Taking “YaoShiTou” as an Example. Art Des. 2020, 5, 103–107. [Google Scholar]
- Peng, X.Y. Research on the Design Method of the Traditional Settlement Hydrographic Environment of Tujia in Western Hubei. Master’s Thesis, Huazhong University of Science and Technology, Wuhan, China, 2020; pp. 17–20. (In Chinese). [Google Scholar]
- Li, D.H. Simulation Evaluation and Optimization Strategy Research of Spatial Wind Environment of Water-Adjacent. Master’s Thesis, Huazhong University of Science and Technology, Wuhan, China, 2022; pp. 11–16. (In Chinese). [Google Scholar]
- Li, Y.J. Research and Application of Rural Color Feature of the Tujia in Southwest Hubei Province. Master’s Thesis, Hubei Institute of Fine Arts, Wuhan, China, 2021; pp. 6–9. (In Chinese). [Google Scholar]
- Wang, H.Y.; Li, R.Q. The Enlightenment of the Aesthetic Culture of Tujia Stilted House to the Modern Architecture. J. Archit. Cult. 2018, 2, 218–221. [Google Scholar]
- Yang, J.L. A Study on the Architectural Landscape of Stilted Building from the Perspective of Art Anthropology. J. Jishou Univ. (Soc. Sci.) 2016, 37, 106–111. [Google Scholar]
- Wu, M.Q. Study on the Space and Landscape Aesthetics of Tujia National Traditional Village in Enshi. Master’s Thesis, Huazhong Agricultural University, Wuhan, China, 2020; pp. 7–14. (In Chinese). [Google Scholar]
- Zhang, A.W.; Tian, X.M. Research Status and Characteristics of Tujia Stilted Building. J. Hubei Univ. Natl. (Philos. Soc. Sci.) 2011, 29, 5–9. [Google Scholar]
- Wang, D. Inheritance and Innovation of Traditional Craft of Tujia Stilted House it Western Hubei. Chin. Overseas Archit. 2019, 11, 59–61. [Google Scholar]
- Liao, T.X. Study on Spatio-Temporal Evolution and Formation Mechanism of Enshi Peng Jiazhai Settlement. Master’s Thesis, Yangtze University, Jingzhou, China, 2023; pp. 3–10. (In Chinese). [Google Scholar]
- Li, H.R.; Dong, C. An Exploration of Tujia Nationality Vernacular Landscape Construction in the Southwest of Hubei. Chin. Landsc. Archit. 2022, 38, 64–69. [Google Scholar]
- Sun, L.J.; Xiang, Z.F.; Wang, D. Retain Traditional Style and Build a Beautiful Home. People’s Dly. 2023, 4, 7. [Google Scholar]
- Zhang, D.Y. Research on Tujia Folklore Communication from the Perspective of Ritual View. Master’s Thesis, Hubei Minzu University, Enshi City, China, 2023; pp. 7–14. (In Chinese). [Google Scholar]
- Zhang, E.Q. The urbanization rate has reached 65.2%, indicating a new stage of urban development. China City News 2023, 3, 6. [Google Scholar]
- Xiong, H. Research on Passive Renewal Design of Traditional Hanging Footed Buildings in Northwest Guangxi. Master’s Thesis, Guangxi University of Science and Technology, Liuzhou, China, 2022; pp. 5–7. (In Chinese). [Google Scholar]
- Zhang, Q.S.; Zhao, K.; Ma, Y.F. A Study on Fire Protection Design of Historic Town Based on the Safety Block Theory. New Archit. 2019, 5, 146–151. [Google Scholar]
- Zhan, L. Research on Landscape Design of West Sichuan Forest from the Perspective of Spatial Narrative. Master’s Thesis, Xihua University, Chengdu, China, 2022; pp. 58–60. (In Chinese). [Google Scholar]
- Wang, C.X. Application and Research of Materials in Traditional Village Reconstruction. Master’s Thesis, Hubei Institute of Fine Arts, Wuhan, China, 2021; pp. 15–30. (In Chinese). [Google Scholar]
- Yu, S.L. Research on the Strategy of Art Intervention in Rural Landscape Construction. Master’s Thesis, Hebei University of Engineering, Handan, China, 2021; pp. 18–21. (In Chinese). [Google Scholar]
- Wang, G. Research on the Protection and Development of Traditional Villages under the Background of Rural Revitalization. Beauty Times 2023, 1, 28–30. [Google Scholar]
- Huang, Y.H. Preliminary Study on the Characteristics, Significance, and Causes of Changes of Tujia Fire Ponds in Southeast Chongqing. Archit. Technol. 2022, 13, 29–32. [Google Scholar]
- Liu, J.P. A Preliminary Study on the Culture of Tujia Shrines in Wuling Region: Taking Xiushan Autonomous County as an Example. J. Yangtze Norm. Univ. 2013, 29, 58–62. [Google Scholar]
- Li, M.Q.; Li, X.F.; Tang, S.K. The Inheritance of Architectural Craftsmanship: Study on the Survival and Inheritance of Folk Craftsmen in Wuling Mountainous Area from the Perspective of Construction History. J. Archit. 2022, 13, 191–197. [Google Scholar]
- Ruan, M. Cultural Characteristics in the Construction Technology of the Tujia Stilt House in Southeast Chongqing. J. Chifeng Univ. Soc. Sci. 2023, 44, 31–35. [Google Scholar]
- Su, C.F. Research on the Path of Art Intervention in Rural Environment Construction. Master’s Thesis, Hunan University of Science and Technology, Xiangtan, China, 2022; pp. 41–52. (In Chinese). [Google Scholar]
- Saaty, T.L. What Is the Analytic Hierarchy Process? Springer: Berlin/Heidelberg, Germany, 1988. [Google Scholar]
- Chen, T.; Luh, D.; Hu, L.; Liu, J.; Chen, H. Sustainable Design Strategy of Regional Revitalization Based on AHP–FCE Analysis: A Case Study of Qianfeng in Guangzhou. Buildings 2023, 13, 2553. [Google Scholar] [CrossRef]
- Lu, Y.; Ahmad, Y. Heritage Protection Perspective of Sustainable Development of Traditional Villages in Guangxi, China. Sustainability 2023, 15, 3387. [Google Scholar] [CrossRef]
- Kiptum, C.K.; Bouraima, M.B.; Badi, I.; Zonon, B.I.P.; Ndiema, K.M.; Qiu, Y. Assessment of the Challenges to Urban Sustainable Development Using an Interval-Valued Fermatean Fuzzy Approach. Syst. Anal. 2023, 1, 11–26. [Google Scholar]
- Cao, Y.; Fu, F.; Nejati, F.; Chabok, S.H.; Edalatpanah, S.A. Identifying Effective Managerial Factors in Improving and Renovating Old Urban Tissues: A Case Study Approach. Buildings 2022, 12, 2055. [Google Scholar] [CrossRef]
- Bhat, S.A. An enhanced AHP group decision-making model employing neutrosophic trapezoidal numbers. J. Oper. Strateg. Anal. 2023, 1, 81–89. [Google Scholar] [CrossRef]
- Bouraima, M.B.; Qiu, Y.; Yusupov, B.; Ndjegwes, C.M. A study on the development strategy of the railway transportation system in the West African Economic and Monetary Union (WAEMU) based on the SWOT/AHP technique. Sci. Afr. 2020, 8, e00388. [Google Scholar] [CrossRef]
- Saaty, R.W. The analytic hierarchy process—What it is and how it is used. Math. Model. 1987, 9, 161–176. [Google Scholar] [CrossRef]
- Ye, W.Q. Research on the Design of the Architectural Public Space Based on “Everyday Life”. Master’s Thesis, Hunan University, Changsha, China, 2018; pp. 11–15. (In Chinese). [Google Scholar]
- Xie, J. Cultural Complex Architecture Research on Composite Interface Design. Master’s Thesis, Hunan University, Changsha, China, 2020; pp. 11–28. (In Chinese). [Google Scholar]
- Tang, C. On the Regional Expressions of Contemporary Tujia Architecture in Enshi. Chin. Overseas Archit. 2019, 9, 34–35. [Google Scholar]
- Li, Q.Y. Research on the Design of Rural Public Space Transformation under the Concept of New and Old Coexistence. Master’s Thesis, Tianjin Normal University, Tianjin, China, 2022; pp. 7–13. (In Chinese). [Google Scholar]
- Qian, C.; Zeng, Q.Q. Study on the Locality of Traditional Villages in Southeast Hubei: Take Shangfeng Village, Jiuguqi Village as an Example. Archit. Cult. 2022, 8, 174–176. [Google Scholar]
- Wang, K.; Huang, Z.Z. Countermeasures for the Protection and Inheritance of Cultural Heritage of the East Zhejiang Canal based on Public Participation. Archit. Technol. 2022, 28, 98–101. [Google Scholar]












| Regional Scope | Perspective | Sample Type | Critical Path | Methodology | Disciplinary | Summary (Limitations) |
|---|---|---|---|---|---|---|
| General region | Spatial form (concrete manifestation) | Regional community (macro-level) | Research on the formation and evolution of space, and propose strategies for conservation and utilization. | Quantitative analysis | Spatial geography or rural planning | There is a tendency to focus more on concrete forms or abstract cultural domains, and the research methods often lean towards qualitative or quantitative studies in specific areas. Overall, there is a lack of comprehensive research conducted from the perspective of sustainable design. |
| Cultural value (abstract) | Typical case study (micro-level) | Study of village social governance and cultural inheritance | Qualitative analysis | Cultural heritage or anthropology | ||
| Ecological energy conservation | Typical case study (micro-level) | Study of the optimization path of residential environment | Quantitative analysis | Building energy efficiency | ||
| Tujia region in southwestern Hubei province | Cultural arts and skills inheritance | Regional community/typical case study | Study of the formation, evolution, techniques, and environmental improvement | Qualitative analysis | Cultural arts, architectural energy-saving |
| Step | Main Content | Participants | Main Tools | Average Duration (Days) |
|---|---|---|---|---|
| 1 | Select the site, place the frame, and determine the orientation | Feng Shui master and house owner | Compass and tape measure | 2 |
| 2 | Level foundation and prepare timber | Construction master and carpenter | Shovel, hoe, and stone hammer | 20–30 |
| 3 | Prepare incense paper and pay tribute to mountain deities | Houseowner and construction master | Incense paper and ritual liquor utensils | 0.5 |
| 4 | Open punt pole, make ink drawing, and prepare rough materials | Construction master and carpenter | Punt pole, axe, saw, chisel, set square, and ink bucket | 45–60 |
| 5 | Sequentially arrange beams and strike with a resonating hammer | Construction master and carpenter | Punt pole and resonating hammer | 1–2 |
| 6 | Pay tribute to Luban (god of carpenters) and worship ancestors | Construction master and carpenter | Incense paper and ritual liquor utensils | 0.5 |
| 7 | Make main beams, create beam openings, and wrap beams | Construction master and house owner | Axe, saw, chisel, red cloth, and ropes | 1 |
| 8 | Install beam rows, add horizontal braces, and hoist beams | Construction master, carpenter, house owner, and relatives and friends | Wooden ladder, ropes, and resonating hammer | 1–2 |
| 9 | Adjust eaves for water drainage | Construction master and carpenter | Punt pole, saw, and hammer | 5–7 |
| 10 | Decorate house | Carpenter | Saw, plane, set square, and ink bucket | 90 |
| Target | Level 1 | Level 2 | Level 3 |
|---|---|---|---|
| The evaluation indicators for the sustainable development of traditional Tujia ethnic village architecture in southwestern Hubei province | Spatial functions B1 | Diverse types C1 | Living type D1 (Hall, dining room, etc.) |
| Ceremonial type D2 (Shrine, Fire pit, etc.) | |||
| Auxiliary type D3 (Bathroom, feeding area, etc.) | |||
| Flexible layout C2 | Space sharing D4 (Hall and shrine, etc.) | ||
| Flexible combination D5 | |||
| Compact layout D6 | |||
| High comfort C3 | Indoor environmental comfort D7 | ||
| Semi-outdoor environmental comfort D8 (stilted area, etc.) | |||
| Outdoor environmental comfort D9 | |||
| Exterior style B2 | Unique style C4 | Modern style D10 | |
| Traditional style D11 | |||
| Transitional style D12 | |||
| Diverse elements C5 | Local elements D13 | ||
| Foreign elements D14 | |||
| Mixed elements D15 | |||
| Rich interface C6 | Multiple flat elements D16 | ||
| Rich spatial hierarchy D17 | |||
| Abundant decorative details D18 | |||
| Scene imagery B3 | Abundant landscape C7 | Spatial scenes D19 | |
| Greenery arrangement D20 | |||
| Landscape facilities D21 | |||
| Regional association C8 | Morphological analogy D22 | ||
| Decorative extrapolation D23 | |||
| Local construction D24 | |||
| Construction mode B4 | Monomer modularization C9 | Modular combination of forms D25 | |
| Modularization of components D26 | |||
| Process modularization C10 | Drawing-based management D27 | ||
| Menu-based process D28 | |||
| Cost efficiency C11 | Simplify the construction process D29 | ||
| Improvement of craftsman skills D30 | |||
| favorable market environment D31 |
| n | 3 | 4 | 5 | 6 | 7 | 8 | 9 | 10 | 11 |
|---|---|---|---|---|---|---|---|---|---|
| RI Value | 0.52 | 0.89 | 1.12 | 1.26 | 1.36 | 1.41 | 1.45 | 1.49 | 1.51 |
| Level 1 | B1 | B2 | B3 | B4 |
|---|---|---|---|---|
| B1 | 1.0000 | 1.2353 | 0.3962 | 1.9633 |
| B2 | 0.8095 | 1.0000 | 0.5600 | 1.6800 |
| B3 | 2.5238 | 1.7857 | 1.0000 | 1.0825 |
| B4 | 0.5094 | 0.5952 | 0.9238 | 1.0000 |
| Level 1 | Level 2 | Weights | Rank | Overall Weights | Overall Rank | Level 3 | Weights | Rank | Overall Weights | Overall Rank |
|---|---|---|---|---|---|---|---|---|---|---|
| B1 (0.2393) | C1 | 0.1255 | 3 | 0.0300 | 10 | D1 | 0.3420 | 15 | 0.0102 | 25 |
| D2 | 0.3254 | 19 | 0.0098 | 27 | ||||||
| D3 | 0.3326 | 17 | 0.0100 | 26 | ||||||
| C2 | 0.2906 | 2 | 0.0695 | 6 | D4 | 0.2028 | 28 | 0.0141 | 21 | |
| D5 | 0.4459 | 9 | 0.0310 | 12 | ||||||
| D6 | 0.3513 | 14 | 0.0244 | 16 | ||||||
| C3 | 0.5839 | 1 | 0.1397 | 2 | D7 | 0.4057 | 11 | 0.0567 | 6 | |
| D8 | 0.3379 | 16 | 0.0472 | 7 | ||||||
| D9 | 0.2564 | 23 | 0.0358 | 8 | ||||||
| B2 (0.2258) | C4 | 0.3138 | 2 | 0.0709 | 5 | D10 | 0.1532 | 31 | 0.0109 | 24 |
| D11 | 0.3781 | 12 | 0.0268 | 14 | ||||||
| D12 | 0.4687 | 7 | 0.0332 | 9 | ||||||
| C5 | 0.1809 | 3 | 0.0408 | 9 | D13 | 0.3314 | 18 | 0.0135 | 22 | |
| D14 | 0.1643 | 29 | 0.0067 | 29 | ||||||
| D15 | 0.5043 | 4 | 0.0206 | 20 | ||||||
| C6 | 0.5054 | 1 | 0.1141 | 3 | D16 | 0.2085 | 26 | 0.0238 | 17 | |
| D17 | 0.5843 | 2 | 0.0667 | 4 | ||||||
| D18 | 0.2072 | 27 | 0.0236 | 18 | ||||||
| B3 (0.3592) | C7 | 0.1926 | 2 | 0.0691 | 7 | D19 | 0.4781 | 6 | 0.0331 | 10 |
| D20 | 0.3590 | 13 | 0.0248 | 15 | ||||||
| D21 | 0.1629 | 30 | 0.0113 | 23 | ||||||
| C8 | 0.8074 | 1 | 0.2900 | 1 | D22 | 0.2109 | 25 | 0.0612 | 5 | |
| D23 | 0.3022 | 21 | 0.0876 | 2 | ||||||
| D24 | 0.4869 | 5 | 0.1412 | 1 | ||||||
| B4 (0.1758) | C9 | 0.2914 | 2 | 0.0512 | 8 | D25 | 0.4430 | 10 | 0.0227 | 19 |
| D26 | 0.5570 | 3 | 0.0285 | 13 | ||||||
| C10 | 0.6106 | 1 | 0.1073 | 4 | D27 | 0.2897 | 22 | 0.0311 | 11 | |
| D28 | 0.7103 | 1 | 0.0762 | 3 | ||||||
| C11 | 0.0980 | 3 | 0.0172 | 11 | D29 | 0.2390 | 24 | 0.0041 | 31 | |
| D30 | 0.3122 | 20 | 0.0054 | 30 | ||||||
| D31 | 0.4488 | 8 | 0.0077 | 28 |
| Plane Type | Layout A | Layout B | Layout C |
|---|---|---|---|
| Plane sketch | ![]() | ![]() | ![]() |
| Plane shape | “-” shape (B/D ≈ 1) | “-” shape (B/D ≈ 2) | “L” shape (B/D > 1) |
| Construction base | ~82.3 m2 (Face width 9.8 m/Depth 8.4 m) | ~80.5 m2 (Face width 6.6 m/Depth 12.3 m) | ~88.7 m2 (Face width 11.4 m/Depth 8.8 m) |
| Plane type | Layout D | Layout E | Layout F |
| Plane sketch | ![]() | ![]() | ![]() |
| Plane shape | “L” shape (B/D < 1) | Concave shape (B/D ≈ 1) | Quadrangle (B/D < 1) |
| Floor area | ~98.5 m2 (Face width 9.9 m/Depth 11.7 m) | ~102.5 m2 (Face width 10.5 m/Depth 10.8 m) | ~115.4 m2 (Face width 11.2 m/Depth 12.9 m) |
| Type | Horizontal | Vertical | Horizontal and Vertical Intersection | Horizontal and Vertical Separation |
|---|---|---|---|---|
| Ritual space combination sketch | ![]() | ![]() | ![]() | ![]() |
| Space relation | The fire pit and the memorial site overlap and are horizontally connected to the living hall. | The fire pit misaligns with the memorial site and the memorial site and the living hall overlap. | The fire pit and the memorial site overlap and are vertically connected to the living hall. | The fire pit and the memorial site are independent from each other and the memorial site and the lobby overlap. |
| Axis relation | Horizontal axis (master): fire pit; memorial site; living hall. Vertical axis (auxiliary): entrance; fire pit. | Vertical axis (master): entrance; lobby; fire pit. Vertical axis (auxiliary): living hall; fire pit. Horizontal axis (auxiliary): living hall; furniture. | Vertical axis (master): living hall; fire pit; memorial site. Horizontal axis (auxiliary): living hall; furniture. | Vertical axis (master): entrance; lobby; memorial site. Vertical axis and horizontal axis (auxiliary): fire pit (center). |
Disclaimer/Publisher’s Note: The statements, opinions and data contained in all publications are solely those of the individual author(s) and contributor(s) and not of MDPI and/or the editor(s). MDPI and/or the editor(s) disclaim responsibility for any injury to people or property resulting from any ideas, methods, instructions or products referred to in the content. |
© 2024 by the authors. Licensee MDPI, Basel, Switzerland. This article is an open access article distributed under the terms and conditions of the Creative Commons Attribution (CC BY) license (https://creativecommons.org/licenses/by/4.0/).
Share and Cite
Wang, D.; Wei, X.; Yan, X.; Sohaib, O. A Study on Sustainable Design of Traditional Tujia Village Architecture in Southwest Hubei, China. Buildings 2024, 14, 128. https://doi.org/10.3390/buildings14010128
Wang D, Wei X, Yan X, Sohaib O. A Study on Sustainable Design of Traditional Tujia Village Architecture in Southwest Hubei, China. Buildings. 2024; 14(1):128. https://doi.org/10.3390/buildings14010128
Chicago/Turabian StyleWang, Di, Xiaodong Wei, Xiangqi Yan, and Osama Sohaib. 2024. "A Study on Sustainable Design of Traditional Tujia Village Architecture in Southwest Hubei, China" Buildings 14, no. 1: 128. https://doi.org/10.3390/buildings14010128
APA StyleWang, D., Wei, X., Yan, X., & Sohaib, O. (2024). A Study on Sustainable Design of Traditional Tujia Village Architecture in Southwest Hubei, China. Buildings, 14(1), 128. https://doi.org/10.3390/buildings14010128











