Abstract
The growing demand for energy-efficient and environmentally sustainable building materials has led to an increasing interest in hybrid timber-concrete construction. These structures combine the advantages of the two materials, potentially reducing the carbon footprint, shortening construction timelines, and improving seismic and building physics performance. Herein the structural and environmental performance of ten-story timber-concrete hybrid and a pure concrete building, designed for the Guizhou Province, China, were compared. The structural analysis revealed a significant reduction in the self-weight and base shear of the hybrid structure. The life-cycle analysis demonstrated that the hybrid building outperformed the concrete building in six categories, including global warming potential, acidification potential, human health particulate, eutrophication potential, ozone depletion potential, and photochemical ozone formation potential. Notably, the hybrid building exhibited nearly 65% lower emissions in terms of global warming potential. Moreover, the inclusion of wood components offered the added benefit of carbon storage throughout their lifespan. These findings provide compelling support for the development and implementation of high-rise timber-based hybrid buildings in China. The advantages observed in both structural and environmental aspects encourage the adoption of this innovative construction approach, contributing to sustainable and eco-friendly building practices.
1. Introduction
The annual release of 37 billion tons of carbon dioxide (CO2) into the atmosphere (year 2020) contributes significantly to climate change and global warming, presenting an urgent challenge. Among the sectors contributing to CO2 emissions, the building and construction industry is responsible for nearly 40% of global energy-related CO2 emissions, with more than half of these emissions attributed to material management processes, including extraction and manufacturing, across various industries [1]. In particular, Chinese cement and steel industries, which account for nearly half of the world’s total production, are highly energy-intensive and significant sources of CO2 emissions and air pollution [2].
Given the urgent need to reduce greenhouse gas emissions and mitigate the impacts of climate change, it is imperative to explore sustainable alternatives to conventional building materials and practices. The use of low-carbon renewable materials such as wood is increasingly being recognized as a practical solution to mitigate carbon emissions. Wood possesses several attractive attributes, including its lightweight nature, mechanical strength, thermal efficiency, and capacity to create comfortable living spaces [3]. Wood buildings are characterized by the concept of lower embodied energy consumption compared to steel and concrete production [4]. Wooden structures provide significant advantages of tackling climate change, because wood not only can be used as an alternative to other materials to reduce GHG emissions, but also has distinctive features such as storing carbon [5]. Besides being used as a building material, wood can be reused as a raw material for other structures after the building’s service life or, as a last resort, burned instead of fossil fuels.
Wood products offer a significant opportunity to mitigate carbon emissions by effectively storing carbon and serving as substitutes for materials with higher emissions. Additionally, wood possesses excellent insulation properties, making it an efficient thermal insulator in both cold and warm environments. Incorporating wood into building construction enhances energy efficiency, leading to reduced energy consumption and long-term savings in heating and cooling costs [6]. Consequently, the extensive use of wood in buildings not only promotes sustainability but also contributes to improved energy efficiency. Through the implementation of proper forest management practices, forests can continue to sequester carbon while providing a sustainable supply of wood products for construction. This dual benefit helps in the fight against climate change [7].
Wood’s potential energy savings, high strength-to-weight ratio, and low global warming potential (GWP) have made it increasingly popular among architects worldwide [8], including China. In pursuit of its dual carbon goals of reaching peak emissions and attaining carbon neutrality, China has instituted more rigorous CO2 emission requirements during construction [9]. The Chinese strategy for minimizing the carbon footprint of building construction involves a focus on prefabricated techniques and the promotion of low-carbon, energy-efficient wood products [10].
Nonetheless, the substitution of traditional materials such as concrete and steel with timber presents challenges that need to be addressed. Timber structures are constrained by their low material stiffness and combustibility [11]. As the height of buildings increases, so do the lateral stiffness requirements, making it difficult to construct high-rise wooden structures. To overcome these limitations, hybrid buildings that predominantly employ wood in the gravity load resisting system have become a sensible approach. However, regulatory restrictions on the height of wooden buildings exist worldwide, including in China [12]. The current limitations in China, based on GB50016-2014 [13], allow for timber structures to be no more than three storeys or 10 meters. A viable solution for China is to combine wood with non-combustible materials. Several studies have confirmed the significant potential of timber-concrete and timber-steel hybrid buildings in terms of their structural performance, environmental sustainability, and construction speed [14,15,16,17].
To evaluate the environmental impact of buildings, Life Cycle Analysis (LCA) has been developed as a reliable method for assessing the life cycle performance of buildings, materials, and components from “cradle” to “grave” [18]. Designers use LCA to analyze a building’s energy and materials’ impact on the environment, integrating the complete life cycle of products to devise sustainable building solutions [19]. LCA estimates the environmental impact over the entire lifespan of a building, from resource extraction to landfill disposal and beyond, providing a means to evaluate a building’s sustainability and its constituent parts. This methodology can be applied to various types of buildings, including residential, commercial, and industrial structures, as well as construction projects such as new construction, renovations, and refurbishments [20].
Numerous previous studies have investigated the environmental impact of wood in comparison to other building materials, such as reinforced concrete. A cradle-to-construction site analysis contrasted the environmental impact of traditional cast-in-place concrete with engineered wood products, including hybrid cross-laminated timber (CLT) and glued laminated timber (GLT), and found that the environmental impact of engineered wood products is lower than that of concrete [21]. Similarly, a LCA compared three materials, namely, GLT, CLT, and concrete, and revealed that the embodied energy of CLT is nearly 2.5 times higher than that of concrete [22]. Compared to concrete and steel, engineered wood products for multi-storey residential buildings performed favorably in LCA categories such as greenhouse gas, acidification, human toxicity, and fission depletion [23]. The CO2 emissions of high-rise residential buildings constructed with CLT were reduced by 29% to 34% compared with reinforced concrete [24]. However, despite the growing body of research on the environmental impact of wood-based construction, limited research has been conducted on the LCA of timber-concrete hybrid systems, and further investigation is needed.
While there is a considerable body of research comparing timber to traditional building materials like concrete, utilizing life cycle and carbon footprint analyses, there exists a research gap concerning a specific comparison between concrete and timber-concrete hybrid buildings in terms of both structural and life cycle analyses. To fill this gap, the primary aim of this research was to compare the seismic and LCA performance of timber-based hybrid high-rise construction and pure concrete systems within the Chinese context.
To accomplish this objective, the study commences with the design of two 10-storey buildings: a GLT frame building featuring a concrete core, and a conventional pure concrete building. In the next step, seismic analyses were conducted using ETABS software. Subsequently, the Athena Impact Estimator for Building (IE4B) software, an open-source tool, was utilized to perform the LCA assessments. The final phase of the research involved comparing the structural and environmental performance of the two buildings.
The obtained results are expected to offer guidance to structural engineers involved in the selection of materials for multi-story construction to make informed decisions regarding sustainable construction practices.
2. Structural Design
2.1. Building Description
In this study, a 10-storey hotel was designed, featuring a timber-concrete hybrid system, comprising GLT frames and concrete shear walls, situated in Jianhe County, Guizhou province, China. Each storey measured 3.9 m in height, culminating in a total building height of 46.4 m up to the rooftop. A typical floor encompassed an area of 23.1 m × 40 m, resulting in a building area of 10,000 m2.
The hybrid building incorporated a concrete core, a concrete base, and a GLT frame system. The first floor, constructed of concrete, served as the parking lot, while the upper nine stories featured a mass-timber superstructure, responsible for supporting all gravity loads. The concrete core functioned as the wind and seismic lateral load-resisting system [25]. The structure’s design adhered to the current structural design codes and technical standards of China, with Eurocode 5 [26] utilized as a reference for key connections or component designs, such as the timber-concrete composite (TCC) floor design. The glued-in Holz-Beton-Verbund (HBV) shear connector [27] was used for the TCC beams, as shown in Figure 1a. Figure 1b illustrated the connection application detail for the TCC beam to the concrete core walls.

Figure 1.
(a) HBC connection in TCC beam; (b) Timber beam to concrete wall connection.
The concrete building also consisted of a concrete core and base, the latter of which was used as a parking lot. However, instead of GLT frames, it employed reinforced concrete gravity framing for the gravity system. The design of this concrete building was based on the Chinese building code GB 50010-2010 [28]. Both buildings were modeled using ETABS [29], as depicted in Figure 2.
Figure 2.
3D ETABS model: (a) Hybrid building; (b) Concrete building.
2.2. Structural Design Details
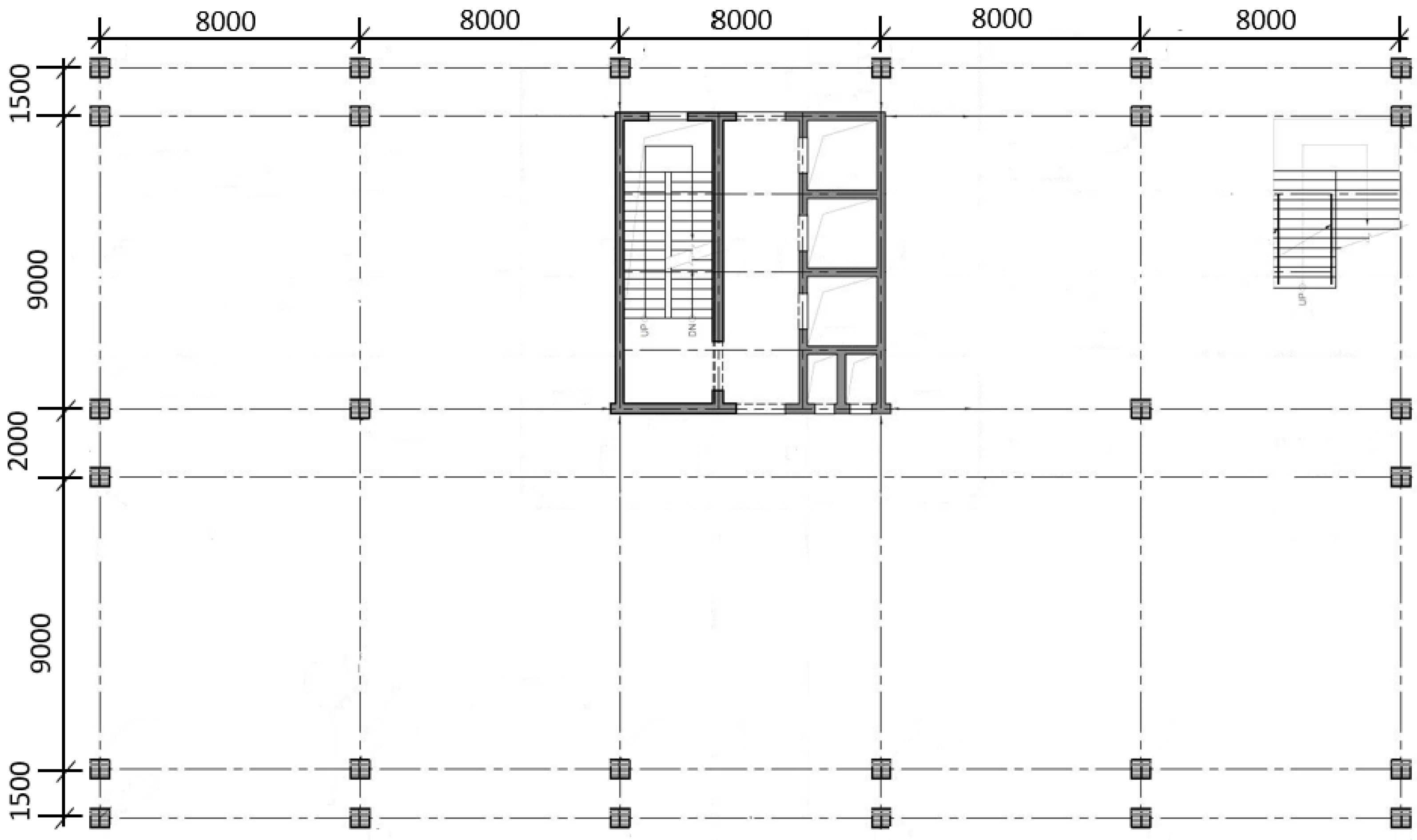
The gravity loads considered in both models comprise dead load, live load, and snow load. For a typical floor, as shown in Figure 3, the total dead load, which included a 100 mm concrete topping, partition load, and miscellaneous items, amounted to 3.73 kPa. Meanwhile, the total dead load for the roof was 2.75 kPa, and the live load was 2.45 kPa. The roof snow load, which varied according to location, was determined to be 4.90 kPa, as specified in GB 50009-2012 [30] for Chinese hotels. According to GB 50011-2010 [31], the lateral load-resisting systems were designed to withstand seismic precautionary intensity 7, with a basic ground acceleration of 0.1 g (low seismicity) for site class II.
Figure 3.
Typical floor plan for both buildings.
The hybrid model employed GLT frames to transfer gravity loads to the foundation, utilizing grade TCT21 for both girders and columns [25,30]. In terms of vertical loads, the typical column size was 580 mm × 580 mm. The primary GLT girders function as framing beams, spanning between 9 m and 11 m in the north-south direction, while secondary GLT beams were placed atop to support the floor slabs in the east-west direction. The girders were designed with a depth of 580 mm to meet structural clearance requirements. A cross-section of 290 mm × 290 mm was chosen for the GLT girders, while a cross-section of 240 mm × 400 mm was selected for the secondary GLT beams. These specifications were determined based on Chinese timber building design codes GB 50009-2012 [30], GB 50005-2017 [32], GB 50206-2012 [33], GB/T 50329-2002 [34] and GB/T 50708-2012 [35] using the properties as summarized in Table 1.
Table 1.
Glulam material properties.
The timber-based hybrid model used wooden frames to transfer gravity loads, and the columns were pinned to avoid imposing lateral stiffness on the lateral load-resisting system. The model also took into account P-Delta effects caused by lateral deflections. The concrete building, on the other hand, followed the specifications of GB 50010-2010 [28] and utilized concrete slabs and columns to transfer gravity loads. The slab/beam and column connections were fixed, and C45 strength grade normal density concrete was used.
In both models, the primary structure, consisting of the top nine stories, was supported by an underground floor with perimeter retaining walls on three sides. The models also considered soil pressure loads applied to the retaining walls. CLT base supports were treated as pinned to the ground, discounting any connection stiffness, which was negligible compared to the stiffness of the shear walls. Foundations comprised strip footings beneath the columns and perimeter retaining walls, along with a slab (pad) footing under the core shear wall.
Concerning the lateral load-resisting system, ductile-reinforced concrete shear walls were designated for both models. As shown in Figure 4, the hybrid model positions the walls in the center of the plan as a “core” system to accommodate architectural elements. Concrete slabs on metal decking, resting on wood frames, were modeled to bear gravity loads and functioned as diaphragms for transferring seismic shear to the core shear walls. In the concrete model, shear walls were optimized in conjunction with reinforced concrete moment frames.
Figure 4.
Lateral load resisting system for both models.
3. Seismic Analysis
3.1. Fundamental Vibration Mode Comparison
The core and foundation walls of both buildings were modeled using ETABS software. The Equivalent Static Method (ESM), as outlined in GB 50011-2010 [31], was also applied and compared to the software-generated results. For both models, the shear walls were designed to accommodate 100% of the seismic load. To address the diminished stiffness of cracked sections, adjustments were made to the stiffness values: slab stiffness was reduced by 25%, while the stiffness of shear walls and concrete columns was decreased to 70% and 50%, respectively.
Given that GB 50011-2010 [31] specifies ESM was only applicable to buildings under 40 m in height, a modal analysis in ETABS was necessary for the 10-story, 47 m tall hotel. The natural vibration periods of the first three modes, computed using modal analyses, are presented in Table 2. The pure concrete structure had longer periods due to its increased weight. The linear dynamic analysis in ETABS considered twelve vibration modes, achieving a model mass participation ratio of 95%, which met code requirements. The dynamic analysis demonstrated that the fundamental vibration mode contributed the majority of the base shear, and the higher-mode effect on seismic responses could be disregarded for this timber-based hybrid tall building.
Table 2.
Modal periods of hybrid building and pure concrete building.
3.2. Ground Motion Selection
The Chinese Code for Seismic Design of Buildings (GB 50011-2010) [31] stipulates that when analyzing seismic behavior, the average value of the time history method and the larger value of the mode decomposition response spectrum method must be used if seven or more time history curves are taken. Furthermore, the base shear force calculated by each time history curve in elastic time history analysis should not be less than 65% of that calculated by the mode decomposition response spectrum method. The average value of the bottom shear force calculated by multiple time history curves should not be less than 80% of that calculated by the mode decomposition response spectrum method.
In accordance with these provisions, a set of seven ground motions was selected consisting of five historical ground motions and two artificial ground motions, based on the site-specific characteristics of the building, as summarized in Table 3. According to the GB50011-2010 [31], for the Jianhe County in Guizhou with 7 seismic fortification and peak ground acceleration of 0.1 g, the maximum seismic influence coefficient αmax is set as 0.08, and the corresponding target spectrum is shown in Figure 5. The five earthquake records were selected from the Pacific Earthquake Engineering Research (PEER) database (PEER, 2013). All the selected records were linearly scaled to match their response spectra to the target design spectrum of the building site, as depicted in Figure 5.
Table 3.
Selected Ground Motions.
Figure 5.
Spectral acceleration diagram of the selected ground motions.
3.3. Base Shear Comparison
Based on seismic provisions of the Chinese code and ETABS models, the seismic base shear forces in the X and Y directions (see Figure 4) for the timber-concrete hybrid and pure concrete models were determined, as shown in Figure 6. The base shear forces for the hybrid and concrete models in X and Y directions were 3449 kN and 4716 kN and 3084 kN and 3903 kN, respectively, representing 37% and 27% reductions, respectively. The lower base shear of the hybrid model suggests that replacing concrete framing with timber is an effective approach with significant implications as lighter foundations and less reinforcement in shear walls can be utilized, leading to reduced construction costs and environmental impact.
Figure 6.
Maximum base shear: (a) Hybrid building; (b) Concrete building.
3.4. Inter-Story Drift Comparison
In compliance with the current seismic design code in China, the Code for Seismic Design of Building (GB50011-2010) [31], the inter-story drift in both elastic and elastic-plastic states must not exceed 1/800 and 1/100, respectively, to prevent damage to the lateral load resisting systems, non-structural components, and sensitive elements. Figure 7 illustrates the elastic story drifts of the hybrid and pure concrete structures under the response spectrum in the X direction. It is important to note that the actual inelastic story drifts can be obtained by multiplying these values with the corresponding ductility coefficient of the structure. The results show that the maximum inter-story drift in storey 2 of the hybrid structure is almost half that of the all-concrete structure (0.03% versus 0.06%), and both values comply with the drift limit of 1/800. This significant difference can be attributed to the higher weight of the superstructure in the pure concrete structure. The stiffness of the lateral load-resisting system in storey 2 is almost identical in both buildings, as their shear wall thicknesses are the same. This similarity is due to the minimum wall thickness requirement in the Chinese concrete code. Additionally, the drift ratios for the pure concrete structure in the higher stories are higher than those for the hybrid structure, but the difference is smaller, ranging from 25% to 50%.
Figure 7.
Maximum story drift in X direction: (a) Hybrid building; (b) Concrete building.
4. Life-Cycle Analyses
4.1. Methods
The environmental impact of both the concrete and timber-concrete hybrid buildings was assessed using the open-source software, Athena Impact Estimator for Building (IE4B) [36]. This software can be used for any type of construction project in North America and includes a life cycle inventory (LCI) called the Athena database or TRACI 2.1 [37]. The LCI is the data collection portion of the LCA [38] that focuses on impact categories like ozone depletion, climate change, acidification, eutrophication, smog formation, and non-renewable energy consumption [39]. The building’s design blueprints provided the material inputs for the LCA and were included in the data collection report. The LCA was conducted for a 60-year service life for a commercial structure, conforming to ISO 14040 standard [40]. The assessment was conducted by estimating quantities of materials and processes in the building, estimating environmental impacts for each material and process, and estimating the total environmental impact of the building using the six impact categories of the TRACI protocol. The LCA included a cradle-to-grave assessment of the material effect of structure, envelope, and operating energy and water use, as modelled by IE4B [36]. Table 4 shows the system boundaries corresponding to the life-cycle stages of the buildings. Material waste outcomes and waste transportation were included in the assessment based on the practical availability of the data. The Athena analysis included only modules A, C, and D, which include production, construction, end-of-life, and beyond-building life cycling. These modules were based on the EN15804 [41] and EN15978 standards [42]. Module B was not included because of insufficient consensus in methodology and data to quantify these effects for all products, and there was no known planned refurbishment for the building.
Table 4.
Life cycle stages from EN 15804 [41] and EN 15978 [42].
4.2. Building Material Inventory
The Bill of Materials (BOM) for the 10-storey concrete building served as the baseline for comparing the two structures. The BOM exported from ETABS included foundations, columns, beams, floors, and walls for both structures. The pure concrete structure consisted of a shear wall, concrete slabs, concrete columns and beams, and all related rebar. The hybrid structure included a foundation, concrete shear walls, concrete topping of the slab, and GLT beams and columns. The total mass of materials for each building component were calculated, see Table 5. The results indicated that replacing concrete with GLT frames in the hybrid structure led to a 36% reduction in concrete with 5843 × 103 kg compared to 9189 × 103 kg. Additionally, the hybrid foundation is only 700 mm thick under the core wall, whereas the pure concrete structure has a 900 mm thick core wall slab footing. As a result, the composite structure requires less excavation and has a faster construction process. Furthermore, the lower consumption of concrete and base shear resulted in less steel reinforcement needed for the hybrid structure’s elements, using only 39% steel reinforcement compared to the pure concrete structure. These reductions in concrete and steel consumption have significant financial, environmental, and CO2 emission impacts.
Table 5.
Bill of material for hybrid building and pure concrete building.
4.3. Environmental Impact Categories Comparison
In Figure 8, LEED (Leadership in energy and environmental design) LCA measures comparison report cradle-to-grave (A to D), the timber-concrete hybrid building has a lower environmental impact in all categories, such as global warming potential, Stratospheric ozone depletion, Acidification Potential, Eutrophication, Smog potential, Human health (HH) particulate, Nonrenewable energy consumption, Fossil fuel consumption, and total primary energy consumption. The most significant finding from these results is the substantial difference in Global Warming Potential (GWP) between the two building types. Specifically, the hybrid building has been found to have 65% lower GWP compared to the concrete building, which highlights the environmental benefits of using timber in construction. Therefore, utilizing timber in construction can lead to a substantial decrease in emissions related to the construction industry. By further minimizing energy consumption in buildings, timber can help achieving the sustainable development goals.
Figure 8.
LEED LCA measure comparison cradle to grave (A to D).
Table 6 shows the comparison of the overall impacts of the two buildings. The timber-concrete building system offers better environmental performance for all the analyzed impact categories. The GWP of the concrete building, 1.79 × 106 kg CO2 eq/m2, more than double the GWP of hybrid building, 6.26 × 105 kg CO2 eq/m2. The emissions from chainsaws used in forest operations impact the Tropospheric Ozone Formation Potential (POCP or Smog) value, however, despite this, wooden materials still have an advantage over concrete, with a reduction of 3.6 × 104 kg O3 eq/m2. Additionally, the hybrid building has lower Stratospheric Ozone Depletion Potential (ODP) and Acidification Potential (AP) compared to the concrete building, with reductions of 8.86% and 15.30%, respectively. The concrete construction provides 1.58 × 10−2 kg CFC-11 eq against 1.44 × 10−2 kg CFC-11 eq and 8.76 × 103 kg SO2 eq instead of 7.42 × 103 kg SO2 eq of timber-concrete hybrid building.
Table 6.
LEED LCA measure comparison cradle to grave.
4.4. Building Component Group Comparison
In Figure 9, the environmental impacts of different building components are presented as a percentage of six impact categories using LCA results. The concrete building’s foundation, floor, and roof, primarily consisting of concrete by volume, contributed approximately 50% of the building’s material. Similarly, the timber-concrete hybrid building had the same components but used a mass-timber superstructure supported by a concrete core that acted as both the wind and seismic lateral load-resisting system.
Figure 9.
Contribution of building components: (a) Hybrid building; (b) Concrete building.
The floors and roof contributed approximately 50% of the environmental impact indicators for both buildings, except for the Global Warming Potential (GWP), which had a lower emission rate of 15% in the hybrid building due to the use of mass timber. Therefore, the GWP was reduced by 35% in the timber-concrete building. The concrete building’s foundation was responsible for the second-highest emission portion, with 23% in Ozone Depletion Potential (ODP), 22% in Acidification Potential (AP), Human Health Potential (HHP), Eutrophication Potential (EP), and 21% in Smog Potential (SP). However, in the timber-concrete hybrid building, the foundation’s contribution decreased to approximately 17%, while it remained the second-highest emitter in GWP with 42%. Shear walls had similar emissions in both buildings, with approximately 21% in the concrete structure and around 22%, except for GWP with 57%, in the hybrid building. The columns and beams had the lowest contribution to environmental impact, with approximately 7% in the pure concrete building and around 6% in the hybrid building. However, the use of glulam material resulted in a decrease of −14% in GWP.
4.5. Environmental Impacts by Life-Cycle Stage Comparison
The LCA results presented in Figure 10 show the contributions of each construction stage for the hybrid building compared to the concrete building. The analysis focuses on the life-cycle stages (A–C), neglecting the use stage (B). For the timber-concrete hybrid building, the GWP based on the life cycle stage has decreased to 69% and 63% in modules of production (A1–A3) and construction process (A4 & A5), respectively, rather than in concrete building. This confirms that cement production for concrete has a significantly higher environmental impact than wood materials. However, GWP beyond the building life of the hybrid building is three times more than the concrete structure because of timber harvesting to make engineered wood products, reducing the total biomass pool of stored carbon, and increasing atmospheric CO2 concentrations [43].
Figure 10.
Environmental impacts: (a) GWP; (b) AP; (c) HH; (d) EP; (e) ODP; (f) Smog.
The Acidification Potential (AP) category shows that the timber-concrete hybrid building has a higher concentration of NOx and SO2 in the modules of production (A1–A3) and end-of-life compared to concrete, but the difference is reduced by 15% and 13%, respectively. Moreover, the AP of the hybrid building extends beyond its lifespan and is three times lower compared to the concrete structure. This finding suggests that the hybrid building exhibits superior performance in terms of reuse, recycling, and recovery, even beyond the boundaries of the building system.
The HH category reveals that the timber-concrete hybrid building has decreased emissions by 34% and 31% in the construction process (A4 & A5) and end of life (C1–C4), respectively, compared to concrete. In the EP category, the timber-concrete hybrid building has 61% less eutrophication potential in the construction process (A4 & A5) compared to concrete. The ODP for the hybrid building corresponds to 92% and 86% of the concrete structure’s ODP in modules of production stage (A1–A3) and end of life (C1–C4), respectively, with the lowest portion of ODP emissions in the hybrid building’s construction process (A4 & A5). Finally, the Smog category shows that the timber-concrete hybrid building has a 41% lower emission than the concrete structure in the construction process (A4 & A5).
4.6. Discussion
Table 7 displays the emissions for each building stage in terms of GWP, acidification potential, human health particulate, eutrophication potential, ozone depletion potential, smog potential, and total primary energy categories.
Table 7.
Life-cycle assessment environmental impact data summarized by life-cycle stage.
In both the concrete and timber-concrete hybrid buildings, A1–A3 contributed the majority of the GWP emissions at 88% and 87%, respectively. The hybrid building’s construction stages (A4 & A5) and end-of-life (C) stages had a more significant impact on emissions than the concrete building. Eutrophication potential was found to have a more significant impact on both buildings after GWP, ODP, and HH particulate, with total emissions of 829 and 712 kg N eq. A1–A3 also contributed the majority of eutrophication potential emissions at 80% and 83% for the concrete and hybrid buildings, respectively. In contrast, Smog Potential was the only category where production stages did not account for more than 65% of total emissions. The production stage contributed approximately 62% of total smog potential emission, with construction and end-of-life accounting for 13–17% and 23–25%, respectively.
Forecasting beyond-life considerations for buildings can be a challenging task, especially when predicting several decades into the future. For timber-concrete hybrid buildings, the Global Warming Potential (GWP) impact category can be significantly affected by the beyond-building life stage (D) and the methodologies adopted for accounting carbon emissions. Table 8 shows the study of beyond-building life emissions (stage D), including the biogenic carbon of mass timber buildings. The amount of sequestered carbon for the hybrid building in stages A–D is significantly lower than the total amount of embodied carbon in stages A–C. The timber-concrete hybrid building has a considerably lower environmental impact than the concrete structure due to the smaller amount of sequestered carbon associated with it.
Table 8.
LCA global warming potential data for life-cycle stage D.
Concrete is widely recognized as a highly durable material capable of withstanding substantial loads, extreme weather conditions, and prolonged exposure to moisture. However, concrete is susceptible to cracks, arising from shrinkage, thermal expansion, and chemical reactions which can necessitate maintenance efforts and compromise the overall structural durability. Timber-concrete hybrid buildings offer a synergistic combination of the durability of concrete with the renewable and aesthetically pleasing properties of wood. The incorporation of wood in these structures provides additional advantages such as natural insulation, enhanced indoor air quality, and a reduced environmental impact compared to pure concrete buildings without compromising its durability.
While a cost evaluation was beyond the scope of the research presented herein, it is recognized that hybrid timber construction may entail higher initial costs. However, the long-term environmental benefits can outweigh the upfront expenses, and potential savings may be realized in maintenance and operational aspects.
5. Conclusions
In this study, the structural and environmental performances of a timber-concrete hybrid building and a pure concrete building were compared. Both buildings were designed to comply with seismic precautionary intensity 7, with a basic acceleration of ground motion of 0.1 g, following the Chinese standard for a site class II in Guizhou, China. Upon analyzing the obtained results and engaging in in-depth discussions, the following conclusions can be drawn:
(1) The structural analysis demonstrated that replacing the concrete with a wooden frame resulted in a weight reduction of approximately 30% and substantial decreases in the base shear of 37% and 27% in the X and Y directions, respectively, and nearly 50% reduction in maximum inter-storey drift. The enhanced seismic performance for the low seismicity of the chosen site also resulted in reduced foundation requirements, leading to time and cost savings in construction.
(2) The LCA results revealed that the timber-concrete hybrid building produced about 65% less emissions compared to the concrete structure, resulting in a significantly lower impact on global warming. In all six environmental impact categories considered, the timber-concrete hybrid building outperformed the pure concrete structure. Furthermore, the inclusion of wood as a component in the hybrid structure provided the added benefit of carbon storage throughout its lifetime, contributing to a further reduction in GWP.
In summary, the utilization of a timber-concrete hybrid approach demonstrated improved structural performance and reduced the environmental impact. This underscores the importance of considering wood as an alternative material in construction to achieve sustainable and efficient building practices.
Author Contributions
Conceptualization, X.Z. and T.T.; methodology, M.A.; software, M.K.; validation, X.Z., T.T. and W.H.; formal analysis, X.Z.; investigation, X.Z., M.A. and M.K.; resources, W.H.; data curation, W.H.; writing—original draft preparation, W.H., M.A. and M.K.; writing—review and editing, X.Z. and T.T.; visualization, X.Z. and W.H.; supervision, X.Z. and T.T.; project administration, X.Z. and T.T.; funding acquisition, X.Z. and T.T. All authors have read and agreed to the published version of the manuscript.
Funding
This research was funded by the National Key R&D Program of China (Grant Nos. 2021YFF0500804); The National Natural Science Foundation of China (Grant Nos. 52108192); The Chongqing Technology Innovation and Application Development Project (Grant Nos. CSTB2022TIAD-KPX0138); General funded project of China Postdoctoral Science Foundation (Grant Nos. 2022M710528); The OEICDI fund (Grant Nos. B13041); Open Research Fund for Key Laboratory of Building Structure Reinforcement and Underground Space Engineering, Ministry of Education (Grant Nos. MEKL202204); The Entrepreneurship and Innovation Support Program for Overseas-educated student in Chongqing China (Grant Nos. CX2021085).
Data Availability Statement
The data presented are available on request from the corresponding author.
Conflicts of Interest
The authors declare no conflict of interest.
References
- The Carbon Challenge-Carbon Leadership Forum. Available online: https://carbonleadershipforum.or/ (accessed on 22 June 2022).
- Hasanbeigi, A.; Khanna, N.; Price, L. Air Pollutant Emissions Projections for the Cement and Steel Industry in China and the Impact of Emissions Control Technologies; Lawrence Berkeley National Lab: Berkeley, CA, USA, 2017. [Google Scholar]
- Dong, Y.; Qin, T.; Zhou, S.; Huang, L.; Bo, R.; Guo, H.; Yin, X. Comparative whole building life cycle assessment of energy saving and carbon reduction performance of reinforced concrete and timber stadiums—A case study in China. Sustainability 2020, 12, 1566. [Google Scholar] [CrossRef]
- Kazulis, V.; Muizniece, I.; Zihare, L.; Blumberga, D. Carbon storage in wood products. Energy Procedia 2017, 128, 558–563. [Google Scholar] [CrossRef]
- Kutnar, A.; Hill, C. Life Cycle Assessment—Opportunities for Forest Products Sector. BioProducts Business. 2017, 2, 52–64. [Google Scholar]
- Asdrubali, F.; Ferracuti, B.; Lombardi, L.; Guattari, C.; Evangelisti, L.; Grazieschi, G. A review of structural, thermo-physical, acoustical, and environmental properties of wooden materials for building applications. Build. Environ. 2017, 114, 307–332. [Google Scholar]
- Li, T.; Zhu, M.; Yang, Z.; Song, J.; Dai, J.; Yao, Y.; Hu, L. Wood composite as an energy efficient building material: Guided sunlight transmittance and effective thermal insulation. Adv. Energy Mater. 2016, 6, 1601122. [Google Scholar] [CrossRef]
- Iqbal, A. Developments in tall wood and hybrid buildings and environmental impacts. Sustainability 2021, 13, 11881. [Google Scholar] [CrossRef]
- Chi, Y.; Liu, Z.; Wang, X.; Zhang, Y.; Wei, F. Provincial CO2 emission measurement and analysis of the construction industry under China’s carbon neutrality target. Sustainability 2021, 13, 1876. [Google Scholar] [CrossRef]
- Cement Production Global 2021|Statista. Available online: https://www.statista.com/ (accessed on 16 July 2022).
- Felme, G.; Morales-Vera, R.; Astroza, R.; González, I.; Puettmann, M.; Wishnie, M. A lifecycle assessment of a low-energy mass-timber building and mainstream concrete alternative in central Chile. Sustainability 2022, 14, 1249. [Google Scholar] [CrossRef]
- Karol, S.; Jianli, H.; Isaac, G.; Weiqi, X.; Subo, W.; Zitong, C. Feasibility study on further utilization of timber in China. In Proceedings of the IOP Conference Series: Materials Science and Engineering, Bangkok, Thailand, 24–26 February 2018. [Google Scholar]
- GB 50016-2014; Code for Design on Building Fire Protection and Prevention. China Planning Press: Beijing, China, 2018.
- Minjuan, H.; Duo, T.; Zheng, L. Research progress of multi-story and high-rise timber and timber hybrid structures. J. Build. Struct. 2016, 37, 1–9. [Google Scholar]
- Zhang, X.; Azim, M.R.; Bhat, P.; Popovski, M.; Tannert, T. Seismic performance of embedded steel beam connection in cross-laminated timber panels for tall-wood hybrid system. Can. J. Civ. Eng. 2017, 44, 611–618. [Google Scholar] [CrossRef]
- Zhang, X.; Shahnewaz, M.; Tannert, T. Seismic reliability analysis of a timber steel hybrid system. Eng. Struct. 2018, 167, 629–638. [Google Scholar] [CrossRef]
- Dias, A.M.P.G.; Skinner, J.; Crews, K.; Tannert, T. Timber-concrete-composites increasing the use of timber in construction. Eur. J. Wood Wood Prod. 2016, 74, 443–451. [Google Scholar] [CrossRef]
- Margni, M.; Curran, M.A. Life Cycle Assessment Handbook: A Guide for Environmentally Sustainable Products, 1st ed.; John Wiley & Sons: Hoboken, NJ, USA, 2012; pp. 67–103. [Google Scholar]
- Monteiro, H.; Soares, N. Integrated life cycle assessment of a southern European house addressing different design, construction solutions, operational patterns, and heating systems. Energy Rep. 2022, 8, 526–532. [Google Scholar] [CrossRef]
- Hernandez, P.; Oregi, X.; Longo, S.; Cellura, M. Life-cycle assessment of buildings. In Handbook of Energy Efficiency in Buildings, 2nd ed.; Asdrubali, F., Desideri, U., Eds.; Butterworth-Heinemann: Oxford, UK, 2019; Volume 3, pp. 207–261. [Google Scholar]
- Robertson, A.B.; Lam, F.C.; Cole, R.J. A comparative cradle-to-gate life cycle assessment of mid-rise office building construction alternatives: Laminated timber or reinforced concrete. Buildings 2012, 2, 245–270. [Google Scholar] [CrossRef]
- Basaglia, B.; Lewis, K.; Shrestha, R.; Crews, K. A comparative life cycle assessment approach of two innovative long span timber floors with its reinforced concrete equivalent in an Australian context. In Proceedings of the International Conference on Performance-based and Life-cycle Structural Engineering, Brisbane, Australia, 9–11 December 2015. [Google Scholar]
- Lu, H.R.; El Hanandeh, A.; Gilbert, B.P. A comparative life cycle study of alternative materials for Australian multi-storey apartment building frame constructions: Environmental and economic perspective. J. Clean. Prod. 2017, 166, 458–473. [Google Scholar] [CrossRef]
- Jayalath, A.; Navaratnam, S.; Ngo, T.; Mendis, P.; Hewson, N.; Aye, L. Life cycle performance of Cross Laminated Timber mid-rise residential buildings in Australia. Energy Build. 2020, 223, 110091. [Google Scholar] [CrossRef]
- Zhang, X.; Xuan, L.; Huang, W.; Yuan, L.; Li, P. Structural design and analysis for a timber-concrete hybrid building. Front. Mater. 2022, 9, 844398. [Google Scholar] [CrossRef]
- EN1995 Eurocode 5; Design of Timber Structures. Thomas Telford Ltd.: London, UK, 2014. [CrossRef]
- TiComTec Technical Dossier HBV-System. Available online: https://ticomtec.de/en/ (accessed on 15 July 2022).
- GB 50010-2010; Code for Design of Concrete Structures. China Architecture and Building Press: Beijing, China, 2015.
- Guleria, A. Structural analysis of a multi-storeyed building using ETABS for different plan configurations. Int. J. Eng. Res. Technol. 2014, 3, 1481–1485. [Google Scholar]
- GB 50009-2012; Load Code for the Design of Building Structures. China Architecture and Building Press: Beijing, China, 2012.
- GB 50011-2010; Code for Seismic Design of Buildings. China Architecture and Building Press: Beijing, China, 2016.
- GB 5005-2017; Standard Design of Timber Structures. China Architecture and Building Press: Beijing, China, 2017.
- GB 50206-2012; Code for acceptance of Construction Quality of Timber Structures. China Architecture and Building Press: Beijing, China, 2012.
- GB/T 50329-2002; Standard for Methods Testing of Timber Structures. China Architecture and Building Press: Beijing, China, 2002.
- GB/T 50708-2012; Technical Code of Glued Laminated Timber Structures. China Architecture and Building Press: Beijing, China, 2012.
- Athena Sustainable Materials Institute. LCA, LCI, LCIA, LCC: What’s the Difference? 2018. Available online: http://www.athenasmi.org/resources (accessed on 16 August 2022).
- Wu, T.; Gong, M.; Xiao, J. Preliminary sensitivity study on an life cycle assessment (LCA) tool via assessing a hybrid timber building. J. Bioresour. Bioprod. 2020, 5, 108–113. [Google Scholar] [CrossRef]
- Athena Sustainable Materials Institute. LCI database. 2018. Available online: http://www.athenasmi.org (accessed on 16 August 2022).
- Bare, J.C. TRACI: The tool for the reduction and assessment of chemical and other environmental impacts. J. Ind. Ecol. 2002, 6, 49–78. [Google Scholar] [CrossRef]
- ISO, 14040: 2006; Environmental Management–Life Cycle Assessment–Principles and Framework. ISO: Geneva, Switzerland, 2006.
- EN 15804:2012; CEN Sustainability of Construction Works—Environmental Product Declarations—Core Rules for the Product Category of Construction Products. European Committee for Standardization: Brussels, Belgium, 2013.
- EN 15978:2011; CEN Sustainability of Constructions—Environmental Product Declarations—Core Rules for the Product Category of Construction Products. European Committee for Standardization: Brussels, Belgium, 2011.
- Allan, K.; Phillips, A.R. Comparative cradle-to-grave life cycle assessment of low and mid-rise mass timber buildings with equivalent structural steel alternatives. Sustainability 2021, 13, 3401. [Google Scholar]
Disclaimer/Publisher’s Note: The statements, opinions and data contained in all publications are solely those of the individual author(s) and contributor(s) and not of MDPI and/or the editor(s). MDPI and/or the editor(s) disclaim responsibility for any injury to people or property resulting from any ideas, methods, instructions or products referred to in the content. |
© 2023 by the authors. Licensee MDPI, Basel, Switzerland. This article is an open access article distributed under the terms and conditions of the Creative Commons Attribution (CC BY) license (https://creativecommons.org/licenses/by/4.0/).










