Structural Performance of Reinforced Concrete Beams Incorporating Cathode-Ray Tube (CRT) Glass Waste
Abstract
1. Introduction
2. Materials and Methods
2.1. Mix Design
2.2. Casting
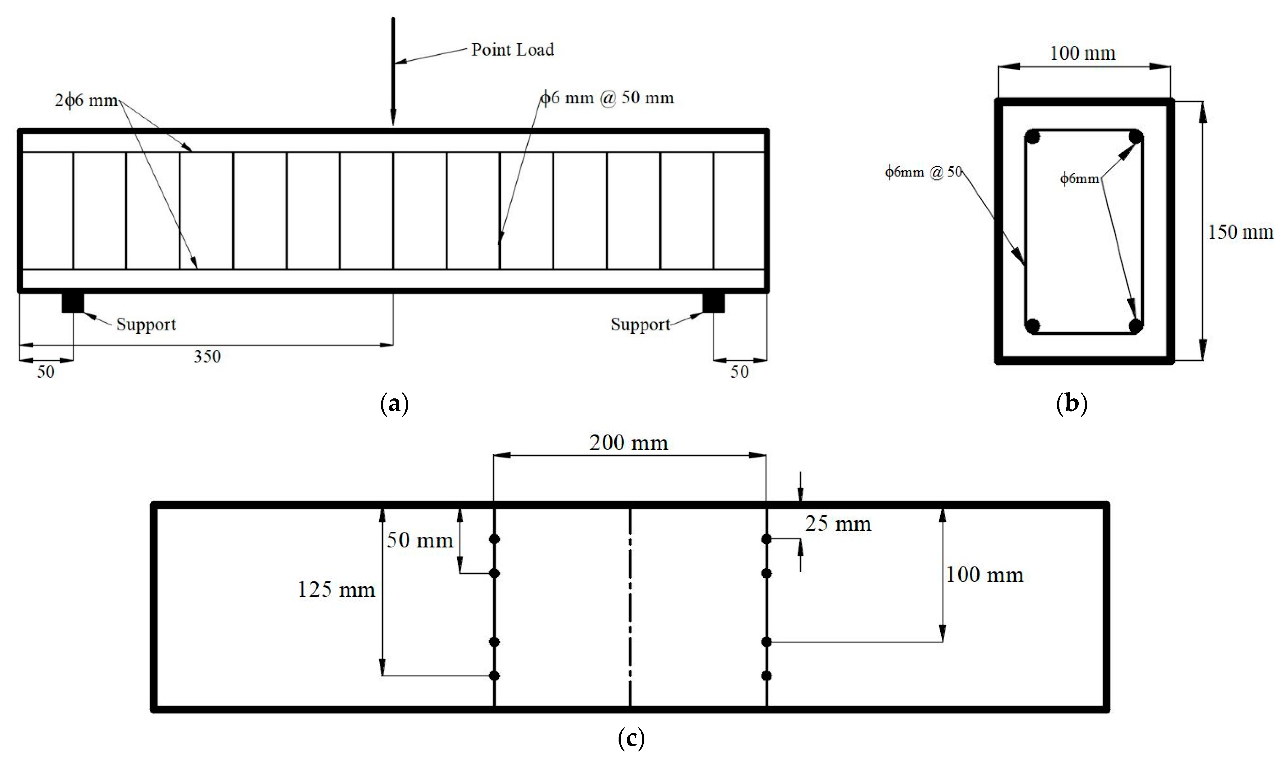
2.3. Reinforced Concrete Beams Details
2.4. Experimental Testing
2.5. Numerical Modeling
3. Results and Discussion
3.1. Concrete Properties
3.2. Load Deflection
3.3. Yield Displacement
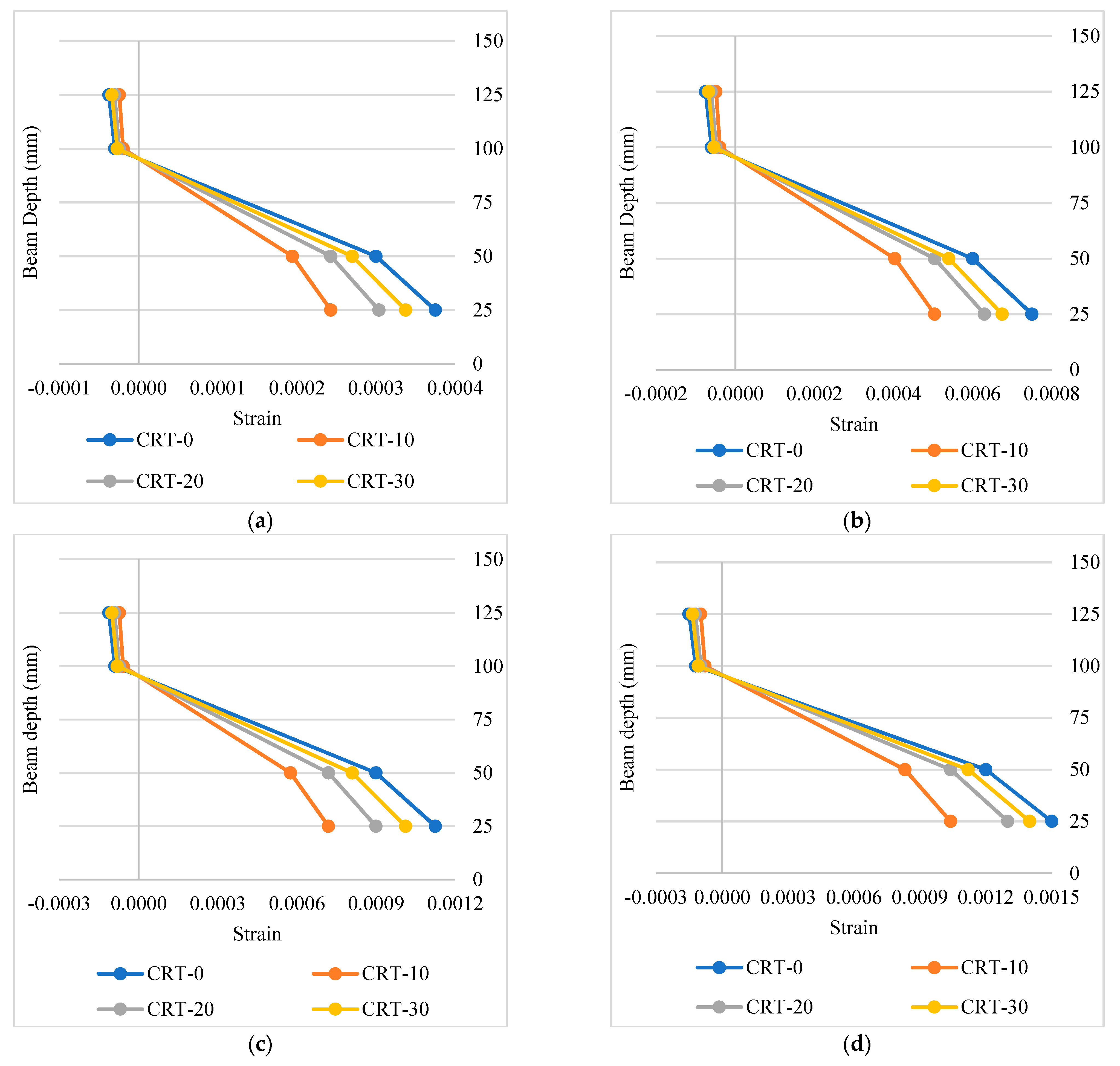
3.4. Crack Appearance and Strain Distribution
3.5. Numerical Analysis
4. Conclusions
Author Contributions
Funding
Institutional Review Board Statement
Informed Consent Statement
Data Availability Statement
Conflicts of Interest
References
- Baldé, C.P.; Forti, V.; Gray, V.; Kuehr, R.; Stegmann, P. The Global E-Waste Monitor 2017: Quantities, Flows and Resources; United Nations University, ITU and ISWA: Bonn, Germany, 2017; ISBN 9789280890. [Google Scholar]
- Poon, C.S. Management of CRT glass from discarded computer monitors and TV sets. Waste Manag. 2008, 28, 6389. [Google Scholar] [CrossRef]
- Jiang, X.J.; Liu, J.X.; Yan, K.; Guo, X.Y. Prediction of electronic waste amount and metal cumulative amount features. Nonferrous Met. Sci. Eng. 2016, 7, 104–109. [Google Scholar]
- Rocchetti, L.; Beolchini, F. Environmental burdens in the management of end-of-life cathode ray tubes. Waste Manag. 2014, 34, 468–474. [Google Scholar] [CrossRef]
- Qi, Y.; Xiao, X.; Lu, Y.; Shu, J.; Wang, J.; Chen, M. Cathode ray tubes glass recycling: A review. Sci. Total Environ. 2019, 650, 2842–2849. [Google Scholar] [CrossRef] [PubMed]
- Singh, N.; Li, J.; Zeng, X. Global responses for recycling waste CRTs in e-waste. Waste Manag. 2016. [Google Scholar] [CrossRef]
- Andreola, F.; Barbieri, L.; Corradi, A.; Lancellotti, I. CRT glass state of the art: A case study: Recycling in ceramic glazes. J. Eur. Ceram. Soc. 2007, 27, 1623–1629. [Google Scholar] [CrossRef]
- Andreola, F.; Barbieri, L.; Corradi, A.; Lancellotti, I. Cathode ray tube glass recycling: An example of clean technology. Waste Manag. Res. 2005. [Google Scholar] [CrossRef]
- Lee, C.; Hsi, C. Recycling of Scrap Cathode Ray Tubes. Environ. Sci. Technol. 2002, 36, 69–75. [Google Scholar] [CrossRef]
- Singh, N.; Wang, J.; Li, J. Waste Cathode Rays Tube: An Assessment of Global Demand for Processing. Procedia Environ. Sci. 2016, 31, 465–474. [Google Scholar] [CrossRef][Green Version]
- Elshkaki, A.; van der Voet, E.; Timmermans, V.; Van Holderbeke, M. Dynamic stock modelling: A method for the identification and estimation of future waste streams and emissions based on past production and product stock characteristics. Energy 2005, 30, 1353–1363. [Google Scholar] [CrossRef]
- Seeberger, J.; Grandhi, R.; Kim, S.S.; Mase, W.A.; Reponen, T.; Ho, S.; Chen, A. E-Waste Management in the United States and Public Health Implications. J. Environ. Health 2016, 79, 8–17. [Google Scholar]
- Singh, N.; Li, J.; Zeng, X. Solutions and Challenges in Recycling Waste Cathode-Ray Tubes. J. Clean. Prod. 2016. [Google Scholar] [CrossRef]
- Zhao, H.; Poon, C.S. A comparative study on the properties of the mortar with the cathode ray tube funnel glass sand at different treatment methods. Constr. Build. Mater. 2017, 148, 900–909. [Google Scholar] [CrossRef]
- Taha, B.; Nounu, G. Properties of concrete contains mixed colour waste recycled glass as sand and cement replacement. Constr. Build. Mater. 2008, 22, 713–720. [Google Scholar] [CrossRef]
- Kim, I.S.; Choi, S.Y.; Yang, E.I. Evaluation of durability of concrete substituted heavyweight waste glass as fine aggregate. Constr. Build. Mater. 2018, 184, 269–277. [Google Scholar] [CrossRef]
- Romero, D.; James, J.; Mora, R.; Hays, C.D. Study on the mechanical and environmental properties of concrete containing cathode ray tube glass aggregate. Waste Manag. 2013, 33, 1659–1666. [Google Scholar] [CrossRef]
- Ling, T.C.; Poon, C.S. A comparative study on the feasible use of recycled beverage and CRT funnel glass as fine aggregate in cement mortar. J. Clean. Prod. 2012, 29–30, 46–52. [Google Scholar] [CrossRef]
- Bawab, J.; Khatib, J.; Jahami, A.; Kenai, S.; Elkordi, A. Effect of Using Cathode-Ray Tubes (CRT) Waste Glass on Concrete Properties. BAU J.-Sci. Technol. 2020, 2. Available online: https://digitalcommons.bau.edu.lb/stjournal/vol2/iss1/3 (accessed on 3 January 2021).
- Jóźwiak-Niedźwiedzka, D.; Lessing, P.A. High-density and radiation shielding concrete. In Developments in the Formulation and Reinforcement of Concrete; Elsevier: Amsterdam, The Netherlands, 2019; pp. 193–228. [Google Scholar]
- Ling, T.C.; Poon, C.S. Effects of particle size of treated CRT funnel glass on properties of cement mortar. Mater. Struct. Constr. 2013, 46, 25–34. [Google Scholar] [CrossRef]
- Ling, T.C.; Poon, C.S.; Lam, W.S.; Chan, T.P.; Fung, K.K.L. Utilization of recycled cathode ray tubes glass in cement mortar for X-ray radiation-shielding applications. J. Hazard. Mater. 2012, 199–200, 321–327. [Google Scholar] [CrossRef]
- Ouldkhaoua, Y.; Benabed, B.; Abousnina, R.; Kadri, E.-H.; Khatib, J. Effect of using metakaolin as supplementary cementitious material and recycled CRT funnel glass as fine aggregate on the durability of green self-compacting concrete. Constr. Build. Mater. 2020, 235, 117802. [Google Scholar] [CrossRef]
- Wang, J.; Guo, S.; Dai, Q.; Si, R.; Ma, Y. Evaluation of cathode ray tube (CRT) glass concrete with/without surface treatment. J. Clean. Prod. 2019, 226, 85–95. [Google Scholar] [CrossRef]
- Song, W.; Zou, D.; Liu, T.; Teng, J.; Li, L. Effects of recycled CRT glass fine aggregate size and content on mechanical and damping properties of concrete. Constr. Build. Mater. 2019, 202, 332–340. [Google Scholar] [CrossRef]
- Hui, Z.; Sun, W. Study of properties of mortar containing cathode ray tubes (CRT) glass as replacement for river sand fine aggregate. Constr. Build. Mater. 2011, 25, 4059–4064. [Google Scholar] [CrossRef]
- Zhao, H.; Poon, C.S.; Ling, T.C. Utilizing recycled cathode ray tube funnel glass sand as river sand replacement in the high-density concrete. J. Clean. Prod. 2013, 51, 184–190. [Google Scholar] [CrossRef]
- Hama, S.H.; Mahmoud, A.S.; Yassen, M.M. Flexural behavior of reinforced concrete beam incorporating waste glass powder. Structures 2019, 20, 510–518. [Google Scholar] [CrossRef]
- Metawei, H.; Arafa, D. The Flexural Behavior of Reinforced Concrete Beam with Recycled Coarse and Fine Glass Aggregate. In Proceedings of the 2nd International conference Sustainable Construction and Project Management-Sustainable Infrastructure and Transportation for Future Cities, Aswan, Egypt, 16 December 2018. [Google Scholar]
- Khatib, J.; Jahami, A.; Elkordi, A.; Baalbaki, O. Structural performance of reinforced concrete beams containing plastic waste caps. Mag. Civ. Eng. 2019, 91, 73–79. [Google Scholar] [CrossRef]
- Khatib, J.; Jefimiuk, A.; Khatib, S. Flexural behaviour of reinforced concrete Beams containing expanded glass as Lightweight aggregates. Slovak J. Civ. Eng. 2015, 23, 1–7. [Google Scholar] [CrossRef]
- Jahami, A.; Khatib, J.; Baalbaki, O.; Sonebi, M. Prediction of deflection in reinforced concrete beams containing plastic waste. Acad. J. Civ. Eng. 2019, 37, 551–555. [Google Scholar] [CrossRef]
- Jahami, A.; Khatib, J.; Bakri, A.; Alaina, R.; Lushnikova, N. Study of the Influence of Waste Plastic Straw Fibers on Concrete Properties. 2020. Available online: https://ssrn.com/abstract=3560342 (accessed on 3 January 2021).
- Khatib, J.; Shariff, S.; Negim, E.M. Effect of incorporating foamed glass on the flexural behaviour of reinforced concrete beams. World Appl. Sci. J. 2012, 19, 47–51. [Google Scholar]
- Cardinale, T.; D’Amato, M.; Sulla, R.; Cardinale, N. Mechanical and Physical Characterization of Papercrete as New Eco-Friendly Construction Material. Appl. Sci. 2021, 11, 1011. [Google Scholar] [CrossRef]
- Ferrándiz-Mas, V.; Bond, T.; García-Alcocel, E.; Cheesman, C.R. Lightweight mortars containing expanded polystyrene and paper sludge ash. Constr. Build. Mater. 2014, 61, 285–292. [Google Scholar] [CrossRef]
- Temsah, Y.; Jahami, A.; Khatib, J.; Sonebi, M. Numerical analysis of a reinforced concrete beam under blast loading. In MATEC Web of Conferences; EDP Sciences: Ulis, France, 2018; Volume 149, p. 02063. [Google Scholar] [CrossRef]
- Temsah, Y.; Jahami, A.; Khatib, J.; Sonebi, M. Numerical Derivation of Iso-Damaged Curve for a Reinforced Concrete Beam Subjected to Blast Loading. In MATEC Web of Conferences; EDP Sciences: Ulis, France, 2018; Volume 149, p. 02016. [Google Scholar] [CrossRef][Green Version]
- Jahami, A.; Temasah, Y.; Khatib, J. The efficiency of using CFRP as a strengthening technique for reinforced concrete beams subjected to blast loading. Int. J. Adv. Struct. Eng. 2019, 11, 411–420. [Google Scholar] [CrossRef]
- Jahami, A.; Temsah, Y.; Khatib, J.; Baalbaki, O.; Darwiche, M.; Chaaban, S. Impact behavior of rehabilitated post-tensioned slabs previously damaged by impact loading. Mag. Civ. Eng. 2020, 93, 134–146. [Google Scholar] [CrossRef]
- BS EN 12350-6. Testing Fresh Concrete. Density; BSI: London, UK, 2009. [Google Scholar]
- BS EN 12504-4. Testing Concrete. Determination of Ultrasonic Pulse Velocity; BSI: London, UK, 2004. [Google Scholar]
- BS EN 12390-3. Testing Hardened Concrete-Part 3: Compressive Strength of Test Specimens; BSI: London, UK, 2002. [Google Scholar]
- BS EN 12390-6. Testing Hardened Concrete-Part 6: Tensile Splitting Strength of Test Specimens; BSI: London, UK, 2009. [Google Scholar]
- BS EN 12390-13. Testing Hardened Concrete–Part 13: Determination of Secant Modulus of Elasticity in Compression; BSI: London, UK, 2013. [Google Scholar]
- Hibbitt, H.; Karlsson, B.; Sorensen, P. Abaqus Analysis User’s Manual Version 6.10. Dassault Systèmes Simulia Corp. Provid: Johnston, RI, USA, 2011. [Google Scholar]
- Lawson, I.; Danso, K.A.; Odoi, H.C.; Adjei, C.A.; Quashie, F.K.; Mumuni, I.I.; Ibrahim, I.S. Non-destructive evaluation of concrete using ultrasonic pulse velocity. Res. J. Appl. Sci. Eng. Technol. 2011, 3, 499–504. [Google Scholar]
- Yildirim, S. Research on Strength, Alkali-Silica Reaction and Abrasion Resistance of Concrete with Cathode Ray Tube Glass Sand. In Sustainable Buildings—Interaction Between a Holistic Conceptual Act and Materials Properties; IntechOpen: London, UK, 2018; pp. 131–150. [Google Scholar]












| Mix Code | Quantities (Kg/m3) | ||||||
|---|---|---|---|---|---|---|---|
| OPC | Sand | CRT 1 | Gravel | Water | SP | W/C | |
| CRT-0 | 334 | 668 | 0 | 1336 | 173.68 | 5.34 | 0.52 |
| CRT-10 | 334 | 601 | 74.5 | 1336 | 173.68 | 4.34 | 0.52 |
| CRT-20 | 334 | 534 | 150 | 1336 | 173.68 | 3.34 | 0.52 |
| CRT-30 | 334 | 468 | 224 | 1336 | 173.68 | 2.34 | 0.52 |
| Parameter | Symbol | Value |
|---|---|---|
| Poisson’s ratio | υ | 0.2 |
| Dilation angle (°) | ψ | 36 |
| Eccentricity | ɛ | 0.1 |
| Bi-axial to Uni-axial strength ratio | fb0/ft0 | 1.16 |
| Second stress invariant ratio | K | 0.67 |
| Viscosity parameter | μ | 0 |
| Mix | Density (Kg/m3) | UPV (m/s) and (% Error) | Compressive Strength (MPa) and (% Error) | Tensile Strength (MPa) | Modulus of Elasticity (MPa) |
|---|---|---|---|---|---|
| CRT-0 | 2465 | 4732 (±1.3%) | 31.4 (±10%) | 2.957 | 30,688 |
| CRT-10 | 2470 | 4854 (±3.4%) | 37.9 (±0.9%) | 3.263 | 34,331 |
| CRT-20 | 2484 | 4831 (±3.4%) | 34.2 (±5.0%) | 2.964 | 32,618 |
| CRT-30 | 2534 | 4751 (±0.2%) | 32.8 (±4.0%) | 2.926 | 31,444 |
| Beam | Maximum Load (kN) | Maximum Deflection (mm) | ||||
|---|---|---|---|---|---|---|
| Experimental | Numerical | Error | Experimental | Numerical | Error | |
| CRT-0 | 40.2 | 42.4 | 5.5% | 14.2 | 14.2 | 0% |
| CRT-10 | 45.6 | 46.2 | 1.3% | 14.3 | 14.0 | 2.1% |
| CRT-20 | 42 | 42.3 | 0.7% | 16.1 | 15.8 | 1.9% |
| CRT-30 | 41 | 42.3 | 3.2% | 15 | 14.7 | 2% |
Publisher’s Note: MDPI stays neutral with regard to jurisdictional claims in published maps and institutional affiliations. |
© 2021 by the authors. Licensee MDPI, Basel, Switzerland. This article is an open access article distributed under the terms and conditions of the Creative Commons Attribution (CC BY) license (http://creativecommons.org/licenses/by/4.0/).
Share and Cite
Bawab, J.; Khatib, J.; Jahami, A.; Elkordi, A.; Ghorbel, E. Structural Performance of Reinforced Concrete Beams Incorporating Cathode-Ray Tube (CRT) Glass Waste. Buildings 2021, 11, 67. https://doi.org/10.3390/buildings11020067
Bawab J, Khatib J, Jahami A, Elkordi A, Ghorbel E. Structural Performance of Reinforced Concrete Beams Incorporating Cathode-Ray Tube (CRT) Glass Waste. Buildings. 2021; 11(2):67. https://doi.org/10.3390/buildings11020067
Chicago/Turabian StyleBawab, Jad, Jamal Khatib, Ali Jahami, Adel Elkordi, and Elhem Ghorbel. 2021. "Structural Performance of Reinforced Concrete Beams Incorporating Cathode-Ray Tube (CRT) Glass Waste" Buildings 11, no. 2: 67. https://doi.org/10.3390/buildings11020067
APA StyleBawab, J., Khatib, J., Jahami, A., Elkordi, A., & Ghorbel, E. (2021). Structural Performance of Reinforced Concrete Beams Incorporating Cathode-Ray Tube (CRT) Glass Waste. Buildings, 11(2), 67. https://doi.org/10.3390/buildings11020067

