Assessment of Outdoor Pedestrian Ventilation Performance While Controlling Building Array Scale and Density
Abstract
1. Introduction
1.1. General Background
1.2. Literature Review on Urban Ventilation and Problem Statement
1.3. Objectives
2. Methodologies
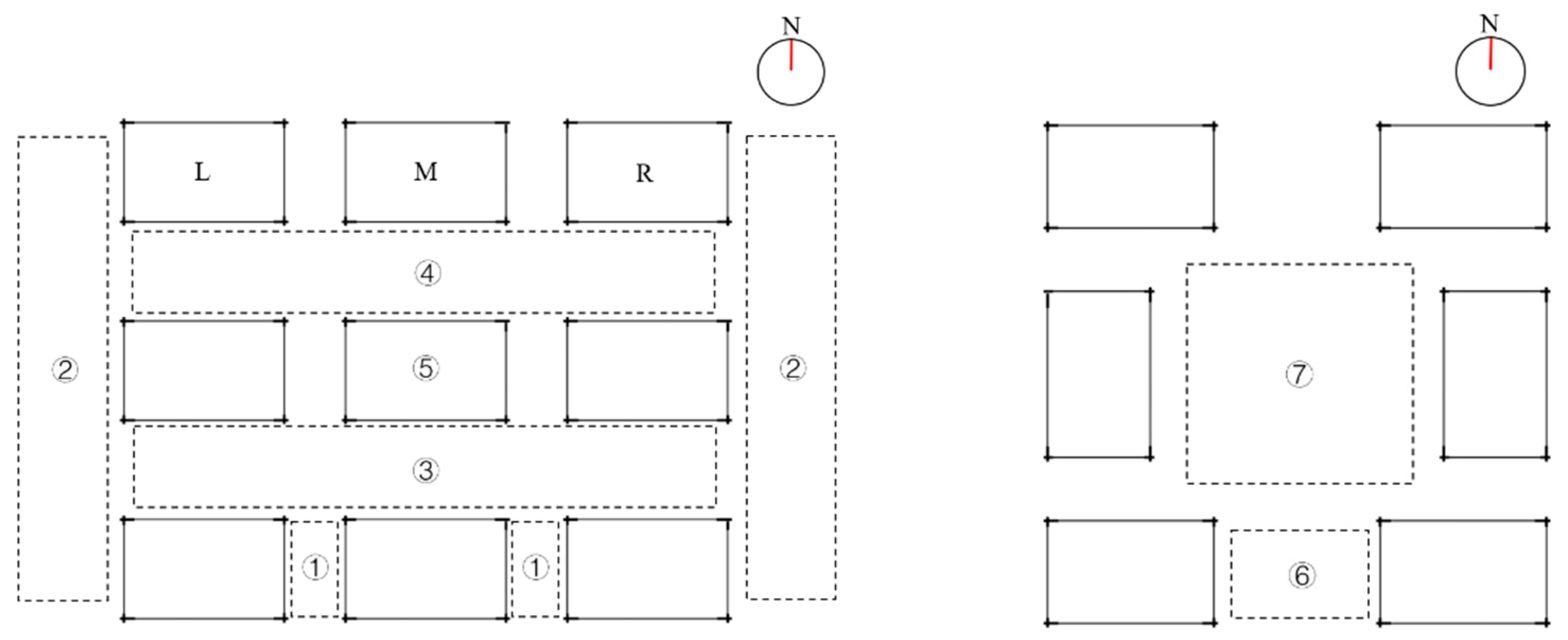
2.1. Determination of Neighborhood Block Configuration
2.2. Experimental Data for CFD Validation
2.3. CFD Validation: Computational Settings and Parameters
2.3.1. Computational Domain and Grid
2.3.2. Boundary Conditions
2.3.3. Solver Setting
2.3.4. Grid-Sensitivity Analysis
2.3.5. Turbulence Models
2.4. CFD Simulation Setting for Full-Scale Building Arrays
3. Velocity Simulation Results
3.1. Building Length
3.2. Building Height
3.3. Building Distance
3.4. Staggered Layout
3.5. Enclosed Layout and Semi-Enclosed Layout
4. Discussion
5. Conclusions
6. Limitations and Future Study
Author Contributions
Funding
Conflicts of Interest
References
- Zhou, W.; Qian, Y.; Li, X.; Li, W.; Han, L. Relationships between land cover and the surface urban heat island: Seasonal variability and effects of spatial and thematic resolution of land cover data on predicting land surface temperatures. Landsc. Ecol. 2013, 29, 153–167. [Google Scholar] [CrossRef]
- Huang, J.; Jones, P.; Zhang, A.; Peng, R.; Li, X.; Chan, P.-W. Urban Building Energy and Climate (UrBEC) simulation: Example application and field evaluation in Sai Ying Pun, Hong Kong. Energy Build. 2020, 207, 109580. [Google Scholar] [CrossRef]
- Kato, S.; Yamaguchi, Y. Analysis of urban heat-island effect using ASTER and ETM+ Data: Separation of anthropogenic heat discharge and natural heat radiation from sensible heat flux. Remote Sens. Environ. 2005, 99, 44–54. [Google Scholar] [CrossRef]
- Tan, J.; Zheng, Y.; Tang, X.; Guo, C.; Li, L.; Song, G.; Zhen, X.; Yuan, D.; Kalkstein, A.J.; Li, F. The urban heat island and its impact on heat waves and human health in Shanghai. Int. J. Biometeorol. 2010, 54, 75–84. [Google Scholar] [CrossRef] [PubMed]
- Santamouris, M. Recent progress on urban overheating and heat island research. Integrated assessment of the energy, environmental, vulnerability and health impact. Synergies with the global climate change. Energy Build. 2020, 207, 109482. [Google Scholar] [CrossRef]
- Taha, H. Urban climates and heat islands: Albedo, evapotranspiration, and anthropogenic heat. Energy Build. 1997, 25, 99–103. [Google Scholar] [CrossRef]
- Smargiassi, A.; Goldberg, M.S.; Plante, C.; Fournier, M.; Baudouin, Y.; Kosatsky, T. Variation of daily warm season mortality as a function of micro-urban heat islands. J. Epidemiol. Community Health 2009, 63, 659–664. [Google Scholar] [CrossRef]
- Mirzaei, P.A.; Haghighat, F. Approaches to study Urban Heat Island—Abilities and limitations. Build. Environ. 2010, 45, 2192–2201. [Google Scholar] [CrossRef]
- Sakka, A.; Santamouris, M.; Livada, I.; Nicol, F.; Wilson, M. On the thermal performance of low income housing during heat waves. Energy Build. 2012, 49, 69–77. [Google Scholar] [CrossRef]
- Whitman, S.; Good, G.; Donoghue, E.R.; Benbow, N.; Shou, W.Y.; Mou, S.X. Mortality in Chicago attributed to the July 1995 heat wave. Am. J. Public Health 1997, 87, 1515–1518. [Google Scholar] [CrossRef]
- Dhainaut, J.F.; Claessens, Y.E.; Ginsburg, C.; Riou, B. Unprecedented heat-related deaths during the 2003 heat wave in Paris: Consequences on emergency departments. Crit. Care 2004, 8, 1–2. [Google Scholar] [CrossRef] [PubMed]
- Ren, C.; Yang, R.Z.; Cheng, C.; Xing, P.; Fang, X.Y.; Zhang, S.; Wang, H.F.; Shi, Y.; Zhang, X.Y.; Kwok, Y.T.; et al. Creating breathing cities by adopting urban ventilation assessment and wind corridor plan—The implementation in Chinese cities. J. Wind Eng. Ind. Aerodyn. 2018, 182, 170–188. [Google Scholar] [CrossRef]
- Yang, F.; Qian, F.; Lau, S.S.Y. Urban form and density as indicators for summertime outdoor ventilation potential: A case study on high-rise housing in Shanghai. Build. Environ. 2013, 70, 122–137. [Google Scholar] [CrossRef]
- Wang, W.; Yang, T.; Li, Y.; Xu, Y.; Chang, M.; Wang, X. Identification of pedestrian-level ventilation corridors in downtown Beijing using large-eddy simulations. Build. Environ. 2020, 182, 107169. [Google Scholar] [CrossRef]
- Ng, E. Towards planning and practical understanding of the need for meteorological and climatic information in the design of high-density cities: A case-based study of Hong Kong. Int. J. Climatol. 2012, 32, 582–598. [Google Scholar] [CrossRef]
- Chan, E.Y.; Goggins, W.B.; Kim, J.J.; Griffiths, S.M. A study of intracity variation of temperature-related mortality and socioeconomic status among the Chinese population in Hong Kong. J. Epidemiol. Community Health 2012, 66, 322–327. [Google Scholar] [CrossRef]
- Mochida, A.; Lun, I.Y.F. Prediction of wind environment and thermal comfort at pedestrian level in urban area. J. Wind Eng. Ind. Aerodyn. 2008, 96, 1498–1527. [Google Scholar] [CrossRef]
- Janssen, W.D.; Blocken, B.; van Hooff, T. Pedestrian wind comfort around buildings: Comparison of wind comfort criteria based on whole-flow field data for a complex case study. Build. Environ. 2013, 59, 547–562. [Google Scholar] [CrossRef]
- Hong, B.; Lin, B.R. Numerical study of the influences of different patterns of the building and green space on micro-scale outdoor thermal comfort and indoor natural ventilation. Build. Simul. 2014, 7, 525–536. [Google Scholar] [CrossRef]
- Geon Kang, J.-J.K.; Choi, W. Computational fluid dynamics simulation of tree effects on pedestrian wind comfort in an urban area. Sustain. Cities Soc. 2020, 56, 102086. [Google Scholar] [CrossRef]
- Blocken, B.; Janssen, W.D.; van Hooff, T. CFD simulation for pedestrian wind comfort and wind safety in urban areas: General decision framework and case study for the Eindhoven University campus. Environ. Model. Softw. 2012, 30, 15–34. [Google Scholar] [CrossRef]
- Jin, H.; Wang, B.; Han, B.B. Study on Environment Regulation of Residential in Severe Cold Area of China in Winter: Base on Outdoor Thermal Comfort of the Elderly. Sustainability 2019, 11, 6509. [Google Scholar] [CrossRef]
- Muller, N.; Kuttler, W.; Barlag, A.B. Counteracting urban climate change: Adaptation measures and their effect on thermal comfort. Theor. Appl. Climatol. 2014, 115, 243–257. [Google Scholar] [CrossRef]
- Svensson, M.K.; Thorsson, S.; Lindqvist, S. A geographical information system model for creating bioclimatic maps—Examples from a high, mid-latitude city. Int. J. Biometeorol. 2003, 47, 102–112. [Google Scholar] [CrossRef] [PubMed]
- Oke, T.R. Street design and urban canopy layer climate. Energy Build. 1988, 11, 103–113. [Google Scholar] [CrossRef]
- Xie, H.M.; Huang, Z.; Wang, J.S. The impact of urban street layout on local atmospheric environment. Build. Environ. 2006, 41, 1352–1363. [Google Scholar] [CrossRef]
- Yuan, C.; Ng, E. Building porosity for better urban ventilation in high-density cities—A computational parametric study. Build. Environ. 2012, 50, 176–189. [Google Scholar] [CrossRef]
- Juan, Y.-H.; Wen, C.-Y.; Li, Z.; Yang, A.-S. A combined framework of integrating optimized half-open spaces into buildings and an application to a realistic case study on urban ventilation and air pollutant dispersion. J. Build. Eng. 2021, 44, 102975. [Google Scholar] [CrossRef]
- Li, Z.; Zhang, H.; Juan, Y.-H.; Wen, C.-Y.; Yang, A.-S. Effects of building setback on thermal comfort and air quality in the street canyon. Build. Environ. 2022, 208, 108627. [Google Scholar] [CrossRef]
- Cui, D.J.; Li, X.D.; Liu, J.L.; Yuan, L.; Mak, C.M.; Fan, Y.; Kwok, K. Effects of building layouts and envelope features on wind flow and pollutant exposure in height-asymmetric street canyons. Build. Environ. 2021, 205, 108177. [Google Scholar] [CrossRef]
- Wen, C.Y.; Juan, Y.H.; Yang, A.S. Enhancement of city breathability with half open spaces in ideal urban street canyons. Build. Environ. 2017, 112, 322–336. [Google Scholar] [CrossRef]
- Adelia, A.S.; Yuan, C.; Liu, L.; Shan, R.Q. Effects of urban morphology on anthropogenic heat dispersion in tropical high-density residential areas. Energy Build. 2019, 186, 368–383. [Google Scholar] [CrossRef]
- Chen, G.; Rong, L.; Zhang, G. Impacts of urban geometry on outdoor ventilation within idealized building arrays under unsteady diurnal cycles in summer. Build. Environ. 2021, 206, 108344. [Google Scholar] [CrossRef]
- Tsang, C.W.; Kwok, K.C.S.; Hitchcock, P.A. Wind tunnel study of pedestrian level wind environment around tall buildings: Effects of building dimensions, separation and podium. Build. Environ. 2012, 49, 167–181. [Google Scholar] [CrossRef]
- Du, Y.X.; Mak, C.M.; Liu, J.L.; Xia, Q.; Niu, J.L.; Kwok, K.C.S. Effects of lift-up design on pedestrian level wind comfort in different building configurations under three wind directions. Build. Environ. 2017, 117, 84–99. [Google Scholar] [CrossRef]
- Mittal, H.; Sharma, A.; Gairola, A. Numerical simulation of pedestrian level wind conditions: Effect of building shape and orientation. Environ. Fluid Mech. 2020, 20, 663–688. [Google Scholar] [CrossRef]
- Lee, K.Y.; Mak, C.M. Effects of wind direction and building array arrangement on airflow and contaminant distributions in the central space of buildings. Build. Environ. 2021, 205, 108234. [Google Scholar] [CrossRef]
- Xuan, Y.; Yang, G.; Li, Q.; Mochida, A. Outdoor thermal environment for different urban forms under summer conditions. Build. Simul. 2016, 9, 281–296. [Google Scholar] [CrossRef]
- Zahid Iqbal, Q.M.; Chan, A.L.S. Pedestrian level wind environment assessment around group of high-rise cross-shaped buildings: Effect of building shape, separation and orientation. Build Env. 2016, 101, 45–63. [Google Scholar] [CrossRef]
- Li, Z.; Zhang, H.; Wen, C.-Y.; Yang, A.-S.; Juan, Y.-H. Effects of frontal area density on outdoor thermal comfort and air quality. Build. Environ. 2020, 180, 25–41. [Google Scholar] [CrossRef]
- Tsichritzis, L.; Nikolopoulou, M. The effect of building height and facade area ratio on pedestrian wind comfort of London. J. Wind Eng. Ind. Aerodyn. 2019, 191, 63–75. [Google Scholar] [CrossRef]
- An, K.; Wong, S.M.; Fung, J.C.H. Exploration of sustainable building morphologies for effective passive pollutant dispersion within compact urban environments. Build. Environ. 2019, 148, 508–523. [Google Scholar] [CrossRef]
- Mohammad Hadavi, H.P. Quantifying impacts of wind speed and urban neighborhood layout on the infiltration rate of residential buildings. Sustain. Cities Soc. 2020, 53, 21–38. [Google Scholar] [CrossRef]
- Hadavi, M.; Pasdarshahri, H. Investigating effects of urban configuration and density on urban climate and building systems energy consumption. J. Build. Eng. 2021, 44, 15–31. [Google Scholar] [CrossRef]
- Chen, G.; Rong, L.; Zhang, G. Unsteady-state CFD simulations on the impacts of urban geometry on outdoor thermal comfort within idealized building arrays. Sustain. Cities Soc. 2021, 74, 16–33. [Google Scholar] [CrossRef]
- Hu, T.; Yoshie, R. Indices to evaluate ventilation efficiency in newly-built urban area at pedestrian level. J. Wind Eng. Ind. Aerodyn. 2013, 112, 39–51. [Google Scholar] [CrossRef]
- Li, Q.; Meng, Q.; Zhao, L. Research on Wind Environment around Residential Buildings with Different Planning and Design Factors. In Proceedings of the 2nd International Conference on Frontiers of Manufacturing and Design Science (ICFMD 2011), Taichung, Taiwan, 11–13 December 2011; pp. 725–729. [Google Scholar]
- Peng, Y.L.; Gao, Z.; Buccolieri, R.; Ding, W.W. An Investigation of the Quantitative Correlation between Urban Morphology Parameters and Outdoor Ventilation Efficiency Indices. Atmosphere 2019, 10, 33. [Google Scholar] [CrossRef]
- Palusci, O.; Monti, P.; Cecere, C.; Montazeri, H.; Blocken, B. Impact of morphological parameters on urban ventilation in compact cities: The case of the Tuscolano-Don Bosco district in Rome. Sci. Total Environ. 2022, 807, 150490. [Google Scholar] [CrossRef]
- You, W.; Gao, Z.; Chen, Z.; Ding, W.W. Improving Residential Wind Environments by Understanding the Relationship between Building Arrangements and Outdoor Regional Ventilation. Atmosphere 2017, 8, 102. [Google Scholar] [CrossRef]
- Zhou, H.; Lu, Y.J.; Liu, X.D.; Chang, R.D.; Wang, B. Harvesting wind energy in low-rise residential buildings: Design and optimization of building forms. J. Clean. Prod. 2017, 167, 306–316. [Google Scholar] [CrossRef]
- Shui, T.T.; Liu, J.; Yuan, Q.; Qu, Y.; Jin, H.; Cao, J.L.; Liu, L.; Chen, X. Assessment of pedestrian-level wind conditions in severe cold regions of China. Build. Environ. 2018, 135, 53–67. [Google Scholar] [CrossRef]
- Hassan, A.M.; Elmokadem, A.A.; Megahed, N.A.; Eleinen, O.M.A. Urban morphology as a passive strategy in promoting outdoor air quality. J. Build. Eng. 2020, 29, 101204. [Google Scholar] [CrossRef]
- Ma, T.; Chen, T. Classification and pedestrian-level wind environment assessment among Tianjin’s residential area based on numerical simulation. Urban Clim. 2020, 34, 100702. [Google Scholar] [CrossRef]
- Wei, Y.; Jialei, S.; Wowo, D. Improving residential building arrangement design by assessing outdoor ventilation efficiency in different regional spaces. Archit. Sci. Rev. 2018, 61, 202–214. [Google Scholar] [CrossRef]
- Lin, M.; Hang, J.; Li, Y.G.; Luo, Z.W.; Sandberg, M. Quantitative ventilation assessments of idealized urban canopy layers with various urban layouts and the same building packing density. Build. Environ. 2014, 79, 152–167. [Google Scholar] [CrossRef]
- Abd Razak, A.; Hagishima, A.; Ikegaya, N.; Tanimoto, J. Analysis of airflow over building arrays for assessment of urban wind environment. Build. Environ. 2013, 59, 56–65. [Google Scholar] [CrossRef]
- da Silva, F.T.; Reis, N.C.; Santos, J.M.; Goulart, E.V.; Maciel, F.S.; Braganca, L.; de Alvarez, C.E. Atmospheric dispersion and urban planning: An interdisciplinary approach to city modeling. Sustain. Cities Soc. 2021, 70, 102882. [Google Scholar] [CrossRef]
- Li, R.; Zhang, Y.; Huang, C.; He, C. A field study on Ground Energy Balance calculation for typical communities in South China. In Proceedings of the 12th Nordic Symposium on Building Physics, NSB 2020, Tallinn, Estonia, 6–9 September 2020; pp. 1–8. [Google Scholar]
- Blocken, B. 50 years of Computational Wind Engineering: Past, present and future. J. Wind Eng. Ind. Aerodyn. 2014, 129, 69–102. [Google Scholar] [CrossRef]
- Blocken, B.; Stathopoulos, T.; van Beeck, J.P.A.J. Pedestrian-level wind conditions around buildings: Review of wind-tunnel and CFD techniques and their accuracy for wind comfort assessment. Build. Environ. 2016, 100, 50–81. [Google Scholar] [CrossRef]
- Ramponi, R.; Blocken, B.; de Coo, L.B.; Janssen, W.D. CFD simulation of outdoor ventilation of generic urban configurations with different urban densities and equal and unequal street widths. Build. Environ. 2015, 92, 152–166. [Google Scholar] [CrossRef]
- Britter, R.E.; Hanna, S.R. Flow and dispersion in urban areas. Annu. Rev. Fluid Mech. 2003, 35, 469–496. [Google Scholar] [CrossRef]
- Lucchi, E.; D’Alonzo, V.; Exner, D.; Zambelli, P.; Garegnani, G. A Density-Based Spatial Cluster Analysis Supporting the Building Stock Analysis in Historical Towns. In Proceedings of the 16th IBPSA Conference, Rome, Italy, 2–4 September 2019; pp. 3831–3838. [Google Scholar]
- G50180-2018; Standard for Urban Residential Area Planning and Design. China Architecture & Building Press: Beijing, China, 2018.
- Nonomura, Y.; Kobayashi, N.; Tominaga, Y.; Mochida, A. The cross comparison of CFD results for flowfield around building models (Part 3): The Wind Tunnnel Test for the Varification Models on the Flowfield around Building Blocks. JWE 2003, 95, 83–84. [Google Scholar]
- Franke, J.; Hellsten, A.; Schlünzen, H.; Carissimo, B. Best Practice Guideline for the CFD Simulation of Flows in the Urban Environment; University of Hamburg: Hamburg, Germany, 2007. [Google Scholar]
- Tominaga, Y.; Mochida, A.; Yoshie, R.; Kataoka, H.; Nozu, T.; Yoshikawa, M.; Shirasawa, T. AIJ guidelines for practical applications of CFD to pedestrian wind environment around buildings. J. Wind Eng. Ind. Aerodyn. 2008, 96, 1749–1761. [Google Scholar] [CrossRef]
- Blocken, B.; Stathopoulos, T.; Carmeliet, J. CFD simulation of the atmospheric boundary layer: Wall function problems. Atmos. Environ. 2007, 41, 238–252. [Google Scholar] [CrossRef]
- Ntinas, G.K.; Shen, X.; Wang, Y.; Zhang, G. Evaluation of CFD turbulence models for simulating external airflow around varied building roof with wind tunnel experiment. Build. Simul. 2017, 11, 115–123. [Google Scholar] [CrossRef]
- Blocken, B. LES over RANS in building simulation for outdoor and indoor applications: A foregone conclusion? Build. Simul. 2018, 11, 821–870. [Google Scholar] [CrossRef]
- Handbook, A.F. Airflow Around Buildings; ASHRAE: Peachtree Corners, Georgia, 2009. [Google Scholar]
- Ministry of Housing and Urban-Rural Development, China. Load Code for the Design of Building Structures (GB 50009-2012); China Architecture & Building Press: Beijing, China, 2012. (In Chinese) [Google Scholar]
- Chen, L.; Hang, J.; Sandberg, M.; Claesson, L.; Di Sabatino, S.; Wigo, H. The impacts of building height variations and building packing densities on flow adjustment and city breathability in idealized urban models. Build. Environ. 2017, 118, 344–361. [Google Scholar] [CrossRef]
- Stathopoulos, T.; Wu, H. Generic models for pedestrian-level winds in built-up regions. J. Wind Eng. Ind. Aerodyn. 1995, 54, 515–525. [Google Scholar] [CrossRef]
- Carpentieri, M.; Robins, A.G. Influence of urban morphology on air flow over building arrays. J. Wind Eng. Ind. Aerodyn. 2015, 145, 61–74. [Google Scholar] [CrossRef]
- Du, Y.X.; Mak, C.M.; Tang, B.S. Effects of building height and porosity on pedestrian level wind comfort in a high-density urban built environment. Build. Simul. 2018, 11, 1215–1228. [Google Scholar] [CrossRef]



























![]() | Building form: 58 × 16 × 24 (36) m (L × D × H) Building distance: W1 a: 56 (70) m mid-rise (high-rise) W2 b: 13 m |
![]() | Building form: 68 × 22 × 24 (36) m (L × D × H) Building distance: W3 c: 156 m W4 d: 156 m |
| Content | Case | L | H | W1 | W2 | W3 | W4 | Remarks |
|---|---|---|---|---|---|---|---|---|
| Building length | AM-1 | 58 | 24 | 56 | 13 | / | / | |
| AM-3 | 35 | |||||||
| AH-1 | 58 | 36 | 70 | 13 | ||||
| AH-2 | 35 | |||||||
| EH-1 | 68 | 36 | / | / | 156 | 156 | Buildings connected at adjacent boundary | |
| EH-2 | ||||||||
| EH-3 | 98, 40 | |||||||
| EH-4 | 68, 40, 40 | |||||||
| Building height | AM-4 | 35 | 24 | 70 | 13 | / | / | Height variation |
| AH-2 | 36 | |||||||
| AM-2 | 58 | 24 | 70 | 13 | ||||
| AH-1 | 36 | |||||||
| AM-5 | 24, 27 | |||||||
| AM-6 | 24, 27, 30 | |||||||
| EM-1 | 68 | 24 | / | / | 156 | 156 | ||
| EH-1 | 36 | |||||||
| EM-5 | 68 | 24 | ||||||
| EH-6 | 36 | |||||||
| Building distance | AM-1 | 58 | 24 | 56 | 13 | / | / | |
| AM-2 | 70 | |||||||
| AM-3 | 35 | 24 | 56 | 13 | ||||
| AM-4 | 70 | |||||||
| AM-3 | 35 | 24 | 56 | 13 | ||||
| AM-7 | 23 | |||||||
| AH-2 | 35 | 36 | 70 | 13 | ||||
| AH-3 | 23 | |||||||
| EM-1 | 68 | 24 | / | / | 156 | 156 | ||
| EM-2 | 128 | |||||||
| EM-5 | 156 | |||||||
| EM-6 | 128 | |||||||
| EM-2 | 156 | 156 | ||||||
| EM-3 | 128 | |||||||
| Staggered layout | AH-1 | / | / | Staggered layout | ||||
| SH-1 | ||||||||
| SH-2 | ||||||||
| AH-2 | ||||||||
| Enclosed layout and semi-enclosed a layout | EH-1 | / | / | Semi-enclosed: opening to the south | ||||
| EH-5 | ||||||||
| EH-6 | opening to the east | |||||||
| EM-1 | / | / | Semi-enclosed: opening to the south | |||||
| EM-4 | ||||||||
| EM-5 | opening to the east |
| Longer Building | Shorter Building | Equal Length | Longer + Shorter Building | Shorter Building |
|---|---|---|---|---|
| AM-1: 0.80 | AM-3: 0.69 | EH-1: 0.88 | EH-3: 1.02 | |
| AH-1: 0.84 | AH-2: 0.71 | EH-4:0.81 |
| Higher Building | Shorter Building | Uniform Height | Ununiform Height |
|---|---|---|---|
| AH-1: 0.84 | AM-2: 0.77 | AM-2: 0.77 | AM-6: 0.80 |
| AH-2: 0.71 | AM-4: 0.55 | AM-7: 0.92 | |
| EH-1: 0.88 | EM-1: 0.77 | ||
| EH-6: 0.70 | EM-5: 0.37 |
| Larger Normal Distance | Smaller Normal Distance | Larger Lateral Distance | Smaller Lateral Distance |
|---|---|---|---|
| AM-2: 0.77 | AM-1: 0.80 | AM-7: 0.55 | AM-3: 0.69 |
| AM-4: 0.55 | AM-3: 0.69 | AH-3: 0.63 | AH-2: 0.71 |
| EM-1: 0.77 | EM-2: 0.80 | EM-1: 0.77 | EM-3: 0.44 |
| Aligned Layout | Staggered Layout | Aligned Layout | Staggered Layout |
|---|---|---|---|
| AH-1: 0.84 | SH-1: 0.77 | AH-2: 0.71 | SH-2: 0.63 |
| Enclosed Layout | Semi-Enclosed Layout |
|---|---|
| EH-1: 0.88 | EH-6: 0.42 |
| EM-1: 0.77 | EM-5: 0.37 |
Disclaimer/Publisher’s Note: The statements, opinions and data contained in all publications are solely those of the individual author(s) and contributor(s) and not of MDPI and/or the editor(s). MDPI and/or the editor(s) disclaim responsibility for any injury to people or property resulting from any ideas, methods, instructions or products referred to in the content. |
© 2023 by the authors. Licensee MDPI, Basel, Switzerland. This article is an open access article distributed under the terms and conditions of the Creative Commons Attribution (CC BY) license (https://creativecommons.org/licenses/by/4.0/).
Share and Cite
Li, R.; Zhang, Y.; Cui, Y. Assessment of Outdoor Pedestrian Ventilation Performance While Controlling Building Array Scale and Density. Sustainability 2023, 15, 6742. https://doi.org/10.3390/su15086742
Li R, Zhang Y, Cui Y. Assessment of Outdoor Pedestrian Ventilation Performance While Controlling Building Array Scale and Density. Sustainability. 2023; 15(8):6742. https://doi.org/10.3390/su15086742
Chicago/Turabian StyleLi, Riyi, Yufeng Zhang, and Yumeng Cui. 2023. "Assessment of Outdoor Pedestrian Ventilation Performance While Controlling Building Array Scale and Density" Sustainability 15, no. 8: 6742. https://doi.org/10.3390/su15086742
APA StyleLi, R., Zhang, Y., & Cui, Y. (2023). Assessment of Outdoor Pedestrian Ventilation Performance While Controlling Building Array Scale and Density. Sustainability, 15(8), 6742. https://doi.org/10.3390/su15086742



