Built Environment’s Sustainability: The Design of the Gypso|TechA of the University of Perugia
Abstract
:1. Introduction
1.1. Contemporary Threats in the Complexity of Built Environment
- art crimes and vandalism;
- negligence and rudeness of visitors;
- lack of maintenance and site-specific prevention strategies;
- harmful impact of war;
- ageing of materials and of the type of artifacts;
- climate change impacts;
- earthquake damaging of monumental constructions.
1.2. The Plaster Cast Gallery of the University of Perugia
2. Materials and Methods
2.1. Historical Investigations
2.1.1. Palazzo Murena
2.1.2. The Bursary
2.2. Actual State of the Bursary
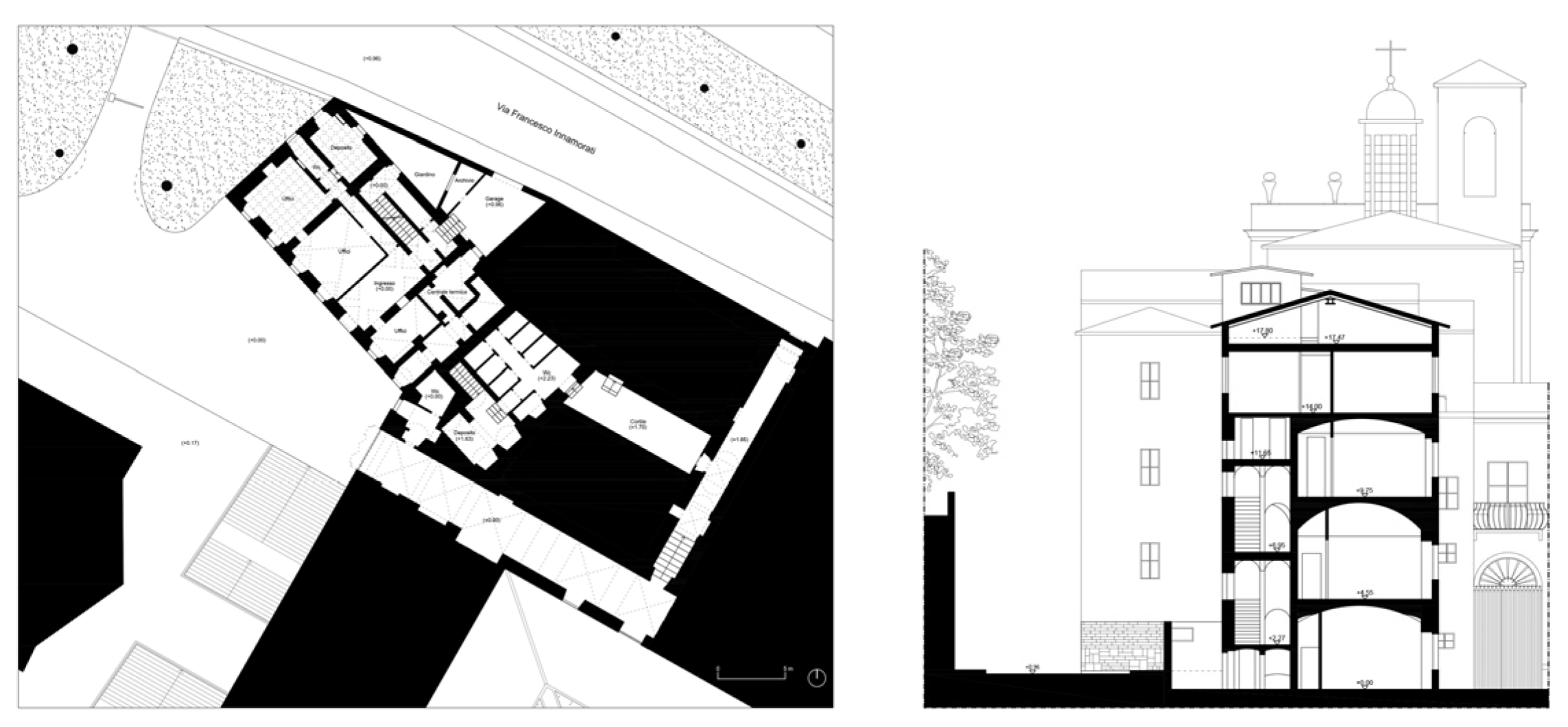
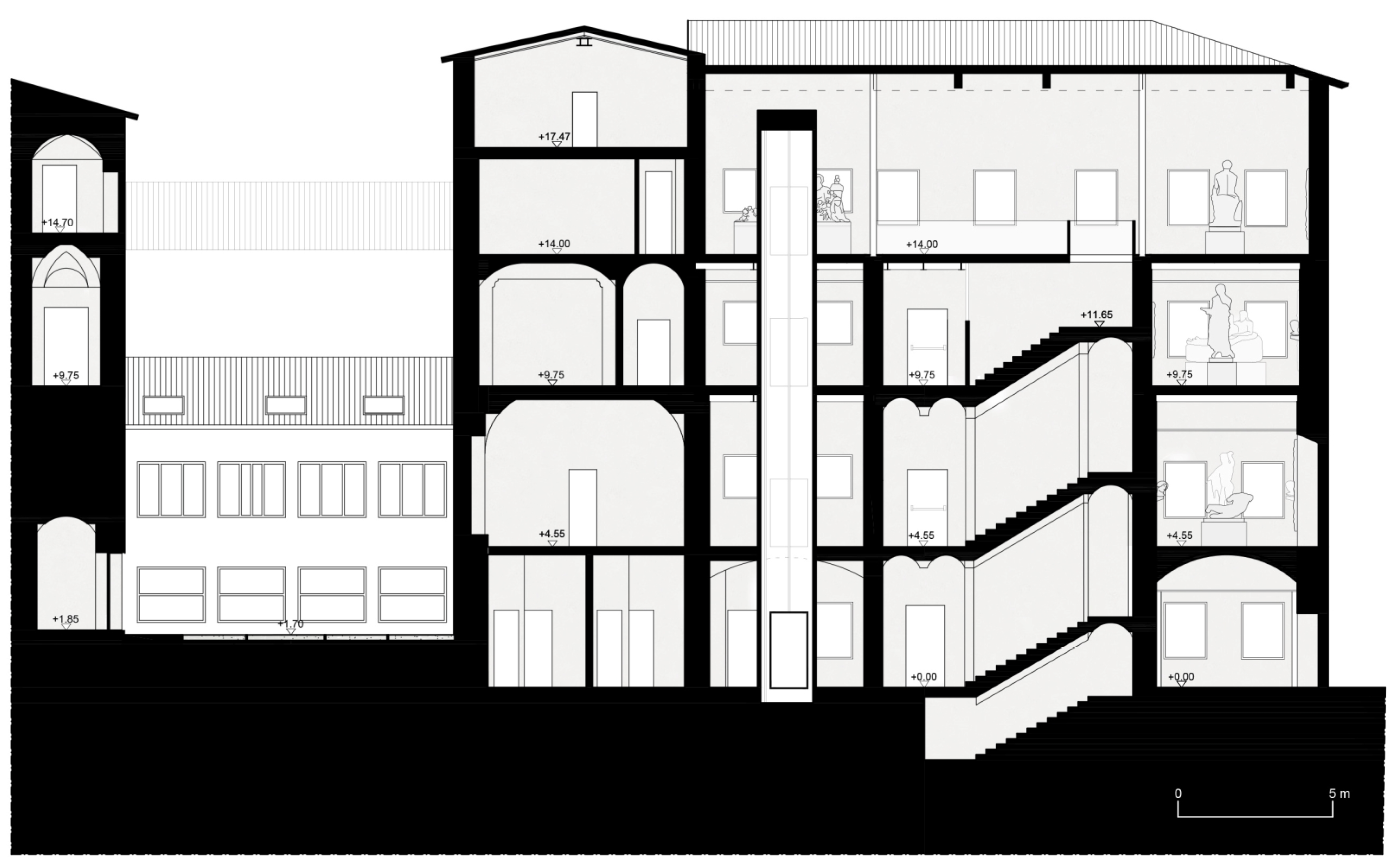
2.2.1. Architectural Survey
2.2.2. In Situ Investigations and Structural Peculiarities
- visual inspections over the masonries;
- videoendoscopic investigations on load-bearing walls and vaults;
- single and double flat-jack tests;
- tests on mortar samples;
- geophysical tests with georadar.
- masonry in solid brick and lime mortar;
- masonry in rough-hewn stone elements (found only in few parts of the building).
- presence on the level of the second floor of in falso masonries, load-bearing walls built without a direct path to the ground and weighing directly on the underlying brick vaults;
- an excess of partition walls, load-bearing and non-load-bearing, of modest thickness increasing the seismic mass of the structures and arranged, in addition, without a specific functional and distributive purpose;
- presence of a widespread crack pattern with local collapses on the third floor;
- a steel roof—marked also by the presence of a concrete curb—represents an extremely rigid and heavy plane, resulting burdensome for the lower structures which instead are more flexible;
- a crawl space, used as an archive, entails the concentration of a considerable load.
2.2.3. Seismic Safety
3. Project and Sustainable Design
3.1. Architectural Conversion in Gypso|TechA
3.1.1. “Build in the Built”
3.1.2. Architectural-Functional Design of the Museum Space
3.2. The Restoration Plan
3.2.1. Interventions with Ecological FRCM
- good mechanical properties in the face of low thickness and little weight;
- easy installation modalities ensuring the continuation of the buildings’ functions;
- use of inorganic mortar, less aggressive than the epoxy resins, that permits a better transpiration to masonry and contributes to the reversibility;
- reversibility of the intervention and chance to recycle, considering the opportunity to use natural origin nets and matrices.
3.2.2. Existing Condition against Restoration Plan
- Construction on the current parcel, calculating the costs associated with the demolition of the actual building and the disposal of rubble, actually a waste harmful to the environment;
- Building in a new area to purchase similar to the actual one, increasing land consumption, and considering consequently the realization of flooring, enclosures, urbanization works, electricity and water connections.
4. Conclusions
Author Contributions
Funding
Acknowledgments
Conflicts of Interest
References
- ICOMOS. The Venice Charter, International Charter for the Conservation and Restoration of Monuments and Sites; ICOMOS: Paris, France, 1964; Available online: https://www.icomos.org/charters/venice_e.pdf (accessed on 9 September 2020).
- Abastante, F.; Lami, I.M.; Mecca, B. How to Revitalise a Historic District: A Stakeholders-Oriented Assessment Framework of Adaptive Reuse. In Values and Functions for Future Cities. Green Energy and Technology; Mondini, G., Oppio, A., Stanghellini, S., Bottero, M., Abastante, F., Eds.; Springer: Cham, Switzerland, 2020. [Google Scholar] [CrossRef]
- Bosone, M.; De Toro, P.; Girard, L.F.; Gravagnuolo, A.; Iodice, S. Indicators for Ex-Post Evaluation of Cultural Heritage Adaptive Reuse Impacts in the Perspective of the Circular Economy. Sustainability 2021, 13, 4759. [Google Scholar] [CrossRef]
- D’Alessandro, L.; Persegati, F. Scultura e Calchi in Gesso. Storia, Tecnica, Conservazione; L’Erma di Bretschneider: Rome, Italy, 1987. [Google Scholar]
- Cassese, G. Accademie di Belle Arti: Identità, patrimonio e futuro dell’Italia. In Accademie Patrimoni di Belle Arti; Cassese, G., Ed.; Gangemi Editore: Rome, Italy, 2013; pp. 15–43. [Google Scholar]
- Iannaco, L. Antonio Canova in Umbria: “Le Possessioni di S. Gemini”; Futura Edizioni: Perugia, Italy, 2009. [Google Scholar]
- Boco, F. Gipsoteca. In MUSA. Museo dell’Accademia Perugia; Fedora, B., Ed.; EFFE Fabrizio Fabbri Editore: Perugia, Italy, 2014; pp. 42–43. [Google Scholar]
- Sciaramenti, B. Gipsoteca Greca e Romana. In Naturalia e Artificialia. Musei, Raccolte e Collezioni dell’Università Degli Studi di Perugia; Galassi, C., Ed.; Aguaplano Libri: Perugia, Italy, 2019; pp. 92–106. [Google Scholar]
- Chiacchella, R. La Città «moderna» e la Dilatazione Delle Funzioni Urbane del Quartiere Della Conca. In Un Quartiere e La Sua Storia: La Conca di Perugia. Itinerario per una Conoscenza e una Proposta; Serie Ricerche sul Territorio; Aa, V.V., Ed.; Quaderni Regione dell’Umbria: Perugia, Italy, 1983. [Google Scholar]
- Casagrande, G. La Conca di S. Lorenzo. In Un Quartiere e La Sua Storia: La Conca di Perugia. Itinerario per una Conoscenza e una Proposta; Aa, V.V., Ed.; Quaderni Regione dell’Umbria: Perugia, Italy, 1983; pp. 229–237. [Google Scholar]
- Riccio, C.M. Review to “Poche parole dette sul sepolcro di Luigi Vanvitelli” of Salzaro, D. In Archivio Storico delle Province Napoletane; Detken, V., Rocholl, F., Eds.; Società di Storia Patria: Napoli, Italy, 1880. [Google Scholar]
- Mariano, F. Vanvitelli nelle Marche ed in Umbria. In Luigi Vanvitelli e La Sua Cerchia, Catalogo Della Mostra (Caserta, Palazzo Reale, 16 Dicembre 2000–16 Marzo 2001); De Seta, C., Ed.; Electa: Napoli, Italy, 2000; pp. 79–83. [Google Scholar]
- Pompei, S.C. Al Crepuscolo del Barocco. L’attività Romana Dell’architetto Carlo Murena (1713–1764); Viella: Rome, Italy, 2008. [Google Scholar]
- Gianfrotta, A. Manoscritti di Luigi Vanvitelli Nell’archivio Della Reggia di Caserta 1752–1773; Ediprint Service s.r.l.: Città di Castello, Italy, 2000; ISBN 88-7125-174-1. [Google Scholar]
- Bonazzi, L. Storia di Perugia; Boncompagni e C.: Perugia, Italy, 1879. [Google Scholar]
- Belardi, P. Giuseppe Nicolosi (1901–1981) Architettura Università Città. In Proceedings of the Convegno di Studi, Perugia, Italy, 19 October 2006; Libria: Melfi, Italy, 2008. [Google Scholar]
- Paolo, B.; Gusella, V.; Liberotti, R.; Sorignani, C. The Gipso|TECA of the University of Perugia: Conversion of a Heritage Building in a Plaster Cast Galllery. In Proceedings of the Arco 2020 1st International Conference on Art, Florence, Italy, 28–29 May 2020; Collotti, F.V., Verdiani, G., Brodini, A., Eds.; Didapress: Firenze, Italy, 2020; pp. 69–84, ISBN 978-88-3338-152-7. [Google Scholar]
- Sorignani, C. UNI|TECA Progetto Architettonico di Trasformazione in Gipsoteca Dell’edificio sede Dell’ufficio Economato dell’Università degli STUDI di Perugia. Master’s Thesis, Università degli Studi di Perugia, Perugia, Italy, 2018. [Google Scholar]
- NTC. Decreto Ministeriale 14 Gennaio 2018, Aggiornamento Delle «Norme Tecniche per le Costruzioni.», Supplemento Ordinario alla “Gazzetta Ufficiale, n. 42 del 20 Febbraio 2018-Serie Generale; Ministero delle Infrastrutture e dei Trasporti: Rome, Italy, 2018.
- Circ. No7. Circolare del Ministero delle Infrastrutture e dei Trasporti 21 Gennaio 2019, n. 7 C.S.LL.PP., Istruzioni per L’applicazione dell’«“Aggiornamento delle “Norme Tecniche per le Costruzioni”» di cui al Decreto Ministeriale 17 Gennaio 2018; Supplemento Ordinario alla “Gazzetta Ufficiale” n. 35 del 11 Febbraio 2019-Serie Generale; Ministero delle Infrastrutture e dei Trasporti: Rome, Italy, 2019.
- Pietroluongo, M. Studio Della Vulnerabilità e Progetto di Miglioramento Sismico Dell’edificio “ex-Ragioneria”. Master’s Thesis, Università degli Studi di Perugia, Perugia, Italy, 2021. [Google Scholar]
- Gusella, V.; Liberotti, R. Seismic Vulnerability of Sub-Structures: Vantitelli’s Modulus in Murena Palace. Buildings 2020, 10, 164. [Google Scholar] [CrossRef]
- Pantò, B.; Cannizzaro, F.; Caliò, I.; Lourenço, P.B. Numerical and Experimental Validation of a 3D Macro-Model for the In-Plane and Out-Of-Plane Behavior of Unreinforced Masonry Walls. Int. J. Archit. Herit. 2017, 11, 946–964. [Google Scholar] [CrossRef]
- Zucchi, C. Innesti: Il Nuovo Come Metamorfosi; Bassoli, N., Ed.; Marsilio: Venezia, Italy, 2014. [Google Scholar]
- Girasante, F.; Potenza, D. Costruire sul Costruito; SALA Editori: Pescara, Italy, 2016. [Google Scholar]
- Parlato, S. Riabitare la Città. Costruire Sopra e Dentro L’esistente; FrancoAngeli: Milano, Italy, 2018. [Google Scholar]
- Belardi, P. Ex Antiquo. Costruire intorno e dentro all’esistente (ma anche sotto, sopra, dietro, tra e con l’esistente). In Dialoghi Sulla Città. Architettura Contemporanea Nella città Patrimonio di Matera; Somma, L.M., Pisciotta, M.B., Spataro, V., Vicentelli, G., Eds.; Libria: Melfi, Italy, 2018; pp. 105–113. [Google Scholar]
- Gardi, C.; Dall’Olio, N.; Salata, S. L’insostenibile Consumo di Suolo; Edicom: Gorizia, Italy, 2013. [Google Scholar]
- Latina, V. T T T’ le tre “T” del riuso. Area 2019, 166, 4–8. [Google Scholar]
- Pellegrini, P.C. Manuale del Riuso Architettonico. Analisi ed Interventi Contemporanei per il Recupero Degli Edifici; Dario Flaccovio Editore: Palermo, Italy, 2018. [Google Scholar]
- Belardi, P.; Menchetelli, V. 4DGypsoteca. Un’architettura multimediale per la didattica del disegno. In Ambienti Digitali per L’educazione All’arte e al Patrimonio; Luigini, A., Panciroli, C., Eds.; FrancoAngeli: Milano, Italy, 2018; pp. 35–50. [Google Scholar]
- Elefante, C. The Greenest Building Is. One That Is Already Built. Forum J. Natl. Trust. Hist. Preserv. 2012, 27, 62–72. [Google Scholar]
- Wise, F.; Moncaster, A.; Jones, D.; Dewberry, E. Considering embodied energy and carbon in heritage buildings–A review. In IOP Conference Series: Earth and Environmental Science; IOP Publishing: Bristol, UK, 2019; Volume 329. [Google Scholar]
- Gherardini, S.C. “A careful, museum-quality restoration”: Rethinking and Rebuilding the Canada Pavillion. In Réjean Legault. The Canada Pavilion at the Venice Biennale; Continents Editions srl in association with the National Gallery of Canada: Milano, Italy, 2020; pp. 97–108. ISBN 978-88-7439-884-3. [Google Scholar]
- Satta, M.L.; Ruggieri, N.; Tempesta, G.; Galassi, S. Remains of the ancient colonnade in the archaeological site of Pompeii, Italy: Vulnerability analysis and strengthening proposal. Int. J. Cult. Herit. 2021, 52, 93–106. [Google Scholar] [CrossRef]
- De Vita, M.; Duronio, F.; De Vita, A.; De Berardinis, P. Adaptive Retrofit for Adaptive Reuse: Converting an Industrial Chimney into a Ventilation Duct to Improve Internal Comfort in a Historic Environment. Sustainability 2022, 14, 3360. [Google Scholar] [CrossRef]
- Marques, R. Masonry Box Behavior. In Encyclopedia of Earthquake Engineering; Beer, M., Kougioumtzoglou, I., Patelli, E., Au, I.K., Eds.; Springer: Berlin/Heidelberg, Germany, 2014. [Google Scholar] [CrossRef]
- Alecci, V.; De Stefano, M.; Galassi, S.; Magos, R.; Stipo, G. Confinement of masonry columns with natural lime-based mortar composite: An experimental investigation. Sustainability 2021, 13, 13742. [Google Scholar] [CrossRef]
- Hojdys, Ł.; Krajewski, P. Tensile Behaviour of FRCM Composites for Strengthening of Masonry Structures-An Experimental Investigation. Materials 2021, 14, 3626. [Google Scholar] [CrossRef]
- Liberotti, R.; Cavalagli, N.; Cluni, F.; Gioffrè, M.; Pepi, C.; Gusella, V. Defence of Architectural Heritage: Experimental campaign on masonries reinforced with natural FRCM composite materials. In Proceedings of the COMPDYN 2021, 8th International Conference on Computational Methods in Structural Dynamics and Earthquake Engineering, Streamed from Athens, Athens, Greece, 28–30 June 2021; Volume 1, pp. 141–150. [Google Scholar]
- Liberotti, R.; Cavalagli, N.; Gusella, V. Experimental tests on FRCM and FE Modelling for the Heritage Structure’s Reuse. In Proceedings of the 12th International Conference on Structural Analysis of Historical Constructions SAHC 2021, Barcelona, Spain, 29 September–1 October 2021; pp. 2552–2563. [Google Scholar]
- Liberotti, R.; Cluni, F.; Gusella, V. Unreinforced Masonry Structures’ Seismic Improvement with FRCM: The Experience of the Vanvitellian Palazzo Murena of Perugia. In Proceedings of the 12th International Conference on Structural Analysis of Historical Constructions SAHC 2021, Barcelona, Spain, 29 September–1 October 2021; pp. 1651–1662. [Google Scholar]
- Jain, N.; Singh, V.K.; Chauhan, S. Review on effect of chemical, thermal, additive treatment on mechanical properties of basalt fiber and their composites. J. Mech. Behav. Mater. 2018, 26, 205–211. [Google Scholar] [CrossRef]
- Chen, X.; Zhang, Y.; Huo, H.; Wu, Z. Study of high tensile strength of natural continuous basalt fibers. J. Nat. Fibers 2018, 17, 214–222. [Google Scholar] [CrossRef]
- Liberotti, R.; Faralli, F.; Cluni, F.; Gusella, V. “Green Tape” for wall beams: Experimental and numerical approach to the design of innovative applications of natural FRCM composites. Constr. Build. Mater. 2022, 27, 24–33. [Google Scholar]
- Croce, P. New Frontiers of Composites Applications in Heritage Buildings: Repair of Exposed Masonry of St. Nicola Church in Pisa. J. Compos. Sci. 2021, 5, 218. [Google Scholar] [CrossRef]
- Coïsson, E.; Ottoni, F. New materials for structural restoration: An old debate. ArcHistoR 2015, 4, 92–117. [Google Scholar] [CrossRef]
- Minafò, G.; Oddo, M.C.; La Mendola, L. Formulation of a truss element for modelling the tensile response of FRCM strips. Constr. Build. Mater. 2022, 315, 125576. [Google Scholar] [CrossRef]
- Rovero, L.; Galassi, S.; Misseri, G. Experimental and analytical investigation of bond behavior in glass fiber-reinforced composites based on gypsum and cement matrices. Compos. Part B Eng. 2020, 194, 108051. [Google Scholar] [CrossRef]
- Misseri, G.; Rovero, L.; Galassi, S. Analytical modelling bond behaviour of polybenzoxazole (PBO) and glass Fibre Reinforced Cementitious Matrix (FRCM) systems coupled with cement and gypsum matrixes: Effect of the Cohesive Material Law (CML) shape. Compos. Part B Eng. 2021, 223, 109090. [Google Scholar] [CrossRef]
- Cavalagli, N.; Gusella, V. Structural Investigation of 18th-Century Ogival Masonry Domes: From Carlo Fontana to Bernardo Vittone. Int. J. Arch. Herit. 2014, 9, 265–276. [Google Scholar] [CrossRef]
- Fazzi, E.; Galassi, S.; Misseri, G.; Rovero, L. Seismic vulnerability assessment of the Benedictine Basilica typology in central Italy. J. Build. Eng. 2021, 43, 102897. [Google Scholar] [CrossRef]
- Ruggieri, N. In Situ Observations on the Crack Morphology in the Ancient Timber Beams. Sustainability 2021, 13, 439. [Google Scholar] [CrossRef]
- Galassi, S.; Misseri, G.; Rovero, L. Capacity assessment of masonry arches on moving supports in large displacements: Numerical model and experimental validation. Eng. Fail. Anal. 2021, 129, 105700. [Google Scholar] [CrossRef]
- Sandak, J.; Riggio, M.; Ruggieri, N.; Sandak, A. Damage progression analysis in a historical timber framed wall under cyclic loads through an image-based tracking method. Constr. Build. Mater. 2018, 199, 483–491. [Google Scholar] [CrossRef]
- Tucci, G.; Betti, M.; Conti, A.; Corongiu, M.; Fiorini, L.; Matta, C.; Kovačević, C.; Borri, C.; Hollberg, C. Bim for Museums: An Integrated Approach from the Building to the Collections; International Archives of the Photogrammetry, Remote Sensing and Spatial Information Sciences. In Proceedings of the GEORES 2019–2nd International Conference of Geomatics and Restoration, Milan, Italy, 8–10 May 2019; Volume XLII-2/W11. [Google Scholar]
- Funari, M.F.; Hajjat, A.E.; Masciotta, M.G.; Oliveira, D.V.; Lourenço, P.B. A Parametric Scan-to-FEM Framework for the Digital Twin Generation of Historic Masonry Structures. Sustainability 2021, 13, 11088. [Google Scholar] [CrossRef]
- Donato, A.; Randazzo, L.; Ricca, M.; Rovella, N.; Collina, M.; Ruggieri, N.; Dodaro, F.; Costanzo, A.; Alberghina, M.F.; Schiavone, S.; et al. Decay Assessment of Stone-Built Cultural Heritage: The Case Study of the Cosenza Cathedral Façade (South Calabria, Italy). Remote Sens. 2021, 13, 3925. [Google Scholar] [CrossRef]
- Ruggieri, N. Damage Assessment of Historical Masonry Churches Subjected to Moderate Intensity Seismic Shaking. Sustainability 2021, 13, 4710. [Google Scholar] [CrossRef]
- Ruggieri, N. New Insights on the Borbone Construction System: A Peculiar 18th Century Retrofitting Solution for Earthquake Damaged Churches. Int. J. Archit. Herit. 2021, 2021, 1881187. [Google Scholar] [CrossRef]
- El-belkasy, M.I.; Wahieb, S.A. Sustainable Conservation and Reuse of Historical City Center Applied Study on Jeddah—Saudi Arabia. Sustainability 2022, 14, 5188. [Google Scholar] [CrossRef]
- Gherardini, S.C. Connaisance et reconnaissance. Il restauro tra documento, interpretazione, tecniche. In Restauro Conoscenza Progetto Cantiere Gestione; Musso, S., Pretelli, M., Eds.; Edizioni Quasar: Rome, Italy, 2020; pp. 79–84. [Google Scholar]
- Lagunes, M.M.S. Storia e Progetto per Manieri Elia. ECO Web Town 2008, II-18, 124–125. [Google Scholar]
- Mariani, S.; Rosso, F.; Ferrero, M. Building in Historical Areas: Identity Values and Energy Performance of Innovative Massive Stone Envelopes with Reference to Traditional Building Solutions. Buildings 2018, 8, 17. [Google Scholar] [CrossRef] [Green Version]
- Foster, G.; Saleh, R. The Circular City and Adaptive Reuse of Cultural Heritage Index: Measuring the investment opportunity in Europe. Resour. Conserv. Recycl. 2021, 175, 105880. [Google Scholar] [CrossRef]
- Università degli Studi di Perugia. Piano D’azione per la Sostenibilità Universitaria 2021–2023; Università degli Studi di Perugia: Perugia, Italy, 2021. [Google Scholar]

















| Index for Limit States | Actual State | After Restoration | Index Increase |
|---|---|---|---|
| αSLO | 0.29 | 0.47 | 62% |
| αSLD | 0.34 | 0.56 | 65% |
| αSLV | 0.18 | 0.60 | 230% |
| αSLC | 0.21 | 0.65 | 210% |
| Interventions | Costs | |
|---|---|---|
| Demolitions | Walls | 19–20 k€ |
| Partition walls | 5–6 k€ | |
| Decks | 45–50 k€ | |
| Vaults | FRCM Reinforcement | 80–85 k€ |
| Hoops and masonry joint | 4–5 k€ | |
| Walls’ thickening | 12–15 € | |
| Walls’ reinforcement in FRCM | 130–140 k€ | |
| Steel structure | Columns | 3–6 k€ |
| Decks | 42–45 k€ | |
| Hoops and masonry joints | 11–12 k€ | |
| FRCM Curbs and joints (e.g., through stones) | 10–15 k€ | |
| Roof | 30–35 k€ | |
| Steel stair | 8–11 k€ | |
| Elevator | 30–35 k€ | |
| Total amount of work | ~480 k€ | |
Publisher’s Note: MDPI stays neutral with regard to jurisdictional claims in published maps and institutional affiliations. |
© 2022 by the authors. Licensee MDPI, Basel, Switzerland. This article is an open access article distributed under the terms and conditions of the Creative Commons Attribution (CC BY) license (https://creativecommons.org/licenses/by/4.0/).
Share and Cite
Belardi, P.; Gusella, V.; Liberotti, R.; Sorignani, C. Built Environment’s Sustainability: The Design of the Gypso|TechA of the University of Perugia. Sustainability 2022, 14, 6857. https://doi.org/10.3390/su14116857
Belardi P, Gusella V, Liberotti R, Sorignani C. Built Environment’s Sustainability: The Design of the Gypso|TechA of the University of Perugia. Sustainability. 2022; 14(11):6857. https://doi.org/10.3390/su14116857
Chicago/Turabian StyleBelardi, Paolo, Vittorio Gusella, Riccardo Liberotti, and Camilla Sorignani. 2022. "Built Environment’s Sustainability: The Design of the Gypso|TechA of the University of Perugia" Sustainability 14, no. 11: 6857. https://doi.org/10.3390/su14116857
APA StyleBelardi, P., Gusella, V., Liberotti, R., & Sorignani, C. (2022). Built Environment’s Sustainability: The Design of the Gypso|TechA of the University of Perugia. Sustainability, 14(11), 6857. https://doi.org/10.3390/su14116857

