Life Cycle Assessment of a Road Transverse Prestressed Wooden–Concrete Bridge
Abstract
1. Introduction
2. Materials and Methods
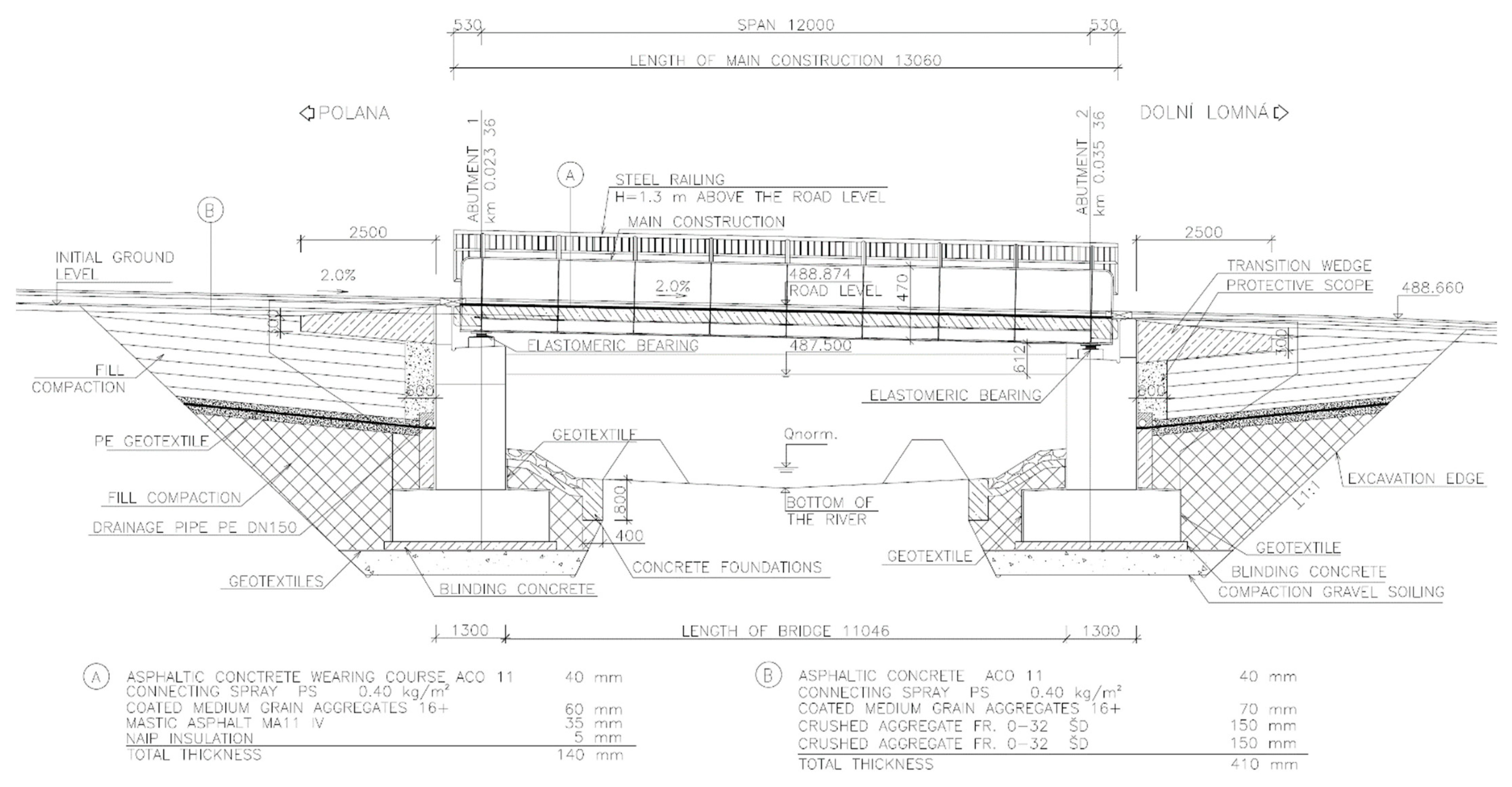
2.1. Characteristics of the Road Transverse Prestressed Wooden–Concrete Bridge (WCB)
2.2. Characteristics of the Road Steel Concrete Bridge (SCB)
2.3. Life Cycle Assessment Methodology
3. Results and Discussion
3.1. Life Cycle Impact Assessment of WCB
3.2. Comparison of WCB and SCB Environmental Performance
4. Conclusions
Author Contributions
Funding
Institutional Review Board Statement
Informed Consent Statement
Data Availability Statement
Acknowledgments
Conflicts of Interest
References
- Czech Republic Supreme Audit Office. Stav Mostů v ČR k 1.1.2020. 2020. Available online: https://www.nku.cz/cz/kontrola/analyzy/stav-mostu-id11407/ (accessed on 1 December 2022).
- Creutzig, F.; Agoston, P.; Minx, J.; Canedell, J.G.; Andrew, R.M.; Quéré, C.L.; Peters, G.P.; Sharifi, A.; Yamagata, Y.; Dhakal, S. Nature, Urban infrastructure choice’s structure climate solutions. Clim. Chang. 2016, 6, 1054–1056. [Google Scholar] [CrossRef]
- Thacker, S.; Adshead, D.; Fay, M.; Hallegatte, S.; Harvey, M.; Meller, H.; O’Regan, N.; Rozenberg, J.; Watkins, G.; Hall, J.W. Infrastructure for sustainable development. Nat. Sustain. 2019, 2, 324–331. [Google Scholar] [CrossRef]
- Liu, Y.; Wang, Y.; Shi, C.; Zhang, W.; Luo, W.; Wang, J.; Li, K.; Yeung, N.; Kite, S. Assessing the CO2 reduction target gap and sustainability for bridges in China by 2040. Renew. Sustain. Energy Rev. 2022, 154, 111811. [Google Scholar] [CrossRef]
- ISO/TS 21929-2; Sustainability in Building Construction—Sustainability Indicators—Part 2: Framework for the Development of Indicators for Civil Engineering Works. ISO: Geneva, Switzerland, 2015.
- Onat, N.C.; Kucukvar, M. Carbon footprint of construction industry: A global review and supply chain analysis. Renew. Sustain. Energy Rev. 2020, 124, 109783. [Google Scholar] [CrossRef]
- Balogun, T.B.; Tomor, A.; Lamond, J.; Gouda, H.; Booth, C.A. Life-cycle assessment environmental sustainability in bridge design and maintenance. Proc. ICE Eng. Sustain. 2020, 173, 365–375. [Google Scholar] [CrossRef]
- Horvath, A.; Hendrickson, C.T. Steel vs. Steel-Reinforced Concrete Bridges: Environmental Assessment. Journal of Infrastructure Systems. ASCE 1998, 4, 111–117. [Google Scholar] [CrossRef]
- Zhang, C.; Amaduddin, M.; Canning, L. Carbon dioxide evaluation in a typical bridge deck replacement project. Proc. ICE Energy 2011, 164, 183–194. [Google Scholar] [CrossRef]
- Du, G.; Karoumi, R. Environmental life cycle assessment comparison between two bridge types: Reinforced concrete bridge and steel composite bridge. In Proceedings of the Sustainable Construction Materials and Technologies, Kyoto, Japan, 8 February 2013. [Google Scholar]
- Pedneault, J.; Desjardins, V.; Margni, M.; Conciatori, D.; Fafard, M.; Sorelli, L. Economic and environmental life cycle assessment of a short-span aluminium composite bridge deck in Canada. J. Clean. Prod. 2021, 310, 127405. [Google Scholar] [CrossRef]
- Hammervold, J.; Reenaas, M.; Brattebø, H. Environmental Life Cycle Assessment of Bridges. J. Bridge Eng. 2013, 18, 153–161. [Google Scholar] [CrossRef]
- Patel, J. Bridging the gap: Enabling lower carbon footprint and creating economic value from application of modern high strength niobium steels. In Proceedings of the IABSE Conference, Kuala Lumpur 2018: Engineering the Developing World—Report, Kuala Lumpur, Malaysia, 25–27 April 2018; Volume 2018, pp. 867–874. [Google Scholar] [CrossRef]
- Zheng, Y.; Zhou, L.; Xia, L.; Luo, Y.; Taylor, S. Investigation of the behaviour of SCC bridge deck slabs reinforced with BFRP bars under concentrated loads. J. Eng. Struct. 2018, 171, 500–515. [Google Scholar] [CrossRef]
- Hajiesmaeili, A.; Pittau, F.; Denarié, E.; Habert, G. Life Cycle Analysis of Strengthening Existing RC Structures with R-PE-UHPFRC. Sustainability 2019, 11, 6923. [Google Scholar] [CrossRef]
- Cadenazzi, T.; Dotelli, G.; Rossini, M.; Nolan, S.; Nanni, A. Cost and environmental analyses of reinforcement alternatives for a concrete bridge. Struct. Infrastruct. Eng. 2020, 16, 787–802. [Google Scholar] [CrossRef]
- Niu, Y.; Fink, G. Life Cycle Assessment on modern timber bridges. Wood Mater. Sci. Eng. 2019, 14, 212–225. [Google Scholar] [CrossRef]
- Habert, G.; Arribe, D.; Dehove, T.; Espinasse, L.; Le Roy, R. Reducing environmental impact by increasing the strength of concrete: Quantification of the improvement to concrete bridges. J. Clean. Prod. 2012, 35, 250–262. [Google Scholar] [CrossRef]
- Du, G.; Pettersson, L.; Karoumi, R. Soil-steel composite bridge: An alternative design solution for short spans considering LCA. J. Clean. Prod. 2018, 189, 647–661. [Google Scholar] [CrossRef]
- Bouhaya, L.; Le Roy, R.; Feraille-Fresent, A. Simplified environmental study on innovative bridge structure. Environ. Sci. Technol. 2009, 43, 2066–2071. [Google Scholar] [CrossRef]
- Steele, K.; Cole, G.; Parke, G.; Clarke, B.; Harding, J. Highway bridges and environment-sustainable perspectives. Proc. Inst. Civ. Eng. 2003, 156, 176–182. [Google Scholar] [CrossRef]
- Lounis, Z.; Daigle, L. Environmental Benefits of Life Cycle Design of Concrete Bridges. In Proceedings of the 3rd International Conference on Life Cycle Management, Zurich, Switzerland, 27–29 August 2007; pp. 1–6. [Google Scholar]
- Gervasio, H.; Da Silva, L.S.O.E. Comparative life-cycle analysis of steel-concrete composite bridges. Struct. Infrastruct. Eng. 2008, 4, 251–269. [Google Scholar] [CrossRef]
- World Steel Association, Steel Statistical Yearbook 2018. Brussels, Belgium. 2018. Available online: https://worldsteel.org/wp-content/uploads/Steel-Statistical-Yearbook-2018.pdf (accessed on 1 December 2022).
- Kim, K.J.; Yun, W.G.; Cho, N.; Ha, J. Life cycle assessment based environmental impact estimation model for pre-stressed concrete beam bridge in the early design phase. Environ. Impact Assess. Rev. 2017, 95, 47–56. [Google Scholar] [CrossRef]
- Yepes, V.; Martí, J.V.; García-Segura, T. Cost and CO2 emission optimization of precast–prestressed concrete U-beam road bridges by a hybrid glowworm swarm algorithm. Autom. Constr. 2015, 49, 123–134. [Google Scholar] [CrossRef]
- Pang, B.; Yang, P.; Wang, Y.; Kendall, A.; Xie, H.; Zhang, Y. Life cycle environmental impact assessment of a bridge with different strengthening schemes. Int. J. Life Cycle Assess. 2015, 20, 1300–1311. [Google Scholar] [CrossRef]
- Martínez-Muñoz, D.; Martí, J.V.; Yepes, V. Comparative Life Cycle Analysis of Concrete and Composite Bridges Varying Steel Recycling Ratio. Materials 2021, 14, 4218. [Google Scholar] [CrossRef] [PubMed]
- EN 1992-1-1; Eurocode 2: Design of Concrete Structures—Part 1-1: General Rules and Rules for Buildings. CEN: Bruxelles, Belgium, 2004.
- EN 1993-1-1; Eurocode 3: Design of Steel Structures—Part 1-1: General Rules and Rules for Buildings. CEN: Bruxelles, Belgium, 2005.
- ISO 14040; Environmental Management, Life Cycle Assessment-Principles and Framework. ISO: Geneva, Switzerland, 2006.
- ISO 14044; Environmental Management, Life Cycle Assessment-Requirements and Guidelines. ISO: Geneva, Switzerland, 2006.
- PRé Consultants, SimaPro Sustainability Software for Fact-Based Decisions, Introduction to LCA with SimaPro 2019. Available online: https://pre-sustainability.com/solutions/tools/simapro/ (accessed on 4 June 2021).
- Jolliet, O.; Margni, M.; Charles, R.; Humbert, S.; Payet, J.; Rebitzer, G.; Rosenbaum, R. IMPACT 2002+: A new life cycle assessment methodology. Int. J. Life Cycle Assess. 2003, 8, 324–330. [Google Scholar] [CrossRef]
- Ecoinvent.org., Ecoinvent Database. 2021. Available online: https://www.ecoinvent.org/database/database.html (accessed on 23 May 2021).
- Hettinger, A.; Birat, J.; Hechler, O.; Braun, M. Sustainable bridges—LCA for a composite and a concrete bridge. In Economical Bridge Solutions Based on Innovative Composite Dowels and Integrated Abutments; Petzek, E., Băncilă, R., Eds.; Springer Vieweg: Wiesbaden, Germany, 2015. [Google Scholar] [CrossRef]
- Sonnenschein, R.; Gajdosova, K.; Holly, I. FRP Composites and their Using in the Construction of Bridges. Procedia Eng. 2016, 161, 477–482. [Google Scholar] [CrossRef]
- Jena, T.; Kaewunruen, S. Life Cycle Sustainability Assessments of an Innovative FRP Composite Footbridge. Sustainability 2021, 13, 13000. [Google Scholar] [CrossRef]
- Ali, H.T.; Akrami, R.; Fotouhi, S.; Bodaghi, M.; Saeedifar, M.; Yusuf, M.; Fotouhi, M. Fiber reinforced polymer composites in bridge industry. Structures 2021, 30, 774–785. [Google Scholar] [CrossRef]
- Mara, V.; Haghani, R.; Sagemo, A.; Storck, L.; Nilsson, D. Comparative study of different bridge concepts based on life-cycle cost analyses and life-cycle assessment. In Proceedings of the Asia-Pacific Conference on FRP in Structures, Melbourne, Australia, 11–13 December 2013. [Google Scholar]
- Widman, J. Environmental impact assessment of steel bridges. J. Constr. Steel Res. 1998, 46, 291–293. [Google Scholar] [CrossRef]
- Collings, D. An environmental comparison of bridge forms. Bridge Eng. 2006, 159, 163–168. [Google Scholar] [CrossRef]
- Hill, C.A.S.; Dibdiakova, J. The environmental impact of wood compared to other building materials. Int. Wood Prod. J. 2016, 4, 215–219. [Google Scholar] [CrossRef]
- Dias, A.M.P.G.; Ferreira, M.C.P.; Jorge, L.F.C.; Martins, H.M.G. Timber–concrete practical applications–bridge case study. Struct. Build. 2011, 164, 131–141. [Google Scholar] [CrossRef]
- Rodrigues, J.N.; Dias, A.M.P.G.; Providência, P. Timber-Concrete Composite Bridges: State-of-the-Art Review. BioResources 2013, 8, 6630–6649. [Google Scholar] [CrossRef]









| WCB | SCB | ||||
|---|---|---|---|---|---|
| Structural Elements | Material | m3 | t | m3 | t |
| Abutments and piers | Concrete C30/37 | 65.160 | 162.900 | 31.009 | 77.523 |
| Reinforcement B500B | 0.917 | 7.200 | 0.480 | 3.765 | |
| Capping beam | Concrete C30/37 | 3.507 | 8.767 | 13.166 | 32.915 |
| Reinforcement B500B | 0.022 | 0.172 | 0.019 | 0.149 | |
| Abutment wall | Concrete C30/37 | 3.163 | 7.908 | 3.163 | 7.908 |
| Reinforcement B500B | 0.006 | 0.047 | 0.006 | 0.047 | |
| Main construction and bridge deck | Concrete C30/37 | 17.100 | 43.180 | 16.801 | 42.003 |
| Glued laminated timber GL32h | 33.000 | 20.483 | - | - | |
| Steel | - | - | 1.670 | 13.128 | |
| Reinforcement B500B | 0.080 | 0.626 | 0.803 | 6.302 | |
| Shear connections—engineering steel | 0.036 | 0.279 | 0.041 | 0.320 | |
| Prestressing elements | 0.220 | 0.600 | - | - | |
| Bridge bearing | Elastomer | 0.178 | 0.570 | 0.031 | 0.100 |
| Bridge top | Polyurea | 0.082 | 0.004 | - | - |
| Asphaltic concrete | - | - | 2.898 | 6.376 | |
| Connecting spray PS | - | - | 0.090 | 0.019 | |
| Medium grain aggregates (16+) | - | - | 2.898 | 4.637 | |
| Mastic asphalt | - | - | 1.932 | 2.125 | |
| Concrete | - | - | 1.932 | 4.250 | |
| Bridge equipment | Railings structural steel | 27.300 | 0.493 | 0.139 | 1.090 |
| Concrete monolithic parapet C30/37 | 4.100 | 10.430 | 5.148 | 12.870 | |
| Reinforcement B500B | 0.038 | 0.301 | 0.147 | 1.151 |
| Impact Category | Unit | Total | 1 | 2 | 3 | 4 | 5 | 6 | 7 |
|---|---|---|---|---|---|---|---|---|---|
| Total | Pt | 22.9 | 13.0 | 0.461 | 0.296 | 7.66 | 0.731 | 4.76 × 10−³ | 0.781 |
| Respiratory inorganics | Pt | 7.89 | 4.54 | 0.152 | 9.09 × 10−2 | 2.64 | 0.206 | 1.34 × 10−³ | 0.254 |
| Global warming | Pt | 7.35 | 4.63 | 0.175 | 0.121 | 2.00 | 0.142 | 9.23 × 10−4 | 0.289 |
| Non-renewable energy | Pt | 3.96 | 2.17 | 7.93 × 10−2 | 5.27 × 10−2 | 1.18 | 0.310 | 2.01 × 10−³ | 0.155 |
| Land occupation | Pt | 1.22 | 0.202 | 7.26 × 10−³ | 4.73 × 10−³ | 0.988 | 3.04 × 10−³ | 1.98 × 10−5 | 1.13 × 10−2 |
| Terrestrial ecotoxicity | Pt | 1.14 | 0.659 | 2.18 × 10−2 | 1.28 × 10−2 | 0.387 | 2.71 × 10−2 | 1.76 × 10−4 | 3.31 × 10−2 |
| Non-carcinogens | Pt | 0.729 | 0.455 | 1.44 × 10−2 | 7.98 × 10−³ | 0.221 | 9.36 × 10−³ | 6.09 × 10−5 | 2.13 × 10−2 |
| Carcinogens | Pt | 0.539 | 0.285 | 8.65 × 10−³ | 4.46 × 10−³ | 0.197 | 2.95 × 10−2 | 1.92 × 10−4 | 1.33 × 10−2 |
| Mineral extraction | Pt | 4.57 × 10−2 | 2.75 × 10−2 | 7.69 × 10−4 | 3.39 × 10−4 | 1.48 × 10−2 | 9.55 × 10−4 | 6.22 × 10−6 | 1.41 × 10−³ |
| Terrestrial acid/nutri | Pt | 3.86 × 10−2 | 1.93 × 10−2 | 1.06 × 10−³ | 9.60 × 10−4 | 1.38 × 10−2 | 1.63 × 10−³ | 1.06 × 10−5 | 1.77 × 10−³ |
| Aquatic ecotoxicity | Pt | 2.36 × 10−2 | 1.47 × 10−2 | 4.58 × 10−4 | 2.46 × 10−4 | 7.20 × 10−³ | 6.15 × 10−4 | 4.00 × 10−6 | 4.09 × 10−4 |
| Respiratory organics | Pt | 1.27 × 10−2 | 7.57 × 10−³ | 2.31 × 10−4 | 1.21 × 10−4 | 3.79 × 10−³ | 6.20 × 10−4 | 4.04 × 10−6 | 3.68 × 10−4 |
| Ionizing radiation | Pt | 3.87 × 10−³ | 1.65 × 10−³ | 7.30 × 10−5 | 5.79 × 10−5 | 1.47 × 10−³ | 4.29 × 10−4 | 2.79 × 10−6 | 1.82 × 10−4 |
| Ozone layer depletion | Pt | 6.47 × 10−4 | 3.64 × 10−4 | 1.34 × 10−5 | 8.94 × 10−6 | 1.97 × 10−4 | 4.52 × 10−5 | 2.94 × 10−7 | 1.85 × 10−5 |
| Aquatic eutrophication | Pt | - | - | - | - | - | - | - | - |
| Aquatic acidification | Pt | - | - | - | - | - | - | - | - |
| Impact Category | Unit | Total | 1 | 2 | 3 | 4 | 5 | 6 | 7 |
|---|---|---|---|---|---|---|---|---|---|
| Respiratory inorganics | kg PM2.5 eq | 79.935 | 46.018 | 1.540 | 0.921 | 26.778 | 2.088 | 0.014 | 2.577 |
| Global warming | kg CO2 eq | 7.28 × 104 | 4.58 × 104 | 1.73 × 103 | 1.20 × 103 | 1.98 × 104 | 1.40 × 103 | 9.14 | 2.86 × 103 |
| Non-renewable energy | MJ primary | 6.01 × 105 | 3.30 × 105 | 1.21 × 104 | 8.00 × 103 | 1.80 × 105 | 4.70 × 104 | 3.06 × 102 | 2.36 × 104 |
| Land occupation | m2org.arable | 15,293.188 | 2544.069 | 91.185 | 59.383 | 12418.011 | 38.155 | 0.248 | 142.137 |
| Terrestrial ecotoxicity | kg TEG soil | 1.98 × 106 | 1.14 × 106 | 3.77 × 104 | 2.22 × 104 | 6.70 × 105 | 4.69 × 104 | 3.05 × 102 | 5.73 × 104 |
| Non-carcinogens | kg C2H3Cl eq | 1846.830 | 1151.506 | 36.526 | 20.225 | 560.850 | 23.717 | 0.154 | 53.852 |
| Carcinogens | kg C2H3Cl eq | 1364.350 | 722.252 | 21.919 | 11.296 | 499.937 | 74.840 | 0.487 | 33.619 |
| Mineral extraction | MJ surplus | 6950.275 | 4176.453 | 116.894 | 51.509 | 2245.212 | 145.210 | 0.945 | 214.052 |
| Terrestrial acid/nutri | kg SO2 eq | 508.365 | 254.687 | 13.911 | 12.648 | 182.140 | 21.524 | 0.140 | 23.315 |
| Aquatic ecotoxicity | kg TEG water | 6.45 × 106 | 4.01 × 106 | 1.25 × 105 | 6.72 × 104 | 1.97 × 106 | 1.68 × 105 | 1.09 × 103 | 1.12 × 105 |
| Respiratory organics | kg C2H4 eq | 42.308 | 25.220 | 0.771 | 0.402 | 12.610 | 2.065 | 0.013 | 1.226 |
| Ionizing radiation | Bq C-14 eq | 1.31 × 105 | 5.58 × 104 | 2.47 × 103 | 1.96 × 103 | 4.97 × 104 | 1.45 × 104 | 9.43 | 6.15 × 103 |
| Ozone layer depletion | kg CFC-11 eq | 0.004 | 0.002 | 0.000 | 0.000 | 0.001 | 0.000 | 0.000 | 0.000 |
| Aquatic acidification | kg SO2 eq | 44.843 | 10.394 | 1.814 | 2.263 | 20.710 | 6.258 | 0.041 | 3.365 |
| Aquatic eutrophication | kg PO4 P-lim | 8.873 | 5.089 | 0.196 | 0.137 | 2.706 | 0.471 | 0.003 | 0.271 |
| Impact Category | Unit | WCB | SCB | Unit | WCB | SCB |
|---|---|---|---|---|---|---|
| Respiratory inorganics | kg PM2.5 eq | 54.936 | 88.599 | mPt | 92.782 | 128.194 |
| Global warming | kg CO2 eq | 57,215.27 | 81,722.027 | mPt | 86.419 | 130.184 |
| Non-renewable energy | MJ primary | 468,549.53 | 701,965.683 | mPt | 46.540 | 75.441 |
| Land occupation | m2org.arable | 14,194.63 | 4420.413 | mPt | 14.310 | 5.211 |
| Terrestrial ecotoxicity | kg TEG soil | 1,333,088.65 | 2,042,480.86 | mPt | 13.415 | 16.439 |
| Non-carcinogens | kg C2H3Cl eq | 1126.85 | 2041.858 | mPt | 8.575 | 10.757 |
| Carcinogens | kg C2H3Cl eq | 866.241 | 1339.417 | mPt | 6.334 | 6.985 |
| Mineral extraction | MJ surplus | 3607.60 | 8748.035 | mPt | 0.538 | 0.773 |
| Terrestrial acid/nutri | kg SO2 eq | 622.813 | 382.403 | mPt | 0.454 | 0.650 |
| Aquatic ecotoxicity | kg TEG water | 3,830,468.60 | 5,662,764.03 | mPt | 0.278 | 0.225 |
| Respiratory organics | kg C2H4 eq | 25.169 | 49.209 | mPt | 0.149 | 0.203 |
| Ionizing radiation | Bq C-14 eq | 128,415.22 | 135,768.087 | mPt | 0.046 | 0.077 |
| Ozone layer depletion | kg CFC-11 eq | 0.003 | 0.004 | mPt | 0.008 | 0.009 |
| Aquatic acidification | kg SO2 eq | 107.981 | 2.688 | mPt | 0.000 | 0.000 |
| Aquatic eutrophication | kg PO4 P-lim | 7.292 | 7.98 | mPt | 0.000 | 0.000 |
| Total | - | - | - | mPt | 269.847 | 375.147 |
Disclaimer/Publisher’s Note: The statements, opinions and data contained in all publications are solely those of the individual author(s) and contributor(s) and not of MDPI and/or the editor(s). MDPI and/or the editor(s) disclaim responsibility for any injury to people or property resulting from any ideas, methods, instructions or products referred to in the content. |
© 2022 by the authors. Licensee MDPI, Basel, Switzerland. This article is an open access article distributed under the terms and conditions of the Creative Commons Attribution (CC BY) license (https://creativecommons.org/licenses/by/4.0/).
Share and Cite
Mitterpach, J.; Fojtík, R.; Machovčáková, E.; Kubíncová, L. Life Cycle Assessment of a Road Transverse Prestressed Wooden–Concrete Bridge. Forests 2023, 14, 16. https://doi.org/10.3390/f14010016
Mitterpach J, Fojtík R, Machovčáková E, Kubíncová L. Life Cycle Assessment of a Road Transverse Prestressed Wooden–Concrete Bridge. Forests. 2023; 14(1):16. https://doi.org/10.3390/f14010016
Chicago/Turabian StyleMitterpach, Jozef, Roman Fojtík, Eva Machovčáková, and Lenka Kubíncová. 2023. "Life Cycle Assessment of a Road Transverse Prestressed Wooden–Concrete Bridge" Forests 14, no. 1: 16. https://doi.org/10.3390/f14010016
APA StyleMitterpach, J., Fojtík, R., Machovčáková, E., & Kubíncová, L. (2023). Life Cycle Assessment of a Road Transverse Prestressed Wooden–Concrete Bridge. Forests, 14(1), 16. https://doi.org/10.3390/f14010016

