A 3D Printed Ready-Mixed Concrete Power Distribution Substation: Materials and Construction Technology
Abstract
1. Introduction
2. Printer Equipment and Materials
2.1. 3D Printing Equipment
2.2. Print Concrete Materials
3. Distribution Substation Project
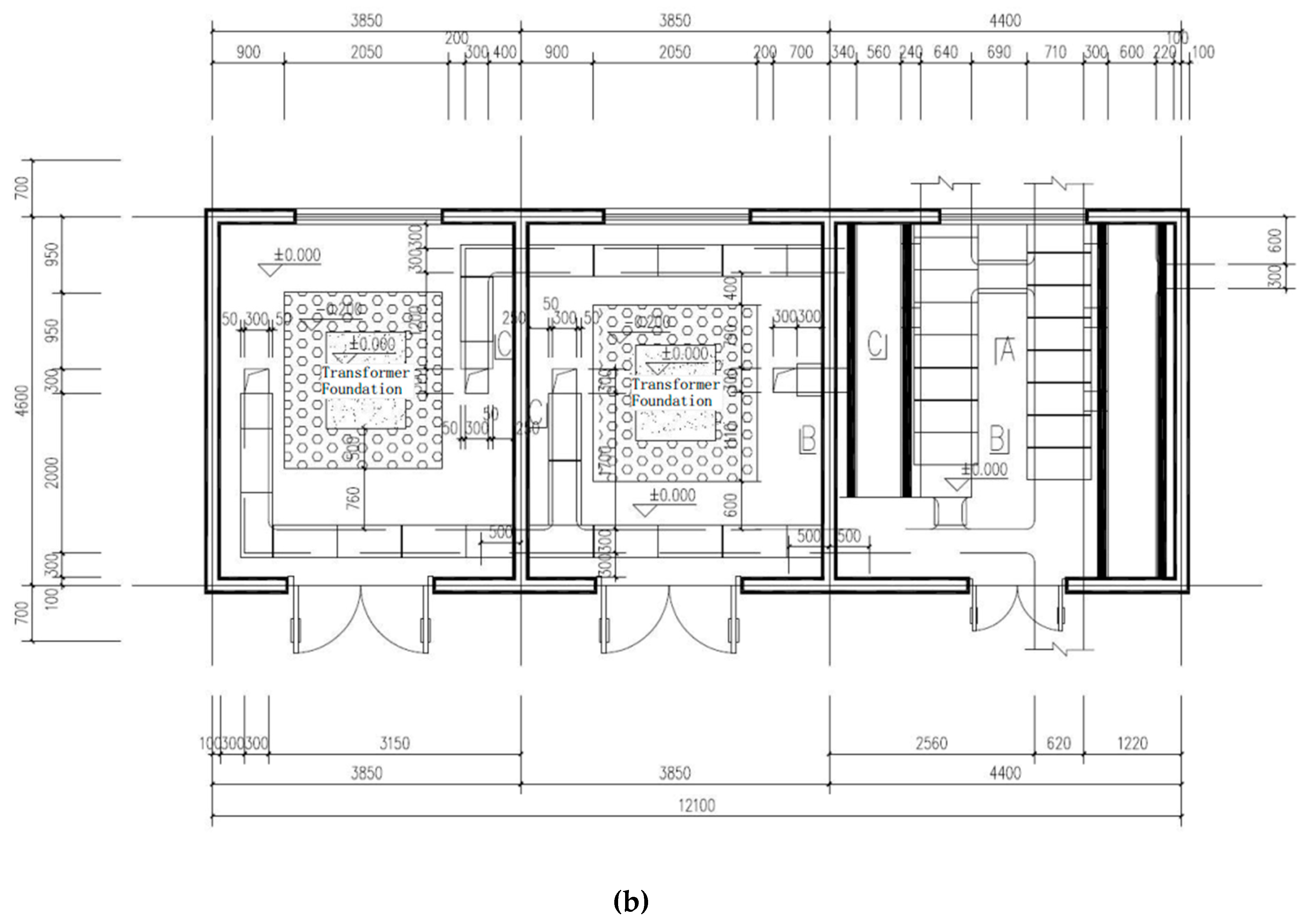
3.1. Description
3.2. Design and 3D Printing
4. Discussion
5. Conclusions
Author Contributions
Funding
Acknowledgments
Conflicts of Interest
References
- Pegna, J. Exploratory investigation of solid freeform construction. Autom. Constr. 1997, 5, 427–437. [Google Scholar] [CrossRef]
- Khoshnevis, B.; Dutton, R. Innovative Rapid Prototyping Process Makes Large Sized, Smooth Surfaced Complex Shapes in a Wide Variety of Materials. Mater. Technol. 1998, 13, 53–56. [Google Scholar] [CrossRef]
- Zak, G.; Haberer, M.; Park, C.B.; Benhabib, B. Mechanical properties of short-fiber layered composites: prediction and experiment. Rapid Prototyping J. 2000, 6, 107–118. [Google Scholar] [CrossRef]
- Kwon, H.; Bukkapatnam, S.; Saito, J.; Khoshnevis, B. Effects of orifice shape in contour crafting of ceramic materials. Rapid Prototyp. J. 2002, 8, 147–160. [Google Scholar] [CrossRef]
- Bosscher, P.; Williams, R.L., II; Bryson, L.S.; Castro-Lacouture, D. Cable-suspended robotic contour crafting system. Autom. Constr. 2008, 17, 45–55. [Google Scholar] [CrossRef]
- Cesaretti, G.; Dini, E.; De Kestelier, X.; Colla, V.; Pambaguian, L. Building components for an outpost on the Lunar soil by means of a novel 3D printing technology. Acta Astronaut. 2014, 93, 430–450. [Google Scholar] [CrossRef]
- Le, T.; Austin, S.; Lim, S.; Buswell, R.; Law, R.; Gibb, A.; Thorpe, T. Hardened properties of high-performance printing concrete. Cem. Concr. Res. 2012, 42, 558–566. [Google Scholar] [CrossRef]
- Gosselin, C.; Duballet, R.; Roux, P.; Gaudillière, N.; Dirrenberger, J.; Morel, P. Large-scale 3D printing of ultra-high performance concrete – a new processing route for architects and builders. Mater. Des. 2016, 100, 102–109. [Google Scholar] [CrossRef]
- Panda, B.; Paul, S.C.; Tan, M.J. Anisotropic mechanical performance of 3D printed fiber reinforced sustainable construction material. Mater. Lett. 2017, 209, 146–149. [Google Scholar] [CrossRef]
- Zareiyan, B.; Khoshnevis, B. Effects of interlocking on interlayer adhesion and strength of structures in 3D printing of concrete. Autom. Constr. 2017, 83, 212–221. [Google Scholar] [CrossRef]
- Khalil, N.; Aouad, G.; El Cheikh, K.; Rémond, S. Use of calcium sulfoaluminate cements for setting control of 3D-printing mortars. Constr. Mater. 2017, 157, 382–391. [Google Scholar] [CrossRef]
- Kazemian, A.; Yuan, X.; Cochran, E.; Khoshnevis, B. Cementitious materials for construction-scale 3D printing: Laboratory testing of fresh printing mixture. Constr. Mater. 2017, 145, 639–647. [Google Scholar] [CrossRef]
- Hambach, M.; Volkmer, D. Properties of 3D-printed fiber-reinforced Portland cement paste. Cem. Concr. Compos. 2017, 79, 62–70. [Google Scholar] [CrossRef]
- Soltan, D.G.; Li, V.C. A self-reinforced cementitious composite for building-scale 3D printing. Cem. Concr. Compos. 2018, 90, 1–13. [Google Scholar] [CrossRef]
- Wolfs, R.; Bos, F.; Salet, T. Early age mechanical behaviour of 3D printed concrete: Numerical modelling and experimental testing. Cem. Concr. Res. 2018, 106, 103–116. [Google Scholar] [CrossRef]
- Sanjayan, J.G.; Nematollahi, B.; Xia, M.; Marchment, T. Effect of surface moisture on inter-layer strength of 3D printed concrete. Constr. Mater. 2018, 172, 468–475. [Google Scholar] [CrossRef]
- Paul, S.C.; Tay, Y.W.D.; Panda, B.; Tan, M.J. Fresh and hardened properties of 3D printable cementitious materials for building and construction. Arch. Civ. Mech. Eng. 2018, 18, 311–319. [Google Scholar] [CrossRef]
- Panda, B.; Paul, S.C.; Mohamed, N.A.N.; Tay, Y.W.D.; Tan, M.J. Measurement of tensile bond strength of 3D printed geopolymer mortar. Measurement 2018, 113, 108–116. [Google Scholar] [CrossRef]
- Ma, G.; Li, Z.; Wang, L. Printable properties of cementitious material containing copper tailings for extrusion based 3D printing. Constr. Mater. 2018, 162, 613–627. [Google Scholar] [CrossRef]
- Le, T.T.; Austin, S.A.; Lim, S.; Buswell, R.A.; Gibb, A.G.F.; Thorpe, T. Mix design and fresh properties for high-performance printing concrete. Mater. Struct. 2012, 45, 1221–1232. [Google Scholar] [CrossRef]
- Soar, R.; Andreen, D. The Role of Additive Manufacturing and Physiomimetic Computational Design for Digital Construction. Arch. Des. 2012, 82, 126–135. [Google Scholar] [CrossRef]
- Feng, P.; Meng, X.; Chen, J.-F.; Ye, L. Mechanical properties of structures 3D printed with cementitious powders. Constr. Mater. 2015, 93, 486–497. [Google Scholar] [CrossRef]
- Liu, Z.; Li, M.; Weng, Y.; Wong, T.N.; Tan, M.J. Mixture Design Approach to optimize the rheological properties of the material used in 3D cementitious material printing. Constr. Mater. 2019, 198, 245–255. [Google Scholar] [CrossRef]
- GB/T 50081-2002. Test Standards and Methods for Mechanical Properties of Normal Concrete; China Building Industry Press: Beijing, China, 2003. [Google Scholar]
- Atkinson, R.H.; Bamford, W.E.; Broch, E.; Deere, D.U.; Franklin, J.A.; Nieble, C.; Rummel, F.; Tarkoy, R.J.; Van Duyse, H. Suggested methods for determining hardness and abrasiveness of rocks. Int. J. Rock. Mech. Min. 1978, 15, 89–98. [Google Scholar]














| Design Strength | Cement | Sand | Aggregate | Water | Admixture |
|---|---|---|---|---|---|
| C20 | 1 | 3.20 | 3.62 | 0.66 | 0.024 |
| C25 | 1 | 2.98 | 3.40 | 0.60 | 0.032 |
| Specimen | Concrete Design Strength (MPa) | Dimension (mm) | Compressive Strength (MPa) | Standard Deviations (MPa) |
|---|---|---|---|---|
| Printed | 20 MPa | 150 × 150 × 150 | 19.1 | 0.25 |
| Normal | 20 MPa | 150 × 150 × 150 | 23.8 | 0.16 |
| Printed | 25 MPa | 150 × 150 × 150 | 24.1 | 0.30 |
| Normal | 25 MPa | 150 × 150 × 150 | 28.8 | 0.17 |
© 2019 by the authors. Licensee MDPI, Basel, Switzerland. This article is an open access article distributed under the terms and conditions of the Creative Commons Attribution (CC BY) license (http://creativecommons.org/licenses/by/4.0/).
Share and Cite
Ji, G.; Ding, T.; Xiao, J.; Du, S.; Li, J.; Duan, Z. A 3D Printed Ready-Mixed Concrete Power Distribution Substation: Materials and Construction Technology. Materials 2019, 12, 1540. https://doi.org/10.3390/ma12091540
Ji G, Ding T, Xiao J, Du S, Li J, Duan Z. A 3D Printed Ready-Mixed Concrete Power Distribution Substation: Materials and Construction Technology. Materials. 2019; 12(9):1540. https://doi.org/10.3390/ma12091540
Chicago/Turabian StyleJi, Guangchao, Tao Ding, Jianzhuang Xiao, Shupeng Du, Jun Li, and Zhenhua Duan. 2019. "A 3D Printed Ready-Mixed Concrete Power Distribution Substation: Materials and Construction Technology" Materials 12, no. 9: 1540. https://doi.org/10.3390/ma12091540
APA StyleJi, G., Ding, T., Xiao, J., Du, S., Li, J., & Duan, Z. (2019). A 3D Printed Ready-Mixed Concrete Power Distribution Substation: Materials and Construction Technology. Materials, 12(9), 1540. https://doi.org/10.3390/ma12091540
