Integration of Daylight in Building Design as a Way to Improve the Energy Efficiency of Buildings
Abstract
1. Introduction
2. The Method
2.1. General Approach
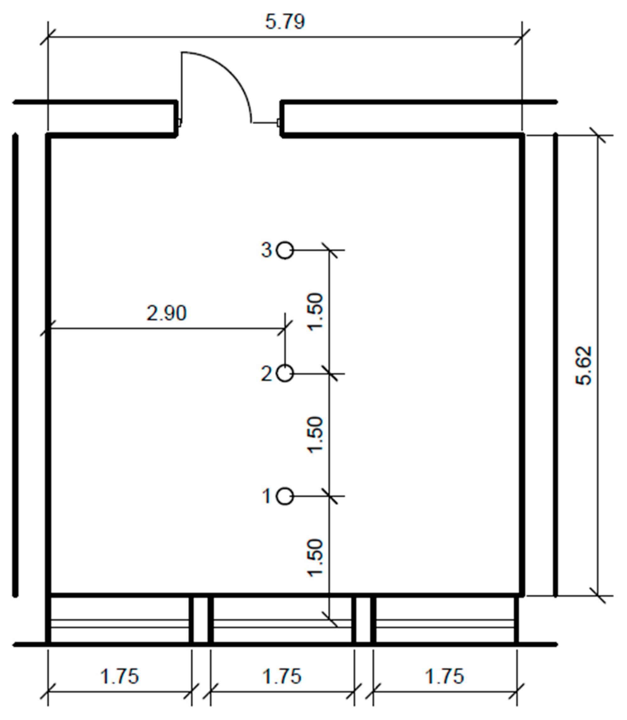
2.2. Field Measurements
- Two Testo 160 THL data loggers with integrated illumination sensors (DIN 5032-7 C class with accuracy of ±3.0 Lux or ±3.0 % and 0.1 lux resolution) point 1 and 3,
- One Testo 160 THE data logger with an external illumination sensor (DIN 5032-7 C class with accuracy of ±3.0 Lux or ±3.0 % and 0.1 lux resolution) point 2.
2.3. Numerical Simulations
- The first location chosen for analysis was the actual location of the building (Warsaw in Poland). For this location, a high level of thermal insulation appropriate for cold temperate climates was used.
- The second location represents warm climates (Genoa, Italy). For this location, the same building layout was used, but the thermal properties of the envelope were adjusted to represent U-values that are comparable to those required for new buildings in warm climates.
3. Results
3.1. Quality of the Daylight Model
3.2. Energy Performance Simulations
4. Discussion
Author Contributions
Funding
Data Availability Statement
Conflicts of Interest
Abbreviations
| BIM | Building Information Modelling |
| OECD | Organisation for Economic Co-operation and Development |
| UNEP | United Nations Environment Programme |
| SPF | Seasonal Performance Factor |
| SEER | Seasonal Energy Efficiency Ratio |
| HVAC | Heating, Ventilation and Air Conditioning |
References
- UNEP. 2022 Global Status Report for Buildings and Construction; United Nations Environment Programme: Nairobi, Kenya, 2022; Available online: https://www.unep.org/resources/publication/2022-global-status-report-buildings-and-construction (accessed on 14 April 2025).
- OECD. Global Monitoring of Policies for Decarbonising Buildings: A Multi-level Approach; OECD Urban Studies; OECD Publishing: Paris, France, 2024. [Google Scholar] [CrossRef]
- Hee, W.J.; Alghoul, M.A.; Bakhtyar, B.; Elayeb, O.K.; Shameri, M.A.; Alrubaih, M.S.; Sopian, K. The role of window glazing on daylighting and energy saving in buildings. Renew. Sustain. Energy Rev. 2015, 42, 323–343. [Google Scholar] [CrossRef]
- Nielsen, T.R.; Duer, K.; Svendsen, S. Energy performance of glazings and windows. Sol. Energy 2000, 69, 137–143. [Google Scholar] [CrossRef]
- Bakmohammadi, P.; Noorzai, E. Optimization of the design of the primary school classrooms in terms of energy and daylight performance considering occupants’ thermal and visual comfort. Energy Rep. 2020, 6, 1590–1607. [Google Scholar] [CrossRef]
- Gasparella, A.; Pernigotto, G.; Cappelletti, F.; Romagnoni, P.; Baggio, P. Analysis and modelling of window and glazing systems energy performance for a well insulated residential building. Energy Build. 2011, 43, 1030–1037. [Google Scholar] [CrossRef]
- Persson, M.-L.; Roos, A.; Wall, M. Influence of window size on the energy balance of low energy houses. Energy Build. 2006, 38, 181–188. [Google Scholar] [CrossRef]
- Poirazis, H.; Blomsterberg, Å.; Wall, M. Energy simulations for glazed office buildings in Sweden. Energy Build. 2008, 40, 1161–1170. [Google Scholar] [CrossRef]
- Urbikain, M.K.; Sala, J.M. Analysis of different models to estimate energy savings related to windows in residential buildings. Energy Build. 2009, 41, 687–695. [Google Scholar] [CrossRef]
- Dussault, J.-M.; Gosselin, L.; Galstian, T. Integration of smart windows into building design for reduction of yearly overall energy consumption and peak loads. Sol. Energy 2012, 86, 3405–3416. [Google Scholar] [CrossRef]
- Lee, J.W.; Jung, H.J.; Park, J.Y.; Lee, J.B.; Yoon, Y. Optimization of building window system in Asian regions by analyzing solar heat gain and daylighting elements. Renew. Energy 2013, 50, 522–531. [Google Scholar] [CrossRef]
- Li, D.H.W. A review of daylight illuminance determinations and energy implications. Appl. Energy 2010, 87, 2109–2118. [Google Scholar] [CrossRef]
- Díaz-Vilariño, L.; Lagüela, S.; Armesto, J.; Arias, P. Indoor daylight simulation performed on automatically generated as-built 3D models. Energy Build. 2014, 68 Part A, 54–62. [Google Scholar] [CrossRef]
- Li, D.H.W.; Lam, T.N.T.; Wong, S.L.; Mak, A.H.L. Lighting and cooling energy consumption in an open plan office using solar film coating. Energy Int. J. 2008, 33, 1288–1297. [Google Scholar] [CrossRef]
- Littlefair, P.J. Predicting annual lighting use in daylit buildings. Build. Environ. 1990, 25, 43–53. [Google Scholar] [CrossRef]
- Nazari, M.; Matusiak, B. Daylighting simulation and visualisation: Navigating challenges in accuracy and validation. Energy Build. 2024, 312, 114188. [Google Scholar] [CrossRef]
- Brembilla, E.; Hopfe, C.J.; Mardaljevic, J. Influence of input reflectance values on climate based daylight metrics using sensitivity analysis. J. Build. Perform. Simul. 2018, 11, 333–349. [Google Scholar] [CrossRef]
- Yu, J.; Lu, Y.; Hu, J.; Zhong, K.; Jia, T.; Yang, X. Prediction models for building thermal mass of intermittently heated rooms for balancing energy consumption and indoor thermal comfort. Energy Build. 2024, 317, 114376. [Google Scholar] [CrossRef]
- Duan, J.; Li, N.; Peng, J.; Wang, C.; Liu, Q.; Zhou, X. Study on occupant behaviour using air conditioning of high-rise residential buildings in hot summer and cold winter zone in China. Energy Build. 2022, 276, 112498. [Google Scholar] [CrossRef]
- Ascione, F.; Bianco, N.; Masi, R.F.D.; Mastellone, M.; Mauro, G.M.; Vanoli, G.P. The role of the occupant behavior in affecting the feasibility of energy refurbishment of residential buildings: Typical effective retrofits compromised by typical wrong habits. Energy Build. 2020, 223, 110217. [Google Scholar] [CrossRef]
- Abbas, G.M.; Gursel Dino, I.; Percin, M. An integrated pipeline for building performance analysis: Daylighting, energy, natural ventilation, and airborne contaminant dispersion. J. Build. Eng. 2023, 75, 106991. [Google Scholar] [CrossRef]
- Gürsel Dino, İ.; Üçoluk, G. Multiobjective design optimization of building space layout, energy, and daylighting performance. J. Comput. Civ. Eng. 2017, 31, 04017025. [Google Scholar] [CrossRef]
- Touloupaki, E.; Theodosiou, T. Performance Simulation Integrated in Parametric 3D Modeling as a Method for Early Stage Design Optimization—A Review. Energies 2017, 10, 637. [Google Scholar] [CrossRef]
- Papinutto, M.; Boghetti, R.; Colombo, M.; Basurto, C.; Reutter, K.; Lalanne, D.; Kämpf, J.H.; Nembrini, J. Saving energy by maximising daylight and minimising the impact on occupants: An automatic lighting system approach. Energy Build. 2022, 268, 112176. [Google Scholar] [CrossRef]
- Lee, J.H.; Kang, J.-S. Study on Lighting Energy Savings by Applying a Daylight-Concentrating Indoor Louver System with LED Dimming Control. Energies 2024, 17, 3425. [Google Scholar] [CrossRef]
- Wong, I.L. A review of daylighting design and implementation in buildings. Renew. Sustain. Energy Rev. 2017, 74, 959–968. [Google Scholar] [CrossRef]
- Grynning, S.; Gustavsen, A.; Time, B.; Jelle, B.P. Windows in the buildings of tomorrow: Energy losers or energy gainers? Energy Build. 2013, 61, 185–192. [Google Scholar] [CrossRef]
- Dimson, C.K.; Nwaji, G.N.; Nwufo, O.C.; Ogueke, N.V.; Anyanwu, E.E. Investigation of the Effect of Window Glazing on the Cooling Loads of Buildings. Int. J. Adv. Sci. Eng. 2023, 10, 3380–3387. [Google Scholar] [CrossRef]
- Carlander, J.; Moshfegh, B.; Akander, J.; Karlsson, F. Effects on Energy Demand in an Office Building Considering Location, Orientation, Façade Design and Internal Heat Gains—A Parametric Study. Energies 2020, 13, 6170. [Google Scholar] [CrossRef]
- Bellia, L.; Pedace, A.; Fragliasso, F. The impact of the software’s choice on dynamic daylight simulations’ results: A comparison between Daysim and 3ds Max Design. Sol. Energy 2015, 122, 249–263. [Google Scholar] [CrossRef]
- Nguyen, A.-T.; Reiter, S.; Rigo, P. A review on simulation-based optimization methods applied to building performance analysis. Appl. Energy 2014, 113, 1043–1058. [Google Scholar] [CrossRef]
- Gibson, T.; Krarti, M. Comparative Analysis of Prediction Accuracy from Daylighting Simulation Tools. LEUKOS 2014, 11, 49–60. [Google Scholar] [CrossRef]
- Pisello, A.L.; Goretti, M.; Cotana, F. A method for assessing buildings’ energy efficiency by dynamic simulation and experimental activity. Appl. Energy 2012, 97, 419–429. [Google Scholar] [CrossRef]
- Queiroz, N.; Westphal, F.S.; Pereira, F.O.R. A performance-based design validation study on EnergyPlus for daylighting analysis. Build. Environ. 2020, 183, 107088. [Google Scholar] [CrossRef]
- Jakubiec, J.A. Data-Driven Selection of Typical Opaque Material Reflectances for Lighting Simulation. LEUKOS 2022, 19, 176–189. [Google Scholar] [CrossRef]
- Muneer, T.; Gueymard, C.; Kambezidis, H. Solar Radiation and Daylight Models: For the Energy Efficient Design of Buildings; Taylor & Francis Group: London, UK, 2004. [Google Scholar]
- Pereira, L.D.; Raimondo, D.; Corgnati, S.P.; Da Silva, M.G. Energy consumption in schools—A review paper. Renew. Sustain. Energy Rev. 2014, 40, 911–922. [Google Scholar] [CrossRef]
- Hauer, M.; Hammes, S.; Zech, P.; Geisler-Moroder, D.; Plörer, D.; Miller, J.; van Karsbergen, V.; Pfluger, R. Integrating digital twins with BIM for enhanced building control strategies: A systematic literature review focusing on daylight and artificial lighting systems. Buildings 2024, 14, 805. [Google Scholar] [CrossRef]
- Peña-García, A.; Salata, F. Indoor lighting customization based on effective reflectance coefficients: A methodology to optimize visual performance and decrease consumption in educative workplaces. Sustainability 2021, 13, 119. [Google Scholar] [CrossRef]








| Surface | Visible Absorptance |
|---|---|
| walls | 0.5 |
| ceiling | 0.3 |
| floor | 0.8 |
| tables | 0.5 |
| Location | Unit | Warsaw | Genua |
|---|---|---|---|
| U-value | |||
| external wall | W/(m2K) | 0.18 | 0.24 |
| internal walls | W/(m2K) | 1.90 | 1.90 |
| windows | W/(m2K) | 0.9 | 1.5 |
| solar energy transmittance of windows (gg) | - | 0.57 | 0.57 |
| light transmission coefficient of windows (Lt) | - | 0.55 | 0.55 |
| Surface | Visible Absorptance | |
|---|---|---|
| Low | High | |
| walls | 0.1 | 0.5 |
| ceiling | 0.2 | 0.3 |
| floor | 0.3 | 0.8 |
| tables | 0.5 | 0.5 |
| Period | Parameter | Reference Point | ||
|---|---|---|---|---|
| 1 | 2 | 3 | ||
| January | R2 | 0.95 | 0.93 | 0.93 |
| avg. deviation | −3% | −10% | 8% | |
| April | R2 | 0.79 | 0.79 | 0.93 |
| avg. deviation | 8% | −8% | 5% | |
| Variant Number | Location | Absorptance of Internal Surfaces | Lighting Control | Automatic Shading |
|---|---|---|---|---|
| 1 | Warsaw | High/Low | None | None |
| 2 | Warsaw | High/Low | None | External blinds |
| 3 | Warsaw | High | Linear | None |
| 4 | Warsaw | Low | Linear | None |
| 5 | Warsaw | High | Linear | External blinds |
| 6 | Warsaw | Low | Linear | External blinds |
| 7 | Genoa | High/Low | None | None |
| 8 | Genoa | High/Low | None | External blinds |
| 9 | Genoa | High | Linear | None |
| 10 | Genoa | Low | Linear | None |
| 11 | Genoa | High | Linear | External blinds |
| 12 | Genoa | Low | Linear | External blinds |
| Variant Number | Heating | Cooling | Lighting | Total |
|---|---|---|---|---|
| kWh/a (% of Baseline Scenario) | ||||
| 1 | 177 (100%) | 658 (100%) | 629 (100%) | 1464 (100%) |
| 2 | 201 (113%) | 462 (70%) | 629 (100%) | 1292 (88%) |
| 3 | 201 (113%) | 577 (88%) | 196 (31%) | 974 (67%) |
| 4 | 206 (116%) | 574 (87%) | 162 (26%) | 942 (64%) |
| 5 | 228 (129%) | 391 (59%) | 210 (33%) | 830 (57%) |
| 6 | 234 (132%) | 386 (59%) | 162 (26%) | 782 (53%) |
| 7 | 37 (100%) | 785 (100%) | 629 (100%) | 1450 (100%) |
| 8 | 43 (118%) | 558 (71%) | 629 (100%) | 1230 (85%) |
| 9 | 47 (128%) | 703 (90%) | 159 (25%) | 909 (63%) |
| 10 | 49 (133%) | 700 (89%) | 129 (21%) | 879 (61%) |
| 11 | 55 (149%) | 480 (61%) | 176 (28%) | 711 (49%) |
| 12 | 57 (156%) | 475 (61%) | 129 (21%) | 662 (46%) |
Disclaimer/Publisher’s Note: The statements, opinions and data contained in all publications are solely those of the individual author(s) and contributor(s) and not of MDPI and/or the editor(s). MDPI and/or the editor(s) disclaim responsibility for any injury to people or property resulting from any ideas, methods, instructions or products referred to in the content. |
© 2025 by the authors. Licensee MDPI, Basel, Switzerland. This article is an open access article distributed under the terms and conditions of the Creative Commons Attribution (CC BY) license (https://creativecommons.org/licenses/by/4.0/).
Share and Cite
Trząski, A.; Rucińska, J. Integration of Daylight in Building Design as a Way to Improve the Energy Efficiency of Buildings. Energies 2025, 18, 4113. https://doi.org/10.3390/en18154113
Trząski A, Rucińska J. Integration of Daylight in Building Design as a Way to Improve the Energy Efficiency of Buildings. Energies. 2025; 18(15):4113. https://doi.org/10.3390/en18154113
Chicago/Turabian StyleTrząski, Adrian, and Joanna Rucińska. 2025. "Integration of Daylight in Building Design as a Way to Improve the Energy Efficiency of Buildings" Energies 18, no. 15: 4113. https://doi.org/10.3390/en18154113
APA StyleTrząski, A., & Rucińska, J. (2025). Integration of Daylight in Building Design as a Way to Improve the Energy Efficiency of Buildings. Energies, 18(15), 4113. https://doi.org/10.3390/en18154113

