Review of Medium-Voltage Switchgear Fault Detection in a Condition-Based Monitoring System by Using Deep Learning
Abstract
1. Introduction
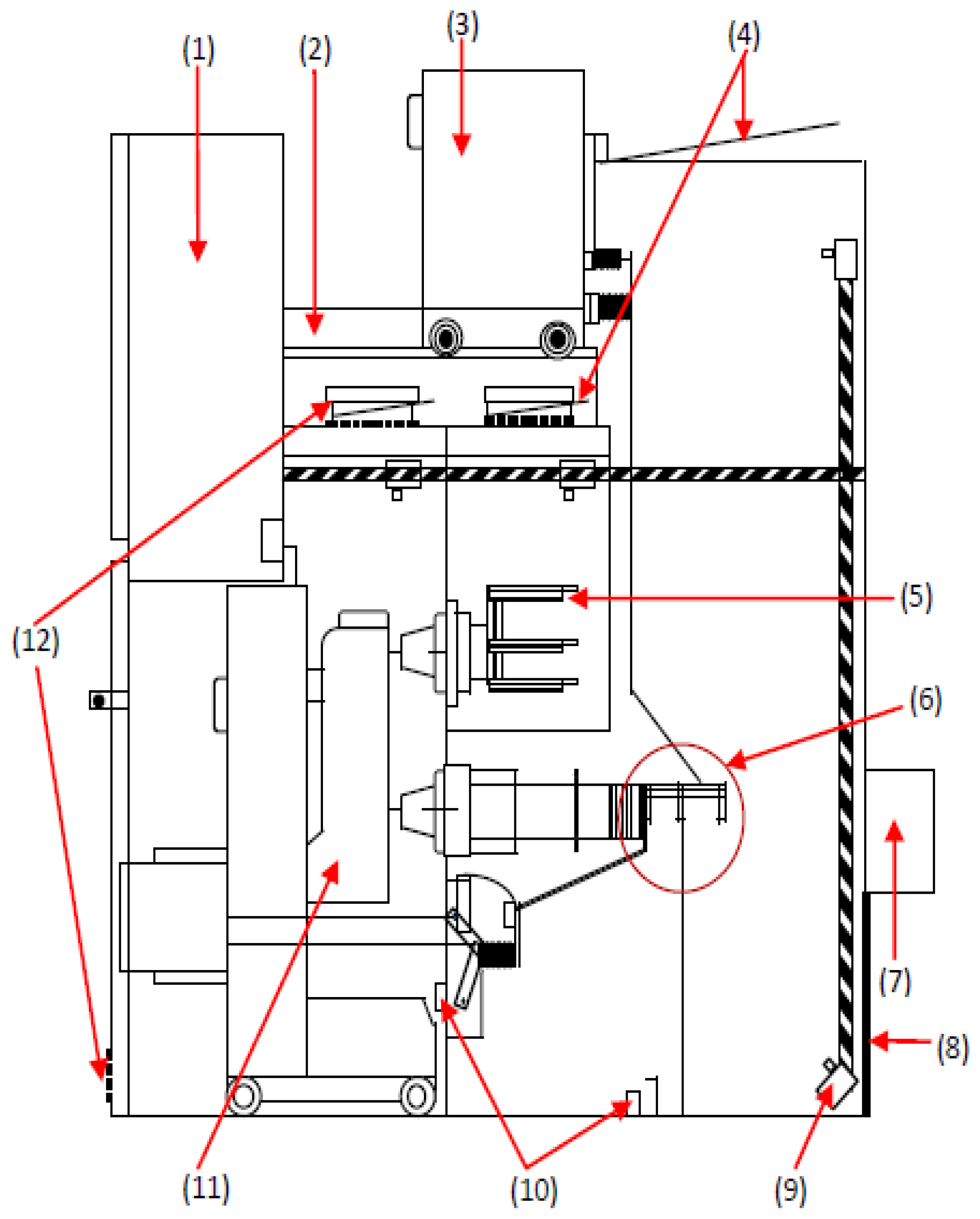
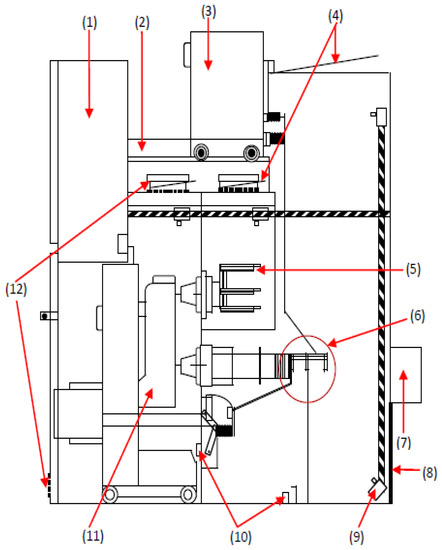
1.1. MV Switchgear
- Air-Insulated Switchgear (AIS)
- Oil-Insulated Switchgear (OIS)
- Gas-Insulated Switchgear (GIS)—SF6
1.2. Breaker Drive Monitoring
1.3. Thermal Monitoring
2. Types of Testing on Switchgear
- Thermography—to detect any loose connection or high-resistance surface between electrical contacts.
- Ultrasound—to look for any sign of partial discharge (PD) on the outside or on the surface.
- Transient Earth voltage (TEV)—To see whether there is any PD on the inside.
- Gas pressure checks—To examine the GIS switchgear for any SF6 gas leaks.
- Trip test (online timing)—The circuit breaker must be tested in an energized state to ensure that the first trip worked.
- Visual inspection—To examine the switchgear for any defects [29].
- Ultrasound—external/surface PD.
- Transient Earth voltage—internal PD.
3. Types of Faults on Switchgear
3.1. Corona
- Spatial factors;
- Geometric factors;
- Contamination.
3.2. Tracking
3.3. Arcing
- Type 1—Serious havoc is wreaked on a single precise wire, which is called a series arc fault. When the wire cannot tolerate the motion of the current, arcing occurs at the openings within the conductor and finally runs into the insulation.
- Type 2—The outcome is a short circuit when the current travels over the havoc insulation and runs from one conductor to another. This condition is called a parallel arc fault. In other words, the circuit breaker does not trip because the short circuit is not strong. Therefore, the current creates an arc and runs across the whole insulation, which is called a leakage current.
4. Types of Condition-Based Maintenance
5. PD Background
5.1. IEC 60720 Method
5.2. Acoustic Method
5.3. Radio Frequency Method
5.4. Other Methods
6. Artificial Intelligence
7. DL-Based Method
7.1. Autoencoder
- a
- Regularized AEs
- Sparse AE (SAE);
- Denoising AE (DAE);
- Contractive AE (CAE).
- b
- Concrete AE
- c
- Variational AE (VAE)
7.2. Convolution Neural Network (CNN)
- LeNet-5;
- AlexNet;
- VGG-16 Net;
- ResNet;
- Inception Net (GoogleNet).
7.3. Recurrent Neural Network (RNN)
7.4. Deep Belief Network (DBN)
8. Conclusions
- In PD diagnostics, DL approaches, which have recently received much attention, may achieve best-in-class accuracy while requiring less work on feature building. In contrast to other traditional ML approaches, such as SVM, they lack a strong mathematical basis. DL approaches are also less interpretable than other traditional ML procedures, such as DT.
- Because the experimental settings in each study vary, further work on robust machine learning methods and direct comparisons of multiple intelligent PD diagnostics are needed to create a complete and open-access dataset.
- Most research in this field that used DL focused on detecting and categorizing PD, but other areas, such as PD localization, were not taken into account.
- ML methods, particularly DL, have a number of roadblocks to their adoption for practical applications. Unbalanced datasets, limited datasets, inconsistency among training and testing datasets, unlabeled datasets, model complexity, real-time capacity, and interpretability are some of the obstacles. These elements have yet to be fully investigated and require additional research. To enable the deployment of intelligent PD diagnostic systems in real-world settings, potential solutions to existing problems are also offered in the current study. ML techniques, notably in DL-based PD diagnoses, clearly have a lot of room for improvement.
Author Contributions
Funding
Institutional Review Board Statement
Informed Consent Statement
Data Availability Statement
Acknowledgments
Conflicts of Interest
References
- Ghazali, Y.Y.; Talib, M.A.; Soosai, A.M. TNB approach on managing asset retirement for distribution transformers. In Proceedings of the 23rd International Conference on Electricity Distribution, Lyon, France, 15–18 June 2015; pp. 1–5. [Google Scholar]
- IEEE Draft Guide for “Testing Switchgear Rated Up to 52 kV for Internal Arcing Faults-Corrigenda #1,’ in IEEE PC37.20.7_Cor1/D2”. In Proceedings of the 2018 IEEE Petroleum and Chemical Industry Technical Conference (PCIC), Cincinnati, OH, USA, 24–26 September 2018; pp. 1–12.
- Zubcic, M.; Krcum, M. Power frequency withstand voltage type testing and FEM analysis of the medium-voltage switchgear busbar compartment. In Proceedings of the 2018 17th International Symposium INFOTEH-JAHORINA (INFOTEH), East Sarajevo, Bosnia, 21–23 March 2018. [Google Scholar]
- Thummapal, D.; Kothari, S.; Thirumalai, M. Emerging technologies in high voltage gas insulated switchgear-clean air GIS and NCIT. In Proceedings of the 2019 International Conference on High Voltage Engineering and Technology (ICHVET), Hyderabad, India, 7–8 February 2019. [Google Scholar]
- Hoffmann, M.W.; Wildermuth, S.; Gitzel, R.; Boyaci, A.; Gebhardt, J.; Kaul, H.; Tornede, T. Integration of novel sensors and machine learning for predictive maintenance in medium voltage switchgear to enable the energy and mobility revoluti. Sensors 2020, 20, 2099. [Google Scholar] [CrossRef]
- Feng, Z.; Jiaming, Z.; Xingzhi, L.; Jie, D.; Huayong, Z. The method and application of electric energy meter status evaluation fused security region. In Proceedings of the 2016 IEEE Information Technology, Networking, Electronic and Automation Control Confere, Chongqing, China, 20–22 May 2016. [Google Scholar] [CrossRef]
- Kamaludin, A.; Prasetia, H.; Nugroho, Y. Implementation of GOOSE for Overcurrent Relays with Non-Cascade Scheme in Medium Voltage Switchgear as Breaker Failure and Busbar Protection System. In Proceedings of the 2020 International Conference on Technolo, Bandung, Indonesia, 23–24 September 2020. [Google Scholar]
- Ates, H.; Bostanci, E.; Guzel, M.S. Optimization of medium voltage load break switchgear using multiple objective evolutionary algorithms. In Proceedings of the 2019 International Conference on Applied Automation and Industrial Diagnostics (ICAAID), Elazig, Turkey, 25–27 September 2019; Volume 1. [Google Scholar]
- Gao, W.; Cao, Y.; Wang, Y.; Price, C.; Ronzello, J.; Uzelac, N.; Darko, K. Materials Compatibility Study of C 4 F 7 N/CO 2 Gas Mixture for Medium-Voltage Switchgear. IEEE Trans. Dielectr. Electr. Insul. 2022, 29, 270–278. [Google Scholar] [CrossRef]
- Turrin, S.; Deck, B.; Egman, M.; Cavalli, L. Medium voltage equipment monitoring and diagnostics: Technological maturity makes concepts compatible with expectations. In Proceedings of the 23rd International Conference on Electricity Distribution, Lyon, France; 2015. [Google Scholar]
- Hyrenbach, M.; Sebastian, Z. Alternative insulation gas for medium-voltage switchgear. In Proceedings of the 2016 Petroleum and Chemical Industry Conference Europe (PCIC Europe), Berlin, Germany, 14–16 June 2016. [Google Scholar] [CrossRef]
- Hyrenbach, M.; Paul, T.A.; Owens, J. Environmental and Safety Aspects of AirPlus Insulated GIS. CIRED-Open Access Proc. J. 2017, 2017, 132–135. Available online: https://pdfs.semanticscholar.org/d34b/efb3c29fb93b5da1b8fd8e55ada743b6a613.pdf (accessed on 15 June 2022). [CrossRef][Green Version]
- Raju, R.; Narayananaswamy, V.; Durairaj, M.; Vittal, D.P.; Sethuraman, R.; Ananda, R.G.; Aravindakshan, A.M. Design and implementation of compact and robust medium voltage switchgear for deepwater work-class ROV ROSUB 6000. Underw. Technol. 2013, 31, 203–213. [Google Scholar] [CrossRef]
- Zhang, X.; Gockenbach, E.; Wasserberg, V.; Borsi, H. Estimation of the Lifetime of the Electrical Components in Distribution Networks. IEEE Trans. Power Deliv. 2006, 22, 515–522. [Google Scholar] [CrossRef]
- Zhang, X.; Gockenbach, E. Component Reliability Modeling of Distribution Systems Based on the Evaluation of Failure Statistics. IEEE Trans. Dielectr. Electr. Insul. 2007, 14, 1183–1191. [Google Scholar] [CrossRef]
- Boyaci, A.; Becker, O.; Amihai, I. Vibration Monitoring for Medium-Voltage Circuit Breaker Drives Using Artificial Intelligence. In Proceedings of the CIRED 2021—The 26th International Conference and Exhibition on Electricity Distribution, Online, 20–23 September 2021; pp. 628–632. [Google Scholar]
- Pei, X.; Cwikowski, O.; Vilchis-Rodriguez, D.S.; Barnes, M.; Smith, A.C.; Shuttleworth, R. A review of technologies for MVDC circuit breakers. In Proceedings of the IECON 2016—42nd Annual Conference of the IEEE Industrial Electronics Society, Florence, Italy, 23–26 October 2016; pp. 3799–3805. [Google Scholar]
- Park, W.; Kim, Y.K.; Lee, S.; Ahn, K.Y.; Kim, Y.G. Arc phenomena and method of arc extinction in air circuit breaker. In Proceedings of the CIRED 2019, Madrid, Spain, 3–6 June 2019. [Google Scholar]
- [Xemard, A.; Jurisic, B.; Rioual, M.; Olivier, A.; Sellin, E. Interruption of small, medium-voltage transformer current with a vacuum circuit breaker. Electr. Power Syst. Res. 2020, 187, 106502. [Google Scholar] [CrossRef]
- Moore, T.; Schmid, F.; Tricoli, P. Voltage transient management for Alternating Current trains with vacuum circuit breakers. IET Electr. Syst. Transp. 2021, 12, 1–14. [Google Scholar] [CrossRef]
- Tian, S.; Zhang, X.; Xiao, S.; Zhang, J.; Chen, Q.; Li, Y. Application of C6F12O/CO2 mixture in 10 kV medium-voltage switchgear. IET Sci. Meas. Technol. 2019, 13, 1225–1230. [Google Scholar] [CrossRef]
- Seeger, M.; Smeets, R.; Yan, J.; Ito, H.; Claessens, M.; Dullni, E.; Falkingham, L.; Franck, C.M.; Gentils, F.; Hartmann, W.; et al. Recent Trends in Development of High Voltage Circuit Breakers with SF6 Alternative Gases. Plasma Phys. Technol. 2017, 4, 8–12. Available online: https://ojs.cvut.cz/ojs/index.php/PPT/article/view/4573 (accessed on 15 June 2022). [CrossRef]
- Yeckley, R.; Perulfi, J. Oil Circuit Breakers: A Look at the Earlier Generation [History]. IEEE Power Energy Mag. 2018, 16, 86–97. [Google Scholar] [CrossRef]
- Jadin, M.S.; Taib, S. Recent progress in diagnosing the reliability of electrical equipment by using infrared thermography. Infrared Phys. Technol. 2012, 55, 236–245. [Google Scholar] [CrossRef]
- Huda, A.N.; Taib, S. Application of infrared thermography for predictive/preventive maintenance of thermal defect in electrical equipment. Appl. Therm. Eng. 2013, 61, 220–227. [Google Scholar] [CrossRef]
- Alberto, D.; Brun, P.; Ferraro, V.; Secci, M. Accurate Thermal Monitoring by Sensor Embedded in Switchgear Bushing. In Proceedings of the CIRED 2021-The 26th International Conference and Exhibition on Electricity Distribution, 20–23 September 2021; Volume 2021, pp. 565–569. [Google Scholar]
- Snajdr, J.; Bentley, J.P.; Hauck, R.; Novak, P. Stress on outer cable connection of MV gas-insulated switchgear due to cable thermal expansion at rated current. CIRED Open Access Proc. J. 2017, 2017, 450–453. Available online: Https://www.researchgate.net/profile/Jaroslav-1186Snajdr/publication/321205193_Stress_on_outer_cable_connection_of_MV_gas-1187insulat-1188ed_switchgear_due_to_cable_thermal_expansion_at_rated_current/links/5b90d558299bf114b7fd9024/Stress-on-1189 outer-cable-connection-of-MV-gas-insulated-switchgear-due-to-cable-thermal-expansion-at-rated-current.pdf (accessed on 12 July 2022). [CrossRef]
- Cormenier, T.; Chevalier, M.; Helal, K.; Briens, M. Material Efficiency for Circular Economy: From Assessments to Optimizations. In Proceedings of the CIRED 2019 Conference, Madrid, Spain, 3–6 June 2019. [Google Scholar]
- Liu, L.; Shen, M.; Liu, C. Dielectric Tests on Cable Testing Circuits of Medium Voltage Switchgear. In Proceedings of the 2021 IEEE 4th International Electrical and Energy Conference (CIEEC), Wuhan, China, 28–30 May 2021. [Google Scholar]
- Ishak, S.; Koh, S.-P.; Tan, J.-D.; Tiong, S.-K.; Chen, C.-P. Corona fault detection in switchgear with extreme learning machine. Bull. Electr. Eng. Informatics 2020, 9, 558–564. [Google Scholar] [CrossRef]
- Javed, H.; Kang, L.; Zhang, G. The Study of Different Metals Effect on Ozone Generation Under Corona Discharge in MV Switchgear Used for Fault Diagnostic. In Proceedings of the 2019 IEEE Asia Power and Energy Engineering Conference (APEEC), Chengdu, China, 29–31 March 2019. [Google Scholar]
- Bandi, M.M.; Ishizu, N.; Kang, H.-B. Electrocharging face masks with corona discharge treatment. Proc. R. Soc. A 2021, 477, 20210062. [Google Scholar] [CrossRef]
- Schoenau, L.; Steinpilz, T.; Teiser, J.; Wurm, G. Corona discharge of a vibrated insulating box with granular medium. Granul. Matter 2021, 23, 1–6. [Google Scholar] [CrossRef]
- Weichert, H.; Benz, P.; Hill, N.; Hilbert, M.; Kurrat, M. On Partial Discharge/Corona Considerations for Low Voltage Switchgear and Controlgear. In Proceedings of the 2018 IEEE Holm Conference on Electrical Contacts, Albuquerque, NM, USA, 14–18 October 2018; pp. 246–253. [Google Scholar]
- Ishak, S.; Yaw, C.T.; Koh, S.P.; Tiong, S.K.; Chen, C.P.; Yusaf, T. Fault Classification System for Switchgear CBM from an Ultrasound Analysis Technique Using Extreme Learning Machine. Energies 2021, 14, 6279. [Google Scholar] [CrossRef]
- Brady, J.; Thermographer, L.I.C. Corona and Tracking Conditions in Metal-Clad Switchgear Case Studies. Brady Infrared Inspections. 2006. Available online: https://www.irinfo.org/articleofmonth/pdf/article_8_1_2006_Brady.pdf (accessed on 12 July 2022).
- Haiguo, T.; Jiran, Z.; Fangliang, G.; Hua, L.; Min, F.; Qi, H. Research on a rail-robot based remote three-dimensional inspection system for switch stations in power distribution network. In Proceedings of the 2017 Chinese Automation Congress (CAC), Jinan, China, 20–22 October 2017; p. 7. [Google Scholar]
- Yi, M.; Pu, M.; Zhu, Z.; Gu, C.; Su, H.; Wang, X. Research on insulation aging of distribution switchgear. In Proceedings of the 2016 International Conference on Condition Monitoring and Diagnosis (CMD), Xi’an, China, 25–28 September 2016; pp. 206–209. [Google Scholar]
- Capritta, C.; Elisabetta, C. The importance of NFC tracking for MV and LV switchgear. In Proceedings of the 2016 Petroleum and Chemical Industry Conference Europe (PCIC Europe), Berlin, Germany, 14–16 June 2016. [Google Scholar]
- Wang, Y.; Feng, C.; Luo, Y.; Fei, R. Study on Surface Characteristics of E-glass Fiber Reinforced Epoxy Resin Composites in Different Stages of Tracking. Fibers Polym. 2020, 21, 2556–2568. [Google Scholar] [CrossRef]
- Koziy, K.; Gou, B.; Aslakson, J. A Low-Cost Power-Quality Meter With Series Arc-Fault Detection Capability for Smart Grid. IEEE Trans. Power Deliv. 2013, 28, 1584–1591. [Google Scholar] [CrossRef]
- Lutz, F.; Pietsch, G. The calculation of overpressure in metal-enclosed switchgear due to internal arcing. IEEE Trans. Power Appar. Syst. 1982, 11, 4230–4236. [Google Scholar] [CrossRef]
- Wang, Y.; Hou, L.; Paul, K.C.; Ban, Y.; Chen, C.; Zhao, T. ArcNet: Series AC Arc Fault Detection Based on Raw Current and Convolutional Neural Network. IEEE Trans. Ind. Informatics 2021, 18, 77–86. [Google Scholar] [CrossRef]
- Tisserand, E.; Lezama, J.; Schweitzer, P.; Berviller, Y. Series arcing detection by algebraic derivative of the current. Electr. Power Syst. Res. 2015, 119, 91–99. [Google Scholar] [CrossRef]
- Atharparvez, M.; Purandare, K.R. Series Arc fault detection using novel signal processing technique. In Proceedings of the 2018 IEEE Holm Conference on Electrical Contacts, Albuquerque, NM, USA, 14–18 October 2018. [Google Scholar]
- Lu, S.; Phung, B.; Zhang, D. A comprehensive review on DC arc faults and their diagnosis methods in photovoltaic systems. Renew. Sustain. Energy Rev. 2018, 89, 88–98. [Google Scholar] [CrossRef]
- Kay, J.A.; Hussain, G.A.; Lehtonen, M.; Kumpulainen, L. New pre-emptive arc fault detection techniques in medium voltage switchgear and motor controls. In Proceedings of the 2015 61st IEEE Pulp and Paper Industry Conference (PPIC), Milwaukee, WI, USA, 14–18 June 2015; pp. 1–12. [Google Scholar]
- Nicolaou, C.; Mansour, A.; Van Laerhoven, K. On-site Online Condition Monitoring of Medium-Voltage Switchgear Units. In Proceedings of the 11th International Conference on the Internet of Things, St. Gallen, Switzerland, 8–12 November 2021. [Google Scholar]
- Ayo-Imoru, R.; Cilliers, A. A survey of the state of condition-based maintenance (CBM) in the nuclear power industry. Ann. Nucl. Energy 2018, 112, 177–188. [Google Scholar] [CrossRef]
- Barksdale, H.; Smith, Q.; Khan, M. Condition monitoring of electrical machines with Internet of Things. In Proceedings of the SoutheastCon 2018, St. Petersburg, FL, USA, 19–22 April 2018. [Google Scholar]
- Jing, Q.; Yan, J.; Lu, L.; Xu, Y.; Yang, F. A Novel Method for Pattern Recognition of GIS Partial Discharge via Multi-Information Ensemble Learning. Entropy 2022, 24, 954. [Google Scholar] [CrossRef]
- Kumar, S.; Goyal, D.; Dang, R.K.; Dhami, S.S.; Pabla, B. Condition based maintenance of bearings and gears for fault detection–A review. Mater. Today: Proc. 2018, 5, 6128–6137. [Google Scholar] [CrossRef]
- de Almeida, P.R.A.; Pereira, R.P.; Muniz, P.R. Didactic Switchgear for Teaching Thermographic Inspection for Electrical Maintenance. IEEE Rev. Iberoam. de Tecnol. del Aprendiz. 2019, 14, 43–49. [Google Scholar] [CrossRef]
- Doshvarpassand, S.; Wu, C.; Wang, X. An overview of corrosion defect characterization using active infrared thermography. Infrared Phys. Technol. 2018, 96, 366–389. [Google Scholar] [CrossRef]
- Zhiwang, Y.; Zhiqin, Z.; Wude, X.; Yuning, C.; Xueyun, M.; Qiping, Y. Study on Power Equipment Condition Based Maintenance (CBM) Technology in Smart Grid. In Proceedings of the 2021 3rd International Conference on Smart Power & Internet Energy Systems, Shanghai, China, 25–28 September 2021. [Google Scholar]
- Hussain, G.A.; Zaher, A.A.; Hummes, D.; Safdar, M.; Lehtonen, M. Hybrid Sensing of Internal and Surface Partial Discharges in Air-Insulated Medium Voltage Switchgear. Energies 2020, 13, 1738. [Google Scholar] [CrossRef]
- Kessler, O. The Importance of Partial Discharge Testing: PD Testing Has Proven to Be a Very Reliable Method for Detecting Defects in the Insulation System of Electrical Equipment and for Assessing the Risk of Failure. IEEE Power Energy Mag. 2020, 18, 62–65. [Google Scholar] [CrossRef]
- Lu, S.; Chai, H.; Sahoo, A.; Phung, B.T. Condition Monitoring Based on Partial Discharge Diagnostics Using Machine Learning Methods: A Comprehensive State-of-the-Art Review. IEEE Trans. Dielectr. Electr. Insul. 2020, 27, 1861–1888. [Google Scholar] [CrossRef]
- Fruth, B.; Fuhr, J. Partial discharge pattern recognition-a tool for diagnosis and monitoring of aging. Cigre 1990, 15, 12. [Google Scholar]
- Raymond, W.J.K.; Illias, H.A.; Abu Bakar, A.H.; Mokhlis, H. Partial discharge classifications: Review of recent progress. Measurement 2015, 68, 164–181. [Google Scholar] [CrossRef]
- Sahoo, A.; Subramaniam, A.; Bhandari, S.; Panda, S.K. A review on condition monitoring of GIS. In Proceedings of the 2017 International Symposium on Electrical Insulating Materials (ISEIM), Toyohashi, Japan, 11–15 September 2017; Volume 2, pp. 543–546. [Google Scholar]
- Cheng, J.; Xu, Y.; Ding, D.; Liu, W. Investigation of sensitivity of the ultra-high frequency partial-discharge detection technology for micro-crack in epoxy insulator in GIS. High Volt. 2020, 5, 697–703. [Google Scholar] [CrossRef]
- Gao, C.; Yu, L.; Xu, Y.; Wang, W.; Wang, S.; Wang, P. Partial Discharge Localization Inside Transformer Windings via Fiber-Optic Acoustic Sensor Array. IEEE Trans. Power Deliv. 2018, 34, 1251–1260. [Google Scholar] [CrossRef]
- Ilkhechi, H.D.; Samimi, M.H. Applications of the Acoustic Method in Partial Discharge Measurement: A Review. IEEE Trans. Dielectr. Electr. Insul. 2021, 28, 42–51. [Google Scholar] [CrossRef]
- Chai, H.; Phung, B.; Mitchell, S. Application of UHF Sensors in Power System Equipment for Partial Discharge Detection: A Review. Sensors 2019, 19, 1029. [Google Scholar] [CrossRef]
- Chai, H.; Lu, S.; Phung, B.T.; Mitchell, S. Comparative Study of Partial Discharge Localization Based on Uhf Detection Methods. In Proceedings of the CIRED 2019 Conference, Madrid, Spain, 3–6 June 2019. [Google Scholar]
- Salehi, H.; Burgueño, R. Emerging artificial intelligence methods in structural engineering. Eng. Struct. 2018, 171, 170–189. [Google Scholar] [CrossRef]
- Anglekar, S.; Chaudhari, U.; Chitanvis, A.; Shankarmani, R. A Deep Learning based Self-Assessment Tool for Personality Traits and Interview Preparations. In Proceedings of the 2021 International Conference on Communication information and Computing Technolog, Mumbai, India, 25–27 June 2021. [Google Scholar]
- Catterson, V.M.; Sheng, B. Deep neural networks for understanding and diagnosing partial discharge data. In Proceedings of the 2015 IEEE Electrical Insulation Conference (EIC), Seattle, WA, USA, 7–10 June 2015. [Google Scholar]
- Nair, V.; Hinton, G.E. Rectified Linear Units Improve Restricted Boltzmann Machines. Icml. 2010. Available online: https://openreview.net/forum?id=rkb15iZdZB (accessed on 15 June 2022).
- Takaki, S.; Yamagishi, J. A deep auto-encoder based low-dimensional feature extraction from FFT spectral envelopes for statistical parametric speech synthesis. In Proceedings of the 2016 IEEE International Conference on Acoustics, Speech and Signal Processing (I), Shanghai, China, 20–25 March 2016. [Google Scholar]
- Abid, A.; Balin, M.F.; Zou, J. Concrete autoencoders for differentiable feature selection and reconstruction. arXiv 2019, arXiv:1901.09346. [Google Scholar]
- Duan, L.; Hu, J.; Zhao, G.; Chen, K.; He, J.; Wang, S. Identification of Partial Discharge Defects Based on Deep Learning Method. IEEE Trans. Power Deliv. 2019, 34, 1557–1568. [Google Scholar] [CrossRef]
- Ganjun, W.; Fan, Y.; Xiaosheng, P.; Yijiang, W.; Taiwei, L.; Zibo, L. Partial discharge pattern recognition of high voltage cables based on the stacked denoising autoencoder method. In Proceedings of the 2018 International Conference on Power System Tech, Guangzhou, China, 6–8 November 2018. [Google Scholar]
- Zemouri, R.; Levesque, M.; Amyot, N.; Hudon, C.; Kokoko, O.; Tahan, S.A. Deep Convolutional Variational Autoencoder as a 2D-Visualization Tool for Partial Discharge Source Classification in Hydrogenerators. IEEE Access 2019, 8, 5438–5454. [Google Scholar] [CrossRef]
- Dai, J.; Teng, Y.; Zhang, Z.; Yu, Z.; Sheng, G.; Jiang, X. Partial Discharge Data Matching Method for GIS Case-Based Reasoning. Energies 2019, 12, 3677. [Google Scholar] [CrossRef]
- Wang, Y.; Yan, J.; Yang, Z.; Liu, T.; Zhao, Y.; Li, J. Partial Discharge Pattern Recognition of Gas-Insulated Switchgear via a Light-Scale Convolutional Neural Network. Energies 2019, 12, 4674. [Google Scholar] [CrossRef]
- Barrios, S.; Buldain, D.; Comech, M.P.; Gilbert, I. Partial Discharge Identification in MV Switchgear Using Scalogram Representations and Convolutional AutoEncoder. IEEE Trans. Power Deliv. 2020, 36, 3448–3455. [Google Scholar] [CrossRef]
- He, K.; Zhang, X.; Ren, S.; Sun, J. Deep Residual Learning for Image Recognition. In Proceedings of the IEEE Conference on Computer Vision and Pattern Recognition, Las Vegas, NV, USA, 27-30 June 2016; pp. 770–778. Available online: https://openaccess.thecvf.com/content_cvpr_2016/html/He_Deep_Residual_Learning_CVPR_2016_paper.html (accessed on 15 June 2022).
- Li, Y.; Yu, F.; Cai, Q.; Yuan, K.; Wan, R.; Li, X.; Qian, M.; Liu, P.; Guo, J.; Yu, J.; et al. Image fusion of fault detection in power system based on deep learning. Clust. Comput. 2018, 22, 9435–9443. [Google Scholar] [CrossRef]
- Puspitasari, N.; Khayam, U.; Suwarno; Kakimoto, Y.; Yoshikawa, H.; Kozako, M.; Hikita, M. Partial discharge waveform identification using image with convolutional neural network. In Proceedings of the 2019 54th International Universities Power Engineering Conference (UPEC), Bucharest, Romania, 3–6 September 2019. [Google Scholar]
- Wang, Y.; Yan, J.; Yang, Z.; Zhao, Y.; Liu, T. Optimizing GIS partial discharge pattern recognition in the ubiquitous power internet of things context: A MixNet deep learning model. Int. J. Electr. Power Energy Syst. 2020, 125, 106484. [Google Scholar] [CrossRef]
- Wang, Y.; Yan, J.; Sun, Q.; Li, J.; Yang, Z. A MobileNets Convolutional Neural Network for GIS Partial Discharge Pattern Recognition in the Ubiquitous Power Internet of Things Context: Optimization, Comparison, and Application. IEEE Access 2019, 7, 150226–150236. [Google Scholar] [CrossRef]
- Che, Q.; Wen, H.; Li, X.; Peng, Z.; Chen, K.P. Partial Discharge Recognition Based on Optical Fiber Distributed Acoustic Sensing and a Convolutional Neural Network. IEEE Access 2019, 7, 101758–101764. [Google Scholar] [CrossRef]
- Mitiche, I.; Jenkins, M.D.; Boreham, P.; Nesbitt, A.; Stewart, B.G.; Morison, G. Deep residual neural network for EMI event classification using bispectrum representations. In Proceedings of the 2018 26th European Signal Processing Conference (EUSIPCO), Rome, Italy, 3–7 September 2018. [Google Scholar]
- Mitiche, I.; Jenkins, M.D.; Boreham, P.; Nesbitt, A.; Morison, G. Deep complex neural network learning for high-voltage insulation fault classification from complex bispectrum representation. In Proceedings of the 2019 27th European Signal Processing Conference (EUSIPCO), A Coruna, Spain, 2–6 September 2019. [Google Scholar]
- Zunaed, M.; Nath, A.; Rahman, M. Dual-CyCon Net: A Cycle Consistent Dual-Domain Convolutional Neural Network Framework for Detection of Partial Discharge. arXiv 2020, arXiv:2012.11532. [Google Scholar]
- Banno, K.; Nakamura, Y.; Fujii, Y.; Takano, T. Partial discharge source classification for switchgears with transient earth voltage sensor using convolutional neural network. In Proceedings of the 2018 Condition Monitoring and Diagnosis (CMD), Perth, WA, Australia, 23–26 September 2018; pp. 1–5. [Google Scholar]
- Wang, S.; Xia, Y.; Ping, C.; Xue, G. Study on SF 6 Gas On-line Monitoring Method Based on Machine Learning. In Proceedings of the 2018 IEEE 4th Information Technology and Mechatronics Engineering Conference (ITOEC), Chongqing, China, 14–16 December 2018; pp. 240–244. [Google Scholar]
- Lu, S.; Sirojan, T.; Phung, B.T.; Zhang, D.; Ambikairajah, E. DA-DCGAN: An Effective Methodology for DC Series Arc Fault Diagnosis in Photovoltaic Systems. IEEE Access 2019, 7, 45831–45840. [Google Scholar] [CrossRef]
- Khan, M.A.; Choo, J.; Kim, Y.-H. End-to-End Partial Discharge Detection in Power Cables via Time-Domain Convolutional Neural Networks. J. Electr. Eng. Technol. 2019, 14, 1299–1309. [Google Scholar] [CrossRef]
- Woon, W.L.; Aung, Z.; El-Hag, A. Intelligent Monitoring of Transformer Insulation Using Convolutional Neural Networks. In Data Analytics for Renewable Energy Integration, Technologies, Systems and Society; Springer: Cham, Switzerland, 2018; Volume 11325, pp. 127–136. [Google Scholar]
- Zhang, Q.; Lin, J.; Song, H.; Sheng, G. Fault identification based on PD ultrasonic signal using RNN, DNN and CNN. In Proceedings of the 2018 Condition Monitoring and Diagnosis (CMD), Perth, WA, Australia, 23–26 September 2018; pp. 1–6. [Google Scholar]
- Yin, Q.; Zhang, R.; Shao, X. CNN and RNN mixed model for image classification. MATEC Web Conf. 2019, 277, 02001. [Google Scholar] [CrossRef]
- Goodfellow, I.; Bengio, Y.; Courville, A. Deep Learning; MIT Press: Cambridge, MA, USA, 2016. [Google Scholar]
- Adam, B.; Tenbohlen, S. Classification of multiple PD sources by signal features and LSTM networks. In Proceedings of the 2018 IEEE International Conference on High Voltage Engineering and Application (ICHVE), Athens, Greece, 10–13 September 2018. [Google Scholar]
- Li, G.; Wang, X.; Li, X.; Yang, A.; Rong, M. Partial Discharge Recognition with a Multi-Resolution Convolutional Neural Network. Sensors 2018, 18, 3512. [Google Scholar] [CrossRef] [PubMed]
- Zhou, X.; Wu, X.; Ding, P.; Li, X.; He, N.; Zhang, G.; Zhang, X. Research on Transformer Partial Discharge UHF Pattern Recognition Based on Cnn-lstm. Energies 2019, 13, 61. [Google Scholar] [CrossRef]
- Dong, M.; Sun, J. Partial discharge detection on aerial covered conductors using time-series decomposition and long short-term memory network. Electr. Power Syst. Res. 2020, 184, 106318. [Google Scholar] [CrossRef]
- Balouji, E.; Hammarstrom, T.; McKelvey, T. Partial Discharge Classification in Power Electronics Applications using Machine Learning. In Proceedings of the 2019 IEEE Global Conference on Signal and Information Processing (GlobalSIP), Ottawa, ON, Canada, 11–14 November 2019. [Google Scholar]
- Ahmad, D.; Wang, S. Bidirectional LSTM Based Partial Discharge Pattern Analysis for Fault Detection in Medium Voltage Overhead Lines with Covered Conductors. In Proceedings of the 2020 IEEE 18th International Conference on Industrial Informatics (INDIN), Warwick, UK, 20–23 July 2020. [Google Scholar]
- Chen, Z.; Li, W. Multisensor Feature Fusion for Bearing Fault Diagnosis Using Sparse Autoencoder and Deep Belief Network. IEEE Trans. Instrum. Meas. 2017, 66, 1693–1702. [Google Scholar] [CrossRef]
- Karimi, M.; Majidi, M.; Etezadi-Amoli, M.; Oskuoee, M. Partial discharge classification using deep belief networks. In Proceedings of the 2018 IEEE/PES Transmission and Distribution Conference and Exposition (T&D), Denver, CO, USA, 16–19 April 2018; pp. 1061–1070. [Google Scholar]
- Karimi, M.; Majidi, M.; MirSaeedi, H.; Arefi, M.M.; Oskuoee, M. A Novel Application of Deep Belief Networks in Learning Partial Discharge Patterns for Classifying Corona, Surface, and Internal Discharges. IEEE Trans. Ind. Electron. 2019, 67, 3277–3287. [Google Scholar] [CrossRef]
- Dai, J.; Song, H.; Sheng, G.; Jiang, X. Dissolved gas analysis of insulating oil for power transformer fault diagnosis with deep belief network. IEEE Trans. Dielectr. Electr. Insul. 2017, 24, 2828–2835. [Google Scholar] [CrossRef]
- Wan, X.; Song, H.; Luo, L.; Li, Z.; Sheng, G.; Jiang, X. Pattern recognition of partial discharge image based on one-dimensional convolutional neural network. In Proceedings of the 2018 Condition Monitoring and Diagnosis (CMD), Perth, WA, Australia, 23–26 September 2018; pp. 1–4. [Google Scholar]
- Wang, Y.; Yan, J.; Yang, Z.; Zhao, Y.; Liu, T. GIS partial discharge pattern recognition via lightweight convolutional neural network in the ubiquitous power internet of things context. IET Sci. Meas. Technol. 2020, 14, 864–871. [Google Scholar] [CrossRef]
- Nguyen, M.-T.; Nguyen, V.-H.; Yun, S.-J.; Kim, Y.-H. Recurrent Neural Network for Partial Discharge Diagnosis in Gas-Insulated Switchgear. Energies 2018, 11, 1202. [Google Scholar] [CrossRef]
- Tuyet-Doan, V.-N.; Pho, H.-A.; Lee, B.; Kim, Y.-H. Deep Ensemble Model for Unknown Partial Discharge Diagnosis in Gas-Insulated Switchgears Using Convolutional Neural Networks. IEEE Access 2021, 9, 80524–80534. [Google Scholar] [CrossRef]
























| Types | Explanation |
|---|---|
| Air-Insulated Switchgear (AIS) | |
| Oil Insulated Switchgear (OIS) |
|
| Gas-Insulated Switchgear (GIS) |
|
| Types | Explanation |
|---|---|
| Air Circuit Breakers (ACB) |
|
| Vacuum Circuit Breakers |
|
| Gas Circuit Breakers |
|
| Oil Circuit Breaker |
|
| Faults | Explanation |
|---|---|
| Corona |
|
| Tracking |
|
| Arcing |
|
| Types | Explanation |
|---|---|
| Vibration Monitoring | This is a form of CBM that involves listening to vibration in an operating machine or component to check whether there is a change in the normal behavior of the device or not. Vibration monitoring is considered a vital task when it comes to achieving the proper management of asset integrity [48]. This is because fluctuations in vibrations are indicators of advanced wear and related issues that may include equipment sliding loose on mountings or malfunctioning components. The data gathered from monitoring vibration inconsistency may be useful in putting in place some maintenance actions ahead of time [49]. |
| Sonic and Ultrasonic Monitoring | Strange noises may be made by worn, fractured, damaged, misaligned, or incorrectly performing components [50]. Grinding, cracking, and creaking have been characterized as noises. Sonic CBM sensors can measure and recognize these noises, alerting you that the equipment needs to be examined or serviced. The data from an ultrasonic instrument are shown in decibels per microvolts (dBuV)[51]. |
| Lubricating Oil Analysis and Quality Monitoring | Lubricating lubricants are used in a lot of devices and machinery to keep their components working smoothly and prevent severe friction or impact between small sensitive elements [52]. Due to the high danger of failure, these lubricants must be closely monitored and are a great indicator of the equipment’s overall health. As a result, systems have been developed that can test the amount and composition of lubricating oils and provide precise data, usually through software. |
| Thermographic (Temperature) Monitoring | Another common warning that anything is amiss with a machine is temperature. When several components, particularly moving parts, fail, they frequently emit exceptional levels of heat. Heat may also be a symptom that there is too much friction, which might indicate misalignment or components rubbing against each other. Thermographic CBM devices identify places where excessive quantities of heat are released by measuring temperature differences over the machine’s surface [53]. Because thermographic devices are good at identifying failures involving spinning components, they are used in conjunction with vibration-based hardware, particularly in large machines with many tiny linked pieces [54]. |
| Current and Voltage Monitoring | Although some of the devices discussed above are designed to detect mechanical issues, additional hardware designed to detect electrical failures has been created. These gadgets are used to check for anomalous voltages and to measure the electrical currents going through the machine. Voltage and current monitoring devices may detect electrical supply imbalances, such as when a machine receives excessive amounts of power to work correctly, if the flow of current has been disturbed, or if any circuits have been destroyed or disrupted. Certain modern monitors may also identify certain sorts of mechanical problems, such as failing bearings or other spinning components [55]. The CBM devices listed above are merely a few of the many that are now available. Practically, any attribute or characteristic of a machine can be tracked and will provide at least some information about its present state of health and performance. As a result, it is hard to include every kind of CBM device that is currently being developed or used now [56]. |
| Reference | Implementation | Objective | Input (Sensor Type) | Methods | Accuracy |
|---|---|---|---|---|---|
| [71] | Elec. equip. | Classification | Time-series data (CT) | Raw data + SSAE | 99.7% |
| [75] | GIS | Classification | Time-series data (UHF) | Raw data + conditional VAE for data augmentation + light-scale CNN | 98.13% |
| [102] | GIS | Classification | PRPS (UHF) | PRPS data + VAE | Outperform CNN/DBN |
| [106] | GIS | Classification | Time-series data (UHF) | Images exported by CRO + preprocessing + 1D-CNN | 88.9% |
| [107] | GIS | Classification | PRPS (UHF) | PRPS data + CNN | 95.6% (experiment data)/86.7% (mixed data) |
| [82] | GIS | Classification | Time-series data (UHF) | Raw data + CNN (MobileNet) | 96.5% |
| [88] | Switchgear | Classification | Time-series data (TEV) | Raw data + preprocessing + CNN | 97.37–100% |
| [89] | GIS | Detection | Pressure /Temperature /Infrared photoacoustic gas sensors) | Raw data + CNN | 95.7% |
| [108] | GIS | Classification | PRPD (UHF) | Series of PRPDs + RNN (LSTM) | 96.74% |
| [78] | Switchgear | Classification | Time-series data (CWT) | DNN + CAE | 99.72% |
| [109] | GIS | Classification | PRPD (UHF) | DNNs +PRPD | 100% |
| DL Library/Framework | The Fundamental Language | GUI | Reputation |
|---|---|---|---|
| TensorFlow | c++, python | python, java, go, c++ | very high |
| Keras | python | python | High |
| Torch | c, lua | c, c++, lua, opencl | Low |
| PyTorch | python, c | python, onnx | High |
| Caffe | c++ | c++, python, matlab | High |
| Caffe2 | c++ | c++, python, onnx | Low |
| Theano | python | python | Low |
| DL toolbox | c, c++ | matlab | very low |
| MXNet | c++ | c++, python, r, etc. | medium |
| Chainer | python | python | very low |
| Cntk | c++ | python, c++, etc. | medium |
Publisher’s Note: MDPI stays neutral with regard to jurisdictional claims in published maps and institutional affiliations. |
© 2022 by the authors. Licensee MDPI, Basel, Switzerland. This article is an open access article distributed under the terms and conditions of the Creative Commons Attribution (CC BY) license (https://creativecommons.org/licenses/by/4.0/).
Share and Cite
Alsumaidaee, Y.A.M.; Yaw, C.T.; Koh, S.P.; Tiong, S.K.; Chen, C.P.; Ali, K. Review of Medium-Voltage Switchgear Fault Detection in a Condition-Based Monitoring System by Using Deep Learning. Energies 2022, 15, 6762. https://doi.org/10.3390/en15186762
Alsumaidaee YAM, Yaw CT, Koh SP, Tiong SK, Chen CP, Ali K. Review of Medium-Voltage Switchgear Fault Detection in a Condition-Based Monitoring System by Using Deep Learning. Energies. 2022; 15(18):6762. https://doi.org/10.3390/en15186762
Chicago/Turabian StyleAlsumaidaee, Yaseen Ahmed Mohammed, Chong Tak Yaw, Siaw Paw Koh, Sieh Kiong Tiong, Chai Phing Chen, and Kharudin Ali. 2022. "Review of Medium-Voltage Switchgear Fault Detection in a Condition-Based Monitoring System by Using Deep Learning" Energies 15, no. 18: 6762. https://doi.org/10.3390/en15186762
APA StyleAlsumaidaee, Y. A. M., Yaw, C. T., Koh, S. P., Tiong, S. K., Chen, C. P., & Ali, K. (2022). Review of Medium-Voltage Switchgear Fault Detection in a Condition-Based Monitoring System by Using Deep Learning. Energies, 15(18), 6762. https://doi.org/10.3390/en15186762

