Building Energy Performance Analysis after Changing Its Form of Use from an Office to a Residential Building
Abstract
1. Introduction
- Requirements Placed before nZEBs
- EPH+W [kWh/(m2annum)]—partial maximum EP indicator value for the purposes of heating, ventilation and domestic hot water (DHW) preparation.
- ΔEPC [kWh/(m2annum)]—partial maximum EP indicator value for the purposes of cooling.
- ΔEPL [kWh/(m2annum)]—partial maximum EP indicator value for the purposes of installed lighting.
- Primary energy indicators: ∆EPL = 0
- For other buildings: for t0 < 2500 ∆EPL = 25; for t0 ≥ 2500 ∆EPL = 50where t0—number of hours during which the lighting installation operates.
- Selected aspects of nZEB design
2. Materials and Methods
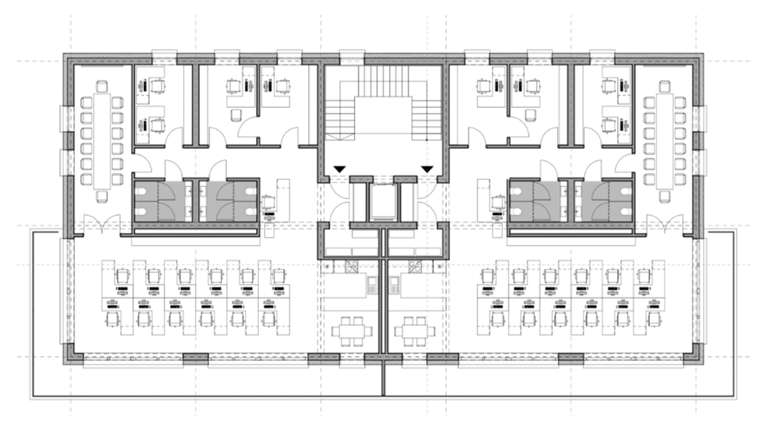
2.1. Overview of the Building under Analysis
2.2. Overview of Analysis Tools
- Monthly balance analysis method
- Hourly balance analysis method
- Integrated, simultaneous solution of thermal zone conditions and HVAC system response that does not assume that the HVAC system can meet zone loads and can simulate un-conditioned and under-conditioned spaces.
- Heat balance-based solution of radiant and convective effects that produce surface temperatures, thermal comfort and condensation calculations.
- Sub-hourly, user-definable time steps for interaction between thermal zones and the environment; with automatically varied time steps for interactions between thermal zones and HVAC systems. These allow EnergyPlus to model systems with fast dynamics while also trading off simulation speed for precision.
- Combined heat and mass transfer model that accounts for air movement between zones.
- Advanced fenestration models including controllable window blinds, electrochromic glazings, and layer-by-layer heat balances that calculate solar energy absorbed by windowpanes.
- Illuminance and glare calculations for reporting visual comfort.
2.3. Data assumed in the Model
- Calculation assumptions:
- —Windows (alternative 1) with a U-value of U = 0.9 W/m2K and a solar heat gain value of g = 0.35
- —Gas-powered heating with a non-renewable expenditure coefficient of wi = 0.8
- —Electrical-based cooling with an expenditure coefficient of wi = 3.0
3. Results
3.1. Building Technical Installation Remodelling Potential Analysis
3.2. Business Model Transformation Analysis
- Construction—the average cost of investing in the construction of an office building in a prestigious big-city location in Poland is, on average EUR 2000/m2. In the building under analysis, each office unit has a floor area of 166 m2. Thus, the construction of each of the office space units in the building under analysis amounts to EUR 2000/1 m2 × 166 m2 = EUR 332,000
- Rental—office space rental prices in the Polish capital, Warsaw, in 2020 were within the range of EUR 15–25/1 m2/month depending on the district. Thus, the price of yearly rental of a single office unit in the building under analysis would be 166 m2 × EUR 20/1 m2/month × 12 months = EUR 39,840. This would provide a return on investment time of around 8–10 years, without including the cost of servicing debt.
- Sale of an office unit as an apartment—the price for an apartment in a prestigious location in Warsaw was, at the time of writing, around EUR 3400/1 m2. Thus, the price of an apartment in the building under analysis would amount to 166 m2 × EUR 3400/1 m2 = EUR 564,000. Thus, the profit from the sale of an office space unit as an apartment would be EUR 564,000 − EUR 332,000 = EUR 232,400, which is around 40% of the sale price.
3.3. Comparison of Energy Demand Calculations Performed Using the Monthly Balance Method with Calculations Performed Using the Hourly Balance Method for the Apartment Building after its Adaptation into an Office Building
3.4. Bridging the Energy Gap with Alternative Renewable Energy Installations to Make the Building Zero Energy
3.5. Results of Energy Demand Calculations for the Residential Building and after the Change of the Form of Use of the Office Building
3.6. Thermal Comfort Analysis Results, Assuming Different Window Sets with an Option of Windows without Solar Blinds and with Blinds for a Residential Building and after the Change of Form of Use for the Office Building
4. Discussion
5. Conclusions
Author Contributions
Funding
Informed Consent Statement
Data Availability Statement
Conflicts of Interest
References
- Piasecki, M. Metoda oceny budynku pod kątem zrównoważonego rozwoju. Mater. Bud. 2010, 5, 34–36. [Google Scholar]
- Radziszewska-Zielina, E.; Rumin, R. Analysis Of The Profitability of Investment In Renewable Energy Sources On The Example of A Semi-Detached House. E3S Web Conf. 2016, 10, 79. [Google Scholar] [CrossRef]
- Foletti, C.; Farisè, S.; Grassi, B.; Strazza, D.; Lancini, M.; Poesio, P. Experimental investigation on two-phase air/high-viscosity-oil flow in a horizontal pipe. Chem. Eng. Sci. 2011, 66, 5968. [Google Scholar] [CrossRef]
- Švajlenka, J.; Kozlovská, M. Effect of accumulation elements on the energy consumption of wood constructions. Energy Build. 2019, 198, 160. [Google Scholar] [CrossRef]
- Azar, E.; Menassa, C.C. Agent-based modeling of occupants and their impact on energy use in commercial buildings. J. Comput. Civ. Eng. 2012, 26, 506–518. [Google Scholar] [CrossRef]
- European Parliament. Directive 2002/91/EC of the European Parliament and of the Council of 16 December 2002 on the Energy Performance of Buildings; European Parliament: Brussels, Belgium, 2002. [Google Scholar]
- European Parliament. Directive 2010/31/EU of the European Parliament and of the Council of 19 May 2010 on the Energy Performance of Buildings; European Parliament: Brussels, Belgium, 2010. [Google Scholar]
- European Parliament. Directive (EU) 2018/844 of the European Parliament and of the council of 30 May 2018; European Parliament: Brussels, Belgium, 2018. [Google Scholar]
- Atanasiu, B.; Offermann, M.; Manteuffel, B.V.; Grözinger, J.; Boermans, T.; Polska, B.; Pawlak, P.; Witczak, K.; Dębowy, A.; Rapf, O.; et al. ImplementIng Nearly Zero-Energy BuIldIngs (nZeB) in Poland-Towards a definition and Roadmap Executive Summary; Buildings Performance Institute Europe (BPIE): Brussels, Belgium, 2012. [Google Scholar]
- Holling of the Minister of Infrastructure and Development of 17 July 2015 on the Announcement of the Consolidated Text of the Regulation of the Minister of Infrastructure on the Technical Conditions to be Met by Buildings and Their Location; Minister of Infrastructure: Warsaw, Poland, 2015.
- Fedorczak-Cisak, M.; Nowak, K.; Furtak, M. Analysis of the Effect of Using External Venetian Blinds on the Thermal Comfort of Users of Highly Glazed Office Rooms in a Transition Season of Temperate Climate—Case Study. Energies 2019, 13, 81. [Google Scholar] [CrossRef]
- PN-EN ISO-ISO 6946:2017-Building Components and Building Elements—Thermal Resistance and Thermal Transmittance—Calculation Methods; Polish Standardization Committee: Warsaw, Poland, 2017.
- Ali, Q.; Thaheem, M.J.; Ullah, F.; Sepasgozar, S.M.E. The performance gap in energy-efficient office buildings: How the occupants can help? Energies 2020, 13, 1480. [Google Scholar] [CrossRef]
- Kaminska, A. Impact of heating control strategy and occupant behavior on the energy consumption in a building with natural ventilation in Poland. Energies 2019, 12, 4304. [Google Scholar] [CrossRef]
- Menezes, A.C.; Cripps, A.; Bouchlaghem, D.; Buswell, R. Predicted vs. actual energy performance of non-domestic buildings: Using post-occupancy evaluation data to reduce the performance gap. Appl. Energy 2012, 97, 355–364. [Google Scholar] [CrossRef]
- Mjörnell, K.; Johansson, D.; Bagge, H. The Effect of High Occupancy Density on IAQ, Moisture Conditions and Energy Use in Apartments. Energies 2019, 12, 4454. [Google Scholar] [CrossRef]
- De Wilde, P. The gap between predicted and measured energy performance of buildings: A framework for investigation. Autom. Constr. 2014, 41, 40–49. [Google Scholar] [CrossRef]
- Grassi, B.; Piana, E.A.; Beretta, G.P.; Pilotelli, M. Dynamic Approach to Evaluate the Effect of Reducing District Heating Temperature on Indoor Thermal Comfort. Energies 2021, 14, 25. [Google Scholar] [CrossRef]
- Fanger, P.O. Calculation of Thermal Comfort, Introduction of a Basic Comfort Equation; ASHRAE Transacions: Peachtree Corners, GE, USA, 1967; p. 73. [Google Scholar]
- PN ISO 7726: 2001. Ergonomics of the Thermal Environment. Instruments for Measuring Physical Quantities; Polish Standardization Committee: Warsaw, Poland, 2001. [Google Scholar]
- PN-EN 15251:2012-Wersja Polska. Available online: http://sklep.pkn.pl/pn-en-15251-2012p.html (accessed on 19 September 2019).
- PN-EN ISO 7730: 2006. Ergonomics of the thermal Environment—Analytical Determination and Interpretation of Thermal Comfort Using the Calculation of PMV and PPD Indicators and Criteria of Local Thermal Comfort; Polish Standardization Committee: Warsaw, Poland, 2005. [Google Scholar]
- Majewski, G.; Orman, Ł.J.; Telejko, M.; Radek, N.; Pietraszek, J.; Dudek, A. Assessment of thermal comfort in the intelligent buildings in view of providing high quality indoor environment. Energies 2020, 13, 1973. [Google Scholar] [CrossRef]
- Radziszewska-Zielina, E.; Czerski, P.; Grześkowiak, W.K.-S.P. Comfort of Use Assessment in Buildings with Interior Wall Insulation based on Silicate and Lime System in the Context of the Elimination of Mould Growth. Arch. Civ. Eng. 2020, LXVI, 89–104. [Google Scholar]
- Dudzik, M.; Strȩk, A.M. ANN Architecture Specifications for Modelling of Open-Cell Aluminum under Compression. Math. Probl. Eng. 2020, 2020, 2834317. [Google Scholar] [CrossRef]
- Dudzik, M. Towards characterization of indoor environment in smart buildings: Modelling PMV index using neural network with one hidden layer. Sustainability 2020, 12, 6749. [Google Scholar] [CrossRef]
- Djamila, H.; Chu, C.M.; Kumaresan, S. Field study of thermal comfort in residential buildings in the equatorial hot-humid climate of Malaysia. Build. Environ. 2013, 62, 133–142. [Google Scholar] [CrossRef]
- Romańska-Zapała, A.; Bomberg, M.; Fedorczak-Cisak, M.; Furtak, M.; Yarbrough, D. Buildings with environmental quality management (EQM) Part 2: Integration of hydronic heating/cooling with thermal mass. J. Build. Phys. 2018, 41, 397–417. [Google Scholar] [CrossRef]
- Moujalled, B.; Cantin, R.; Guarracino, G. Comparison of thermal comfort algorithms in naturally ventilated office buildings. Energy Build. 2008, 40, 2215–2223. [Google Scholar] [CrossRef]
- Yarbrough, D.W.; Bomberg, M.; Romanska-Zapala, A. On the next generation of low energy buildings. Adv. Build. Energy Res. 2019, 1–8. [Google Scholar] [CrossRef]
- Damiati, S.A.; Zaki, S.A.; Wonorahardjo, S.; Ali, M.S.M.; Rijal, H.B. Thermal Comfort Survey in Office Buildings in Bandung, Indonesia. In Proceedings of the Int. Joint Conference Senvar-Inta-Avan 2015 “Wisdom Trop. Past Present Future, International Joint Conference of SENVAR-iNTA-AVAN, Johor, Malaysia, 24–26 November 2015; pp. 53–64. [Google Scholar]
- Ricciardi, P.; Buratti, C. Thermal comfort in the Fraschini theatre (Pavia, Italy): Correlation between data from questionnaires, measurements, and mathematical model. Energy Build. 2015, 99, 243–252. [Google Scholar] [CrossRef]
- Guedes, M.C.; Matias, L.; Santos, C.P. Thermal comfort criteria and building design: Field work in Portugal. Renew. Energy 2009, 34, 2357–2361. [Google Scholar] [CrossRef]
- Dudzik, M.; Romanska-Zapala, A.; Bomberg, M. A Neural Network for Monitoring and Characterization of Buildings with Environmental Quality Management, Part 1: Verification under Steady State Conditions. Energies 2020, 13, 3469. [Google Scholar] [CrossRef]
- Piasecki, M.; Radziszewska-Zielina, E.; Czerski, P.; Fedorczak-Cisak, M.; Zielina, M.; Krzyściak, P.; Kwaśniewska-Sip, P.; Grześkowiak, W. Implementation of the Indoor Environmental Quality (IEQ) Model for the Assessment of a Retrofitted Historical Masonry Building. Energies 2020, 13, 6051. [Google Scholar] [CrossRef]
- Fedorczak-Cisak, M.; Kowalska-Koczwara, A.; Nering, K.; Pachla, F.; Radziszewska-Zielina, E.; Śladowski, G.; Tatara, T.; Ziarko, B. Evaluation of the criteria for selecting proposed variants of utility functions in the adaptation of historic regional architecture. Sustainability 2019, 11, 1094. [Google Scholar] [CrossRef]
- Fedorczak-Cisak, M.; Kowalska-Koczwara, A.; Pachla, F.; Radziszewska-Zielina, E.; Szewczyk, B.; Śladowski, G.; Tatara, T. Fuzzy Model for Selecting a Form of Use Alternative for a Historic Building to be Subjected to Adaptive Reuse. Energies 2020, 13, 2809. [Google Scholar] [CrossRef]
- ISO Standard 7730. Ergonomics of the Thermal Environment-Analytical Determination and Interpretation of Thermal Comfort Using Calculation of the PMV and PPD Indices and Local Thermal Comfort Criteria; International Organization for Standardizati: Geneva, Switzerland, 2005. [Google Scholar]
- Hens, H.S.L.C. Thermal comfort in office buildings: Two case studies commented. Build. Environ. 2009, 44, 1399–1408. [Google Scholar] [CrossRef]
- Kim, J.; Song, D.; Kim, S.; Park, S.; Choi, Y.; Lim, H. Energy-saving potential of extending temperature set-points in a VRF air-conditioned building. Energies 2020, 13, 2160. [Google Scholar] [CrossRef]
- Ballarini, I.; De Luca, G.; Paragamyan, A.; Pellegrino, A.; Corrado, V. Transformation of an office building into a nearly zero energy building (NZEB): Implications for thermal and visual comfort and energy performance. Energies 2019, 12, 895. [Google Scholar] [CrossRef]
- Fedorczak-Cisak, M.; Furtak, M. Energy efficient building in the context of development strategy of Malopolska. In Proceedings of the CESB 2013 PRAGUE—Central Europe towards Sustainable Building—CESB: Sustainable Building and Refurbishment for Next Generations, Pague, Czech Republic, 26–28 June 2013. [Google Scholar]
- Fedorczak-Cisak, M.; Furtak, M.; Gintowt, J.; Kowalska-Koczwara, A.; Pachla, F.; Stypula, K.; Tatara, T. Thermal and vibration comfort analysis of a nearly zero-energy building in Poland. Sustainability 2018, 10, 3774. [Google Scholar] [CrossRef]
- Fedorczak-Cisak, M.; Kotowicz, A.; Radziszewska-Zielina, E.; Sroka, B.; Tatara, T.; Barnaś, K. Multi-Criteria Optimisation of an Experimental Complex of Single-Family Nearly Zero-Energy Buildings. Energies 2020, 13, 1541. [Google Scholar] [CrossRef]
- Plympton, P.; Conway, S.; Epstein, K. Daylighting in Schools: Improving Student Performance and Health at a Price Schools Can Afford Preprint; National Renewable Energy Laboratory (U.S.): Golden, CO, USA, 2000.
- Doulos, L.; Tsangrassoulis, A.; Topalis, F. Quantifying energy savings in daylight responsive systems: The role of dimming electronic ballasts. Energy Build. 2008, 40, 36–50. [Google Scholar] [CrossRef]
- Onaygil, S.; Güler, Ö. Determination of the energy saving by daylight responsive lighting control systems with an example from Istanbul. Build. Environ. 2003, 38, 973–977. [Google Scholar] [CrossRef]
- Li, D.H.W.; Lam, T.N.T.; Wong, S.L. Lighting and energy performance for an office using high frequency dimming controls. Energy Convers. Manag. 2006, 47, 1133–1145. [Google Scholar] [CrossRef]
- Xue, P.; Li, Q.; Xie, J.; Zhao, M.; Liu, J. Optimization of window-to-wall ratio with sunshades in China low latitude region considering daylighting and energy saving requirements. Appl. Energy 2019, 233–234, 62–70. [Google Scholar] [CrossRef]
- Kisilewicz, T. Wpływ Izolacyjnych, Dynamicznych I Spektralnych Właściwości Przegród Na Bilans Cieplny Budynków Energooszczędnych; Cracow University of Technology: Cracow, Poland, 2008. [Google Scholar]
- Alwetaishi, M. Impact of glazing to wall ratio in various climatic regions: A case study. J. King Saud Univ. Eng. Sci. 2019, 31, 6–18. [Google Scholar] [CrossRef]
- Lin, Y.; Zhou, S.; Yang, W.; Li, C.Q. Design optimization considering variable thermal mass, insulation, absorptance of solar radiation, and glazing ratio using a prediction model and genetic algorithm. Sustainability 2018, 10, 336. [Google Scholar] [CrossRef]
- Palmero-Marrero, A.I.; Oliveira, A.C. Effect of louver shading devices on building energy requirements. Appl. Energy 2010, 87, 2040–2049. [Google Scholar] [CrossRef]
- Bellia, L.; Marino, C.; Minichiello, F.; Pedace, A. An overview on solar shading systems for buildings. Energy Procedia 2014, 62, 309–317. [Google Scholar] [CrossRef]
- Atzeri, A.; Cappelletti, F.; Gasparell, A. Internal versus external shading devices performance in office buildings. Energy Procedia 2014, 45, 463–472. [Google Scholar] [CrossRef]
- Markiewicz, J. Dziennik Ustaw Rzeczypospolitej Polskiej; Ministry of Infrastructure: Warsaw, Poland, 2015.
- Wpływ Epidemii COVID-19 na Wybrane Elementy Rynku Pracy w Polsce w II Kwartale 2020 r., Portal Sprawozdawczy GUS Do Badania “Popyt na pracę”. Available online: https://stat.gov.pl/files/gfx/portalinformacyjny/pl/defaultaktualnosci/5820/4/3/1/wplyw_epidemii_covid-19_na_wybrane_elementy_rynku_pracy_w_polsce_w_trzecim_kwartale_2020_2.pdf (accessed on 9 October 2020).


















| Item No. | Building Element | U-Value [W/(m2K)] |
| 1 January 2021 | ||
| 1 | Internal wall ti ≥ 16 °C | 0.20 |
| 2 | Floor | 0.30 |
| 3 | Steep/flat roof ti ≥ 16 °C | 0.15 |
| 4 | Windows ti ≥ 16 °C | 0.90 |
| 5 | Doors | 1.30 |
| Item No. | Building Type | Partial EPH+W Indicator Values for the Purposes of Heating, Ventilation and Domestic Hot Water Preparation [kWh/(m2annum)] |
|---|---|---|
| Since 1 January 2021 | ||
| 1 | Residential building: | |
| 70 | |
| 65 | |
| 2 | Accommodation building: | 75 |
| 3 | Public and commercial building: | |
| 190 | |
| 45 | |
| 4 | Ancillary, storage and production building | 70 |
| Residential Use—Apartments | Office Use | |
|---|---|---|
| Car parks | 529.7 m2 | 529.7 m2 |
| Circulation | 147.9 m2 | 147.9 m2 |
| Apartments/office units | 996.0 m2 | 996.0 m2 |
| Total usable floor area | 1673.6 m2 | 1673.6 m2 |
| Total no. of users | 6 × 4 persons = 24 persons | 6 × 17 persons = 102 persons |
| Occupancy schedule | Mon-Fri: 16.00–9.00 Sat–Sun: 24 h | Mon-Fri: 9.00–16.00 Sat–Sun: 0 h |
| Glazing Size for Individual Apartments/Office Premises | ||
|---|---|---|
| Windows on the south-facing façade | Windows on the west- or east-facing façade | Windows on the northern façade |
| 24.4 m2 (58%) | 13.9 m2 (33%) | 3.9 m2 (9%) |
| All windows for a single apartment/office unit = 42.2 m2 Floor area to glazed surface area ratio = 166.0 m2: 42.2 m2 = 3.9 | ||
| Conditions | Multi-Family Residential Building (Hours) | Public and Commercial Building—Office Building (Hours) |
|---|---|---|
| Heating—no. of hours | 4660 | 6440 |
| Cooling—no. of hours | 3787 | 6146 |
| Item No. | Partial Primary Energy Indicator Value Concerning | Multi-Family Residential Building (Hours) | Public and Commercial Building—Office Building (Hours) |
|---|---|---|---|
| 1 | Heating | 65 (kWh/m2annum) | 45 (kWh/m2annum) |
| 2 | Cooling | 5 (kWh/m2annum) | 10 (kWh/m2annum) |
| 3 | Lighting | 0 (kWh/m2annum) | 50 (kWh/m2annum) |
| Total | 70 (kWh/m2annum) | 105 (kWh/m2annum) |
| Alternative | Panel Placement | Energy Gap Necessary to be Bridged in Order to Meet the Condition Concerning the Maximum Permissible Non-Renewable Primary Energy Demand Indicator as Stipulated in the Polish Building Code [kWh/annum] | |
|---|---|---|---|
| Apartment Building | Office Building | ||
| Alternative 1 | PV panels placed on flat roof | 28,660 | 60,588 |
| Alternative 2 | Additional PV panels placed on the attic wall of the two-part flat roof | 18,384 | 50,312 |
| Alternative 3 | Additional see-through panels placed on the façades | 0 | 27,086 |
| Alternative | Panel Placement | Energy Gap Necessary to Be Bridged in Order to Meet the Condition Concerning The Maximum Permissible Non-Renewable Primary Energy Demand Indicator as Stipulated in the Polish Building Code (kWh/annum) | |
|---|---|---|---|
| Apartment Building | Office Building | ||
| Alternative 1 | PV panels placed on flat roof | 0 | 11,573 |
| Alternative 2 | Additional PV panels placed on the attic wall of the two-part flat roof | 0 | 1297 |
| Alternative 3 | Additional see-through panels placed on the façades | 0 | 0 |
Publisher’s Note: MDPI stays neutral with regard to jurisdictional claims in published maps and institutional affiliations. |
© 2021 by the authors. Licensee MDPI, Basel, Switzerland. This article is an open access article distributed under the terms and conditions of the Creative Commons Attribution (CC BY) license (http://creativecommons.org/licenses/by/4.0/).
Share and Cite
Markiewicz-Zahorski, P.; Rucińska, J.; Fedorczak-Cisak, M.; Zielina, M. Building Energy Performance Analysis after Changing Its Form of Use from an Office to a Residential Building. Energies 2021, 14, 564. https://doi.org/10.3390/en14030564
Markiewicz-Zahorski P, Rucińska J, Fedorczak-Cisak M, Zielina M. Building Energy Performance Analysis after Changing Its Form of Use from an Office to a Residential Building. Energies. 2021; 14(3):564. https://doi.org/10.3390/en14030564
Chicago/Turabian StyleMarkiewicz-Zahorski, Przemysław, Joanna Rucińska, Małgorzata Fedorczak-Cisak, and Michał Zielina. 2021. "Building Energy Performance Analysis after Changing Its Form of Use from an Office to a Residential Building" Energies 14, no. 3: 564. https://doi.org/10.3390/en14030564
APA StyleMarkiewicz-Zahorski, P., Rucińska, J., Fedorczak-Cisak, M., & Zielina, M. (2021). Building Energy Performance Analysis after Changing Its Form of Use from an Office to a Residential Building. Energies, 14(3), 564. https://doi.org/10.3390/en14030564

