The Influence of Different Facings of Polyisocyanurate Boards on Heat Transfer through the Wall Corners of Insulated Buildings
Abstract
1. Introduction
2. Methods and Measuring Equipment
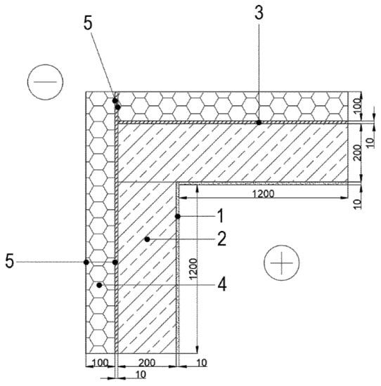
2.1. Structure and Materials of Wall Fragments for Investigation
2.2. Numerical Calculation of Heat Transfer through Building Corner Joints Insulated with Faced Polyurethane Products
2.3. Experimental Measurement of the Influence of a Facing on the Heat Transfer through a Thermal Insulating Material with a Facing
3. Results
3.1. Results of the Numerical Calculation
3.2. Results of Experimental Measurement of Heat Transfer through the Specimens with Thermal Interruptions
4. Discussion and Conclusions
Author Contributions
Funding
Conflicts of Interest
References
- Zalewski, L.; Lassue, S.; Rousse, D.; Boukhalfa, K. Experimental and numerical characterization of thermal bridges in prefabricated building walls. Energy Convers. Manag. 2010, 51, 2869–2877. [Google Scholar] [CrossRef]
- Pérez-Bella, J.; Domínguez-Hernández, J.; Cano-Suñén, E.; Alonso-Martínez, M.; del Coz-Díaz, J.J. Detailes territorial estimation of design thermal conductivity for façade materials in North-Eastern Spain. Energy Build. 2015, 102, 266–276. [Google Scholar] [CrossRef]
- Paraschiv, L.S.; Paraschiv, S.; Ion, I.V. Increasing the energy efficiency of buildings by thermal insulation. In Proceedings of the International Scientific Conference “Environmental and Climate Technologies”, Riga, Latvia, 10–12 May 2017. [Google Scholar] [CrossRef]
- Sadineni, S.B.; Madala, S.; Boehm, R.F. Passive building energy savings: A review of building envelope components. Renew. Sustain. Energy Rev. 2011, 15, 3617–3631. [Google Scholar] [CrossRef]
- Berardi, U. The impact of temperature dependency of the building insulation thermal conductivity in the Canadian climate. In Proceedings of the 11th Nordic Symposium on Building Physics, Trondheim, Norway, 11–14 June 2017. [Google Scholar] [CrossRef]
- Zhang, H.; Fang, W.; Li, Y.; Tao, W. Experimental study of the thermal conductivity of polyurethane foams. Appl. Therm. Eng. 2017, 115, 528–538. [Google Scholar] [CrossRef]
- Jin, J.; Dong, Q.; Shu, Z.; Wang, W.; He, K. Flame retardant properties of polyurethane/expandable praphite composites. Procedia Eng. 2014, 71, 304–309. [Google Scholar] [CrossRef]
- Biswas, K.; Desjarlais, A.; Smith, D.; Letts, J.; Yao, J.; Jiang, T. Development and thermal performance verification of composite insulation boards containing foam-encapsulated vacuum insulation panels. Appl. Energy 2018, 228, 1159–1172. [Google Scholar] [CrossRef]
- Walker, R.; Pavía, S. Thermal performance of a selection of insulation materials suitable for historic buildings. Build. Environ. 2015, 94, 155–165. [Google Scholar] [CrossRef]
- Bynum, R.T., Jr. Insulation Handbook; McGraw-Hill: New York, NY, USA, 2000; pp. 205–241. [Google Scholar]
- Al-Homoud, M.S. Performance characteristics and practical applications of common building thermal insulation materials. Build. Environ. 2005, 40, 353–366. [Google Scholar] [CrossRef]
- Feldman, D. Polymeric foam materials for insulation in buildings. In Materials for Energy Efficiency and Thermal Comfort in Buildings; Hall, M.R., Ed.; Woodhead Publishing: Cambridge, UK, 2010; pp. 257–273. [Google Scholar]
- PU Europe Technical Report on Thermal Insulation Materials Made of Rigid Polyurethane Foam (PUR/PIR). Available online: https://www.pu-europe.eu/library/pu-europe-reports/ (accessed on 15 February 2020).
- Types of Laminated PIR Boards. Available online: http://www.poliuretanos.com/en/productos/laminados/pur-al.html (accessed on 14 April 2020).
- Technical Bulletin 117: A Guide to the Classification of Polyiso Board Insulation Products. Available online: https://www.polyiso.org/page/100SeriesRoofing (accessed on 15 February 2020).
- Mukhopadhyaya, P.; Bomberg, M.T.; Kumaran, M.K.; Drouin, M.; Lackey, J.; van Reenen, D.; Normandin, N. Long-term thermal resistance of polyisocyanurate foam insulation with impermeable facers. In Insulation Materials: Testing and Applications; Desjarlais, A.O., Zarr, R.R., Eds.; ASTM International: West Conshohocken, PA, USA, 2002; Volume 4, pp. 351–365. [Google Scholar]
- Stovall, T. Closed Cell Foam Insulation: A Review of Long Term Thermal Performance Research; Oak Ridge National Laboratory: Oak Ridge, TN, USA, 2012.
- Bogdan, M.; Hoerter, J.; Moore, F.O. Meeting the insulation requirements of the building envelope with polyurethane and polyisocyanurate foam. J. Cell. Plast. 2005, 41, 41–56. [Google Scholar] [CrossRef]
- Marrucho, I.M.; Santos, F.; Oliveira, N.S.; Dohrn, R. Aging of rigid polyurethane foams: Thermal conductivity of N2 and cyclopentane gas mixtures. J. Cell. Plast. 2005, 41, 207–224. [Google Scholar] [CrossRef]
- Larbi, A.B. Statistical modelling of heat transfer for thermal bridges of buildings. Energy Build. 2005, 37, 945–951. [Google Scholar] [CrossRef]
- Theodosiou, T.; Tsikaloudaki, K.; Bikas, D. Analysis of the thermal bridge effect on ventilated facades. In Proceedings of the International Conference on Sustainable Synergies from Buildings to the Urban Scale, Thessaloniki, Greece, 16–19 October 2016. [Google Scholar] [CrossRef]
- Theodosiou, T.G.; Papadopoulos, A.M. The impact of thermal bridges on the energy demand of buildings with double brick wall constructions. Energy Build. 2008, 40, 2083–2089. [Google Scholar] [CrossRef]
- Berggren, B.; Wall, M. Calculation of thermal bridges in (Nordic) building envelopes—Risk of performance failure due to inconsistent use of methodology. Energy Build. 2013, 65, 331–339. [Google Scholar] [CrossRef]
- Cerneckiene, J.; Zdankus, T.; Valancius, R.; Fokaides, P.A. Numerical investigation of the impact of longitudinal thermal bridging on energy efficient buildings under humid continental climate conditions: The case of Lithuania. IOP Conf. Ser. Earth Environ. Sci. 2020, 410, 105. [Google Scholar] [CrossRef]
- Impact of Thermal Bridges on the Energy Performance of Buildings. Available online: https://www.buildup.eu/en/practices/publications/impact-thermal-bridges-energy-performance-buildings (accessed on 9 March 2020).
- Levinskytė, A.; Bliūdžius, R.; Burlingis, A.; Makaveckas, T. Dependencies of heat transmittance through the ventilated wall system on thermal conductivity of connectors crossing thermal insulation layer. In Proceedings of the 4th Central European Symposium on Building Physics, Prague, Czech Republic, 2–5 September 2019; EDP Sciences: Les Ulis, France, 2019. [Google Scholar] [CrossRef][Green Version]
- Tenpierik, M.; Cauberg, H. Analytical Models for Calculating Thermal Bridge Effects Caused by Thin High Barrier Envelopes around Vacuum Insulation Panels. J. Build. Phys. 2007, 30, 185–215. [Google Scholar] [CrossRef]
- Schwab, H.; Stark, C.; Wachtel, J.; Ebert, H.P.; Fricke, J. Thermal Bridges in Vacuum-insulated Building Façades. J. Therm. Envel. Build. Sci. 2005, 28, 345–355. [Google Scholar] [CrossRef]
- U-Values in Europe. Available online: https://www.eurima.org/u-values-in-europe/ (accessed on 15 February 2020).
- Ahmed, K.; Carlier, M.; Feldmann, C.; Kurnitski, J. A new method for contrasting energy performance and near-zero energy building requirements in different climates and countries. Energies 2017, 10, 334. [Google Scholar] [CrossRef]
- EN ISO 6946. Building Components and Building Elements—Thermal Resistance and Thermal Transmittance—Calculation Methods 2017; ISO: Geneva, Switzerland, 2017.
- Two-Dimensional Building Heat-Transfer Modeling. Available online: https://windows.lbl.gov/software/therm (accessed on 9 March 2020).
- Martin, K.; Campos-Celador, A.; Escudero, C.; Gómez, I.; Sala, J.M. Analysis of a thermal bridge in a guarded hot box testing facility. Energy Build. 2012, 50, 139–149. [Google Scholar] [CrossRef]
- EN ISO 10211. Thermal Bridges in Building Construction—Heat Flows and Surface Temperatures—Detailed Calculations 2017; ISO: Geneva, Switzerland, 2017.
- Lorenzati, A.; Fantucci, S.; Capozzoli, A.; Perino, M. The effect of different materials joint in Vacuum Insulation Panels. In Proceedings of the 6th International Conference on Sustainability in Energy and Buildings, Cardif, Wales, UK, 25–27 June 2014. [Google Scholar] [CrossRef]








| No. | Material | Thickness, mm | Thermal Conductivity λ, W/(m·K) |
|---|---|---|---|
| 1 | Plaster | 10 | 0.9 |
| 2 | Aerated concrete blocks | 200 | 0.13 |
| 3 | PU foam | ≤10 | 0.04 |
| 4 | PIR boards with facing: | 100 | 0.022 |
| (a) aluminum foil | 100 μm | 211 | |
| (b) multilayer aluminized facing | 155 μm | 0.125 | |
| (c) composite paper facing | 132 μm | 0.066 | |
| (d) plastic facing | 103 μm | 0.125 |
| Construction Type | L2D | Thermal Bridge Value, Ψ, W/(m·K) | ΔΦ, W/m | ||
|---|---|---|---|---|---|
| Wall corner insulated with PIR with different types of facings and with PU glue in the joint between two boards in the corner (Figure 4) | (a) aluminum foil | 0.2834 | −0.017 | 0.484 | |
| (b) multilayer aluminized facing | 0.2592 | −0.041 | 0.001 | ||
| (c) composite paper facing | 0.2590 | ||||
| (d) plastic facing | 0.2592 | ||||
| Wall corner insulated with PIR without any facing and with PU glue in the joint between two boards in the corner (Figure 5) | 0.2592 | −0.041 | |||
| 0.088 | |||||
| Wall corner insulated with PIR with aluminum foil facing, without facing and with PU glue in the joint between two boards in the corner (Figure 6) | 0.2636 | −0.036 | |||
| Wall corner insulated with PIR with aluminum foil facing, with facing and without PU glue in the joint between two boards in the corner (Figure 7a) | 0.2948 | −0.005 | 0.72 | ||
| Wall corner insulated with PIR without any facing and without PU glue in the joint between two boards in the corner (Figure 7b) | 0.2588 | −0.041 | |||
| 0.08 | |||||
| Wall corner insulated with PIR with aluminum foil facing, with removed facing and PU glue in the joint between two boards in the corner (Figure 8) | 0.2628 | −0.037 | |||
| Facing Type | Specimen Type | R, (m2·K)/W | d, m | λ, W/(m·K) | A, m2 | l, m | φ, W/(m·K) | ΔΦ, W/m |
|---|---|---|---|---|---|---|---|---|
| Aluminum foil facing | Continuous specimen | 3.69 | 0.101 | 0.027 | 0.064 | 0.254 | 0.035 | 0.70 |
| Specimen with rotated insert | 1.83 | 0.055 | ||||||
| Multilayer aluminized facing | Continuous specimen | 3.50 | 0.102 | 0.029 | 0.064 | 0.254 | 0.019 | 0.38 |
| Specimen with rotated insert | 2.32 | 0.044 |
© 2020 by the authors. Licensee MDPI, Basel, Switzerland. This article is an open access article distributed under the terms and conditions of the Creative Commons Attribution (CC BY) license (http://creativecommons.org/licenses/by/4.0/).
Share and Cite
Makaveckas, T.; Bliūdžius, R.; Burlingis, A. The Influence of Different Facings of Polyisocyanurate Boards on Heat Transfer through the Wall Corners of Insulated Buildings. Energies 2020, 13, 1991. https://doi.org/10.3390/en13081991
Makaveckas T, Bliūdžius R, Burlingis A. The Influence of Different Facings of Polyisocyanurate Boards on Heat Transfer through the Wall Corners of Insulated Buildings. Energies. 2020; 13(8):1991. https://doi.org/10.3390/en13081991
Chicago/Turabian StyleMakaveckas, Tomas, Raimondas Bliūdžius, and Arūnas Burlingis. 2020. "The Influence of Different Facings of Polyisocyanurate Boards on Heat Transfer through the Wall Corners of Insulated Buildings" Energies 13, no. 8: 1991. https://doi.org/10.3390/en13081991
APA StyleMakaveckas, T., Bliūdžius, R., & Burlingis, A. (2020). The Influence of Different Facings of Polyisocyanurate Boards on Heat Transfer through the Wall Corners of Insulated Buildings. Energies, 13(8), 1991. https://doi.org/10.3390/en13081991

