Analysis of Energy Saving Effect and Cost Efficiency of ECMs to Upgrade the Building Energy Code
Abstract
1. Introduction
2. Development of ECMs Data for Analysis
3. Evaluation Method of Energy Performance and Cost
3.1. Reference Model
3.2. Cost Calculation
3.3. Energy Simulation
4. Results and Discussion
4.1. Energy Saving Effect According to the BECC Reinforcement
4.2. Energy Performance and Cost Evaluation According to a Single ECM Change
4.3. Energy Performance and Cost Evaluation according to Combined ECM Changes
5. Conclusions
- The gradual reinforcement of prescriptive criteria for new buildings in Korea has been well aligned with the strengthening of performance-based criteria as well. When the latest prescriptive criteria were applied, primary energy use of reference buildings ranged from ranged from 87.7 to 109.8 kWh/m2·yr, which sufficiently satisfied the current performance-based criteria, 200 kWh/m2·yr for private buildings and 140 kWh/m2·yr for public buildings. This suggests that there is room for further strengthening the performance-based criteria in the near future.
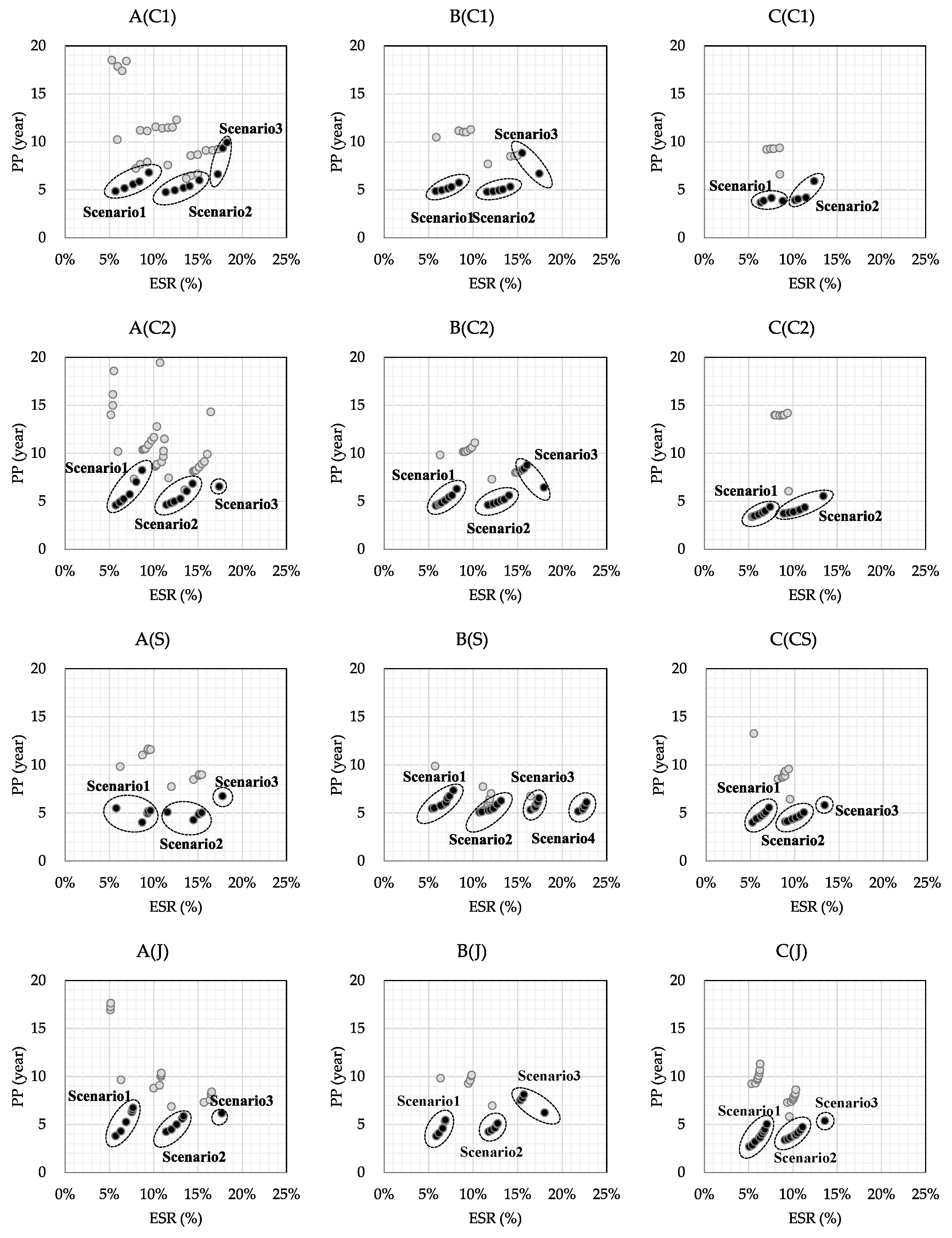
- By installing PV systems, improving the thermal performance of windows, or applying a lower lighting power density, the investment cost could be recovered within 15 years. In many cases, the PP of the investment cost by improving the thermal performance of windows was also within 15 years. However, when the insulation criteria for wall, roof, and floor were reinforced from the current criteria, the PP of the reference buildings in all regions increased sharply. The effect of the investment for improving the insulation of the exterior wall, roof, and floor seems to be insignificant, even if the prescriptive criteria for U-values are reinforced.
- It was expected that the energy performance criteria for office buildings and school buildings could be reinforced by 5~15% with current available ECMs. The highest ESR were found when reducing the lighting power density as well as adopting the PV system. Since the U-value criteria have already been sufficiently strengthened, the energy-saving effect of the ECMs that affect cooling and lighting energy uses was greater. This suggests that it is necessary to strengthen the criteria related to cooling and lighting energy use rather than heating energy use.
Author Contributions
Funding
Conflicts of Interest
References
- Levin, M.; Can, S.; Zheng, N.; Williams, C.; Amann, J.; Staniaszek, D. Building Energy-Efficiency Best Practice Policies and Policy Packages; Lawrence Berkeley National Laboratory: Berkeley, CA, USA, 2012.
- Managan, K.; Layke, J.; Araya, M.; Nesler, C. Driving Transformation to Energy Efficient Buildings—Policies and Actions, 2nd ed.; Johnson Controls: Milwaukee, WI, USA, 2012. [Google Scholar]
- Building Performance Institute Europe (BPIE). Europe’s Buildings under the Microscope: A Country-by-Country Review of the Energy Performance of Buildings; BPIE: Brussels, Belgium, 2011. [Google Scholar]
- Wang, X.; Feng, W.; Cai, W.; Ren, H.; Ding, C.; Zhou, N. Do residential building energy standards reduce energy consumption in China?—A data-driven method to validate the actual performance of building energy efficiency standards. Energy Policy 2019, 131, 82–98. [Google Scholar] [CrossRef]
- Evans, M.; Roshchanka, V.; Graham, P. An international survey of building energy codes and their implementation. J. Clean. Prod. 2017, 158, 382–389. [Google Scholar] [CrossRef]
- O’Brien, W.; Tahmasebi, F.; Andersen, R.K.; Azar, E.; Barthelems, V.; Belafi, Z.D.; Berger, C.; Chen, D.; Simone, M.D.; d’Oca, S.; et al. An international review of occupant-related aspects of building energy codes and standards. Build. Environ. 2020, 179, 106906. [Google Scholar] [CrossRef]
- Jacobsen, G.D.; Kotchen, M.J. Are building codes effective at saving energy? Evidence from residential billing data in Florida. Rev. Econ. Stat. 2013, 95, 34–49. [Google Scholar] [CrossRef]
- Chirarattananon, S.; Chaiwiwatworakul, P.; Hien, V.D.; Rakkwamsuk, P.; Kubaha, K. Assessment of energy savings from the revised building energy code of Thailand. Energy 2010, 35, 1741–1753. [Google Scholar] [CrossRef]
- Qian, D.; Li, Y.; Niu, F.; O’Neill, Z. Nationwide savings analysis of energy conservation measures in buildings. Energy Convers. Manag. 2019, 188, 1–18. [Google Scholar] [CrossRef]
- Zhang, S.; Jiang, Y.; Xu, W.; Liu, Z.; Sun, D. Key prescriptive parameters analysis of the new China building energy code based on saving to investment ratio methodology. Indoor Built Environ. 2017, 26, 78–91. [Google Scholar] [CrossRef]
- Park, D.; Yu, K.; Yoon, Y.; Kim, K.; Kim, S. Analysis of a building energy efficiency certification system in Korea. Sustainability 2015, 7, 16086–16107. [Google Scholar] [CrossRef]
- National Renewable Energy Laboratory (NREL): OpenStudio. Available online: https://www.openstudio.net/ (accessed on 10 August 2020).
- Anton, I.; Tănase, D. Informed Geometries. Parametric Modelling and Energy Analysis in Early Stages of Design. Energy Procedia 2016, 85, 9–16. [Google Scholar]
- Lawrence Berkeley National Lab (LBNL): City Building Energy Saver (CityBES). Available online: https://citybes.lbl.gov/ (accessed on 10 August 2020).
- Chen, Y.; Hong, T.; Piette, M.A. Automatic generation and simulation of urban building energy models based on city datasets for city-scale building retrofit analysis. Appl. Energy 2017, 205, 323–335. [Google Scholar] [CrossRef]
- Chen, Y.; Hong, T. Impacts of building geometry modeling methods on the simulation results of urban building energy models. Appl. Energy 2018, 215, 717–735. [Google Scholar] [CrossRef]
- National Renewable Energy Laboratory (NREL). Opt-E-Plus Software for Commercial Building Optimization; US Department of Energy Office of Energy Efficiency and Renewable Energy Operated by the Alliance for Sustainable Energy: Golden, CO, USA, 2010.
- Korea Price Information Corporation: Korea Price Information (KPI). Available online: https://www.kpi.or.kr/www/ (accessed on 10 August 2020).
- Department of Public Procurement Service: Public Procurement Service System. Available online: http://www.pps.go.kr/kor/index.do/ (accessed on 10 August 2020).
- Korea Energy Agency: High Efficiency Equipment Information System. Available online: https://eep.energy.or.kr/main/main.aspx/ (accessed on 10 August 2020).
- Korea Price Research Center: Korea Price research system. Available online: https://www.kprc.or.kr/ (accessed on 10 August 2020).
- Galatioto, A.; Ricciu, R.; Salem, T.; Kinab, E. Energy and economic analysis on retrofit actions for Italian public historic buildings. Energy 2019, 176, 58–66. [Google Scholar] [CrossRef]
- Hajare, A.; Elwakil, E. Integration of life cycle cost analysis and energy simulation for building energy-efficient strategies assessment. Sustain. Cities Soc. 2020, 61, 102293. [Google Scholar] [CrossRef]
- Nematchoua, M.K.; Orosa, J.A.; Buratti, C.; Obonyo, E.; Rim, D.; Ricciardi, P.; Reiter, S. Comparative analysis of bioclimatic zones, energy consumption, CO2 emission and life cycle cost of residential and commercial buildings located in a tropical region: A case study of the big island of Madagascar. Energy 2020, 202, 117754. [Google Scholar] [CrossRef]
- Moazzen, N.; Ashrafian, T.; Yilmaz, Z.; Karagülere, M.E. A multi-criteria approach to affordable energy-efficient retrofit of primary school buildings. Appl. Energy 2020, 268, 115046. [Google Scholar] [CrossRef]
- Zhao, S.; Feng, W.; Zhang, S.; Hou, J.; Zhou, N.; Levine, M. Energy savings and cost-benefit analysis of the new commercial building standard in China. Procedia Eng. 2015, 121, 317–324. [Google Scholar] [CrossRef]
- Choi, B.; Shin, J.; Lee, J.; Kim, S.; Cho, Y. Establishment of passive energy conservation measure and economic evaluation of fenestration system in nonresidential building of Korea. Int. J. Polym. Sci. 2017, 2017, 8681737. [Google Scholar] [CrossRef]










| Type of ECM | Mapping Parameters | Data Source * | Collected Data | |||
|---|---|---|---|---|---|---|
| Parameter | Energy | Cost | ||||
| Wall, roof, floor | Insulation | U-value | ● | KPI | Korea standard type | |
| Conductivity | ||||||
| Density | ||||||
| Thickness | ||||||
| Investment cost | ● | KPI | Material cost | |||
| Direct labor cost | ||||||
| PPS | Indirect labor cost | |||||
| Management allowances | ||||||
| Window | Window (glazing and frame) | U-value | ● | HEEI | Model name | |
| Frame type | ||||||
| Thickness | ||||||
| Glazing type | ||||||
| Glass type | ||||||
| Thickness of air layer | ||||||
| U-value | ||||||
| HEEI + BECC | SHGC | |||||
| VT | ||||||
| Investment cost | ● | KPI | Material cost | |||
| Direct labor cost | ||||||
| PPS | Indirect labor cost | |||||
| Management allowances | ||||||
| Heating, cooling system | Production system or individual equipment | Efficiency and capacity | ● | KPI + KPRC | System or equipment type | |
| Efficiency | ||||||
| Capacity | ||||||
| Investment cost | ● | KPI | Material cost | |||
| Direct labor cost | ||||||
| PPS | Indirect labor cost | |||||
| Management allowances | ||||||
| lighting system | LED | Lighting power density | ● | KPI | Power consumption | |
| Luminous efficiency | ||||||
| Investment cost | ● | KPI | Material cost | |||
| Direct labor cost | ||||||
| PPS | Indirect labor cost | |||||
| Management allowances | ||||||
| Renewable energy system | Photovoltaic | Power per collecting area | ● | KPI | Module type | |
| Collecting area | ||||||
| Power | ||||||
| Investment cost | ● | KPI | Material cost | |||
| Direct labor cost | ||||||
| PPS | Indirect labor cost | |||||
| Management allowances | ||||||
| ECM Category | Performance Group | No. of Data | Investment Cost Calculation Model (KRW) | R2 | ||
|---|---|---|---|---|---|---|
| Envelope | Wall | - | 584 | 0.83 | ||
| Floor | - | 584 | 0.83 | |||
| Roof | - | 584 | 0.83 | |||
| Windows | - | 5795 | 0.98 | |||
| Heating production system | Boiler | Efficiency (%) | 88 | 9 | 0.98 | |
| 91 | 74 | 0.93 | ||||
| 98 | 12 | 0.98 | ||||
| Cooling production system | Compression chiller | COP | 3 | 18 | 0.99 | |
| 5 | 47 | 1.00 | ||||
| 6 | 23 | 1.00 | ||||
| Absorption chiller | COP | 1.3 | 17 | 0.99 | ||
| Cooling and/or heating equipment | Packaged air conditioner | COP | 3.7 | 12 | 0.98 | |
| Heat pump (gas) | Heating/Cooling COP | 1.6/1.4 | 3 | 0.90 | ||
| Heat pump (electricity) | Heating/Cooling COP | 4.0/3.9 | 14 | 0.90 | ||
| 4.6/4.5 | 6 | 0.90 | ||||
| 3.3/8.0 | 16 | 0.90 | ||||
| Lighting | LED | - | 35 | 0.70 | ||
| PV | monocrystalline | kW/m2 | 0.15 | 11 | 1.00 | |
| Nomenclature | ||||||
| Wall area (m2) | Gross floor area (m2) | Heating capacity of the th system (kW) | ||||
| Floor area (m2) | PV module area (m2) | Cooling capacity of the th system (kW) | ||||
| Roof area (m2) | U-value (W/m2 K) | Total cooling capacity (kW) | ||||
| Window area (m2) | Number of production systems | Lighting density (W/m2) | ||||
| Building Type and Size | Office Building | Educational and Research Building | ||||
|---|---|---|---|---|---|---|
| University | K-12 School | Kindergarten | R&D Building | Others | ||
| Small (500~3000 m2) | 101 | 5 | 9 | 9 | 5 | 24 |
| Large (3000 m2 or larger) | 748 | 91 | 347 | 40 | 94 | 173 |
| Total | 849 | 96 | 356 | 49 | 99 | 197 |
| Reference Building | N | Feature | Data Distribution | Mean | |||||
|---|---|---|---|---|---|---|---|---|---|
| Type | Size | Min. | 25% | 50% | 75% | Max. | |||
| Office building | small | 101 | gross area | 607 | 1598 | 2150 | 2682 | 2999 | 2082 |
| Number of floors | 1 | 3 | 4 | 5 | 13 | 4.4 | |||
| large | 748 | gross area | 3002 | 5473 | 10,953 | 21,293 | 199,923 | 20,474 | |
| Number of floors | 1 | 5 | 10 | 15 | 49 | 10.8 | |||
| K-12 school | large | 347 | gross area | 3079 | 9950 | 11,937 | 13,641 | 30,517 | 11,769 |
| Number of floors | 2 | - | 5 | - | 6 | 4.4 | |||
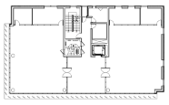
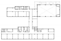
| Feature | A (Small Office Building) | B (large Office Building) | C (K-12 School) |
|---|---|---|---|
| Floor Plan | ![]() | ![]() | ![]() |
| Building area | 483 m2 | 1049 m2 | 2967 m2 |
| Gross floor area | 2257 m2 | 13,267 m2 | 11,937 m2 |
| Number of floors | B1/5 | B4/10 | B1/5 |
| WWR | 45% | 32% | 26% |
| Heating/Cooling | EHP | EHP | EHP + GHP |
| Fuel Type | Energy Cost Model | R2 | Nomenclature | |
|---|---|---|---|---|
| Electricity | 30,552 | 0.97 | EC Annual energy cost (KRW) | |
| Gas | - | - | E Annual consumption(kWh) | |
| District heating | 271 | 0.99 | electricity | |
| gas | ||||
| district heating |
| Category | Performance Parameter | P1 | P2 | P3 | P4 | P5 | P6 | P7 | P8 | P9 | P10 | |
|---|---|---|---|---|---|---|---|---|---|---|---|---|
| ‘01- ‘08 | ‘08.7- ‘08.11 | ‘08.11- ‘10.7 | ‘10.11- ‘12.5 | ‘12.5- ‘13.8 | ‘13.9- ‘14.8 | ‘14.9- ‘15.12 | ‘16.1- ‘17.6 | ‘17.6- ‘18.8 | ’18.9- current | |||
| Architecture | Wall U-value (W/m2 K) | Central 1 | 0.47 | 0.47 | 0.47 | 0.36 | 0.36 | 0.27 | 0.27 | 0.26 | 0.26 | 0.17 |
| Central 2 | 0.47 | 0.47 | 0.47 | 0.36 | 0.36 | 0.27 | 0.27 | 0.26 | 0.26 | 0.24 | ||
| Southern | 0.58 | 0.58 | 0.58 | 0.45 | 0.45 | 0.34 | 0.34 | 0.32 | 0.32 | 0.32 | ||
| Jeju | 0.76 | 0.76 | 0.76 | 0.58 | 0.58 | 0.44 | 0.44 | 0.43 | 0.43 | 0.41 | ||
| Roof U-value (W/m2 K) | Central 1 | 0.29 | 0.29 | 0.29 | 0.20 | 0.20 | 0.18 | 0.18 | 0.15 | 0.15 | 0.15 | |
| Central 2 | 0.29 | 0.29 | 0.29 | 0.20 | 0.20 | 0.18 | 0.18 | 0.15 | 0.15 | 0.15 | ||
| Southern | 0.35 | 0.35 | 0.35 | 0.24 | 0.24 | 0.22 | 0.22 | 0.18 | 0.18 | 0.18 | ||
| Jeju | 0.41 | 0.41 | 0.41 | 0.29 | 0.29 | 0.28 | 0.28 | 0.25 | 0.25 | 0.25 | ||
| Floor U-value (W/m2 K) | Central 1 | 0.41 | 0.41 | 0.41 | 0.41 | 0.41 | 0.29 | 0.29 | 0.22 | 0.22 | 0.17 | |
| Central 2 | 0.41 | 0.41 | 0.41 | 0.41 | 0.41 | 0.29 | 0.29 | 0.22 | 0.22 | 0.20 | ||
| Southern | 0.47 | 0.47 | 0.47 | 0.41 | 0.41 | 0.33 | 0.33 | 0.25 | 0.25 | 0.25 | ||
| Jeju | 0.52 | 0.52 | 0.52 | 0.41 | 0.41 | 0.39 | 0.39 | 0.33 | 0.33 | 0.33 | ||
| Window U-value (W/m2 K) | Central 1 | 3.84 | 3.40 | 3.40 | 2.40 | 2.40 | 2.10 | 2.10 | 1.50 | 1.50 | 1.30 | |
| Central 2 | 3.84 | 3.40 | 3.40 | 2.40 | 2.40 | 2.10 | 2.10 | 1.50 | 1.50 | 1.50 | ||
| Southern | 4.19 | 3.80 | 3.80 | 2.70 | 2.70 | 2.40 | 2.40 | 1.80 | 1.80 | 1.80 | ||
| Jeju | 5.23 | 4.40 | 4.40 | 3.40 | 3.40 | 3.00 | 3.00 | 2.40 | 2.40 | 2.20 | ||
| Mechanical system | Heating efficiency | EHP (COP) | 3 | 3 | 4 | 4 | 4 | 4 | 4 | 4 | 4 | 4 |
| GHP (COP) | 1.3 | 1.3 | 1.3 | 1.4 | 1.4 | 1.52 | 1.52 | 1.52 | 1.59 | 1.59 | ||
| Cooling efficiency | EHP (COP) | 3 | 3 | 3.8 | 3.8 | 3.8 | 3.8 | 4 | 4 | 4 | 4.2 | |
| GHP (COP) | 1.1 | 1.1 | 1.1 | 1.2 | 1.2 | 1.3 | 1.3 | 1.3 | 1.3 | 1.4 | ||
| Heat recovery rate (%) | 0 | 0 | 0 | 0 | 70 | 70 | 70 | 70 | 70 | 70 | ||
| Electrical system | Lighting density (W/m2) | 20 | 18 | 18 | 16 | 12 | 10 | 10 | 7.5 | 7.5 | 7.5 | |
| Renewable system | Renewable energy ratio to lighting capacity (%) | 0 | 0 | 0 | 0 | 0 | 0 | 0 | 0 | 60 | 60 | |
| Wall | Floor | Roof | Window | ||||
|---|---|---|---|---|---|---|---|
| ECM Code | U-Values (W/m2 K) | ECM Code | U-Values (W/m2 K) | ECM Code | U-Values (W/m2 K) | ECM Code | U-Values (W/m2 K) |
| W1 | 0.38 | F1 | 0.30 | R1 | 0.23 | Win1 | 2.00 |
| W2 | 0.35 | F2 | 0.28 | R2 | 0.20 | Win2 | 1.70 |
| W3 | 0.33 | F3 | 0.26 | R3 | 0.18 | Win3 | 1.40 |
| W4 | 0.30 | F4 | 0.23 | R4 | 0.16 | Win4 | 1.35 |
| W5 | 0.28 | F5 | 0.20 | R5 | 0.15 | Win5 | 1.30 |
| W6 | 0.26 | F6 | 0.18 | R6 | 0.12 | Win6 | 1.15 |
| W7 | 0.23 | F7 | 0.16 | Win7 | 1.00 | ||
| W8 | 0.20 | F8 | 0.15 | Win8 | 0.90 | ||
| W9 | 0.18 | F9 | 0.12 | Win9 | 0.70 | ||
| W10 | 0.16 | ||||||
| W11 | 0.15 | ||||||
| W12 | 0.12 | ||||||
| ECM | ECM Code | Performance Parameter | Value |
|---|---|---|---|
| EHP | E | Heating efficiency/Cooling efficiency (COP) | 4.6/4.5 |
| GHP | G | Heating efficiency/Cooling efficiency (COP) | 1.6/1.4 |
| Lighting | L | Lighting density (W/m2) | 6.0 |
| PV | PV1 | Renewable energy ratio to lighting capacity (%) | 80 |
| PV2 | Renewable energy ratio to lighting capacity (%) | 100 |
| Bldg. | Region | Energy Need (kWh/m2·yr) | Reduction Ratio (%) | |||||||||
|---|---|---|---|---|---|---|---|---|---|---|---|---|
| P1 | P2 | P3 | P4 | P5 | P6 | P7 | P8 | P9 | P10 | |||
| A | C1 | 146.7 | 136.8 | 136.8 | 117.3 | 86.4 | 74.7 | 74.7 | 61.5 | 61.5 | 58.6 | 60.0 |
| C2 | 134.9 | 125.5 | 125.5 | 110.3 | 83.8 | 73.0 | 73.0 | 61.3 | 61.3 | 61.2 | 54.7 | |
| S | 131.6 | 122.8 | 122.8 | 108.2 | 84.6 | 74.1 | 74.1 | 63.0 | 63.0 | 63.0 | 52.2 | |
| J | 132.6 | 121.9 | 121.9 | 108.9 | 87.9 | 77.4 | 77.4 | 66.8 | 66.8 | 66.0 | 50.2 | |
| B | C1 | 131.9 | 123.9 | 123.9 | 109.8 | 77.3 | 68.3 | 68.3 | 57.5 | 57.5 | 54.5 | 58.7 |
| C2 | 123.0 | 115.1 | 115.1 | 103.1 | 75.1 | 66.6 | 66.6 | 56.2 | 56.2 | 56.0 | 54.4 | |
| S | 123.1 | 115.3 | 115.3 | 103.4 | 91.0 | 82.4 | 82.4 | 71.7 | 71.7 | 71.7 | 41.8 | |
| J | 119.8 | 110.8 | 110.8 | 100.2 | 77.8 | 69.9 | 69.9 | 60.3 | 60.3 | 59.7 | 50.1 | |
| C | C1 | 142.5 | 135.8 | 135.8 | 123.6 | 84.0 | 75.6 | 75.6 | 65.9 | 65.9 | 63.6 | 55.4 |
| C2 | 133.0 | 126.1 | 126.1 | 115.5 | 82.5 | 74.5 | 74.5 | 64.9 | 64.9 | 64.7 | 51.3 | |
| S | 131.3 | 124.4 | 124.4 | 113.6 | 83.9 | 75.9 | 75.9 | 66.3 | 66.3 | 66.3 | 49.5 | |
| J | 125.7 | 118.2 | 118.2 | 108.1 | 82.9 | 75.3 | 75.3 | 66.4 | 66.4 | 65.9 | 47.6 | |
| Bldg. | Region | Energy Use (kWh/m2·yr) | Reduction Ratio (%) | |||||||||
|---|---|---|---|---|---|---|---|---|---|---|---|---|
| P1 | P2 | P3 | P4 | P5 | P6 | P7 | P8 | P9 | P10 | |||
| A | C1 | 112.0 | 104.9 | 93.5 | 83.4 | 65.9 | 57.1 | 56.8 | 47.0 | 35.6 | 33.7 | 70.0 |
| C2 | 104.4 | 97.1 | 87.8 | 78.8 | 62.8 | 54.4 | 54.0 | 45.0 | 33.6 | 33.1 | 68.3 | |
| S | 100.8 | 94.0 | 85.5 | 76.8 | 61.9 | 53.5 | 53.0 | 44.4 | 33.0 | 32.5 | 67.7 | |
| J | 98.5 | 90.8 | 83.2 | 75.4 | 61.9 | 53.9 | 53.4 | 45.4 | 34.0 | 33.2 | 66.4 | |
| B | C1 | 106.1 | 99.6 | 89.6 | 81.1 | 61.6 | 54.6 | 54.3 | 45.8 | 34.4 | 32.4 | 69.4 |
| C2 | 99.0 | 92.8 | 84.6 | 76.8 | 59.1 | 52.6 | 52.1 | 43.8 | 32.4 | 31.9 | 67.8 | |
| S | 97.2 | 91.2 | 83.5 | 75.7 | 64.6 | 58.3 | 57.8 | 49.7 | 38.3 | 37.8 | 61.1 | |
| J | 92.8 | 86.0 | 79.6 | 72.7 | 57.7 | 51.4 | 50.9 | 43.4 | 32.0 | 31.3 | 66.2 | |
| C | C1 | 164.8 | 158.0 | 154.8 | 138.6 | 99.3 | 88.2 | 88.2 | 78.3 | 67.9 | 64.1 | 61.1 |
| C2 | 151.9 | 144.8 | 142.2 | 127.8 | 95.2 | 84.8 | 84.7 | 75.1 | 64.7 | 63.2 | 58.4 | |
| S | 147.8 | 140.7 | 138.4 | 124.5 | 94.7 | 84.7 | 84.6 | 75.0 | 64.6 | 63.2 | 57.3 | |
| J | 137.5 | 130.2 | 128.3 | 115.4 | 91.7 | 82.2 | 82.1 | 73.3 | 62.9 | 61.1 | 55.6 | |
| Bldg. | Region | Primary Energy Use (kWh/m2·yr) | Reduction Ratio (%) | |||||||||
|---|---|---|---|---|---|---|---|---|---|---|---|---|
| P1 | P2 | P3 | P4 | P5 | P6 | P7 | P8 | P9 | P10 | |||
| A | C1 | 309.5 | 289.9 | 258.5 | 231.0 | 182.7 | 158.4 | 157.6 | 130.8 | 99.3 | 94.0 | 69.6 |
| C2 | 288.5 | 268.5 | 242.9 | 218.2 | 174.1 | 151.1 | 149.9 | 125.3 | 93.9 | 92.6 | 67.9 | |
| S | 278.8 | 259.9 | 236.7 | 212.7 | 171.7 | 148.6 | 147.1 | 123.7 | 92.3 | 91.0 | 67.4 | |
| J | 272.5 | 251.3 | 230.4 | 208.9 | 171.9 | 149.7 | 148.3 | 126.2 | 94.9 | 92.7 | 66.0 | |
| B | C1 | 293.4 | 275.4 | 247.8 | 224.5 | 170.8 | 151.6 | 150.8 | 127.4 | 96.0 | 90.7 | 69.1 |
| C2 | 273.8 | 256.7 | 234.1 | 212.7 | 164.0 | 146.0 | 144.8 | 121.9 | 90.5 | 89.1 | 67.4 | |
| S | 281.1 | 263.8 | 239.7 | 218.0 | 168.8 | 150.7 | 149.3 | 126.4 | 95.0 | 93.3 | 66.8 | |
| J | 256.6 | 238.0 | 220.3 | 201.4 | 160.1 | 142.8 | 141.4 | 120.9 | 89.6 | 87.7 | 65.8 | |
| C | C1 | 308.3 | 291.6 | 282.8 | 255.0 | 187.7 | 166.0 | 165.9 | 143.3 | 114.7 | 109.8 | 64.4 |
| C2 | 290.2 | 273.2 | 266.1 | 240.5 | 182.2 | 161.3 | 161.0 | 138.9 | 110.3 | 108.4 | 62.6 | |
| S | 284.4 | 267.4 | 260.9 | 236.0 | 181.5 | 161.1 | 160.7 | 138.7 | 110.1 | 108.3 | 61.9 | |
| J | 270.3 | 252.9 | 247.7 | 223.9 | 177.4 | 157.7 | 157.4 | 136.4 | 107.7 | 105.4 | 61.0 | |
| ECM Code | A (C1) | A (C2) | A (S) | A (J) | B(C1) | B (C2) | B (S) | B (J) | C(C1) | C (C2) | C (S) | C (J) | ||||||||||||
|---|---|---|---|---|---|---|---|---|---|---|---|---|---|---|---|---|---|---|---|---|---|---|---|---|
| SIR | PP | SIR | PP | SIR | PP | SIR | PP | SIR | PP | SIR | PP | SIR | PP | SIR | PP | SIR | PP | SIR | PP | SIR | PP | SIR | PP | |
| W1 | 0.086 | 82 | 0.085 | 83 | 0.215 | 58 | ||||||||||||||||||
| W2 | 0.079 | 90 | 0.078 | 91 | 0.197 | 64 | ||||||||||||||||||
| W3 | 0.074 | 95 | 0.073 | 97 | 0.186 | 68 | ||||||||||||||||||
| W4 | 0.062 | 113 | 0.067 | 105 | 0.083 | 85 | 0.066 | 106 | 0.277 | 45 | 0.169 | 75 | ||||||||||||
| W5 | 0.058 | 122 | 0.070 | 101 | 0.078 | 91 | 0.062 | 114 | 0.165 | 78 | 0.157 | 80 | ||||||||||||
| W6 | 0.065 | 108 | 0.064 | 110 | 0.073 | 97 | 0.069 | 102 | 0.153 | 85 | 0.146 | 86 | ||||||||||||
| W7 | 0.019 | 363 | 0.054 | 130 | 0.046 | 155 | 0.021 | 337 | 0.064 | 109 | 0.059 | 119 | 0.051 | 252 | 0.088 | 194 | 0.129 | 98 | ||||||
| W8 | 0.034 | 209 | 0.046 | 155 | 0.040 | 175 | 0.036 | 194 | 0.056 | 125 | 0.050 | 140 | 0.093 | 136 | 0.086 | 179 | 0.097 | 140 | ||||||
| W9 | 0.034 | 206 | 0.040 | 174 | 0.037 | 193 | 0.037 | 191 | 0.051 | 139 | 0.045 | 157 | 0.093 | 137 | 0.082 | 183 | 0.088 | 153 | ||||||
| W10 | 0.041 | 172 | 0.032 | 217 | 0.036 | 198 | 0.033 | 215 | 0.043 | 164 | 0.035 | 201 | 0.045 | 155 | 0.040 | 178 | 0.109 | 115 | 0.087 | 146 | 0.075 | 194 | 0.079 | 169 |
| W11 | 0.038 | 183 | 0.031 | 226 | 0.033 | 212 | 0.031 | 228 | 0.040 | 175 | 0.034 | 210 | 0.043 | 165 | 0.034 | 210 | 0.102 | 122 | 0.084 | 153 | 0.072 | 202 | 0.075 | 179 |
| W12 | 0.031 | 228 | 0.026 | 269 | 0.023 | 311 | 0.025 | 282 | 0.032 | 217 | 0.028 | 249 | 0.034 | 205 | 0.027 | 262 | 0.082 | 152 | 0.070 | 183 | 0.060 | 239 | 0.061 | 220 |
| R1 | 0.061 | 115 | 0.071 | 99 | 0.105 | 108 | ||||||||||||||||||
| R2 | 0.054 | 131 | 0.063 | 112 | 0.093 | 123 | ||||||||||||||||||
| R3 | 0.049 | 143 | 0.058 | 123 | 0.085 | 135 | ||||||||||||||||||
| R4 | 0.037 | 190 | 0.044 | 159 | 0.055 | 129 | 0.052 | 136 | 0.072 | 165 | 0.076 | 149 | ||||||||||||
| R5 | 0.035 | 202 | 0.042 | 168 | 0.052 | 137 | 0.049 | 144 | 0.068 | 175 | 0.072 | 158 | ||||||||||||
| R6 | 0.048 | 147 | 0.034 | 210 | 0.029 | 245 | 0.056 | 204 | 0.059 | 120 | 0.042 | 168 | 0.042 | 166 | 0.065 | 175 | 0.086 | 140 | 0.060 | 202 | 0.056 | 213 | 0.096 | 192 |
| F1 | 0.070 | 101 | 0.060 | 118 | 0.143 | 91 | ||||||||||||||||||
| F2 | 0.064 | 109 | 0.055 | 129 | 0.132 | 98 | ||||||||||||||||||
| F3 | 0.059 | 119 | 0.050 | 141 | 0.121 | 107 | ||||||||||||||||||
| F4 | 0.047 | 151 | 0.051 | 138 | 0.057 | 124 | 0.043 | 163 | 0.109 | 121 | 0.105 | 124 | ||||||||||||
| F5 | 0.040 | 178 | 0.043 | 164 | 0.048 | 146 | 0.037 | 193 | 0.092 | 143 | 0.088 | 147 | ||||||||||||
| F6 | 0.041 | 173 | 0.035 | 202 | 0.038 | 186 | 0.038 | 184 | 0.043 | 165 | 0.032 | 219 | 0.085 | 153 | 0.081 | 162 | 0.078 | 167 | ||||||
| F7 | 0.045 | 157 | 0.035 | 199 | 0.030 | 233 | 0.033 | 215 | 0.041 | 172 | 0.033 | 211 | 0.037 | 190 | 0.028 | 253 | 0.095 | 133 | 0.074 | 176 | 0.071 | 187 | 0.068 | 193 |
| F8 | 0.042 | 169 | 0.033 | 215 | 0.028 | 252 | 0.030 | 232 | 0.038 | 185 | 0.031 | 228 | 0.034 | 206 | 0.026 | 274 | 0.088 | 143 | 0.069 | 190 | 0.065 | 202 | 0.063 | 208 |
| F9 | 0.032 | 221 | 0.025 | 281 | 0.027 | 257 | 0.023 | 305 | 0.029 | 241 | 0.024 | 298 | 0.026 | 269 | 0.020 | 360 | 0.068 | 186 | 0.053 | 248 | 0.050 | 264 | 0.048 | 274 |
| Win1 | 0.772 | 9 | 0.705 | 10 | 1.707 | 8 | ||||||||||||||||||
| Win2 | 0.764 | 9 | 0.574 | 12 | 1.064 | 7 | 0.630 | 11 | 2.009 | 7 | 1.248 | 12 | ||||||||||||
| Win3 | 0.802 | 9 | 0.513 | 14 | 0.501 | 14 | 1.000 | 7 | 0.952 | 7 | 0.479 | 15 | 2.333 | 5 | 1.356 | 11 | 1.177 | 12 | ||||||
| Win4 | 0.779 | 9 | 0.495 | 14 | 0.481 | 15 | 0.975 | 7 | 0.943 | 7 | 0.466 | 15 | 2.240 | 6 | 1.368 | 11 | 1.158 | 12 | ||||||
| Win5 | 0.757 | 9 | 0.477 | 15 | 0.462 | 15 | 0.950 | 7 | 0.922 | 8 | 0.453 | 16 | 2.168 | 6 | 1.370 | 11 | 1.137 | 12 | ||||||
| Win6 | 1.016 | 7 | 0.720 | 10 | 0.426 | 17 | 0.410 | 17 | 1.230 | 6 | 0.875 | 8 | 0.859 | 8 | 0.414 | 17 | 2.835 | 4 | 1.989 | 7 | 1.335 | 11 | 1.069 | 13 |
| Win7 | 0.922 | 8 | 0.640 | 11 | 0.419 | 17 | 0.357 | 20 | 1.127 | 6 | 0.798 | 9 | 0.722 | 10 | 0.378 | 19 | 2.619 | 5 | 1.824 | 7 | 1.265 | 11 | 0.993 | 14 |
| Win8 | 0.881 | 8 | 0.540 | 13 | 0.352 | 20 | 0.362 | 20 | 1.057 | 7 | 0.783 | 9 | 0.686 | 10 | 0.350 | 20 | 2.286 | 6 | 1.714 | 8 | 1.206 | 12 | 0.940 | 15 |
| Win9 | 0.725 | 10 | 0.462 | 15 | 0.270 | 26 | 0.289 | 24 | 0.916 | 8 | 0.668 | 11 | 0.608 | 12 | 0.226 | 31 | 2.044 | 6 | 1.489 | 9 | 1.069 | 13 | 0.825 | 17 |
| E | 0.538 | 13 | 0.473 | 15 | 0.417 | 17 | 0.439 | 16 | 0.294 | 24 | 0.259 | 27 | 0.400 | 18 | 0.223 | 32 | 0.490 | 23 | 0.407 | 27 | 0.369 | 28 | 0.319 | 32 |
| G | 0.630 | 19 | 0.434 | 27 | 0.328 | 36 | 0.251 | 48 | ||||||||||||||||
| L | 0.689 | 10 | 0.692 | 10 | 0.716 | 10 | 0.731 | 10 | 0.673 | 11 | 0.717 | 10 | 0.712 | 10 | 0.717 | 10 | 0.607 | 10 | 0.754 | 9 | 0.752 | 9 | 0.744 | 9 |
| PV1 | 1.526 | 5 | 1.522 | 5 | 1.523 | 4 | 1.520 | 5 | 5.728 | 5 | 5.687 | 5 | 5.740 | 4 | 5.694 | 5 | 9.986 | 3 | 10.057 | 3 | 9.991 | 3 | 9.914 | 4 |
| PV2 | 1.526 | 5 | 1.522 | 5 | 1.525 | 4 | 1.520 | 5 | 5.707 | 5 | 5.708 | 5 | 5.718 | 4 | 5.694 | 5 | 8.915 | 4 | 8.950 | 4 | 8.917 | 4 | 8.879 | 4 |
| Bldg. | Region | Win1 | Win2 | Win3 | Win4 | Win5 | Win6 | Win7 | Win8 | Win9 | E | L | PV1 | PV2 |
|---|---|---|---|---|---|---|---|---|---|---|---|---|---|---|
| A | C1 | ● | ● | ● | ● | ● | ● | ● | ● | |||||
| C2 | ● | ● | ● | ● | ● | ● | ● | ● | ● | ● | ● | |||
| S | ● | ● | ● | ● | ● | ● | ● | |||||||
| J | ● | ● | ● | ● | ● | ● | ● | ● | ||||||
| B | C1 | ● | ● | ● | ● | ● | ● | ● | ||||||
| C2 | ● | ● | ● | ● | ● | ● | ● | ● | ● | ● | ||||
| S | ● | ● | ● | ● | ● | ● | ● | ● | ● | ● | ● | |||
| J | ● | ● | ● | ● | ● | ● | ● | |||||||
| C | C1 | ● | ● | ● | ● | ● | ● | ● | ||||||
| C2 | ● | ● | ● | ● | ● | ● | ● | ● | ● | ● | ||||
| S | ● | ● | ● | ● | ● | ● | ● | ● | ● | ● | ● | |||
| J | ● | ● | ● | ● | ● | ● | ● | ● | ● | ● | ● | ● |
| Bldg. | Region | Number of ECM Combination Cases | Energy Use (kWh/m2) | ESR (%) | PP (Year) | ||||
|---|---|---|---|---|---|---|---|---|---|
| Total | Selected | Min. | Max. | Min. | Max. | Min. | Max. | ||
| A | C1 | 59 | 37 | 31.92 | 27.54 | 5.3 | 18.3 | 5 | 19 |
| C2 | 95 | 46 | 31.39 | 27.34 | 5.2 | 17.4 | 5 | 19 | |
| S | 29 | 21 | 30.62 | 26.72 | 5.8 | 17.8 | 4 | 12 | |
| J | 35 | 28 | 31.51 | 27.32 | 5.1 | 17.7 | 4 | 18 | |
| B | C1 | 29 | 21 | 30.52 | 26.75 | 5.8 | 17.4 | 5 | 11 |
| C2 | 47 | 33 | 30.04 | 26.17 | 5.8 | 18.0 | 5 | 11 | |
| S | 29 | 45 | 35.77 | 29.20 | 5.4 | 22.7 | 5 | 10 | |
| J | 29 | 21 | 29.46 | 25.66 | 5.9 | 18.0 | 4 | 10 | |
| C | C1 | 29 | 13 | 60.02 | 56.15 | 6.4 | 12.4 | 4 | 9 |
| C2 | 47 | 23 | 59.81 | 54.70 | 5.4 | 13.4 | 3 | 14 | |
| S | 53 | 28 | 59.89 | 54.73 | 5.2 | 13.4 | 4 | 13 | |
| J | 59 | 40 | 58.00 | 52.79 | 5.1 | 13.6 | 3 | 11 | |
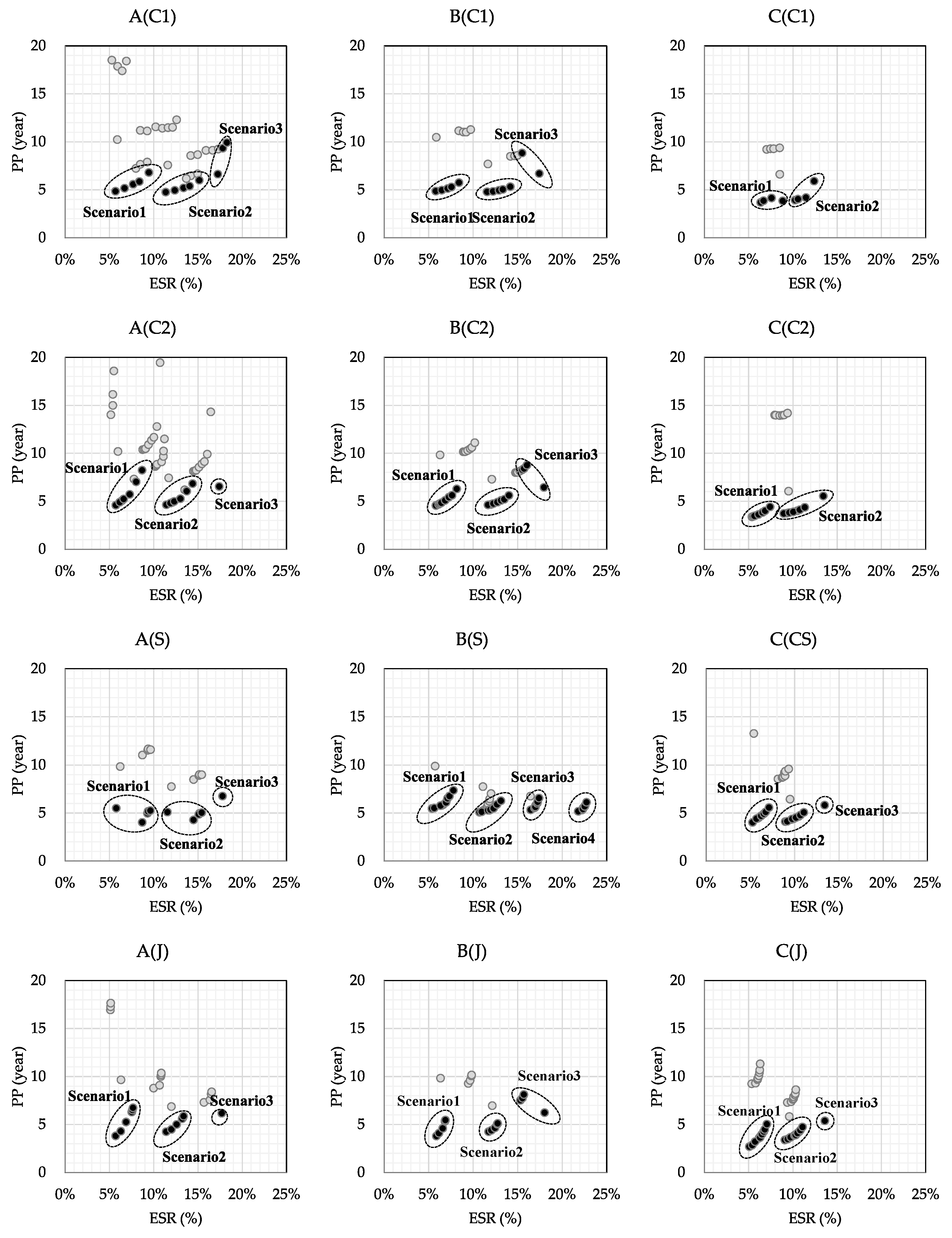
| Bldg. | Region | Scenario | ESR (%) | PP (Years) | Recommended ECMs | ||||
|---|---|---|---|---|---|---|---|---|---|
| Improve Window U-Value | Improve EHP Efficiency | Reduce Lighting Density | Produce 80% of the Lighting Load by PV | Produce 100% of the Lighting Load by PV | |||||
| A | C1 | 1 | 5~10 | 5~7 | ● | ||||
| ● | ● | ||||||||
| ● | ● | ● | |||||||
| 2 | 10~15 | 5~8 | ● | ||||||
| ● | ● | ||||||||
| ● | ● | ||||||||
| ● | ● | ● | |||||||
| ● | ● | ● | |||||||
| 3 | 15~ | 8~10 | ● | ● | ● | ● | |||
| ● | ● | ||||||||
| C2 | 1 | 5~10 | 4~9 | ● | |||||
| ● | ● | ||||||||
| ● | ● | ||||||||
| 2 | 10~15 | 4~7 | ● | ||||||
| ● | ● | ||||||||
| ● | ● | ||||||||
| ● | ● | ||||||||
| 3 | 15~ | 6~10 | ● | ● | ● | ||||
| ● | ● | ||||||||
| S | 1 | 5~10 | 4~6 | ● | |||||
| ● | ● | ||||||||
| 2 | 10~15 | 4~6 | ● | ||||||
| ● | ● | ||||||||
| 3 | 15~ | 7 | ● | ● | |||||
| J | 1 | 5~10 | 4~8 | ● | |||||
| ● | |||||||||
| ● | ● | ||||||||
| 2 | 10~15 | 4~6 | ● | ||||||
| ● | ● | ||||||||
| ● | ● | ||||||||
| 3 | 15~ | 6~9 | ● | ● | |||||
| B | C1 | 1 | 5~10 | 4~6 | ● | ||||
| ● | ● | ||||||||
| 2 | 10~15 | 4~6 | ● | ||||||
| ● | ● | ||||||||
| 3 | 15~ | 7~9 | ● | ● | |||||
| C2 | 1 | 5~10 | 4~6 | ● | |||||
| ● | ● | ||||||||
| ● | ● | ● | |||||||
| 2 | 10~15 | 4~6 | ● | ||||||
| ● | ● | ||||||||
| ● | ● | ● | |||||||
| 3 | 15~ | 6~9 | ● | ● | |||||
| S | 1 | 5~10 | 5~9 | ● | |||||
| ● | ● | ||||||||
| 2 | 10~15 | 5~8 | ● | ||||||
| ● | ● | ||||||||
| 3 | 15~20 | 5~8 | ● | ● | |||||
| ● | ● | ● | |||||||
| 4 | 20~25 | 5~7 | ● | ● | |||||
| J | 1 | 5~10 | 3~6 | ● | |||||
| ● | ● | ||||||||
| 2 | 10~15 | 4~6 | ● | ● | |||||
| 3 | 15~ | 6~8 | ● | ● | ● | ||||
| ● | ● | ||||||||
| C | C1 | 1 | 5~10 | 4~5 | ● | ● | |||
| 2 | 10~15 | 4~6 | ● | ● | |||||
| ● | ● | ||||||||
| C2 | 1 | 5~8 | 3~4 | ● | ● | ||||
| 2 | 8~15 | 4~6 | ● | ● | ● | ||||
| ● | ● | ● | |||||||
| ● | ● | ||||||||
| S | 1 | 5~8 | 4~6 | ● | ● | ||||
| 2 | 8~12 | 4~5 | ● | ● | |||||
| ● | ● | ||||||||
| 3 | 12~ | 6 | ● | ● | |||||
| J | 1 | 5~8 | 3~6 | ● | |||||
| ● | ● | ||||||||
| 2 | 8~12 | 3~5 | ● | ● | |||||
| ● | ● | ||||||||
| 3 | 12~15 | 6 | ● | ● | |||||
© 2020 by the authors. Licensee MDPI, Basel, Switzerland. This article is an open access article distributed under the terms and conditions of the Creative Commons Attribution (CC BY) license (http://creativecommons.org/licenses/by/4.0/).
Share and Cite
Kim, H.G.; Kim, H.J.; Jeon, C.H.; Chae, M.W.; Cho, Y.H.; Kim, S.S. Analysis of Energy Saving Effect and Cost Efficiency of ECMs to Upgrade the Building Energy Code. Energies 2020, 13, 4955. https://doi.org/10.3390/en13184955
Kim HG, Kim HJ, Jeon CH, Chae MW, Cho YH, Kim SS. Analysis of Energy Saving Effect and Cost Efficiency of ECMs to Upgrade the Building Energy Code. Energies. 2020; 13(18):4955. https://doi.org/10.3390/en13184955
Chicago/Turabian StyleKim, Hye Gi, Hyun Jun Kim, Chae Hwan Jeon, Myeong Won Chae, Young Hum Cho, and Sun Sook Kim. 2020. "Analysis of Energy Saving Effect and Cost Efficiency of ECMs to Upgrade the Building Energy Code" Energies 13, no. 18: 4955. https://doi.org/10.3390/en13184955
APA StyleKim, H. G., Kim, H. J., Jeon, C. H., Chae, M. W., Cho, Y. H., & Kim, S. S. (2020). Analysis of Energy Saving Effect and Cost Efficiency of ECMs to Upgrade the Building Energy Code. Energies, 13(18), 4955. https://doi.org/10.3390/en13184955



