Sign in to use this feature.

Years

Between: -

Subjects

remove_circle_outline
remove_circle_outline
remove_circle_outline
remove_circle_outline
remove_circle_outline
remove_circle_outline
remove_circle_outline
remove_circle_outline
remove_circle_outline

Journals

remove_circle_outline
remove_circle_outline
remove_circle_outline
remove_circle_outline
remove_circle_outline
remove_circle_outline
remove_circle_outline
remove_circle_outline
remove_circle_outline
remove_circle_outline
remove_circle_outline
remove_circle_outline

Article Types

Countries / Regions

Search Results (307)

Search Parameters:
Keywords = NICA

Order results
Result details
Results per page
Select all
Export citation of selected articles as:
17 pages, 8853 KB  
Article
Parametric Study of Damping Ratio Estimation Using Ambiental Vibration Recordings
by Ruxandra-Gabriela Enache, George-Bogdan Nica, Georgiana Ionică and Ioana Alexandra Vînătoru
Sustainability 2026, 18(5), 2645; https://doi.org/10.3390/su18052645 - 9 Mar 2026
Viewed by 45
Abstract
Accurate estimation of structural damping is essential for seismic performance assessment and design for earthquake-resistant buildings. From a sustainability perspective, reliable evaluation of dynamic properties is crucial in extending the service life of existing structures and reducing the need for material-intensive interventions. Ambient [...] Read more.
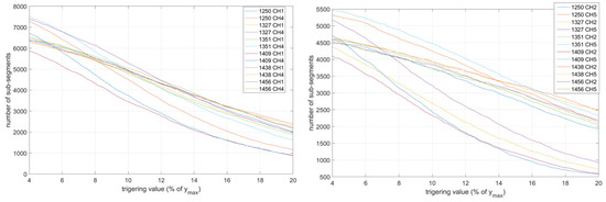
Accurate estimation of structural damping is essential for seismic performance assessment and design for earthquake-resistant buildings. From a sustainability perspective, reliable evaluation of dynamic properties is crucial in extending the service life of existing structures and reducing the need for material-intensive interventions. Ambient vibration measurements enable non-invasive identification of damping characteristics, supporting sustainable assessment of the built environment. This paper presents an analysis of the dynamic response of a four-story reinforced concrete structure. Ambient vibration recordings are obtained with Geodas Aquisition Station and one-second velocity sensors made by Butan Service And Tokio Soil Ltd., available from CERS (Seismic Risk Assessment Research Center) research center from TUCEB (Technical University of Civil Engineering of Bucharest). The sensors were installed at the top level of the analyzed structure. The method used for estimating the damping ratio is the Random Decrement Technique (RDT). The influence of the several parameters involved in the method is investigated, such as the triggering value, the dimension of the time window sub-samples, and the number of cycles considered within a window relative to the natural period of the structure. For the analysis of the parameters specific to the RDT method, computational routines were developed using syntax compatible with OCTAVE/MATLAB R2019b. Filters were applied to isolate the natural vibration modes. The variability in the parameters demonstrates that the developed method is robust. Full article
Show Figures

Figure 1

29 pages, 1379 KB  
Article
Assessing the Impact of Environmental Sustainability and Energy Efficiency on Economic Growth: A Multivariate Analysis Aligned with the EU’s Sustainable Development Goals
by Ionuț Nica, Camelia Delcea, Adrian Doru Bîgioi and Cristina Elena Bîgioi
Sustainability 2026, 18(5), 2335; https://doi.org/10.3390/su18052335 - 28 Feb 2026
Viewed by 213
Abstract
This study analyzed how both environmental sustainability and energy efficiency influence economic growth in Romania. The analysis in the research is based on sustainable development goals such as SDG8, SDG11 and SDG13, and several key indicators in the area of sustainability are analyzed [...] Read more.
This study analyzed how both environmental sustainability and energy efficiency influence economic growth in Romania. The analysis in the research is based on sustainable development goals such as SDG8, SDG11 and SDG13, and several key indicators in the area of sustainability are analyzed for the period 2000–2022, such as: municipal waste recycling rate (RRMW), energy productivity (EP), greenhouse gas emissions (GHG) and renewable energy share (RENE). In this regard, the Autoregressive Distributed Lag (ARDL) model was used to capture both short-term and long-term effects. The results obtained show that energy productivity has a positive and significant impact on economic growth. This confirms the important role of energy efficiency in strengthening a sustainable economy. It has also been observed that greenhouse gas emissions are positively correlated with GDP in the short term, and the waste recycling rate has a negative effect. Regarding renewable energy, the long-term influence is not statistically significant, indicating the need for more effective policies to accelerate the energy transition. The analysis highlights the significance of a comprehensive strategy in the field of environmental and energy policies to promote stable and sustainable economic development, while providing valuable guidance for Romania’s strategic alignment with the European Union’s sustainable development goals. Full article
Show Figures

Figure 1

24 pages, 2038 KB  
Article
Evaluating the Managerial Feasibility of an AI-Based Tooth-Percussion Signal Screening Concept for Dental Caries: An In Silico Study
by Stefan Lucian Burlea, Călin Gheorghe Buzea, Irina Nica, Florin Nedeff, Diana Mirila, Valentin Nedeff, Lacramioara Ochiuz, Lucian Dobreci, Maricel Agop and Ioana Rudnic
Diagnostics 2026, 16(4), 638; https://doi.org/10.3390/diagnostics16040638 - 22 Feb 2026
Viewed by 359
Abstract
Background: Early detection of dental caries is essential for effective oral health management. Current diagnostic workflows rely heavily on radiographic imaging, which involves infrastructure requirements, workflow coordination, and resource considerations that may limit frequent use in high-throughput or resource-constrained settings. These contextual factors [...] Read more.
Background: Early detection of dental caries is essential for effective oral health management. Current diagnostic workflows rely heavily on radiographic imaging, which involves infrastructure requirements, workflow coordination, and resource considerations that may limit frequent use in high-throughput or resource-constrained settings. These contextual factors motivate exploration of adjunct screening concepts that could support front-end triage decisions within existing care pathways. This study evaluates, in simulation, whether modeled tooth-percussion response signals contain sufficient discriminative information to justify further translational and managerial investigation. Implementation costs, workflow optimization, and economic outcomes are not evaluated directly; rather, the objective is to assess whether the technical preconditions for a potentially scalable screening concept are satisfied under controlled in silico conditions. Methods: An in silico model of tooth percussion was developed in which enamel, dentin, and pulp/root structures were represented as a simplified layered mechanical system. Impulse responses generated from simulated tapping were used to compute the modeled surface-vibration response (enamel-layer displacement), which served as a proxy for a measurable percussion-related signal (e.g., contact vibration), rather than a recorded acoustic waveform. Carious conditions were simulated through depth-dependent reductions in stiffness and effective mass and increases in damping to represent enamel and dentin demineralization. A synthetic dataset of labeled simulated signals was generated under varying structural parameters and measurement-noise assumptions. Machine-learning models using Mel-frequency cepstral coefficient (MFCC) features were trained to classify healthy teeth, enamel caries, and dentin caries at a screening (triage) level. Results: Under baseline simulation conditions, the classifier achieved an overall accuracy of 0.97 with balanced macro-averaged F1-score (0.97). Misclassifications occurred primarily between healthy and enamel-caries categories, whereas dentin-caries cases were most consistently identified. When measurement noise and structural variability were increased, performance declined gradually, reaching approximately 0.90 accuracy under the most challenging simulated scenario. These results indicate that discriminative information is present within the modeled signals at a screening (triage) level, meaning that higher-risk categories can be distinguished probabilistically rather than with definitive diagnostic certainty. Sensitivity and specificity trade-offs were not optimized in this study, as the objective was to assess separability rather than to define clinical decision thresholds. Conclusions: Within the constraints of the in silico model, simulated tooth-percussion response signals demonstrated discriminative patterns between healthy, enamel caries, and dentin caries categories at a screening (triage) level. These findings establish technical plausibility under controlled simulation conditions and support further investigation of percussion-based screening as a potential adjunct to clinical assessment. From a healthcare management perspective, the present results address a prerequisite question—whether such signals contain sufficient information to justify translational research, rather than demonstrating workflow optimization, cost reduction, or system-level impact. Clinical validation, threshold optimization, and implementation studies are required before managerial or operational benefits can be evaluated. Full article
(This article belongs to the Section Machine Learning and Artificial Intelligence in Diagnostics)
Show Figures

Figure 1

16 pages, 1195 KB  
Article
Genomic and Clinical Profile of Hypervirulent Klebsiella pneumoniae (ST23-K1) Liver Abscesses: Experience with Patients at a Romanian University Hospital
by Dragoș Ștefan Lazăr, Elena Nedu, Adina-Alexandra Nanu, Maria-Irina Fediuc, Maria Alexandra Malciolu-Nica, Maria Nica, Mihaela Oprea, Oana-Claudia Albu, Laura-Ioana Popa, Daniela Andreea Blidaru and Simin Aysel Florescu
Pathogens 2026, 15(2), 237; https://doi.org/10.3390/pathogens15020237 - 20 Feb 2026
Viewed by 401
Abstract
Introduction: Hypervirulent Klebsiella pneumoniae (hvKp) is an emerging global pathogen that causes severe liver abscesses and metastatic infections. Despite rising concerns regarding multidrug-resistant convergence, molecular data in Romania remain limited. This study characterizes the epidemiological, clinical, and genomic profiles of hvKp liver [...] Read more.
Introduction: Hypervirulent Klebsiella pneumoniae (hvKp) is an emerging global pathogen that causes severe liver abscesses and metastatic infections. Despite rising concerns regarding multidrug-resistant convergence, molecular data in Romania remain limited. This study characterizes the epidemiological, clinical, and genomic profiles of hvKp liver abscesses in a tertiary hospital, aiming to describe the local virulence landscape and inform clinical management. Results: This study characterizes 15 cases of hvKp liver abscesses in a tertiary hospital. The cohort was predominantly male, with high rates of type 2 diabetes. Although clinical presentation was severe, featuring complications like endogenous endophthalmitis, the outcomes following prolonged antibiotic therapy were generally favorable. Phenotypically, 93.3% of isolates retained a wild-type susceptible profile, while a single ESBL-positive case highlighted the risk of resistance convergence. Genomic sequencing confirmed the presence of the ST23-K1 pandemic lineage carrying key virulence determinants (rmpA, iuc, and peg-344). Crucially, cgMLST analysis revealed genetic heterogeneity, suggesting sporadic community acquisition rather than a clonal nosocomial outbreak. Conclusions: These findings represent the first detailed molecular description of hvKp in Romania, confirming the local circulation of high-risk ST23 clones and underscoring the necessity for early detection and surveillance. Full article
(This article belongs to the Section Emerging Pathogens)
Show Figures

Figure 1

18 pages, 2078 KB  
Article
Histological and Immunohistochemical Characterization of the Tibial ACL Remnant: Implications for Ligament Healing
by Sorin Florescu, Blidişel Iulian Alexandru, George Andrei Drăghici, Dragoş Vasile Nica, Boru Casiana and Cosmin Grațian Damian
Medicina 2026, 62(2), 407; https://doi.org/10.3390/medicina62020407 - 20 Feb 2026
Viewed by 236
Abstract
Background and Objectives: The pathways mediating the beneficial effect of tibial stump preservation for anterior cruciate ligament (ACL) reconstruction remain insufficiently clarified. This study investigated key vascular, neural, and stromal aspects of cellular remodeling processes occurring across lesion stages in tibial remnant [...] Read more.
Background and Objectives: The pathways mediating the beneficial effect of tibial stump preservation for anterior cruciate ligament (ACL) reconstruction remain insufficiently clarified. This study investigated key vascular, neural, and stromal aspects of cellular remodeling processes occurring across lesion stages in tibial remnant pre-reconstruction. Materials and Methods: Biopsies were obtained from 25 patients undergoing arthroscopic ACL reconstruction (paired free-end and tibial insertion sampling) and 10 from quasi-normal, macroscopically intact ligaments (controls). We evaluated intergroup differences in microvascular density using a t-test. Group comparisons for angiogenesis (CD34), neural components (S100, neurofilament-associated proteins—NFAPs), and stromal activation (vimentin and actin) were conducted using Chi-square or Fisher’s exact tests. Results: ACL remnants revealed a significantly higher microvascular density (37 ± 2.3 vs. 18 ± 3.2 vessels/mm2, p < 0.001), in addition to a markedly increased prevalence of synovial angiogenesis (90% vs. 20%, p < 0.001), stellate stromal cells (94% vs. 10%, p < 0.001), and CD34-positive fibrocytes (92% vs. 10%, p < 0.001) compared to control tissues. Elevated intraligamentous neovascularization (with borderline significance) was also found in these tissues (38% vs. 0%, p = 0.045). Both injured and control ACLs showed widespread S100-positive neural fibers, suggesting maintained Schwann cell integrity despite ligament disruption. In contrast, control ligaments showed a substantially richer NFAP+ neural network, particularly in small-caliber fibers and free nerve endings, pointing to preferential vulnerability of small-caliber neural elements during ACL rupture. Vimentin expression changes—from homogeneous fibrocytic staining to diffuse reticular overexpression in fibrotic lesions—were accompanied by the emergence of stellate myofibroblast-like cells, supporting advanced stromal remodeling. Absent in controls, actin immunoreactivity increased with lesion severity, indicating a progressive myofibroblastic response driven by perivascular cells during ligament remodeling. Conclusions: The tibial ACL remnant is a biologically active, compartmentalized repair niche driven by coordinated vascular, neural, and stromal responses, with reparative activity concentrated at the synovial–epiligament interface. These findings support the biological rationale for preserving tibial remnant for ACL reconstruction. Full article
(This article belongs to the Section Orthopedics)
Show Figures

Figure 1

14 pages, 4266 KB  
Article
Beyond the T: Volumetric MRI Predicts Lymphatic Spread in Oral Squamous Cell Carcinoma
by Philipp Thoenissen, Davide Giardino, Ibrahim Yel, Thomas J. Vogl, Scherwin Mahmoudi, Andreea I. Nica, Julian Diers, Max Fleischmann, Christian Issing, Robert Sader, Rossano Girometti, Tommaso D’angelo, Christian Booz and Shahram Ghanaati
Cancers 2026, 18(4), 692; https://doi.org/10.3390/cancers18040692 - 20 Feb 2026
Viewed by 299
Abstract
Purpose: To assess the relationship between primary tumor volume, the spatial distribution of cervical lymph node metastases, and TNM (Tumor, node, metastasis) staging in patients with oral squamous cell carcinoma (OSCC) based on high-resolution MRI. Methods: This retrospective analysis evaluated 116 predominantly male [...] Read more.
Purpose: To assess the relationship between primary tumor volume, the spatial distribution of cervical lymph node metastases, and TNM (Tumor, node, metastasis) staging in patients with oral squamous cell carcinoma (OSCC) based on high-resolution MRI. Methods: This retrospective analysis evaluated 116 predominantly male (62.9%) patients (age 67.7 ± 11.5 years) with histologically confirmed OSCC who underwent surgical resection with neck dissection or definitive chemoradiation. MRI-based volumetry and center-to-center distance measurements between primary tumor and cervical lymph node metastases were performed using 3D postprocessing software. Results: Tumor-to-lymph node center-to-center distances ranged from 11.7 to 117.3 mm (median: 44.8 mm; interquartile range [IQR]: 32.1–59.6 mm). Primary tumor volume ranged from 0.5 to 87.2 cm3 (median: 13.3 cm3; IQR: 6.4–21.5 cm3) and was higher in male patients. A significant association was observed between tumor volume and both lymph node distance and pT-stage (p < 0.0001). The association between tumor volume and tumor–node distance was stronger (Spearman’s r = 0.4541, p < 0.0001) than that between pT-stage (TNM classification) and nodal distance (Spearman’s r coefficient =0.2682, p = 0.0036). Conclusion: MRI-based assessment indicated that tumor volume has a stronger association with the spatial extent of lymph node metastases compared with T-stage alone. Larger tumors were associated with greater distances to metastatic lymph nodes. These findings highlight the value of quantitative 3D MRI-based volume and distance analyses in potentially improving surgical and radiotherapeutic planning. Full article
(This article belongs to the Special Issue The Biomarkers of Oral Cancer)
Show Figures

Figure 1

9 pages, 2106 KB  
Case Report
Late Diagnosis of Unroofed Coronary Sinus Associated with Persistent Left Superior Vena Cava in Patient with Repaired Tetralogy of Fallot: Case Report
by Oana Gheorghe-Fronea, Mircea Robu, Sebastian Onciul, Claudia Nica, Cristian Voica, Robert Țigănașu, Gabriel-Petre Gorecki and Horațiu Moldovan
Life 2026, 16(2), 342; https://doi.org/10.3390/life16020342 - 16 Feb 2026
Viewed by 273
Abstract
Background: An unroofed coronary sinus (UCS) is a rare congenital cardiac anomaly, accounting for less than 1% of atrial septal defects and frequently associated with a persistent left superior vena cava (PLSVC). Its coexistence with Tetralogy of Fallot (TOF) is exceptionally uncommon and [...] Read more.
Background: An unroofed coronary sinus (UCS) is a rare congenital cardiac anomaly, accounting for less than 1% of atrial septal defects and frequently associated with a persistent left superior vena cava (PLSVC). Its coexistence with Tetralogy of Fallot (TOF) is exceptionally uncommon and has been reported almost exclusively in isolated case reports. Case Presentation: We report the case of a 20-year-old woman with a history of surgically corrected TOF in infancy, who presented with progressive exertional dyspnea. Multimodality imaging, including transthoracic echocardiography and cardiac magnetic resonance imaging, revealed a large atrial-level shunt caused by a type I unroofed coronary sinus associated with a persistent left superior vena cava, leading to significant right-sided chamber dilation and pulmonary hypertension. Notably, this anomaly had not been identified at the time of the initial TOF repair. The patient underwent a successful surgical correction with interatrial compartmentation and tricuspid annuloplasty, with an uneventful postoperative course. Conclusions: This case underscores the extreme rarity of the UCS–TOF association and highlights the potential for UCSs with PLSVC to remain clinically silent for years after complex congenital heart surgery. A comprehensive reassessment of the systemic venous and atrial anatomy using advanced multimodality imaging is essential in symptomatic adults with repaired TOF, as late-presenting venous anomalies may have significant hemodynamic and clinical implications. Full article
(This article belongs to the Section Medical Research)
Show Figures

Figure 1

13 pages, 1058 KB  
Article
Longitudinal Changes in Lipid Profile After Sustained Virological Response in Patients with Chronic Hepatitis C Treated with Direct-Acting Antivirals
by Oana Koppandi, Bogdan Miutescu, Iulia Ratiu, Alexandru Popa, Camelia Nica, Eyad Gadour, Bogdan Dan Totolici, Raluca Lupusoru, Ana Maria Ghiuchici and Eftimie Miutescu
Healthcare 2026, 14(4), 486; https://doi.org/10.3390/healthcare14040486 - 14 Feb 2026
Viewed by 261
Abstract
Background: Direct-acting antiviral (DAA) therapy has transformed chronic hepatitis C virus (HCV) infection into a curable disease. Beyond viral eradication, increasing attention has been directed toward metabolic changes following sustained virological response (SVR), particularly alterations in lipid metabolism. This study aimed to assess [...] Read more.
Background: Direct-acting antiviral (DAA) therapy has transformed chronic hepatitis C virus (HCV) infection into a curable disease. Beyond viral eradication, increasing attention has been directed toward metabolic changes following sustained virological response (SVR), particularly alterations in lipid metabolism. This study aimed to assess the long-term evolution of lipid parameters after HCV cure in a real-world clinical cohort. Methods: We conducted a prospective, single-center observational study including 85 patients with chronic HCV infection who achieved SVR after DAA therapy. Lipid parameters, including total cholesterol, low-density lipoprotein cholesterol (LDL-C), high-density lipoprotein cholesterol (HDL-C), and triglycerides, were assessed at baseline and during post-SVR follow-up at 24, 48, and 96 weeks. Body mass index (BMI) and non-invasive fibrosis indices were also evaluated. Longitudinal changes were analyzed using mixed-effects models. Results: Total cholesterol increased from 157.7 ± 35.6 mg/dL at baseline to 179.6 ± 42.9 mg/dL at SVR 24 and further to 189.0 ± 40.3 mg/dL at SVR 48, stabilizing at 177.7 ± 38.3 mg/dL at SVR 96. LDL-C showed a similar trajectory from 94.6 ± 30.8 mg/dL at baseline to 107.5 ± 33.3 mg/dL at SVR 24, further raising to 115.7 ± 36.2 mg/dL at SVR48, and 111.8 ± 39.5 mg/dL at SVR 96. HDL-C showed minimal change, while triglycerides demonstrated greater interindividual variability without a consistent population-level trend. BMI remained stable over follow-up (26.6 ± 4.7 to 27.6 kg/m2). Linear mixed-effects models confirmed a significant effect of time after SVR on total cholesterol and LDL-C (p < 0.05). Conclusions: In this real-world cohort, HCV cure with DAA therapy was associated with sustained long-term changes in lipid metabolism, characterized by increases in total cholesterol and LDL-C independent of major weight changes. These findings support the importance of continued metabolic monitoring after SVR, particularly in patients with additional cardiometabolic risk factors. Full article
(This article belongs to the Section Clinical Care)
Show Figures

Figure 1

27 pages, 5270 KB  
Article
Exploring Thymol’s Cytocompatibility and Potential Selective Cytotoxicity in Human Primary Gingival Fibroblasts and Pharyngeal Carcinoma Cells: An In Vitro and In Ovo Investigation
by Diana Florina Nica, Raluca Mioara Cosoroabă, Ștefania Dinu, Ștefania-Irina Dumitrel, Doina Chioran, Alina Tănase and Mălina Popa
Dent. J. 2026, 14(2), 105; https://doi.org/10.3390/dj14020105 - 12 Feb 2026
Viewed by 245
Abstract
Background/Objectives: Thymol (THY) is widely used in oral care products for its antimicrobial and anti-inflammatory activity, but data on its cytocompatibility, potential differential effects on oropharyngeal-derived cells, and mucosal irritation under prolonged exposure remain limited. This study evaluated THY’s effects on healthy [...] Read more.
Background/Objectives: Thymol (THY) is widely used in oral care products for its antimicrobial and anti-inflammatory activity, but data on its cytocompatibility, potential differential effects on oropharyngeal-derived cells, and mucosal irritation under prolonged exposure remain limited. This study evaluated THY’s effects on healthy human gingival fibroblasts (HGF-1) and pharyngeal carcinoma (Detroit-562) cells after 24 h exposure, together with its irritation potential in ovo. Methods: Cells were treated with THY (100–300 µM) for 24 h. Cellular viability (MTT), morphology, mitochondrial alterations (MitoTracker™/Hoechst 33342), mitochondrial membrane potential (JC-1), and apoptosis/necrosis (AO/PI) were assessed. Clonogenic assays evaluated long-term proliferative capacity. Lastly, irritation score was examined using the HET-CAM assay at 300 µM. Results: THY produced a dose-dependent viability decrease in both lines, with HGF-1 viability remaining ≥75% and Detroit-562 reduced to ~68% at 300 µM. Morphology, mitochondrial staining, JC-1 ratios, and AO/PI imaging showed progressive apoptotic features, more evident in Detroit-562 cells. Clonogenic capacity increased slightly in HGF-1 at 100 µM and declined to ~75% at 300 µM, whereas Detroit-562 colonies decreased from ~68% to ~40% across the dose range. Additionally, THY (300 µM) showed no irritation in the HET-CAM assay. Conclusions: THY demonstrated acceptable cytocompatibility in gingival fibroblasts, stronger inhibitory effects on carcinoma cells at higher concentrations, and no acute irritation in ovo. These findings support THY’s safe use within defined concentration limits and justify further evaluation in advanced oral tissue models. Full article
Show Figures

Figure 1

25 pages, 767 KB  
Article
Post-COVID-19 Muscle Weakness and Recovery Patterns After Mild-to-Moderate Infection: A Retrospective Analysis of a Structured Rehabilitation Program Using the MRC Scale
by Ovidiu Cristian Chiriac, Daniela Miricescu, Raluca Mititelu, Silviu Marcel Stanciu, Corina Sporea, Ana Raluca Mitrea, Dragos Constantin Lunca, Sarah Adriana Nica, Cristian Constantin Popa and Ileana Adela Vacaroiu
Healthcare 2026, 14(3), 392; https://doi.org/10.3390/healthcare14030392 - 4 Feb 2026
Viewed by 449
Abstract
Background/Objectives: Post-COVID-19 muscle weakness is common even after mild or moderate infection, driven by systemic inflammation, prolonged inactivity, and reduced functional reserve. This study aimed to describe changes in global muscle strength assessed using the Medical Research Council (MRC) scale in adults [...] Read more.
Background/Objectives: Post-COVID-19 muscle weakness is common even after mild or moderate infection, driven by systemic inflammation, prolonged inactivity, and reduced functional reserve. This study aimed to describe changes in global muscle strength assessed using the Medical Research Council (MRC) scale in adults recovering from mild or moderate COVID-19 who participated in a structured two-week rehabilitation program, and to compare these changes with those observed under standard medical follow-up. Methods: This retrospective study included 193 adults recovering from mild or moderate COVID-19: 160 who completed a structured inpatient rehabilitation program (study group) and 33 who received no supervised rehabilitation (control group). Muscle strength was assessed using the MRC scale at baseline and at follow-up. Non-parametric analyses (Wilcoxon signed-rank test, Mann–Whitney U test, and Spearman correlation) were used to evaluate within-group changes, between-group differences, and associations with age and sex. Results: Both groups showed significant within-group improvements in muscle strength. In the study group, median MRC scores increased from 50 (IQR 40–56) to 52 (IQR 50–56), with a mean ΔMRC of 2.76 ± 8.72 (p < 0.001). In the control group, MRC scores rose from 50 (40–56) to 52 (43–56), corresponding to a mean ΔMRC of 1.00 ± 2.09 (p = 0.005). The between-group comparison of ΔMRC did not reach statistical significance overall; however, age-stratified analyses indicated greater muscle strength gains in the rehabilitation group among participants aged ≥60 years. Conclusions: Short-term improvements in global muscle strength were observed both after structured rehabilitation and under standard medical follow-up, indicating a substantial contribution of natural recovery. Although participants in the rehabilitation group showed numerically larger gains—most notably in the ≥60-year subgroup—between-group differences in ΔMRC were not statistically significant. Overall, these findings support the feasibility and potential functional value of early, individualized rehabilitation while underscoring the need for adequately powered prospective studies to clarify its incremental benefit beyond spontaneous recovery. Full article
(This article belongs to the Special Issue Physical and Rehabilitation Medicine—2nd Edition)
Show Figures

Figure 1

29 pages, 1410 KB  
Review
Diet-Driven Epigenetic Alterations in Colorectal Cancer: From DNA Methylation and microRNA Expression to Liquid Biopsy Readouts
by Theodora Chindea, Alina-Teodora Nicu, Gheorghe Dănuț Cimponeriu, Bianca Galateanu, Ariana Hudita, Mirela Violeta Șerban, Remus Iulian Nica and Liliana Burlibasa
Biomedicines 2026, 14(2), 267; https://doi.org/10.3390/biomedicines14020267 - 24 Jan 2026
Viewed by 563
Abstract
The escalating incidence of colorectal cancer (CRC), particularly the alarming rise in early-onset cases, necessitates a paradigm shift from a purely genetic perspective to a broader investigation of promising pathways. This review explores the “nutri-epigenetic” interface, positioning liquid biopsy as a critical technology [...] Read more.
The escalating incidence of colorectal cancer (CRC), particularly the alarming rise in early-onset cases, necessitates a paradigm shift from a purely genetic perspective to a broader investigation of promising pathways. This review explores the “nutri-epigenetic” interface, positioning liquid biopsy as a critical technology for translating dietary impacts into actionable clinical biomarkers. We contrast the molecular consequences of the Western dietary pattern, characterized by methyl-donor deficiency and pro-inflammatory metabolites, with the protective mechanisms of the Mediterranean diet. Mechanistically, we detail how Western-style diets drive a specific “epigenetic double-hit”: promoting global DNA hypomethylation (destabilizing LINE-1) while paradoxically inducing promoter hypermethylation of critical tumour suppressors (MLH1, APC, MGMT) and silencing tumour-suppressive microRNAs (miR-34b/c, miR-137) via methylation of their encoding genes. Conversely, we highlight the capacity of Mediterranean bioactive compounds (e.g., resveratrol, curcumin, butyrate) to inhibit DNA methyltransferases and restore epigenetic homeostasis. Bridging molecular biology and clinical utility, we demonstrate how these diet-sensitive signatures, specifically circulating methylated DNA and dysregulated microRNAs, can be captured via liquid biopsy. We propose that these circulating analytes serve as dynamic, accessible biomarkers for monitoring the molecular progression toward a carcinogenic state, thereby establishing a novel framework for personalized risk stratification and validating the efficacy of preventive nutritional strategies. Full article
Show Figures

Figure 1

35 pages, 4191 KB  
Article
AI-Driven Modeling of the Energy Transition in the SPRING-F Group: A Hybrid Panel ARDL and Machine Learning Approach
by Ionuț Nica, Camelia Delcea, Nora Chiriță and Ștefan Ionescu
Appl. Sci. 2026, 16(2), 1044; https://doi.org/10.3390/app16021044 - 20 Jan 2026
Viewed by 280
Abstract
This study analyses the dynamics of the energy transition within the SPRING-F group (Spain, Poland, Romania, Italy, the Netherlands, Germany, France) through a hybrid approach that combines econometric panel ARDL models with machine learning algorithms. The analysis is based on energy, economic, and [...] Read more.
This study analyses the dynamics of the energy transition within the SPRING-F group (Spain, Poland, Romania, Italy, the Netherlands, Germany, France) through a hybrid approach that combines econometric panel ARDL models with machine learning algorithms. The analysis is based on energy, economic, and technological indicators, including renewable energy consumption, energy intensity, CO2 emissions, GDP per capita, urbanization, trade openness, and R&D expenditure. The results of the exploratory analysis highlight the existence of clear structural differences between Western European and emerging Central and Eastern European economies. Based on the estimates made with the ARDL panel model, the long-term equilibrium relationships were confirmed. They indicated positive and significant effects of urbanization and economic growth on renewable energy consumption, as well as a negative impact of CO2 emissions. Regarding the short-term effects, the error correction coefficient suggests a moderate convergence towards equilibrium. Machine learning models highlight the superiority of nonlinear approaches, and SHAP analysis confirms the dominant role of CO2 emissions and the heterogeneity of national energy transition trajectories. Full article
(This article belongs to the Special Issue Holistic Approaches in Artificial Intelligence and Renewable Energy)
Show Figures

Figure 1

23 pages, 1234 KB  
Review
Prostate Cancer, JAK/STAT3 Dysregulation, and Flavonoids: Is There a Possible Link?
by Valentina Uivarosi, Daniela Miricescu, Ileana Adela Vacaroiu, Dan Arsenie Spinu, Constantin Stefani, Silviu Stanciu, Remus Iulian Nica, Iulia-Ioana Stanescu-Spinu, Silviu Constantin Badoiu, Silvia Nica and Viorel Jinga
Int. J. Mol. Sci. 2026, 27(2), 885; https://doi.org/10.3390/ijms27020885 - 15 Jan 2026
Viewed by 573
Abstract
Worldwide, prostate cancer (PC) has a rising incidence and is the sixth leading cause of death globally, especially with increasing cases in developing countries. Risk factors for PC include genetic predisposition, family history, race/ethnicity, and various occupational factors like diet, obesity, smoking, and [...] Read more.
Worldwide, prostate cancer (PC) has a rising incidence and is the sixth leading cause of death globally, especially with increasing cases in developing countries. Risk factors for PC include genetic predisposition, family history, race/ethnicity, and various occupational factors like diet, obesity, smoking, and transmitted diseases. The Janus kinase (JAK)-signal transducer and activator of transcription (STAT) pathway can be activated by hormones, cytokines, and growth factors, and it plays a role in many vital biological processes such as cell growth, differentiation, immune regulation, and apoptosis. Dysregulation of JAK/STAT3 can lead to cancer, inflammation, diabetes, and neurodegenerative disorders. In cancers, including PC, STAT3 promotes cell survival, progression, angiogenesis, and metastasis. Inhibitors targeting JAK and STAT3 tested in vivo have shown potential to inhibit malignant cell growth. Additionally, flavonoids are bioactive plant compounds that are important in preventing inflammation, oxidative stress, and cancer. Research indicates that natural flavonoids can be developed into cancer-preventive and therapeutic agents. Experimental studies have demonstrated that some flavonoids can inhibit PC development. The main goal of this review is to present the incidence and risk factors of PC, the JAK/STAT3 pathway and its inhibitors, and how flavonoids may influence this pathology. Full article
Show Figures

Figure 1

23 pages, 1885 KB  
Article
A Fuzzy-Machine Learning Framework for Energy Efficiency Optimization and Smart Transition Analysis in European Economies
by Ionuț Nica, Irina Georgescu and Jani Kinnunen
Electronics 2026, 15(2), 276; https://doi.org/10.3390/electronics15020276 - 7 Jan 2026
Viewed by 439
Abstract
This study aims to identify and interpret latent energy-economic typologies across European economies and to assess whether their energy transition paths exhibit convergence or persistent structural divergence. To achieve this objective, the paper investigates the energy–economic structure of thirteen European economies between 2000 [...] Read more.
This study aims to identify and interpret latent energy-economic typologies across European economies and to assess whether their energy transition paths exhibit convergence or persistent structural divergence. To achieve this objective, the paper investigates the energy–economic structure of thirteen European economies between 2000 and 2024 using an integrated fuzzy–machine learning framework. Eight indicators related to renewable energy, energy efficiency, emissions, electricity use, digitalization, investment, urbanization and economic development were analyzed to identify structural typologies across countries. Using the Fuzzy C-Means algorithm, four distinct clusters were identified: (i) moderately developed economies with balanced renewable adoption and energy efficiency, (ii) structurally integrated economies with medium energy intensity and stable economic performance, (iii) an emerging economy with persistent structural constraints, and (iv) advanced high-performance economies engaged in accelerated energy transition. To validate the fuzzy classification, Random Forest and XGBoost models were trained based on the same indicators, achieving high predictive accuracy (94% and 92%, respectively). Feature importance analysis reveals that CO2 emissions, energy efficiency and urbanization play the most significant roles in differentiating country profiles. The proposed framework provides a comprehensive approach for understanding energy transition heterogeneity, structural convergence and the drivers shaping the evolution of European energy–economic systems. Full article
(This article belongs to the Special Issue New Trends in Energy Saving, Smart Buildings and Renewable Energy)
Show Figures

Figure 1

30 pages, 4757 KB  
Review
The Impact of the Russia–Ukraine War on Water Resources and Infrastructure of Ukraine—A Comprehensive Review
by Valentina-Mariana Manoiu, Mihnea-Stefan Costache and Miruna-Amalia Nica
World 2026, 7(1), 3; https://doi.org/10.3390/world7010003 - 31 Dec 2025
Viewed by 2791
Abstract
The Russo–Ukrainian conflict (RUC) escalated on 24 February 2022 with Russia’s large-scale military operation in Ukraine. Our review aims to present the impact of the RUC on Ukrainian water resources and infrastructure. Its primary objective was to analyze 61 relevant papers, selected and [...] Read more.
The Russo–Ukrainian conflict (RUC) escalated on 24 February 2022 with Russia’s large-scale military operation in Ukraine. Our review aims to present the impact of the RUC on Ukrainian water resources and infrastructure. Its primary objective was to analyze 61 relevant papers, selected and screened according to the PRISMA methodology, concerning changes in inland and marine water quality, employing diverse scientific and analytical methods, and technical tools. Key recurring themes included “Ukraine”, “Russian-Ukrainian War”, and “Ecocide”. Beyond assessing the environmental consequences of destroyed treatment plants, supply systems, and sewerage units, as the secondary objective, the review introduces the concept of “aquacide”—the deliberate or incidental destruction and contamination of water infrastructures and resources during military operations. The most severe cases were documented in southern and eastern Ukraine, with the destruction of the Kakhovka Dam standing out as the most widely reported “aquacide”. Finally, the review highlights the critical role of satellite imagery and remote sensing as the most effective tools in monitoring water quality and infrastructures under wartime conditions, when in situ observations and measurements are often impossible. Full article
Show Figures

Figure 1

Back to TopTop