Next Article in Journal
Washout-Filter Power-Sharing-Based Resilient Control Strategy for Microgrids Against False Data Injection Attacks
Next Article in Special Issue
A Fuzzy Multi-Criteria Decision-Making Framework for Evaluating Non-Destructive Testing Techniques in Oil and Gas Facility Maintenance Operations
Previous Article in Journal
Ghost-YOLO-GBH: A Lightweight Framework for Robust Small Traffic Sign Detection via GhostNet and Bidirectional Multi-Scale Feature Fusion
Previous Article in Special Issue
Methods for Enhancing Energy and Resource Efficiency in Sunflower Oil Production: A Case Study from Bulgaria
 
 
Font Type:
Arial Georgia Verdana
Font Size:
Aa Aa Aa
Line Spacing:
Column Width:
Background:
Article

Natural Ventilation Strategies to Prevent Airborne Disease Transmission in Public Buildings

by
Jesús M. Ballesteros-Álvarez
1,
Álvaro Romero-Barriuso
2,*,
Ángel Rodríguez-Sáiz
1 and
Blasa María Villena-Escribano
2
1
Department of Architectural Constructions & Construction and Land Engineering, University of Burgos, 09001 Burgos, Spain
2
Department of Construction and Manufacturing Engineering, Universidad Nacional de Educación a Distancia (UNED), 28040 Madrid, Spain
*
Author to whom correspondence should be addressed.
Eng 2025, 6(8), 197; https://doi.org/10.3390/eng6080197
Submission received: 29 June 2025 / Revised: 28 July 2025 / Accepted: 5 August 2025 / Published: 8 August 2025
(This article belongs to the Special Issue Interdisciplinary Insights in Engineering Research)

Abstract

This paper evaluates the effectiveness of natural ventilation as a health and safety strategy in municipal buildings, focusing on its capacity to ensure indoor air quality and limit airborne disease transmission. Natural ventilation can be incorporated into building design as the primary mechanism for achieving the required indoor air quality, equipping buildings with operable windows based on their intended occupancy. Using 11 public buildings in Mostoles, Spain, as case studies, the research applies a quantitative methodology based on carbon dioxide concentration to estimate ventilation rates and theoretical occupancy thresholds. The findings reveal that cross ventilation is the only natural method capable of meeting air renewal rates recommended by health authorities, particularly the IDA2 air quality standard and three to five air changes per hour suggested to reduce disease spread. However, 53% of the assessed spaces lacked cross ventilation capacity, underscoring the need to integrate natural and mechanical systems. The study proposes a replicable model to assess and adapt indoor occupancy based on real ventilation capacity, offering a practical tool for decision-making in public health, energy efficiency, and architectural design. Ultimately, the research supports the strategic use of natural ventilation as a low-cost, scalable intervention to enhance environmental quality in public facilities.

1. Introduction

The relationship between indoor air quality, ventilation, and disease occurrence has been the subject of research for some time, with the emergence of the SARS-CoV-2 virus and its variants increasing the importance of this field of study [1,2].
Prior research has sought to elucidate the impact of environmental factors on the well-being of occupants within building spaces [3], their influence on health and safety [4,5], and their relationship with sick building syndrome [6,7].
There is a growing concern regarding the potential health implications of indoor pollutants on the well-being of residents. The manner in which these pollutants are generated [8,9,10,11], the chemical reactions that can occur between the various volatile substances, and their capacity for dispersion in the environment [4] are critical factors that must be considered in order to assess the healthiness of an inhabited indoor space. In light of these considerations, international organisations such as the European Union and the WHO have deemed it necessary to regulate indoor pollutants presence [12,13].
The integration of natural ventilation into building design represents a promising method of removing indoor pollutants [14,15,16], as well as an innovative alternative for enhancing energy efficiency and comfort [17]. This subject has been previously investigated. In isolation centres, the implementation of natural ventilation has been demonstrated to enhance the elimination of contaminants, thereby ensuring a secure environment against the transmission of viruses such as SARS-CoV-2 [18] and its subsequent variants.
The utilisation of windows is a suitable methodology for enhancing indoor air quality in edifices [19]. In this regard, predictive studies have been conducted to examine human behaviour in relation to the opening of windows [20,21,22,23,24,25], the implementation of time slots [26], and the estimation of ventilation time through gas monitoring [27], with the objective of enhancing the energy efficiency of buildings.
The application of statistical methodologies [28] and simulation models [29] is a common practice in the field of indoor air movement prediction [30], as well as in the analysis of the influence of cross ventilation in buildings [30,31,32]. Nevertheless, the outcomes are deemed to be inaccurate in instances where the apertures are small, in addition to depending on dimensionless discharge coefficient that considers turbulence and air viscosity that are somewhat ambiguous in nature [33]. Furthermore, numerical approaches are based on concentration of environmental pollutants, whereas the role of buildings’ configuration and occupants’ behaviour is only considered in specific studies [2], such as those examining offices [34,35]; hospitals, including critical care units [36]; sports centres [37]; and schools [38].
Carbon dioxide (CO2) is commonly used as a chemical compound for the characterisation of indoor air quality with prolonged human presence [39]. Its use is related to the fact that it is produced by human physical activity. It has been shown as bioeffluent indicator to be effective in reducing the risk of aerosol-borne respiratory diseases, such as the SARS-CoV-2 infection, and it is a suitable marker for predicting occupancy rate [18,40].
The existing literature has primarily focused on analysing critical aspects, such as the presence of aerosols, their dispersion, ventilation, and the risk of infection separately, rather than in conjunction with one another. Furthermore, the majority of studies have largely avoided the inclusion of other factors, such as building design and behavioural parameters, as well as human habits [2]. Accordingly, an integrated approach is required in the design of healthy buildings, taking into account the specific ventilation conditions, the nature of the activities being carried out, and the degree of occupancy [37].
Normatively, indoor air quality is contingent upon the ventilation flow rate that is necessary per occupant. There are different ventilation rate standards with a combination of 2.5 L/s per person plus 0.3 L/s per m2 of floor space being accepted [41], 12.5 L/s for office premises [42], and 13.9 L/s in work environments, which can be reduced to 8.3 L/s for sedentary work in unpolluted environments [43]. It should be noted, however, that these values do not take into account the size of the room.
In the context of the last health crisis caused by the coronavirus, it has been considered that 14 litres per second per person and five air changes per hour [44,45,46] represent the optimal benchmarks for ensuring the healthiness of indoor spaces. As previously stated, many standards for indoor air quality are determined by assessing the carbon dioxide concentration [47], a methodology that enables the capacity to be evaluated in relation to the specific attributes of the room.
A review of the scientific literature reveals that flow rates exceeding five air changes per hour have been linked to occupant discomfort and the dispersion of small droplets of human effluent. These circumstances impede the effective control of diseases such as SARS-CoV-2; thus, it is estimated that the optimal value for infection control is a maximum of three air changes per hour [11]. Moreover, in order to guarantee optimal ventilation, carbon dioxide concentrations in excess of 800 ppm must be avoided [48].
The study presented in this paper comprises an analysis of the characteristics of occupied buildings based on these indicators [2], including the degree of occupation and the type of activity conducted therein. Accordingly, a methodology based on the monitoring of carbon dioxide (CO2) gauges is devised to ensure and guarantee the desired air quality in indoor areas [40].
In light of the aforementioned considerations, the Municipal Centres of the Mostoles City Council (Madrid) are taken as a reference point for the design of the model, with a view to enhancing the capacity in terms of safety and health for users.

2. Background

The process of natural ventilation within a building is dependent upon the evaluation of external wind pressure between the windward and leeward sides of the structure.
The municipal buildings of the Mostoles City Council that are equipped with natural ventilation systems, irrespective of the air-conditioning systems installed, include the Town Hall, which houses the Town Hall headquarters, the Citizen Participation Centre, or Junta I, and the Junta 4 West building. The aforementioned facilities include the Rodolfo Halffter Conservatory, the Kaleidoscope Sociocultural Centre, the El Soto Sociocultural Centre, the Villa de Mostoles Sociocultural Centre, the Ramón Rubial Social Centre, the Ribera Youth Space, the General Services, and the Almudena Grandes Central Library.
The Town Hall is a building of irregular shape, comprising eight floors: three subterranean levels below ground level, a ground floor, and four upper levels. The building is primarily intended for use as office space, with the offices of the Town Hall and the Mostoles Municipal Police located within. The building contains a public service area and secondary uses, including garage parking, exhibitions, and meetings, as well as the auxiliary installations necessary for the building’s operation. The building has a total built surface area of 8423.02 m2, with the height of the fourth floor measuring 14.53 m (Figure 1).
The Citizen Participation Centre, or Junta I, is situated within a building that occupies the entire façade on one side and sits on an irregularly shaped site with a surface area of 345 m2. The edifice comprises six levels, including a subterranean basement and five above-ground floors, and is primarily utilised for office purposes. In addition, the building comprises meeting rooms, an assembly hall, and a rehearsal room. The total built-up area of the Centre is 2002.22 m2, with a height of 12.80 m for the fourth floor.
The Rodolfo Halffter Conservatory is an educational facility situated on a trapezoidal plot of land measuring 1152 m2. The structure is developed in a vertical configuration, comprising five floors above ground and a basement level. The edifice is configured into two distinct areas: the triangular-shaped distribution hall, which is replicated on each of the building’s floors. The building has been designed with a large, zenithally lit space at its centre, which incorporates the vertical communication staircase and lifts. The second zone is the teaching area, which occupies the remainder of the building and is functionally organised into two corridors of classrooms, connected by a central axis with a void that visually connects all the floors, and which is covered by a skylight. The total built surface area of the Centre is 5332.96 m2, with a height of 16.50 m for the fourth floor (Figure 2).
The Kaleidoscope, El Soto, and Villa de Mostoles Sociocultural Centres are constructed in an identical manner. The facilities are intended for the presentation and discussion of cultural activities, including courses, workshops, theatrical performances, and exhibitions. Additionally, the facility houses a library and a games library, along with administrative offices. The edifice has a total surface area of 2000 m2, comprising a semi-basement and two above-ground floors.
The Ribera Youth Space is a facility dedicated to the care of adolescents. The facility is situated within a residential development and comprises a total area of 1113.71 m2, distributed across two levels: the ground floor and a semi-basement.
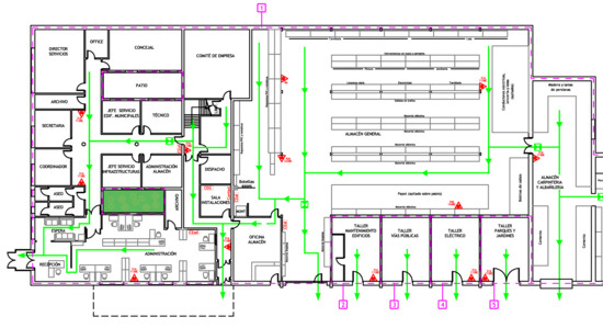
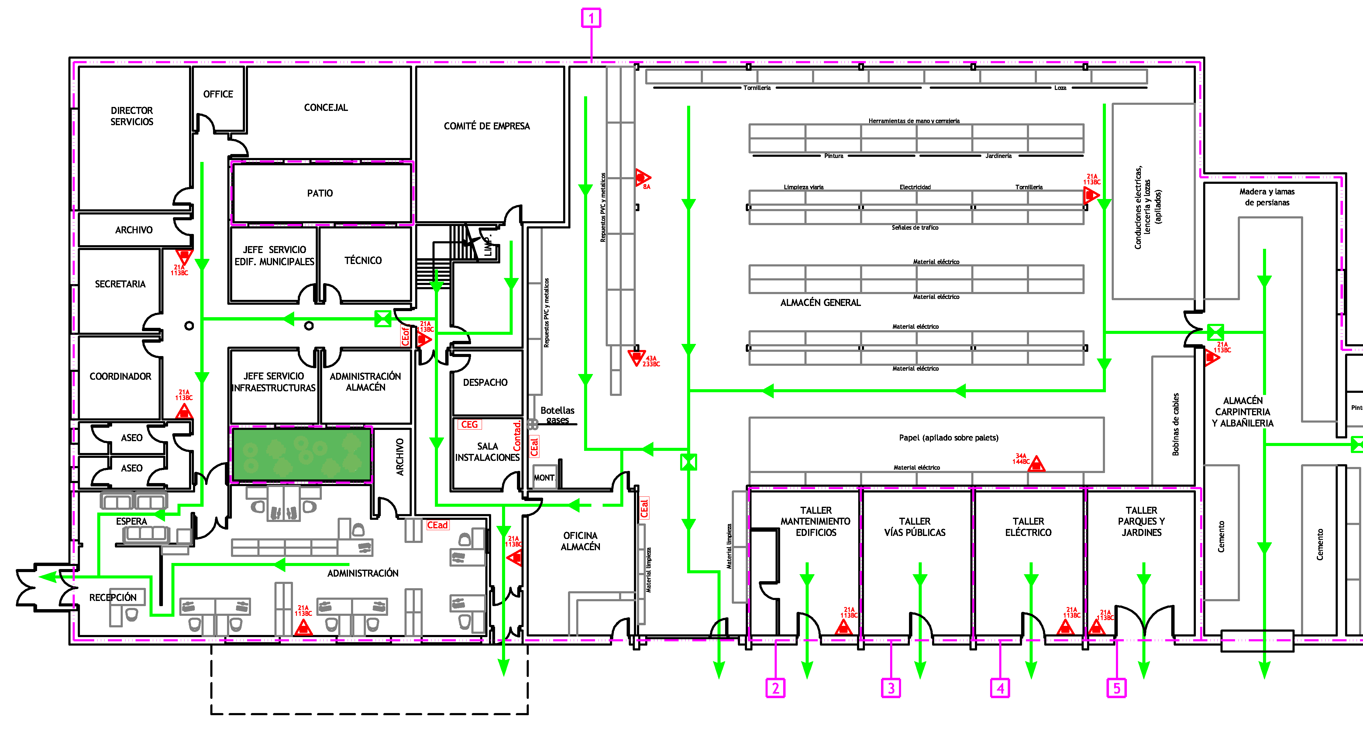
The General Services building is situated within the refurbished premises of an erstwhile manufacturing facility. The structure is comprised of two internally connected volumes, in which the office module and the warehouse module are located, respectively. The office module constitutes the front of the building and is characterised by a single rectangular floor plan. The warehouse module, however, has two additional floors above ground, rectangular in shape, to which a series of independent enclosures have been joined. The total built-up area of the centre is 2495 m2.
The General Services building is a single-storey building with casement windows, but these only allow cross ventilation in the administration area (Figure 3).
The Almudena Grandes Central Library is the headquarters of the Mostoles Municipal Library and contains a variety of public facilities, including book lending rooms, reading rooms, and an assembly hall. The edifice occupies a trapezoidal surface area of 793.45 m2 and is developed vertically over six floors: a basement, a ground floor, and four floors above.
The climate of the city of Mostoles determines the possibilities of natural ventilation of its buildings. The following values are applicable in this regard (Table 1):

3. Materials and Methods

The theoretical occupation is determined through a comparison of the available ventilation flow rate with a reference value that ensures indoor air quality of Category IDA2 [47], with carbon dioxide (CO2) serving as a marker element correlated with the activity being conducted [50,51]. In the event of infectious disease, four supplementary safety levels are established to address the ventilation requirements necessary to prevent the transmission of SARS-CoV-2 and its different variants [11,44,45,46,48].
The generation rate depends on sex, body mass, and age [52]; however, an average person, considered as such a 70 kg weight and 1.7 m height man [53], engaged in light activity generates 6.36 × 10 3   L s of carbon dioxide (CO2) per person [40,53,54,55]. Therefore, the ventilation flow rate required per person to achieve IDA2 air quality implies that the concentration of carbon dioxide (CO2) between the interior and exterior must be less than 500 ppm and is given by the following expression [40,47]:
Q r e q u i r e d   R I T E =   q C O 2 500 × 10 6   Q r e q u i r e d   R I T E = 6.36 × 10 3 500 ·   10 6 Q r e q u i r e d   R I T E = 12.72   L s · p e r s o n  
where
  • Qrequired RITE = volumetric flow rate of air required for achieving RITE’s quality level IDA2 (m3/s)
  • qCO2 = CO2 emissions generated by one person during a light activity (L/s)
Value similar to the 45 m3/h per person required by regulations to consider air quality IDA2 (RITE).
Considering this value as a reference threshold, the classic action levels are established, as a methodology in Industrial Hygiene, at 75%, 50%, and 25% of this limit, i.e., 15.62 L/s, 18.75 L/s, and 21.87 L/s. Consequently, the reference values for ΔCO2 are, respectively, 230 ppm, 270 ppm, and 320 ppm. Assuming an outdoor concentration of between 400 ppm and 500 ppm, the reference values indoors will be 730 ppm, 770 ppm, and 820 ppm.
The safe concentrations of carbon dioxide (CO2) for infectious disease are 730 ppm, 770 ppm, 820 ppm, and 878 ppm. Consequently, the requisite ventilation is as follows [40,44] (Table 2):
This methodology allows for the determination of the theoretical occupancy of the enclosure at the various levels of air quality, as indicated by the expression [40]:
T h e o r e t i c a l   o c c u p a t i o n = Q w Q r e q u i r e d × 10 3
where
  • Qw = volumetric flow rate of air entering the enclosure (m3/s)
  • Qrequired = volumetric flow rate of air required for each air quality level (m3/s)

3.1. Wind Speed

The outdoor air velocity is closely related to the available ventilation. By comparing the observed value of outdoor air velocity with the reference value (Qrequired), the occupancy can be determined. The outdoor air velocity is an extremely fluctuating value that requires the adoption of the most unfavourable conditions of the values provided in the scientific literature [40].
In general, wind speed is significantly reduced in urban terrain, where the wind flow regime is predominantly turbulent as a consequence of fluctuations in wind direction [56,57,58]. The behaviour of wind speed is subject to variation in proximity to the ground. In the case of a height of less than 10 m, the following equation must be employed [57,59] (Table 3):
v v r = c × H a
where
  • H = height of the building (m)
  • c = parameter relating to wind speed, terrain
  • a = parameter relating to wind speed and height above ground
In order to circumvent the utilisation of statistical values, standardised air velocities are employed, which are routinely employed in the determination of dangerous areas due to fire and explosion risk and entail a high level of security. The air velocity is determined in accordance with the behaviour of the gas in question and the height of the ventilation point. Due to its density, 1.5 times heavier than air, carbon dioxide is prone to accumulating in low-lying areas, where ventilation is typically reduced. This phenomenon contributes to a lower effective ventilation velocity [59] (Table 4).

3.2. Calculating Natural Ventilation

The ventilation of an enclosure can be expressed as the vector sum of the airflow induced by wind speed and buoyancy [60,61,62].
Q w = Q a w 2 + Q a 2  
where
  • Qw = volumetric flow rate of air entering the enclosure (m3/s)
  • Qaw = volume flow rate of air entering the enclosure as a result of wind force (m3/s)
  • Qa = volume flow rate of air entering the enclosure because of buoyancy (m3/s)
A variety of empirical and theoretical procedures is available for establishing the natural ventilation of an enclosure. These include the British Standard [63], as well as the Building Research Establishment [64] and AIDA [65,66].
The dilution is determined based on the speed of the air passing through the section perpendicular to the location of the windows in the enclosure under study. It is obtained by the following equation:
u w = Q w S
where
  • uw = air velocity (m/s)
  • Qw = volumetric airflow rate (m3/s)
  • S = surface perpendicular to ventilation openings (m2)
Furthermore, the hourly air changes of the room under study can be employed as a control parameter [44,67].
C = Q w V 0
where
  • C = number of air changes per unit of time (s−1)
  • Qw = outdoor airflow through the considered space
  • V0 = total volume (on floor) served by the actual ventilation in the vicinity of the emitter
The volume of polluted indoor air is calculated by dividing the calculated value of the outdoor airflow rate (Qw) by the actual ventilation flow rate in the space under consideration (V0), in the vicinity of the emitting person [59].
V c o n t a m i n a t e d = Q w C
where
  • Vcontaminated = contaminated volume (m3)
  • C = number of air changes per unit of time (s−1)
  • Qw = minimum outdoor air volume flow rate (volume per unit of time, m3/s)

3.3. Wind-Induced Ventilation

The wind-induced ventilation is a consequence of the wind pressure exerted on the building, taking into account the ventilation openings situated at the top and bottom, which are positioned on a single side [66]. The following expression is applicable in this context:
P w = 0.5 · C p · ρ · u w 2
where
  • Pw = pressure due to wind (Pa)
  • Cp = pressure coefficient (dimensionless)
  • ρ = density of air at the desired temperature (kg/m3)
  • uw = wind speed at referenced height (m/s)
The scientific literature provides mathematical formulae that facilitate the calculation of wind flow in enclosed environments [68,69]:
Q a w = A e 2 · C d C w · u w
where
  • Qaw = volumetric airflow rate (m3/s)
  • Ae = ventilation area (m2)
  • Cd = dimensionless discharge coefficient, characteristic of large ventilation openings and considering turbulence and viscosity, typically between 0.5 and 0.7
  • Cw = coefficient due to wind direction 0.07–0.14
  • uw = wind speed at referenced height (m/s)
In addition, standardised expressions adapted to openings located on the same wall can also be used [59,70].
Q a w = 0.025 · A 1 + A 2 · u w
where
  • Qaw = volumetric airflow rate (m3/s)
  • uw = wind speed at referenced height (m/s)
  • A1 = total actual free area of openings high in a wall
  • A2 = total actual free area of openings located low in a wall
In the case of buildings with openings situated on different façades, the equation is modified by incorporating the concept of equivalent effective area. The standardised model for the calculation of airflow through windows and doors facing each other is as follows [59,68]:
Q a w = C d · A e · u w Δ C p
where
  • Qaw = volumetric airflow rate (m3/s)
  • Cd = dimensionless discharge coefficient, characteristic of large ventilation openings and considering turbulence and viscosity, typically between 0.5 and 0.7
  • Ae = effective area of openings (m2)
  • uw = wind speed at referenced height (m/s)
  • ΔCp = characteristic building pressure coefficient (dimensionless); a value of 0.1 is used because the building is protected all around by buildings and structures
The effective area can be calculated using the following expression [59,70]:
A e = 2 · A 1 2 · A 2 2 A 1 2 + A 2 2
where
  • Ae = effective area of openings (m2)
  • A1 = effective area of upwind opening
  • A2 = effective area of downwind opening
In all the cases analysed, the possibility of natural ventilation is limited to the available casement windows. The vertical distance between the upper and lower openings is minimal in comparison to their horizontal distance. In such circumstances, the effect of buoyancy-induced ventilation is diminished and no longer a significant factor.

3.4. Method of Calculation: Application to the Plenary Hall of the Mostoles City Council

The following example demonstrates the application of the aforementioned method to a naturally ventilated enclosure, such as the Plenary Hall of the Mostoles City Council. The calculations are based on the wind induced by the pressure difference between the windward and leeward sides of the building, in the absence of an air-conditioning system.
The Plenary Hall is situated within a naturally wind-ventilated edifice. It is situated on the third floor of the Town Hall, at an elevation of 9.45 m. It has a total surface area of approximately 110 square m and a height of 3 m. It has three access doors located on the front wall, with a surface area of 3 square m.
The ventilation is achieved through the natural convection of air through the openings in the double-hung windows, which are located on opposite walls. The dimensions are as follows: two windows with a surface area of 36 cm2 per sash, facing two other windows on the opposite wall. One of the windows has the same characteristics, with a surface area of 36 cm2 per sash, while the second has a surface area per sash of 80 cm2. The latter window is also a casement window, with a maximum opening length of 17 cm.
The air velocity in the corridor outside the Plenary Hall is 0.05 m/s [59], which coincides with the standardised value for poorly ventilated interiors [70]. In light of the fact that all available windows are open, the mathematical operation is performed as follows:
A e = 2 · 1.44 2 · 2.32 2 1.44 2 + 2.32 2 = 1.73   m 2
The results obtained for all possible positions of the windows are presented in the following Table 5.
By employing the aforementioned airflow expression, the flow rates for each of the opening modes under consideration can be derived (Table 6):
Q a w = 0.65 · 1.73 · 1 · 0.1 2 = 0.251   m 3 s
It can be posited that the contribution of the doors to the ventilation of the enclosure is, at best, minimal:
Q a w = 0.025 · A 1 + A 2 · w
Q a w = 0.025 · 3 + 0 · 0.05 = 3.75 · 10 3   m 3 s
Furthermore, the effect of buoyancy-induced ventilation is negligible due to the vertical distance between the upper and lower apertures [71,69].
Q a = C d · A r 2 · Δ T T o u t · 2 · g · H 4 + C w · u w 2
where
  • Qa = volumetric airflow rate (m3/s)
  • Cd = dimensionless discharge coefficient, characteristic of large ventilation openings and considering turbulence and viscosity, typically between 0.5 and 0.7
  • Cw = coefficient due to wind direction 0.07–0.14
  • Ar = upper ventilation area (m2)
  • ΔT = difference between outdoor and indoor temperature (K)
  • Tout = outdoor temperature (K)
  • g = acceleration due to gravity (9.81 m/s2)
  • H = vertical distance between the lower and upper opening points (m)
  • uw = wind speed at referenced height (m/s)
In order to ascertain the dilution, the section perpendicular to the location of the Plenary Hall windows (18 m2) and the ventilation flow rates obtained above are taken into consideration [59,70]. In the event that all windows are opened, the aforementioned methodology may be applied as follows (Table 7):
u w = 0.251 18 = 1.39 × 10 2   m s
In consideration of the volumetric airflow rates previously established, the estimated occupancy is calculated according to the following methodology [40] (Table 8):
O c c u p a n c y = Q a w Q L e v e l   I = 0.251 27.65 × 10 3 = 9   p e r s o n s
The calculation process consists of three phases. First, the required air quality is established. Second, the ventilation flow rate per person necessary to achieve the previously established air quality is determined. Finally, the occupancy that allows these conditions to be met based on the available natural ventilation is determined (Figure 4).
In consideration of the Plenary Hall’s volume of 330 m3, when all windows are kept open with both sashes in place, the resulting effect is as follows:
C = 0.251 × 3600 330 = 2.74   h 1
The following data presents the air renewals of the enclosure, as a result of natural ventilation (Table 9):
It is crucial to acknowledge that the transmission of communicable diseases can be effectively mitigated only when all windows of an enclosure are kept open [67].

4. Results

A total of 12 municipal centres have been subjected to analysis. In addition to the presence of forced ventilation in the majority of cases, these centres can also be ventilated naturally through the opening of operable windows. The data pertaining to the characteristics of the buildings, the Town Hall, the Citizen Participation Centre, or Junta I, the Junta 4 West building, Rodolfo Halffter Conservatory, the Kaleidoscope Sociocultural Centre, the El Soto Sociocultural Centre, the Villa de Mostoles Sociocultural Centre, the Ramón Rubial Social Centre, the Ribera Youth Space, the General Services, and the Almudena Grandes Central Library, as well as the capacity and the maximum opening area of the windows, were provided by the Mostoles City Council.
The level of occupancy required in relation to the design capacity of each of the 11 buildings studied, taking into account the maximum possible opening of the available windows, is shown for each of the locations intended for prolonged human occupancy (Table 10, Table 11, Table 12, Table 13, Table 14, Table 15, Table 16, Table 17 and Table 18).
The Plenary Hall is located on the third floor of the Town Hall building. The occupancy that allows IDA2 air quality with all windows open on both sashes is 20 people (Table 8). The room is designed for 77 people. The IDA2 occupancy relative to the design occupancy is
O c c u p a t i o n   i n   r e s p e c t   o f   I D A 2 = O c c u p a t i o n   I D A 2 O c c u p a t i o n   i n   d e s i g n O c c u p a t i o n   i n   r e s p e c t   o f   I D A 2 = 20 77 = 0.26
Table 10. Occupancy with respect to the design capacity provided by the Mostoles City Council for “Citizen Participation Centre/Junta I” with natural ventilation.
Table 10. Occupancy with respect to the design capacity provided by the Mostoles City Council for “Citizen Participation Centre/Junta I” with natural ventilation.
Citizen Participation Centre/Junta IOccupation in Respect of Level IOccupation in Respect of Level IIOccupation in Respect of Level IIIOccupation in Respect of Level IVOccupation in Respect of IDA2
(Dimensionless)
Ground floor Customer service officeNo possibility of natural ventilation
Conference hallNo possibility of natural ventilation
First floorOffices (8)0.320.370.440.520.69
Coordinating office1.581.862.202.603.44
Meeting room INo possibility of natural ventilation
Meeting room IINo possibility of natural ventilation
Second floorOffices (8)0.530.620.740.871.15
F.A.M.P.A.2.643.103.674.345.74
Meeting room IIINo possibility of natural ventilation
Meeting room IVNo possibility of natural ventilation
Third floorTechnical office citizen participation1.061.241.471.742.30
Councillor’s office citizen participation1.061.241.471.742.30
Deputy mayor’s office2.643.103.674.345.74
Festivities coordinator1.061.241.471.742.30
Administration0.260.310.370.430.57
Meeting room VNo possibility of natural ventilation
Meeting room VINo possibility of natural ventilation
                              Federation of supporters clubs0.240.280.340.400.53
Table 10 shows that 70% of the locations with the possibility of natural ventilation in the Citizen Participation Centre/Junta I building allow for IDA2 air quality to be achieved.
Table 11. Occupancy with respect to the proposed design capacity based on the data provided by the Mostoles City Council for “Town Hall” with natural ventilation.
Table 11. Occupancy with respect to the proposed design capacity based on the data provided by the Mostoles City Council for “Town Hall” with natural ventilation.
Town HallOccupation in Respect of Level IOccupation in Respect of Level IIOccupation in Respect of Level IIIOccupation in Respect of Level IVOccupation in Respect of IDA2
(Dimensionless)
Ground floorGeneral registration0.680.800.951.121.49
Foyer/public0.100.110.130.160.21
Office space0.420.490.580.690.91
Security-emitter0.130.150.180.210.28
First floorOffice space0.280.330.400.470.62
Waiting roomNo possibility of natural ventilation
Second floorOffice space0.220.260.310.370.49
Third floorPlenary Hall0.120.140.170.200.26
Orderlies roomNo possibility of natural ventilation
Office space0.360.420.500.590.78
Fourth floorOffice space0.500.590.700.821.09
Table 11 shows that 22.2% of locations with natural ventilation potential in Town Hall building allow IDA2 air quality to be achieved.
Table 12. Occupancy with respect to the proposed design capacity based on the data provided by the Mostoles City Council for “Junta 4 West” with natural ventilation.
Table 12. Occupancy with respect to the proposed design capacity based on the data provided by the Mostoles City Council for “Junta 4 West” with natural ventilation.
Junta 4 WestOccupation in Respect of Level I Occupation in Respect of Level II Occupation in Respect of Level III Occupation in Respect of Level IV Occupation in Respect of IDA2
(Dimensionless)
Ground floorOffices0.320.370.440.520.69
Working room0.130.150.180.210.28
Citizen servicesNo possibility of natural ventilation
Table 12 shows that none of the locations with natural ventilation potential in the Junta 4 West building allow IDA2 air quality to be achieved.
Table 13. Occupancy with respect to the proposed design capacity based on the data provided by the Mostoles City Council for the “Almudena Grandes Central Library” with natural ventilation.
Table 13. Occupancy with respect to the proposed design capacity based on the data provided by the Mostoles City Council for the “Almudena Grandes Central Library” with natural ventilation.
Almudena Grandes Central LibraryOccupation in Respect of Level IOccupation in Respect of Level IIOccupation in Respect of Level IIIOccupation in Respect of Level IVOccupation in Respect of IDA2
(Dimensionless)
Ground floorReading roomNo possibility of natural ventilation
Office spaceNo possibility of natural ventilation
First floorYouth room0.090.110.130.160.21
Second floorAdult room0.090.110.130.150.20
Third floorStudy room0.090.110.130.150.20
Fourth floorAdministration2.092.452.903.434.54
Office 10.530.620.740.871.15
Office 20.260.310.370.430.57
Office 30.030.030.040.040.05
Table 13 shows that despite having cross ventilation in the adult room, study room, and youth room, which are designed to accommodate a very large number of occupants, it is not possible to maintain adequate air quality by opening the windows alone.
Table 14. Occupancy with respect to the proposed design capacity based on the data provided by the Mostoles City Council for the “Rodolfo Halffter Conservatory” with natural ventilation.
Table 14. Occupancy with respect to the proposed design capacity based on the data provided by the Mostoles City Council for the “Rodolfo Halffter Conservatory” with natural ventilation.
Rodolfo Halffter ConservatoryOccupation in Respect of Level IOccupation in Respect of Level IIOccupation in Respect of Level IIIOccupation in Respect of Level IVOccupation in Respect of IDA2
(Dimensionless)
Ground floorOfficesNo possibility of natural ventilation
ConciergerieNo possibility of natural ventilation
Teachers’ roomNo possibility of natural ventilation
Phonetic libraryNo possibility of natural ventilation
Computer roomNo possibility of natural ventilation
Cafeteria     
First floorClassroom 10.160.190.220.260.34
Classroom 2 
Classroom 30.270.320.380.450.59
Classroom 4No possibility of natural ventilation
Seminar I0.050.060.070.090.11
Classroom 6No possibility of natural ventilation
Classroom 7No possibility of natural ventilation
Classroom 8No possibility of natural ventilation
Classroom 9No possibility of natural ventilation
Seminar II0.110.120.150.170.23
Classroom 110.140.170.200.230.31
Classroom 120.180.210.250.300.39
Classroom 130.090.110.130.150.20
Cabin 6No possibility of natural ventilation
Cabin 7No possibility of natural ventilation
Cabin 8No possibility of natural ventilation
Cabin 9No possibility of natural ventilation
Cabin 10No possibility of natural ventilation
Second floor = Third floorClassroom 10.260.310.370.430.57
Classroom 20.000.000.000.000.00
Classroom 30.450.530.630.740.99
Classroom 4No possibility of natural ventilation
Seminar I0.090.100.120.140.19
Classroom 6No possibility of natural ventilation
Classroom 7No possibility of natural ventilation
Classroom 8No possibility of natural ventilation
Classroom 9No possibility of natural ventilation
Seminar II0.180.210.250.290.38
Classroom 110.240.280.330.390.51
Classroom 120.300.350.420.500.66
Classroom 130.150.180.210.250.33
Cabin 6No possibility of natural ventilation
Cabin 7No possibility of natural ventilation
Cabin 8No possibility of natural ventilation
Cabin 9No possibility of natural ventilation
Cabin 10No possibility of natural ventilation
Fourth floorPreparation room0.090.100.120.140.19
A.P.A.No possibility of natural ventilation
Camera room0.050.060.070.080.11
Theoretical classroomNo possibility of natural ventilation
Listening room0.040.050.060.070.09
Table 14 shows that it is not possible to maintain adequate air quality at the Rodolfo Halffter Conservatory with the available operable windows.
Table 15. Occupancy with respect to the proposed design capacity based on the data provided by the Mostoles City Council for the “Kaleidoscope Sociocultural Centre/El Soto/Villa de Mostoles” with natural ventilation.
Table 15. Occupancy with respect to the proposed design capacity based on the data provided by the Mostoles City Council for the “Kaleidoscope Sociocultural Centre/El Soto/Villa de Mostoles” with natural ventilation.
Kaleidoscope Sociocultural Centre/El Soto/Villa de MostolesOccupation in Respect of Level I Occupation in Respect of Level II Occupation in Respect of Level III Occupation in Respect of Level IV Occupation in Respect of IDA2
(Dimensionless)
Basement floorCraft workshop0.030.030.040.050.06
Painting workshop0.020.030.030.040.05
Ceramics workshop0.020.030.030.040.05
Ground floorPlayroom0.020.020.020.030.03
Library0.040.050.060.070.10
Cyber classroom0.010.010.020.020.02
OfficeNo possibility of natural ventilation
Management office0.320.370.440.520.69
Second floorClassroom I0.020.020.030.030.04
Classroom II0.020.020.030.030.04
Classroom IIINo possibility of natural ventilation
Classroom IVNo possibility of natural ventilation
Table 15 shows that the Kaleidoscope Sociocultural Centre/El Soto/Villa de Mostoles centres only have cross ventilation in the library, and their high occupancy levels prevent adequate air quality from being achieved with natural ventilation alone.
Table 16. Occupancy with respect to the proposed design capacity based on the data provided by the Mostoles City Council for the “Ramón Rubial Social Centre” with natural ventilation.
Table 16. Occupancy with respect to the proposed design capacity based on the data provided by the Mostoles City Council for the “Ramón Rubial Social Centre” with natural ventilation.
Ramón Rubial Social CentreOccupation in Respect of Level IOccupation in Respect of Level IIOccupation in Respect of Level IIIOccupation in Respect of Level IVOccupation in Respect of IDA2
(Dimensionless)
Ground floorRoom 20.160.190.220.260.34
Classroom 30.130.150.180.210.28
Office 10.160.190.220.260.34
Mental health office0.160.190.220.260.34
Classroom 10.210.240.290.340.45
Classroom 20.210.240.290.340.45
Rehabilitation room0.250.290.350.410.54
Parkinson’s officeNo possibility of natural ventilation
Afibrom officeNo possibility of natural ventilation
Office 5No possibility of natural ventilation
Afinsyfacro office0.160.190.220.260.34
Afanso officeNo possibility of natural ventilation
Occupational therapy roomNo possibility of natural ventilation
Reception0.060.070.090.100.14
GymNo possibility of natural ventilation
Table 16 shows that the Ramón Rubial Social Centre is located on the ground floor of a residential building, and although it has casement windows, these are small and do not allow for cross ventilation.
Table 17. Occupancy with respect to the proposed design capacity based on the data provided by the Mostoles City Council for the “Ribera Youth Space” with natural ventilation.
Table 17. Occupancy with respect to the proposed design capacity based on the data provided by the Mostoles City Council for the “Ribera Youth Space” with natural ventilation.
Ribera Youth SpaceOccupation in Respect of Level IOccupation in Respect of Level IIOccupation in Respect of Level IIIOccupation in Respect of Level IVOccupation in Respect of IDA2
(Dimensionless)
First floorRoom 10.020.020.030.030.04
Room 20.020.020.030.030.04
Information centre0.100.110.130.160.21
Office 10.160.190.220.260.34
Study room0.020.020.030.030.04
Cyber classroom0.010.010.020.020.02
Office 20.160.190.220.260.34
Training programme0.160.190.220.260.34
Tourism office0.110.120.150.170.23
Office 30.160.190.220.260.34
Office 40.320.370.440.520.69
Semi-basement floorRoom 1No possibility of natural ventilation
Room 2No possibility of natural ventilation
Office 4No possibility of natural ventilation
Office 5No possibility of natural ventilation
Table 17 shows that the first floor of Ribera Youth Space is located on the ground floor of a residential building and has casement windows, but these do not allow for cross ventilation.
Table 18. Occupancy with respect to the proposed design capacity based on the data provided by the Mostoles City Council for “General Services” with natural ventilation.
Table 18. Occupancy with respect to the proposed design capacity based on the data provided by the Mostoles City Council for “General Services” with natural ventilation.
General ServicesOccupation in Respect of Level IOccupation in Respect of Level IIOccupation in Respect of Level IIIOccupation in Respect of Level IVOccupation in Respect of IDA2
(Dimensionless)
Ground floorAdministration0.100.110.130.160.21
Coordinator’s office0.320.370.440.520.69
Secretary’s office0.320.370.440.520.69
Service manager’s office0.110.120.150.170.23
Councillor’s office0.110.120.150.170.23
Works CouncilNo possibility of natural ventilation
Head of Service’s officeNo possibility of natural ventilation
Technical officeNo possibility of natural ventilation
Office of the Infrastructure ManagerNo possibility of natural ventilation
Administration office and warehouseNo possibility of natural ventilation
OfficeNo possibility of natural ventilation
As shown in Table 18, the General Services building is a single-storey structure with casement windows. However, these windows permit cross ventilation exclusively within the administration area.
Of the 183 locations analysed, 53% have no possibility of natural ventilation. Of these, cross ventilation accounts for only 21.65%, representing the only viable option for providing sufficient airflow to exceed the proposed ventilation and occupancy limits. Indeed, 53.38% of locations with the potential for cross ventilation can accommodate the maximum occupancy for which they were designed, with an air quality of IDA2. A total of 57.14% of the locations analysed were found to be capable of achieving three air changes per hour, while 28.57% were even able to reach five air changes per hour.
It can be observed that only 6.58% of locations where windows are situated on the same wall permit the established capacities to be reached. In all cases, the offices in question have a relatively low capacity and are located on higher floors.
Of all enclosures with operable windows, only 7.21% would not require a reduction in capacity to achieve the requisite air quality for Safety Levels I, II, and III, while 8.24% would require such a reduction for Level IV. Additionally, 11% of enclosures meet the IDA occupancy standards [40,47] (Figure 5).

5. Discussion

The scientific literature has highlighted the importance of natural ventilation as a potentially useful strategy for reducing airborne disease transmission in the case of COVID-19. The first accepted model suggests the need for five air changes per hour in enclosures to control transmission [44,45], while more recent studies have reduced this to three air changes per hour. Research shows that this ventilation is only feasible in environments with a capacity comparable to offices, where the occupancy density is (1 p/10 m2) [72]. In more densely occupied places, such as a library (1 p/2 m2) [72], it is still necessary to achieve five air changes per hour to achieve IDA2 air quality [47]. On the other hand, natural ventilation has been shown to be a key ally in reducing the transmission of diseases caused by both viruses and the concentrations of harmful chemical compounds in indoor environments.
The study shows the available capacity in the municipal buildings of Mostoles and demonstrates that only cross ventilation can achieve the desired air quality standards.
The results of the study were obtained on the basis of restrictive air velocities standardised in the regulation for the calculation of explosive atmospheres, so that the environmental conditions, although variable, will, in most cases, allow higher indoor airflow rates.
Similarly, this study has provided the basis for modelling natural ventilation in buildings and parameterising it using carbon dioxide (CO2) concentration as a reference.
Finally, it should be noted that the model presented allows the capacity to be adapted according to availability, especially in places where only natural ventilation is available, and even to be linked to automatic openings.

6. Conclusions

This study demonstrates the effectiveness of natural ventilation as a fundamental mechanism for improving air quality in public buildings, showing that cross ventilation is the only way to achieve recommended air quality standards [44,47], especially in high occupancy environments. This is critical in high-capacity spaces, where the risk of transmission of respiratory diseases is high and five air changes per hour are required to maintain IDA2 air quality [44,45].
To this end, a methodology is presented that allows the design of more sustainable buildings, incorporating the possibility of establishing natural ventilation as the main mechanism for obtaining the desired indoor air quality, by providing an openable surface in the building’s windows, depending on the expected occupancy.
It was also observed that the model developed to estimate natural ventilation and airflow distribution using carbon dioxide (CO2) concentration parameters is effective in adjusting capacity according to ventilation conditions. This methodology allows dynamic adaptation according to occupancy and can be implemented by automatic opening systems, contributing to energy efficiency and indoor health.
Finally, the study emphasises the need to combine natural ventilation with forced ventilation systems in spaces where forced ventilation is limited or nonexistent, as 53% of the sites assessed have no viable cross ventilation. This reinforces the importance of architectural design that optimises both natural and mechanical ventilation to meet air quality requirements according to building use and occupancy.

Author Contributions

J.M.B.-Á.: conceptualization, writing—original draft, data curation, methodology, and software. Á.R.-B.: writing—original draft preparation, investigation, writing—review and editing, and project administration. Á.R.-S.: visualization, supervision, data curation, validation, and resources. B.M.V.-E.: visualization, supervision, methodology, formal analysis, and resources. All authors have read and agreed to the published version of the manuscript.

Funding

This research received no external funding.

Institutional Review Board Statement

Not applicable.

Informed Consent Statement

Not applicable.

Data Availability Statement

The original contributions presented in the study are included in the article; further inquiries can be directed to the corresponding author.

Acknowledgments

The authors gratefully acknowledge the support of the Mostoles City Council (Community of Madrid, Spain) for supplying the data used in this study under the agreed terms, without which this research could not have been possible.

Conflicts of Interest

The authors declare no conflicts of interest.

Abbreviations

The following abbreviations are used in this manuscript:
IDA2Indoor air quality category according to the use of buildings corresponding to good air quality: office buildings, residences (common areas of hotels and similar buildings, old people’s and students’ homes), reading rooms, museums, courtrooms, classrooms and similar buildings, swimming pools. 
WHOWorld Health Organisation 
ASHRAEAmerican Society of Heating, Refrigerating and Air-Conditioning Engineers
AIDAAir Infiltration Development Algorithm

References

  1. Jerrett, M. Air pollution as a risk for death from infectious respiratory disease. Am. J. Respir. Crit. Care Med. 2022, 205, 1374–1375. [Google Scholar] [CrossRef] [PubMed]
  2. Hobeika, N.; García-Sánchez, C.; Bluyssen, P.M. Assessing Indoor Air Quality and Ventilation to Limit Aerosol Dispersion—Literature Review. Buildings 2023, 13, 742. [Google Scholar] [CrossRef]
  3. Fukawa, Y.; Ohba, M.; Akamatsu, N.; Onoda, R.; Ikeuchi, K.; Minami, K.; Takahashi, N.; Watanabe, F.; Iida, T.; Kaneko, Y.; et al. Influence analysis of environmental factors on the subjective well-being of office workers in Japan: A structural equation modelling approach. Build. Environ. 2024, 262, 111827. [Google Scholar] [CrossRef]
  4. Rodríguez, M.; Seseña, S.; Valiente, N.; Palop, M.L.; Rodríguez, A. Indoor air quality in elder. Build. Environ. 2024, 262, 111832. [Google Scholar] [CrossRef]
  5. Parhizkar, H.; Taddei, P.; Weziak-Bialowolska, D.; McNeely, E.; Spengler, J.D.; Cedeño Laurent, J.G. Objective indoor air quality parameters and their association to respiratory health and well-being among office workers. Build. Environ. 2023, 246, 110984. [Google Scholar] [CrossRef]
  6. Takigawa, T.; Saijo, Y.; Morimoto, K.; Nakayama, K.; Shibata, E.; Tanaka, M.; Yoshimura, T.; Chikara, H.; Kishi, R. A longitudinal study of aldehydes and volatile organic compounds associated with subjective symptoms related to sick building syndrome in new dwellings in Japan. Sci. Total Environ. 2012, 417–418, 61–67. [Google Scholar] [CrossRef]
  7. Takigawa, T.; Wang, B.-L.; Sakano, N.; Wang, D.-H.; Ogino, K.; Kishi, R. A longitudinal study of environmental risk factors for subjective symptoms associated with sick building syndrome in new dwellings. Sci. Total Environ. 2009, 407, 5223–5228. [Google Scholar] [CrossRef]
  8. Weschler, C.J. Chemistry in indoor environments: 20 years of research. Indoor Air 2011, 21, 205–218. [Google Scholar] [CrossRef]
  9. Morrison, G. Recent Advances in Indoor Chemistry. Built Environ. 2015, 2, 33–40. [Google Scholar] [CrossRef][Green Version]
  10. Pei, J.; Yin, Y.; Liu, J.; Dai, X. An eight-city study of volatile organic compounds in Chinese residences: Compounds, concentrations, and characteristics. Sci. Total Environ. 2020, 698, 134137. [Google Scholar] [CrossRef]
  11. Dimitroulopoulou, S.; Dudzinska, M.R.; Gunnarsen, L.; Hägerhed, L.; Maula, H.; Singh, R.; Toyinbo, O.; Haverinen-Shaughnessy, U. Indoor air quality guidelines from across the world: An appraisal considering energy saving, health, productivity, and comfort. Environ. Int. 2023, 178, 108127. [Google Scholar] [CrossRef]
  12. Kotzias, D. Exposure to volatile organic compounds in indoor/outdoor environments and methodological approaches for exposure estimates: The European paradigm. J. Hazard. Mater. Adv. 2022, 8, 100197. [Google Scholar] [CrossRef]
  13. Mai, J.-L.; Yang, W.-W.; Zeng, Y.; Guan, Y.-F.; Chen, S.-J. Volatile organic compounds (VOCs) in residential indoor air during interior finish period: Sources, variations, and health risks. Hyg. Environ. Health Adv. 2024, 9, 100087. [Google Scholar] [CrossRef]
  14. Heiselberg, P. Natural Ventilation Design. Int. J. Vent. 2004, 2, 295–312. [Google Scholar] [CrossRef]
  15. Zuraimi, M.S.; Pantazaras, A.; Chaturvedi, K.A.; Yang, J.J.; Tham, K.W.; Lee, S.E. Predicting occupancy counts using physical and statistical CO2-based modelling methodologies. Build. Environ. 2017, 123, 517–528. [Google Scholar] [CrossRef]
  16. Wolf, S.; Calì, D.; Krogstie, J.; Madsen, H. Carbon dioxide-based occupancy estimation using stochastic differential equations. Appl. Energy 2019, 236, 32–41. [Google Scholar] [CrossRef]
  17. Xie, Z.; Zhu, Y.; Cao, B. Multi-fanning based simulated natural wind environment and its comfort performance under warm-to-hot conditions. Build. Environ. 2024, 262, 111792. [Google Scholar] [CrossRef]
  18. Karumuna, B.V.; Hao, L. CO2 Concentration Assessment for Infection Monitoring and Occupancy Analysis in Tanzanian COVID-19 Isolation Centers. Buildings 2024, 14, 2139. [Google Scholar] [CrossRef]
  19. Yang, X.; Zhang, J.; Cheng, Y.; Weng, X.; Yin, R.; Guo, L.; Cheng, Z. A Method to Optimize Dormitory Environments Based on Personnel Behavior Regulation. Buildings 2024, 14, 2111. [Google Scholar] [CrossRef]
  20. Jeong, B.; Jeong, J.-W.; Park, J.S. Occupant behavior regarding the manual control of windows in residential buildings. Energy Build. 2016, 127, 206–216. [Google Scholar] [CrossRef]
  21. Fabi, V.; Andersen, R.K.; Corgnati, S. Verification of stochastic behavioural models of occupants’ interactions with windows in residential buildings. Build. Environ. 2015, 94, 371–383. [Google Scholar] [CrossRef]
  22. Huang, K.; Feng, G.; Li, H.; Yu, S. Opening window issue of residential buildings in winter in north China: A case study in Shenyang. Energy Build. 2014, 84, 567–574. [Google Scholar] [CrossRef]
  23. Calì, D.; Andersen, R.K.; Müller, D.; Olesen, B.W. Analysis of occupants behavior related to the use of windows in German households. Build. Environ. 2016, 103, 54–69. [Google Scholar] [CrossRef]
  24. Markovic, R.; Grintal, E.; Wölki, D.; Frisch, J.; van Treeck, C. Window opening model using deep learning methods. Build. Environ. 2018, 145, 319–329. [Google Scholar] [CrossRef]
  25. Elkabalawy, M.; Al-Sakkaf, A.; Abdelkader, E.M.; Alfalah, G. CRISP-DM-Based Data-Driven Approach for Building Energy Prediction Utilizing Indoor and Environmental Factors. Sustainability 2024, 16, 7249. [Google Scholar] [CrossRef]
  26. Xiang, H.; Li, J. Impact of Night Ventilation on Indoor Thermal Environment of Residential Buildings under the Dual Carbon Target: A Case Study of Xi’an. Buildings 2024, 14, 2459. [Google Scholar] [CrossRef]
  27. Pei, J.; Yin, Y.; Liu, J.; Dai, X. Long-term indoor gas pollutant monitor of new dormitories with natural ventilation. Energy Build. 2016, 129, 514–523. [Google Scholar] [CrossRef]
  28. Hernández-Cruz, P.; Erkoreka-González, A.; Giraldo-Soto, C.; Mora, L.; Eguía-Oller, P. Measurement uncertainty and behaviour analysis of indoor air quality variables of thermal zones of an in-use mechanically ventilated building. Build. Environ. 2024, 262, 111366. [Google Scholar] [CrossRef]
  29. Jiang, Z.; Kobayashi, T.; Yamanaka, T.; Sandberg, M.; Yamasawa, H.; Shohei, M. The similitude of indoor airflow in natural ventilation for a reduced-scale model: Investigation of nonisothermal flow fields by RANS simulation. Build. Environ. 2024, 262, 111842. [Google Scholar] [CrossRef]
  30. Ohba, M.; Lun, I. Overview of natural crossventilation studies and the latest simulation design tools used in building ventilation-related research. Adv. Build. Energy Res. 2010, 4, 127–166. [Google Scholar] [CrossRef]
  31. Aldawoud, A. Windows design for maximum cross-ventilation in buildings. Adv. Build. Energy Res. 2017, 11, 67–86. [Google Scholar] [CrossRef]
  32. Sandberg, M. An Alternative View on the Theory of Cross-Ventilation. Int. J. Vent. 2004, 2, 409–418. [Google Scholar] [CrossRef]
  33. Zhai, Z.J.; Johnson, M.H.; Mankibi, M.E.; Stathopoulos, N. Review of natural ventilation models. Int. J. Vent. 2016, 15, 186–204. [Google Scholar] [CrossRef]
  34. Felgueiras, F.; Mourão, Z.; Moreira, A.; Gabriel, M.F. Indoor environmental quality in offices and risk of health and productivity complaints at work: A literature review. J. Hazard. Mater. Adv. 2023, 10, 100314. [Google Scholar] [CrossRef]
  35. Zhang, X.; Du, J.; Chow, D. Association between perceived indoor environmental characteristics and occupants’ mental wellbeing, cognitive performance, productivity, satisfaction in workplaces: A systematic review. Build. Environ. 2023, 246, 110985. [Google Scholar] [CrossRef]
  36. Nyembwe, J.-P.K.B.; Munanga, J.K.; Simões, N.; da Silva, M.G. Ventilation Strategies to Mitigate Air Pollution Impact on Hospital Professionals in Intensive Care Units in the Democratic Republic of Congo. Buildings 2024, 14, 1996. [Google Scholar] [CrossRef]
  37. Zhang, D.; Ortiz, M.A.; Bluyssen, P.M. A review on indoor environmental quality in sports facilities: Indoor air quality and ventilation during a pandemic. Indoor Built Environ. 2022, 32, 831–851. [Google Scholar] [CrossRef]
  38. Galičič, A.; Rožanec, J.; Kukec, A.; Medved, S.; Eržen, I. Assessment of Perceived Indoor Air Quality in the Classrooms of Slovenian Primary Schools and Its Association with Indoor Air Quality Factors, for the Design of Public Health Interventions. Atmosphere 2024, 15, 995. [Google Scholar] [CrossRef]
  39. Li, M.; Bekö, G.; Zannoni, N.; Pugliese, G.; Carrito, M.; Cera, N.; Moura, C.; Wargocki, P.; Vasconcelos, P.; Nobre, P.; et al. Human metabolic emissions of carbon dioxide and methane and their implications for carbon emissions. Sci. Total Environ. 2022, 833, 155241. [Google Scholar] [CrossRef]
  40. Ballesteros-Álvarez, J.M.; Romero-Barriuso, A.; Villena-Escribano, B.M.; Rodríguez-Sáiz, A.; González-Gaya, C. Investigating the effectiveness of a new indoor ventilation model in reducing the spread of disease: A case of sports centres amid the COVID-19 pandemic. Heliyon 2024, 10, e27877. [Google Scholar] [CrossRef]
  41. ANSI/ASHRAE Standard 62.1-2022; Ventilation and Acceptable Indoor Air Quality. ANSI/ASHRAE: Atlanta, GA, USA, 2022. Available online: https://webstore.ansi.org/standards/ashrae/ANSIASHRAE622022 (accessed on 18 June 2025).
  42. EN 16798-3:2018; Energy Performance of Buildings—Ventilation for Buildings—Part 3: For Non-Residential Buildings—Performance Requirements for Ventilation and Room-Conditioning Systems (Modules M5-1 2018, M5-4). European Committee for Standardization: Brussels, Belgium, 2018. Available online: https://www.une.org/encuentra-tu-norma/busca-tu-norma/norma?c=N0061179 (accessed on 18 June 2025).
  43. Gobierno de España. Real Decreto 486/1997, de 14 de Abril, Por el Que se Establecen las Disposiciones Mínimas de Seguridad y Salud en los Lugares de Trabajo; BOE: Madrid, Spain, 1997. Available online: https://www.boe.es/eli/es/rd/1997/04/14/486/con (accessed on 18 June 2025).
  44. Allen, J.; Spengler, J.; Jones, E.; Cedeno-Laurent, J. How School Buildings Influence Student Health, Thinking and Performance; Harvard T.H. Chan Healthy Buildings Program: Boston, MA, USA, 2020; Available online: https://schools.forhealth.org/ (accessed on 18 June 2025).
  45. Consejo Superior de Investigaciones Científicas (CSIC). Guía Para la Ventilación en Aulas; IDAEA-CSIC Ministerio de Ciencia e Innovación: Madrid, Spain, 2020. Available online: https://www.csic.es/sites/default/files/guia_para_ventilacion_en_aulas_csic-mesura.pdf (accessed on 18 June 2025).
  46. Grupo de Trabajo de Ventilación en Centros Educativos. Recomendaciones de Ventilación para Centros Educativos; AFEC: Dublin, Irelan, 2021; Available online: https://www.afec.es/documentos/recomendaciones-centros-educativos-junio-2021.pdf (accessed on 18 June 2025).
  47. Gobierno de España. Real Decreto 1027/2007, de 20 de Julio, por el que se Aprueba el Reglamento de Instalaciones Térmicas en los Edificios; BOE: Madrid, Spain, 2007. Available online: https://www.boe.es/eli/es/rd/2007/07/20/1027/con (accessed on 18 June 2025).
  48. Malki-Epshtein, L.; Adzic, F.; Roberts, B.M.; Hathway, E.A.; Iddon, C.; Mustafa, M.; Cook, M. Measurement and rapid assessment of indoor air quality at mass gathering events to assess ventilation performance and reduce aerosol transmission of SARS-CoV-2. Build. Serv. Eng. Res. Technol. 2023, 44, 113–133. [Google Scholar] [CrossRef]
  49. Agencia Estatal de Meteorología (AEMET). Datos Climatológicos; AEMET: Madrid, Spain, 2025. Available online: https://www.aemet.es/es/serviciosclimaticos/datosclimatologicos (accessed on 18 June 2025).
  50. Marques, G.; Ferreira, C.R.; Pitarma, R. Indoor air quality assessment using a CO2 monitoring system based on internet of things. J. Med. Syst. 2019, 43, 67. [Google Scholar] [CrossRef] [PubMed]
  51. Hattori, S.; Iwamatsu, T.; Miura, T.; Tsutsumi, F.; Tanaka, N. Investigation of indoor air quality in residential buildings by measuring CO2 concentration and a questionnaire survey. Sensors 2022, 22, 7331. [Google Scholar] [CrossRef] [PubMed]
  52. Persily, A.K.; de Jonge, L. Carbon dioxide generation rates of building occupants. Indoor Air 2017, 27, 868–879. [Google Scholar] [CrossRef]
  53. UNE-EN 8996:21; Ergonomics of the Thermal Environment—Determination of Metabolic Rate (ISO 8996:2021). European Committee for Standardization: Brussels, Belgium, 2021. Available online: https://www.une.org/encuentra-tu-norma/busca-tu-norma/norma?c=N0068063 (accessed on 18 June 2025).
  54. Megahed, N.A.; Ghoneim, E.M. Indoor Air Quality: Rethinking rules of building design strategies in post-pandemic architecture. Environ. Res. 2021, 193, 110471. [Google Scholar] [CrossRef]
  55. Instituto para la Diversificación y Ahorro de la Energía (IDAE). Guía Técnica de Instalaciones de Climatización con Equipos Autónomos: Calificación de Eficiencia Energética de Edificios; IDEA: Madrid, Spain, 2012; Available online: https://www.idae.es/publicaciones/guia-tecnica-instalaciones-de-climatizacion-con-equipos-autonomos (accessed on 18 June 2025).
  56. Asfour, O.S.M. Ventilation Characteristics of Buildings Incorporating Different Configurations of Curved Roofs and Wind Catchers. Ph.D. Thesis, University of Nottingham, Nottingham, UK, 2006. Available online: https://eprints.nottingham.ac.uk/56210/1/PHD_Omar%20Asfour.pdf (accessed on 18 June 2025).
  57. Moore, F. Environmental Control Systems: Heating, Cooling, Lighting; McGraw-Hill: Columbus, OH, USA, 1993. [Google Scholar]
  58. Chartered Institution of Building Services Engineers (CIBSE). Energy Efficiency in Buildings; CIBSE: London, UK, 1998. [Google Scholar]
  59. EN IEC 60079-10-1:2022; Explosive Atmospheres—Part 10-1: Classification of Areas—Explosive Gas Atmospheres. European Committee for Standardization: Brussels, Belgium, 2022. Available online: https://www.une.org/encuentra-tu-norma/busca-tu-norma/norma?c=N0068089 (accessed on 18 June 2025).
  60. Walker, I.S.; Wilson, D.J. Evaluating models for superposition of wind and stack effect in air infiltration. Build. Environ. 1993, 28, 201–210. [Google Scholar] [CrossRef]
  61. Sherman, M.H.; Grimsrud, D.T. Infiltration-pressurization correlation: Simplified physical modeling. ASHRAE Trans. 1980, 86, 778–807. [Google Scholar]
  62. Kittas, C.; Boulard, T.; Papadakis, G. Natural ventilation of a greenhouse with ridge and side openings: Sensitivity to temperature and wind effects. Trans. ASAE 1997, 40, 415–425. [Google Scholar] [CrossRef]
  63. BS 5925:1991; Code of Practice for Ventilation Principles and Designing for Natural Ventilation. British Standards Institution BSI: London, UK, 1991.
  64. Warren, P.R.; Webb, B.C. The relationship between tracer gas and pressurisation techniques in dwellings. In Proceedings of the 1st AIC Conference on Air Infiltration Instrumentation and Measuring Techniques, Windsor, UK, 6–8 October 1980. [Google Scholar]
  65. Liddament, M. AIDA—An air infiltration development algorithm. Air Infiltration Rev. 1989, 11, 10–12. [Google Scholar]
  66. Liddament, M.W. Guide to Energy Efficient Ventilation; AIVC: Incheon, Republic of Korea, 1996. [Google Scholar]
  67. Ritos, J.K.; Drikakis, D.; Kokkinakis, I.W. The effects of ventilation conditions on mitigating airborne virus transmission. Phys. Fluids 2024, 36, 013322. [Google Scholar] [CrossRef]
  68. Boulard, T.; Baille, A. Modelling of Air Exchange Rate in a Greenhouse Equipped with Continuous Roof Vents. J. Agric. Eng. Res. 1995, 61, 27–36. [Google Scholar] [CrossRef]
  69. Roy, J.C.; Boulard, T.; Kittas, C.; Wang, S. Convective and ventilation transfer in greenhouses, Part 1: The greenhouse considered as a perfectly stirred tank. Biosyst. Eng. 2002, 83, 1–20. [Google Scholar] [CrossRef]
  70. EN 60079-10; Electrical Apparatus for Explosive Gas Atmospheres. Classification of Hazardous Areas. European Committee for Standardization: Brussels, Belgium, 2006. Available online: https://www.une.org/encuentra-tu-norma/busca-tu-norma/norma?c=N0036701 (accessed on 18 June 2025).
  71. Boulard, T.; Draoui, B. Natural ventilation of a greenhouse with continuous vents: Measurements and data analysis. J. Agric. Eng. Res. 1995, 61, 27–35. [Google Scholar] [CrossRef]
  72. Boulard, T.; Meneses, J.F.; Mermier, M.; Papadakis, G. The mechanisms involved in the natural ventilation of greenhouses. Agric. For. Meteorol. 1996, 79, 61–77. [Google Scholar] [CrossRef]
Figure 1. Mostoles Town Hall, Spain.
Figure 1. Mostoles Town Hall, Spain.
Eng 06 00197 g001
Figure 2. Rodolfo Halffter Conservatory of the city of Mostoles, Spain.
Figure 2. Rodolfo Halffter Conservatory of the city of Mostoles, Spain.
Eng 06 00197 g002
Figure 3. Ground floor plan of the General Services building.
Figure 3. Ground floor plan of the General Services building.
Eng 06 00197 g003
Figure 4. Flowchart process diagram.
Figure 4. Flowchart process diagram.
Eng 06 00197 g004
Figure 5. Proportion of evaluated spaces by the Mostoles City Council meeting or not meeting minimum ventilation standards.
Figure 5. Proportion of evaluated spaces by the Mostoles City Council meeting or not meeting minimum ventilation standards.
Eng 06 00197 g005
Table 1. The following is a compilation of climate data for the city of Mostoles for the year 2023. Source: [49].
Table 1. The following is a compilation of climate data for the city of Mostoles for the year 2023. Source: [49].
Average ValuesJan.Feb.Mar.Apr.May.Jun.Jul.Aug.Sep.Oct.Nov.Dec.
Temperature (°C)56101216222525201495
Wind speed (m/s)3.43.73.73.83.73.43.33.33.23.23.43.4
Table 2. Ventilation flow rate required for light activities. Source: [42,46].
Table 2. Ventilation flow rate required for light activities. Source: [42,46].
Qrequired Level I
(L/s·Person)
Qrequired Level II
(L/s·Person)
Qrequired Level III
(L/s·Person)
Qrequired Level IV
(L/s·Person)
27.6523.5619.8816.83
Table 3. Terrain factors for equation. Source: [56,58].
Table 3. Terrain factors for equation. Source: [56,58].
Terrainca
Open flat country0.680.17
Country with scattered wind breaks0.520.20
Urban0.350.25
City0.210.33
Table 4. Standardised air velocities. Source: [59].
Table 4. Standardised air velocities. Source: [59].
Outdoor Ventilation Speed (m/s)
<2 m2–5 m>5 m
0.30.61
Table 5. Effective ventilation area.
Table 5. Effective ventilation area.
Conformation of OpeningsA1
(m2)
A2
(m2)
Ae
(m2)
All windows open both sashes1.442.321.73
All windows open to a single sash0.721.160.86
All windows open single sash except the casement (tilt and turn position)1.441.321.37
One open window, both sashes, on each wall0.721.60.93
One open window, one sash, on each wall0.360.80.46
Table 6. Volumetric airflow rate in the Plenary Hall.
Table 6. Volumetric airflow rate in the Plenary Hall.
Conformation of OpeningsQaw (m3/s)
All windows open both sashes0.251
All windows open to a single sash0.125
All windows open single sash except the casement (tilt and turn position)0.200
One open window, both sashes, on each wall0.135
One open window, one sash, on each wall0.067
Table 7. Average theoretical wind speed inside the Plenary Hall.
Table 7. Average theoretical wind speed inside the Plenary Hall.
Conformation of Openingsuw (m/s)
All windows open both sashes0.014
All windows open to a single sash0.007
All windows open single sash except the casement (tilt and turn position)0.011
One open window, both sashes, on each wall0.007
One open window, one sash, on each wall0.004
Table 8. Occupation of the Plenary Hall.
Table 8. Occupation of the Plenary Hall.
Conformation of OpeningsIDA2
(Persons)
Safety Level I
(Persons)
Safety Level II
(Persons)
Safety Level III
(Persons)
Safety Level IV
(Persons)
All windows open both sashes209101315
All windows open to a single sash104567
All windows open single sash except the casement (tilt and turn position)16781012
One open window, both sashes, on each wall115678
One open window, one sash, on each wall52334
Table 9. Plenary Hall air renewals.
Table 9. Plenary Hall air renewals.
Conformation of OpeningsC (h−1)
All windows open both sashes2.74
All windows open to a single sash1.36
All windows open single sash except the casement (tilt and turn position)2.18
One open window, both sashes, on each wall1.57
One open window, one sash, on each wall0.73
Disclaimer/Publisher’s Note: The statements, opinions and data contained in all publications are solely those of the individual author(s) and contributor(s) and not of MDPI and/or the editor(s). MDPI and/or the editor(s) disclaim responsibility for any injury to people or property resulting from any ideas, methods, instructions or products referred to in the content.

Share and Cite

MDPI and ACS Style

Ballesteros-Álvarez, J.M.; Romero-Barriuso, Á.; Rodríguez-Sáiz, Á.; Villena-Escribano, B.M. Natural Ventilation Strategies to Prevent Airborne Disease Transmission in Public Buildings. Eng 2025, 6, 197. https://doi.org/10.3390/eng6080197

AMA Style

Ballesteros-Álvarez JM, Romero-Barriuso Á, Rodríguez-Sáiz Á, Villena-Escribano BM. Natural Ventilation Strategies to Prevent Airborne Disease Transmission in Public Buildings. Eng. 2025; 6(8):197. https://doi.org/10.3390/eng6080197

Chicago/Turabian Style

Ballesteros-Álvarez, Jesús M., Álvaro Romero-Barriuso, Ángel Rodríguez-Sáiz, and Blasa María Villena-Escribano. 2025. "Natural Ventilation Strategies to Prevent Airborne Disease Transmission in Public Buildings" Eng 6, no. 8: 197. https://doi.org/10.3390/eng6080197

APA Style

Ballesteros-Álvarez, J. M., Romero-Barriuso, Á., Rodríguez-Sáiz, Á., & Villena-Escribano, B. M. (2025). Natural Ventilation Strategies to Prevent Airborne Disease Transmission in Public Buildings. Eng, 6(8), 197. https://doi.org/10.3390/eng6080197

Article Metrics

Back to TopTop