Static Analysis Method and Structural Optimization of Box-Type Subgrade for High-Speed Railways
Abstract
1. Introduction
2. Computational Analysis of Box-Type Subgrade Structures
2.1. Loading Conditions
2.2. Model Assumptions and Simplification Basis
- (1)
- Structural continuity assumption: It is assumed that the box-type subgrade has strict continuity and uniformity along the longitudinal direction, and the internal force distribution of any cross-section can represent the overall structural response.
- (2)
- Load dominance assumption: Only the fully loaded train condition is considered (equivalent linear load q = 5644.79 N/m), and loads from ballast layer appendages (accounting for <8%) are neglected.
- (3)
- Material Constitutive Simplification: Concrete is modeled as a linear elastic material.
- (4)
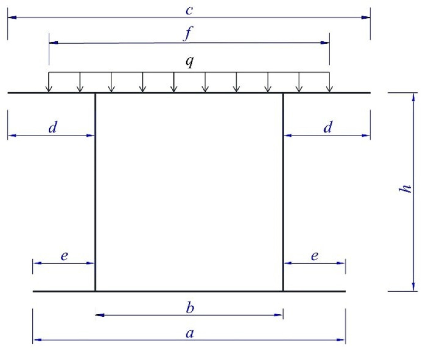
- Parametric Generalization: All geometric parameters (like web spacing b and height h) and load parameters (q) are expressed symbolically. Their physical interpretations are shown in Table 1, ensuring the model is applicable to different design scenarios.
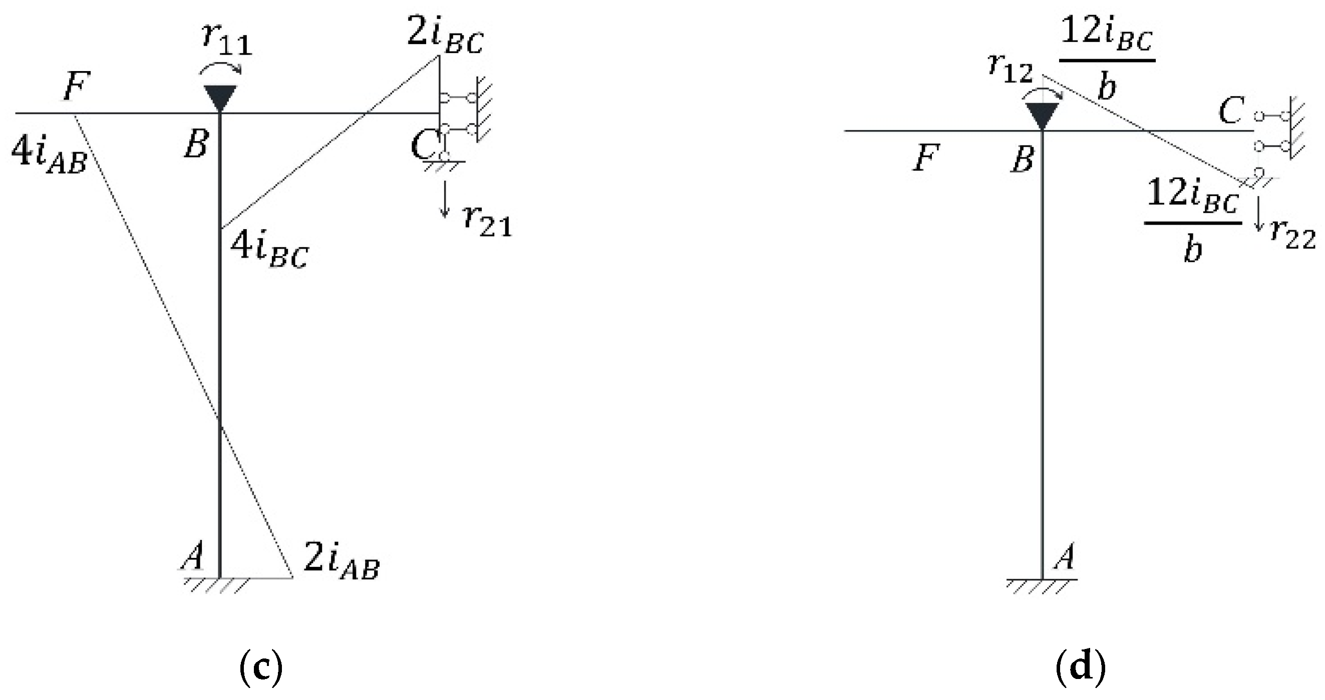
2.3. Mechanical Model for Box-Type Subgrade Structure
2.4. Structural Bending Moment Calculation and Diagram
2.5. Structural Shear Force Calculation and Diagram
2.6. Structural Deformation Analysis and Maximum Deflection of the Top Slab
3. Engineering Case Analysis
3.1. Structural Parameters of the Box-Type Subgrade
3.1.1. Geometric Parameters
3.1.2. Section Moment of Inertia
3.1.3. Static Load Parameters
3.2. Calculation Results
4. Two-Dimensional Numerical Simulation of Structure and Result Comparison
4.1. Finite Element (FE) Model Establishment
4.1.1. Material Model Selection
4.1.2. Determination of Numerical Simulation Parameters
- (1)
- Model dimensionTo enable a rigorous comparison with the theoretical calculation results, the cross-sectional simplification of the FE model follows the box-type subgrade structural parameters given in Section 2.1, with the thickness set to a unit value of 0.1 m, consistent with the theoretical calculation.
- (2)
- Cross-sectional dimensionFor the moment of inertia of members in the simplified two-dimensional box-type subgrade structure, the dimensions are determined based on the actual engineering configuration. The web members on the left and right sides are modeled as rectangular sections with a width of 0.1 m and a height of 0.65 m, while the top slab members are modeled as rectangular sections with a width of 0.1 m and a height of 0.5 m.
- (3)
- Load componentsFor the upper line load of the numerical simulation, the value q is taken as 5644.79 N/m according to the calculation in Section 3.1, and the direction is vertically downward.
4.2. Comparative Analysis of Numerical Simulation Results
4.2.1. Two-Dimensional Simplified FE Model of Box-Type Subgrade Structure
4.2.2. Calculation and Analysis of the Simplified Two-Dimensional Model
- (1)
- Bending Moment Analysis
- (2)
- Shear Force Analysis
- (3)
- Maximum Deformation Analysis
5. Parametric Analysis and Structural Selection
5.1. Web Spacing
5.2. Web Height
5.3. Proposed Structural Selection Scheme
6. Conclusions
- (1)
- A symbolic modeling-based static analysis framework for a box-type subgrade structure was constructed. By simplifying the structure into a planar frame model and selecting key parameters such as web spacing (b), web height (h), and load (q) as symbolic variables, a universal symbolic solution system was established. Based on the structural symmetry, the displacement method was applied to the simplified half-structure to analyze bending moments, shear forces, and deformations resulting in symbolic expressions. The analysis shows that the actual internal forces under train loads exhibit clear regularity and consistency. This study focuses on the static response and parameter optimization of the box-type subgrade structure. Subsequent work will incorporate dynamic response analysis to further validate the long-term service performance of the optimized structure.
- (2)
- Actual engineering verification and mechanical performance evaluation: Engineering verification based on the demonstration section of the newly constructed Quzhou–Lishui railway box-type subgrade shows that the maximum bending moment of the structure under train load in this section is approximately 14,818 kN·m, the maximum shear force is about 16,934 kN, and the deflection at the mid-span of the top slab is 7.5 × 10−2 mm. These analysis results provide a crucial theoretical basis for the design optimization and safety evaluation of the box-type subgrade structure.
- (3)
- Verification of Theory-Simulation Consistency: A two-dimensional Abaqus FE model verified the analytical framework. The comparison shows a bending moment error of 1.75% at the midpoint of the top slab (10,400 vs. 10,582 kN·m), a peak shear force error of 0.67% (16,822 vs. 16,934 kN), and a deformation error of less than 0.5% (7.497 × 10−5 m vs. 7.5 × 10−5 m). These results confirm the reliability of the symbolic modeling method in practical engineering applications. The simulation model strictly adopts the theoretical calculation parameters from the engineering case (web clear spacing 6 m, top slab length 11.6 m, etc.), with boundary conditions and loading consistent with the theoretical model, ensuring that the validation outcomes provide valuable guidance for engineering practice.
- (4)
- Structural Parametric Analysis and Structural Verification: Parametric sensitivity analysis indicates that the web spacing has a pronounced effect on the bending moment distribution. A web spacing of 4.5–5 m and a height of 5–8 m is recommended to satisfy the span-to-thickness ratio specified in the code. After optimization (spacing reduced from 6 m to 5 m, height from 7 m to 6.5 m), the mid-span bending moment of the top slab decreased from 10,628 kN·m to 5603 kN·m (a reduction of 89.7%), while concrete consumption decreased by 2.61% (from 24,900 to 24,250 m3/km), and the overall construction cost was saved by approximately 5%. The symbolic modeling system used in this study has generalizability, and the results provide a reference benchmark for projects with similar geological conditions and load levels, enabling rapid adaptation in practical design through symbolic parameter adjustment. Furthermore, the potential influence of top slab thickness on the structural response under accidental loads deserves attention and may be investigated in future studies as an auxiliary parameter.
Author Contributions
Funding
Institutional Review Board Statement
Informed Consent Statement
Data Availability Statement
Conflicts of Interest
References
- Yan, X.; Xu, G. Analysis of static effects of subgrade structure performance unevenness on ballastless track. J. China Railw. Soc. 2016, 38, 98–102. [Google Scholar]
- Cui, X.; Yang, H.; Du, B.; Guo, G.; Zhang, B. Analysis of the impact of subgrade uneven settlement on damage and deformation of CRTSII slab ballastless track. J. China Railw. Soc. 2021, 43, 91–97. [Google Scholar]
- Yang, Y. Research on non-uniform settlement control technology of high speed railway roadbed. Railw. Constr. Technol. 2013, 4, 47–51. [Google Scholar]
- Liang, B.; Cai, Y. Dynamic analysis of high-speed railway subgrade under uneven conditions. J. China Railw. Soc. 1999, 2, 93–97. [Google Scholar]
- Ye, Y.; Zhou, J. Discussion on the design of railway subgrade structure. J. Railw. Eng. Soc. 2005, 1, 39–46. [Google Scholar]
- Bi, Z.; Ye, Y.; Cai, D.; Yan, H.; Ouyang, M.; Su, K. Research on high-speed railway subgrade design method based on energy dissipation and dynamic stability characteristics. Appl. Sci. 2025, 15, 734. [Google Scholar] [CrossRef]
- Shaikh, M.F.; Nallasivam, K. Static analysis of box-girder bridge under the influence of Indian railway vehicle loading using ANSYS finite element model. Adv. Bridge Eng. 2022, 3, 25. [Google Scholar] [CrossRef]
- Qi, Y.; Xiao, S. The railway quadra-pot-shape earthworks structure analysis method. China Civ. Eng. J. 2022, 55, 116–128. [Google Scholar]
- Guo, S. Optimization analysis and research on cantilever U-shaped subgrade structure of high-speed railway. Railw. Stand. Des. 2022, 67, 1–6. [Google Scholar]
- Xiao, Z.-W.; Zhang, Y. Finite Element Modeling and Seismic Response Analysis of Pile Slab Structure. In Proceedings of the 2020 International Conference on Intelligent Transportation, Big Data & Smart City, Vientiane, Laos, 11–12 January 2020; pp. 122–126. [Google Scholar] [CrossRef]
- Wu, J.; Li, J. Research on the application of U-shaped structure in railway embankment section. Railw. Stand. Des. 2013, 9, 44–46. [Google Scholar]
- Zhang, J. Research on the structure mechanism of pallet U-shaped subgrade. Subgrade Eng. 2012, 4, 118–122. [Google Scholar]
- Wang, R.; Chen, T.; Li, W. Research and application status of concrete subgrade structure in high-speed railway. Subgrade Eng. 2024, 4, 18–26. [Google Scholar]
- Leng, W.; Nie, R.; Yang, Q.; Zhao, C.; Mei, H. Preliminary study on structure and performance of new prestressed subgrade. J. China Railw. Soc. 2016, 38, 111–119. [Google Scholar]
- Li, Y. Research on dynamic characteristics of box subgrade structure of high-speed railway. Railw. Constr. Technol. 2022, 7, 76–80. [Google Scholar]
- Zhu, W. Research on Structural Performance of Box Subgrade in High Speed Railway. Ph.D. Thesis, Southwest Jiaotong University, Chengdu, China, 2021. [Google Scholar]
- Chen, W.; Xiao, S.; Wang, X.; YU, L. Research on the static analysis method of railway box-type subgrade structure. Railw. Stand. Des. 2025, 66, 1–10. [Google Scholar]
- Liu, J.; Liu, J.; Zhou, W.; Xia, B.; Zhang, Y.; Zhang, W. Influence of haunching on the static characteristics of high-speed railway box-type subgrade. Railw. Stand. Des. 2024, 68, 68–73. [Google Scholar]
- Zhang, P.; Xiong, H.; Wang, R. Measurements and numerical simulations for cast temperature field and early-age thermal stress in zero blocks of high-strength concrete box girders. Adv. Mech. Eng. 2022, 14, 168781322210915. [Google Scholar] [CrossRef]
- Liu, J.; Zhou, W.; Cao, J.; Li, X.; Jin, Y.; Ye, Q.; Feng, G. Dynamic performance of a slab track–concrete box subgrade under a double-line high-speed railway. PLoS ONE 2024, 19, e0311969. [Google Scholar] [CrossRef]
- Chen, Y.; Xiao, H.; Song, X.; Guo, S.; Luo, B.; Nadakatti, M.M. Seismic response analysis of concrete box-type subgrade in high-speed railways. Appl. Sci. 2024, 14, 11899. [Google Scholar] [CrossRef]
- Zhu, Z.; Qin, Y.; Wang, K.; Gong, W.; Zheng, W. Determination of settlement limit values for a new concrete box subgrade with ballasted track. Structures 2022, 45, 1646–1656. [Google Scholar] [CrossRef]
- Wang, Z.; Huang, Q.; Xie, Q.; Xue, L.; Kang, X.; Gou, Y. Model test study on the dynamic response of high-speed railway subgrade crossing ground fissure zone. Front. Earth Sci. 2023, 11, 1113718. [Google Scholar] [CrossRef]
- Chen, Y.; Xiao, H.; Guo, S.; Zhao, W.; Nadakatti, M.M.; Xu, A. Multi-objective optimization of structural parameters for new box-type subgrade based on genetic algorithm. KSCE J. Civ. Eng. 2025, 100356, in press. [Google Scholar] [CrossRef]
- Liu, J.; Liu, J.; Zhou, W.; Xia, B.; Zhang, Y.; Zhang, B.; Zhang, W. Study on static characteristics of optimized structure with haunch angle in box subgrade of high-speed railway. Railw. Stand. Des. 2024, 68, 68–73. [Google Scholar] [CrossRef]
- Long, Y.; Bao, S. Introduction to Structural Mechanics (I); Higher Education Press: Beijing, China, 2000; ISBN 7-04-001089-5. [Google Scholar]
- GB 50010-2010; Code for Design of Concrete Structures. China Architecture & Building Press: Beijing, China, 2011.
- Wang, J.; Tang, S.; Zheng, H.; Zhou, C.; Zhu, M. Flexural Behavior of a 30-Meter Full-Scale Simply Supported Prestressed Concrete Box Girder. Appl. Sci. 2020, 10, 3076. [Google Scholar] [CrossRef]
- Liu, X. Research and Application of Modeling Pedi Rework of Domestic EMU. Master’s Thesis, Southwest Jiaotong University, Chengdu, China, 2021. [Google Scholar]
- China CRH EMU; Railway Engineering: Beijing, China, 2012; p. 106.
- Liu, Y.-C.; Day, M.L. Simplified modelling of thin-walled box section beam. Int. J. Crashworthiness 2006, 11, 263–272. [Google Scholar] [CrossRef]
- Liu, Y.; Day, M.L. Simplified modeling of cross members in vehicle design. In Non-Conference Specific Technical Paper; SAE International: Warrendale, PA, USA, 2007. [Google Scholar] [CrossRef]























| Symbol | Physical Interpretation | Unit |
|---|---|---|
| a | bottom slab width | m |
| b | clear distance between webs | m |
| c | top slab width | m |
| d | overhang length of the top plate flange | m |
| e | overhang length of the bottom slab flange | m |
| h | web-slab height | m |
| f | equivalent linear load width | m |
| q | equivalent linear load intensity | N/m |
| Position | Theoretical Value (kN·m) | FEM Value (kN·m) | Error |
|---|---|---|---|
| Midpoint of Top Slab | 10,581.93 | 10,400 | 1.75% |
| Inner Side of Web-Deck Joint | 14,818.34 | 14,435.80 | 2.65% |
| Outer Side of Web-Deck Joint | 6224.02 | 6057.51 | 2.75% |
| Location | Theoretical Value (kN) | FEM Value (kN) | Error |
|---|---|---|---|
| Inner side of web–top slab junction | 16,934.37 | 16,821.5 | 0.67% |
| Outer side of web–top slab junction | 8382.51 | 8269.24 | 1.34% |
| Web | 1946.87 | 1956.06 | 0.47% |
| Parameter | Original Design | Selected Design | Percentage Change |
|---|---|---|---|
| Web Spacing (m) | 6.0 | 5.0 | −16.67% |
| Web Height (m) | 7.0 | 6.5 | −7.14% |
| Concrete Consumption per km (m3) | 24,900 | 24,250 | −2.61% |
Disclaimer/Publisher’s Note: The statements, opinions and data contained in all publications are solely those of the individual author(s) and contributor(s) and not of MDPI and/or the editor(s). MDPI and/or the editor(s) disclaim responsibility for any injury to people or property resulting from any ideas, methods, instructions or products referred to in the content. |
© 2025 by the authors. Licensee MDPI, Basel, Switzerland. This article is an open access article distributed under the terms and conditions of the Creative Commons Attribution (CC BY) license (https://creativecommons.org/licenses/by/4.0/).
Share and Cite
Fang, J.; Hong, G.; Wen, X.; Wang, R.; Shentu, Q.; Chen, T.; Li, W. Static Analysis Method and Structural Optimization of Box-Type Subgrade for High-Speed Railways. Appl. Mech. 2025, 6, 85. https://doi.org/10.3390/applmech6040085
Fang J, Hong G, Wen X, Wang R, Shentu Q, Chen T, Li W. Static Analysis Method and Structural Optimization of Box-Type Subgrade for High-Speed Railways. Applied Mechanics. 2025; 6(4):85. https://doi.org/10.3390/applmech6040085
Chicago/Turabian StyleFang, Jianfeng, Gentian Hong, Xin Wen, Runmin Wang, Qiang Shentu, Tao Chen, and Weichao Li. 2025. "Static Analysis Method and Structural Optimization of Box-Type Subgrade for High-Speed Railways" Applied Mechanics 6, no. 4: 85. https://doi.org/10.3390/applmech6040085
APA StyleFang, J., Hong, G., Wen, X., Wang, R., Shentu, Q., Chen, T., & Li, W. (2025). Static Analysis Method and Structural Optimization of Box-Type Subgrade for High-Speed Railways. Applied Mechanics, 6(4), 85. https://doi.org/10.3390/applmech6040085

