Next Article in Journal
Prospection of the Red Biological Patinas Influencing the Urban Scenery Architecture in Portuguese Territory
Previous Article in Journal
Digital Immortality in Palaeoanthropology and Archaeology: The Rise of the Postmortem Avatar
 
 
Font Type:
Arial Georgia Verdana
Font Size:
Aa Aa Aa
Line Spacing:
Column Width:
Background:
Article

A Framework for Multi-Objective Optimization in Energy Retrofit of Heritage Museums: Enhancing Preservation, Comfort, and Conservation Conditions

Instituto de Investigaciones en Energía No Convencional (INENCO, UNSa-CONICET), Universidad Nacional de Salta, Avenida Bolivia 5150, Salta 4400, Argentina
*
Author to whom correspondence should be addressed.
Heritage 2024, 7(12), 7210-7235; https://doi.org/10.3390/heritage7120333
Submission received: 6 November 2024 / Revised: 11 December 2024 / Accepted: 12 December 2024 / Published: 16 December 2024
(This article belongs to the Section Museum and Heritage)

Abstract

:
Energy rehabilitation of heritage buildings used as museums presents unique challenges, as it must balance the preservation of cultural heritage with achieving comfortable indoor conditions for visitors and staff. These objectives often conflict, requiring innovative approaches. We propose a methodology that uses dynamical simulation with EnergyPlus and multi-objective optimization with jEPlus + EA software to reduce energy consumption and maximize comfort while maintaining architectural integrity and conservation conditions evaluated by a quantitative analysis based on the European Standards. The framework also includes monitoring microclimate conditions and assessing the risk levels of the exposed collections. A case study in Salta City, Argentina—a historical building repurposed as a museum—illustrates this approach. Results show improved energy performance and comfort conditions for visitors, with an annual energy requirement of about 36% of the original requirement (16.4 kWh/m2 versus 45 kWh/m2) and a decrease of about 32% in the discomfort hours (from 5362 h to 3643 h). Additionally, conservation conditions improved, achieving a more stable microclimate for air temperature and relative humidity. The framework proved useful for evaluating retrofit solutions that enhance the building’s energy performance and comfort without compromising the conservation conditions of the exhibited collections.

1. Introduction

Building energy consumption is a primary driver of global energy use and a significant source of CO2 emissions contributing to global warming. On average, buildings account for around 35% of total final energy consumption, with the residential and commercial sectors making substantial contributions [1]. Additionally, buildings are responsible for more than 50% of global electricity demand [1]. In the European Union, historic buildings constitute at least 30% of the built environment [2]. This type of building has one of the highest energy consumptions of the constructed building stock, mainly due to the low thermal insulation of the envelope, the poor carpentry quality against air infiltration, and the high thermal mass resulting from thick walls, among other characteristics [3,4]. Enhancing energy efficiency, especially in existing buildings, has become imperative for the architecture, engineering, and construction industries [1]. This is also the case for heritage buildings, for which scientific research has seen a significant and consistent rise over recent decades [5,6]. When planning energy retrofitting, heritage buildings used as museums face a unique challenge in balancing energy improvement with the dual goals of preserving cultural heritage and maintaining the optimal environmental conditions for their collections. The first challenge pertains to the architectural and artistic preservation of the building, while the second involves regulating the indoor microclimate to protect the objects and artworks on display.
Energy retrofitting of heritage buildings must account for architectural and artistic constraints that require preserving the building’s integrity. Martínez-Molina et al. (2016) [5] provide a deep overview of the methods and techniques for performance refurbishments across various historic building types, including residential, religious, and cultural structures. Notably, Europe, and more particularly Italy, is at the forefront of this research, adhering to a conservation philosophy that emphasizes minimal intervention to preserve heritage while enhancing energy performance [2]. Standard UNE 16883 (2018) [6] emphasizes energy efficiency in historic buildings, balancing preservation with contemporary sustainability needs through minimally invasive interventions. This approach imposes stricter design and operational constraints, particularly in energy efficiency improvements. A comprehensive review of energy efficiency measures and the preservation of cultural heritage was conducted by Lidelöw et al. (2019) [7]. Their findings suggest that further research is needed to address the intrinsic values of heritage buildings while developing effective energy retrofit strategies. Specifically, there is a significant gap in studies that explicitly analyze and articulate the relationship between cultural heritage values and energy efficiency measures.
Preserving the conservation conditions of exposed artworks after an energy retrofit of a building aims to minimize degradation risks and ensure the long-term preservation of the collections. Numerous studies have demonstrated that the degradation of objects can be slowed by managing environmental parameters such as temperature, relative humidity, light, ultraviolet radiation, particulate matter, and reactive gases [8]. Traditionally, recommended temperature and relative humidity ranges have been used to maintain objects in good condition. However, in recent years, the scientific community has shifted towards a more dynamic approach based on analyzing historical ambient conditions where objects have been exposed over long periods [9]. In this line, the European Standard EN 15757 (2010) [10] considers that over time, hygroscopic objects ‘acclimatize’ to microclimate conditions. Thus, modifying the indoor environment to minimize energy consumption or improve thermal comfort could modify the conditions to which the objects are exposed. In the past, the thermal comfort of the visitors and the staff was prioritized; however, contemporary research shows that the control of indoor environmental parameters should be based on preserving the exposed objects. Otherwise, there is a danger of deterioration or even destruction of exhibits [8]. Thus, when energy retrofitting is planned, the microclimate conditions of the retrofitted building should be—at least—as safe as the original conditions. Assessing degradation issues is complex and challenging, as it requires monitoring multiple environmental factors. A critical review of preventive conservation in museum buildings that describes theories and approaches spanning fifty years (1965–2016) in Europe, Canada, and the US was made by Bonora et al. (2019) [11]. Several researchers have assessed conservation by measuring environmental variables, with air temperature and relative humidity being the most studied factors [11,12,13,14,15,16].
In energy simulation, machine learning and artificial intelligence are also used to obtain energy-efficient retrofits and conservation, making it possible to optimize parametric simulations using evolutionary algorithms [17,18,19]. For example, Moretti et al. (2024) [20] investigated the preventive conservation of books and human comfort through dynamical thermal simulation to define guidelines for librarians. Roberti et al. (2017) [21] compared optimal retrofits of historic buildings using an analytic hierarchy process and multi-objective optimization and quantified the conservation compatibility by collecting the opinions of 10 experts in the field. Costa-Carrapico et al. (2020) [22] conducted a systematic review of multi-objective optimization for building retrofit and identified the strong applicability of genetic algorithms, particularly NSGA-II (non-sorting genetic algorithm II), developed by Deb et al. (2002) [23]. The authors highlighted the relatively underexplored field of heritage buildings. Liu and Chen (2023) [24] proposed an intelligent algorithm-based multi-objective optimization strategy for retrofitting architectural heritage. Wei et al. (2024) [25] proposed a systematic retrofitting methodology that integrates standard measures for building envelopes with heating, cooling, and lighting systems. This approach included energy simulation and NSGA-II.
From the literature review, it can be concluded that a holistic view is needed to ensure the proper preservation of the exposed heritage and, if possible, to achieve a comfortable indoor environment for visitors and staff. While prior research has largely focused on optimizing energy efficiency, thermal comfort, and preventive conservation through the control of environmental parameters—such as temperature, relative humidity, and light—they often neglect the specific impact of retrofitting on the microclimate conditions required for artifact preservation. The application of multi-objective optimization through genetic algorithms has emerged as a promising approach to enhance restoration efficiency and accuracy. However, research on the effect of such retrofit optimizations in the conservation conditions of the exposed objects is still lacking. This research focuses on this unexplored gap of knowledge by proposing a novel methodology that simultaneously addresses energy efficiency, thermal comfort, and conservation issues, contributing to the state of the art in sustainable energy retrofit for heritage contexts. Therefore, the advantage of this method compared to others in the literature is that our methodology ensures obtaining an optimized set of energy and comfort retrofit strategies together with the verification of the conservation conditions of the exhibited collections. The proposed framework is expected to contribute to preserving cultural heritage and conservation conditions of collections while improving building energy efficiency and indoor comfort. The main aims of this research are:
  • To develop a novel holistic retrofit framework: the methodology addresses these conflicting objectives by integrating multi-objective optimization, detailed energy modeling, and quantitative conservation indices.
  • To fill a research gap: the study specifically addresses the underexplored area of evaluating the effects of energy retrofits on the conservation conditions of objects displayed within museums.
  • To apply the framework to a case study: the methodology is applied to a colonial museum in Salta City, Argentina, where in situ monitoring, dynamic thermal simulations, optimization, and conservation analysis were performed.
  • To contribute to conservation and energy efficiency in museums: the results demonstrate the potential of advanced computational tools and optimization techniques to enhance energy efficiency while ensuring the preservation of architectural heritage and the conservation of exhibited collections.
The paper is structured in the following way. Section 2 describes the proposed methodology, which includes monitoring microclimate conditions, dynamical thermal simulation, multi-objective optimization, and evaluation of the conservation conditions. Section 3 describes the case study, a colonial building in Salta City (Argentina) currently used as a museum, the pre-evaluation of the short-term monitoring, and the detected hygrothermal problems for visiting people and collections. Section 4 presents the main results of the applied methodology and a deep discussion of the obtained retrofit proposals and their impact on energy consumption, comfort conditions, and conservation. Section 5 summarizes the main findings, key recommendations, and directions for future research.

2. Materials and Methods

Figure 1 shows a diagram of the proposed methodology. The main aim is to minimize the heating and cooling loads for rooms with active air-conditioning systems and minimize the discomfort time for those without active systems while ensuring the preservation of the building and the artwork pieces exhibited in its rooms. Three steps are proposed in the framework. In Step 1, monitoring the indoor microclimate provides information about the current temperature and relative air conditions. It also provides the experimental data for the validation of the thermal model that will be used to generate a simulation for a whole typical year of energy consumption, comfort conditions evaluated through the adaptive model of ASHRAE 55 Standard [26], and conservation evaluated through the EN 15757 Standard [10]. The preservation of the building architecture is ensured in Step 2 by defining the allowed strategies to be applied, considering the evaluation of the previous monitoring of the indoor hygrothermal conditions, the limited possibilities of intervention in a building with heritage value, and the local regulations. Multi-objective optimization is performed, and a set of optimal solutions is found (the Pareto front). In Step 3, the optimal solution is selected, and the conservation conditions are re-evaluated for the retrofitted building. The best solution is one in which the conservation conditions are at least as good as those of the non-retrofitted building. In the following, a deeper description of the involved methods is provided.

2.1. Step 1: Monitoring, Modeling, and Evaluating Current Conditions (Base Case)

2.1.1. Monitoring Indoor Microclimate Conditions

The indoor microclimate is determined by the outdoor climate, the characteristics of the building envelope, the type and use of the HVAC (heating, ventilation, and air conditioning) system, lighting and equipment, the occupancy pattern, and their corresponding schedules. In heritage buildings that were not specifically designed as museums, it is essential to monitor the variations of the indoor microclimate over time to determine both the hygrothermal conditions of the indoor spaces and the quality of the environment for the preservation of collections. The main variables to be analyzed are temperature and relative humidity, although, depending on the case, lighting, CO2 levels, and indoor pollutants can also be relevant [11]. Outdoor conditions, excessive heat, humidity from visitors, and a lack of control or inappropriate measures strongly influence indoor environmental fluctuations [12]. Therefore, this monitoring can contribute to detecting risk situations and preventing damage to the exhibits due to inadequate thermal and hygrometric conditions. Furthermore, it can help suggest strategies for the curator to improve climatic indoor conditions.
Hygrothermal monitoring is of uppermost importance for validating the simulated building behavior, as the thermal model of the building can be calibrated with monitored data to obtain a reliable model of the building behavior. Careful calibration of the thermal model is essential to reduce uncertainty and enhance the robustness of the simulation results, as an inaccurate modeling phase can result in misguided conclusions and interventions, ultimately distorting the evaluation of indoor thermal comfort and affecting retrofitting decisions [27]. This validated thermal model will be used to test the different energy retrofit strategies with a good level of confidence. In the proposed framework, indoor air temperature and relative humidity are the main variables of interest and must be measured at an hourly (or sub-hourly) frequency. While a period of 12 to 13 months of continuous monitoring is suggested by the international standards (i.e., ASHRAE [26] or EN 15757 [10]), this might not be suitable in all cases, so shorter periods of several weeks can be used to cover—at least—a winter and a summer period that represent the building behavior in the heating and cooling seasons. The monitoring equipment and dataloggers should be installed in the selected rooms because of their intrinsic interest in the analysis (for example, where collections are exhibited) or use (i.e., administrative spaces where comfort for staff must be ensured). The sensors should be installed at properly identified positions according to the geometric characteristics of the monitored space and avoid contact with local disturbances affecting their proper functioning, such as proximity to heat sources and direct light. Furthermore, they should be positioned by trying to make them the least visible as possible to visitors.

2.1.2. Thermal Simulation and Validation

The hygrothermal simulation of the building is made with EnergyPlus V23.2.0. [28] and OpenStudio 1.8.0 [29], both powerful tools used for building energy performance simulation. EnergyPlus, developed by the US Department of Energy, is a widely used energy simulation program that models thermal dynamics, energy consumption, and indoor air quality in buildings. Its ability to conduct detailed simulations allows users to evaluate various design strategies and energy efficiency measures. On the other hand, OpenStudio serves as a platform that enhances the usability of EnergyPlus by providing a graphical interface and modeling tools that simplify the process of creating and modifying the thermal models and enable users to easily integrate components such as HVAC systems and renewable energy sources.
To calibrate the thermal model, the hourly simulations of air temperature and relative humidity calculated through EnergyPlus are compared with the experimental data previously obtained, following the thresholds recommended by ASHRAE Guideline 14 (2014) [30] for calibration with monitored data. This Guideline suggests using NMBE (normalized mean bias error) and CVNRMSE (coefficient of variation of the normalized root-mean-square error), calculated with Equations (1) and (2), respectively, so the model is considered calibrated when NMBE < 10% and CVNRMSE < 30%:
N M B E = i = 1 n ( t m i t s i ) ( n 1 ) t m ¯
C V N R M S E = 1 t m ¯ i = 1 n ( t m i t s i ) 2 ( n 1 )
where t m i and t s i are the measured and simulated temperatures, respectively, for the hour i , t m ¯ is the average temperature of the period, and n is the total number of measurements. This procedure is repeated for each monitored room.

2.1.3. Simulation for a Whole Typical Meteorological Year (TMY)

The building’s hygrothermal behavior under typical meteorological conditions of one year was simulated by using the thermal model previously calibrated (Base Case). The results over a typical year allow for a complete picture of the hourly thermal conditions of all the building rooms, even those rooms that were not monitored. Usually, “typical” or “reference” years are employed, containing a one-year sequence of 8760 hourly values of meteorological parameters derived from a long-term database through statistical processing [31]. A typical meteorological year (TMY) is a set of meteorological data with values for every hour in a year for a given geographical location, and it can be calculated following the methodology described in ISO 15927-4 [31]. The data are selected from hourly data in a longer time period (normally 10 years or more). For each month in the year, the data were selected from the year that was considered statistically most “typical” for that month. For instance, January might be from 2007, February from 2012, and so on. TMY files are readily accessible from various freely available databases [32,33,34], making them a common choice in building simulations. For example, the website climate.onebuilding.org provides TMY files in EPW format (EnergyPlus Weather) for >16,100 sites in 249 countries worldwide.

2.1.4. Evaluation of Hygrothermal Conditions for People

The comfort conditions for people in a free-running building can be evaluated through the adaptive comfort model of the ASHRAE 55 Standard [26], which is based on the monthly mean outdoor air temperature T m , defined as the simple running average of the previous thirty daily average outdoor air temperatures. If the monthly mean outdoor air temperature T m is not within the specified domain of 10.0 to 33.5 °C, the model is not applicable. The model defines two comfort regions: 80% acceptability and 90% acceptability. We used an acceptability of 80%, so the operative temperature range T o (°C) is given by:
T o = 0.31 T m + 17.8 ± 3.5
where
T m = T o d 1 + T o d 2 + + T o d 30 30
where T o d i is defined as the daily average temperature of the ith previous day.

2.1.5. Evaluation of Hygrothermal Conditions for Object Conservation in Multiple Exhibition Rooms

The conservation conditions of the exposed objects can be evaluated through the European Standard EN 15757 [10]. This standard is usually applied for relative humidity because it is assumed to be the most determining factor in the damage of hygroscopic materials like wood, fabric, or paper [9]; however, it has also been used for the diagnosis of temperatures. The method is based on 13-month continuous measurements from which centered moving averages with a 30-day time window are calculated for each reading. Then, the differences between each reading and the corresponding centered moving averages are calculated, and they are the so-called “fluctuations”. Next, these fluctuations are ordered from the most extreme negative value to the most extreme positive one, and two reference percentiles, i.e., the 7-ile and the 93-ile, are determined, which are the limits of the safe band. Thus, the values falling between the two reference percentiles are considered acceptable as they lie in the safe band; those external to this band are considered dangerous as they lie in the risky area. The temporal bin to be considered for the percentile calculation is the monthly time window, e.g., 30 days, as in Annex A of the Standard.
The Standard requires 13 months of measurements to account for the specific request of the centered moving average with a 30-day time window. As we have simulated results for the 12 months of the TMY, we followed Camuffo et al.’s (2022) [35] proposal that will be presented for the new revision of the Standard in 2025. The authors propose extending the available 12 months by adding 15-day extensions at both ends of the year, which are obtained from repeating the corresponding data at both ends. With this procedure, having coincident values of the safe band calculated for the beginning and the end of the year is ensured. The underlying reason is that the additional month is requested by the particular method of calculation (30 days central moving average) but does not add physical information to reach the target values required by the Standard. This partial repetition at both ends for calculation purposes is acceptable because the record is considered representative of a normal year. In line with EN 15757 [10], if the distribution of critical runs (i.e., sequence of points outside the limits) is rather uniformly distributed along the year, then RH or T conditions are considered to be adequate.
A second important aspect is that the Standard does not specify how to proceed in the case of multiple sensors installed in the same room or several rooms of a heritage building. Applying the Standard to each sensor is time-consuming and makes it challenging to reach a consensus and derive general conclusions from the set of sensors, even in sites keeping artworks made of the same type of materials [9]. As we have data from several rooms, we adopted the methodology proposed by Díaz Arellano et al. (2021) [9]. They consider that short-term fluctuations affect equally at any position regarding the long-term preservation of artifacts exhibited in a given museum if they are composed of the same type of material. In the case of several data loggers located in the same room or site, different safe bands will be derived for each one, so a consensus criterion should be selected to determine a representative width for the safe band to be equally applied to all time series. Three possibilities are highlighted by Díaz Arellano et al. [9]: using the average or median of all sensors, selecting the smallest band size obtained from the sensors (a more conservative option that will cause a greater number of short fluctuations outside the safe band), or selecting the largest band size (useful for detecting only those deviations considered potentially most dangerous). We adopted the smallest band size criterion in our research, primarily due to the common practice among Cabildo’s curators of rotating the collections every few months to display them in different rooms. To evaluate the monthly ratio of out-of-band records, considering a whole complete hourly data set of records for N data loggers, the following equation is used [12]:
r i , j = o u t _ o b s i , j 12 K o u t _ o b s T O T A L
where i is the month of year, j the data-logger number ( 1 j K ) , o u t _ o b s i , j the number of out-of-band records for the month i registered by data-logger j , and o u t _ o b s T O T A L is the total maximum number of out-of-band values allowed for the K data loggers during 12 months (i.e., 14% of data in one year, which equals 1226 out-of-bound data points per year per data logger). Ideally, each month should present at most 14% of records outside the safe band. Once the monthly ratios r i , j were computed, three alert levels (i.e., safe, warning, and at risk) were established. The safe condition was defined for r i , j < 1 , the maximum alert “at risk” was considered for r i , j > 2 , and intermediate values were regarded as warning. Thus, when this ratio is one, the percentage of data outside the limits in a certain month is equal to the average in the whole period, which is 14% according to the standard. The method can be applied regardless of the number of months monitored, the frequency of data recording, or the number of data loggers used. Another advantage is that the method does not require a previous calibration of all sensors because it is based on short-term fluctuations, not on accurate, unbiased measurements.

2.2. Step 2: Defining Retrofit Strategies and Performing the Multi-Objective Energy and Comfort Optimization

Due to their historical significance and unconventional construction methods, energy-efficient retrofitting of heritage buildings presents unique challenges compared to modern structures. New technologies and materials must be non-invasive, possibly reversible, and cost-effective. Nair et al. (2022) [36] summarize the technical challenges and potential for implementing energy-efficient upgrades, including draught-proofing, window enhancements, insulation, ventilation, heating systems, solar photovoltaics, and phase change materials. Utilizing the thermal mass of historical buildings can significantly enhance energy efficiency. Other specific interventions, such as replacing lighting with LEDs and installing photovoltaic panels, can yield up to 35% energy savings while respecting historical features [37]. Additionally, innovative retrofitting techniques, like vacuum insulation panels, have been shown to improve energy performance by 55% without compromising the building’s envelope [38]. As shown, while these retrofits can substantially reduce energy consumption, there is no universal way to apply energy-efficient retrofitting in heritage buildings, as evidenced by numerous case studies in the literature. Furthermore, the relationship between conservation and the need for enhancement and new uses is always delicate and sometimes quite conflicting [2]. For example, the installation of modern HVAC systems in offices of historic buildings for improved energy efficiency and indoor comfort could imply invasive alterations that can compromise the architectural integrity and historical value of the structure. Often, the choice and implementation of retrofit solutions in historic buildings are limited by socio-technical barriers such as regulations, lack of knowledge on the hygrothermal behavior of built heritage, economic viability, etc. [39,40].
In conclusion, the definition of the set of strategies that can be implemented in a given building is strongly dependent on the building itself, local regulations, availability of the proposed retrofit technologies, and the assessment of experts. Every building is unique and must be deeply studied to be preserved, maintained, and retrofitted correctly [17].

Multi-Objective Energy and Comfort Optimization

Multi-objective optimization has two or more conflicting objectives, preventing simultaneous optimization of each objective [41], i.e., maximizing the comfort hours while minimizing energy consumption. The optimization process provides many non-dominated optimal solutions, known as the Pareto-optimal front, which are equally good from the perspective of the given objectives. In conditioned buildings, the objective variables are usually related to the energy consumption or the heat load. In contrast, in free-running buildings, they are the variables related to comfort conditions (dry-bulb air temperature, operative temperature, predicted mean vote (PMV), predicted percentage dissatisfied (PPD), adaptive predicted mean vote, SET (standard effective temperature), or HI (heat index), among others). To improve the building’s thermal behavior, retrofit strategies must be proposed and tested by the optimization process. These retrofit strategies will be characterized by parameters whose values will be tested in a given range of possibilities so the optimal Pareto front will be determined through genetic algorithms [42]. In this framework, we propose using the software jEPlus + EA version 2.1 [43], a free tool that works coupled with EnergyPlus. jEPlus + EA uses the non-dominated multi-objective genetic algorithm NSGA-II, which is one of the most popular multi-objective genetic algorithms because of its fast-running speed and the good convergence of the solution set. It has become the performance benchmark of multi-objective optimization algorithms.

2.3. Step 3: Re-Evaluation of the Conservation Conditions for the Optimized Retrofit

The standard recommends maintaining the historical climate, especially the relative humidity, if the object is stable. Then, the aforementioned statistical values (i.e., levels, intervals, cycles, and fluctuations) should be used to verify whether the climate has undergone any variation and the extent of such variation. The standard recommends that the same values should be used as a reference when planning heating, ventilation, or HVAC systems. Thus, in light of these recommendations, a new evaluation of the conservation conditions must be made for the Optimized Case. In the evaluation, the levels and intervals calculated for the Base Case are unchanged, so the new results are evaluated in light of such limits if the temperature has a lower impact on the objects than the relative humidity, as in organic hygroscopic materials. In that case, the main issue is preserving the relative humidity’s conservation conditions. When both temperature and relative humidity are equally important, the conservation conditions must be evaluated for both variables.

3. Case Study: Cabildo of Salta, Argentina

3.1. Building Description and Materials

The Cabildo of Salta City is the country’s most extended and best-preserved building (Figure 2). It served as the center of municipal governance and administrative affairs in the city during the colonial period. The building was selected as a Case Study because it has both air-conditioned spaces (offices) and non-conditioned ones (exposition rooms). Furthermore, space uses change in time (for example, exposition rooms are transformed into offices and vice-versa). Thus, the building faces several challenges while minimizing energy consumption and maximizing adaptive thermal comfort while maintaining the conservation conditions of the exposed collections. It was built around 1780 [44] and belongs to the group of monumental structures in the historic center of Salta around Plaza 9 de Julio. Typologically, it features a courtyard design with simple and austere ornamentation. The building has undergone numerous alterations and modifications over the years, and the lack of original technical documentation makes it challenging to determine the exact timeline of these changes. In 1940, the authorities declared it a national historic monument and significant renovation work was completed [44]. These renovations confirmed that the construction incorporated elements from different architectural styles and periods. Today, the building hosts the North Historical Museum, which features a variety of exhibits reflecting the city’s and Argentina’s past. The museum showcases colonial artifacts, including iron objects (pieces of numismatics, swords, and medals), sacred art objects, liturgical furniture—such as a carved wooden pulpit from the 18th century—and furniture pieces from the 18th and 19th centuries made of walnut, oak, and rosewood. It also displays original historical documents and manuscripts related to the region’s history and the independence movement.
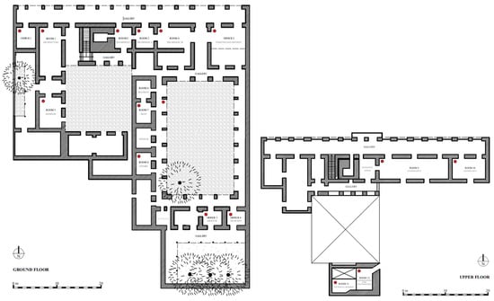
In Salta, there are 931 heritage-protected properties under the Urban Planning Code (Municipalidad de Salta, Ordenanza N° 13.779/10) [45]. Buildings built before the 18th-century feature thick load-bearing walls with small openings and colonial tile roofs. These buildings maintain a typical interior microclimate with minimal thermal variation compared to modern structures, acting as moderators between the objects they conserve or exhibit and the exterior climate. Previous studies [46,47,48] have characterized the environments of several historic buildings in Salta, confirming their significant thermal inertia. The Cabildo was inspected by using non-invasive inspection methods, including infrared thermography [49] to identify construction materials, in situ measurement of the thermal properties of the building’s walls [50,51], visual inspections to detect visible signs of damage or deterioration, and extensive photographic documentation, which captured detailed images of the museum’s condition, ensuring a thorough and comprehensive study. Figure 3 shows the schemes of the ground and first floors, where Rooms 1 to 10 are exhibition spaces, Rooms 11 and 12 are technical rooms for restoration work, and Offices 1 to 4 are administrative offices. Only Offices 1 and 2 and Technical Room 12 have heating devices (an electric fan) that are turned on only during the occupied periods. The opening schedule is Tuesday to Friday from 9 a.m. to 5 p.m., Saturday from 2 p.m. to 6 p.m., and Sunday from 10 a.m. to 2 p.m.
Based on visual inspections and in situ measurements, it was determined that the massive walls’ thicknesses range from 0.63 m to 1.10 m thick, and they are made of different materials: adobe walls (mainly interior walls on the first floor) and mixed walls (walls of the ground floor). Mixed walls are of two types: stone + solid ceramic brick and stone + adobe brick. A complete description of the building stratigraphy is provided in our previous work [51]. The mezzanine floors have a wooden structure and a ceramic floor, and the roofs have a wooden structure (pair and knuckle), reed or ceramic ceilings, a tiled roof (Table 1), and single-glazed windows 0.003 m thick with wooden shutters and timber frames (U-value = 5.8 W/m2K). The information in Table 1 was obtained through a technical survey provided by the museum director and experimental methodologies for determining the thermal properties of materials in situ.

3.2. Microclimatic Monitoring and Pre-Evaluation

Two short-term monitoring campaigns were performed during 15 days of both cold and hot seasons. The objective was to have a first approach to the building behavior and to collect monitored data to calibrate the thermal model of the building. The air temperature and relative humidity in 15 building spaces (11 on the ground floor and 4 on the first floor) were monitored at 15 min intervals from 1 to 16 July 2019 (cold season) and from 28 November to 17 December 2019 (hot season). The monitored spaces were selected to cover their uses as offices (4), exposition rooms (9), and technical spaces (2), as shown in Figure 2. Additionally, an extra sensor—protected from direct sunlight—was installed in an open gallery (at the west wing of the building’s central courtyard, see Figure 2) to register the outdoor air and relative humidity of the building’s urban environment. HOBO data loggers (models U12-011, U12-012, and U12-013) were used [52]. The dataloggers registered the air temperature (range: −20 °C to 70 °C, accuracy: ±0.35 °C, resolution: 0.03 °C at 25 °C) and the relative humidity (range: 5% to 95%, accuracy: ±2.5% from 10 to 90% typical to a maximum of ±3.5%, resolution: 0.05%). Solar irradiance was measured at the meteorological station (Davies Vantage Pro 2) of the National University of Salta, about 10 km from the city center. A complete description of both monitoring campaigns is presented in [45,46]. Thus, only the most remarkable aspects relevant to this study are summarized here.
Figure 4 illustrates the winter’s short-term temperature and relative humidity monitoring between 1 and 16 July 2019. Outdoor conditions are shown in Appendix A. The range of adaptive comfort ASHRAE-55, shown with a green shadow, is 21.6 ± 3.5 °C (for an 80% acceptability with a monthly mean temperature T m of 12.3 °C). As shown, the temperature in the Exposition Rooms (not heated) was uncomfortably low 96% of the hours. There are two groups of rooms with clearly differentiated thermal behavior: the group of highest temperatures (Rooms 2, 3, and 4, located in the North section of the ground floor) and the group of lowest temperatures (Rooms 9 and 10, located in the North section of the first floor; Rooms 7 and 8, between the two internal courtyards). It should also be highlighted that high daily temperature swings were observed in all the Exposition Rooms, mostly during sunny days, which should be evaluated from the conservation viewpoint on a yearly basis to check if such variations are inside the safe band considered by the standard. Air relative humidity oscillated between 48% and 73%, with daily fluctuations < 10%. In the offices, the air temperature reaches comfortable levels only when the fan heaters are turned on. In conclusion, most of the time, the indoor environment presents low temperatures and uncomfortable conditions for people. Therefore, actions that improve thermal comfort in winter are required in the Exposition Rooms to reduce both the people’s discomfort and the daily fluctuations for object conservation. Actions to minimize the energy consumption destined for air heating are required in the offices.
Figure 5 illustrates the short-term monitoring during the hot season (1 and 16 December 2019). Outdoor conditions are shown in Appendix A. For the comfort analysis with the adaptive model ASHRAE-55, we calculated the operative temperature range of 25.1 ± 3.5 °C (for an 80% acceptability and a monthly mean temperature T m of 23.6 °C). As shown, the summer conditions are good, with most of the records in the comfort zone in both the Exposition Rooms and Offices. The high thermal mass of the building is of uppermost importance to maintaining cool indoor spaces in summer, which is very convenient in a non-air-conditioned building. Rooms 9 and 10 on the first floor showed the highest temperatures and fluctuations, so they are the most critical from the conservation viewpoint. Relative humidity in the Exposition Rooms oscillated between 34% and 70% during the measurements. Again, a yearly analysis should be made to establish if fluctuations are inside the safe band for conservation.

3.3. Thermal Model of the Building and Validation

The building’s thermal behavior was simulated using EnergyPlus V23.1.0 [28] with the OpenStudio 1.8.0 interface [29]. SketchUp [53] with the OpenStudio SketchUp plug-in [54] was used for the building geometry. We are interested in the energy retrofit of Offices 1 and 2, where most people work, and the highest energy consumption for heating was detected, and Exhibition Rooms on the ground floor (Rooms 1 to 4) and on the first floor (Rooms 9 and 10), where high hygrothermal fluctuations were detected that could be potentially damaging for the exposed objects (iron, wood, and textiles). As previously shown from the measurements, these rooms on the first floor reached very low temperatures in winter (11 °C), and they presented the highest temperatures in summer, so they need to be carefully evaluated. Therefore, a simulation of the north section of the building was performed in order to include the most energy-consuming offices (1 and 2) and the exposition rooms with the highest fluctuations (Rooms 9 and 10). The thermal model of the building consists of eight convex thermal zones (Figure 6 and Appendix B). Exterior galleries were considered as shading devices (shown in purple in Figure 6). The constructive data were obtained from building plans, and the thermal properties of the building materials are summarized in Table 1. The occupancy schedule in offices was set as four occupants in Office 1 and two occupants in Office 2. In the Exposition Rooms, about 11 visitors/hour during the summer visiting period (January–February) and 2 visitors/h in the rest of the year were considered. In the offices, the use of a fan heater of 1800 W in the occupied period was included for the monitored winter period. As the Exposition Rooms keep their doors open during the visiting period, a constant value of three air changes per hour was adopted for air renewals in the Exposition Rooms during the visiting time and two air changes per hour in offices.
The model was simulated for the meteorological conditions of the measurement period by modifying the columns in the EPW file with the data of the meteorological station. The accuracy of the simulation results of both air temperature and relative humidity were checked according to ASHRAE Guideline 14 [30], and the resulting NMBE (normalized mean bias error) and CVNRMSE (coefficient of variation of the normalized root-mean-square error) are included in Appendix C. The simulated results versus the measured data were within the recommended limits (NMBE < 10% and CVNRMSE < 30%). In the case of temperature, the NMBE values obtained for each thermal zone varied between −3.2% and 7.4%, and the CVNRMSE between 4.3% and 9.0%. In the case of calibration of the relative humidity, the NMBE values varied between −9.9% and 4.5%, and the CVNRMSE was between 4.7% and 15.4%. Therefore, it is concluded that the thermal model is successfully validated for both air temperature and relative humidity and that the model can reproduce the hygrothermal behavior of the building.
Once validated with measured data, the thermal model was used to generate the whole-year behavior of the building under typical meteorological conditions. The typical meteorological year (TMY 2007–2021) for present weather was obtained for Salta City in EPW format from the database available on climate.onebuilding.org (accessed on 10 November 2024) [32]. This simulation was used to establish the Base Case for the typical meteorological year and evaluate the indoor conditions for people and conservation.

3.4. Parametric Optimization

For parametric optimization, we used jEPlus + EA version 2.1 [43]. The calibrated model was employed to assess various rehabilitation proposals. Two optimization objectives were considered: firstly, to minimize the annual energy demand of offices, and secondly, to minimize the discomfort hours in non-conditioned rooms during the visiting period. For the calculation of the energy demand, the Ideal Loads model was used in EnergyPlus with a constant thermostat set either to 21 °C in the heating period (from May to August) or 24 °C in the cooling period (from October to February) during the occupied hours. These values correspond to the average adaptive temperature of the period for the typical meteorological year, calculated according to ASHRAE-55 [26]. Thus, the energy requirements of Offices 1 and 2 were simulated, and the annual average value was considered the first optimization objective. To calculate the discomfort hours, they were evaluated through the adaptive comfort model of ASHRAE-55 (80% acceptability) included in EnergyPlus. The hours of discomfort throughout the year were reported for the six Exposition Rooms, and an average value was considered as the optimization objective.
The feasible retrofit strategies were focused on improving the thermal resistance of the envelope and control of air renewals. Intervention criteria established by the consulted bibliography were followed, reflecting a commitment to preserving the building’s historical significance. Moreover, only those retrofits allowed by the local regulations for historical buildings were considered. Thus, for the exterior walls of offices and exposition rooms, two possible retrofits were analyzed: thermal insulation and gypsum board added on the interior side of the wall, and thermal insulation and external adobe finishing on the exterior side of the wall (in both cases, the design variables were the insulation thickness in offices’ walls and the insulation thickness in exposition rooms’ walls, with independent variations of ground floor and first floor rooms). The uninsulated roof is a critical point for the poor thermal behavior of the first floor, so the addition of an insulation layer below the colonial tiles was considered. For windows, single glazing with wood shutters and double glazing were considered. The incorporation of thermal insulation on both the interior and exterior of the façade was identified as a viable strategy, given that the original walls are smooth and lack decorative moldings. Internal and external layers could be improved with insulation elements appropriately designed, as shown in the literature [55,56]. However, the final decisions lie within the jurisdiction of local authorities and building administrators. A range of air renewals, the times that the volume of air is renewed per hour, from 0.2 to 2.0 h−1 was included for offices and exposition rooms to check their effect on energy consumption and comfort conditions. The list of possible retrofit strategies and parameter ranges are shown in Table 2.

4. Results

4.1. Evaluation of the Energy Consumption, Comfort, and Conservation for the Typical Meteorological Year (Base Case)

4.1.1. Energy Consumption and Adaptive Comfort Conditions for People

The simulated hourly air temperatures for the offices and exposition rooms concerning the ASHRAE 55 comfort range with 80% acceptability are shown in Figure 7. The annual total energy requirement is 45 kWh/m2 of the conditioned area. People are in thermal discomfort about 61% (5362 h) of the total annual hours in the Exposition Rooms and 41% in offices. If only the occupied period is considered (2904 h/year), the number of hours of discomfort decreases to 47% in Exposition Rooms and 18% in offices. The discomfort is more frequent in the cool period in the non-conditioned rooms. In the offices, the thermostat at 21 °C during the heating period ensures the thermal comfort of people during the occupied period. In summer, both offices and rooms are non-conditioned; however, the indoor conditions fall mostly inside the comfort range due to the high thermal mass of the building. Thus, in conclusion, for visiting people to be comfortable, an increase in indoor air temperatures is needed in winter and mid-season (autumn and early spring) in the Exposition Rooms.

4.1.2. Conservation Conditions in the Exposition Rooms (Base Case)

The calculated safe bands for the air temperature and relative humidity in the six Exposition Rooms are shown in Table 3. It shows the upper and lower limits of the safe bands (percentiles 93-ile and 7-ile, respectively, of the air temperature and relative humidity changes) and the bandwidth in each exposition room. The highest fluctuations occur in the rooms on the first floor (Rooms 9 and 10), which should receive more attention regarding the need to implement corrective actions. As previously mentioned, analyzing each room individually is time-consuming, so using a common bandwidth for all rooms is convenient. The smallest band size was adopted, which is the most conservative criterion. Hence, the allowable temperature fluctuations concerning the central moving average are −2.1 °C and +2.3 °C, and for relative humidity, they are −14% and +15%.
These limits are plotted with the hourly simulated values for the typical meteorological year in Figure 8, while the monthly ratio of out-of-band r i , j   values are shown in Table 4. These r i , j values calculated with Equation (5) were classified according to the conservation conditions in safe, warning, and at risk in each room. Figure 8 shows that the most pronounced temperature fluctuations occur in winter in all rooms (June–August) and in November, with the highest number of hours outside the safe band occurring in Rooms 9 and 10 of the first floor due to the high thermal variations in those rooms probably caused by the thermal losses of the uninsulated roof. These rooms also present risky and warning conditions in summer, particularly dangerous for conservation purposes. The annual summary shows that no rooms are in safe conditions for temperature fluctuations. Regarding relative humidity, considered the most dangerous variable for the hygroscopic materials exhibited in the museum, conditions are worst in winter and spring in all rooms. It is interesting to note that, by Figure 8, the most compromised conditions related to air humidity occur in August and October in the rooms on the ground floor. When optimizing the energy behavior of the building, the target is trying to reduce (or, at least, not increase) the temperature and relative humidity fluctuations throughout the year by making fluctuations as small as possible.

4.2. Evaluation of Energy Consumption, Comfort, and Conservation for the Typical Meteorological Year (Optimized Case)

4.2.1. Energy Consumption and Adaptive Comfort Conditions for People

The optimization results are illustrated in Figure 9, with two optimization objectives. The first objective, on the vertical axis, is to minimize the average annual discomfort hours for the six Exposition Rooms (ASHRAE-55, 80% acceptability). The second objective, shown on the horizontal axis, is to minimize the energy demand of Offices 1 and 2 during both summer and winter. For this calculation, the thermostat was set to 21 °C from May to August and 24 °C from October to February. The original (Base Case) and the best solution (Optimized Case) are shown in Figure 9 with colored dots. The optimized solution consists of using external insulation in walls (with an insulation thickness of 0.14 m in the first floor and 0.095 in the ground floor), internal insulation with a thickness of 0.095 m, roof insulation of 0.2 m thick, and a decrease in the air renewals down to 0.2, which complies with the minimum value required for the Argentinean Standard for offices of 10 m3/h per person [57]. The Base Case presents an annual energy requirement of 45 kWh/m2 in offices and 5362 h of thermal discomfort in the Exposition Rooms according to the adaptive model of ASHRAE 55 with 80% acceptability. In comparison, the Optimized Case presents an improved behavior, with an annual energy requirement of about 16.4 kWh/m2 and 3643 h of people discomfort. These values roughly represent about 36% of the original energy requirement and a decrease of about 32% in the discomfort hours.
A closer inspection of the comfort conditions for people throughout the year is shown in Figure 10, where the simulated hourly air temperatures for the offices and the exposition rooms and the ASHRAE 55 comfort range limits are depicted. In comparison to the Base Case (Figure 7), it is evident that the mean indoor temperature of the exposition rooms was increased, and fluctuations were significantly reduced. This decrease benefits thermal comfort and object conservation, as the microclimate is more stable, as analyzed in the next section. The annual total energy requirement is 16.4 kWh/m2 of conditioned area. About 42% (3643 h) of the total annual hours in the Exposition Rooms, people are in thermal discomfort according to the ASHRAE 55 Adaptive model.

4.2.2. Conservation Conditions of Objects in the Exposition Rooms (Optimized Case)

Figure 11 and Table 5 show the results of the conservation conditions of the Optimized Case. Compared to the Base Case, a more stable microclimate is obtained for the air temperature and relative humidity in the six rooms. Temperature fluctuations were significantly reduced and safe conditions were achieved for all rooms. In the case of relative humidity, an improvement was obtained in all rooms; however, in August, the fluctuations were still in at-risk conditions. A dehumidifier could be installed to cope with relative humidity fluctuations during winter nights. The annual summary shows safe conditions for both temperature and relative humidity fluctuations, which is a significant improvement compared with the Base Case’s warning and at-risk conditions (Table 4). Therefore, it is concluded that the optimization process was successful in decreasing the energy consumption of the offices and the number of discomfort hours for visiting people in the Exposition Rooms while at the same time improving the conservation conditions by reducing the temperature and relative humidity fluctuations. However, critical conditions for relative humidity in August were not solved by the energy optimization; therefore, additional measures should be taken to tackle this problem.

5. Conclusions

This paper presents a new framework that links the energy and comfort optimization of a historic building used as a museum with preserving the architectural aspects and conserving the exposed collections. The framework includes hygrothermal monitoring, dynamic energy simulation, multi-objective optimization through genetic algorithms, and quantitative conservation evaluation. A historic building used as a museum in Salta City, Argentina, was used as study case. A model in EnergyPlus validated with the measured data was optimized through NSGA-II multi-objective genetic algorithm to minimize the energy consumption and thermal discomfort. The annual energy requirement was decreased to 36% of the original requirement and the discomfort hours were reduced 32%. Furthermore, the conservation conditions were also improved: a more stable microclimate was obtained for both air temperature and relative humidity. Verifying the retrofitted solutions through quantitative conservation indices allowed us to evaluate the effectiveness of various interventions, ensuring that conservation efforts are both proactive and responsive to the building’s evolving needs.
The proposed framework also has the potential for broader applicability, as it can be expanded and tested in other heritage buildings worldwide to validate its adaptability and effectiveness across diverse climatic and architectural contexts. Future work in this area should focus on implementing advanced technologies, such as integrated smart heritage management systems that combine real-time monitoring, predictive modeling, and automated control to optimize building performance and conservation simultaneously. Another promising avenue is the use of digital twin models of heritage buildings, enabling scenario-based testing of retrofitting strategies without physical intervention. Despite its promising prospects, several challenges persist. A key difficulty lies in retrofits that often require highly customized solutions. Limited access to advanced computational tools and non-invasive materials, particularly in resource-constrained regions, may also hinder widespread implementation. Additionally, adapting to unpredictable environmental conditions, especially those driven by climate change, presents an ongoing challenge for ensuring the preservation of heritage buildings for future generations.

Author Contributions

Conceptualization, S.F.-L. and C.G.-S.; methodology, S.F.-L. and C.G.-S.; software, S.F.-L.; monitoring, C.G.-S., M.H., and S.G.; validation, C.G.-S. and M.H.; optimization, C.G.-S.; data curation, C.G.-S., S.F-L.; writing—original draft preparation, C.G.-S. and S.F.-L.; writing—review and editing, S.F.-L. and M.H.; funding acquisition, S.F.-L. and C.G.-S. All authors have read and agreed to the published version of the manuscript.

Funding

This research was funded by Universidad Nacional de Salta, CIUNSA 2909.

Data Availability Statement

The raw data supporting the conclusions of this article will be made available by the authors on request.

Acknowledgments

Special thanks are extended to the Director of the Museo Histórico del Norte, Mario Lazarovich, to the conservator of the Cabildo, María Campero de Larran, and to all the museum staff for their excellent cooperation and support in the monitoring of the building.

Conflicts of Interest

The authors declare no conflicts of interest. The funders had no role in the design of the study; in the collection, analyses, or interpretation of data; in the writing of the manuscript; or in the decision to publish the results.

Nomenclature and Abbreviations

o u t _ o b s i , j Number of records out-of-bands for the month i registered by the data-logger j
o u t _ o b s T O T A L Total maximum number of out-of-band values allowed for all the data-loggers during 12 months
n Total number of measurements
r i , j Monthly ratio of out-of band records
t m ¯ Average temperature of the period, °C
t m i Measured temperature at the hour i , °C
t s i Simulated temperature at the hour i , °C
T m Monthly mean outdoor air temperature, °C
T o Operative air temperature, °C
T o d i Daily average temperature of the ith previous day, °C
U-valueThermal transmittance of the element, W/m2K
ASHRAEAmerican Society of Heating, Refrigerating and Air-Conditioning Engineers
CVNRMSECoefficient of Variation of the Normalized Root-Mean-Square Error
EPWEnergyPlus Weather Format
HIHeat Index
HVACHeating, Ventilation, and Air Conditioning
NMBENormalized Mean Bias Error
NSGA-IINon-Sorting Genetic Algorithm II
PMVPredicted Mean Vote
PPDPredicted Percentage of Dissatisfied People
SETStandard Effective Temperature
TMYTypical Meteorological Year

Appendix A. Outdoor Conditions of the Monitoring Periods

Figure A1. Outdoor air temperature, relative humidity, and solar irradiance on horizontal surface for the cold period (1–16 July 2019).
Figure A1. Outdoor air temperature, relative humidity, and solar irradiance on horizontal surface for the cold period (1–16 July 2019).
Heritage 07 00333 g0a1
Figure A2. Outdoor air temperature, relative humidity, and solar irradiance on horizontal surface for the hot period (29 November–14 December 2019).
Figure A2. Outdoor air temperature, relative humidity, and solar irradiance on horizontal surface for the hot period (29 November–14 December 2019).
Heritage 07 00333 g0a2

Appendix B. Thermal Zoning for EnergyPlus

Figure A3. Thermal zoning of the north section of the Cabildo in EnergyPlus, for the ground floor (top) and first floor (bottom). Source: own elaboration.
Figure A3. Thermal zoning of the north section of the Cabildo in EnergyPlus, for the ground floor (top) and first floor (bottom). Source: own elaboration.
Heritage 07 00333 g0a3

Appendix C. Calibration of the Thermal Model with Measured Data

Table A1. NMBE (normalized mean bias error) and the CVNRMSE (coefficient of variation of the normalized root-mean-square error) calculated in winter and summer, with the measured and simulated hourly values of temperature and relative humidity in the Exposition Rooms. According to ASHRAE Guideline 14 (2014) for calibration of simulation and monitored data, NMBE should be <10%, and CVNRMSE < 30%.
Table A1. NMBE (normalized mean bias error) and the CVNRMSE (coefficient of variation of the normalized root-mean-square error) calculated in winter and summer, with the measured and simulated hourly values of temperature and relative humidity in the Exposition Rooms. According to ASHRAE Guideline 14 (2014) for calibration of simulation and monitored data, NMBE should be <10%, and CVNRMSE < 30%.
Room 1Room 2Room 3Room 4Room 9Room 10
WinterTempNMBE−3.2%5.7%4.0%7.4%−0.6%−2.6%
CVNRMSE5.4%7.3%5.6%9.0%4.3%4.7%
RHNMBE4.5%−5.2%−3.9%−6.5%N/A−3.0%
CVNRMSE7.0%9.4%9.3%9.6%N/A4.7%
SummerTempNMBE0.7%3.1%1.1%5.1%3.7%1.8%
CVNRMSE5.5%6.4%5.8%7.1%6.0%5.5%
RHNMBE−3.0%−5.9%−4.3%−7.5%N/A−9.9%
CVNRMSE9.4%11.3%10.4%12.3%N/A15.4%

References

  1. IEA, IRENA & UN Climate Change High-Level Champions (2023), Breakthrough Agenda Report 2023, IEA, Paris. Available online: https://www.iea.org/reports/breakthrough-agenda-report-2023 (accessed on 20 November 2024).
  2. Franco, G.; Mauri, S. Reconciling Heritage Buildings’ Preservation with Energy Transition Goals: Insights from an Italian Case Study. Sustainability 2024, 16, 712. [Google Scholar] [CrossRef]
  3. Calcerano, F.; Thravalou, S.; Martinelli, L.; Alexandrou, K.; Artopoulos, G.; Gigliarelli, E. Energy and Environmental Improvement of Built Heritage: HBIM Simulation-Based Approach Applied to Nine Mediterranean Case Studies. Build. Res. Inf. 2024, 52, 225–247. [Google Scholar] [CrossRef]
  4. Kyritsi, E.; Philokyprou, M.; Kyriakidis, A.; Michael, A.; Michopoulos, A. Energy retrofitting of heritage buildings: An integrated methodology. IOP Conf. Ser. 2023, 1196, 012108. [Google Scholar] [CrossRef]
  5. Martínez-Molina, A.; Tort-Ausina, I.; Cho, S.; Vivancos, J.-L. Energy efficiency and thermal comfort in historic buildings: A review. Renew. Sustain. Energy Rev. 2016, 61, 70–85. [Google Scholar] [CrossRef]
  6. EN 16883:2018; Conservation of Cultural Heritage—Guidelines for Improving the Energy Performance of Historic Buildings. European Committee for Standardization: Plzen, Czech Republic, 2017. Available online: https://www.en-standard.eu/ (accessed on 20 November 2024).
  7. Lidelöw, S.; Örn, T.; Luciani, A.; Rizzo, A. Energy-efficiency measures for heritage buildings: A literature review. Sustain. Cities Soc. 2019, 45, 231–242. [Google Scholar] [CrossRef]
  8. Pavlogeorgatos, G. Environmental parameters in museums. Build. Environ. 2003, 38, 1457–1462. [Google Scholar] [CrossRef]
  9. Díaz-Arellano, I.; Zarzo, M.; García-Diego, F.-J.; Perles, A. A Methodology for the Multi-Point Characterization of Short-Term Temperature Fluctuations in Complex Microclimates Based on the European Standard EN 15757:2010: Application to the Archaeological Museum of L’Almoina (Valencia, Spain). Sensors 2021, 21, 7754. [Google Scholar] [CrossRef]
  10. EN 15757; British Standards Institute Staff. Conservation of Cultural Property—Specifications for Temperature and Relative Humidity to Limit Climate-Induced Mechanical Damage in Organic Hygroscopic Materials. University of New England: Biddeford, ME, USA, 2010.
  11. Bonora, A.; Fabbri, K.; Pretelli, M. Environmental microclimate management and risk in the unesco world heritage site of villa barbaro maser (Italy). ISPRS Ann. Photogramm. Remote Sens. Spat. Inf. Sci. 2019, 42, 269–276. [Google Scholar] [CrossRef]
  12. Ferdyn-Grygierek, J. Monitoring of indoor air parameters in large museum exhibition halls with and without air-conditioning systems. Build. Environ. 2016, 107, 113–126. [Google Scholar] [CrossRef]
  13. Fabbri, K.; Bonora, A. Two new indices for preventive conservation of the cultural heritage: Predicted risk of damage and heritage microclimate risk. J. Cult. Herit. 2021, 47, 208–217. [Google Scholar] [CrossRef]
  14. Lucero-Gómez, P.; Balliana, E.; Izzo, F.C.; Zendri, E. A new methodology to characterize indoor variations of temperature and relative humidity in historical museum buildings for conservation purposes. Build. Environ. 2020, 185, 107147. [Google Scholar] [CrossRef]
  15. Lucero-Gómez, P.; Balliana, E.; Farinelli, V.; Salvini, S.; Signorelli, L.; Zendri, E. Rethinking and evaluating the role of historical buildings in the preservation of fragile artworks: The case study of the Gallerie dell’Accademia in Venice. Eur. Phys. J. Plus 2022, 137, 150. [Google Scholar] [CrossRef]
  16. Lucchi, E. Review of Preventive Conservation in Museum Buildings. J. Cult. Herit. 2017, 29, 180–193. [Google Scholar] [CrossRef]
  17. Lucchi, E. Energy Efficiency of Historic Buildings. Buildings 2022, 12, 200. [Google Scholar] [CrossRef]
  18. Jiang, W.; Hu, H.; Tang, X.; Liu, G.; Guo, W.; Jin, Y.; Li, D. Protective energy-saving retrofits of rammed earth heritage buildings using multi-objective optimization. Case Stud. Therm. Eng. 2022, 38, 102343. [Google Scholar] [CrossRef]
  19. Akander, J.; Bakhtiari, H.; Ghadirzadeh, A.; Mattsson, M.; Hayati, A. Development of an AI Model Utilizing Buildings’ Thermal Mass to Optimize Heating Energy and Indoor Temperature in a Historical Building Located in a Cold Climate. Buildings 2024, 14, 1985. [Google Scholar] [CrossRef]
  20. Moretti, E.; Sciurpi, F.; Proietti, M.G.; Fiore, M. A Multidisciplinary Approach to the Evaluation of Air Quality and Thermo-Hygrometric Conditions for the Conservation of Heritage Manuscripts and Printed Materials in Historic Buildings: A Case Study of the Sala del Dottorato of the University of Perugia as a Model for Heritage Preservation and Occupants’ Comfort. Appl. Sci. 2024, 14, 5356. [Google Scholar] [CrossRef]
  21. Roberti, F.; Oberegger, U.F.; Lucchi, E.; Troi, A. Energy retrofit and conservation of a historic building using multi-objective optimization and an analytic hierarchy process. Energy Build. 2017, 138, 1–10. [Google Scholar] [CrossRef]
  22. Costa-Carrapiço, I.; Raslan, R.; González, J.N. A systematic review of genetic algorithm-based multi-objective optimisation for building retrofitting strategies towards energy efficiency. Energy Build. 2020, 210, 109690. [Google Scholar] [CrossRef]
  23. Deb, K.; Pratap, A.; Agarwal, S.; Meyarivan, T.A.M.T. A fast and elitist multiobjective genetic algorithm: NSGA-II. IEEE Trans. Evol. Comput. 2002, 6, 182–197. [Google Scholar] [CrossRef]
  24. Liu, Y.; Chen, J. A multi-objective optimization study of modern architectural heritage based on intelligent algorithms. In Proceedings of the International Conference on Computer, Artificial Intelligence, and Control Engineering (CAICE 2023), Shanghai, China, 24–26 March 2023; Volume 12465, p. 1264543. [Google Scholar] [CrossRef]
  25. Wei, H.; Jiao, Y.; Wang, Z.; Wang, W.; Zhang, T. Optimal retrofitting scenarios of multi-objective energy-efficient historic building under different national goals integrating energy simulation, reduced order modelling and NSGA-II algorithm. Build. Simul. 2024, 17, 933–954. [Google Scholar] [CrossRef]
  26. ASHRAE Standard 55; Thermal Environmental Conditions for Human Occupancy. ASHRAE: Atlanta, GA, USA, 2017.
  27. Costa-Carrapiço, I.; Croxford, B.; Raslan, R.; Neila González, J. Hygrothermal calibration and validation of vernacular dwellings: A genetic algorithm-based optimisation methodology. J. Build. Eng. 2022, 55, 104717. [Google Scholar] [CrossRef]
  28. EnergyPlus Software. Available online: https://energyplus.net/ (accessed on 20 November 2024).
  29. OpenStudio. Available online: https://openstudio.net/ (accessed on 20 November 2024).
  30. American Society of Heating, Ventilating, and Air Conditioning Engineers (ASHRAE). ASHRAE Guideline 14-2014, Measurement of Energy and Demand Savings; Technical Report; American Society of Heating, Ventilating, and Air Conditioning Engineers: Atlanta, GA, USA, 2014. [Google Scholar]
  31. ISO 15927-4:2005; Hygrothermal Performance of Buildings—Calculation and Presentation of Climatic Data—Part 4: Hourly Data for Assessing the Annual Energy Use for Heating and Cooling. ISO, International Organization for Standardization: Geneva, Switzerland, 2005. Available online: https://www.iso.org/standard/41371.html (accessed on 20 November 2024).
  32. Crawley, D.; Lawrie, L. Climate Database. Available online: https://climate.onebuilding.org/ (accessed on 20 November 2024).
  33. NREL. NREL Data Catalog. Available online: https://data.nrel.gov/ (accessed on 6 October 2024).
  34. Canada, 2024. Historical Climate Data—Climate-Environment and Climate Change Canada (2011) Oct. 31. Available online: https://climate.weather.gc.ca/ (accessed on 6 October 2024).
  35. Camuffo, D.; Della Valle, A.; Becherini, F. The European Standard EN 15757 Concerning Specifications for Relative Humidity: Suggested Improvements for Its Revision. Atmosphere 2022, 13, 1344. [Google Scholar] [CrossRef]
  36. Nair, G.; Verde, L.; Olofsson, T. A Review on Technical Challenges and Possibilities on Energy Efficient Retrofit Measures in Heritage Buildings. Energies 2022, 15, 7472. [Google Scholar] [CrossRef]
  37. Curto, D.; Franzitta, V.; Guercio, A.; Mantegna, M.; Milone, D. Energy Efficiency in Historic Architecture: The “Ex Institute of Zoology and Comparative Anatomy” in Palermo. Appl. Sci. 2023, 13, 8882. [Google Scholar] [CrossRef]
  38. Yuk, H.; Choi, J.Y.; Kim, Y.U.; Chang, S.J.; Kim, S. Historic building energy conservation with wooden attic using vacuum insulation panel retrofit technology. Build. Environ. 2022, 230, 110004. [Google Scholar] [CrossRef]
  39. Buda, A.; de Place Hansen, E.J.; Rieser, A.; Giancola, E.; Pracchi, V.N.; Mauri, S.; Marincioni, V.; Gori, V.; Fouseki, K.; Polo López, C.S.; et al. Conservation-Compatible Retrofit Solutions in Historic Buildings: An Integrated Approach. Sustainability 2021, 13, 2927. [Google Scholar] [CrossRef]
  40. Murillo-Camacho, K.S.; Fouseki, K.; Altamirano Medina, H. Decision-Making Processes of Residents in Preservation, Thermal Comfort, and Energy Efficiency in Heritage Buildings: A Pilot Study in Mexico City. Appl. Sci. 2022, 12, 1486. [Google Scholar] [CrossRef]
  41. Konak, A.; Coit, D.W.; Smith, A.E. Multi-objective optimization using genetic algorithms: A tutorial. Reliab. Eng. Syst. Saf. 2006, 91, 992–1007. [Google Scholar] [CrossRef]
  42. Lu, Y.; Wu, W.; Geng, X.; Liu, Y.; Zheng, H.; Hou, M. Multi-Objective Optimization of Building Environmental Performance: An Integrated Parametric Design Method Based on Machine Learning Approaches. Energies 2022, 15, 7031. [Google Scholar] [CrossRef]
  43. Zhang, Y.; Jankovic, L. JEA, An Interactive Optimisation Engine for Building Energy Performance Simulation; IBPSA Building Simulation: San Francisco, CA, USA, 2017. [Google Scholar]
  44. Buschiazzo, M.J. Cabildos del Virreinato del Río de la Plata: Buenos Aires, Argentina, 1946.
  45. Municipalidad de Salta, Ordenanza N° 13.779/10. Código de Planeamiento Urbano Ambiental. Available online: https://municipalidadsalta.gob.ar/wp-content/uploads/2020/11/CPUA_Compendio-ENERO-2020.pdf (accessed on 20 November 2024).
  46. Gea Salim, C.; Hongn, M.; González, S.; Flores Larsen, S. Evaluación Térmica y de Confort en Salas del Cabildo de Salta en Invierno. Av. Eneig. Renov. Medio Ambiente 2019, 23, 01.115–01.123. Available online: http://sedici.unlp.edu.ar/handle/10915/109530 (accessed on 20 November 2024).
  47. Gea Salim, C.; Hongn, M.; Gonzalez, S.; Flores Larsen, S. Comportamiento Térmico del Cabildo de Salta en Verano. Av. Eneig. Renov. Medio Ambiente 2020, 24, 89–99. Available online: https://avermaexa.unsa.edu.ar/index.php/averma/article/view/49/18 (accessed on 20 November 2024).
  48. Gea Salim, C.; Flores Larsen, S.; Hongn, M.; Gonzalez, S.; Gea, G. Rehabilitación Energética en Biblioteca del Museo Uriburu en Salta a Partir de Simulación Calibrada con Monitoreo Higrotérmico. In Proceedings of the Anais do VII Congresso Latino-Americano de Simulação de Edifícios IBPSA LATAM 2023, Florianópolis, Brasil, 9–10 March 2023; pp. 41–46. Available online: https://ibpsa.org.br/misc/documentos/proceedingsIBPSALatamFlorianopolis2023/IBPSA_LATAM_2023_anais.pdf (accessed on 20 November 2024).
  49. Flores Larsen, S.; Herr, C.; Gonzalez, S.; Gea, C. Termografía Infrarroja Aplicada al Cabildo de Salta. Un Primer paso hacia la Rehabilitación Energética de Edificios Históricos. In Proceedings of the 6° Congreso Sudamericano de Simulación IBPSA-AR, Mendoza, Argentina, 17–18 October 2019; International Building Performance Simulation Association (IBPSA-Argentina): Mendoza, Argentina, 2019; pp. 351–359. Available online: https://ibpsa.org.br/misc/documentos/proceedingsIBPSALatamMENDOZA2019/10_009.pdf (accessed on 20 November 2024).
  50. Flores Larsen, S.; Hongn, M.; Castro, N.; Gonzalez, S. Comparison of four in-situ methods for the determination of walls thermal resistance in free-running buildings with alternating heat flux in different seasons. Constr. Build. Mater. 2019, 224, 455–473. [Google Scholar] [CrossRef]
  51. Flores Larsen, S.; Hongn, M.; Valdez, M.; Gonzalez, S.; Gea Salim, C. In-Situ Determination of the Wall’s Thermal Properties for Energy Retrofit in a Colonial Heritage building: The Cabildo of Salta, Argentina. Int. J. Conserv. Sci. 2021, 12, 1191–1208. Available online: https://ijcs.ro/public/IJCS-21-89_Flores-Larsen.pdf (accessed on 20 November 2024).
  52. Onset, 2024. HOBO Dataloggers Sheet. Available online: https://www.onsetcomp.com (accessed on 20 November 2024).
  53. SketchUp Software. Available online: https://www.sketchup.com/ (accessed on 11 December 2023).
  54. OpenStudio SketchUp Plug-In. Available online: https://openstudiocoalition.org/ (accessed on 4 March 2023).
  55. Kruzel, R.; Helbrych, P. A technical and economic analysis of the thermal modernization of historic buildings using an innovative thermal insulating paint. Sci. Rev. Eng. Environ. Sci. 2019, 28, 212–223. [Google Scholar] [CrossRef]
  56. Mortarotti, G.; Morganti, M.; Cecere, C. Thermal Analysis and Energy-Efficient Solutions to Preserve Listed Building Façades: The INA-Casa Building Heritage. Buildings 2017, 7, 56. [Google Scholar] [CrossRef]
  57. Agencia de Administración de Bienes del Estado. Manual de Estándares de Espacios de Trabajo del Estado Nacional, AABE. 2019. Available online: https://www.argentina.gob.ar/sites/default/files/manual_de_estandares_final_1.pdf (accessed on 5 November 2024).
Figure 1. Diagram of the proposed framework. Source: own elaboration.
Figure 1. Diagram of the proposed framework. Source: own elaboration.
Heritage 07 00333 g001
Figure 2. Photographs of the façade of the Cabildo of Salta City, Argentina. Source: authors’ original photographs.
Figure 2. Photographs of the façade of the Cabildo of Salta City, Argentina. Source: authors’ original photographs.
Heritage 07 00333 g002
Figure 3. Ground floor (left) and first floor (right) of the Cabildo building and positioning of the data loggers. Source: own elaboration.
Figure 3. Ground floor (left) and first floor (right) of the Cabildo building and positioning of the data loggers. Source: own elaboration.
Heritage 07 00333 g003
Figure 4. Top: indoor temperature of the monitored winter period (1–16 July 2019) in the exposition rooms (a) and offices (b). The adaptive comfort model zone for 80% acceptability is shown in shaded green. Bottom: relative humidity in the exposition rooms (c).
Figure 4. Top: indoor temperature of the monitored winter period (1–16 July 2019) in the exposition rooms (a) and offices (b). The adaptive comfort model zone for 80% acceptability is shown in shaded green. Bottom: relative humidity in the exposition rooms (c).
Heritage 07 00333 g004
Figure 5. Indoor temperature of the monitored hot period (29 November–14 December 2019) in the exposition rooms (a) and offices (b). Shaded green shows the adaptive comfort model zone for 80% acceptability. Relative humidity in the exposition rooms is shown at the bottom (c).
Figure 5. Indoor temperature of the monitored hot period (29 November–14 December 2019) in the exposition rooms (a) and offices (b). Shaded green shows the adaptive comfort model zone for 80% acceptability. Relative humidity in the exposition rooms is shown at the bottom (c).
Heritage 07 00333 g005
Figure 6. SketchUp geometry of the north section of the Cabildo. Façade (a) towards north and back façade (b). Roofs are shown in red, walls in brown, and shading elements (balcony) in purple. Source: own elaboration.
Figure 6. SketchUp geometry of the north section of the Cabildo. Façade (a) towards north and back façade (b). Roofs are shown in red, walls in brown, and shading elements (balcony) in purple. Source: own elaboration.
Heritage 07 00333 g006
Figure 7. Hourly air temperature simulated for the typical meteorological year in the non-conditioned exposition rooms (a) and heated offices (b), for the twelve months of the year. The green lines correspond to the ASHRAE 55 adaptive comfort range with 80% acceptability.
Figure 7. Hourly air temperature simulated for the typical meteorological year in the non-conditioned exposition rooms (a) and heated offices (b), for the twelve months of the year. The green lines correspond to the ASHRAE 55 adaptive comfort range with 80% acceptability.
Heritage 07 00333 g007
Figure 8. Hourly air temperature (a) and relative humidity (b) for the typical meteorological year in the simulated Exposition Rooms for the Base Case. The grey band between the upper and lower limits covers the values in the safe band.
Figure 8. Hourly air temperature (a) and relative humidity (b) for the typical meteorological year in the simulated Exposition Rooms for the Base Case. The grey band between the upper and lower limits covers the values in the safe band.
Heritage 07 00333 g008
Figure 9. Multi-objective parametric optimization for the study case.
Figure 9. Multi-objective parametric optimization for the study case.
Heritage 07 00333 g009
Figure 10. Hourly air temperature simulated for the typical meteorological year in the non-conditioned exposition rooms (a) and in the heated offices (b) for the optimized building, for the twelve monthes of the year. The green lines correspond to the ASHRAE 55 adaptive comfort range with 80% acceptability.
Figure 10. Hourly air temperature simulated for the typical meteorological year in the non-conditioned exposition rooms (a) and in the heated offices (b) for the optimized building, for the twelve monthes of the year. The green lines correspond to the ASHRAE 55 adaptive comfort range with 80% acceptability.
Heritage 07 00333 g010
Figure 11. Hourly air temperature (a) and relative humidity (b) for the typical meteorological year in the simulated Exposition Rooms for the Optimized Case. The grey band between the upper and lower limits covers the values in the safe band.
Figure 11. Hourly air temperature (a) and relative humidity (b) for the typical meteorological year in the simulated Exposition Rooms for the Optimized Case. The grey band between the upper and lower limits covers the values in the safe band.
Heritage 07 00333 g011
Table 1. Technical characteristics of the Cabildo opaque building envelope. The thermal resistance of the adobe walls was measured in situ in our previous work [51].
Table 1. Technical characteristics of the Cabildo opaque building envelope. The thermal resistance of the adobe walls was measured in situ in our previous work [51].
MaterialsThickness [m]Thermal resistance [m2·K/W]
Adobe wallsExterior mud plaster + adobe + interior mud plaster0.630.85
Stone and brick wallsExterior lime and sand plaster + brick and stone walls with lime and sand mortar + interior plaster with lime and sand mortar1.000.83
RoofMuslin tiles + timber structure + ceramic tiled ceiling0.201.76
FloorCeramic tile + subfloor0.221.86
Mezzanine floorWooden structure and flooring--
DoorsWooden door0.030.26
Table 2. Optimization parameters.
Table 2. Optimization parameters.
Parameter DescriptionUnit[Minimum Value: Jump: Maximum Value]N° of Jobs
P0Room air renewals[1/h][0.2: 0.2: 2.0]10
P1Room internal wall insulation (first floor)[m][0.005: 0.01: 0.1]10
P2Room external wall insulation (first floor)[m][0.005: 0.015: 0.15]10
P3Office air renewals[1/h][0.2: 0.2: 2.0]10
P4Office external wall insulation[m][0.005: 0.015: 0.15]10
P5Office internal wall insulation[m][0.005: 0.01: 0.1]10
P6Office window type[-][‘Single glazing’, ‘Double Hermetic Glazing’, ‘Single glazing + wood shutter’]3
P7Roof insulation[m][0.005: 0.015: 0.20]14
P8Room external wall insulation (ground floor)[m][0.005: 0.01: 0.1]10
P9Room internal wall insulation (ground floor)[m][0.005: 0.01: 0.1]10
Total jobs4,200,000,000
Table 3. Limits for the safe band of temperature and relative humidity in each exposition room, obtained from the percentiles 7-ile and 93-ile of the hourly fluctuation distribution during a typical year. The values corresponding to the smallest bandwidth are used as a unique value for all rooms.
Table 3. Limits for the safe band of temperature and relative humidity in each exposition room, obtained from the percentiles 7-ile and 93-ile of the hourly fluctuation distribution during a typical year. The values corresponding to the smallest bandwidth are used as a unique value for all rooms.
Temp (°C)RH (%)
P7P93BandwidthP7P93Bandwidth
Room 1−2.32.44.7−151530
Room 2−2.93.26.1−151530
Room 3−2.12.34.4−151530
Room 4−2.32.54.8−151530
Room 9−3.53.97.4−151429
Room 10−3.53.97.4−151429
Table 4. Conservation conditions of the Base Case evaluated through the monthly and annual ratio of out-of-band values, considering a complete hourly data set of temperature and relative humidity for the six exposition rooms. The conservation conditions are safe (in green, when r i , j < 1 ), at risk (in red, when r i , j > 2 ), and warning (in yellow, when 1 r i , j 2 ).
Table 4. Conservation conditions of the Base Case evaluated through the monthly and annual ratio of out-of-band values, considering a complete hourly data set of temperature and relative humidity for the six exposition rooms. The conservation conditions are safe (in green, when r i , j < 1 ), at risk (in red, when r i , j > 2 ), and warning (in yellow, when 1 r i , j 2 ).
TemperatureRelative Humidity
Room12349101234910
January0.801.600.470.821.991.950.760.630.780.790.580.51
February0.721.720.620.772.312.300.180.240.230.200.270.23
March0.791.270.640.661.761.740.230.180.260.270.150.12
April0.160.670.140.231.131.050.340.390.440.470.300.30
May0.350.940.250.461.391.330.550.670.700.690.470.49
June0.922.170.801.382.762.661.852.012.041.931.811.82
July2.223.462.072.513.893.851.161.191.311.240.840.86
August2.763.832.842.934.304.332.062.192.362.391.621.55
September1.662.821.401.743.573.460.670.860.850.840.810.76
October0.842.040.640.892.742.702.101.972.182.021.801.84
November2.202.961.902.013.453.471.131.381.171.181.451.54
December0.681.820.460.712.522.550.420.370.570.470.310.29
Annual1.182.111.021.262.652.620.961.011.081.050.870.86
N° hours out-of-band/year144425891255154732533211117812421325128410661056
Table 5. Conservation conditions of the Optimized Case evaluated through the monthly and annual ratio of out-of-band values, considering a complete hourly data set of temperature and relative humidity for the six exposition rooms. The conservation conditions are safe (in green, when r i , j < 1 ), at risk (in red, when r i , j > 2 ), and warning (in yellow, when 1 r i , j 2 ).
Table 5. Conservation conditions of the Optimized Case evaluated through the monthly and annual ratio of out-of-band values, considering a complete hourly data set of temperature and relative humidity for the six exposition rooms. The conservation conditions are safe (in green, when r i , j < 1 ), at risk (in red, when r i , j > 2 ), and warning (in yellow, when 1 r i , j 2 ).
TemperatureRelative Humidity
Room12349101234910
January0.000.000.000.000.000.000.820.560.580.690.460.44
February0.000.000.000.000.000.000.160.110.290.170.050.06
March0.000.000.000.000.000.000.450.450.460.420.340.32
April0.000.000.000.000.000.000.080.080.110.050.030.02
May0.000.000.000.000.000.000.120.120.150.140.120.12
June0.000.000.000.000.000.000.710.700.700.740.690.51
July0.000.000.000.000.000.031.521.501.361.291.130.72
August0.000.000.000.000.000.033.803.523.363.493.192.22
September0.000.000.000.000.000.000.590.520.510.610.430.35
October0.000.000.000.000.000.001.891.651.571.751.290.62
November0.000.000.000.000.000.020.270.160.180.240.140.11
December0.000.000.000.000.000.000.820.730.710.870.580.37
Annual0.000.000.000.000.000.010.950.850.840.880.710.49
Disclaimer/Publisher’s Note: The statements, opinions and data contained in all publications are solely those of the individual author(s) and contributor(s) and not of MDPI and/or the editor(s). MDPI and/or the editor(s) disclaim responsibility for any injury to people or property resulting from any ideas, methods, instructions or products referred to in the content.

Share and Cite

MDPI and ACS Style

Gea-Salim, C.; Flores-Larsen, S.; Hongn, M.; Gonzalez, S. A Framework for Multi-Objective Optimization in Energy Retrofit of Heritage Museums: Enhancing Preservation, Comfort, and Conservation Conditions. Heritage 2024, 7, 7210-7235. https://doi.org/10.3390/heritage7120333

AMA Style

Gea-Salim C, Flores-Larsen S, Hongn M, Gonzalez S. A Framework for Multi-Objective Optimization in Energy Retrofit of Heritage Museums: Enhancing Preservation, Comfort, and Conservation Conditions. Heritage. 2024; 7(12):7210-7235. https://doi.org/10.3390/heritage7120333

Chicago/Turabian Style

Gea-Salim, Camila, Silvana Flores-Larsen, Marcos Hongn, and Silvina Gonzalez. 2024. "A Framework for Multi-Objective Optimization in Energy Retrofit of Heritage Museums: Enhancing Preservation, Comfort, and Conservation Conditions" Heritage 7, no. 12: 7210-7235. https://doi.org/10.3390/heritage7120333

APA Style

Gea-Salim, C., Flores-Larsen, S., Hongn, M., & Gonzalez, S. (2024). A Framework for Multi-Objective Optimization in Energy Retrofit of Heritage Museums: Enhancing Preservation, Comfort, and Conservation Conditions. Heritage, 7(12), 7210-7235. https://doi.org/10.3390/heritage7120333

Article Metrics

Back to TopTop