Heritage Building Information Modelling Implementation First Steps Applied in a Castle Building: Historic Evolution Identity, Data Collection and Stratigraphic Modelling
Abstract
:1. Introduction
2. Background
- The HBIM parametric model, concerning specific architectural elements, can be adapted as needed. However, the available library of current BIM software presents some limitations, and there is a lack of antique architectural elements required in the modelling of historical buildings. The time and effort required for modelling increases with the complexity of the building and the volume of particular details of the house. The buildings belonging to eras where construction standards start to develop, namely from the late nineteenth century and early twentieth century, could benefit from the creation of libraries of parametric objects for those specific construction types and components [12].
- The creation of a library of elements focused on antique architectural configurations contributes to the dissemination of the HBIM. In it, manual and semi-automatic modelling methods can be considered, focussing on aspects such as the as-built level of development (LoD) from the architectural and engineering perspectives [13]. Concerning HBIM, some aspects are normally considered, namely, model workflows of extracting information, the level of development (LOD) of the generated models and the regulation of the stakeholders’ participation in the conservation or retrofitting design [14]. The LoD level required depends on the characteristics of the building and the objectives of the study. A detailed model of level LoD 400, which reproduces as much as possible the geometric irregularities of the building and enriches by the maximum quantity the information available, is required in the HBIM context [9].
- The interior geometric forms of antique or historic buildings can include brick vaults, frescoes, stucco and decorations, with a great variety of solutions. Starting from laser scanning, photogrammetric and thermographic techniques, the reconstruction process of the geometry and construction techniques allows for the recognition and understanding of the construction richness, the multiplicity and uniqueness of each architectural element, made of recurrent elements and specific features, forming specific libraries of new parametric objects [15].
- The use of advanced technologies on image capture is a recurrent strategy in order to obtain accurate configurations supporting an efficient modelling process [16]. Current BIM platforms are able to explore workflows for automatically analysing point clouds and generate specific HBIM libraries. The parametric objects, and in a general way, the new families of objects, must be complemented by a typology classification and the identification of material constitution [17]. Some of the reported works aim to overcome the challenges of modelling existing buildings with insufficient or pre-existing documents [18] as well as addressing the relational complexity of information in a BIM context [19].
- The innovative technology enables a 3D representation of buildings while taking into account shapes, dimensions, conservation states and hypothetical transformations in time [20]. The technological innovative solutions have been applied to convert HBIM models into 3D representations suitable for portable devices for the purposes of virtual tours (VR) and augmented reality (AR) [21].
- To initialise the capture process of antique documents and images, specific tools and equipment related to cultural heritage processes are needed, focused on the organisation and coordinated storage and management of historical data. This first previous step allows professionals to perform an easy analysis and query, on time management, supporting the generation of 3D geometric models of irregular shapes, flexibility and user-friendliness [19]. The image capture work is frequently supported on photogrammetry technology. A photogrammetric framework comprises the phases of defining an optimal scanning equipment position and of collecting data with an autonomous scanning system. The number of scanning positions and the scanning operation time can be eventually reduced compared with a manual scanning work by skilled surveyors in real-world indoor environments [22].
- An HBIM model should represent the most natural and modern approach to historical assets management. The HBIM database of the model addresses the historical heritage field and must be kept updated and customised concerning all components, which is required to support the elaboration of projects concerning the preservation or rehabilitation of old buildings [23]. The database provides advantages in documentation retrieving over time and the identification of different construction phases, allowing to centralise all databases related to the building in analyses. The model database is made available in web-sharing platforms in order to support the development of tasks related to maintenance programs, structural analysis or VR/AR applications [24].
- Following the most recent technological advances that can be applied to support the engineers to realise their local inspection works, a great range of equipment can be applied (destructive and no destructive). Some non-destructive testing tools are ground-penetrating radars, impact echo tests, infrared thermography inspections, in-situ surface absorption tests, in situ carbonation experiments or surface rebound hammer examination. The destructive methods are normally only used on advanced stages of the heritage study process in order to evaluate the building security performance. The tools currently used can be applied to find the exact points where the buildings, materials, or components fail, and they are mainly based on stress analysis tests and the evaluation of the mechanic levels of material deterioration.
- In order to initialise the collecting process, it is necessary to study, list and described the distinct solutions available that can be used on the this first procedure. Therefore, the present text inserts a basic research concerning this first step, and after some required strategies were then applied, focused on the analyses of a heritage building case. In addition, as the present case is a castle complex, where the required preservation studies must be performed, the text intends to expose how the HBIM methodology can be applied and the aspects that must be worked out to conceive an adequate support for the preservation expert team.
3. Materials and Methods
3.1. Problem Statement
3.2. Scope of the Study
3.3. Main Contributions
3.4. Objective and Achievements
4. Collecting Documents
- Archived drawings: The availability of detailed 2D documents for heritage buildings is often limited due to the difficulty of the full coverage of the building’s details. The drawings of the heritage buildings are difficult to be retrieved due to data being scattered. The creation of an initial HBIM model requires, as a first step, a careful interpretation of the old drawings. Frequently, the drawings found in municipal archives include yellows and reds, helping to identify changes in the building over time;
- Reports and historic texts: Collecting the available written documents can help enhance an adequate understanding of the knowledge and design transformation processes associated with the heritage building. The HBIM model is meant to be an important repository platform of the building, including its historical context, statement of construction adjustments performed over time, reports of eventual actions of preservation or the detection of anomalies stated in texts and photographic surveys;
- Three-dimensional (3D) laser scanning: Data collection considers the 3D scanning data capture, which is a fast and reliable digital survey technique [10]. It can be applied by the interior and exterior of the building spaces. When a point cloud file is obtained, it is after imported from BIM software where the application of specific analytic algorithms allows conceiving a 3D parametric model based on the use of the new object related to a specific architectural epoch. In the last few years, the laser-scanning equipment has achieved considerable advances, improving the data quality collecting of old architectures, by the increase in the speed of data capture and the reducing of noise elements [28];
- Drone: The images’ data processing and the related analytic algorithms allow users to perform a set of photographic on aerial image data collected, representing the geometry of the entire building by the exterior. The drone capture method is useful for situations where performing architectural surveys, using traditional equipment, is time-consuming or even impossible to realise, such as in high roofs. It is also essential to have proper weather conditions and homogeneous lighting;
- Photogrammetry: The image survey can be obtained inside and outside the building in analyses, performed in a ground based or aerial work, saving time in the field, while proving to be extremely accurate at registering non-regular geometries of buildings [29]. It is a suitable survey technique to be used on buildings of high complexity of architectural detail. However, it is necessary to ensure that all geometry is captured by images with enough information overlap and to avoid large jumps between photos [30].
5. Castle and Adjacent Structure
5.1. Data Collection Procedure
- The first technical visit to the local site was conducted under the guidance of an expert with responsibilities in the conservation of heritage buildings, Jorge Manhita, a historian of the Division of Museums, Archaeology and Cultural Heritage of the City Hall of Faro. The oral exposition of the expert helped to conceive a first understanding of the constructive evolution in a historical context. The visit constituted an important base to an adequate perception concerning the metamorphoses, physical and functional, that occurred over years through its history and existence. The distinct occupation performed over the years always led to some kind of intervention, whether of expansion, adaptation, preservation or maintenance, reached to the present day. This type of knowledge helped to structure the historical stratigraphy, supporting the generation of the HBIM model of the heritage building in analyses. Numerous visits to the building were executed in order to carry out a photographical survey of the architecture in a general view and with great detail regarding the most relevant identified stonework. The captured images helped to obtain a correct and current representation of the building;
- Following the suggestion of the expert, distinct documented sources were retrieved from documental repositories of the Municipal Archive and the local museum. The document source initially considered was a set of minute books, with dates between 1924 and 1940, where the most relevant historical events related to the city were recorded. An important collection of old drawings and texts reporting the successive types of occupation of the complex was consulted;
- During the visits, a large photographic survey was carried out. It was possible to identify various types of material applied as masonry, both in interior and exterior walls. The material of the castle consisted of regular stone appliances (Figure 2). The interior walls, depending of the epoch of construction, presented rolled stones or the innovative reinforced concrete (Figure 2). The photographic images also made it possible to identify several anomalies, complementing the inspection visits that were required to support the analysis of the current state of conservation of the building.
- In the present case, an additional work concerning the identification of the composition of the walls in order to better classify historic eras and stages of demolishing and reconstruction was performed, as illustrated in distinct photographic sets. Part of the composition of antique walls was easily identified as the finishing material presented some detrition, which allowed visualising the interior composition of some walls.
5.2. Consultation of the Data Collection
- Published documents with relevant historical information were provided and consulted. These documents formed an important base for working within the historical reconstruction and modelling processes of the brewery factory:
- ○
- The industrial buildings of the Portugália Beer Factory in the Castle of Faro-Provisional opinion by Jorge Custódio and dated 1995;
- ○
- Process of the international competition for the installation of a Contemporary Art Museum project in 2001 by Hartmman and Cid Architects.
- Other documents registered in 1993 and made available by the department of the Information Systems for the Architectural Heritage (SIPA) added historical and architectural knowledge to the fortress:
- ○
- IPA 00001316, Fortress of Faro/urban fence of Faro;
- ○
- IPA 00004493, Seventeenth century fence/sixteenth century wall/fortified front of Faro (Figure 3).
5.3. Historical Evolution
- The castle of Faro, as an architectural structure of fortification, was erected in a dominant position over the soil, close to the communication routes, land, river and sea, with functions concomitantly defensible and residential. Although, at the beginning of the twentieth century, part of the wall was demolished, dividing the castle into two parts for the opening of a new street; it still preserves an architectural identity consolidated over eras, forming one of the last strongholds of southern military architecture;
- The Arab fortress, dating from the ninth century, was implanted in the extreme south of the current Vila Adentro in a strategic position and close to communication routes, presenting two accesses from the outside;
- After the Christian reconquest, in the thirteenth century, the Alcazaba is transformed into a castle, having been adjoined, already in the sixteenth century, in the west corner, to an observing tower oriented to the river;
- An external defensive military structure of the bulwark fortification was reported. In 1620, a first survey, the Codex Cadaval, commissioned by D. João de Castro, was elaborated (Figure 4). From the eighteenth century, a drawing plan of the old square of Faro was requested by the Military Governor of the Kingdom of the Algarve, Count of Vale de Reis (Figure 4).
- The Count of Resende, Governor and Captain General of the Kingdom of the Algarve, ordered the construction of a military quarter to install the Artillery Regiment of the Kingdom of the Algarve. According to the drawings, plan and elevations, dated 1763, the expansion of the castle presents a U-shaped building (Figure 5) adjoined to the east, south and west, and it was composed of three elevated floors in the main building and four elevated floors in the complementary towers.
- After leaving the military functions, a new phase of industrialisation was initiated in which the army alienated the castle to install, in the southern part, the workspaces of cordage, carpentry, and blacksmithing and in the east the installation of a beer distillery factory;
- In 1925, the following was decided by the City Council:
- ○
- That an avenue be opened bypassing the castle building, from which this Chamber has just acquired (...), as well as a street with the width of ten meters, cutting the area of the said building from north to south.
- The new opening, effectuated in 1930, introduces a rupture in the urban core, as it eliminates a section of the wall, demolished part of one of the towers of the castle and divided it into two zones, breaking the architectural unity. It then destroyed a section of the north and south walls, introducing a new gateway to Vila Adentro. In a detail of the city plan dated 1931, it is possible to identify the new entrance (Figure 5).
- The Malt and Beer Producing Company, named Portugalia, acquires part of the land and buildings located on the east side of the new castle entrance, and the required adaptation begins to be performed, between the years 1935/1940, with the construction of the factory and the existent spaces adopted to the new function. This factory marks an epoch, and it stands out over the main built by its height of 18 m. However, the beer distillery factory never came to work;
- In 1968, the space was occupied by another factory, the Beer and Wine Distribution Society of the South, which is named Cervisul. The Faro Infantry Regiment remained settled there until 1992;
- In 1999, the City Council reacquired the architectural ensemble on the east side of the castle and the old space of the antique Portugalia beer factory. Since then, several intentions to rehabilitate the space have been studied: namely, the installation of a Museum of Contemporary Art. Currently, there is a strategic and functional program for the requalification of the brewery building, which includes an art and creativity centre and a factory for the production of craft beer.
5.4. Three-Dimensional (3D) Scanned Images
- The selected column element is located in a space with plenty of natural light, coming from the existing openings in the façade of the factory building, and it is suitable for the execution of a photographic survey, which was carried out with the camera of the mobile phone, with the resolution capacity of 12 Mp (Figure 6). A total of 70 images were captured, which were made from the base of the column (with a particular shape detail) to the top (with a simpler configuration) along about 3.70 m height.
- Afterwards, the application allows archiving a complete 3D point cloud in the form of a .xyz extension file. Using the plug-in RecapPro (Autodesk), the file is converted into a file saved in .rcp data format;
- The obtained points cloud was then manipulated, having excluded or adjusted some of the points of the cloud when they presented an evident inconsistency, allowing one to reduce the size of the final .rcp file (Figure 7);
- The .rcp file is then imported by the Revit software, supporting the generation of a new parametric object, considered as a column family element, to be included in the library of the structural components or as a new family of the present project (Figure 8). At the base and on the face of the column most exposed to sunlight, the visualization of the points presents a good interpretation, so the definition of the new parametric object is facilitated;
- The created object presents a correct configuration; in addition, the respective material must be associated. Each Revit object, being parametric, considers not only the geometry but also the suitable physical properties of the material to be associated. Distinct types of information were added: namely, the correct material, the corresponding physical properties (mass and inertia), the construction technique applied, the state of conservation that was found, and the historical context of its construction, among others.
- The first limitation observed refers to the maximum number of 70 photographs that are possible to capture with the application, which was a quantity that was proved to be insufficient for the generation of a satisfactory points cloud in some zones of the shaft;
- The luminosity observed over the element under analysis can induce erroneous definitions of the real form. In Figure 6, some peripheral reduction in the shaft section of the column is visible in its top zone. This fact does not correspond to reality, and the justification lies in the lower luminosity of the surface, conducting an apparent missing of volume. The points clouds that are obtained in each operation can differ greatly from the original object, and it is necessary to perform operations with caution;
- After capturing images with the application and formatting the file according to the .rcp extension, it was necessary to make adjustments to the generated model in order to eliminate “noises” of the image, which requires some additional time.However, important and relevant advantages can be pointed out:
- The modelling process concerning constructive components supported on 3D scanning surveys made it possible to use the KIRI Engine application, which allowed speeding up the generation of a new parametric object or family of objects, enriching the library of structural elements of Revit and the project under analysis;
- The application is for mobile use, and with free access, contributing to its easy use in various types of situations when the capture of realistic form is required;
- The RecapPro plugin is accessible from the Revit system.



6. The Modelling Process
6.1. Modelling Steps and New Parametric Objects
- The process begins with the historic phase of the Castle of Faro. For the creation of the fortress wall, the create mass functionality was applied, following the layout represented in the ground plant of the consulted drawings. As some plants are related to the existing building and others are related to the mentioned Theodosius and Barracks antique drawings, an overlapping comparative drawings was then performed. These analyses allowed reconstructing the missing parts and the complete building of the tower. It was also found that the wall thickness of the military structure presented distinct thickness along its height. The wall element was defined as a mass, which was limited with two faces identifying the inside and the outside faces, using the functionality wall by face. To represent the raised pavement, the floor by face functionality was used. The first modelling stage is composed of walls and floors, following closely the real geometry of the Faro Castle;
- Going to the second phase, referring to the Military Quarter, a U-shaped building is identified. At this point, several families of windows (Figure 11) and doors (Figure 12) were generated, being the first specific elements created for the library of parametric objects of the present project. In the modelling process, the void forms option was used to cut the previous created wall as required to insert a window. The presence of two stairs, that provide access to the upper level, were also identified and modelled (Figure 12). For the creation of the stonework (Figure 13), the extrusion functionality was used to define the perimeter with the aid of straight and curved lines and a sweetened guide. Afterwards, the related material was associated to each new object: namely, wooden to the window structure, glass to the transparent panels and granite or calcareous to the stonework elements;
- In the third phase, a three-storey building and a tower located outside the wall fortress were finally modelled. The structural walls of the tower presents distinct thicknesses. The modelling process was conceived floor by floor, following the generation of the structural walls from the lower level to the upper limit. This modelling phase is based on undated plans, but a comparative exercise confronted the available elevations, such as new structures or building elements. Some of the demolished parts were also identified and modelled in order to obtain an HBIM model with a correct historical memory.
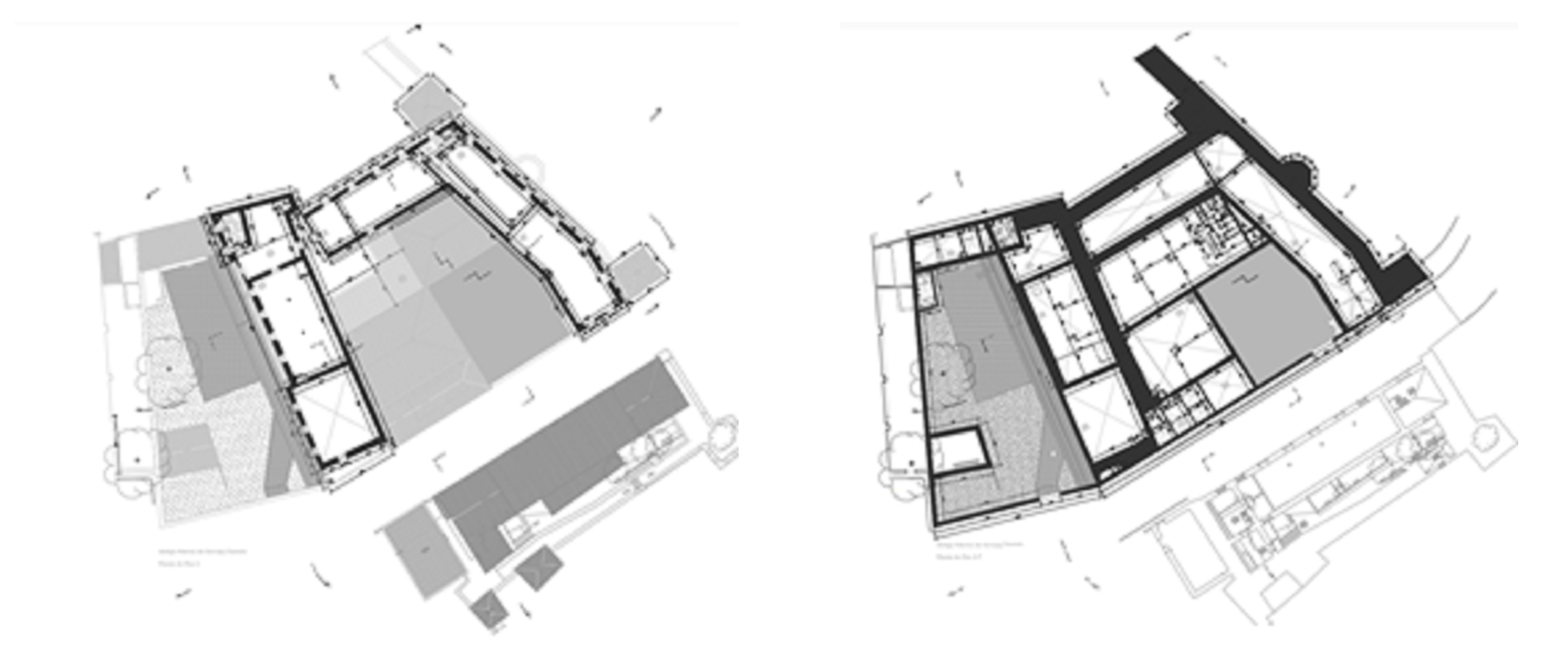
6.2. Stratigraphic Model
- Red—Alcazaba of the castle and walls (VIII–XVII century);
- Green—Military Artillery Quartering of the Kingdom of the Algarve (XVIII–XIX century);
- Blue—Workspaces, canneries and other industries (1822–1935);
- Yellow—Beer distillery Portugalia and the Infantry Regiment Quarter of Faro (1935–1999).
7. Discussion and Conclusions
Author Contributions
Funding
Data Availability Statement
Conflicts of Interest
References
- Nagy, G.; Ashraf, F. HBIM platform and smart sensing as a tool for monitoring and visualizing energy performance of heritage buildings. Built Environ. 2021, 8, 100056. [Google Scholar] [CrossRef]
- Megahed, N.A. Towards a Theoretical Framework for HBIM Approach in Historic Preservation and Management. Int. J. Archit. 2015, 9, 130–147. [Google Scholar] [CrossRef]
- Lopez, F.J.; Lerones, P.M.; Llamas, J.; Bermejo, J.G.-G.; Zalama, E. A review of heritage building information modeling (H-BIM). Multimodal Technol. 2018, 2, 21. [Google Scholar] [CrossRef]
- Khalil, A.; Stravoravdis, S. Challenges of Digital Building Data Usage with a Focus on the Digital Documentation of Heritage Buildings: Results from an Online Survey. Heritage 2022, 5, 3220–3259. [Google Scholar] [CrossRef]
- Donato, V.; Biagini, C.; Bertini, G.; Marsugli, F. Challenges and opportunities for the implementation of HBIM with regards to historical infrastructures: A case study of the Ponte Giorgini in castiglione della pescaia. Int. Arch. Photogramm. Remote Sens. Spat. Inf. Sci. 2017, XLII-5/W1, 253–260. [Google Scholar] [CrossRef]
- Carnevali, L.; Lanfranchi, F.; Russo, M. Built Information Modeling for the 3D Reconstruction of Modern Railway Stations. Heritage 2019, 2, 2298–2310. [Google Scholar] [CrossRef]
- Attenni, M. Informative Models for Architectural Heritage. Heritage 2019, 2, 2067–2089. [Google Scholar] [CrossRef]
- Khalil, A.; Stravoravdis, S.; Backes, D. Categorisation of building data in the digital documentation of heritage buildings. Appl. Geomat. 2020, 13, 29–54. [Google Scholar] [CrossRef]
- Brusaporci, S.; Maiezza, P.; Tata, A. A framework for architectural heritage HBIM semantization and development. Int. Arch. Photogramm. Remote Sens. Spat. Inf. Sci. 2018, XLII-2, 179–184. [Google Scholar] [CrossRef]
- Murphy, M.; McGovern, E.; Pavia, S. Historic Building Information Modelling: Adding intelligence to laser and image based surveys of European classical architecture. ISPRS J. Photogramm. Remote Sens. 2013, 76, 89–102. [Google Scholar] [CrossRef]
- Kamaruzaman, N.; Solihin, U. Historic Building Information Modelling (Hbim): A Review. In Proceedings of the 4th International Conference on Rebuilding Place, Penang, Malaysia, 6–7 November 2019; pp. 587–594. [Google Scholar] [CrossRef]
- Rocha, G.; Mateus, L.; Fernández, J.; Ferreira, V. A Scan-to-BIM Methodology Applied to Heritage Buildings. Heritage 2020, 3, 47–67. [Google Scholar] [CrossRef]
- Baik, A. From point cloud to Jeddah Heritage BIM Nasif Historical House—Case study. Digit. Appl. Archaeol. Cult. Heritage 2017, 4, 1–18. [Google Scholar] [CrossRef]
- Liu, J.; Foreman, G.; Sattineni, A.; Li, B. Integrating Stakeholders’ Priorities into Level of Development Supplemental Guidelines for HBIM Implementation. Buildings 2023, 13, 530. [Google Scholar] [CrossRef]
- Brumana, R.; Condoleo, P.; Grimoldi, A.; Banfi, F.; Angelo Giuseppe, A.; Previtali, M. HR LOD based HBIM to detect influences on geometry and shape by stereotomic construction techniques of brick vaults. Appl. Geomat. 2018, 10, 529–543. [Google Scholar] [CrossRef]
- Dore, C.; Murphy, M. Integration of Historic Building Information Modeling and 3D GIS for recording and managing cultural heritage sites. In Proceedings of the 18th International Conference on Virtual Systems and Multimedia, Virtual Systems in the Information Society, Milan, Italy, 2–5 September 2012; pp. 369–376. [Google Scholar] [CrossRef]
- Bruno, N.; Roncella, R. HBIM for Conservation: A New Proposal for Information Modeling. Remote Sens. 2019, 11, 1751. [Google Scholar] [CrossRef]
- Oliveira, S.G.; Biancardo, S.A.; Tibaut, A. Optimizing H-BIM Workflow for Interventions on Historical Building Elements. Sustainability 2022, 14, 9703. [Google Scholar] [CrossRef]
- García, E.S.; García-Valldecabres, J.; Blasco, M.J.V. The use of HBIM models as a tool for dissemination and public use management of historical architecture: A review. Int. J. Sustain. Dev. Plan. 2018, 13, 96–107. [Google Scholar] [CrossRef]
- Bruno, N.; Roncella, R. A restoration oriented HBIM system for cultural heritage documentation: The case study of Parma cathedral. Int. Arch. Photogramm. Remote Sens. Spat. Inf. Sci. 2018, XLII-2, 171–178. [Google Scholar] [CrossRef]
- Park, S.; Yoon, S.; Ju, S.; Heo, J. BIM-based scan planning for scanning with a quadruped walking robot. Autom. Constr. 2023, 152, 104911. [Google Scholar] [CrossRef]
- Cestari, C.B.; Marzi, T. Conservation of historic timber roof structures of Italian architectural heritage: Diagnosis, assessment, and intervention. Int. J. Sustain. Dev. Plan. 2018, 12, 632–665. [Google Scholar] [CrossRef]
- Hull, J.; Ewart, I.J. Conservation data parameters for BIM-enabled heritage asset management. Autom. Constr. 2020, 119, 103333. [Google Scholar] [CrossRef]
- Antonopoulou, S.; Bryan, P. BIM for Heritage: Developing a Historic Building Information Model. 2016. Available online: https://historicengland.org.uk/images-books/publications/bim-for-heritage/heag-154-bim-for-heritage/ (accessed on 4 September 2023).
- Boardman, C.; Bryan, P. 3D Laser Scanning for Heritage. Historic England: Swindon, UK, 2018. Available online: https://historicengland.org.uk/images-books/publications/3d-laser-scanning-heritage/heag155-3d-laser-scanning/ (accessed on 4 September 2023).
- Sampaio, A.Z.; Pinto, A.M.; Gomes, A.M.; Sanchez-Lite, A. Generation of an HBIM Library regarding a Palace of the 19th Century in Lisbon. Appl. Sci. 2021, 11, 7020. [Google Scholar] [CrossRef]
- Sampaio, A.Z.; Sanchez-Lite, A.; Zuluta, P.; Gonzalez, C. BIM application in the conservation of buildings of heritage value. In Proceedings of the 4th Meeting of Conservation and Rehabilitation of Buildings, Lisbon, Portugal, 3–6 November 2020. [Google Scholar]
- Sampaio, A.Z.; Pinto, A.M.; Gomes, A.M. Historic Building Information Modelling (HBIM): Parametric modeling and documentation file. In Proceedings of the 4th Meeting of Conservation and Rehabilitation of Buildings, Lisbon, Portugal, 3–6 November 2020. [Google Scholar]
- Palestini, C.; Basso, A.; Graziani, L. Integrated photogrammetric survey and BIM modelling for the protection of school heritage, applications on a case study. International Archives of the Photogrammetry. Remote Sens. Spat. Inf. Sci. 2018, XLII-2, 821–828. [Google Scholar] [CrossRef]
- Quattrini, R.; Battini, C.; Mammoli, R. HBIM to VR. Semantic awareness and data enrichment interoperability for parametric libraries of historical architecture. International Archives of the Photogrammetry, Remote Sens. Remote Sens. Spat. Inf. Sci. 2018, 42, 937–943. [Google Scholar] [CrossRef]
- Tomé, J. Heritage Building Information Modelling (HBIM): Organization of documentary collection and chronological information. Master’s Thesis, University of Lisbon, Lisbon, Portugal. in progress.
- Mateus, L.; Fernández, J.; Ferreira, V.; Oliveira, C.; Aguiar, J.; Gago, A.S.; Pacheco, P.; Pernão, J. Graphical data flow based in TLS and photogrammetry for consolidation studies of historical sites. The case study of Juromenha fortress in Portugal. Int. Arch. Photogramm. Remote Sens. Spat. Inf. Sci. 2019, 42, 767–773. [Google Scholar] [CrossRef]
- KIRI Engine. Available online: https://www.kiriengine.com/ (accessed on 4 September 2023).
- Shafie, K.; Madon, M. A review of stratigraphic simulation techniques and their applications in sequence stratigraphy and basin analysis. Bull. Geol. Soc. Malays. 2008, 54, 81–89. [Google Scholar] [CrossRef]
- Banfi, F.; Brumana, R.; Landi, A.G.; Previtali, M.; Roncoroni, F.; Stanga, C. Building archaeology informative modelling turned into 3D volume stratigraphy and extended reality time-lapse communication. Virtual Archaeol. Rev. 2022, 13, 1–21. [Google Scholar] [CrossRef]
- Stanga, C. Stratigraphic units inside heritage building information model: A novel approach for the representation of building archaeology. Int. Arch. Photogramm. Remote Sens. Spat. Inf. Sci. 2023, XLVIII-M-2, 1519–1526. [Google Scholar] [CrossRef]
- Muñoz-Muñoz, A.; Fernández-Sánchez, D.; Vijande-Vila, E.; Becerra-Martín, S.; Cantillo-Duarte, J.J.; Domínguez-Bella, S.; Martínez Enamorado, V.; Rengel Castro, F.; Cantalejo Duarte, P.; Espejo-Herrerías, M.d.M.; et al. Application of photogrammetry and laser scanner on the Bronze Age structures of the Castillejos de Luna cist tomb necropolis (Pizarra, Spain). Virtual Archaeol. Rev. 2023, 14, 26–44. [Google Scholar] [CrossRef]














Disclaimer/Publisher’s Note: The statements, opinions and data contained in all publications are solely those of the individual author(s) and contributor(s) and not of MDPI and/or the editor(s). MDPI and/or the editor(s) disclaim responsibility for any injury to people or property resulting from any ideas, methods, instructions or products referred to in the content. |
© 2023 by the authors. Licensee MDPI, Basel, Switzerland. This article is an open access article distributed under the terms and conditions of the Creative Commons Attribution (CC BY) license (https://creativecommons.org/licenses/by/4.0/).
Share and Cite
Sampaio, A.Z.; Tomé, J.; Gomes, A.M. Heritage Building Information Modelling Implementation First Steps Applied in a Castle Building: Historic Evolution Identity, Data Collection and Stratigraphic Modelling. Heritage 2023, 6, 6472-6493. https://doi.org/10.3390/heritage6100338
Sampaio AZ, Tomé J, Gomes AM. Heritage Building Information Modelling Implementation First Steps Applied in a Castle Building: Historic Evolution Identity, Data Collection and Stratigraphic Modelling. Heritage. 2023; 6(10):6472-6493. https://doi.org/10.3390/heritage6100338
Chicago/Turabian StyleSampaio, Alcínia Zita, João Tomé, and Augusto M. Gomes. 2023. "Heritage Building Information Modelling Implementation First Steps Applied in a Castle Building: Historic Evolution Identity, Data Collection and Stratigraphic Modelling" Heritage 6, no. 10: 6472-6493. https://doi.org/10.3390/heritage6100338
APA StyleSampaio, A. Z., Tomé, J., & Gomes, A. M. (2023). Heritage Building Information Modelling Implementation First Steps Applied in a Castle Building: Historic Evolution Identity, Data Collection and Stratigraphic Modelling. Heritage, 6(10), 6472-6493. https://doi.org/10.3390/heritage6100338

